SUBMITTED BY
M.PREETHI NAIDU 318106101013
D.SIVA NAGA GANESH 318106101028
K.GANESH PRAVEEN 318106101030
S.PRAVEEN 318106101039
CONTEXT
➢Introduction
➢Location and Relation of placing zone in Kitchen
➢Basic kitchen Planning
➢Kitchen Layouts
➢Kitchen Work Triangle
➢Types of Kitchen
➢Thumb Rules of Kitchen design
➢Types of kitchen material
➢Kitchen design styles
➢Kitchen modular components
➢Inferences
• The kitchen brings people in homes together. Meals are a time when
many families join to share both food and events of the day.
• Conversations often take place while cooking, cleaning, or just
spending time together.
• The kitchen features three main parts to ensure adequate preparation,
storage and cleaning of food, utensils and dishes.
Working Region
• The working region of the kitchen includes the range, oven, microwave
and other appliances involved in food preparation, Self-cleaning ovens
provide an easier solution of maintaining cleanliness.
• Food preparation equipment should all be in the same area.
• A center island counter top, where room allows, provides a central place
to prepare food
Storage Section
• A kitchen needs adequate facilities to store frozen, cold and dry food
goods, as well as dishes, plates, silverware, bowls, containers, pots and
pans. Many kitchens are connected to either a garage or the outside
through a door.
• Having the storage area close to this door provides easy access when
new groceries are brought in. Efficient kitchens have a roomy pantry in
addition to plenty of cabinet space.
Cleanup Zone
• The cleanup zone consists of the sink area,
dishwasher, trash compactor and storage area
for cleaning supplies.
• The cleanup area works well with a window
view. with plumbing from the sink and
dishwasher running along the outside of the
house. It also adds enjoyment to see outside
while cleaning
What is the Kitchen Work Triangle, you may ask?
• In most homes, the kitchen is usually the most used in the house. Because of this, the kitchen work triangle was
developed so that people could live happily and productively in their home. Here is the main concept for the kitchen
work triangle:
There are three main work areas in a kitchen:
• Refrigerator - the cold storage area
• Stove - the cooking area
• Sink - the cleaning area
• These three areas make up the triangle in this concept. More travel is done between these three areas than any other
areas in the kitchen. More room between these 3 areas means extra steps. Less room between these three areas means a
cramped work space.
• Therefore, the main goal of the triangle is to place the three main work areas the most efficient distance apart while
minimizing the amount of traffic that passes through the zone.
Here are some Kitchen Work Triangle basics:
• Each leg of the triangle should be somewhere between 4 to 9 feet.
• The combined total of all three legs should be between 12 and 26 feet.
• No obstructions (such as islands, cabinets) should intersect a leg of the work triangle.
• No household traffic should pass through the work triangle.
• Minimum space requirements in kitchen planning are
good guidelines to help you plan your kitchen.
• By having enough space in the right areas you will
greatly increase the functionality of your kitchen
layout. As well as making cooking a more enjoyable
experience.Taking some of these minimum space
requirements into consideration during the kitchen
planning process will help make your kitchen a much
easier place to work.
• Every kitchen needs a minimum of 10 feet of
countertop space. If the kitchen is over 175 square feet
the minimum should be 17 linear feet. A good rule of
thumb is to have 1 lineal foot of counter to every 10
square feet of floor space.
• 42 inches minimum between all permanent structures such as between the
countertop and island.
• 48 inches is recommended if more than one cook are regularly in the kitchen at the
same time.
• Minimum of 36 inches on both sides of the sink, 42 inches is preferred.
• Minimum 18 inches of counter space by the refrigerator, on the handle side.
• It's a good idea, but not necessary, to include a minimum of 24 inches of cabinet
storage for cookbooks, canned and dry goods near the prep area.
• Minimum of 24 inches on both sides of the cooktop or
range, but 30 inches is recommended.
• Cabinet storage should be the same as the countertop
space in inches for the cabinetry width. A pull down rack
from the over-the-range cabinet will utilize that space
better.
• Wall ovens are not used very often, therefore if your
kitchen is not very large it's a good idea to put the ovens
in a pantry or adjoining area.
• Microwaves are better when placed at countertop level to
make it easier to use. Microwaves over the range do
double duty and can save space, but only if no extra room
is available on the countertop or if you really want it over
the range.
• The dishwasher is best placed as close to the sink as possible. Either side is
good but if you are right handed it's better to the right and visa versa.
• You should also consider a drawer dishwasher, it may save you some space.
• Corner sinks are a good way to get extra space.
• If your kitchen has a dishwasher a double bowl sink is not necessary. A single
bowl sink will allow for bigger pans to be placed into them for easier
cleaning.
• An island as a work area should be a minimum of 3 x 4 feet.
• An island as a seating area should allow for 24 inches per person.
• 42 inches all of the way around an island, but 48 inches is recommended.
• With islands, if the work area in the kitchen is on opposite sides, the island
may be more of an interference than a helper. Islands are recommended in
kitchens that are 14 feet wide, or larger, with a minimum of 150 square feet
of total kitchen floor space.
• Doorways should be no less than 32
inches, but 36 inches is
recommended.
• If for some reason a swinging door is
not practical a pocket door is a very
good option.
• One doorway should be a minimum
of 36 inches to allow more room for
moving appliances.
• Another way to thinking, rather than to just focus on the work triangle, is to think in terms of so-called
work zones. As cooking has evolved, modern kitchen designs are leaning increasingly towards open
concepts, and there is often more than one person involved in the food preparation process. The
ideas behind dividing your kitchen into zones, is to store things in the right place and to improve your
cooking flow.
• This includes grouping items together that you use for specific tasks, such as baking, for efficiency
reasons. In your kitchen’s baking zone, for example, you would store everything you need for baking,
such as measuring cups, baking sheets, rolling pin, etc.
The so-called preparation zone can either be a stretch of kitchen countertop or
kitchen island, and should be located close to the cooking zone, in order to
quickly and easily put your prepped food into a pot or your oven. This area
should include everything you need to prepare your meals, such as knives,
chopping boards, measuring cups, etc.
Your cooking zone is described as the kitchen area that contains your stovetop,
oven and microwave, as well as pots, pans and spatulas.
Your kitchen’s sink and dishwasher belong in the so-called cleaning zone, and
this is the area in your kitchen where you would also typically store items, like
sponges, dishtowels and other cleaning utensils.
• The consumable zone is where you will store most
of your food in your kitchen. This area will usually
include both, the refrigerator and your food pantry
or cabinets.
• The non-consumable zone is the area in your
kitchen, where you store plates, bowls, glasses,
silverware and any other dishes for everyday use.
We all know the main function of a
kitchen is a location for storing, cooking
and preparing food, as well as being used
increasingly for dining and entertaining.
But what about the practical functions of
each of the various elements of your new
kitchen, such as the doors, cabinets,
worktops and storage?
• A kitchen cabinet is made of two parts, the door and
the cabinet carcass. Whilst cabinet carcasses are
important in terms of structure and size, the doors are
almost entirely responsible for the look and feel of
the kitchen.
• Whether you aspire to timeless solid wood,
traditional shaker, high-tech urban, or a look that lies
somewhere in between, kitchen cabinet doors can
help your dream become a reality.
• There are three basic structural components to the cabinet: the box, the shelves and the drawers and each can be
constructed in a number of ways. In the UK cabinets are available in three forms: already constructed at the factory
and ready to install, flat packed and ready to assemble and partly assembled.
The worktop is the real workhorse in your kitchen, and the item that takes the most punishment during the
life of your kitchen, so choosing the right one is really important. Worktops are available in a wide range of
materials, finishes and thicknesses. Each surface has its own unique properties, with differing levels of
water, wear and heat-resistance and a wide range of different guarantees.
• When planning the layout of your new kitchen, choosing the right kitchen storage options
will be at the very top of the list of things you and your designer will want to consider.
• Well thought through and accessible storage is crucial to a good kitchen design. The kitchen
is often the control centre of our homes - a meeting point where the family comes together
at the end of the day - so it's important to create a well-organised space that is not only a
pleasure to use but also assists our increasingly busy lifestyles.
• ONE WALLKITCHEN
• PARALLEL OR CORRIDOR KITCHEN
• L SHAPE KITCHEN
• U SHAPE KITCHEN
• ISLAND KITCHEN
These type of kitchen are generally found in studio or loft space because it is
ultimate space saver.
• In one wall kitchen all three centre are in one line or on one wall.
• In this type of kitchen excessive walking is required.
• Require more wall space.It don’t have corners so no dead space
ONE WALL KITCHEN
Advantages
1. Unimpeded traffic flow
2. Maximum openness : no barriers.
3. Simple and easy to design.
4. All services (water, electrical, drainage) in
one place.
Disadvantages
1. Limited counter space.
2. Does not utilize the classic work triangle.
TWO WALL KITCHEN
• Two walls facing each other have all of the kitchen services.
• It has compact work triangle.Less expensive and without
corners no dead storage space.
• Cross traffic can interfere in with the work triangle.Difficult
for two people to work together.
1. With counters on both sides, this layout is
highly functional because it uses theclassic
work triangle.
2. This layout gives a bit more space for
counters and cabinets.
1. Difficult for two person to work at the same
time.
2. Useless fourth wall.
Advantages Disadvantages
TRIANGLE WORK RULE OF TWO WALLKITCHEN
• It is most common type of kitchen and is usually found in many homes.It is
highly flexible design that can be adapted to many sizes and styles of kitchen.
• L shape layout reduces walking time between kitchen stations as it has efficient
work triangle.Usually one side is long and one is short because of placement of
big appliances.
Advantages
1. Best use of work triangle.
2. Increased countertop space.
3. Can add an island
Disadvantages
1. Long walk from end points of the of work
triangle (i.e. from range to refrigerator).
2. Blind corners are problem. Corner base
cabinets and wall cabinets are difficultto
reach.
TRIANGLE WORK RULE OF L - SHAPE KITCHEN
TRIANGLE WORK RULE OF L - SHAPE KITCHEN
TRIANGLE WORK RULE OF U - SHAPE KITCHEN
A great layout for larger kitchens, the U-shaped kitchen consists of cabinetry along
three adjacent walls. This type of layout provides plenty of storage but can feel
enclosed if there are upper cabinets on all three walls. To avoid this, choose upper
cabinets along only one or two walls, with open shelving, focal tiles or a hob hood on
the other. The U shaped kitchen allows for great workflow and multiple users at the
same time.
The U-shape kitchen can be thought of as a corridor-shape plan except that one
end has countertops or kitchen services and another is left open to allow access.
Advantages
1. This arrangement maintains good
workflow by means of the work
triangle.
2. The close end provides more
space for extra cabinets.
Disadvantages
1. Not suitable to have a kitchen
island because we don’t have
enough space around the
island
• A well planed and well designed kitchen island creates additional space for
appliances like microwaves and dishwashers, cooktop and become the hub
of several overlapping workstations.
• Whether the kitchen is large or small, the island need careful planning. The size
and shape should be in proportion to the kitchen, an island who is too big or
complicated can turn into an obstacle.
• Some Ways To Make Island Kitchen More Efficient And Functional.
1. Use a simple island to provide additional counter space.
2. In large kitchen, include a second sink in the island with counter space on
sides.
3. Using it as a additional counter for appliances like dishwasher, cooktop, range
in a kitchen where wall space is less
4. Using as a second work triangle in a large, two cook kitchen.
TRIANGLE WORK RULE OF ISLAND KITCHEN
• RULE 1:
THE WORK TRAINGLE THE
TRIANGLE MADE BY THE STOVE ,
THE SINK AND REFRIGERATOR -
SHOULD BE COMPACT ENOUGH
THAT IT ALLOWS CONVENIENT
AND EFFECTTIVE CIRCULATION
FOR THE CHEF, BUT GENEROUS
ENOUGH THAT TWO PEOPLE
WORKING IN THE KITCHEN
ARENT BUMPING INTO ONE AND
ANOTHER
RULE 2: MAKE IT SOCIAL AND FUNCTIONAL
The kitchen is the heart of the home, a space people
naturally gravitate to. With this in mind, gathering and
entertaining areas in the kitchen should be independent
of the Work Triangle so that guests can nibble on
appetisers, enjoy a drink, and watch the chef without
getting in the way of the cooking.
RULE 3: THINK ABOUT EVERY DOOR AND HOW YOU'LL
USE THEM
Architectural drawings should include the geometry of
appliance doors. This typically includes the swing of the
refrigerator door(s), the oven and dishwasher in their
open positions, and any other key operations like pull-
out rubbish bins. While these operations will most likely
overlap in some areas, it’s important to control which
ones overlap. For instance, the oven door and
dishwasher door can have overlapping operations as the
two are typically in use at different times.
RULE 4: SMOOTH CLEAN-UP AFTER A MEAL
The sink, rubbish bin and dishwasher have an important
linear relationship. The design of a kitchen should take
the sequence of meal clean-up into consideration. Most
households clear, rinse and place dishes into the
dishwasher in that order. Subsequently, the kitchen
design should locate the bin, sink and dishwasher in a
linear order with the bin closest to the eating area.
RULE 5: EASY UNPACKING OF GROCERIES
Kitchen ergonomics should address more than just
cooking. How you enter your home and unload groceries
is an important, and often overlooked, design
consideration. Locating the refrigerator and pantry near
the entry of the kitchen (and preferably near some
countertop) makes a kitchen work much more smoothly
in general.
1.Wood materials
• Wood veneers are sustainable and economical compared to wood as only thin slices of solid wood
are used to cover large surface areas. Veneers can make a potentially hard-edged kitchen look
softer. Veneers can be treated to achieve matte, semi-gloss and high-gloss finishes.
• These compressed sheets are both durable and affordable. Since the printed layer comes
on a paper backing, you can achieve the look of almost all materials (like wood, metal,
leather) with laminates. Its skin does not wear off, scratch or fade easily and it does not
require repeated polishing. Laminates are quite resistant to moisture and cleaning their
surface is much simpler because they are coated with a thin transparent plastic layer.
• This material is termite-proof, anticorrosive and easy to maintain. Just like laminates, PVC sheets are
easy to source and replace. PVC is an economical and sound alternative in comparison to laminates and
wood-based products.
Kitchen Laminated platform Kitchen Laminated Cabinates Kitchen Laminated Tiles
PVC Blister Kitchen
Cabinet
PVC Lacquer Melamine UV Modular
Metals boasts a unique look. Treated metal is sturdy, rust-resistant and stain-resistant. Metal doors are
unaffected by heat and humidity. These sheets are easy to scrub and clean, and are therefore unaffected by
the spice- and frying-induced grime deposited in our kitchens..
Stainless Steel Kitchen Cabinets Stainless Steel baskets Stainless Steel plat form
• We have the freedom to choose between hundreds of kitchen cabinets design,
countertops, range hoods and other appliances in order to develop our own
unique kitchen.
The various styles are
1. Traditional
2. Country style
3. Contemporary
4. Modern
5. Old world
6. Coastal
• Common traditional styles include black and white checkered flooring, wood
floors, cherry wood kitchen cabinet with green marble counters and even all-
white designs with blue accents.
• When choosing appliances, black and stainless steel work with both cherry and
white cabinetry.
• White tiles add a clean look and help reflect light, and artisanal or vintage-look
light fixtures add special touches.
• Contemporary kitchen cabinets are made of woods paler than cherry wood, a signature of the
traditional kitchen.
• Light blues, clear reds and other bright colors are regulars in contemporarykitchens.
• Contemporary kitchens are known for their usefulness. No-frills cabinetry and
simplicity provide a tidy look.
• Contemporary kitchen cabinets have very little lacework.
• Some people even use plain aluminium kitchen cabinets that are painted white, giving
their kitchens slightly retro appearances.
• This style is futuristic looking, using concrete, stone, metal and glass. High tech comes to mind when
thinking of this type of decor with lots of open space, bright lighting and square lines.
• White walls are predominant in a modern home with furnishings, accessories and fabrics
sporting neutral tone-on-tone color schemes.
• A lacquered finish on kitchen cabinetry is common.
• The art and accessories in a modern interior are extremely important and must exhibit striking
shapes or forms to make a statement.
• Special pieces should be called out with spotlights for visual impact.
• Whether you live at the beach or just wish you did, you can count on cool shades
of blue, green, white and sand to create a vacation-time mood.
• Seagrass and wicker seating are casual, comfortable and coastal.
• Fabrics and flooring designed to stand up to wet bathing suits make coastal-style
kitchens easy to care for, and window treatments that allow for maximum
sunlight will have everyone in let’s-get-to-the-beach mode bright and early .
• If you yearn for a time when materials were solid and craftsmanship was king,
old world design will embrace you in history and luxury.
• Look for dark mahogany finishes with lots of carving and detail, countertops
with ogee or bullnose edges, and stone or wooden floors. Add historical
accessories
• Modular kitchen offers the user, a fully functional design.
• Modular kitchen are of two type
1. Fully modular. 2. Semi-modular.
• Modular kitchen provide excellent storage space in limited space and also make
kitchen look more appealing.
• Modular kitchen is all about cabinets and drawers. When combined together they
form a modular kitchen design.
• The cabinets that you see below the granite platform in the modular kitchen are
known as the base cabinets.
• These offer great space to hold almost anything.
• From featuring stainless steel baskets to a number of drawers and shelves, the
base cabinets have them all.
• The baskets come in various sizes and can be used as per requirement.
• CORNER CABINET SOLUTIONS
MAGIC CORNER
in this all we have to do is to pull the door towards us and all the contents inside the
cabinet will come to us.
It uses the whole blind corner and gives options for maximum storage options and
provide easy access .
Cabinet door width 450mm.
(18”). Cabinet width 1050mm.
Available in wire base and flat base
baskets. As per kaff price 23000.
Space Planning Of Kitchen

Space Planning Of Kitchen

  • 1.
    SUBMITTED BY M.PREETHI NAIDU318106101013 D.SIVA NAGA GANESH 318106101028 K.GANESH PRAVEEN 318106101030 S.PRAVEEN 318106101039
  • 2.
    CONTEXT ➢Introduction ➢Location and Relationof placing zone in Kitchen ➢Basic kitchen Planning ➢Kitchen Layouts ➢Kitchen Work Triangle ➢Types of Kitchen ➢Thumb Rules of Kitchen design ➢Types of kitchen material ➢Kitchen design styles ➢Kitchen modular components ➢Inferences
  • 3.
    • The kitchenbrings people in homes together. Meals are a time when many families join to share both food and events of the day. • Conversations often take place while cooking, cleaning, or just spending time together. • The kitchen features three main parts to ensure adequate preparation, storage and cleaning of food, utensils and dishes.
  • 4.
    Working Region • Theworking region of the kitchen includes the range, oven, microwave and other appliances involved in food preparation, Self-cleaning ovens provide an easier solution of maintaining cleanliness. • Food preparation equipment should all be in the same area. • A center island counter top, where room allows, provides a central place to prepare food Storage Section • A kitchen needs adequate facilities to store frozen, cold and dry food goods, as well as dishes, plates, silverware, bowls, containers, pots and pans. Many kitchens are connected to either a garage or the outside through a door. • Having the storage area close to this door provides easy access when new groceries are brought in. Efficient kitchens have a roomy pantry in addition to plenty of cabinet space.
  • 5.
    Cleanup Zone • Thecleanup zone consists of the sink area, dishwasher, trash compactor and storage area for cleaning supplies. • The cleanup area works well with a window view. with plumbing from the sink and dishwasher running along the outside of the house. It also adds enjoyment to see outside while cleaning
  • 6.
    What is theKitchen Work Triangle, you may ask? • In most homes, the kitchen is usually the most used in the house. Because of this, the kitchen work triangle was developed so that people could live happily and productively in their home. Here is the main concept for the kitchen work triangle: There are three main work areas in a kitchen: • Refrigerator - the cold storage area • Stove - the cooking area • Sink - the cleaning area • These three areas make up the triangle in this concept. More travel is done between these three areas than any other areas in the kitchen. More room between these 3 areas means extra steps. Less room between these three areas means a cramped work space. • Therefore, the main goal of the triangle is to place the three main work areas the most efficient distance apart while minimizing the amount of traffic that passes through the zone. Here are some Kitchen Work Triangle basics: • Each leg of the triangle should be somewhere between 4 to 9 feet. • The combined total of all three legs should be between 12 and 26 feet. • No obstructions (such as islands, cabinets) should intersect a leg of the work triangle. • No household traffic should pass through the work triangle.
  • 8.
    • Minimum spacerequirements in kitchen planning are good guidelines to help you plan your kitchen. • By having enough space in the right areas you will greatly increase the functionality of your kitchen layout. As well as making cooking a more enjoyable experience.Taking some of these minimum space requirements into consideration during the kitchen planning process will help make your kitchen a much easier place to work. • Every kitchen needs a minimum of 10 feet of countertop space. If the kitchen is over 175 square feet the minimum should be 17 linear feet. A good rule of thumb is to have 1 lineal foot of counter to every 10 square feet of floor space.
  • 9.
    • 42 inchesminimum between all permanent structures such as between the countertop and island. • 48 inches is recommended if more than one cook are regularly in the kitchen at the same time. • Minimum of 36 inches on both sides of the sink, 42 inches is preferred. • Minimum 18 inches of counter space by the refrigerator, on the handle side. • It's a good idea, but not necessary, to include a minimum of 24 inches of cabinet storage for cookbooks, canned and dry goods near the prep area.
  • 10.
    • Minimum of24 inches on both sides of the cooktop or range, but 30 inches is recommended. • Cabinet storage should be the same as the countertop space in inches for the cabinetry width. A pull down rack from the over-the-range cabinet will utilize that space better. • Wall ovens are not used very often, therefore if your kitchen is not very large it's a good idea to put the ovens in a pantry or adjoining area. • Microwaves are better when placed at countertop level to make it easier to use. Microwaves over the range do double duty and can save space, but only if no extra room is available on the countertop or if you really want it over the range.
  • 11.
    • The dishwasheris best placed as close to the sink as possible. Either side is good but if you are right handed it's better to the right and visa versa. • You should also consider a drawer dishwasher, it may save you some space. • Corner sinks are a good way to get extra space. • If your kitchen has a dishwasher a double bowl sink is not necessary. A single bowl sink will allow for bigger pans to be placed into them for easier cleaning. • An island as a work area should be a minimum of 3 x 4 feet. • An island as a seating area should allow for 24 inches per person. • 42 inches all of the way around an island, but 48 inches is recommended. • With islands, if the work area in the kitchen is on opposite sides, the island may be more of an interference than a helper. Islands are recommended in kitchens that are 14 feet wide, or larger, with a minimum of 150 square feet of total kitchen floor space.
  • 12.
    • Doorways shouldbe no less than 32 inches, but 36 inches is recommended. • If for some reason a swinging door is not practical a pocket door is a very good option. • One doorway should be a minimum of 36 inches to allow more room for moving appliances.
  • 13.
    • Another wayto thinking, rather than to just focus on the work triangle, is to think in terms of so-called work zones. As cooking has evolved, modern kitchen designs are leaning increasingly towards open concepts, and there is often more than one person involved in the food preparation process. The ideas behind dividing your kitchen into zones, is to store things in the right place and to improve your cooking flow. • This includes grouping items together that you use for specific tasks, such as baking, for efficiency reasons. In your kitchen’s baking zone, for example, you would store everything you need for baking, such as measuring cups, baking sheets, rolling pin, etc.
  • 14.
    The so-called preparationzone can either be a stretch of kitchen countertop or kitchen island, and should be located close to the cooking zone, in order to quickly and easily put your prepped food into a pot or your oven. This area should include everything you need to prepare your meals, such as knives, chopping boards, measuring cups, etc. Your cooking zone is described as the kitchen area that contains your stovetop, oven and microwave, as well as pots, pans and spatulas. Your kitchen’s sink and dishwasher belong in the so-called cleaning zone, and this is the area in your kitchen where you would also typically store items, like sponges, dishtowels and other cleaning utensils.
  • 15.
    • The consumablezone is where you will store most of your food in your kitchen. This area will usually include both, the refrigerator and your food pantry or cabinets. • The non-consumable zone is the area in your kitchen, where you store plates, bowls, glasses, silverware and any other dishes for everyday use.
  • 16.
    We all knowthe main function of a kitchen is a location for storing, cooking and preparing food, as well as being used increasingly for dining and entertaining. But what about the practical functions of each of the various elements of your new kitchen, such as the doors, cabinets, worktops and storage? • A kitchen cabinet is made of two parts, the door and the cabinet carcass. Whilst cabinet carcasses are important in terms of structure and size, the doors are almost entirely responsible for the look and feel of the kitchen. • Whether you aspire to timeless solid wood, traditional shaker, high-tech urban, or a look that lies somewhere in between, kitchen cabinet doors can help your dream become a reality.
  • 17.
    • There arethree basic structural components to the cabinet: the box, the shelves and the drawers and each can be constructed in a number of ways. In the UK cabinets are available in three forms: already constructed at the factory and ready to install, flat packed and ready to assemble and partly assembled.
  • 18.
    The worktop isthe real workhorse in your kitchen, and the item that takes the most punishment during the life of your kitchen, so choosing the right one is really important. Worktops are available in a wide range of materials, finishes and thicknesses. Each surface has its own unique properties, with differing levels of water, wear and heat-resistance and a wide range of different guarantees.
  • 19.
    • When planningthe layout of your new kitchen, choosing the right kitchen storage options will be at the very top of the list of things you and your designer will want to consider. • Well thought through and accessible storage is crucial to a good kitchen design. The kitchen is often the control centre of our homes - a meeting point where the family comes together at the end of the day - so it's important to create a well-organised space that is not only a pleasure to use but also assists our increasingly busy lifestyles.
  • 20.
    • ONE WALLKITCHEN •PARALLEL OR CORRIDOR KITCHEN • L SHAPE KITCHEN • U SHAPE KITCHEN • ISLAND KITCHEN
  • 21.
    These type ofkitchen are generally found in studio or loft space because it is ultimate space saver. • In one wall kitchen all three centre are in one line or on one wall. • In this type of kitchen excessive walking is required. • Require more wall space.It don’t have corners so no dead space
  • 22.
    ONE WALL KITCHEN Advantages 1.Unimpeded traffic flow 2. Maximum openness : no barriers. 3. Simple and easy to design. 4. All services (water, electrical, drainage) in one place. Disadvantages 1. Limited counter space. 2. Does not utilize the classic work triangle.
  • 23.
    TWO WALL KITCHEN •Two walls facing each other have all of the kitchen services. • It has compact work triangle.Less expensive and without corners no dead storage space. • Cross traffic can interfere in with the work triangle.Difficult for two people to work together.
  • 24.
    1. With counterson both sides, this layout is highly functional because it uses theclassic work triangle. 2. This layout gives a bit more space for counters and cabinets. 1. Difficult for two person to work at the same time. 2. Useless fourth wall. Advantages Disadvantages
  • 25.
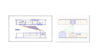
    TRIANGLE WORK RULEOF TWO WALLKITCHEN
  • 26.
    • It ismost common type of kitchen and is usually found in many homes.It is highly flexible design that can be adapted to many sizes and styles of kitchen. • L shape layout reduces walking time between kitchen stations as it has efficient work triangle.Usually one side is long and one is short because of placement of big appliances.
  • 27.
    Advantages 1. Best useof work triangle. 2. Increased countertop space. 3. Can add an island Disadvantages 1. Long walk from end points of the of work triangle (i.e. from range to refrigerator). 2. Blind corners are problem. Corner base cabinets and wall cabinets are difficultto reach.
  • 28.
    TRIANGLE WORK RULEOF L - SHAPE KITCHEN
  • 29.
    TRIANGLE WORK RULEOF L - SHAPE KITCHEN TRIANGLE WORK RULE OF U - SHAPE KITCHEN A great layout for larger kitchens, the U-shaped kitchen consists of cabinetry along three adjacent walls. This type of layout provides plenty of storage but can feel enclosed if there are upper cabinets on all three walls. To avoid this, choose upper cabinets along only one or two walls, with open shelving, focal tiles or a hob hood on the other. The U shaped kitchen allows for great workflow and multiple users at the same time.
  • 30.
    The U-shape kitchencan be thought of as a corridor-shape plan except that one end has countertops or kitchen services and another is left open to allow access. Advantages 1. This arrangement maintains good workflow by means of the work triangle. 2. The close end provides more space for extra cabinets. Disadvantages 1. Not suitable to have a kitchen island because we don’t have enough space around the island
  • 31.
    • A wellplaned and well designed kitchen island creates additional space for appliances like microwaves and dishwashers, cooktop and become the hub of several overlapping workstations. • Whether the kitchen is large or small, the island need careful planning. The size and shape should be in proportion to the kitchen, an island who is too big or complicated can turn into an obstacle.
  • 32.
    • Some WaysTo Make Island Kitchen More Efficient And Functional. 1. Use a simple island to provide additional counter space. 2. In large kitchen, include a second sink in the island with counter space on sides. 3. Using it as a additional counter for appliances like dishwasher, cooktop, range in a kitchen where wall space is less 4. Using as a second work triangle in a large, two cook kitchen.
  • 33.
    TRIANGLE WORK RULEOF ISLAND KITCHEN
  • 34.
    • RULE 1: THEWORK TRAINGLE THE TRIANGLE MADE BY THE STOVE , THE SINK AND REFRIGERATOR - SHOULD BE COMPACT ENOUGH THAT IT ALLOWS CONVENIENT AND EFFECTTIVE CIRCULATION FOR THE CHEF, BUT GENEROUS ENOUGH THAT TWO PEOPLE WORKING IN THE KITCHEN ARENT BUMPING INTO ONE AND ANOTHER
  • 35.
    RULE 2: MAKEIT SOCIAL AND FUNCTIONAL The kitchen is the heart of the home, a space people naturally gravitate to. With this in mind, gathering and entertaining areas in the kitchen should be independent of the Work Triangle so that guests can nibble on appetisers, enjoy a drink, and watch the chef without getting in the way of the cooking. RULE 3: THINK ABOUT EVERY DOOR AND HOW YOU'LL USE THEM Architectural drawings should include the geometry of appliance doors. This typically includes the swing of the refrigerator door(s), the oven and dishwasher in their open positions, and any other key operations like pull- out rubbish bins. While these operations will most likely overlap in some areas, it’s important to control which ones overlap. For instance, the oven door and dishwasher door can have overlapping operations as the two are typically in use at different times.
  • 36.
    RULE 4: SMOOTHCLEAN-UP AFTER A MEAL The sink, rubbish bin and dishwasher have an important linear relationship. The design of a kitchen should take the sequence of meal clean-up into consideration. Most households clear, rinse and place dishes into the dishwasher in that order. Subsequently, the kitchen design should locate the bin, sink and dishwasher in a linear order with the bin closest to the eating area. RULE 5: EASY UNPACKING OF GROCERIES Kitchen ergonomics should address more than just cooking. How you enter your home and unload groceries is an important, and often overlooked, design consideration. Locating the refrigerator and pantry near the entry of the kitchen (and preferably near some countertop) makes a kitchen work much more smoothly in general.
  • 37.
    1.Wood materials • Woodveneers are sustainable and economical compared to wood as only thin slices of solid wood are used to cover large surface areas. Veneers can make a potentially hard-edged kitchen look softer. Veneers can be treated to achieve matte, semi-gloss and high-gloss finishes.
  • 38.
    • These compressedsheets are both durable and affordable. Since the printed layer comes on a paper backing, you can achieve the look of almost all materials (like wood, metal, leather) with laminates. Its skin does not wear off, scratch or fade easily and it does not require repeated polishing. Laminates are quite resistant to moisture and cleaning their surface is much simpler because they are coated with a thin transparent plastic layer. • This material is termite-proof, anticorrosive and easy to maintain. Just like laminates, PVC sheets are easy to source and replace. PVC is an economical and sound alternative in comparison to laminates and wood-based products. Kitchen Laminated platform Kitchen Laminated Cabinates Kitchen Laminated Tiles
  • 39.
    PVC Blister Kitchen Cabinet PVCLacquer Melamine UV Modular Metals boasts a unique look. Treated metal is sturdy, rust-resistant and stain-resistant. Metal doors are unaffected by heat and humidity. These sheets are easy to scrub and clean, and are therefore unaffected by the spice- and frying-induced grime deposited in our kitchens.. Stainless Steel Kitchen Cabinets Stainless Steel baskets Stainless Steel plat form
  • 40.
    • We havethe freedom to choose between hundreds of kitchen cabinets design, countertops, range hoods and other appliances in order to develop our own unique kitchen. The various styles are 1. Traditional 2. Country style 3. Contemporary 4. Modern 5. Old world 6. Coastal
  • 41.
    • Common traditionalstyles include black and white checkered flooring, wood floors, cherry wood kitchen cabinet with green marble counters and even all- white designs with blue accents. • When choosing appliances, black and stainless steel work with both cherry and white cabinetry. • White tiles add a clean look and help reflect light, and artisanal or vintage-look light fixtures add special touches.
  • 42.
    • Contemporary kitchencabinets are made of woods paler than cherry wood, a signature of the traditional kitchen. • Light blues, clear reds and other bright colors are regulars in contemporarykitchens. • Contemporary kitchens are known for their usefulness. No-frills cabinetry and simplicity provide a tidy look. • Contemporary kitchen cabinets have very little lacework. • Some people even use plain aluminium kitchen cabinets that are painted white, giving their kitchens slightly retro appearances.
  • 43.
    • This styleis futuristic looking, using concrete, stone, metal and glass. High tech comes to mind when thinking of this type of decor with lots of open space, bright lighting and square lines. • White walls are predominant in a modern home with furnishings, accessories and fabrics sporting neutral tone-on-tone color schemes. • A lacquered finish on kitchen cabinetry is common. • The art and accessories in a modern interior are extremely important and must exhibit striking shapes or forms to make a statement. • Special pieces should be called out with spotlights for visual impact.
  • 44.
    • Whether youlive at the beach or just wish you did, you can count on cool shades of blue, green, white and sand to create a vacation-time mood. • Seagrass and wicker seating are casual, comfortable and coastal. • Fabrics and flooring designed to stand up to wet bathing suits make coastal-style kitchens easy to care for, and window treatments that allow for maximum sunlight will have everyone in let’s-get-to-the-beach mode bright and early .
  • 45.
    • If youyearn for a time when materials were solid and craftsmanship was king, old world design will embrace you in history and luxury. • Look for dark mahogany finishes with lots of carving and detail, countertops with ogee or bullnose edges, and stone or wooden floors. Add historical accessories
  • 46.
    • Modular kitchenoffers the user, a fully functional design. • Modular kitchen are of two type 1. Fully modular. 2. Semi-modular. • Modular kitchen provide excellent storage space in limited space and also make kitchen look more appealing. • Modular kitchen is all about cabinets and drawers. When combined together they form a modular kitchen design. • The cabinets that you see below the granite platform in the modular kitchen are known as the base cabinets. • These offer great space to hold almost anything. • From featuring stainless steel baskets to a number of drawers and shelves, the base cabinets have them all. • The baskets come in various sizes and can be used as per requirement.
  • 47.
    • CORNER CABINETSOLUTIONS MAGIC CORNER in this all we have to do is to pull the door towards us and all the contents inside the cabinet will come to us. It uses the whole blind corner and gives options for maximum storage options and provide easy access . Cabinet door width 450mm. (18”). Cabinet width 1050mm. Available in wire base and flat base baskets. As per kaff price 23000.