MON , 31st,OCT .
A lot of life happens in the kitchen.
No matter how different our
lifestyles may be, a lot of activity
revolves around the kitchen:
Cooking , preparing a quick snack,
eating breakfast or a 3-course dinner
with family or friends.
Not only do we socialize in the kitchen,
getting together with family and friends
over a cup of coffee or a glass of juice , the
kitchen is one place that needs to be both
beautiful and functional .
Country style kitchen
Modern kitchens
 The sequence of construction process occur in stages as follows:
 Master plan
 Electricals
 Plumping
 Installation
 Tiling
 Ceiling
 Cabinetry
 Accessories
WHAT’S THE MEANING OF KITCHEN LAYOUT ??
Kitchen Layout is the shape of
arrangement of the kitchen cabinet and
kitchen appliances, kitchen layout forms
the structure and the design of our
kitchen. The effectiveness of space
sterilize is very much depend to the
kitchen layout, a suitable kitchen
layout ensure the efficiency of space
planning and kitchen work flow.
 What are the main types of kitchens ???
The family kitchen.
Kitchens for flats.
disabled kitchens.
Big kitchens (hotel, hospital kitchens).
Outdoor Kitchen .
The family kitchen is the key room in
the house. It not only has to deal with
cooking and eating, but may entail the
supervision of children, whether
toddlers playing on the floor, school
age children doing homework on the
table or playing in the adjacent
garden, may also be used
for dining, entertaining and laundry.
Kitchens in flats different from kitchens
in houses in that they may not be on the
ground floor.
Care should be taken to provide good
sound insulation, particularly if they are
positioned next to bedrooms (including
neighbors') as machines can vibrate and
be noisy.
Inevitably, flat kitchens may have to
accommodate laundry machines as
space may be limited elsewhere..
Customized to fit people in
wheelchairs with limited mobility.
The minimum comfortable maneuvering
space for a person in a wheelchair is 1500
- 1800mm diameter circle. This dimension
will also provide a comfortable working
space for other people. If, in the case of a
kitchen renovation, this space is
unavailable, it may be possible for slim-
line cupboards and broader bench-tops
to provide knee-space under the bench in
which a wheelchair might be
maneuvered .
Reference :
CANADA MORTGAGE AND HOUSING CORPORATION
https://www.cmhc-schl.gc.ca/en/co/acho/acho_004.cfm
Reference :
BUILDING CONSTRUCTION ILLUSTRATED , FRANCIAS.K .CHING .
 are found in restaurants, cafeterias, hotels, hospitals,
educational and workplace facilities, army barracks,
and similar establishments. These kitchens are
generally larger and equipped with bigger and more
heavy-duty equipment than a residential kitchen.
 Most of restaurant’s kitchens typically have tiled walls
and floors and use stainless steel for other surfaces
(workbench, but also door and drawer fronts) because
these materials are durable and easy to clean.
Professional kitchens are often equipped with gas
stoves, as these allow cooks to regulate the heat more
quickly and more finely than electrical stoves
That indoor and outdoor kitchens are
simpatico. The most significant difference
between indoor and outdoor kitchen design
is often the exposure to the elements
(shelter and durability considerations).
Other differences include more difficulty in
running utilities such as water. And there is
usually no outdoor wall, so the outdoor
kitchen equipment typically defines the
room boundaries. "Outdoor rooms bring a
whole world of additional cooking options,
like open-wood flame or smoking," Russ
says.
Reference :
http://www.hgtv.com/remodel/kitchen-remodel/outdoor-kitchens-10-
tips-for-better-design
 After you have considered all the structural implications and
before you make any decision about the style of your new
kitchen you must first decide how much money you are
prepared to spend in total .
The first and most important point when planning a kitchen is
the layout .
 There are many different possibilities for designing a
kitchen. The organization and planning of the layout for a
kitchen depend on many different factors. Many times when
homeowners consider remodeling their kitchens they want
to do a complete layout change. A well-designed kitchen not
only fits in the space you have, but also fits in with your
lifestyle and needs…
Before drawing up plans, To ensure your kitchen
makes the room more eco-friendly, consider:
- Water-saving taps
- Energy-efficient (star-rated) appliances
- A solar hot water service
- Energy-efficient lighting
- Grey water recycling
- An under floor rainwater tank
- A waste recycling unit
- Eco-friendly finishes/flooring
 Planning kitchens depends on :
- Comfort and Workspace nature .
- Work Triangle .
- Styles and Layouts .
Comfort and Workspace nature .
A well-designed kitchen is laid out and planned with
comfort and function kept in mind at all times. How
the kitchen is used and how the space should function
not only as a kitchen but how the space fills other
needs for the family should be considered.
ALSO NOTE THAT ..
 Workstations should be arranged to allow work
to flow logically.
 Work surface height should be designed to
eliminate fatigue.
Reference :
BUILDING CONSTRUCTION ILLUSTRATED , FRANCIAS.K .CHING .
Reference :
BUILDING CONSTRUCTION ILLUSTRATED , FRANCIAS.K .CHING .
 There are three very important areas to
consider from a working point of view and
these are :
 food storage : may include a fridge
and a freezer as well as cupboard
space for dry food and tins .
 cooking applications: may include
cooker, microwave and hob
 washing up facilities : could be a sink
and a dishwasher .
 The work triangle should not be interrupted
by tall unites or by doors, bearing in mind
that passing traffic through a kitchen can be
extremely danger .
 Refrigerator to sink (A-B) : 1.2 -2.1 m .
 Sink to stove (B-C) :1.2- 1.82 m .
 Stove to refrigerator (A-C) : 1.2 -2.74m .
 Sum of total triangle should not exceed 6.6m .
For example
If the sink, refrigerator and range are too far
apart, the work triangle will be exhausting.
 Recommended Distance in a work triangle
Reference :
BUILDING CONSTRUCTION ILLUSTRATED , FRANCIAS.K .CHING .
1.2 m
MIN.
Max
2.75m
 If the sum of the legs in the work triangle is
too small, people will be tripping over each
other and if too large, food preparation could
be a very tiring task .
ALL IN ALL :
 The maximum distance of a leg should be no over
nine ft (2.75meters) and also a minimum of 4 feet
(1.2meters) .
FACTORS TO CONSIDER WHEN PLANNING
THE LAYOUT OF KITCHEN …
 Organization of cooking areas .
 Layout of equipment .
 Size of the kitchen.
 Location of the kitchen (close to the dining areas
and easy access to the outdoors .
o U shaped kitchen .
o L shaped kitchen .
o Parallel wall kitchen .
o G- shaped kitchen .
 These layouts depend very much on the size
of the room available .
 First measure the floor area and transfer
these measurements to a suitable grid sheet.
U shaped kitchen
L shaped kitchen .
Parallel wall kitchen .
G- shaped kitchen .
THE FOUR MAIN KITCHEN LAYOUT TYPES ARE …
 Uses three walls to create a "U", maximizing
kitchen space and providing an abundance of
counter space to work with.
 Has cabinets along three walls.
 two parallel walls perpendicular to a third. It
is commonly known as a C shape or J shape
kitchen also.
 Efficient for a small,
medium or large
kitchen space.
 No through traffic to
disrupt work zones.
 Wide "U" can
support a kitchen
island.
 Lots of cupboard
space .
 Not efficient for large kitchens
without an island.
 Bottom corner cabinets are
difficult to access.
 Unsuitable for narrow kitchens
i.e. below 10” wide.
 Difficult fitted with special
angled corner .
 The L-shaped kitchen is shaped like an ‘L’. The
most
common kitchen layout , This layout utilizes two
adjacent walls, spreading out the work centers.
 The refrigerator is at one end, range are at the
other end, and the sink is in the center.
 If the sink, refrigerator, and range are too far
apart, the work triangle will be exhausting.
L shaped kitchen .
 used in large kitchens with two cooks .
 Instead of using the extra space for a family dining
area, the extra space allowed by the second
smaller L is used for secondary cooking,
 Prep. space or storage needed.
The double entering areas can cause traffic flow
problems, so make sure to create separate working
areas on each L of the kitchen to help ease the
congestion.
 Great for corner space.
 Efficient for a small and
medium kitchen space.
 Can adjust to any length.
 Can easily divide the
kitchen into multiple
work sites.
 No through traffic to
disrupt work zones.
 Can use one side of the
kitchen as a wall divide .
 The corner of the L can be
problematic if the corner is
taken up by a cupboard
because unless fitted by a
special angled corner
cupboard, the corner spaces
will be inaccessible and
wasted.
 Not efficient for large
kitchens.
 Not good for multiple cooks .
 Components like the sink and stove are best
situated in the middle of the line layout to
prevent having to walk from one end of the
kitchen to the other while working.
 If we have only a single wall then it’s called a
single line layout kitchen (corridor layout ) .
 This layout places all of the kitchen
components in a straight Line .
Single Wall Layout .
Parallel wall layout .
 Can be difficult for through
traffic .
 Needs good lighting as can be
dark- lights may need to be
added under overhead
cabinets .
 Restricts the number of users
because of the lined formation
of the kitchen layout.
 Excellent use of the
kitchen triangle .
 Lots of workspace and
cabinets on either sides .
 Great for small
apartments with limited
space.
 Great for small
kitchens .
 Great for one cook to
move around.
Restricts the
number of
users because
of the lined
formation of
the kitchen
layout.
 The "G-shaped" layout adds
a shorter wall to the three
walls of the U-shaped
layout, creating even more
workspace. G- shaped kitchen .
• to make your kitchen as efficient as possible, with the
food preparation.
• Put sink and cooking areas close together. A good rule of
thumb is to keep a piece of countertop between the sink
and cooktop on which to prepare food. place the fridge
between the main doorway into the kitchen and the
main cooking area so that the other people in the house
can have easy access to the fridge (without having to
walk through the cooking area).
• The fridge should not be located next to the oven/range
or cooktop, however, due to the temperature differences.
• Make sure curtains and blinds are nowhere near hobs and
ovens.
• Ensure there are always base units below wall units.
• Try to place an oven and hob in a well- ventilated position.
• Do leave at least 400mm work surface next to hobs and sinks
for elbow room.
• Make sure there is somewhere safe for children to play
when you can kept an eye on them ,
• Try not to position a sink in a corner.
• To simplify pluming arrangement , try to situate sink ,
washing machine , dishwasher close to the drainage facilities
• Don’t interrupt the work triangle with doors
or tall units
• Don’t place wall units above a table
• Don’t position the hob or oven close to the
door
• Don’t position power point close to the sinks
The kitchen of the modern home will have three
electrical circuits. A ring circuit for lighting, a ring
circuit of power point, and a separate circuit for the
cooker. each of which will be connected individually
to the main consumer unit. The cooker is the largest
consumer of electricity in the home. and will require
its own electrical circuit it may be a single, free
standing cooker unit or it may be separate oven and
hob units. Wiring for each appliance can be fed from
the same electrical circuit, but there proximity to
each other will determine how many and where the
isolating switches are to be positioned.
The next set of electrical appliances to be
considered will be the stationary appliances such
as the fridge and the dishwasher, these will be
connected to the ring main via a fused outlet or
fused spur always allowing one fused outlet per
stationary appliance. Allow enough flex from the
appliance to the socket to assist the replacement
of or cleaning behind them.
Finally, add at least six socket outlet, positioned
just above the work surfaces, to cope with the
smaller appliances such as kettles and mixers try
to locate the sockets close to where the
appliances are likely to be used and always
install double socket units.
Adding to or amending any part of the electrical supply
system in a kitchen will be a job for the professionals, unless
you are particularly confident with electricity it is advisable
to recruit the services of a qualified electrician to carry out
the work in this, the most potentially dangerous electrical
operations room in the house.
Kitchen lighting should be both comfortable and
practical, there are a number of ways to
introduce light into the kitchen where well-
planed lighting can bring a total transformation,
new technology offer a variety of choices
including down lighters, uplighters, back lighters
and concealed lighters influencing different
modes and shades. And the lighting you choose
will affect the color schemes, on wall tiling, and
on floor covering, so its important to choose the
light before the other points.
Some remedial work may be required cutting
holes in ceiling or chasing cables into walls for
wall fittings or switches.
There are three kinds of lights that
you can use:
1-The task.
2-The accent.
3-The ambient
focuses on making the kitchen a
working one.
Task lighting is usually situated
between the work surface and the
person running the kitchen.
As its name denotes, accentuates the
whole kitchen.
Is used to fill out a space by highlighting
architectural features or bring attention
to objects.
This kind of kitchen lighting can
immediately improve your kitchen look
yet this is the most overlooked. primary
source of lighting in a kitchen
1. adding lighting directly above all the main working
areas
2.use pendant lights or a series of mini-pendants in
areas where these can enhance the lighting and
beauty of the kitchen.
3.Pendants look great above kitchen sinks, while a
series of mini-pendants enhance the appearance and
lighting of breakfast bars and kitchen islands.
4. install under-cabinet lighting as an additional way
to ensure that the counters have sufficient lighting for
common kitchen tasks.
Properly planned services in the kitchen
will make a safer and a healthier
environment, any alternation to this
services will be best carried out by a
professional. But the availability of easy-
to-use fitting and experts advice can
assist the competent do-it-yourself
enthusiast to these project successfully.
Importantly any purposed alternation to the
drainage system must be carried out in a way
not to endanger health and for this reason, are
covered by building regulation. Be sure to notify
your local authority building control department
in any changes in design or layout to the
drainage system before the work is carried out,
if however if are just relocating the sink or
adding a dishwasher then the permission is
unlikely to be required and easy-to-use fitting
will be available from your local DIY store or
builders merchant.
In the majority of modern kitchens plastic waste
pipes from kitchen sinks will discharge directly
into the soil vent pipe or into gullies. The
required dimensions of pipes and fittings for this
purpose must be 400mm with the maximum pipe
run being 3 m long. When in position, waste
pipes must then be secured to the wall by using
the appropriate waste pipe clips. Under the sink
a bottle trap will be attached to the sink
plughole and it is designed to hold water that
will provide a barrier to prevent gases and
fumes entering the kitchen from the drainage
system. This bottle tap will also catch and store
potentially blockage-making materials.
Cold water is brought to the kitchen
through a service pipe connected to
the rising main. At this point there
should be a stopcock for shutting
down the system in case of emergency
or repair. The hot water to be supplied
to the kitchen sink will come from the
hot water cylinder and all the fittings
will be in copper pipe of 15mm.gauge.
hot and cold water connections may
also be required for washing machine
V
these supplies can be teed off the existing
plumbing system. For the do-it-yourself
enthusiast flame-free plumbing fittings are
available and these fittings are easy to install
and incredibly reliable. However, unless you
are extremely competent it may be wise to
employ the services of a reputable local
plumber. Manufacturers of appliances will
recommend the use of a professional soar
installation with the removal of guarantee
cover should the appliance fail due to a DIY
installation .
 The upper face
installation by using
Material Stock , Don’t
use silicone ; over time,
silicone could wick
into the stone and
cause staining. Stick
with acrylic.
1.Put water pipes with a slope.
2.Maintain the angle of 90 during the
process of tiling flooring.
3.Put power outlets on the suitable
height to comply with the safety
rules.
4.Put the tiles with a slope to the
discharge point.
 Things must be taken into account in
the kitchen construction …
 Kitchen units Installation steps:
1. Polish the floor tiling (To remove dust and
give the tiles a good aesthetic)
2. Make sure the grout is in place (maintaining
after units are in place can be hard)
3. Start with the base units:
A- Screwed into the walls with special screws.
B- The legs of the units are then installed (pipe-
like) and when twisted, they become taller and
they’re jammed between the unit and the floor.
A
B
V
C- After that the doors of
the units are installed
with hinges.
D- Then, a cardboard is
placed on top of the base
units and cut by professional
into the shape of the counter
top.
E- After words, they use special silicon for
insulation for kitchens, placed between (units
and counter top, units and floor, counter top and
backsplash)
C
 The top units are now installed,
same method, with screws, then
doors are installed, and then
silicon is added for insulation.
The kitchen is the one room in the house that can
have several different types of tiles, in different
applications, When choosing kitchen tile for your
home consider where it is going to go
first. Glossy tile that goes on a wall will not be
the same as flooring tile. Flooring tile has to be
safe to walk on, and a glossy floor kitchen tile
could be unsafe under foot.
Different types of kitchen tiles:
1-floor tiling
2-backsplash tiling
1. Floor Tiling:
Safety must be taken into consideration due to
nature of the kitchen environment (spelling food and
water may cause slipping and injuries), so while
choosing your kitchen floor tiling you must consider
the slipperiness of the tiles.
You need a low water absorbing tiles for the
kitchen to prevent change of color and properties of
material.
Also aesthetics is one of the things that controls your
tile choosing, you need something to go along with
the kitchen you’re thinking about buying.
V
1. Floor Tiling:
 Ceramic:
ceramic floor tiles come in a wide
array of colors, sizes, shapes,
textures, and finishes.. (Easy to
Install)
1. Floor Tiling:
 PORCELAIN
Available in a variety of textures,
colors and sizes making it a
perfect choice for any style.
(More durable than ceramic but
harder to install) .
1. Floor Tiling:
 MARBLE
Marble is a highly durable stone
that exists in almost every color
due to the variability of
component minerals.
2- Backsplash tiling:
Backsplash tiling is added on the wall between the
bottom cabinets and the top cabinets:
To make it easier to clean the surface since cleaning
tiles is easier than paint/wallpaper
Tolerates the high humidity in kitchen unlike paint.
Needs less maintenance
Adds to the aesthetic value of the kitchen
The sky is the limit when it comes to backsplash tiles,
you can use whatever design/tiles you want, the
options are infinite.
V
1-Adding aggregate on top of the plumping and electricity tubes
(leaving the vertical elements covered with plastic so the
aggregate wont block it)
2-Installing the backsplash tiling:
A- The mortar must be fully dry (‫مسمار‬ ‫رشة‬ ‫نوع‬)
B- The tiles must be set in clean water for 24 hours to make sure
it’s fully saturated.
C- A Strong adhesive is added to the wall on top of the mortar. (3
mm thick)
D- The tiles are then installed on the wall. (Leaving an equal space
of 1.5-2.5 mm between the tiles vertically and horizontally) .
1. Adding fine sand on top of the aggregate to
make sure the floor is flat and the slope is
towards the drainage.
2. Start installing the tiles leaving enough space for
the grout to be installed.
4. Give the tiling enough time to dry before walking
on it (12 hours minimum)
5. Adding the grout and waiting for it to dry (a few
hours)
Tiling slope
 Ceilings must be taken into consideration because they can
add a really huge aesthetic value to the kitchen.
Types of ceilings:
1. Wooden decoration ceilings: They are not preferred in
kitchens due to safety concerns, wood is not a good fire
resistant material.
2. Plaster ceilings: Provides a variety of design, better than wood
in fire resistance, but not the best option.
3. Simply painted ceilings: Maybe the least aesthetical type of
ceilings but for sure, the safest, due to the construction method in
Jordan (relying on RC), the concrete is a very good fire resistant.
Accessories
Reference :
BUILDING CONSTRUCTION ILLUSTRATED , FRANCIAS.K .CHING .
 Kitchen cabinets .
 Sink .
 Counter Top . (extra )
 Accessories .
 Appliances required in a kitchen .
 The appliances that must be founded in the kitchen :
 Refrigerator .
 Oven .
sink
oven
cabinets
refrigerator
oven
Counter top
 Kitchen cabinets are the built-in furniture installed
in many kitchens for storage of food, cooking
equipment, and often silverware and dishes for
table serving .
Reference :
BUILDING CONSTRUCTION ILLUSTRATED , FRANCIAS.K .CHING .
The surface for
preparation work in
the kitchen
Counter top
Hinge
Free standing
cabinet
Handle
Wall mounted cabinet
DIMENSIONS - GENERAL
Reference :
BUILDING CONSTRUCTION ILLUSTRATED , FRANCIAS.K .CHING .
Height of the kitchen cabinets depends on two international standard
American And German standard
Total height= 220 cm Total height=
2.40 or 2.01 cm
90 cm 90 cm
72 cm
68 or 95 cm
American standard German standard
Cabinet Height
The height between
the cabinets is 50-
60cm
50-60cm
DIMENSIONS - GENERAL
Reference :
BUILDING CONSTRUCTION ILLUSTRATED , FRANCIAS.K .CHING .
Depend on the materials that use for the top
Usually ranging between (0.25 cm _ 0.30 cm )
Kitchen cabinets width
differ from its length
and depth, because it
depends on the space
available and the
kitchen shape..
35 cm
60 cm
Cabinet counter top
Cabinet Depth
Cabinet width
DIMENSIONS - DETAILED
Reference :
BUILDING CONSTRUCTION ILLUSTRATED , FRANCIAS.K .CHING .
DIMENSIONS - DETAILED
Reference :
BUILDING CONSTRUCTION ILLUSTRATED , FRANCIAS.K .CHING .
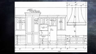
DIMENSIONS - DETAILED
Reference :
BUILDING CONSTRUCTION ILLUSTRATED , FRANCIAS.K .CHING .
• ALL
DIMENSIO
NS IN mm .
• ALL DIMENSIONS IN mm .
Cabinet baseMinimum 10 cm
Cabinet base
 Depending on material, there are
many types:
 Glass, stainless steel, wooden, PVC,
Aluminum, but the most commonly
used in Jordan are Wooden kitchens
and aluminum kitchens :
 Wooden kitchens:
1- Oak kitchens:
 Comes in 4 different colors …
 Comes with classical grips installed .
2- Marple :
Imported from Canada, in two colors:
3- cherry :
Two colors, light and dark.
DIFFERENT CUTS AND STYLES
 Aluminum Kitchens:
Much less details, comes in all colors
(They’re painted so the options are
limitless), but only a few finishes .
 Kitchen sinks are key parts of
any kitchen.
 for washing dishes, vegetables, etc.
 There are several
forms and types of
sinks to meet all
the requirements
and needs …
Bowel
Drainer
Single bowel
Double bowel
Single bowel
single drainer
Double bowel
double drainer
Double bowel
single drainer
Single drainer
double bowel
• ALL DIMENSIONS IN mm .
SECTIONAL KITCHEN SINK .
Stainless steel sink Enamelled cast iron
composite quartz
Vitreous china
Brass and copper sink
• Common sink
materials include
stainless steel
,enameled cast
iron or steel
,vitreous , brass
and copper
,acrylic marble
stone chips
2. double check that the sink fits in
the hole by setting the sink in
place and making sure it covers
up the hole on all sides.
3. Apply caulking or silicone around
the rim of the sink hole on the
counter top. A liberal amount should
be applied because once the sink is
set it is too difficult to add more
1.cut the hole for new sink
4.Next carefully set the sink in place.
Make sure the sink is level on both
sides by measuring the back splash
to the sink and making them even.
5.setting the clamps. All clamps are a
little different but most hook onto
the groves in the sink and then
tighten to the plywood on the
underside of the counter top
6.Once the sink is securely clamped
onto the counter top you can check
the seal above the counter
Is a horizontal work surface in kitchens or
other food preparation areas.
It is frequently installed upon and supported
by cabinets .
A countertop may be constructed of various
materials with different attributes of
functionality, durability, and aesthetics.
The countertop may have built-in appliances,
or accessory items relative to the intended
application.
Laminate
Countertops
Countertop materials
Quartz
Countertops
Granite
Countertops
Concrete
Countertops
 There are several
different edge
profiles that are
available
An appliance or compartment which
is artificially kept cool and used to
store food and drink. Modern
refrigerators generally make use of
the cooling effect produced when a
volatile liquid is forced to evaporate
in a sealed system in which it can be
condensed back to liquid outside
the refrigerator.
Built in oven
A kitchen stove, usually called a
gas range (especially but not only
in US English), range, cooker,
or oven is a kitchen appliance
designed for the purpose of
cooking food. Kitchen stoves rely
on the application of direct heat
for the cooking process and may
also contain an oven, used for
baking.
Kitchen hood
Work method
types
• • Type I Hoods: Used if you are
exhausting grease-laden air.
Type II Hoods: Used if you are exhausting non-grease-laden air (heat/condensate).
.
Single-island hoods: Used when the cooking battery
is in one row not against a wall.
• Double-island hoods: Used when the cooking battery is in two back-to-back rows,
not against a wall
• Do allow at least 120mm between units places
on opposite walls
 Try to position the hob and the sink on the
same unit run .
• Position the sink near a window to take
advantage of natural light .
• Make sure larger electrical appliances have
their own fused socket.
• Make sure there are sufficient power point for
electrical gadgets.
• Location of Appliances .
• Power Outlets.
• Curved Countertops and
Table Edges.
• Fire Safety Equipments .
• Kitchen Flooring Surface.
1.Heating appliances like
microwave ovens, ovens and
burners can be dangerous if
used in a location near other
electronic appliances like or
when they are close to each
other.
2.Heating appliances should
not be near flammable
materials or wall decors like
curtains, wallpapers and table
cloths.
Location of
Appliances
This can decrease chances
of fire related accidents in
your kitchen.
Power Outlets
Kitchen power outlets
should be maintained in
high locations and with
protective covers to prevent
water splashes or child
electrocution since children
are normally in kitchens
whenever their parents are
cooking.
Curved
Countertops and
Table Edges
Having curved countertop
and table edges can lessen
fatal injuries like head
bumps in cases of a slip or
trip.
Curved edges might still hurt,
but pointed edges could be
more fatal.
Fire Safety
Equipment
It is important to have an
immediate response in
case of initial signs of kitchen
fire.
Having a fire extinguisher in a
place accessible to
adults only, is very wise. This
can prevent fire from
spreading which could
endanger your family’s life
and also your home.
Having a phone or intercom
service in your kitchen is also
important so that you won’t
need to leave your cooking
area in cases of calls or door
bells.
Kitchen Flooring
Surface
The kitchen is a place where there is possible
danger everywhere. To avoid the most
common accident in your kitchen which is
slips and slides, you should consider the
surface of your kitchen flooring. One great
flooring material to use is ceramic tiles with
corrugated surface patterns. Even when oil
or wet, slippery substances are spilled to the
kitchen floor, the corrugated surface could
provide a course and slip resistant surface,
so you won’t slip
• ‫المعمارية‬ ‫و‬ ‫المدنية‬ ‫لألعمال‬ ‫االنشائية‬ ‫و‬ ‫العامة‬ ‫المواصفات‬ ‫كتاب‬.
• CANADA MORTGAGE AND HOUSING
CORPORATION .
https://www.cmhc-schl.gc.ca/en/co/acho/acho_004.cfm
kitchens Finishing
kitchens Finishing
kitchens Finishing
kitchens Finishing
kitchens Finishing
kitchens Finishing
kitchens Finishing
kitchens Finishing
kitchens Finishing
kitchens Finishing
kitchens Finishing
kitchens Finishing
kitchens Finishing
kitchens Finishing
kitchens Finishing

kitchens Finishing

  • 1.
  • 3.
    A lot oflife happens in the kitchen. No matter how different our lifestyles may be, a lot of activity revolves around the kitchen: Cooking , preparing a quick snack, eating breakfast or a 3-course dinner with family or friends. Not only do we socialize in the kitchen, getting together with family and friends over a cup of coffee or a glass of juice , the kitchen is one place that needs to be both beautiful and functional . Country style kitchen Modern kitchens
  • 4.
     The sequenceof construction process occur in stages as follows:  Master plan  Electricals  Plumping  Installation  Tiling  Ceiling  Cabinetry  Accessories
  • 5.
    WHAT’S THE MEANINGOF KITCHEN LAYOUT ?? Kitchen Layout is the shape of arrangement of the kitchen cabinet and kitchen appliances, kitchen layout forms the structure and the design of our kitchen. The effectiveness of space sterilize is very much depend to the kitchen layout, a suitable kitchen layout ensure the efficiency of space planning and kitchen work flow.
  • 6.
     What arethe main types of kitchens ??? The family kitchen. Kitchens for flats. disabled kitchens. Big kitchens (hotel, hospital kitchens). Outdoor Kitchen .
  • 7.
    The family kitchenis the key room in the house. It not only has to deal with cooking and eating, but may entail the supervision of children, whether toddlers playing on the floor, school age children doing homework on the table or playing in the adjacent garden, may also be used for dining, entertaining and laundry.
  • 8.
    Kitchens in flatsdifferent from kitchens in houses in that they may not be on the ground floor. Care should be taken to provide good sound insulation, particularly if they are positioned next to bedrooms (including neighbors') as machines can vibrate and be noisy. Inevitably, flat kitchens may have to accommodate laundry machines as space may be limited elsewhere..
  • 9.
    Customized to fitpeople in wheelchairs with limited mobility. The minimum comfortable maneuvering space for a person in a wheelchair is 1500 - 1800mm diameter circle. This dimension will also provide a comfortable working space for other people. If, in the case of a kitchen renovation, this space is unavailable, it may be possible for slim- line cupboards and broader bench-tops to provide knee-space under the bench in which a wheelchair might be maneuvered . Reference : CANADA MORTGAGE AND HOUSING CORPORATION https://www.cmhc-schl.gc.ca/en/co/acho/acho_004.cfm
  • 11.
    Reference : BUILDING CONSTRUCTIONILLUSTRATED , FRANCIAS.K .CHING .
  • 13.
     are foundin restaurants, cafeterias, hotels, hospitals, educational and workplace facilities, army barracks, and similar establishments. These kitchens are generally larger and equipped with bigger and more heavy-duty equipment than a residential kitchen.  Most of restaurant’s kitchens typically have tiled walls and floors and use stainless steel for other surfaces (workbench, but also door and drawer fronts) because these materials are durable and easy to clean. Professional kitchens are often equipped with gas stoves, as these allow cooks to regulate the heat more quickly and more finely than electrical stoves
  • 14.
    That indoor andoutdoor kitchens are simpatico. The most significant difference between indoor and outdoor kitchen design is often the exposure to the elements (shelter and durability considerations). Other differences include more difficulty in running utilities such as water. And there is usually no outdoor wall, so the outdoor kitchen equipment typically defines the room boundaries. "Outdoor rooms bring a whole world of additional cooking options, like open-wood flame or smoking," Russ says. Reference : http://www.hgtv.com/remodel/kitchen-remodel/outdoor-kitchens-10- tips-for-better-design
  • 15.
     After youhave considered all the structural implications and before you make any decision about the style of your new kitchen you must first decide how much money you are prepared to spend in total . The first and most important point when planning a kitchen is the layout .  There are many different possibilities for designing a kitchen. The organization and planning of the layout for a kitchen depend on many different factors. Many times when homeowners consider remodeling their kitchens they want to do a complete layout change. A well-designed kitchen not only fits in the space you have, but also fits in with your lifestyle and needs…
  • 16.
    Before drawing upplans, To ensure your kitchen makes the room more eco-friendly, consider: - Water-saving taps - Energy-efficient (star-rated) appliances - A solar hot water service - Energy-efficient lighting - Grey water recycling - An under floor rainwater tank - A waste recycling unit - Eco-friendly finishes/flooring
  • 17.
     Planning kitchensdepends on : - Comfort and Workspace nature . - Work Triangle . - Styles and Layouts .
  • 18.
    Comfort and Workspacenature . A well-designed kitchen is laid out and planned with comfort and function kept in mind at all times. How the kitchen is used and how the space should function not only as a kitchen but how the space fills other needs for the family should be considered. ALSO NOTE THAT ..  Workstations should be arranged to allow work to flow logically.  Work surface height should be designed to eliminate fatigue.
  • 19.
    Reference : BUILDING CONSTRUCTIONILLUSTRATED , FRANCIAS.K .CHING .
  • 20.
    Reference : BUILDING CONSTRUCTIONILLUSTRATED , FRANCIAS.K .CHING .
  • 21.
     There arethree very important areas to consider from a working point of view and these are :  food storage : may include a fridge and a freezer as well as cupboard space for dry food and tins .  cooking applications: may include cooker, microwave and hob  washing up facilities : could be a sink and a dishwasher .  The work triangle should not be interrupted by tall unites or by doors, bearing in mind that passing traffic through a kitchen can be extremely danger .
  • 22.
     Refrigerator tosink (A-B) : 1.2 -2.1 m .  Sink to stove (B-C) :1.2- 1.82 m .  Stove to refrigerator (A-C) : 1.2 -2.74m .  Sum of total triangle should not exceed 6.6m . For example If the sink, refrigerator and range are too far apart, the work triangle will be exhausting.  Recommended Distance in a work triangle Reference : BUILDING CONSTRUCTION ILLUSTRATED , FRANCIAS.K .CHING . 1.2 m MIN. Max 2.75m
  • 23.
     If thesum of the legs in the work triangle is too small, people will be tripping over each other and if too large, food preparation could be a very tiring task . ALL IN ALL :  The maximum distance of a leg should be no over nine ft (2.75meters) and also a minimum of 4 feet (1.2meters) .
  • 24.
    FACTORS TO CONSIDERWHEN PLANNING THE LAYOUT OF KITCHEN …  Organization of cooking areas .  Layout of equipment .  Size of the kitchen.  Location of the kitchen (close to the dining areas and easy access to the outdoors .
  • 25.
    o U shapedkitchen . o L shaped kitchen . o Parallel wall kitchen . o G- shaped kitchen .  These layouts depend very much on the size of the room available .  First measure the floor area and transfer these measurements to a suitable grid sheet. U shaped kitchen L shaped kitchen . Parallel wall kitchen . G- shaped kitchen . THE FOUR MAIN KITCHEN LAYOUT TYPES ARE …
  • 26.
     Uses threewalls to create a "U", maximizing kitchen space and providing an abundance of counter space to work with.  Has cabinets along three walls.  two parallel walls perpendicular to a third. It is commonly known as a C shape or J shape kitchen also.
  • 27.
     Efficient fora small, medium or large kitchen space.  No through traffic to disrupt work zones.  Wide "U" can support a kitchen island.  Lots of cupboard space .  Not efficient for large kitchens without an island.  Bottom corner cabinets are difficult to access.  Unsuitable for narrow kitchens i.e. below 10” wide.  Difficult fitted with special angled corner .
  • 28.
     The L-shapedkitchen is shaped like an ‘L’. The most common kitchen layout , This layout utilizes two adjacent walls, spreading out the work centers.  The refrigerator is at one end, range are at the other end, and the sink is in the center.  If the sink, refrigerator, and range are too far apart, the work triangle will be exhausting. L shaped kitchen .
  • 29.
     used inlarge kitchens with two cooks .  Instead of using the extra space for a family dining area, the extra space allowed by the second smaller L is used for secondary cooking,  Prep. space or storage needed. The double entering areas can cause traffic flow problems, so make sure to create separate working areas on each L of the kitchen to help ease the congestion.
  • 30.
     Great forcorner space.  Efficient for a small and medium kitchen space.  Can adjust to any length.  Can easily divide the kitchen into multiple work sites.  No through traffic to disrupt work zones.  Can use one side of the kitchen as a wall divide .  The corner of the L can be problematic if the corner is taken up by a cupboard because unless fitted by a special angled corner cupboard, the corner spaces will be inaccessible and wasted.  Not efficient for large kitchens.  Not good for multiple cooks .
  • 31.
     Components likethe sink and stove are best situated in the middle of the line layout to prevent having to walk from one end of the kitchen to the other while working.  If we have only a single wall then it’s called a single line layout kitchen (corridor layout ) .  This layout places all of the kitchen components in a straight Line . Single Wall Layout . Parallel wall layout .
  • 32.
     Can bedifficult for through traffic .  Needs good lighting as can be dark- lights may need to be added under overhead cabinets .  Restricts the number of users because of the lined formation of the kitchen layout.  Excellent use of the kitchen triangle .  Lots of workspace and cabinets on either sides .  Great for small apartments with limited space.  Great for small kitchens .  Great for one cook to move around.
  • 33.
    Restricts the number of usersbecause of the lined formation of the kitchen layout.
  • 34.
     The "G-shaped"layout adds a shorter wall to the three walls of the U-shaped layout, creating even more workspace. G- shaped kitchen .
  • 35.
    • to makeyour kitchen as efficient as possible, with the food preparation. • Put sink and cooking areas close together. A good rule of thumb is to keep a piece of countertop between the sink and cooktop on which to prepare food. place the fridge between the main doorway into the kitchen and the main cooking area so that the other people in the house can have easy access to the fridge (without having to walk through the cooking area). • The fridge should not be located next to the oven/range or cooktop, however, due to the temperature differences.
  • 36.
    • Make surecurtains and blinds are nowhere near hobs and ovens. • Ensure there are always base units below wall units. • Try to place an oven and hob in a well- ventilated position. • Do leave at least 400mm work surface next to hobs and sinks for elbow room. • Make sure there is somewhere safe for children to play when you can kept an eye on them , • Try not to position a sink in a corner. • To simplify pluming arrangement , try to situate sink , washing machine , dishwasher close to the drainage facilities
  • 37.
    • Don’t interruptthe work triangle with doors or tall units • Don’t place wall units above a table • Don’t position the hob or oven close to the door • Don’t position power point close to the sinks
  • 39.
    The kitchen ofthe modern home will have three electrical circuits. A ring circuit for lighting, a ring circuit of power point, and a separate circuit for the cooker. each of which will be connected individually to the main consumer unit. The cooker is the largest consumer of electricity in the home. and will require its own electrical circuit it may be a single, free standing cooker unit or it may be separate oven and hob units. Wiring for each appliance can be fed from the same electrical circuit, but there proximity to each other will determine how many and where the isolating switches are to be positioned.
  • 40.
    The next setof electrical appliances to be considered will be the stationary appliances such as the fridge and the dishwasher, these will be connected to the ring main via a fused outlet or fused spur always allowing one fused outlet per stationary appliance. Allow enough flex from the appliance to the socket to assist the replacement of or cleaning behind them. Finally, add at least six socket outlet, positioned just above the work surfaces, to cope with the smaller appliances such as kettles and mixers try to locate the sockets close to where the appliances are likely to be used and always install double socket units.
  • 41.
    Adding to oramending any part of the electrical supply system in a kitchen will be a job for the professionals, unless you are particularly confident with electricity it is advisable to recruit the services of a qualified electrician to carry out the work in this, the most potentially dangerous electrical operations room in the house.
  • 42.
    Kitchen lighting shouldbe both comfortable and practical, there are a number of ways to introduce light into the kitchen where well- planed lighting can bring a total transformation, new technology offer a variety of choices including down lighters, uplighters, back lighters and concealed lighters influencing different modes and shades. And the lighting you choose will affect the color schemes, on wall tiling, and on floor covering, so its important to choose the light before the other points. Some remedial work may be required cutting holes in ceiling or chasing cables into walls for wall fittings or switches.
  • 43.
    There are threekinds of lights that you can use: 1-The task. 2-The accent. 3-The ambient
  • 44.
    focuses on makingthe kitchen a working one. Task lighting is usually situated between the work surface and the person running the kitchen.
  • 45.
    As its namedenotes, accentuates the whole kitchen. Is used to fill out a space by highlighting architectural features or bring attention to objects.
  • 46.
    This kind ofkitchen lighting can immediately improve your kitchen look yet this is the most overlooked. primary source of lighting in a kitchen
  • 48.
    1. adding lightingdirectly above all the main working areas 2.use pendant lights or a series of mini-pendants in areas where these can enhance the lighting and beauty of the kitchen. 3.Pendants look great above kitchen sinks, while a series of mini-pendants enhance the appearance and lighting of breakfast bars and kitchen islands. 4. install under-cabinet lighting as an additional way to ensure that the counters have sufficient lighting for common kitchen tasks.
  • 49.
    Properly planned servicesin the kitchen will make a safer and a healthier environment, any alternation to this services will be best carried out by a professional. But the availability of easy- to-use fitting and experts advice can assist the competent do-it-yourself enthusiast to these project successfully.
  • 50.
    Importantly any purposedalternation to the drainage system must be carried out in a way not to endanger health and for this reason, are covered by building regulation. Be sure to notify your local authority building control department in any changes in design or layout to the drainage system before the work is carried out, if however if are just relocating the sink or adding a dishwasher then the permission is unlikely to be required and easy-to-use fitting will be available from your local DIY store or builders merchant.
  • 51.
    In the majorityof modern kitchens plastic waste pipes from kitchen sinks will discharge directly into the soil vent pipe or into gullies. The required dimensions of pipes and fittings for this purpose must be 400mm with the maximum pipe run being 3 m long. When in position, waste pipes must then be secured to the wall by using the appropriate waste pipe clips. Under the sink a bottle trap will be attached to the sink plughole and it is designed to hold water that will provide a barrier to prevent gases and fumes entering the kitchen from the drainage system. This bottle tap will also catch and store potentially blockage-making materials.
  • 55.
    Cold water isbrought to the kitchen through a service pipe connected to the rising main. At this point there should be a stopcock for shutting down the system in case of emergency or repair. The hot water to be supplied to the kitchen sink will come from the hot water cylinder and all the fittings will be in copper pipe of 15mm.gauge. hot and cold water connections may also be required for washing machine V
  • 56.
    these supplies canbe teed off the existing plumbing system. For the do-it-yourself enthusiast flame-free plumbing fittings are available and these fittings are easy to install and incredibly reliable. However, unless you are extremely competent it may be wise to employ the services of a reputable local plumber. Manufacturers of appliances will recommend the use of a professional soar installation with the removal of guarantee cover should the appliance fail due to a DIY installation .
  • 59.
     The upperface installation by using Material Stock , Don’t use silicone ; over time, silicone could wick into the stone and cause staining. Stick with acrylic.
  • 60.
    1.Put water pipeswith a slope. 2.Maintain the angle of 90 during the process of tiling flooring. 3.Put power outlets on the suitable height to comply with the safety rules. 4.Put the tiles with a slope to the discharge point.  Things must be taken into account in the kitchen construction …
  • 61.
     Kitchen unitsInstallation steps: 1. Polish the floor tiling (To remove dust and give the tiles a good aesthetic) 2. Make sure the grout is in place (maintaining after units are in place can be hard) 3. Start with the base units: A- Screwed into the walls with special screws. B- The legs of the units are then installed (pipe- like) and when twisted, they become taller and they’re jammed between the unit and the floor. A B V
  • 62.
    C- After thatthe doors of the units are installed with hinges. D- Then, a cardboard is placed on top of the base units and cut by professional into the shape of the counter top. E- After words, they use special silicon for insulation for kitchens, placed between (units and counter top, units and floor, counter top and backsplash) C  The top units are now installed, same method, with screws, then doors are installed, and then silicon is added for insulation.
  • 63.
    The kitchen isthe one room in the house that can have several different types of tiles, in different applications, When choosing kitchen tile for your home consider where it is going to go first. Glossy tile that goes on a wall will not be the same as flooring tile. Flooring tile has to be safe to walk on, and a glossy floor kitchen tile could be unsafe under foot. Different types of kitchen tiles: 1-floor tiling 2-backsplash tiling
  • 64.
    1. Floor Tiling: Safetymust be taken into consideration due to nature of the kitchen environment (spelling food and water may cause slipping and injuries), so while choosing your kitchen floor tiling you must consider the slipperiness of the tiles. You need a low water absorbing tiles for the kitchen to prevent change of color and properties of material. Also aesthetics is one of the things that controls your tile choosing, you need something to go along with the kitchen you’re thinking about buying. V
  • 65.
    1. Floor Tiling: Ceramic: ceramic floor tiles come in a wide array of colors, sizes, shapes, textures, and finishes.. (Easy to Install)
  • 66.
    1. Floor Tiling: PORCELAIN Available in a variety of textures, colors and sizes making it a perfect choice for any style. (More durable than ceramic but harder to install) .
  • 67.
    1. Floor Tiling: MARBLE Marble is a highly durable stone that exists in almost every color due to the variability of component minerals.
  • 68.
    2- Backsplash tiling: Backsplashtiling is added on the wall between the bottom cabinets and the top cabinets: To make it easier to clean the surface since cleaning tiles is easier than paint/wallpaper Tolerates the high humidity in kitchen unlike paint. Needs less maintenance Adds to the aesthetic value of the kitchen The sky is the limit when it comes to backsplash tiles, you can use whatever design/tiles you want, the options are infinite. V
  • 69.
    1-Adding aggregate ontop of the plumping and electricity tubes (leaving the vertical elements covered with plastic so the aggregate wont block it) 2-Installing the backsplash tiling: A- The mortar must be fully dry (‫مسمار‬ ‫رشة‬ ‫نوع‬) B- The tiles must be set in clean water for 24 hours to make sure it’s fully saturated. C- A Strong adhesive is added to the wall on top of the mortar. (3 mm thick) D- The tiles are then installed on the wall. (Leaving an equal space of 1.5-2.5 mm between the tiles vertically and horizontally) .
  • 70.
    1. Adding finesand on top of the aggregate to make sure the floor is flat and the slope is towards the drainage. 2. Start installing the tiles leaving enough space for the grout to be installed. 4. Give the tiling enough time to dry before walking on it (12 hours minimum) 5. Adding the grout and waiting for it to dry (a few hours)
  • 71.
  • 73.
     Ceilings mustbe taken into consideration because they can add a really huge aesthetic value to the kitchen. Types of ceilings: 1. Wooden decoration ceilings: They are not preferred in kitchens due to safety concerns, wood is not a good fire resistant material. 2. Plaster ceilings: Provides a variety of design, better than wood in fire resistance, but not the best option. 3. Simply painted ceilings: Maybe the least aesthetical type of ceilings but for sure, the safest, due to the construction method in Jordan (relying on RC), the concrete is a very good fire resistant.
  • 74.
  • 75.
    Reference : BUILDING CONSTRUCTIONILLUSTRATED , FRANCIAS.K .CHING .  Kitchen cabinets .  Sink .  Counter Top . (extra )  Accessories .  Appliances required in a kitchen .  The appliances that must be founded in the kitchen :  Refrigerator .  Oven . sink oven cabinets refrigerator oven Counter top
  • 76.
     Kitchen cabinetsare the built-in furniture installed in many kitchens for storage of food, cooking equipment, and often silverware and dishes for table serving .
  • 77.
    Reference : BUILDING CONSTRUCTIONILLUSTRATED , FRANCIAS.K .CHING . The surface for preparation work in the kitchen Counter top Hinge Free standing cabinet Handle Wall mounted cabinet
  • 78.
    DIMENSIONS - GENERAL Reference: BUILDING CONSTRUCTION ILLUSTRATED , FRANCIAS.K .CHING . Height of the kitchen cabinets depends on two international standard American And German standard Total height= 220 cm Total height= 2.40 or 2.01 cm 90 cm 90 cm 72 cm 68 or 95 cm American standard German standard Cabinet Height The height between the cabinets is 50- 60cm 50-60cm
  • 79.
    DIMENSIONS - GENERAL Reference: BUILDING CONSTRUCTION ILLUSTRATED , FRANCIAS.K .CHING . Depend on the materials that use for the top Usually ranging between (0.25 cm _ 0.30 cm ) Kitchen cabinets width differ from its length and depth, because it depends on the space available and the kitchen shape.. 35 cm 60 cm Cabinet counter top Cabinet Depth Cabinet width
  • 80.
    DIMENSIONS - DETAILED Reference: BUILDING CONSTRUCTION ILLUSTRATED , FRANCIAS.K .CHING .
  • 81.
    DIMENSIONS - DETAILED Reference: BUILDING CONSTRUCTION ILLUSTRATED , FRANCIAS.K .CHING .
  • 82.
    DIMENSIONS - DETAILED Reference: BUILDING CONSTRUCTION ILLUSTRATED , FRANCIAS.K .CHING .
  • 83.
  • 84.
  • 85.
    Cabinet baseMinimum 10cm Cabinet base
  • 86.
     Depending onmaterial, there are many types:  Glass, stainless steel, wooden, PVC, Aluminum, but the most commonly used in Jordan are Wooden kitchens and aluminum kitchens :
  • 87.
     Wooden kitchens: 1-Oak kitchens:  Comes in 4 different colors …  Comes with classical grips installed .
  • 88.
    2- Marple : Importedfrom Canada, in two colors:
  • 89.
    3- cherry : Twocolors, light and dark. DIFFERENT CUTS AND STYLES
  • 91.
     Aluminum Kitchens: Muchless details, comes in all colors (They’re painted so the options are limitless), but only a few finishes .
  • 93.
     Kitchen sinksare key parts of any kitchen.  for washing dishes, vegetables, etc.  There are several forms and types of sinks to meet all the requirements and needs … Bowel Drainer
  • 94.
    Single bowel Double bowel Singlebowel single drainer Double bowel double drainer Double bowel single drainer Single drainer double bowel
  • 95.
    • ALL DIMENSIONSIN mm . SECTIONAL KITCHEN SINK .
  • 97.
    Stainless steel sinkEnamelled cast iron composite quartz Vitreous china Brass and copper sink • Common sink materials include stainless steel ,enameled cast iron or steel ,vitreous , brass and copper ,acrylic marble stone chips
  • 98.
    2. double checkthat the sink fits in the hole by setting the sink in place and making sure it covers up the hole on all sides. 3. Apply caulking or silicone around the rim of the sink hole on the counter top. A liberal amount should be applied because once the sink is set it is too difficult to add more 1.cut the hole for new sink
  • 99.
    4.Next carefully setthe sink in place. Make sure the sink is level on both sides by measuring the back splash to the sink and making them even. 5.setting the clamps. All clamps are a little different but most hook onto the groves in the sink and then tighten to the plywood on the underside of the counter top 6.Once the sink is securely clamped onto the counter top you can check the seal above the counter
  • 102.
    Is a horizontalwork surface in kitchens or other food preparation areas. It is frequently installed upon and supported by cabinets . A countertop may be constructed of various materials with different attributes of functionality, durability, and aesthetics. The countertop may have built-in appliances, or accessory items relative to the intended application.
  • 103.
  • 104.
     There areseveral different edge profiles that are available
  • 105.
    An appliance orcompartment which is artificially kept cool and used to store food and drink. Modern refrigerators generally make use of the cooling effect produced when a volatile liquid is forced to evaporate in a sealed system in which it can be condensed back to liquid outside the refrigerator.
  • 106.
    Built in oven Akitchen stove, usually called a gas range (especially but not only in US English), range, cooker, or oven is a kitchen appliance designed for the purpose of cooking food. Kitchen stoves rely on the application of direct heat for the cooking process and may also contain an oven, used for baking.
  • 107.
  • 108.
  • 109.
    types • • TypeI Hoods: Used if you are exhausting grease-laden air.
  • 110.
    Type II Hoods:Used if you are exhausting non-grease-laden air (heat/condensate). . Single-island hoods: Used when the cooking battery is in one row not against a wall.
  • 111.
    • Double-island hoods:Used when the cooking battery is in two back-to-back rows, not against a wall
  • 113.
    • Do allowat least 120mm between units places on opposite walls  Try to position the hob and the sink on the same unit run . • Position the sink near a window to take advantage of natural light . • Make sure larger electrical appliances have their own fused socket. • Make sure there are sufficient power point for electrical gadgets.
  • 114.
    • Location ofAppliances . • Power Outlets. • Curved Countertops and Table Edges. • Fire Safety Equipments . • Kitchen Flooring Surface.
  • 115.
    1.Heating appliances like microwaveovens, ovens and burners can be dangerous if used in a location near other electronic appliances like or when they are close to each other. 2.Heating appliances should not be near flammable materials or wall decors like curtains, wallpapers and table cloths. Location of Appliances This can decrease chances of fire related accidents in your kitchen.
  • 116.
    Power Outlets Kitchen poweroutlets should be maintained in high locations and with protective covers to prevent water splashes or child electrocution since children are normally in kitchens whenever their parents are cooking.
  • 117.
    Curved Countertops and Table Edges Havingcurved countertop and table edges can lessen fatal injuries like head bumps in cases of a slip or trip. Curved edges might still hurt, but pointed edges could be more fatal.
  • 118.
    Fire Safety Equipment It isimportant to have an immediate response in case of initial signs of kitchen fire. Having a fire extinguisher in a place accessible to adults only, is very wise. This can prevent fire from spreading which could endanger your family’s life and also your home. Having a phone or intercom service in your kitchen is also important so that you won’t need to leave your cooking area in cases of calls or door bells.
  • 119.
    Kitchen Flooring Surface The kitchenis a place where there is possible danger everywhere. To avoid the most common accident in your kitchen which is slips and slides, you should consider the surface of your kitchen flooring. One great flooring material to use is ceramic tiles with corrugated surface patterns. Even when oil or wet, slippery substances are spilled to the kitchen floor, the corrugated surface could provide a course and slip resistant surface, so you won’t slip
  • 121.
    • ‫المعمارية‬ ‫و‬‫المدنية‬ ‫لألعمال‬ ‫االنشائية‬ ‫و‬ ‫العامة‬ ‫المواصفات‬ ‫كتاب‬. • CANADA MORTGAGE AND HOUSING CORPORATION . https://www.cmhc-schl.gc.ca/en/co/acho/acho_004.cfm