PUBLIC LIBRARY DESIGN
Selection of Preliminary Designs
And
Realised Projects
Bilkent University ,Faculty of Art, Design and Architecture (FADA) IAED 302 Interior Design Studio IV January 2017
Bown Crossing Public Library
Bown City, US 2015
Preliminary Design
Project Goals and Vision
The preliminary designs for the Library! at Bown Crossing were developed to meet the following goals and vision:
 Provide a sense of place/community for the neighborhood and east Boise.
 Reinforce Bown Crossing as a destination point in the City with integrated pedestrian access and
circulation.
 Provide a universally inspiring facility for all ages.
 The design should be simple, logical and intuitive in operations, promoting easy access to useful collections,
information and programs.
 Create a building that is an experience that accommodates communication, collaboration, and self-service.
 Provide spaces for active use and quiet contemplation and reflection.
 Provide integrated, adaptable, and flexible building and technology systems suitable for future growth /
expansion.
 Reflect the history, natural habitat, style and environment of the Bown Crossing neighborhood.
 Build a sustainable building incorporating efficient design, sustainable materials, natural light, mechanical,
electrical and plumbing systems utilizing local and regional materials.
Lawrence Public Library
Expansion and Renovation
Lawrence is a city of about 90,000 people in northeast Kansas, best known as the home of the University of Kansas (KU). The
university's presence means Lawrence has a thriving downtown, one that stretches along Massachusetts Street. Near the north end
of the street is the Lawrence Public Library, which was renovated and expanded by Gould Evans "to establish a new 'place' within
the downtown area." The architects answered a few questions about the project.
Southwest Corner
What were the
circumstances of receiving
the commission for this
project?
The process we went
through with the community
began about ten years ago.
Around 2005, there was a
community workshop that
tested ideas for a new
library location. We had
been in close contact with
the library director at the
time, so he took interest in
what we had developed. The
project got tabled for some
time, but when a new mayor
of Lawrence was elected, he
took interest in the library
again and wanted to begin a
campaign for a bond issue.
Designers from Gould Evans
then helped the library and
city representatives conduct
a study and produce preliminary designs to assist in the promotion of the bond campaign. On November 2, 2010,
the Lawrence Public Library and increase parking for the library, senior center, outdoor pool, and downtown Lawrence. The project
received $18M from the local Lawrence government and library funds, as well as a private gift of $1M to expand the library and
build the parking garage.
Please provide an overview of the project.
The renovation and expansion of this 1970s concrete library has transformed it into a 21st century civic place: from book repository
to multimedia community hub. The design solution wrapped the existing library on all sides with a continuous reading room,
emphasizing places of spontaneous gathering, reflection and learning. The addition also provides a high-performance thermal
envelope engineered to harvest daylighting and reduce energy usage. Openings at each corner reveal unique public amenities,
including children's cubbies, teen gaming zones, meeting spaces and a coffee bar. Within a few months of reopening, user visits
increased 55%, with youth program attendance up 160%.
Southeast Corner Plaza
What are the main ideas and inspirations
influencing the design of the building?
Through extensive community dialogue, the
citizens of Lawrence voiced their thoughts and
established key design considerations for the
project, including an enhanced children’s area,
greater access to technology and an emphasis
on environmental sustainability. The citizens
recognized the significance of the library’s
location in the community and the opportunity
it provided to establish a new “place” within the
downtown area.
How does the design respond to the unique
qualities of the site?
The existing library, designed by Lawrence
architecture firm Robertson, Peters Ericson,
Williams P.A. and constructed in 1972, was uninviting due to poor thermal performance, difficult wayfinding and a lack of daylighting
and openness. Library attendance was down, particularly with younger generations. Gould Evans responded with a design that
addresses the changing role of the library in the 21st century.
The design for the addition is based on a simple expansion diagram. A continuous reading room wraps the existing library on all
sides, transforming it into a forward-looking, community-centered place. Each new elevation opens up to a different public
constituency: neighborhoods to the west, the post office to the north, downtown to the east and a new plaza to the south. Each
corner is designed with floor-to-ceiling curtain walls that reveal glimpses of spaces like children’s cubby areas, teen gaming zones,
small meeting spaces, and a coffee bar in the main lobby.
In addition to stacks for books and periodicals, the addition and renovation provides dedicated areas for different age groups and
places emphasis on community gathering places over silent spaces. New youth areas are organized around two main zones:younger
children’s zone and a teen
zone, each with
appropriately scaled
technologies. Meeting and
maker spaces are also
distributed throughout the
library, adjacent to and in
support of the other library
spaces.
How did the project change
between the initial design
stage and the completion of
the building?
In the beginning, the façade
was highly porous
throughout, so we re-
designed it with the intent to
be more selective with large
openings, creating views of
the community at the plaza
and at the corners. Openings
in the rest of the facade were treated much more judiciously to create a more pleasant reading environment and preserve the
books. The main circulation workroom, which was on the lower level and adjacent to the new drive-thru book drop off, was shifted
up to the main level, making it adjacent to the main entry and pedestrian traffic. This change was a result of the new library director
coming on board.
Another change driven by the new director, who has a music background, was taking a space that was originally programmed as a
loosely define creative center, and evolving it into a thriving professional-quality, audio/video recording studio supported by a full-
time sound engineer.
Northwest Corner
Children Zone
Auditorium
Was the project influenced by any trends in energy-conservation, construction, or design?
The sustainable design strategy for the addition focused on increasing energy efficiency via daylight harvesting throughout the
interior, improving thermal performance via the terra cotta rain screen system, and strategic sun-shading to eliminate glare. Most
expansions are added to one side of the building; however, we chose to wrap the existing library on all sides with the addition. A
striking new high-performance building envelope enabled us to transform a familiar institution and make it more sustainable at the
same time. The new library now uses less energy than it did before the addition.
While not tied directly to energy savings, the existing building and mechanical systems were re-used rather than completely
replaced, which reduced some of the embedded energy involved in building a new structure. The net result of these strategies was
the library was able to increase its size by 50% while actually reducing the building’s energy consumption. The building is in the LEED
certification process.
What products or materials have contributed to the success of the completed building?
Three primary building materials were selected to work in concert with each other and convey the concept of a continuous
experience for patrons. A high performance terra cotta rain screen is the primary exterior material. This was selected as a gesture to
the historic red brick of downtown Lawrence while demonstrating a very modern application: its high-performance assembly helps
control thermal transfer from exterior to interior. Clear-coated tongue-and-groove ash paneling installed over the previous exterior
walls of the original library form a continuous interior surface, providing warmth in contrast to the original painted concrete walls.
An abundant use of glass opens the library up at each of its corners and via new skylights and clerestories, bringing light into the
core of the original library.
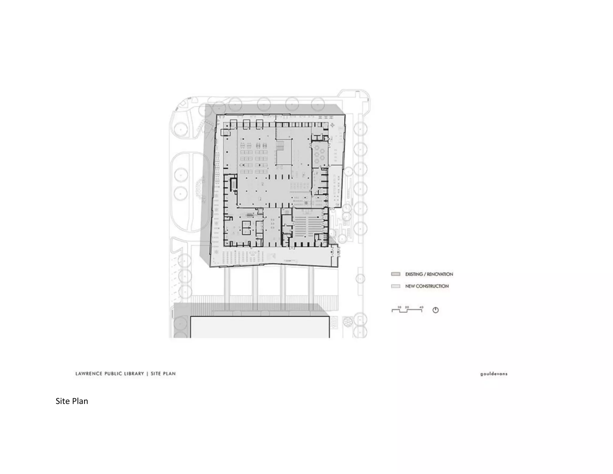
Site Plan
Level I Floor Plan
Lower Level Floor Plan
Section View
Washington Highlands Library
Washington, DC 2011
Preliminary Design and Realisation
Project Goals and Vision
In 2010, Adjaye Associates won a competition to design two new neighborhood libraries for Washington, DC.
Both of the new libraries are energy efficient, and they both respond to the natural landscape and surroundings.
The entrance to the library is located beneath the elevated reading rooms, creating a sheltered outdoor space for
bike parking. Inside, the library’s central stacks and main reading room are located in the main volume, while
other different reading rooms geared towards children and teens are located on separate volumes.
Because most of the public space in the library is lifted above street level, it provides visitors with excellent views
of the surrounding neighborhood. “Communities need empowering buildings – and this neighbourhood library is
all about the creation of a strong beacon for its community,” explained Adjaye. “The primary act of public
architecture is to create spaces that are socially edifying and socially liberating – using design excellence as a
social force that makes good. This is at the heart of my work, so it is very exciting to see this building welcome its
community through its doors.”
The geometric forms all feature vertical timber fins on the exterior, which creates a visual link between the
different shapes. A large, green-tinted light well cuts through the middle of the Bellevue Library, bringing natural
light to the center of the building. Other rooms are similarly brightly colored; the stairways are a striking yellow,
and the reading rooms range from dark red to blue. In addition to the natural daylighting, the building features
energy-efficient lighting, both inside and out.
Washington Highlands Library | Facility Condition Assessment + New Bldg Design |
Washington, DC
Setty performed a thorough architectural condition assessment, MEP assessment, and code review of the 17,120
gsf library. We conducted a Facility Condition Assessment (FCA) on the building systems, including roofing, piping,
HVAC, electrical, fire protection, architectural and structural systems. All systems were monitored, and ADA
compliance was addressed in a report. The code violations, building recommendations and upgrade costs were
submitted to DC Public Libraries, and the costs were run through life-cycle costing. The results concluded that the
library was best served by being demolished and a new library built to modern standards.
NEW BUILDING DESIGN
Setty's work contined on to the new building design, and as part of teh A/E team, performed design and related
services, including drawings and specifications for new construction of The Washington Highland Library. This
brand new 23,168 sf library is a showcase of integrated design and advanced thermal comfort systems,
anticipated to receive a LEED Silver rating, and boasts the latest technologically advanced heating and cooling
systems and variable refrigerant flow. Additional LEED strategies incorporated include daylight harvesting, high-
performance glazing, envelope light fins/shelves, green roofs, T-5 lighting, advanced-lighting controls, high-
efficiency heat pumps, demand-control ventilation, heat-recovery wheels, dedicated outside air system that
modulates based on occupancy, and sustainable materials.
Scope of services included:
Support program analysis for HVAC zones, normal and off-hour zones. Considerations for ground source heat
pump.Code compliant plumbing systems. Fire protection (wet pipe sprinkler system, smoke detection, interfaced
to BAS). Energy-efficient electrical power and lighting system design.Energy-efficient mechanical (HVAC) design
enabling zone isolation (Non-Use Shut-Down)
DOUGHERTY STATION PUBLIC LIBRARY
San Ramon, CA 2012
Preliminary Design and Realisation
Project Goals and Vision
Client: City of San Ramon and Lennar Communities/BLC
Services Provided: Master Planning, Programming, Design, Construction Documents, Construction Administration
Project Location: San Ramon, CA
Project Size: 11,800 sf
Completion Date: September 2005
Program:
Stacks, Information Commons, Circulation, Reference, Periodicals, Reading Area, Quiet Study Area, Children’s and
Story-Telling Area, Community Room, Computer Study and Training Room, Offices, Staff Room, Support Areas
This 11,800 sq. ft. Public Library is part of the new “Village Center”. A partnership between the City of San Ramon,
Private Developers and the Contra Costa Community College District has created a new 200,000 sq. ft. “Village
Center”. The Center integrates the Library and a community center, police sub-station, child care center, as well
as housing and retail/office functions with college functions.
The Library is designed to be flexible and expandable. This aids in its unique mission to serve the needs of both
the community and the college.
The building’s adjacency to the college will allow future inclusion of a Learning Resource Center.
Varna Public Library
International Competition
2015
The Competition
Varna needs a contemporary library
The Municipality of Varna and the Chamber of Architects in Bulgaria – Varna invite Bulgarian and foreign
architects in an open international architectural competition for a new building of Varna Regional Library. The
competition aims to collect under one roof the library's collection, now spread in 6 different buildings, and at
the same time to create a new and active public space in the centre of the city. Participate.
Project
Goals
“I have one free hour till the meeting, will wait for you
in the library...”
The new building of Varna Regional
Library will be the first library to be built
in Bulgaria for the last 30 years. This
competition aims that the future
building should demonstrate
contemporary attitude to books and
have one major message: “We are a
modern, open and friendly institution.
Come to spend your free time with us.”
First prize
Architects for Urbanity
Netherlands
Short Brief
Subtracting a large longitudinal void across a compact orthogonal volume, we propose a symbolic
gesture that creates ‘air’, space for the etheric body - the knowledge - to be developed. The open
space of knowledge divides therefore the mass of the building into two solid volumes. The backside
volume is fragmented in three large zones, so that on the back of the building a ‘spine’ is created, a
well-structured verticality that accommodates the archive and the administration.
The slabs of the two remaining volumes are shifted; the void is distorted. The ground-based volume
is shifted towards the city, opening up knowledge to the public. Geometric contour lines form a
climax, bare the library’s fetish, the books and the book stacks. The climax unfolds till the ground
floor and expands outside the building. The ’library’ is given back to the city.
The floating volume performs as a condensed act of knowledge; an Act On the book; ‘devouring’
the books; absorbing knowledge; learning.
Ground Level Built-up Area: 2 960 m2
Total Area of the Overground Levels: 17 500 m2
Landscaped Areas: 1050 m2
Parking Spots: 330
Third prize
Spatial practice
Hong Kong
The Varna Public Library grows from the existing public space network. Visitors strolling along
Varna’s green public passage, will be led into the new Library adjacent the Municipality Hall. The
library floats above the heavy concrete archives which hold Varna’s vast library collection and
history. Using local materials for the timber mullions provide warmth, elegance and softness to the
surrounding concrete neighbourhood, it also shows Varna’s commitment to sustainability, and
recalls memories of Varna’s relationship with timber.
The project will become a new public living room for visitors and local residents in Varna. The
folding facade lures visitors into the internal street at its heart; bringing a new element to the
existing public space system. The rigid, flexible floorplates become playful with free flowing reading
spaces at its periphery. The library embodies the idea of reading on a wooden terrace, feeling a
gentle breeze, overlooking the sea.
Ground Level Built-up Area: 2 465 m2
Total Area of the Overground Levels: 17 235 m2
Landscaped Areas: 816 m2
Parking Spots: 313
Public Library Design
Public Library Design
Public Library Design
Public Library Design
Public Library Design
Public Library Design
Public Library Design
Public Library Design

Public Library Design

  • 1.
    PUBLIC LIBRARY DESIGN Selectionof Preliminary Designs And Realised Projects Bilkent University ,Faculty of Art, Design and Architecture (FADA) IAED 302 Interior Design Studio IV January 2017
  • 2.
    Bown Crossing PublicLibrary Bown City, US 2015 Preliminary Design
  • 3.
    Project Goals andVision The preliminary designs for the Library! at Bown Crossing were developed to meet the following goals and vision:  Provide a sense of place/community for the neighborhood and east Boise.  Reinforce Bown Crossing as a destination point in the City with integrated pedestrian access and circulation.  Provide a universally inspiring facility for all ages.  The design should be simple, logical and intuitive in operations, promoting easy access to useful collections, information and programs.  Create a building that is an experience that accommodates communication, collaboration, and self-service.  Provide spaces for active use and quiet contemplation and reflection.  Provide integrated, adaptable, and flexible building and technology systems suitable for future growth / expansion.  Reflect the history, natural habitat, style and environment of the Bown Crossing neighborhood.  Build a sustainable building incorporating efficient design, sustainable materials, natural light, mechanical, electrical and plumbing systems utilizing local and regional materials.
  • 18.
  • 19.
    Lawrence is acity of about 90,000 people in northeast Kansas, best known as the home of the University of Kansas (KU). The university's presence means Lawrence has a thriving downtown, one that stretches along Massachusetts Street. Near the north end of the street is the Lawrence Public Library, which was renovated and expanded by Gould Evans "to establish a new 'place' within the downtown area." The architects answered a few questions about the project. Southwest Corner
  • 20.
    What were the circumstancesof receiving the commission for this project? The process we went through with the community began about ten years ago. Around 2005, there was a community workshop that tested ideas for a new library location. We had been in close contact with the library director at the time, so he took interest in what we had developed. The project got tabled for some time, but when a new mayor of Lawrence was elected, he took interest in the library again and wanted to begin a campaign for a bond issue. Designers from Gould Evans then helped the library and city representatives conduct a study and produce preliminary designs to assist in the promotion of the bond campaign. On November 2, 2010, the Lawrence Public Library and increase parking for the library, senior center, outdoor pool, and downtown Lawrence. The project received $18M from the local Lawrence government and library funds, as well as a private gift of $1M to expand the library and build the parking garage.
  • 21.
    Please provide anoverview of the project. The renovation and expansion of this 1970s concrete library has transformed it into a 21st century civic place: from book repository to multimedia community hub. The design solution wrapped the existing library on all sides with a continuous reading room, emphasizing places of spontaneous gathering, reflection and learning. The addition also provides a high-performance thermal envelope engineered to harvest daylighting and reduce energy usage. Openings at each corner reveal unique public amenities, including children's cubbies, teen gaming zones, meeting spaces and a coffee bar. Within a few months of reopening, user visits increased 55%, with youth program attendance up 160%. Southeast Corner Plaza
  • 22.
    What are themain ideas and inspirations influencing the design of the building? Through extensive community dialogue, the citizens of Lawrence voiced their thoughts and established key design considerations for the project, including an enhanced children’s area, greater access to technology and an emphasis on environmental sustainability. The citizens recognized the significance of the library’s location in the community and the opportunity it provided to establish a new “place” within the downtown area. How does the design respond to the unique qualities of the site? The existing library, designed by Lawrence architecture firm Robertson, Peters Ericson, Williams P.A. and constructed in 1972, was uninviting due to poor thermal performance, difficult wayfinding and a lack of daylighting and openness. Library attendance was down, particularly with younger generations. Gould Evans responded with a design that addresses the changing role of the library in the 21st century. The design for the addition is based on a simple expansion diagram. A continuous reading room wraps the existing library on all sides, transforming it into a forward-looking, community-centered place. Each new elevation opens up to a different public constituency: neighborhoods to the west, the post office to the north, downtown to the east and a new plaza to the south. Each corner is designed with floor-to-ceiling curtain walls that reveal glimpses of spaces like children’s cubby areas, teen gaming zones, small meeting spaces, and a coffee bar in the main lobby. In addition to stacks for books and periodicals, the addition and renovation provides dedicated areas for different age groups and places emphasis on community gathering places over silent spaces. New youth areas are organized around two main zones:younger
  • 23.
    children’s zone anda teen zone, each with appropriately scaled technologies. Meeting and maker spaces are also distributed throughout the library, adjacent to and in support of the other library spaces. How did the project change between the initial design stage and the completion of the building? In the beginning, the façade was highly porous throughout, so we re- designed it with the intent to be more selective with large openings, creating views of the community at the plaza and at the corners. Openings in the rest of the facade were treated much more judiciously to create a more pleasant reading environment and preserve the books. The main circulation workroom, which was on the lower level and adjacent to the new drive-thru book drop off, was shifted up to the main level, making it adjacent to the main entry and pedestrian traffic. This change was a result of the new library director coming on board. Another change driven by the new director, who has a music background, was taking a space that was originally programmed as a loosely define creative center, and evolving it into a thriving professional-quality, audio/video recording studio supported by a full- time sound engineer.
  • 24.
  • 25.
  • 28.
  • 29.
    Was the projectinfluenced by any trends in energy-conservation, construction, or design? The sustainable design strategy for the addition focused on increasing energy efficiency via daylight harvesting throughout the interior, improving thermal performance via the terra cotta rain screen system, and strategic sun-shading to eliminate glare. Most expansions are added to one side of the building; however, we chose to wrap the existing library on all sides with the addition. A striking new high-performance building envelope enabled us to transform a familiar institution and make it more sustainable at the same time. The new library now uses less energy than it did before the addition. While not tied directly to energy savings, the existing building and mechanical systems were re-used rather than completely replaced, which reduced some of the embedded energy involved in building a new structure. The net result of these strategies was the library was able to increase its size by 50% while actually reducing the building’s energy consumption. The building is in the LEED certification process. What products or materials have contributed to the success of the completed building? Three primary building materials were selected to work in concert with each other and convey the concept of a continuous experience for patrons. A high performance terra cotta rain screen is the primary exterior material. This was selected as a gesture to the historic red brick of downtown Lawrence while demonstrating a very modern application: its high-performance assembly helps control thermal transfer from exterior to interior. Clear-coated tongue-and-groove ash paneling installed over the previous exterior walls of the original library form a continuous interior surface, providing warmth in contrast to the original painted concrete walls. An abundant use of glass opens the library up at each of its corners and via new skylights and clerestories, bringing light into the core of the original library.
  • 31.
  • 32.
  • 33.
  • 34.
  • 41.
    Washington Highlands Library Washington,DC 2011 Preliminary Design and Realisation
  • 42.
    Project Goals andVision In 2010, Adjaye Associates won a competition to design two new neighborhood libraries for Washington, DC. Both of the new libraries are energy efficient, and they both respond to the natural landscape and surroundings. The entrance to the library is located beneath the elevated reading rooms, creating a sheltered outdoor space for bike parking. Inside, the library’s central stacks and main reading room are located in the main volume, while other different reading rooms geared towards children and teens are located on separate volumes. Because most of the public space in the library is lifted above street level, it provides visitors with excellent views of the surrounding neighborhood. “Communities need empowering buildings – and this neighbourhood library is all about the creation of a strong beacon for its community,” explained Adjaye. “The primary act of public architecture is to create spaces that are socially edifying and socially liberating – using design excellence as a social force that makes good. This is at the heart of my work, so it is very exciting to see this building welcome its community through its doors.” The geometric forms all feature vertical timber fins on the exterior, which creates a visual link between the different shapes. A large, green-tinted light well cuts through the middle of the Bellevue Library, bringing natural light to the center of the building. Other rooms are similarly brightly colored; the stairways are a striking yellow, and the reading rooms range from dark red to blue. In addition to the natural daylighting, the building features energy-efficient lighting, both inside and out.
  • 43.
    Washington Highlands Library| Facility Condition Assessment + New Bldg Design | Washington, DC Setty performed a thorough architectural condition assessment, MEP assessment, and code review of the 17,120 gsf library. We conducted a Facility Condition Assessment (FCA) on the building systems, including roofing, piping, HVAC, electrical, fire protection, architectural and structural systems. All systems were monitored, and ADA compliance was addressed in a report. The code violations, building recommendations and upgrade costs were submitted to DC Public Libraries, and the costs were run through life-cycle costing. The results concluded that the library was best served by being demolished and a new library built to modern standards. NEW BUILDING DESIGN Setty's work contined on to the new building design, and as part of teh A/E team, performed design and related services, including drawings and specifications for new construction of The Washington Highland Library. This brand new 23,168 sf library is a showcase of integrated design and advanced thermal comfort systems, anticipated to receive a LEED Silver rating, and boasts the latest technologically advanced heating and cooling systems and variable refrigerant flow. Additional LEED strategies incorporated include daylight harvesting, high- performance glazing, envelope light fins/shelves, green roofs, T-5 lighting, advanced-lighting controls, high- efficiency heat pumps, demand-control ventilation, heat-recovery wheels, dedicated outside air system that modulates based on occupancy, and sustainable materials. Scope of services included: Support program analysis for HVAC zones, normal and off-hour zones. Considerations for ground source heat pump.Code compliant plumbing systems. Fire protection (wet pipe sprinkler system, smoke detection, interfaced to BAS). Energy-efficient electrical power and lighting system design.Energy-efficient mechanical (HVAC) design enabling zone isolation (Non-Use Shut-Down)
  • 57.
    DOUGHERTY STATION PUBLICLIBRARY San Ramon, CA 2012 Preliminary Design and Realisation
  • 58.
    Project Goals andVision Client: City of San Ramon and Lennar Communities/BLC Services Provided: Master Planning, Programming, Design, Construction Documents, Construction Administration Project Location: San Ramon, CA Project Size: 11,800 sf Completion Date: September 2005 Program: Stacks, Information Commons, Circulation, Reference, Periodicals, Reading Area, Quiet Study Area, Children’s and Story-Telling Area, Community Room, Computer Study and Training Room, Offices, Staff Room, Support Areas This 11,800 sq. ft. Public Library is part of the new “Village Center”. A partnership between the City of San Ramon, Private Developers and the Contra Costa Community College District has created a new 200,000 sq. ft. “Village Center”. The Center integrates the Library and a community center, police sub-station, child care center, as well as housing and retail/office functions with college functions. The Library is designed to be flexible and expandable. This aids in its unique mission to serve the needs of both the community and the college. The building’s adjacency to the college will allow future inclusion of a Learning Resource Center.
  • 64.
  • 65.
    The Competition Varna needsa contemporary library The Municipality of Varna and the Chamber of Architects in Bulgaria – Varna invite Bulgarian and foreign architects in an open international architectural competition for a new building of Varna Regional Library. The competition aims to collect under one roof the library's collection, now spread in 6 different buildings, and at the same time to create a new and active public space in the centre of the city. Participate.
  • 66.
    Project Goals “I have onefree hour till the meeting, will wait for you in the library...” The new building of Varna Regional Library will be the first library to be built in Bulgaria for the last 30 years. This competition aims that the future building should demonstrate contemporary attitude to books and have one major message: “We are a modern, open and friendly institution. Come to spend your free time with us.”
  • 67.
    First prize Architects forUrbanity Netherlands
  • 69.
    Short Brief Subtracting alarge longitudinal void across a compact orthogonal volume, we propose a symbolic gesture that creates ‘air’, space for the etheric body - the knowledge - to be developed. The open space of knowledge divides therefore the mass of the building into two solid volumes. The backside volume is fragmented in three large zones, so that on the back of the building a ‘spine’ is created, a well-structured verticality that accommodates the archive and the administration. The slabs of the two remaining volumes are shifted; the void is distorted. The ground-based volume is shifted towards the city, opening up knowledge to the public. Geometric contour lines form a climax, bare the library’s fetish, the books and the book stacks. The climax unfolds till the ground floor and expands outside the building. The ’library’ is given back to the city. The floating volume performs as a condensed act of knowledge; an Act On the book; ‘devouring’ the books; absorbing knowledge; learning. Ground Level Built-up Area: 2 960 m2 Total Area of the Overground Levels: 17 500 m2 Landscaped Areas: 1050 m2 Parking Spots: 330
  • 78.
  • 80.
    The Varna PublicLibrary grows from the existing public space network. Visitors strolling along Varna’s green public passage, will be led into the new Library adjacent the Municipality Hall. The library floats above the heavy concrete archives which hold Varna’s vast library collection and history. Using local materials for the timber mullions provide warmth, elegance and softness to the surrounding concrete neighbourhood, it also shows Varna’s commitment to sustainability, and recalls memories of Varna’s relationship with timber. The project will become a new public living room for visitors and local residents in Varna. The folding facade lures visitors into the internal street at its heart; bringing a new element to the existing public space system. The rigid, flexible floorplates become playful with free flowing reading spaces at its periphery. The library embodies the idea of reading on a wooden terrace, feeling a gentle breeze, overlooking the sea. Ground Level Built-up Area: 2 465 m2 Total Area of the Overground Levels: 17 235 m2 Landscaped Areas: 816 m2 Parking Spots: 313