DESIGN STUDIO
NAME : AHMAD HASSAN
ROLL NO : 23
SUBMITTED TO :
SIR USAMA & SIR SHAHID
What is case study?
When students begin studying Architecture at a University, the first thing that they
are supposed to become excellent at, is doing a documentation or a case study.
It could be a case study of a small village, town, a villa, a bus-stop, or a high-rise
commercial or residential building.
A case study is an in-depth investigation of a single individual, group, incident, or
community. Other ways include experiments, surveys, or analysis of archival
information
What is the purpose of conducting a Case Study?
As the term Case Study suggests, it is the study of a particular case that is similar
to your topic of design project. Doing a case study will help you understand the
various aspects that you have to consider while designing.
Most Important points for case study are following:
• Name of Architect who design building.
• Location
• Purpose
• Positive/Negative Points.
• Solutions
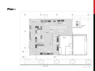
1. STRAW BALE CAFÉ . HEWITT STUDIOS
Address : Holme Lacy, County of Herefordshire HR2, UK
Design by : Hewitt Studios in 2010
Purpose : This project comprises an extended 100 seat cafe, refurbished
kitchen and cafe terrace. It is conceived as a learning aid in low-impact
environmental design.
Positive point : A key advantage of this modular form of construction is that
the building can be easily dismantled at the end of its useful life and most
components reused and/or recycled. This is important because the College has
long-term plans for the redevelopment of the campus over the next 10-20
years.
Negative point : Relative humidity of UK measures the actual amount of
moisture in the air as a percentage of the maximum amount of moisture the air
can hold.
The 60 organic straw bales used to insulate the building and timber is also use in
the building for Floor design, Roof design and wood is also use for furniture.
So, the climate of UK should be badly effected on this building.
Solution : We can also use other insulated materials expect wood like fiber
glass.
Wood work in building:
Section :
Plan :
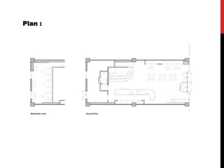
2. F-COFFEE / WANGSTUDIO
Address : Dong Hoi Airport (VDH), AH1, Lộc Ninh, tp. Đồng Hới, Quảng Bình,
Vietnam
Design by : Wangstudio in 2014
Area : 217.0 m2
Purpose : F - coffee was designed based on the basic concept of minimalism ,
brick , concrete ,stone floor , trees and water to create a concise and emotional
space.
Positive Point : The café’s space is made up of 24 brick arches, in which an
unique visual language is used, thereby transmitting the way we focus on to
create the architectural space: Using least to achieve the highest efficiency.
Plan :
Elevation :
Sections :
Images :
3. THE BUDAPEST CAFÉ / BIASOL
Address : Chengdu, Sichuan, China
Design by : Biasol in 2017
Area : 178.0 m2
Purpose : The Budapest Café is designed to feel feminine, light and fun,
despite its loftiness and exposed structure.
Positive Point : Filmmaker Wes Anderson’s distinctive visual style provided the
inspiration for The Budapest Café in Chengdu, China. Our design draws on
Anderson’s meticulous, memorable and magical worlds to create an inviting
destination with whimsical character and international appeal.
Plan :
Sections A :
Sections B :
Sections C :
Images :
4. BLUE BOTTLE COFFEE KANDA MANSEIBASHI CAFE
/ SCHEMATA ARCHITECTS
Address :
Santa Cecilia, Sao Paulo - SP, Brazil.
Design by : Schemata Architects 2018
Area : 24.91 m2
Purpose : Our design focused on how to integrate the cafe into this attractive
existing environment with a long history.
Positive Point : The Blue Bottle Coffee Kanda Manseibashi Cafe is set
under a 100-year old railway bridge (for the Chuo Line) made out of brick.
Plan :
Sections :
Images :
5. Cafe Cross / FORM | Kouichi Kimura Architects
Address : Hyogo, Japan
Design by : FORM Kouichi Kimura Architects 2012
Area : 121.45 m2
Purpose : Cafe CROSS has been built in a residential area of the suburbs.
With its dynamic shed roof that strengthens impressiveness, the façade looks
like a hall or a church, making the building something like a sign. Whereas in
the inside, natural light is utilized in the minimal space to provide subtle
appearance.
Positive Point : What enriches the space of the café is not the expensive
materials or novel products, but the rendering by light and shadow. It is hoped
that the cafe will be accepted by the community as “the healing place”.
Plan :
Section :
Images :
1. 9 ¾ Bookstore + Café / PLASMA NODO
Address : Hyogo, Japan
Design by : PLASMA NODO in 2015
Area : 120.0 m2
Purpose : We believe that cities need warm and nice meeting places that
welcome us and invite us to learn having fun with our families and friends, sites
where people not only buy but go and have a good time.
Positive Point : The areas for children in 9 3/4 are small hiding spots or
places where they can draw, rest and play while learning and enjoying a good
book. For grown-ups there are private reading rooms and also tables for
sharing, all surrounded by warm materials, furniture and decoration objects that
speak of the joy that gives us a good story, a good book.
First floor Plan:
Second floor Plan:
Section A :
Section B :
Axonometric View :
Images :
2. Paulus Bookshop / Site Specific Arquitectura
Address : Pombaline Lower Town, R. Augusta, 1100 Lisboa, Portugal
Design by : Site Specific Arquitectura
Purpose : The proposal intends to create a new identity for a traditional and
classic product, religious, which unifies the several bookshops from the
publisher.
Positive Point : Innovating and updating without neglect the message of the
editorial project, through clear and bright spaces, which communicate with the
public, with flexibility to receive different products - books and religious articles
- and different activities - book launches, conferences and movies.
Plan:
Section :
Images :
3. Conarte Bookstore / Anagrama
Address : Pombaline Lower Town, R. Augusta, 1100 Lisboa, Portugal
Design by : Anagrama in 2015
Area : 90.0 m2
Purpose : Conarte is the council for culture and art in the city of Monterrey,
Mexico. Conarte aims to promote and stimulate artistic expression and
supports the preservation and enrichment of culture.
Positive Point : Innovating and updating without neglect the message of the
editorial project, through clear and bright spaces, which communicate with the
public, with flexibility to receive different products - books and religious articles
- and different activities - book launches, conferences and movies.
Plan :
Section A :
Section B :
Detail :
Images :
4. Bookshop And Coffee Bar / Plural + Totalstudio
Address : Bratislava, Slovakia
Design by : Martin Jančok, AlešŠedivec
Area : 170.0 m2
Purpose : Our aim was to create a flexible space that would not only sell
books but would also be capable of facilitating various collate relevant such as
projections, readings, minor concerts, workshops, etc.
Positive Point : Both levels are connected with cascades which serve as an
auditorium during collateral events.
Ground Floor Plan :
First Floor Plan :
Section :
Axio View :
Section Model :
Images :
5. Saraiva Bookstore / Studio Arthur Casas
Address : Rio de Janeiro - State of Rio de Janeiro, Brazil
Design by : Studio Arthur Casas in 2013
Area : 2000.0 sqm
Purpose : Saraiva Bookstore was conceived as a hybrid between a public
square and a library, a place for conviviality, leisure, concentration and rest at
the same time. Its architecture is simple and inviting, it aims to disappear
behind the books to let the mind wander about their content.
Positive point : the bookstore was thought out to make clients stay longer
and come back as often as possible
Basement 1 :
Basement 2 :
Ground Floor Plan :
First Floor Plan :
Basement 1 :
Basement 2 :
Ground Floor Plan :
First Floor Plan :
Section :
Images :
1. Exeter Library
(Class of 1945 Library) / Louis Kahn
Address : Exeter, New Hampshire
Design by : Louis Kahn in 1972
Area : 12321.0 m2
Purpose : In 1965 Louis I. Kahn was commissioned by the
Phillips Exeter Academy to design a library for the school. The Academy had
been planning the new library for fifteen years
Positive Point : Kahn's sympathetic use of brick and his concerns for natural
light met these specific principles that the Academy had in mind for the library,
and thus the design fell in his hands.
Ground Floor Plan :
First Floor Plan :
Section :
Front View :
Images :
2. Born CC Library / Jorge Pérez Vale
Address : Barcelona, Spain
Design by : Jorge Pérez Vale in 2013
Area : 121.0 sqm
Purpose : The bookshop has been designed to remain reminiscent of the
former use of the building, trying to preserve sensations and personality from
the old market, paying homage to the market trader days gone by.
Positive point : The building functioned as a market during 19th and 20th
centuries, and its commercial activity gave a special personality to the whole
neighbourhood.
Plan :
Section :
Images :
3. 80㎡ Reading Village / yuan Architects
Address : Jiaojiang County, Taizhou City, Zhejiang Province, China
Design by : yuan Architects in 2019
Area : 80.0 m2
Purpose : The project is located in Taizhou Experimental Middle
School, Jiaojiang County, Taizhou City, Zhejiang Province.
Positive point : The school hopes that the library will not only be a building,
but also a landscape in campus, which has a distinctive external form and
provides spatial experience.
Plan :
Section A :
Section B :
Elevation :
Axonometric Map :
Images :
4. New University Library in Cayenne / rh+ architecture
Address : P.A.C.T de Guyane, Cayenne, French Guiana
Design by : rh+ architecture in 2013
Area : 2143.0 sqm
Purpose : Our aim is to give to this unique building for its program and its
central position, a proper architecture – identifiable by its volumetry and its
uses – combined to an opening upon the whole University.
Positive point : A gallery around the building and at the heart of the
University: The main architectural choice is the creation of an open peripheral
space : unlike a construction cast in one piece with no dialogue with the
surrounding, the building is wrapped up with a peripheral space of variable
dimensions called “gallery” or peristyle. This gallery is an open space, a place
where the students meet and pass through, an extra room between inside and
outside, sheltered from sun and rain.
Ground Floor Plan :
First Floor Plan :
Section A :
Section B :
Elevation East :
Elevation North :
Front View :
Images :
5. Independence Library and Apartments / John Ronan Architects
Address : Chicago, Illinois, United States
Design by : John Ronan Architects in 2019
Area : 60000.0 ft2
Purpose : The Independence Library and Apartments building
was constructed as part of a city initiative that aims to co-locate housing
and libraries.
Positive point : Walls of glass will bathe the library in natural light and the
apartments break the mold of institutional-looking public housing.
Ground Floor Plan :
Second Floor Plan :
Residential Floor Plan :
Axonometric Diagram :
Perspective Section :
Images :
Presentation of Case Studies for Bookcafe

Presentation of Case Studies for Bookcafe

  • 1.
    DESIGN STUDIO NAME :AHMAD HASSAN ROLL NO : 23 SUBMITTED TO : SIR USAMA & SIR SHAHID
  • 2.
    What is casestudy? When students begin studying Architecture at a University, the first thing that they are supposed to become excellent at, is doing a documentation or a case study. It could be a case study of a small village, town, a villa, a bus-stop, or a high-rise commercial or residential building. A case study is an in-depth investigation of a single individual, group, incident, or community. Other ways include experiments, surveys, or analysis of archival information What is the purpose of conducting a Case Study? As the term Case Study suggests, it is the study of a particular case that is similar to your topic of design project. Doing a case study will help you understand the various aspects that you have to consider while designing. Most Important points for case study are following: • Name of Architect who design building. • Location • Purpose • Positive/Negative Points. • Solutions
  • 4.
    1. STRAW BALECAFÉ . HEWITT STUDIOS Address : Holme Lacy, County of Herefordshire HR2, UK Design by : Hewitt Studios in 2010 Purpose : This project comprises an extended 100 seat cafe, refurbished kitchen and cafe terrace. It is conceived as a learning aid in low-impact environmental design. Positive point : A key advantage of this modular form of construction is that the building can be easily dismantled at the end of its useful life and most components reused and/or recycled. This is important because the College has long-term plans for the redevelopment of the campus over the next 10-20 years. Negative point : Relative humidity of UK measures the actual amount of moisture in the air as a percentage of the maximum amount of moisture the air can hold.
  • 5.
    The 60 organicstraw bales used to insulate the building and timber is also use in the building for Floor design, Roof design and wood is also use for furniture. So, the climate of UK should be badly effected on this building. Solution : We can also use other insulated materials expect wood like fiber glass. Wood work in building:
  • 6.
  • 7.
    2. F-COFFEE /WANGSTUDIO Address : Dong Hoi Airport (VDH), AH1, Lộc Ninh, tp. Đồng Hới, Quảng Bình, Vietnam Design by : Wangstudio in 2014 Area : 217.0 m2 Purpose : F - coffee was designed based on the basic concept of minimalism , brick , concrete ,stone floor , trees and water to create a concise and emotional space. Positive Point : The café’s space is made up of 24 brick arches, in which an unique visual language is used, thereby transmitting the way we focus on to create the architectural space: Using least to achieve the highest efficiency.
  • 8.
  • 9.
  • 10.
  • 11.
  • 12.
    3. THE BUDAPESTCAFÉ / BIASOL Address : Chengdu, Sichuan, China Design by : Biasol in 2017 Area : 178.0 m2 Purpose : The Budapest Café is designed to feel feminine, light and fun, despite its loftiness and exposed structure. Positive Point : Filmmaker Wes Anderson’s distinctive visual style provided the inspiration for The Budapest Café in Chengdu, China. Our design draws on Anderson’s meticulous, memorable and magical worlds to create an inviting destination with whimsical character and international appeal.
  • 13.
  • 14.
  • 15.
  • 16.
  • 17.
    4. BLUE BOTTLECOFFEE KANDA MANSEIBASHI CAFE / SCHEMATA ARCHITECTS Address : Santa Cecilia, Sao Paulo - SP, Brazil. Design by : Schemata Architects 2018 Area : 24.91 m2 Purpose : Our design focused on how to integrate the cafe into this attractive existing environment with a long history. Positive Point : The Blue Bottle Coffee Kanda Manseibashi Cafe is set under a 100-year old railway bridge (for the Chuo Line) made out of brick.
  • 18.
  • 19.
  • 20.
  • 21.
    5. Cafe Cross/ FORM | Kouichi Kimura Architects Address : Hyogo, Japan Design by : FORM Kouichi Kimura Architects 2012 Area : 121.45 m2 Purpose : Cafe CROSS has been built in a residential area of the suburbs. With its dynamic shed roof that strengthens impressiveness, the façade looks like a hall or a church, making the building something like a sign. Whereas in the inside, natural light is utilized in the minimal space to provide subtle appearance. Positive Point : What enriches the space of the café is not the expensive materials or novel products, but the rendering by light and shadow. It is hoped that the cafe will be accepted by the community as “the healing place”.
  • 22.
  • 23.
  • 24.
  • 26.
    1. 9 ¾Bookstore + Café / PLASMA NODO Address : Hyogo, Japan Design by : PLASMA NODO in 2015 Area : 120.0 m2 Purpose : We believe that cities need warm and nice meeting places that welcome us and invite us to learn having fun with our families and friends, sites where people not only buy but go and have a good time. Positive Point : The areas for children in 9 3/4 are small hiding spots or places where they can draw, rest and play while learning and enjoying a good book. For grown-ups there are private reading rooms and also tables for sharing, all surrounded by warm materials, furniture and decoration objects that speak of the joy that gives us a good story, a good book.
  • 27.
  • 28.
  • 29.
  • 30.
  • 32.
    2. Paulus Bookshop/ Site Specific Arquitectura Address : Pombaline Lower Town, R. Augusta, 1100 Lisboa, Portugal Design by : Site Specific Arquitectura Purpose : The proposal intends to create a new identity for a traditional and classic product, religious, which unifies the several bookshops from the publisher. Positive Point : Innovating and updating without neglect the message of the editorial project, through clear and bright spaces, which communicate with the public, with flexibility to receive different products - books and religious articles - and different activities - book launches, conferences and movies.
  • 33.
  • 34.
  • 35.
  • 36.
    3. Conarte Bookstore/ Anagrama Address : Pombaline Lower Town, R. Augusta, 1100 Lisboa, Portugal Design by : Anagrama in 2015 Area : 90.0 m2 Purpose : Conarte is the council for culture and art in the city of Monterrey, Mexico. Conarte aims to promote and stimulate artistic expression and supports the preservation and enrichment of culture. Positive Point : Innovating and updating without neglect the message of the editorial project, through clear and bright spaces, which communicate with the public, with flexibility to receive different products - books and religious articles - and different activities - book launches, conferences and movies.
  • 37.
  • 38.
  • 39.
  • 40.
  • 41.
  • 42.
    4. Bookshop AndCoffee Bar / Plural + Totalstudio Address : Bratislava, Slovakia Design by : Martin Jančok, AlešŠedivec Area : 170.0 m2 Purpose : Our aim was to create a flexible space that would not only sell books but would also be capable of facilitating various collate relevant such as projections, readings, minor concerts, workshops, etc. Positive Point : Both levels are connected with cascades which serve as an auditorium during collateral events.
  • 43.
  • 44.
  • 45.
  • 46.
  • 47.
  • 48.
    5. Saraiva Bookstore/ Studio Arthur Casas Address : Rio de Janeiro - State of Rio de Janeiro, Brazil Design by : Studio Arthur Casas in 2013 Area : 2000.0 sqm Purpose : Saraiva Bookstore was conceived as a hybrid between a public square and a library, a place for conviviality, leisure, concentration and rest at the same time. Its architecture is simple and inviting, it aims to disappear behind the books to let the mind wander about their content. Positive point : the bookstore was thought out to make clients stay longer and come back as often as possible
  • 49.
  • 50.
  • 51.
  • 52.
  • 53.
    Basement 1 : Basement2 : Ground Floor Plan : First Floor Plan :
  • 54.
  • 55.
  • 57.
    1. Exeter Library (Classof 1945 Library) / Louis Kahn Address : Exeter, New Hampshire Design by : Louis Kahn in 1972 Area : 12321.0 m2 Purpose : In 1965 Louis I. Kahn was commissioned by the Phillips Exeter Academy to design a library for the school. The Academy had been planning the new library for fifteen years Positive Point : Kahn's sympathetic use of brick and his concerns for natural light met these specific principles that the Academy had in mind for the library, and thus the design fell in his hands.
  • 58.
  • 59.
  • 60.
  • 61.
  • 62.
  • 63.
    2. Born CCLibrary / Jorge Pérez Vale Address : Barcelona, Spain Design by : Jorge Pérez Vale in 2013 Area : 121.0 sqm Purpose : The bookshop has been designed to remain reminiscent of the former use of the building, trying to preserve sensations and personality from the old market, paying homage to the market trader days gone by. Positive point : The building functioned as a market during 19th and 20th centuries, and its commercial activity gave a special personality to the whole neighbourhood.
  • 64.
  • 65.
  • 66.
  • 67.
    3. 80㎡ ReadingVillage / yuan Architects Address : Jiaojiang County, Taizhou City, Zhejiang Province, China Design by : yuan Architects in 2019 Area : 80.0 m2 Purpose : The project is located in Taizhou Experimental Middle School, Jiaojiang County, Taizhou City, Zhejiang Province. Positive point : The school hopes that the library will not only be a building, but also a landscape in campus, which has a distinctive external form and provides spatial experience.
  • 68.
  • 69.
  • 70.
  • 71.
  • 72.
  • 74.
    4. New UniversityLibrary in Cayenne / rh+ architecture Address : P.A.C.T de Guyane, Cayenne, French Guiana Design by : rh+ architecture in 2013 Area : 2143.0 sqm Purpose : Our aim is to give to this unique building for its program and its central position, a proper architecture – identifiable by its volumetry and its uses – combined to an opening upon the whole University. Positive point : A gallery around the building and at the heart of the University: The main architectural choice is the creation of an open peripheral space : unlike a construction cast in one piece with no dialogue with the surrounding, the building is wrapped up with a peripheral space of variable dimensions called “gallery” or peristyle. This gallery is an open space, a place where the students meet and pass through, an extra room between inside and outside, sheltered from sun and rain.
  • 75.
  • 76.
  • 77.
  • 78.
  • 79.
  • 80.
  • 81.
  • 82.
  • 84.
    5. Independence Libraryand Apartments / John Ronan Architects Address : Chicago, Illinois, United States Design by : John Ronan Architects in 2019 Area : 60000.0 ft2 Purpose : The Independence Library and Apartments building was constructed as part of a city initiative that aims to co-locate housing and libraries. Positive point : Walls of glass will bathe the library in natural light and the apartments break the mold of institutional-looking public housing.
  • 85.
  • 86.
  • 87.
  • 88.
  • 89.
  • 90.