Embed presentation
Downloaded 324 times



















































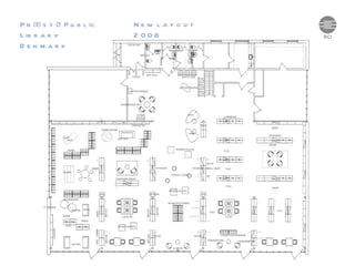
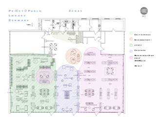
The document provides an overview of various public libraries in Denmark and abroad, detailing new layouts, designs, and features introduced in 2008 and 2010. It mentions specific libraries such as Præstø, Dalum, and others, highlighting elements like self-service areas, flexible furniture, and spaces designed for different age groups. It emphasizes the importance of creating environments that encourage social interaction and accessibility for all users.


















































