BACHELOR OF SCIENCE (HONS) IN ARCHITECTURE
BUIILDING SCIENCE 2 (ARC 3413)
PROJECT 2 : INTEGRATION PROJECT WITH DESIGN STUDIO 5
JALAN TAR COMMUNITY LIBRARY
NAME : LYNETTE LAW YONG YI
STUDENT ID : 0317761
TUTOR : MR AZIM
Project 2 : Integration of Studio V Project – Community Library
Table of Content
1.0 Lighting
1.1 Children area (Space A)
1.2 Daylight analysis
1.3 Artificial lighting proposal
1.4 PSALI scheme
1.5 Music listening area (Space B)
1.6 Artificial lighting proposal
1.7 PSALI scheme
2.0 Reference
1.0 Lighting
1.1 CHILDREN AREA (Space A)
SECOND FLOOR PLAN.
The selected studied area is the children area located on the second floor, located at the front of the
building facing east as shown in the second floor plan above. The floor height of this space is 4 meters
and the aim of façade design is to provide maximum daylighting in the morning whereas remain shaded
to reduce glare and discomfort to the children.
Sun path – 8am
Sun path -11am
Sun path – 3pm
Zoom in plan and light contour diagram which shows respective time of 8am, 11am and 3pm.
From the daylight contour analysis, it can be identified that light can reach upon the reading area in the
center of children area. The natural light received is relatively higher during the day. Comfortable
lighting conditions can be improved by installing a fabric screen and double glazed windows on the
façade of the building.
According to MS1525, Daylighting factor distribution is as below :
Zone Daylight Factor (%) Distribution
Very bright >6 Too bright with thermal and
glare problems
Bright 3-6 Good
Average 1-3 Fair
Good 0-1 Poor
DAYLIGHT FACTOR CALCULATION
𝑊
𝐴
𝑥
𝑇𝜃
1 − 𝑅
W, area of window = 2 (2.3m x 0.8m) + 2(2.4x0.8m) + 2 (1.3m x 5m)
= 20.52 square metre
A, area = 2 ( 4m x 5m ) + 2 ( 4m x 10m ) + 2 ( 5m x 10m )
= 220 square metre
T, glass transmittance corrected for dirt = 0.5 (double glazed glass)
𝜃 , Visible sky angle in degrees from the center of the window = 80 degrees
R, average reflectance of area A = 0.3
20.52
220
𝑥
0.5 𝑥 80
1 − 0.3
= 5.33 %
CONCLUSION
The children area has a daylight factor of 5.33% , based on the requirement of MS 1525, the space is
brightly lit by daylight and good daylight distribution. As the chosen space is a semi open air children
area, artificial illuminance is needed after 3pm according to the light contour , and a double skin façade
is needed to prevent glare and thermal discomfort to the children, as so fabric screen is used on the
front elevation as shown in the section below.
1.3 Artificial Lighting Proposal
Since the children area will operated till after working hours which is approximately until 8pm, artificial
lighting is required ( according to light contour insufficient daylight source after 3pm ) in order for the
community to enjoy the space in a well lit, comfortable condition.
LUMEN METHOD CALCULATION
Type of fixture Recessed LED luminaire
Type of model
PowerBalance RC600B recessed LED luminaire, square
Company Philips
Product dimension Width 0.6m x 0.6m
Lumen (lm) 3100
Watt 26
Color designation Cool white
Dimension of room ( L x W ) 10 x 5.3
Floor area 53 square metre
Height of ceiling 4m
Height of luminaire 4
Height of working plane 1
Mounting height (Hm) 4-1 = 3m
Reflective factors Ceiling (white plastered ceiling) = 0.7
Wall (masonry wall with white paint) = 0.3
Working plane (hardwood) =0.1
Room Index, RI (K) RI =
𝐿 𝑥 𝑊
𝐻𝑚 𝑥 (𝐿+𝑊)
=
53
3 𝑥 ( 10+5.3
= 1.15
Utilization factor , UF 0.47
Maintenance factor, MF 0.8
Number of fittings required , N N =
𝐸 𝑥 𝐴
𝐹 𝑥 𝑈𝐹 𝑥 𝑀𝐹
=
400 𝑥 53
3100 𝑥 (0.47 𝑥 0.8 )
= 18.18
= 18
Fittings layout Smax = 1 x Hm
= 1 x 3m
= 3m
Proposed lighting fittings spacing diagram
Light contour of children area with artificial lighting fittings
PSALI SCHEME
Based on the calculation and light contour analysis, the total 18 luminaires in the children area can be
controlled by using just two switches. Switch 1 controls the two rows (12 luminaires) facing the façade
and switch 2 controls the following row ( 6 rows ). Reason being the children area will receive a good
daylight distribution of 5.33 % during the day from the façade. Switch 1 can be switch off and switch 2
can be switch on during that period of time so that electrical cost can be saved.
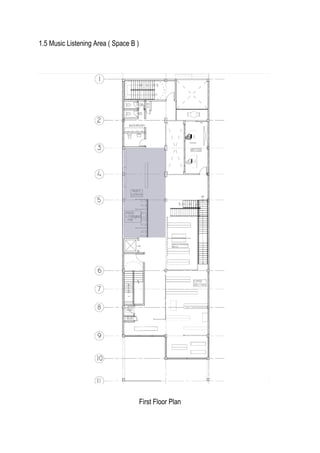
1.5 Music Listening Area ( Space B )
First Floor Plan
Artificial Lighting Analysis
Lumen Method Calculation
Type of fixture Coreline slim downlight
Type of model
Product dimension 215 (diameter)
Type of luminous Warm white
Luminous flux (lm) 2000
Power (Watt) 28
Color temperature (K) 3000
Color rendering index 80
Average life rate (hours) 50000
Dimension of room ( L x W ) L = 11m W= 5.2m
Total floor area 57.2 square meter
Height of ceiling 4m
Height of luminaire 4m
Height of working plane 1.5m
Mounting height (Hm) 4 – 1.5 = 2.5m
Standard illumination according to MS1525 300 ( book shelves )
Reflectance Ceiling (white plastered ) = 0.7
Wall (white painted wall) = 0.5
Working plane (hardwood ) = 0.1
Room Index , RI (K) RI =
𝐿 𝑥 𝑊
𝐻𝑚 𝑥 (𝐿+𝑊)
=
57.2
2.5 𝑥 ( 11+5.2 )
= 1.41
Utilization factor , UF 0.59
Maintenance factor , MF 0.8
Number of fittings required , N N =
𝐸 𝑥 𝐴
𝐹 𝑥 𝑈𝐹 𝑥 𝑀𝐹
=
300 𝑥 57.2
2000 𝑥 0.59 𝑥 0.8
= 18.17
= 18
Fitting layout Smax = 1 x hm
= 1 x 2.5
= 2.5m
Proposed lighting fittings diagram for Light contour with artificial lighting
music listening area
PSALI SCHEME
As the music corner and music listening pod (Music listening area) is located at the center of the
building and facing south, there is insufficient natural daylight source due to its location and no skylight
or void above it. Artificial lighting is incorporated to this situation. Switch 1 controls the 9 luminaires at
the music corner and switch 2 controls the other 9 luminaries at the music listening pod. As some users
prefer a more dim condition when listening to music, different switch controls are designed in this way.
Whereas the music corner with CD racks and book shelves require artificial lighting to lit up the space.
2.0 REFERENCE
Stein, B. (2009). Mechanical and Electrical Equipment for Buildings. New Jersey.
IARUniCamp. (n.a.) Lighting for Libraries. Retrieved 12 July 2017, from
http://www.iar.unicamp.br/lab/luz/ld/Arquitetural/diversos/Lighting%20for%20Libraries.pd
f.
LibraryArchitecture. (n.a.) A Library Architecture Resource. Retrieved 12 July 2017, from
https://libraryarchitecture.wikispaces.com/Natural+Lighting+Design+in+Libraries.
EBP. (n.a.) Light Architecture Daylighting and Artificial Light. Retrieved 12 July 2017,
from http://www.ebp.ch/en/topics/building-technology/light-architecture-daylighting-and-
artificial-light-building-technology.
Final science

Final science

  • 1.
    BACHELOR OF SCIENCE(HONS) IN ARCHITECTURE BUIILDING SCIENCE 2 (ARC 3413) PROJECT 2 : INTEGRATION PROJECT WITH DESIGN STUDIO 5 JALAN TAR COMMUNITY LIBRARY NAME : LYNETTE LAW YONG YI STUDENT ID : 0317761 TUTOR : MR AZIM
  • 2.
    Project 2 :Integration of Studio V Project – Community Library Table of Content 1.0 Lighting 1.1 Children area (Space A) 1.2 Daylight analysis 1.3 Artificial lighting proposal 1.4 PSALI scheme 1.5 Music listening area (Space B) 1.6 Artificial lighting proposal 1.7 PSALI scheme 2.0 Reference
  • 3.
    1.0 Lighting 1.1 CHILDRENAREA (Space A) SECOND FLOOR PLAN.
  • 4.
    The selected studiedarea is the children area located on the second floor, located at the front of the building facing east as shown in the second floor plan above. The floor height of this space is 4 meters and the aim of façade design is to provide maximum daylighting in the morning whereas remain shaded to reduce glare and discomfort to the children. Sun path – 8am Sun path -11am Sun path – 3pm
  • 5.
    Zoom in planand light contour diagram which shows respective time of 8am, 11am and 3pm. From the daylight contour analysis, it can be identified that light can reach upon the reading area in the center of children area. The natural light received is relatively higher during the day. Comfortable lighting conditions can be improved by installing a fabric screen and double glazed windows on the façade of the building. According to MS1525, Daylighting factor distribution is as below : Zone Daylight Factor (%) Distribution Very bright >6 Too bright with thermal and glare problems Bright 3-6 Good Average 1-3 Fair Good 0-1 Poor
  • 6.
    DAYLIGHT FACTOR CALCULATION 𝑊 𝐴 𝑥 𝑇𝜃 1− 𝑅 W, area of window = 2 (2.3m x 0.8m) + 2(2.4x0.8m) + 2 (1.3m x 5m) = 20.52 square metre A, area = 2 ( 4m x 5m ) + 2 ( 4m x 10m ) + 2 ( 5m x 10m ) = 220 square metre T, glass transmittance corrected for dirt = 0.5 (double glazed glass) 𝜃 , Visible sky angle in degrees from the center of the window = 80 degrees R, average reflectance of area A = 0.3 20.52 220 𝑥 0.5 𝑥 80 1 − 0.3 = 5.33 % CONCLUSION The children area has a daylight factor of 5.33% , based on the requirement of MS 1525, the space is brightly lit by daylight and good daylight distribution. As the chosen space is a semi open air children area, artificial illuminance is needed after 3pm according to the light contour , and a double skin façade is needed to prevent glare and thermal discomfort to the children, as so fabric screen is used on the front elevation as shown in the section below.
  • 7.
    1.3 Artificial LightingProposal Since the children area will operated till after working hours which is approximately until 8pm, artificial lighting is required ( according to light contour insufficient daylight source after 3pm ) in order for the community to enjoy the space in a well lit, comfortable condition. LUMEN METHOD CALCULATION Type of fixture Recessed LED luminaire Type of model PowerBalance RC600B recessed LED luminaire, square Company Philips Product dimension Width 0.6m x 0.6m Lumen (lm) 3100 Watt 26 Color designation Cool white Dimension of room ( L x W ) 10 x 5.3 Floor area 53 square metre Height of ceiling 4m Height of luminaire 4 Height of working plane 1 Mounting height (Hm) 4-1 = 3m Reflective factors Ceiling (white plastered ceiling) = 0.7 Wall (masonry wall with white paint) = 0.3 Working plane (hardwood) =0.1 Room Index, RI (K) RI = 𝐿 𝑥 𝑊 𝐻𝑚 𝑥 (𝐿+𝑊) = 53 3 𝑥 ( 10+5.3 = 1.15
  • 8.
    Utilization factor ,UF 0.47 Maintenance factor, MF 0.8 Number of fittings required , N N = 𝐸 𝑥 𝐴 𝐹 𝑥 𝑈𝐹 𝑥 𝑀𝐹 = 400 𝑥 53 3100 𝑥 (0.47 𝑥 0.8 ) = 18.18 = 18 Fittings layout Smax = 1 x Hm = 1 x 3m = 3m Proposed lighting fittings spacing diagram Light contour of children area with artificial lighting fittings
  • 9.
    PSALI SCHEME Based onthe calculation and light contour analysis, the total 18 luminaires in the children area can be controlled by using just two switches. Switch 1 controls the two rows (12 luminaires) facing the façade and switch 2 controls the following row ( 6 rows ). Reason being the children area will receive a good daylight distribution of 5.33 % during the day from the façade. Switch 1 can be switch off and switch 2 can be switch on during that period of time so that electrical cost can be saved.
  • 10.
    1.5 Music ListeningArea ( Space B ) First Floor Plan
  • 11.
    Artificial Lighting Analysis LumenMethod Calculation Type of fixture Coreline slim downlight Type of model Product dimension 215 (diameter) Type of luminous Warm white Luminous flux (lm) 2000 Power (Watt) 28 Color temperature (K) 3000 Color rendering index 80 Average life rate (hours) 50000 Dimension of room ( L x W ) L = 11m W= 5.2m Total floor area 57.2 square meter Height of ceiling 4m Height of luminaire 4m Height of working plane 1.5m Mounting height (Hm) 4 – 1.5 = 2.5m Standard illumination according to MS1525 300 ( book shelves ) Reflectance Ceiling (white plastered ) = 0.7 Wall (white painted wall) = 0.5 Working plane (hardwood ) = 0.1 Room Index , RI (K) RI = 𝐿 𝑥 𝑊 𝐻𝑚 𝑥 (𝐿+𝑊) = 57.2 2.5 𝑥 ( 11+5.2 ) = 1.41 Utilization factor , UF 0.59
  • 12.
    Maintenance factor ,MF 0.8 Number of fittings required , N N = 𝐸 𝑥 𝐴 𝐹 𝑥 𝑈𝐹 𝑥 𝑀𝐹 = 300 𝑥 57.2 2000 𝑥 0.59 𝑥 0.8 = 18.17 = 18 Fitting layout Smax = 1 x hm = 1 x 2.5 = 2.5m Proposed lighting fittings diagram for Light contour with artificial lighting music listening area
  • 13.
    PSALI SCHEME As themusic corner and music listening pod (Music listening area) is located at the center of the building and facing south, there is insufficient natural daylight source due to its location and no skylight or void above it. Artificial lighting is incorporated to this situation. Switch 1 controls the 9 luminaires at the music corner and switch 2 controls the other 9 luminaries at the music listening pod. As some users prefer a more dim condition when listening to music, different switch controls are designed in this way. Whereas the music corner with CD racks and book shelves require artificial lighting to lit up the space.
  • 14.
    2.0 REFERENCE Stein, B.(2009). Mechanical and Electrical Equipment for Buildings. New Jersey. IARUniCamp. (n.a.) Lighting for Libraries. Retrieved 12 July 2017, from http://www.iar.unicamp.br/lab/luz/ld/Arquitetural/diversos/Lighting%20for%20Libraries.pd f. LibraryArchitecture. (n.a.) A Library Architecture Resource. Retrieved 12 July 2017, from https://libraryarchitecture.wikispaces.com/Natural+Lighting+Design+in+Libraries. EBP. (n.a.) Light Architecture Daylighting and Artificial Light. Retrieved 12 July 2017, from http://www.ebp.ch/en/topics/building-technology/light-architecture-daylighting-and- artificial-light-building-technology.