1
#6*-%*/(4$*/$
#-%
130+$5*/5(35*0/130+$5
$0..6/*5:-*#33:*/4065),-/(
/.DIPOHZJIVJ
456%/5*%
56503.3;*.46-*./
56503.3;*.46-*./
2
contents
1.0 introduction
1.1 objective
1.2 site analysis
1.3 floor plans
1.4 sections
1.5 SUN SHADING DIAGRAM
1.6 LIGHTING STRATEGIES
2.0 lighting analysis
2.1 LIST OF FORMULAS
2.2 LIGHT READING AREA
2.2.1 DAYLIGHT FACTOR CALCULATION
2.2.2 ARTIFICIAL LIGHTING CALCULATION
2.2.3 PSALI
2.3 COFFEE CAFE
2.3.1 ARTIFICIAL LIGHTING CALCULATION
3.0 REFERENCES
3
1.0 INTRODUCTION
1.1 OBJECTIVES
OBJECTIVE OF THIS PROJECT
1. TO DESIGN SPACES THAT INTEGRATE BOTH NATURAL AND ARTIFICIAL LIGHTING
2. UNDERSTAND THE MECHANISM OF ARTIFICIAL LIGHTING AND DAYLIGHT STRATEGIES (PSALI)
3. TO INTEGRATE DAYLIGHTING STRATEGIES SUCH AS PSALI INTO THE FINAL DESIGN
1.2 SITE ANALYSIS
SOUTH KLANG IS AN AREA THAT IS RICH WITH CULTURE AND HISTORY DATING BACK TO THE BRITISH COLONISATION. IT IS ONE OF
THE OLDEST TOWN IN THE WHOLE OF KALNG VALLEY AS IT USED TO BE A TIN MINING TOWN. IT IS SAD TO SAY THAT NOW
SOUTH KLANG’S UNIQUE CULTURE IS UNDER-APPRECIATED BY LOCALS AS WELL AS VISITORS. IT IS A DYING TOWN AND THE
CONDITIONS HAS WORSEN DUE TO THE OPENINGS OF NEW TOWNSHIPS SUCH AS SHAH ALAM AND KUALA LUMPUR. JALAN
BESAR NOW HAS BEEN DEGRADED INTO BEING FAMOUS FOR JUST THEIR FOOD CULTURE.
J
A
L
A
N
T
E
N
G
K
U
K
E
L
A
N
A
J
A
L
A
N
B
E
S
A
R
JALAN DATO HAMZAH
J
A
L
A
N
I
S
T
A
N
A
JALAN BESAR
JALAN DATO HAMZAH
JALAN STESEN 1
JALAN TENGKU DIAUDIN
JALAN
RAYA
TIM
UR
SITE PLAN
NOT TO SCALE
SITE
4
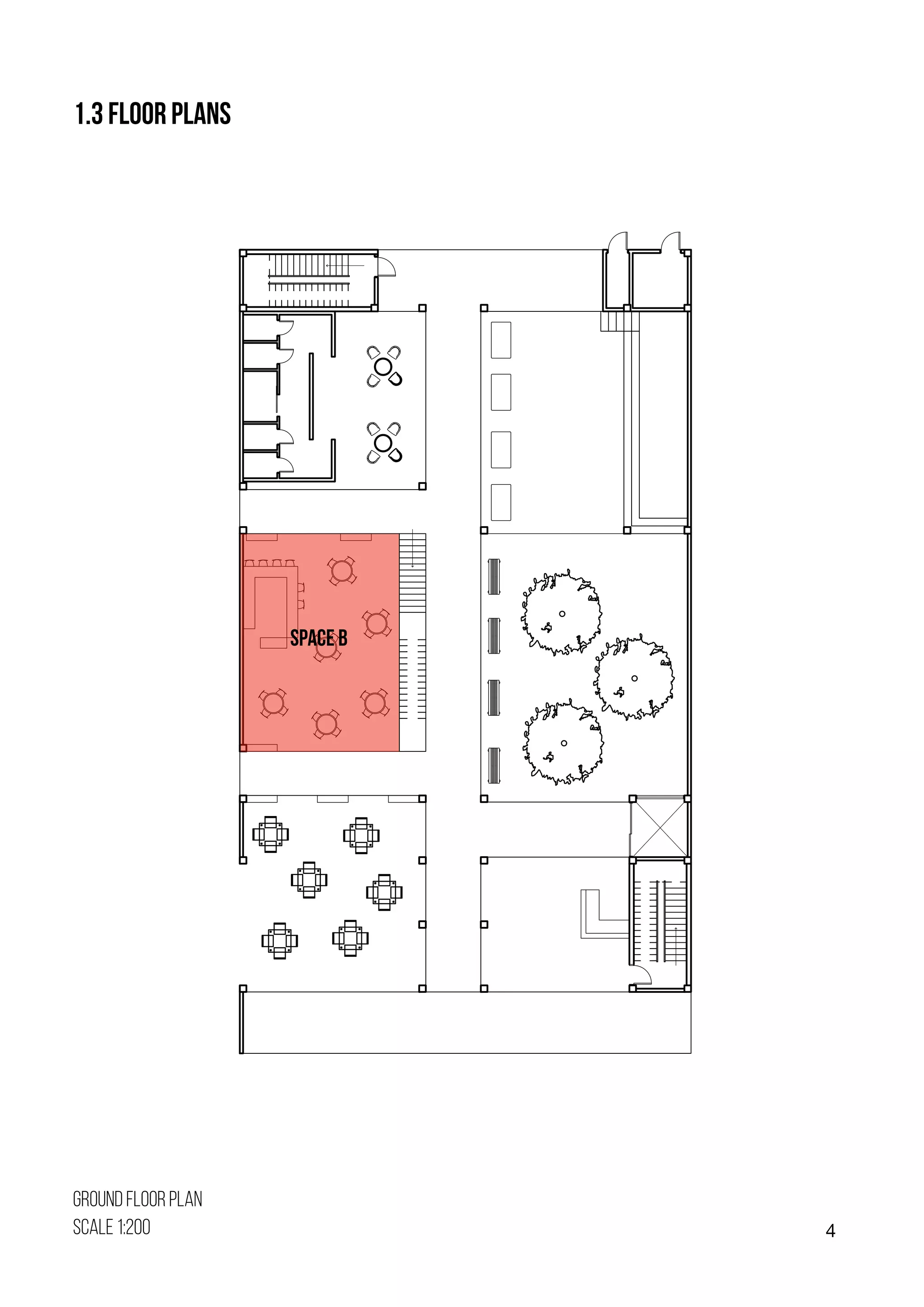
1.3 FLOOR PLANS
GROUND FLOOR PLAN
SCALE 1:200
SPACE B
5
FIRST FLOOR PLAN
SCALE 1:200
SPACE A
6
SECOND FLOOR PLAN
SCALE 1:200
7
ROOF PLAN
SCALE 1:200
8
1.4 SECTIONS
SHORT SECTION
SCALE 1:200
SHORT SECTION
SCALE 1:200
9
7:18 PM
15 May
7:03 AM
9:00 AM
W
S
E
N
1.5 SUN SHADING DIAGRAM
7:18 PM
15 May
7:03 AM
1:00 PM
W
S
E
N
7:18 PM
15 May
7:03 AM
6:00 PM
W
S
E
N
at 9am, the east facade of library
receives the most morning natural
lighting. the fire staircase  service
spaces located at the back acts as
shading from direct glare into the
spaces.
at 1pm, the light passes through the
roof glazing of the library all the
way down to the ground floor which
illuminates the courtyard and top
floor spaces.
at 6pm, the natural light passes
through the front facade to the
spaces inside. the perforated brick
facade provides shading from direct
glare and also provides a certain
mood to the spaces.
10
1.6 LIGHTING STRATEGIES
ROOF GLAZING SITUATED ON STRATEGIC AREA ON THE ROOF PROVIDES NATURAL LIGHT TO ENTER AND BRIGHTEN THE
LIBRARY SPACES ON THE UPPER FLOORS.
OPEN CORE ALLOWS NATURAL LIGHT ENTERING FROM ROOF TO GROUND FLOOR, LIGHTENING UP THE SPACES IN EACH
FLOOR AND COURTYARD.
DESIGN OF FRONT FACADE ALSO ALLOWS NATURAL LIGHT TO FILL THE SPACES AT THE FRONT OF THE BUILDING. THIS
PROVIDES SUFFICIENT NATURAL LIGHTING THROUGHOUT THE BUILDING.
11
2.0 LIGHTING ANALYSIS
2.1 LIST OF FORMULAS
DAYLIGHT FACTOR
Average Daylight Factor is used to determine the adequacy of daylight for the library, following the given
formula:
ROOM INDEX, RI
ROOM INDEX, K IS REQUIRED IN ORDER TO OBTAIN THE UF VALUE, THE FORMULA IS AS FOLLOWS:
12
LUMEN METHOD,N
Lumen method is a simplified method to calculate the light level in a room. The method is a series of
calculations that uses horizontal illuminance criteria to establish a uniform luminaire layout in a space. The
formula is as follows:
MAXIMUN SPACING BETWEEN FITTINGS, SMAX
- FOR FLUORESCENT TUBES IN DIFFUSING LUMINARIES :
S MAX = 1.5 X HM
- FOR FILAMENT LAMPS (BLUBS) IN DIRECT LUMINAIRIES :
S MAX = 1.0 X HM
S MAX = MAXIMUM HORIZONTAL SPACING BETWEEN FITTINGS
HM = MOUNTED HEIGHT OF FITTING ABOVE THE WORKING PLANE
13
2.2 SPACE A - LIGHT READING AREA
2.2.1 DAYLIGHT FACTOR CALCULATION
SPACE A
floor area, a (m²) 10m x 6.6m
= 66m²
area of window, w (m²) 4m x 4.5m
= 18m²
total internal surface area, a (m²) 2(4 x 6.6) + 2(10 x 4) + 2(6.6 x 10)
= 264.8m²
average reflectance, r 0.5
glass transmittance, t 0.6
visible sky angle, θ° 74°
average daylight factor, df (18/264.8) x [(0.6 x 74)/(1-0.5)]
= 6%
the average daylighting factor of space a is 6% which according to the ms1525 is considered to be “good”.
artificial lighting is still required to brighten up some area of the space further from the window.
daylight contour of light reading area at
1pm (not to scale)
14
2.2.2 artificial lighting calculation
TYPE OF FIXTURE RECESSED light
IMAGE OF FIXTURE
PRODUCT MODEL PHILIPS LED BULB
DIMENSIONS 60mm x 100mm
TYPE OF LUMINOUS soft white
LUMINOUS FLUX, f 1600lm
POWER 14.5w
COLOUR TEMPERATURE 2700k
COLOUR RENDERING INDEX 80
lighting fixture properties
15
lux required, e 150lux
floor area, a (m²) 10m x 6.6m
= 66m²
LUMINOUS FLUX, f 1600lm
utilisation factor, uf 0.59
maintenance factor, mf 0.8
number of lamps required, n n = (e x a) / (f x uf x mf)
= (150 x 66) / (1600 x 0.59 x 0.8)
= 13 ≃ 14
maximum spacing between fittings, smax smax = 1.0 x 3
= 3m
lumen method calculation
room dimension (l x w) 10m x 6.6m
= 66m²
height of room 4m
height of working plane, m 1m
mounting height, hm 4m - 1m
= 3m
ROOM INDEX, ri (k) RI = (10 x 6.6) / 3(10 + 6.6)
= 1.3 ≃ 1.5
room index calculation
16
reflected ceiling plan with lighting layout (scale 1:200)
switch a
switch b
switch c
17
2.2.3 permanent supplementary artificial lighting of interior (psali)
psali is the method of placing luminaries which allows maximum utilisation of daylight, with the electrical
lighting used to supplement the daylight in the interior parts of the room. the need to switch on certain lights
depend on the brightness of the daylight for the interior space, hence having different switches for different
rows of lights.
switch c and switch b will be on during the morning, afternoon and cloudy days.
at night, switch a and switch c will be on to light up the space. equally distributed lights will light up
the space evenly. during this time, switch be is off to minimise energy use.
switch c will be on at all times as the inner space does not have natural lighting and is always shaded.
18
2.3 space b - coffee cafe
2.3.1 artificial lighting calculation
SPACE B
lighting fixture properties
TYPE OF FIXTURE recessed dimmable light
image of fixture
PRODUCT MODEL PHILIPS LED BULB
DIMENSIONS 71mm x 134mm
TYPE OF LUMINOUS warm glow
LUMINOUS FLUX, f 2700lm
POWER 18w
COLOUR TEMPERATURE 2700k
COLOUR RENDERING INDEX 80
daylight contour of coffee cafe at 1pm (not
to scale)
19
lux required, e 150lux
floor area, a (m²) 10m x 8.45m
= 84.5m²
LUMINOUS FLUX, f 2700lm
utilisation factor, uf 0.55
maintenance factor, mf 0.8
number of lamps required, n n = (e x a) / (f x uf x mf)
= (150 x 84.5) / (2700 x 0.55 x 0.8)
= 10.67 ≃ 10
maximum spacing between fittings, smax smax = 1.0 x 4
= 4m
lumen method calculation
room dimension (l x w) 10m x 8,45m
= 84.5m²
height of room 5m
height of working plane, m 1m
mounting height, hm 5m - 1m
= 4m
ROOM INDEX, ri (k) RI = (10 x 8.45) / 4(10 + 8.45)
= 1.15 ≃ 1.25
room index calculation
20
reflected ceiling plan with lighting layout
reflected ceiling plan ground floor
scale 1:200
21
section with light fittings
22
3.0 references
Indoor Luminaires. (n.d.). Retrieved from http://www.lighting.philips.com.my/prof/indoor-luminaires#pfpath=0-
CINDOOR_GR
MRKextreme Follow. (2015, May 26). Lighting architecture lecture 2. Retrieved from https://
www.slideshare.net/MRKextreme/lighting-architecture-lecture-2
(n.d.). Retrieved from http://www.msonline.gov.my/default.php
Daylighting Performance and Design. (n.d.). Retrieved from https://books.google.com.my/books?
hl=enlr=id=RBMHD5Wk6LwCoi=fndpg=IA1dq=daylighting performance and lighting ander
gots=sxWNZn6qdRsig=IiYswU1FmDpD-_aM0qyMnegJtNU#v=onepageq=daylighting performance and lighting
ander gf=false

BSCIENCE_REPORT_yihui-a4.pdf

  • 1.
  • 2.
    2 contents 1.0 introduction 1.1 objective 1.2site analysis 1.3 floor plans 1.4 sections 1.5 SUN SHADING DIAGRAM 1.6 LIGHTING STRATEGIES 2.0 lighting analysis 2.1 LIST OF FORMULAS 2.2 LIGHT READING AREA 2.2.1 DAYLIGHT FACTOR CALCULATION 2.2.2 ARTIFICIAL LIGHTING CALCULATION 2.2.3 PSALI 2.3 COFFEE CAFE 2.3.1 ARTIFICIAL LIGHTING CALCULATION 3.0 REFERENCES
  • 3.
    3 1.0 INTRODUCTION 1.1 OBJECTIVES OBJECTIVEOF THIS PROJECT 1. TO DESIGN SPACES THAT INTEGRATE BOTH NATURAL AND ARTIFICIAL LIGHTING 2. UNDERSTAND THE MECHANISM OF ARTIFICIAL LIGHTING AND DAYLIGHT STRATEGIES (PSALI) 3. TO INTEGRATE DAYLIGHTING STRATEGIES SUCH AS PSALI INTO THE FINAL DESIGN 1.2 SITE ANALYSIS SOUTH KLANG IS AN AREA THAT IS RICH WITH CULTURE AND HISTORY DATING BACK TO THE BRITISH COLONISATION. IT IS ONE OF THE OLDEST TOWN IN THE WHOLE OF KALNG VALLEY AS IT USED TO BE A TIN MINING TOWN. IT IS SAD TO SAY THAT NOW SOUTH KLANG’S UNIQUE CULTURE IS UNDER-APPRECIATED BY LOCALS AS WELL AS VISITORS. IT IS A DYING TOWN AND THE CONDITIONS HAS WORSEN DUE TO THE OPENINGS OF NEW TOWNSHIPS SUCH AS SHAH ALAM AND KUALA LUMPUR. JALAN BESAR NOW HAS BEEN DEGRADED INTO BEING FAMOUS FOR JUST THEIR FOOD CULTURE. J A L A N T E N G K U K E L A N A J A L A N B E S A R JALAN DATO HAMZAH J A L A N I S T A N A JALAN BESAR JALAN DATO HAMZAH JALAN STESEN 1 JALAN TENGKU DIAUDIN JALAN RAYA TIM UR SITE PLAN NOT TO SCALE SITE
  • 4.
    4 1.3 FLOOR PLANS GROUNDFLOOR PLAN SCALE 1:200 SPACE B
  • 5.
  • 6.
  • 7.
  • 8.
    8 1.4 SECTIONS SHORT SECTION SCALE1:200 SHORT SECTION SCALE 1:200
  • 9.
    9 7:18 PM 15 May 7:03AM 9:00 AM W S E N 1.5 SUN SHADING DIAGRAM 7:18 PM 15 May 7:03 AM 1:00 PM W S E N 7:18 PM 15 May 7:03 AM 6:00 PM W S E N at 9am, the east facade of library receives the most morning natural lighting. the fire staircase service spaces located at the back acts as shading from direct glare into the spaces. at 1pm, the light passes through the roof glazing of the library all the way down to the ground floor which illuminates the courtyard and top floor spaces. at 6pm, the natural light passes through the front facade to the spaces inside. the perforated brick facade provides shading from direct glare and also provides a certain mood to the spaces.
  • 10.
    10 1.6 LIGHTING STRATEGIES ROOFGLAZING SITUATED ON STRATEGIC AREA ON THE ROOF PROVIDES NATURAL LIGHT TO ENTER AND BRIGHTEN THE LIBRARY SPACES ON THE UPPER FLOORS. OPEN CORE ALLOWS NATURAL LIGHT ENTERING FROM ROOF TO GROUND FLOOR, LIGHTENING UP THE SPACES IN EACH FLOOR AND COURTYARD. DESIGN OF FRONT FACADE ALSO ALLOWS NATURAL LIGHT TO FILL THE SPACES AT THE FRONT OF THE BUILDING. THIS PROVIDES SUFFICIENT NATURAL LIGHTING THROUGHOUT THE BUILDING.
  • 11.
    11 2.0 LIGHTING ANALYSIS 2.1LIST OF FORMULAS DAYLIGHT FACTOR Average Daylight Factor is used to determine the adequacy of daylight for the library, following the given formula: ROOM INDEX, RI ROOM INDEX, K IS REQUIRED IN ORDER TO OBTAIN THE UF VALUE, THE FORMULA IS AS FOLLOWS:
  • 12.
    12 LUMEN METHOD,N Lumen methodis a simplified method to calculate the light level in a room. The method is a series of calculations that uses horizontal illuminance criteria to establish a uniform luminaire layout in a space. The formula is as follows: MAXIMUN SPACING BETWEEN FITTINGS, SMAX - FOR FLUORESCENT TUBES IN DIFFUSING LUMINARIES : S MAX = 1.5 X HM - FOR FILAMENT LAMPS (BLUBS) IN DIRECT LUMINAIRIES : S MAX = 1.0 X HM S MAX = MAXIMUM HORIZONTAL SPACING BETWEEN FITTINGS HM = MOUNTED HEIGHT OF FITTING ABOVE THE WORKING PLANE
  • 13.
    13 2.2 SPACE A- LIGHT READING AREA 2.2.1 DAYLIGHT FACTOR CALCULATION SPACE A floor area, a (m²) 10m x 6.6m = 66m² area of window, w (m²) 4m x 4.5m = 18m² total internal surface area, a (m²) 2(4 x 6.6) + 2(10 x 4) + 2(6.6 x 10) = 264.8m² average reflectance, r 0.5 glass transmittance, t 0.6 visible sky angle, θ° 74° average daylight factor, df (18/264.8) x [(0.6 x 74)/(1-0.5)] = 6% the average daylighting factor of space a is 6% which according to the ms1525 is considered to be “good”. artificial lighting is still required to brighten up some area of the space further from the window. daylight contour of light reading area at 1pm (not to scale)
  • 14.
    14 2.2.2 artificial lightingcalculation TYPE OF FIXTURE RECESSED light IMAGE OF FIXTURE PRODUCT MODEL PHILIPS LED BULB DIMENSIONS 60mm x 100mm TYPE OF LUMINOUS soft white LUMINOUS FLUX, f 1600lm POWER 14.5w COLOUR TEMPERATURE 2700k COLOUR RENDERING INDEX 80 lighting fixture properties
  • 15.
    15 lux required, e150lux floor area, a (m²) 10m x 6.6m = 66m² LUMINOUS FLUX, f 1600lm utilisation factor, uf 0.59 maintenance factor, mf 0.8 number of lamps required, n n = (e x a) / (f x uf x mf) = (150 x 66) / (1600 x 0.59 x 0.8) = 13 ≃ 14 maximum spacing between fittings, smax smax = 1.0 x 3 = 3m lumen method calculation room dimension (l x w) 10m x 6.6m = 66m² height of room 4m height of working plane, m 1m mounting height, hm 4m - 1m = 3m ROOM INDEX, ri (k) RI = (10 x 6.6) / 3(10 + 6.6) = 1.3 ≃ 1.5 room index calculation
  • 16.
    16 reflected ceiling planwith lighting layout (scale 1:200) switch a switch b switch c
  • 17.
    17 2.2.3 permanent supplementaryartificial lighting of interior (psali) psali is the method of placing luminaries which allows maximum utilisation of daylight, with the electrical lighting used to supplement the daylight in the interior parts of the room. the need to switch on certain lights depend on the brightness of the daylight for the interior space, hence having different switches for different rows of lights. switch c and switch b will be on during the morning, afternoon and cloudy days. at night, switch a and switch c will be on to light up the space. equally distributed lights will light up the space evenly. during this time, switch be is off to minimise energy use. switch c will be on at all times as the inner space does not have natural lighting and is always shaded.
  • 18.
    18 2.3 space b- coffee cafe 2.3.1 artificial lighting calculation SPACE B lighting fixture properties TYPE OF FIXTURE recessed dimmable light image of fixture PRODUCT MODEL PHILIPS LED BULB DIMENSIONS 71mm x 134mm TYPE OF LUMINOUS warm glow LUMINOUS FLUX, f 2700lm POWER 18w COLOUR TEMPERATURE 2700k COLOUR RENDERING INDEX 80 daylight contour of coffee cafe at 1pm (not to scale)
  • 19.
    19 lux required, e150lux floor area, a (m²) 10m x 8.45m = 84.5m² LUMINOUS FLUX, f 2700lm utilisation factor, uf 0.55 maintenance factor, mf 0.8 number of lamps required, n n = (e x a) / (f x uf x mf) = (150 x 84.5) / (2700 x 0.55 x 0.8) = 10.67 ≃ 10 maximum spacing between fittings, smax smax = 1.0 x 4 = 4m lumen method calculation room dimension (l x w) 10m x 8,45m = 84.5m² height of room 5m height of working plane, m 1m mounting height, hm 5m - 1m = 4m ROOM INDEX, ri (k) RI = (10 x 8.45) / 4(10 + 8.45) = 1.15 ≃ 1.25 room index calculation
  • 20.
    20 reflected ceiling planwith lighting layout reflected ceiling plan ground floor scale 1:200
  • 21.
  • 22.
    22 3.0 references Indoor Luminaires.(n.d.). Retrieved from http://www.lighting.philips.com.my/prof/indoor-luminaires#pfpath=0- CINDOOR_GR MRKextreme Follow. (2015, May 26). Lighting architecture lecture 2. Retrieved from https:// www.slideshare.net/MRKextreme/lighting-architecture-lecture-2 (n.d.). Retrieved from http://www.msonline.gov.my/default.php Daylighting Performance and Design. (n.d.). Retrieved from https://books.google.com.my/books? hl=enlr=id=RBMHD5Wk6LwCoi=fndpg=IA1dq=daylighting performance and lighting ander gots=sxWNZn6qdRsig=IiYswU1FmDpD-_aM0qyMnegJtNU#v=onepageq=daylighting performance and lighting ander gf=false