SCHOOL OF ARCHITECTURE, BULDING & DESIGN
Bachelor of Science (Honours) in Architecture
BUILDING SCIENCE II (ARC 3413)
Project 2 INTEGRATION PROJECT
ANG WEI YI
0317885
Tutor: Mr Edwin
2	
CONTENT
1.0 Introduction
1.1 Objective
1.2 Site analysis
1.3 Floor plans
2.0 Lighting
2.1 Average daylight factor analysis
2.2 Artificial lighting analysis
3.0 Reference
3	
1.0 INTRODUCTION
1.1 Objective
The primary objective of this project is to integrate the principles of lighting
requirement into design of suggested context, which requires to build an urban infill
library in Jalan Tuanku Abdul Rahman. Other than encompasses on daylighting system
to the library, artificial system and the implement of PSALI design strategies is also
something have to look into. The objective of the projects is also to show something
have to look into. The objective of the projects is also to show understanding of lighting
system in order to solve design problems in relation to sustainability of lighting system
in order to solve design problems in relation to sustainability issues.
4	
1.2 Site analysis
Sun Shading Diagrams
Date : 1ST
April 2017
Time : 9am
Weather : Sunny
	
	
At this hour, the incident light will be coming from east direction which directly
penetratingtotheeastfacade,thebackspacesofthecommunitylibrarywillbeaffected.
The back facade will be installed with sun screening louvered facade system to reduce
the direct light into the spaces to prevent user discomfort.
5	
	
	
Date : 1ST
April 2017
Time : 2pm
Weather : Sunny
	
	
At this hour, the incident sunlight is coming mainly from the top of the west direction,
affected spaces will be private reading area on the second floor and discussion rooms on
the first floor, this tissue is tackled and resolved by having overhang roof to shadow over
the spaces stated. Louvers sun screen will be installed for the front facade to reduce the
damage of the sunlight to the book collections on the second and third floor.
6	
	
	
Date : 1ST
April 2017
Time : 6pm
Weather : Sunny
	
	
The site is east-west facing and west evening sunlight will bring discomfort to the users
using the front spaces. It is crucial to provide sun shading devices to reduce the direct
penetration of the evening light. Louvers sun screening facade system and more
plantation will be used to diffuse the light and prevent the light from directly entering
these spaces. Public reading zone should not have too much glare of lights in the space.
7	
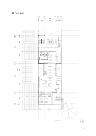
1.3 Floor plans
8
9	
2.0 Lighting
2.1 Daylight factor analysis
Daylight factor is defined as the ratio of interior illuminance, Ei to available outdoor
illuminance, Eo which is the unobstructed horizontal exterior illuminance:
DF =
!" #$%&&'	#))*+,$-$./
!0 1*2%&&'	#))*+,$-$./
𝑥	100%
Image 2.1.1 Daylight factors and distribution (Department of standards Malaysia,2007).
The daylight factor concept is applicable only when the sky illuminance distribution is
known or can reasonably be estimated. In this case study, the average outdoor
illuminance in Malaysia is assumed according to the standard which is 20000 lux (refer
to Table 2.1.2).
Image 2.1.2 Daylight intensity at different condition.
	
	
	
	
	
Zone DF (%) Distribution
Very bright >6 Large (including thermal and glare problem)
Bright 3-6 Good
Average 1-3 Fair
Dark 0-1 Poor
Luminance Level (lux) Example
120,000 Brightest sunlight
110,000 Bright sunlight
20,000 Shade illuminated by entire clear blue sky, midday
1000-2000 Typical overcast day, midday
400 Sunrise / sunset on clear day (ambient illumination)
<200 Extreme of darkest storm clouds, midday
40 Fully overcast, sunrise / sunset
<1 Extreme of darkest storm cloud, sunrise / sunset
10	
In side-lit rooms, the maximum DF is near the windows, and it is mainly due to the sky
component. In the early stages of building design, the average daylight factor may be
used to assess the adequacy of daylight:
DF =
7
8
	𝑥	
9:
(<=>)
Where,
W = area of the windows	(m2
)
A = total area of the internal surfaces (m2
)
T = the glass transmittance corrected for dirt
Θ			= visible sky angle in degrees from the centre of the window
R = average reflectance of area A
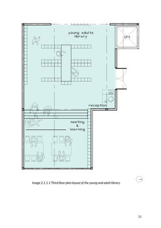
2.1.1 Third floor plan, young & adult library
11	
Image 2.1.1.1 Third floor plan layout of the young and adult library.
12	
2.1.2 Daylight factor calculation
2.1.3 Average daylight factor calculation
Floor area (m2
) 102
Area of façade exposed to light
(m2
)
Perimeter = 2(6.1) + 2(3.63) = 19.46m
Height = 3.63m
Area = 6.1 x 3.63 = 22.14m
Area of skylight (m2
) 0
Exposed façade to light and
skylight area to floor area ratio
(Daylight Factor)
(@ABC)
<CD
x 100%
= 48.04 % x 0.1
= 4.8
Daylight factor, DF DF =
!,
!&
x 100%
4.8 =
!,
DCCCC
x 100%
Ei = 960 lux
Area of the windows, W (m2
) 6.1 x 3.43 = 20.92
Total area of the internal surfaces,
A (m2
)
(7.73 x 2.95) + (3.63 x 5.5) + (6.4 x 3.63) + (5.5 x
3.63) + (2.35 x 2.95) + (7.88 x 2.95) +(8.45 x 2.95)
= 141.07
Glass transmittance corrected for
dirt, T
0.6 (approx.) for double glazed window in clean
environment
Visible sky angle in degrees from
the centre of the window, θ
80°
Average reflectance of area A, R 0.5 (considering light coloured room surfaces)
Average Daylight factor, DF DF =
7
8
	𝑥	
9:
(<=>)
=
DC.AD
<@<.CG
	𝑥	
C.H(IC)
<=C.J
= 14.24 %
* According to MS1525, this room is considered
extremely bright.
13	
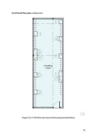
2.1.4 Fourth floor plan, reading room
Image 2.1.1.2 Fourth floor plan layout of the reading room.
14	
2.1.5 Daylight factor calculation
2.1.6 Average daylight factor calculation
Floor area (m2
) 58.21
Area of façade exposed to light
(m2
)
Perimeter = 4.15+0.51+1+4.15 = 9.81m
Height = 5.5m
Area = 6.27m
Area of skylight (m2
) 0
Exposed façade to light and
skylight area to floor area ratio
(Daylight Factor)
(H.DGBC)
JI.D<
x 100%
= 10.77 % x 0.1
= 1.08
Daylight factor, DF DF =
!,
!&
x 100%
1.08 =
!,
DCCCC
x 100%
Ei = 216 lux
Area of the windows, W (m2
) (4.15 x 0.51) + (4.15 x 1) = 6.27
Total area of the internal surfaces,
A (m2
)
2(11.82+1.93+5.94+31.39) + 2(4.15 x 3.46) =
130.88
Glass transmittance corrected for
dirt, T
0.6 (approx.) for double glazed window in clean
environment
Visible sky angle in degrees from
the centre of the window, θ
61°
Average reflectance of area A, R 0.5 (considering light coloured room surfaces)
Average Daylight factor, DF DF =
	7
8
	𝑥	
9:
(<=>)
=
H.DG
<KC.II
	𝑥	
C.H(H<)
<=C.J
= 3.51 %
* According to MS1525, this room is considered
dark.
15	
2.2 Artificial Lighting Analysis
Lumen Method
Lumen method is used to calculate the light level in a room. It is a series of calculation
that uses horizontal luminance criteria to establish a uniform layout in a space. It can be
calculated by dividing the total number of lumens available in a space by the area of the
space. The calculation is below:
E =
$	L	M	L	N	L	ON	L	PPN
8
Where,
E = Average illuminance to cover the space
n = Number of lamps of each luminaire
N = Number of luminance
F = Lighting design lumens per lamp, i.e. Initial bare lamp luminous
UF = Utilization factor for the horizontal working plane
LLF = Light loss factor
A = Area of the horizontal working plane
Lumen method can be also calculated and used to determine the number of lights should
be installed on the site. To know the number of lamps, calculation of total luminance of
the space need to be done based on the number of fixtures and examine the sufficiency
of light fixtures on that particular space.
N =
!	L	8
N	L	ON	L	QN
Where,
N = Number of lamps required
E = Illuminance level required (Lux)
A = Area at working plane height (m2
)
F = Average luminous flux from each lamp (lm)
UF = Utilization factor, an allowance for light distribution of the luminaire and the
room surfaces
MF = Maintenance factor, an allowance for reduced light output because of
deterioration and dirt
16	
Room Index
Room Index, RI, is the ratio of room plan area to half wall area between the working and
luminaire planes, which can be calculated by:
RI =
P	L	7
RS	L	(PB7)
Where,
L = Length of room
W = Width of room
Hm = Mounting height, the vertical distance between the working plane and the
luminaire
Light Loss Factor
Light loss factor is need to be considered when calculate Lumen Method. It is allowing
forecasting the performance of the system over a given lifetime to meet the minimum
light standards it helps minimize the reliability of system has been planned and designed
for future operation. The calculation for light loss factor is as below:
RI =
P	L	7
RS	L	(PB7)
Where,
LLD = Lamp lumen depreciation
LDD = Luminaire dirt depreciation
ATF = Ambient temperature effects
HE = Heat extraction
VE = Voltage effects
BF = Driver and lamps factors
CD = Component depreciation
17	
	
2.2.1	Third floor plan, young & adult library
	
Image 2.2.1.1 Third floor plan layout of the young and adult library.
18	
Type of fixture LED Pendant Lighting Fixture
Image of fixture ZERO Pendant Lighting Collection
Material of fixture Aluminum painted with internal matt
glass shade
Type of luminous Warm white
Luminous flux (lm) 4000lm
Power (W) Available in 3000K
Color temperature (K) 3500K
Color rendering index 80
Average life rate (hours) 50000 hours at 70% lumen output
	
The light fixture selected is the integration of LED light fixture, which allows freedom to
experiment design without exceeding ever decreasing energy budgets. The use of
suspended light fixture is also suitable for the installment at book stacks area as it does
not obstruct the view to the books at the same time providing high aesthetic uniformity.
	
	
Lumens Method Calculation
	
Dimension of room (m) L= 13.23, W= 6.4
Total floor area (m2
) 44.98
Height of ceiling (m) 3
Type of light fixture LED Pendant Lighting Fixture
Luminous flux of lighting, F (lm) 4000
Height of luminaires (m) 2.8
Height of working plane (m) 1.5
Mounting height (Hm) 3 – 0.2 – 1.5 = 1.3
Standard Illumination required for
reading room according to MS1525
400 lux
Reflectance factor Ceiling (White plastered ceiling) = 0.7
Wall (White painted wall) = 0.5
Working plane (Wooden decking)= 0.1
Room index, RI (K) RI =
P	L	7
RS	L	(PB7)
RI =
@@.AI
<.K	L	(<K.DKBH.@)
19	
= 1.76
Utilization factor, UF 0.6 (Based on utilization factors table)
Maintenance factor, MF 0.8 (Standard)
Number of fittings required, N N =
!	L	8
N	L	ON	L	QN
N =
@CC	L	@@.AI
@CCC	L	C.H	L	C.I
= 9.37 = 10 bulbs
Spacing to height ratio, SHR
SHR =
<
RS
	𝑥	
8
M
=	
<
<.K
	𝑥	
@@.AI
<C
= 1.63
SHR =
T
RS
1.63 =	
T
<.K
S = 2.12
Fitting layout Fitting required along 13.23m and 6.4m
wall,
<K.DK
D.<D
= 6.24
H.@
D.<D
= 3.02
= 6-7 rows = 2-3 rows
*Therefore, 6 x 2 = 12 lamps
x-spacing required for 13.23m is
13.23/6=2.21m
y-spacing required for 6.4m is
6.4/2=3.2m
20	
2.2.2 Fourth floor plan, reading room	
	
	
	
	
Image 2.2.2.1 Third floor plan layout of the young and adult library.
21	
Type of fixture LED Standard Linear Strips
Image of fixture ZERO Pendant lighting collection
Material of fixture Perforated metal with square holes
Type of luminous Household fluorescent (bluish white)
Luminous flux (lm) 6000lm
Power (W) Available in 3000K, 35000K or 4000K
Color temperature (K) 4000K
Color rendering index 85
Average life rate (hours) 50000 hours at 70% lumen output
The light fixture selected is the integration of LED light fixture, which allows freedom to
experiment design without exceeding ever decreasing energy budgets. The use of
suspended light fixture is also suitable for the installment at book stacks area as it does
not obstruct the view to the books at the same time providing high aesthetic uniformity.
	
	
Lumens Method Calculation
	
Dimension of room (m) L= 13.08, W= 4.45
Total floor area (m2
) 58.21
Height of ceiling (m) 3
Type of light fixture LED Standard Linear Strips
Luminous flux of lighting, F (lm) 6000
Height of luminaires (m) 2.8
Height of working plane (m) 1.5
Mounting height (Hm) 3 – 0.2 – 1.5 = 1.3
Standard Illumination required for
reading room according to MS1525
400 lux
Reflectance factor Ceiling (White plastered ceiling) = 0.7
Wall (White painted wall) = 0.5
Working plane (Wooden decking)= 0.1
Room index, RI (K) RI =
P	L	7
RS	L	(PB7)
RI =
JI.D<
<.K	L	(<K.CIB@.@J)
= 2.55
22	
Utilization factor, UF 0.6 (Based on utilization factors table)
Maintenance factor, MF 0.8 (Standard)
Number of fittings required, N N =
!	L	8
N	L	ON	L	QN
N =
@CC	L	JI.D<
HCCC	L	C.H	L	C.I
= 8.08 = 9 bulbs
Spacing to height ratio, SHR
SHR =
<
RS
	𝑥	
8
M
=	
<
<.K
	𝑥	
JI.D<
A
= 1.96
SHR =
T
RS
1.96 =	
T
<.K
S = 2.55
Fitting layout Fitting required along 13.08m and 4.45m
wall,
<K.CI
D.JJ
= 5.13
@.@J
D.JJ
= 1.75
= 5-6 rows = 1-2 rows
*Therefore, 5 x 2 = 10 lamps
x-spacing required for 13.08m is
13.08/5=2.62m
y-spacing required for 4.45m is
4.45/2=2.23m
23	
3.0 Reference	
Designing for natural and artificial – lighting. (1986) (1st
ed.). Gaston, Watford.
Benya, J. (2016). Controlling Glare. Architectural Lighting. Retrieved 30 November
2016, from http://www.archlighting.com/projects/controlling-glare_o

Building Science_02_Report_Integration Project

  • 1.
    SCHOOL OF ARCHITECTURE,BULDING & DESIGN Bachelor of Science (Honours) in Architecture BUILDING SCIENCE II (ARC 3413) Project 2 INTEGRATION PROJECT ANG WEI YI 0317885 Tutor: Mr Edwin
  • 2.
    2 CONTENT 1.0 Introduction 1.1 Objective 1.2Site analysis 1.3 Floor plans 2.0 Lighting 2.1 Average daylight factor analysis 2.2 Artificial lighting analysis 3.0 Reference
  • 3.
    3 1.0 INTRODUCTION 1.1 Objective Theprimary objective of this project is to integrate the principles of lighting requirement into design of suggested context, which requires to build an urban infill library in Jalan Tuanku Abdul Rahman. Other than encompasses on daylighting system to the library, artificial system and the implement of PSALI design strategies is also something have to look into. The objective of the projects is also to show something have to look into. The objective of the projects is also to show understanding of lighting system in order to solve design problems in relation to sustainability of lighting system in order to solve design problems in relation to sustainability issues.
  • 4.
    4 1.2 Site analysis SunShading Diagrams Date : 1ST April 2017 Time : 9am Weather : Sunny At this hour, the incident light will be coming from east direction which directly penetratingtotheeastfacade,thebackspacesofthecommunitylibrarywillbeaffected. The back facade will be installed with sun screening louvered facade system to reduce the direct light into the spaces to prevent user discomfort.
  • 5.
    5 Date : 1ST April2017 Time : 2pm Weather : Sunny At this hour, the incident sunlight is coming mainly from the top of the west direction, affected spaces will be private reading area on the second floor and discussion rooms on the first floor, this tissue is tackled and resolved by having overhang roof to shadow over the spaces stated. Louvers sun screen will be installed for the front facade to reduce the damage of the sunlight to the book collections on the second and third floor.
  • 6.
    6 Date : 1ST April2017 Time : 6pm Weather : Sunny The site is east-west facing and west evening sunlight will bring discomfort to the users using the front spaces. It is crucial to provide sun shading devices to reduce the direct penetration of the evening light. Louvers sun screening facade system and more plantation will be used to diffuse the light and prevent the light from directly entering these spaces. Public reading zone should not have too much glare of lights in the space.
  • 7.
  • 8.
  • 9.
    9 2.0 Lighting 2.1 Daylightfactor analysis Daylight factor is defined as the ratio of interior illuminance, Ei to available outdoor illuminance, Eo which is the unobstructed horizontal exterior illuminance: DF = !" #$%&&' #))*+,$-$./ !0 1*2%&&' #))*+,$-$./ 𝑥 100% Image 2.1.1 Daylight factors and distribution (Department of standards Malaysia,2007). The daylight factor concept is applicable only when the sky illuminance distribution is known or can reasonably be estimated. In this case study, the average outdoor illuminance in Malaysia is assumed according to the standard which is 20000 lux (refer to Table 2.1.2). Image 2.1.2 Daylight intensity at different condition. Zone DF (%) Distribution Very bright >6 Large (including thermal and glare problem) Bright 3-6 Good Average 1-3 Fair Dark 0-1 Poor Luminance Level (lux) Example 120,000 Brightest sunlight 110,000 Bright sunlight 20,000 Shade illuminated by entire clear blue sky, midday 1000-2000 Typical overcast day, midday 400 Sunrise / sunset on clear day (ambient illumination) <200 Extreme of darkest storm clouds, midday 40 Fully overcast, sunrise / sunset <1 Extreme of darkest storm cloud, sunrise / sunset
  • 10.
    10 In side-lit rooms,the maximum DF is near the windows, and it is mainly due to the sky component. In the early stages of building design, the average daylight factor may be used to assess the adequacy of daylight: DF = 7 8 𝑥 9: (<=>) Where, W = area of the windows (m2 ) A = total area of the internal surfaces (m2 ) T = the glass transmittance corrected for dirt Θ = visible sky angle in degrees from the centre of the window R = average reflectance of area A 2.1.1 Third floor plan, young & adult library
  • 11.
    11 Image 2.1.1.1 Thirdfloor plan layout of the young and adult library.
  • 12.
    12 2.1.2 Daylight factorcalculation 2.1.3 Average daylight factor calculation Floor area (m2 ) 102 Area of façade exposed to light (m2 ) Perimeter = 2(6.1) + 2(3.63) = 19.46m Height = 3.63m Area = 6.1 x 3.63 = 22.14m Area of skylight (m2 ) 0 Exposed façade to light and skylight area to floor area ratio (Daylight Factor) (@ABC) <CD x 100% = 48.04 % x 0.1 = 4.8 Daylight factor, DF DF = !, !& x 100% 4.8 = !, DCCCC x 100% Ei = 960 lux Area of the windows, W (m2 ) 6.1 x 3.43 = 20.92 Total area of the internal surfaces, A (m2 ) (7.73 x 2.95) + (3.63 x 5.5) + (6.4 x 3.63) + (5.5 x 3.63) + (2.35 x 2.95) + (7.88 x 2.95) +(8.45 x 2.95) = 141.07 Glass transmittance corrected for dirt, T 0.6 (approx.) for double glazed window in clean environment Visible sky angle in degrees from the centre of the window, θ 80° Average reflectance of area A, R 0.5 (considering light coloured room surfaces) Average Daylight factor, DF DF = 7 8 𝑥 9: (<=>) = DC.AD <@<.CG 𝑥 C.H(IC) <=C.J = 14.24 % * According to MS1525, this room is considered extremely bright.
  • 13.
    13 2.1.4 Fourth floorplan, reading room Image 2.1.1.2 Fourth floor plan layout of the reading room.
  • 14.
    14 2.1.5 Daylight factorcalculation 2.1.6 Average daylight factor calculation Floor area (m2 ) 58.21 Area of façade exposed to light (m2 ) Perimeter = 4.15+0.51+1+4.15 = 9.81m Height = 5.5m Area = 6.27m Area of skylight (m2 ) 0 Exposed façade to light and skylight area to floor area ratio (Daylight Factor) (H.DGBC) JI.D< x 100% = 10.77 % x 0.1 = 1.08 Daylight factor, DF DF = !, !& x 100% 1.08 = !, DCCCC x 100% Ei = 216 lux Area of the windows, W (m2 ) (4.15 x 0.51) + (4.15 x 1) = 6.27 Total area of the internal surfaces, A (m2 ) 2(11.82+1.93+5.94+31.39) + 2(4.15 x 3.46) = 130.88 Glass transmittance corrected for dirt, T 0.6 (approx.) for double glazed window in clean environment Visible sky angle in degrees from the centre of the window, θ 61° Average reflectance of area A, R 0.5 (considering light coloured room surfaces) Average Daylight factor, DF DF = 7 8 𝑥 9: (<=>) = H.DG <KC.II 𝑥 C.H(H<) <=C.J = 3.51 % * According to MS1525, this room is considered dark.
  • 15.
    15 2.2 Artificial LightingAnalysis Lumen Method Lumen method is used to calculate the light level in a room. It is a series of calculation that uses horizontal luminance criteria to establish a uniform layout in a space. It can be calculated by dividing the total number of lumens available in a space by the area of the space. The calculation is below: E = $ L M L N L ON L PPN 8 Where, E = Average illuminance to cover the space n = Number of lamps of each luminaire N = Number of luminance F = Lighting design lumens per lamp, i.e. Initial bare lamp luminous UF = Utilization factor for the horizontal working plane LLF = Light loss factor A = Area of the horizontal working plane Lumen method can be also calculated and used to determine the number of lights should be installed on the site. To know the number of lamps, calculation of total luminance of the space need to be done based on the number of fixtures and examine the sufficiency of light fixtures on that particular space. N = ! L 8 N L ON L QN Where, N = Number of lamps required E = Illuminance level required (Lux) A = Area at working plane height (m2 ) F = Average luminous flux from each lamp (lm) UF = Utilization factor, an allowance for light distribution of the luminaire and the room surfaces MF = Maintenance factor, an allowance for reduced light output because of deterioration and dirt
  • 16.
    16 Room Index Room Index,RI, is the ratio of room plan area to half wall area between the working and luminaire planes, which can be calculated by: RI = P L 7 RS L (PB7) Where, L = Length of room W = Width of room Hm = Mounting height, the vertical distance between the working plane and the luminaire Light Loss Factor Light loss factor is need to be considered when calculate Lumen Method. It is allowing forecasting the performance of the system over a given lifetime to meet the minimum light standards it helps minimize the reliability of system has been planned and designed for future operation. The calculation for light loss factor is as below: RI = P L 7 RS L (PB7) Where, LLD = Lamp lumen depreciation LDD = Luminaire dirt depreciation ATF = Ambient temperature effects HE = Heat extraction VE = Voltage effects BF = Driver and lamps factors CD = Component depreciation
  • 17.
    17 2.2.1 Third floor plan,young & adult library Image 2.2.1.1 Third floor plan layout of the young and adult library.
  • 18.
    18 Type of fixtureLED Pendant Lighting Fixture Image of fixture ZERO Pendant Lighting Collection Material of fixture Aluminum painted with internal matt glass shade Type of luminous Warm white Luminous flux (lm) 4000lm Power (W) Available in 3000K Color temperature (K) 3500K Color rendering index 80 Average life rate (hours) 50000 hours at 70% lumen output The light fixture selected is the integration of LED light fixture, which allows freedom to experiment design without exceeding ever decreasing energy budgets. The use of suspended light fixture is also suitable for the installment at book stacks area as it does not obstruct the view to the books at the same time providing high aesthetic uniformity. Lumens Method Calculation Dimension of room (m) L= 13.23, W= 6.4 Total floor area (m2 ) 44.98 Height of ceiling (m) 3 Type of light fixture LED Pendant Lighting Fixture Luminous flux of lighting, F (lm) 4000 Height of luminaires (m) 2.8 Height of working plane (m) 1.5 Mounting height (Hm) 3 – 0.2 – 1.5 = 1.3 Standard Illumination required for reading room according to MS1525 400 lux Reflectance factor Ceiling (White plastered ceiling) = 0.7 Wall (White painted wall) = 0.5 Working plane (Wooden decking)= 0.1 Room index, RI (K) RI = P L 7 RS L (PB7) RI = @@.AI <.K L (<K.DKBH.@)
  • 19.
    19 = 1.76 Utilization factor,UF 0.6 (Based on utilization factors table) Maintenance factor, MF 0.8 (Standard) Number of fittings required, N N = ! L 8 N L ON L QN N = @CC L @@.AI @CCC L C.H L C.I = 9.37 = 10 bulbs Spacing to height ratio, SHR SHR = < RS 𝑥 8 M = < <.K 𝑥 @@.AI <C = 1.63 SHR = T RS 1.63 = T <.K S = 2.12 Fitting layout Fitting required along 13.23m and 6.4m wall, <K.DK D.<D = 6.24 H.@ D.<D = 3.02 = 6-7 rows = 2-3 rows *Therefore, 6 x 2 = 12 lamps x-spacing required for 13.23m is 13.23/6=2.21m y-spacing required for 6.4m is 6.4/2=3.2m
  • 20.
    20 2.2.2 Fourth floorplan, reading room Image 2.2.2.1 Third floor plan layout of the young and adult library.
  • 21.
    21 Type of fixtureLED Standard Linear Strips Image of fixture ZERO Pendant lighting collection Material of fixture Perforated metal with square holes Type of luminous Household fluorescent (bluish white) Luminous flux (lm) 6000lm Power (W) Available in 3000K, 35000K or 4000K Color temperature (K) 4000K Color rendering index 85 Average life rate (hours) 50000 hours at 70% lumen output The light fixture selected is the integration of LED light fixture, which allows freedom to experiment design without exceeding ever decreasing energy budgets. The use of suspended light fixture is also suitable for the installment at book stacks area as it does not obstruct the view to the books at the same time providing high aesthetic uniformity. Lumens Method Calculation Dimension of room (m) L= 13.08, W= 4.45 Total floor area (m2 ) 58.21 Height of ceiling (m) 3 Type of light fixture LED Standard Linear Strips Luminous flux of lighting, F (lm) 6000 Height of luminaires (m) 2.8 Height of working plane (m) 1.5 Mounting height (Hm) 3 – 0.2 – 1.5 = 1.3 Standard Illumination required for reading room according to MS1525 400 lux Reflectance factor Ceiling (White plastered ceiling) = 0.7 Wall (White painted wall) = 0.5 Working plane (Wooden decking)= 0.1 Room index, RI (K) RI = P L 7 RS L (PB7) RI = JI.D< <.K L (<K.CIB@.@J) = 2.55
  • 22.
    22 Utilization factor, UF0.6 (Based on utilization factors table) Maintenance factor, MF 0.8 (Standard) Number of fittings required, N N = ! L 8 N L ON L QN N = @CC L JI.D< HCCC L C.H L C.I = 8.08 = 9 bulbs Spacing to height ratio, SHR SHR = < RS 𝑥 8 M = < <.K 𝑥 JI.D< A = 1.96 SHR = T RS 1.96 = T <.K S = 2.55 Fitting layout Fitting required along 13.08m and 4.45m wall, <K.CI D.JJ = 5.13 @.@J D.JJ = 1.75 = 5-6 rows = 1-2 rows *Therefore, 5 x 2 = 10 lamps x-spacing required for 13.08m is 13.08/5=2.62m y-spacing required for 4.45m is 4.45/2=2.23m
  • 23.
    23 3.0 Reference Designing fornatural and artificial – lighting. (1986) (1st ed.). Gaston, Watford. Benya, J. (2016). Controlling Glare. Architectural Lighting. Retrieved 30 November 2016, from http://www.archlighting.com/projects/controlling-glare_o