School of Architecture, Building & Design
Bachelor of Science (Honours) in Architecture
Building Science II (BLD 61303/ARC 3413)
Project 2: Integration Project
Hong Shi Lik
0322081
TUTOR: Mr. Azim
Table of Contents
1.0 INTRODUCTION
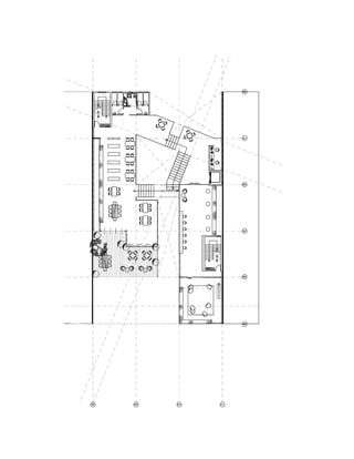
2.0 OVERALL FLOOR PLANS
3.0 Space A: Quiet Reading Area
3.1 Lighting Contours
3.2 Types of Lamps
3.3 Daylight calculation
3.4 Lumen method calculation
3.5 Lighting design proposal
4.0 Space A: Lounge
4.1 Lighting Contours
4.2 Types of Lamps
4.3 Daylight calculation
4.4 Lumen method calculation
4.5 Lighting design proposal
5.0 References
Introduction
A community library is a library accessibility by general public and is usually funded from
public sources. The concept of library is to aim the indigenous between the old-fashioned
and modern world society through targeting to bring in more of the interactions between
the youthful and timeless aspect of the streets. The segregation has resulted in visible
discrimination between the two districts which ultimately leads the local community to
distance out themselves from one another.
The library serves to fulfil the segregation intent and provides a lifestyle community space
for the general public to interact and at the same time to understand one culture of another
as each floor operate such different group people are able to enjoy their time spend inside
the library with their public interest.
The library aims to invite different categories of the community which including the
children, students, workers, parents, and visitors. Each floor provides different spaces to
accommodate their needs allowing them to linger and spend time for longer periods. Each
level serves different groups of people where the genre of books collections is provided.
Space A: Quiet Reading Area (1st floor)
The chosen space is located the east side on the first floor. During the daytime, natural
light can reach upon this area from the east through the void from the large area of glass
window panels but there is not much light coming from the west. Illuminance condition is
fairly for viewing and reading but could use some improvement for better visual condition
Daylight contours
Daylighting Calculation
Area of windows (m2), W (11.885 x 3.200) + (0.625 x 1.200) + (7.216 x
3.700) + (3.419 x 3.700) + (13.438 x 3.700)
= 38.03 + 0.75 + 26.69 + 12.65 + 49.72
= 101.15m2
Total area of the internal surfaces (m2), A Floor area + wall area + window area
= 2(105.45 m2) + 3.7(4.869 +2.442+1.225 +1.400)
m2 + 101.15 m2
= 210.9 + 36.76 + 101.15
= 348.81 m2
Glass transmittance corrected for dirt, T 0.6
Visible sky angle in degrees from the
centre of the window, θ
73
Average reflectance of area A, R 0.5
Exposed façade to light and skylight area
to floor area ratio (daylight factor)
(101.15+0)/ 105.45
= 0.959 (95.9%)
= 95.9 x 0.1
= 9.59
Indoor illuminance 9.59 = (E/20000) x 100%
E = 9.59 x200
E = 1918 lux
Average daylight factor, DF W x T θ
A (1-R)
= 101 x 0.6(73)
348.81 (1-0.5)
= 0.29 x 87.6
= 25.4%
The selected study room has daylight factor of 9.59% which is not reach the requirements
of MS 1525 of exceeding 3-6%. This justified that the room is brightly lit without artificial
lighting during daytime. Based on the recommended illuminance categories, the standard
illuminance required spaces is 300-500lux, which is much lower than the room’s indoor
illuminance level 1918 lux. The average daylight factors of 25.4% is way too high than
optimum 3-5% levels. Therefore, light shielding strategies such as rollable blinds and
wooden louvers are implemented. Rollable blinds enable user to customize the lighting
level of the space to their comfort according to the weather and time of the day.
Types of lamps to be used
Recessed Round Lighting fixtures
Recessed lighting makes a room feel bigger because it actually takes up less visual space
in room. Because the light cans are set up into the ceiling itself, nothing hangs down to
interrupt the visual space of the ceiling. Recessed lighting also makes a room look bigger
due to an effect called “wall washing”.
Advantages Disadvantages
Accent: Create a soft glow coming out
from the sides of the object, causing the
object to draw your eye to it naturally. Also
recessed lights are easily hidden from
plain sight and do not draw unwanted
attention to themselves.
Cost: Hihger than a traditional light
fixture. The cost of bulbs and installation
of recessed lights may also be more
expensive compared to a traditional
fixture.
Space: Creates the illusion of more
spaces. Recessed lights give off a soft
subtle glow, which blurs the boundaries of
the room and the space appears larger
than it actually is.
Installation: More difficult to install than a
traditional fixtures
Weight: Lightweight nature of the
completed units.
Permanency: once it has been installed
you cant move it.
Aesthetics: Can be adjusted to provide
either pleasant ambient lighting or accent
or spotlighting as circumstances require.
Bulbs: Use different types of light bulbs
than a traditional light. The bulbs are
smaller and differently shaped than
traditional bulbs.
Versatile & Efficient: Work more
efficiently without the use of obstructive
light fixtures. Provide dimming effects that
are easy to control.
Safety: you must choose safe recessed
lighting, such as insulation Contact (IC)
rated lighting. An IC rated light will not be
a safety risk. But lights that are not IC rated
create heat, which can lead to fires since
recessed lighting is installed so that the
housing is in contact with home insulation.
Types of fixture LED Recessed Round Light
Image of fixtures
Product dimension 215mm
Type of luminous Warm white
Luminous flux (lm) 2000
Power (W) 29
Color Temperature (K) 3000
Color Rendering Index 97
Average life rate (hours) 5000
Dimension of room A: L= 2.442m, W= 4.869m
B: L= 16.413m, W= 4.239m
C: L= 3.878m, W= 1.874m
D: L= 3.419m, W= 4.887m
vTotal floor area (m2) 105.45 m2
Height of ceiling (m) 3.7
Type of light fixture LED Recessed round light
Luminious flux of lighting (lm), F 2000
Height of Lumiere (m) 3.7
Work level (m) 1
Mounting height (m), Hm 3.7
Reflectance factor Wooden exposed ceiling = 0.3
Wall (white painted wall) = 0.5
Working plane (hardwood) = 0.1
Room Index , K L x W
Hm x (L+W)
= (2.442 x 4.869) + (16.413 x 4.239) + (3.878 x 1.874) + (3.419 x 4.887)
3.7 x [(2.442 + 4.869) + (16.413 + 4.239) + (3.878 + 1.874) + (3.419 +
4.887)]
= 105.45
3.7 x (42.02)
= 105.45
155.47
= 0.678 K
Utilization factor, UF 0.35
Maintenance Factor, MF 0.8 (standard)
Illuminance level required (lux), E 150
Area of working plane height
(m2), A
105.45 m2
Number of fittings required, N E x A
F x UF x MF
= 150 x 105.45
2000 x 0.35 x 0.8
= 28.25
= 28 bulbs
Maximum horizontal spacing
between fittings, S max
(filaments lamps)
1.0 x Hm
= 1.0 x 3.7
= 3.7m
Lighting design proposal PSALI Light Contour
By comparing the lighting contour analysis and fitting layout, the luminaires can be
controlled with two switches which is when daylighting is not available during the noon
and nighttime. During the day, the space is well-lit by the natural light from the east. When
it reaches noon, the light shown on the above could be switched on as daylight would not
be as sufficient as it was in morning.
Space B: Lounge(1st floor)
The chosen space B is located at the East side of the site and it is function as a lounge
area. This room is located on the third floor and has 2 glass panels allowing the morning
sun passed through the space from the void space which directed by skylight. The
space providing sufficient lighting brightening the space as it is essential to have bright
space in order to avoid eye strain for the user.
Lighting contours
Area of windows (m2), W (4.657 x 3.7) + (10.828 x 3.7) + (7.935 x 3.2)
= 17.23 + 40.06 + 25.39
= 82.68 m2
Total area of the internal surfaces (m2), A Floor Area + wall area
= [2(5.201 x 7.935) + (3.879 x 5.575) + (
6.539 x 0.925)] + 2( 3.888 x 3.7)
= [2(41.27 + 21.63 + 6.05)] + 2(14.39)
= 2(68.95) + 2(14.39)
= 137.9 + 28.78
= 166.68
Glass transmittance corrected for dirt, T 0.6
Visible sky angle in degrees from the
centre of the window, θ
73
Average reflectance of area A, R 0.5
Exposed façade to light and skylight area
to floor area ratio (daylight factor)
(166.68+0)/82.68
= 2.02
Indoor illuminance 2.02 = E/20000 x100%
E= 2.02 x200
E= 403.2 lux
Average daylight factor, DF W x T θ
A (1-R)
= 82.68 x 0.6(73)
166.68 (1-0.5)
= 0.50 x 87.6
= 43.8 %
The selected study room has daylight factor of 2.02% which is fall under the requirements
of MS 1525 of exceeding 3-6%. This justified that the room is brightly lit without artificial
lighting during daytime. Based on the recommended illuminance categories, the standard
illuminance required spaces is 300-500lux, which is much lower than the room’s indoor
illuminance level 403.2 lux. The average daylight factors of 43.8% is way too high than
optimum 3-5% levels. Therefore, light shielding strategies such as rollable blinds and
wooden louvers are implemented. Rollable blinds enable user to customize the lighting
level of the space to their comfort according to the weather and time of the day.
Types of lamps to be used
Suspended Direct-Indirect Fluorescent Luminaire
- Light distribution is nearly equal up and down
- Light onto the ceiling creates diffused lighting
- Soft ambient backlight can balance the fixture brightness
Types of fixture Suspended Direct-Indirect Fluorescent
Luminaire
Image of fixtures
Product dimension 150x1500mm
Type of luminous cool white
Luminous flux (lm) 5000
Power (W) 36
Color Temperature (K) 6000
Color Rendering Index 82
Average life rate (hours) 70000
Dimension of room A: L= 7.935m, W= 5.201m
B: L= 5.575m, W= 3.879m
C: L= 0.925m, W= 6.539m
vTotal floor area (m2) 68.95 m2
Height of ceiling (m) 3.7
Type of light fixture Suspended Direct-Indirect Fluorescent Luminaire
Luminious flux of lighting (lm), F 5000
Height of Lumiere (m) 3.7
Work level (m) 1
Mounting height (m), Hm 3.7
Reflectance factor Wooden exposed ceiling = 0.3
Wall (white painted wall) = 0.5
Working plane (hardwood) = 0.1
Room Index , K L x W
Hm x (L+W)
= (68.95)
3.7 x [(7.935+5.201+5.575+3.979+0.925+6.539)]
= 68.95
3.7 x (30.15)
= 68.95
111.57
= 0.618 K
Utilization factor, UF 0.48
Maintenance Factor, MF 0.8 (standard)
Illuminance level required (lux), E 400
Area of working plane height
(m2), A
68.95
Number of fittings required, N E x A
F x UF x MF
= 400 x 68.95
5000 x 0.48 x 0.8
= 27580
1920
= 14.36
= 14 bulbs
Maximum horizontal spacing
between fittings, S max
(filaments lamps)
1.5 x Hm
= 1.5 x 3.7
= 5.55m
Lighting design proposal PSALI Light Contour
The seats next to the window receive natural light from the windows beside it. However,
natural light is not sufficient as it reaches on the inner part of the space. Hence, the PSALI
scheme here is to light on only the inner row of the light to achieve maximum comfortable
level for the user.
References
http://prestodeals.com/the-advantages-disadvantages-of-recessed-lighting
https://www.engineeringtoolbox.com/light-material-reflecting-factor-d_1842.html
https://aelnow.com/product-category/interior-lighting/interior-led/led-suspended-linear/

Bscience project 2

  • 1.
    School of Architecture,Building & Design Bachelor of Science (Honours) in Architecture Building Science II (BLD 61303/ARC 3413) Project 2: Integration Project Hong Shi Lik 0322081 TUTOR: Mr. Azim
  • 2.
    Table of Contents 1.0INTRODUCTION 2.0 OVERALL FLOOR PLANS 3.0 Space A: Quiet Reading Area 3.1 Lighting Contours 3.2 Types of Lamps 3.3 Daylight calculation 3.4 Lumen method calculation 3.5 Lighting design proposal 4.0 Space A: Lounge 4.1 Lighting Contours 4.2 Types of Lamps 4.3 Daylight calculation 4.4 Lumen method calculation 4.5 Lighting design proposal 5.0 References
  • 3.
    Introduction A community libraryis a library accessibility by general public and is usually funded from public sources. The concept of library is to aim the indigenous between the old-fashioned and modern world society through targeting to bring in more of the interactions between the youthful and timeless aspect of the streets. The segregation has resulted in visible discrimination between the two districts which ultimately leads the local community to distance out themselves from one another. The library serves to fulfil the segregation intent and provides a lifestyle community space for the general public to interact and at the same time to understand one culture of another as each floor operate such different group people are able to enjoy their time spend inside the library with their public interest. The library aims to invite different categories of the community which including the children, students, workers, parents, and visitors. Each floor provides different spaces to accommodate their needs allowing them to linger and spend time for longer periods. Each level serves different groups of people where the genre of books collections is provided.
  • 8.
    Space A: QuietReading Area (1st floor) The chosen space is located the east side on the first floor. During the daytime, natural light can reach upon this area from the east through the void from the large area of glass window panels but there is not much light coming from the west. Illuminance condition is fairly for viewing and reading but could use some improvement for better visual condition
  • 9.
  • 10.
    Daylighting Calculation Area ofwindows (m2), W (11.885 x 3.200) + (0.625 x 1.200) + (7.216 x 3.700) + (3.419 x 3.700) + (13.438 x 3.700) = 38.03 + 0.75 + 26.69 + 12.65 + 49.72 = 101.15m2 Total area of the internal surfaces (m2), A Floor area + wall area + window area = 2(105.45 m2) + 3.7(4.869 +2.442+1.225 +1.400) m2 + 101.15 m2 = 210.9 + 36.76 + 101.15 = 348.81 m2 Glass transmittance corrected for dirt, T 0.6 Visible sky angle in degrees from the centre of the window, θ 73 Average reflectance of area A, R 0.5 Exposed façade to light and skylight area to floor area ratio (daylight factor) (101.15+0)/ 105.45 = 0.959 (95.9%) = 95.9 x 0.1 = 9.59 Indoor illuminance 9.59 = (E/20000) x 100% E = 9.59 x200 E = 1918 lux
  • 11.
    Average daylight factor,DF W x T θ A (1-R) = 101 x 0.6(73) 348.81 (1-0.5) = 0.29 x 87.6 = 25.4% The selected study room has daylight factor of 9.59% which is not reach the requirements of MS 1525 of exceeding 3-6%. This justified that the room is brightly lit without artificial lighting during daytime. Based on the recommended illuminance categories, the standard illuminance required spaces is 300-500lux, which is much lower than the room’s indoor illuminance level 1918 lux. The average daylight factors of 25.4% is way too high than optimum 3-5% levels. Therefore, light shielding strategies such as rollable blinds and wooden louvers are implemented. Rollable blinds enable user to customize the lighting level of the space to their comfort according to the weather and time of the day.
  • 12.
    Types of lampsto be used Recessed Round Lighting fixtures Recessed lighting makes a room feel bigger because it actually takes up less visual space in room. Because the light cans are set up into the ceiling itself, nothing hangs down to interrupt the visual space of the ceiling. Recessed lighting also makes a room look bigger due to an effect called “wall washing”. Advantages Disadvantages Accent: Create a soft glow coming out from the sides of the object, causing the object to draw your eye to it naturally. Also recessed lights are easily hidden from plain sight and do not draw unwanted attention to themselves. Cost: Hihger than a traditional light fixture. The cost of bulbs and installation of recessed lights may also be more expensive compared to a traditional fixture. Space: Creates the illusion of more spaces. Recessed lights give off a soft subtle glow, which blurs the boundaries of the room and the space appears larger than it actually is. Installation: More difficult to install than a traditional fixtures Weight: Lightweight nature of the completed units. Permanency: once it has been installed you cant move it. Aesthetics: Can be adjusted to provide either pleasant ambient lighting or accent or spotlighting as circumstances require. Bulbs: Use different types of light bulbs than a traditional light. The bulbs are smaller and differently shaped than traditional bulbs. Versatile & Efficient: Work more efficiently without the use of obstructive light fixtures. Provide dimming effects that are easy to control. Safety: you must choose safe recessed lighting, such as insulation Contact (IC) rated lighting. An IC rated light will not be a safety risk. But lights that are not IC rated create heat, which can lead to fires since recessed lighting is installed so that the housing is in contact with home insulation.
  • 13.
    Types of fixtureLED Recessed Round Light Image of fixtures Product dimension 215mm Type of luminous Warm white Luminous flux (lm) 2000 Power (W) 29 Color Temperature (K) 3000 Color Rendering Index 97 Average life rate (hours) 5000 Dimension of room A: L= 2.442m, W= 4.869m B: L= 16.413m, W= 4.239m C: L= 3.878m, W= 1.874m D: L= 3.419m, W= 4.887m vTotal floor area (m2) 105.45 m2 Height of ceiling (m) 3.7 Type of light fixture LED Recessed round light Luminious flux of lighting (lm), F 2000 Height of Lumiere (m) 3.7 Work level (m) 1 Mounting height (m), Hm 3.7 Reflectance factor Wooden exposed ceiling = 0.3 Wall (white painted wall) = 0.5 Working plane (hardwood) = 0.1 Room Index , K L x W Hm x (L+W) = (2.442 x 4.869) + (16.413 x 4.239) + (3.878 x 1.874) + (3.419 x 4.887) 3.7 x [(2.442 + 4.869) + (16.413 + 4.239) + (3.878 + 1.874) + (3.419 + 4.887)] = 105.45 3.7 x (42.02) = 105.45 155.47 = 0.678 K
  • 14.
    Utilization factor, UF0.35 Maintenance Factor, MF 0.8 (standard) Illuminance level required (lux), E 150 Area of working plane height (m2), A 105.45 m2 Number of fittings required, N E x A F x UF x MF = 150 x 105.45 2000 x 0.35 x 0.8 = 28.25 = 28 bulbs Maximum horizontal spacing between fittings, S max (filaments lamps) 1.0 x Hm = 1.0 x 3.7 = 3.7m
  • 15.
    Lighting design proposalPSALI Light Contour By comparing the lighting contour analysis and fitting layout, the luminaires can be controlled with two switches which is when daylighting is not available during the noon and nighttime. During the day, the space is well-lit by the natural light from the east. When it reaches noon, the light shown on the above could be switched on as daylight would not be as sufficient as it was in morning.
  • 16.
    Space B: Lounge(1stfloor) The chosen space B is located at the East side of the site and it is function as a lounge area. This room is located on the third floor and has 2 glass panels allowing the morning sun passed through the space from the void space which directed by skylight. The space providing sufficient lighting brightening the space as it is essential to have bright space in order to avoid eye strain for the user.
  • 17.
  • 18.
    Area of windows(m2), W (4.657 x 3.7) + (10.828 x 3.7) + (7.935 x 3.2) = 17.23 + 40.06 + 25.39 = 82.68 m2 Total area of the internal surfaces (m2), A Floor Area + wall area = [2(5.201 x 7.935) + (3.879 x 5.575) + ( 6.539 x 0.925)] + 2( 3.888 x 3.7) = [2(41.27 + 21.63 + 6.05)] + 2(14.39) = 2(68.95) + 2(14.39) = 137.9 + 28.78 = 166.68 Glass transmittance corrected for dirt, T 0.6 Visible sky angle in degrees from the centre of the window, θ 73 Average reflectance of area A, R 0.5 Exposed façade to light and skylight area to floor area ratio (daylight factor) (166.68+0)/82.68 = 2.02 Indoor illuminance 2.02 = E/20000 x100% E= 2.02 x200 E= 403.2 lux Average daylight factor, DF W x T θ A (1-R) = 82.68 x 0.6(73) 166.68 (1-0.5) = 0.50 x 87.6 = 43.8 % The selected study room has daylight factor of 2.02% which is fall under the requirements of MS 1525 of exceeding 3-6%. This justified that the room is brightly lit without artificial lighting during daytime. Based on the recommended illuminance categories, the standard illuminance required spaces is 300-500lux, which is much lower than the room’s indoor illuminance level 403.2 lux. The average daylight factors of 43.8% is way too high than optimum 3-5% levels. Therefore, light shielding strategies such as rollable blinds and wooden louvers are implemented. Rollable blinds enable user to customize the lighting level of the space to their comfort according to the weather and time of the day.
  • 19.
    Types of lampsto be used Suspended Direct-Indirect Fluorescent Luminaire - Light distribution is nearly equal up and down - Light onto the ceiling creates diffused lighting - Soft ambient backlight can balance the fixture brightness Types of fixture Suspended Direct-Indirect Fluorescent Luminaire Image of fixtures Product dimension 150x1500mm Type of luminous cool white Luminous flux (lm) 5000 Power (W) 36 Color Temperature (K) 6000 Color Rendering Index 82 Average life rate (hours) 70000 Dimension of room A: L= 7.935m, W= 5.201m B: L= 5.575m, W= 3.879m C: L= 0.925m, W= 6.539m vTotal floor area (m2) 68.95 m2 Height of ceiling (m) 3.7 Type of light fixture Suspended Direct-Indirect Fluorescent Luminaire Luminious flux of lighting (lm), F 5000 Height of Lumiere (m) 3.7 Work level (m) 1 Mounting height (m), Hm 3.7 Reflectance factor Wooden exposed ceiling = 0.3 Wall (white painted wall) = 0.5 Working plane (hardwood) = 0.1 Room Index , K L x W
  • 20.
    Hm x (L+W) =(68.95) 3.7 x [(7.935+5.201+5.575+3.979+0.925+6.539)] = 68.95 3.7 x (30.15) = 68.95 111.57 = 0.618 K Utilization factor, UF 0.48 Maintenance Factor, MF 0.8 (standard) Illuminance level required (lux), E 400 Area of working plane height (m2), A 68.95 Number of fittings required, N E x A F x UF x MF = 400 x 68.95 5000 x 0.48 x 0.8 = 27580 1920 = 14.36 = 14 bulbs Maximum horizontal spacing between fittings, S max (filaments lamps) 1.5 x Hm = 1.5 x 3.7 = 5.55m
  • 21.
    Lighting design proposalPSALI Light Contour The seats next to the window receive natural light from the windows beside it. However, natural light is not sufficient as it reaches on the inner part of the space. Hence, the PSALI scheme here is to light on only the inner row of the light to achieve maximum comfortable level for the user.
  • 22.