Embed presentation
Downloaded 100 times







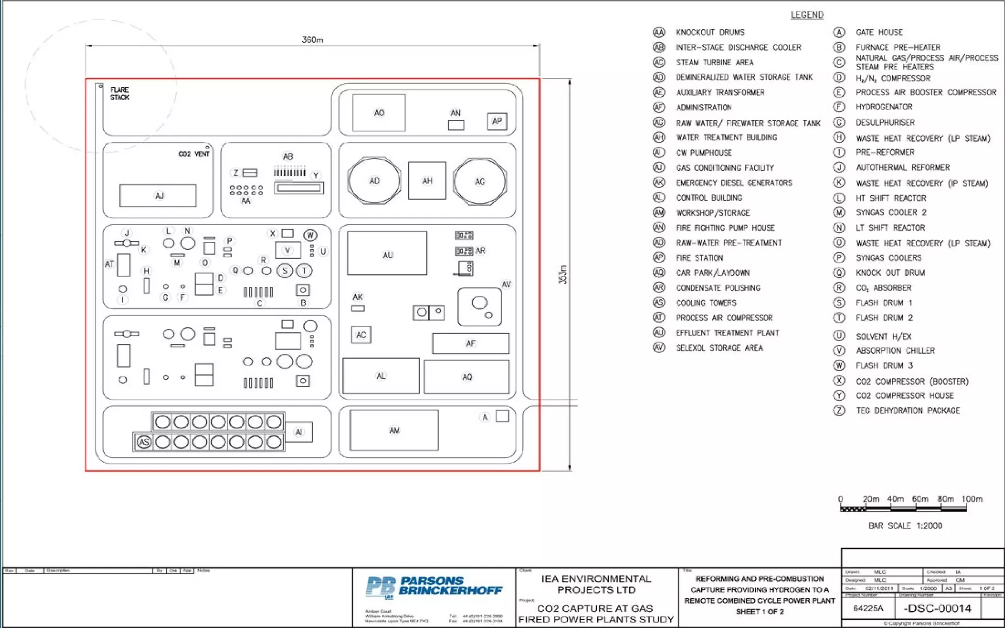
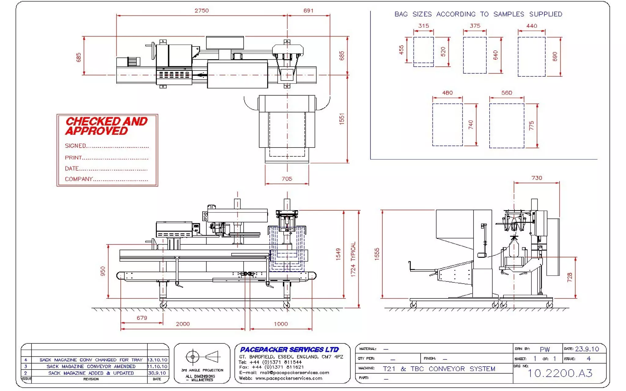
A layout drawing is a design representation of a component or device, typically created during the innovative or preparatory phase. It offers a detailed explanation of the device and its construction, primarily for those involved in its conceptual development. Often, it serves as the main source of information for engineers and designers.






