BUILDING SERVICES SYSTEMS
FOR
ELDERLY CARE CENTRE
Building Services
BLD 60903/ ARC 2423
Prepared by:
​Ang Wei Yi 0317885
Chan Yi Qin 0315964
Joyce Wee 0319602
Kan Sook San 0319326
Tan Wing Hoe 0319333
Too Mun Fai 0318214
Tutor: Ar. Sateerah Hassan
Table of Contents
Chapter 1: Introduction to The Building
Chapter 2: Literature Review
2.1 Fire Protection System
2.1.1 Active Fire Protection System
2.1.2 Passive Fire Protection System
2.2 Air Conditioning System
2.3 Mechanical Ventilation System
2.3.1 Ventilation
2.3.2 Mechanical Ventilation
2.3.3 Comparison Of Supply, Exhaust and Balance system
2.4 Mechanical Transportation System
Chapter 3: Fire Protection System
3.1 Active Fire Protection System
3.1.1 Fire Detection
3.1.2 Fire Alarm System
3.1.3 Fire Control Panel
3.1.4 Fire Intercom System
3.1.5 Fire Hydrant System
3.1.6 Portable Fire Extinguisher
3.2 Passive Fire Protection System
3.2.1 Emergency Fire Escape
3.2.2 Vehicular Access
3.2.3 Fire Barrier
3.2.4 Fire Control
Building Services (BLD 60903 / ARC 2423): August 2016 1
Chapter 4: Air Conditioning System
4.1 Major Cycles in Air Conditioning System
4.2 Window Unit Air Conditioning System
4.3 Split Unit Air Conditioning System
4.4 Packaged Air Conditioning System
4.5 Central Air Conditioning System
4.6 Proposed Air Conditioning System
Chapter 5: Mechanical Ventilation System
5.1 Types of system
5.1.1 Supply Ventilation
5.1.2 Exhaust Ventilation
Chapter 6: Mechanical Transportation System
6.1 Vertical Transportation System
6.1.1 Elevator
6.2 Hydraulic Elevators
6.3 Roped Hydraulic Elevators
Chapter 7: Conclusion and References
Building Services (BLD 60903 / ARC 2423): August 2016 2
Chapter 1: Introduction to Building
Site plan Scale : 1 : 400
In our Design Studio IV, we were required to design and propose an elderly care centre that is no more
than 800 square meters in area. The centre also needs to have a specified variety of programs, such as
lobby, cafeteria, game room, sewing room and washroom. We had to comply to the standard
anthropometry requirements for the elderly and disabled to make sure that they can move around freely
and comfortably. Another design requirement is our elderly centre must not use flat roof.
For our elderly centre, we tilted the orientation of our main building and also courtyard to face the
morning sun and and also to block out the hot afternoon sun on the opposite facade. We attempt to use
as much passive design elements to ensure our centre is sustainable and energy efficient, and also to
expose the elderly to the natural elements such as the sunlight, wind and fresh air. The service facilities
are packed together in the centre of the main block where most of the main programs are located, hence
providing a practical and functional circulation for the elderly and staff.
Building Services (BLD 60903 / ARC 2423): August 2016 3
Chapter 2: Literature Review
2.1 Fire Protection System
The purpose of fire protection is to safeguard human lives, preserve material assets and save the
environment from devastation.
Fire protection system can be categorized into 2 classifications: active fire protection system
and passive fire protection system. Active fire protection system is simply the method of fire fighting by
using either manual or automatic fire mechanical system such as fire alarms, detectors, hose reels, fire
telecoms, sprinklers etc. Passive fire protection system on the other hand retards the combustion and
spreading of smoke and at the same time protecting the escape route to prolong the time for evacuation.
This system can be done by modifying architectural elements and design with fire resistances
characteristics.
2.1.1 Active Fire Protection System
Active Fire Protection is a group of systems that require some amount of action or motion in order to
work efficiently in the event of a fire. Actions may be manually operated, like a fire extinguisher or
automatic, like a sprinkler, but either way they require some amount of action. Active Fire Protection
includes fire and smoke alarm systems, sprinkler systems, and fire extinguishers as well as firefighters.
Fire and smoke alarm systems are used to detect whether there is fire and smoke in a building. Fire
extinguishers and firefighters are used to help put out the fire altogether. These systems are an
extremely important part of protecting property and the lives of the people within.
Building Services (BLD 60903 / ARC 2423): August 2016 4
2.1.2 Passive Fire Protection System
Passive fire protection (PFP) is a form of fire safety provision that remains dormant, or inert, during
normal conditions but becomes active in a fire situation. It is an integral component of structural fire
protection in a building, which is designed to contain fires or slow their spread. The purpose of PFP is to
contain the spread of fire for sufficient time to permit i) the safe evacuation of all occupants of the
premises and ii) the arrival of the fire brigade. The person responsible for fire safety also has a duty of
care towards any members of the emergency services, e.g. fire fighters, who may have to enter the
premises during the course of a fire; in slowing the spread of flames, smoke and hot gases, PFP also
serves to ensure the building remains as safe as possible for entry in this situation.
How is it implemented in buildings?
PFP provision is required in all buildings, whether domestic or non-domestic, with the purpose of
containing / compartmentalising / retarding the spread of fire.
In respect of internal fire spread (structure)
● Where reasonably necessary to inhibit the spread of fire within the building, measures shall be
taken, to an extent appropriate to the size and intended use of the building, comprising either or
both of the following:
(a) sub-division of the building with fire-resisting construction;
(b) installation of suitable automatic fire suppression systems.
● The building shall be designed and constructed so that the unseen spread of fire and smoke
within concealed spaces in its structure and fabric is inhibited.
Examples of PFP
1. Fire doors, whose purpose is to contain a fire / protect a designated fire escape route, should be
fitted with intumescent ​fire and smoke seals​, either around the edges of the door leaf or the
frame. These seals are an integral part of a fire door structure and ensure that, not only is the
spread of fire prevented, but also and more importantly the ingress of cold smoke in the early
stages of a fire. Smoke is known as the silent killer as it can overwhelm the occupants of an
enclosed area long before the heat and flames of a fire are sensed.
2. Intumescent air transfer grilles. The hot gases of a blaze can also move swiftly around a
building, undetected at first, for example through air conditioning ducts. Air transfer grilles, which
are typically 30 or 60 minute fire rated, allow air to circulate freely around a building under
normal conditions, but the intumescent material swells and creates a barrier to restrict the
passage of hot gases in a fire situation. They are suitable for use with both fire rated doors and
compartment walls.
Building Services (BLD 60903 / ARC 2423): August 2016 5
3. Intumescent pipe wraps and collars are designed for use on plastic pipes that pass through
masonry floors and walls; the intumescent material expands inwards in a fire situation to
squeeze the collapsing pipe until the opening is completely sealed.
4. Intumescent downlighter covers and fire hoods / canopies for recessed light fittings prevent fire
from penetrating the ceiling void and thus preserve the fire resistant integrity of the ceiling; they
are typically 30 or 60 minutes fire rated.
5. Intumescent socket box. Electrical sockets in walls and skirting boards are another vulnerable
point in a fire rated compartment; intumescent socket box inserts / covers expand to fill the
electrical box in a fire, preventing the spread of flames, smoke and hot gases.
6. Testing and certification
When choosing PFP products, it is important to ensure that they have been tested to the
relevant and current British standard: for example, BS476: 1987 (Fire tests on building materials
and structures) Part 20 (Method for determination of the fire resistance of elements of
construction – general principles) and Part 22 (Methods for determination of the fire resistance
of non-loadbearing elements of construction).
Building Services (BLD 60903 / ARC 2423): August 2016 6
2.2 Air Conditioning System
Malaysia has a tropical rainforest climate which being hot and humid throughout the year. Due the
moderate outdoor air quality caused by the industrial development, it has affected the indoor air quality
as well. Thus, thermal comfort is one of the significant factors that affect the building design. Thermal
comfort is defined as the condition of mind that expresses satisfaction with the thermal environment and
is assessed by the subjective evaluation. The application of air conditioning system in Malaysia is
needed to achieve the optimal air temperature, air humidity and air cleanliness for the occupants.
Air conditioning system produces cool ventilation inside the building in which the heat is taken out from
the surroundings to allow the release of chilled air. Its function is to:
● Adjust the air temperature and air humidity to maintain the human comfort level
● Filter and remove the air microorganisms, dust and soot effectively
● To lower the internal heat gain from electrical appliances and occupants
There are four types of air conditioning system that are commonly used for different applications.
● Window unit air conditioning system
● Split unit air conditioning system
● Packaged unit air conditioning system
● Centralized air conditioning system
The choice of which air conditioner system to use depends upon a number of factors including the size
of the area is to be cooled and the total heat generated inside the enclosed area. From the analysis of
the designed elderly care centre, ​variable refrigerant flow with master and slave system from split
unit air conditioning system is the most appropriate and effective way to ensure the thermal comfort
level for the occupants in medium scale building that is located in a residential area.
Building Services (BLD 60903 / ARC 2423): August 2016 7
2.3 Mechanical Ventilation System
Mechanical ventilation can be found in various systems according to the function of the space. There are
three type of system, which are supply ventilation system, exhaust ventilation system and balanced
ventilation system.
2.3.1 Ventilation
Natural Ventilation
● Natural ventilation is the process of supplying and removing air through an indoor space by
natural means, meaning without the use of a fan or other mechanical system.
● It uses outdoor air flow caused by pressure differences between the building and its surrounding
to provide ventilation and space cooling.
Mechanical Ventilation
● A building ventilation system that uses powered fans or blowers to provide fresh air to rooms
when the natural forces of air pressure and gravity are not enough to circulate air through a
building.
● Mechanical ventilation is used to control indoor air quality, excess humidity, odours, and
contaminants can often be controlled via dilution or replacement with outside air. However, in
humid climates specialised ventilation systems can remove excess moisture from the air.
Figure: Examples of mechanical system (Source:
http://energy.gov/energysaver/whole-house-ventilation)
Building Services (BLD 60903 / ARC 2423): August 2016 8
2.3.2 Type of mechanical ventilation system
Exhaust Ventilation System
Exhaust fans (kitchen, bathroom, and/or whole-house fans) tend to “depressurize” the building, causing
infiltration of outside air through any cracks or openings it can find. In the North, where winter is more
intense than summer, exhaust-only ventilation may be adequate without inviting damage from moisture.
Because summers tend to be short and moderate in cold climates, except for a few days, the building is
unlikely to be damaged by occasionally drawing in very hot and humid air through the structure.
Conversely, exhaust-only ventilation strategies should not be used in the South. If hot and humid air is
drawn into the building for months on end, condensation, mold, and damage are likely to develop.
Figure: Exhaust ventilation air flow diagram (Source:
http://energy.gov/energysaver/whole-house-ventilation)
Building Services (BLD 60903 / ARC 2423): August 2016 9
Supply Ventilation System
Supply ventilation systems draw clean outside air into the interior living space, usually through a supply
vent that feeds into the return duct of a forced air system. Advantages of supply-only ventilation include
the ability to control where incoming air is coming from, treat the incoming air, and minimize humid air
that is pulled into the living space. Controlled supply also minimizes the potential for combustion
appliance backdrafting, a dangerous type of uncontrolled infiltration that is more common in well-sealed
and poorly vented basements. Supply-only strategies will “pressurize” the house, which keeps moisture
out in hot, humid climates but may cause moisture to condense in walls in cold climates as warm air
escapes to the outside. This can be very damaging.
Figure: Supply ventilation air flow diagram (Source:
http://energy.gov/energysaver/whole-house-ventilation)
Building Services (BLD 60903 / ARC 2423): August 2016 10
Balanced Ventilation System
In a balanced ventilation system (also known as combined ventilation), both the supply air and the
exhaust air is done mechanically. The air pressure of the room is in neutral state. As the pressure
created by the supply air is then depressurized by the exhaustion of air. This system is known as the
most efficient way in ventilating the air as it is independence of outdoor weather despite of noisy
environment and high installation cost. The combination of system requires two ducts and fan system.
This system usually applied in the area where natural ventilation hardly accesses or hard to control such
as basement and suitable for all climates.
Figure: Combined ventilation air flow diagram (Source:
http://energy.gov/energysaver/whole-house-ventilation)
Building Services (BLD 60903 / ARC 2423): August 2016 11
2.4 Mechanical Transportation System
Mechanical transport provides means of raising and lowering people or goods in a building between
floors, which used to save time and energy consumption as compared to staircase. There are two kinds
of mechanical transportation system, mainly vertical transportation and horizontal transportation. Where
common vertical transportation system is elevator and escalator; horizontal transportation system is
travelator.
Figure: Vertical Transportation: Elevator (Inside the Building Technology,
www.cleantechnotes.org/2013)
Figure: Vertical Transportation: Escalator (Castle Lifts, http://www.castle-lifts.com)
Building Services (BLD 60903 / ARC 2423): August 2016 12
Figure: Horizontal Transportation: Travelator (Pay Poster,
http://payposter.com/poster/travelator-escalator-1327601)
In mid-rise commercial building (4 storeys and above), an elevator must be introduced to ease the usage
for disabled people where it is equipped with Braille System. While usage of escalator in shopping malls
and airports allows maximum efficiency due to continuous transfer of traffic.
Zoning of lift is presented mostly in high rise building, as it is divided into three section of low, mid, and
high; it is categorized into express and local. Such design increases the transfer capacity and lower the
waiting time in peak hour. The use of elevator has evolved into a greater subject as it creates better
sound insulation, luxurious interior, and lighting.
Horizontal transportation has its restriction to transfer its passenger for merely on the same floor in a
lower speed. This type of transportation is used in long spaces or between connecting bridge to
decrease energy consumption.
Besides the standard prerequisites in designing a good layout for mechanical transportation, special
provisions must be made to enable access for older and disabled people through means only available
by utilizing mechanical transportation system. It is also of utmost importance to consider its integration
with other services, fire escape, fire protection and meticulous maintenance of the system. This project
nevertheless, is a small scaled low-rise building (1-3 storeys), thus of the mechanical transportation
systems that the Elderly Care Center employs is the vertical transportation, elevator system.
Building Services (BLD 60903 / ARC 2423): August 2016 13
Chapter 3: Fire Protection System
3.1 Active Fire Protection System
The fire protection system in a building always go through a few stages, which is the detection stage, the
notification stage and action-taking stage. When there is a fire in a building, we need early detection in
order to prevent further damage to both people and building. The active fire protection system in the
building can be thoroughly explained through the fire protection chart flow below.
Figure: Active fire protection chart flow
Building Services (BLD 60903 / ARC 2423): August 2016 14
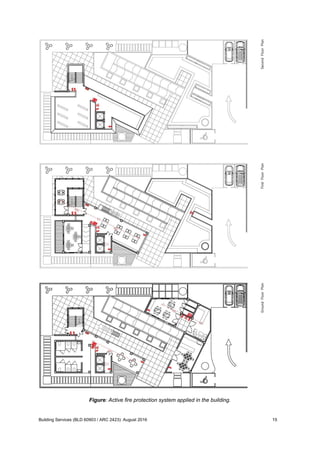
Figure: Active fire protection system applied in the building.
Building Services (BLD 60903 / ARC 2423): August 2016 15
3.1.1 Fire Detection
3.1.1.1 Smoke Detector
There are two main types of smoke detectors connected to a fire alarm system; Ionization smoke
detectors and Photoelectric smoke detectors. ​Ionization smoke detectors are best used for sensing fast
flaming fires that give off very little smoke. Photoelectric smoke detectors are best used where slow
smouldering fires with thicker smoke might occur. ​A combination of both types of smoke detectors
should be installed within a fire alarm system. There are other differing smoke detectors called Multi
Criteria smoke detectors. These smoke detectors can have a Photoelectric detector and Heat detector
within the same detector. There are also CO2 Detectors which sense for carbon monoxide. ​There are
also other multi criteria detectors which have photo smoke detection, heat detection, infrared detection
etc all in the same detector.
Ionization Smoke Detector
Figure: Diagram of Ionization smoke detector in which smoke particles break the circuit.
A typical ionization smoke detector typically consists of two plates in close proximity to each other and a
radioactive source. Both plates are connected with a battery, which applies voltage to the plates.
Consequently, one plate is charged positively (+) and the other one negatively (-). The radioactive
source constantly releases alpha particles that knock off the electrons from the surrounding air atoms,
thus ionizing the nitrogen and oxygen atoms within the detector chamber. The positively-charged ions
are attracted to the negative plate whereas the negatively-charged ions are attracted to the positive
plate, thus creating a small, continuous electric current. This small ionization current that can be easily
measured by electronic circuitry which is connected to the plates.
Building Services (BLD 60903 / ARC 2423): August 2016 16
How do ionisation smoke detectors exactly work in presence of smoke? When smoke molecules
enter the ionization chamber, the smoke particles attach to the ions and neutralize them. Consequently,
the total number of ionized particles in the chamber is reduced. This reduction yields a decrease in the
chamber current that is sensed by the electronic circuitry. The drop of current between the plates
triggers an alarm. An externally visible red LED lights up when the detector alarm state is energised.
Figure: Example of ionization smoke detector.
UBBL 1984 Section 153: Smoke detectors for lift lobbies.
1. All lift lobbies shall be provided with smoke detectors.
2. Lift not opening into a smoke lobby shall not use door reopening devices controlled by light
beam or photo-detectors unless incorporated with a force close feature which after thirty
seconds of any interruption of the beam causes the door to close within a preset time.
Building Services (BLD 60903 / ARC 2423): August 2016 17
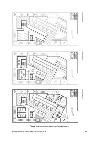
Figure: Indications of the locations of smoke detector.
Building Services (BLD 60903 / ARC 2423): August 2016 18
3.1.2 Fire Alarm System
3.1.2.1 Alarm Bell
Alarm bell is a device that creates loud alert sound. Its functions by means of an electromagnet,
consisting of coils of insulated wire wound round iron rods. Once electric is applied, the current will flow
through the coils. The rods will then become magnetic and attract a piece of iron attached to a clapper.
Once the clapper hits the bell, it will create a repetitive loud ringing sound to alert people.
Figure: Example of alarm bell.
UBBL 1984 Section 237: Fire alarms.
1. Fire alarms shall be provided in accordance with the Tenth Schedule to these By-laws.
2. All premises and buildings with gross floor area excluding car park and storage areas exceeding
9290 square metres or exceeding 30.5 metres in height shall be provided with a two stage alarm
system with evacuation (continuous signal) to be given immediately in the affected section of the
premises while an alert (intermittent signal) be given in adjoining section.
3. Provision shall be made for the general evacuation of the premises by action of a master
control.
Building Services (BLD 60903 / ARC 2423): August 2016 19
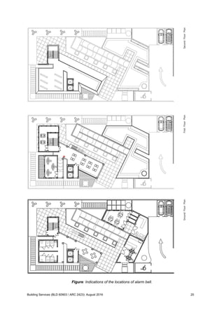
Figure: Indications of the locations of alarm bell.
Building Services (BLD 60903 / ARC 2423): August 2016 20
3.1.2.2 Manual Call Point
Manual Call Points are a manual way of activating a fire alarm system should a fire be noticed. Manual
Call Points must be a two action device to activate and to stop unwanted activations. First you need to
break the cover glass or plastic and then activate the switch. Once activated the fire alarm can only be
reset at the FAP. Returning the switch to its normal location will not reset the fire alarm system.
Figure: Example of manual call point.
Building Services (BLD 60903 / ARC 2423): August 2016 21
Figure: Indications of the locations of manual call points.
Building Services (BLD 60903 / ARC 2423): August 2016 22
3.1.3 Fire Control Panel
A fire control panel is a component that offers control through a fire alarm or notification system.
Throughout the building, sensors are installed. These sensors redirect information to this control panel.
They include environmental changes that could detect the presence of a fire. The panel receives
notifications for potential operational issues with equipment that could cause a fire.
Figure: Example of fire control panel.
Building Services (BLD 60903 / ARC 2423): August 2016 23
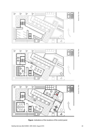
Figure: Indications of the locations of fire control panel.
Building Services (BLD 60903 / ARC 2423): August 2016 24
3.1.4 Fire Intercom System
Fire intercom system is a two-way emergency voice communication system. It provides communication
between remote telephone handsets located within the building and the master telephone hand-set at
the fire command center. When the Fire Intercom System receives a call, the alert lamp will flash at the
Master Control Panel and an audible signal can also be heard. To turn off the audible signal, simply lift
the Remote Handset. There is also a Fault Indicator Unit, which is used to indicate the type of fault from
the Master Control Panel. When the master control console has no incoming call, there will be an
outgoing call straight to the fire station. Fire station will have to contact the fire command center
immediately to contact to the management office.
The fire intercom system is mostly placed at the staircase so that in any case of emergency,
immediate alert can be sent to the master console. Occupants do not have to run all the way to the
security room to announce the emergency.
Figure: Example of fire intercom system.
Building Services (BLD 60903 / ARC 2423): August 2016 25
Figure: Indications of the locations of fire intercom system.
Building Services (BLD 60903 / ARC 2423): August 2016 26
3.1.5 Fire Hydrant System
3.1.5.1 Dry Riser System
Description
Figure: Diagram of typical arrangement for dry riser system.
Dry risers are a type of internal hydrant for the fireman to use. They are used only if the topmost floor of
the building is higher than 18.3m and less than 30.5m above the fire appliance access level. Breeching
inlets are used to connect the firemen pump water, so that water can provided at ground level and are
connected to the bottom of the dry risers.
Dry risers are usually dry and depend on the fire engine to pump water into the system through
the breeching inlet outside the building. If fire happened, fire engine has to connect the pipe into the dry
riser inlet. Hence, the inlet should not locate more than 18m from fire appliance access and not more
than 30m from the nearest fire hydrant. There is no pump built internally within the premise, the pressure
is totally depend on the fire engine from ground floor.
Building Services (BLD 60903 / ARC 2423): August 2016 27
Design Requirements
1. Design Standards
a. Part 1- Hydrant systems, hose reels and foam inlets
b. Part 2- Landing valves for dry risers
c. Part 3- Inlet breeching for riser inlets
d. Part 4- Boxes for landing valves for dry risers
2. Landing Valve
a. Provided in each floor and comply with landing valve for dry risers.
b. Located at fire access lobbies, protected staircases and protected lobbies.
c. Installed not more than 0.75m above floor level.
d. To protect landing valves, box are provided.
e. Fire hose not less 38mm diameter, 30m length, 60mm diameter and nozzle should be provided.
3. Breeching Inlet
a. Fire brigade breeching inlet installed at bottom of riser should comply with inlet breeching.
b. Breeching inlets enclosed within a box and labeled ‘Dry Riser Inlet’.
c. Drain should be provided at bottom of riser to drain the system after use.
d. Two-way breeching inlet should provided 100mm diameter dry riser.
e. Four-way breeching inlet installed with 150mm diameter dry riser.
f. Breeching inlets should located not more than 18m from appliance access road and not more
30m from near external hydrant outlet.
3. Riser Pipe
a. Riser pipe diameter located within fire access lobby or staircase at 150m if highest outlet more
than 22.875m above breeching inlet or otherwise pipe riser diameter is 100mm.
b. Riser pipe will galvanised iron to heavy gauze or class c tested to 21 bar.
c. Horizontal runs pipework feeding the risers should slope to enable proper draining.
d. Air release valve should installed at top of riser to relieve air trapped.
e. Riser pipe should electrically earthed or connected to building earth to avoid equipotential.
Building Services (BLD 60903 / ARC 2423): August 2016 28
UBBL 1984 Section 230: Installation and testing of dry rising system.
1. Dry rising systems shall be provided in every building in which the topmost floor is more than
18.3 metres but less than 30.5 metres above fire appliances access level.
2. A hose connection shall be provided in each fire fighting access lobby.
Building Services (BLD 60903 / ARC 2423): August 2016 29
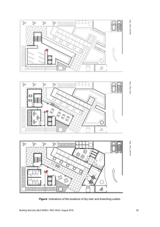
Figure: Indications of the locations of dry riser and breeching outlets.
Building Services (BLD 60903 / ARC 2423): August 2016 30
3.1.5.2 Hose Reel System
Description
Figure: Diagram of typical arrangement for hose reel system.
Hose reel system is intended for the occupant to use during the early stages of fire and comprises hose
reel pumps, fire water tank, hose reels, pipe work and valves. The hose reel system generally serves as
an initial fire fighting aid. When the hose reel is brought into use the pressure in the pipe immediately
downstream of the pump check valves will drops below the field adjusted pressure setting of the
pressure switch thereby triggering the pump to comes into operation automatically to feed a steady
supply of water to discharge through the hose.
Fire fighting hose reel is the part which can be easily accessible. The fire hose reel outlets
should be properly housed in glass fronted cabinet secured under lock and key.
Design Requirements
1. Design Standards
e. B.S. 5306: Part 1 or the equivalent Malaysian Standard
f. M.S. 1447: Hose reels with semi-rigid hose
g. Pr EN 694 : Semi-rigid hose for first aid fixed installation
2. Hose Reels
a. Coverage range of 30m for each reel.
b. One hose reel for every 800 sq.m space area.
c. Usually located along escape routes or beside exit doors or staircases.
d. Minimum discharge by each hose reel 30 l/m and 6m jet length.
Building Services (BLD 60903 / ARC 2423): August 2016 31
e. The rubber hoses should be comply with pr EN 694 standard and 30m in length and 25mm
diameter.
f. Nozzles should be of the jet and spray adjustable type of different diameters but 8mm is a
recommended size.
g. Pipework is generally 50mm diameter and the pipe feed to individual hose not less than 25mm
diameter.
h. Above ground pipework : minimum galvanised steel medium grade (Class B).
i. Underground pipework : minimum heavy grade (Class C).
j. Pipe painted with primer & finished with red paint (OR at least elbow and tee must be painted
with red bands).
UBBL 1984 Section 244 (b):
Hydraulic Hose Reels Hose reel shall be located at every 45 meters (depends on building form).
Besides, fire hose reel should be located at strategic places in buildings, especially nearer to fire fighting
access lobbies in order to provide a reasonably accessible and controlled supply of water for fire
extinguishing.
Building Services (BLD 60903 / ARC 2423): August 2016 32
Figure: Indications of the locations of hose reel cabinets.
Building Services (BLD 60903 / ARC 2423): August 2016 33
3.1.6. Portable Fire Extinguisher
Figure: Diagram of different types of fire extinguisher.
3.1.6.1 Dry Chemical
Dry chemical fire extinguishers extinguish the fire primarily by interrupting the chemical reaction of the
fire triangle. Today's most widely used type of fire extinguisher is the multipurpose dry chemical that is
effective on Class A, B, and C fires. This agent also works by creating a barrier between the oxygen
element and the fuel element on Class A fires. Ordinary dry chemical is for Class B & C fires only. Using
the incorrect agent can allow the fire to re-ignite after apparently being extinguished successfully.
Figure: Example of dry chemical portable fire extinguisher.
UBBL Section 227: Portable extinguishers.
Portable extinguisher shall be provided in accordance with the relevant codes of practice and shall be
sited in prominent positions on exit routes to be visible from all directions and similar extinguishers in a
building shall be of the same method of operation.
Building Services (BLD 60903 / ARC 2423): August 2016 34
Figure: Indications of the locations of portable fire extinguishers.
Building Services (BLD 60903 / ARC 2423): August 2016 35
3.2 Passive Fire Protection System
Passive Fire Protection is the use of fire barrier systems that are integrated into the structure of a
building. Passive fire protection system plays a very crucial role in preventing/ slowing down the rate of
spread of fire and protecting the occupants of the elderly centre in the event of a fire emergency.
In this part of the chapter, we will be discussing about the details in the emergency fire escape,
fire vehicular access, fire barrier and the fire control that is integrated in the passive fire protection
system in the elderly centre.
Building Services (BLD 60903 / ARC 2423): August 2016 36
3.2.1 Emergency Fire Escape
3.2.1.1 Emergency Exit Signage
The emergency exit signs are exit indications for the occupants of the elderly centre during fire
evacuation. The exit signs are located above all exits, fire rated doors, fire staircases and doorways that
leads the occupants out of the building.
Per UBBL and Malaysian Standards, fire escape doors must be indicated with neon green
“EXIT” signs (​“KELUAR” as in Bahasa Melayu) above it, accompanied with emergency lights. In the event
when the electrical supply is cut off when the fire alarms are triggered, the emergency exit signs will still
be visible to lead the occupants to safety.
Figure: Example of ‘Keluar” sign
Figure: Indications of the locations of emergency exit signs.
Building Services (BLD 60903 / ARC 2423): August 2016 37
UBBL 1984, Section 172: Emergency Exit Signs.
1. Storey exits and access to such exits shall be marked by readily visible signs and shall not be
obscured by any decorations, furnishings or other equipment.
2. A sign reading “KELUAR” with an arrow indicating the direction shall be placed in every location
where the direction of travel to reach the nearest exit is not immediately apparent
3. Every exit sign shall have the word “KELUAR” in plainly legible letters not less than 150
millimetres high with the principal strokes of the letters not less than 18 millimetres wide.
4. All exit sign shall be illuminated continuously during periods of occupancy.
5. Illuminated signs shall be provided with two electric lamps of not less than 15W each.
Building Services (BLD 60903 / ARC 2423): August 2016 38
3.2.1.2 Fire Evacuation Route
One of the most crucial aspects in passive fire protection is the design of the building. The elderly centre
consists of 2 L-shaped blocks that forms an open courtyard in the middle. The 3m setback that
surrounds the building is clear from obstructions to allow an escape path for the occupants in events of
an emergency.
At every level, there is a minimum of 2 storey exits to allow the occupants to escape from one if
the other is blocked from hazards or fire. The evacuation routes of the building are protected by fire walls
and doors to slow down the spreading of flame. They are also equipped with emergency lights and vents
to allow safe travel to the open space at the ground level.
Figure: Indicates the fire evacuation routes.
Building Services (BLD 60903 / ARC 2423): August 2016 39
UBBL 1984, Section 165 (4): Measurement of travel distance to exits.
The maximum travel distance to exits and dead end limits shall be as specified in the Seventh Schedule
of these By-Laws.
UBBL 1984, Section 169: Exit Route.
No exit route may reduce in width along its path of travel from the storey exit to the final exit.
UBBL 1984, Section 178: Exits for institutional and other places of assembly
In buildings classified as institutional or places of assembly, exits to streets or large open space,
together with staircases, corridors and passages leading to such exits shall be located, separated or
protected as to avoid any undue danger to the occupants of the place of assembly from fire originating in
the other occupancy or smoke therefrom.
Conforming to the UBBL,
1. All exits are directed to the open spaces at the side of the building that leads to the assembly
point.
2. The passageway is protected from fire and smoke.
3. The width of the escape path is consistent throughout the escape route to prevent clogging of
human traffic during evacuation.
Building Services (BLD 60903 / ARC 2423): August 2016 40
3.2.1.3 Fire Stairs and Fire Lifts
Fire stairs and lifts are vertical escape component of the evacuation route. It should be easily accessible
from the inside and outside of the building. It is designed for emergency escapes while also allowing
firemen to enter the building in an event of fire.
In the elderly centre, there is a minimum of one fire stair in each building. The fire stairs are either at the
exterior of the building or are well ventilated with vents. The fire stairs are all built with reinforced
concrete covered with anti-slip ceramic tiles.
Figure: Indicates the location of fire lifts and stairs
Building Services (BLD 60903 / ARC 2423): August 2016 41
UBBL 1984, Section 165: Exits to be accessible at all times.
Except as permitted by-law 167 not less than TWO separate exits shall be provided from each storey
together with such additional exits may be necessary.
UBBL 1984, Section 168: Staircases
1. Except as provided in bylaws 194, every floor shall have means of egress via at least 2 separate
staircases.
2. Staircases should be at such width that in the event of any one staircase not being available for
escape purpose the remaining staircases shall accommodate the highest occupancy load of any
one floor discharging into it calculated in accordance with provisions in the Seventh schedule to
these by-laws.
3. The required width of staircase shall be clear width between walls but handrails may be
permitted to encroach on this width to a maximum of 75 millimetres.
4. The required width of staircase should be maintained throughout its length including at landings.
5. Doors giving access to staircases shall be so positioned that their swing shall at no point
encroach on the required width of the staircase or landing.
Building Services (BLD 60903 / ARC 2423): August 2016 42
3.2.1.4 Assembly Point
In passive fire protection system, all emergency escape routes must lead the occupants of the building
to the outdoor assembly point. Due to the small scale of the elderly centre, there is only one assembly
point, which is at the setback area away from the building.
Figure: Indications of the Assembly Point
UBBL 1984, Section 178: Exits for institutional and other places of assembly
In buildings classified as institutional or places of assembly, exits to streets or large open space,
together with staircases, corridors and passages leading to such exits shall be located, separated or
protected as to avoid any undue danger to the occupants of the place of assembly from fire originating in
the other occupancy or smoke therefrom.
Building Services (BLD 60903 / ARC 2423): August 2016 43
3.2.1.5 Emergency Light
During a fire, all electric supply will be cut of to prevent the risk of an explosion. The emergency lights
function automatically in the event of a power failure. It is fitted with charged battery to illuminate the fire
escape routes. The level of illumination, quality and consistency of emergency illumination are important
during the evacuation of occupants.
Figure: Indications of the locations of Emergency Lightings
Building Services (BLD 60903 / ARC 2423): August 2016 44
3.2.1.6 Emergency Escape Plan
Emergency Escape Plans are located at every fire escape doors. The plan indicates the fire lifts to
prevent the occupants from using and being trapped in the regular lift in the event of a fire. The plan is
highlighted with red and yellow to indicate the exit stairs and escape area respectively. Information such
as the location of the manual breaking glass, fire alarm bells and fire extinguishers are also indicated on
the emergency escape plan.
Figure: Emergency Escape Plan.
Building Services (BLD 60903 / ARC 2423): August 2016 45
3.2.2 Fire Fighting Access
3.2.2.1 Vehicular Access
Fire vehicle access around the building is very important as well in order for the fire trucks to get in place
especially to the location nearby the fire hydrant for firefighting and rescue activities without any
obstructions. The access must be wide enough and clear from any blockages to enable high reach
appliances, such as the turntable ladders and hydraulic platforms, to be used and also to enable the
pumping appliances to supply water and equipment for firefighting.
In the elderly centre, the fire rescue trucks stops at the drop off area as it is unable to enter
further into the bungalow lot. Fire fighters will enter the compound through the setback area at both
sides of the building.
Figure: Indication of Vehicular Route.
UBBL 1984 Section 225 (2): Detecting and extinguishing fire.
Every building shall be served by at least one fire hydrant located not more than 91.5m away from the
nearest point of fire brigade access.
Building Services (BLD 60903 / ARC 2423): August 2016 46
3.2.3 Fire Barrier
3.2.3.1 Fire Wall
Fire wall is a lightweight; non-loadbearing walls capable of providing up to 240 minutes’ fire resistance.
They are an assembly of materials that not only act as a wall to separate the spaces but also separate
those high fire risk areas such as transformer room, electrical room and mechanical room. This firewalls
were designed to act as a barrier between spaces and prevent the spread of fire in a period of time and
give more time for occupants to escape from the building. It buys sufficient times for the occupant and
the users to escape.
Figure: Indications of the Fire Walls
Building Services (BLD 60903 / ARC 2423): August 2016 47
UBBL 1984, Section 138(C)
Any wall or floor separating part of a building form any other part of the same building, which is used or
intended to be used mainly for a purpose failing within a different purpose group as, set out in the Fifth
Schedule to these by laws.
UBBL 1984, Section 148(6): Special requirements as to compartment walls and compartment floors.
Any compartment walls or compartment floor which is required by these Bylaws to have FRP of one
hour or more shall be constructed wholly of non-combustible materials and, apart from any ceiling, the
required FRP of wall or floor shall be obtained without assistance from any noncombustible materials.
Building Services (BLD 60903 / ARC 2423): August 2016 48
3.2.3.2 Fire Door
Fire resistant doors are used to separate compartments in buildings to stop the spreading of fire. It
suppresses the fire by restricting the flow of oxygen and spread of flames. The fire doors are placed at
the entrance of fire staircase and are self closing to protect the occupants while evacuating in case of an
emergency.
The elderly centre is equipped with double leaf doors of 1600mm x 2100mm for the escape
doors and single leaf doors of 900mm x 2100mm for the mechanical and electrical services room. The
fire doors are all rated to withstand up to 1 hour of fire, allowing ample time for fire personnel to put out
the flame before it spreads.The doors are closed by default with an hydraulic spring installed at the top
of the door to inhibit flame and smoke. Routine checks are made to make sure there is no blockage at
the door.
Figure: Indications of the locations of Fire Doors
Building Services (BLD 60903 / ARC 2423): August 2016 49
UBBL 1984, Section 162: Fire doors in compartment walls and separating walls.
1. Fire doors of an appropriate FRP shall be provided.
2. Openings in compartment walls and separating walls shall be protected by a fire door having a
FRP in accordance with the requirements for that wall specified in the Ninth Schedule to these
bylaws.
3. Openings in protecting structures shall be protected by fire doors having FRP of not less than
half the requirement for the surrounding wall specified in the Ninth Schedule to these bylaws but
in no case less than half an hour.
4. Openings in partitions enclosing a protected corridor or lobby shall be protected by fire doors
having FRP of half-hour.
5. Fire doors including frames shall be constructed to a specification which can be shown to meet
the requirements for the relevant FRP when tested in accordance with section 3 of BS476:1951.
UBBL 1984, Section 164 (1): Door closers for fire doors.
All fire doors shall be fitted with automatic door closed of the hydraulically spring operated type in the
case of swing doors and of wire rope and weight type in the case of sliding door.
Building Services (BLD 60903 / ARC 2423): August 2016 50
3.2.3.3 Separation of Fire Risk Area
Compartmentalization or also known as separation of fire risk areas are implemented in buildings with
high fire risk facilities. In the elderly centre, there are N rooms with high risk of causing a fire - kitchen,
mechanical and electrical room. These rooms are separated with fire wall and doors to retard the
spreading of fire from the rooms. These areas are the most fire protected and maintenance checkups
are scheduled every fortnight to ensure all systems are in order.
Figure: Indications Separated Areas: Kitchen and Mechanical and Electrical Rooms.
UBBL 1984, Section 139: Separation of fire risk areas.
The following areas or uses shall be separated from the other areas of occupancy in which they are
located by fire resisting construction of the elements of structure of a FRP to be determined by the local
authority based on the degree of fire hazard:
(a) Boiler rooms and associated fuel storage areas
(b) Laundries
(c) Repair shops involving hazardous processes and materials
(d) Storage areas of materials in quantities deemed hazardous
(e) Liquefied petroleum gas storage areas
(f) Linen rooms
(g) Transformer rooms and substations
Building Services (BLD 60903 / ARC 2423): August 2016 51
3.2.4 Fire Control
3.2.4.1 Smoke and Heat Ventilation
According to statistics, victims of fire often die from smoke and heat stroke. Fire produces black smoke
which suffocates the victims due to the lack of oxygen in the air. Therefore it is important to vent out the
smoke and heat. Fire stairs are one of the areas that are less likely to be affected by the fire but the
smoke from other floors are likely to travel up through the stairwell. Assuming the stairs are in an
enclosed area, the smoke will accumulate at a space with the highest human occupancy during a fire,
risking the lives of the occupants.
To resolve this issue, stairs are either designed to be at the exterior, or to have vents to allow
ventilation. The vents can also be removed by fire personnel for access to upper floors in case of huge
fire.
Building Services (BLD 60903 / ARC 2423): August 2016 52
Chapter 4: Air Conditioning System
Air Conditioning system is to provide cool ventilation by altering the properties of air which is
primarily temperature and humidity to more favourable condition. The control of temperature
and humidity in air may be desirable to maintain the thermal comfort level of the occupants
and to meet the requirements of industrial processes the external climatic conditions.
The main concept of the air conditioning system is to extract the heat from a certain
area to the surroundings. It requires several mechanical components to allow the process of
evaporation, compression and condensation of the air properties.
4.1 Major Cycles in Air Conditioning System
4.1.1 Refrigerant Cycle
Refrigerant cycle is a process to transfer heat from low temperature to high temperature.
The heat inside a room is transferred through the evaporator and removed to the outside air
through a condenser.
4.1.1.1 Principles of Refrigeration
Figure: Process of Refrigeration
Source: (Hoffman & Content, 2002)
The main principle of refrigeration:
- Liquids absorb heat when changed from liquid to gas
- Gases give off heat when changed from gas to liquid.
Building Services (BLD 60903 / ARC 2423): August 2016 53
4.1.1.2 Components of Refrigeration
Compressor
The compressor is the heart of the system. The compressor pumps
the refrigerant through the air conditioning system at a designed flow
rate and pressure.
Source: (Ebazar, 2016)
Condenser
The high pressure and high temperature state of the vapor refrigerant is
then converted to liquid at the cond.
Source: (“Mitsubishi Lancer A/C Condenser,” n.d.)
Expansion valve
Control the flow of the liquid refrigerant to evaporator. This is a dividing
point between the high pressure and low pressure sides of the system.
Source: (Pony, 2016)
Evaporator
It removes heat from air, water or other substance. It acts as a heat
exchanger that transfers heat from the substance being cooled to a
boiling temperature.
Source: (Asia, 2006)
Building Services (BLD 60903 / ARC 2423): August 2016 54
4.1.2 Air Cycle
A process of distribution of treated air into a certain area that needs to be conditioned. The
treated air is the air supply to the area is filtered through air cleaner to remove dust particles.
Latent heat inside the room is eliminated and transferred to the medium at the Air Handling
Unit (AHU). The medium to absorb the heat can be either air or water. Distribution of air can
be either through ducts or chilled water pipes. Heat inside the room is removed and the
internal air becomes cooler with the mix of fresh air from outside.
4.1.2.1 Components Required for Air Cycle
Air Handling Unit (AHU)
It is used to re-condition and circulate air as part of a heating,
cooling, humidifying, dehumidifying, filtering and distributing. It
uses a blower to remove air from the home, force it through a
heat exchanger and distribute the conditioned air through a
system of ducts back into the house.
Source: (“Air handling unit BASIC - AHU airtecnics,” 2012)
Air filter
Remove the dust particles in the air before it releases into the room.
Source: (Home, 2015)
Blower fan
Propeller fan is used especially to remove heat from the condenser. Its
function is to to propel the air for distribution inside the building.
Source: (“DIDW Blower Fan,” n.d.)
Building Services (BLD 60903 / ARC 2423): August 2016 55
Ductwork and diffuser
Both are to distribute the air from air handling units to the other rooms
that need to be conditioned. The ductwork is usually concealed inside
the ceiling. The diffuser is placed where the air to be released.
Source: (“Ductwork ventilation from air conditioning UK specialists: RAC Kettering provide air conditioning, cold
rooms and refrigeration,” n.d.)
4.2 Window Unit Air Conditioning System
Window air conditioner is the most commonly used air conditioner for single rooms. In this
air conditioner all the components, namely the compressor, condenser, expansion valve or
coil, evaporator and cooling coil are enclosed in a single box. This unit is fitted in a slot made
in the wall of the room, or more commonly a window sill. The whole assembly of the window
air conditioner can be divided into two compartments: the room side, which is also the
cooling side and the outdoor side from where the heat absorbed by the room air is liberated
to the atmosphere.
Figure: Components of Window air conditioner
Source: (“Parts of the window air conditioners,” 2009)
Building Services (BLD 60903 / ARC 2423): August 2016 56
4.2.1 Refrigeration System of Window Unit Air Conditioner
The refrigeration system of the window air conditioner comprises of all the important parts of
the refrigeration cycle.
Source: (“Parts of the Window Air Conditioners: Part One”, 2016)
The compressor used in the window air conditioners is hermetically sealed type, which is
portable one. The condenser is made up of copper tubing and it is cooled by the
atmospheric air. It is covered with the fins to enable faster heat transfer rate from it. The
capillary tubing made up of various rounds of the copper coil is used as the expansion valve
in the window air conditioners. Before the capillary, there is a drier filter that filters the
refrigerant and also removes the moisture particles, if present in the refrigerant.
The evaporator is also made up of copper tubing of number of turns and is covered with the
fins. The evaporator is also called as the cooling coil since the rooms air passes over it and
gets cooled. Before the evaporator, there is a air filter fitted in the front panel or front grill. As
the room air is absorbed, it is first passed over the filter so that it gets filtered. The filtered air
is then blown over the cooling coil and the chilled air is passed into the room. The refrigerant
after leaving the cooling coil enters the accumulator where it is accumulated and then it is
again sucked by the compressor for recirculation over the whole cycle.
4.2.2 Air Circulation System of Window Unit Air Conditioner
The air circulation system of the window air conditioner comprises of blower, condenser fan
and fan motor.
Figure: Components of Air Circulation System of Window Unit Air Conditioner
Source: (“Parts of the window air conditioners,” 2009)
Building Services (BLD 60903 / ARC 2423): August 2016 57
4.2.2.1 Components required
Blower: The blower sucks the air from the room which first passes over the air filter and gets
filtered. The air then passes over the cooling coil and gets chilled. The blower then blows
this filtered and chilled air, which passes through the supply air compartment inside the
window air conditioner assembly. This air is then delivered into the room from the supply air
grill of the front panel.
Condenser fan: The condenser fan is the forced draft type of propeller fan that sucks the
atmospheric air and blows it over the condenser. The hot refrigerant inside the condenser
gives up the heat to the atmospheric air and its temperature reduces.
Fan motor: It has double shaft on one side of which the blower is fitted and on the other side
the condenser fan is fitted. This makes the whole assembly of the blower, the condenser fan
and the motor highly compact.
4.2.3 Control System of Window Unit Air Conditioner
There is control panel or the operating panel that carries various control buttons. This control
panel can be easily accessed from the front panel of the window air conditioner. The three
important aspects that are to be controlled inside the window air conditioner:
- Thermostat for controlling the room air temperature
- Air flow rate inside the room
- Direction of the air flow inside the room
Figure: Components of Control System of Window Unit Air Conditioner
Source: (“Parts of the window air conditioners,” 2009)
Building Services (BLD 60903 / ARC 2423): August 2016 58
4.2.4 Advantages and Disadvantages of Window Unit Air Conditioning System
Advantages Disadvantages
- Suitable for small unit
- Low noise output and high efficiency
- It does not contribute to distribution
of smoke in occurrence of fire
- Can be placed either in windows or
wall holes for easy installation
- Requires a large hole in the wall if it
is not installed at existing window
opening
- More of a hassle to remove and
move to another room/location
- Maybe look unattractive from the
outside
4.3 Split Unit Air Conditioning System
Split air conditioner consists of two parts that are the outdoor unit and the indoor unit. The
outdoor unit is fitted outside the room such as houses components like the compressor,
condenser and expansion valve. The indoor unit comprises the evaporator or cooling coil
and the cooling fan.
4.3.1 Components Required for Split Unit Air Conditioning System
Outdoor unit
Huge amount of heat is generated inside the compressor and the
condenser of the outdoor units. Therefore, there should be sufficient air
flows around it. The outdoor unit contains the important parts of the
split air conditioner like compressor, condenser and expansion valve.
Source: (“Cleaning split AC,” 2015)
Indoor unit
Source: (“FolksERA,” 2016) Source: (M, 2015) Source:(sobatcara, 2015)
Wall mounted indoor unit Floor mounted indoor unit Cassette
The indoor unit produces the cooling effect inside the room. It is a box type housing in which
all the important parts of the air conditioner are enclosed. The most common type of the
Building Services (BLD 60903 / ARC 2423): August 2016 59
indoor unit is the wall mounted type though other types like ceiling mounted and floor
mounted are also used.
Copper Tubing
The refrigerant piping is made up of copper tubing covered with
insulation that connects the indoor and the outdoor unit. It consist
of two pipes, one to supply the refrigerant to the cooling coil and
the other to return the refrigerant to the compressor.
Source: (“Shanghai tatsukin hvac epuipment co.,ltd,” n.d.)
4.3.2 Types of Split Unit Air Conditioning System
- Split unit without outside air (ductless)
- Split unit with outside air (ducted)
- Variable refrigerant flow (VRF)
4.3.2.1 Split Unit Without Outside Air (ductless)
There are no supply of fresh air to renew the existing indoor air. Thus, the existing indoor air
is recycled and recirculated.
Figure: Process of Working Ductless Split Unit Air Conditioning System
Source: (“Toronto air conditioning | HVAC experts,” 2015)
Building Services (BLD 60903 / ARC 2423): August 2016 60
4.3.2.2 Split Unit With Outside Air (ducted)
Ducting piping is used to deliver conditioned air into each room. The ducting pipes are
usually concealed in ceiling. It has larger capacity as compared to ductless system.
Source:(“Concealed Ducted split system,” 2016)
4.3.2.3 Variable refrigerant flow (VRF)
Variable refrigerant flow is a multi split air conditioning system where one outdoor unit is
connected to several indoor units. It uses refrigerant as the cooling medium. The term
variable refrigerant flow refers to the ability of the system to control the amount of refrigerant
flowing to the multiple evaporators (indoor units), enabling the use of many evaporators of
differing capacities and configurations connected to a single condensing unit. The
arrangement provides an individualized comfort control.
Source:(Bachao, 2012)
Types of variable refrigerant flow (VRF)
- Master and slave system
- Zoned control units
- Variable refrigerant volume system
Building Services (BLD 60903 / ARC 2423): August 2016 61
Master and Slave System
Master unit can be used to control the individual unit or all units at the same time while slave
unit control itself only. It is suitable for single areas, single rooms or even multiple rooms with
very similar heat gain.
Zoned Control Units
Each indoor unit has its own individual temperature controller and each unit functions as
required to maintain the individual room temperature.
Variable refrigerant volume system
It is able to provide total versatility and each indoor unit may cool / heat independently of
each other.
4.3.4 Advantages and Disadvantages of Split Unit Air Conditioning System
Advantages Disadvantages
- Low initial cost and low noise
- Ease of installation
- Each system is totally independent
and has its own control of
temperature
- Maintenance (cleaning/change of
filters) is within the occupied space
- Limited air throw which can lead to
possible hot or cold spots
- Impact on building aesthetics of
large building if too many outdoor
units will spoil the appearance of the
building.
Building Services (BLD 60903 / ARC 2423): August 2016 62
4.4 Packaged Air Conditioning System
Packaged air conditioning system is a larger version of the window air conditioner. Unlike
window air conditioning system, it has a higher cooling capacity and it is usually able to cool
an entire house or a commercial building. The nominal capacities ranges from 3 tonne to 15
tonne. There are two possible arrangements with the package unit. In the first one, all the
components, namely the compressor, condenser, expansion valve and evaporator are
housed in a single box. The cooled air is thrown by the high capacity blower, and it flows
through the ducts laid through various rooms. In the second arrangement, the compressor
and condenser are housed in one casing. The compressed gas passes through individual
units, comprised of the expansion valve and cooling coil, located in various rooms.
Two types of packaged air conditioning system:
- Packaged Air Conditioners with Water Cooled Condenser
- Packaged Air Conditioners with Air Cooled Condenser
4.4.1 Packaged Air Conditioners with Water Cooled Condenser
The condenser is cooled by the water. The condenser is of shell and tube type, with
refrigerant flowing along the tube side and the cooling water flowing along the shell side. The
water has to be supplied continuously in these systems to maintain functioning of the air
conditioning system.
Figure: Components of Packaged Air Conditioners with Water Cooled Condenser
Source: (“What is packaged air conditioner? Types of Packged air Condtioners,” 2010)
Building Services (BLD 60903 / ARC 2423): August 2016 63
4.4.2 Packaged Air Conditioners with Water Cooled Condenser
The condenser of the refrigeration system is cooled by the atmospheric air. There is an
outdoor unit that comprises of the important components like the compressor, condenser
and in some cases the expansion valve. The outdoor unit can be kept on the terrace or any
other open place where the free flow of the atmospheric air is available. The fan located
inside this unit sucks the outside air and blows it over the condenser coil cooling it in the
process. The cooling unit comprising of the expansion valve, evaporator, the air handling
blower and the filter are located on the floor or hanged to the ceiling. The ducts coming from
the cooling unit are connected to the various rooms that are to be cooled.
Figure: Components of Packaged Air Conditioners with Water Cooled Condenser (Left)
Figure: Location of Diffuser in Packaged Air Conditioners with Water Cooled Condenser (Right)
Source: (“What is packaged air conditioner? Types of Packged air Condtioners,” 2010)
Building Services (BLD 60903 / ARC 2423): August 2016 64
4.5 Central Air Conditioning System
The central air conditioning plants or the systems are used when large buildings, hotels,
theaters, airports, shopping malls etc are to be air conditioned completely. There is a plant
room where large compressor, condenser, thermostatic expansion valve and the evaporator
are kept in the large plant room. They perform all the functions as usual similar to a typical
refrigeration system. However, all these parts are larger in size and have higher capacities.
The compressor is of open reciprocating type with multiple cylinders and is cooled by the
water just like the automobile engine. The chilled is passed via the ducts to all the rooms,
halls and other spaces that are to be air conditioned. Thus in all the rooms there is only the
duct passing the chilled air and there are no individual cooling coils, and other parts of the
refrigeration system in the rooms. The amount of chilled air that is needed in the room can
be controlled by the openings depending on the total heat load inside the room.
Two Types of Central Air Conditioning System
- Direct Expansion (DX) Type of Central Air Conditioning System
- Chilled Water Central Air Conditioning System
4.5.1 Direct Expansion (DX) Type of Central Air Conditioning System
The air used for cooling space is directly chilled by the refrigerant in the cooling coil of the air
handling unit. Since the air is cooled directly by the refrigerant the cooling efficiency of the
DX plants is higher. However, it is not always feasible to carry the refrigerant piping to the
large distances hence, direct expansion or the DX type of central air conditioning system is
usually used for cooling the small buildings or the rooms on the single floor.
Figure: Components of Direct Expansion (DX) Type of Central Air Conditioning System
Source: (“Direct expansion (DX) type of central air conditioning plant or system,” 2009)
Building Services (BLD 60903 / ARC 2423): August 2016 65
4.5.1 Chilled Water Central Air Conditioning Systems
The ordinary water or brine solution is chilled to very low temperatures of about 6 to 8
degree Celsius by the refrigeration plant. This chilled water is pumped to various floors of the
building and its different parts. In each of these parts the air handling units are installed,
which comprise of the cooling coil, blower and the ducts. The chilled water flows through the
cooling coil. The blower absorbs return air from the air conditioned rooms that are to be
cooled via the ducts. This air passes over the cooling coil and gets cooled and is then
passed to the air conditioned space.
Figure: Components of Chilled Water Central Air Conditioning Systems
Source: (“Chilled water central air conditioning plants,” 2009)
4.5.2 Advantages and Disadvantages of Central Air Conditioning System
Advantage Disadvantage
- Filter air prevents potentially harmful
gases
- Higher energy bill
- Frequent duct maintenance
- Ductwork installation is a major
renovation that involves opening up
walls and floors
- Unable to control temperature
individually
Building Services (BLD 60903 / ARC 2423): August 2016 66
4.6 Proposed Air Conditioning System
Split Unit Air Conditioning System
Variable Refrigerant Flow (VRF) with Master and Slave System
Justification
The building design is in a clustered form as there are several rooms that connected and
clustered together. The second floor is an open space, therefore, air conditioning system is
not needed on the second floor. VRF is a multi-split air conditioning system that one outdoor
unit connects to several indoor units, therefore, it can ​reduce ​the amount of ​outdoor units
that affect the aesthetic of the building. The aesthetic of the building may be affected if too
many ductless split unit air conditioners are used because the outdoor units are located right
outside of the wall where it is near to the indoor unit. In addition, ​low noise output​ which is
suitable for elderly that need a quiet environment in the elderly care centre. The ​ease of
installation and maintenance​ that is appropriate for medium scale centre. Furthermore,
master unit​ can be used to control the ​individual unit or all units at the same time​ while
slave unit control itself​ only. It is suitable for single areas, single rooms or even multiple
rooms with very similar heat gain.
The Location of Outdoor Units
Outdoor Unit:
The outdoor unit is located in the open space on the terrace so that the air can flow freely
over the compressor and the condenser. The location of outdoor unit that it is easily
accessible for carrying out the maintenance works of the compressor, condenser, and other
devices. The installation and gas charging also should be convenient. There are any
hindrances in front of the outdoor that would block the passage of fan air from passing to the
open space. Any blockages will seriously affect the performance of the air conditioner and
can also lead to the burning of hermetically sealed compressor coil. The outdoor unit is
located at the height above the indoor unit.
Building Services (BLD 60903 / ARC 2423): August 2016 67
Ground floor plan First floor plan
Second floor plan
Building Services (BLD 60903 / ARC 2423): August 2016 68
Chapter 5: Mechanical Ventilation System
Ventilation is a process of exchanging air, includes both replacing air from outside or circulating air
within a space. It is important in obtaining healthy and comfort condition. Ventilation helps to prevent
heat concentration and air humidity. Mechanical ventilation can thus provide a good air quality condition.
Besides, mechanical ventilation is much more controllable compare to the natural ventilation. Relying on
airflow via openings through walls, windows or roof, there’s no control of the source and the amount of
airflow.
The elderly home is a residential building of 3 floors consist of kitchen, living space, meditation, rest
room… tbc
5.1 Type Of Mechanical Ventilation System Applied
5.1.1​ ​Supply Ventilation
5.1.2 Exhaust Ventilation
Ground Floor Plan First Floor Plan
Figure: Indications of the locations of supply and exhaust ventilation.
Building Services (BLD 60903 / ARC 2423): August 2016 69
5.1.1 Supply Ventilation
● Supply Air Diffuser/ Grille/ Fan
Its the supply ventilation system applied at which central fans are installed to a building to bring
in the external air and supply fresh air through air grille into an internal space.
5.1.1.1 Component Of Supply Ventilation
Ceiling Fan
A ceiling fan is a ​mechanical fan​, serves the purpose of removing hot, humid, polluted air. It’s often used
to bring in external air into internal spaces to cool down the building temperature. One of the major
supply ventilation system in mechanical ventilation, it help to keep the fresh air circulating within the
internal spaces.
Wall Mount Fan
Installed in exterior walls and pull air directly outside. These fans do not need ductwork, but might have
a visible register. Apply at the exterior of corridor to provide air ventilation during mid day.
Building Services (BLD 60903 / ARC 2423): August 2016 70
Supply Air Diffuser/ Grille
A diffuser is "a device for reducing the velocity and increasing the static pressure of a fluid passing
through a system”. Diffusers are used to slow the fluid's velocity while increasing its static pressure. The
fluid's static pressure rise as it passes through a duct is commonly referred to as pressure recovery.
Building Services (BLD 60903 / ARC 2423): August 2016 71
5.1.2 Exhaust Ventilation
● Exhaust Air Grille/ Fan
Its the exhaust ventilation system applied at spaces which are installed to a building to vacuum internal
air through air grille to an external space.
5.1.2.1 Component Of Exhaust Ventilation
Range-Hood Exhaust Fan
The fan draws the air into the hood, through the grease duct, through the air purifier (if present), and
discharges the air out of the building to the outdoors. Kitchen Exhaust is always discharged outdoors; it
is never recycled back into the building.
Ceiling Mounted Exhaust Fan
Toilet exhaust systems remove harmful fumes and unpleasant odors from the bathroom. A clean toilet
exhaust system will ensure a comfortable climate within an enclosed area.
Building Services (BLD 60903 / ARC 2423): August 2016 72
Chimney Style
These fans work essentially like a self-contained hood except that they have a decorative chimney-like
extension that conceals the exhaust duct above the collector. Fans can be just above the hood or
installed some distance away, minimizing noise. Chimney-style hoods can be mounted on a wall or over
a cook surface in a kitchen island.
UBBL:
MS 1525 code 8.4.5 Mechanical Ventilation Control
“Each mechanical ventilation system (supply/exhaust) should be equipped with a readily accessible
switch or other means for shut down or volume reduction when ventilation is not required. Example of
such devices would include timer switch control, thermostat control, duty cycle programming and
CO/CO2 sensor control”
Building Services (BLD 60903 / ARC 2423): August 2016 73
Chapter 6: Mechanical Transportation System
Mechanical transportation system is an integral part of modern buildings, used to move goods and
people vertically or horizontally between floors. Common types of transportation system such as lifts,
elevators help to reduce energy and save a lot of time.
6.1 Vertical Transportation System
Vertical transportation systems include all kinds of transportation media within buildings, such as
elevators, escalators, hydraulic hoists, and passengers conveyors etc. It may be considered the most
important building services system for high-rise buildings.
6.1.1 Elevator
An elevator is a type of vertical transport equipment that efficiently moves people or goods between
floors (levels, decks) of a building, vessel or other structures. Elevators are generally powered by electric
motors that either drive traction cables or counterweight systems like a hoist, or pump hydraulic fluid to
raise a cylindrical piston like a jack.
According to ​UBBL 1984 clause 124​, a lift shall be used for non-residential buildings that exceed 4
stories above or below main entrance. It is also essential in buildings less than 4 storeys if access for
older or disabled people is considered. It is introduced to bring convenience to the users by allowing
them to access varies levels which saves time and energy.
The quality of elevator performance is determined by a few factors:
● The hoisting capacity
● Waiting interval
● Acceleration rate of the car
● Speed of the lift
● Time taken for passengers to enter and leave the lift
There are, in general, two major categories of elevators, namely electric elevators and hydraulic
elevators. For this project, the Elderly Care Center, hydraulic elevator is chosen and applied in the
building.
Building Services (BLD 60903 / ARC 2423): August 2016 74
6.2 Hydraulic Elevators
Buildings up to about (1 to 3) storeys typically use hydraulic elevators because of their lower initial cost.
The conventional hydraulic elevator car is raised and lowered by means of a movable rod rigidly fixed to
the bottom of the car. The absence of cables, drums, traction motors, elaborate controllers, safety
devices, and penthouse equipment makes this system inherently inexpensive and often the indicated
choice for low-speed (up to 1m/s), low rise (up to 20m) applications, where construction of the plunger
pit does not present difficulties, and/or the absence of a penthouse is desirable. The components of a
typical hydraulic unit are shown in Figure 6.2.
Figure: Phantom view of a conventional “holed” hydraulic elevator. (Source:
http://www.skodtecelevators.com/hydraulic-elevator.php)
Building Services (BLD 60903 / ARC 2423): August 2016 75
Characteristics of Hydraulic Elevator
● Used for low-rise applications of 2-8 storeys
● Travel at a maximum speed of 61m per minute
● The machine room is located at the lowest level adjacent to the elevator shaft
● Suitable for goods lifting, lifts for hospital and old folk’s home
Benefits of Hydraulic Elevator
Noise
● Noise source can be placed in the machine room far away from the shaft
Design and space
● Smaller space requirement in the shaft
● Flexible machine room location
● A great deal of design freedom for architects
● No constraints on doorways or the shape of the car
Safety
● Emergency evacuation procedures are very simple and completely safe
● Much safer when used in earthquake zones
● Safety during service and repair work, since there is no moving counterweight
Maintenance and service
● Low-maintenance drive technology
● No wear on pulleys and ropes
● Replacement parts are seldom needed
● Free choice of maintenance companies
● Drive is easy accessible
Installation
● Simple and economical assembly
● Hydraulic elevators are particularly suitable for projects where retrofitting is involved
Costs
● More cost effectiveness
● Operation is simple - lower maintenance cost
● The load imposed is lower compared to electric traction lift - reduce structural cost
Building Services (BLD 60903 / ARC 2423): August 2016 76
6.3 Roped Hydraulic Elevators
Where drilling a plunger hole present difficulties, a hydraulic installation using a roping arrangement can
be used. The roped hydraulic arrangement is fairly simple because it uses only a single moving jack
section, compared to two or even three in a telescoping unit for the same rise. It accomplishes this by
using 2:1 roping, which means that the car travels twice as far as the piston. This is accomplished by
passing the rope over a pulley in the piston crosshead. One end of the rope is attached to a fixed point
in the pit below the car, and the other end is attached to the base of the car (Figure 6.3). The piston lifts
the crosshead, which in turn lifts the car twice as far.
The cantilevered car is lifted by cables from the cable crosshead, which is in turn lifted (and lowered) by
the single section telescoping piston. The 2:1 roping arrangement lifts the car twice as far as the piston
travels. The power unit, which includes the oil tank, pumps, and control, is usually mounted at the lower
level. Control is automatic, including automatic leveling.
Building Services (BLD 60903 / ARC 2423): August 2016 77
Figure: Low-rise residential-type elevator of the roped hydraulic type. (Source:
http://www.electrical-knowhow.com/2012/04/hydraulic-elevators-basic-components.html)
The arrangement shown in Figure 6.3 uses a single jack and a cantilevered car. The simplicity and
reliability of the single-jack roped arrangement have made it by far the most common choice for low-rise,
light- to medium-duty hydraulic elevators. Because it is a roped unit, it is equipped with a slack-rope
safety in addition to the other safeties used on direct-connected hydraulic systems.
Building Services (BLD 60903 / ARC 2423): August 2016 78
Conclusion
Complying to the function of the building as an elderly centre, proper considerations were taken when
designing the building services for the elderly centre. Considerations such as accessibility, effectiveness,
and maintenance were taken into account with reference to the Uniform Building By-Laws (UBBL) to
make sure the building complies to the By-Law requirement and is safe to be used over a long period of
time.
Having elderlies as our main users of the building systems, extra care are given to ensure the
safety of the elderlies when using the systems. The conditions of the systems are regularly maintained
and patrolled by responsible units to maintain the efficiency and workability of all systems. Conditions of
all equipment should be kept up to date and to be replaced when necessary.
Through this assignment, we’ve gained basic knowledge of each system and understand the
function and significance of each system. Also, we are able to put each system in place according to the
requirement and also the needs of the user.
Building Services (BLD 60903 / ARC 2423): August 2016 79
References
Board, L. R., & International Law Book Services Malaysia (2003). ​Uniform building by-laws, 1984 [G.N.
5178/85] (as at 5th July 1993). Petaling Jaya, Selangor Darul Ehsan: International Law Book Services.
Grondzik, W. T., Kwok, A. G., Stein, B., & Reynolds, J. S. (2009). ​Mechanical and electrical equipment
for buildings (11th ed.). Chichester, United Kingdom: Wiley, John & Sons.
Truwit, J. D., & Epstein, S. K. (Eds.). (2011). ​A practical guide to mechanical ventilation. United States:
Wiley-Blackwell.
Press, A., & Grondzik, W. (2007). ​Air conditioning system design manual (Ashrae special publications)
(2nd ed.). Atlanta, GA: American Society of Heating, Refrigerating and Airconditioning Engineers.
Arora, C. P., & Arora (1999). ​Refrigeration and air conditioning (2nd ed.). New Delhi: Tata McGraw-Hill
Pub. Co.
Aker, J. M. (n.d.). The Basics of Passive Fire Protection. Retrieved November 19, 2016, from
http://www.buildings.com/article-details/articleid/5851/title/the-basics-of-passive-fire-protection-
Ananthanarayanan, P. N. (2005). ​Basic refrigeration and air conditioning (2nd ed.). New Delhi:
McGraw-Hill Inc.,US.
Cornwall Fire & Rescue Service. (June, 16). Passive and Active Protection. Retrieved November 19,,
2016, from
https://www.cornwall.gov.uk/community-and-living/cornwall-fire-and-rescue-servicehomepage/business-f
ire-safety/protecting-your-building/passive-and-active-protection/
Exhaust Fan Ventilation System Design, Installation, Troubleshooting. (2016). Inspectapedia.com.
Retrieved 19 November, 2016, from
http://inspectapedia.com/BestPractices/Ventilation_Exhaust_Only.php
Fike (n.d.). CO2 Fire Suppression System, Fire Suppression Solutions. Retrieved from
http://www.fike.com/products/co2-fire-suppression-system/
Firewize (n.d.). Fire Control Centres. Retrieved from
http://firewize.com/book/technical-data/firecontrol-centres
Health and Safety Executive. Active & Passive Fire Protection. Retrieved November 19, 2016, from
http://www.hse.gov.uk/comah/sragtech/techmeasfire.htm
Health and Safety Executive. General fire safety. Retrieved from
http://www.hse.gov.uk/construction/safetytopics/generalfire.htm
Building Services (BLD 60903 / ARC 2423): August 2016 80
Inc, B. H. (2008, June 5). Types of air conditioning systems: Window, split, packaged and central.
Retrieved November 19, 2016, from
http://www.brighthubengineering.com/hvac/897-types-of-air-conditioning-systems/
Inc, B. H. (2009, November 8). Installation of the split air conditioners: Deciding the location of indoor
and outdoor units. Retrieved November 19, 2016, from
http://www.brighthubengineering.com/hvac/45249-indoor-and-outdoor-installation-of-split-air-conditioner
s-deciding-the-location/
Mechanical Ventilation in Buildings – What You Need to Know - TheGreenAge. (2015). TheGreenAge.
Retrieved 22 June 2016, from
http://www.thegreenage.co.uk/mechanical-ventilation-in-buildings-whatyou-need-to-know/
Natural Ventilation | Sustainability Workshop. (2016). Sustainabilityworkshop.autodesk.com. Retrieved
22 June 2016, from http://sustainabilityworkshop.autodesk.com/buildings/natural-ventilation
Osafe Fire Inspection (n.d.). Fire Extinguisher. Retrieved from
http://osafefi.com/?ws=pages&pages_id=4228
Passive Fire Protection. (n.d.). Retrieved November 19, 2016, from
http://www.firesafe.org.uk/passive-fire-protection/
Patent application (n.d.). Smoke curtain. Retrieved from
http://www.patentsencyclopedia.com/app/20090266498 Protec.
Wet/Dry Riser Systems. Retrieved from
https://www.protec.co.uk/product-page/sprinklers-andwater-mist/product/product/wet-dry-riser-systems/
See all Applications. (n.d.). Fire Hydrant Systems. Retrieved from
https://www.allpumps.com.au/applications/fire-hydrant-systems
Protection. Retrieved Jun 8, 2016, from
http://www.sharpfibre.com/blog/5/examining-the-relationshipbetween-active-and-passive-fire-protection
Spectrumfire. Fire Hose Reel System.Retrieved from
http://www.spectrumfire.com/products/fire-hosereel-system
Supply Ventilation. (2016). Greenbuildingadvisor.com. Retrieved 22 June 2016, from
http://www.greenbuildingadvisor.com/green-basics/supply-ventilation
Supremexfireextiguisher. Fire Extinguisher, A B C Type Dry Powder Fire Extinguisher, CO2 Fire
Extinguisher. Retrieved from ​http://www.supremexfireextinguisher.com/fireextinguisher.html
Building Services (BLD 60903 / ARC 2423): August 2016 81
Wormald. (n.d.). Fire Sprinkler Systems, Fire Sprinkler System, Automatic Sprinkler Systems.Retrieved
from https://www.wormald.com.au/systems/fire-sprinkler-systems
Electrical-knowhowcom. (2016). Electrical-knowhowcom. Retrieved 20 November, 2016, from
http://www.electrical-knowhow.com/2012/04/hydraulic-elevators-basic-components.html
Springercom. (2016). Springercom. Retrieved 20 November, 2016, from
http://link.springer.com/chapter/10.1007/978-1-4615-5019-8_4
Howstuffworkscom. (2002). HowStuffWorks. Retrieved 21 November, 2016, from
http://science.howstuffworks.com/transport/engines-equipment/elevator1.htm
Building Services (BLD 60903 / ARC 2423): August 2016 82

Building Services_Project_02

  • 1.
    BUILDING SERVICES SYSTEMS FOR ELDERLYCARE CENTRE Building Services BLD 60903/ ARC 2423 Prepared by: ​Ang Wei Yi 0317885 Chan Yi Qin 0315964 Joyce Wee 0319602 Kan Sook San 0319326 Tan Wing Hoe 0319333 Too Mun Fai 0318214 Tutor: Ar. Sateerah Hassan
  • 2.
    Table of Contents Chapter1: Introduction to The Building Chapter 2: Literature Review 2.1 Fire Protection System 2.1.1 Active Fire Protection System 2.1.2 Passive Fire Protection System 2.2 Air Conditioning System 2.3 Mechanical Ventilation System 2.3.1 Ventilation 2.3.2 Mechanical Ventilation 2.3.3 Comparison Of Supply, Exhaust and Balance system 2.4 Mechanical Transportation System Chapter 3: Fire Protection System 3.1 Active Fire Protection System 3.1.1 Fire Detection 3.1.2 Fire Alarm System 3.1.3 Fire Control Panel 3.1.4 Fire Intercom System 3.1.5 Fire Hydrant System 3.1.6 Portable Fire Extinguisher 3.2 Passive Fire Protection System 3.2.1 Emergency Fire Escape 3.2.2 Vehicular Access 3.2.3 Fire Barrier 3.2.4 Fire Control Building Services (BLD 60903 / ARC 2423): August 2016 1
  • 3.
    Chapter 4: AirConditioning System 4.1 Major Cycles in Air Conditioning System 4.2 Window Unit Air Conditioning System 4.3 Split Unit Air Conditioning System 4.4 Packaged Air Conditioning System 4.5 Central Air Conditioning System 4.6 Proposed Air Conditioning System Chapter 5: Mechanical Ventilation System 5.1 Types of system 5.1.1 Supply Ventilation 5.1.2 Exhaust Ventilation Chapter 6: Mechanical Transportation System 6.1 Vertical Transportation System 6.1.1 Elevator 6.2 Hydraulic Elevators 6.3 Roped Hydraulic Elevators Chapter 7: Conclusion and References Building Services (BLD 60903 / ARC 2423): August 2016 2
  • 4.
    Chapter 1: Introductionto Building Site plan Scale : 1 : 400 In our Design Studio IV, we were required to design and propose an elderly care centre that is no more than 800 square meters in area. The centre also needs to have a specified variety of programs, such as lobby, cafeteria, game room, sewing room and washroom. We had to comply to the standard anthropometry requirements for the elderly and disabled to make sure that they can move around freely and comfortably. Another design requirement is our elderly centre must not use flat roof. For our elderly centre, we tilted the orientation of our main building and also courtyard to face the morning sun and and also to block out the hot afternoon sun on the opposite facade. We attempt to use as much passive design elements to ensure our centre is sustainable and energy efficient, and also to expose the elderly to the natural elements such as the sunlight, wind and fresh air. The service facilities are packed together in the centre of the main block where most of the main programs are located, hence providing a practical and functional circulation for the elderly and staff. Building Services (BLD 60903 / ARC 2423): August 2016 3
  • 5.
    Chapter 2: LiteratureReview 2.1 Fire Protection System The purpose of fire protection is to safeguard human lives, preserve material assets and save the environment from devastation. Fire protection system can be categorized into 2 classifications: active fire protection system and passive fire protection system. Active fire protection system is simply the method of fire fighting by using either manual or automatic fire mechanical system such as fire alarms, detectors, hose reels, fire telecoms, sprinklers etc. Passive fire protection system on the other hand retards the combustion and spreading of smoke and at the same time protecting the escape route to prolong the time for evacuation. This system can be done by modifying architectural elements and design with fire resistances characteristics. 2.1.1 Active Fire Protection System Active Fire Protection is a group of systems that require some amount of action or motion in order to work efficiently in the event of a fire. Actions may be manually operated, like a fire extinguisher or automatic, like a sprinkler, but either way they require some amount of action. Active Fire Protection includes fire and smoke alarm systems, sprinkler systems, and fire extinguishers as well as firefighters. Fire and smoke alarm systems are used to detect whether there is fire and smoke in a building. Fire extinguishers and firefighters are used to help put out the fire altogether. These systems are an extremely important part of protecting property and the lives of the people within. Building Services (BLD 60903 / ARC 2423): August 2016 4
  • 6.
    2.1.2 Passive FireProtection System Passive fire protection (PFP) is a form of fire safety provision that remains dormant, or inert, during normal conditions but becomes active in a fire situation. It is an integral component of structural fire protection in a building, which is designed to contain fires or slow their spread. The purpose of PFP is to contain the spread of fire for sufficient time to permit i) the safe evacuation of all occupants of the premises and ii) the arrival of the fire brigade. The person responsible for fire safety also has a duty of care towards any members of the emergency services, e.g. fire fighters, who may have to enter the premises during the course of a fire; in slowing the spread of flames, smoke and hot gases, PFP also serves to ensure the building remains as safe as possible for entry in this situation. How is it implemented in buildings? PFP provision is required in all buildings, whether domestic or non-domestic, with the purpose of containing / compartmentalising / retarding the spread of fire. In respect of internal fire spread (structure) ● Where reasonably necessary to inhibit the spread of fire within the building, measures shall be taken, to an extent appropriate to the size and intended use of the building, comprising either or both of the following: (a) sub-division of the building with fire-resisting construction; (b) installation of suitable automatic fire suppression systems. ● The building shall be designed and constructed so that the unseen spread of fire and smoke within concealed spaces in its structure and fabric is inhibited. Examples of PFP 1. Fire doors, whose purpose is to contain a fire / protect a designated fire escape route, should be fitted with intumescent ​fire and smoke seals​, either around the edges of the door leaf or the frame. These seals are an integral part of a fire door structure and ensure that, not only is the spread of fire prevented, but also and more importantly the ingress of cold smoke in the early stages of a fire. Smoke is known as the silent killer as it can overwhelm the occupants of an enclosed area long before the heat and flames of a fire are sensed. 2. Intumescent air transfer grilles. The hot gases of a blaze can also move swiftly around a building, undetected at first, for example through air conditioning ducts. Air transfer grilles, which are typically 30 or 60 minute fire rated, allow air to circulate freely around a building under normal conditions, but the intumescent material swells and creates a barrier to restrict the passage of hot gases in a fire situation. They are suitable for use with both fire rated doors and compartment walls. Building Services (BLD 60903 / ARC 2423): August 2016 5
  • 7.
    3. Intumescent pipewraps and collars are designed for use on plastic pipes that pass through masonry floors and walls; the intumescent material expands inwards in a fire situation to squeeze the collapsing pipe until the opening is completely sealed. 4. Intumescent downlighter covers and fire hoods / canopies for recessed light fittings prevent fire from penetrating the ceiling void and thus preserve the fire resistant integrity of the ceiling; they are typically 30 or 60 minutes fire rated. 5. Intumescent socket box. Electrical sockets in walls and skirting boards are another vulnerable point in a fire rated compartment; intumescent socket box inserts / covers expand to fill the electrical box in a fire, preventing the spread of flames, smoke and hot gases. 6. Testing and certification When choosing PFP products, it is important to ensure that they have been tested to the relevant and current British standard: for example, BS476: 1987 (Fire tests on building materials and structures) Part 20 (Method for determination of the fire resistance of elements of construction – general principles) and Part 22 (Methods for determination of the fire resistance of non-loadbearing elements of construction). Building Services (BLD 60903 / ARC 2423): August 2016 6
  • 8.
    2.2 Air ConditioningSystem Malaysia has a tropical rainforest climate which being hot and humid throughout the year. Due the moderate outdoor air quality caused by the industrial development, it has affected the indoor air quality as well. Thus, thermal comfort is one of the significant factors that affect the building design. Thermal comfort is defined as the condition of mind that expresses satisfaction with the thermal environment and is assessed by the subjective evaluation. The application of air conditioning system in Malaysia is needed to achieve the optimal air temperature, air humidity and air cleanliness for the occupants. Air conditioning system produces cool ventilation inside the building in which the heat is taken out from the surroundings to allow the release of chilled air. Its function is to: ● Adjust the air temperature and air humidity to maintain the human comfort level ● Filter and remove the air microorganisms, dust and soot effectively ● To lower the internal heat gain from electrical appliances and occupants There are four types of air conditioning system that are commonly used for different applications. ● Window unit air conditioning system ● Split unit air conditioning system ● Packaged unit air conditioning system ● Centralized air conditioning system The choice of which air conditioner system to use depends upon a number of factors including the size of the area is to be cooled and the total heat generated inside the enclosed area. From the analysis of the designed elderly care centre, ​variable refrigerant flow with master and slave system from split unit air conditioning system is the most appropriate and effective way to ensure the thermal comfort level for the occupants in medium scale building that is located in a residential area. Building Services (BLD 60903 / ARC 2423): August 2016 7
  • 9.
    2.3 Mechanical VentilationSystem Mechanical ventilation can be found in various systems according to the function of the space. There are three type of system, which are supply ventilation system, exhaust ventilation system and balanced ventilation system. 2.3.1 Ventilation Natural Ventilation ● Natural ventilation is the process of supplying and removing air through an indoor space by natural means, meaning without the use of a fan or other mechanical system. ● It uses outdoor air flow caused by pressure differences between the building and its surrounding to provide ventilation and space cooling. Mechanical Ventilation ● A building ventilation system that uses powered fans or blowers to provide fresh air to rooms when the natural forces of air pressure and gravity are not enough to circulate air through a building. ● Mechanical ventilation is used to control indoor air quality, excess humidity, odours, and contaminants can often be controlled via dilution or replacement with outside air. However, in humid climates specialised ventilation systems can remove excess moisture from the air. Figure: Examples of mechanical system (Source: http://energy.gov/energysaver/whole-house-ventilation) Building Services (BLD 60903 / ARC 2423): August 2016 8
  • 10.
    2.3.2 Type ofmechanical ventilation system Exhaust Ventilation System Exhaust fans (kitchen, bathroom, and/or whole-house fans) tend to “depressurize” the building, causing infiltration of outside air through any cracks or openings it can find. In the North, where winter is more intense than summer, exhaust-only ventilation may be adequate without inviting damage from moisture. Because summers tend to be short and moderate in cold climates, except for a few days, the building is unlikely to be damaged by occasionally drawing in very hot and humid air through the structure. Conversely, exhaust-only ventilation strategies should not be used in the South. If hot and humid air is drawn into the building for months on end, condensation, mold, and damage are likely to develop. Figure: Exhaust ventilation air flow diagram (Source: http://energy.gov/energysaver/whole-house-ventilation) Building Services (BLD 60903 / ARC 2423): August 2016 9
  • 11.
    Supply Ventilation System Supplyventilation systems draw clean outside air into the interior living space, usually through a supply vent that feeds into the return duct of a forced air system. Advantages of supply-only ventilation include the ability to control where incoming air is coming from, treat the incoming air, and minimize humid air that is pulled into the living space. Controlled supply also minimizes the potential for combustion appliance backdrafting, a dangerous type of uncontrolled infiltration that is more common in well-sealed and poorly vented basements. Supply-only strategies will “pressurize” the house, which keeps moisture out in hot, humid climates but may cause moisture to condense in walls in cold climates as warm air escapes to the outside. This can be very damaging. Figure: Supply ventilation air flow diagram (Source: http://energy.gov/energysaver/whole-house-ventilation) Building Services (BLD 60903 / ARC 2423): August 2016 10
  • 12.
    Balanced Ventilation System Ina balanced ventilation system (also known as combined ventilation), both the supply air and the exhaust air is done mechanically. The air pressure of the room is in neutral state. As the pressure created by the supply air is then depressurized by the exhaustion of air. This system is known as the most efficient way in ventilating the air as it is independence of outdoor weather despite of noisy environment and high installation cost. The combination of system requires two ducts and fan system. This system usually applied in the area where natural ventilation hardly accesses or hard to control such as basement and suitable for all climates. Figure: Combined ventilation air flow diagram (Source: http://energy.gov/energysaver/whole-house-ventilation) Building Services (BLD 60903 / ARC 2423): August 2016 11
  • 13.
    2.4 Mechanical TransportationSystem Mechanical transport provides means of raising and lowering people or goods in a building between floors, which used to save time and energy consumption as compared to staircase. There are two kinds of mechanical transportation system, mainly vertical transportation and horizontal transportation. Where common vertical transportation system is elevator and escalator; horizontal transportation system is travelator. Figure: Vertical Transportation: Elevator (Inside the Building Technology, www.cleantechnotes.org/2013) Figure: Vertical Transportation: Escalator (Castle Lifts, http://www.castle-lifts.com) Building Services (BLD 60903 / ARC 2423): August 2016 12
  • 14.
    Figure: Horizontal Transportation:Travelator (Pay Poster, http://payposter.com/poster/travelator-escalator-1327601) In mid-rise commercial building (4 storeys and above), an elevator must be introduced to ease the usage for disabled people where it is equipped with Braille System. While usage of escalator in shopping malls and airports allows maximum efficiency due to continuous transfer of traffic. Zoning of lift is presented mostly in high rise building, as it is divided into three section of low, mid, and high; it is categorized into express and local. Such design increases the transfer capacity and lower the waiting time in peak hour. The use of elevator has evolved into a greater subject as it creates better sound insulation, luxurious interior, and lighting. Horizontal transportation has its restriction to transfer its passenger for merely on the same floor in a lower speed. This type of transportation is used in long spaces or between connecting bridge to decrease energy consumption. Besides the standard prerequisites in designing a good layout for mechanical transportation, special provisions must be made to enable access for older and disabled people through means only available by utilizing mechanical transportation system. It is also of utmost importance to consider its integration with other services, fire escape, fire protection and meticulous maintenance of the system. This project nevertheless, is a small scaled low-rise building (1-3 storeys), thus of the mechanical transportation systems that the Elderly Care Center employs is the vertical transportation, elevator system. Building Services (BLD 60903 / ARC 2423): August 2016 13
  • 15.
    Chapter 3: FireProtection System 3.1 Active Fire Protection System The fire protection system in a building always go through a few stages, which is the detection stage, the notification stage and action-taking stage. When there is a fire in a building, we need early detection in order to prevent further damage to both people and building. The active fire protection system in the building can be thoroughly explained through the fire protection chart flow below. Figure: Active fire protection chart flow Building Services (BLD 60903 / ARC 2423): August 2016 14
  • 16.
    Figure: Active fireprotection system applied in the building. Building Services (BLD 60903 / ARC 2423): August 2016 15
  • 17.
    3.1.1 Fire Detection 3.1.1.1Smoke Detector There are two main types of smoke detectors connected to a fire alarm system; Ionization smoke detectors and Photoelectric smoke detectors. ​Ionization smoke detectors are best used for sensing fast flaming fires that give off very little smoke. Photoelectric smoke detectors are best used where slow smouldering fires with thicker smoke might occur. ​A combination of both types of smoke detectors should be installed within a fire alarm system. There are other differing smoke detectors called Multi Criteria smoke detectors. These smoke detectors can have a Photoelectric detector and Heat detector within the same detector. There are also CO2 Detectors which sense for carbon monoxide. ​There are also other multi criteria detectors which have photo smoke detection, heat detection, infrared detection etc all in the same detector. Ionization Smoke Detector Figure: Diagram of Ionization smoke detector in which smoke particles break the circuit. A typical ionization smoke detector typically consists of two plates in close proximity to each other and a radioactive source. Both plates are connected with a battery, which applies voltage to the plates. Consequently, one plate is charged positively (+) and the other one negatively (-). The radioactive source constantly releases alpha particles that knock off the electrons from the surrounding air atoms, thus ionizing the nitrogen and oxygen atoms within the detector chamber. The positively-charged ions are attracted to the negative plate whereas the negatively-charged ions are attracted to the positive plate, thus creating a small, continuous electric current. This small ionization current that can be easily measured by electronic circuitry which is connected to the plates. Building Services (BLD 60903 / ARC 2423): August 2016 16
  • 18.
    How do ionisationsmoke detectors exactly work in presence of smoke? When smoke molecules enter the ionization chamber, the smoke particles attach to the ions and neutralize them. Consequently, the total number of ionized particles in the chamber is reduced. This reduction yields a decrease in the chamber current that is sensed by the electronic circuitry. The drop of current between the plates triggers an alarm. An externally visible red LED lights up when the detector alarm state is energised. Figure: Example of ionization smoke detector. UBBL 1984 Section 153: Smoke detectors for lift lobbies. 1. All lift lobbies shall be provided with smoke detectors. 2. Lift not opening into a smoke lobby shall not use door reopening devices controlled by light beam or photo-detectors unless incorporated with a force close feature which after thirty seconds of any interruption of the beam causes the door to close within a preset time. Building Services (BLD 60903 / ARC 2423): August 2016 17
  • 19.
    Figure: Indications ofthe locations of smoke detector. Building Services (BLD 60903 / ARC 2423): August 2016 18
  • 20.
    3.1.2 Fire AlarmSystem 3.1.2.1 Alarm Bell Alarm bell is a device that creates loud alert sound. Its functions by means of an electromagnet, consisting of coils of insulated wire wound round iron rods. Once electric is applied, the current will flow through the coils. The rods will then become magnetic and attract a piece of iron attached to a clapper. Once the clapper hits the bell, it will create a repetitive loud ringing sound to alert people. Figure: Example of alarm bell. UBBL 1984 Section 237: Fire alarms. 1. Fire alarms shall be provided in accordance with the Tenth Schedule to these By-laws. 2. All premises and buildings with gross floor area excluding car park and storage areas exceeding 9290 square metres or exceeding 30.5 metres in height shall be provided with a two stage alarm system with evacuation (continuous signal) to be given immediately in the affected section of the premises while an alert (intermittent signal) be given in adjoining section. 3. Provision shall be made for the general evacuation of the premises by action of a master control. Building Services (BLD 60903 / ARC 2423): August 2016 19
  • 21.
    Figure: Indications ofthe locations of alarm bell. Building Services (BLD 60903 / ARC 2423): August 2016 20
  • 22.
    3.1.2.2 Manual CallPoint Manual Call Points are a manual way of activating a fire alarm system should a fire be noticed. Manual Call Points must be a two action device to activate and to stop unwanted activations. First you need to break the cover glass or plastic and then activate the switch. Once activated the fire alarm can only be reset at the FAP. Returning the switch to its normal location will not reset the fire alarm system. Figure: Example of manual call point. Building Services (BLD 60903 / ARC 2423): August 2016 21
  • 23.
    Figure: Indications ofthe locations of manual call points. Building Services (BLD 60903 / ARC 2423): August 2016 22
  • 24.
    3.1.3 Fire ControlPanel A fire control panel is a component that offers control through a fire alarm or notification system. Throughout the building, sensors are installed. These sensors redirect information to this control panel. They include environmental changes that could detect the presence of a fire. The panel receives notifications for potential operational issues with equipment that could cause a fire. Figure: Example of fire control panel. Building Services (BLD 60903 / ARC 2423): August 2016 23
  • 25.
    Figure: Indications ofthe locations of fire control panel. Building Services (BLD 60903 / ARC 2423): August 2016 24
  • 26.
    3.1.4 Fire IntercomSystem Fire intercom system is a two-way emergency voice communication system. It provides communication between remote telephone handsets located within the building and the master telephone hand-set at the fire command center. When the Fire Intercom System receives a call, the alert lamp will flash at the Master Control Panel and an audible signal can also be heard. To turn off the audible signal, simply lift the Remote Handset. There is also a Fault Indicator Unit, which is used to indicate the type of fault from the Master Control Panel. When the master control console has no incoming call, there will be an outgoing call straight to the fire station. Fire station will have to contact the fire command center immediately to contact to the management office. The fire intercom system is mostly placed at the staircase so that in any case of emergency, immediate alert can be sent to the master console. Occupants do not have to run all the way to the security room to announce the emergency. Figure: Example of fire intercom system. Building Services (BLD 60903 / ARC 2423): August 2016 25
  • 27.
    Figure: Indications ofthe locations of fire intercom system. Building Services (BLD 60903 / ARC 2423): August 2016 26
  • 28.
    3.1.5 Fire HydrantSystem 3.1.5.1 Dry Riser System Description Figure: Diagram of typical arrangement for dry riser system. Dry risers are a type of internal hydrant for the fireman to use. They are used only if the topmost floor of the building is higher than 18.3m and less than 30.5m above the fire appliance access level. Breeching inlets are used to connect the firemen pump water, so that water can provided at ground level and are connected to the bottom of the dry risers. Dry risers are usually dry and depend on the fire engine to pump water into the system through the breeching inlet outside the building. If fire happened, fire engine has to connect the pipe into the dry riser inlet. Hence, the inlet should not locate more than 18m from fire appliance access and not more than 30m from the nearest fire hydrant. There is no pump built internally within the premise, the pressure is totally depend on the fire engine from ground floor. Building Services (BLD 60903 / ARC 2423): August 2016 27
  • 29.
    Design Requirements 1. DesignStandards a. Part 1- Hydrant systems, hose reels and foam inlets b. Part 2- Landing valves for dry risers c. Part 3- Inlet breeching for riser inlets d. Part 4- Boxes for landing valves for dry risers 2. Landing Valve a. Provided in each floor and comply with landing valve for dry risers. b. Located at fire access lobbies, protected staircases and protected lobbies. c. Installed not more than 0.75m above floor level. d. To protect landing valves, box are provided. e. Fire hose not less 38mm diameter, 30m length, 60mm diameter and nozzle should be provided. 3. Breeching Inlet a. Fire brigade breeching inlet installed at bottom of riser should comply with inlet breeching. b. Breeching inlets enclosed within a box and labeled ‘Dry Riser Inlet’. c. Drain should be provided at bottom of riser to drain the system after use. d. Two-way breeching inlet should provided 100mm diameter dry riser. e. Four-way breeching inlet installed with 150mm diameter dry riser. f. Breeching inlets should located not more than 18m from appliance access road and not more 30m from near external hydrant outlet. 3. Riser Pipe a. Riser pipe diameter located within fire access lobby or staircase at 150m if highest outlet more than 22.875m above breeching inlet or otherwise pipe riser diameter is 100mm. b. Riser pipe will galvanised iron to heavy gauze or class c tested to 21 bar. c. Horizontal runs pipework feeding the risers should slope to enable proper draining. d. Air release valve should installed at top of riser to relieve air trapped. e. Riser pipe should electrically earthed or connected to building earth to avoid equipotential. Building Services (BLD 60903 / ARC 2423): August 2016 28
  • 30.
    UBBL 1984 Section230: Installation and testing of dry rising system. 1. Dry rising systems shall be provided in every building in which the topmost floor is more than 18.3 metres but less than 30.5 metres above fire appliances access level. 2. A hose connection shall be provided in each fire fighting access lobby. Building Services (BLD 60903 / ARC 2423): August 2016 29
  • 31.
    Figure: Indications ofthe locations of dry riser and breeching outlets. Building Services (BLD 60903 / ARC 2423): August 2016 30
  • 32.
    3.1.5.2 Hose ReelSystem Description Figure: Diagram of typical arrangement for hose reel system. Hose reel system is intended for the occupant to use during the early stages of fire and comprises hose reel pumps, fire water tank, hose reels, pipe work and valves. The hose reel system generally serves as an initial fire fighting aid. When the hose reel is brought into use the pressure in the pipe immediately downstream of the pump check valves will drops below the field adjusted pressure setting of the pressure switch thereby triggering the pump to comes into operation automatically to feed a steady supply of water to discharge through the hose. Fire fighting hose reel is the part which can be easily accessible. The fire hose reel outlets should be properly housed in glass fronted cabinet secured under lock and key. Design Requirements 1. Design Standards e. B.S. 5306: Part 1 or the equivalent Malaysian Standard f. M.S. 1447: Hose reels with semi-rigid hose g. Pr EN 694 : Semi-rigid hose for first aid fixed installation 2. Hose Reels a. Coverage range of 30m for each reel. b. One hose reel for every 800 sq.m space area. c. Usually located along escape routes or beside exit doors or staircases. d. Minimum discharge by each hose reel 30 l/m and 6m jet length. Building Services (BLD 60903 / ARC 2423): August 2016 31
  • 33.
    e. The rubberhoses should be comply with pr EN 694 standard and 30m in length and 25mm diameter. f. Nozzles should be of the jet and spray adjustable type of different diameters but 8mm is a recommended size. g. Pipework is generally 50mm diameter and the pipe feed to individual hose not less than 25mm diameter. h. Above ground pipework : minimum galvanised steel medium grade (Class B). i. Underground pipework : minimum heavy grade (Class C). j. Pipe painted with primer & finished with red paint (OR at least elbow and tee must be painted with red bands). UBBL 1984 Section 244 (b): Hydraulic Hose Reels Hose reel shall be located at every 45 meters (depends on building form). Besides, fire hose reel should be located at strategic places in buildings, especially nearer to fire fighting access lobbies in order to provide a reasonably accessible and controlled supply of water for fire extinguishing. Building Services (BLD 60903 / ARC 2423): August 2016 32
  • 34.
    Figure: Indications ofthe locations of hose reel cabinets. Building Services (BLD 60903 / ARC 2423): August 2016 33
  • 35.
    3.1.6. Portable FireExtinguisher Figure: Diagram of different types of fire extinguisher. 3.1.6.1 Dry Chemical Dry chemical fire extinguishers extinguish the fire primarily by interrupting the chemical reaction of the fire triangle. Today's most widely used type of fire extinguisher is the multipurpose dry chemical that is effective on Class A, B, and C fires. This agent also works by creating a barrier between the oxygen element and the fuel element on Class A fires. Ordinary dry chemical is for Class B & C fires only. Using the incorrect agent can allow the fire to re-ignite after apparently being extinguished successfully. Figure: Example of dry chemical portable fire extinguisher. UBBL Section 227: Portable extinguishers. Portable extinguisher shall be provided in accordance with the relevant codes of practice and shall be sited in prominent positions on exit routes to be visible from all directions and similar extinguishers in a building shall be of the same method of operation. Building Services (BLD 60903 / ARC 2423): August 2016 34
  • 36.
    Figure: Indications ofthe locations of portable fire extinguishers. Building Services (BLD 60903 / ARC 2423): August 2016 35
  • 37.
    3.2 Passive FireProtection System Passive Fire Protection is the use of fire barrier systems that are integrated into the structure of a building. Passive fire protection system plays a very crucial role in preventing/ slowing down the rate of spread of fire and protecting the occupants of the elderly centre in the event of a fire emergency. In this part of the chapter, we will be discussing about the details in the emergency fire escape, fire vehicular access, fire barrier and the fire control that is integrated in the passive fire protection system in the elderly centre. Building Services (BLD 60903 / ARC 2423): August 2016 36
  • 38.
    3.2.1 Emergency FireEscape 3.2.1.1 Emergency Exit Signage The emergency exit signs are exit indications for the occupants of the elderly centre during fire evacuation. The exit signs are located above all exits, fire rated doors, fire staircases and doorways that leads the occupants out of the building. Per UBBL and Malaysian Standards, fire escape doors must be indicated with neon green “EXIT” signs (​“KELUAR” as in Bahasa Melayu) above it, accompanied with emergency lights. In the event when the electrical supply is cut off when the fire alarms are triggered, the emergency exit signs will still be visible to lead the occupants to safety. Figure: Example of ‘Keluar” sign Figure: Indications of the locations of emergency exit signs. Building Services (BLD 60903 / ARC 2423): August 2016 37
  • 39.
    UBBL 1984, Section172: Emergency Exit Signs. 1. Storey exits and access to such exits shall be marked by readily visible signs and shall not be obscured by any decorations, furnishings or other equipment. 2. A sign reading “KELUAR” with an arrow indicating the direction shall be placed in every location where the direction of travel to reach the nearest exit is not immediately apparent 3. Every exit sign shall have the word “KELUAR” in plainly legible letters not less than 150 millimetres high with the principal strokes of the letters not less than 18 millimetres wide. 4. All exit sign shall be illuminated continuously during periods of occupancy. 5. Illuminated signs shall be provided with two electric lamps of not less than 15W each. Building Services (BLD 60903 / ARC 2423): August 2016 38
  • 40.
    3.2.1.2 Fire EvacuationRoute One of the most crucial aspects in passive fire protection is the design of the building. The elderly centre consists of 2 L-shaped blocks that forms an open courtyard in the middle. The 3m setback that surrounds the building is clear from obstructions to allow an escape path for the occupants in events of an emergency. At every level, there is a minimum of 2 storey exits to allow the occupants to escape from one if the other is blocked from hazards or fire. The evacuation routes of the building are protected by fire walls and doors to slow down the spreading of flame. They are also equipped with emergency lights and vents to allow safe travel to the open space at the ground level. Figure: Indicates the fire evacuation routes. Building Services (BLD 60903 / ARC 2423): August 2016 39
  • 41.
    UBBL 1984, Section165 (4): Measurement of travel distance to exits. The maximum travel distance to exits and dead end limits shall be as specified in the Seventh Schedule of these By-Laws. UBBL 1984, Section 169: Exit Route. No exit route may reduce in width along its path of travel from the storey exit to the final exit. UBBL 1984, Section 178: Exits for institutional and other places of assembly In buildings classified as institutional or places of assembly, exits to streets or large open space, together with staircases, corridors and passages leading to such exits shall be located, separated or protected as to avoid any undue danger to the occupants of the place of assembly from fire originating in the other occupancy or smoke therefrom. Conforming to the UBBL, 1. All exits are directed to the open spaces at the side of the building that leads to the assembly point. 2. The passageway is protected from fire and smoke. 3. The width of the escape path is consistent throughout the escape route to prevent clogging of human traffic during evacuation. Building Services (BLD 60903 / ARC 2423): August 2016 40
  • 42.
    3.2.1.3 Fire Stairsand Fire Lifts Fire stairs and lifts are vertical escape component of the evacuation route. It should be easily accessible from the inside and outside of the building. It is designed for emergency escapes while also allowing firemen to enter the building in an event of fire. In the elderly centre, there is a minimum of one fire stair in each building. The fire stairs are either at the exterior of the building or are well ventilated with vents. The fire stairs are all built with reinforced concrete covered with anti-slip ceramic tiles. Figure: Indicates the location of fire lifts and stairs Building Services (BLD 60903 / ARC 2423): August 2016 41
  • 43.
    UBBL 1984, Section165: Exits to be accessible at all times. Except as permitted by-law 167 not less than TWO separate exits shall be provided from each storey together with such additional exits may be necessary. UBBL 1984, Section 168: Staircases 1. Except as provided in bylaws 194, every floor shall have means of egress via at least 2 separate staircases. 2. Staircases should be at such width that in the event of any one staircase not being available for escape purpose the remaining staircases shall accommodate the highest occupancy load of any one floor discharging into it calculated in accordance with provisions in the Seventh schedule to these by-laws. 3. The required width of staircase shall be clear width between walls but handrails may be permitted to encroach on this width to a maximum of 75 millimetres. 4. The required width of staircase should be maintained throughout its length including at landings. 5. Doors giving access to staircases shall be so positioned that their swing shall at no point encroach on the required width of the staircase or landing. Building Services (BLD 60903 / ARC 2423): August 2016 42
  • 44.
    3.2.1.4 Assembly Point Inpassive fire protection system, all emergency escape routes must lead the occupants of the building to the outdoor assembly point. Due to the small scale of the elderly centre, there is only one assembly point, which is at the setback area away from the building. Figure: Indications of the Assembly Point UBBL 1984, Section 178: Exits for institutional and other places of assembly In buildings classified as institutional or places of assembly, exits to streets or large open space, together with staircases, corridors and passages leading to such exits shall be located, separated or protected as to avoid any undue danger to the occupants of the place of assembly from fire originating in the other occupancy or smoke therefrom. Building Services (BLD 60903 / ARC 2423): August 2016 43
  • 45.
    3.2.1.5 Emergency Light Duringa fire, all electric supply will be cut of to prevent the risk of an explosion. The emergency lights function automatically in the event of a power failure. It is fitted with charged battery to illuminate the fire escape routes. The level of illumination, quality and consistency of emergency illumination are important during the evacuation of occupants. Figure: Indications of the locations of Emergency Lightings Building Services (BLD 60903 / ARC 2423): August 2016 44
  • 46.
    3.2.1.6 Emergency EscapePlan Emergency Escape Plans are located at every fire escape doors. The plan indicates the fire lifts to prevent the occupants from using and being trapped in the regular lift in the event of a fire. The plan is highlighted with red and yellow to indicate the exit stairs and escape area respectively. Information such as the location of the manual breaking glass, fire alarm bells and fire extinguishers are also indicated on the emergency escape plan. Figure: Emergency Escape Plan. Building Services (BLD 60903 / ARC 2423): August 2016 45
  • 47.
    3.2.2 Fire FightingAccess 3.2.2.1 Vehicular Access Fire vehicle access around the building is very important as well in order for the fire trucks to get in place especially to the location nearby the fire hydrant for firefighting and rescue activities without any obstructions. The access must be wide enough and clear from any blockages to enable high reach appliances, such as the turntable ladders and hydraulic platforms, to be used and also to enable the pumping appliances to supply water and equipment for firefighting. In the elderly centre, the fire rescue trucks stops at the drop off area as it is unable to enter further into the bungalow lot. Fire fighters will enter the compound through the setback area at both sides of the building. Figure: Indication of Vehicular Route. UBBL 1984 Section 225 (2): Detecting and extinguishing fire. Every building shall be served by at least one fire hydrant located not more than 91.5m away from the nearest point of fire brigade access. Building Services (BLD 60903 / ARC 2423): August 2016 46
  • 48.
    3.2.3 Fire Barrier 3.2.3.1Fire Wall Fire wall is a lightweight; non-loadbearing walls capable of providing up to 240 minutes’ fire resistance. They are an assembly of materials that not only act as a wall to separate the spaces but also separate those high fire risk areas such as transformer room, electrical room and mechanical room. This firewalls were designed to act as a barrier between spaces and prevent the spread of fire in a period of time and give more time for occupants to escape from the building. It buys sufficient times for the occupant and the users to escape. Figure: Indications of the Fire Walls Building Services (BLD 60903 / ARC 2423): August 2016 47
  • 49.
    UBBL 1984, Section138(C) Any wall or floor separating part of a building form any other part of the same building, which is used or intended to be used mainly for a purpose failing within a different purpose group as, set out in the Fifth Schedule to these by laws. UBBL 1984, Section 148(6): Special requirements as to compartment walls and compartment floors. Any compartment walls or compartment floor which is required by these Bylaws to have FRP of one hour or more shall be constructed wholly of non-combustible materials and, apart from any ceiling, the required FRP of wall or floor shall be obtained without assistance from any noncombustible materials. Building Services (BLD 60903 / ARC 2423): August 2016 48
  • 50.
    3.2.3.2 Fire Door Fireresistant doors are used to separate compartments in buildings to stop the spreading of fire. It suppresses the fire by restricting the flow of oxygen and spread of flames. The fire doors are placed at the entrance of fire staircase and are self closing to protect the occupants while evacuating in case of an emergency. The elderly centre is equipped with double leaf doors of 1600mm x 2100mm for the escape doors and single leaf doors of 900mm x 2100mm for the mechanical and electrical services room. The fire doors are all rated to withstand up to 1 hour of fire, allowing ample time for fire personnel to put out the flame before it spreads.The doors are closed by default with an hydraulic spring installed at the top of the door to inhibit flame and smoke. Routine checks are made to make sure there is no blockage at the door. Figure: Indications of the locations of Fire Doors Building Services (BLD 60903 / ARC 2423): August 2016 49
  • 51.
    UBBL 1984, Section162: Fire doors in compartment walls and separating walls. 1. Fire doors of an appropriate FRP shall be provided. 2. Openings in compartment walls and separating walls shall be protected by a fire door having a FRP in accordance with the requirements for that wall specified in the Ninth Schedule to these bylaws. 3. Openings in protecting structures shall be protected by fire doors having FRP of not less than half the requirement for the surrounding wall specified in the Ninth Schedule to these bylaws but in no case less than half an hour. 4. Openings in partitions enclosing a protected corridor or lobby shall be protected by fire doors having FRP of half-hour. 5. Fire doors including frames shall be constructed to a specification which can be shown to meet the requirements for the relevant FRP when tested in accordance with section 3 of BS476:1951. UBBL 1984, Section 164 (1): Door closers for fire doors. All fire doors shall be fitted with automatic door closed of the hydraulically spring operated type in the case of swing doors and of wire rope and weight type in the case of sliding door. Building Services (BLD 60903 / ARC 2423): August 2016 50
  • 52.
    3.2.3.3 Separation ofFire Risk Area Compartmentalization or also known as separation of fire risk areas are implemented in buildings with high fire risk facilities. In the elderly centre, there are N rooms with high risk of causing a fire - kitchen, mechanical and electrical room. These rooms are separated with fire wall and doors to retard the spreading of fire from the rooms. These areas are the most fire protected and maintenance checkups are scheduled every fortnight to ensure all systems are in order. Figure: Indications Separated Areas: Kitchen and Mechanical and Electrical Rooms. UBBL 1984, Section 139: Separation of fire risk areas. The following areas or uses shall be separated from the other areas of occupancy in which they are located by fire resisting construction of the elements of structure of a FRP to be determined by the local authority based on the degree of fire hazard: (a) Boiler rooms and associated fuel storage areas (b) Laundries (c) Repair shops involving hazardous processes and materials (d) Storage areas of materials in quantities deemed hazardous (e) Liquefied petroleum gas storage areas (f) Linen rooms (g) Transformer rooms and substations Building Services (BLD 60903 / ARC 2423): August 2016 51
  • 53.
    3.2.4 Fire Control 3.2.4.1Smoke and Heat Ventilation According to statistics, victims of fire often die from smoke and heat stroke. Fire produces black smoke which suffocates the victims due to the lack of oxygen in the air. Therefore it is important to vent out the smoke and heat. Fire stairs are one of the areas that are less likely to be affected by the fire but the smoke from other floors are likely to travel up through the stairwell. Assuming the stairs are in an enclosed area, the smoke will accumulate at a space with the highest human occupancy during a fire, risking the lives of the occupants. To resolve this issue, stairs are either designed to be at the exterior, or to have vents to allow ventilation. The vents can also be removed by fire personnel for access to upper floors in case of huge fire. Building Services (BLD 60903 / ARC 2423): August 2016 52
  • 54.
    Chapter 4: AirConditioning System Air Conditioning system is to provide cool ventilation by altering the properties of air which is primarily temperature and humidity to more favourable condition. The control of temperature and humidity in air may be desirable to maintain the thermal comfort level of the occupants and to meet the requirements of industrial processes the external climatic conditions. The main concept of the air conditioning system is to extract the heat from a certain area to the surroundings. It requires several mechanical components to allow the process of evaporation, compression and condensation of the air properties. 4.1 Major Cycles in Air Conditioning System 4.1.1 Refrigerant Cycle Refrigerant cycle is a process to transfer heat from low temperature to high temperature. The heat inside a room is transferred through the evaporator and removed to the outside air through a condenser. 4.1.1.1 Principles of Refrigeration Figure: Process of Refrigeration Source: (Hoffman & Content, 2002) The main principle of refrigeration: - Liquids absorb heat when changed from liquid to gas - Gases give off heat when changed from gas to liquid. Building Services (BLD 60903 / ARC 2423): August 2016 53
  • 55.
    4.1.1.2 Components ofRefrigeration Compressor The compressor is the heart of the system. The compressor pumps the refrigerant through the air conditioning system at a designed flow rate and pressure. Source: (Ebazar, 2016) Condenser The high pressure and high temperature state of the vapor refrigerant is then converted to liquid at the cond. Source: (“Mitsubishi Lancer A/C Condenser,” n.d.) Expansion valve Control the flow of the liquid refrigerant to evaporator. This is a dividing point between the high pressure and low pressure sides of the system. Source: (Pony, 2016) Evaporator It removes heat from air, water or other substance. It acts as a heat exchanger that transfers heat from the substance being cooled to a boiling temperature. Source: (Asia, 2006) Building Services (BLD 60903 / ARC 2423): August 2016 54
  • 56.
    4.1.2 Air Cycle Aprocess of distribution of treated air into a certain area that needs to be conditioned. The treated air is the air supply to the area is filtered through air cleaner to remove dust particles. Latent heat inside the room is eliminated and transferred to the medium at the Air Handling Unit (AHU). The medium to absorb the heat can be either air or water. Distribution of air can be either through ducts or chilled water pipes. Heat inside the room is removed and the internal air becomes cooler with the mix of fresh air from outside. 4.1.2.1 Components Required for Air Cycle Air Handling Unit (AHU) It is used to re-condition and circulate air as part of a heating, cooling, humidifying, dehumidifying, filtering and distributing. It uses a blower to remove air from the home, force it through a heat exchanger and distribute the conditioned air through a system of ducts back into the house. Source: (“Air handling unit BASIC - AHU airtecnics,” 2012) Air filter Remove the dust particles in the air before it releases into the room. Source: (Home, 2015) Blower fan Propeller fan is used especially to remove heat from the condenser. Its function is to to propel the air for distribution inside the building. Source: (“DIDW Blower Fan,” n.d.) Building Services (BLD 60903 / ARC 2423): August 2016 55
  • 57.
    Ductwork and diffuser Bothare to distribute the air from air handling units to the other rooms that need to be conditioned. The ductwork is usually concealed inside the ceiling. The diffuser is placed where the air to be released. Source: (“Ductwork ventilation from air conditioning UK specialists: RAC Kettering provide air conditioning, cold rooms and refrigeration,” n.d.) 4.2 Window Unit Air Conditioning System Window air conditioner is the most commonly used air conditioner for single rooms. In this air conditioner all the components, namely the compressor, condenser, expansion valve or coil, evaporator and cooling coil are enclosed in a single box. This unit is fitted in a slot made in the wall of the room, or more commonly a window sill. The whole assembly of the window air conditioner can be divided into two compartments: the room side, which is also the cooling side and the outdoor side from where the heat absorbed by the room air is liberated to the atmosphere. Figure: Components of Window air conditioner Source: (“Parts of the window air conditioners,” 2009) Building Services (BLD 60903 / ARC 2423): August 2016 56
  • 58.
    4.2.1 Refrigeration Systemof Window Unit Air Conditioner The refrigeration system of the window air conditioner comprises of all the important parts of the refrigeration cycle. Source: (“Parts of the Window Air Conditioners: Part One”, 2016) The compressor used in the window air conditioners is hermetically sealed type, which is portable one. The condenser is made up of copper tubing and it is cooled by the atmospheric air. It is covered with the fins to enable faster heat transfer rate from it. The capillary tubing made up of various rounds of the copper coil is used as the expansion valve in the window air conditioners. Before the capillary, there is a drier filter that filters the refrigerant and also removes the moisture particles, if present in the refrigerant. The evaporator is also made up of copper tubing of number of turns and is covered with the fins. The evaporator is also called as the cooling coil since the rooms air passes over it and gets cooled. Before the evaporator, there is a air filter fitted in the front panel or front grill. As the room air is absorbed, it is first passed over the filter so that it gets filtered. The filtered air is then blown over the cooling coil and the chilled air is passed into the room. The refrigerant after leaving the cooling coil enters the accumulator where it is accumulated and then it is again sucked by the compressor for recirculation over the whole cycle. 4.2.2 Air Circulation System of Window Unit Air Conditioner The air circulation system of the window air conditioner comprises of blower, condenser fan and fan motor. Figure: Components of Air Circulation System of Window Unit Air Conditioner Source: (“Parts of the window air conditioners,” 2009) Building Services (BLD 60903 / ARC 2423): August 2016 57
  • 59.
    4.2.2.1 Components required Blower:The blower sucks the air from the room which first passes over the air filter and gets filtered. The air then passes over the cooling coil and gets chilled. The blower then blows this filtered and chilled air, which passes through the supply air compartment inside the window air conditioner assembly. This air is then delivered into the room from the supply air grill of the front panel. Condenser fan: The condenser fan is the forced draft type of propeller fan that sucks the atmospheric air and blows it over the condenser. The hot refrigerant inside the condenser gives up the heat to the atmospheric air and its temperature reduces. Fan motor: It has double shaft on one side of which the blower is fitted and on the other side the condenser fan is fitted. This makes the whole assembly of the blower, the condenser fan and the motor highly compact. 4.2.3 Control System of Window Unit Air Conditioner There is control panel or the operating panel that carries various control buttons. This control panel can be easily accessed from the front panel of the window air conditioner. The three important aspects that are to be controlled inside the window air conditioner: - Thermostat for controlling the room air temperature - Air flow rate inside the room - Direction of the air flow inside the room Figure: Components of Control System of Window Unit Air Conditioner Source: (“Parts of the window air conditioners,” 2009) Building Services (BLD 60903 / ARC 2423): August 2016 58
  • 60.
    4.2.4 Advantages andDisadvantages of Window Unit Air Conditioning System Advantages Disadvantages - Suitable for small unit - Low noise output and high efficiency - It does not contribute to distribution of smoke in occurrence of fire - Can be placed either in windows or wall holes for easy installation - Requires a large hole in the wall if it is not installed at existing window opening - More of a hassle to remove and move to another room/location - Maybe look unattractive from the outside 4.3 Split Unit Air Conditioning System Split air conditioner consists of two parts that are the outdoor unit and the indoor unit. The outdoor unit is fitted outside the room such as houses components like the compressor, condenser and expansion valve. The indoor unit comprises the evaporator or cooling coil and the cooling fan. 4.3.1 Components Required for Split Unit Air Conditioning System Outdoor unit Huge amount of heat is generated inside the compressor and the condenser of the outdoor units. Therefore, there should be sufficient air flows around it. The outdoor unit contains the important parts of the split air conditioner like compressor, condenser and expansion valve. Source: (“Cleaning split AC,” 2015) Indoor unit Source: (“FolksERA,” 2016) Source: (M, 2015) Source:(sobatcara, 2015) Wall mounted indoor unit Floor mounted indoor unit Cassette The indoor unit produces the cooling effect inside the room. It is a box type housing in which all the important parts of the air conditioner are enclosed. The most common type of the Building Services (BLD 60903 / ARC 2423): August 2016 59
  • 61.
    indoor unit isthe wall mounted type though other types like ceiling mounted and floor mounted are also used. Copper Tubing The refrigerant piping is made up of copper tubing covered with insulation that connects the indoor and the outdoor unit. It consist of two pipes, one to supply the refrigerant to the cooling coil and the other to return the refrigerant to the compressor. Source: (“Shanghai tatsukin hvac epuipment co.,ltd,” n.d.) 4.3.2 Types of Split Unit Air Conditioning System - Split unit without outside air (ductless) - Split unit with outside air (ducted) - Variable refrigerant flow (VRF) 4.3.2.1 Split Unit Without Outside Air (ductless) There are no supply of fresh air to renew the existing indoor air. Thus, the existing indoor air is recycled and recirculated. Figure: Process of Working Ductless Split Unit Air Conditioning System Source: (“Toronto air conditioning | HVAC experts,” 2015) Building Services (BLD 60903 / ARC 2423): August 2016 60
  • 62.
    4.3.2.2 Split UnitWith Outside Air (ducted) Ducting piping is used to deliver conditioned air into each room. The ducting pipes are usually concealed in ceiling. It has larger capacity as compared to ductless system. Source:(“Concealed Ducted split system,” 2016) 4.3.2.3 Variable refrigerant flow (VRF) Variable refrigerant flow is a multi split air conditioning system where one outdoor unit is connected to several indoor units. It uses refrigerant as the cooling medium. The term variable refrigerant flow refers to the ability of the system to control the amount of refrigerant flowing to the multiple evaporators (indoor units), enabling the use of many evaporators of differing capacities and configurations connected to a single condensing unit. The arrangement provides an individualized comfort control. Source:(Bachao, 2012) Types of variable refrigerant flow (VRF) - Master and slave system - Zoned control units - Variable refrigerant volume system Building Services (BLD 60903 / ARC 2423): August 2016 61
  • 63.
    Master and SlaveSystem Master unit can be used to control the individual unit or all units at the same time while slave unit control itself only. It is suitable for single areas, single rooms or even multiple rooms with very similar heat gain. Zoned Control Units Each indoor unit has its own individual temperature controller and each unit functions as required to maintain the individual room temperature. Variable refrigerant volume system It is able to provide total versatility and each indoor unit may cool / heat independently of each other. 4.3.4 Advantages and Disadvantages of Split Unit Air Conditioning System Advantages Disadvantages - Low initial cost and low noise - Ease of installation - Each system is totally independent and has its own control of temperature - Maintenance (cleaning/change of filters) is within the occupied space - Limited air throw which can lead to possible hot or cold spots - Impact on building aesthetics of large building if too many outdoor units will spoil the appearance of the building. Building Services (BLD 60903 / ARC 2423): August 2016 62
  • 64.
    4.4 Packaged AirConditioning System Packaged air conditioning system is a larger version of the window air conditioner. Unlike window air conditioning system, it has a higher cooling capacity and it is usually able to cool an entire house or a commercial building. The nominal capacities ranges from 3 tonne to 15 tonne. There are two possible arrangements with the package unit. In the first one, all the components, namely the compressor, condenser, expansion valve and evaporator are housed in a single box. The cooled air is thrown by the high capacity blower, and it flows through the ducts laid through various rooms. In the second arrangement, the compressor and condenser are housed in one casing. The compressed gas passes through individual units, comprised of the expansion valve and cooling coil, located in various rooms. Two types of packaged air conditioning system: - Packaged Air Conditioners with Water Cooled Condenser - Packaged Air Conditioners with Air Cooled Condenser 4.4.1 Packaged Air Conditioners with Water Cooled Condenser The condenser is cooled by the water. The condenser is of shell and tube type, with refrigerant flowing along the tube side and the cooling water flowing along the shell side. The water has to be supplied continuously in these systems to maintain functioning of the air conditioning system. Figure: Components of Packaged Air Conditioners with Water Cooled Condenser Source: (“What is packaged air conditioner? Types of Packged air Condtioners,” 2010) Building Services (BLD 60903 / ARC 2423): August 2016 63
  • 65.
    4.4.2 Packaged AirConditioners with Water Cooled Condenser The condenser of the refrigeration system is cooled by the atmospheric air. There is an outdoor unit that comprises of the important components like the compressor, condenser and in some cases the expansion valve. The outdoor unit can be kept on the terrace or any other open place where the free flow of the atmospheric air is available. The fan located inside this unit sucks the outside air and blows it over the condenser coil cooling it in the process. The cooling unit comprising of the expansion valve, evaporator, the air handling blower and the filter are located on the floor or hanged to the ceiling. The ducts coming from the cooling unit are connected to the various rooms that are to be cooled. Figure: Components of Packaged Air Conditioners with Water Cooled Condenser (Left) Figure: Location of Diffuser in Packaged Air Conditioners with Water Cooled Condenser (Right) Source: (“What is packaged air conditioner? Types of Packged air Condtioners,” 2010) Building Services (BLD 60903 / ARC 2423): August 2016 64
  • 66.
    4.5 Central AirConditioning System The central air conditioning plants or the systems are used when large buildings, hotels, theaters, airports, shopping malls etc are to be air conditioned completely. There is a plant room where large compressor, condenser, thermostatic expansion valve and the evaporator are kept in the large plant room. They perform all the functions as usual similar to a typical refrigeration system. However, all these parts are larger in size and have higher capacities. The compressor is of open reciprocating type with multiple cylinders and is cooled by the water just like the automobile engine. The chilled is passed via the ducts to all the rooms, halls and other spaces that are to be air conditioned. Thus in all the rooms there is only the duct passing the chilled air and there are no individual cooling coils, and other parts of the refrigeration system in the rooms. The amount of chilled air that is needed in the room can be controlled by the openings depending on the total heat load inside the room. Two Types of Central Air Conditioning System - Direct Expansion (DX) Type of Central Air Conditioning System - Chilled Water Central Air Conditioning System 4.5.1 Direct Expansion (DX) Type of Central Air Conditioning System The air used for cooling space is directly chilled by the refrigerant in the cooling coil of the air handling unit. Since the air is cooled directly by the refrigerant the cooling efficiency of the DX plants is higher. However, it is not always feasible to carry the refrigerant piping to the large distances hence, direct expansion or the DX type of central air conditioning system is usually used for cooling the small buildings or the rooms on the single floor. Figure: Components of Direct Expansion (DX) Type of Central Air Conditioning System Source: (“Direct expansion (DX) type of central air conditioning plant or system,” 2009) Building Services (BLD 60903 / ARC 2423): August 2016 65
  • 67.
    4.5.1 Chilled WaterCentral Air Conditioning Systems The ordinary water or brine solution is chilled to very low temperatures of about 6 to 8 degree Celsius by the refrigeration plant. This chilled water is pumped to various floors of the building and its different parts. In each of these parts the air handling units are installed, which comprise of the cooling coil, blower and the ducts. The chilled water flows through the cooling coil. The blower absorbs return air from the air conditioned rooms that are to be cooled via the ducts. This air passes over the cooling coil and gets cooled and is then passed to the air conditioned space. Figure: Components of Chilled Water Central Air Conditioning Systems Source: (“Chilled water central air conditioning plants,” 2009) 4.5.2 Advantages and Disadvantages of Central Air Conditioning System Advantage Disadvantage - Filter air prevents potentially harmful gases - Higher energy bill - Frequent duct maintenance - Ductwork installation is a major renovation that involves opening up walls and floors - Unable to control temperature individually Building Services (BLD 60903 / ARC 2423): August 2016 66
  • 68.
    4.6 Proposed AirConditioning System Split Unit Air Conditioning System Variable Refrigerant Flow (VRF) with Master and Slave System Justification The building design is in a clustered form as there are several rooms that connected and clustered together. The second floor is an open space, therefore, air conditioning system is not needed on the second floor. VRF is a multi-split air conditioning system that one outdoor unit connects to several indoor units, therefore, it can ​reduce ​the amount of ​outdoor units that affect the aesthetic of the building. The aesthetic of the building may be affected if too many ductless split unit air conditioners are used because the outdoor units are located right outside of the wall where it is near to the indoor unit. In addition, ​low noise output​ which is suitable for elderly that need a quiet environment in the elderly care centre. The ​ease of installation and maintenance​ that is appropriate for medium scale centre. Furthermore, master unit​ can be used to control the ​individual unit or all units at the same time​ while slave unit control itself​ only. It is suitable for single areas, single rooms or even multiple rooms with very similar heat gain. The Location of Outdoor Units Outdoor Unit: The outdoor unit is located in the open space on the terrace so that the air can flow freely over the compressor and the condenser. The location of outdoor unit that it is easily accessible for carrying out the maintenance works of the compressor, condenser, and other devices. The installation and gas charging also should be convenient. There are any hindrances in front of the outdoor that would block the passage of fan air from passing to the open space. Any blockages will seriously affect the performance of the air conditioner and can also lead to the burning of hermetically sealed compressor coil. The outdoor unit is located at the height above the indoor unit. Building Services (BLD 60903 / ARC 2423): August 2016 67
  • 69.
    Ground floor planFirst floor plan Second floor plan Building Services (BLD 60903 / ARC 2423): August 2016 68
  • 70.
    Chapter 5: MechanicalVentilation System Ventilation is a process of exchanging air, includes both replacing air from outside or circulating air within a space. It is important in obtaining healthy and comfort condition. Ventilation helps to prevent heat concentration and air humidity. Mechanical ventilation can thus provide a good air quality condition. Besides, mechanical ventilation is much more controllable compare to the natural ventilation. Relying on airflow via openings through walls, windows or roof, there’s no control of the source and the amount of airflow. The elderly home is a residential building of 3 floors consist of kitchen, living space, meditation, rest room… tbc 5.1 Type Of Mechanical Ventilation System Applied 5.1.1​ ​Supply Ventilation 5.1.2 Exhaust Ventilation Ground Floor Plan First Floor Plan Figure: Indications of the locations of supply and exhaust ventilation. Building Services (BLD 60903 / ARC 2423): August 2016 69
  • 71.
    5.1.1 Supply Ventilation ●Supply Air Diffuser/ Grille/ Fan Its the supply ventilation system applied at which central fans are installed to a building to bring in the external air and supply fresh air through air grille into an internal space. 5.1.1.1 Component Of Supply Ventilation Ceiling Fan A ceiling fan is a ​mechanical fan​, serves the purpose of removing hot, humid, polluted air. It’s often used to bring in external air into internal spaces to cool down the building temperature. One of the major supply ventilation system in mechanical ventilation, it help to keep the fresh air circulating within the internal spaces. Wall Mount Fan Installed in exterior walls and pull air directly outside. These fans do not need ductwork, but might have a visible register. Apply at the exterior of corridor to provide air ventilation during mid day. Building Services (BLD 60903 / ARC 2423): August 2016 70
  • 72.
    Supply Air Diffuser/Grille A diffuser is "a device for reducing the velocity and increasing the static pressure of a fluid passing through a system”. Diffusers are used to slow the fluid's velocity while increasing its static pressure. The fluid's static pressure rise as it passes through a duct is commonly referred to as pressure recovery. Building Services (BLD 60903 / ARC 2423): August 2016 71
  • 73.
    5.1.2 Exhaust Ventilation ●Exhaust Air Grille/ Fan Its the exhaust ventilation system applied at spaces which are installed to a building to vacuum internal air through air grille to an external space. 5.1.2.1 Component Of Exhaust Ventilation Range-Hood Exhaust Fan The fan draws the air into the hood, through the grease duct, through the air purifier (if present), and discharges the air out of the building to the outdoors. Kitchen Exhaust is always discharged outdoors; it is never recycled back into the building. Ceiling Mounted Exhaust Fan Toilet exhaust systems remove harmful fumes and unpleasant odors from the bathroom. A clean toilet exhaust system will ensure a comfortable climate within an enclosed area. Building Services (BLD 60903 / ARC 2423): August 2016 72
  • 74.
    Chimney Style These fanswork essentially like a self-contained hood except that they have a decorative chimney-like extension that conceals the exhaust duct above the collector. Fans can be just above the hood or installed some distance away, minimizing noise. Chimney-style hoods can be mounted on a wall or over a cook surface in a kitchen island. UBBL: MS 1525 code 8.4.5 Mechanical Ventilation Control “Each mechanical ventilation system (supply/exhaust) should be equipped with a readily accessible switch or other means for shut down or volume reduction when ventilation is not required. Example of such devices would include timer switch control, thermostat control, duty cycle programming and CO/CO2 sensor control” Building Services (BLD 60903 / ARC 2423): August 2016 73
  • 75.
    Chapter 6: MechanicalTransportation System Mechanical transportation system is an integral part of modern buildings, used to move goods and people vertically or horizontally between floors. Common types of transportation system such as lifts, elevators help to reduce energy and save a lot of time. 6.1 Vertical Transportation System Vertical transportation systems include all kinds of transportation media within buildings, such as elevators, escalators, hydraulic hoists, and passengers conveyors etc. It may be considered the most important building services system for high-rise buildings. 6.1.1 Elevator An elevator is a type of vertical transport equipment that efficiently moves people or goods between floors (levels, decks) of a building, vessel or other structures. Elevators are generally powered by electric motors that either drive traction cables or counterweight systems like a hoist, or pump hydraulic fluid to raise a cylindrical piston like a jack. According to ​UBBL 1984 clause 124​, a lift shall be used for non-residential buildings that exceed 4 stories above or below main entrance. It is also essential in buildings less than 4 storeys if access for older or disabled people is considered. It is introduced to bring convenience to the users by allowing them to access varies levels which saves time and energy. The quality of elevator performance is determined by a few factors: ● The hoisting capacity ● Waiting interval ● Acceleration rate of the car ● Speed of the lift ● Time taken for passengers to enter and leave the lift There are, in general, two major categories of elevators, namely electric elevators and hydraulic elevators. For this project, the Elderly Care Center, hydraulic elevator is chosen and applied in the building. Building Services (BLD 60903 / ARC 2423): August 2016 74
  • 76.
    6.2 Hydraulic Elevators Buildingsup to about (1 to 3) storeys typically use hydraulic elevators because of their lower initial cost. The conventional hydraulic elevator car is raised and lowered by means of a movable rod rigidly fixed to the bottom of the car. The absence of cables, drums, traction motors, elaborate controllers, safety devices, and penthouse equipment makes this system inherently inexpensive and often the indicated choice for low-speed (up to 1m/s), low rise (up to 20m) applications, where construction of the plunger pit does not present difficulties, and/or the absence of a penthouse is desirable. The components of a typical hydraulic unit are shown in Figure 6.2. Figure: Phantom view of a conventional “holed” hydraulic elevator. (Source: http://www.skodtecelevators.com/hydraulic-elevator.php) Building Services (BLD 60903 / ARC 2423): August 2016 75
  • 77.
    Characteristics of HydraulicElevator ● Used for low-rise applications of 2-8 storeys ● Travel at a maximum speed of 61m per minute ● The machine room is located at the lowest level adjacent to the elevator shaft ● Suitable for goods lifting, lifts for hospital and old folk’s home Benefits of Hydraulic Elevator Noise ● Noise source can be placed in the machine room far away from the shaft Design and space ● Smaller space requirement in the shaft ● Flexible machine room location ● A great deal of design freedom for architects ● No constraints on doorways or the shape of the car Safety ● Emergency evacuation procedures are very simple and completely safe ● Much safer when used in earthquake zones ● Safety during service and repair work, since there is no moving counterweight Maintenance and service ● Low-maintenance drive technology ● No wear on pulleys and ropes ● Replacement parts are seldom needed ● Free choice of maintenance companies ● Drive is easy accessible Installation ● Simple and economical assembly ● Hydraulic elevators are particularly suitable for projects where retrofitting is involved Costs ● More cost effectiveness ● Operation is simple - lower maintenance cost ● The load imposed is lower compared to electric traction lift - reduce structural cost Building Services (BLD 60903 / ARC 2423): August 2016 76
  • 78.
    6.3 Roped HydraulicElevators Where drilling a plunger hole present difficulties, a hydraulic installation using a roping arrangement can be used. The roped hydraulic arrangement is fairly simple because it uses only a single moving jack section, compared to two or even three in a telescoping unit for the same rise. It accomplishes this by using 2:1 roping, which means that the car travels twice as far as the piston. This is accomplished by passing the rope over a pulley in the piston crosshead. One end of the rope is attached to a fixed point in the pit below the car, and the other end is attached to the base of the car (Figure 6.3). The piston lifts the crosshead, which in turn lifts the car twice as far. The cantilevered car is lifted by cables from the cable crosshead, which is in turn lifted (and lowered) by the single section telescoping piston. The 2:1 roping arrangement lifts the car twice as far as the piston travels. The power unit, which includes the oil tank, pumps, and control, is usually mounted at the lower level. Control is automatic, including automatic leveling. Building Services (BLD 60903 / ARC 2423): August 2016 77
  • 79.
    Figure: Low-rise residential-typeelevator of the roped hydraulic type. (Source: http://www.electrical-knowhow.com/2012/04/hydraulic-elevators-basic-components.html) The arrangement shown in Figure 6.3 uses a single jack and a cantilevered car. The simplicity and reliability of the single-jack roped arrangement have made it by far the most common choice for low-rise, light- to medium-duty hydraulic elevators. Because it is a roped unit, it is equipped with a slack-rope safety in addition to the other safeties used on direct-connected hydraulic systems. Building Services (BLD 60903 / ARC 2423): August 2016 78
  • 80.
    Conclusion Complying to thefunction of the building as an elderly centre, proper considerations were taken when designing the building services for the elderly centre. Considerations such as accessibility, effectiveness, and maintenance were taken into account with reference to the Uniform Building By-Laws (UBBL) to make sure the building complies to the By-Law requirement and is safe to be used over a long period of time. Having elderlies as our main users of the building systems, extra care are given to ensure the safety of the elderlies when using the systems. The conditions of the systems are regularly maintained and patrolled by responsible units to maintain the efficiency and workability of all systems. Conditions of all equipment should be kept up to date and to be replaced when necessary. Through this assignment, we’ve gained basic knowledge of each system and understand the function and significance of each system. Also, we are able to put each system in place according to the requirement and also the needs of the user. Building Services (BLD 60903 / ARC 2423): August 2016 79
  • 81.
    References Board, L. R.,& International Law Book Services Malaysia (2003). ​Uniform building by-laws, 1984 [G.N. 5178/85] (as at 5th July 1993). Petaling Jaya, Selangor Darul Ehsan: International Law Book Services. Grondzik, W. T., Kwok, A. G., Stein, B., & Reynolds, J. S. (2009). ​Mechanical and electrical equipment for buildings (11th ed.). Chichester, United Kingdom: Wiley, John & Sons. Truwit, J. D., & Epstein, S. K. (Eds.). (2011). ​A practical guide to mechanical ventilation. United States: Wiley-Blackwell. Press, A., & Grondzik, W. (2007). ​Air conditioning system design manual (Ashrae special publications) (2nd ed.). Atlanta, GA: American Society of Heating, Refrigerating and Airconditioning Engineers. Arora, C. P., & Arora (1999). ​Refrigeration and air conditioning (2nd ed.). New Delhi: Tata McGraw-Hill Pub. Co. Aker, J. M. (n.d.). The Basics of Passive Fire Protection. Retrieved November 19, 2016, from http://www.buildings.com/article-details/articleid/5851/title/the-basics-of-passive-fire-protection- Ananthanarayanan, P. N. (2005). ​Basic refrigeration and air conditioning (2nd ed.). New Delhi: McGraw-Hill Inc.,US. Cornwall Fire & Rescue Service. (June, 16). Passive and Active Protection. Retrieved November 19,, 2016, from https://www.cornwall.gov.uk/community-and-living/cornwall-fire-and-rescue-servicehomepage/business-f ire-safety/protecting-your-building/passive-and-active-protection/ Exhaust Fan Ventilation System Design, Installation, Troubleshooting. (2016). Inspectapedia.com. Retrieved 19 November, 2016, from http://inspectapedia.com/BestPractices/Ventilation_Exhaust_Only.php Fike (n.d.). CO2 Fire Suppression System, Fire Suppression Solutions. Retrieved from http://www.fike.com/products/co2-fire-suppression-system/ Firewize (n.d.). Fire Control Centres. Retrieved from http://firewize.com/book/technical-data/firecontrol-centres Health and Safety Executive. Active & Passive Fire Protection. Retrieved November 19, 2016, from http://www.hse.gov.uk/comah/sragtech/techmeasfire.htm Health and Safety Executive. General fire safety. Retrieved from http://www.hse.gov.uk/construction/safetytopics/generalfire.htm Building Services (BLD 60903 / ARC 2423): August 2016 80
  • 82.
    Inc, B. H.(2008, June 5). Types of air conditioning systems: Window, split, packaged and central. Retrieved November 19, 2016, from http://www.brighthubengineering.com/hvac/897-types-of-air-conditioning-systems/ Inc, B. H. (2009, November 8). Installation of the split air conditioners: Deciding the location of indoor and outdoor units. Retrieved November 19, 2016, from http://www.brighthubengineering.com/hvac/45249-indoor-and-outdoor-installation-of-split-air-conditioner s-deciding-the-location/ Mechanical Ventilation in Buildings – What You Need to Know - TheGreenAge. (2015). TheGreenAge. Retrieved 22 June 2016, from http://www.thegreenage.co.uk/mechanical-ventilation-in-buildings-whatyou-need-to-know/ Natural Ventilation | Sustainability Workshop. (2016). Sustainabilityworkshop.autodesk.com. Retrieved 22 June 2016, from http://sustainabilityworkshop.autodesk.com/buildings/natural-ventilation Osafe Fire Inspection (n.d.). Fire Extinguisher. Retrieved from http://osafefi.com/?ws=pages&pages_id=4228 Passive Fire Protection. (n.d.). Retrieved November 19, 2016, from http://www.firesafe.org.uk/passive-fire-protection/ Patent application (n.d.). Smoke curtain. Retrieved from http://www.patentsencyclopedia.com/app/20090266498 Protec. Wet/Dry Riser Systems. Retrieved from https://www.protec.co.uk/product-page/sprinklers-andwater-mist/product/product/wet-dry-riser-systems/ See all Applications. (n.d.). Fire Hydrant Systems. Retrieved from https://www.allpumps.com.au/applications/fire-hydrant-systems Protection. Retrieved Jun 8, 2016, from http://www.sharpfibre.com/blog/5/examining-the-relationshipbetween-active-and-passive-fire-protection Spectrumfire. Fire Hose Reel System.Retrieved from http://www.spectrumfire.com/products/fire-hosereel-system Supply Ventilation. (2016). Greenbuildingadvisor.com. Retrieved 22 June 2016, from http://www.greenbuildingadvisor.com/green-basics/supply-ventilation Supremexfireextiguisher. Fire Extinguisher, A B C Type Dry Powder Fire Extinguisher, CO2 Fire Extinguisher. Retrieved from ​http://www.supremexfireextinguisher.com/fireextinguisher.html Building Services (BLD 60903 / ARC 2423): August 2016 81
  • 83.
    Wormald. (n.d.). FireSprinkler Systems, Fire Sprinkler System, Automatic Sprinkler Systems.Retrieved from https://www.wormald.com.au/systems/fire-sprinkler-systems Electrical-knowhowcom. (2016). Electrical-knowhowcom. Retrieved 20 November, 2016, from http://www.electrical-knowhow.com/2012/04/hydraulic-elevators-basic-components.html Springercom. (2016). Springercom. Retrieved 20 November, 2016, from http://link.springer.com/chapter/10.1007/978-1-4615-5019-8_4 Howstuffworkscom. (2002). HowStuffWorks. Retrieved 21 November, 2016, from http://science.howstuffworks.com/transport/engines-equipment/elevator1.htm Building Services (BLD 60903 / ARC 2423): August 2016 82