Project 2
Structural Analysis of A Bungalow
Building Structures (ARC 2522/2523)
Group Members:
Ang Wei Yi (0317885)
Chan Yi Qin (0315964)
Tang Pei Kei (0318545)
Tutor:
Mr Adib
Content
Page
1. Introduction 1
2. Architectural Floor Plan 2-4
3. Structural Plan 5-7
4. Load Distribution Plan 8-9
5. Foundation Plan 10
6. Design Brief 11-14
7. Beams Analysis Report 15-114
8. Column Analysis Report 115-149
Introduction
This bungalow is designed to consist of one master bedroom with attached
bathroom, minimum of three bedrooms, two bathrooms, kitchen, living hall, dining area,
and one store room within some selection of building layout. Little design element in this
bungalow, but plays with the spatial arrangement and location of wall structure. We have
to come out with our own design of columns and beams. Using structural analysis to
prove the whole design is buildable and structural stable. We have chosen two very odd
building layouts to challenge a more complex structural analysis calculation. We have to
know about the whole system of load transfer from the roof to the beam to the column
and to foundation.
2
Quantity Dead Load and Live Load Assumed
Density of Materials
Reinforced Concrete = 24kN/m3
Brick Wall = 19kN/m3
Strength of Material
Concrete Strength (Fcu) = 30N/mm2
Yield Strength of Concrete Column (Fy) = 460 N/mm2
Thickness, Size and Height of Components
Thickness of Brick Wall = 150mm
Height of Brick Wall = 3000mm
Thickness of Floor Slab = 150mm
Size of Main Beam = 200mm x 300mm
Size of Secondary Beam = 150mm x 300mm
Height of the floors = 3000mm
Size of Column = 150mm x 150mm
Floor Height = 3000mm
Dead Load Acting on Structure
Main Beam Self-weight
= beam size x density of concrete
= (0.2m x 0.3m) x 24kN/m3
= 1.44kN/m
Secondary Beam Self-weight
= beam size x density of concrete
= (0.15m x 0.3m) x 24kN/m3
= 1.08kN/m
11
Brick Wall Self-weight
= wall height x wall thickness x density of brick wall
= 3m x 0.15m x 19kN/m3
= 8.55kN/m
Slab Self-weight
= slab thickness x density of concrete
= 0.15m x 24kN/m3
= 3.6kN/m2
Column Self-weight
= column size x density if concrete
= (0.3m x 0.3m) x 3 x 24kN/m3
= 6.48kN/m
Quantity Live Loads Acting on Structure (According to UBBL)
Bungalows = 1.5kN/m2
Bedrooms = 1.5kN/m2
Living Room = 4.0kN/m2
Dining Room = 2.0kN/m2
Kitchen (Dry/ Wet) = 3.0kN/m2
Storage = 2.5kN/m2
Toilet = 2.0kN/m2
Laundry = 3.0kN/m2
Stairs = 1.5kN/m2
Lounges = 2.0kN/m2
Corridor = 4.0kN/m2
12
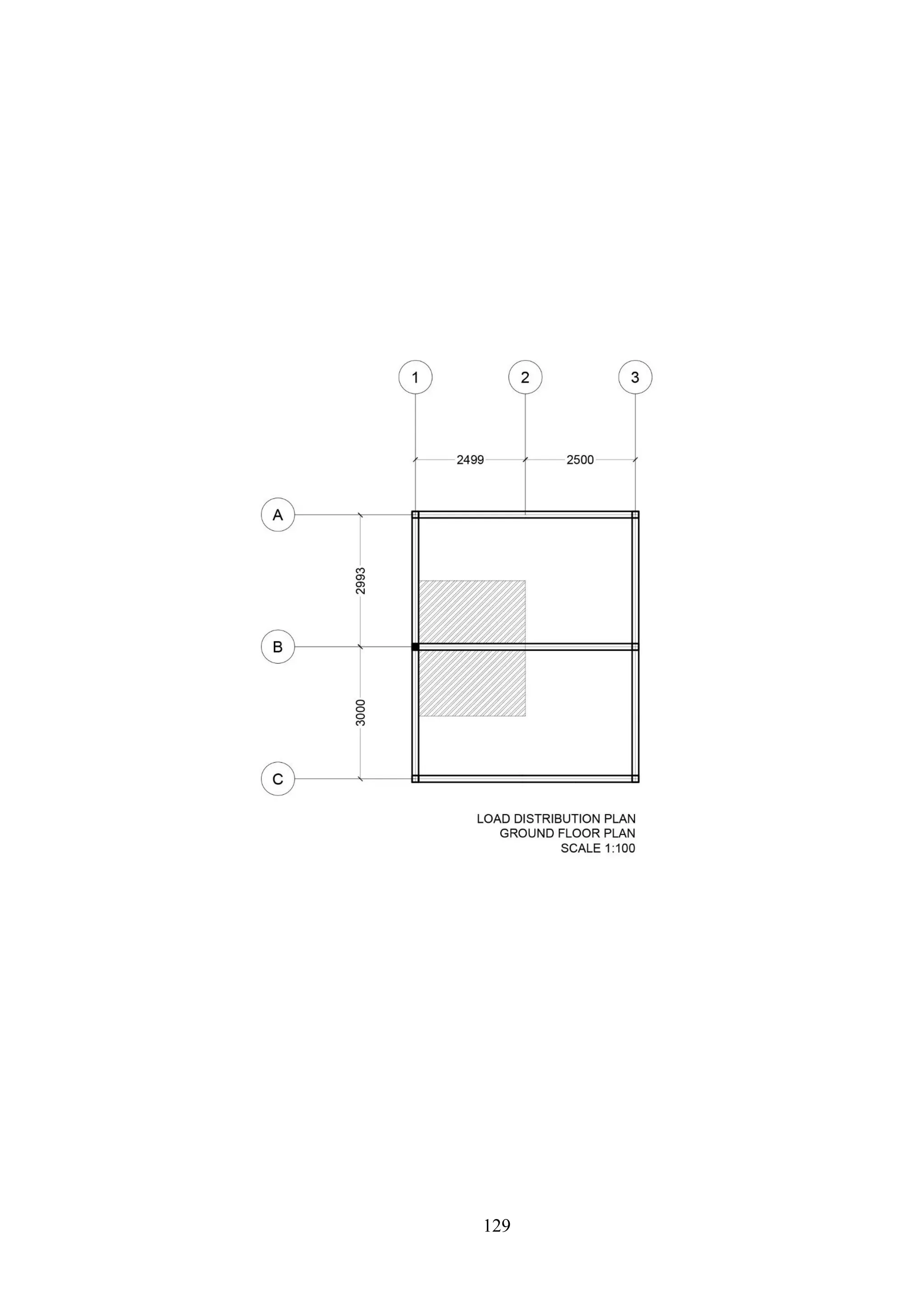
Identity One Way or Two Way Slab
Indicating the distribution of load from slab to beam,
Ly = longer side of slab
Lx = shorter side of slab
When Ly/Lx> 2, it is a one way slab;
When Ly/Lx< 2 or = 2, it is a two way slab;
Ground Floor
Slab A-B/1-2 = 2993/2499 = 1.19 < 2 (Two Way Slab)
Slab A-B/2-3 = 2993/2500 = 1.20 <2 (Two Way Slab)
Slab A-B/3-4 = 4013/2993 = 1.01 <2 (Two Way Slab)
Slab A-B/4-5 = 4852/2993 = 1.22 <2 (Two Way Slab)
Slab B-C/1-2 = 3000/2499 = 1.20 < 2 (Two Way Slab)
Slab B-C/2-3 = 3000/2500 = 1.20 <2 (Two Way Slab)
Slab B-C/3-4 = 4013/3000 = 1.34 <2 (Two Way Slab)
Slab B-C/4-5 = 4852/3000 = 1.62 <2 (Two Way Slab)
Slab C-D/1-3 = 4999/2847 = 1.76 < 2 (Two Way Slab)
Slab C-D/3-4 = 4013/2847 = 1.41 < 2 (Two Way Slab)
Slab C-D/4-4.2 = 4001/2847 = 1.41 < 2 (Two Way Slab)
Slab C-D/4.2-6 = 4858/2847 = 1.71 < 2 (Two Way Slab)
Slab D-D’/3-3.1 = 2852/2001 = 1.43 < 2 (Two Way Slab)
Slab D’-E/3-3.1 = 2852/2001 = 1.43 < 2 (Two Way Slab)
Slab D-E/3-3.1 = 4999/4003 = 1.25 < 2 (Two Way Slab)
Slab E-F/3-3.1 = 2852/1987 = 1.44 < 2 (Two Way Slab)
Slab D-F/4-4.2 = 5990/5149 = 1.16 < 2 (Two Way Slab)
Slab D-F/4.2-6 = 5990/4858 = 1.23 < 2 (Two Way Slab)
13
Slab F-G/3-4 = 4020/2852 = 1.41 < 2 (Two Way Slab)
Slab F-G/4-4.2 = 4020/4001 = 1.00 < 2 (Two Way Slab)
Slab F-G/4.2-6 = 4858/4020 = 1.21 < 2 (Two Way Slab)
First Floor
Slab A-B/1-2 = 2993/2499 = 1.19 < 2 (Two Way Slab)
Slab A-B/2-3 = 2993/2500 = 1.20 <2 (Two Way Slab)
Slab A-B/3-4 = 4013/2993 = 1.01 <2 (Two Way Slab)
Slab A-B/4-5 = 4852/2993 = 1.22 <2 (Two Way Slab)
Slab B-C/1-2 = 3000/2499 = 1.20 < 2 (Two Way Slab)
Slab B-C/2-3 = 3000/2500 = 1.20 <2 (Two Way Slab)
Slab B-C/3-4 = 4013/3000 = 1.34 <2 (Two Way Slab)
Slab B-C/4-5 = 4852/3000 = 1.62 <2 (Two Way Slab)
Slab A-C/5-6 = 5993/4008 = 1.50 <2 (Two Way Slab)
Slab C-D/1-3 = 4999/2847 = 1.76 < 2 (Two Way Slab)
Slab C-D/3-4 = 4013/2847 = 1.41 < 2 (Two Way Slab)
Slab C-D/4-4.2 = 4001/2847 = 1.41 < 2 (Two Way Slab)
Slab C-D/4.2-6 = 4858/2847 = 1.71 < 2 (Two Way Slab)
Slab D-D’/3-3.1 = 2852/2001 = 1.43 < 2 (Two Way Slab)
Slab D’-E/3-3.1 = 2852/2001 = 1.43 < 2 (Two Way Slab)
Slab D-E/3-3.1 = 4999/4003 = 1.25 < 2 (Two Way Slab)
Slab D-F/4.2-6 = 5990/4858 = 1.23 < 2 (Two Way Slab)
14
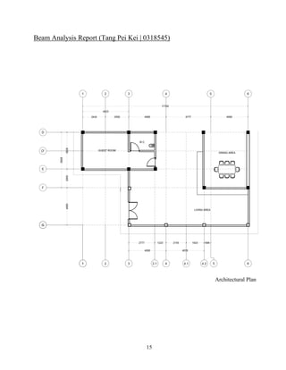
Beam Analysis Report (Tang Pei Kei | 0318545)
Architectural Plan
15
Load Distribution
Plan
Structural Plan
16
Beam 4/F-G
Dead Load
Dead Load from Beam Self-weight = 1.08kN/m
Dead Load on slab F-G/3-4
= slab self-weight x (Length/ 2)
= 3.6kN/m2
x (4/2)m
= 7.2kN/m
Dead Load on slab F-G/ 4-4.2
= slab self-weight x (Length/ 2)
= 3.6kN/m2
x (4/2)m
= 7.2kN/m
Total Dead Load
= 1.08kN/m + 7.2kN/m +7.2kN/m
= 15.48kN/m
Live Load
Live Load on slab F-G/3-4
= Live Load Factor on Bungalow (UBBL) X (Length/2)
= 1.5kN/m2
x (4/2)m
= 3kN/m
Live Load on slab F-G/ 4-4.2
= Live Load Factor on Bungalow (UBBL) X (Length/2)
= 1.5kN/m2
x (4/2)m
= 3kN/m
Total Live Load
= 3kN/m + 3kN/m = 6kN/m
FF G
1.08kN/m
7.2kN/m
7.2kN/m
15.48kN/m
4020
Beam Self-weight
Slab F-G/3-4
Slab F-G/4-4.2
Total Dead Load
FF G
3kN/m
4020
Slab F-G/3-4
Slab F-G/4-4.2
3kN/m
6kN/m
Total Live Load
17
Ultimate Load
Total Ultimate Dead Load
= total dead load x dead load factor
= 15.48kN/m x 1.4
= 21.67kN/m
Total Ultimate Live Load
= total live load x live load factor
= 6kN/m x 1.6
= 9.6kN/m
Total Ultimate Load
= total ultimate dead load + total ultimate live load
= 21.67kN/m + 9.6kN/m
= 31.27kN/m
Reaction Force on Beam
Total Load on beam 4/F-G
= total ultimate load x length of the beam
= 31.27kN/m x 4.02m
= 125.71kN
In this case, the load is equivalent to only one
Point load in the middle of the beam,
Therefore, Rf = Rg and ∑Fy = 0
∑Fy = Rf + Rg - 125.71kN
2 Rf = 125.71kN
Rf = Rg = 62.86kN
FF
31.27kN/m
4020
Free Body Diagram
G
Rf Rg125.71kN
FF
4020
Free Body Diagram
G
Rf Rg
125.71kN
62.86kN 62.86kN
FF
31.27kN/m
4020
Total Ultimate Load
G
18
FF
4020
G
31.27kN/m
62.86kN 62.86kN
+
-
62.86kN - 62.86kN
= 0kN
62.86kN - 62.86kN
= -62.86kN
62.86kN
A
+
66.19kNm
66.19kNm - 66.19kNm
= 0kNm
A
Load Diagram
Shear Force Diagram
Bending Moment
Diagram
Bending Moment Diagram
+ve = [(2.01 x 62.86) / 2]
= 66.19(kNm)
-ve = [(2.01 x -62.86) / 2]
= -66.19(kNm)
19
Beam 3.1/ E-F
Dead Load
Dead Load from Beam Self-weight = 1.08kN/m
Dead Load on slab E-F/3-4
= slab self-weight x (Length/ 2)
= 3.6kN/m2
x (2.85/2)m
= 5.13kN/m
Dead Load on slab D-F/3.1-4.2
= slab self-weight x (Length/ 2) x 1/3
= 3.6kN/m2
x (5.15/2)m x 1/3
= 3.09kN/m
Total Dead Load
= 1.08kN/m + 5.13kN/m + 3.09kN/m
= 9.3kN/m
Live Load
Live Load on slab E-F/3-4
= Live Load Factor on Bungalow (UBBL) X (Length/2)
= 1.5kN/m2
x (2.85/2)m
= 2.14kN/m
Live Load on slab D-F/3.1-4.2
= Live Load Factor on Bungalow (UBBL) X (Length/2)
= 1.5kN/m2
x (5.15/2)m x 1/3
= 1.29kN/m
Total Live Load
= 2.14kN/m + 1.29kN/m = 3.43kN/m
FE F
1.08kN/m
5.13kN/m
3.09kN/m
9.3kN/m
1987
Beam Self-weight
Slab E-F/3-4
Slab D-F/3.1-4.2
Total Dead Load
FE F
2.14kN/m
1987
Slab F-G/3-4
Slab F-G/4-4.2
1.29kN/m
3.43kN/m
Total Live Load
20
Ultimate Load
Total Ultimate Dead Load
= total dead load x dead load factor
= 9.3kN/m x 1.4
= 13.02kN/m
Total Ultimate Live Load
= total live load x live load factor
= 3.43kN/m x 1.6
= 5.49kN/m
Total Ultimate Load
= total ultimate dead load + total ultimate live load
= 13.02kN/m + 5.49kN/m
= 18.51kN/m
Reaction Force on Beam
Total Load on beam 3.1/E-F
= total ultimate load x length of the beam
= 18.51kN/m x 2m
= 37.02kN
In this case, the load is equivalent to only one
Point load in the middle of the beam,
Therefore, Re = Rf and ∑Fy = 0
∑Fy = Re + Rf – 37.02kN
2 Rf = 37.02kN
Rf = Rg = 18.51kN
FE
18.51kN/m
1987
Free Body Diagram
F
Re Rf37.02kN
FE
1987
Free Body Diagram
F
Re Rf
37.02kN
18.51kN
FE
18.51kN/m
1987
Total Ultimate Load
F
18.51kN
21
F
1987
G
18.51kN
+
-
37.02kN - 37.02kN
= 0kN
0kN - 37.02kN
= -37.02kN
37.02kN
+
36.83kNm
36.83kNm - 36.83kNm
= 0kNm
Load Diagram
Shear Force Diagram
Bending Moment
Diagram
A
A
18.51kN/m
18.51kN
Bending Moment Diagram
+ve = [(1.99 x 37.02) / 2]
= 36.83(kNm)
-ve = [(1.99 x -37.02) / 2]
= -36.83(kNm)
22
Beam D’/3-3.1
Dead Load
Dead Load from Beam Self-weight = 1.08kN/m
Dead Load from Brick Wall Self-weight = 8.55kN/m
Dead Load on slab D-D’/3-3.1
= slab self-weight x (Length/ 2)
= 3.6kN/m2
x (4/2)m
= 7.2kN/m
Dead Load on slab D’-F/3-3.1
= slab self-weight x (Length/ 2)
= 3.6kN/m2
x (4/2)m
= 7.2kN/m
Total Dead Load
= 1.08kN/m + 8.55kN/m + 7.2kN/m + 7.2kN/m
= 24.03kN/m
Live Load
Live Load on slab D-D’/3-3.1
= Live Load Factor on Bungalow (UBBL) X (Length/2)
= 1.5kN/m2
x (4/2)m
= 3kN/m
Live Load on slab D’-F/3-3.1
= Live Load Factor on Bungalow (UBBL) X (Length/2)
= 1.5kN/m2
x (4/2)m
= 3kN/m
F3 3.1
1.08kN/m
8.55kN/m
7.2kN/m
24.03kN/m
2852
Beam Self-weight
Slab D’-F/3-3.1
Total Dead Load
F3
3kN/m
2852
Slab D-D’/3-3.1
Slab D’-F/3-3.1
3kN/m
7.2kN/m
Slab D-D’/3-3.1
Brick Wall Self-weight
3.1
23
Total Live Load
= 3kN/m + 3kN/m
= 6kN/m
Ultimate Load
Total Ultimate Dead Load
= total dead load x dead load factor
= 24.03kN/m x 1.4
= 33.64kN/m
Total Ultimate Live Load
= total live load x live load factor
= 6kN/m x 1.6
= 9.6kN/m
Total Ultimate Load
= total ultimate dead load + total ultimate live load
= 33.64kN/m+ 9.6kN/m
= 43.24kN/m
Reaction Force on Beam
Total Load on beam D’/3-3.1
= total ultimate load x length of the beam
= 43.24kN/m x 2.85m
= 123.23kN
F3
2852
6kN/m
Total Live Load
F3
43.24kN/m
2852
Free Body Diagram
R3 R3.1123.23kN
F3
43.24kN/m
2852
Total Ultimate Load
3.1
3.1
3.1
24
In this case, the load is equivalent to only one
Point load in the middle of the beam,
Therefore, R3 = R3.1 and ∑Fy = 0
∑Fy = R3 + R3.1 - 125.71kN
2 R3 = 123.23kN
R3 = R3.1 = 61.62kN
F3
2852
Free Body Diagram
R3 R3.1
123.23kN
61.62kN 61.62kN
3.1
3
3
2852
61.62kN
+
-
123.23kN - 123.23kN
= 0kN
0kN - 123.23kN
= -123.23kN
123.23kN
+
87.8kNm
87.8kNm - 87.8kNm
= 0kNm
Load Diagram
Shear Force Diagram
Bending Moment
Diagram
A
A
3.1
43.24kN/m
61.62kN
Bending Moment Diagram
+ve = [(2.85 / 2 x 123.23) / 2]
= 87.8(kNm)
-ve = [(2.85 / 2 x -123.23) / 2]
= -87.8(kNm)
25
Beam F/3-4.2
Dead Load
Dead Load from Beam Self-weight = 1.44kN/m
Dead Load on slab E-F/3-3.1
= slab self-weight x (Length/ 2)
= 3.6kN/m2
x (2/2)m
= 3.6kN/m
Dead Load on slab D-F/ 3.1-4.2
= slab self-weight x (Length/ 2)
= 3.6kN/m2
x (6/2)m
= 10.8kN/m
Dead Load on slab F-G/ 3-4
= slab self-weight x (Length/ 2)
= 3.6kN/m2
x (4.02/2)m
= 7.24kN/m
Dead Load on slab F-G/ 4-4.2
= slab self-weight x (Length/ 2)
= 3.6kN/m2
x (4.02/2)m
= 7.24kN/m
Total Dead Load
For 3-3.1 = 1.44kN/m + 3.6kN/m + 7.24kN/m
= 12.28kN/m
For 3.1-4 = 1.44kN/m + 10.8kN/m + 7.24kN/m
= 19.48kN/m
For 4-4.2 = 1.44kN/m + 10.8kN/m + 7.24kN/m
= 19.48kN/m
F3 4.2
1.44kN/m
3.6kN/m
10.8kN/m
12.28kN/m
Beam Self-weight
Slab E-F/3-3.1
Slab D-F/3.1-4.2
Total Dead Load
F4F3.1
7.24kN/m
Slab F-G/3-4
7.24kN/m
Slab F-G/4-4.2
2852 1148 4001
19.48kN/m 19.48kN/m
26
Live Load
Live Load on slab E-F/3-3.1
= Live Load Factor on Bungalow (UBBL) X (Length/2)
= 1.5kN/m2
x (2/2)m
= 1.5kN/m
Live Load on slab D-F/ 3.1-4.2
= Live Load Factor on Bungalow (UBBL) X (Length/2)
= 1.5kN/m2
x (6/2)m
= 4.5kN/m
Live Load on slab F-G/ 3-4
= Live Load Factor on Bungalow (UBBL) X (Length/2)
= 1.5kN/m2
x (4.02/2)m
= 3.02kN/m
Live Load on slab F-G/ 4-4.2
= Live Load Factor on Bungalow (UBBL) X (Length/2)
= 1.5kN/m2
x (4.02/2)m
= 3.02kN/m
Total Live Load
For 3-3.1 = 1.5kN/m + 3.02kN/m
= 4.52kN/m
For 3.1-4 = 4.5kN/m + 3.02kN/m
= 7.52kN/m
For 4-4.2 = 4.5kN/m + 3.02kN/m
= 7.52kN/m
F3 4.2
1.5kN/m
4.5kN/m
4.52kN/m
Slab E-F/3-3.1
Slab D-F/3.1-4.2
Total Live Load
FF3.1
3.02kN/m
Slab F-G/3-4
3.02kN/m
Slab F-G/4-4.2
2852 1148 4001
7.52kN/m
4
7.52kN/m
27
Ultimate Load
Total Ultimate Dead Load at Slab 3-3.1
= total dead load x dead load factor
= 12.28kN/m x 1.4
= 17.19kN/m
Total Ultimate Dead Load at Slab 3.1-4
= total dead load x dead load factor
= 19.48kN/m x 1.4
= 27.27kN/m
Total Ultimate Dead Load at Slab 4-4.2
= total dead load x dead load factor
= 19.48kN/m x 1.4
= 27.27kN/m
Total Ultimate Live Load at Slab 3-3.1
= total live load x live load factor
= 4.52kN/m x 1.6
= 7.23kN/m
Total Ultimate Live Load at Slab 3.1-4
= total live load x live load factor
= 7.52kN/m x 1.6
= 12.03kN/m
Total Ultimate Live Load at Slab 4-4.2
= total live load x live load factor
= 7.52kN/m x 1.6
= 12.03kN/m
F3 4.2FF3.1 4
2852 1148 4001
17.19kN/m
27.27kN/m
Slab 3-3.1
Slab 3.1-4
27.27kN/m
Slab 4-4.2
7.23kN/m
12.03kN/m
Slab 3-3.1
Slab 3.1-4
12.03kN/m
Slab 4-4.2
28
Total Ultimate Load at 3-3.1
= total ultimate dead load + total ultimate live load
= 17.19kN/m + 12.03kN/m
= 29.22kN/m
Total Ultimate Load at 3.1-4
= total ultimate dead load + total ultimate live load
= 27.27kN/m + 12.03kN/m
= 39.3kN/m
Total Ultimate Load at 4-4.2
= total ultimate dead load + total ultimate live load
= 27.27kN/m + 12.03kN/m
= 39.3kN/m
Point Load at 4
= reaction force for beam 4/F-G at 4/F
= 62.86kN
Point Load at 3.1
= reaction force for beam 3.1/E-F at 3.1/F
= 18.51kN
F3 4.2
29.22kN/m
Total Ultimate Load
FF3.1
39.3kN/m
4
2852 1148 4001
39.3kN/m
29.22kN/m
Free Body Diagram
39.3kN/m39.3kN/m
62.86kN 18.51kN
29
Reaction Force on Beam
Total Load on 3-3.1
= total ultimate load x length of the beam
= 29.22kN/m x 2.85m
= 83.28kN
Total Load on 3.1-4
= total ultimate load x length of the beam
= 39.3kN/m x 1.15m
= 45.2kN
Total Load on 4-4.2
= total ultimate load x length of the beam
= 39.3kN/m x 4m
= 157.2kN
Point Load at 3.1 = 18.51kN
Point Load at 4 = 62.86kN
∑M = 0
0 = (R3 x 8m) - (83.28kN x 6.58m) - (45.2kN x 4.58m)
- (157.2kN x 2m) - (18.51kN x 5.15m)
- (62.86kN x 4m)
8R3 = 1416.16kNm
R3 = 177.02kN
∑F = 0
0 = R3 + R4.2 – 83.28kN - 45.2kN - 157.2kN - 18.51kN
- 62.86kN
R4.2 = 190.03kN
F3 4.2F3.1 F4
29.22kN/m
Free Body Diagram
39.3kN/m39.3kN/m
83.28kN
177.02kN/m
R3 R4.2
2852 1148 4001
8001
45.2kN 157.2kN
Free Body Diagram
R3 R4.2
190.03kN/m
83.28kN
45.2kN 157.2kN
18.51kN 62.86kN
30
F3 4.2F3.1 F4
29.22kN/m
39.3kN/m39.3kN/m
R3 R4.2
2852 1148 4001
8001
177.02kN/m 190.03kN/m
18.51kN 62.86kN
Load Diagram
Shear Force Diagram
Bending Moment
Diagram
At Point 3.1A,
= [177.02kN – (29.22kN/m x 2.85m)]
= 93.74kN
At Point 3.1B,
= [93.74kN – 18.51kN]
= 75.23kN
At Point 4C,
= [75.23kN – (39.3kN/m x 1.15m)]
= 30.04kN
At Point 4D,
= [30.04kN – 62.86kN]
= -32.83kN
At Point 4.2E,
= [-32.83kN – (39.3kN/m x 4m)]
= -190.03kN
At Point 4.2F,
= [-190.03kN + 190.03kN]
= 0kN
177.02kN
A
75.23kNC
93.74kN
B
-32.83kN
E
-190.03kN
F
0kNG
D 30.04kN
+
-
+
Bending Moment Diagram
+ve
= (2.85 x177.02) – [2.85 x (177.02 - 93.74)
/ 2] + (1.15 x 75.23) – [1.15 x (75.23
- 30.04) / 2]
= 385.83 + 60.53
= 446.36
 446(kNm)
-ve
= (4 x -190.03) – [4 x (-190.03+32.83) / 2]
= -445.72
 -446(kNm)
446kNm
446kNm – 446kNm
= 0kNm
385.83kNm
31
Prepared by
ANG WEI YI 0317885
42
GROUND FLOOR BEAM, C-D / 4
43
Beam 1 Analysis Calculation
Ground Floor Beam, C-D / 4
1. Carries Self Weight – Dead Load
2. Slab Dead Load & Live Load
a. C-D / 3-4 (two way slab)
b. C-D / 4-4.2 (two way slab)
Beam self-weight = Beam size x concrete density
= 0.15m x 0.3m x 24 kN/m2
= 1.08 kN/m
Dead load on Slab C-D / 3-4 (two way slab)
Load is transferred to beam C-D / 4 in a triangular form
Dead load from slab C-D / 3-4 = [dead load on slab x (Lx/2) x (2/3)]
= 3.6kN/m2 x (2.85m/2) x (2/3)
= 3.42kN/m
Dead load on Slab C-D / 4-4.2 (two way slab)
Load is transferred to beam C-D / 4 in a triangular form
Dead load from slab C-D / 4-4.2 = [dead load on slab x (Lx/2) x (2/3)]
= 3.6kN/m2 x (2.85m/2) x (2/3)
= 3.42kN/m
44
Total Dead Load Diagram for Beam C-D / 4
Beam Self-weight = 1.08kN/m
DL from Slab C-D / 3-4 = 3.42kN/m
DL from Slab C-D / 4-4.2 = 3.42kN/m
Total DL = 7.92kN/m
C D
7.92kN/m
1.08kN/m
3.42kN/m
3.42kN/m
45
Live load on Slab C-D / 3-4 (two way slab)
Load is transferred to beam C-D / 4 in a triangular form. Convert the triangular load into UDL.
Live load on Slab C-D / 3-4 (two way slab)
Load is transferred to beam C-D / 4 in a triangular form. Convert the triangular load into UDL.
Live load from slab C-D / 3-4 = [live load factor on Corridor (UBBL) x (Lx/2) x (2/3)]
= 4kN/m2 x (2.85m/2) x (2/3)
= 3.8kN/m
Dead load on Slab C-D / 4-4.2 (two way slab)
Load is transferred to beam C-D / 4 in a triangular form. Convert the triangular load into UDL.
Dead load from slab C-D / 4-4.2 = [live load factor on Corridor (UBBL) x (Lx/2) x (2/3)]
= 4kN/m2 x (2.85m/2) x (2/3)
= 3.8kN/m
46
Total Live Load Diagram for Beam C-D / 4
LL from Slab C-D / 3-4 = 3.8kN/m
LL from Slab C-D / 4-4.2 = 3.8kN/m
Total LL = 7.6kN/m
C D
3.8kN/m
3.8kN/m
7.6kN/m
47
Ultimate Load
Apply factor 1.4 and 1.6 to dead load and live load respectively.
Ultimate Load B-C = DL x 1.4 + LL x 1.6
= 7.92kN/m x 1.4 + 7.6kN/m x 1.6
= 23.248kN/m
Reaction Force on Beam C-D / 4 (symmetrical beam)
(23.248kN/m x 2.85m) – Reaction Force = 0
Reaction Force = 66.2568Kn
Point Load Reaction Force on Beam C-D / 4
Total Load = RA + RB
RA = Total Load / 2
= 66.2568kN/m / 2
= 33.1284kN
RA RB
66.2568kN/m
C D
33.1284kN/m
Shear Force Diagram
48
GROUND FLOOR BEAM, D / 3.1-4.2
49
Beam 2 Analysis Calculation
Ground Floor Beam, D / 3.1-4.2
1. Carries Self Weight – Dead Load
2. Brick Wall – Dead Load
3. Slab Dead Load & Live Load
a. C-D / 3-4 (two way slab)
b. C-D / 4-4.2 (two way slab)
c. D-F / 3.1-4.2 (two way slab)
Beam self-weight = Beam size x concrete density
= 0.2m x 0.3m x 24kN/m2
= 1.44kN/m
Brick wall weight = Wall height x thickness x density
= 3m x 0.15m x 19kN/m2
= 8.55kN/m
Dead load on Slab C-D / 3-4 (two way slab)
Load is transferred to beam D / 3.1-4.2 in a trapezoidal form
Dead load from slab C-D / 3-4 = [dead load on slab x (Lx/2)]
= 3.6kN/m2 x (2.85m/2)
= 5.13kN/m
Using ratio,
𝑥
5.13
=
1.15
4
x = 1.475kN/m
Dead load on Slab C-D / 4-4.2 (two way slab)
Load is transferred to beam D / 3.1-4.2 in a trapezoidal form
Dead load from slab C-D / 4-4.2 = [dead load on slab x (Lx/2)]
= 3.6kN/m2 x (2.85m/2)
= 5.13kN/m
50
Dead load on Slab D-F / 3.1-4.2 (two way slab)
Load is transferred to beam D / 3.1-4.2 in a triangular form
Dead load from slab D-F / 3.1-4.2= [dead load on slab x (Lx/2) x (2/3)]
= 3.6kN/m2 x (5.15m/2) x (2/3)
= 6.18kN/m
51
Total Dead Load Diagram for Beam D / 3.1-4.2
Beam Self-weight = 1.44kN/m
Brick Wall Load = 8.55kN/m
DL from Slab C-D / 3-4 = 1.475kN/m
DL from Slab C-D / 4-4.2 = 5.13kN/m
DL from Slab D-F / 3.1-4.2 = 6.18kN/m
Total DL on
3.1-4 =17.645kN/m
4-4.2 = 21.3kN/m
1.44kN/m
8.55kN/m
1.475kN/m
5.13kN/m
6.18kN/m
17.645kN/
m
21.3kN/m
3.1 4.24
1.15m 4m
52
Live load on Slab C-D / 3-4 (two way slab)
Load is transferred to beam D / 3.1-4.2 in a triangular form. Convert the trapezoidal load into UDL.
Live load from slab C-D / 3-4 = [live load factor on Corridor (UBBL) x (Lx/2)]
= 4kN/m2 x (2.85m/2)
= 5.7kN/m
Using ratio,
𝑥
5.7
=
1.15
4
x = 1.639kN/m
Live load on Slab C-D / 4-4.2 (two way slab)
Load is transferred to beam D / 3.1-4.2 in a triangular form. Convert the trapezoidal load into UDL.
Live load from slab C-D / 3-4 = [live load factor on Corridor (UBBL) x (Lx/2)]
= 4kN/m2 x (2.85m/2)
= 5.7kN/m
Live load on Slab C-D / 3.1-4.2 (two way slab)
Load is transferred to beam D / 3.1-4.2 in a triangular form. Convert the triangular load into UDL.
Live load from slab C-D / 4-4.2 = [live load factor on Corridor (UBBL) x (Lx/2) x (2/3)]
= 4kN/m2 x (5.15m/2) x (2/3)
= 6.867kN/m
53
Total Live Load Diagram for Beam D / 3.1-4.2
LL from Slab C-D / 3-4 = 1.639kN/m
LL from Slab C-D / 4-4.2 = 5.7kN/m
LL from Slab C-D / 3.1-4.2 = 6.867kN/m
Total LL on
3.1-4 = 8.506kN/m
4-4.2 = 12.567kN/m
3.1 4.24
1.15m 4m
1.639kN/m
5.7kN/m
6.867kN/m
8.506kN/m
12.567kN/m
54
Ultimate Load
Apply factor 1.4 and 1.6 to dead load and live load respectively.
Ultimate Load 3.1-4 = DL x 1.4 + LL x 1.6
= 17.645kN/m x 1.4 + 8.506kN/m x 1.6
= 38.313kN/m
Ultimate Load 4-4.2 = DL x 1.4 + LL x 1.6
= 21.3kN/m x 1.4 + 12.567kN/m x 1.6
= 49.927kN/m
55
Reaction Force on Beam D / 3.1-4.2 / 4
∑M = 0
0 = (RB x 5.15m) – (38.313 x 4.575m) – (33.128 x 4m) – (49.927 x 2m)
RB = 79.155kN
Total Load = RA + RB
RA = Total Load - RB
= 38.313 + 33.128 + 49.927 – 79.155
= 42.213kN
Shear Force on Beam D / 3.1-4.2 / 4
(79.155 - 38.313) kN = 40.842kN
(40.842 - 33.128) kN = 7.714kN
(7.714 - 49.927) kN = -42.213kN
(-42.213 + 42.213)kN = 0
Bending Moment on Beam D / 3.1-4.2 / 4
(+)
A
= (79.155 + 40.842) x 1.15 x (1/2)
= 68.998
Using ratio,
𝑥
5.7
=
1.15
4
x = 1.639kN/m
B
= (1/2) x 0.618 x 7.714
3.1 4.24
1.15m 4m
38.313kN/m
49.927kN/m
RA RB
33.128kN/m
79.155kN/m 42.213kN/m
56
= 2.384
(-)
C
= (1/2) x 42.213 x (4 – 0.618)
= 71.382
57
GROUND FLOOR BEAM, B-C / 2
58
Beam 3 Analysis Calculation
Ground Floor Beam, B-C / 2
1. Carries Self Weight – Dead Load
2. Slab Dead Load & Live Load
a. B-C / 1-2 (two way slab)
b. B-C / 2-3 (two way slab)
Beam self-weight = Beam size x concrete density
= 0.15m x 0.3m x 24 kN/m2
= 1.08 kN/m
Brick wall weight = Wall height x thickness x density
= 3m x 0.15m x 19kN/m2
= 8.55kN/m
Dead load on Slab B-C / 1-2 (two way slab)
Load is transferred to beam B-C / 2 in a trapezoidal form
Dead load from slab B-C / 1-2 = [dead load on slab x (Lx/2)]
= 3.6kN/m2 x (2.5m/2)
= 4.5kN/m
Dead load on Slab B-C / 2-3 (two way slab)
Load is transferred to beam B-C / 2 in a trapezoidal form
Dead load from slab B-C / 2-3 = [dead load on slab x (Lx/2)]
= 3.6kN/m2 x (2.5m/2)
= 4.5kN/m
59
Total Dead Load Diagram for Beam B-C / 2
Beam Self-weight = 1.08kN/m
Brick Wall Load = 8.55kN/m
DL from Slab B-C / 1-2 = 4.5kN/m
DL from Slab B-C / 2-3 = 4.5kN/m
Total DL = 18.63kN/m
B C
1.08kN/m
8.55kN/m
4.5kN/m
4.5kN/m
18.63kN/m
60
Live load on Slab B-C / 1-2 (two way slab)
Load is transferred to beam B-C / 2 in a triangular form. Convert the trapezoidal load into UDL.
Live load from slab B-C / 1-2 = [live load factor on Corridor (UBBL) x (Lx/2)]
= 4kN/m2 x (2.5m/2)
= 5kN/m
Live load on Slab B-C / 2-3 (two way slab)
Load is transferred to beam B-C / 2 in a triangular form. Convert the trapezoidal load into UDL.
Live load from slab B-C / 2-3 = [live load factor on Wash Closet (UBBL) x (Lx/2)]
= 2kN/m2 x (2.5m/2)
= 2.5kN/m
61
Total Live Load Diagram for Beam B-C / 2
LL from Slab B-C / 1-2 = 5kN/m
LL from Slab B-C / 2-3 = 2.5kN/m
Total LL = 7.5kN/m
B C
5kN/m
2.5kN/m
2.5kN/m
62
Ultimate Load
Apply factor 1.4 and 1.6 to dead load and live load respectively.
Ultimate Load B-C = DL x 1.4 + LL x 1.6
= 18.63kN/m x 1.4 + 7.5kN/m x 1.6
= 38.082kN/m
Reaction Force on Beam B-C / 2 (symmetrical beam)
(38.082kN/m x 3m) – Reaction Force = 0
Reaction Force = 114.246kN
Point Load Reaction Force on Beam B-C / 2
Total Load = RA + RB
RA = Total Load / 2
= 114.246kN/m / 2
= 57.123kN
B C
114.246kN/m
RA RB
57.123kN/m 57.123kN/m
3m
63
GROUND FLOOR BEAM, B / 1-3
64
Beam 4 Analysis Calculation
Ground Floor Beam, B / 1-3
1. Carries Self Weight – Dead Load
2. Brick Wall – Dead Load
3. Slab Dead Load & Live Load
a. A-B / 1-2 (two way slab)
b. A-B / 2-3 (two way slab)
c. B-C / 1-2 (two way slab)
d. B-C / 2-3 (two way slab)
Beam self-weight = Beam size x concrete density
= 0.2m x 0.3m x 24kN/m2
= 1.44kN/m
Brick wall weight = Wall height x thickness x density
= 3m x 0.15m x 19kN/m2
= 8.55kN/m
Dead load on Slab A-B / 1-2 (two way slab)
Load is transferred to beam B / 1-3 in a triangular form
Dead load from slab A-B / 1-2 = [dead load on slab x (Lx/2) x (2/3)]
= 3.6kN/m2 x (2.5m/2) x (2/3)
= 3kN/m
Dead load on Slab A-B / 2-3 (two way slab)
Load is transferred to beam B / 1-3 in a triangular form
Dead load from slab A-B / 2-3 = [dead load on slab x (Lx/2) x (2/3)]
= 3.6kN/m2 x (2.5m/2) x (2/3)
= 3kN/m
65
Dead load on Slab B-C / 1-2 (two way slab)
Load is transferred to beam B / 1-3 in a triangular form
Dead load from slab B-C / 1-2 = [dead load on slab x (Lx/2) x (2/3)]
= 3.6kN/m2 x (2.5m/2) x (2/3)
= 3kN/m
Dead load on Slab B-C / 2-3 (two way slab)
Load is transferred to beam B / 1-3 in a triangular form
Dead load from slab B-C / 2-3 = [dead load on slab x (Lx/2) x (2/3)]
= 3.6kN/m2 x (2.5m/2) x (2/3)
= 3kN/m
66
Total Dead Load Diagram for Beam B / 1-3
Beam Self-weight = 1.44kN/m
Brick Wall Load = 8.55kN/m
DL from Slab A-B / 1-2 = 3kN/m
DL from Slab A-B / 2-3 = 3kN/m
DL from Slab B-C / 1-2 = 3kN/m
DL from Slab B-C / 2-3 = 3kN/m
Total DL on
1-2 = 7.44kN/m
2-3 = 15.99kN/m
1 32
1.44kN/m
2.5m 2.5m
8.55kN/m
3kN/m
3kN/m
3kN/m
3kN/m
7.44kN/m
15.99kN/m
67
Live load on Slab A-B / 1-2 (two way slab)
Load is transferred to beam B / 1-3 in a triangular form. Convert the triangular load into UDL.
Live load from slab A-B / 1-2 = [live load factor on Bedroom (UBBL) x (Lx/2) x (2/3)]
= 1.5kN/m2 x (2.5m/2) x (2/3)
= 1.25kN/m
Live load on Slab A-B / 2-3 (two way slab)
Load is transferred to beam B / 1-3 in a triangular form. Convert the triangular load into UDL.
Live load from slab A-B / 2-3 = [live load factor on Storage (UBBL) x (Lx/2) x (2/3)]
= 2.5kN/m2 x (2.5m/2) x (2/3)
= 2.083kN/m
Live load on Slab B-C / 1-2 (two way slab)
Load is transferred to beam B / 1-3 in a triangular form. Convert the triangular load into UDL.
Live load from slab B-C / 1-2 = [live load factor on Corridor (UBBL) x (Lx/2) x (2/3)]
= 4kN/m2 x (2.5m/2) x (2/3)
= 3.333kN/m
Live load on Slab B-C / 2-3 (two way slab)
Load is transferred to beam B / 1-3 in a triangular form. Convert the triangular load into UDL.
Live load from slab B-C / 2-3 = [live load factor on Wash Closet (UBBL) x (Lx/2) x (2/3)]
= 2kN/m2 x (2.5m/2) x (2/3)
= 1.667kN/m
68
Total Live Load Diagram for Beam B / 1-3
LL from Slab A-B / 1-2 = 1.25kN/m
LL from Slab A-B / 2-3 = 2.083kN/m
LL from Slab B-C / 1-2 = 3.333kN/m
LL from Slab B-C / 2-3 = 1.667kN/m
Total LL on
1-2 = 4.583kN/m
2-3 = 3.75kN/m
1 32
2.083kN/m
2.5m 2.5m
1.25kN/m
3.333kN/m
1.667kN/m
69
Ultimate Load
Apply factor 1.4 and 1.6 to dead load and live load respectively.
Ultimate Load 1-2 = DL x 1.4 + LL x 1.6
= 7.44kN/m x 1.4 + 4.583kN/m x 1.6
= 17.7488kN/m
Ultimate Load 2-3 = DL x 1.4 + LL x 1.6
= 15.99kN/m x 1.4 + 3.75kN/m x 1.6
= 28.386kN/m
1 32
2.5m 2.5m
17.7488kN/m
28.386kN/m
70
Reaction Force on Beam B / 1-3
∑M = 0
0 = (RB x 5m) – (44.372 x 3.75m) – (57.123 x 2.5m) – (70.965 x 1.25m)
RB = 79.58175kN
Total Load = RA + RB
RA = Total Load - RB
= 44.372 + 57.123 + 70.965 – 79.58175
= 92.87825kN
Shear Force on Beam B / 1-3
(79.58175 – 44.372) kN = 35.20975kN
(35.20975 – 57.123) kN = -21.91325kN
(-21.91325 – 70.965)kN = -92.87825kN
(-92.87825 + 92.87825)kN = 0
Bending Moment on Beam B / 1-3
(+)
A
= (79.58175 + 35.20975) x 2.5 x (1/2)
= 143.489375
(-)
B
= (21.91325 + 92.87825) x 2.5 x (1/2)
= 143.489375
1 32
2.5m
44.372kN/m
2.5m
70.965kN/m
57.123kN/m
1 32
2.5m2.5m
44.372kN/m 70.965kN/m
57.123kN/m
RA RB
92.87825kN/m 92.87825kN/m
71
GROUNF FLOOR BEAM, A–B /2
72
Beam 5 Analysis Calculation
Ground Floor Beam, A-B / 2
1. Carries Self Weight – Dead Load
2. Slab Dead Load & Live Load
a. A-B / 1-2 (two way slab)
b. A-B / 2-3 (two way slab)
Beam self-weight = Beam size x concrete density
= 0.15m x 0.3m x 24 kN/m2
= 1.08 kN/m
Dead load on Slab A-B / 1-2 (two way slab)
Load is transferred to beam A-B / 2 in a trapezoidal form
Dead load from slab A-B / 1-2 = [dead load on slab x (Lx/2)]
= 3.6kN/m2 x (2.5m/2)
= 4.5kN/m
Dead load on Slab A-B / 2-3 (two way slab)
Load is transferred to beam A-B / 2 in a trapezoidal form
Dead load from slab A-B / 2-3 = [dead load on slab x (Lx/2)]
= 3.6kN/m2 x (2.5m/2)
= 4.5kN/m
73
Total Dead Load Diagram for Beam A-B / 2
Beam Self-weight = 1.08kN/m
DL from Slab A-B / 1-2 = 4.5kN/m
DL from Slab A-B / 2-3 = 4.5kN/m
Total DL = 10.08kN/m
A B
1.08kN/m
2.993m
4.5kN/m
4.5kN/m
10.08kN/m
74
Live load on Slab A-B / 1-2 (two way slab)
Load is transferred to beam A-B / 2 in a triangular form. Convert the trapezoidal load into UDL.
Live load from slab A-B / 1-2 = [live load factor on Bedroom (UBBL) x (Lx/2)]
= 1.5kN/m2 x (2.5m/2)
= 1.875kN/m
Live load on Slab A-B / 2-3 (two way slab)
Load is transferred to beam A-B / 2 in a triangular form. Convert the trapezoidal load into UDL.
Live load from slab A-B / 2-3 = [live load factor on Storage (UBBL) x (Lx/2)]
= 2.5kN/m2 x (2.5m/2)
= 3.125kN/m
75
Total Live Load Diagram for Beam A-B / 2
LL from Slab A-B / 1-2 = 1.875kN/m
LL from Slab A-B / 2-3 = 3.125kN/m
Total LL = 5kN/m
A B
1.875kN/m
2.993m
3.125kN/m
76
Ultimate Load
Apply factor 1.4 and 1.6 to dead load and live load respectively.
Ultimate Load A-B = DL x 1.4 + LL x 1.6
= 10.08kN/m x 1.4 + 5kN/m x 1.6
= 22.112kN/m
Reaction Force on Beam A-B / 2 (symmetrical beam)
(22.112kN/m x 2.993m) – Reaction Force = 0
Reaction Force = 66.181kN
Point Load Reaction Force on Beam A-B / 2
Total Load = RA + RB
RA = Total Load / 2
= 66.181kN/m / 2
= 33.09kN
A B
22.112kN/m
2.993m
A B
66.181kN/m
2.993m
RA RB
33.09kN/m 33.09kN/m
77
GROUND FLOOR BEAM, A / 1-3
78
Beam 6 Analysis Calculation
Ground Floor Beam, A / 1-3
1. Carries Self Weight – Dead Load
2. Brick Wall – Dead Load
3. Slab Dead Load & Live Load
a. A-B / 1-2 (two way slab)
b. A-B / 2-3 (two way slab)
Beam self-weight = Beam size x concrete density
= 0.2m x 0.3m x 24kN/m2
= 1.44kN/m
Brick wall weight = Wall height x thickness x density
= 3m x 0.15m x 19kN/m2
= 8.55kN/m
Dead load on Slab A-B / 1-2 (two way slab)
Load is transferred to beam B / 1-3 in a triangular form
Dead load from slab A-B / 1-2 = [dead load on slab x (Lx/2) x (2/3)]
= 3.6kN/m2 x (2.5m/2) x (2/3)
= 3kN/m
Dead load on Slab A-B / 2-3 (two way slab)
Load is transferred to beam B / 1-3 in a triangular form
Dead load from slab A-B / 2-3 = [dead load on slab x (Lx/2) x (2/3)]
= 3.6kN/m2 x (2.5m/2) x (2/3)
= 3kN/m
79
Total Dead Load Diagram for Beam B / 1-3
Beam Self-weight = 1.44kN/m
Brick Wall Load = 8.55kN/m
DL from Slab A-B / 1-2 = 3kN/m
DL from Slab A-B / 2-3 = 3kN/m
Total DL on
1-2 = 12.99kN/m
2-3 = 12.99kN/m
1 32
1.44kN/m
2.5m 2.5m
8.55kN/m
3kN/m
3kN/m
80
Live load on Slab A-B / 1-2 (two way slab)
Load is transferred to beam B / 1-3 in a triangular form. Convert the trapezoidal load into UDL.
Live load from slab A-B / 1-2 = [live load factor on Bedroom (UBBL) x (Lx/2) x (2/3)]
= 1.5kN/m2 x (2.5m/2)
= 1.875kN/m
Live load on Slab A-B / 2-3 (two way slab)
Load is transferred to beam B / 1-3 in a triangular form. Convert the trapezoidal load into UDL.
Live load from slab A-B / 2-3 = [live load factor on Wash Closet (UBBL) x (Lx/2) x (2/3)]
= 2kN/m2 x (2.5m/2)
= 2.5kN/m
81
Total Live Load Diagram for Beam B / 1-3
LL from Slab A-B / 1-2 = 1.875kN/m
LL from Slab A-B / 2-3 = 2.5kN/m
Total LL on
1-2 = 1.875kN/m
2-3 = 2.5kN/m
1 32
2.5kN/m
/m
1 32
1.44kN/m
2.5m 2.5m
2.5m 2.5m
1.875kN/m
/m
1 32
1.44kN/m
2.5m 2.5m
82
Ultimate Load
Apply factor 1.4 and 1.6 to dead load and live load respectively.
Ultimate Load 1-2 = DL x 1.4 + LL x 1.6
= 12.99kN/m x 1.4 + 1.875kN/m x 1.6
= 21.186kN/m
Ultimate Load 2-3 = DL x 1.4 + LL x 1.6
= 12.99kN/m x 1.4 + 2.5kN/m x 1.6
= 22.186kN/m 1 32
2.5m 2.5m
21.186kN/m 22.186kN/m
83
Reaction Force on Beam A / 1-3
∑M = 0
0 = (RA x 5m) – (21.186 x 3.75m) – (33.09 x 2.5m) – (22.186 x 1.25m)
RA = 37.981kN
Total Load = RA + RB
RB = Total Load – RA
= 21.186 + 33.09 + 22.186 – 37.981
= 38.481kN
Shear Force on Beam A / 1-3
(37.981 – 21.186) kN = 16.795kN
(16.795 – 33.09) kN = -16.295kN
(-16.295 – 22.186)kN = -38.481kN
(-38.481+38.481)kN = 0
Bending Moment on Beam A / 1-3
(+)
A
= (37.981 + 16.795) x 2.5 x (1/2)
= 68.47
(-)
B
= (38.481 + 16.295) x 2.5 x (1/2)
= 68.47
1 32
2.5m 2.5m
21.186kN/m 22.186kN/m
33.09kN/m
RA RB
38.481kN/m37.981kN/m
84
Beam Analysis Report (Chan Yi Qin | 0315964)
Beam 1 Analysis Calculation
First Floor Beam, A / 4-5
84
Beam 1 Analysis Calculation
First Floor Beam, A / 4-5
1. Carries self-weight - Dead Load
2. Brick wall - Dead Load
3. Slab Dead Load & Live Load
a. A-B / 4-5 (two way slab)
b. B-C / 4-5 (two way slab)
Beam self-weight = Beam size x concrete density
= 0.2m x 0.3m x 24kN/m3
= 1.44 kN/m
Brick wall weight = Wall height x thickness x density
= 3m x 0.15m x 19kN/m3
= 8.55 kN/m
Dead Load
Dead Load on Slab A-B / 4-5 (two way slab)
= Dead load on slab x (Length/ 2)
= 3.6kN/m2
x (2.993/ 2)m
= 5.387kN/m
Dead Load on Slab B-C / 4-5 (two way slab)
= Dead load on slab x (Length/ 2)
= 3.6kN/m2
x (3.000/ 2)m
= 5.4kN/m
85
Total Dead Load Diagram for Beam A / 4-5
Beam self-weight = 1.44kN/m
Brick wall load = 8.55kN/m
DL from slab A-B / 4-5 = 5.387kN/m
DL from slab B-C / 4-5 = 5.4kN/m
Total Dead Load = 20.777 kN/m
86
Live Load
Live Load on Slab A-B / 4-5 (two-way slab)
= Live load factor on bungalow (UBBL) x (Length/ 2)
= 1.5kN/m2
x (2.993/2)m
= 2.245kN/m
Live Load on Slab B-C / 4-5 (two-way slab)
= Live load factor on bungalow (UBBL) x (Length/ 2)
= 1.5kN/m2
x (3.000/2)m
= 2.25kN/m
Total Live Load Diagram for Beam A / 4-5
LL on slab A-B / 4-5 = 2.245kN/m
LL on slab B-C / 4-5 = 2.25kN/m
Total Live Load = 4.495kN/m
87
Ultimate Load
Apply factor 1.4 and 1.6 to dead load and live load respectively,
Ultimate Load 4-5 = (DL x 1.4) + (LL x 1.6)
= (20.777kN/m x 1.4) + (4.495kN/m x 1.6)
Total Ultimate Load = 36.28kN/m
Reaction Force on Beam
∑MA = 0
(36.28kN/m x 4.852m) x (4.852m/ 2) - 𝑅 𝑅x (4.852m) = 0
RB= 88.015kN
Total Load = RA + RB
RA = Total Load - RB
= (36.28kN/m x 4.852m) - 88.015kN
= 88.015kN
𝐴1= 𝐴2= (88.015 x 2.426m)/ 2 = 106.76kN/m
88
Beam 2 Analysis Calculation
First Floor Beam, A-B / 4
89
Beam 2 Analysis Calculation
First Floor Beam, A-B / 4
1. Carries self-weight - Dead Load
2. Brick wall - Dead Load
3. Slab Dead Load & Live Load
a. A-B / 3-4 (two way slab)
b. A-B / 4-5 (two way slab)
Beam self-weight = Beam size x concrete density
= 0.2m x 0.3m x 24kN/m3
= 1.44 kN/m
Brick wall weight = Wall height x thickness x density
= 3m x 0.15m x 19kN/m3
= 8.55 kN/m
Dead Load
Dead Load on Slab A-B / 3-4 (two way slab)
= Dead load on slab x (Length/ 2)
= 3.6kN/m2
x (4.013/ 2)m
= 7.223kN/m
Dead Load on Slab A-B / 4-5 (two way slab)
= Dead load on slab x (Length/ 2)
= 3.6kN/m2
x (4.852/ 2)m
= 8.734kN/m
90
Total Dead Load Diagram for Beam A-B / 4
Beam self-weight = 1.44kN/m
Brick wall load = 8.55kN/m
DL from slab A-B / 3-4 = 7.223kN/m
DL from slab A-B / 4-5 = 8.734kN/m
Total Dead Load = 25.947 kN/m
91
Live Load
Live Load on Slab A-B / 3-4 (two-way slab)
= Live load factor on bungalow (UBBL) x (Length/ 2)
= 1.5kN/m2
x (4.013/ 2)m
= 3.01kN/m
Live Load on Slab A-B / 4-5 (two-way slab)
= Live load factor on bungalow (UBBL) x (Length/ 2)
= 1.5kN/m2
x (4.852/ 2)m
= 3.639kN/m
Total Live Load Diagram for Beam A-B / 4
LL on slab A-B / 3-4 = 3.01kN/m
LL on slab A-B / 4-5 = 3.639kN/m
Total Live Load = 6.649kN/m
92
Ultimate Load
Apply factor 1.4 and 1.6 to dead load and live load respectively,
Ultimate Load 4-5 = (DL x 1.4) + (LL x 1.6)
= (25.947kN/m x 1.4) + (6.649kN/m x 1.6)
Total Ultimate Load = 46.96kN/m
𝛴 𝑀 𝐴= 0
(46.96kN/m x 2.993m) x (2.993m/ 2) - 𝑅 𝑅x (2.993m) = 0
RB = 70.28kN
Total Load = 𝑅 𝐴+ 𝑅 𝐵
𝑅 𝐴 = Total Load - 𝑅 𝐵
= (46.96kN/m x 2.993m) - 70.28kN
= 70.28kN
93
𝐴1= 𝐴2= (70.28 x 2.993m)/ 2 = 52.59kN/m
94
Beam 3 Analysis Calculation
First Floor Beam, B-C / 4-5
95
Beam 3 Analysis Calculation
First Floor Beam, B-C / 4-5
1. Carries self-weight - Dead Load
2. Brick wall - Dead Load
3. Slab Dead Load & Live Load
a. A-B / 4-5 (two way slab)
b. B-C / 4-5 (two way slab)
Beam self-weight = Beam size x concrete density
= 015m x 0.3m x 24kN/m3
= 1.08 kN/m
Brick wall weight = Wall height x thickness x density
= 3m x 0.15m x 19kN/m3
= 8.55 kN/m
Dead Load
Dead Load on Slab A-B / 4-5 (two way slab)
= Dead load on slab x (Length/ 2)
= 3.6kN/m2
x (2.993/ 2)m
= 5.387kN/m
Dead Load on Slab B-C / 4-5 (two way slab)
= Dead load on slab x (Length/ 2)
= 3.6kN/m2
x (3.000/ 2)m
= 5.4kN/m
96
Total Dead Load Diagram for Beam B-C / 4-5
Beam self-weight = 1.08kN/m
Brick wall load = 8.55kN/m
DL from slab A-B / 4-5 = 5.387kN/m
DL from slab B-C / 4-5 = 5.4kN/m
Total Dead Load = 20.417 kN/m
Live Load
Live Load on Slab A-B / 4-5 (two-way slab)
= Live load factor on bungalow (UBBL) x (Length/ 2)
= 1.5kN/m2
x (2.993/2)m
= 2.245kN/m
97
Live Load on Slab B-C / 4-5 (two-way slab)
= Live load factor on bungalow (UBBL) x (Length/ 2)
= 1.5kN/m2
x (3.000/2)m
= 2.25kN/m
Total Live Load Diagram for Beam B-C / 4-5
LL on slab A-B / 4-5 = 2.245kN/m
LL on slab B-C / 4-5 = 2.25kN/m
Total Live Load = 4.495kN/m
Ultimate Load
Apply factor 1.4 and 1.6 to dead load and live load respectively,
Ultimate Load 4-5 = (DL x 1.4) + (LL x 1.6)
= (20.417kN/m x 1.4) + (4.495kN/m x 1.6)
Total Ultimate Load = 35.776kN/m
98
Reaction Force on Beam
𝛴 𝑀 𝐴= 0
(35.776kN/m x 4.852m) x (4.852m/ 2) - 𝑅 𝑅x (4.852m) = 0
𝑅 𝐵= 86.793kN
Total Load = 𝑅 𝐴+ 𝑅 𝐵
𝑅 𝐴 = Total Load - 𝑅 𝐵
= (35.776kN/m x 4.852m) - 86.793kN
= 86.793kN
𝐴1=𝐴2 = (86.793 x 2.426m)/ 2 = 105.28kN/m
99
Beam 4 Analysis Calculation
First Floor Beam, B-C / 5
100
Beam 4 Analysis Calculation
First Floor Beam, B-C / 5
1. Carries self-weight - Dead Load
2. Slab Dead Load & Live Load
a. B-C / 4-5 (two way slab)
b. A-C / 5-6 (one way slab)
Beam self-weight = Beam size x concrete density
= 0.2m x 0.3m x 24kN/m3
= 1.44 kN/m
Dead Load
Dead Load on Slab B-C / 4-5 (two way slab)
= Dead load on slab x (Length/ 2)
= 3.6kN/m2
x (4.852/ 2)m
= 8.734kN/m
Dead Load on Slab A-C / 5-6 (one way slab)
= Dead load on slab x (Length/ 2)
= 3.6kN/m2
x (4.008/ 2)m
= 7.214kN/m
101
Total Dead Load Diagram for Beam B-C / 5
Beam self-weight = 1.44kN/m
DL from slab B-C / 4-5 = 8.734kN/m
DL from slab A-C / 5-6 = 7.214kN/m
Total Dead Load = 17.388 kN/m
Live Load
Live Load on Slab B-C / 4-5 (two-way slab)
= Live load factor on bungalow (UBBL) x (Length/ 2)
= 1.5kN/m2
x (4.852/ 2)m
= 3.639kN/m
Live Load on Slab A-C / 5-6 (one-way slab)
= Live load factor on bungalow (UBBL) x (Length/ 2)
= 1.5kN/m2
x (4.008/2)m
= 3.006kN/m
102
Total Live Load Diagram for Beam B-C / 5
LL on slab B-C / 4-5 = 3.639kN/m
LL on slab A-C / 5-6 = 3.006kN/m
Total Live Load = 6.645kN/m
Ultimate Load
Apply factor 1.4 and 1.6 to dead load and live load respectively,
Ultimate Load 4-5 = (DL x 1.4) + (LL x 1.6)
= (17.388kN/m x 1.4) + (6.645kN/m x 1.6)
Total Ultimate Load = 34.975kN/m
103
Reaction Force on Beam
𝛴 𝑀 𝐴= 0
(34.975kN/m x 3.000m) x (3.000m/ 2) -𝑅 𝐵 x (3.000m) = 0
𝑅 𝐵= 52.463kN
Total Load =𝑅 𝐴 + 𝑅 𝐵
𝑅 𝐴 = Total Load - 𝑅 𝐵
= (34.975kN/m x 3.000m) - 52.463kN
= 52.463kN
𝐴1= 𝐴2= (52.463 x 3.000m)/ 2 = 39.35kN/m
104
Beam 5 Analysis Calculation
First Floor Beam, C-D / 5
105
Beam 5 Analysis Calculation
First Floor Beam, C-D / 5
1. Carries self-weight - Dead Load
2. Slab Dead Load & Light Load
a. C-D / 4-5 (one way slab)
b. C-D / 5-6 (two way slab)
Beam self-weight = Beam size x concrete density
= 0.15m x 0.3m x 24kN/m3
= 1.08kN/m
Dead Load
Dead Load on Slab C-D / 4-5 (one way slab)
= Dead load on slab x (Length/ 2)
= 3.6kN/m2
x (4.852/ 2)m
= 8.734kN/m
Dead Load on Slab C-D / 5-6 (two way slab)
= Dead load on slab x (Length/ 2)
= 3.6kN/m2
x (4.008/ 2)m
= 7.214kN/m
106
Total Dead Load Diagram for Beam C-D / 5
Beam self-weight = 1.08kN/m
DL from slab C-D / 4-5 = 8.734kN/m
DL from slab C-D / 5-6 = 7.214kN/m
Total Dead Load = 17.028 kN/m
Live Load
Live Load on Slab C-D / 4-5 (one-way slab)
= Live load factor on bungalow (UBBL) x (Length/ 2)
= 1.5kN/m2
x (4.852/2)m
= 3.639kN/m
107
Total Live Load Diagram for Beam C-D / 5
LL on slab C-D / 5-6 = 3.639kN/m
Total Live Load = 3.639kN/m
Ultimate Load
Apply factor 1.4 and 1.6 to dead load and live load respectively,
Ultimate Load 4-5 = (DL x 1.4) + (LL x 1.6)
= (17.028kN/m x 1.4) + (3.639kN/m x 1.6)
Total Ultimate Load = 29.662kN/m
Reaction Force on Beam
𝛴 𝑀 𝐴= 0
(29.662kN/m x 2.847m) x (2.847m/ 2) - 𝑅 𝐵x (2.847m) = 0
𝑅 𝐵= 42.224kN
Total Load = 𝑅 𝐴+ 𝑅 𝐵
𝑅 𝐴 = Total Load - 𝑅 𝐵
= (29.662kN/m x 2.847m) - 42.224kN
= 42.224kN
108
𝐴1= 𝐴2= (42.224 x 1.424m)/ 2 = 30.05kN/m
109
Beam 6 Analysis Calculation
First Floor Beam, D / 4.2-6
110
Beam 6 Analysis Calculation
First Floor Beam, D / 4.2-6
1. Carries self-weight - Dead Load
2. Brick wall - Dead Load
3. Slab Dead Load & Live Load
a. C-D / 4-5 (one way slab)
b. C-D / 5-6 (two way slab)
c. D-F / 4.2-6 (two way slab)
Beam self-weight = Beam size x concrete density
= 0.2m x 0.3m x 24kN/m3
= 1.44 kN/m
Brick wall weight = Wall height x thickness x density
= 3m x 0.15m x 19kN/m3
= 8.55 kN/m
Dead Load
Dead Load on Slab C-D / 4-5 (one way slab)
= Dead load on slab x (Length/ 2)
= 3.6kN/m2
x (2.847/ 2)m
= 5.125kN/m
Dead Load on Slab C-D / 5-6 (two way slab)
= Dead load on slab x (Length/ 2)
= 3.6kN/m2
x (2.847/ 2)m
= 5.125kN/m
Dead Load on Slab D-F / 4.2-6 (two way slab)
= Dead load on slab x (Length/ 2)
= 3.6kN/m2
x (5.990/ 2)m
= 10.782kN/m
111
Total Dead Load Diagram for Beam D / 4.2-6
Beam self-weight = 1.44kN/m
Brick wall load = 8.55kN/m
DL from slab C-D / 5-6 = 5.125kN/m
DL from slab B-C / 4-5 = 5.125kN/m
DL from slab B-C / 4-5 = 10.782kN/m
Total Dead Load = 31.022 kN/m
112
Live Load
Live Load on Slab C-D / 4-5 (one way slab)
= Live load factor on bungalow (UBBL) x (Length/ 2)
= 1.5kN/m2
x (2.847/ 2)m
= 2.135kN/m
Live Load on Slab D-F / 5-6 (two way slab)
= Live load factor on bungalow (UBBL) x (Length/ 2)
= 1.5kN/m2
x (5.990/2)m
= 4.493kN/m
Total Live Load Diagram for Beam D / 4.2-6
LL on slab C-D / 4-5 = 2.135kN/m
LL on slab D-F / 5-6 = 4.493kN/m
Total Live Load = 6.628kN/m
113
Ultimate Load
Apply factor 1.4 and 1.6 to dead load and live load respectively,
Ultimate Load 4-5 = (DL x 1.4) + (LL x 1.6)
= (31.022kN/m x 1.4) + (6.628kN/m x 1.6)
Total Ultimate Load = 54.036kN/m
Reaction Force on Beam
𝛴 𝑀 𝐴= 0
(54.036kN/m x 4.008m) x (4.008m/ 2) - 𝑅 𝐵x (4.008m) = 0
𝑅 𝐵= 108.29kN
Total Load =𝑅 𝐴 + 𝑅 𝐵
𝑅 𝐴 = Total Load - 𝑅 𝐵
= (54.036kN/m x 4.008m) - 108.29kN
= 108.29kN
𝐴1= 𝐴2= (88.015 x 2.004m)/ 2 = 88.19kN/m
114
Column Analysis Report (Tang Pei Kei | 0318545)
Ground Floor
Architectural Plan
Structural Plan Load Distribution
Plan
115
First Floor
Architectural Plan
Structural Plan Load Distribution
Plan
116
Column E3
Roof Level
Dead Load
Slabs (Flat roof)
= total slab area x slab self-weight
= (4/2)m x (2.5+2.85)m x 3.6kN/m2
= 38.52kN
Roof Beams
= total beam length x beam self-weight
= (2 + 2.5 + 2.85)m x 1.44kN/m2
+ (2.85 / 2)m x 1.08kN/m
= 12.12kN
Total Dead Load for Roof Level
= 38.52kN + 12.12kN
= 50.64kN
1st
Floor
Dead Load
Walls
= total wall length x brick wall self-weight
= (2.5 + 2.85)m x 8.55kN/m
= 45.74kN
Slabs
= total slab area x slab self-weight
= (4/2)m x (2.5+2.85)m x 3.6kN/m2
= 38.52kN
117
Beams
= total beam length x beam self-weight
= (2 + 2.5 + 2.85)m x 1.44kN/m2
+ (2.85 / 2)m x 1.08kN/m
= 12.12kN
Columns Self-weight = 6.48kN
Total Dead Load for 1st
Floor
= 45.74kN + 38.52kN + 12.12kN + 6.48kN
= 102.86kN
Ground Floor
Dead Load
Walls
= total wall length x brick wall self-weight
= (2.5 + 2.85)m x 8.55kN/m
= 45.74kN
Slabs
= total slab area x slab self-weight
= (4/2)m x (2.5+2.85)m x 3.6kN/m2
= 38.52kN
Beams
= total beam length x beam self-weight
= (2 + 2.5 + 2.85)m x 1.44kN/m2
+ (2.85 / 2)m x 1.08kN/m
= 12.12kN
118
Columns Self-weight = 6.48kN
Total Dead Load for Ground Floor
= 45.74kN + 38.52kN + 12.12kN + 6.48kN
= 102.86kN
1st
Floor
Live Load
Bedroom 4
= total area x live load factor for bedroom
= (2m x 5.35m) x 1.5kN/m2
= 16.05kN
Ground Floor
Live Load
Guest Room
= total area x live load factor for bedroom
= (2m x 5.35m) x 1.5kN/m2
= 16.05kN
Ultimate Load
Ultimate Dead Load
= total dead load x dead load factor
= (50.64kN + 102.86kN + 102.86kN) x 1.4
= 358.9kN
Ultimate Live Load
= total live load x live load factor
= (16.05kN + 16.05kN) x 1.6
= 51.36kN
119
Ultimate Load Acting on Column E3
= 358.9kN + 51.36kN
= 410.26kN
120
Column D3
Roof Level
Dead Load
Slabs (Flat roof)
= total slab area x slab self-weight
= [(4 / 2 + 2.85 / 2)m x (2.5 + 2.85 /2)m] x 3.6kN/m2
= 48.4kN
Roof Beams
= total beam length x beam self-weight
= (2.5 + 2.85 + 2)m x 1.44kN/m2
+ (2.85 / 2)m x 1.08kN/m
= 12.12kN
Total Dead Load for Roof Level
= 48.4kN + 12.12kN
= 60.52kN
1st
Floor
Dead Load
Walls
= total wall length x brick wall self-weight
= (2.5 + 2+ 2.85)m x 8.55kN/m
= 62.84kN
Slabs (Flat roof)
= total slab area x slab self-weight
= [(4 / 2 + 2.85 / 2)m x (2.5 + 2.85 /2)m] x 3.6kN/m2
= 48.4kN
121
Beams
= total beam length x beam self-weight
= (2.5 + 2.85 + 2)m x 1.44kN/m2
+ (2.85 / 2)m x 1.08kN/m
= 12.12kN
Columns Self-weight = 6.48kN
Total Dead Load for 1st
Floor
= 62.84kN + 48.4kN + 12.12kN + 6.48kN
= 129.84kN
Ground Floor
Dead Load
Walls
= total wall length x brick wall self-weight
= (2.5 + 2+ 2.85)m x 8.55kN/m
= 62.84kN
Slabs (Flat roof)
= total slab area x slab self-weight
= [(4 / 2 + 2.85 / 2)m x (2.5 + 2.85 /2)m] x 3.6kN/m2
= 48.4kN
Beams
= total beam length x beam self-weight
= (2.5 + 2.85 + 2)m x 1.44kN/m2
+ (2.85 / 2)m x 1.08kN/m
= 12.12kN
Columns Self-weight = 6.48kN
122
Total Dead Load for Ground Floor
= 62.84kN + 48.4kN + 12.12kN + 6.48kN
= 129.84kN
1st
Floor
Live Load
Bedroom 4
= total area x live load factor for bedroom
= (2m x 2.5/2m) x 1.5kN/m2
= 3.75kN
Toilet
= total area x live load factor for toilet
= (2m x 2.85/2m) x 2.0kN/m2
= 5.7kN
Corridors
= total area x live load factor for corridor
= [(2.85/2)m x (2.5 + 2.85/2)m] x 4.0kN/m2
= 22.37kN
Total Live Load for 1st
Floor
= 3.75kN + 5.7kN + 22.37kN
= 31.82kN
Ground Floor
Live Load
Guest Room
= total area x live load factor for bedroom
= (2m x 2.5/2m) x 1.5kN/m2
= 3.75kN
123
Toilet
= total area x live load factor for toilet
= (2m x 2.85/2m) x 2.0kN/m2
= 5.7kN
Corridors
= total area x live load factor for corridor
= [(2.85/2)m x (2.5 + 2.85/2)m] x 4.0kN/m2
= 22.37kN
Total Live Load for Ground Floor
= 3.75kN + 5.7kN + 22.37kN
= 31.82kN
Ultimate Load
Ultimate Dead Load
= total dead load x dead load factor
= (60.52kN + 129.84kN + 129.84kN) x 1.4
= 448.28kN
Ultimate Live Load
= total live load x live load factor
= (31.82kN + 31.82kN) x 1.6
= 101.82kN
Ultimate Load Acting on Column D3
= 448.28kN + 101.82kN
= 550.1kN
124
Column C3
Roof Level
Dead Load
Slabs (Flat roof)
= total slab area x slab self-weight
= [(3 / 2 + 2.85 / 2)m x (2.5 + 4.01 /2)m] x 3.6kN/m2
= 47.44kN
Roof Beams
= total beam length x beam self-weight
= (2.5 + 2.85/2 + 3/2 + 4.01/2)m x 1.44kN/m2
+ (3/2)m x 1.08kN/m
= 12.32kN
Total Dead Load for Roof Level
= 47.44kN + 12.32kN
= 59.76kN
1st
Floor
Dead Load
Walls
= total wall length x brick wall self-weight
= (2.5 + 3 + 4.01/2)m x 8.55kN/m
= 64.17kN
Slabs (Flat roof)
= total slab area x slab self-weight
= [(3 / 2 + 2.85 / 2)m x (2.5 + 4.01 /2)m] x 3.6kN/m2
= 47.44kN
125
Roof Beams
= total beam length x beam self-weight
= (2.5 + 2.85/2 + 3/2 + 4.01/2)m x 1.44kN/m2
+ (3/2)m x 1.08kN/m
= 12.32kN
Columns Self-weight = 6.48kN
Total Dead Load for 1st
Floor
= 64.17kN + 47.44kN + 12.32kN + 6.48kN
= 130.41kN
Ground Floor
Dead Load
Walls
= total wall length x brick wall self-weight
= (2.5 + 3 + 4.01/2)m x 8.55kN/m
= 64.17kN
Slabs (Flat roof)
= total slab area x slab self-weight
= [(3 / 2 + 2.85 / 2)m x (2.5 + 4.01 /2)m] x 3.6kN/m2
= 47.44kN
Roof Beams
= total beam length x beam self-weight
= (2.5 + 2.85/2 + 3/2 + 4.01/2)m x 1.44kN/m2
+ (3/2)m x 1.08kN/m
= 12.32kN
Columns Self-weight = 6.48kN
126
Total Dead Load for Ground Floor
= 64.17kN + 47.44kN + 12.32kN + 6.48kN
= 130.41kN
1st
Floor
Live Load
Toilet
= total area x live load factor for toilet
= (3/2m x 2.5m) x 2.0kN/m2
= 7.5kN
Corridors
= total area x live load factor for corridor
= [(2.85/ 2)m x (2.5 + 4.01/2)m] x 4.0kN/m2
= 25.68kN
Bedroom 2
= total area x live load factor for bedroom
= (3/2m x 4.01/2m) x 1.5kN/m2
= 4.51kN
Total Live Load for 1st
Floor
= 7.5kN + 25.68kN + 4.51kN
= 37.69kN
Ground Floor
Live Load
Toilet
= total area x live load factor for toilet
= (3/2m x 2.5m) x 2.0kN/m2
= 7.5kN
127
Corridors
= total area x live load factor for corridor
= [(2.85/ 2)m x (2.5 + 4.01/2)m] x 4.0kN/m2
= 25.68kN
Kitchen
= total area x live load factor for kitchen
= (3/2m x 4.01/2m) x 3kN/m2
= 9.02kN
Total Live Load for Ground Floor
= 7.5kN + 25.68kN + 9.02kN
= 42.2kN
Ultimate Load
Ultimate Dead Load
= total dead load x dead load factor
= (59.76kN + 130.41kN + 130.41kN) x 1.4
= 448.81kN
Ultimate Live Load
= total live load x live load factor
= (37.69kN + 42.2kN) x 1.6
= 127.82kN
Ultimate Load Acting on Column E3
= 448.81kN + 127.82kN
= 576.63kN
128
129
Column 1 Analysis Calculation------Column B / 1
Roof
Slab
7.491m2 x 3.6kN/m2 = 26.968kN
Beam
(2.993 x ½ + 2 x ½ + 3 x ½) x1.44kN/m = 7.916kN
Total = 34.884kN
First Floor
Dead Load
Wall
(2.993 x ½ + 3 x ½) x 8.55kN/m = 25.62kN
Slab
7.491m2 x 3.6kN/m2 = 26.968kN
Beam
(2.993 x ½ + 2 x ½ + 3 x ½) x1.44kN/m = 7.916kN
Column
(0.3 x 0.3) x 3 x 24kN/m3 = 6.48kN
Total = 66.978kN
Ground Floor
Dead Load
Wall
(2.993 x ½ + 3 x ½ + 5 x ½) x8.55kN/m = 46.995kN
Slab
7.491m2 x 3.6kN/m2 = 26.968kN
Beam
(2.993 x ½ + 2 x ½ + 3 x ½) x1.44kN/m = 7.916kN
Column
(0.3 x 0.3) x 3 x 24kN/m3 = 6.48kN
Total = 88.359kN
Total Dead Load = 190.221kN
Apply 1.4 Factor = 266.309kN
Live Load
Bedroom
(2.993m x ½ + 5m x ½) x 1.5kN/m2 = 5.612kN
Bedroom
(3 x ½ + 5 x ½) x 1.5kN/m2 = 5.625kN
Live Load
Bedroom
(2.993m x ½ + 5m x ½) x 1.5kN/m2 = 5.612kN
Bedroom
(3 x ½ + 5 x ½) x 4kN/m2 = 15kN
Total = 31.849kN
Total Live Load = 31.849kN
Apply 1.6 Factor = 50.958kN
Total Ultimate Load on Column B / 1 = 317.267kN
130
131
Column 2 Analysis Calculation------Column B / 3
Roof
Slab
13.504m2 x 3.6kN/m2 = 48.614kN
Beam
(2.993 x ½ + 5 x ½ + 3 x ½ + 4.013 x ½)
x1.44kN/m = 10.804kN
Total = 59.418kN
First Floor
Dead Load
Wall
(2.993 x ½ + 3 x ½ + 5 x ½ +4.013 x ½)
x8.55kN/m = 64.151kN
Slab
13.504m2 x 3.6kN/m2 = 48.614kN
Beam
(2.993 x ½ + 3 x ½ + 5 x ½ +4.013 x ½)
x1.44kN/m = 10.804kN
Column
(0.3 x 0.3) x 3 x 24kN/m3 = 6.48kN
Total = 130.049kN
Ground Floor
Dead Load
Wall
(2.993 x ½ + 3 x ½ + 5 x ½ +4.013 x ½)
x8.55kN/m = 64.151kN
Slab
13.504m2 x 3.6kN/m2 = 48.614kN
Beam
(2.993 x ½ + 3 x ½ + 5 x ½ +4.013 x ½)
x1.44kN/m = 10.804kN
Column
(0.3 x 0.3) x 3 x 24kN/m3 = 6.48kN
Total = 130.049kN
Live Load
Bedroom
(2.993m x ½ + 5m x ½) x 1.5kN/m2 = 5.612kN
Wash Closet
(3 x ½ + 5 x ½) x 2kN/m2 = 5.625kN
Bedroom
(4.013 x ½ + 2.993 x ½) x 1.5kN/m2 = 4.505kN
Bedroom
(4.013 x ½ + 3 x ½) x 1.5kN/m2 = 4.515kN
Live Load
Bedroom
(2.993m x ½ + 5m x ½) x 1.5kN/m2 = 5.612kN
Wash Closet
(3 x ½ + 5 x ½) x 2kN/m2 = 7.5kN
Bedroom
(4.013 x ½ + 2.993 x ½) x 3kN/m2 = 9.009kN
Bedroom
(4.013 x ½ + 3 x ½) x 3kN/m2 = 9.03kN
Total = 51.408kN
132
Total Dead Load = 319.516kN
Apply 1.4 Factor = 447.32kN
Total Live Load = 51.408kN
Apply 1.6 Factor = 82.253kN
Total Ultimate Load on Column B / 3 = 529.58kN
133
134
Column 3 Analysis Calculation------Column B / 4
Roof
Slab
13.289m2 x 3.6kN/m2 = 47.84kN
Beam
(2.993 x ½ + 4.852 x ½ + 3 x ½ + 4.013
x ½) x1.44kN/m = 10.698kN
Total = 58.538kN
First Floor
Dead Load
Wall
(2.993 x ½ + 3 x ½ + 4.852 x ½)
x8.55kN/m = 46.362kN
Slab
13.283m2 x 3.6kN/m2 = 47.819kN
Beam
(2.993 x ½ + 3 x ½ + 4.852 x ½ +4.013
x ½) x1.44kN/m = 10.698kN
Column
(0.3 x 0.3) x 3 x 24kN/m3 = 6.48kN
Total = 111.359kN
Ground Floor
Dead Load
Wall
(4.852 x ½) x 8.55kN/m = 20.742kN
Slab
13.504m2 x 3.6kN/m2 = 47.819kN
Beam
(2.993 x ½ + 3 x ½ + 4.852 x ½ +4.013
x ½) x1.44kN/m = 10.698kN
Column
(0.3 x 0.4) x 3 x 24kN/m3 = 6.48kN
Total = 85.739kN
Live Load
Bedroom
(2.993m x ½ + 4.013m x ½) x 1.5kN/m2 = 4.505kN
Bedroom
(4.013 x ½ + 3 x ½) x 1.5kN/m2 = 4.515kN
Bedroom
(4.852 x ½ + 2.993 x ½) x 1.5kN/m2 = 5.447kN
Wash Closet
(4.852 x ½ + 3 x ½) x 2kN/m2 = 7.278kN
Live Load
Kitchen
(2.993m x ½ + 4.013m x ½) x 3kN/m2 = 9.009kN
Kitchen
(4.013 x ½ + 3 x ½) x 3kN/m2 = 4.515kN= 9.03kN
Kitchen
(4.852 x ½ + 2.993 x ½) x 3kN/m2 = 10.893kN
Kitchen
(4.852 x ½ + 3 x ½) x 3kN/m2 = 10.917kN
Total = 39.849kN
135
Total Dead Load = 255.636kN
Apply 1.4 Factor = 357.89kN
Total Live Load = 39.849kN
Apply 1.6 Factor = 63.758kN
Total Ultimate Load on Column B / 4 = 421.648kN
136
Column 1 Analysis Calculation (Chan Yi Qin | 0315964)
Column B3
137
Column 1 Analysis Calculation
Column B3 (Roof, First Floor, Ground Floor)
Dead Load
Dead load on roof
Area of slab acting on column B3
= (1.25 + 2.007)m x (1.4965 + 1.5)m
= 9.76 m2
Roof slab self-weight
= 3.6kN/m2
x 9.76 m2
= 35.13kN
Roof beam self-weight
= (1.4965 + 1.5 + 2.007 + 1.25)m x 1.44kN/m2
= 9kN
Total dead load on flat roof
= 35.13kN + 9kN
= 44.135kN
Dead load on first floor
Concrete slab
= 3.6kN/m2
x 9.76 m2
= 35.13kN
Beam self-weight
= (1.4965 + 1.5 + 2.007 + 1.25)m x 1.44kN/m2
= 9kN
Brick wall self-weight
= (1.4965 + 1.5 + 2.007 + 1.25)m x 8.55kN/m2
= 53.47kN
138
Column
= 0.3m x 0.3m x 3m x 24kN/𝑚3
= 6.48kN
Total dead load on first floor
= 35.13kN + 9kN + 53.47kN + 6.48kN
= 104.08kN
Dead load on ground floor
Concrete slab
= 3.6kN/m2
x 9.76 m2
= 35.13kN
Beam self-weight
= (1.4965 + 1.5 + 2.007 + 1.25)m x 1.44kN/m2
= 9kN
Brick wall self-weight
= (1.4965 + 1.5 + 2.007 + 1.25)m x 8.55kN/m2
= 53.47kN
Column
= 0.3m x 0.3m x 3m x 24kN/𝑚3
= 6.48kN
Total dead load on first floor
= 35.13kN + 9kN + 53.47kN + 6.48kN
= 104.08kN
Total Dead Load = 44.135kN + 104.08kN + 104.08kN
= 252.30kN
Apply 1.4 factor = 353.21kN
139
Live Load
Live load on first floor
Bedroom
= (3.257 x 3)m x 1.5kN/m2
= 14.66kN
Live load on ground floor
Kitchen
= (3.257 x 3)m x 3kN/m2
= 29.313kN
Total live load = 14.66kN + 29.313kN
= 43.873kN
Apply 1.6 factor = 70.36kN
Ultimate load acting on Column B3 = 353.21kN + 70.36kN = 423.57kN
140
Column 2 Analysis Calculation
Column B4
141
Column 2 Analysis Calculation
Column B4 (Roof, First Floor, Ground Floor)
Dead Load
Dead load on roof
Area of slab acting on column B4
= (2.007 + 2.426)m x (1.4965 + 1.5)m
= 8.134 m2
Roof slab self-weight
= 3.6kN/m2
x 8.134 m2
= 29.28kN
Roof beam self-weight
= (1.4965 + 1.5 + 2.007 + 2.426)m x 1.44kN/m2
= 10.698kN
Total dead load on flat roof
= 29.28kN + 10.698kN
= 39.98kN
Dead load on first floor
Concrete slab
= 3.6kN/m2
x 8.134 m2
= 29.28kN
Beam self-weight
= (1.4965 + 1.5 + 2.007 + 2.426)m x 1.44kN/m2
= 10.698kN
Brick wall self-weight
= (1.4965 + 1.5 + 2.007 + 2.426)m x 8.55kN/m2
= 63.52kN
142
Column
= 0.3m x 0.3m x 3m x 24kN/𝑚3
= 6.48kN
Total dead load on first floor
= 29.28kN + 10.698kN + 63.52kN + 6.48kN
= 109.98kN
Dead load on ground floor
Concrete slab
= 3.6kN/m2
x 8.134 m2
= 29.28kN
Beam self-weight
= (1.4965 + 1.5 + 2.007)m x 1.44kN/m2
= 7.21kN
Brick wall self-weight
= (1.4965 + 1.5 + 2.007)m x 8.55kN/m2
= 42.78kN
Column
= 0.3m x 0.3m x 3m x 24kN/𝑚3
= 6.48kN
Total dead load on ground floor
= 29.28kN + 7.21kN + 42.78kN + 6.48kN
= 85.75kN
Total Dead Load = 39.98kN + 109.98kN + 85.75kN
= 235.71kN
Apply 1.4 factor = 329.994kN
143
Live Load
Live load on first floor
Bedroom
= (3.257 x 3)m x 1.5kN/m2
= 14.66kN
Live load on ground floor
Kitchen
= (3.257 x 3)m x 3kN/m2
= 29.313kN
Total live load = 14.66kN + 29.313kN
= 43.873kN
Apply 1.6 factor = 70.36kN
144
Column 3 Analysis Calculation
Column C3
145
Column 3 Analysis Calculation
Column C3 (Roof, First Floor, Ground Floor)
Dead Load
Dead load on roof
Area of slab acting on column B5
= (1.25 + 2.01)m x (1.5 + 1.42)m
= 9.52 m2
Roof slab self-weight
= 3.6kN/m2
x 9.52 m2
= 34.27kN
Roof beam self-weight
= (1.5 + 1.42 + 1.25 + 2.01)m x 1.44kN/m2
= 8.90kN
Total dead load on flat roof
= 34.27kN + 8.90kN
= 43.17kN
Dead load on first floor
Concrete slab
= 3.6kN/m2
x 9.52 m2
= 34.27kN
Beam self-weight
= (1.5 + 1.42 + 1.25 + 2.01)m x 1.44kN/m2
= 8.90kN
Brick wall self-weight
= (1.5 + 1.42 + 1.25 + 2.01)m x 8.55kN/m2
= 52.84kN
146
Column
= 0.3m x 0.3m x 3m x 24kN/𝑚3
= 6.48kN
Total dead load on first floor
= 32.27kN + 8.90kN + 52.84kN + 6.48kN
= 100.13kN
Dead load on ground floor
Concrete slab
= 3.6kN/m2
x 9.52 m2
= 34.27kN
Beam self-weight
= (1.5 + 1.42 + 1.25 + 2.01)m x 1.44kN/m2
= 8.90kN
Brick wall self-weight
= (1.5 + 1.42 + 1.25 + 2.01)m x 8.55kN/m2
= 52.84kN
Column
= 0.3m x 0.3m x 3m x 24kN/𝑚3
= 6.48kN
Total dead load on ground floor
= 34.27kN + 8.90kN + 52.84kN + 6.48kN
= 102.49kN
Total Dead Load = 43.17kN + 100.13kN + 102.49kN
= 245.79kN
Apply 1.4 factor = 344.106kN
147
Live Load
Live load on first floor
Bedroom
= (3.257 x 3)m x 1.5kN/m2
= 14.66kN
Live load on ground floor
Kitchen
= (3.257 x 3)m x 3kN/m2
= 29.313kN
Total live load = 14.66kN + 29.313kN
= 43.873kN
Apply 1.6 factor = 70.36kN
148
Column Test Calculation (accordance to BS 8110)
Given that fcu = 30N/mm2
and fy = 460N/mm2
. Assuming percentage of steel reinforcement in
a square concrete column is 2%, determine the capacity of the column.
N = 0.4fcuAc + 0.8fyAsc
N = Capacity Of Concrete
Fcu = Concrete Strength (N/mm2
)
Ac = Cross Section of Concrete Column
Fy = Yield Strength of Steel (N/mm2
)
Asc = Steel Content in A Column
Ac = 300 x 300 = 90000
Asc = 2% x 90000 = 1800
N = 0.4fcuAc + 0.8fyAsc
= 0.4 x 30 x 90000 + 0.8 x 460 x 1800
= 1080000 + 662400
= 1742400N = 1742.4kN
Thus, this column can sustain any ultimate load below 1742.4kN.
149

Building Structures_Project_02

  • 1.
    Project 2 Structural Analysisof A Bungalow Building Structures (ARC 2522/2523) Group Members: Ang Wei Yi (0317885) Chan Yi Qin (0315964) Tang Pei Kei (0318545) Tutor: Mr Adib
  • 2.
    Content Page 1. Introduction 1 2.Architectural Floor Plan 2-4 3. Structural Plan 5-7 4. Load Distribution Plan 8-9 5. Foundation Plan 10 6. Design Brief 11-14 7. Beams Analysis Report 15-114 8. Column Analysis Report 115-149
  • 3.
    Introduction This bungalow isdesigned to consist of one master bedroom with attached bathroom, minimum of three bedrooms, two bathrooms, kitchen, living hall, dining area, and one store room within some selection of building layout. Little design element in this bungalow, but plays with the spatial arrangement and location of wall structure. We have to come out with our own design of columns and beams. Using structural analysis to prove the whole design is buildable and structural stable. We have chosen two very odd building layouts to challenge a more complex structural analysis calculation. We have to know about the whole system of load transfer from the roof to the beam to the column and to foundation. 2
  • 4.
    Quantity Dead Loadand Live Load Assumed Density of Materials Reinforced Concrete = 24kN/m3 Brick Wall = 19kN/m3 Strength of Material Concrete Strength (Fcu) = 30N/mm2 Yield Strength of Concrete Column (Fy) = 460 N/mm2 Thickness, Size and Height of Components Thickness of Brick Wall = 150mm Height of Brick Wall = 3000mm Thickness of Floor Slab = 150mm Size of Main Beam = 200mm x 300mm Size of Secondary Beam = 150mm x 300mm Height of the floors = 3000mm Size of Column = 150mm x 150mm Floor Height = 3000mm Dead Load Acting on Structure Main Beam Self-weight = beam size x density of concrete = (0.2m x 0.3m) x 24kN/m3 = 1.44kN/m Secondary Beam Self-weight = beam size x density of concrete = (0.15m x 0.3m) x 24kN/m3 = 1.08kN/m 11
  • 5.
    Brick Wall Self-weight =wall height x wall thickness x density of brick wall = 3m x 0.15m x 19kN/m3 = 8.55kN/m Slab Self-weight = slab thickness x density of concrete = 0.15m x 24kN/m3 = 3.6kN/m2 Column Self-weight = column size x density if concrete = (0.3m x 0.3m) x 3 x 24kN/m3 = 6.48kN/m Quantity Live Loads Acting on Structure (According to UBBL) Bungalows = 1.5kN/m2 Bedrooms = 1.5kN/m2 Living Room = 4.0kN/m2 Dining Room = 2.0kN/m2 Kitchen (Dry/ Wet) = 3.0kN/m2 Storage = 2.5kN/m2 Toilet = 2.0kN/m2 Laundry = 3.0kN/m2 Stairs = 1.5kN/m2 Lounges = 2.0kN/m2 Corridor = 4.0kN/m2 12
  • 6.
    Identity One Wayor Two Way Slab Indicating the distribution of load from slab to beam, Ly = longer side of slab Lx = shorter side of slab When Ly/Lx> 2, it is a one way slab; When Ly/Lx< 2 or = 2, it is a two way slab; Ground Floor Slab A-B/1-2 = 2993/2499 = 1.19 < 2 (Two Way Slab) Slab A-B/2-3 = 2993/2500 = 1.20 <2 (Two Way Slab) Slab A-B/3-4 = 4013/2993 = 1.01 <2 (Two Way Slab) Slab A-B/4-5 = 4852/2993 = 1.22 <2 (Two Way Slab) Slab B-C/1-2 = 3000/2499 = 1.20 < 2 (Two Way Slab) Slab B-C/2-3 = 3000/2500 = 1.20 <2 (Two Way Slab) Slab B-C/3-4 = 4013/3000 = 1.34 <2 (Two Way Slab) Slab B-C/4-5 = 4852/3000 = 1.62 <2 (Two Way Slab) Slab C-D/1-3 = 4999/2847 = 1.76 < 2 (Two Way Slab) Slab C-D/3-4 = 4013/2847 = 1.41 < 2 (Two Way Slab) Slab C-D/4-4.2 = 4001/2847 = 1.41 < 2 (Two Way Slab) Slab C-D/4.2-6 = 4858/2847 = 1.71 < 2 (Two Way Slab) Slab D-D’/3-3.1 = 2852/2001 = 1.43 < 2 (Two Way Slab) Slab D’-E/3-3.1 = 2852/2001 = 1.43 < 2 (Two Way Slab) Slab D-E/3-3.1 = 4999/4003 = 1.25 < 2 (Two Way Slab) Slab E-F/3-3.1 = 2852/1987 = 1.44 < 2 (Two Way Slab) Slab D-F/4-4.2 = 5990/5149 = 1.16 < 2 (Two Way Slab) Slab D-F/4.2-6 = 5990/4858 = 1.23 < 2 (Two Way Slab) 13
  • 7.
    Slab F-G/3-4 =4020/2852 = 1.41 < 2 (Two Way Slab) Slab F-G/4-4.2 = 4020/4001 = 1.00 < 2 (Two Way Slab) Slab F-G/4.2-6 = 4858/4020 = 1.21 < 2 (Two Way Slab) First Floor Slab A-B/1-2 = 2993/2499 = 1.19 < 2 (Two Way Slab) Slab A-B/2-3 = 2993/2500 = 1.20 <2 (Two Way Slab) Slab A-B/3-4 = 4013/2993 = 1.01 <2 (Two Way Slab) Slab A-B/4-5 = 4852/2993 = 1.22 <2 (Two Way Slab) Slab B-C/1-2 = 3000/2499 = 1.20 < 2 (Two Way Slab) Slab B-C/2-3 = 3000/2500 = 1.20 <2 (Two Way Slab) Slab B-C/3-4 = 4013/3000 = 1.34 <2 (Two Way Slab) Slab B-C/4-5 = 4852/3000 = 1.62 <2 (Two Way Slab) Slab A-C/5-6 = 5993/4008 = 1.50 <2 (Two Way Slab) Slab C-D/1-3 = 4999/2847 = 1.76 < 2 (Two Way Slab) Slab C-D/3-4 = 4013/2847 = 1.41 < 2 (Two Way Slab) Slab C-D/4-4.2 = 4001/2847 = 1.41 < 2 (Two Way Slab) Slab C-D/4.2-6 = 4858/2847 = 1.71 < 2 (Two Way Slab) Slab D-D’/3-3.1 = 2852/2001 = 1.43 < 2 (Two Way Slab) Slab D’-E/3-3.1 = 2852/2001 = 1.43 < 2 (Two Way Slab) Slab D-E/3-3.1 = 4999/4003 = 1.25 < 2 (Two Way Slab) Slab D-F/4.2-6 = 5990/4858 = 1.23 < 2 (Two Way Slab) 14
  • 8.
    Beam Analysis Report(Tang Pei Kei | 0318545) Architectural Plan 15
  • 9.
  • 10.
    Beam 4/F-G Dead Load DeadLoad from Beam Self-weight = 1.08kN/m Dead Load on slab F-G/3-4 = slab self-weight x (Length/ 2) = 3.6kN/m2 x (4/2)m = 7.2kN/m Dead Load on slab F-G/ 4-4.2 = slab self-weight x (Length/ 2) = 3.6kN/m2 x (4/2)m = 7.2kN/m Total Dead Load = 1.08kN/m + 7.2kN/m +7.2kN/m = 15.48kN/m Live Load Live Load on slab F-G/3-4 = Live Load Factor on Bungalow (UBBL) X (Length/2) = 1.5kN/m2 x (4/2)m = 3kN/m Live Load on slab F-G/ 4-4.2 = Live Load Factor on Bungalow (UBBL) X (Length/2) = 1.5kN/m2 x (4/2)m = 3kN/m Total Live Load = 3kN/m + 3kN/m = 6kN/m FF G 1.08kN/m 7.2kN/m 7.2kN/m 15.48kN/m 4020 Beam Self-weight Slab F-G/3-4 Slab F-G/4-4.2 Total Dead Load FF G 3kN/m 4020 Slab F-G/3-4 Slab F-G/4-4.2 3kN/m 6kN/m Total Live Load 17
  • 11.
    Ultimate Load Total UltimateDead Load = total dead load x dead load factor = 15.48kN/m x 1.4 = 21.67kN/m Total Ultimate Live Load = total live load x live load factor = 6kN/m x 1.6 = 9.6kN/m Total Ultimate Load = total ultimate dead load + total ultimate live load = 21.67kN/m + 9.6kN/m = 31.27kN/m Reaction Force on Beam Total Load on beam 4/F-G = total ultimate load x length of the beam = 31.27kN/m x 4.02m = 125.71kN In this case, the load is equivalent to only one Point load in the middle of the beam, Therefore, Rf = Rg and ∑Fy = 0 ∑Fy = Rf + Rg - 125.71kN 2 Rf = 125.71kN Rf = Rg = 62.86kN FF 31.27kN/m 4020 Free Body Diagram G Rf Rg125.71kN FF 4020 Free Body Diagram G Rf Rg 125.71kN 62.86kN 62.86kN FF 31.27kN/m 4020 Total Ultimate Load G 18
  • 12.
    FF 4020 G 31.27kN/m 62.86kN 62.86kN + - 62.86kN -62.86kN = 0kN 62.86kN - 62.86kN = -62.86kN 62.86kN A + 66.19kNm 66.19kNm - 66.19kNm = 0kNm A Load Diagram Shear Force Diagram Bending Moment Diagram Bending Moment Diagram +ve = [(2.01 x 62.86) / 2] = 66.19(kNm) -ve = [(2.01 x -62.86) / 2] = -66.19(kNm) 19
  • 13.
    Beam 3.1/ E-F DeadLoad Dead Load from Beam Self-weight = 1.08kN/m Dead Load on slab E-F/3-4 = slab self-weight x (Length/ 2) = 3.6kN/m2 x (2.85/2)m = 5.13kN/m Dead Load on slab D-F/3.1-4.2 = slab self-weight x (Length/ 2) x 1/3 = 3.6kN/m2 x (5.15/2)m x 1/3 = 3.09kN/m Total Dead Load = 1.08kN/m + 5.13kN/m + 3.09kN/m = 9.3kN/m Live Load Live Load on slab E-F/3-4 = Live Load Factor on Bungalow (UBBL) X (Length/2) = 1.5kN/m2 x (2.85/2)m = 2.14kN/m Live Load on slab D-F/3.1-4.2 = Live Load Factor on Bungalow (UBBL) X (Length/2) = 1.5kN/m2 x (5.15/2)m x 1/3 = 1.29kN/m Total Live Load = 2.14kN/m + 1.29kN/m = 3.43kN/m FE F 1.08kN/m 5.13kN/m 3.09kN/m 9.3kN/m 1987 Beam Self-weight Slab E-F/3-4 Slab D-F/3.1-4.2 Total Dead Load FE F 2.14kN/m 1987 Slab F-G/3-4 Slab F-G/4-4.2 1.29kN/m 3.43kN/m Total Live Load 20
  • 14.
    Ultimate Load Total UltimateDead Load = total dead load x dead load factor = 9.3kN/m x 1.4 = 13.02kN/m Total Ultimate Live Load = total live load x live load factor = 3.43kN/m x 1.6 = 5.49kN/m Total Ultimate Load = total ultimate dead load + total ultimate live load = 13.02kN/m + 5.49kN/m = 18.51kN/m Reaction Force on Beam Total Load on beam 3.1/E-F = total ultimate load x length of the beam = 18.51kN/m x 2m = 37.02kN In this case, the load is equivalent to only one Point load in the middle of the beam, Therefore, Re = Rf and ∑Fy = 0 ∑Fy = Re + Rf – 37.02kN 2 Rf = 37.02kN Rf = Rg = 18.51kN FE 18.51kN/m 1987 Free Body Diagram F Re Rf37.02kN FE 1987 Free Body Diagram F Re Rf 37.02kN 18.51kN FE 18.51kN/m 1987 Total Ultimate Load F 18.51kN 21
  • 15.
    F 1987 G 18.51kN + - 37.02kN - 37.02kN =0kN 0kN - 37.02kN = -37.02kN 37.02kN + 36.83kNm 36.83kNm - 36.83kNm = 0kNm Load Diagram Shear Force Diagram Bending Moment Diagram A A 18.51kN/m 18.51kN Bending Moment Diagram +ve = [(1.99 x 37.02) / 2] = 36.83(kNm) -ve = [(1.99 x -37.02) / 2] = -36.83(kNm) 22
  • 16.
    Beam D’/3-3.1 Dead Load DeadLoad from Beam Self-weight = 1.08kN/m Dead Load from Brick Wall Self-weight = 8.55kN/m Dead Load on slab D-D’/3-3.1 = slab self-weight x (Length/ 2) = 3.6kN/m2 x (4/2)m = 7.2kN/m Dead Load on slab D’-F/3-3.1 = slab self-weight x (Length/ 2) = 3.6kN/m2 x (4/2)m = 7.2kN/m Total Dead Load = 1.08kN/m + 8.55kN/m + 7.2kN/m + 7.2kN/m = 24.03kN/m Live Load Live Load on slab D-D’/3-3.1 = Live Load Factor on Bungalow (UBBL) X (Length/2) = 1.5kN/m2 x (4/2)m = 3kN/m Live Load on slab D’-F/3-3.1 = Live Load Factor on Bungalow (UBBL) X (Length/2) = 1.5kN/m2 x (4/2)m = 3kN/m F3 3.1 1.08kN/m 8.55kN/m 7.2kN/m 24.03kN/m 2852 Beam Self-weight Slab D’-F/3-3.1 Total Dead Load F3 3kN/m 2852 Slab D-D’/3-3.1 Slab D’-F/3-3.1 3kN/m 7.2kN/m Slab D-D’/3-3.1 Brick Wall Self-weight 3.1 23
  • 17.
    Total Live Load =3kN/m + 3kN/m = 6kN/m Ultimate Load Total Ultimate Dead Load = total dead load x dead load factor = 24.03kN/m x 1.4 = 33.64kN/m Total Ultimate Live Load = total live load x live load factor = 6kN/m x 1.6 = 9.6kN/m Total Ultimate Load = total ultimate dead load + total ultimate live load = 33.64kN/m+ 9.6kN/m = 43.24kN/m Reaction Force on Beam Total Load on beam D’/3-3.1 = total ultimate load x length of the beam = 43.24kN/m x 2.85m = 123.23kN F3 2852 6kN/m Total Live Load F3 43.24kN/m 2852 Free Body Diagram R3 R3.1123.23kN F3 43.24kN/m 2852 Total Ultimate Load 3.1 3.1 3.1 24
  • 18.
    In this case,the load is equivalent to only one Point load in the middle of the beam, Therefore, R3 = R3.1 and ∑Fy = 0 ∑Fy = R3 + R3.1 - 125.71kN 2 R3 = 123.23kN R3 = R3.1 = 61.62kN F3 2852 Free Body Diagram R3 R3.1 123.23kN 61.62kN 61.62kN 3.1 3 3 2852 61.62kN + - 123.23kN - 123.23kN = 0kN 0kN - 123.23kN = -123.23kN 123.23kN + 87.8kNm 87.8kNm - 87.8kNm = 0kNm Load Diagram Shear Force Diagram Bending Moment Diagram A A 3.1 43.24kN/m 61.62kN Bending Moment Diagram +ve = [(2.85 / 2 x 123.23) / 2] = 87.8(kNm) -ve = [(2.85 / 2 x -123.23) / 2] = -87.8(kNm) 25
  • 19.
    Beam F/3-4.2 Dead Load DeadLoad from Beam Self-weight = 1.44kN/m Dead Load on slab E-F/3-3.1 = slab self-weight x (Length/ 2) = 3.6kN/m2 x (2/2)m = 3.6kN/m Dead Load on slab D-F/ 3.1-4.2 = slab self-weight x (Length/ 2) = 3.6kN/m2 x (6/2)m = 10.8kN/m Dead Load on slab F-G/ 3-4 = slab self-weight x (Length/ 2) = 3.6kN/m2 x (4.02/2)m = 7.24kN/m Dead Load on slab F-G/ 4-4.2 = slab self-weight x (Length/ 2) = 3.6kN/m2 x (4.02/2)m = 7.24kN/m Total Dead Load For 3-3.1 = 1.44kN/m + 3.6kN/m + 7.24kN/m = 12.28kN/m For 3.1-4 = 1.44kN/m + 10.8kN/m + 7.24kN/m = 19.48kN/m For 4-4.2 = 1.44kN/m + 10.8kN/m + 7.24kN/m = 19.48kN/m F3 4.2 1.44kN/m 3.6kN/m 10.8kN/m 12.28kN/m Beam Self-weight Slab E-F/3-3.1 Slab D-F/3.1-4.2 Total Dead Load F4F3.1 7.24kN/m Slab F-G/3-4 7.24kN/m Slab F-G/4-4.2 2852 1148 4001 19.48kN/m 19.48kN/m 26
  • 20.
    Live Load Live Loadon slab E-F/3-3.1 = Live Load Factor on Bungalow (UBBL) X (Length/2) = 1.5kN/m2 x (2/2)m = 1.5kN/m Live Load on slab D-F/ 3.1-4.2 = Live Load Factor on Bungalow (UBBL) X (Length/2) = 1.5kN/m2 x (6/2)m = 4.5kN/m Live Load on slab F-G/ 3-4 = Live Load Factor on Bungalow (UBBL) X (Length/2) = 1.5kN/m2 x (4.02/2)m = 3.02kN/m Live Load on slab F-G/ 4-4.2 = Live Load Factor on Bungalow (UBBL) X (Length/2) = 1.5kN/m2 x (4.02/2)m = 3.02kN/m Total Live Load For 3-3.1 = 1.5kN/m + 3.02kN/m = 4.52kN/m For 3.1-4 = 4.5kN/m + 3.02kN/m = 7.52kN/m For 4-4.2 = 4.5kN/m + 3.02kN/m = 7.52kN/m F3 4.2 1.5kN/m 4.5kN/m 4.52kN/m Slab E-F/3-3.1 Slab D-F/3.1-4.2 Total Live Load FF3.1 3.02kN/m Slab F-G/3-4 3.02kN/m Slab F-G/4-4.2 2852 1148 4001 7.52kN/m 4 7.52kN/m 27
  • 21.
    Ultimate Load Total UltimateDead Load at Slab 3-3.1 = total dead load x dead load factor = 12.28kN/m x 1.4 = 17.19kN/m Total Ultimate Dead Load at Slab 3.1-4 = total dead load x dead load factor = 19.48kN/m x 1.4 = 27.27kN/m Total Ultimate Dead Load at Slab 4-4.2 = total dead load x dead load factor = 19.48kN/m x 1.4 = 27.27kN/m Total Ultimate Live Load at Slab 3-3.1 = total live load x live load factor = 4.52kN/m x 1.6 = 7.23kN/m Total Ultimate Live Load at Slab 3.1-4 = total live load x live load factor = 7.52kN/m x 1.6 = 12.03kN/m Total Ultimate Live Load at Slab 4-4.2 = total live load x live load factor = 7.52kN/m x 1.6 = 12.03kN/m F3 4.2FF3.1 4 2852 1148 4001 17.19kN/m 27.27kN/m Slab 3-3.1 Slab 3.1-4 27.27kN/m Slab 4-4.2 7.23kN/m 12.03kN/m Slab 3-3.1 Slab 3.1-4 12.03kN/m Slab 4-4.2 28
  • 22.
    Total Ultimate Loadat 3-3.1 = total ultimate dead load + total ultimate live load = 17.19kN/m + 12.03kN/m = 29.22kN/m Total Ultimate Load at 3.1-4 = total ultimate dead load + total ultimate live load = 27.27kN/m + 12.03kN/m = 39.3kN/m Total Ultimate Load at 4-4.2 = total ultimate dead load + total ultimate live load = 27.27kN/m + 12.03kN/m = 39.3kN/m Point Load at 4 = reaction force for beam 4/F-G at 4/F = 62.86kN Point Load at 3.1 = reaction force for beam 3.1/E-F at 3.1/F = 18.51kN F3 4.2 29.22kN/m Total Ultimate Load FF3.1 39.3kN/m 4 2852 1148 4001 39.3kN/m 29.22kN/m Free Body Diagram 39.3kN/m39.3kN/m 62.86kN 18.51kN 29
  • 23.
    Reaction Force onBeam Total Load on 3-3.1 = total ultimate load x length of the beam = 29.22kN/m x 2.85m = 83.28kN Total Load on 3.1-4 = total ultimate load x length of the beam = 39.3kN/m x 1.15m = 45.2kN Total Load on 4-4.2 = total ultimate load x length of the beam = 39.3kN/m x 4m = 157.2kN Point Load at 3.1 = 18.51kN Point Load at 4 = 62.86kN ∑M = 0 0 = (R3 x 8m) - (83.28kN x 6.58m) - (45.2kN x 4.58m) - (157.2kN x 2m) - (18.51kN x 5.15m) - (62.86kN x 4m) 8R3 = 1416.16kNm R3 = 177.02kN ∑F = 0 0 = R3 + R4.2 – 83.28kN - 45.2kN - 157.2kN - 18.51kN - 62.86kN R4.2 = 190.03kN F3 4.2F3.1 F4 29.22kN/m Free Body Diagram 39.3kN/m39.3kN/m 83.28kN 177.02kN/m R3 R4.2 2852 1148 4001 8001 45.2kN 157.2kN Free Body Diagram R3 R4.2 190.03kN/m 83.28kN 45.2kN 157.2kN 18.51kN 62.86kN 30
  • 24.
    F3 4.2F3.1 F4 29.22kN/m 39.3kN/m39.3kN/m R3R4.2 2852 1148 4001 8001 177.02kN/m 190.03kN/m 18.51kN 62.86kN Load Diagram Shear Force Diagram Bending Moment Diagram At Point 3.1A, = [177.02kN – (29.22kN/m x 2.85m)] = 93.74kN At Point 3.1B, = [93.74kN – 18.51kN] = 75.23kN At Point 4C, = [75.23kN – (39.3kN/m x 1.15m)] = 30.04kN At Point 4D, = [30.04kN – 62.86kN] = -32.83kN At Point 4.2E, = [-32.83kN – (39.3kN/m x 4m)] = -190.03kN At Point 4.2F, = [-190.03kN + 190.03kN] = 0kN 177.02kN A 75.23kNC 93.74kN B -32.83kN E -190.03kN F 0kNG D 30.04kN + - + Bending Moment Diagram +ve = (2.85 x177.02) – [2.85 x (177.02 - 93.74) / 2] + (1.15 x 75.23) – [1.15 x (75.23 - 30.04) / 2] = 385.83 + 60.53 = 446.36  446(kNm) -ve = (4 x -190.03) – [4 x (-190.03+32.83) / 2] = -445.72  -446(kNm) 446kNm 446kNm – 446kNm = 0kNm 385.83kNm 31
  • 25.
    Prepared by ANG WEIYI 0317885 42
  • 26.
  • 27.
    Beam 1 AnalysisCalculation Ground Floor Beam, C-D / 4 1. Carries Self Weight – Dead Load 2. Slab Dead Load & Live Load a. C-D / 3-4 (two way slab) b. C-D / 4-4.2 (two way slab) Beam self-weight = Beam size x concrete density = 0.15m x 0.3m x 24 kN/m2 = 1.08 kN/m Dead load on Slab C-D / 3-4 (two way slab) Load is transferred to beam C-D / 4 in a triangular form Dead load from slab C-D / 3-4 = [dead load on slab x (Lx/2) x (2/3)] = 3.6kN/m2 x (2.85m/2) x (2/3) = 3.42kN/m Dead load on Slab C-D / 4-4.2 (two way slab) Load is transferred to beam C-D / 4 in a triangular form Dead load from slab C-D / 4-4.2 = [dead load on slab x (Lx/2) x (2/3)] = 3.6kN/m2 x (2.85m/2) x (2/3) = 3.42kN/m 44
  • 28.
    Total Dead LoadDiagram for Beam C-D / 4 Beam Self-weight = 1.08kN/m DL from Slab C-D / 3-4 = 3.42kN/m DL from Slab C-D / 4-4.2 = 3.42kN/m Total DL = 7.92kN/m C D 7.92kN/m 1.08kN/m 3.42kN/m 3.42kN/m 45
  • 29.
    Live load onSlab C-D / 3-4 (two way slab) Load is transferred to beam C-D / 4 in a triangular form. Convert the triangular load into UDL. Live load on Slab C-D / 3-4 (two way slab) Load is transferred to beam C-D / 4 in a triangular form. Convert the triangular load into UDL. Live load from slab C-D / 3-4 = [live load factor on Corridor (UBBL) x (Lx/2) x (2/3)] = 4kN/m2 x (2.85m/2) x (2/3) = 3.8kN/m Dead load on Slab C-D / 4-4.2 (two way slab) Load is transferred to beam C-D / 4 in a triangular form. Convert the triangular load into UDL. Dead load from slab C-D / 4-4.2 = [live load factor on Corridor (UBBL) x (Lx/2) x (2/3)] = 4kN/m2 x (2.85m/2) x (2/3) = 3.8kN/m 46
  • 30.
    Total Live LoadDiagram for Beam C-D / 4 LL from Slab C-D / 3-4 = 3.8kN/m LL from Slab C-D / 4-4.2 = 3.8kN/m Total LL = 7.6kN/m C D 3.8kN/m 3.8kN/m 7.6kN/m 47
  • 31.
    Ultimate Load Apply factor1.4 and 1.6 to dead load and live load respectively. Ultimate Load B-C = DL x 1.4 + LL x 1.6 = 7.92kN/m x 1.4 + 7.6kN/m x 1.6 = 23.248kN/m Reaction Force on Beam C-D / 4 (symmetrical beam) (23.248kN/m x 2.85m) – Reaction Force = 0 Reaction Force = 66.2568Kn Point Load Reaction Force on Beam C-D / 4 Total Load = RA + RB RA = Total Load / 2 = 66.2568kN/m / 2 = 33.1284kN RA RB 66.2568kN/m C D 33.1284kN/m Shear Force Diagram 48
  • 32.
    GROUND FLOOR BEAM,D / 3.1-4.2 49
  • 33.
    Beam 2 AnalysisCalculation Ground Floor Beam, D / 3.1-4.2 1. Carries Self Weight – Dead Load 2. Brick Wall – Dead Load 3. Slab Dead Load & Live Load a. C-D / 3-4 (two way slab) b. C-D / 4-4.2 (two way slab) c. D-F / 3.1-4.2 (two way slab) Beam self-weight = Beam size x concrete density = 0.2m x 0.3m x 24kN/m2 = 1.44kN/m Brick wall weight = Wall height x thickness x density = 3m x 0.15m x 19kN/m2 = 8.55kN/m Dead load on Slab C-D / 3-4 (two way slab) Load is transferred to beam D / 3.1-4.2 in a trapezoidal form Dead load from slab C-D / 3-4 = [dead load on slab x (Lx/2)] = 3.6kN/m2 x (2.85m/2) = 5.13kN/m Using ratio, 𝑥 5.13 = 1.15 4 x = 1.475kN/m Dead load on Slab C-D / 4-4.2 (two way slab) Load is transferred to beam D / 3.1-4.2 in a trapezoidal form Dead load from slab C-D / 4-4.2 = [dead load on slab x (Lx/2)] = 3.6kN/m2 x (2.85m/2) = 5.13kN/m 50
  • 34.
    Dead load onSlab D-F / 3.1-4.2 (two way slab) Load is transferred to beam D / 3.1-4.2 in a triangular form Dead load from slab D-F / 3.1-4.2= [dead load on slab x (Lx/2) x (2/3)] = 3.6kN/m2 x (5.15m/2) x (2/3) = 6.18kN/m 51
  • 35.
    Total Dead LoadDiagram for Beam D / 3.1-4.2 Beam Self-weight = 1.44kN/m Brick Wall Load = 8.55kN/m DL from Slab C-D / 3-4 = 1.475kN/m DL from Slab C-D / 4-4.2 = 5.13kN/m DL from Slab D-F / 3.1-4.2 = 6.18kN/m Total DL on 3.1-4 =17.645kN/m 4-4.2 = 21.3kN/m 1.44kN/m 8.55kN/m 1.475kN/m 5.13kN/m 6.18kN/m 17.645kN/ m 21.3kN/m 3.1 4.24 1.15m 4m 52
  • 36.
    Live load onSlab C-D / 3-4 (two way slab) Load is transferred to beam D / 3.1-4.2 in a triangular form. Convert the trapezoidal load into UDL. Live load from slab C-D / 3-4 = [live load factor on Corridor (UBBL) x (Lx/2)] = 4kN/m2 x (2.85m/2) = 5.7kN/m Using ratio, 𝑥 5.7 = 1.15 4 x = 1.639kN/m Live load on Slab C-D / 4-4.2 (two way slab) Load is transferred to beam D / 3.1-4.2 in a triangular form. Convert the trapezoidal load into UDL. Live load from slab C-D / 3-4 = [live load factor on Corridor (UBBL) x (Lx/2)] = 4kN/m2 x (2.85m/2) = 5.7kN/m Live load on Slab C-D / 3.1-4.2 (two way slab) Load is transferred to beam D / 3.1-4.2 in a triangular form. Convert the triangular load into UDL. Live load from slab C-D / 4-4.2 = [live load factor on Corridor (UBBL) x (Lx/2) x (2/3)] = 4kN/m2 x (5.15m/2) x (2/3) = 6.867kN/m 53
  • 37.
    Total Live LoadDiagram for Beam D / 3.1-4.2 LL from Slab C-D / 3-4 = 1.639kN/m LL from Slab C-D / 4-4.2 = 5.7kN/m LL from Slab C-D / 3.1-4.2 = 6.867kN/m Total LL on 3.1-4 = 8.506kN/m 4-4.2 = 12.567kN/m 3.1 4.24 1.15m 4m 1.639kN/m 5.7kN/m 6.867kN/m 8.506kN/m 12.567kN/m 54
  • 38.
    Ultimate Load Apply factor1.4 and 1.6 to dead load and live load respectively. Ultimate Load 3.1-4 = DL x 1.4 + LL x 1.6 = 17.645kN/m x 1.4 + 8.506kN/m x 1.6 = 38.313kN/m Ultimate Load 4-4.2 = DL x 1.4 + LL x 1.6 = 21.3kN/m x 1.4 + 12.567kN/m x 1.6 = 49.927kN/m 55
  • 39.
    Reaction Force onBeam D / 3.1-4.2 / 4 ∑M = 0 0 = (RB x 5.15m) – (38.313 x 4.575m) – (33.128 x 4m) – (49.927 x 2m) RB = 79.155kN Total Load = RA + RB RA = Total Load - RB = 38.313 + 33.128 + 49.927 – 79.155 = 42.213kN Shear Force on Beam D / 3.1-4.2 / 4 (79.155 - 38.313) kN = 40.842kN (40.842 - 33.128) kN = 7.714kN (7.714 - 49.927) kN = -42.213kN (-42.213 + 42.213)kN = 0 Bending Moment on Beam D / 3.1-4.2 / 4 (+) A = (79.155 + 40.842) x 1.15 x (1/2) = 68.998 Using ratio, 𝑥 5.7 = 1.15 4 x = 1.639kN/m B = (1/2) x 0.618 x 7.714 3.1 4.24 1.15m 4m 38.313kN/m 49.927kN/m RA RB 33.128kN/m 79.155kN/m 42.213kN/m 56
  • 40.
    = 2.384 (-) C = (1/2)x 42.213 x (4 – 0.618) = 71.382 57
  • 41.
  • 42.
    Beam 3 AnalysisCalculation Ground Floor Beam, B-C / 2 1. Carries Self Weight – Dead Load 2. Slab Dead Load & Live Load a. B-C / 1-2 (two way slab) b. B-C / 2-3 (two way slab) Beam self-weight = Beam size x concrete density = 0.15m x 0.3m x 24 kN/m2 = 1.08 kN/m Brick wall weight = Wall height x thickness x density = 3m x 0.15m x 19kN/m2 = 8.55kN/m Dead load on Slab B-C / 1-2 (two way slab) Load is transferred to beam B-C / 2 in a trapezoidal form Dead load from slab B-C / 1-2 = [dead load on slab x (Lx/2)] = 3.6kN/m2 x (2.5m/2) = 4.5kN/m Dead load on Slab B-C / 2-3 (two way slab) Load is transferred to beam B-C / 2 in a trapezoidal form Dead load from slab B-C / 2-3 = [dead load on slab x (Lx/2)] = 3.6kN/m2 x (2.5m/2) = 4.5kN/m 59
  • 43.
    Total Dead LoadDiagram for Beam B-C / 2 Beam Self-weight = 1.08kN/m Brick Wall Load = 8.55kN/m DL from Slab B-C / 1-2 = 4.5kN/m DL from Slab B-C / 2-3 = 4.5kN/m Total DL = 18.63kN/m B C 1.08kN/m 8.55kN/m 4.5kN/m 4.5kN/m 18.63kN/m 60
  • 44.
    Live load onSlab B-C / 1-2 (two way slab) Load is transferred to beam B-C / 2 in a triangular form. Convert the trapezoidal load into UDL. Live load from slab B-C / 1-2 = [live load factor on Corridor (UBBL) x (Lx/2)] = 4kN/m2 x (2.5m/2) = 5kN/m Live load on Slab B-C / 2-3 (two way slab) Load is transferred to beam B-C / 2 in a triangular form. Convert the trapezoidal load into UDL. Live load from slab B-C / 2-3 = [live load factor on Wash Closet (UBBL) x (Lx/2)] = 2kN/m2 x (2.5m/2) = 2.5kN/m 61
  • 45.
    Total Live LoadDiagram for Beam B-C / 2 LL from Slab B-C / 1-2 = 5kN/m LL from Slab B-C / 2-3 = 2.5kN/m Total LL = 7.5kN/m B C 5kN/m 2.5kN/m 2.5kN/m 62
  • 46.
    Ultimate Load Apply factor1.4 and 1.6 to dead load and live load respectively. Ultimate Load B-C = DL x 1.4 + LL x 1.6 = 18.63kN/m x 1.4 + 7.5kN/m x 1.6 = 38.082kN/m Reaction Force on Beam B-C / 2 (symmetrical beam) (38.082kN/m x 3m) – Reaction Force = 0 Reaction Force = 114.246kN Point Load Reaction Force on Beam B-C / 2 Total Load = RA + RB RA = Total Load / 2 = 114.246kN/m / 2 = 57.123kN B C 114.246kN/m RA RB 57.123kN/m 57.123kN/m 3m 63
  • 47.
  • 48.
    Beam 4 AnalysisCalculation Ground Floor Beam, B / 1-3 1. Carries Self Weight – Dead Load 2. Brick Wall – Dead Load 3. Slab Dead Load & Live Load a. A-B / 1-2 (two way slab) b. A-B / 2-3 (two way slab) c. B-C / 1-2 (two way slab) d. B-C / 2-3 (two way slab) Beam self-weight = Beam size x concrete density = 0.2m x 0.3m x 24kN/m2 = 1.44kN/m Brick wall weight = Wall height x thickness x density = 3m x 0.15m x 19kN/m2 = 8.55kN/m Dead load on Slab A-B / 1-2 (two way slab) Load is transferred to beam B / 1-3 in a triangular form Dead load from slab A-B / 1-2 = [dead load on slab x (Lx/2) x (2/3)] = 3.6kN/m2 x (2.5m/2) x (2/3) = 3kN/m Dead load on Slab A-B / 2-3 (two way slab) Load is transferred to beam B / 1-3 in a triangular form Dead load from slab A-B / 2-3 = [dead load on slab x (Lx/2) x (2/3)] = 3.6kN/m2 x (2.5m/2) x (2/3) = 3kN/m 65
  • 49.
    Dead load onSlab B-C / 1-2 (two way slab) Load is transferred to beam B / 1-3 in a triangular form Dead load from slab B-C / 1-2 = [dead load on slab x (Lx/2) x (2/3)] = 3.6kN/m2 x (2.5m/2) x (2/3) = 3kN/m Dead load on Slab B-C / 2-3 (two way slab) Load is transferred to beam B / 1-3 in a triangular form Dead load from slab B-C / 2-3 = [dead load on slab x (Lx/2) x (2/3)] = 3.6kN/m2 x (2.5m/2) x (2/3) = 3kN/m 66
  • 50.
    Total Dead LoadDiagram for Beam B / 1-3 Beam Self-weight = 1.44kN/m Brick Wall Load = 8.55kN/m DL from Slab A-B / 1-2 = 3kN/m DL from Slab A-B / 2-3 = 3kN/m DL from Slab B-C / 1-2 = 3kN/m DL from Slab B-C / 2-3 = 3kN/m Total DL on 1-2 = 7.44kN/m 2-3 = 15.99kN/m 1 32 1.44kN/m 2.5m 2.5m 8.55kN/m 3kN/m 3kN/m 3kN/m 3kN/m 7.44kN/m 15.99kN/m 67
  • 51.
    Live load onSlab A-B / 1-2 (two way slab) Load is transferred to beam B / 1-3 in a triangular form. Convert the triangular load into UDL. Live load from slab A-B / 1-2 = [live load factor on Bedroom (UBBL) x (Lx/2) x (2/3)] = 1.5kN/m2 x (2.5m/2) x (2/3) = 1.25kN/m Live load on Slab A-B / 2-3 (two way slab) Load is transferred to beam B / 1-3 in a triangular form. Convert the triangular load into UDL. Live load from slab A-B / 2-3 = [live load factor on Storage (UBBL) x (Lx/2) x (2/3)] = 2.5kN/m2 x (2.5m/2) x (2/3) = 2.083kN/m Live load on Slab B-C / 1-2 (two way slab) Load is transferred to beam B / 1-3 in a triangular form. Convert the triangular load into UDL. Live load from slab B-C / 1-2 = [live load factor on Corridor (UBBL) x (Lx/2) x (2/3)] = 4kN/m2 x (2.5m/2) x (2/3) = 3.333kN/m Live load on Slab B-C / 2-3 (two way slab) Load is transferred to beam B / 1-3 in a triangular form. Convert the triangular load into UDL. Live load from slab B-C / 2-3 = [live load factor on Wash Closet (UBBL) x (Lx/2) x (2/3)] = 2kN/m2 x (2.5m/2) x (2/3) = 1.667kN/m 68
  • 52.
    Total Live LoadDiagram for Beam B / 1-3 LL from Slab A-B / 1-2 = 1.25kN/m LL from Slab A-B / 2-3 = 2.083kN/m LL from Slab B-C / 1-2 = 3.333kN/m LL from Slab B-C / 2-3 = 1.667kN/m Total LL on 1-2 = 4.583kN/m 2-3 = 3.75kN/m 1 32 2.083kN/m 2.5m 2.5m 1.25kN/m 3.333kN/m 1.667kN/m 69
  • 53.
    Ultimate Load Apply factor1.4 and 1.6 to dead load and live load respectively. Ultimate Load 1-2 = DL x 1.4 + LL x 1.6 = 7.44kN/m x 1.4 + 4.583kN/m x 1.6 = 17.7488kN/m Ultimate Load 2-3 = DL x 1.4 + LL x 1.6 = 15.99kN/m x 1.4 + 3.75kN/m x 1.6 = 28.386kN/m 1 32 2.5m 2.5m 17.7488kN/m 28.386kN/m 70
  • 54.
    Reaction Force onBeam B / 1-3 ∑M = 0 0 = (RB x 5m) – (44.372 x 3.75m) – (57.123 x 2.5m) – (70.965 x 1.25m) RB = 79.58175kN Total Load = RA + RB RA = Total Load - RB = 44.372 + 57.123 + 70.965 – 79.58175 = 92.87825kN Shear Force on Beam B / 1-3 (79.58175 – 44.372) kN = 35.20975kN (35.20975 – 57.123) kN = -21.91325kN (-21.91325 – 70.965)kN = -92.87825kN (-92.87825 + 92.87825)kN = 0 Bending Moment on Beam B / 1-3 (+) A = (79.58175 + 35.20975) x 2.5 x (1/2) = 143.489375 (-) B = (21.91325 + 92.87825) x 2.5 x (1/2) = 143.489375 1 32 2.5m 44.372kN/m 2.5m 70.965kN/m 57.123kN/m 1 32 2.5m2.5m 44.372kN/m 70.965kN/m 57.123kN/m RA RB 92.87825kN/m 92.87825kN/m 71
  • 55.
    GROUNF FLOOR BEAM,A–B /2 72
  • 56.
    Beam 5 AnalysisCalculation Ground Floor Beam, A-B / 2 1. Carries Self Weight – Dead Load 2. Slab Dead Load & Live Load a. A-B / 1-2 (two way slab) b. A-B / 2-3 (two way slab) Beam self-weight = Beam size x concrete density = 0.15m x 0.3m x 24 kN/m2 = 1.08 kN/m Dead load on Slab A-B / 1-2 (two way slab) Load is transferred to beam A-B / 2 in a trapezoidal form Dead load from slab A-B / 1-2 = [dead load on slab x (Lx/2)] = 3.6kN/m2 x (2.5m/2) = 4.5kN/m Dead load on Slab A-B / 2-3 (two way slab) Load is transferred to beam A-B / 2 in a trapezoidal form Dead load from slab A-B / 2-3 = [dead load on slab x (Lx/2)] = 3.6kN/m2 x (2.5m/2) = 4.5kN/m 73
  • 57.
    Total Dead LoadDiagram for Beam A-B / 2 Beam Self-weight = 1.08kN/m DL from Slab A-B / 1-2 = 4.5kN/m DL from Slab A-B / 2-3 = 4.5kN/m Total DL = 10.08kN/m A B 1.08kN/m 2.993m 4.5kN/m 4.5kN/m 10.08kN/m 74
  • 58.
    Live load onSlab A-B / 1-2 (two way slab) Load is transferred to beam A-B / 2 in a triangular form. Convert the trapezoidal load into UDL. Live load from slab A-B / 1-2 = [live load factor on Bedroom (UBBL) x (Lx/2)] = 1.5kN/m2 x (2.5m/2) = 1.875kN/m Live load on Slab A-B / 2-3 (two way slab) Load is transferred to beam A-B / 2 in a triangular form. Convert the trapezoidal load into UDL. Live load from slab A-B / 2-3 = [live load factor on Storage (UBBL) x (Lx/2)] = 2.5kN/m2 x (2.5m/2) = 3.125kN/m 75
  • 59.
    Total Live LoadDiagram for Beam A-B / 2 LL from Slab A-B / 1-2 = 1.875kN/m LL from Slab A-B / 2-3 = 3.125kN/m Total LL = 5kN/m A B 1.875kN/m 2.993m 3.125kN/m 76
  • 60.
    Ultimate Load Apply factor1.4 and 1.6 to dead load and live load respectively. Ultimate Load A-B = DL x 1.4 + LL x 1.6 = 10.08kN/m x 1.4 + 5kN/m x 1.6 = 22.112kN/m Reaction Force on Beam A-B / 2 (symmetrical beam) (22.112kN/m x 2.993m) – Reaction Force = 0 Reaction Force = 66.181kN Point Load Reaction Force on Beam A-B / 2 Total Load = RA + RB RA = Total Load / 2 = 66.181kN/m / 2 = 33.09kN A B 22.112kN/m 2.993m A B 66.181kN/m 2.993m RA RB 33.09kN/m 33.09kN/m 77
  • 61.
  • 62.
    Beam 6 AnalysisCalculation Ground Floor Beam, A / 1-3 1. Carries Self Weight – Dead Load 2. Brick Wall – Dead Load 3. Slab Dead Load & Live Load a. A-B / 1-2 (two way slab) b. A-B / 2-3 (two way slab) Beam self-weight = Beam size x concrete density = 0.2m x 0.3m x 24kN/m2 = 1.44kN/m Brick wall weight = Wall height x thickness x density = 3m x 0.15m x 19kN/m2 = 8.55kN/m Dead load on Slab A-B / 1-2 (two way slab) Load is transferred to beam B / 1-3 in a triangular form Dead load from slab A-B / 1-2 = [dead load on slab x (Lx/2) x (2/3)] = 3.6kN/m2 x (2.5m/2) x (2/3) = 3kN/m Dead load on Slab A-B / 2-3 (two way slab) Load is transferred to beam B / 1-3 in a triangular form Dead load from slab A-B / 2-3 = [dead load on slab x (Lx/2) x (2/3)] = 3.6kN/m2 x (2.5m/2) x (2/3) = 3kN/m 79
  • 63.
    Total Dead LoadDiagram for Beam B / 1-3 Beam Self-weight = 1.44kN/m Brick Wall Load = 8.55kN/m DL from Slab A-B / 1-2 = 3kN/m DL from Slab A-B / 2-3 = 3kN/m Total DL on 1-2 = 12.99kN/m 2-3 = 12.99kN/m 1 32 1.44kN/m 2.5m 2.5m 8.55kN/m 3kN/m 3kN/m 80
  • 64.
    Live load onSlab A-B / 1-2 (two way slab) Load is transferred to beam B / 1-3 in a triangular form. Convert the trapezoidal load into UDL. Live load from slab A-B / 1-2 = [live load factor on Bedroom (UBBL) x (Lx/2) x (2/3)] = 1.5kN/m2 x (2.5m/2) = 1.875kN/m Live load on Slab A-B / 2-3 (two way slab) Load is transferred to beam B / 1-3 in a triangular form. Convert the trapezoidal load into UDL. Live load from slab A-B / 2-3 = [live load factor on Wash Closet (UBBL) x (Lx/2) x (2/3)] = 2kN/m2 x (2.5m/2) = 2.5kN/m 81
  • 65.
    Total Live LoadDiagram for Beam B / 1-3 LL from Slab A-B / 1-2 = 1.875kN/m LL from Slab A-B / 2-3 = 2.5kN/m Total LL on 1-2 = 1.875kN/m 2-3 = 2.5kN/m 1 32 2.5kN/m /m 1 32 1.44kN/m 2.5m 2.5m 2.5m 2.5m 1.875kN/m /m 1 32 1.44kN/m 2.5m 2.5m 82
  • 66.
    Ultimate Load Apply factor1.4 and 1.6 to dead load and live load respectively. Ultimate Load 1-2 = DL x 1.4 + LL x 1.6 = 12.99kN/m x 1.4 + 1.875kN/m x 1.6 = 21.186kN/m Ultimate Load 2-3 = DL x 1.4 + LL x 1.6 = 12.99kN/m x 1.4 + 2.5kN/m x 1.6 = 22.186kN/m 1 32 2.5m 2.5m 21.186kN/m 22.186kN/m 83
  • 67.
    Reaction Force onBeam A / 1-3 ∑M = 0 0 = (RA x 5m) – (21.186 x 3.75m) – (33.09 x 2.5m) – (22.186 x 1.25m) RA = 37.981kN Total Load = RA + RB RB = Total Load – RA = 21.186 + 33.09 + 22.186 – 37.981 = 38.481kN Shear Force on Beam A / 1-3 (37.981 – 21.186) kN = 16.795kN (16.795 – 33.09) kN = -16.295kN (-16.295 – 22.186)kN = -38.481kN (-38.481+38.481)kN = 0 Bending Moment on Beam A / 1-3 (+) A = (37.981 + 16.795) x 2.5 x (1/2) = 68.47 (-) B = (38.481 + 16.295) x 2.5 x (1/2) = 68.47 1 32 2.5m 2.5m 21.186kN/m 22.186kN/m 33.09kN/m RA RB 38.481kN/m37.981kN/m 84
  • 68.
    Beam Analysis Report(Chan Yi Qin | 0315964) Beam 1 Analysis Calculation First Floor Beam, A / 4-5 84
  • 69.
    Beam 1 AnalysisCalculation First Floor Beam, A / 4-5 1. Carries self-weight - Dead Load 2. Brick wall - Dead Load 3. Slab Dead Load & Live Load a. A-B / 4-5 (two way slab) b. B-C / 4-5 (two way slab) Beam self-weight = Beam size x concrete density = 0.2m x 0.3m x 24kN/m3 = 1.44 kN/m Brick wall weight = Wall height x thickness x density = 3m x 0.15m x 19kN/m3 = 8.55 kN/m Dead Load Dead Load on Slab A-B / 4-5 (two way slab) = Dead load on slab x (Length/ 2) = 3.6kN/m2 x (2.993/ 2)m = 5.387kN/m Dead Load on Slab B-C / 4-5 (two way slab) = Dead load on slab x (Length/ 2) = 3.6kN/m2 x (3.000/ 2)m = 5.4kN/m 85
  • 70.
    Total Dead LoadDiagram for Beam A / 4-5 Beam self-weight = 1.44kN/m Brick wall load = 8.55kN/m DL from slab A-B / 4-5 = 5.387kN/m DL from slab B-C / 4-5 = 5.4kN/m Total Dead Load = 20.777 kN/m 86
  • 71.
    Live Load Live Loadon Slab A-B / 4-5 (two-way slab) = Live load factor on bungalow (UBBL) x (Length/ 2) = 1.5kN/m2 x (2.993/2)m = 2.245kN/m Live Load on Slab B-C / 4-5 (two-way slab) = Live load factor on bungalow (UBBL) x (Length/ 2) = 1.5kN/m2 x (3.000/2)m = 2.25kN/m Total Live Load Diagram for Beam A / 4-5 LL on slab A-B / 4-5 = 2.245kN/m LL on slab B-C / 4-5 = 2.25kN/m Total Live Load = 4.495kN/m 87
  • 72.
    Ultimate Load Apply factor1.4 and 1.6 to dead load and live load respectively, Ultimate Load 4-5 = (DL x 1.4) + (LL x 1.6) = (20.777kN/m x 1.4) + (4.495kN/m x 1.6) Total Ultimate Load = 36.28kN/m Reaction Force on Beam ∑MA = 0 (36.28kN/m x 4.852m) x (4.852m/ 2) - 𝑅 𝑅x (4.852m) = 0 RB= 88.015kN Total Load = RA + RB RA = Total Load - RB = (36.28kN/m x 4.852m) - 88.015kN = 88.015kN 𝐴1= 𝐴2= (88.015 x 2.426m)/ 2 = 106.76kN/m 88
  • 73.
    Beam 2 AnalysisCalculation First Floor Beam, A-B / 4 89
  • 74.
    Beam 2 AnalysisCalculation First Floor Beam, A-B / 4 1. Carries self-weight - Dead Load 2. Brick wall - Dead Load 3. Slab Dead Load & Live Load a. A-B / 3-4 (two way slab) b. A-B / 4-5 (two way slab) Beam self-weight = Beam size x concrete density = 0.2m x 0.3m x 24kN/m3 = 1.44 kN/m Brick wall weight = Wall height x thickness x density = 3m x 0.15m x 19kN/m3 = 8.55 kN/m Dead Load Dead Load on Slab A-B / 3-4 (two way slab) = Dead load on slab x (Length/ 2) = 3.6kN/m2 x (4.013/ 2)m = 7.223kN/m Dead Load on Slab A-B / 4-5 (two way slab) = Dead load on slab x (Length/ 2) = 3.6kN/m2 x (4.852/ 2)m = 8.734kN/m 90
  • 75.
    Total Dead LoadDiagram for Beam A-B / 4 Beam self-weight = 1.44kN/m Brick wall load = 8.55kN/m DL from slab A-B / 3-4 = 7.223kN/m DL from slab A-B / 4-5 = 8.734kN/m Total Dead Load = 25.947 kN/m 91
  • 76.
    Live Load Live Loadon Slab A-B / 3-4 (two-way slab) = Live load factor on bungalow (UBBL) x (Length/ 2) = 1.5kN/m2 x (4.013/ 2)m = 3.01kN/m Live Load on Slab A-B / 4-5 (two-way slab) = Live load factor on bungalow (UBBL) x (Length/ 2) = 1.5kN/m2 x (4.852/ 2)m = 3.639kN/m Total Live Load Diagram for Beam A-B / 4 LL on slab A-B / 3-4 = 3.01kN/m LL on slab A-B / 4-5 = 3.639kN/m Total Live Load = 6.649kN/m 92
  • 77.
    Ultimate Load Apply factor1.4 and 1.6 to dead load and live load respectively, Ultimate Load 4-5 = (DL x 1.4) + (LL x 1.6) = (25.947kN/m x 1.4) + (6.649kN/m x 1.6) Total Ultimate Load = 46.96kN/m 𝛴 𝑀 𝐴= 0 (46.96kN/m x 2.993m) x (2.993m/ 2) - 𝑅 𝑅x (2.993m) = 0 RB = 70.28kN Total Load = 𝑅 𝐴+ 𝑅 𝐵 𝑅 𝐴 = Total Load - 𝑅 𝐵 = (46.96kN/m x 2.993m) - 70.28kN = 70.28kN 93
  • 78.
    𝐴1= 𝐴2= (70.28x 2.993m)/ 2 = 52.59kN/m 94
  • 79.
    Beam 3 AnalysisCalculation First Floor Beam, B-C / 4-5 95
  • 80.
    Beam 3 AnalysisCalculation First Floor Beam, B-C / 4-5 1. Carries self-weight - Dead Load 2. Brick wall - Dead Load 3. Slab Dead Load & Live Load a. A-B / 4-5 (two way slab) b. B-C / 4-5 (two way slab) Beam self-weight = Beam size x concrete density = 015m x 0.3m x 24kN/m3 = 1.08 kN/m Brick wall weight = Wall height x thickness x density = 3m x 0.15m x 19kN/m3 = 8.55 kN/m Dead Load Dead Load on Slab A-B / 4-5 (two way slab) = Dead load on slab x (Length/ 2) = 3.6kN/m2 x (2.993/ 2)m = 5.387kN/m Dead Load on Slab B-C / 4-5 (two way slab) = Dead load on slab x (Length/ 2) = 3.6kN/m2 x (3.000/ 2)m = 5.4kN/m 96
  • 81.
    Total Dead LoadDiagram for Beam B-C / 4-5 Beam self-weight = 1.08kN/m Brick wall load = 8.55kN/m DL from slab A-B / 4-5 = 5.387kN/m DL from slab B-C / 4-5 = 5.4kN/m Total Dead Load = 20.417 kN/m Live Load Live Load on Slab A-B / 4-5 (two-way slab) = Live load factor on bungalow (UBBL) x (Length/ 2) = 1.5kN/m2 x (2.993/2)m = 2.245kN/m 97
  • 82.
    Live Load onSlab B-C / 4-5 (two-way slab) = Live load factor on bungalow (UBBL) x (Length/ 2) = 1.5kN/m2 x (3.000/2)m = 2.25kN/m Total Live Load Diagram for Beam B-C / 4-5 LL on slab A-B / 4-5 = 2.245kN/m LL on slab B-C / 4-5 = 2.25kN/m Total Live Load = 4.495kN/m Ultimate Load Apply factor 1.4 and 1.6 to dead load and live load respectively, Ultimate Load 4-5 = (DL x 1.4) + (LL x 1.6) = (20.417kN/m x 1.4) + (4.495kN/m x 1.6) Total Ultimate Load = 35.776kN/m 98
  • 83.
    Reaction Force onBeam 𝛴 𝑀 𝐴= 0 (35.776kN/m x 4.852m) x (4.852m/ 2) - 𝑅 𝑅x (4.852m) = 0 𝑅 𝐵= 86.793kN Total Load = 𝑅 𝐴+ 𝑅 𝐵 𝑅 𝐴 = Total Load - 𝑅 𝐵 = (35.776kN/m x 4.852m) - 86.793kN = 86.793kN 𝐴1=𝐴2 = (86.793 x 2.426m)/ 2 = 105.28kN/m 99
  • 84.
    Beam 4 AnalysisCalculation First Floor Beam, B-C / 5 100
  • 85.
    Beam 4 AnalysisCalculation First Floor Beam, B-C / 5 1. Carries self-weight - Dead Load 2. Slab Dead Load & Live Load a. B-C / 4-5 (two way slab) b. A-C / 5-6 (one way slab) Beam self-weight = Beam size x concrete density = 0.2m x 0.3m x 24kN/m3 = 1.44 kN/m Dead Load Dead Load on Slab B-C / 4-5 (two way slab) = Dead load on slab x (Length/ 2) = 3.6kN/m2 x (4.852/ 2)m = 8.734kN/m Dead Load on Slab A-C / 5-6 (one way slab) = Dead load on slab x (Length/ 2) = 3.6kN/m2 x (4.008/ 2)m = 7.214kN/m 101
  • 86.
    Total Dead LoadDiagram for Beam B-C / 5 Beam self-weight = 1.44kN/m DL from slab B-C / 4-5 = 8.734kN/m DL from slab A-C / 5-6 = 7.214kN/m Total Dead Load = 17.388 kN/m Live Load Live Load on Slab B-C / 4-5 (two-way slab) = Live load factor on bungalow (UBBL) x (Length/ 2) = 1.5kN/m2 x (4.852/ 2)m = 3.639kN/m Live Load on Slab A-C / 5-6 (one-way slab) = Live load factor on bungalow (UBBL) x (Length/ 2) = 1.5kN/m2 x (4.008/2)m = 3.006kN/m 102
  • 87.
    Total Live LoadDiagram for Beam B-C / 5 LL on slab B-C / 4-5 = 3.639kN/m LL on slab A-C / 5-6 = 3.006kN/m Total Live Load = 6.645kN/m Ultimate Load Apply factor 1.4 and 1.6 to dead load and live load respectively, Ultimate Load 4-5 = (DL x 1.4) + (LL x 1.6) = (17.388kN/m x 1.4) + (6.645kN/m x 1.6) Total Ultimate Load = 34.975kN/m 103
  • 88.
    Reaction Force onBeam 𝛴 𝑀 𝐴= 0 (34.975kN/m x 3.000m) x (3.000m/ 2) -𝑅 𝐵 x (3.000m) = 0 𝑅 𝐵= 52.463kN Total Load =𝑅 𝐴 + 𝑅 𝐵 𝑅 𝐴 = Total Load - 𝑅 𝐵 = (34.975kN/m x 3.000m) - 52.463kN = 52.463kN 𝐴1= 𝐴2= (52.463 x 3.000m)/ 2 = 39.35kN/m 104
  • 89.
    Beam 5 AnalysisCalculation First Floor Beam, C-D / 5 105
  • 90.
    Beam 5 AnalysisCalculation First Floor Beam, C-D / 5 1. Carries self-weight - Dead Load 2. Slab Dead Load & Light Load a. C-D / 4-5 (one way slab) b. C-D / 5-6 (two way slab) Beam self-weight = Beam size x concrete density = 0.15m x 0.3m x 24kN/m3 = 1.08kN/m Dead Load Dead Load on Slab C-D / 4-5 (one way slab) = Dead load on slab x (Length/ 2) = 3.6kN/m2 x (4.852/ 2)m = 8.734kN/m Dead Load on Slab C-D / 5-6 (two way slab) = Dead load on slab x (Length/ 2) = 3.6kN/m2 x (4.008/ 2)m = 7.214kN/m 106
  • 91.
    Total Dead LoadDiagram for Beam C-D / 5 Beam self-weight = 1.08kN/m DL from slab C-D / 4-5 = 8.734kN/m DL from slab C-D / 5-6 = 7.214kN/m Total Dead Load = 17.028 kN/m Live Load Live Load on Slab C-D / 4-5 (one-way slab) = Live load factor on bungalow (UBBL) x (Length/ 2) = 1.5kN/m2 x (4.852/2)m = 3.639kN/m 107
  • 92.
    Total Live LoadDiagram for Beam C-D / 5 LL on slab C-D / 5-6 = 3.639kN/m Total Live Load = 3.639kN/m Ultimate Load Apply factor 1.4 and 1.6 to dead load and live load respectively, Ultimate Load 4-5 = (DL x 1.4) + (LL x 1.6) = (17.028kN/m x 1.4) + (3.639kN/m x 1.6) Total Ultimate Load = 29.662kN/m Reaction Force on Beam 𝛴 𝑀 𝐴= 0 (29.662kN/m x 2.847m) x (2.847m/ 2) - 𝑅 𝐵x (2.847m) = 0 𝑅 𝐵= 42.224kN Total Load = 𝑅 𝐴+ 𝑅 𝐵 𝑅 𝐴 = Total Load - 𝑅 𝐵 = (29.662kN/m x 2.847m) - 42.224kN = 42.224kN 108
  • 93.
    𝐴1= 𝐴2= (42.224x 1.424m)/ 2 = 30.05kN/m 109
  • 94.
    Beam 6 AnalysisCalculation First Floor Beam, D / 4.2-6 110
  • 95.
    Beam 6 AnalysisCalculation First Floor Beam, D / 4.2-6 1. Carries self-weight - Dead Load 2. Brick wall - Dead Load 3. Slab Dead Load & Live Load a. C-D / 4-5 (one way slab) b. C-D / 5-6 (two way slab) c. D-F / 4.2-6 (two way slab) Beam self-weight = Beam size x concrete density = 0.2m x 0.3m x 24kN/m3 = 1.44 kN/m Brick wall weight = Wall height x thickness x density = 3m x 0.15m x 19kN/m3 = 8.55 kN/m Dead Load Dead Load on Slab C-D / 4-5 (one way slab) = Dead load on slab x (Length/ 2) = 3.6kN/m2 x (2.847/ 2)m = 5.125kN/m Dead Load on Slab C-D / 5-6 (two way slab) = Dead load on slab x (Length/ 2) = 3.6kN/m2 x (2.847/ 2)m = 5.125kN/m Dead Load on Slab D-F / 4.2-6 (two way slab) = Dead load on slab x (Length/ 2) = 3.6kN/m2 x (5.990/ 2)m = 10.782kN/m 111
  • 96.
    Total Dead LoadDiagram for Beam D / 4.2-6 Beam self-weight = 1.44kN/m Brick wall load = 8.55kN/m DL from slab C-D / 5-6 = 5.125kN/m DL from slab B-C / 4-5 = 5.125kN/m DL from slab B-C / 4-5 = 10.782kN/m Total Dead Load = 31.022 kN/m 112
  • 97.
    Live Load Live Loadon Slab C-D / 4-5 (one way slab) = Live load factor on bungalow (UBBL) x (Length/ 2) = 1.5kN/m2 x (2.847/ 2)m = 2.135kN/m Live Load on Slab D-F / 5-6 (two way slab) = Live load factor on bungalow (UBBL) x (Length/ 2) = 1.5kN/m2 x (5.990/2)m = 4.493kN/m Total Live Load Diagram for Beam D / 4.2-6 LL on slab C-D / 4-5 = 2.135kN/m LL on slab D-F / 5-6 = 4.493kN/m Total Live Load = 6.628kN/m 113
  • 98.
    Ultimate Load Apply factor1.4 and 1.6 to dead load and live load respectively, Ultimate Load 4-5 = (DL x 1.4) + (LL x 1.6) = (31.022kN/m x 1.4) + (6.628kN/m x 1.6) Total Ultimate Load = 54.036kN/m Reaction Force on Beam 𝛴 𝑀 𝐴= 0 (54.036kN/m x 4.008m) x (4.008m/ 2) - 𝑅 𝐵x (4.008m) = 0 𝑅 𝐵= 108.29kN Total Load =𝑅 𝐴 + 𝑅 𝐵 𝑅 𝐴 = Total Load - 𝑅 𝐵 = (54.036kN/m x 4.008m) - 108.29kN = 108.29kN 𝐴1= 𝐴2= (88.015 x 2.004m)/ 2 = 88.19kN/m 114
  • 99.
    Column Analysis Report(Tang Pei Kei | 0318545) Ground Floor Architectural Plan Structural Plan Load Distribution Plan 115
  • 100.
    First Floor Architectural Plan StructuralPlan Load Distribution Plan 116
  • 101.
    Column E3 Roof Level DeadLoad Slabs (Flat roof) = total slab area x slab self-weight = (4/2)m x (2.5+2.85)m x 3.6kN/m2 = 38.52kN Roof Beams = total beam length x beam self-weight = (2 + 2.5 + 2.85)m x 1.44kN/m2 + (2.85 / 2)m x 1.08kN/m = 12.12kN Total Dead Load for Roof Level = 38.52kN + 12.12kN = 50.64kN 1st Floor Dead Load Walls = total wall length x brick wall self-weight = (2.5 + 2.85)m x 8.55kN/m = 45.74kN Slabs = total slab area x slab self-weight = (4/2)m x (2.5+2.85)m x 3.6kN/m2 = 38.52kN 117
  • 102.
    Beams = total beamlength x beam self-weight = (2 + 2.5 + 2.85)m x 1.44kN/m2 + (2.85 / 2)m x 1.08kN/m = 12.12kN Columns Self-weight = 6.48kN Total Dead Load for 1st Floor = 45.74kN + 38.52kN + 12.12kN + 6.48kN = 102.86kN Ground Floor Dead Load Walls = total wall length x brick wall self-weight = (2.5 + 2.85)m x 8.55kN/m = 45.74kN Slabs = total slab area x slab self-weight = (4/2)m x (2.5+2.85)m x 3.6kN/m2 = 38.52kN Beams = total beam length x beam self-weight = (2 + 2.5 + 2.85)m x 1.44kN/m2 + (2.85 / 2)m x 1.08kN/m = 12.12kN 118
  • 103.
    Columns Self-weight =6.48kN Total Dead Load for Ground Floor = 45.74kN + 38.52kN + 12.12kN + 6.48kN = 102.86kN 1st Floor Live Load Bedroom 4 = total area x live load factor for bedroom = (2m x 5.35m) x 1.5kN/m2 = 16.05kN Ground Floor Live Load Guest Room = total area x live load factor for bedroom = (2m x 5.35m) x 1.5kN/m2 = 16.05kN Ultimate Load Ultimate Dead Load = total dead load x dead load factor = (50.64kN + 102.86kN + 102.86kN) x 1.4 = 358.9kN Ultimate Live Load = total live load x live load factor = (16.05kN + 16.05kN) x 1.6 = 51.36kN 119
  • 104.
    Ultimate Load Actingon Column E3 = 358.9kN + 51.36kN = 410.26kN 120
  • 105.
    Column D3 Roof Level DeadLoad Slabs (Flat roof) = total slab area x slab self-weight = [(4 / 2 + 2.85 / 2)m x (2.5 + 2.85 /2)m] x 3.6kN/m2 = 48.4kN Roof Beams = total beam length x beam self-weight = (2.5 + 2.85 + 2)m x 1.44kN/m2 + (2.85 / 2)m x 1.08kN/m = 12.12kN Total Dead Load for Roof Level = 48.4kN + 12.12kN = 60.52kN 1st Floor Dead Load Walls = total wall length x brick wall self-weight = (2.5 + 2+ 2.85)m x 8.55kN/m = 62.84kN Slabs (Flat roof) = total slab area x slab self-weight = [(4 / 2 + 2.85 / 2)m x (2.5 + 2.85 /2)m] x 3.6kN/m2 = 48.4kN 121
  • 106.
    Beams = total beamlength x beam self-weight = (2.5 + 2.85 + 2)m x 1.44kN/m2 + (2.85 / 2)m x 1.08kN/m = 12.12kN Columns Self-weight = 6.48kN Total Dead Load for 1st Floor = 62.84kN + 48.4kN + 12.12kN + 6.48kN = 129.84kN Ground Floor Dead Load Walls = total wall length x brick wall self-weight = (2.5 + 2+ 2.85)m x 8.55kN/m = 62.84kN Slabs (Flat roof) = total slab area x slab self-weight = [(4 / 2 + 2.85 / 2)m x (2.5 + 2.85 /2)m] x 3.6kN/m2 = 48.4kN Beams = total beam length x beam self-weight = (2.5 + 2.85 + 2)m x 1.44kN/m2 + (2.85 / 2)m x 1.08kN/m = 12.12kN Columns Self-weight = 6.48kN 122
  • 107.
    Total Dead Loadfor Ground Floor = 62.84kN + 48.4kN + 12.12kN + 6.48kN = 129.84kN 1st Floor Live Load Bedroom 4 = total area x live load factor for bedroom = (2m x 2.5/2m) x 1.5kN/m2 = 3.75kN Toilet = total area x live load factor for toilet = (2m x 2.85/2m) x 2.0kN/m2 = 5.7kN Corridors = total area x live load factor for corridor = [(2.85/2)m x (2.5 + 2.85/2)m] x 4.0kN/m2 = 22.37kN Total Live Load for 1st Floor = 3.75kN + 5.7kN + 22.37kN = 31.82kN Ground Floor Live Load Guest Room = total area x live load factor for bedroom = (2m x 2.5/2m) x 1.5kN/m2 = 3.75kN 123
  • 108.
    Toilet = total areax live load factor for toilet = (2m x 2.85/2m) x 2.0kN/m2 = 5.7kN Corridors = total area x live load factor for corridor = [(2.85/2)m x (2.5 + 2.85/2)m] x 4.0kN/m2 = 22.37kN Total Live Load for Ground Floor = 3.75kN + 5.7kN + 22.37kN = 31.82kN Ultimate Load Ultimate Dead Load = total dead load x dead load factor = (60.52kN + 129.84kN + 129.84kN) x 1.4 = 448.28kN Ultimate Live Load = total live load x live load factor = (31.82kN + 31.82kN) x 1.6 = 101.82kN Ultimate Load Acting on Column D3 = 448.28kN + 101.82kN = 550.1kN 124
  • 109.
    Column C3 Roof Level DeadLoad Slabs (Flat roof) = total slab area x slab self-weight = [(3 / 2 + 2.85 / 2)m x (2.5 + 4.01 /2)m] x 3.6kN/m2 = 47.44kN Roof Beams = total beam length x beam self-weight = (2.5 + 2.85/2 + 3/2 + 4.01/2)m x 1.44kN/m2 + (3/2)m x 1.08kN/m = 12.32kN Total Dead Load for Roof Level = 47.44kN + 12.32kN = 59.76kN 1st Floor Dead Load Walls = total wall length x brick wall self-weight = (2.5 + 3 + 4.01/2)m x 8.55kN/m = 64.17kN Slabs (Flat roof) = total slab area x slab self-weight = [(3 / 2 + 2.85 / 2)m x (2.5 + 4.01 /2)m] x 3.6kN/m2 = 47.44kN 125
  • 110.
    Roof Beams = totalbeam length x beam self-weight = (2.5 + 2.85/2 + 3/2 + 4.01/2)m x 1.44kN/m2 + (3/2)m x 1.08kN/m = 12.32kN Columns Self-weight = 6.48kN Total Dead Load for 1st Floor = 64.17kN + 47.44kN + 12.32kN + 6.48kN = 130.41kN Ground Floor Dead Load Walls = total wall length x brick wall self-weight = (2.5 + 3 + 4.01/2)m x 8.55kN/m = 64.17kN Slabs (Flat roof) = total slab area x slab self-weight = [(3 / 2 + 2.85 / 2)m x (2.5 + 4.01 /2)m] x 3.6kN/m2 = 47.44kN Roof Beams = total beam length x beam self-weight = (2.5 + 2.85/2 + 3/2 + 4.01/2)m x 1.44kN/m2 + (3/2)m x 1.08kN/m = 12.32kN Columns Self-weight = 6.48kN 126
  • 111.
    Total Dead Loadfor Ground Floor = 64.17kN + 47.44kN + 12.32kN + 6.48kN = 130.41kN 1st Floor Live Load Toilet = total area x live load factor for toilet = (3/2m x 2.5m) x 2.0kN/m2 = 7.5kN Corridors = total area x live load factor for corridor = [(2.85/ 2)m x (2.5 + 4.01/2)m] x 4.0kN/m2 = 25.68kN Bedroom 2 = total area x live load factor for bedroom = (3/2m x 4.01/2m) x 1.5kN/m2 = 4.51kN Total Live Load for 1st Floor = 7.5kN + 25.68kN + 4.51kN = 37.69kN Ground Floor Live Load Toilet = total area x live load factor for toilet = (3/2m x 2.5m) x 2.0kN/m2 = 7.5kN 127
  • 112.
    Corridors = total areax live load factor for corridor = [(2.85/ 2)m x (2.5 + 4.01/2)m] x 4.0kN/m2 = 25.68kN Kitchen = total area x live load factor for kitchen = (3/2m x 4.01/2m) x 3kN/m2 = 9.02kN Total Live Load for Ground Floor = 7.5kN + 25.68kN + 9.02kN = 42.2kN Ultimate Load Ultimate Dead Load = total dead load x dead load factor = (59.76kN + 130.41kN + 130.41kN) x 1.4 = 448.81kN Ultimate Live Load = total live load x live load factor = (37.69kN + 42.2kN) x 1.6 = 127.82kN Ultimate Load Acting on Column E3 = 448.81kN + 127.82kN = 576.63kN 128
  • 113.
  • 114.
    Column 1 AnalysisCalculation------Column B / 1 Roof Slab 7.491m2 x 3.6kN/m2 = 26.968kN Beam (2.993 x ½ + 2 x ½ + 3 x ½) x1.44kN/m = 7.916kN Total = 34.884kN First Floor Dead Load Wall (2.993 x ½ + 3 x ½) x 8.55kN/m = 25.62kN Slab 7.491m2 x 3.6kN/m2 = 26.968kN Beam (2.993 x ½ + 2 x ½ + 3 x ½) x1.44kN/m = 7.916kN Column (0.3 x 0.3) x 3 x 24kN/m3 = 6.48kN Total = 66.978kN Ground Floor Dead Load Wall (2.993 x ½ + 3 x ½ + 5 x ½) x8.55kN/m = 46.995kN Slab 7.491m2 x 3.6kN/m2 = 26.968kN Beam (2.993 x ½ + 2 x ½ + 3 x ½) x1.44kN/m = 7.916kN Column (0.3 x 0.3) x 3 x 24kN/m3 = 6.48kN Total = 88.359kN Total Dead Load = 190.221kN Apply 1.4 Factor = 266.309kN Live Load Bedroom (2.993m x ½ + 5m x ½) x 1.5kN/m2 = 5.612kN Bedroom (3 x ½ + 5 x ½) x 1.5kN/m2 = 5.625kN Live Load Bedroom (2.993m x ½ + 5m x ½) x 1.5kN/m2 = 5.612kN Bedroom (3 x ½ + 5 x ½) x 4kN/m2 = 15kN Total = 31.849kN Total Live Load = 31.849kN Apply 1.6 Factor = 50.958kN Total Ultimate Load on Column B / 1 = 317.267kN 130
  • 115.
  • 116.
    Column 2 AnalysisCalculation------Column B / 3 Roof Slab 13.504m2 x 3.6kN/m2 = 48.614kN Beam (2.993 x ½ + 5 x ½ + 3 x ½ + 4.013 x ½) x1.44kN/m = 10.804kN Total = 59.418kN First Floor Dead Load Wall (2.993 x ½ + 3 x ½ + 5 x ½ +4.013 x ½) x8.55kN/m = 64.151kN Slab 13.504m2 x 3.6kN/m2 = 48.614kN Beam (2.993 x ½ + 3 x ½ + 5 x ½ +4.013 x ½) x1.44kN/m = 10.804kN Column (0.3 x 0.3) x 3 x 24kN/m3 = 6.48kN Total = 130.049kN Ground Floor Dead Load Wall (2.993 x ½ + 3 x ½ + 5 x ½ +4.013 x ½) x8.55kN/m = 64.151kN Slab 13.504m2 x 3.6kN/m2 = 48.614kN Beam (2.993 x ½ + 3 x ½ + 5 x ½ +4.013 x ½) x1.44kN/m = 10.804kN Column (0.3 x 0.3) x 3 x 24kN/m3 = 6.48kN Total = 130.049kN Live Load Bedroom (2.993m x ½ + 5m x ½) x 1.5kN/m2 = 5.612kN Wash Closet (3 x ½ + 5 x ½) x 2kN/m2 = 5.625kN Bedroom (4.013 x ½ + 2.993 x ½) x 1.5kN/m2 = 4.505kN Bedroom (4.013 x ½ + 3 x ½) x 1.5kN/m2 = 4.515kN Live Load Bedroom (2.993m x ½ + 5m x ½) x 1.5kN/m2 = 5.612kN Wash Closet (3 x ½ + 5 x ½) x 2kN/m2 = 7.5kN Bedroom (4.013 x ½ + 2.993 x ½) x 3kN/m2 = 9.009kN Bedroom (4.013 x ½ + 3 x ½) x 3kN/m2 = 9.03kN Total = 51.408kN 132
  • 117.
    Total Dead Load= 319.516kN Apply 1.4 Factor = 447.32kN Total Live Load = 51.408kN Apply 1.6 Factor = 82.253kN Total Ultimate Load on Column B / 3 = 529.58kN 133
  • 118.
  • 119.
    Column 3 AnalysisCalculation------Column B / 4 Roof Slab 13.289m2 x 3.6kN/m2 = 47.84kN Beam (2.993 x ½ + 4.852 x ½ + 3 x ½ + 4.013 x ½) x1.44kN/m = 10.698kN Total = 58.538kN First Floor Dead Load Wall (2.993 x ½ + 3 x ½ + 4.852 x ½) x8.55kN/m = 46.362kN Slab 13.283m2 x 3.6kN/m2 = 47.819kN Beam (2.993 x ½ + 3 x ½ + 4.852 x ½ +4.013 x ½) x1.44kN/m = 10.698kN Column (0.3 x 0.3) x 3 x 24kN/m3 = 6.48kN Total = 111.359kN Ground Floor Dead Load Wall (4.852 x ½) x 8.55kN/m = 20.742kN Slab 13.504m2 x 3.6kN/m2 = 47.819kN Beam (2.993 x ½ + 3 x ½ + 4.852 x ½ +4.013 x ½) x1.44kN/m = 10.698kN Column (0.3 x 0.4) x 3 x 24kN/m3 = 6.48kN Total = 85.739kN Live Load Bedroom (2.993m x ½ + 4.013m x ½) x 1.5kN/m2 = 4.505kN Bedroom (4.013 x ½ + 3 x ½) x 1.5kN/m2 = 4.515kN Bedroom (4.852 x ½ + 2.993 x ½) x 1.5kN/m2 = 5.447kN Wash Closet (4.852 x ½ + 3 x ½) x 2kN/m2 = 7.278kN Live Load Kitchen (2.993m x ½ + 4.013m x ½) x 3kN/m2 = 9.009kN Kitchen (4.013 x ½ + 3 x ½) x 3kN/m2 = 4.515kN= 9.03kN Kitchen (4.852 x ½ + 2.993 x ½) x 3kN/m2 = 10.893kN Kitchen (4.852 x ½ + 3 x ½) x 3kN/m2 = 10.917kN Total = 39.849kN 135
  • 120.
    Total Dead Load= 255.636kN Apply 1.4 Factor = 357.89kN Total Live Load = 39.849kN Apply 1.6 Factor = 63.758kN Total Ultimate Load on Column B / 4 = 421.648kN 136
  • 121.
    Column 1 AnalysisCalculation (Chan Yi Qin | 0315964) Column B3 137
  • 122.
    Column 1 AnalysisCalculation Column B3 (Roof, First Floor, Ground Floor) Dead Load Dead load on roof Area of slab acting on column B3 = (1.25 + 2.007)m x (1.4965 + 1.5)m = 9.76 m2 Roof slab self-weight = 3.6kN/m2 x 9.76 m2 = 35.13kN Roof beam self-weight = (1.4965 + 1.5 + 2.007 + 1.25)m x 1.44kN/m2 = 9kN Total dead load on flat roof = 35.13kN + 9kN = 44.135kN Dead load on first floor Concrete slab = 3.6kN/m2 x 9.76 m2 = 35.13kN Beam self-weight = (1.4965 + 1.5 + 2.007 + 1.25)m x 1.44kN/m2 = 9kN Brick wall self-weight = (1.4965 + 1.5 + 2.007 + 1.25)m x 8.55kN/m2 = 53.47kN 138
  • 123.
    Column = 0.3m x0.3m x 3m x 24kN/𝑚3 = 6.48kN Total dead load on first floor = 35.13kN + 9kN + 53.47kN + 6.48kN = 104.08kN Dead load on ground floor Concrete slab = 3.6kN/m2 x 9.76 m2 = 35.13kN Beam self-weight = (1.4965 + 1.5 + 2.007 + 1.25)m x 1.44kN/m2 = 9kN Brick wall self-weight = (1.4965 + 1.5 + 2.007 + 1.25)m x 8.55kN/m2 = 53.47kN Column = 0.3m x 0.3m x 3m x 24kN/𝑚3 = 6.48kN Total dead load on first floor = 35.13kN + 9kN + 53.47kN + 6.48kN = 104.08kN Total Dead Load = 44.135kN + 104.08kN + 104.08kN = 252.30kN Apply 1.4 factor = 353.21kN 139
  • 124.
    Live Load Live loadon first floor Bedroom = (3.257 x 3)m x 1.5kN/m2 = 14.66kN Live load on ground floor Kitchen = (3.257 x 3)m x 3kN/m2 = 29.313kN Total live load = 14.66kN + 29.313kN = 43.873kN Apply 1.6 factor = 70.36kN Ultimate load acting on Column B3 = 353.21kN + 70.36kN = 423.57kN 140
  • 125.
    Column 2 AnalysisCalculation Column B4 141
  • 126.
    Column 2 AnalysisCalculation Column B4 (Roof, First Floor, Ground Floor) Dead Load Dead load on roof Area of slab acting on column B4 = (2.007 + 2.426)m x (1.4965 + 1.5)m = 8.134 m2 Roof slab self-weight = 3.6kN/m2 x 8.134 m2 = 29.28kN Roof beam self-weight = (1.4965 + 1.5 + 2.007 + 2.426)m x 1.44kN/m2 = 10.698kN Total dead load on flat roof = 29.28kN + 10.698kN = 39.98kN Dead load on first floor Concrete slab = 3.6kN/m2 x 8.134 m2 = 29.28kN Beam self-weight = (1.4965 + 1.5 + 2.007 + 2.426)m x 1.44kN/m2 = 10.698kN Brick wall self-weight = (1.4965 + 1.5 + 2.007 + 2.426)m x 8.55kN/m2 = 63.52kN 142
  • 127.
    Column = 0.3m x0.3m x 3m x 24kN/𝑚3 = 6.48kN Total dead load on first floor = 29.28kN + 10.698kN + 63.52kN + 6.48kN = 109.98kN Dead load on ground floor Concrete slab = 3.6kN/m2 x 8.134 m2 = 29.28kN Beam self-weight = (1.4965 + 1.5 + 2.007)m x 1.44kN/m2 = 7.21kN Brick wall self-weight = (1.4965 + 1.5 + 2.007)m x 8.55kN/m2 = 42.78kN Column = 0.3m x 0.3m x 3m x 24kN/𝑚3 = 6.48kN Total dead load on ground floor = 29.28kN + 7.21kN + 42.78kN + 6.48kN = 85.75kN Total Dead Load = 39.98kN + 109.98kN + 85.75kN = 235.71kN Apply 1.4 factor = 329.994kN 143
  • 128.
    Live Load Live loadon first floor Bedroom = (3.257 x 3)m x 1.5kN/m2 = 14.66kN Live load on ground floor Kitchen = (3.257 x 3)m x 3kN/m2 = 29.313kN Total live load = 14.66kN + 29.313kN = 43.873kN Apply 1.6 factor = 70.36kN 144
  • 129.
    Column 3 AnalysisCalculation Column C3 145
  • 130.
    Column 3 AnalysisCalculation Column C3 (Roof, First Floor, Ground Floor) Dead Load Dead load on roof Area of slab acting on column B5 = (1.25 + 2.01)m x (1.5 + 1.42)m = 9.52 m2 Roof slab self-weight = 3.6kN/m2 x 9.52 m2 = 34.27kN Roof beam self-weight = (1.5 + 1.42 + 1.25 + 2.01)m x 1.44kN/m2 = 8.90kN Total dead load on flat roof = 34.27kN + 8.90kN = 43.17kN Dead load on first floor Concrete slab = 3.6kN/m2 x 9.52 m2 = 34.27kN Beam self-weight = (1.5 + 1.42 + 1.25 + 2.01)m x 1.44kN/m2 = 8.90kN Brick wall self-weight = (1.5 + 1.42 + 1.25 + 2.01)m x 8.55kN/m2 = 52.84kN 146
  • 131.
    Column = 0.3m x0.3m x 3m x 24kN/𝑚3 = 6.48kN Total dead load on first floor = 32.27kN + 8.90kN + 52.84kN + 6.48kN = 100.13kN Dead load on ground floor Concrete slab = 3.6kN/m2 x 9.52 m2 = 34.27kN Beam self-weight = (1.5 + 1.42 + 1.25 + 2.01)m x 1.44kN/m2 = 8.90kN Brick wall self-weight = (1.5 + 1.42 + 1.25 + 2.01)m x 8.55kN/m2 = 52.84kN Column = 0.3m x 0.3m x 3m x 24kN/𝑚3 = 6.48kN Total dead load on ground floor = 34.27kN + 8.90kN + 52.84kN + 6.48kN = 102.49kN Total Dead Load = 43.17kN + 100.13kN + 102.49kN = 245.79kN Apply 1.4 factor = 344.106kN 147
  • 132.
    Live Load Live loadon first floor Bedroom = (3.257 x 3)m x 1.5kN/m2 = 14.66kN Live load on ground floor Kitchen = (3.257 x 3)m x 3kN/m2 = 29.313kN Total live load = 14.66kN + 29.313kN = 43.873kN Apply 1.6 factor = 70.36kN 148
  • 133.
    Column Test Calculation(accordance to BS 8110) Given that fcu = 30N/mm2 and fy = 460N/mm2 . Assuming percentage of steel reinforcement in a square concrete column is 2%, determine the capacity of the column. N = 0.4fcuAc + 0.8fyAsc N = Capacity Of Concrete Fcu = Concrete Strength (N/mm2 ) Ac = Cross Section of Concrete Column Fy = Yield Strength of Steel (N/mm2 ) Asc = Steel Content in A Column Ac = 300 x 300 = 90000 Asc = 2% x 90000 = 1800 N = 0.4fcuAc + 0.8fyAsc = 0.4 x 30 x 90000 + 0.8 x 460 x 1800 = 1080000 + 662400 = 1742400N = 1742.4kN Thus, this column can sustain any ultimate load below 1742.4kN. 149