Postmodern architecture began as an international style the first
examples of which are generally cited as being from the 1950s, but did not
become a movement until the late 1970s and continues to influence
present-day architecture. Postmodernity in architecture is said to be
heralded by the return of "wit, ornament and reference" to architecture in
response to the formalism of the International Style of modernism
As with many cultural movements, some of Postmodernism's
most pronounced and visible ideas can be seen in architecture. The
functional and formalized shapes and spaces of the modernist style are
replaced by diverse aesthetics: styles collide, form is adopted for its own
sake, and new ways of viewing familiar styles and space abound.
Perhaps most obviously, architects rediscovered the expressive
and symbolic value of architectural elements and forms that had evolved
through centuries of building which had been abandoned by the modern
style
POSTMODERN ARCHITECTURE
Postmodern architecture has also been described as
‘neo-eclectic’, where reference and ornament have returned to the facade,
replacing the aggressively unornamented modern styles. This eclecticism is
often combined with the use of non-orthogonal angles and unusual surfaces
Modernist architects may regard postmodern buildings
as vulgar, associated with a populist ethic, and sharing the design elements
of shopping malls, cluttered with "gew-gaws“
Postmodern architects may regard many modern
buildings as soulless and bland, overly simplistic and abstract
The divergence in opinions comes down to a difference
in goals: modernism is rooted in minimal and true use of material as well as
absence of ornament, while postmodernism is a rejection of strict rules set
by the early modernists and seeks meaning and expression in the use of
building techniques, forms, and stylistic references
The Postmodernist movement is often seen
(especially in the USA) as an American movement, starting in America
around the 1960s–1970s and then spreading to Europe and the rest of the
world, to remain right through to the present
Double coding meant the buildings convey many
meanings simultaneously. The Sony Building in New York does this very
well. The building is a tall skyscraper which brings with it connotations of
very modern technology. Yet, the top contradicts this. The top section
conveys elements of classical antiquity. This double coding is a prevalent
trait of Postmodernism
The characteristics of Postmodernism were rather
unified given their diverse appearances. The most notable among their
characteristics is their playfully extravagant forms and the humour of the
meanings the buildings conveyed
ROBERT VENTURI
Robert Charles Venturi, Jr. (born June 25, 1925) is an
American architect, founding principal of the firm Venturi, Scott Brown and
Associates, and one of the major architectural figures in the twentieth century.
Together with his wife and partner, Denise Scott Brown, he helped to shape
the way that architects, planners and students experience and think about
architecture and the American built environment
Venturi was awarded the Pritzker Prize in Architecture in
1991; the prize was awarded to him alone despite a request to include his
equal partner Denise Scott Brown
Robert is also known for coining the maxim "Less is a bore"
a postmodern antidote to Mies van der Rohe's famous modernist dictum
"Less is more"
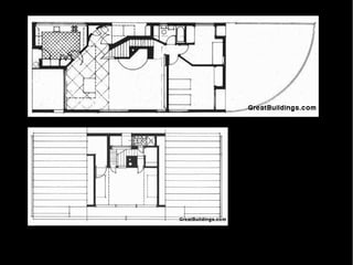
VANNA VENTURI HOUSE
The design of "Mother's House", as architect Robert Venturi
frequently calls the house, was affected by Vanna (née Luizi) Venturi as
both the client whose needs had to be met, and also as the mother who
helped develop the architect's talent and personality.
The five room house stands only about 30 feet (9 m) tall at
the top of the chimney, but has a monumental front facade, an effect
achieved by intentionally manipulating the architectural elements that
indicate a building's scale. A non-structural applique arch and "hole in the
wall" windows, among other elements, together with Venturi's
book Complexity and Contradiction in Architecture were an open challenge
to Modernist orthodoxy. Architectural historian Vincent Scully called it "the
biggest small building of the second half of the twentieth century.”
The designs for the house by Robert, Jr. evolved over four
years, but the architect noted only two indications of disagreement from his
client. When the work was about three-fourths complete, she looked at the
traditional 19th-century house next door and remarked "Oh, isn't that a nice
house."
Front facade (view from north-east)
View from the rear of the house (south)
View from the side (south-east)
ARCHIGRAM
Archigram was an avant-garde architectural group
formed in the 1960s - based at the Architectural Association, London -
that was futurist, anti-heroic and pro-consumerist, drawing inspiration
from technology in order to create a new reality that was solely
expressed through hypothetical projects. The main members of the
group were Peter Cook, Warren Chalk, Ron Herron, Dennis Crompton,
Michael Webb and David Greene. Designer Theo Crosby was the
"hidden hand" behind the group
Their works offered a seductive vision of a glamorous
future machine age; however, social and environmental issues were left
unaddressed
Unlike ephemeralisation from Buckminster Fuller
which assumes more must be done with less material (because
material is finite), Archigram relies on a future of interminable resources
The avant-garde (from French, "advance guard" or
"vanguard", literally "fore-guard") are people or works that are
experimental or innovative, particularly with respect to art, culture, and
politics.
The avant-garde pushes the boundaries of what is
accepted as the norm or the status quo, primarily in the cultural realm.
The avant-garde is considered by some to be a hallmark of
modernism, as distinct from postmodernism
PLUG-IN-CITY, PETER COOK, 1964
Plug-in-City is a mega-structure with no buildings, just a
massive framework into which dwellings in the form of cells or
standardised components could be slotted. The machine had taken over
and people were the raw material being processed, the difference being
that people are meant to enjoy the experience.
THE WALKING CITY, RON HERRON, 1964
The Walking City is constituted by intelligent buildings or
robots that are in the form of giant, self-contained living pods that could
roam the cities. The form derived from a combination of insect and
machine and was a literal interpretation of Corbusier's aphorism of a
house as a machine for living in. The pods were independent, yet parasitic
as they could 'plug into' way stations to exchange occupants or replenish
resources. The citizen is therefore a serviced nomad not totally dissimilar
from today's executive cars. The context was perceived as a future ruined
world in the aftermath of a nuclear war.
INSTANT CITY
Instant City is a mobile technological event that drifts
into underdeveloped, drab towns via air (balloons) with provisional
structures (performance spaces) in tow. The effect is a deliberate
overstimulation to produce mass culture, with an embrace of advertising
aesthetics. The whole endeavor is intended to eventually move on
leaving behind advanced technology hook-ups.
OTHER PROJECTS
Tuned City, in which Archigram's infrastructural and
spatial additions attach themselves to an existing town at a percentage
that leaves evidence of the previous development, rather than subsuming
the whole.
Thank you

Post modernism

  • 1.
    Postmodern architecture beganas an international style the first examples of which are generally cited as being from the 1950s, but did not become a movement until the late 1970s and continues to influence present-day architecture. Postmodernity in architecture is said to be heralded by the return of "wit, ornament and reference" to architecture in response to the formalism of the International Style of modernism As with many cultural movements, some of Postmodernism's most pronounced and visible ideas can be seen in architecture. The functional and formalized shapes and spaces of the modernist style are replaced by diverse aesthetics: styles collide, form is adopted for its own sake, and new ways of viewing familiar styles and space abound. Perhaps most obviously, architects rediscovered the expressive and symbolic value of architectural elements and forms that had evolved through centuries of building which had been abandoned by the modern style POSTMODERN ARCHITECTURE
  • 2.
    Postmodern architecture hasalso been described as ‘neo-eclectic’, where reference and ornament have returned to the facade, replacing the aggressively unornamented modern styles. This eclecticism is often combined with the use of non-orthogonal angles and unusual surfaces Modernist architects may regard postmodern buildings as vulgar, associated with a populist ethic, and sharing the design elements of shopping malls, cluttered with "gew-gaws“ Postmodern architects may regard many modern buildings as soulless and bland, overly simplistic and abstract The divergence in opinions comes down to a difference in goals: modernism is rooted in minimal and true use of material as well as absence of ornament, while postmodernism is a rejection of strict rules set by the early modernists and seeks meaning and expression in the use of building techniques, forms, and stylistic references
  • 3.
    The Postmodernist movementis often seen (especially in the USA) as an American movement, starting in America around the 1960s–1970s and then spreading to Europe and the rest of the world, to remain right through to the present Double coding meant the buildings convey many meanings simultaneously. The Sony Building in New York does this very well. The building is a tall skyscraper which brings with it connotations of very modern technology. Yet, the top contradicts this. The top section conveys elements of classical antiquity. This double coding is a prevalent trait of Postmodernism The characteristics of Postmodernism were rather unified given their diverse appearances. The most notable among their characteristics is their playfully extravagant forms and the humour of the meanings the buildings conveyed
  • 4.
    ROBERT VENTURI Robert CharlesVenturi, Jr. (born June 25, 1925) is an American architect, founding principal of the firm Venturi, Scott Brown and Associates, and one of the major architectural figures in the twentieth century. Together with his wife and partner, Denise Scott Brown, he helped to shape the way that architects, planners and students experience and think about architecture and the American built environment Venturi was awarded the Pritzker Prize in Architecture in 1991; the prize was awarded to him alone despite a request to include his equal partner Denise Scott Brown Robert is also known for coining the maxim "Less is a bore" a postmodern antidote to Mies van der Rohe's famous modernist dictum "Less is more"
  • 5.
    VANNA VENTURI HOUSE Thedesign of "Mother's House", as architect Robert Venturi frequently calls the house, was affected by Vanna (née Luizi) Venturi as both the client whose needs had to be met, and also as the mother who helped develop the architect's talent and personality. The five room house stands only about 30 feet (9 m) tall at the top of the chimney, but has a monumental front facade, an effect achieved by intentionally manipulating the architectural elements that indicate a building's scale. A non-structural applique arch and "hole in the wall" windows, among other elements, together with Venturi's book Complexity and Contradiction in Architecture were an open challenge to Modernist orthodoxy. Architectural historian Vincent Scully called it "the biggest small building of the second half of the twentieth century.” The designs for the house by Robert, Jr. evolved over four years, but the architect noted only two indications of disagreement from his client. When the work was about three-fourths complete, she looked at the traditional 19th-century house next door and remarked "Oh, isn't that a nice house."
  • 6.
    Front facade (viewfrom north-east)
  • 7.
    View from therear of the house (south)
  • 8.
    View from theside (south-east)
  • 19.
    ARCHIGRAM Archigram was anavant-garde architectural group formed in the 1960s - based at the Architectural Association, London - that was futurist, anti-heroic and pro-consumerist, drawing inspiration from technology in order to create a new reality that was solely expressed through hypothetical projects. The main members of the group were Peter Cook, Warren Chalk, Ron Herron, Dennis Crompton, Michael Webb and David Greene. Designer Theo Crosby was the "hidden hand" behind the group Their works offered a seductive vision of a glamorous future machine age; however, social and environmental issues were left unaddressed Unlike ephemeralisation from Buckminster Fuller which assumes more must be done with less material (because material is finite), Archigram relies on a future of interminable resources
  • 20.
    The avant-garde (fromFrench, "advance guard" or "vanguard", literally "fore-guard") are people or works that are experimental or innovative, particularly with respect to art, culture, and politics. The avant-garde pushes the boundaries of what is accepted as the norm or the status quo, primarily in the cultural realm. The avant-garde is considered by some to be a hallmark of modernism, as distinct from postmodernism
  • 21.
    PLUG-IN-CITY, PETER COOK,1964 Plug-in-City is a mega-structure with no buildings, just a massive framework into which dwellings in the form of cells or standardised components could be slotted. The machine had taken over and people were the raw material being processed, the difference being that people are meant to enjoy the experience. THE WALKING CITY, RON HERRON, 1964 The Walking City is constituted by intelligent buildings or robots that are in the form of giant, self-contained living pods that could roam the cities. The form derived from a combination of insect and machine and was a literal interpretation of Corbusier's aphorism of a house as a machine for living in. The pods were independent, yet parasitic as they could 'plug into' way stations to exchange occupants or replenish resources. The citizen is therefore a serviced nomad not totally dissimilar from today's executive cars. The context was perceived as a future ruined world in the aftermath of a nuclear war.
  • 22.
    INSTANT CITY Instant Cityis a mobile technological event that drifts into underdeveloped, drab towns via air (balloons) with provisional structures (performance spaces) in tow. The effect is a deliberate overstimulation to produce mass culture, with an embrace of advertising aesthetics. The whole endeavor is intended to eventually move on leaving behind advanced technology hook-ups. OTHER PROJECTS Tuned City, in which Archigram's infrastructural and spatial additions attach themselves to an existing town at a percentage that leaves evidence of the previous development, rather than subsuming the whole.
  • 23.