APPLICATION NOTE
GENERATOR SET DESIGN PARAMETERS
Shri Karve
March 2017
ECI Publication No Cu0158
Available from www.leonardo-energy.org
Publication No Cu0158
Issue Date: March 2017
Page i
Document Issue Control Sheet
Document Title: Application Note – Generator Set Design Parameters
Publication No: Cu0158
Issue: 02
Release: Public
Content provider(s) Shri Karve
Author(s): Shri Karve
Editorial and language review Bruno De Wachter (editorial), Noel Montrucchio (English language)
Content review: Roman Targosz
Document History
Issue Date Purpose
1 November
2012
Initial publication in the framework of the Good Practice Guide
2 March
2017
Revised version
3
Disclaimer
While this publication has been prepared with care, European Copper Institute and other contributors provide
no warranty with regards to the content and shall not be liable for any direct, incidental or consequential
damages that may result from the use of the information or the data contained.
Copyright© European Copper Institute.
Reproduction is authorized providing the material is unabridged and the source is acknowledged.
Publication No Cu0158
Issue Date: March 2017
Page ii
CONTENTS
Summary ........................................................................................................................................................ 1
Introduction.................................................................................................................................................... 2
Basic functions of Generator sets ................................................................................................................... 2
Different types of generator sets.................................................................................................................... 2
Main components of generator sets ............................................................................................................... 3
The Diesel Engine....................................................................................................................................................3
The Engine exhaust pipes and silencers .................................................................................................................4
Acoustic Noise abatement......................................................................................................................................4
The Alternator ........................................................................................................................................................4
Generator set frame...............................................................................................................................................4
AMF Panel...............................................................................................................................................................5
Typical components on control panels and generating units.................................................................................5
Generator set sizing........................................................................................................................................ 5
Generator set maintenance............................................................................................................................ 8
Conclusion ...................................................................................................................................................... 9
References...........................................................................................................Error! Bookmark not defined.
References...................................................................................................................................................... 9
Publication No Cu0158
Issue Date: March 2018
Page 1
SUMMARY
The intention of this paper is to look at various aspects of generator sets (gensets) utilized globally to provide
medium to long term backup power, and to improve system availability and reliability. Critical locations and
applications depend on generators for back-up power. Examples of such critical locations are hospitals,
airports, government buildings, telecommunications facilities, data centers, and nuclear power plants. Within
this paper we intend to cover the main components of gensets, general applications, different fuels utilized,
size selection, environmental issues, maintenance and noise pollution. The main emphasis of this document
will be towards selection of gensets for critical loads and system availability.
Publication No Cu0158
Issue Date: March 2018
Page 2
INTRODUCTION
Although the public utilities are fairly reliable in developed countries, even the best utility systems are
inadequate to meet the demands of critical loads. In the event of utility failure, the UPSs and/or generator sets
can provide the necessary backup.
As the time and length of blackouts are unpredictable, critical applications require backup for the worst case
scenario. Applications can be labeled critical because of the risk of a high financial loss, or because there is a
health and safety risk involved, or both. The nature of criticality is different for each application:
 Some applications, such as continuous production lines, incorporate high financial losses in case of
frequent short interruptions, but can be subject to the occasional longer black out.
 Other applications, such as the air-conditioning systems of a hospital or a data centre, can be
subjected to short interruptions, but require backup for any longer black out.
 For a third category of applications, such as operating theatre or a data centre server farm, any short
or long interruption should be avoided at any cost.
While UPS systems deal with short term power disturbances, gensets take over in case of any longer blackouts.
Standby power systems used to be specified merely on technical requirements, international standards, and
local electrical codes. However, with growing dependence on virtually perpetual source of electric power, in
recent times, sizing and specifying has become a business decision. Such a decision also incorporates thorough
financial evaluation and an economic risk assessment process.
BASIC FUNCTIONS OF GENERATOR SETS
In simple terms, the generator converts the stored fuel source into electrical energy to provide back up to the
load. Popular fuels are gas or diesel depending on load characteristics. As stated previously, generator sets are
mainly utilized to provide necessary backup for extended utility failure. Automatic mains failure (AMF)
detection is normally included within the critical power system design. As soon as mains supply fails, AMF
helps to start the generator automatically to provide support for the load. The unit is expected to start up
within few seconds to protect the load in a stable and sustained manner. Output from the generator set will be
compatible with the needs of the application, and with a minimum voltage harmonic distortion (THDU).
Output frequency stability and Slew Rate (rate of change of frequency -Hz/Sec) of the gensets need to be
compatible with the load.
DIFFERENT TYPES OF GENERATOR SETS
Diesel generators are normally used for standby and base load (continuous) applications. Gas powered units
are mainly utilized for Combined Heat and Power (CHP) type applications. There are some generators that use
vegetable oil to achieve a low carbon footprint. Utility failures are unpredictable and hence the generator set
must always be ready to start and pick up the load without prior warning. For this reason, such generators are
referred to as ‘Standby Generators’. Smaller and medium size generators have low voltage (400Volts) output.
Larger machines with ratings of 1600 KVA or higher, may have high voltage (10k volts) output. This paper will
focus mainly on low voltage standby diesel generators, since they project major share of the generator market.
Publication No Cu0158
Issue Date: March 2018
Page 3
MAIN COMPONENTS OF GENERATOR SETS
THE DIESEL ENGINE
Internal combustion diesel engines comprise the vast majority of prime movers for standby power generators,
due to their reliability, durability and performance under load.
The diesel engine drives the alternator via a suitable coupling. The engine’s fuel supply is normally provided by
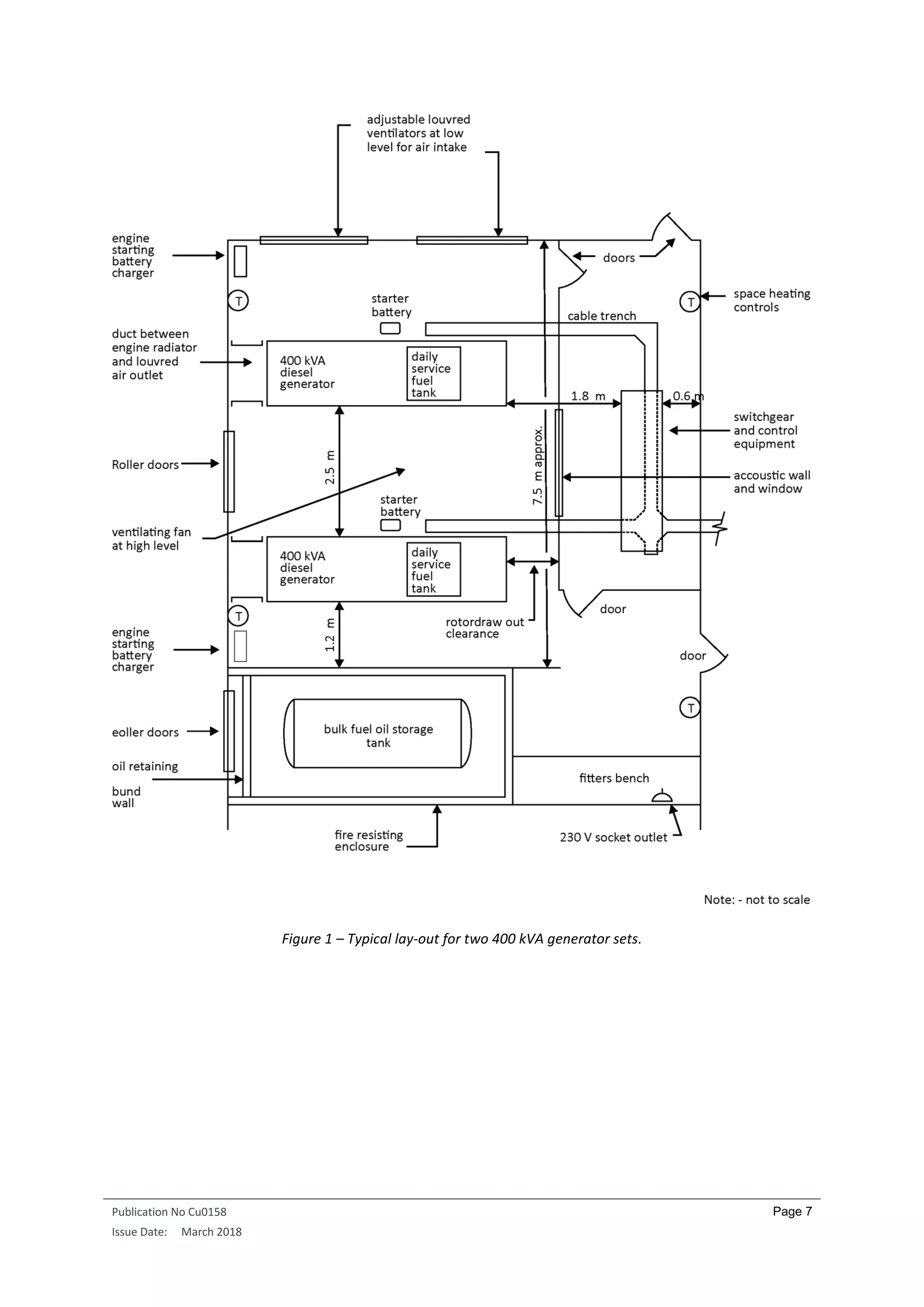
a day tank, and installed very close to the engine (see Figure 1). The bulk fuel tank is typically kept outside the
generator plant room with adequate capacity to meet the design specification. Trace heating of the fuel
transfer pipes and the bulk fuel tank is recommended for locations with low ambient temperature. The local
Pollution Control Regulation may require that the bulk fuel storage tank has a secondary containment
structure i.e. a bund. If Biodiesel blends of fuel are utilised then it is worth noting issues concerning
sedimentation and gum formation due to long term storage. During engine operation, sediments can cause
blockage of fuel filter and can foul the fuel intake system. The gum accumulation may also lead to sticking of
engine moving parts e.g. fuel injectors and valves. In some EU countries the Biodiesel will include additives to
ensure compliance with local standards for oxidation stability and to make it suitable for storing for a
minimum period of six months. In order to achieve a quick engine start, it is recommended that the engine
coolant and lubrication systems are continuously preheated in line with manufacturers recommendations. It is
also important to make sure that the engine battery is continuously monitored, and kept in a fully charged
state. In order to keep the noise emission level down, a four stroke engine is to be preferred to a two stroke
engine.
In order to maintain a stable engine speed at different loads, the governors are used to control the supply of
fuel to the injectors. There are two different types of governors that can be fitted to the engine: an electronic
one or a mechanical one. Electronic governors are to be preferred, as they provide a faster and finer response
to any load changes when compared to mechanical types of governors. A stable crank shaft speed results in a
stable alternator output frequency.
When selecting the type of engine- turbo charged or naturally aspirated achieving a fast recovery during step
load operation is an important selection criterion. The naturally aspirated engines can accept a 100% load
step; however such engines tend to be much bigger than the turbo charged units. A higher number of cylinders
will offer shorter starting time and better engine reliability.
An adequate provision of lubrication oil should be available within the plant room, as this can become
essential during longer blackouts. The lubrication oil drum should be fitted with a suitable hand pump to ease
transfer of oil to the engine.
Each generator set must have suitable fire protection equipment fitted within the plant room. Typically a
fusible link mounted over the unit with automatic shutting off of bulk fuel tank supply pump/fire valve etc.
The following basic engine instruments are considered necessary:
 Lubrication oil pressure gauge with trip contact or a sensor.
 Lubricating oil temperature gauge
 Service hour run counter
 Coolant temperature gauge with trip contactor or a sensor
 Engine speed indicator
Publication No Cu0158
Issue Date: March 2018
Page 4
THE ENGINE EXHAUST PIPES AND SILENCERS
All the engines must be fitted with exhaust gas silencers to limit noise pollution generated by the diesel
engine. It is imperative that all exhaust pipe work and silencers are suitably insulated with lagging to avoid
burns. The exhaust system length should be kept as short as possible with minimum number of bends. A
suitable drain valve should be installed in the lower section of the exhaust system to drain any accumulated
condensate from the exhaust system. Bellow type expansion joints are generally used as pipes will expand in
length as the temperature rises (as a rule of thumb, 1mm per 500 degrees centigrade). The level of noise
abatement depends on local by-laws and customer requirements. The main gaseous exhaust pollutants from
diesel engine are oxides of sulphur, nitrogen and carbon. The particulate pollutants will be mainly carbon or
oxides. Even small engines can produce significant amount of pollutants, and hence care must be taken to
release such pollution in a safe manner. In some cases, the local authorities may also demand inclusion of a
suitable catalytic converter to limit pollution. Depending on location of the generator, some of the silencers
may have to be installed with a snow flap to avoid damage from severe snow fall.
ACOUSTIC NOISE ABATEMENT
Adequate acoustic housing needs to be allowed for any generator set installation. Since a typical diesel engine
will emit 130 dB A of noise at one meter distance from the engine. The local regulations and surrounding
environment may dictate the level of required noise attenuation. It is worth noting that noise abatement can
be rather expensive. In some cases the generator may have to be installed within an ISO container, customized
enclosure or in a separate building with suitable noise reduction. Containerized generator sets are getting
popular, and have several benefits as listed below:
 minimal site work
 robust construction with protection against the weather
 self-contained noise abatement
 ease of transportation
THE ALTERNATOR
The alternator converts the engine’s mechanical power into AC electrical power. The brushless alternator is
now generally utilized for all generator sets. In Europe, typical output voltage from the alternator would be
400V 3 Phase at 50 Hz output frequency. Each alternator is fitted with an Automatic Voltage Regulator (AVR),
which controls the stability and amplitude of the alternator output voltage. The alternator output frequency of
50 Hz is determined by the engine speed, and based on alternator winding and number of Poles. The load
profile is a dominant factor is sizing the alternator. Some loads may be rich in harmonic currents, whilst others
may impose a leading power factor on the alternator. If these loads are to be protected, permanent magnet
excitation or alternator oversizing should be considered. On the other hand, if an active harmonic filter is used
to block the leading power factor and the load harmonics, oversizing the alternator is unnecessary.
GENERATOR SET FRAME
A rigid steel chassis is used for mounting the main components of the generator set. Such a frame needs to be
designed to handle the weights and the torsional stresses of all the rotating members of the system. The base
of the frame would be fitted with anti-vibration mounts (AVMs), to avoid engine vibrations being transferred
to the building structure. Some buildings have stringent specifications regarding vibrations, imposing special
requirements to the AVMs. The AVM count can be increased in order to reduce the point loadings, and to
comply with the floor loading design parameters.
Publication No Cu0158
Issue Date: March 2018
Page 5
AMF PANEL
In case the generator is used for a secure power supply installation, it is necessary to install a suitable control
panel. If the utility fails, the AMF panel enables automatic start of the genset and connects/transfers the
generator output to the load. All the AMF controlled gensets continue to provide power for a minimum period
of two minutes even after the mains supply is restored. This provides additional cover in the event the utility
fault has not been resolved and the supply gets disconnected again.
There are two changeover contactors within the AMF panel. One of them is for the mains, and the other one is
for the generator. These contactors must be interlocked appropriately to avoid that both contactors would
close at the same time.
The AMF panel should be provided with a suitable bypass switch, complete with necessary interlocks, in order
to enable a safe execution of the necessary maintenance actions on the panel.
TYPICAL COMPONENTS ON CONTROL PANELS AND GENERATING UNITS
Generator instrument panels are either mounted on the generator frame or as a free standing panel. The
installation of components listed below will be subject to set ratings and project specification. LCD displays and
key pads are now also becoming a common place for the following 15, 16 and 17 listed items.
1. Time delay mains failure relay for engine start and auto-changeover
2. Interlock auto-changeover switch
3. Voltage/frequency sensitive relay for generator circuit breaker
4. Generator overcurrent relay
5. Time delay relay for automatic normal supply reinstatements
6. Time delay relay for engine cooling
7. Bypass switch to auto-changeover switch for test and maintenance
8. Push button – manual start engine
9. Push button – emergency stop (red with yellow back plate)
10. Auto start sequence switch
11. Mains failure simulation switch
12. Fail to start relay with audible/visual alarm
13. Lubrication oil pressure gauge with engine low pressure alarm
14. Engine high temperature relay with audible/visual alarm
15. Generator voltmeter with phase selection rotary switch
16. Generator amp meter with phase selection rotary switch
17. Frequency meter
18. Battery charger and batteries for start control, alarm and indication;
19. Battery and battery charger isolation and visual indicator
20. Battery voltmeter
21. Battery amp meter
GENERATOR SET SIZING
It is important to understand the factors that affect the operation of a generator set, as this can help in
selecting the right components for a generator set to suit the application.
As a good starting point, it is worth adding up all the loads that need to be supported by the generator.
However, it is important to be aware of the minimum load the unit will have to face for a considerable time
during its operation. This is critical, as light load running can cause engine damage. Hence, one may need to
Publication No Cu0158
Issue Date: March 2018
Page 6
consider use of a dummy load to avoid running at loads below 30% of nameplate rating. Any future load
expansion of the project needs to be considered too. A single, large diesel standby generator may have
sufficient capacity to supply all your critical loads. However, it is often advisable to divide the load among
smaller, multiple standby generators to maximize reliability and operational flexibility. In the unlikely event
that one standby generator does not start when needed, the others will start and share the load by drawing on
their built-in reserve capacities. Another advantage of multiple generator systems is that one unit can be
offline for maintenance without affecting the availability of standby power for emergencies.
It is worth considering the Tier Classification Standard (I, II, III & IV Levels) as defined by Uptime Institute
(www.uptimeinstitute.com) to attain specific availability/reliability. This Standard combines the impact of
site management with that of the infrastructure choice and provides adequate guidance when planning for a
particular number of nines (99.999% i.e. Five Nines) for the availability of the critical load.
The following parameters also need to be considered during the sizing of the genset, and consequently need
to be mentioned in the specifications for the genset supplier:
 The choice of fuel can affect the size of the engine. For example, gas or LPG fed engines have to be
oversized.
 The geographical location. If the unit has to operate at high altitude or in a high temperature
environment then the engine size may have to be increased.
 The duty cycle the unit. If the generator set supports standby application, no overload capacity is
required. However, if it is for prime power (continuous long term operation) or for paralleling with the
utility, the genset needs to have a 10% overload capacity.
 The load profile. If the unit is expected to support a very unbalanced three phase load, the genset has
to be oversized. The size of step loads needs to be considered, since this can affect the output voltage
and frequency dip. The maximum allowable voltage and frequency dip also needs to be specified, so
that the genset can be sized accordingly. Loads with leading power factor and/or non-linear currents
(e.g. from UPSs and variable speed drives) can also affect the choice of the alternator. Loads
consisting of electric motors with a high inrush current demand a larger than normal generator set.
 The load transfer. If the load transfer to the genset system is carried out in a planned sequential
manner, this can avoid oversizing of the gensets in a system with several gensets running in parallel.
 The generator output frequency 50 or 60 Hz.
 The anticipated fault clearing capacity.
Publication No Cu0158
Issue Date: March 2018
Page 7
Figure 1 – Typical lay-out for two 400 kVA generator sets.
Publication No Cu0158
Issue Date: March 2018
Page 8
GENERATOR SET MAINTENANCE
Since the diesel engine has hundreds of moving components, it is important to carry out routine maintenance.
Maintenance is one of the key factors for diesel generator set’s reliability. The generator room must have
adequate access to ease routine maintenance. As the diesel engine has high durability, most of the
maintenance is mainly of preventative nature.
Regular inspection and maintenance in accordance with manufacturer’s recommendations can play a critical
role in maximizing set reliability and minimize repairs.
Following operations should form part of preventative maintenance:
• General inspection
• Lubrication service
• Cooling system service
• Fuel system service including a check on fuel contaminants
• Servicing and testing starting batteries
• Regular engine testing
It is important to make sure that the regular engine testing is not carried out under light load condition. When
a diesel engine is operating on light load or no load, it will not attain the required optimal operational
temperature. When the diesel engine is allowed to run for extended periods below its designed operating
temperature, unburned fuel is exhausted and noticed as wetness in the exhaust system. This is termed as
“Wet Stacking”.
The unburned fuel starts to build up in the exhaust side of the engine, resulting in a black oily fluid leaking
from the exhaust manifold joints. Wet Stacking can cause serious damage to various components of the
engine.
Publication No Cu0158
Issue Date: March 2018
Page 9
CONCLUSION
Statistically, 95% of all utility disturbances last for less than five minutes. The remaining 5% of longer
interruptions are likely to last for many hours. As all natural disasters, human errors and equipment failures
and black outs are not predictable. Consequently, if the application is so critical that no power interruption can
be tolerated, a standby generator must be installed as part of the protected power supply system.
The selection of the genset size should take a potential future growth of the load into account. Consulting
availability/reliability architecture guidelines, such as the Uptime Institute’s tier level standard can help with
taking power system architecture decisions.
The specification and installation of a diesel generator is a complex matter covering many electrical and
mechanical disciplines. All aspects need to be fully considered if an installation is to be successfully executed.
The cornerstone of a successful installation is ensuring that the genset is correctly rated against the critical
load; this includes capacity, duty, as well as dynamic performance characteristics. Over sizing of standby
generators is common place; the penalty for oversizing is not just the capital cost of the genset itself, it also
requires more attenuation, and larger fuel and flue systems.
It is likely that in future the exhaust gas pollution levels will be reduced dramatically due to further tightening
of such standards. In view of this, the engine designs will need to be improved substantially.
Once installed, the on-going reliability should be assured by having a proactive maintenance regime in
accordance with the manufacturer’s recommendations. Such a maintenance regime is also required to
maintain warranty cover.
REFERENCES
1 Cummins Power Generation Inc.
2 Power Electrics (Bristol) Ltd
3 Worldwide Independent Power, June ‘06. Impact of Blade Servers on Data Centres- S.Karve
4 Uptime Institute – Availability, Tier Standard
5 ISO 3046 parts 1/6 - Internal combustion engine performance
6 ISO 8528 Generator set performance classification
7 IEC947-6-1 Low voltage switch gear

Generator set design parameters

  • 1.
    APPLICATION NOTE GENERATOR SETDESIGN PARAMETERS Shri Karve March 2017 ECI Publication No Cu0158 Available from www.leonardo-energy.org
  • 2.
    Publication No Cu0158 IssueDate: March 2017 Page i Document Issue Control Sheet Document Title: Application Note – Generator Set Design Parameters Publication No: Cu0158 Issue: 02 Release: Public Content provider(s) Shri Karve Author(s): Shri Karve Editorial and language review Bruno De Wachter (editorial), Noel Montrucchio (English language) Content review: Roman Targosz Document History Issue Date Purpose 1 November 2012 Initial publication in the framework of the Good Practice Guide 2 March 2017 Revised version 3 Disclaimer While this publication has been prepared with care, European Copper Institute and other contributors provide no warranty with regards to the content and shall not be liable for any direct, incidental or consequential damages that may result from the use of the information or the data contained. Copyright© European Copper Institute. Reproduction is authorized providing the material is unabridged and the source is acknowledged.
  • 3.
    Publication No Cu0158 IssueDate: March 2017 Page ii CONTENTS Summary ........................................................................................................................................................ 1 Introduction.................................................................................................................................................... 2 Basic functions of Generator sets ................................................................................................................... 2 Different types of generator sets.................................................................................................................... 2 Main components of generator sets ............................................................................................................... 3 The Diesel Engine....................................................................................................................................................3 The Engine exhaust pipes and silencers .................................................................................................................4 Acoustic Noise abatement......................................................................................................................................4 The Alternator ........................................................................................................................................................4 Generator set frame...............................................................................................................................................4 AMF Panel...............................................................................................................................................................5 Typical components on control panels and generating units.................................................................................5 Generator set sizing........................................................................................................................................ 5 Generator set maintenance............................................................................................................................ 8 Conclusion ...................................................................................................................................................... 9 References...........................................................................................................Error! Bookmark not defined. References...................................................................................................................................................... 9
  • 4.
    Publication No Cu0158 IssueDate: March 2018 Page 1 SUMMARY The intention of this paper is to look at various aspects of generator sets (gensets) utilized globally to provide medium to long term backup power, and to improve system availability and reliability. Critical locations and applications depend on generators for back-up power. Examples of such critical locations are hospitals, airports, government buildings, telecommunications facilities, data centers, and nuclear power plants. Within this paper we intend to cover the main components of gensets, general applications, different fuels utilized, size selection, environmental issues, maintenance and noise pollution. The main emphasis of this document will be towards selection of gensets for critical loads and system availability.
  • 5.
    Publication No Cu0158 IssueDate: March 2018 Page 2 INTRODUCTION Although the public utilities are fairly reliable in developed countries, even the best utility systems are inadequate to meet the demands of critical loads. In the event of utility failure, the UPSs and/or generator sets can provide the necessary backup. As the time and length of blackouts are unpredictable, critical applications require backup for the worst case scenario. Applications can be labeled critical because of the risk of a high financial loss, or because there is a health and safety risk involved, or both. The nature of criticality is different for each application:  Some applications, such as continuous production lines, incorporate high financial losses in case of frequent short interruptions, but can be subject to the occasional longer black out.  Other applications, such as the air-conditioning systems of a hospital or a data centre, can be subjected to short interruptions, but require backup for any longer black out.  For a third category of applications, such as operating theatre or a data centre server farm, any short or long interruption should be avoided at any cost. While UPS systems deal with short term power disturbances, gensets take over in case of any longer blackouts. Standby power systems used to be specified merely on technical requirements, international standards, and local electrical codes. However, with growing dependence on virtually perpetual source of electric power, in recent times, sizing and specifying has become a business decision. Such a decision also incorporates thorough financial evaluation and an economic risk assessment process. BASIC FUNCTIONS OF GENERATOR SETS In simple terms, the generator converts the stored fuel source into electrical energy to provide back up to the load. Popular fuels are gas or diesel depending on load characteristics. As stated previously, generator sets are mainly utilized to provide necessary backup for extended utility failure. Automatic mains failure (AMF) detection is normally included within the critical power system design. As soon as mains supply fails, AMF helps to start the generator automatically to provide support for the load. The unit is expected to start up within few seconds to protect the load in a stable and sustained manner. Output from the generator set will be compatible with the needs of the application, and with a minimum voltage harmonic distortion (THDU). Output frequency stability and Slew Rate (rate of change of frequency -Hz/Sec) of the gensets need to be compatible with the load. DIFFERENT TYPES OF GENERATOR SETS Diesel generators are normally used for standby and base load (continuous) applications. Gas powered units are mainly utilized for Combined Heat and Power (CHP) type applications. There are some generators that use vegetable oil to achieve a low carbon footprint. Utility failures are unpredictable and hence the generator set must always be ready to start and pick up the load without prior warning. For this reason, such generators are referred to as ‘Standby Generators’. Smaller and medium size generators have low voltage (400Volts) output. Larger machines with ratings of 1600 KVA or higher, may have high voltage (10k volts) output. This paper will focus mainly on low voltage standby diesel generators, since they project major share of the generator market.
  • 6.
    Publication No Cu0158 IssueDate: March 2018 Page 3 MAIN COMPONENTS OF GENERATOR SETS THE DIESEL ENGINE Internal combustion diesel engines comprise the vast majority of prime movers for standby power generators, due to their reliability, durability and performance under load. The diesel engine drives the alternator via a suitable coupling. The engine’s fuel supply is normally provided by a day tank, and installed very close to the engine (see Figure 1). The bulk fuel tank is typically kept outside the generator plant room with adequate capacity to meet the design specification. Trace heating of the fuel transfer pipes and the bulk fuel tank is recommended for locations with low ambient temperature. The local Pollution Control Regulation may require that the bulk fuel storage tank has a secondary containment structure i.e. a bund. If Biodiesel blends of fuel are utilised then it is worth noting issues concerning sedimentation and gum formation due to long term storage. During engine operation, sediments can cause blockage of fuel filter and can foul the fuel intake system. The gum accumulation may also lead to sticking of engine moving parts e.g. fuel injectors and valves. In some EU countries the Biodiesel will include additives to ensure compliance with local standards for oxidation stability and to make it suitable for storing for a minimum period of six months. In order to achieve a quick engine start, it is recommended that the engine coolant and lubrication systems are continuously preheated in line with manufacturers recommendations. It is also important to make sure that the engine battery is continuously monitored, and kept in a fully charged state. In order to keep the noise emission level down, a four stroke engine is to be preferred to a two stroke engine. In order to maintain a stable engine speed at different loads, the governors are used to control the supply of fuel to the injectors. There are two different types of governors that can be fitted to the engine: an electronic one or a mechanical one. Electronic governors are to be preferred, as they provide a faster and finer response to any load changes when compared to mechanical types of governors. A stable crank shaft speed results in a stable alternator output frequency. When selecting the type of engine- turbo charged or naturally aspirated achieving a fast recovery during step load operation is an important selection criterion. The naturally aspirated engines can accept a 100% load step; however such engines tend to be much bigger than the turbo charged units. A higher number of cylinders will offer shorter starting time and better engine reliability. An adequate provision of lubrication oil should be available within the plant room, as this can become essential during longer blackouts. The lubrication oil drum should be fitted with a suitable hand pump to ease transfer of oil to the engine. Each generator set must have suitable fire protection equipment fitted within the plant room. Typically a fusible link mounted over the unit with automatic shutting off of bulk fuel tank supply pump/fire valve etc. The following basic engine instruments are considered necessary:  Lubrication oil pressure gauge with trip contact or a sensor.  Lubricating oil temperature gauge  Service hour run counter  Coolant temperature gauge with trip contactor or a sensor  Engine speed indicator
  • 7.
    Publication No Cu0158 IssueDate: March 2018 Page 4 THE ENGINE EXHAUST PIPES AND SILENCERS All the engines must be fitted with exhaust gas silencers to limit noise pollution generated by the diesel engine. It is imperative that all exhaust pipe work and silencers are suitably insulated with lagging to avoid burns. The exhaust system length should be kept as short as possible with minimum number of bends. A suitable drain valve should be installed in the lower section of the exhaust system to drain any accumulated condensate from the exhaust system. Bellow type expansion joints are generally used as pipes will expand in length as the temperature rises (as a rule of thumb, 1mm per 500 degrees centigrade). The level of noise abatement depends on local by-laws and customer requirements. The main gaseous exhaust pollutants from diesel engine are oxides of sulphur, nitrogen and carbon. The particulate pollutants will be mainly carbon or oxides. Even small engines can produce significant amount of pollutants, and hence care must be taken to release such pollution in a safe manner. In some cases, the local authorities may also demand inclusion of a suitable catalytic converter to limit pollution. Depending on location of the generator, some of the silencers may have to be installed with a snow flap to avoid damage from severe snow fall. ACOUSTIC NOISE ABATEMENT Adequate acoustic housing needs to be allowed for any generator set installation. Since a typical diesel engine will emit 130 dB A of noise at one meter distance from the engine. The local regulations and surrounding environment may dictate the level of required noise attenuation. It is worth noting that noise abatement can be rather expensive. In some cases the generator may have to be installed within an ISO container, customized enclosure or in a separate building with suitable noise reduction. Containerized generator sets are getting popular, and have several benefits as listed below:  minimal site work  robust construction with protection against the weather  self-contained noise abatement  ease of transportation THE ALTERNATOR The alternator converts the engine’s mechanical power into AC electrical power. The brushless alternator is now generally utilized for all generator sets. In Europe, typical output voltage from the alternator would be 400V 3 Phase at 50 Hz output frequency. Each alternator is fitted with an Automatic Voltage Regulator (AVR), which controls the stability and amplitude of the alternator output voltage. The alternator output frequency of 50 Hz is determined by the engine speed, and based on alternator winding and number of Poles. The load profile is a dominant factor is sizing the alternator. Some loads may be rich in harmonic currents, whilst others may impose a leading power factor on the alternator. If these loads are to be protected, permanent magnet excitation or alternator oversizing should be considered. On the other hand, if an active harmonic filter is used to block the leading power factor and the load harmonics, oversizing the alternator is unnecessary. GENERATOR SET FRAME A rigid steel chassis is used for mounting the main components of the generator set. Such a frame needs to be designed to handle the weights and the torsional stresses of all the rotating members of the system. The base of the frame would be fitted with anti-vibration mounts (AVMs), to avoid engine vibrations being transferred to the building structure. Some buildings have stringent specifications regarding vibrations, imposing special requirements to the AVMs. The AVM count can be increased in order to reduce the point loadings, and to comply with the floor loading design parameters.
  • 8.
    Publication No Cu0158 IssueDate: March 2018 Page 5 AMF PANEL In case the generator is used for a secure power supply installation, it is necessary to install a suitable control panel. If the utility fails, the AMF panel enables automatic start of the genset and connects/transfers the generator output to the load. All the AMF controlled gensets continue to provide power for a minimum period of two minutes even after the mains supply is restored. This provides additional cover in the event the utility fault has not been resolved and the supply gets disconnected again. There are two changeover contactors within the AMF panel. One of them is for the mains, and the other one is for the generator. These contactors must be interlocked appropriately to avoid that both contactors would close at the same time. The AMF panel should be provided with a suitable bypass switch, complete with necessary interlocks, in order to enable a safe execution of the necessary maintenance actions on the panel. TYPICAL COMPONENTS ON CONTROL PANELS AND GENERATING UNITS Generator instrument panels are either mounted on the generator frame or as a free standing panel. The installation of components listed below will be subject to set ratings and project specification. LCD displays and key pads are now also becoming a common place for the following 15, 16 and 17 listed items. 1. Time delay mains failure relay for engine start and auto-changeover 2. Interlock auto-changeover switch 3. Voltage/frequency sensitive relay for generator circuit breaker 4. Generator overcurrent relay 5. Time delay relay for automatic normal supply reinstatements 6. Time delay relay for engine cooling 7. Bypass switch to auto-changeover switch for test and maintenance 8. Push button – manual start engine 9. Push button – emergency stop (red with yellow back plate) 10. Auto start sequence switch 11. Mains failure simulation switch 12. Fail to start relay with audible/visual alarm 13. Lubrication oil pressure gauge with engine low pressure alarm 14. Engine high temperature relay with audible/visual alarm 15. Generator voltmeter with phase selection rotary switch 16. Generator amp meter with phase selection rotary switch 17. Frequency meter 18. Battery charger and batteries for start control, alarm and indication; 19. Battery and battery charger isolation and visual indicator 20. Battery voltmeter 21. Battery amp meter GENERATOR SET SIZING It is important to understand the factors that affect the operation of a generator set, as this can help in selecting the right components for a generator set to suit the application. As a good starting point, it is worth adding up all the loads that need to be supported by the generator. However, it is important to be aware of the minimum load the unit will have to face for a considerable time during its operation. This is critical, as light load running can cause engine damage. Hence, one may need to
  • 9.
    Publication No Cu0158 IssueDate: March 2018 Page 6 consider use of a dummy load to avoid running at loads below 30% of nameplate rating. Any future load expansion of the project needs to be considered too. A single, large diesel standby generator may have sufficient capacity to supply all your critical loads. However, it is often advisable to divide the load among smaller, multiple standby generators to maximize reliability and operational flexibility. In the unlikely event that one standby generator does not start when needed, the others will start and share the load by drawing on their built-in reserve capacities. Another advantage of multiple generator systems is that one unit can be offline for maintenance without affecting the availability of standby power for emergencies. It is worth considering the Tier Classification Standard (I, II, III & IV Levels) as defined by Uptime Institute (www.uptimeinstitute.com) to attain specific availability/reliability. This Standard combines the impact of site management with that of the infrastructure choice and provides adequate guidance when planning for a particular number of nines (99.999% i.e. Five Nines) for the availability of the critical load. The following parameters also need to be considered during the sizing of the genset, and consequently need to be mentioned in the specifications for the genset supplier:  The choice of fuel can affect the size of the engine. For example, gas or LPG fed engines have to be oversized.  The geographical location. If the unit has to operate at high altitude or in a high temperature environment then the engine size may have to be increased.  The duty cycle the unit. If the generator set supports standby application, no overload capacity is required. However, if it is for prime power (continuous long term operation) or for paralleling with the utility, the genset needs to have a 10% overload capacity.  The load profile. If the unit is expected to support a very unbalanced three phase load, the genset has to be oversized. The size of step loads needs to be considered, since this can affect the output voltage and frequency dip. The maximum allowable voltage and frequency dip also needs to be specified, so that the genset can be sized accordingly. Loads with leading power factor and/or non-linear currents (e.g. from UPSs and variable speed drives) can also affect the choice of the alternator. Loads consisting of electric motors with a high inrush current demand a larger than normal generator set.  The load transfer. If the load transfer to the genset system is carried out in a planned sequential manner, this can avoid oversizing of the gensets in a system with several gensets running in parallel.  The generator output frequency 50 or 60 Hz.  The anticipated fault clearing capacity.
  • 10.
    Publication No Cu0158 IssueDate: March 2018 Page 7 Figure 1 – Typical lay-out for two 400 kVA generator sets.
  • 11.
    Publication No Cu0158 IssueDate: March 2018 Page 8 GENERATOR SET MAINTENANCE Since the diesel engine has hundreds of moving components, it is important to carry out routine maintenance. Maintenance is one of the key factors for diesel generator set’s reliability. The generator room must have adequate access to ease routine maintenance. As the diesel engine has high durability, most of the maintenance is mainly of preventative nature. Regular inspection and maintenance in accordance with manufacturer’s recommendations can play a critical role in maximizing set reliability and minimize repairs. Following operations should form part of preventative maintenance: • General inspection • Lubrication service • Cooling system service • Fuel system service including a check on fuel contaminants • Servicing and testing starting batteries • Regular engine testing It is important to make sure that the regular engine testing is not carried out under light load condition. When a diesel engine is operating on light load or no load, it will not attain the required optimal operational temperature. When the diesel engine is allowed to run for extended periods below its designed operating temperature, unburned fuel is exhausted and noticed as wetness in the exhaust system. This is termed as “Wet Stacking”. The unburned fuel starts to build up in the exhaust side of the engine, resulting in a black oily fluid leaking from the exhaust manifold joints. Wet Stacking can cause serious damage to various components of the engine.
  • 12.
    Publication No Cu0158 IssueDate: March 2018 Page 9 CONCLUSION Statistically, 95% of all utility disturbances last for less than five minutes. The remaining 5% of longer interruptions are likely to last for many hours. As all natural disasters, human errors and equipment failures and black outs are not predictable. Consequently, if the application is so critical that no power interruption can be tolerated, a standby generator must be installed as part of the protected power supply system. The selection of the genset size should take a potential future growth of the load into account. Consulting availability/reliability architecture guidelines, such as the Uptime Institute’s tier level standard can help with taking power system architecture decisions. The specification and installation of a diesel generator is a complex matter covering many electrical and mechanical disciplines. All aspects need to be fully considered if an installation is to be successfully executed. The cornerstone of a successful installation is ensuring that the genset is correctly rated against the critical load; this includes capacity, duty, as well as dynamic performance characteristics. Over sizing of standby generators is common place; the penalty for oversizing is not just the capital cost of the genset itself, it also requires more attenuation, and larger fuel and flue systems. It is likely that in future the exhaust gas pollution levels will be reduced dramatically due to further tightening of such standards. In view of this, the engine designs will need to be improved substantially. Once installed, the on-going reliability should be assured by having a proactive maintenance regime in accordance with the manufacturer’s recommendations. Such a maintenance regime is also required to maintain warranty cover. REFERENCES 1 Cummins Power Generation Inc. 2 Power Electrics (Bristol) Ltd 3 Worldwide Independent Power, June ‘06. Impact of Blade Servers on Data Centres- S.Karve 4 Uptime Institute – Availability, Tier Standard 5 ISO 3046 parts 1/6 - Internal combustion engine performance 6 ISO 8528 Generator set performance classification 7 IEC947-6-1 Low voltage switch gear