Calculation Note 
SUEZ CEMENT COMPANY-SCC 
FOUNDATIONS AND RETAINING WALLS
Page1 
Table of Content: PAGE 
I- Introduction and General Design Notes---------------------------------------------------2 
 Introduction--------------------------------------------------------------------------------------3 
 1-General Design Notes-----------------------------------------------------------------------3 
1.1-Design Method and Standards----------------------------------------------------------3 
1.2 –Loads----------------------------------------------------------------------------------------3 
1.3-foundation conditions--------------------------------------------------------------------4 
1.4 -Specifications of Materials--------------------------------------------------------------4 
II-Mechanical Drawings---------------------------------------------------------------------------5 
III-Conveyor Foundation Design---------------------------------------------------------------12 
IV- Retaining Wall and strap footing Design------------------------------------------------29 
VI-Design Drawings--------------------------------------------------------------------------------49
Page2 
Introduction and General Design Notes
Page3 
 Introduction 
 This report has been prepared for structural design of conveyor and storage area foundations, retaining walls and slab on grad ,its popose to briefly describe the the structural system, names of various applicable codes of structural engineering practice are mentioned, the design criteria are described in detail including all types of gravity loads to be considered in design, Methods of structural analysis and design to be followed are explained with reference to the use of personal computer in organizing all calculations, The types of structural materials and their corresponding strengths are mentioned briefly. 
 All the design procedures were done by taking into account the Egyptian code Specifications 
 Foundation type is selected as single and combined footing for conveyor and as strap footing for retaining walls. 
 Plan dimensions of foundations are determined by taking into consideration the soil bearing capacity which is defined by geotechnical site research. 
 This structural system has been designed by using Excel sheets , MathCad and static analyze programs SAP2000 and SafeV.12 
 1-General Design Notes 
1.1 Design Method and Standards: 
The design and works shall comply with: 
Loading 
 If no higher loads will be requested by the Client or by the Supplier, the loads shall be applied based on the Egyptian Code for 'Computation of Loads and Structural Forces & Building. 
Reinforced Concrete 
 The design method to be taken into consideration is the limit state design method, covering the Egyptian Code of Practice for the design of reinforced concrete as well as the load specifications. 
Foundation 
 The design of the foundation concerning safety against overturning, uplift and sliding has to be established according to the Egyptian Code Volume 3 'Shallow Foundations' 
1.2 Loads 
Load categories 
1.2.1-Dead load (permanent loads) 
 Dead load of deck, equipment, lining and other well-defined installations (in terms of both load and location). 
1.2.1.1 Dead loads / weights 
 Working values of dead loads: 
o Concrete, un-reinforced 24 kN/m3 
o Concrete, reinforced 25 kN/m3 
o Soil, for soil pressure 20 kN/m3 
o Soil, for stability 18 kN/m3 
1.2.2 -Live loads, normal (variable loads) 
 Normally occurring loads from e.g. plant operators, furniture and equipment, traffic, material (stored, transported, occasional accumulations,dust, fillings, etc.). 
 When a dynamic load is approximated to an additional static load, this additional load, which stems from normally occurring conditions of impacts and vibrations, is included in this load category.
Page4 
1.2.3 -Loads from meachinery and equipment(variable loads) 
 The working loads as shown on mechanical drawings, these loads include nature loads like wind and seismic loads. 
1.3-foundation conditions 
 The soil condition and foundation recommendations are spcified in the geotechnical investigation report 
 the allowable net soil pressure are recommended as 250 kN/m2 
 In case of design due to permeanent and probabilistic/dynamic Loads of either wind or earthquake the maximum net soil pressure can be increased by 20% either on Serviceability Limeit States/allowable or on Ultimate Limit State/design whenever is more economical for the foundation design. 
1.4 Specifications of Materials 
1.4.1 Reinforced concrete 
Material properties of concrete: 
 The concrete grades for foundations and structures have to be as follows: 
Concrete class 
Concrete designation 
28days standard compresseve strength cube 150*150*150 mm 
Application 
A 
Fcu 350 
350 kg/cm3 
Grouting 
B 
Fcu 300 
300 kg/cm3 
Reinforcement concrete 
C 
Fcu 200 
200 kg/cm3 
Plan concrete 
Thermal expansion coefficient = 10-5 per ° C. 
Poisson's ratio of concrete = 0.2 
Material properties for reinforcement: 
 Rebars complying with the requirements of Egyptian Standard 262 (steel bars for concrete reinforcement) can be used, provided, that its characteristics shall be considered in design. The following indicates the characteristics of the Egyptian steel. 
Type of steel 
Yield stresses 
(fy N/mm2) 
Ultimate design strength 
(Fu N/mm2) 
Min elongation 
Deformed bars 400/600 
(ribbed high grade steel) 
400 
600 
12% 
smooth bars 240/350 (normal mild steel) 
240 
350 
20% 
Elastic modulus: ES = 200'000 N/mm2 
 Following diameters of deformed bars shall be used for the design: Y 10, 12, 16, 18, 22, 25.
Page5 
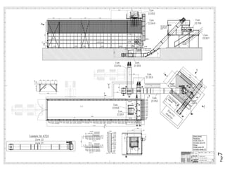
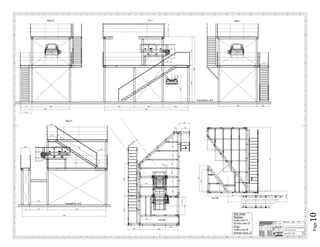
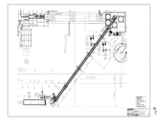
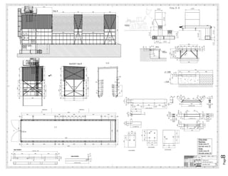
II-Mechanical Drawings
Page7
Page8
Page9
Page10
Page11
Page12 
III-Conveyor Foundation Design
Page13 
3.1 Design of Conveyor Foundation
Page14 
 Design using Excel Sheets
Page15
 Check Design using MathCAD Sheet
Page17
Page18
Page19
Page20
Page21 
 Design Combined footing F4 using Safe program 
 Loads input 
Check Stresses under Foundation in each Load combination
Page22
Page23
Page24
Page25
Page26 
 F4- Rienforcement
Page27 
 Design F6 using Safe program 
 Loads input 
Check Stresses under Foundation
Page28 
 F6- Rienforcement
Page29 
IV- Retaining Wall and strap footing Design
4.1 Retaining Wall Design using Sap 2000 program 
 3D View
 Steel Columns and moving Floor Loads
Page32 
 Earth pressure Loads
Page33 
 Uniform Loads
Page34 
 Deformed Shape
 Check stresses Under Strap Footing
Page36 
 Check stresses Under Strap Footing
Page37 
 Check stresses Under Strap Footing
 Strap Footing Rienforcement using Y12@150mm in X direction
Page39 
 Strap Footing Rienforcement using Y12@150mm in Y direction
Page40 
 Wall horizontal Rienforcement using Y12@150mm
Page41 
 Wall vertical Rienforcement using Y12@150mm 
 For the structure model, the program SAP v. 14.1 was used, which is based on the finite element method. 
 The finite element model consists of a main truss carrying the conveyor supported on truss towers 
 The main truss modeled as continuous top and bottom chords members with bracing members have pinned ends. 
 The truss towers modeled as continuous columns with bracing members have pinned ends. 
 The loads are introduced in the model using nodal, frame and shells loads.
Page42 
 Wall 4 horizontal Max moment
Page43 
 Wall 4 vertical Max moment
Page44 
 Wall 4 top Beam Max moment
Page45 
 Design of Wall 4 top Beam 
 Design of Wall 4 vertical and horizontal rienforcement
Page46 
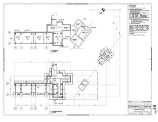
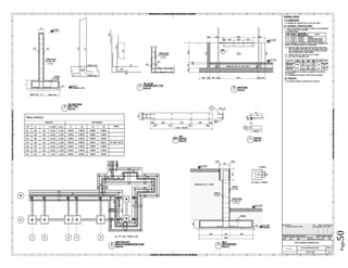
VI-Design Drawings
Page47
Page48
Page49
Page50

Calculation note 29 11-2014

  • 1.
    Calculation Note SUEZCEMENT COMPANY-SCC FOUNDATIONS AND RETAINING WALLS
  • 2.
    Page1 Table ofContent: PAGE I- Introduction and General Design Notes---------------------------------------------------2  Introduction--------------------------------------------------------------------------------------3  1-General Design Notes-----------------------------------------------------------------------3 1.1-Design Method and Standards----------------------------------------------------------3 1.2 –Loads----------------------------------------------------------------------------------------3 1.3-foundation conditions--------------------------------------------------------------------4 1.4 -Specifications of Materials--------------------------------------------------------------4 II-Mechanical Drawings---------------------------------------------------------------------------5 III-Conveyor Foundation Design---------------------------------------------------------------12 IV- Retaining Wall and strap footing Design------------------------------------------------29 VI-Design Drawings--------------------------------------------------------------------------------49
  • 3.
    Page2 Introduction andGeneral Design Notes
  • 4.
    Page3  Introduction  This report has been prepared for structural design of conveyor and storage area foundations, retaining walls and slab on grad ,its popose to briefly describe the the structural system, names of various applicable codes of structural engineering practice are mentioned, the design criteria are described in detail including all types of gravity loads to be considered in design, Methods of structural analysis and design to be followed are explained with reference to the use of personal computer in organizing all calculations, The types of structural materials and their corresponding strengths are mentioned briefly.  All the design procedures were done by taking into account the Egyptian code Specifications  Foundation type is selected as single and combined footing for conveyor and as strap footing for retaining walls.  Plan dimensions of foundations are determined by taking into consideration the soil bearing capacity which is defined by geotechnical site research.  This structural system has been designed by using Excel sheets , MathCad and static analyze programs SAP2000 and SafeV.12  1-General Design Notes 1.1 Design Method and Standards: The design and works shall comply with: Loading  If no higher loads will be requested by the Client or by the Supplier, the loads shall be applied based on the Egyptian Code for 'Computation of Loads and Structural Forces & Building. Reinforced Concrete  The design method to be taken into consideration is the limit state design method, covering the Egyptian Code of Practice for the design of reinforced concrete as well as the load specifications. Foundation  The design of the foundation concerning safety against overturning, uplift and sliding has to be established according to the Egyptian Code Volume 3 'Shallow Foundations' 1.2 Loads Load categories 1.2.1-Dead load (permanent loads)  Dead load of deck, equipment, lining and other well-defined installations (in terms of both load and location). 1.2.1.1 Dead loads / weights  Working values of dead loads: o Concrete, un-reinforced 24 kN/m3 o Concrete, reinforced 25 kN/m3 o Soil, for soil pressure 20 kN/m3 o Soil, for stability 18 kN/m3 1.2.2 -Live loads, normal (variable loads)  Normally occurring loads from e.g. plant operators, furniture and equipment, traffic, material (stored, transported, occasional accumulations,dust, fillings, etc.).  When a dynamic load is approximated to an additional static load, this additional load, which stems from normally occurring conditions of impacts and vibrations, is included in this load category.
  • 5.
    Page4 1.2.3 -Loadsfrom meachinery and equipment(variable loads)  The working loads as shown on mechanical drawings, these loads include nature loads like wind and seismic loads. 1.3-foundation conditions  The soil condition and foundation recommendations are spcified in the geotechnical investigation report  the allowable net soil pressure are recommended as 250 kN/m2  In case of design due to permeanent and probabilistic/dynamic Loads of either wind or earthquake the maximum net soil pressure can be increased by 20% either on Serviceability Limeit States/allowable or on Ultimate Limit State/design whenever is more economical for the foundation design. 1.4 Specifications of Materials 1.4.1 Reinforced concrete Material properties of concrete:  The concrete grades for foundations and structures have to be as follows: Concrete class Concrete designation 28days standard compresseve strength cube 150*150*150 mm Application A Fcu 350 350 kg/cm3 Grouting B Fcu 300 300 kg/cm3 Reinforcement concrete C Fcu 200 200 kg/cm3 Plan concrete Thermal expansion coefficient = 10-5 per ° C. Poisson's ratio of concrete = 0.2 Material properties for reinforcement:  Rebars complying with the requirements of Egyptian Standard 262 (steel bars for concrete reinforcement) can be used, provided, that its characteristics shall be considered in design. The following indicates the characteristics of the Egyptian steel. Type of steel Yield stresses (fy N/mm2) Ultimate design strength (Fu N/mm2) Min elongation Deformed bars 400/600 (ribbed high grade steel) 400 600 12% smooth bars 240/350 (normal mild steel) 240 350 20% Elastic modulus: ES = 200'000 N/mm2  Following diameters of deformed bars shall be used for the design: Y 10, 12, 16, 18, 22, 25.
  • 6.
  • 8.
  • 9.
  • 10.
  • 11.
  • 12.
  • 13.
  • 14.
    Page13 3.1 Designof Conveyor Foundation
  • 15.
    Page14  Designusing Excel Sheets
  • 16.
  • 17.
     Check Designusing MathCAD Sheet
  • 18.
  • 19.
  • 20.
  • 21.
  • 22.
    Page21  DesignCombined footing F4 using Safe program  Loads input Check Stresses under Foundation in each Load combination
  • 23.
  • 24.
  • 25.
  • 26.
  • 27.
    Page26  F4-Rienforcement
  • 28.
    Page27  DesignF6 using Safe program  Loads input Check Stresses under Foundation
  • 29.
    Page28  F6-Rienforcement
  • 30.
    Page29 IV- RetainingWall and strap footing Design
  • 31.
    4.1 Retaining WallDesign using Sap 2000 program  3D View
  • 32.
     Steel Columnsand moving Floor Loads
  • 33.
    Page32  Earthpressure Loads
  • 34.
  • 35.
  • 36.
     Check stressesUnder Strap Footing
  • 37.
    Page36  Checkstresses Under Strap Footing
  • 38.
    Page37  Checkstresses Under Strap Footing
  • 39.
     Strap FootingRienforcement using Y12@150mm in X direction
  • 40.
    Page39  StrapFooting Rienforcement using Y12@150mm in Y direction
  • 41.
    Page40  Wallhorizontal Rienforcement using Y12@150mm
  • 42.
    Page41  Wallvertical Rienforcement using Y12@150mm  For the structure model, the program SAP v. 14.1 was used, which is based on the finite element method.  The finite element model consists of a main truss carrying the conveyor supported on truss towers  The main truss modeled as continuous top and bottom chords members with bracing members have pinned ends.  The truss towers modeled as continuous columns with bracing members have pinned ends.  The loads are introduced in the model using nodal, frame and shells loads.
  • 43.
    Page42  Wall4 horizontal Max moment
  • 44.
    Page43  Wall4 vertical Max moment
  • 45.
    Page44  Wall4 top Beam Max moment
  • 46.
    Page45  Designof Wall 4 top Beam  Design of Wall 4 vertical and horizontal rienforcement
  • 47.
  • 48.
  • 49.
  • 50.
  • 51.