SCHOOL OF ARCHITECTURE, BUILDING & DESIGN
ARC 2423 BUILDING SERVICES
PROJECT 1 CASE STUDY
ANALYSIS AND DOCUMENTATION OF BUILDING
SERVICES SYSTEM
GROUP MEMBER STUDENT ID
LIM JIAN JUN 0316867
TEH GIE ENG 0136179
LOO MEI CHUEN 0316379
EVIN LOOI JYNN 0311852
CHOONG WAN XIN 0316146
JOANNE BERNICE CHUA YUNN TZE 0315905
ARC 2423 BUILDING SERVICES
PROJECT 1 CASE STUDY ANALYSIS AND DOCUMENTATION OF BUILDING SERVICES SYSTEM 2 | P a g e
INDEX CONTENT
1. ABSTRACT
2. ACKNOWLEDGEMENT
3. INTRODUCTION – KUALA LUMPUR PERFORMING ART CENTRE
4. Fire Protection system
4.1 Introduction
4.2 Literature review
4.2.1 Fire safety
4.2.2 Fire protection and prevention
4.3 Active Fire Protection System
4.3.1 Heat detector
4.3.2 Smoke detector
4.3.3 Triggers
4.3.4 Alarm bell
4.3.5 Central command center
4.3.6 Dry riser
4.3.7 Fire hydrant
4.3.8 Pump room
4.3.9 Wet riser and hose reel system
4.3.10 Sprinkler
4.3.11 Carbon Dioxide (co2) suppression system
4.3.12 Fire extinguisher
4.4 Passive fire protection system
4.4.1 Fire wall
4.4.2 Fire rated door
4.4.3 Smoke curtain
4.4.4 Separation of fire risk area
4.4.5 Emergency exit signage
4.4.6 6 Fire emergency staircase
4.5 Conclusion and recommendation
ARC 2423 BUILDING SERVICES
PROJECT 1 CASE STUDY ANALYSIS AND DOCUMENTATION OF BUILDING SERVICES SYSTEM 3 | P a g e
5. Water Supply System
5.1 Literature Review
5.2 Introduction
5.2.1 Indirect System
5.3 Case Study
5.3.1 Overviews of KLPAC water supply system
5.3.2 Water Supply System Components
5.3.2.1 Water Main
5.3.2.2 Water meter
5.3.2.3 Reinforced Concrete Cold Water Tank
5.3.2.4 Hydro Pneumatic Pump System
5.3.3 Plumbing Systems
5.3.3.1 Type of piping
a) Steel Cement Lined Pipes
b) Cast Iron Pipes
c) Copper Pipes
d) U-PVC Pipes
e) Galvanized Iron Pipes
f) HDPE Pipes
5.3.3.2 Fixtures and Connection of Pipes
5.4 Findings and Analysis
5.4.1 Analysis
5.4.2 Suggestion on Improvement
5.5 Conclusion
6. Sewage and Sanitary System
6.1 Introduction
6.2 Literature Review
6.3 Case Study
6.4 Components of System
6.4.1 Sanitary Appliances
6.4.1.1 Water Closet
6.4.1.2 Basins
6.4.2 Traps
6.4.2.1 Water Seal
a) Bottle and Sink Traps
b) Floor Trap
c) Gully Trap
d) Grease Trap
6.4.3 Pipework
6.4.3.1 Soil and Waste Pipe
6.4.3.2 Vent Pipe
6.4.4 Inspection Chamber
6.4.5 Manholes
ARC 2423 BUILDING SERVICES
PROJECT 1 CASE STUDY ANALYSIS AND DOCUMENTATION OF BUILDING SERVICES SYSTEM 4 | P a g e
6.4.6 Septic tank
6.4.7 Drainage
6.5 Analysis
6.6 Conclusion
7. Air Conditioning and Mechanical Ventilation System
7.1 Introduction
7.2 Literature review
7.2.1 Air-Conditioning System
7.2.2 Mechanical Ventilation
7.3 Case study
7.4 Components of System
7.4.1 Air Handling Unit (AHU)
7.4.1.1 Air Filter
7.4.1.2 Blower/Fan
7.4.1.3 Heating/Cooling Coil
7.4.1.4 Vibrator Insulator
7.4.1.5 Damper
7.4.2 Fan Coil Unit (FCU)
7.4.3 Ductwork
7.4.4 Supply Air Diffuser/Grille
7.4.5 Return Air Grille/Fan
7.4.6 Fire Exhaust Fans
7.4.7 Air-Cooled Chiller
7.4.8 Chilled Water Pump
7.4.9 Piping System
7.5 Findings & analysis
7.6 Conclusion
8. Electrical System
8.1 Introduction
8.2 Literature Review
8.2.1 Components of Electrical System Within the Building
8.3 Case Study: Kuala Lumpur Performing Arts Centre (KLPAC)
8.3.1 Schematic Diagram of Electrical Flow in KLPAC
8.3.2 Electrical System in KLPAC
8.3.2.1 TNB High Tension (HT) Room
8.3.2.2 Consumer High Tension (HT) Rom
a) Safety
8.3.2.3 Transformer and Low Voltage (TX & LV) Switchgear Room
a) Air Circuit Breaker (ACB)
b) Molded Case Circuit Breaker (MCCB)
c) Bus System
8.3.2.4 Genset Room
ARC 2423 BUILDING SERVICES
PROJECT 1 CASE STUDY ANALYSIS AND DOCUMENTATION OF BUILDING SERVICES SYSTEM 5 | P a g e
a) Lithium Cadmium Battery
b) Diesel Fuel
c) Smoke Chamber
d) Safety
e) Maintenance
8.3.2.5 Electrical Room
a) Sub Switch Board (SSB)
8.3.2.6 Tenant Units
a) Distribution Board (DB)
b) Maintenance
8.3.2.7 Wiring
8.3.2.8 Earthing
8.4 Conclusion
9. Mechanical Transportation System
9.1 Introduction
9.2 Literature Review
9.3 Types of Elevator
9.4 Case Study
9.4.1 Drawings
9.4.2 Elevator Components
9.4.3 Geared Machine
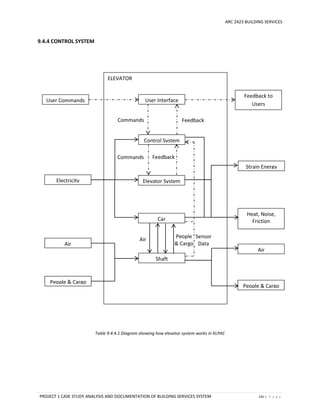
9.4.4 Control System
9.4.5 Over Load and Fire Service Indicator
9.5 Analysis
9.6 Conclusion
10. References
11. Appendix
ARC 2423 BUILDING SERVICES
PROJECT 1 CASE STUDY ANALYSIS AND DOCUMENTATION OF BUILDING SERVICES SYSTEM 6 | P a g e
1.0 ABSTRACT
This research report will look into the details of the services present in Kuala Lumpur Performing
Arts Centre such as fire protection system, water supply system, sewerage and sanitary system, air-
conditioning and mechanical ventilation system, electrical system and mechanical transportation
system. Thorough analysis and synthesis on the components and the functions of these systems shall be
conducted to further understand the importance of these systems in a building’s operation. A
conclusion of these systems will be generated through our understanding of these services in regards to
the Uniform Building By-Law, Malaysian Standards requirements as well as other relevant rules and
regulations.
2.0 ACKNOWLEDGEMENT
We would like to extend our deepest gratitude to each individual that has helped and assisted us
in completing this research report. A special thanks to the person in charge of building services
department, Mr Sathish who provided good hospitality during out visit and given us his precious time.
Besides, he has been very kind in providing us as much information as he can, bringing us around the
building and providing explanations and answers to our questions and curiosity.
We would also like to thank Mr. Ken, who had been kind enough to give us permission to do an
in-depth study on the systems that runs in KLPac. In addition, we would like to express our deepest
appreciation for providing us with guidance to complete this report and giving us much suggestions
during our tutorial sessions. Never the less, we would like to thank each member that has put in effort in
cooperating with each other, especially those who has provided transportation to our site. By all means,
we would like to thank once again to everyone who had helped in making this project a success.
ARC 2423 BUILDING SERVICES
PROJECT 1 CASE STUDY ANALYSIS AND DOCUMENTATION OF BUILDING SERVICES SYSTEM 7 | P a g e
3.0 INTRODUCTION
Figure 2.1 Kuala Lumpur Performing Arts Centre, KLPAC
The Kuala Lumpur Performing Arts Centre (informally, KLPAC) or Pentas Seni Kuala Lumpur in
Sentul West is one of the most established centres for the performing arts in Malaysia. Located in Sentul
West Kuala Lumpur, it is a non-profit company whose aim is to "cultivate and sustain the performing
arts for the betterment and enrichment of communities within the Klang Valley and for the Nation."
Each year, KLPac and the Actors Studio plays host to more than a hundred major events, as well as many
other workshops, classes, film screenings and more. Many of KLPac's events are self-directed, self-
organized shows, as KLPac also rents out their facilities, equipment other for individual performing arts
events.
KLPac was founded in 1995, when Faridah Merican and Joe Hasham created the first privately
owned and operated theatre in Malaysia below Dataran Merdeka, called The Actor's Studio at
PlazaPutra. However, flash floods in Kuala Lumpur destroyed the underground complex in 2003. In May
2004, Yayasan Budi Penyayang Malaysia, YTL Corporation Berhad and The Actors Studio Malaysia
created a new jointly-owned platform to develop the performing arts, which became the Kuala Lumpur
Performing Arts Centre (KLPac) and it has long opened its doors ever since May, 2005.
ARC 2423 BUILDING SERVICES
PROJECT 1 CASE STUDY ANALYSIS AND DOCUMENTATION OF BUILDING SERVICES SYSTEM 8 | P a g e
4.0 FIRE PROTECTION SYSTEM by EVIN LOOI JYNN
4.1 Introduction
The main analysis of this chapter is about the active fire protection system and passive fire protection
system in Kuala Lumpur Performing Arts Centre (KLPAC). A fire safety feature in a building is very
important especially in a big building. It is essential because it ensures the user’s safety and security
Both active and passive fire protection system is being studied here and explained in a detail manner.
They are discussed and is compared to the rules and regulation set by Bomba. This research paper had
concluded the analysis. Finally recommendation and improvement are also suggested.
4.2 Literature Review
4.2.1 Fire safety
Fire, is a source that plays an important role in our daily life since the discovery of this resource.
However, fire could be extremely dangerous if we do not know how to control and it make our life in
risk. Hence understanding the characteristic of fire is very helpful for us to design a well-performed fire
protection system.
In a building there are two types of fire protection system. One will be active fire protection system, and
the other one will be passive fire protection system. Active fire protection system is an approach or a
process of protecting a building or structure from fire by using the methods of applying automatic or
manually operated fire mechanical system in a building to provide safety to the users in a building.
There are couple examples of active fire protection system mechanism- fire alarm system, fire pump,
sprinkler, carbon dioxide fire suppression system and etc. all these system are extremely important in
order to provide protection and safety properly to the building itself and the users. One common
function that all the system shared in active fire protection system are to slow down the process of
burning in a building, putting out the fire and to notify the fire and smoke condition. For example, the
sprinkler system, when heat builds up in a space or fire area, it will causes the sprinkler head to burst
and releases spray of water to the fire and put the fire out. Besides that, it is important to keep in mind
that some fire active protection systems needs to manually operate by human. For example, the fire
extinguisher, which are provided in a building to allow people to fight during fire emergency. Active fire
protection system always required a certain amount of motion and response in order for it to function.
Next, passive fire protection system is a system that retards the speed of fire and smoke spreading as
protection of escape routes in order to prolong the escape time by designing and modifying
architectural elements with fire resistance characteristic. In this system, it consist of two major parts,
which are compartment of space with fire rated building components and the design of means of
escape. To prevent fire spreading from spaces to spaces, compartment such as firewall, fire rated door
and ceiling are took into consideration in this category. By making all these characteristic of fire proof,
the building failure because of fire would be greatly slower. Different types of fire rated components are
available in the market such as 1 hour fire resistant, 2.5 hour fire resistant and more. Besides, innovative
fire resistant technology also making passive fire protection system more effective. Smoke curtain is the
good example of modern compartment that used in building. On the other hands, means of escape are
the crucial design factor to determine the procedure and efficiency of escape to outside the building
ARC 2423 BUILDING SERVICES
PROJECT 1 CASE STUDY ANALYSIS AND DOCUMENTATION OF BUILDING SERVICES SYSTEM 9 | P a g e
during the event of emergency. This part includes emergency exit signage, travel distance as well as
emergency staircase design, which will be further discuss in the following topics.
Figure 4.1: Fire triangle
Four things must be present at the same time in order to produce fire:
 Fuel or combustible material
 Enough oxygen to sustain combustion
 The chemical, exothermic reaction that is fire
 Enough heat to raise the material to its ignition temperature
Fuel, oxygen and heat referred to the Fire Triangle. Further clarifies the definition of combustion by
adding a fourth component which is chemical chain reaction, depicting the concept of the rapid, self-
sustaining oxidation reaction. The Fire Tetrahedron depicts the growth of ignition into fire. Therefore, by
removing on of these components above, fire will extinguish. Essentially, fire extinguishers put out fire
by removing one or more components of Fire Triangle or Fire Tetrahedron.
Figure 4.2: The fire tetrahedron
ARC 2423 BUILDING SERVICES
PROJECT 1 CASE STUDY ANALYSIS AND DOCUMENTATION OF BUILDING SERVICES SYSTEM 10 | P a g e
4.2.2 Fire Protection and Prevention
Fire protection include
 Fire alarm devices
 Fixed firefighting equipment
 Having a permanent water supply
 Include portable firefighting equipment
Fire prevention include
 Include storage
 Ignition hazards
 Open yard storage
 Temporary building
ARC 2423 BUILDING SERVICES
PROJECT 1 CASE STUDY ANALYSIS AND DOCUMENTATION OF BUILDING SERVICES SYSTEM 11 | P a g e
4.3 Active Fire Protection System
Figure 4.3: Schematic flow-chart overview of active fire protection
The figure above showing the schematic diagram of active fire protection system specially designed for
KL PAC. Active fire protection system is a type of building services that help to resist and extinguish as
well as giving occupant defense from fire hazards with a series of designed systems and comprehensive
equipment. This topic will be analyzed and discussed all the components stated above in detail in the
following sub-topics.
TRIGGERS
SMOKE DETECTOR
CENTRAL
COMMAND
CENTER
FIRE DETECTION
HEAT DETECTOR
ALARM BELL
ACTIVE FIRE
MECHANICAL
SYSTEM
PUMP ROOM DRY RISER
WET RISER
&
HOSE REEL SYSTEM
SPRINKLER
CO2 FIRE
SUPPRESSION
SYSTEM
ARC 2423 BUILDING SERVICES
PROJECT 1 CASE STUDY ANALYSIS AND DOCUMENTATION OF BUILDING SERVICES SYSTEM 12 | P a g e
4.3.1 Heat Detector
Figure 4.4: Heat detector located in the generator room.
The heat detector above is a conventional l type heat detector that considered as a fixed temperature
unit type. The heat detector composed of a heat sensitive eutectic alloy that will reach the eutectic
point changing state from a solid to a liquid during fire. When the ambient temperature increases
sufficiently to predetermined level where the heat detector will operate. For most fixed temperature
hear detector, when the surrounding temperature reaches 58 Celsius, it will be trigger.
Figure 4.5: Red shaded indicate the location of heat detector on ground floor plan.
UBBL-SECTION 225.(1)
Every building shall be provided with means of
detecting and extinguisher fire and alarms
together with illuminated exit signs in
accordance with the requirements as specified
in the Tenth Schedule to these By-Laws
ARC 2423 BUILDING SERVICES
PROJECT 1 CASE STUDY ANALYSIS AND DOCUMENTATION OF BUILDING SERVICES SYSTEM 13 | P a g e
4.3.2 Smoke Detector
Figure 4.6: Smoke detector found in KL PAC office.
When a fire occurs in the building, the first procedure to be taken place in the active fire system is the
smoke detectors positioned on the ceiling on every floor. To protect the whole floor area, a few smoke
detectors placed everywhere around the particular floor in every level to detect the presence of smoke.
The closest smoke detector within where the fire is taken place will detect the smoke and then
automatically signals the fire alarm control panel located in the control room on the ground floor.
Figure 4.7: Red shaded indicate the location of smoke detector on ground floor plan.
UBBL-SECTION 225 (1)
Every building shall be provided with means of
detecting and extinguisher fire and alarms
together with illuminated exit signs in accordance
with the requirements as specified in the Tenth
Schedule to these By-Laws
ARC 2423 BUILDING SERVICES
PROJECT 1 CASE STUDY ANALYSIS AND DOCUMENTATION OF BUILDING SERVICES SYSTEM 14 | P a g e
4.3.3 Triggers
Figure 4.8: Fire triggers in KL PAC
In case of fire and smoke is not detected by the respective instruments, warning alert still can be
activated manually by the occupants through (break glass) and manual pull station by only firemen.
Break glass switch will send the warning signal to control panel while fire switch will cut off the electrical
power supply. Furthermore, these two instruments are located in different height. Break glass normally
located around 1.5m above the floor, whereas fire switch is above human normal height around 2m
above the floor in order to avoid vandalism chances. All these instruments can be found along the
corridors, emergency staircase, and emergency exit doors.
ARC 2423 BUILDING SERVICES
PROJECT 1 CASE STUDY ANALYSIS AND DOCUMENTATION OF BUILDING SERVICES SYSTEM 15 | P a g e
4.3.4 Alarm Bell
Figure 4.9: Fire alarm in KL PAC
The height of the manual break glass is 1500mm from ground level and is reachable for users that are
disabled. The fire alarm bell functions through the electromagnet. The working theory of it is actually
this way. When an electric current is imply, it will produce a repetitive buzzing sound over and over
again until certain time. There are 2 different types of alarm bell, one will be the vibrating type and the
other will be single stroke type. Vibrating type – ring continuously power supply is turned off. Single
stroke type – when power is supplied, the bell will ring once and stop and will not ring again until power
turned off and on again. The alarm bell is located at about 1200mm from the manual break glass and
2700mm from ground level. When the glass breaks and the alarm is triggered, the person in charge will
check via CCTV or send someone to check if the if the fire alarm is real or a false alarm. If it is false, the
person will immediately close the valve on the sprinkler system. The manual break glass is placed
around the building so that it is easily accessible by people when a fire occurs.
FIGURE 4.10: Red shaded indicate the location of the alarm bell on ground floor plan.
UBBL- SECTION 237
Alarm bell must provide a minimum sound level of 65db (A)
or +5db (A) above any background noises, which is likely to
persist for more than 30 seconds.
ARC 2423 BUILDING SERVICES
PROJECT 1 CASE STUDY ANALYSIS AND DOCUMENTATION OF BUILDING SERVICES SYSTEM 16 | P a g e
4.3.5 Central Command Center
Figure 4.11, 4.12 , 4. 13 : Multiple emergency voice alarm and communication system panel in security room
Figure 4.14 : Fire control and monitor panel in KL PAC.
A Fire Alarm Control Panel is a main controlling component of a fire alarm system; the function of this
control panels is to receive signals from all the detectors and triggers by cause of the presence of smoke
or fire. Once the control guards receiving the silent signals, they will command the nearest respective on
duty guards to check the area where the signal was sent around that zone. If the fire outbreak is caused
by system error signal, it will be deactivated.
Figure 4.15: Drawing of main fire alarm panel. Figure 4.16: Fire alarm indication panel in KL PAC.
UBBL-SECTION 238
Every large premises or building exceeding 30.5 meters in
height shall be provided with a command and control
center located on the designated floor and shall contain a
panel to monitor the public address, fire brigade
communication, sprinkler ,water flow detectors fire
detection and alarm systems and a direct telephone
connection to the appropriate fire-station by-passing the
switch board.
ARC 2423 BUILDING SERVICES
PROJECT 1 CASE STUDY ANALYSIS AND DOCUMENTATION OF BUILDING SERVICES SYSTEM 17 | P a g e
Figure 4.17: Ground floor plan shows above the location of the fire command center/ fire control panel room (shaded red)
My personal opinion, in KL PAC the fire control panel room is located in the security room at ground
floor near the entrance. It is located there because is easier for the fire fighter to access in. I think is a
good strategy of placing it in such location.
ARC 2423 BUILDING SERVICES
PROJECT 1 CASE STUDY ANALYSIS AND DOCUMENTATION OF BUILDING SERVICES SYSTEM 18 | P a g e
4.3.6 Dry Riser
Figure 4.18: Dry riser inlet found in KL PAC.
The dry riser functions as a vacant pipe that will be charged with water when in use while the wet riser is
already fully charged with water before use. The dry riser is usually dry in form and it requires the fire
engine to pump the water into the system. A dry riser is connected with an inlet connection for the fire
brigade to connect their engine pumps and landing valves that is capable of taking full charged water
from the fire engine pump. Besides that, the breeching inlets where the firemen will pump the water
into it is required and be provided at the ground level and connected to the bottom of the dry riser.
UBBL- SECTION 230
 Dry rising system shall be provided in every building in which the topmost floor is more than 18.3
meters but less than 30.5 meters above fire appliance access level.
 A hose connection shall be provided in each firefighting access lobby.
 Dry shall be of minimum “class c” pipes with fittings and connections of sufficient strength to
withstand 21 bars water pressure.
 Dry risers shall be tested hydrostatically to withstand not less than 14 bars of pressure for two
hours in the presence of the Fire Authority before acceptance.
 All horizontal runs of the rising systems shall be pitched at the rate of 6.35 millimeters in 3.05
meters
 The dry riser shall be not less than 102 millimeters in diameter in buildings in which the highest
outlets is 22.875 meters or less above the fire brigade pumping inlet.
 102 millimeters diameter dry risers shall be equipped with a two-way pumping inlet and 152.4
millimeters dry risers shall be equipped with a four-way pumping inlet
ARC 2423 BUILDING SERVICES
PROJECT 1 CASE STUDY ANALYSIS AND DOCUMENTATION OF BUILDING SERVICES SYSTEM 19 | P a g e
4.3.7 Fire Hydrant
Figure 4.19: Fire hydrant found outside KL PAC building.
Water Hydrant fire-fighting system consist of hydrants connected to the same pipeline. It is an active fire
protection measures that contain source of water provided with municipal water service. The other end
of the pipeline is attached to the pumps and water supply tank of the firefighting room. The firefighting
hydrant line is a close loop pipe system to maintain the pressure in the water hydrant. The network of
pipes are located underground. The hydrants are used in case of emergency when there is need for
more water. The firemen will connect their equipment to the outlets of the hydrant, pushing water into
the system. The valve will be turn open to provide a powerful flow and high pressure of water.
In my opinion, I think KL PAC need more extra fire hydrant for firemen convenient to put out the fire
because the distance between 2 hydrants is too far from each other.
Figure 4. 20: Red shaded indicate the fire hydrants could be found outside KL PAC building at ground floor.
UBBL- SECTION 225.(2)
Every building shall be served by at least one fire hydrant located not
more than 91.5 meters from the nearest point of fire brigade access
ARC 2423 BUILDING SERVICES
PROJECT 1 CASE STUDY ANALYSIS AND DOCUMENTATION OF BUILDING SERVICES SYSTEM 20 | P a g e
4.3.8 Pump Room
Figure 4.21: Pressure gauge in pump room indicating Figure 4.22: Valves and pumps in the pump room
water pressure in each pump
Known as the sprinkler or the pump room. It provides as immediate and faster means of fire control and
delivers the required water flow. The pump room function with 3 elements that have different role on
their own, which is the duty pump, standby pump and jockey pump. Where there is any fault in the
system, it will be indicated in the pump room and control panel. The pressure gauge will control the
pressure so that it is at the right and appropriate water pressure. It will automatically cut out the water
at certain circumstances. The pump room is usually located at the basement.
A firefighting system consists of 2 main pumps; one is electrically driven while the other is diesel engine
driven, with an Auxiliary Jockey Pump connected to Hydrants and Sprinkler system. The main pumps
provide supply of Pressurized Water to the Fire Fighting System, which can be initiated either manually
or automatically as required. In an automatic system, a sudden drop in pressure causes the main pumps
to supply water to the firefighting system mains. The Main Pumps can only be stopped manually. The
system is also known as packaged system
The packaged system – 3 hydrant pumps for each fire dedicated hydrant tanks.
Figure 4. 23: Duty Pump Figure 4. 24: Duty Pump
ARC 2423 BUILDING SERVICES
PROJECT 1 CASE STUDY ANALYSIS AND DOCUMENTATION OF BUILDING SERVICES SYSTEM 21 | P a g e
Figure 4.25: Standby Pump Figure 4.26: Jockey Pump
A duty pump runs with an electrical motor pump to channel water to the sprinkler system whereas the
standby pump runs on a diesel engine. The jockey pump is a small Flow Multistage Pump used to
maintain the Fire Fighting System under Pressure as required for the Main Pumps. The Start and Stop of
Jockey Pumps needs to be automatically controlled through Pressure Switches.
I think the pump room in KL PAC are organized in such a way that the architect planned a good and
appropriate for it and have all the equipment in it to ensure safety function during fire.
Figure 4. 27: Diagram show the pump connection detail
ARC 2423 BUILDING SERVICES
PROJECT 1 CASE STUDY ANALYSIS AND DOCUMENTATION OF BUILDING SERVICES SYSTEM 22 | P a g e
Figure 4.28: Diagram showing pipe hanger in pump room.
Figure 4.29: Diagram showing pump room plan view
ARC 2423 BUILDING SERVICES
PROJECT 1 CASE STUDY ANALYSIS AND DOCUMENTATION OF BUILDING SERVICES SYSTEM 23 | P a g e
Figure4.30: Red shaded indicate the location of the Pump room on ground floor plan
ARC 2423 BUILDING SERVICES
PROJECT 1 CASE STUDY ANALYSIS AND DOCUMENTATION OF BUILDING SERVICES SYSTEM 24 | P a g e
4.3.9 Wet Riser and Hose Reel System
Figure 4.31: Hose reel that found in KL PAC.
The Hose reel System is intended for the occupant to use during the early stages of fire and it comprises
of hose reel pumps, fire water tank, hose reels, pipe work and valves. The hose reel system generally
serves as an initial firefighting aid. When the hose reel is brought into use, the pressure in the pipe
immediately downstream and the pump check valves will drop below the field adjusting the pressure
setting of the pressure switch therefore triggering the pump to operate automatically to feed a steady
supply of water to discharge through the hose.
The firefighting hose reel is the part that us easily accessible. From my opinion, the fire hose reel outlets
should be properly housed in glass-fronted cabinet that is secured under lock and key. The hose reel is a
fixed type, comprising of a riser to channel water to the system, a sign for identification, a hose reel
cabinet, hose reel waterway, hose pipe and a nozzle to complete the installation.
Figure 4.32: Hose reel connection detailed drawing.
UBBL-SECTION 231
 Wet rising system shall be provided in
every building in which the top most floor
is more than 30.5 meters above the fire
appliance access level.
 A hose connection shall be provided in
each firefighting access lobby.
ARC 2423 BUILDING SERVICES
PROJECT 1 CASE STUDY ANALYSIS AND DOCUMENTATION OF BUILDING SERVICES SYSTEM 25 | P a g e
Figure 4.33: Diagram showing electrical single line for hose reel pump.
Figure 4.34: Schematic diagram of hose reel system in KL PAC building.
ARC 2423 BUILDING SERVICES
PROJECT 1 CASE STUDY ANALYSIS AND DOCUMENTATION OF BUILDING SERVICES SYSTEM 26 | P a g e
4.3.10 Sprinkle
Figure 4.35: Sprinkler on the ceiling.
A sprinkler system is meant to eliminate or decreases the spread of fire. It’s a requirement to install a
sprinkler system when the building exceeds 7000 m3 of volume. Usually placed at the ceiling, a small
device that shoots water downwards by a deflector plate that directs the water circular pattern over the
fire an on walls of the structure. Each sprinkler has an open compartment that holds a friable heat-
sensing quartz build, containing a colored liquid (usually red) that seals the water inlet. When the heat
reaches a certain temperature, the quartz expands and fractures, releasing the water. When the water
starts flowing, it’ll detect and start the alarm. The alarm will alert the fire brigade monitoring station. KL
PAC uses a wet pipe fire sprinkler system where the sprinkler’s heads are attached to a piping system
that contains water and are connected to a hydrant tank that supplies water so the system is prepared
to discharge water when the sprinklers are opened by the heat of the fire. Each of the sprinkler is
activated and performed individually when it is heated to a certain temperature. He sprinklers discharge
around 20 to 25 gallons per minute but it depends on the design system.
Sprinkler head works very efficiently, sprinkler head are usually fitted with a glass filled with glycerin-
based liquid which expands at a specific temperature, in room temperature, it is usually of 65 degree
Celsius in temperature. Water readily to be disposed when sprinkler head breaks out due to pressure
from valve at the rate of about 110L/min. To make sure the building functions its active fire system at its
best, each floor from basement floor to mechanical floor is equipped with enough number of sprinklers
that are functional.
The sprinkler system in KL PAC in each floor are places together in a reasonable direction and distance
from each other. They followed UBBL and it is a good example for other building when they place their
sprinkler.
UBBL-SECTION 225. (2)
 Sprinkler valves shall be located in a safe and enclosed
position on the exterior wall and shall be readily
accessible to the Fire Authority
 All sprinkler systems shall be electricity connected to
the nearest fire station to provide immediate and
automatic relay of the alarm when activated.
ARC 2423 BUILDING SERVICES
PROJECT 1 CASE STUDY ANALYSIS AND DOCUMENTATION OF BUILDING SERVICES SYSTEM 27 | P a g e
Figure 4.36 : Schematic diagram of sprinkler system
ARC 2423 BUILDING SERVICES
PROJECT 1 CASE STUDY ANALYSIS AND DOCUMENTATION OF BUILDING SERVICES SYSTEM 28 | P a g e
Figure 4.37: Red shaded indicate the location of sprinkler.
In KL PAC the main sprinkler tank supplies water supply for the sprinkler system located in the
basement. In passive firefighting system, Main Fire Pump room plays an essential part. This is because it
is where the duty sprinkler pump, standby pump and jockey pump are located. Sprinkler system will only
function with the existence of the respective pumps. The room also holds the wet risers for hose reel
located on every floor.
Figure : 4.38 : Compartmented sprinkler tank
ARC 2423 BUILDING SERVICES
PROJECT 1 CASE STUDY ANALYSIS AND DOCUMENTATION OF BUILDING SERVICES SYSTEM 29 | P a g e
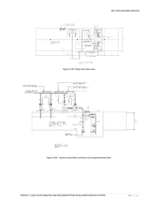
Figure 4.39: Pump room plan view
Figure 4.40 : Section of sprinkler and hose reel compartmented tank.
ARC 2423 BUILDING SERVICES
PROJECT 1 CASE STUDY ANALYSIS AND DOCUMENTATION OF BUILDING SERVICES SYSTEM 30 | P a g e
Figure : 4.41
Figure 4.42
ARC 2423 BUILDING SERVICES
PROJECT 1 CASE STUDY ANALYSIS AND DOCUMENTATION OF BUILDING SERVICES SYSTEM 31 | P a g e
4.3.11 Carbon Dioxide Fire Suppression System (CO2)
Figure 4.43 : CO2 fire suppression system installed in gen set room for fire extinguishment.
Figure 4.44 : CO2 Fire suppression system was installed in L.V room for fire extinguishment.
Carbon dioxide in fire protection term, gases that protects electrical equipment from being burnt such
as it sectors, transformers and switchgears. Heat or smoke detectors will detect the heat and sound the
alarm and Co2 gas will flood to room from high pressure storage cylinders. The gasses are sent via pipes
to the ceiling and under floor distributors. Carbon dioxide is lethal to a person’s health so occupants
must evacuate swiftly in a limited amount of time. The cylindrical tanks are stored in the corners of
rooms. Once detected by the heat triggers, the co2 is 24 released, curtain walls go down and when
doors are shut, two indicators will show when the gas operation is over. Red means gases are still
present and green means it is already clear and safe to go in.
Figure 4.45 Location of the CO2 control room in KL PAC ground floor plan.
ARC 2423 BUILDING SERVICES
PROJECT 1 CASE STUDY ANALYSIS AND DOCUMENTATION OF BUILDING SERVICES SYSTEM 32 | P a g e
Figure 4.46: Diagram showing high pressure CO2 system detail. Figure 4.47: CO2 panel detail
Figure 4.48 Figure 4.49
ARC 2423 BUILDING SERVICES
PROJECT 1 CASE STUDY ANALYSIS AND DOCUMENTATION OF BUILDING SERVICES SYSTEM 33 | P a g e
Figure 4.50 Figure 4.51
ARC 2423 BUILDING SERVICES
PROJECT 1 CASE STUDY ANALYSIS AND DOCUMENTATION OF BUILDING SERVICES SYSTEM 34 | P a g e
4.3.12 Fire Extinguisher
Figure 4.52 Figure 4.53
A fire extinguisher, flame extinguisher, or simply as extinguisher is an active fire protection device used
to extinguish or control small fires, often in emergency situations. The number and location of fire
extinguisher are determined by the hazard of the occupancy. KL PAC uses one type of portable fire
extinguisher, and that is the dry powder extinguisher. Fire extinguisher are divides into many class, each
of them are specifically function and respond to different type of fire situation.
Figure 4.54 : diagram showing different class and types of fire extinguishers and their purposes.
UBBL-SECTION 227
Portable extinguisher shall be provided in accordance with the
relevant codes of practice and shall be sired in prominent
positions on exit routes to be visible from all directions and
similar extinguishers in a building shall be of the same method of
operation.
ARC 2423 BUILDING SERVICES
PROJECT 1 CASE STUDY ANALYSIS AND DOCUMENTATION OF BUILDING SERVICES SYSTEM 35 | P a g e
4.4 Passive Fire Protection System
Figure 4.55: Overview flow chart of passive fire protection system.
The flow chart above showing the passive fire protection system that specifically designed for KLPAC
which all components of this system will be further discussed and covered in sub-topics in the following
pages.
4.4.1 Triggers
FIRE WALL
FIRE RATED DOOR
COMPARTMENT
SEPARATION OF
FIRE RISK AREA
MEANS OF ESCAPE
EMERGENCY EXIT
SIGNAGE
FIRE EMERGENCY
STAIRCASE
PASSIVE FIRE
PROTECTION
SYSTEM
SMOKE CURTAIN
ARC 2423 BUILDING SERVICES
PROJECT 1 CASE STUDY ANALYSIS AND DOCUMENTATION OF BUILDING SERVICES SYSTEM 36 | P a g e
4.4.1 Fire Wall
Figure 4. 56 : Firewall that found in KL PAC office
Fire Wall (also call as fire-rated wall) is a structurally designed fireproof barrier that commonly
constructed and applied in passive fire protection system. Different with the ordinary walls, firewall not
only used as a component of spatial division but also greatly separating fire areas and slower down fire
spreading from one space to other space during the events of emergency. Firewalls were designed to act
as a barrier between spaces and also retard fire spreading to give enough time for occupants to escape
from the building. In addition, walls in mechanical plans and machinery rooms were also designed as
firewalls as the content of the room is common fire source to cause event of fire.
From the personal view, the design and placement of compartment wall is very considerate and well
followed By- laws requirements by the architect, which this careful decision has ensured the safety of
the occupants as well as fire stopping issues.
UBBL-SECTION 138 (C)
Any wall or floor separating part of a building from any other part of the same building, which is
used or intended to be used mainly for a purpose failing within a different purpose group as, set out
in the Fifth Schedule to these by laws
UBBL-SECTION 148.(6)
Any compartment wall or compartment floor which is required by these By-Laws to have FRP of one
hour or more shall be constructed wholly of non-combustible materials and, apart from any ceiling,
the required FRP of the wall or floor shall be obtained without assistance from any non- combustible
material.
ARC 2423 BUILDING SERVICES
PROJECT 1 CASE STUDY ANALYSIS AND DOCUMENTATION OF BUILDING SERVICES SYSTEM 37 | P a g e
4.4.2 Fire Rated Door
Figure 4.57 Fire rated door
Fire rated door (also call as fire door) is an essential and important fireproofing component that
designers might take concerns when designing passive fire protection system. With the similar functions
as fire wall, fire door serves as critical compartmentalization of building entrances or exits in order to
prevent fire and smoke spreading. Especially to KL PAC building, 1.5 hours fire- rated door were installed
at the egress of fire staircase each floor as well as office entrances.
From the fire door location, we can see the architect considerably put the fire door to allow circulations
in normal day but the escape routes will be protected by all these fire door during the event of fire.
However timber and aluminum made fire-rated door is combustible and it will cause door failures when
the time is beyond limitation.
Figure 4. 58: Automatic door closers were installed in
Every fire exit door.
UBBL-SECTION 162.(1)
 Fire doors of the appropriate FRP shall be provided
 Openings in compartment walls and separating walls shall
be protected by a fire door having a FRP in accordance
with the requirements for that wall specified in the Ninth
Schedule to these By-Laws
UBBL-SECTION 164. (1)
 All fire doors shall be fitted with automatic door closers of
the hydraulically spring operated type in the case of swing
doors and of wire rope and weight type in the case of
sliding door.
Moreover, the automatic door closer hinge and devices were
installed to fulfill the requirements of By-laws Section 164 (1).
The purpose of installing this device is because the fire-rated
door is mean to be always closed all the time. On the other
hand, automatic door close hinges were also installed in the
entrances of office each floor before the glass and it is always
open for circulations. However the door closer will
automatically shut the fire door during the event of fire to
form compartment and prevent fire spreading.
ARC 2423 BUILDING SERVICES
PROJECT 1 CASE STUDY ANALYSIS AND DOCUMENTATION OF BUILDING SERVICES SYSTEM 38 | P a g e
4.4.3 Smoke Curtain
Figure 4.59 , 4.60 : Smoke curtain that was found in gen set room
Smoke curtain (also known as fire curtain or safety curtain) is a fabric that made of incombustible
material to prevent fire and smoke spreading. In KL PAC building, we could find the smoke curtains were
installed on the top of entrances of every single mechanical and electrical systems rooms, for example,
transformer room. A smoke and fire detector were installed in all these room for detecting purposes.
During the event of fire, smoke curtain will be automatically dropped down to form a barrier between
interior and exterior to prevent fire spreading from room to another space. Thus, it is really effective in
isolating fire source with the cooperation of another components of passive fire protection system
.
Figure 4.61 : Red shaded indicate the location of smoke curtain in KL PAC
UBBL – SECTION 161. (1)
Any fire stop required by the provision of this Part shall be so formed and positioned as to prevent
or retard the passage of flame.
ARC 2423 BUILDING SERVICES
PROJECT 1 CASE STUDY ANALYSIS AND DOCUMENTATION OF BUILDING SERVICES SYSTEM 39 | P a g e
4.4.4 Separation of Fire Risk Area
According to the law and regulations stated above in By- laws, separations of fire risk area should be
involved in the spatial planning of the building to prevent fire spreading quickly from one point to the
other point. In KL PAC, electrical and mechanical plans and rooms located evenly in ground floor,
basement. With this location distribution, the risk of fire is greatly reduced as the areas were located in
different spaces throughout the building.
UBBL – SECTION 139
The following area uses shall be separated from the other areas of the occupancy in which they are
located by fire resisting construction of elements of structure of a FRP to be determined by local
authority based on the degree of hazard:
 Boiler rooms and associated duels storage area
 Laundries
 Repairs shops involving hazardous processes and materials
 Storage area of materials in quantities deemed hazardous
 Liquefied petroleum gas storage areas
 Linen rooms
 Transformer rooms and substations
 Flammable liquid stores
ARC 2423 BUILDING SERVICES
PROJECT 1 CASE STUDY ANALYSIS AND DOCUMENTATION OF BUILDING SERVICES SYSTEM 40 | P a g e
4.4.5 Emergency Exit Signage
Figure 4.62 Emergency exit signage
Fire escape doors are indicated with neon green Exit signs above it, and emergency lights are installed
within it to give some light if the main electrical supply has been cut off (blackout). Exit emergency
signage indicate the way to safety outdoor area or assembly point. It is a clear and effective guidance
tool, helping to reduce panic and confusion by providing a clear directional system. These signs are lit
24/7 for emergencies. The letters are written in block letters sufficiently big enough to be seen and
bright green to attract attention when lights are out. In Malaysia, the exit signage is written in Malay,
the word “KELUAR” means EXIT. Based on the photo, the exit signage is located above the fire doors,
directing the occupants towards the fire escape staircases. The signs are located at specific positions
with no surrounding disturbance. It is a stand-alone sign.
UBBL-SECTION 172.
 Storey exits and access to such exits shall be marked by readily visible signs and shall not be
obscured by any decorations, furnishings or other equipment
 A sign reading “KELUAR” with an arrow indicating the direction shall be placed in every
location where the direction of travel to reach the nearest exit is not immediately apparent.
 Every exit sign shall have the word “KELUAR” in plainly legible letters not less than 150mm
high with the principal strokes of the letters not less than 18mm wide. The lettering shall be
in red against a black background.
 All exist signs shall be illuminated continuously during periods of occupancy.
ARC 2423 BUILDING SERVICES
PROJECT 1 CASE STUDY ANALYSIS AND DOCUMENTATION OF BUILDING SERVICES SYSTEM 41 | P a g e
4.4.6 Fire Emergency Staircase
Figure 4.63 : Fire emergency staircase
Fire escape staircase allow the occupants of the building to escape from the building to a safer area or
assembly point when there is fire event or any emergency event happen. According to the law, the
building should not have at least two means of exits consists of separate exits or doors that leads to a
corridor or other space giving access to separate exits in different directions
UBBL SECTION 168.
 The required width of a staircase shall be maintained throughout its length including at landings.
 Except as provided for in by law 194 every upper floor shall have means of access via at least two
separate staircases.
 The required width of staircase shall be clear width between walls but handrails may be
permitted to encroach on this width to a maximum of 7.5 millimeters.
 Tiles on staircases-risers maximum 180mm and thread minimum 255mm.
UBBL – SECTION 169.
 No exit route may reduce in width along its path of travel from the storey exit to the final exit.
UBBL – SECTION 178.
 In buildings classified as institutional or places of assembly, exits to a streets or large open
space, together with staircases, corridors and passages leading to such exits shall be located,
separated or protected as to avoid any undue danger to the occupants of the place of
assembly from fire originating in the other occupancy or smoke therefrom.
ARC 2423 BUILDING SERVICES
PROJECT 1 CASE STUDY ANALYSIS AND DOCUMENTATION OF BUILDING SERVICES SYSTEM 42 | P a g e
4.5 Conclusion and Recommendation
In a nutshell, neither active nor passive fire protection system plays an important role to protect a
building when a fire breakdown. The overall system of the firefighting system in KL PAC building
complies with the UBBL by- Laws and is very systematic as a control panel controls the whole system.
This will prevent the cause of false alarm in the building that will disturb the occupants. Besides that, the
building also has updated their appliances following the requirements of Bomba and every core of the
building is filled with the fire appliances for the safety of the occupants. In conclusion, the overall system
in the building has a proper appliances which used for different function of the spaces to ensure the
safety of occupants. There are no further recommendations that I could suggest for the fire because the
fire safety coverage area in the building wide enough to ensure the occupants safety.
ARC 2423 BUILDING SERVICES
PROJECT 1 CASE STUDY ANALYSIS AND DOCUMENTATION OF BUILDING SERVICES SYSTEM 43 | P a g e
5.0 WATER SUPPLY SYSTEM by LIM JIAN JUN
5.1 Literature Review
Jabatan Bekalan Air (JBA) , which also known as the Water Supply Department is a departmental agent
under the Ministry of Energy, Green Technology and Water, Malaysia. JBA is responsible of planning,
monitoring and implement the development of water resources in Malaysia and the department works
very closely with other water supply companies around the states in Malaysia.
Syarikat Bekalan Air Selangor Sdn Bhd (SYABAS) was appointed by the State and Federal Government to
manage the water supply distribution services in the State of Selangor, Federal Territory of Kuala
Lumpur and Putrajaya under the Privatisation concept effective 1 January 2005. SYABAS took over all
the functions of Perbadanan Urus Air Selangor Berhad (PUAS) in the area of water supply and
distribution of water to customers within the state of Selangor and federal territories of Kuala Lumpur
and Putrajaya. The privatization involved over 7.5 million residential users, as well as 1.7 million
industrial premises, domestic accounts and commercial users, making it the largest privatization of
water supply in Malaysia.
Figure 5.1 Water Reservoir at Hulu Selangor
Dam
Figure 5.2 Jabatan Bekalan Air
Figure 5.3 SYABAS Logo
The water provided by SYABAS has been
processed and treated before it is distributed.
Water collected from rainfall and water
reservoir is pumped into water treatment plant.
From there, the untreated raw water is going
through process of aeration, flocculation,
sedimentation, filtration, disinfection and pH
conditioning. The treated water will then be
distribute to service reservoirs in different
zones, readily to be supply to the consumers for
residential, industrial and commercial use.
ARC 2423 BUILDING SERVICES
PROJECT 1 CASE STUDY ANALYSIS AND DOCUMENTATION OF BUILDING SERVICES SYSTEM 44 | P a g e
5.2 Introduction
Water supply systems in every building distributed from the water main is mainly depending on the
topography in term of magnitude variation of the ground level. From that the water system is then
designed with a distribution system from the reservoir towards the tanks and finally the end users. The
most common water distribution systems used are gravity system, direct pumped system and mixture of
both gravity and pumped system.
Kuala Lumpur Performing Art Centre (KLPAC) is a fully integrated performing center for art comprises of
7,614sqm of built up spaces. The water supply system used in this building is Indirect System assisted
with Direct Current Hydro Pneumatic Booster System. The pressure available from water mains is
boosted with hydro pneumatic pump system to allow sufficient water pressure to distribute water
directly from the main to different zones of the building. Unlike other tall buildings, KLPAC has only one
domestic water tank located underground and it is the only water source to distribute throughout the
entire building. Study analysis is conducted to discuss the water supply system used in KLPAC and
perhaps suggestions are made to conclude this area of study in the building.
Figure 5.4 Panoramic view of KL Performing Art Centre in reflection of water
ARC 2423 BUILDING SERVICES
PROJECT 1 CASE STUDY ANALYSIS AND DOCUMENTATION OF BUILDING SERVICES SYSTEM 45 | P a g e
5.2.1 Indirect System
Figure 5.5Diagram of Direct and Indirect Water Supply System (GEC.JP,2015)
To distribute water in a big commercial building like KLPAC itself, indirect water supply system is
commonly used to supply water to different parts of the building, covering all the user needs. The rising
main feeds a storage tank at a high point or low point in the building from where the water is stored and
distributed to all the other services via pump or gravity. One clear point to identify the difference of
direct and indirect water distribution system is that the direct system supply water directly from the
water main while indirect water system will feed up the water storage before the water is distributed. A
branch pipe off the rising main delivers drinking water to the kitchen and garden tap/faucet, cold water
to all other taps/faucets and appliances is provided indirectly from the cold water under gravity pressure
or booster pump, giving a boost to the main pressure.
The advantage of having indirect system is having a temporary back up of stored water in the event of a
mains failure. Also, because it is a low pressure system it is generally quieter therefore eliminating noise
like 'water hammer' which can occur when high pressure water tries to negotiate tight bends in the
pipework. The only setback of this system requires more pipework and also space to place the water
storage tank. While direct system are restricted to smaller buildings and assistance of mechanical
booster and filtration are required for an efficient and hygiene water supply system, especially in
Malaysia.
ARC 2423 BUILDING SERVICES
PROJECT 1 CASE STUDY ANALYSIS AND DOCUMENTATION OF BUILDING SERVICES SYSTEM 46 | P a g e
5.3 Case Study
5.3.1 Overview of Water Supply System
Kitchen
Firefightingsystem
Chiller
AHUFHU
MainWater
RCColdWaterTankRCFireSprinkleTank
IrrigationTapToiletPantry
Hydropneumaticpumps
Table5.3.1OverviewdiagramofWaterSupplySystem,KLPAC
ARC 2423 BUILDING SERVICES
PROJECT 1 CASE STUDY ANALYSIS AND DOCUMENTATION OF BUILDING SERVICES SYSTEM 47 | P a g e
5.3.2 Water Supply Components
5.3.2.1 Water Main
Figure 5.6 Water is supplied by SYABAS through underground pipes (KLPAC, 2005)
ARC 2423 BUILDING SERVICES
PROJECT 1 CASE STUDY ANALYSIS AND DOCUMENTATION OF BUILDING SERVICES SYSTEM 48 | P a g e
According to the Schematic drawing in Figure 5.6, water resource of KLPAC is supplied from SYABAS
through underground pipes. The water main and fire safety main are connected to each other and share
the same water source from SYABAS. These water mains are connected down to the underground water
storage tanks.
Figure 5.7 Water Main and Fire Water Main share one water source from SYABAS (Jian Jun, 2015)
FIRE MAIN
WATER MAIN
Figure 5.8 Connection of underground pipelines
from Water Main (Google Image,2015)
Figure 5.9 Steel Cement Lined Underground Pipes
ARC 2423 BUILDING SERVICES
PROJECT 1 CASE STUDY ANALYSIS AND DOCUMENTATION OF BUILDING SERVICES SYSTEM 49 | P a g e
5.3.2.2 Water Meter
A typical water main comprises of main components, such as gate valve, water meter, pressure meter,
adjustable ball valve and strainer. The water meter indicates the amount of water consumed in the
building. The strainer helps to screen out particulate matters in a piping system before the water is
delivered to the water storage tanks. Occupant is responsible to pay the water bill according to the
amount of water consumed with a fixed rate. The valves act as a switch to allow water to flow in
through the pipes. It is often shut down to stop water flowing in when there is maintenance. In Figure
XX it is showed that the ball valve is locked to prevent people from switching off the valve, making sure
the water is always flowing continuously. The pipes connected to the water meter are made up of 38ø
mm galvanized iron. The water is then continues to flow through the 150ø mild steel cement lined
supply pipe underground thereafter the tanks.
Figure 5.10 Diagrammatic drawing of water meter component in KLPAC
GATE VALVE
METER LOCKED BALL VALVE
PRESSURE
METER
Figure 5.11 Water meter and Locked
Ball Valve
Figure 5.12 Gate Valve and pressure gauge
GATE VALVE
PRESSURE GAUGE
METER GATE VALVE
FROM WATER MAIN TO STORAGE TANK
ARC 2423 BUILDING SERVICES
PROJECT 1 CASE STUDY ANALYSIS AND DOCUMENTATION OF BUILDING SERVICES SYSTEM 50 | P a g e
5.3.2.3 RC Cold Water Tank
Water from the water supply mains flows through the underground pipes, passing through the main
gate valve and then directed into two tanks, the domestic cold water tank and the fire sprinkler tank.
From the 150ø mild steel cement lined underground supply pipe, the water is distributed through a
smaller 100ø mild steel pipe into the cold water tank while the pipe size remains 150mmø for the pipe
flowing into the fire sprinkle water tank. Before the water enters the tank, chlorine is added to the
water for disinfection. The mild steel pipes for water supply are indicated with green paint while the fire
system pipelines are painted red. The water from fire safety main fills up the fire sprinkler water tank,
connecting to the standby priming tanks for hose reel, duty and hockey and wet risers at different zones.
This also follows UBBL 1984 Section 247 (2): Water Storage, where:
 Storage tanks for automatic sprinkle installation where full capacity is provided without the
need for replenishment shall be exempted from the restrictions in their location.
Figure 5.13 Reinforced Concrete Water Storage Tank with Overflow Pipes Figure 5.16 Main gate valve connected
to RC water tank
Figure 5.15 Service Access
Reinforced concrete tank
Overflow pipes
Figure 5.17 Chlorine StandFigure 5.14 Placement of Water Tank Underground
ARC 2423 BUILDING SERVICES
PROJECT 1 CASE STUDY ANALYSIS AND DOCUMENTATION OF BUILDING SERVICES SYSTEM 51 | P a g e
Both cold water and fire sprinkler water tanks are made up of reinforced concrete, the tanks size in
volume are 35m3
, which is equivalent to 35000 liters of water. There is no water level indication on the
wall but it is replaced by submersible Electrode Water Level Sensor in the tank to measure the water
level in the tank. Water in both water tanks are being controlled by the floating device installed in the
tank. The buoyant ball will stop the water from entering the tank when it reaches maximum water level
in the tank. Overflow pipes are also installed on the tank to discharge excessive water. The water
discharged will be collected and to be used as non-potable water. The water exits through foot valves
connecting to the hydro pneumatic system.
The underground tanks are designed with accordance to UBBL 1984 Section 247 (2): Water Storage
a) Main water storage tanks within the building, other than for hose reel system, shall be
located at ground, first or second basement levels, with fire brigade pumping inlet
connections accessible to fire appliance.
Figure 5.21 Water discharged to
scupper drain through scour pipes
Figure 5.20 Electrode Water level
sensor to indicate water level
Figure 5.19 80mm and 100mm riser pipes
for potable and flushing use respectively
Figure 5.18 KLPAC water supply schematic diagram (Cropped)
ARC 2423 BUILDING SERVICES
PROJECT 1 CASE STUDY ANALYSIS AND DOCUMENTATION OF BUILDING SERVICES SYSTEM 52 | P a g e
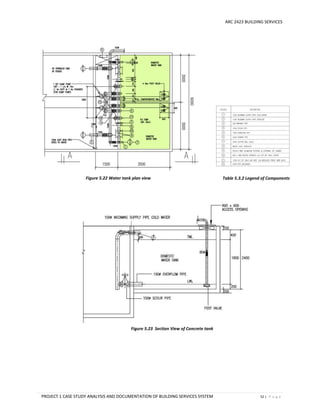
Figure 5.22 Water tank plan view
Figure 5.23 Section View of Concrete tank
Table 5.3.2 Legend of Components
ARC 2423 BUILDING SERVICES
PROJECT 1 CASE STUDY ANALYSIS AND DOCUMENTATION OF BUILDING SERVICES SYSTEM 53 | P a g e
5.3.2.4 Hydro Pneumatic Pump System
Channeled from the foot valves of the tank, the water is connected to a hydro pneumatic booster
system. Hydro pneumatic pump system is required to deliver water continuously at all outlets in all
floors of the building with uniform pressure. The pump system used in KLPAC is manufactured by the
established booster pump company, Grundfos. A hydro pneumatic booster system comprises of
hydraulic pump, pressurized tanks, and pressure meter. Compressed air is used in these tanks as a
buffer or cushion that allows a surge-free delivery process. There are three functions for hydro
pneumatic tanks. The first is as part of a water delivery system set to deliver water in a preset pressure
range. The second uses the pressure setting to monitor a pump from turning on too often. The third is to
buffer or lower pressure surges, much like a power surge protector.
Two sets of booster pump are utilized in KLPAC, one is for the domestic water usage, and another one is
for flushing purpose. The efficiency of the pump is depends on the hydraulic design. Normal pumps can
easily breakdown due to dry running but this patented Grundfos LiqTec system eliminates the risk of
breaking down and immediately stop if there is no liquid in the pump. Energy is required to generate
pressure to pump the water to different part of the building and it is definitely costly.
Figure 5.25 Water Pressure Gauge
Figure 5.26 Pressurized tank
Pumps
Water tanks
Figure 5.24 Hydro Pneumatic Pump System
ARC 2423 BUILDING SERVICES
PROJECT 1 CASE STUDY ANALYSIS AND DOCUMENTATION OF BUILDING SERVICES SYSTEM 54 | P a g e
The underground water keep in the tank acts as a buffer zone on peak water demand periods. The tank
is filled up with water during low consumption or low demand and use up during peak periods. The
normal pressure indicated in the gauge shows a figure of 80 Pa approximately. When there is demand
on water, the meter will fall below 80 Pa and the hydro pump will start pumping up water to supply
uniform pressure in water. When the peak demand is over, the water tank will be filled up again and
remains at the normal pressure. This system runs 24 hours but the system is not complete as some of
the tanks are not function-able. Further study is discussed at Water Supply System Analysis.
Figure 5.28 Plan View of Pump Room
The pump system is designed as to follow UBBL 1984 Section 247 (2): Water Storage
b) Water storage capacity and water flow rate for firefighting system and installation shall
be provided in accordance with the scale as set out in the tenth schedule to these by-
laws.
Figure 5.27 Hydro Pneumatic Pump System diagrams
ARC 2423 BUILDING SERVICES
PROJECT 1 CASE STUDY ANALYSIS AND DOCUMENTATION OF BUILDING SERVICES SYSTEM 55 | P a g e
5.3.3 Plumbing system
5.3.3.1 Types of Pipes
The type of pipes selected mainly depends on many factors, involving the consideration of the
building capacity, water demand, and rate of flow needed by users, number and size of the
storage or pressure tanks used, operating pressure required, maintenance and service and also
energy cost. Other than that, the material properties of the pipes plays a very important role on
selection of pipes due to its ability to sustain, resist chemical hydrants and pressure.
a) Steel Cement Lined Pipes
Steel Cement lined pipes are used to channel water from the main underground. This
cement coated steel pipes. The steel pipes is able to withstand pressure and allow
undisturbed continuous flow of water over long period of time. The cement/mortar lining
provides an area of high pH near the pipe wall and provides a barrier between the water
and the pipe, reducing its susceptibility to corrosion. Therefore prevent future
tuberculation, eliminate leakage and corrosion in pipes than cement mortar lining. The steel
pipes are produced according to British Standards BS534:1990, BS3600:1976 and
BS3601:1987 standards, and are certified by Ikram Quality & Certification Institute. The size
of the pipes used in KLPAC is 150mm ø, buried underground channeling from water main to
the water storage room.
Figure 5.29 Steel Cement Lined Underground Pipes
ARC 2423 BUILDING SERVICES
PROJECT 1 CASE STUDY ANALYSIS AND DOCUMENTATION OF BUILDING SERVICES SYSTEM 56 | P a g e
The placement of the pipes and the space allowance for construction conforms with the
UBBL 1984 in Section 123 Pipes and Services Ducts, where:
I. Where dusts or enclosures are provided in any building to accommodate pipes, cables
or conduits the dimensions of such ducts or enclosures shall be:
 Adequate for the accommodation of the pipes, cables, or conduits and for crossings of
branches and mains together with supports and fixings
 Sufficiently large to permit access to cleaning eyes, stop cocks and other controls
there to enable each or all of the services accommodate
II. The access openings to ducts or enclosures shall be long enough and suitably placed to
enable lengths of pipes to be installed and removed.
b) Cast Iron Pipes
Cast Iron Pipes which superseded by Ductile Iron Pipes has historic use as a pressure pipe
mainly for transmission of water, then the gas, sewage, and also as water drainage pipe.
In KLPAC, these pipes can be found mainly at the water pump room connecting to water
tanks, booster system and to the rising main. It has high resistance to shock or impact due
to improper handling, water hammer or undesirable condition. The sizes of the pipes
utilized are 50mm, 80mm, 100mm and 150mm and Ductile Iron Pipes used are complying
with BS EN 545: 2006 and being certified by 3rd Certification Party as well as National Water
Authorities, Suruhanjaya Perkhidmatan Air Negara (SPAN).
Figure 5.30 Photos of Pipes Connection
Pump Control
Panel
Cast Iron Pipes C.I. Strainer
Pumps
ARC 2423 BUILDING SERVICES
PROJECT 1 CASE STUDY ANALYSIS AND DOCUMENTATION OF BUILDING SERVICES SYSTEM 57 | P a g e
c) Copper Pipes
All distribution pipes in KLPAC is comprised of copper pipes. Copper has very good material
properties as it provides long term performance and prevent contamination and inhibits
growth of bacteria, withstand pressure and temperature change and requires very low
maintenance. The sizes of copper pipes are very much depending to the outlets of the
services, where the amount of water needed is taken into account following the standards.
For example, the pipe sizing for toilet flushing purpose and domestic use differs. In the
system, the pipes channel from the main tank are getting distributed in smaller pipes to
washroom, sinks, and basin. The size of copper pipes utilized in KLPAC can be refer to the
table below.
Fittings Pipe sizes (diameter/mm)
Flush Valve 65mm  40mm
Basin 15mm
Shower Tap 20mm
Tap 15mm
Urinal (male toilet) 20mm
Sinks ( kitchen ) 15mm
Table 5.3.3 Schedule of copper pipes
Figure 5.31 Photo of Distribution Pipes for Washroom (KLPAC, 2015)
ARC 2423 BUILDING SERVICES
PROJECT 1 CASE STUDY ANALYSIS AND DOCUMENTATION OF BUILDING SERVICES SYSTEM 58 | P a g e
d) U-PVC pipes
The U-PVC pipes are mostly used for sewage system and venting. These UPVC SWV fittings are
produces according to MS 1063 and complied with BS 5255, BS 4514 and BS EN 1401. These
fittings are used for solvent cement jointing with UPVC SWV pipes. Theses piping system is used
for soil and waste discharge pipe work for conveyance of domestic waste water and ventilating
pipe with conformation of the standards.
Table 5.3.4 Schedule of U-PVC Fittings and Sizing
Figure 5.32 Photo of u-PVC pipe
ARC 2423 BUILDING SERVICES
PROJECT 1 CASE STUDY ANALYSIS AND DOCUMENTATION OF BUILDING SERVICES SYSTEM 59 | P a g e
e) Galvanized Iron Pipes
KLPAC has a mixture use of G.I Pipes as it can be seen at many places connecting to walls
and many other pipes. It has been used to penetrate through the reinforced concrete walls
from zone to zones.
f) HDPE pipes
The High Density Polyethylene Pipes can be seen at the irrigation area for landscape. The
pipes has flexible and resistance against weather and chemicals.
G.I Pipe
Figure 5.33 Galvanized Pipes Connection through Wall
Figure 5.34 Galvanized Iron Pipes as Suction Pipes Figure 5.35 Galvanized Iron Pipes at Water Meter
HDPE Pipe
Figure 5.36 HDPE pipe For Irrigation
ARC 2423 BUILDING SERVICES
PROJECT 1 CASE STUDY ANALYSIS AND DOCUMENTATION OF BUILDING SERVICES SYSTEM 60 | P a g e
5.3.3.2 Fixture and Connection of pipes
It is important how pipes are laid and fixed around the building. The pipe layout requires proper
planning to allow efficient flow of water from zone to zone thus saving spaces and energy to
pump water. There is also some critical area where connection of multiple pipes are designed to
be fixed on the headspace, vertical walls, and electrical sensitive areas.
Figure 5.37 Diagrams of Pipes Fixtures (KLPAC,2005)
ARC 2423 BUILDING SERVICES
PROJECT 1 CASE STUDY ANALYSIS AND DOCUMENTATION OF BUILDING SERVICES SYSTEM 61 | P a g e
5.4 Findings and Analysis
The water supply system used in KLPAC is conventional. The existing system is still functioning since
KLPAC is operating 10 years ago. However, findings studied that there are part where the water supply
system is yet to be said efficient and there are suggestions to make improvement to the existing water
system.
5.4.1 Analysis
a) Water Tank
The finding analyzed that the sub-tanks connecting to the hydro pneumatic pumps are no longer in
used. The water tanks were once used to store water and supply water to the building and the users.
The reason of abandonment given was due to its high maintenance cost and also its operation. The
tanks were shut down left only the use of water pumps and only one source from the underground RC
water storage tank. The effort to remove the tanks from the narrow basement requires a lot of planning,
mechanical and man power, shifting of components and operations and halting of water supply. These
unused tanks are left in the underground and taking up potential spaces to upgrade the water supply
system for the future use.
b) Water Supply
There is no other water tanks available in KLPAC excluding the only one source from the underground
water storage. In the study it concludes that there is zero water supply and no other “back-up” water
storage if the KLPAC or the season itself are encountering water shortage. All washrooms and the
landscape in KLPAC extract water from the underground water tank and relying on the only water
source. It will bring a lot of unpleasant consequences if there is no water to supply to the building during
dry seasons. Maintenance is difficult as water are all stored in one place and there is no other places to
store water while the maintenance is taking place. The 35000 liter water was estimated to last only less
than a week to fulfil the user needs in the building.
C) Water Pump
There are only two sets of hydro pneumatic pumps functioning in KLPAC. The energy requires to pump
all water supply to zones and users are high in cost and it is inefficient. This is one of the reason why it
led to the abandonment of the sub-tanks in order to cut down the bill. The utilization of the Hydro Pump
system is manually controlled by technicians and it has to be monitored every day. If there is an
electricity shortage, there is no back up electricity generator set available to pump the water. The only
gen set available is prior for fire fighting system. It would be very inconvenient to the building as KLPAC
is a performing art center and it is very hard to supply water to the users if there is no water supply in
the storage. In short, further consideration of issues encountered and problem solving is not discussed.
ARC 2423 BUILDING SERVICES
PROJECT 1 CASE STUDY ANALYSIS AND DOCUMENTATION OF BUILDING SERVICES SYSTEM 62 | P a g e
5.4.2 Suggestion on Improvement
The main issue of the water supply system is the operational cost and the efficiency of water supply in
the events of water main failure. The solution of the issues mentioned can be solved by making use of
the spaces on the roof top and by adding water storage tanks and promotes gravitational distribution
system. This proposed solution allows replacement of the abandoned water tanks in the pump rooms,
while adding up the water capacity to fulfill the building water demand. The placement of water tank at
higher position promotes gravitational water distribution. KLPAC has only 6 stories, the energy required
to pump up to that level is not too high, the system can be programmed when only if the water tank
falls below a certain level and to be fed up. Compared to the current system, the pump is often switched
on and off so many times as it consumes more energy by doing that to pump water throughout the
building all year long. The gravitational water supply system can save cost on operation and also it can
store water as back up in case if there is a water main failure and electricity break. With this, it tackles all
three issues mentioned in the finding and analysis. Otherwise, an extra genset for water pump is
sufficient to make improvement on the current system.
5.5 Conclusion
Regardless of so many pressurized system used in today’s building to replace the roof top water tanks,
KLPAC can be the exception to have a water tank at the roof top because it is not a tall building. Unlike
those high rise buildings, the energy required to pump water all the way up to the top of the building is
low. The pressure at the lowest floor of KLPAC is not too high and the pressure reduction valves are not
required in KLPAC. The only issue which has to be taken into account is the back-up water storage to
prevent water main and electricity failure. Having a water tank at roof top is considered a conventional
system and this system is seen as a matured technology as it is very familiar to the local technicians and
maintenance workers. Rather than having a costly and high maintenance system which cannot be fully
utilized, back up water storage at the roof top and gravitational water distribution system are the
suggestable solutions to KLPAC.
ARC 2423 BUILDING SERVICES
PROJECT 1 CASE STUDY ANALYSIS AND DOCUMENTATION OF BUILDING SERVICES SYSTEM 63 | P a g e
6.0 Sewerage, Sanitary and Drainage System by CHOONG WAN XIN
6.1 Introduction
Sewage (also known as wastewater) is defined as the used water and waste substances produced by
human bodies that are carried away from houses and factories through special pipes. It encompass
potential contaminants and concentration that are hazardous to living organisms such as feces and
urine, rubbish, and chemical wastes from estates. It is then disposed of from different sources through
underground conduits and drains. Wastewater is cleaned and treated with natural process in sewerage
system before discharging into river. It is important to treat wastewater in different type of appliances
as it can pollute the water and increase BOD which causes threatening diseases to human and animals
lived. A combination of drainage system consists of sanitary appliances, pipes, service areas and
treatment area are normally covered behind walls of the building during construction or placed in
service rooms without human notifications. During the design of buildings, the sewerage and drainage
system should be considered by following the laws to ensure that the users will not be affected by
improper disposal of wastewater.
Figure 6.1 Flow of sewerage and sanitary system of a residential house
6.2 Literature Review
Managing sewage is major challenge in urban areas particularly in rapidly growing country like Malaysia.
Lack of an effective and efficient wastewater disposal and treatment system has had a negative impact
on the environment and also human being. In order to collect and convey liquid waste by water carriage
system, an effective sewerage system connecting network of sanitary appliances, pipes as well as
sewage treatment is operated.
ARC 2423 BUILDING SERVICES
PROJECT 1 CASE STUDY ANALYSIS AND DOCUMENTATION OF BUILDING SERVICES SYSTEM 64 | P a g e
Figure 6.2 Diagram of a complete sewerage system from different sources
Starting from the appliances available in a toilet, traps, stacks, septic tank and public sewer will be
discussed in this chapter in sequences. Sanitary appliances allow users to dispose of excreta and urine
into the sewage system with the forces of water taps or flushing devices. The appliances connect to
drainage system that conveys sewage and rainwater to an approved point of disposal through a network
of piping within private or public premises. Traps are used in the toilet to prevent large waste product
from entering the waste or soil pipe and also to prevent back flow of the water.
Sewage is then carried to the underground conduits or drains called sewer. The types of sewer
commonly installed are the sanitary sewer, storm sewer and combined sewer. Sanitary sewer is an
underground carriage system used for transporting sewage from houses, commercial buildings and
industrial areas with the help of sanitary sewer line attaching to a main sewer. The main sewer run
directly to the sewage treatment plant. Storm sewer collects storm water with the help of gutter and
catch basin. Gutter functions as draining the storm water from the street directly into the sewer.
Combined sewer works as a combination of sanitary and storm sewers that collects both sewage and
storm water runoff in a single pipe system. Serious water pollution may happen due to combining large
variation of sewer flow between dry and wet weather.
ARC 2423 BUILDING SERVICES
PROJECT 1 CASE STUDY ANALYSIS AND DOCUMENTATION OF BUILDING SERVICES SYSTEM 65 | P a g e
Figure 6.3 Difference of sewerage disposal between separated and combined sewers during different weather
Sewage treatment and sewage passage is under properties of the authorities but it only starts at the
boundary of the private building excluding the septic system located on site. The system within the
building and the boundary is under the responsibility of the property owner that subjected to rules and
regulations of its components.
ARC 2423 BUILDING SERVICES
PROJECT 1 CASE STUDY ANALYSIS AND DOCUMENTATION OF BUILDING SERVICES SYSTEM 66 | P a g e
6.3 Case Study
Kuala Lumpur Performing Arts Centre (KLPAC) consists of 4 floors (ground, first, second and third floor).
Sewerage system in this building features the functions of collection, conveyance, treatment and
disposal. Combined stack system is installed in this building with similar location of wash closets on each
floors. Sewage collected from the appliances is collected and conveyed through the network of pipe
lines: soil pipe, vent pipe and waste pipe. It is discharged to the nearest manhole and then to the septic
tank of the property for treatment. Manholes and inspection sports are located outside the building in
cover for services and inspections.
Figure 6.4 Ground floor plan
ARC 2423 BUILDING SERVICES
PROJECT 1 CASE STUDY ANALYSIS AND DOCUMENTATION OF BUILDING SERVICES SYSTEM 67 | P a g e
6.4 Components of System
6.4.1 Sanitary Appliances
Sanitary appliances are used for collection and discharge of waste matter and soil. There are two groups
of sanitary appliances in KLPAC, the waste and soil appliances. Soil appliances include water closet and
urinal while the waste appliances are bidet, sink and wash basin. All these appliances are made of non-
absorbent, non-corroding, smooth and easily cleaned material like ceramic ware, stainless steel or
plastic.
Figure 6.5 Female washroom located at ground floor of KLPAC
Figure 6.6 Ground floor male and female toilets at KLPAC
ARC 2423 BUILDING SERVICES
PROJECT 1 CASE STUDY ANALYSIS AND DOCUMENTATION OF BUILDING SERVICES SYSTEM 68 | P a g e
6.4.1.1 Water Closet
Water closet is an enclosed room or compartment containing a toilet bowl fitted with a mechanism for
flushing. A toilet is composed of two main pieces -- the tank (water reservoir) and the bowl (the part the
user sits).
When the flush lever is pushed, it pulls up on the chain and so the flush valve. This exposes the large
discharge hole at the bottom of the tank allowing water to rush quickly into the toilet bowl. Immediately
after a flush begins the water level in the tank and the floats starts to go down, at the same time the
float opens the fill valve, and water from the house water pipe (through the stop valve) begins to flow
into the tank. When it's almost empty the flapper can no longer float and falls onto the discharge hole
sealing/closing it again and the water coming in through the fill valve starts refilling the tank. While the
tank is refilling, a small amount of water is also going from the fill valve through the refill tube into the
overflow tube that empties directly into the toilet bowl. This water raises the water level in the bowl.
When the water level in the tank has returned to its original level, the float closes the fill valve and the
cycle is complete. An overflow tube is provided to direct the excess water refilling in the tank into the
bowl after it reaches a certain level.
Figure 6.7 Water closet in KLPAC Figure 6.8 Compartments of Water Closet
According to UBBL 1984, Section 43:
In all buildings, the size of the latrines, water-closets and bathrooms shall be
(a) In the case of latrines or water-closets with pedestal-type closet fittings, not less than 1.5 meters by 0.75
meter.
ARC 2423 BUILDING SERVICES
PROJECT 1 CASE STUDY ANALYSIS AND DOCUMENTATION OF BUILDING SERVICES SYSTEM 69 | P a g e
6.4.1.2 Basins
Sink is a wide bowl that has a faucet for water and a drain at the bottom and is usually positioned in a
counter or on a pedestal. Some sinks provide separate taps with hot and cold water supplies called
faucets. A drain is included in a basin to remove overflow water when the basin is clogged. To remove
clogged items in a sink, a specific chemical drain cleaner or a plunger will be used. The type of sinks
installed in KLPAC are different in materiality (stainless steel sinks in kitchen, concrete sinks and ceramic
sinks in washrooms).
Figure 6.9 Ceramic basin in KLPAC Figure 6.10 Components of a basic sink
Ceramic sinks are made with a raw material that contains clay, glass and metal. This mixture has been
used as a sink material for decades with a smooth, impervious surface and extremely low moisture
absorbency.
Ceramic sinks are easy to maintain. Their impenetrable surface is stain resistant, so it can be easily
cleaned with basic all-purpose cleaning products. On the other hand, most ceramic sinks are made of
raw materials, which means that many of them differ slightly in finish and color. Prone to chipping,
cracking and scratching, ceramic sinks often need replacing if damaged.
Figure 6.11 Costumed made concrete sink in washroom in KLPAC
ARC 2423 BUILDING SERVICES
PROJECT 1 CASE STUDY ANALYSIS AND DOCUMENTATION OF BUILDING SERVICES SYSTEM 70 | P a g e
A concrete sink can be a washroom addition that will last a very long time. They are usually unique and
different for being customized. Due to its material characteristics, concrete is very strong and not easily
damaged. Unfortunately, concrete sinks need to be maintained by periodically sealing and repairing
cracks and chips before they spread and become worse. Concrete sinks can also be extremely heavy and
require special support. Supports not only need to be installed underneath the sink, but also the floor
must be strong enough to support the added weight.
Finally, concrete sinks can be very expensive to install. Since they are largely custom made, there is no
standard price and homeowners cannot simply purchase one online or through a home improvement
center.
Figure 6.12 and Figure 6.13 Different type of stainless steel basins in kitchen area in KLPAC
Stainless steel makes an affordable, low-maintenance kitchen sink. They do not chip, crack or peel as
enamel or porcelain sinks will do, and they’re resistant to stains. Although stainless steel resists
corrosion, prolonged contact with chlorine bleach, muriatic acid, solvents and other harsh or abrasive
cleaners can damage stainless steel finishes and leave them vulnerable to rust. The thickness of the steel
also plays a role in the sink’s resistance to scratches and dents. The thicker the steel, the more durable
the sink will be.
One drawback to stainless steel sinks is that limited options in color and finish are provided. While it
comes in a range of finishes, such as mirrored, glossy sheen or brushed nickel, the color will always be
silver. Another drawback to this type of sink is that it tends to be noisy in comparison to other materials,
such as acrylic or porcelain sinks. But higher-end stainless steel sinks offer sound-muffling coatings over
the steel or a spray coating on the underside of the sink. This can greatly reduce the noise level,
although it will not eliminate it.
ARC 2423 BUILDING SERVICES
PROJECT 1 CASE STUDY ANALYSIS AND DOCUMENTATION OF BUILDING SERVICES SYSTEM 71 | P a g e
6.4.2 Traps
A trap is a device which is used to prevent sewer gases from entering the buildings. The traps are
located below or within a plumbing fixture and retains small amount of water. The retaining water
creates a water seal which stops foul gases going back to the building from drain pipes. Therefore all
plumbing fixtures such as sinks, washbasins, and toilets in KLPAC are equipped with traps.
6.4.2.1 Water seal
Water seal in a trap is the depth of water which should be removed from a fully charge trap before
gases at atmospheric pressure may pass from the waste pipe through trap into a building. The tape is
useless unless they retain their seals at all times. The seal may be broken due to air compressor,
momentum and evaporation. The trap in fittings in range is liable to symphonic action and each trap
should be ventilated.
The principle of the water trap works with the presence of water. The water sits in the trap where it
forms a blockage for gas trying to get back into the room. The water will sit just below the level of the
outlet bend until more water is introduced from the incoming pipe. The incoming water will replace the
water in the trap and push it out of the outlet.
Figure 6.14 Example of water seal in a P-pipe.
6.4.2.1.1 Bottle and Sink Traps
A bottle trap is long and thin and will not take up so much room in a kitchen unit or under a basin while
sink trap used in KLPAC is the addition of a 90 degree fitting on the outlet side of a U-bend, thereby
creating a P-like shape. It is also referred to as a sink trap because it is installed under most house sinks.
Both are usually made of plastic but chrome plated versions are available for most applications. This
type of trap can be hidden behind a pedestal although proprietary pedestal traps are a little longer.
Because it is a localized low-point in the plumbing, it tends to capture heavy objects that are unwittingly
dropped into the sink. Besides, it also functions to collect hair, sand, and other debris and limits the
ultimate size of objects that will pass on into the rest of the plumbing, thereby catching over-sized
objects.
ARC 2423 BUILDING SERVICES
PROJECT 1 CASE STUDY ANALYSIS AND DOCUMENTATION OF BUILDING SERVICES SYSTEM 72 | P a g e
Figure 6.15 Bottle traps installed in the toilet of KLPAC
Figure 6.16 Diagrammatic drawing of bottle trap (left) and sink trap (right) used in KLPAC
6.4.2.1.2 Floor Trap
This trap is provided in the floor to collect waste water from washbasin, shower, sink and bathroom etc.
These are available in cast iron or UPVC material and have removable grating (JALI) on the top of the
trap. The minimum depth of water seal should be 50 mm.
Figure 6.17 Cast iron floor trap grating in toilet of KLPAC Figure 6.18 Example of a floor trap
ARC 2423 BUILDING SERVICES
PROJECT 1 CASE STUDY ANALYSIS AND DOCUMENTATION OF BUILDING SERVICES SYSTEM 73 | P a g e
6.4.2.1.3 Gully Trap
These traps are constructed outside the building to carry waste water discharge from sanitary
appliances and are connected to the nearest building drain/sewer so that foul gases from sewer do not
come to the house. These are deep seal traps, the depth of water seal should be 50 mm minimum. It
also prevents the entry of cockroach and other insects from sewer line to waste pipes carrying waste
water.
The initial thought was that the trap would prevent the foul air and rodents from leaving the sewer
systems and surfacing within domestic curtilages and to some degree this may have been the case,
however the traps created their own problems partly because they were often installed on combined
storm and foul drainage systems and as a result silt and debris would collect in the trap causing the
occasional blockage. Common defects found on interceptors include root ingress, fracturing due to
movement or settlement of the chamber and a general buildup of silt, debris, grease and fat within the
trap itself.
Figure 6.19 Plans and Section of gully trap with cover at KLPAC
ARC 2423 BUILDING SERVICES
PROJECT 1 CASE STUDY ANALYSIS AND DOCUMENTATION OF BUILDING SERVICES SYSTEM 74 | P a g e
Figure 6.20 Compartments of a gully trap Figure 6.21 Example of a gully trap
6.4.2.1.4 Grease Trap
A grease trap, or grease interceptor, is a plumbing device designed to "trap" and prevent grease from
entering the sewer system and causing sewer pipe blockages.
A grease trap should be connected to any fixture or drain that discharges wastewater containing oil and
grease to the grease trap, including, sinks for washing dishes, floor drains and cooking equipment. When
there is wastewater entering the grease trap, it cools and the grease and oil harden and float to the top
of the trap. The rest of the wastewater flows through the trap and out the exit pipe to the sanitary
sewer. The grease, oil and fat remain in the trap.
For the best operation, the grease trap should be cleaned regularly and serviced at least once every four
weeks. When warm fats, oils, and grease make their way into the plumbing system, over time they build
up and cause a number of problems, including blocked sewers. Blocked sewers can lead to a sewage
backup into the building itself, neighboring property or even local rivers. Blocked sewers can also lead to
increased vermin and contact with disease-causing organisms, all of which pose serious health risks to
anyone working in or visiting the building.
Figure 6.22 Diagram of a grease trap
ARC 2423 BUILDING SERVICES
PROJECT 1 CASE STUDY ANALYSIS AND DOCUMENTATION OF BUILDING SERVICES SYSTEM 75 | P a g e
Figure 6.23 Example of installing an underground grease trap
6.4.3 Pipework
Getting the used water and other waste products away from sanitary appliances is the primary purpose
of the above ground drainage pipework. The pipework must be professionally designed and installed to
ensure no smells enter the building from the pipework and all waste products are disposed of safely.
The drainage system in a building historically was made from metals such as cast iron, copper or lead
but for the last 40 years PVC plastic has been used as the main drainage pipe material. All the pipes are
laid out to a slope or ‘fall’ to allow the water to drain away without leaving behind any dirt or debris in
the pipe. All appliance connections to the drainage system must have a trap on them to prevent smell or
gasses entering the home.
Pipe system includes network of pipes and valves, which are main pipe, feeder pipe, branch pipe and
valve. Main pipe delivers water from treatment plant to distribution tank or directly to distribution area.
Feeder pipe is directly connected to a main pipe for distribution of water to industrial or residential
areas. Branch pipe is installed from feeder pipe to individual house, building, factory or fire hydrant.
Valve is needed to control water flow rate, stop water flow, release trapped air in pipe, balance pressure
in pipe and remove effluents.
ARC 2423 BUILDING SERVICES
PROJECT 1 CASE STUDY ANALYSIS AND DOCUMENTATION OF BUILDING SERVICES SYSTEM 76 | P a g e
Figure 6.25 Diagrammatic of the soil and waste
pipes connecting to stack 1 and 2 in KLPAC
Figure 6.24 Example of waste pipe system in a typical house
ARC 2423 BUILDING SERVICES
PROJECT 1 CASE STUDY ANALYSIS AND DOCUMENTATION OF BUILDING SERVICES SYSTEM 77 | P a g e
6.4.3.1 Soil and Waste Pipe
Drain-waste-vent (DWV) pipes carry waste and water out of the building without gurgles or fumes.
Water produced at fixtures such as toilets, sinks and showers travels downward through the stacks to
the main drain line and exits the fixtures through a trap, a dipped section of pipe that always contains
water. At the end, it is leaded to the municipal sewage system or to a septic system.
More into details, water runs down the sink drain into a p-trap, which fills up with water to prevent
sewer gases and odors from getting into the house through the pipe. This water gets refreshed
whenever more water runs through it. A drainpipe attached to the p-trap goes into an opening in the
wall. Behind the wall, a vent line and drainpipe lead to a soil stack, which is the control center of the
wastewater system. Drain pipes take the wastewater to the soil stack; through the stack, sewer gases
are carried up to the roof through vent lines.
In KLPAC, material that is used for the soil and waste pipe system is uPVC. The soil pipe is located inside
or outside and the end is terminated with an open end covered in a cage (to stop birds nesting in it) or
with an automatic air admittance device.
Figure 6.26 uPVC pipe in KLPAC Figure 6.27 Diagrammatic drawing of uPVC pipe in KLPAC
ARC 2423 BUILDING SERVICES
PROJECT 1 CASE STUDY ANALYSIS AND DOCUMENTATION OF BUILDING SERVICES SYSTEM 78 | P a g e
6.4.3.2 Vent pipe
For water to flow smoothly without gurgling, there must be an air passageway behind the water. Vent
pipes extend from the drainpipes up through the roof to provide that passage. Vent pipes also carry
odors out of the house. The drainpipe for each plumbing fixture must be connected to a vent that
supplies the pipe with air from the outside. In some cases the drainpipe is connected directly to a main
or secondary stack pipe, which travels straight up through the roof. More often a drainpipe is connected
to a recent pipe that reaches up and over to tie into the main vent stack.
Vitrified clay pipe (VCP) and uPVC pipe are installed for the vent pipe system in KLPAC and they are
carried up to 450mm above roof level. All pipe passing through the roof structure is provided with collar
and flashing to form tight joints.
Figure 6.28 Diagrammatic drawing of vitrified clay pipe (VCP) in KLPAC
Under Law of Malaysia Act 133 Street, Drainage, Building Act 1974, Section 56 (1)
Rainwater pipes not to be used as soil pipe state that: “no pipes used in the carrying of rainwater from any
roof shall be used for the purpose of carrying off soil and drainage from any privy or water closet or sullage
water.”
Under Law of Malaysia Act 133 Street, Drainage, Building Act 1974. Section 57
No water pipe, stack pipes or down spout used for conveying surface water from any premises shall be used
or permitted to serve or to act as ventilating shaft to any drain or sewer.
ARC 2423 BUILDING SERVICES
PROJECT 1 CASE STUDY ANALYSIS AND DOCUMENTATION OF BUILDING SERVICES SYSTEM 79 | P a g e
6.4.4 Inspection chamber
All underground drainage systems must have access points, to enable the drains to be inspected on a
regular basis and to be cleaned in the event of a blockage. The most common form of access is an
inspection chamber, often still referred to as a manhole. In times gone by, manholes were actually large,
bricked up chambers that had iron steps built into the wall, enabling a person to physically climb down
into the drainage system. The main difference between one of these old manholes and an inspection
chamber is that inspection chambers do not permit physical entrance into the drains.
Figure 6.29 Light duty cast iron covered inspection chamber at KLPAC
ARC 2423 BUILDING SERVICES
PROJECT 1 CASE STUDY ANALYSIS AND DOCUMENTATION OF BUILDING SERVICES SYSTEM 80 | P a g e
Figure 6.30 Plan and section of an inspection chamber in KLPAC
6.4.5 Manholes
Manholes (MH) are the largest top opening to an underground utility chambers providing access to a
sewer or drain for maintenance equipment on underground and buried public utility, and, in some
cases, for operatives to enter the system itself to make connections, inspection, valve adjustments and
other services including sewers, telephone, electricity, storm drains, district heating and gas. Manhole
closings are protected by a manhole cover, a flat plug designed to prevent accidental or unauthorized
access to the manhole.
ARC 2423 BUILDING SERVICES
PROJECT 1 CASE STUDY ANALYSIS AND DOCUMENTATION OF BUILDING SERVICES SYSTEM 81 | P a g e
Figure 6.31 Cast iron manhole frame and Cover Figure 6.32 Section of a manhole at KLPAC
6.4.6 Septic Tank
The typical septic tank is a large buried rectangular or cylindrical container made of concrete, fiberglass,
or polyethylene. A septic tank's purpose is to separate solids from the wastewater, store and partially
decompose as much solid material as possible, while allowing the liquid (or effluent) to go to the drain
field. Wastewater from toilet, bath and kitchen flows into the tank and remains there for up to 24 hours
(known as the retention time) before it passes to the drain field. This helps prevent clogging of the drain
field, which can lead to failure and costly repairs.
The retention time is necessary to allow the solids to properly separate from the liquids—heavy solids
settle to the bottom as sludge and the lighter particles rise to the top, forming a scum layer. Although
bacterial action partially decomposes some of the solids, up to 50 percent remain in the tank.
Before that, septic tanks had one compartment; however, current regulations require two chambers,
which do a better job of settling solids. In residential systems, the tank size is determined by the number
of bedrooms and should be enough to handle approximately three years’ worth of sludge and scum. In
commercial establishments like KLPAC, the tank size is determined by the amount of daily flow.
As wastewater flows into the tank, a tee (or baffle) at the tank's inlet pipe slows the incoming wastes
and reduces the disturbance of the settled sludge. The outlet tee keeps the solids or scum in the tank. In
old tanks installed, an effluent filter is attached to the outlet baffle (going to the drain field) to keep
solids in the tank instead of entering the drain field. Effluent filters are an excellent addition to an older
tank, and can be installed by a pumper or other septic system professional.
Consequently, it is important that solids be removed by periodic pumping, so they do not overflow into
the drain field. Most septic tanks need to be pumped every 3 to 5 years, depending on the tank size and
the amount and type of solids entering the tank.
ARC 2423 BUILDING SERVICES
PROJECT 1 CASE STUDY ANALYSIS AND DOCUMENTATION OF BUILDING SERVICES SYSTEM 82 | P a g e
All tanks should have accessible covers for checking the condition of the tees and for pumping both
compartments. To eliminate the time and nuisance of digging down to the access covers, risers can be
installed. The riser(s) should be secure to prevent accidental entry into the tank, and should also be
watertight to prevent groundwater from entering the riser cavity, which may cause the tank to flood.
Figure 6.33 Compartments of a septic tank
Figure 6.34 Location of septic tank in KLPAC
ARC 2423 BUILDING SERVICES
PROJECT 1 CASE STUDY ANALYSIS AND DOCUMENTATION OF BUILDING SERVICES SYSTEM 83 | P a g e
6.4.7 Drainage
The drainage system is an essential part of living in a city or urban area, as it reduces flood damage by
carrying water away. When it rains, some water naturally seeps into the ground. The rest makes its way
through drainage systems, into rivers and creeks and eventually into the bays, or directly to the bays
through stormwater beach outlets.
In areas with houses, shops and roads, alternative ways for this water to drain away are needed as large
amounts of water can build up quickly during heavy rain and storms, and without adequate drainage
this flows towards low-lying land, flooding, damage and safety risks will happen.
Rainwater drainage is required to collect the discharge from roof, paved area and convey it to suitable
drainage system. These rainwater system are laid to fall so as to direct rainwater into a yard gully which
is connected to the surface water drainage system. It consists of a collection called gutter which is
connected to vertical rainwater pipes.
Figure 6.36 Example of drainage system of a house
Figure 6.35 The rainwater down pipe with gutter is
connected to a screening chamber in KLPAC
According to UBBL 1984, Section 115:
Roof coverings and drainage. All roofs of buildings shall be so constructed as to drain effectually to
suitable and sufficient channels, gutters, chutes or troughs which shall be provided in accordance with
the requirements of these BY-laws for receiving and conveying all water which may fall on and from the
roof.
ARC 2423 BUILDING SERVICES
PROJECT 1 CASE STUDY ANALYSIS AND DOCUMENTATION OF BUILDING SERVICES SYSTEM 84 | P a g e
6.5 Analysis
In KLPAC, sewage is being disposed through sanitary appliances and being flushed into the soil and
waste pipe. For toilets and pantries located at upper floors, vertical waste pipes are connected by
combined stack system to convey and conduct the wastewater to downstairs and underground drains.
Sewage is then conveyed along the public sewer line to a wastewater treatment plant nearby before
discharging into river.
Most of the sewage pipes and stacks including the storm drains and sewer are hidden behind the wall
and above ceiling panels. Therefore, aesthetic value of the interior and exterior of the building is
concerned. On the other hand, there is no smell and odor noticed when entering the washroom because
of the vent pipe allowing the smell of the sewage to escape the building without trapping it inside. So,
users can pleasantly use the sanitary appliances.
There is only one grease interceptor trap located at ground floor which is near to the restaurant in
KLPAC. Regular maintenance is needed so that the grease or fat discharged from the kitchen will not
clog and block the wastewater pipe system. A number of manholes are located underground
surrounding the building itself, providing maximum flow of wastewater disposal from the building to the
septic tank and to the sewer line. However, only one septic tank is installed in this sewerage system and
it may encounter high pressure of wastewater discharged at the same time.
6.6 Conclusion
In a nutshell, KLPAC is designed with effective and complete sanitary and sewerage system that
considers the need of the users entering the building. Basic sanitation services as well as storm water
drainage system are well planned that comply with standards and requirement of regulatory bodies in
Malaysia. Besides, toilet appliances for people with disabilities are considered in the design of the
building. Wastewater treatment plant nearby also plays an important role for the building as it can treat
the wastewater within the boundary of the property before discharging it into the public sewer line.
ARC 2423 BUILDING SERVICES
PROJECT 1 CASE STUDY ANALYSIS AND DOCUMENTATION OF BUILDING SERVICES SYSTEM 85 | P a g e
7.0 AIR-CONDITIONING AND MECHANICAL VENTILATION by JOANNE CHUA
7.1 INTRODUCTION
Air-Conditioning and Mechanical Ventilation system, also known as ACMV system serves the
main purpose of maintaining thermal comfort and acceptable indoor air quality. It is achieved through
the process of altering the properties of air, by controlling the level of temperature and humidity to
more comfortable conditions before distributing the air to an occupied space, providing a safe-working,
healthy and productive environment. In Malaysia, heating systems are not appropriate or applicable due
to its tropical climate, with its temperature ranged between 23°C to 32°C.
This research paper will be looking in-depth on the ACMV system of KLPAC to have a deeper
understanding on it. In accordance to the research, rules and standards will also be investigated. These
standards have been set my various bodies to ensure that proper thermal comfort and indoor air quality
is being achieved via the ACMV system. The standards used in examining are the Malaysian Standard
(MS 1525) and Uniform Building By-Laws (UBBL).
ARC 2423 BUILDING SERVICES
PROJECT 1 CASE STUDY ANALYSIS AND DOCUMENTATION OF BUILDING SERVICES SYSTEM 86 | P a g e
Figure 7.2: Air cycle of an air-conditionerFigure 7.1: Refrigerant cycle of an air-conditioner
7.2 LITERATURE REVIEW
7.2.1 AIR-CONDITIONING SYSTEM
Air-conditioning is defined as the total control of temperature, air humidity, air cleanliness and
air movement in an occupied space to achieve human thermal comfort, which refers to the condition of
mind that expresses satisfaction with the thermal environment. In Malaysia, thermal comfort in a
building is having a filtered supplied air, with a temperature range of 22°C to 27°C and relative humidity
of 55-70%, while controlling air movement to avoid the sensation of cold drafts and at the same time
prevent the formation of pockets of stagnant air within the conditioned space. The design factors of a
building such as its orientation, materials, heat penetration, environment, climate, activity and
equipment often play an important aspect and should be considered in determining the usage of air-
conditioning.
Air-conditioning works by collecting and removing heat from the air inside the room and release
the heat into the air outdoor. There are two cycles involved, mainly the refrigerant cycle and the air
cycle. A refrigerant cycle functions by removing heat from one place to another and is done by
transferring through the evaporator and removed to the outside air through a condenser, On the other
hand, an air cycle is a process that distributes treated air into the room that needs to be conditioned.
When heat inside the room is removed and absorbed by the evaporator, the internal air turns cooler.
The medium to absorb heat can be either air or water, and air is usually distributed through ducts or
chilled water pipes.
ARC 2423 BUILDING SERVICES
PROJECT 1 CASE STUDY ANALYSIS AND DOCUMENTATION OF BUILDING SERVICES SYSTEM 87 | P a g e
7.2.2 MECHANICAL VENTILATION
Mechanical ventilation describes the process of changing air in an enclosed space, where indoor
air is withdrawn and replaced by fresh air continuously that is supplied by clean external sources using
mechanical devices such as fans. The main function of mechanical ventilation is to expel stale air
containing water vapour, carbon dioxide, airborne chemicals and other pollutants while drawing in
outside air, presumably with lesser pollutants and water vapour, and circulates the air around and
throughout the house. It is important to maintain proper mechanical ventilation as:
(a) It preserves oxygen(O2) content while removing carbon dioxide(CO2)
(b) It prevents heat concentrations from machinery, lighting and people
(c) It reduces excess condensation
(d) Growth of bacteria is controlled and prevented
(e) Contaminants such as smoke, dust, gases and body odours is diluted and removed
(f) Consistent freshness is provided
(g) It is a good alternative in case of unreliable natural ventilation systems
There are two types of mechanical ventilation system, mainly spot ventilation, which includes
supply system, extract system or a combination system; and also energy-recovery ventilation system.
In a supply system, fresh air is supplied by a central supply fan and stale air goes outside naturally. This
system is usually used in boiler plants and factories. On the other hand, an extract system creates a
negative pressure inside the building, causing air to move in naturally, though stale air is channelled out
using exhaust fans. This system usually functions in basements, indoor toilets or bathrooms. For a
combination system, it consists of both supply and extract system, therefore the building’s goes through
slight air pressurization by using an extract fan smaller than an inlet fan. Fresh air is supplied and stale
air is picked up from multiple points. This system usually works in cinemas, theatres, sports centres and
so on. For an energy recovery ventilation system (ERV), it includes a controlled heat exchanger, with one
or more fans pushing air through the machine. However, it is less cost-effective and not commonly used
in Malaysia as it is mainly made for countries with extreme summer and winter climates.
ARC 2423 BUILDING SERVICES
PROJECT 1 CASE STUDY ANALYSIS AND DOCUMENTATION OF BUILDING SERVICES SYSTEM 88 | P a g e
7.3 CASE STUDY
KLPac utilizes a centralized air-conditioning system for its air cycle due to the large building size.
The system is appropriate and highly efficient since for large spaces that need high cooling loads such as
performing stages and theatres. The system works by distributing cool air via a duct system, then
through a complex plan of diffusers from specific Air Handling Unit (AHU) rooms within the building. The
quantity of AHUs depends on the built-up area and the number of users as well. Fan Coil Units are
smaller units that act similarly to AHU systems.
In this case, KLPac holds a total of 5 AHU, with 4 operating at the main performing stage due to
its dense number of users and large scaled space, and 1 more operating at the secondary performing
stage. In addition, several FCUs are found operating around the building, though they focus more on
ventilating smaller spaces for activities and work such as the lobby area, office, conference rooms and
studios and so on. The system is controlled in a specific control room and everything will be routed back
to a single device.
For its refrigerant cycle, KLPac uses an air-cooled chilled water system. Air-cooled chillers are
intended for outdoor installation and operation. It is directly cooled by ambient air being mechanically
circulated directly through the condenser coil to expel heat to the atmosphere. Therefore, no cooling
towers are present as its purpose of exerting heat has already been done inside the chiller’s condenser.
ARC 2423 BUILDING SERVICES
PROJECT 1 CASE STUDY ANALYSIS AND DOCUMENTATION OF BUILDING SERVICES SYSTEM 89 | P a g e
Figure 7.3: Overview diagram of Air-Conditioning and Mechanical Ventilation System, KLPac
AIR-CONDITIONING AND MECHANICAL
VENTIALTION SYSTEM
SUPPLY AIR
DIFFUSER/GRILLE
RETURN AIR
GRILLE/FAN
FIRE EXHAUST
FAN/VENTS
MECHANICAL
VENTILATION
SYSTEM
AIR-COOLED CHILLED
WATER SYSTEM
EVAPORATOR
COMPRESSOR
EXPANSION VALVE
CONDENSER
CHILLED WATER
PUMP
PIPING SYSTEM
CENTRALIZED
AIR-CONDITIONING
SYSTEM
AIR FILTER
BLOWER/FAN
HEATING/COOLING
COIL
VIBRATOR ISOLATOR
BASE
DAMPER
AIR HANDLING
UNIT (AHU)
FAN COIL UNIT
(FCU)
DUCTWORK
ARC 2423 BUILDING SERVICES
PROJECT 1 CASE STUDY ANALYSIS AND DOCUMENTATION OF BUILDING SERVICES SYSTEM 90 | P a g e
Figure 7.4: AHU-G-2 in KLPac Figure 7.5: Location of AHU-G-2 room at
ground floor, KLPac
Figure 7.6: Switches for each respective AHU
7.4 COMPONENTS OF SYSTEM
CENTRALIZED AIR-CONDITIONING SYSTEM
7.4.1 AIR HANDLING UNIT (AHU)
Air Handling Unit (AHU) is a large metal box that is connected to a ductwork ventilation system,
distributing conditioned air through the building and recycles some of the return air. It comprises of
several components with each own specific function. The AHU are all enclosed in rooms specifically
designed for AHU only to ensure compactness and protect it from external forces or pressure. Its air
source comes from recycled air from return air ducts and outside air coming in through fresh air grilles.
In KLPac, each AHU is provided with its specific switch for manual controlling to save energy during
periods of non-use.
According to MS 1525 code 8.4.1.2.1, Control setback and shut-off
“Each system should be equipped with a readily accessible means of shutting off or reducing the energy
used during periods of non-use or alternate uses of the building spaces or zones served by the system.”
ARC 2423 BUILDING SERVICES
PROJECT 1 CASE STUDY ANALYSIS AND DOCUMENTATION OF BUILDING SERVICES SYSTEM 91 | P a g e
Figure 7.8: Centrifugal fan
Figure 7.7: Air filter
7.4.1.1 AIR FILTER
An air filter is typically placed first in the AHU to filter incoming air from the return air duct and
outside air. Its main function is to provide clean dust-free air to building occupants.
7.4.1.2 BLOWER/FAN
A direct-driven or belt-driven centrifugal fan, depending on the required air quantity and
pressure, is commonly used in an AHU as it can move a small or large quantity of air efficiently. Its main
function is to propel air for distribution. There are two fans present in an AHU; fan that blows air
through the cooling coil and supply fan that blows air into the supply duct.
ARC 2423 BUILDING SERVICES
PROJECT 1 CASE STUDY ANALYSIS AND DOCUMENTATION OF BUILDING SERVICES SYSTEM 92 | P a g e
Figure 7.10: Vibrator insulator base
Figure 7.9: Heating and cooling coil
7.4.1.3 HEATING/COOLING COIL
Heating or cooling coil changes the supply air temperature and humidity level, depending on the
location and application. Heating coils are made up of copper tubes, with copper or aluminium fins to
aid heat transfer. The cooling coil is attached to the chilled water pipe linked from the chiller plant via a
blue pipe to remove heat and cools down the air.
7.4.1.4 VIBRATOR INSULATOR
The blowers in an air handler may create vibration and the large area of duct system would
transmit noise and vibration to the occupants of the building. To avoid this, vibrator isolators made up
of rubberized canvas-like material are usually inserted immediately before and after the air handler,
between the fan compartment and the rest of the AHU.
ARC 2423 BUILDING SERVICES
PROJECT 1 CASE STUDY ANALYSIS AND DOCUMENTATION OF BUILDING SERVICES SYSTEM 93 | P a g e
Figure 7.12: Ceiling mounted Fan Coil Unit installed
in studio room, KLPAC
Figure 7.13: FCU control panel
Figure 7.11: Damper
7.4.1.5 DAMPER
Dampers are necessary to control the ratio of fresh air and recycled air while exhausting part of
the recycled air. When the air sensor detects more than 500pm carbon dioxide in the return air from the
room, the system will activate automatically and the damper will open and intake fresh air from the
outside to refresh the air inside the building.
According to MS 1525 code 8.4.4.2, Off-hour control
“ Outdoor air supply and exhaust systems should be provided with motorised or gravity dampers or
other means of automatic volume shut-off reduction during period of non-use or alternate use of the
spaces served by the system.”
7.4.2 FAN COIL UNIT (FCU)
ARC 2423 BUILDING SERVICES
PROJECT 1 CASE STUDY ANALYSIS AND DOCUMENTATION OF BUILDING SERVICES SYSTEM 94 | P a g e
Figure 7.14: Locations of FCU at ground floor, KLPAC
Figure 7.15: Ducting with opening provided Figure 7.16: Air duct
Fan coil unit (FCU) system is similar to AHU but in a smaller scale and the fan speed can be
controlled. FCUs are more economically installed due to their simplicity and are normally used for
smaller spaces. In KLPac, FCUs are ceiling mounted in the bistro and bar, studios, offices, conference
rooms, shops and lobby area. The control panels are located specifically in the spaces where the FCUs
are installed.
According to MS 1525 code 8.4.4.1, Off-hour control
“ACMV system should be equipped with automatic controls capable of accomplishing a reduction of
energy use for example through equipment shutdown during periods of non-use or alternative use of
the spaces served by the system.”
7.4.3 DUCTWORK
ARC 2423 BUILDING SERVICES
PROJECT 1 CASE STUDY ANALYSIS AND DOCUMENTATION OF BUILDING SERVICES SYSTEM 95 | P a g e
Figure 7.17: Ducting systems at ground floor, KLPAC
Air ducts distribute air from AHU to the rooms that need to be air-conditioned and blowers are
installed within the ducts to aid in circulating the air. In KLPac, the ducts used are made of carbon steel
and internally insulated with foil, thus making sure that the air remains cool when being transferred to
the diffuser. Most of the air ducts are exposed and has openings provided for maintenance work.
According to MS 1525 code 8.6, Air handling duct system insulation
“All ducts, plenums and enclosures installed in or on buildings should be adequately insulated to prevent
excessive energy losses. Additional insulation with vapour barriers may be required to prevent
condensation under some conditions.”
ARC 2423 BUILDING SERVICES
PROJECT 1 CASE STUDY ANALYSIS AND DOCUMENTATION OF BUILDING SERVICES SYSTEM 96 | P a g e
Figure 7.18: Air diffuser at lobby area, KLPac Figure 7.19: Air diffuser in green room, KLPac
Figure 7.20: Air grille behind seating in main performing stage, KLPAC
MECHANICAL VENTILATION
7.4.4 SUPPLY AIR DIFFUSER/GRILLE
ARC 2423 BUILDING SERVICES
PROJECT 1 CASE STUDY ANALYSIS AND DOCUMENTATION OF BUILDING SERVICES SYSTEM 97 | P a g e
Figure 7.22: Exhaust air grille at ground floor corridor Figure 7.23: Exhaust air grille at fire pump room
Figure 7.21: Sectional drawing of seating area showing fresh air distribution through air grille in main
performing stage, KLPAC
Diffusers are located at the edge of the ductwork where the supply air is released into the room.
They do not require any generation of power and create low-velocity air movement in occupied rooms
in any desired directions while producing the minimum amount of noise. Most of the diffusers in KLPac
are rectangular or circular air diffusers and are either exposed in the open or concealed in ceilings.
However in the main performing stage, supply air grilles were installed behind the seats to evenly
distribute air inside the large area.
7.4.5 RETURN AIR GRILLE/FAN
ARC 2423 BUILDING SERVICES
PROJECT 1 CASE STUDY ANALYSIS AND DOCUMENTATION OF BUILDING SERVICES SYSTEM 98 | P a g e
Figure 7.24: Exhaust fan at lift control room
Return air grille or functions to carry air back to designated AHU rooms. It is covered with
grillwork to cover the duct behind it and avoid big objects from entering the duct and damaging the
AHU. Filters are installed behind the grille to trap pollutant or dust to reduce maintenance cost. In
KLPac, the air grilles are mounted on top parts of walls.
In addition, they also function like a pump; in KLPac, it is installed in warm spaces containing
equipment that generates heat such as the fire pump room and the lift control room. These air grilles or
fan are placed under timer to suck out warm air every couple of hours to prevent overheating.
According to MS 1525 code 8.4.5, Mechanical ventilation control
“Each mechanical ventilation system (supply and/or exhaust) should be equipped with a readily
accessible switch or other means for shut-down or volume reduction when ventilation is not required.
Examples of such devices would include timer switch control, thermostat control, duty cycle
programming and CO/CO2 sensor control.”
ARC 2423 BUILDING SERVICES
PROJECT 1 CASE STUDY ANALYSIS AND DOCUMENTATION OF BUILDING SERVICES SYSTEM 99 | P a g e
Figure 7.25: Fire exhaust fan outside of KLPac Figure 7.26: Fire exhaust vents at ceiling of main
performing stage, KLPac
7.4.6 FIRE EXHAUST FAN/VENTS
In KLPac, fire protection is important as it is a public building with a constant dense number of users
especially during practice or performance hours. At the main performing stage, automatic fire exhaust
vents are installed that will detect and open to release heat, smoke and gas in case of fire emergency.
Exhaust fans connecting to smoke exhaust ductwork are used to remove smoke from buildings to enable
emergency evacuation.
ARC 2423 BUILDING SERVICES
PROJECT 1 CASE STUDY ANALYSIS AND DOCUMENTATION OF BUILDING SERVICES SYSTEM 100 | P a g e
Figure 7.27: Outdoor air-cooled chillers, KLPAC
Figure 7.28: Control panel for chiller
AIR-COOLED CHILLED WATER SYSTEM
7.4.7 AIR-COOLED CHILLER
Air-cooled chiller is a refrigerant system that removes heat contained in chilled water. The
chiller contains an evaporator, compressor, expansion valve and condenser. The cycle begins in the
evaporator where a liquid refrigerant flows over the evaporator tube bundle, absorbing heat from the
chilled water circulating through and evaporates. After that, the compressor draws the refrigerant
vapour out of the evaporator, and ‘pumps’ it to the condenser, raising the vapour’s pressure and
temperature. The refrigerant condenses in the condenser tubes, giving up its heat to the cooling air. The
high pressure liquid refrigerant from the condenser then passes through the expansion device, reducing
its pressure and temperature as it re-enters the evaporator. The refrigerant again flows over the chilled
water coils, absorbing more heat and completes the cycle.
ARC 2423 BUILDING SERVICES
PROJECT 1 CASE STUDY ANALYSIS AND DOCUMENTATION OF BUILDING SERVICES SYSTEM 101 | P a g e
Figure 7.29: Schematic diagram of air-cooled chilled water system
KLPac utilizes two air-cooled chillers which are placed outside at the back of the building as the
operation of chillers are noisy and may disturb the users in the building. The chillers are connected to
each AHU to circulate chilled water and control panels are provided for manual adjustment. KLPac
usually uses only one chiller most of the time to reduce energy consumption, except when there is a
need for high cooling load, thus both chillers will be used.
According to MS 1525 code 9.6.1, Central plant
“In buildings where chillers are used, the EMS should be used to issue start/stop commands to the
chiller control panel. The start/stop commands should be based on:
a) Time schedule to match occupancy patterns; and
b) Selection of the most energy efficient combination of chillers to satisfy building load, this is
known as chiller sequencing (chiller optimisation programming).
Chillers are typically supplied with microprocessor based control panels. Where possible, a high level of
data interface between the chiller control panel and the EMS should be provided.”
Chilled water
Warm/used
water
AHU
AHU
CONDENSER COIL
CONDENSING
FANS
COMPRESSOR
EVAPORATOR
EXPANSION VALVE
ARC 2423 BUILDING SERVICES
PROJECT 1 CASE STUDY ANALYSIS AND DOCUMENTATION OF BUILDING SERVICES SYSTEM 102 | P a g e
Figure 7.30: Chilled water pump
Figure 7.31: Chilled water pipe from chillers connecting to AHU
7.4.8 CHILLED WATER PUMP
The chilled water pump returns warm chilled water to the chiller, and also pumps chilled water to every
AHU room.
7.4.9 PIPING SYSTEM
The pipes from chiller are connected to the cooling coil in AHU. The pipe brings in cool water
that will cool the air going through the AHU.
According to MS 1525 code 8.5, Piping insulation
“All piping installed to serve building and within building should be adequately insulated to prevent
excessive energy losses. Additional insulation with barriers may be required to prevent condensation
under some conditions.”
ARC 2423 BUILDING SERVICES
PROJECT 1 CASE STUDY ANALYSIS AND DOCUMENTATION OF BUILDING SERVICES SYSTEM 103 | P a g e
7.5 FINDINGS AND ANALYSIS
1. Energy Management System (EMS)
According to MS 1525 code 9.6.2, Air handling units (AHU)
“Next to the chiller, the air handling units are typically the largest consumers of energy in the building.
The EMS should have the facility to start and stop the air handling units based on a time schedule. For
further energy savings, the cooling coil valve of the air handling units should be controlled by an
intelligent controller which integrates with the EMS.”
The AHU in KLPac is manually turned on and off by the workers, therefore the AHU will only
open during office hours and performance hours. This is to prevent waste of energy.
2. Constant Air Supply
UBBL SECTION 41 - MECHANICAL VENTILATION AND AIR-CONDITIONING
“2. Any application of the waiver of the relevant by-laws shall only be considered if in addition to the
permanent air-conditioning system there is provided alternative approved means of ventilation the air-
conditioning enclosure, such that within half an hour of the air-conditioning system failing, not less than
the stipulated volume of fresh air specified hereinafter shall be introduced into the enclosure during the
period when the air-conditioning system is not functioning.”
Since KLPac relies heavily on air-conditioning for its main performing stage, a GenSet functions
to supply electricity for the AHU in case of sudden electricity cut-off during on-stage performances. In
cases of air-conditioning failure, ceiling fans are provided to allow ventilation within a space.
3. Temperature Control
According to MS 1525 code 8.4.1, Temperature control
“Each system should be provided with at least one thermostat for the regulation of temperature. Each
thermostat should be capable of being set by adjustment or selection of sensors over a minimum range
of between 22C to 27C.”
The ACMV in KLPac consists of a thermostat at the top floor that measures the temperature of building.
Hence the temperature is always at an average of 23C.
ARC 2423 BUILDING SERVICES
PROJECT 1 CASE STUDY ANALYSIS AND DOCUMENTATION OF BUILDING SERVICES SYSTEM 104 | P a g e
7.6 CONCLUSION
In conclusion, using a centralized air-conditioning system is appropriate for KLPac due to its
large scaled spaces and dense number of users. The components of air-conditioning such as AHU,
ductwork and chillers were placed at appropriate areas for noise reduction and given suitable
considerations such as insulation. This aids the system to run smoothly without disturbing the users and
reduce wastage of energy at the same time.
In addition, the building complies with the by-laws in terms of energy management system,
constant air supply and temperature-control. This has contributed to the comfort and efficiency of the
air-conditioning system and the ability to maintain thermal comfort throughout the building.
ARC 2423 BUILDING SERVICES
PROJECT 1 CASE STUDY ANALYSIS AND DOCUMENTATION OF BUILDING SERVICES SYSTEM 105 | P a g e
8.0 ELECTRICAL SUPPLY SYSTEM by TEH GIE ENG (IVANKA)
8.1 INTRODUCTION
The electric power system is a network of electric components used to supply, transmit and use electric
power. This system provides an overview of electrical power distribution systems commonly
encountered in residential, commercial, and industrial buildings. 

In Peninsular Malaysia, electricity is supplied by the national grid of Tenaga National Berhad (TNB), via
high- voltage electric power transmissions. Buildings such as the Kuala Lumpur Performing Arts Centre
(KLPAC) receives power from the National Grid directly. Most electricity in Malaysia is generated by
hydroelectric dams.
Figure 8.1 shows how electricity is generated by hydroelectric dams
This chapter of the report would be discussing the common system voltages used in electrical power
distribution system and the connection of electrical loads and grounding.
Tenaga Nasional Berhad (TNB) Electricity System
Tenaga Nasional Berhad (TNB), a public listed company registered under Companies Act 1965, is entitled
with the following responsibilities:
• To generate, transmit, distribute and sell energy to consumer throughout Peninsular Malaysia.
• To plan, install, operate and maintain electricity installation for the generation, transmission and
distribution of electricity.
To achieve the above objectives, the company owns and operates power plants and the National Grid,
all of which are installed for the purpose mentioned above. They also provide consumer service centers,
call management centers, substations and administrative offices throughout Peninsular Malaysia.
TNB’s core activities are in generation, transmission and distribution of electricity which are being
handled by 3 Divisions:
ARC 2423 BUILDING SERVICES
PROJECT 1 CASE STUDY ANALYSIS AND DOCUMENTATION OF BUILDING SERVICES SYSTEM 106 | P a g e
• Generation Division
• Transmission Division • Distribution Division
The transmission voltage networks are 500kV and 132kV, whilst distributions are 33kV, 22kV, 11kV,
6.6kV and 415/240 volts.
8.2 LITERATURE REVIEW
TNB supplies the electricity to the building by delivering from the power plant to the transformer room and across
the transmission tower to the sb-power station nearby the building area before transmitting to the building.
Figure 8.2 shows how electricity is transmitted via cables form the power
Low Voltage
i. Single-phase, two-wire, 240V, up to 12 kVA maximum demand
ii. Three-phase, four-wire, 415V, up to 45 kVA maximum demand
iii. Three-phase, four-wire, C.T. metered, 415V, up to 1,000 kVA
Medium Voltage & High Voltage
i. Three-phase, three-wire and 11 kV for load of 1,000 kVA maximum
demand and above.
ii. Three-phase, three-wire, 22kV or 33kV for load of 5,000 kVA maximum demand
and above
iii. Three-phase, three-wire, 66kV, 132kV and 275kV for exceptionally large load of above 25
MVA maximum demands.
Firstly, electricity will be transferred from the power plant to the transmission substation. To overcome
the resistance of the transmission lines, the step up transformer in the transmission substation will
increase the incoming power from the power plant. High current is then transmitted to the substation
through the high voltage transmission lines.Using electrical pylons along the distribution grid system,
the current reaches the substations at different locations where the current is brought down and
ARC 2423 BUILDING SERVICES
PROJECT 1 CASE STUDY ANALYSIS AND DOCUMENTATION OF BUILDING SERVICES SYSTEM 107 | P a g e
distributed to the facilities of the area surrounding the substation.
As the incoming voltage from the pylons is too high for domestic uses, the current has to be brought
down from the substation to the High Tension Room, where the current is split and fed to different step
down transformers in order to lower the voltage for different usage in buildings. The lower current is
then transferred to Low Voltage Room (LV Room). This room contains the main switches of different
facilities of the building and from here, each panel receives their respective currents from the
transformer. Air circuit breakers are also normally installed in this room to prevent excessive power
surges from harming the electrical appliances.
From the Low Tension Room, the current from the main switch board is connected to the risers located
on every floor of the building with the help of bus ducts. In each of the riser rooms, a switch board is
installed to tap the current off the bus duct and transfer them further to distribution boards. High
voltage facilities such as elevators, and Air Handling Unit (AHU) normally draw their current from the
side switch board and whereas the other electrical appliances which require small voltage are to draw
their current from the distribution board. A meter is placed for different tenants and is usually found
near the riser rooms.
The equipment installed in the building are normally known as electrical distribution equipment. While
designing the distribution system, one must have done a thorough analysis and calculations on the
amperage load and short circuit values of each individual part of the distribution system in order to
achieve an efficient electric distribution system.
ARC 2423 BUILDING SERVICES
PROJECT 1 CASE STUDY ANALYSIS AND DOCUMENTATION OF BUILDING SERVICES SYSTEM 108 | P a g e
8.2.1 COMPONENTS OF ELECTRICAL SYSTEM WITHIN THE BUILDING
Transformer
Figure 8.3 An outdoor transformer
Transformer is a device that transfer alternating current from one circuit to one or more corresponding
circuits, usually with an increase (step-up transformer) or decrease (step-down transformer) of voltage.
The input current is fed to a primary winding, the output being taken from a secondary winding or
windings inductively lined to the primary.
Low Voltage Switch
Figure 8.4 Low Voltage Switches
The use of low voltage switch room is utilized in which all the incoming power supplies divide into
separate circuits which is then managed and safeguarded. The power will be divided into a number of
ARC 2423 BUILDING SERVICES
PROJECT 1 CASE STUDY ANALYSIS AND DOCUMENTATION OF BUILDING SERVICES SYSTEM 109 | P a g e
functional units which covering all the electrical and mechanical constituents.
Genset
Figure 8.5 Generator
Gensets would normally will be installed in offices, commercial buildings, shopping mall and other large
scaled buildings. This is because genset will automatic start to generate and supply emergency electric
power when the main electrical distribution of electricity is disrupted.
Sub-switchboard and Distribution board
Figure 8.6 Sub Switchboard Figure 8.7 Distribution Board
ARC 2423 BUILDING SERVICES
PROJECT 1 CASE STUDY ANALYSIS AND DOCUMENTATION OF BUILDING SERVICES SYSTEM 110 | P a g e
The use of sub-switchboard and distribution board are components of an electrical supply system which
divides the electrical power into subsidiary circuits while provides a protective fuse for each circuit.
Substation
Figure 8.8 Substation
A substation is a part of an electrical generation, transmission, and distribution system. Substations
transform voltage from high to low, or vice versa. substations hold several important functions in order
for the electrical system to be completed. Between the generating station and consumer, electric power
may flow through several substations at different voltage levels.
Uninterruptible Power Supply (UPS)
Figure 8.9 UPS
An uninterruptible power supply is an electrical apparatus that provides emergency power when the
main power fails to provide electric. UPS been called as the emergency power system or standby
generator because it helps in protecting some other important electrical equipment when an
unexpected power disruption occurs.
ARC 2423 BUILDING SERVICES
PROJECT 1 CASE STUDY ANALYSIS AND DOCUMENTATION OF BUILDING SERVICES SYSTEM 111 | P a g e
8.3 CASE STUDY: KUALA LUMPUR PERFORMING ARTS CENTRE (KLPAC)
8.3.1 SCHEMATIC DIAGRAM OF ELECTRICAL FLOW IN KLPAC, KUALA
ARC 2423 BUILDING SERVICES
PROJECT 1 CASE STUDY ANALYSIS AND DOCUMENTATION OF BUILDING SERVICES SYSTEM 112 | P a g e
8.3.2 ELECTRICAL SYSTEM IN KLPAC
8.3.2.1 TNB HIGH TENSION (HT) ROOM
Figure 8.10 shows the site plan of KLPAC with the Sub-station indicated. Figure 8.11 Floor Plan of the TNB
Substation
Figure 8.12 The TNB HT Room is located on the left
From Figure 8.10, the TNB Substation is located at the northwest direction of the site plan. A service
road in front of it allows accessibility by authorised personnel, such as which is easily accessible by the
authorized personnel, such as the electrical engineers from TNB.
In the substation, the TNB HT Room is located as the first room (see fig 8.11). Along with this room are
the Consumer HT Room and Transformer & LV Switch Room which are located right next to it.
ARC 2423 BUILDING SERVICES
PROJECT 1 CASE STUDY ANALYSIS AND DOCUMENTATION OF BUILDING SERVICES SYSTEM 113 | P a g e
Inside the HT Room, a transformer supplies 11 KV of electricity to the Consumer HT Room before being
transferred to power the entire building. This room prohibits entry except those authorized by TNB.
8.3.2.2 CONSUMER HIGH TENSION (HT) ROOM
Figure 8.10 shows the site plan of KLPAC with the Sub-station indicated. Figure 8.11 Floor Plan of the TNB
Substation
The 11 kVA high voltage current from the TNB HT Room is then stepped down to 415V and 240V via the
transformers in the Consumer HT Room (see fig 8.11) before transferring the the electricity to the
consumer main switchboards located next door.
a) SAFETY
Figure 8.13 Transformers found generally in Consumer HT Room
As we were not allowed to enter the Consumer HT Room, we could only inquire about the electrical
ARC 2423 BUILDING SERVICES
PROJECT 1 CASE STUDY ANALYSIS AND DOCUMENTATION OF BUILDING SERVICES SYSTEM 114 | P a g e
components inside and the safety features installed.
Alongside the transformers, there are also fire safety equipment and switch panels for the transformer.
Rubber mats are placed in front of the panels for safety. An exhaust fan is installed to prevent
overheating of the transformers as well as to maintain the coolness of the room temperature.
Each transformer is surrounded by a protective metal cage. Copper wires run along the wall around the
room and into the ground. An earthing cable is installed to absorb the currents and spew them out of
the transformer in case of emergency.
Figure 8.14 Pressurized CO2 tanks
Should a fire break out in the HT Consumer Room, the smoke detector inside the room will trigger the
alarm and send the signal to the control room. Simultaneously, the transformer will shut down
immediately and Carbon Dioxide (CO2) will be released from the pressurized CO2 tanks nearby the
transformer to the room itself as CO2 controls the fire from spreading continuously.
8.3.2.3 TRANSFORMER AND LOW VOLTAGE (TX & LV) SWITCHGEAR
The stepped down current from each transformer is transferred to their own respective Main Switch
Boards (MSB) in the LV Room. In KLPAC, there are 2 MSBs for the landlord and tenant.These panels are
the main power switches of the entire building. Similarly, these panels are set back from the wall to
allow maintenance from the engineers.
ARC 2423 BUILDING SERVICES
PROJECT 1 CASE STUDY ANALYSIS AND DOCUMENTATION OF BUILDING SERVICES SYSTEM 115 | P a g e
Figure 8.15 Ground Floor Plan with LV Room indicated Figure 8.16 Location of LV Room
Figure 8.17 Schematic Drawing for MSB 1 Figure 8.18 Schematic Drawing for MSB 2
MSB 1 supplies stepped down current to the Landlord to power the audio and lighting for the common
spaces such as the Experimental Theatre, Kitchen, Bistro, Kitchen, Stage and etc ( see Fig. 8.17). MSB 2
supplies stepped down current to power the air conditioner for all four floors (see Fig. 8.18).
Figure 8.19 Main Switchboards for Landlord and Tenant Figure 8.20 shows the TNB Check Meter
The TNB Check Meter in the TX & LV Room shows the electrical usage of both the landlord and the
tenant.
ARC 2423 BUILDING SERVICES
PROJECT 1 CASE STUDY ANALYSIS AND DOCUMENTATION OF BUILDING SERVICES SYSTEM 117 | P a g e
a) AIR CIRCUIT BREAKER (ACB)
Figure 8.21 ACB installed in the LV Panel Figure 8.22 An ACB unit
The International Electrotechnical Commission (IEC) Standard IEC 60947-2 defines a circuit breaker as
“a mechanical switching device, capable of making,carrying and breaking currents
under normal circuit conditions and also making, carrying for a specified time and
breaking currents under specified abnormal circuit conditions such as those of short-
circuit.”
There is an ACB panel attached to each panel in LV Room (Figure 8.21). This panel contains the breakers
of the circuit in the room. When high surge of current issued from the transformers and enters to the LV
Room suddenly, these breakers will use high density air to break the circuit from causing any
unnecessary damage to the main switch boards. One of the differences between ACB and fuse is that
breakers are used for high voltage current. Besides, breakers break the circuits faster than the fuses in
order to prevent damage to the appliances when high current passes through them. In other words,
fuses are normally used in lower voltage electrical equipment, such as Distribution Board (DB). In
addition to that, fuses can only be used once and would need to be replaced once it blows. However
breakers can be reset a finite number of times as each break causes a bit of damage.
There are many types of breakers and the usage of breakers in different circuits may refer to the density
or the load of electric current.
ARC 2423 BUILDING SERVICES
PROJECT 1 CASE STUDY ANALYSIS AND DOCUMENTATION OF BUILDING SERVICES SYSTEM 118 | P a g e
b) MOLDED CASE CIRCUIT BREAKER (MCCB)
An MCCB functions as a protection for circuits with low voltage distribution systems. It protects connect
devices agains overloads and short circuits. It is commonly used in panelboards and switchboards where
they are fixed mounted. In KLPAC, MCCB is used in both MSBs as well as in most of the SSBs (Sub- Switch
Boards).
Figure 8.23 MCCBs installed in the LV panel shown on schematic.
MCCBs are available with special features which make them suitable for the protection of motor circuits
when used in conjunction with a separate overload protection device. When used in such applications,
they are often referred to as motor circuit protectors (MCPs).
c) BUS SYSTEM
The bus system allows users to control and monitor the MSB from the computer which is at the control
room/ security room. A tray system will carry the electric current from the LV room to the different
facilities such as the SUb-Switch Board (SSB) and Distribution Boards (DB) at each floor.
KLPAC uses the Single Bus System. It is the simplest and most cost effective system, whereby all the
feeders and transformer bay are connected to one single bus as shown. The advantages of the single bus
system includes its simple design as well its convenience to operate. However one major difficulty of
ARC 2423 BUILDING SERVICES
PROJECT 1 CASE STUDY ANALYSIS AND DOCUMENTATION OF BUILDING SERVICES SYSTEM 119 | P a g e
this type of arrangement is that maintenance of equipment of any bay cannot be possible without
interrupting the feeder or transformer connected to that bay.
Figure 8.24 Example of a Single Bus System
The indoor 11KV switchboards usually apply single bus bar arrangement. In KLPAC, this can be seen in
the figure below, which shows the schematic of drawing of the 11KV Switchboards.(see Fig 8.25)
Figure 8.25 Single Bus Bar Arrangements for both MSBs in the LV Room
In KLPAC, Mineral Insulated Copper Clad (MICC) Cables are used for the bus duct system within the
building. The wire connects the current from the Genset Room (see 8.3.2.4) to LV Room and also wiring
from LV Room to essential facilities for fire emergency, such as smoke screen fans, exhaust fans and lifts
because MICC wires are good in resisting the heat produced when the current passes through. Besides,
the copper wires, which have high melting point, will hold and stay in shape for an average time of an
hour should a fire occur.
ARC 2423 BUILDING SERVICES
PROJECT 1 CASE STUDY ANALYSIS AND DOCUMENTATION OF BUILDING SERVICES SYSTEM 120 | P a g e
8.3.2.4 GENSET ROOM
The purpose of the Genset Room is to provide electricity to the building in case of a breakdown in power
supply from the TNB.
Figure 8.26 Ground Floor Plan with Genset Room indicated Figure 8.27 Position of Genset
Room
In KLPAC, the Genset is responsible to supply electricity only to the Air-Cond Panels (ACPs) at the
Experimental Theatre and the Main Stage as performances is the priority of KLPAC and could not afford
to be disrupted (see fig 6.28). Electricity from the generator is not supplied to the tenant’s offices due to
shortage of electricity. Also, it also supplies electricity to the fire-fighting system should a fire break out
and there is a cut in electricity (see fig 6.27) The generator used in KL PAC is by Perkins (see fig 6.26) and
it is started by a lithium cadmium battery and uses diesel to fuel the electricity production.
ARC 2423 BUILDING SERVICES
PROJECT 1 CASE STUDY ANALYSIS AND DOCUMENTATION OF BUILDING SERVICES SYSTEM 121 | P a g e
Figure 8.28 Perkins Generator
Figure 8.29 Schematic Drawing of power supply
by the genset to the fire fighting system
Figure 8.30 Schematic Drawing of power supply
by the genset to the air conditioner panels
a) LITHIUM CADMIUM BATTERY
The Generator requires the lithium cadmium battery for a spark of electricity in order to run the system.
It is placed in close proximity to the machine.
ARC 2423 BUILDING SERVICES
PROJECT 1 CASE STUDY ANALYSIS AND DOCUMENTATION OF BUILDING SERVICES SYSTEM 122 | P a g e
Figure 8.31 Litium Cadmium Battery found beside the generator
b) DIESEL FUEL
Figure 8.32 Diesel Tank
Once the engine is started, diesel fuel which is placed at a higher altitude than the generator to flow
down, is used by the engine to undergo the process of combustion to power up the dynamo. The
dynamo will then generate an electric field and current that is generated will be brought to the MSBs in
the LV room next door before being transferred to the common areas.
ARC 2423 BUILDING SERVICES
PROJECT 1 CASE STUDY ANALYSIS AND DOCUMENTATION OF BUILDING SERVICES SYSTEM 123 | P a g e
C) SMOKE CHAMBER
Figure 8.33 Smoke Chamber
The CO2 produced by the generator is channeled out from the exhaust to the outside via a smoke
chamber. The warning indicator lights outside the Genset Room determines whether the room is safe to
be entered. Should it turn red, it indicates that a fire has broke out inside the room.
d) SAFETY
There are also pressurized CO2 tanks and lights to be found inside and outside the Genset Room
respectively , with their function are same with the those at the TNB HT Room, Consumer HT Room and
LV Room.
e) MAINTENANCE
Maintenance should be done on the generator. Every month it should be tested with and without load
to ensure the performance of the generator in the light of an electricity shortage.
ARC 2423 BUILDING SERVICES
PROJECT 1 CASE STUDY ANALYSIS AND DOCUMENTATION OF BUILDING SERVICES SYSTEM 124 | P a g e
8.3.2.5 ELECTRICAL ROOM
Electrical rooms are located at the same position at each floor of the building, from Ground Floor to the
3rd Floor.
Figure 8.34 Ground Floor Plan with Electrical Room indicated. Figure 8.35 Localtion of Electrical
Room
The purpose of this room is the distribute the electricity channelled from the LV room to the users at
each floor.
The main reason behind the allocation of this room at each floor is to provide electricity channeled from
LV Room to the users at each floor. In order to run the electricity from Ground floor to the 3rd Floor, a
series of cable trunking system is applied. Bus duct are installed and runs the vertical length of every
riser, as shown in Figure 6.34 and Fig 6.45. It carries the main power supply vertically to each electric
room at every floor and is tapped off at the Sub Switch Board (SSB) (see 8.3.2.5.a).
ARC 2423 BUILDING SERVICES
PROJECT 1 CASE STUDY ANALYSIS AND DOCUMENTATION OF BUILDING SERVICES SYSTEM 125 | P a g e
Figure 8.36 Trunking System Figure 8.37 Sub Switchboards inside the
Electrical Room with trunking and tray
system
a) SUB SWITCH BOARD (SSB)
Appliances which require high voltage such as lifts tap electricity directly from the SSB whereas low
voltage appliances such as lightings are powered up by Distribution Boards (DBs).
Figure 8.38 Sub Swithboard for the lift
ARC 2423 BUILDING SERVICES
PROJECT 1 CASE STUDY ANALYSIS AND DOCUMENTATION OF BUILDING SERVICES SYSTEM 126 | P a g e
8.3.2.6 TENANT UNITS
In KL PAC, the tenant units for each floors are different due to the nature and purpose of each space.
a) DISTRIBUTION BOARD (DB)
From the meter, the electricity will reach DB (Figure 8.40), which is located outside electric room. This
DB functions as an extension and power control for areas far away from the risers.
Figure 8.39 Schematic drawing of Distribution Board for the Experimental Theatre Figure 8.40 A Distribution Board.
In the DBs at KL PAC, MCCB and Earth Leakage Circuit Board (ELCB) for leaking currents to be earthed.
The usage of DBs is for easier distribution of power supply. The final readings for the tenant are divided
into two different amperes, under 20A (lighting) and 12A (electrical appliances).
b) Maintenance
For this reason, these units should be correctly rated, regularly tested, and never bypassed. The cause of
a tripped breaker or blown fuse should also always be investigated prior to a reset to avoid possible
damage to equipment or appliances and electrical shock.
ARC 2423 BUILDING SERVICES
PROJECT 1 CASE STUDY ANALYSIS AND DOCUMENTATION OF BUILDING SERVICES SYSTEM 127 | P a g e
8.3.2.7 WIRING
Trunks and tray systems of wiring are used to connect the power source to every part of the
building.
The thickness of wiring always varies depending on the voltage it carries. Higher voltage will
require thicker wire to reduce resistance and thicker insulation for safety purposes.
8.3.2.8 EARTHING
The purpose of earthing is for the safety of the human life, buildings as well as equipment.Lightning, line
surges and unintentional contact with higher voltage lines can cause the transmision of high voltages to
the electrical distribution system. Thus the earthing allows for minimal damages to the system.
Figure 8.41 Front Elevation of KLPAC with Earth Pit indicated.
A lighting conductor is installed across the roof of KL PAC to
transmit the excess high voltages should the building be struck by
lighting . The conductor will carry the high voltages immediately to
the earth pit whereby the electricity will be be earthed via the
earthing rod (see fig 6.39) and is neutralised.
Figure 8.42 Detail Drawing of Earth Pit
ARC 2423 BUILDING SERVICES
PROJECT 1 CASE STUDY ANALYSIS AND DOCUMENTATION OF BUILDING SERVICES SYSTEM 129 | P a g e
8.4 CONCLUSION
According to Uniform Building By Laws (UBBL) 1984, there are some laws and regulations that needed to
be fulfilled by the building. The by-laws are as stated below:-
Section 240.
(1) Every floor or zone of any floor with a net area exceeding 929 square meters shall be provided with
an electrical isolation switch located within a staircase enclosure to permit the disconnection of
electrical power supply to the relevant floor or zone served.
(2) The switch shall be of a type similar to the fireman's switch specified in the Institution of Electrical
Engineers Regulations then in force.
Section 241.
In places where there are deaf persons and in places where by natire of the occupancy audible alarm
system is undesirable, visible indicator alarm signals shall be incorporated in addition to the normal
alarm system.
Whereas according to Electricity Supply Act 1997 [Act 447] P. U. (A) 38/94 Electricity Regulations 1997, it
is listed that:-
Regulation 15, Apparatus, conductor, accessory, etc.
Any conductor or apparatus that is exposed to the weather, water, corrosion, under heating or use in
inflammable surroundings or in an explosive atmosphere shall be constructed or protected in such a
manner as to prevent danger.
Regulation 16, Switch, switch fuse, fuse switch, circuit breaker, contractor, fuse, etc. (3) Any fuse or
circuit breaker shall be
(a) constructed and arranged in such a manner so as to break the current when it danger; and exceeds
a given value for such a sufficient time to prevent
(b) constructed guarded or placed in a manner as to prevent danger or overheating, arcing or from the
scattering of hot metal or other substances or enclosure.
Based on the laws and regulations stated above, KL PAC has fulfill all of them via the installation of
circuit breakers and safety precautions inside each electric rooms. Hence, it is said that KL PAC has
achieved all the requirements regarding to electricity in UBBL 1984 and Electricity Supply Act 1997.
ARC 2423 BUILDING SERVICES
PROJECT 1 CASE STUDY ANALYSIS AND DOCUMENTATION OF BUILDING SERVICES SYSTEM 130 | P a g e
9.0 MECHANICAL TRANSPORTATION SYSTEM by LOO MEI CHUEN
9.1 INTRODUCTION
This research discusses about the mechanical transportation
system in KLPAC and this case study is compiled with details on
mechanical transportation at KLPAC, referencing conformance to
UBBL Mechanical Transportation System Requirements. It starts
with a literature review, explaining the mechanical transportation
and elaborates on the type of mechanical transportation. The
research concludes with an analysis and recommendations for
improvements to mechanical transportation system at KLPAC.
In KLPAC, Dover Brand elevators were used. Dover Elevators
(Malaysia) Sdn Bhd has the aim of supplying, installing and
maintaining high quality Dover Brand of elevators to ever
increasing demand of high rise buildings such as the KLPAC for
various usages. Dover Elevator System Inc., had been very flexible
and forward looking to allow the highly sophisticated controller
and traction machine of proprietary designs, to be manufactured
in Malaysia, South Korea and China to make the products more
cost effective in order to remain competitive in the market. It has
to be reiterated that the aforementioned products are of highest
quality standards bearing the brand name of DOVER.
Figure 9.1.1 Picture of the Passenger Lift in KLPAC
Figure 9.1.2 Pictures given by the Dover Company
ARC 2423 BUILDING SERVICES
PROJECT 1 CASE STUDY ANALYSIS AND DOCUMENTATION OF BUILDING SERVICES SYSTEM 131 | P a g e
9.2 LITERATURE REVIEW
Mechanical transportation in a building, usually elevator and escalator are advance vertical and
horizontal transportation tools for human to travel between floors. Not only it helps reducing energy, it
saves a lot of time.
In building with more than four storeys, a mechanical transportation system should be implemented
with the introduction of an elevator. An elevator is a type of vertical transport equipment that efficiently
moves people or goods between floors of a building. It is introduced to bring convenience to the users
by allowing them access varies levels with a push of a button. As a bonus addition, elevators also
provide the most convenience as a transport for infirm and mobility impaired people to travel between
floors.
For high-rise buildings, there is different elevator zoning to increase efficiency by reducing wait time. For
mid-rise building, zooning is usually not required as the wait time is lower than high-rise buildings. The
efficiency also depends on the speed and capacity of the elevator. Different type of elevator has
different function and must be choose carefully before installing to achieve efficiency. For a better
quality of performance, lift lobby and interior of the elevator car can be designed to improve user’s
satisfaction. Besides that, factors such as the smoothness of ride, degree of noise and accuracy of floor
leveling also affects the quality of ride.
Another option of mechanical transportation system is the escalator which is most commonly used in
shopping malls, airports, commercial buildings, or in some high buildings because it is an ideally suited
transportation system for high column applications. However, escalator is not always practical for high
rise buildings as it may consume a lot of valuable floor space.
In KLPAC, there is only one type of mechanical vertical transportation found in the building, which is the
elevator. There are few types of elevators that can be found for example, Passenger Elevator, Service
Elevator and Loading Bay Elevator.
ARC 2423 BUILDING SERVICES
PROJECT 1 CASE STUDY ANALYSIS AND DOCUMENTATION OF BUILDING SERVICES SYSTEM 132 | P a g e
9.3 TYPES OF ELEVATOR
There are two main types of elevators commonly used:
 Electric elevator
o Traction with machine room
o Machine-room-less (MRL) traction
 Hydraulic elevator
Traction elevator is lifted by ropes, which pass over wheel attached to an electric motor above the
elevator shaft. A counter weight makes the elevators more efficient by offsetting the weight of the car
and occupants so that the motor does not have to move as much weight.
Geared traction elevators have a gearbox that is attached to the motor, which drives the wheel that
moves the ropes. Whereas gear-less traction elevators have the wheel attached directly to the motor.
Machine Room-less (MRL) elevators are traction elevators that do not have a dedicated machine room
above the elevator shaft. The machine sits in the override space and is accessed from the top of the
elevator cab when maintenance or repairs are required. The control boxes are located in a control room
that is adjacent to the elevator shaft on the highest landing and within around 150 feet of the machine.
MRL elevators are comparable to geared traction elevators in terms of initial and maintenance costs, but
they have relatively low energy consumption compared to geared elevators.
Hydraulic elevators are supported by a piston at the bottom of the elevator that pushes the elevator up
as electric motor forces oil or another hydraulic fluid into the piston. The elevator descends as a valve
releases the fluid from the piston. The machine room is located at the lowest level adjacent to the
elevator shaft and this hydraulic elevator is suitable for goods lifting, hospital and old folk’s home.
ARC 2423 BUILDING SERVICES
PROJECT 1 CASE STUDY ANALYSIS AND DOCUMENTATION OF BUILDING SERVICES SYSTEM 133 | P a g e
9.4 CASE STUDY
9.4.1 DRAWINGS
Figure 9.4.1.1 Ground floor plan indicating the location of all the elevators in KLPAC.
Stairs are closely located to the elevators in case of emergency. Other than that, under minimum
standard of service, KLPAC fulfills the terms of maximum walking distance of 45m to the elevator lobby.
Passengers Lift
Service Lift
Loading Bay Lift
Entrance
Lift lobby
Stair
s
Passengers Lift
Stair
s
Passengers Lift
ARC 2423 BUILDING SERVICES
PROJECT 1 CASE STUDY ANALYSIS AND DOCUMENTATION OF BUILDING SERVICES SYSTEM 134 | P a g e
Figure 9.4.1.2 Figures show cross section of the hoistway for the elevator in KLPAC consisting some of the elevator components
ARC 2423 BUILDING SERVICES
PROJECT 1 CASE STUDY ANALYSIS AND DOCUMENTATION OF BUILDING SERVICES SYSTEM 135 | P a g e
Figure 9.4.1.3 Figure shows position of the Elevator Room Machine
ARC 2423 BUILDING SERVICES
PROJECT 1 CASE STUDY ANALYSIS AND DOCUMENTATION OF BUILDING SERVICES SYSTEM 136 | P a g e
Figures 9.4.1.4 Front elevation showing elevator components and their dimensions
Figures 9.4.1.5 Rough elevator machine room to shaft floor plan
ARC 2423 BUILDING SERVICES
PROJECT 1 CASE STUDY ANALYSIS AND DOCUMENTATION OF BUILDING SERVICES SYSTEM 137 | P a g e
9.4.2 ELEVATOR COMPONENTS
Figures 9.4.1.5 Schematic diagram showing the parts and components of a geared elevator system
(Source: http://www.electrical –knowhow.com/2012/04/elevators-types-and-classification-part.html)
In KLPAC, electrical elevator is used as mechanical transportation. The type of lift is geared traction
elevator where the elevator cars are computerized and controlled by control system which is located at
the roof top. The way it works is that the control system receives signal and the elevator cars are pulled
up by hoisting rope over a sheave and is powered by geared machine. The elevator car is balances by a
counterweight. Also, an electrically controlled brake is installed between the motor and the reduction
unit stops the elevator, holding the car at the desired floor level.
ARC 2423 BUILDING SERVICES
PROJECT 1 CASE STUDY ANALYSIS AND DOCUMENTATION OF BUILDING SERVICES SYSTEM 138 | P a g e
Figures 9.4.1.6 Passengers Lift
Figures 9.4.1.7 Pictures of COP (Car operating panel), ventilation hole inside the car and key hole to the shaft
Key hole to the shaft
Two panel center opening car door
Floor indicator
Lift call button
Type: Passenger Elevator
Model: Sgt 8-CO60-3
Capacity: 545KG/8 Persons
Speed: 60 MPM
Car Door: Two Panel Center Opening
Type: Passenger Elevator
Model: Sgt 8-CO60-3
Capacity: 545KG/8 Persons
Speed: 60 MPM
Car Door: Two Panel Center Opening
ARC 2423 BUILDING SERVICES
PROJECT 1 CASE STUDY ANALYSIS AND DOCUMENTATION OF BUILDING SERVICES SYSTEM 139 | P a g e
9.4.3 GEARED MACHINE
Figures 9.4.1.6 Geared Machine found in Machine Room located at rooftop of KLPAC
Geared-traction machine is powered by AC-DC electrical motor. It functions to turn the sheave which
then moves the lift car. Compared with gear-less traction, it uses less energy to turn the motor and help
to save energy cost. This gear-traction elevator is only suitable for low to mid-rise buildings like KLPAC
and the speed is lower compared to gear-less machine which ranged around 200 to 500 feet per minute.
The brand of elevator that KLPAC uses is Sgt 8-CO60-3 and the geared machine is checked and
maintained every month by people from the elevator (Dover) company.
ARC 2423 BUILDING SERVICES
PROJECT 1 CASE STUDY ANALYSIS AND DOCUMENTATION OF BUILDING SERVICES SYSTEM 140 | P a g e
Figures 9.4.1.7 Picture shows components of the lift system
Lights are used to illuminate the interior of
the machine room.
Lifting beam is found on top of the machine
to help raising and lowering parts during
maintenance.
Geared-traction machine is powered by AC-
DC electrical motor. It functions to turn the
sheave which then moves the lift car.
Compared with gear-less traction, it uses less
energy to turn the motor and help to save
energy cost
An Overspeed Governor is an elevator device
which act as a stop device in case the elevator
runs beyond the rated speed. This device
must be installed for traction elevators.
ARC 2423 BUILDING SERVICES
PROJECT 1 CASE STUDY ANALYSIS AND DOCUMENTATION OF BUILDING SERVICES SYSTEM 141 | P a g e
9.4.4 CONTROL SYSTEM
Table 9.4.4.1 Diagram showing how elevator system works in KLPAC
ELEVATOR
User Commands User Interface
Feedback to
Users
Control System
Elevator System
Car
Electricity
Strain Energy
Heat, Noise,
Friction
Air
People & Cargo
Shaft
People & Cargo
Air
Commands Feedback
Air
People
& Cargo
Commands Feedback
Sensor
Data
ARC 2423 BUILDING SERVICES
PROJECT 1 CASE STUDY ANALYSIS AND DOCUMENTATION OF BUILDING SERVICES SYSTEM 142 | P a g e
Figure 9.4.4.2 Control System Panel found in Machine Room in KLPAC
Elevator control panel (system) is a device that can be found at the machine room usually located at the
top of life. It functions as a brain to the elevator system that receives signal from user or operator and
sends out signal to different components of the elevator. It is also the system responsible for
coordinating all aspects of elevator service such as travel, speed, and accelerating, decelerating, door
opening speed and delay, leveling and hall lantern signals. When an elevator breaks down, only a
compatible person has the qualification to repair from the control system.
ARC 2423 BUILDING SERVICES
PROJECT 1 CASE STUDY ANALYSIS AND DOCUMENTATION OF BUILDING SERVICES SYSTEM 143 | P a g e
Figure 9.4.4.3 Overspeed Governor
An Overspeed Governor is an elevator device which act as a stop device in case the elevator runs
beyond the rated speed. This device must be installed for traction elevators.
Figure 9.4.4.4 Ventilation inside Machine Room
Vents can be found in the machine room, they serve the purpose of ventilating the interior of the
machine room.
ARC 2423 BUILDING SERVICES
PROJECT 1 CASE STUDY ANALYSIS AND DOCUMENTATION OF BUILDING SERVICES SYSTEM 144 | P a g e
9.4.5 OVER LOAD AND FIRE SERVICE INDICATOR
Over Load Indicator
a. Over Load Indicator will illuminate, and a buzzer will sound, when the load in the elevator is
exceeding the contract load.
b. Under over load operation, the elevator will be removed from normal service, and the elevator’s
doors will open and remain open, until the load in the elevator is less than the contact load.
Fire Service Indicator
1. Fire Service Indicator wil illuminate, and a buzzer will sound, during building fire emergency
operation.
2. Under fire service operation, the elevator will home to the main/ground floor, and the
elevator’s doors will open and remain open.
In the event of a fire, users are recommended to never use the elevators to evacuate the building.
Instead, should use the stairways to get to a safe place. Under no circumstances should anyone except
trained firefighters be allowed to use the elevators after a fire has been reported.
Fire Service is initiated automatically by the building’s smoke detectors. When this service is initiated, all
hall and car calls are canceled, the elevator return to the main floor, the door open and remain open.
Trained firefighters then may activate the Fire Service Key switch in the elevator and then gain control of
the car.
ARC 2423 BUILDING SERVICES
PROJECT 1 CASE STUDY ANALYSIS AND DOCUMENTATION OF BUILDING SERVICES SYSTEM 145 | P a g e
9.5 ANALYSIS
1. For a mid-rise building, KLPAC has successfully provided enough (3) elevators according to the
requirement stated by UBBL 1984 section 124, elevators:
124 – For all non-residential buildings exceeding 4 storeys above or below the main access level at least
one elevator shaft be provided.
2. KLPAC has met the requirement of UBBL to position stairs near the elevators in case of emergency
and to install a smoke detector at every lift lobbies in the building.
UBBL 1984 section 152-157, ventilation to elevator shafts:
152(1) – Every opening in an elevator shaft or elevator entrance shall open into a protected lobby unless
other suitable means of protection to the opening to the satisfaction of the local authority is provided.
These requirements shall not apply to open type industrial and other special buildings as may be
approved by D.G.F.S.
153(1) – All elevator lobbies shall be provided with smoke detectors.
3. KLPAC has also met the requirement of UBBL to make sure the car moves to ground floor with doors
open when emergency happens.
154(1) – On failure of mains power all elevators shall return in sequence directly to the designated floor,
commencing with the fire elevators, without answering any car or landing calls and park with doors
open.
9.6 CONCLUSION
In conclusion, geared traction elevator system is a good choice for this building KLPAC due to its medium
number of users, low installation cost, appropriate number of floors and acceptable maintenance cost.
All of its mechanical transportation do bring convenience to the users and the building also complied
with the UBBL and is fully functioning well.
ARC 2423 BUILDING SERVICES
PROJECT 1 CASE STUDY ANALYSIS AND DOCUMENTATION OF BUILDING SERVICES SYSTEM 146 | P a g e
10 REFERENCES
ABC Dry Powder Fire Extinguishers,BC Dry Powder extinguishers, M28 Extinguishers, Monnex
Extinguishers. (n.d.). Retrieved from http://www.lhcfp.co.uk/dry_powder_fire_extinguishers.htm
About Concrete Sinks | DoItYourself.com. (n.d.). Retrieved from
http://www.doityourself.com/stry/about-concrete-sinks#b
Breakers versus Fuses, Why you should select one!. (n.d.). Retrieved from
http://www.bdfuses.com/breaker.php
Building services handbook / Fred Hall and Roger Greeno.Hall, F. (Fred), 2011
Cooling Technology - Water Cooled Chillers & Air Cooled Chillers. (n.d.). Retrieved from
http://www.coolingtechnology.com/about_process_cooling/water-cooled-chiller/default.html
Drainage features and compliance when building. (n.d.). Retrieved from
http://www.level.org.nz/water/wastewater/drainage-systems/
Drainage system interceptor traps. (n.d.). Retrieved from
http://www.draindomain.com/interceptor%20traps.html
Dry Pipe Fire Sprinkler System | VFP Fire Systems. (n.d.). Retrieved from
http://www.vfpfire.com/systems-dry-pipe.php
Earthtrends Country Profile:Water Resources and Freshwater Ecosystems – Malaysia, 2003
Electrical Bus System and Electrical Substation Layout | Electrical4u. (n.d.). Retrieved from
http://www.electrical4u.com/electrical-bus-system-and-electrical-substation-layout/
Figuring Out Your Drain-Waste-Vent Lines - For Dummies. (n.d.). Retrieved from
http://www.dummies.com/how-to/content/figuring-out-your-drainwastevent-lines.html
Fire Alarm Bells, Waterflow Alarm Bells - System Sensor. (n.d.). Retrieved from
https://www.systemsensor.com/en-us/Pages/Sprinkler-AlarmBells.aspx
Fire Alarm Systems. (n.d.). Retrieved from http://www.firesafe.org.uk/fire-alarms/
Fire Control Centres | Firewize. (n.d.). Retrieved from http://firewize.com/book/technical-data/fire-
control-centres
ARC 2423 BUILDING SERVICES
PROJECT 1 CASE STUDY ANALYSIS AND DOCUMENTATION OF BUILDING SERVICES SYSTEM 147 | P a g e
Fire Extinguisher, A B C Type Dry Powder Fire Extinguisher, CO2 Fire Extinguisher. (n.d.). Retrieved from
http://www.supremexfireextinguisher.com/fireextinguisher.html
Fire Extinguisher Malaysia - Fire Extinguisher Types. (n.d.). Retrieved from
http://www.fireextinguishermalaysia.com/Fire-Extinguisher-Types.html
Fire Hydrant Systems - Fire Hydrant System, Wet Riser System and Fire System In Buildings
Manufacturer & Supplier from Mumbai, India. (n.d.). Retrieved from http://www.indiamart.com/pona-
corporation/fire-hydrant-system.html
Fire Sprinkler Systems - Fire Sprinkler System - Automatic Sprinkler Systems - Wormald. (n.d.). Retrieved
from https://www.wormald.com.au/systems/fire-sprinkler-systems
Fire-Rated Doors by Overhead Door. (n.d.). Retrieved from http://www.overheaddoor.com/commercial-
doors/Pages/fire-rated-doors.aspx
Geomast Antifire co limited. (n.d.). Retrieved from
http://www.geomast.com/Default.aspx?_Page=662&_Control=CTL_Article_ArticleList&_Content=322
Grease traps - Environmental Monitoring & Protection - Stormwater Management | City of Toronto.
(n.d.). Retrieved from
http://www1.toronto.ca/wps/portal/contentonly?vgnextoid=319807ceb6f8e310VgnVCM10000071d60f
89RCRD&vgnextchannel=fe4cfe4eda8ae310VgnVCM10000071d60f89RCRD
Heating, R. (1992). ASHRAE handbook (Inch-Pound ed.). Atlanta, Ga.: American Society of Heating,
Refrigerating, and Air-Conditioning Engineers.
How a Toilet Works. (n.d.). Retrieved from http://www.factsfacts.com/MyHomeRepair/ToiletFlush.htm
How Air Conditioners Work: Chilled-water and Cooling-tower AC Units - HowStuffWorks. (n.d.).
Retrieved from http://home.howstuffworks.com/ac4.htm
How all waste traps, p traps, u bends, s traps and bottle traps work | DIY Doctor. (n.d.). Retrieved from
http://www.diydoctor.org.uk/projects/howwastetrapswork.htm
Jockey Pump | Grundfos. (n.d.). Retrieved from http://www.grundfos.com/service-
support/encyclopedia-search/jockey-pump.html
Joint Monitoring Program for Water Supply and Sanitation: Access data for Malaysia, 5 December 2010
ARC 2423 BUILDING SERVICES
PROJECT 1 CASE STUDY ANALYSIS AND DOCUMENTATION OF BUILDING SERVICES SYSTEM 148 | P a g e
Kitchen Sinks: Easy-Clean, Surprisingly Affordable Ceramic. (n.d.). Retrieved from
http://www.houzz.com/ideabooks/7860127/list/kitchen-sinks-easy-clean-surprisingly-affordable-
ceramic
Molded Case Circuit Breakers | MCCB Components and Applications. (n.d.). Retrieved from
http://www.galco.com/comp/prod/circ-mold.htm
Osafe Fire Inspection | Fire Extinguisher. (n.d.). Retrieved from
http://osafefi.com/?ws=pages&pages_id=4228
Pressurisation System - Colt International UK. (n.d.). Retrieved from
http://www.coltinfo.co.uk/pressurisation-system-smoke-fire-ventilation.html
Pros & Cons for Stainless Steel Kitchen Sinks | Home Guides | SF Gate. (n.d.). Retrieved from
http://homeguides.sfgate.com/pros-cons-stainless-steel-kitchen-sinks-82712.html
Plumbing Trap | Drain Traps | Plumbing Traps | Drainage Trap | Drainage Traps | Drainage Traps Types.
(n.d.). Retrieved from http://www.gharexpert.com/articles/Waste-Water-Drainage-1790/Traps--Types-
Uses_0.aspx
Septic System Basics. (n.d.). Retrieved from
http://www.co.thurston.wa.us/health/ehoss/septic_basics.html
Stein, B., & Reynolds, J. (1992). Mechanical and electrical equipment for buildings (8th ed.). New York: J.
Wiley & Sons.
Syarikat Bekalan Air Selangor Sdn Bhd (SYABAS): History of Water Supply Services in Kuala Lumpur,
Selangor and Putrajaya
The Septic Tank. (n.d.). Retrieved from http://www.co.thurston.wa.us/health/ehoss/tank.html
TNB Electricity System | Tenaga Nasional Berhad (200866-W). (n.d.). Retrieved from
http://www.tnb.com.my/business/for-housing-developers-electrical-contractors/tnb-electricity-
system.html
Uniform Building By-laws 1984 all amendments up to August 1996 : Act 133 [7th ed.].
compiled by MDC Legal Advisers. Published 1996 by Published & printed by MDC Publishers
Printers in Kuala Lumpur .
What is an Inspection Chamber? | Drainage Sales. (n.d.). Retrieved from
http://www.drainagepipe.co.uk/help-centre/tips-guides/what-is-an-inspection-chamber-/
ARC 2423 BUILDING SERVICES
PROJECT 1 CASE STUDY ANALYSIS AND DOCUMENTATION OF BUILDING SERVICES SYSTEM 149 | P a g e
What is Earthing | Electrical Notes & Articles. (2011, November 27). Retrieved from
https://electricalnotes.wordpress.com/2011/11/27/what-is-earthing/
ARC 2423 BUILDING SERVICES
PROJECT 1 CASE STUDY ANALYSIS AND DOCUMENTATION OF BUILDING SERVICES SYSTEM 150 | P a g e
11 APPENDIX
- see behind

Building Services Report

  • 1.
    SCHOOL OF ARCHITECTURE,BUILDING & DESIGN ARC 2423 BUILDING SERVICES PROJECT 1 CASE STUDY ANALYSIS AND DOCUMENTATION OF BUILDING SERVICES SYSTEM GROUP MEMBER STUDENT ID LIM JIAN JUN 0316867 TEH GIE ENG 0136179 LOO MEI CHUEN 0316379 EVIN LOOI JYNN 0311852 CHOONG WAN XIN 0316146 JOANNE BERNICE CHUA YUNN TZE 0315905
  • 2.
    ARC 2423 BUILDINGSERVICES PROJECT 1 CASE STUDY ANALYSIS AND DOCUMENTATION OF BUILDING SERVICES SYSTEM 2 | P a g e INDEX CONTENT 1. ABSTRACT 2. ACKNOWLEDGEMENT 3. INTRODUCTION – KUALA LUMPUR PERFORMING ART CENTRE 4. Fire Protection system 4.1 Introduction 4.2 Literature review 4.2.1 Fire safety 4.2.2 Fire protection and prevention 4.3 Active Fire Protection System 4.3.1 Heat detector 4.3.2 Smoke detector 4.3.3 Triggers 4.3.4 Alarm bell 4.3.5 Central command center 4.3.6 Dry riser 4.3.7 Fire hydrant 4.3.8 Pump room 4.3.9 Wet riser and hose reel system 4.3.10 Sprinkler 4.3.11 Carbon Dioxide (co2) suppression system 4.3.12 Fire extinguisher 4.4 Passive fire protection system 4.4.1 Fire wall 4.4.2 Fire rated door 4.4.3 Smoke curtain 4.4.4 Separation of fire risk area 4.4.5 Emergency exit signage 4.4.6 6 Fire emergency staircase 4.5 Conclusion and recommendation
  • 3.
    ARC 2423 BUILDINGSERVICES PROJECT 1 CASE STUDY ANALYSIS AND DOCUMENTATION OF BUILDING SERVICES SYSTEM 3 | P a g e 5. Water Supply System 5.1 Literature Review 5.2 Introduction 5.2.1 Indirect System 5.3 Case Study 5.3.1 Overviews of KLPAC water supply system 5.3.2 Water Supply System Components 5.3.2.1 Water Main 5.3.2.2 Water meter 5.3.2.3 Reinforced Concrete Cold Water Tank 5.3.2.4 Hydro Pneumatic Pump System 5.3.3 Plumbing Systems 5.3.3.1 Type of piping a) Steel Cement Lined Pipes b) Cast Iron Pipes c) Copper Pipes d) U-PVC Pipes e) Galvanized Iron Pipes f) HDPE Pipes 5.3.3.2 Fixtures and Connection of Pipes 5.4 Findings and Analysis 5.4.1 Analysis 5.4.2 Suggestion on Improvement 5.5 Conclusion 6. Sewage and Sanitary System 6.1 Introduction 6.2 Literature Review 6.3 Case Study 6.4 Components of System 6.4.1 Sanitary Appliances 6.4.1.1 Water Closet 6.4.1.2 Basins 6.4.2 Traps 6.4.2.1 Water Seal a) Bottle and Sink Traps b) Floor Trap c) Gully Trap d) Grease Trap 6.4.3 Pipework 6.4.3.1 Soil and Waste Pipe 6.4.3.2 Vent Pipe 6.4.4 Inspection Chamber 6.4.5 Manholes
  • 4.
    ARC 2423 BUILDINGSERVICES PROJECT 1 CASE STUDY ANALYSIS AND DOCUMENTATION OF BUILDING SERVICES SYSTEM 4 | P a g e 6.4.6 Septic tank 6.4.7 Drainage 6.5 Analysis 6.6 Conclusion 7. Air Conditioning and Mechanical Ventilation System 7.1 Introduction 7.2 Literature review 7.2.1 Air-Conditioning System 7.2.2 Mechanical Ventilation 7.3 Case study 7.4 Components of System 7.4.1 Air Handling Unit (AHU) 7.4.1.1 Air Filter 7.4.1.2 Blower/Fan 7.4.1.3 Heating/Cooling Coil 7.4.1.4 Vibrator Insulator 7.4.1.5 Damper 7.4.2 Fan Coil Unit (FCU) 7.4.3 Ductwork 7.4.4 Supply Air Diffuser/Grille 7.4.5 Return Air Grille/Fan 7.4.6 Fire Exhaust Fans 7.4.7 Air-Cooled Chiller 7.4.8 Chilled Water Pump 7.4.9 Piping System 7.5 Findings & analysis 7.6 Conclusion 8. Electrical System 8.1 Introduction 8.2 Literature Review 8.2.1 Components of Electrical System Within the Building 8.3 Case Study: Kuala Lumpur Performing Arts Centre (KLPAC) 8.3.1 Schematic Diagram of Electrical Flow in KLPAC 8.3.2 Electrical System in KLPAC 8.3.2.1 TNB High Tension (HT) Room 8.3.2.2 Consumer High Tension (HT) Rom a) Safety 8.3.2.3 Transformer and Low Voltage (TX & LV) Switchgear Room a) Air Circuit Breaker (ACB) b) Molded Case Circuit Breaker (MCCB) c) Bus System 8.3.2.4 Genset Room
  • 5.
    ARC 2423 BUILDINGSERVICES PROJECT 1 CASE STUDY ANALYSIS AND DOCUMENTATION OF BUILDING SERVICES SYSTEM 5 | P a g e a) Lithium Cadmium Battery b) Diesel Fuel c) Smoke Chamber d) Safety e) Maintenance 8.3.2.5 Electrical Room a) Sub Switch Board (SSB) 8.3.2.6 Tenant Units a) Distribution Board (DB) b) Maintenance 8.3.2.7 Wiring 8.3.2.8 Earthing 8.4 Conclusion 9. Mechanical Transportation System 9.1 Introduction 9.2 Literature Review 9.3 Types of Elevator 9.4 Case Study 9.4.1 Drawings 9.4.2 Elevator Components 9.4.3 Geared Machine 9.4.4 Control System 9.4.5 Over Load and Fire Service Indicator 9.5 Analysis 9.6 Conclusion 10. References 11. Appendix
  • 6.
    ARC 2423 BUILDINGSERVICES PROJECT 1 CASE STUDY ANALYSIS AND DOCUMENTATION OF BUILDING SERVICES SYSTEM 6 | P a g e 1.0 ABSTRACT This research report will look into the details of the services present in Kuala Lumpur Performing Arts Centre such as fire protection system, water supply system, sewerage and sanitary system, air- conditioning and mechanical ventilation system, electrical system and mechanical transportation system. Thorough analysis and synthesis on the components and the functions of these systems shall be conducted to further understand the importance of these systems in a building’s operation. A conclusion of these systems will be generated through our understanding of these services in regards to the Uniform Building By-Law, Malaysian Standards requirements as well as other relevant rules and regulations. 2.0 ACKNOWLEDGEMENT We would like to extend our deepest gratitude to each individual that has helped and assisted us in completing this research report. A special thanks to the person in charge of building services department, Mr Sathish who provided good hospitality during out visit and given us his precious time. Besides, he has been very kind in providing us as much information as he can, bringing us around the building and providing explanations and answers to our questions and curiosity. We would also like to thank Mr. Ken, who had been kind enough to give us permission to do an in-depth study on the systems that runs in KLPac. In addition, we would like to express our deepest appreciation for providing us with guidance to complete this report and giving us much suggestions during our tutorial sessions. Never the less, we would like to thank each member that has put in effort in cooperating with each other, especially those who has provided transportation to our site. By all means, we would like to thank once again to everyone who had helped in making this project a success.
  • 7.
    ARC 2423 BUILDINGSERVICES PROJECT 1 CASE STUDY ANALYSIS AND DOCUMENTATION OF BUILDING SERVICES SYSTEM 7 | P a g e 3.0 INTRODUCTION Figure 2.1 Kuala Lumpur Performing Arts Centre, KLPAC The Kuala Lumpur Performing Arts Centre (informally, KLPAC) or Pentas Seni Kuala Lumpur in Sentul West is one of the most established centres for the performing arts in Malaysia. Located in Sentul West Kuala Lumpur, it is a non-profit company whose aim is to "cultivate and sustain the performing arts for the betterment and enrichment of communities within the Klang Valley and for the Nation." Each year, KLPac and the Actors Studio plays host to more than a hundred major events, as well as many other workshops, classes, film screenings and more. Many of KLPac's events are self-directed, self- organized shows, as KLPac also rents out their facilities, equipment other for individual performing arts events. KLPac was founded in 1995, when Faridah Merican and Joe Hasham created the first privately owned and operated theatre in Malaysia below Dataran Merdeka, called The Actor's Studio at PlazaPutra. However, flash floods in Kuala Lumpur destroyed the underground complex in 2003. In May 2004, Yayasan Budi Penyayang Malaysia, YTL Corporation Berhad and The Actors Studio Malaysia created a new jointly-owned platform to develop the performing arts, which became the Kuala Lumpur Performing Arts Centre (KLPac) and it has long opened its doors ever since May, 2005.
  • 8.
    ARC 2423 BUILDINGSERVICES PROJECT 1 CASE STUDY ANALYSIS AND DOCUMENTATION OF BUILDING SERVICES SYSTEM 8 | P a g e 4.0 FIRE PROTECTION SYSTEM by EVIN LOOI JYNN 4.1 Introduction The main analysis of this chapter is about the active fire protection system and passive fire protection system in Kuala Lumpur Performing Arts Centre (KLPAC). A fire safety feature in a building is very important especially in a big building. It is essential because it ensures the user’s safety and security Both active and passive fire protection system is being studied here and explained in a detail manner. They are discussed and is compared to the rules and regulation set by Bomba. This research paper had concluded the analysis. Finally recommendation and improvement are also suggested. 4.2 Literature Review 4.2.1 Fire safety Fire, is a source that plays an important role in our daily life since the discovery of this resource. However, fire could be extremely dangerous if we do not know how to control and it make our life in risk. Hence understanding the characteristic of fire is very helpful for us to design a well-performed fire protection system. In a building there are two types of fire protection system. One will be active fire protection system, and the other one will be passive fire protection system. Active fire protection system is an approach or a process of protecting a building or structure from fire by using the methods of applying automatic or manually operated fire mechanical system in a building to provide safety to the users in a building. There are couple examples of active fire protection system mechanism- fire alarm system, fire pump, sprinkler, carbon dioxide fire suppression system and etc. all these system are extremely important in order to provide protection and safety properly to the building itself and the users. One common function that all the system shared in active fire protection system are to slow down the process of burning in a building, putting out the fire and to notify the fire and smoke condition. For example, the sprinkler system, when heat builds up in a space or fire area, it will causes the sprinkler head to burst and releases spray of water to the fire and put the fire out. Besides that, it is important to keep in mind that some fire active protection systems needs to manually operate by human. For example, the fire extinguisher, which are provided in a building to allow people to fight during fire emergency. Active fire protection system always required a certain amount of motion and response in order for it to function. Next, passive fire protection system is a system that retards the speed of fire and smoke spreading as protection of escape routes in order to prolong the escape time by designing and modifying architectural elements with fire resistance characteristic. In this system, it consist of two major parts, which are compartment of space with fire rated building components and the design of means of escape. To prevent fire spreading from spaces to spaces, compartment such as firewall, fire rated door and ceiling are took into consideration in this category. By making all these characteristic of fire proof, the building failure because of fire would be greatly slower. Different types of fire rated components are available in the market such as 1 hour fire resistant, 2.5 hour fire resistant and more. Besides, innovative fire resistant technology also making passive fire protection system more effective. Smoke curtain is the good example of modern compartment that used in building. On the other hands, means of escape are the crucial design factor to determine the procedure and efficiency of escape to outside the building
  • 9.
    ARC 2423 BUILDINGSERVICES PROJECT 1 CASE STUDY ANALYSIS AND DOCUMENTATION OF BUILDING SERVICES SYSTEM 9 | P a g e during the event of emergency. This part includes emergency exit signage, travel distance as well as emergency staircase design, which will be further discuss in the following topics. Figure 4.1: Fire triangle Four things must be present at the same time in order to produce fire:  Fuel or combustible material  Enough oxygen to sustain combustion  The chemical, exothermic reaction that is fire  Enough heat to raise the material to its ignition temperature Fuel, oxygen and heat referred to the Fire Triangle. Further clarifies the definition of combustion by adding a fourth component which is chemical chain reaction, depicting the concept of the rapid, self- sustaining oxidation reaction. The Fire Tetrahedron depicts the growth of ignition into fire. Therefore, by removing on of these components above, fire will extinguish. Essentially, fire extinguishers put out fire by removing one or more components of Fire Triangle or Fire Tetrahedron. Figure 4.2: The fire tetrahedron
  • 10.
    ARC 2423 BUILDINGSERVICES PROJECT 1 CASE STUDY ANALYSIS AND DOCUMENTATION OF BUILDING SERVICES SYSTEM 10 | P a g e 4.2.2 Fire Protection and Prevention Fire protection include  Fire alarm devices  Fixed firefighting equipment  Having a permanent water supply  Include portable firefighting equipment Fire prevention include  Include storage  Ignition hazards  Open yard storage  Temporary building
  • 11.
    ARC 2423 BUILDINGSERVICES PROJECT 1 CASE STUDY ANALYSIS AND DOCUMENTATION OF BUILDING SERVICES SYSTEM 11 | P a g e 4.3 Active Fire Protection System Figure 4.3: Schematic flow-chart overview of active fire protection The figure above showing the schematic diagram of active fire protection system specially designed for KL PAC. Active fire protection system is a type of building services that help to resist and extinguish as well as giving occupant defense from fire hazards with a series of designed systems and comprehensive equipment. This topic will be analyzed and discussed all the components stated above in detail in the following sub-topics. TRIGGERS SMOKE DETECTOR CENTRAL COMMAND CENTER FIRE DETECTION HEAT DETECTOR ALARM BELL ACTIVE FIRE MECHANICAL SYSTEM PUMP ROOM DRY RISER WET RISER & HOSE REEL SYSTEM SPRINKLER CO2 FIRE SUPPRESSION SYSTEM
  • 12.
    ARC 2423 BUILDINGSERVICES PROJECT 1 CASE STUDY ANALYSIS AND DOCUMENTATION OF BUILDING SERVICES SYSTEM 12 | P a g e 4.3.1 Heat Detector Figure 4.4: Heat detector located in the generator room. The heat detector above is a conventional l type heat detector that considered as a fixed temperature unit type. The heat detector composed of a heat sensitive eutectic alloy that will reach the eutectic point changing state from a solid to a liquid during fire. When the ambient temperature increases sufficiently to predetermined level where the heat detector will operate. For most fixed temperature hear detector, when the surrounding temperature reaches 58 Celsius, it will be trigger. Figure 4.5: Red shaded indicate the location of heat detector on ground floor plan. UBBL-SECTION 225.(1) Every building shall be provided with means of detecting and extinguisher fire and alarms together with illuminated exit signs in accordance with the requirements as specified in the Tenth Schedule to these By-Laws
  • 13.
    ARC 2423 BUILDINGSERVICES PROJECT 1 CASE STUDY ANALYSIS AND DOCUMENTATION OF BUILDING SERVICES SYSTEM 13 | P a g e 4.3.2 Smoke Detector Figure 4.6: Smoke detector found in KL PAC office. When a fire occurs in the building, the first procedure to be taken place in the active fire system is the smoke detectors positioned on the ceiling on every floor. To protect the whole floor area, a few smoke detectors placed everywhere around the particular floor in every level to detect the presence of smoke. The closest smoke detector within where the fire is taken place will detect the smoke and then automatically signals the fire alarm control panel located in the control room on the ground floor. Figure 4.7: Red shaded indicate the location of smoke detector on ground floor plan. UBBL-SECTION 225 (1) Every building shall be provided with means of detecting and extinguisher fire and alarms together with illuminated exit signs in accordance with the requirements as specified in the Tenth Schedule to these By-Laws
  • 14.
    ARC 2423 BUILDINGSERVICES PROJECT 1 CASE STUDY ANALYSIS AND DOCUMENTATION OF BUILDING SERVICES SYSTEM 14 | P a g e 4.3.3 Triggers Figure 4.8: Fire triggers in KL PAC In case of fire and smoke is not detected by the respective instruments, warning alert still can be activated manually by the occupants through (break glass) and manual pull station by only firemen. Break glass switch will send the warning signal to control panel while fire switch will cut off the electrical power supply. Furthermore, these two instruments are located in different height. Break glass normally located around 1.5m above the floor, whereas fire switch is above human normal height around 2m above the floor in order to avoid vandalism chances. All these instruments can be found along the corridors, emergency staircase, and emergency exit doors.
  • 15.
    ARC 2423 BUILDINGSERVICES PROJECT 1 CASE STUDY ANALYSIS AND DOCUMENTATION OF BUILDING SERVICES SYSTEM 15 | P a g e 4.3.4 Alarm Bell Figure 4.9: Fire alarm in KL PAC The height of the manual break glass is 1500mm from ground level and is reachable for users that are disabled. The fire alarm bell functions through the electromagnet. The working theory of it is actually this way. When an electric current is imply, it will produce a repetitive buzzing sound over and over again until certain time. There are 2 different types of alarm bell, one will be the vibrating type and the other will be single stroke type. Vibrating type – ring continuously power supply is turned off. Single stroke type – when power is supplied, the bell will ring once and stop and will not ring again until power turned off and on again. The alarm bell is located at about 1200mm from the manual break glass and 2700mm from ground level. When the glass breaks and the alarm is triggered, the person in charge will check via CCTV or send someone to check if the if the fire alarm is real or a false alarm. If it is false, the person will immediately close the valve on the sprinkler system. The manual break glass is placed around the building so that it is easily accessible by people when a fire occurs. FIGURE 4.10: Red shaded indicate the location of the alarm bell on ground floor plan. UBBL- SECTION 237 Alarm bell must provide a minimum sound level of 65db (A) or +5db (A) above any background noises, which is likely to persist for more than 30 seconds.
  • 16.
    ARC 2423 BUILDINGSERVICES PROJECT 1 CASE STUDY ANALYSIS AND DOCUMENTATION OF BUILDING SERVICES SYSTEM 16 | P a g e 4.3.5 Central Command Center Figure 4.11, 4.12 , 4. 13 : Multiple emergency voice alarm and communication system panel in security room Figure 4.14 : Fire control and monitor panel in KL PAC. A Fire Alarm Control Panel is a main controlling component of a fire alarm system; the function of this control panels is to receive signals from all the detectors and triggers by cause of the presence of smoke or fire. Once the control guards receiving the silent signals, they will command the nearest respective on duty guards to check the area where the signal was sent around that zone. If the fire outbreak is caused by system error signal, it will be deactivated. Figure 4.15: Drawing of main fire alarm panel. Figure 4.16: Fire alarm indication panel in KL PAC. UBBL-SECTION 238 Every large premises or building exceeding 30.5 meters in height shall be provided with a command and control center located on the designated floor and shall contain a panel to monitor the public address, fire brigade communication, sprinkler ,water flow detectors fire detection and alarm systems and a direct telephone connection to the appropriate fire-station by-passing the switch board.
  • 17.
    ARC 2423 BUILDINGSERVICES PROJECT 1 CASE STUDY ANALYSIS AND DOCUMENTATION OF BUILDING SERVICES SYSTEM 17 | P a g e Figure 4.17: Ground floor plan shows above the location of the fire command center/ fire control panel room (shaded red) My personal opinion, in KL PAC the fire control panel room is located in the security room at ground floor near the entrance. It is located there because is easier for the fire fighter to access in. I think is a good strategy of placing it in such location.
  • 18.
    ARC 2423 BUILDINGSERVICES PROJECT 1 CASE STUDY ANALYSIS AND DOCUMENTATION OF BUILDING SERVICES SYSTEM 18 | P a g e 4.3.6 Dry Riser Figure 4.18: Dry riser inlet found in KL PAC. The dry riser functions as a vacant pipe that will be charged with water when in use while the wet riser is already fully charged with water before use. The dry riser is usually dry in form and it requires the fire engine to pump the water into the system. A dry riser is connected with an inlet connection for the fire brigade to connect their engine pumps and landing valves that is capable of taking full charged water from the fire engine pump. Besides that, the breeching inlets where the firemen will pump the water into it is required and be provided at the ground level and connected to the bottom of the dry riser. UBBL- SECTION 230  Dry rising system shall be provided in every building in which the topmost floor is more than 18.3 meters but less than 30.5 meters above fire appliance access level.  A hose connection shall be provided in each firefighting access lobby.  Dry shall be of minimum “class c” pipes with fittings and connections of sufficient strength to withstand 21 bars water pressure.  Dry risers shall be tested hydrostatically to withstand not less than 14 bars of pressure for two hours in the presence of the Fire Authority before acceptance.  All horizontal runs of the rising systems shall be pitched at the rate of 6.35 millimeters in 3.05 meters  The dry riser shall be not less than 102 millimeters in diameter in buildings in which the highest outlets is 22.875 meters or less above the fire brigade pumping inlet.  102 millimeters diameter dry risers shall be equipped with a two-way pumping inlet and 152.4 millimeters dry risers shall be equipped with a four-way pumping inlet
  • 19.
    ARC 2423 BUILDINGSERVICES PROJECT 1 CASE STUDY ANALYSIS AND DOCUMENTATION OF BUILDING SERVICES SYSTEM 19 | P a g e 4.3.7 Fire Hydrant Figure 4.19: Fire hydrant found outside KL PAC building. Water Hydrant fire-fighting system consist of hydrants connected to the same pipeline. It is an active fire protection measures that contain source of water provided with municipal water service. The other end of the pipeline is attached to the pumps and water supply tank of the firefighting room. The firefighting hydrant line is a close loop pipe system to maintain the pressure in the water hydrant. The network of pipes are located underground. The hydrants are used in case of emergency when there is need for more water. The firemen will connect their equipment to the outlets of the hydrant, pushing water into the system. The valve will be turn open to provide a powerful flow and high pressure of water. In my opinion, I think KL PAC need more extra fire hydrant for firemen convenient to put out the fire because the distance between 2 hydrants is too far from each other. Figure 4. 20: Red shaded indicate the fire hydrants could be found outside KL PAC building at ground floor. UBBL- SECTION 225.(2) Every building shall be served by at least one fire hydrant located not more than 91.5 meters from the nearest point of fire brigade access
  • 20.
    ARC 2423 BUILDINGSERVICES PROJECT 1 CASE STUDY ANALYSIS AND DOCUMENTATION OF BUILDING SERVICES SYSTEM 20 | P a g e 4.3.8 Pump Room Figure 4.21: Pressure gauge in pump room indicating Figure 4.22: Valves and pumps in the pump room water pressure in each pump Known as the sprinkler or the pump room. It provides as immediate and faster means of fire control and delivers the required water flow. The pump room function with 3 elements that have different role on their own, which is the duty pump, standby pump and jockey pump. Where there is any fault in the system, it will be indicated in the pump room and control panel. The pressure gauge will control the pressure so that it is at the right and appropriate water pressure. It will automatically cut out the water at certain circumstances. The pump room is usually located at the basement. A firefighting system consists of 2 main pumps; one is electrically driven while the other is diesel engine driven, with an Auxiliary Jockey Pump connected to Hydrants and Sprinkler system. The main pumps provide supply of Pressurized Water to the Fire Fighting System, which can be initiated either manually or automatically as required. In an automatic system, a sudden drop in pressure causes the main pumps to supply water to the firefighting system mains. The Main Pumps can only be stopped manually. The system is also known as packaged system The packaged system – 3 hydrant pumps for each fire dedicated hydrant tanks. Figure 4. 23: Duty Pump Figure 4. 24: Duty Pump
  • 21.
    ARC 2423 BUILDINGSERVICES PROJECT 1 CASE STUDY ANALYSIS AND DOCUMENTATION OF BUILDING SERVICES SYSTEM 21 | P a g e Figure 4.25: Standby Pump Figure 4.26: Jockey Pump A duty pump runs with an electrical motor pump to channel water to the sprinkler system whereas the standby pump runs on a diesel engine. The jockey pump is a small Flow Multistage Pump used to maintain the Fire Fighting System under Pressure as required for the Main Pumps. The Start and Stop of Jockey Pumps needs to be automatically controlled through Pressure Switches. I think the pump room in KL PAC are organized in such a way that the architect planned a good and appropriate for it and have all the equipment in it to ensure safety function during fire. Figure 4. 27: Diagram show the pump connection detail
  • 22.
    ARC 2423 BUILDINGSERVICES PROJECT 1 CASE STUDY ANALYSIS AND DOCUMENTATION OF BUILDING SERVICES SYSTEM 22 | P a g e Figure 4.28: Diagram showing pipe hanger in pump room. Figure 4.29: Diagram showing pump room plan view
  • 23.
    ARC 2423 BUILDINGSERVICES PROJECT 1 CASE STUDY ANALYSIS AND DOCUMENTATION OF BUILDING SERVICES SYSTEM 23 | P a g e Figure4.30: Red shaded indicate the location of the Pump room on ground floor plan
  • 24.
    ARC 2423 BUILDINGSERVICES PROJECT 1 CASE STUDY ANALYSIS AND DOCUMENTATION OF BUILDING SERVICES SYSTEM 24 | P a g e 4.3.9 Wet Riser and Hose Reel System Figure 4.31: Hose reel that found in KL PAC. The Hose reel System is intended for the occupant to use during the early stages of fire and it comprises of hose reel pumps, fire water tank, hose reels, pipe work and valves. The hose reel system generally serves as an initial firefighting aid. When the hose reel is brought into use, the pressure in the pipe immediately downstream and the pump check valves will drop below the field adjusting the pressure setting of the pressure switch therefore triggering the pump to operate automatically to feed a steady supply of water to discharge through the hose. The firefighting hose reel is the part that us easily accessible. From my opinion, the fire hose reel outlets should be properly housed in glass-fronted cabinet that is secured under lock and key. The hose reel is a fixed type, comprising of a riser to channel water to the system, a sign for identification, a hose reel cabinet, hose reel waterway, hose pipe and a nozzle to complete the installation. Figure 4.32: Hose reel connection detailed drawing. UBBL-SECTION 231  Wet rising system shall be provided in every building in which the top most floor is more than 30.5 meters above the fire appliance access level.  A hose connection shall be provided in each firefighting access lobby.
  • 25.
    ARC 2423 BUILDINGSERVICES PROJECT 1 CASE STUDY ANALYSIS AND DOCUMENTATION OF BUILDING SERVICES SYSTEM 25 | P a g e Figure 4.33: Diagram showing electrical single line for hose reel pump. Figure 4.34: Schematic diagram of hose reel system in KL PAC building.
  • 26.
    ARC 2423 BUILDINGSERVICES PROJECT 1 CASE STUDY ANALYSIS AND DOCUMENTATION OF BUILDING SERVICES SYSTEM 26 | P a g e 4.3.10 Sprinkle Figure 4.35: Sprinkler on the ceiling. A sprinkler system is meant to eliminate or decreases the spread of fire. It’s a requirement to install a sprinkler system when the building exceeds 7000 m3 of volume. Usually placed at the ceiling, a small device that shoots water downwards by a deflector plate that directs the water circular pattern over the fire an on walls of the structure. Each sprinkler has an open compartment that holds a friable heat- sensing quartz build, containing a colored liquid (usually red) that seals the water inlet. When the heat reaches a certain temperature, the quartz expands and fractures, releasing the water. When the water starts flowing, it’ll detect and start the alarm. The alarm will alert the fire brigade monitoring station. KL PAC uses a wet pipe fire sprinkler system where the sprinkler’s heads are attached to a piping system that contains water and are connected to a hydrant tank that supplies water so the system is prepared to discharge water when the sprinklers are opened by the heat of the fire. Each of the sprinkler is activated and performed individually when it is heated to a certain temperature. He sprinklers discharge around 20 to 25 gallons per minute but it depends on the design system. Sprinkler head works very efficiently, sprinkler head are usually fitted with a glass filled with glycerin- based liquid which expands at a specific temperature, in room temperature, it is usually of 65 degree Celsius in temperature. Water readily to be disposed when sprinkler head breaks out due to pressure from valve at the rate of about 110L/min. To make sure the building functions its active fire system at its best, each floor from basement floor to mechanical floor is equipped with enough number of sprinklers that are functional. The sprinkler system in KL PAC in each floor are places together in a reasonable direction and distance from each other. They followed UBBL and it is a good example for other building when they place their sprinkler. UBBL-SECTION 225. (2)  Sprinkler valves shall be located in a safe and enclosed position on the exterior wall and shall be readily accessible to the Fire Authority  All sprinkler systems shall be electricity connected to the nearest fire station to provide immediate and automatic relay of the alarm when activated.
  • 27.
    ARC 2423 BUILDINGSERVICES PROJECT 1 CASE STUDY ANALYSIS AND DOCUMENTATION OF BUILDING SERVICES SYSTEM 27 | P a g e Figure 4.36 : Schematic diagram of sprinkler system
  • 28.
    ARC 2423 BUILDINGSERVICES PROJECT 1 CASE STUDY ANALYSIS AND DOCUMENTATION OF BUILDING SERVICES SYSTEM 28 | P a g e Figure 4.37: Red shaded indicate the location of sprinkler. In KL PAC the main sprinkler tank supplies water supply for the sprinkler system located in the basement. In passive firefighting system, Main Fire Pump room plays an essential part. This is because it is where the duty sprinkler pump, standby pump and jockey pump are located. Sprinkler system will only function with the existence of the respective pumps. The room also holds the wet risers for hose reel located on every floor. Figure : 4.38 : Compartmented sprinkler tank
  • 29.
    ARC 2423 BUILDINGSERVICES PROJECT 1 CASE STUDY ANALYSIS AND DOCUMENTATION OF BUILDING SERVICES SYSTEM 29 | P a g e Figure 4.39: Pump room plan view Figure 4.40 : Section of sprinkler and hose reel compartmented tank.
  • 30.
    ARC 2423 BUILDINGSERVICES PROJECT 1 CASE STUDY ANALYSIS AND DOCUMENTATION OF BUILDING SERVICES SYSTEM 30 | P a g e Figure : 4.41 Figure 4.42
  • 31.
    ARC 2423 BUILDINGSERVICES PROJECT 1 CASE STUDY ANALYSIS AND DOCUMENTATION OF BUILDING SERVICES SYSTEM 31 | P a g e 4.3.11 Carbon Dioxide Fire Suppression System (CO2) Figure 4.43 : CO2 fire suppression system installed in gen set room for fire extinguishment. Figure 4.44 : CO2 Fire suppression system was installed in L.V room for fire extinguishment. Carbon dioxide in fire protection term, gases that protects electrical equipment from being burnt such as it sectors, transformers and switchgears. Heat or smoke detectors will detect the heat and sound the alarm and Co2 gas will flood to room from high pressure storage cylinders. The gasses are sent via pipes to the ceiling and under floor distributors. Carbon dioxide is lethal to a person’s health so occupants must evacuate swiftly in a limited amount of time. The cylindrical tanks are stored in the corners of rooms. Once detected by the heat triggers, the co2 is 24 released, curtain walls go down and when doors are shut, two indicators will show when the gas operation is over. Red means gases are still present and green means it is already clear and safe to go in. Figure 4.45 Location of the CO2 control room in KL PAC ground floor plan.
  • 32.
    ARC 2423 BUILDINGSERVICES PROJECT 1 CASE STUDY ANALYSIS AND DOCUMENTATION OF BUILDING SERVICES SYSTEM 32 | P a g e Figure 4.46: Diagram showing high pressure CO2 system detail. Figure 4.47: CO2 panel detail Figure 4.48 Figure 4.49
  • 33.
    ARC 2423 BUILDINGSERVICES PROJECT 1 CASE STUDY ANALYSIS AND DOCUMENTATION OF BUILDING SERVICES SYSTEM 33 | P a g e Figure 4.50 Figure 4.51
  • 34.
    ARC 2423 BUILDINGSERVICES PROJECT 1 CASE STUDY ANALYSIS AND DOCUMENTATION OF BUILDING SERVICES SYSTEM 34 | P a g e 4.3.12 Fire Extinguisher Figure 4.52 Figure 4.53 A fire extinguisher, flame extinguisher, or simply as extinguisher is an active fire protection device used to extinguish or control small fires, often in emergency situations. The number and location of fire extinguisher are determined by the hazard of the occupancy. KL PAC uses one type of portable fire extinguisher, and that is the dry powder extinguisher. Fire extinguisher are divides into many class, each of them are specifically function and respond to different type of fire situation. Figure 4.54 : diagram showing different class and types of fire extinguishers and their purposes. UBBL-SECTION 227 Portable extinguisher shall be provided in accordance with the relevant codes of practice and shall be sired in prominent positions on exit routes to be visible from all directions and similar extinguishers in a building shall be of the same method of operation.
  • 35.
    ARC 2423 BUILDINGSERVICES PROJECT 1 CASE STUDY ANALYSIS AND DOCUMENTATION OF BUILDING SERVICES SYSTEM 35 | P a g e 4.4 Passive Fire Protection System Figure 4.55: Overview flow chart of passive fire protection system. The flow chart above showing the passive fire protection system that specifically designed for KLPAC which all components of this system will be further discussed and covered in sub-topics in the following pages. 4.4.1 Triggers FIRE WALL FIRE RATED DOOR COMPARTMENT SEPARATION OF FIRE RISK AREA MEANS OF ESCAPE EMERGENCY EXIT SIGNAGE FIRE EMERGENCY STAIRCASE PASSIVE FIRE PROTECTION SYSTEM SMOKE CURTAIN
  • 36.
    ARC 2423 BUILDINGSERVICES PROJECT 1 CASE STUDY ANALYSIS AND DOCUMENTATION OF BUILDING SERVICES SYSTEM 36 | P a g e 4.4.1 Fire Wall Figure 4. 56 : Firewall that found in KL PAC office Fire Wall (also call as fire-rated wall) is a structurally designed fireproof barrier that commonly constructed and applied in passive fire protection system. Different with the ordinary walls, firewall not only used as a component of spatial division but also greatly separating fire areas and slower down fire spreading from one space to other space during the events of emergency. Firewalls were designed to act as a barrier between spaces and also retard fire spreading to give enough time for occupants to escape from the building. In addition, walls in mechanical plans and machinery rooms were also designed as firewalls as the content of the room is common fire source to cause event of fire. From the personal view, the design and placement of compartment wall is very considerate and well followed By- laws requirements by the architect, which this careful decision has ensured the safety of the occupants as well as fire stopping issues. UBBL-SECTION 138 (C) Any wall or floor separating part of a building from any other part of the same building, which is used or intended to be used mainly for a purpose failing within a different purpose group as, set out in the Fifth Schedule to these by laws UBBL-SECTION 148.(6) Any compartment wall or compartment floor which is required by these By-Laws to have FRP of one hour or more shall be constructed wholly of non-combustible materials and, apart from any ceiling, the required FRP of the wall or floor shall be obtained without assistance from any non- combustible material.
  • 37.
    ARC 2423 BUILDINGSERVICES PROJECT 1 CASE STUDY ANALYSIS AND DOCUMENTATION OF BUILDING SERVICES SYSTEM 37 | P a g e 4.4.2 Fire Rated Door Figure 4.57 Fire rated door Fire rated door (also call as fire door) is an essential and important fireproofing component that designers might take concerns when designing passive fire protection system. With the similar functions as fire wall, fire door serves as critical compartmentalization of building entrances or exits in order to prevent fire and smoke spreading. Especially to KL PAC building, 1.5 hours fire- rated door were installed at the egress of fire staircase each floor as well as office entrances. From the fire door location, we can see the architect considerably put the fire door to allow circulations in normal day but the escape routes will be protected by all these fire door during the event of fire. However timber and aluminum made fire-rated door is combustible and it will cause door failures when the time is beyond limitation. Figure 4. 58: Automatic door closers were installed in Every fire exit door. UBBL-SECTION 162.(1)  Fire doors of the appropriate FRP shall be provided  Openings in compartment walls and separating walls shall be protected by a fire door having a FRP in accordance with the requirements for that wall specified in the Ninth Schedule to these By-Laws UBBL-SECTION 164. (1)  All fire doors shall be fitted with automatic door closers of the hydraulically spring operated type in the case of swing doors and of wire rope and weight type in the case of sliding door. Moreover, the automatic door closer hinge and devices were installed to fulfill the requirements of By-laws Section 164 (1). The purpose of installing this device is because the fire-rated door is mean to be always closed all the time. On the other hand, automatic door close hinges were also installed in the entrances of office each floor before the glass and it is always open for circulations. However the door closer will automatically shut the fire door during the event of fire to form compartment and prevent fire spreading.
  • 38.
    ARC 2423 BUILDINGSERVICES PROJECT 1 CASE STUDY ANALYSIS AND DOCUMENTATION OF BUILDING SERVICES SYSTEM 38 | P a g e 4.4.3 Smoke Curtain Figure 4.59 , 4.60 : Smoke curtain that was found in gen set room Smoke curtain (also known as fire curtain or safety curtain) is a fabric that made of incombustible material to prevent fire and smoke spreading. In KL PAC building, we could find the smoke curtains were installed on the top of entrances of every single mechanical and electrical systems rooms, for example, transformer room. A smoke and fire detector were installed in all these room for detecting purposes. During the event of fire, smoke curtain will be automatically dropped down to form a barrier between interior and exterior to prevent fire spreading from room to another space. Thus, it is really effective in isolating fire source with the cooperation of another components of passive fire protection system . Figure 4.61 : Red shaded indicate the location of smoke curtain in KL PAC UBBL – SECTION 161. (1) Any fire stop required by the provision of this Part shall be so formed and positioned as to prevent or retard the passage of flame.
  • 39.
    ARC 2423 BUILDINGSERVICES PROJECT 1 CASE STUDY ANALYSIS AND DOCUMENTATION OF BUILDING SERVICES SYSTEM 39 | P a g e 4.4.4 Separation of Fire Risk Area According to the law and regulations stated above in By- laws, separations of fire risk area should be involved in the spatial planning of the building to prevent fire spreading quickly from one point to the other point. In KL PAC, electrical and mechanical plans and rooms located evenly in ground floor, basement. With this location distribution, the risk of fire is greatly reduced as the areas were located in different spaces throughout the building. UBBL – SECTION 139 The following area uses shall be separated from the other areas of the occupancy in which they are located by fire resisting construction of elements of structure of a FRP to be determined by local authority based on the degree of hazard:  Boiler rooms and associated duels storage area  Laundries  Repairs shops involving hazardous processes and materials  Storage area of materials in quantities deemed hazardous  Liquefied petroleum gas storage areas  Linen rooms  Transformer rooms and substations  Flammable liquid stores
  • 40.
    ARC 2423 BUILDINGSERVICES PROJECT 1 CASE STUDY ANALYSIS AND DOCUMENTATION OF BUILDING SERVICES SYSTEM 40 | P a g e 4.4.5 Emergency Exit Signage Figure 4.62 Emergency exit signage Fire escape doors are indicated with neon green Exit signs above it, and emergency lights are installed within it to give some light if the main electrical supply has been cut off (blackout). Exit emergency signage indicate the way to safety outdoor area or assembly point. It is a clear and effective guidance tool, helping to reduce panic and confusion by providing a clear directional system. These signs are lit 24/7 for emergencies. The letters are written in block letters sufficiently big enough to be seen and bright green to attract attention when lights are out. In Malaysia, the exit signage is written in Malay, the word “KELUAR” means EXIT. Based on the photo, the exit signage is located above the fire doors, directing the occupants towards the fire escape staircases. The signs are located at specific positions with no surrounding disturbance. It is a stand-alone sign. UBBL-SECTION 172.  Storey exits and access to such exits shall be marked by readily visible signs and shall not be obscured by any decorations, furnishings or other equipment  A sign reading “KELUAR” with an arrow indicating the direction shall be placed in every location where the direction of travel to reach the nearest exit is not immediately apparent.  Every exit sign shall have the word “KELUAR” in plainly legible letters not less than 150mm high with the principal strokes of the letters not less than 18mm wide. The lettering shall be in red against a black background.  All exist signs shall be illuminated continuously during periods of occupancy.
  • 41.
    ARC 2423 BUILDINGSERVICES PROJECT 1 CASE STUDY ANALYSIS AND DOCUMENTATION OF BUILDING SERVICES SYSTEM 41 | P a g e 4.4.6 Fire Emergency Staircase Figure 4.63 : Fire emergency staircase Fire escape staircase allow the occupants of the building to escape from the building to a safer area or assembly point when there is fire event or any emergency event happen. According to the law, the building should not have at least two means of exits consists of separate exits or doors that leads to a corridor or other space giving access to separate exits in different directions UBBL SECTION 168.  The required width of a staircase shall be maintained throughout its length including at landings.  Except as provided for in by law 194 every upper floor shall have means of access via at least two separate staircases.  The required width of staircase shall be clear width between walls but handrails may be permitted to encroach on this width to a maximum of 7.5 millimeters.  Tiles on staircases-risers maximum 180mm and thread minimum 255mm. UBBL – SECTION 169.  No exit route may reduce in width along its path of travel from the storey exit to the final exit. UBBL – SECTION 178.  In buildings classified as institutional or places of assembly, exits to a streets or large open space, together with staircases, corridors and passages leading to such exits shall be located, separated or protected as to avoid any undue danger to the occupants of the place of assembly from fire originating in the other occupancy or smoke therefrom.
  • 42.
    ARC 2423 BUILDINGSERVICES PROJECT 1 CASE STUDY ANALYSIS AND DOCUMENTATION OF BUILDING SERVICES SYSTEM 42 | P a g e 4.5 Conclusion and Recommendation In a nutshell, neither active nor passive fire protection system plays an important role to protect a building when a fire breakdown. The overall system of the firefighting system in KL PAC building complies with the UBBL by- Laws and is very systematic as a control panel controls the whole system. This will prevent the cause of false alarm in the building that will disturb the occupants. Besides that, the building also has updated their appliances following the requirements of Bomba and every core of the building is filled with the fire appliances for the safety of the occupants. In conclusion, the overall system in the building has a proper appliances which used for different function of the spaces to ensure the safety of occupants. There are no further recommendations that I could suggest for the fire because the fire safety coverage area in the building wide enough to ensure the occupants safety.
  • 43.
    ARC 2423 BUILDINGSERVICES PROJECT 1 CASE STUDY ANALYSIS AND DOCUMENTATION OF BUILDING SERVICES SYSTEM 43 | P a g e 5.0 WATER SUPPLY SYSTEM by LIM JIAN JUN 5.1 Literature Review Jabatan Bekalan Air (JBA) , which also known as the Water Supply Department is a departmental agent under the Ministry of Energy, Green Technology and Water, Malaysia. JBA is responsible of planning, monitoring and implement the development of water resources in Malaysia and the department works very closely with other water supply companies around the states in Malaysia. Syarikat Bekalan Air Selangor Sdn Bhd (SYABAS) was appointed by the State and Federal Government to manage the water supply distribution services in the State of Selangor, Federal Territory of Kuala Lumpur and Putrajaya under the Privatisation concept effective 1 January 2005. SYABAS took over all the functions of Perbadanan Urus Air Selangor Berhad (PUAS) in the area of water supply and distribution of water to customers within the state of Selangor and federal territories of Kuala Lumpur and Putrajaya. The privatization involved over 7.5 million residential users, as well as 1.7 million industrial premises, domestic accounts and commercial users, making it the largest privatization of water supply in Malaysia. Figure 5.1 Water Reservoir at Hulu Selangor Dam Figure 5.2 Jabatan Bekalan Air Figure 5.3 SYABAS Logo The water provided by SYABAS has been processed and treated before it is distributed. Water collected from rainfall and water reservoir is pumped into water treatment plant. From there, the untreated raw water is going through process of aeration, flocculation, sedimentation, filtration, disinfection and pH conditioning. The treated water will then be distribute to service reservoirs in different zones, readily to be supply to the consumers for residential, industrial and commercial use.
  • 44.
    ARC 2423 BUILDINGSERVICES PROJECT 1 CASE STUDY ANALYSIS AND DOCUMENTATION OF BUILDING SERVICES SYSTEM 44 | P a g e 5.2 Introduction Water supply systems in every building distributed from the water main is mainly depending on the topography in term of magnitude variation of the ground level. From that the water system is then designed with a distribution system from the reservoir towards the tanks and finally the end users. The most common water distribution systems used are gravity system, direct pumped system and mixture of both gravity and pumped system. Kuala Lumpur Performing Art Centre (KLPAC) is a fully integrated performing center for art comprises of 7,614sqm of built up spaces. The water supply system used in this building is Indirect System assisted with Direct Current Hydro Pneumatic Booster System. The pressure available from water mains is boosted with hydro pneumatic pump system to allow sufficient water pressure to distribute water directly from the main to different zones of the building. Unlike other tall buildings, KLPAC has only one domestic water tank located underground and it is the only water source to distribute throughout the entire building. Study analysis is conducted to discuss the water supply system used in KLPAC and perhaps suggestions are made to conclude this area of study in the building. Figure 5.4 Panoramic view of KL Performing Art Centre in reflection of water
  • 45.
    ARC 2423 BUILDINGSERVICES PROJECT 1 CASE STUDY ANALYSIS AND DOCUMENTATION OF BUILDING SERVICES SYSTEM 45 | P a g e 5.2.1 Indirect System Figure 5.5Diagram of Direct and Indirect Water Supply System (GEC.JP,2015) To distribute water in a big commercial building like KLPAC itself, indirect water supply system is commonly used to supply water to different parts of the building, covering all the user needs. The rising main feeds a storage tank at a high point or low point in the building from where the water is stored and distributed to all the other services via pump or gravity. One clear point to identify the difference of direct and indirect water distribution system is that the direct system supply water directly from the water main while indirect water system will feed up the water storage before the water is distributed. A branch pipe off the rising main delivers drinking water to the kitchen and garden tap/faucet, cold water to all other taps/faucets and appliances is provided indirectly from the cold water under gravity pressure or booster pump, giving a boost to the main pressure. The advantage of having indirect system is having a temporary back up of stored water in the event of a mains failure. Also, because it is a low pressure system it is generally quieter therefore eliminating noise like 'water hammer' which can occur when high pressure water tries to negotiate tight bends in the pipework. The only setback of this system requires more pipework and also space to place the water storage tank. While direct system are restricted to smaller buildings and assistance of mechanical booster and filtration are required for an efficient and hygiene water supply system, especially in Malaysia.
  • 46.
    ARC 2423 BUILDINGSERVICES PROJECT 1 CASE STUDY ANALYSIS AND DOCUMENTATION OF BUILDING SERVICES SYSTEM 46 | P a g e 5.3 Case Study 5.3.1 Overview of Water Supply System Kitchen Firefightingsystem Chiller AHUFHU MainWater RCColdWaterTankRCFireSprinkleTank IrrigationTapToiletPantry Hydropneumaticpumps Table5.3.1OverviewdiagramofWaterSupplySystem,KLPAC
  • 47.
    ARC 2423 BUILDINGSERVICES PROJECT 1 CASE STUDY ANALYSIS AND DOCUMENTATION OF BUILDING SERVICES SYSTEM 47 | P a g e 5.3.2 Water Supply Components 5.3.2.1 Water Main Figure 5.6 Water is supplied by SYABAS through underground pipes (KLPAC, 2005)
  • 48.
    ARC 2423 BUILDINGSERVICES PROJECT 1 CASE STUDY ANALYSIS AND DOCUMENTATION OF BUILDING SERVICES SYSTEM 48 | P a g e According to the Schematic drawing in Figure 5.6, water resource of KLPAC is supplied from SYABAS through underground pipes. The water main and fire safety main are connected to each other and share the same water source from SYABAS. These water mains are connected down to the underground water storage tanks. Figure 5.7 Water Main and Fire Water Main share one water source from SYABAS (Jian Jun, 2015) FIRE MAIN WATER MAIN Figure 5.8 Connection of underground pipelines from Water Main (Google Image,2015) Figure 5.9 Steel Cement Lined Underground Pipes
  • 49.
    ARC 2423 BUILDINGSERVICES PROJECT 1 CASE STUDY ANALYSIS AND DOCUMENTATION OF BUILDING SERVICES SYSTEM 49 | P a g e 5.3.2.2 Water Meter A typical water main comprises of main components, such as gate valve, water meter, pressure meter, adjustable ball valve and strainer. The water meter indicates the amount of water consumed in the building. The strainer helps to screen out particulate matters in a piping system before the water is delivered to the water storage tanks. Occupant is responsible to pay the water bill according to the amount of water consumed with a fixed rate. The valves act as a switch to allow water to flow in through the pipes. It is often shut down to stop water flowing in when there is maintenance. In Figure XX it is showed that the ball valve is locked to prevent people from switching off the valve, making sure the water is always flowing continuously. The pipes connected to the water meter are made up of 38ø mm galvanized iron. The water is then continues to flow through the 150ø mild steel cement lined supply pipe underground thereafter the tanks. Figure 5.10 Diagrammatic drawing of water meter component in KLPAC GATE VALVE METER LOCKED BALL VALVE PRESSURE METER Figure 5.11 Water meter and Locked Ball Valve Figure 5.12 Gate Valve and pressure gauge GATE VALVE PRESSURE GAUGE METER GATE VALVE FROM WATER MAIN TO STORAGE TANK
  • 50.
    ARC 2423 BUILDINGSERVICES PROJECT 1 CASE STUDY ANALYSIS AND DOCUMENTATION OF BUILDING SERVICES SYSTEM 50 | P a g e 5.3.2.3 RC Cold Water Tank Water from the water supply mains flows through the underground pipes, passing through the main gate valve and then directed into two tanks, the domestic cold water tank and the fire sprinkler tank. From the 150ø mild steel cement lined underground supply pipe, the water is distributed through a smaller 100ø mild steel pipe into the cold water tank while the pipe size remains 150mmø for the pipe flowing into the fire sprinkle water tank. Before the water enters the tank, chlorine is added to the water for disinfection. The mild steel pipes for water supply are indicated with green paint while the fire system pipelines are painted red. The water from fire safety main fills up the fire sprinkler water tank, connecting to the standby priming tanks for hose reel, duty and hockey and wet risers at different zones. This also follows UBBL 1984 Section 247 (2): Water Storage, where:  Storage tanks for automatic sprinkle installation where full capacity is provided without the need for replenishment shall be exempted from the restrictions in their location. Figure 5.13 Reinforced Concrete Water Storage Tank with Overflow Pipes Figure 5.16 Main gate valve connected to RC water tank Figure 5.15 Service Access Reinforced concrete tank Overflow pipes Figure 5.17 Chlorine StandFigure 5.14 Placement of Water Tank Underground
  • 51.
    ARC 2423 BUILDINGSERVICES PROJECT 1 CASE STUDY ANALYSIS AND DOCUMENTATION OF BUILDING SERVICES SYSTEM 51 | P a g e Both cold water and fire sprinkler water tanks are made up of reinforced concrete, the tanks size in volume are 35m3 , which is equivalent to 35000 liters of water. There is no water level indication on the wall but it is replaced by submersible Electrode Water Level Sensor in the tank to measure the water level in the tank. Water in both water tanks are being controlled by the floating device installed in the tank. The buoyant ball will stop the water from entering the tank when it reaches maximum water level in the tank. Overflow pipes are also installed on the tank to discharge excessive water. The water discharged will be collected and to be used as non-potable water. The water exits through foot valves connecting to the hydro pneumatic system. The underground tanks are designed with accordance to UBBL 1984 Section 247 (2): Water Storage a) Main water storage tanks within the building, other than for hose reel system, shall be located at ground, first or second basement levels, with fire brigade pumping inlet connections accessible to fire appliance. Figure 5.21 Water discharged to scupper drain through scour pipes Figure 5.20 Electrode Water level sensor to indicate water level Figure 5.19 80mm and 100mm riser pipes for potable and flushing use respectively Figure 5.18 KLPAC water supply schematic diagram (Cropped)
  • 52.
    ARC 2423 BUILDINGSERVICES PROJECT 1 CASE STUDY ANALYSIS AND DOCUMENTATION OF BUILDING SERVICES SYSTEM 52 | P a g e Figure 5.22 Water tank plan view Figure 5.23 Section View of Concrete tank Table 5.3.2 Legend of Components
  • 53.
    ARC 2423 BUILDINGSERVICES PROJECT 1 CASE STUDY ANALYSIS AND DOCUMENTATION OF BUILDING SERVICES SYSTEM 53 | P a g e 5.3.2.4 Hydro Pneumatic Pump System Channeled from the foot valves of the tank, the water is connected to a hydro pneumatic booster system. Hydro pneumatic pump system is required to deliver water continuously at all outlets in all floors of the building with uniform pressure. The pump system used in KLPAC is manufactured by the established booster pump company, Grundfos. A hydro pneumatic booster system comprises of hydraulic pump, pressurized tanks, and pressure meter. Compressed air is used in these tanks as a buffer or cushion that allows a surge-free delivery process. There are three functions for hydro pneumatic tanks. The first is as part of a water delivery system set to deliver water in a preset pressure range. The second uses the pressure setting to monitor a pump from turning on too often. The third is to buffer or lower pressure surges, much like a power surge protector. Two sets of booster pump are utilized in KLPAC, one is for the domestic water usage, and another one is for flushing purpose. The efficiency of the pump is depends on the hydraulic design. Normal pumps can easily breakdown due to dry running but this patented Grundfos LiqTec system eliminates the risk of breaking down and immediately stop if there is no liquid in the pump. Energy is required to generate pressure to pump the water to different part of the building and it is definitely costly. Figure 5.25 Water Pressure Gauge Figure 5.26 Pressurized tank Pumps Water tanks Figure 5.24 Hydro Pneumatic Pump System
  • 54.
    ARC 2423 BUILDINGSERVICES PROJECT 1 CASE STUDY ANALYSIS AND DOCUMENTATION OF BUILDING SERVICES SYSTEM 54 | P a g e The underground water keep in the tank acts as a buffer zone on peak water demand periods. The tank is filled up with water during low consumption or low demand and use up during peak periods. The normal pressure indicated in the gauge shows a figure of 80 Pa approximately. When there is demand on water, the meter will fall below 80 Pa and the hydro pump will start pumping up water to supply uniform pressure in water. When the peak demand is over, the water tank will be filled up again and remains at the normal pressure. This system runs 24 hours but the system is not complete as some of the tanks are not function-able. Further study is discussed at Water Supply System Analysis. Figure 5.28 Plan View of Pump Room The pump system is designed as to follow UBBL 1984 Section 247 (2): Water Storage b) Water storage capacity and water flow rate for firefighting system and installation shall be provided in accordance with the scale as set out in the tenth schedule to these by- laws. Figure 5.27 Hydro Pneumatic Pump System diagrams
  • 55.
    ARC 2423 BUILDINGSERVICES PROJECT 1 CASE STUDY ANALYSIS AND DOCUMENTATION OF BUILDING SERVICES SYSTEM 55 | P a g e 5.3.3 Plumbing system 5.3.3.1 Types of Pipes The type of pipes selected mainly depends on many factors, involving the consideration of the building capacity, water demand, and rate of flow needed by users, number and size of the storage or pressure tanks used, operating pressure required, maintenance and service and also energy cost. Other than that, the material properties of the pipes plays a very important role on selection of pipes due to its ability to sustain, resist chemical hydrants and pressure. a) Steel Cement Lined Pipes Steel Cement lined pipes are used to channel water from the main underground. This cement coated steel pipes. The steel pipes is able to withstand pressure and allow undisturbed continuous flow of water over long period of time. The cement/mortar lining provides an area of high pH near the pipe wall and provides a barrier between the water and the pipe, reducing its susceptibility to corrosion. Therefore prevent future tuberculation, eliminate leakage and corrosion in pipes than cement mortar lining. The steel pipes are produced according to British Standards BS534:1990, BS3600:1976 and BS3601:1987 standards, and are certified by Ikram Quality & Certification Institute. The size of the pipes used in KLPAC is 150mm ø, buried underground channeling from water main to the water storage room. Figure 5.29 Steel Cement Lined Underground Pipes
  • 56.
    ARC 2423 BUILDINGSERVICES PROJECT 1 CASE STUDY ANALYSIS AND DOCUMENTATION OF BUILDING SERVICES SYSTEM 56 | P a g e The placement of the pipes and the space allowance for construction conforms with the UBBL 1984 in Section 123 Pipes and Services Ducts, where: I. Where dusts or enclosures are provided in any building to accommodate pipes, cables or conduits the dimensions of such ducts or enclosures shall be:  Adequate for the accommodation of the pipes, cables, or conduits and for crossings of branches and mains together with supports and fixings  Sufficiently large to permit access to cleaning eyes, stop cocks and other controls there to enable each or all of the services accommodate II. The access openings to ducts or enclosures shall be long enough and suitably placed to enable lengths of pipes to be installed and removed. b) Cast Iron Pipes Cast Iron Pipes which superseded by Ductile Iron Pipes has historic use as a pressure pipe mainly for transmission of water, then the gas, sewage, and also as water drainage pipe. In KLPAC, these pipes can be found mainly at the water pump room connecting to water tanks, booster system and to the rising main. It has high resistance to shock or impact due to improper handling, water hammer or undesirable condition. The sizes of the pipes utilized are 50mm, 80mm, 100mm and 150mm and Ductile Iron Pipes used are complying with BS EN 545: 2006 and being certified by 3rd Certification Party as well as National Water Authorities, Suruhanjaya Perkhidmatan Air Negara (SPAN). Figure 5.30 Photos of Pipes Connection Pump Control Panel Cast Iron Pipes C.I. Strainer Pumps
  • 57.
    ARC 2423 BUILDINGSERVICES PROJECT 1 CASE STUDY ANALYSIS AND DOCUMENTATION OF BUILDING SERVICES SYSTEM 57 | P a g e c) Copper Pipes All distribution pipes in KLPAC is comprised of copper pipes. Copper has very good material properties as it provides long term performance and prevent contamination and inhibits growth of bacteria, withstand pressure and temperature change and requires very low maintenance. The sizes of copper pipes are very much depending to the outlets of the services, where the amount of water needed is taken into account following the standards. For example, the pipe sizing for toilet flushing purpose and domestic use differs. In the system, the pipes channel from the main tank are getting distributed in smaller pipes to washroom, sinks, and basin. The size of copper pipes utilized in KLPAC can be refer to the table below. Fittings Pipe sizes (diameter/mm) Flush Valve 65mm  40mm Basin 15mm Shower Tap 20mm Tap 15mm Urinal (male toilet) 20mm Sinks ( kitchen ) 15mm Table 5.3.3 Schedule of copper pipes Figure 5.31 Photo of Distribution Pipes for Washroom (KLPAC, 2015)
  • 58.
    ARC 2423 BUILDINGSERVICES PROJECT 1 CASE STUDY ANALYSIS AND DOCUMENTATION OF BUILDING SERVICES SYSTEM 58 | P a g e d) U-PVC pipes The U-PVC pipes are mostly used for sewage system and venting. These UPVC SWV fittings are produces according to MS 1063 and complied with BS 5255, BS 4514 and BS EN 1401. These fittings are used for solvent cement jointing with UPVC SWV pipes. Theses piping system is used for soil and waste discharge pipe work for conveyance of domestic waste water and ventilating pipe with conformation of the standards. Table 5.3.4 Schedule of U-PVC Fittings and Sizing Figure 5.32 Photo of u-PVC pipe
  • 59.
    ARC 2423 BUILDINGSERVICES PROJECT 1 CASE STUDY ANALYSIS AND DOCUMENTATION OF BUILDING SERVICES SYSTEM 59 | P a g e e) Galvanized Iron Pipes KLPAC has a mixture use of G.I Pipes as it can be seen at many places connecting to walls and many other pipes. It has been used to penetrate through the reinforced concrete walls from zone to zones. f) HDPE pipes The High Density Polyethylene Pipes can be seen at the irrigation area for landscape. The pipes has flexible and resistance against weather and chemicals. G.I Pipe Figure 5.33 Galvanized Pipes Connection through Wall Figure 5.34 Galvanized Iron Pipes as Suction Pipes Figure 5.35 Galvanized Iron Pipes at Water Meter HDPE Pipe Figure 5.36 HDPE pipe For Irrigation
  • 60.
    ARC 2423 BUILDINGSERVICES PROJECT 1 CASE STUDY ANALYSIS AND DOCUMENTATION OF BUILDING SERVICES SYSTEM 60 | P a g e 5.3.3.2 Fixture and Connection of pipes It is important how pipes are laid and fixed around the building. The pipe layout requires proper planning to allow efficient flow of water from zone to zone thus saving spaces and energy to pump water. There is also some critical area where connection of multiple pipes are designed to be fixed on the headspace, vertical walls, and electrical sensitive areas. Figure 5.37 Diagrams of Pipes Fixtures (KLPAC,2005)
  • 61.
    ARC 2423 BUILDINGSERVICES PROJECT 1 CASE STUDY ANALYSIS AND DOCUMENTATION OF BUILDING SERVICES SYSTEM 61 | P a g e 5.4 Findings and Analysis The water supply system used in KLPAC is conventional. The existing system is still functioning since KLPAC is operating 10 years ago. However, findings studied that there are part where the water supply system is yet to be said efficient and there are suggestions to make improvement to the existing water system. 5.4.1 Analysis a) Water Tank The finding analyzed that the sub-tanks connecting to the hydro pneumatic pumps are no longer in used. The water tanks were once used to store water and supply water to the building and the users. The reason of abandonment given was due to its high maintenance cost and also its operation. The tanks were shut down left only the use of water pumps and only one source from the underground RC water storage tank. The effort to remove the tanks from the narrow basement requires a lot of planning, mechanical and man power, shifting of components and operations and halting of water supply. These unused tanks are left in the underground and taking up potential spaces to upgrade the water supply system for the future use. b) Water Supply There is no other water tanks available in KLPAC excluding the only one source from the underground water storage. In the study it concludes that there is zero water supply and no other “back-up” water storage if the KLPAC or the season itself are encountering water shortage. All washrooms and the landscape in KLPAC extract water from the underground water tank and relying on the only water source. It will bring a lot of unpleasant consequences if there is no water to supply to the building during dry seasons. Maintenance is difficult as water are all stored in one place and there is no other places to store water while the maintenance is taking place. The 35000 liter water was estimated to last only less than a week to fulfil the user needs in the building. C) Water Pump There are only two sets of hydro pneumatic pumps functioning in KLPAC. The energy requires to pump all water supply to zones and users are high in cost and it is inefficient. This is one of the reason why it led to the abandonment of the sub-tanks in order to cut down the bill. The utilization of the Hydro Pump system is manually controlled by technicians and it has to be monitored every day. If there is an electricity shortage, there is no back up electricity generator set available to pump the water. The only gen set available is prior for fire fighting system. It would be very inconvenient to the building as KLPAC is a performing art center and it is very hard to supply water to the users if there is no water supply in the storage. In short, further consideration of issues encountered and problem solving is not discussed.
  • 62.
    ARC 2423 BUILDINGSERVICES PROJECT 1 CASE STUDY ANALYSIS AND DOCUMENTATION OF BUILDING SERVICES SYSTEM 62 | P a g e 5.4.2 Suggestion on Improvement The main issue of the water supply system is the operational cost and the efficiency of water supply in the events of water main failure. The solution of the issues mentioned can be solved by making use of the spaces on the roof top and by adding water storage tanks and promotes gravitational distribution system. This proposed solution allows replacement of the abandoned water tanks in the pump rooms, while adding up the water capacity to fulfill the building water demand. The placement of water tank at higher position promotes gravitational water distribution. KLPAC has only 6 stories, the energy required to pump up to that level is not too high, the system can be programmed when only if the water tank falls below a certain level and to be fed up. Compared to the current system, the pump is often switched on and off so many times as it consumes more energy by doing that to pump water throughout the building all year long. The gravitational water supply system can save cost on operation and also it can store water as back up in case if there is a water main failure and electricity break. With this, it tackles all three issues mentioned in the finding and analysis. Otherwise, an extra genset for water pump is sufficient to make improvement on the current system. 5.5 Conclusion Regardless of so many pressurized system used in today’s building to replace the roof top water tanks, KLPAC can be the exception to have a water tank at the roof top because it is not a tall building. Unlike those high rise buildings, the energy required to pump water all the way up to the top of the building is low. The pressure at the lowest floor of KLPAC is not too high and the pressure reduction valves are not required in KLPAC. The only issue which has to be taken into account is the back-up water storage to prevent water main and electricity failure. Having a water tank at roof top is considered a conventional system and this system is seen as a matured technology as it is very familiar to the local technicians and maintenance workers. Rather than having a costly and high maintenance system which cannot be fully utilized, back up water storage at the roof top and gravitational water distribution system are the suggestable solutions to KLPAC.
  • 63.
    ARC 2423 BUILDINGSERVICES PROJECT 1 CASE STUDY ANALYSIS AND DOCUMENTATION OF BUILDING SERVICES SYSTEM 63 | P a g e 6.0 Sewerage, Sanitary and Drainage System by CHOONG WAN XIN 6.1 Introduction Sewage (also known as wastewater) is defined as the used water and waste substances produced by human bodies that are carried away from houses and factories through special pipes. It encompass potential contaminants and concentration that are hazardous to living organisms such as feces and urine, rubbish, and chemical wastes from estates. It is then disposed of from different sources through underground conduits and drains. Wastewater is cleaned and treated with natural process in sewerage system before discharging into river. It is important to treat wastewater in different type of appliances as it can pollute the water and increase BOD which causes threatening diseases to human and animals lived. A combination of drainage system consists of sanitary appliances, pipes, service areas and treatment area are normally covered behind walls of the building during construction or placed in service rooms without human notifications. During the design of buildings, the sewerage and drainage system should be considered by following the laws to ensure that the users will not be affected by improper disposal of wastewater. Figure 6.1 Flow of sewerage and sanitary system of a residential house 6.2 Literature Review Managing sewage is major challenge in urban areas particularly in rapidly growing country like Malaysia. Lack of an effective and efficient wastewater disposal and treatment system has had a negative impact on the environment and also human being. In order to collect and convey liquid waste by water carriage system, an effective sewerage system connecting network of sanitary appliances, pipes as well as sewage treatment is operated.
  • 64.
    ARC 2423 BUILDINGSERVICES PROJECT 1 CASE STUDY ANALYSIS AND DOCUMENTATION OF BUILDING SERVICES SYSTEM 64 | P a g e Figure 6.2 Diagram of a complete sewerage system from different sources Starting from the appliances available in a toilet, traps, stacks, septic tank and public sewer will be discussed in this chapter in sequences. Sanitary appliances allow users to dispose of excreta and urine into the sewage system with the forces of water taps or flushing devices. The appliances connect to drainage system that conveys sewage and rainwater to an approved point of disposal through a network of piping within private or public premises. Traps are used in the toilet to prevent large waste product from entering the waste or soil pipe and also to prevent back flow of the water. Sewage is then carried to the underground conduits or drains called sewer. The types of sewer commonly installed are the sanitary sewer, storm sewer and combined sewer. Sanitary sewer is an underground carriage system used for transporting sewage from houses, commercial buildings and industrial areas with the help of sanitary sewer line attaching to a main sewer. The main sewer run directly to the sewage treatment plant. Storm sewer collects storm water with the help of gutter and catch basin. Gutter functions as draining the storm water from the street directly into the sewer. Combined sewer works as a combination of sanitary and storm sewers that collects both sewage and storm water runoff in a single pipe system. Serious water pollution may happen due to combining large variation of sewer flow between dry and wet weather.
  • 65.
    ARC 2423 BUILDINGSERVICES PROJECT 1 CASE STUDY ANALYSIS AND DOCUMENTATION OF BUILDING SERVICES SYSTEM 65 | P a g e Figure 6.3 Difference of sewerage disposal between separated and combined sewers during different weather Sewage treatment and sewage passage is under properties of the authorities but it only starts at the boundary of the private building excluding the septic system located on site. The system within the building and the boundary is under the responsibility of the property owner that subjected to rules and regulations of its components.
  • 66.
    ARC 2423 BUILDINGSERVICES PROJECT 1 CASE STUDY ANALYSIS AND DOCUMENTATION OF BUILDING SERVICES SYSTEM 66 | P a g e 6.3 Case Study Kuala Lumpur Performing Arts Centre (KLPAC) consists of 4 floors (ground, first, second and third floor). Sewerage system in this building features the functions of collection, conveyance, treatment and disposal. Combined stack system is installed in this building with similar location of wash closets on each floors. Sewage collected from the appliances is collected and conveyed through the network of pipe lines: soil pipe, vent pipe and waste pipe. It is discharged to the nearest manhole and then to the septic tank of the property for treatment. Manholes and inspection sports are located outside the building in cover for services and inspections. Figure 6.4 Ground floor plan
  • 67.
    ARC 2423 BUILDINGSERVICES PROJECT 1 CASE STUDY ANALYSIS AND DOCUMENTATION OF BUILDING SERVICES SYSTEM 67 | P a g e 6.4 Components of System 6.4.1 Sanitary Appliances Sanitary appliances are used for collection and discharge of waste matter and soil. There are two groups of sanitary appliances in KLPAC, the waste and soil appliances. Soil appliances include water closet and urinal while the waste appliances are bidet, sink and wash basin. All these appliances are made of non- absorbent, non-corroding, smooth and easily cleaned material like ceramic ware, stainless steel or plastic. Figure 6.5 Female washroom located at ground floor of KLPAC Figure 6.6 Ground floor male and female toilets at KLPAC
  • 68.
    ARC 2423 BUILDINGSERVICES PROJECT 1 CASE STUDY ANALYSIS AND DOCUMENTATION OF BUILDING SERVICES SYSTEM 68 | P a g e 6.4.1.1 Water Closet Water closet is an enclosed room or compartment containing a toilet bowl fitted with a mechanism for flushing. A toilet is composed of two main pieces -- the tank (water reservoir) and the bowl (the part the user sits). When the flush lever is pushed, it pulls up on the chain and so the flush valve. This exposes the large discharge hole at the bottom of the tank allowing water to rush quickly into the toilet bowl. Immediately after a flush begins the water level in the tank and the floats starts to go down, at the same time the float opens the fill valve, and water from the house water pipe (through the stop valve) begins to flow into the tank. When it's almost empty the flapper can no longer float and falls onto the discharge hole sealing/closing it again and the water coming in through the fill valve starts refilling the tank. While the tank is refilling, a small amount of water is also going from the fill valve through the refill tube into the overflow tube that empties directly into the toilet bowl. This water raises the water level in the bowl. When the water level in the tank has returned to its original level, the float closes the fill valve and the cycle is complete. An overflow tube is provided to direct the excess water refilling in the tank into the bowl after it reaches a certain level. Figure 6.7 Water closet in KLPAC Figure 6.8 Compartments of Water Closet According to UBBL 1984, Section 43: In all buildings, the size of the latrines, water-closets and bathrooms shall be (a) In the case of latrines or water-closets with pedestal-type closet fittings, not less than 1.5 meters by 0.75 meter.
  • 69.
    ARC 2423 BUILDINGSERVICES PROJECT 1 CASE STUDY ANALYSIS AND DOCUMENTATION OF BUILDING SERVICES SYSTEM 69 | P a g e 6.4.1.2 Basins Sink is a wide bowl that has a faucet for water and a drain at the bottom and is usually positioned in a counter or on a pedestal. Some sinks provide separate taps with hot and cold water supplies called faucets. A drain is included in a basin to remove overflow water when the basin is clogged. To remove clogged items in a sink, a specific chemical drain cleaner or a plunger will be used. The type of sinks installed in KLPAC are different in materiality (stainless steel sinks in kitchen, concrete sinks and ceramic sinks in washrooms). Figure 6.9 Ceramic basin in KLPAC Figure 6.10 Components of a basic sink Ceramic sinks are made with a raw material that contains clay, glass and metal. This mixture has been used as a sink material for decades with a smooth, impervious surface and extremely low moisture absorbency. Ceramic sinks are easy to maintain. Their impenetrable surface is stain resistant, so it can be easily cleaned with basic all-purpose cleaning products. On the other hand, most ceramic sinks are made of raw materials, which means that many of them differ slightly in finish and color. Prone to chipping, cracking and scratching, ceramic sinks often need replacing if damaged. Figure 6.11 Costumed made concrete sink in washroom in KLPAC
  • 70.
    ARC 2423 BUILDINGSERVICES PROJECT 1 CASE STUDY ANALYSIS AND DOCUMENTATION OF BUILDING SERVICES SYSTEM 70 | P a g e A concrete sink can be a washroom addition that will last a very long time. They are usually unique and different for being customized. Due to its material characteristics, concrete is very strong and not easily damaged. Unfortunately, concrete sinks need to be maintained by periodically sealing and repairing cracks and chips before they spread and become worse. Concrete sinks can also be extremely heavy and require special support. Supports not only need to be installed underneath the sink, but also the floor must be strong enough to support the added weight. Finally, concrete sinks can be very expensive to install. Since they are largely custom made, there is no standard price and homeowners cannot simply purchase one online or through a home improvement center. Figure 6.12 and Figure 6.13 Different type of stainless steel basins in kitchen area in KLPAC Stainless steel makes an affordable, low-maintenance kitchen sink. They do not chip, crack or peel as enamel or porcelain sinks will do, and they’re resistant to stains. Although stainless steel resists corrosion, prolonged contact with chlorine bleach, muriatic acid, solvents and other harsh or abrasive cleaners can damage stainless steel finishes and leave them vulnerable to rust. The thickness of the steel also plays a role in the sink’s resistance to scratches and dents. The thicker the steel, the more durable the sink will be. One drawback to stainless steel sinks is that limited options in color and finish are provided. While it comes in a range of finishes, such as mirrored, glossy sheen or brushed nickel, the color will always be silver. Another drawback to this type of sink is that it tends to be noisy in comparison to other materials, such as acrylic or porcelain sinks. But higher-end stainless steel sinks offer sound-muffling coatings over the steel or a spray coating on the underside of the sink. This can greatly reduce the noise level, although it will not eliminate it.
  • 71.
    ARC 2423 BUILDINGSERVICES PROJECT 1 CASE STUDY ANALYSIS AND DOCUMENTATION OF BUILDING SERVICES SYSTEM 71 | P a g e 6.4.2 Traps A trap is a device which is used to prevent sewer gases from entering the buildings. The traps are located below or within a plumbing fixture and retains small amount of water. The retaining water creates a water seal which stops foul gases going back to the building from drain pipes. Therefore all plumbing fixtures such as sinks, washbasins, and toilets in KLPAC are equipped with traps. 6.4.2.1 Water seal Water seal in a trap is the depth of water which should be removed from a fully charge trap before gases at atmospheric pressure may pass from the waste pipe through trap into a building. The tape is useless unless they retain their seals at all times. The seal may be broken due to air compressor, momentum and evaporation. The trap in fittings in range is liable to symphonic action and each trap should be ventilated. The principle of the water trap works with the presence of water. The water sits in the trap where it forms a blockage for gas trying to get back into the room. The water will sit just below the level of the outlet bend until more water is introduced from the incoming pipe. The incoming water will replace the water in the trap and push it out of the outlet. Figure 6.14 Example of water seal in a P-pipe. 6.4.2.1.1 Bottle and Sink Traps A bottle trap is long and thin and will not take up so much room in a kitchen unit or under a basin while sink trap used in KLPAC is the addition of a 90 degree fitting on the outlet side of a U-bend, thereby creating a P-like shape. It is also referred to as a sink trap because it is installed under most house sinks. Both are usually made of plastic but chrome plated versions are available for most applications. This type of trap can be hidden behind a pedestal although proprietary pedestal traps are a little longer. Because it is a localized low-point in the plumbing, it tends to capture heavy objects that are unwittingly dropped into the sink. Besides, it also functions to collect hair, sand, and other debris and limits the ultimate size of objects that will pass on into the rest of the plumbing, thereby catching over-sized objects.
  • 72.
    ARC 2423 BUILDINGSERVICES PROJECT 1 CASE STUDY ANALYSIS AND DOCUMENTATION OF BUILDING SERVICES SYSTEM 72 | P a g e Figure 6.15 Bottle traps installed in the toilet of KLPAC Figure 6.16 Diagrammatic drawing of bottle trap (left) and sink trap (right) used in KLPAC 6.4.2.1.2 Floor Trap This trap is provided in the floor to collect waste water from washbasin, shower, sink and bathroom etc. These are available in cast iron or UPVC material and have removable grating (JALI) on the top of the trap. The minimum depth of water seal should be 50 mm. Figure 6.17 Cast iron floor trap grating in toilet of KLPAC Figure 6.18 Example of a floor trap
  • 73.
    ARC 2423 BUILDINGSERVICES PROJECT 1 CASE STUDY ANALYSIS AND DOCUMENTATION OF BUILDING SERVICES SYSTEM 73 | P a g e 6.4.2.1.3 Gully Trap These traps are constructed outside the building to carry waste water discharge from sanitary appliances and are connected to the nearest building drain/sewer so that foul gases from sewer do not come to the house. These are deep seal traps, the depth of water seal should be 50 mm minimum. It also prevents the entry of cockroach and other insects from sewer line to waste pipes carrying waste water. The initial thought was that the trap would prevent the foul air and rodents from leaving the sewer systems and surfacing within domestic curtilages and to some degree this may have been the case, however the traps created their own problems partly because they were often installed on combined storm and foul drainage systems and as a result silt and debris would collect in the trap causing the occasional blockage. Common defects found on interceptors include root ingress, fracturing due to movement or settlement of the chamber and a general buildup of silt, debris, grease and fat within the trap itself. Figure 6.19 Plans and Section of gully trap with cover at KLPAC
  • 74.
    ARC 2423 BUILDINGSERVICES PROJECT 1 CASE STUDY ANALYSIS AND DOCUMENTATION OF BUILDING SERVICES SYSTEM 74 | P a g e Figure 6.20 Compartments of a gully trap Figure 6.21 Example of a gully trap 6.4.2.1.4 Grease Trap A grease trap, or grease interceptor, is a plumbing device designed to "trap" and prevent grease from entering the sewer system and causing sewer pipe blockages. A grease trap should be connected to any fixture or drain that discharges wastewater containing oil and grease to the grease trap, including, sinks for washing dishes, floor drains and cooking equipment. When there is wastewater entering the grease trap, it cools and the grease and oil harden and float to the top of the trap. The rest of the wastewater flows through the trap and out the exit pipe to the sanitary sewer. The grease, oil and fat remain in the trap. For the best operation, the grease trap should be cleaned regularly and serviced at least once every four weeks. When warm fats, oils, and grease make their way into the plumbing system, over time they build up and cause a number of problems, including blocked sewers. Blocked sewers can lead to a sewage backup into the building itself, neighboring property or even local rivers. Blocked sewers can also lead to increased vermin and contact with disease-causing organisms, all of which pose serious health risks to anyone working in or visiting the building. Figure 6.22 Diagram of a grease trap
  • 75.
    ARC 2423 BUILDINGSERVICES PROJECT 1 CASE STUDY ANALYSIS AND DOCUMENTATION OF BUILDING SERVICES SYSTEM 75 | P a g e Figure 6.23 Example of installing an underground grease trap 6.4.3 Pipework Getting the used water and other waste products away from sanitary appliances is the primary purpose of the above ground drainage pipework. The pipework must be professionally designed and installed to ensure no smells enter the building from the pipework and all waste products are disposed of safely. The drainage system in a building historically was made from metals such as cast iron, copper or lead but for the last 40 years PVC plastic has been used as the main drainage pipe material. All the pipes are laid out to a slope or ‘fall’ to allow the water to drain away without leaving behind any dirt or debris in the pipe. All appliance connections to the drainage system must have a trap on them to prevent smell or gasses entering the home. Pipe system includes network of pipes and valves, which are main pipe, feeder pipe, branch pipe and valve. Main pipe delivers water from treatment plant to distribution tank or directly to distribution area. Feeder pipe is directly connected to a main pipe for distribution of water to industrial or residential areas. Branch pipe is installed from feeder pipe to individual house, building, factory or fire hydrant. Valve is needed to control water flow rate, stop water flow, release trapped air in pipe, balance pressure in pipe and remove effluents.
  • 76.
    ARC 2423 BUILDINGSERVICES PROJECT 1 CASE STUDY ANALYSIS AND DOCUMENTATION OF BUILDING SERVICES SYSTEM 76 | P a g e Figure 6.25 Diagrammatic of the soil and waste pipes connecting to stack 1 and 2 in KLPAC Figure 6.24 Example of waste pipe system in a typical house
  • 77.
    ARC 2423 BUILDINGSERVICES PROJECT 1 CASE STUDY ANALYSIS AND DOCUMENTATION OF BUILDING SERVICES SYSTEM 77 | P a g e 6.4.3.1 Soil and Waste Pipe Drain-waste-vent (DWV) pipes carry waste and water out of the building without gurgles or fumes. Water produced at fixtures such as toilets, sinks and showers travels downward through the stacks to the main drain line and exits the fixtures through a trap, a dipped section of pipe that always contains water. At the end, it is leaded to the municipal sewage system or to a septic system. More into details, water runs down the sink drain into a p-trap, which fills up with water to prevent sewer gases and odors from getting into the house through the pipe. This water gets refreshed whenever more water runs through it. A drainpipe attached to the p-trap goes into an opening in the wall. Behind the wall, a vent line and drainpipe lead to a soil stack, which is the control center of the wastewater system. Drain pipes take the wastewater to the soil stack; through the stack, sewer gases are carried up to the roof through vent lines. In KLPAC, material that is used for the soil and waste pipe system is uPVC. The soil pipe is located inside or outside and the end is terminated with an open end covered in a cage (to stop birds nesting in it) or with an automatic air admittance device. Figure 6.26 uPVC pipe in KLPAC Figure 6.27 Diagrammatic drawing of uPVC pipe in KLPAC
  • 78.
    ARC 2423 BUILDINGSERVICES PROJECT 1 CASE STUDY ANALYSIS AND DOCUMENTATION OF BUILDING SERVICES SYSTEM 78 | P a g e 6.4.3.2 Vent pipe For water to flow smoothly without gurgling, there must be an air passageway behind the water. Vent pipes extend from the drainpipes up through the roof to provide that passage. Vent pipes also carry odors out of the house. The drainpipe for each plumbing fixture must be connected to a vent that supplies the pipe with air from the outside. In some cases the drainpipe is connected directly to a main or secondary stack pipe, which travels straight up through the roof. More often a drainpipe is connected to a recent pipe that reaches up and over to tie into the main vent stack. Vitrified clay pipe (VCP) and uPVC pipe are installed for the vent pipe system in KLPAC and they are carried up to 450mm above roof level. All pipe passing through the roof structure is provided with collar and flashing to form tight joints. Figure 6.28 Diagrammatic drawing of vitrified clay pipe (VCP) in KLPAC Under Law of Malaysia Act 133 Street, Drainage, Building Act 1974, Section 56 (1) Rainwater pipes not to be used as soil pipe state that: “no pipes used in the carrying of rainwater from any roof shall be used for the purpose of carrying off soil and drainage from any privy or water closet or sullage water.” Under Law of Malaysia Act 133 Street, Drainage, Building Act 1974. Section 57 No water pipe, stack pipes or down spout used for conveying surface water from any premises shall be used or permitted to serve or to act as ventilating shaft to any drain or sewer.
  • 79.
    ARC 2423 BUILDINGSERVICES PROJECT 1 CASE STUDY ANALYSIS AND DOCUMENTATION OF BUILDING SERVICES SYSTEM 79 | P a g e 6.4.4 Inspection chamber All underground drainage systems must have access points, to enable the drains to be inspected on a regular basis and to be cleaned in the event of a blockage. The most common form of access is an inspection chamber, often still referred to as a manhole. In times gone by, manholes were actually large, bricked up chambers that had iron steps built into the wall, enabling a person to physically climb down into the drainage system. The main difference between one of these old manholes and an inspection chamber is that inspection chambers do not permit physical entrance into the drains. Figure 6.29 Light duty cast iron covered inspection chamber at KLPAC
  • 80.
    ARC 2423 BUILDINGSERVICES PROJECT 1 CASE STUDY ANALYSIS AND DOCUMENTATION OF BUILDING SERVICES SYSTEM 80 | P a g e Figure 6.30 Plan and section of an inspection chamber in KLPAC 6.4.5 Manholes Manholes (MH) are the largest top opening to an underground utility chambers providing access to a sewer or drain for maintenance equipment on underground and buried public utility, and, in some cases, for operatives to enter the system itself to make connections, inspection, valve adjustments and other services including sewers, telephone, electricity, storm drains, district heating and gas. Manhole closings are protected by a manhole cover, a flat plug designed to prevent accidental or unauthorized access to the manhole.
  • 81.
    ARC 2423 BUILDINGSERVICES PROJECT 1 CASE STUDY ANALYSIS AND DOCUMENTATION OF BUILDING SERVICES SYSTEM 81 | P a g e Figure 6.31 Cast iron manhole frame and Cover Figure 6.32 Section of a manhole at KLPAC 6.4.6 Septic Tank The typical septic tank is a large buried rectangular or cylindrical container made of concrete, fiberglass, or polyethylene. A septic tank's purpose is to separate solids from the wastewater, store and partially decompose as much solid material as possible, while allowing the liquid (or effluent) to go to the drain field. Wastewater from toilet, bath and kitchen flows into the tank and remains there for up to 24 hours (known as the retention time) before it passes to the drain field. This helps prevent clogging of the drain field, which can lead to failure and costly repairs. The retention time is necessary to allow the solids to properly separate from the liquids—heavy solids settle to the bottom as sludge and the lighter particles rise to the top, forming a scum layer. Although bacterial action partially decomposes some of the solids, up to 50 percent remain in the tank. Before that, septic tanks had one compartment; however, current regulations require two chambers, which do a better job of settling solids. In residential systems, the tank size is determined by the number of bedrooms and should be enough to handle approximately three years’ worth of sludge and scum. In commercial establishments like KLPAC, the tank size is determined by the amount of daily flow. As wastewater flows into the tank, a tee (or baffle) at the tank's inlet pipe slows the incoming wastes and reduces the disturbance of the settled sludge. The outlet tee keeps the solids or scum in the tank. In old tanks installed, an effluent filter is attached to the outlet baffle (going to the drain field) to keep solids in the tank instead of entering the drain field. Effluent filters are an excellent addition to an older tank, and can be installed by a pumper or other septic system professional. Consequently, it is important that solids be removed by periodic pumping, so they do not overflow into the drain field. Most septic tanks need to be pumped every 3 to 5 years, depending on the tank size and the amount and type of solids entering the tank.
  • 82.
    ARC 2423 BUILDINGSERVICES PROJECT 1 CASE STUDY ANALYSIS AND DOCUMENTATION OF BUILDING SERVICES SYSTEM 82 | P a g e All tanks should have accessible covers for checking the condition of the tees and for pumping both compartments. To eliminate the time and nuisance of digging down to the access covers, risers can be installed. The riser(s) should be secure to prevent accidental entry into the tank, and should also be watertight to prevent groundwater from entering the riser cavity, which may cause the tank to flood. Figure 6.33 Compartments of a septic tank Figure 6.34 Location of septic tank in KLPAC
  • 83.
    ARC 2423 BUILDINGSERVICES PROJECT 1 CASE STUDY ANALYSIS AND DOCUMENTATION OF BUILDING SERVICES SYSTEM 83 | P a g e 6.4.7 Drainage The drainage system is an essential part of living in a city or urban area, as it reduces flood damage by carrying water away. When it rains, some water naturally seeps into the ground. The rest makes its way through drainage systems, into rivers and creeks and eventually into the bays, or directly to the bays through stormwater beach outlets. In areas with houses, shops and roads, alternative ways for this water to drain away are needed as large amounts of water can build up quickly during heavy rain and storms, and without adequate drainage this flows towards low-lying land, flooding, damage and safety risks will happen. Rainwater drainage is required to collect the discharge from roof, paved area and convey it to suitable drainage system. These rainwater system are laid to fall so as to direct rainwater into a yard gully which is connected to the surface water drainage system. It consists of a collection called gutter which is connected to vertical rainwater pipes. Figure 6.36 Example of drainage system of a house Figure 6.35 The rainwater down pipe with gutter is connected to a screening chamber in KLPAC According to UBBL 1984, Section 115: Roof coverings and drainage. All roofs of buildings shall be so constructed as to drain effectually to suitable and sufficient channels, gutters, chutes or troughs which shall be provided in accordance with the requirements of these BY-laws for receiving and conveying all water which may fall on and from the roof.
  • 84.
    ARC 2423 BUILDINGSERVICES PROJECT 1 CASE STUDY ANALYSIS AND DOCUMENTATION OF BUILDING SERVICES SYSTEM 84 | P a g e 6.5 Analysis In KLPAC, sewage is being disposed through sanitary appliances and being flushed into the soil and waste pipe. For toilets and pantries located at upper floors, vertical waste pipes are connected by combined stack system to convey and conduct the wastewater to downstairs and underground drains. Sewage is then conveyed along the public sewer line to a wastewater treatment plant nearby before discharging into river. Most of the sewage pipes and stacks including the storm drains and sewer are hidden behind the wall and above ceiling panels. Therefore, aesthetic value of the interior and exterior of the building is concerned. On the other hand, there is no smell and odor noticed when entering the washroom because of the vent pipe allowing the smell of the sewage to escape the building without trapping it inside. So, users can pleasantly use the sanitary appliances. There is only one grease interceptor trap located at ground floor which is near to the restaurant in KLPAC. Regular maintenance is needed so that the grease or fat discharged from the kitchen will not clog and block the wastewater pipe system. A number of manholes are located underground surrounding the building itself, providing maximum flow of wastewater disposal from the building to the septic tank and to the sewer line. However, only one septic tank is installed in this sewerage system and it may encounter high pressure of wastewater discharged at the same time. 6.6 Conclusion In a nutshell, KLPAC is designed with effective and complete sanitary and sewerage system that considers the need of the users entering the building. Basic sanitation services as well as storm water drainage system are well planned that comply with standards and requirement of regulatory bodies in Malaysia. Besides, toilet appliances for people with disabilities are considered in the design of the building. Wastewater treatment plant nearby also plays an important role for the building as it can treat the wastewater within the boundary of the property before discharging it into the public sewer line.
  • 85.
    ARC 2423 BUILDINGSERVICES PROJECT 1 CASE STUDY ANALYSIS AND DOCUMENTATION OF BUILDING SERVICES SYSTEM 85 | P a g e 7.0 AIR-CONDITIONING AND MECHANICAL VENTILATION by JOANNE CHUA 7.1 INTRODUCTION Air-Conditioning and Mechanical Ventilation system, also known as ACMV system serves the main purpose of maintaining thermal comfort and acceptable indoor air quality. It is achieved through the process of altering the properties of air, by controlling the level of temperature and humidity to more comfortable conditions before distributing the air to an occupied space, providing a safe-working, healthy and productive environment. In Malaysia, heating systems are not appropriate or applicable due to its tropical climate, with its temperature ranged between 23°C to 32°C. This research paper will be looking in-depth on the ACMV system of KLPAC to have a deeper understanding on it. In accordance to the research, rules and standards will also be investigated. These standards have been set my various bodies to ensure that proper thermal comfort and indoor air quality is being achieved via the ACMV system. The standards used in examining are the Malaysian Standard (MS 1525) and Uniform Building By-Laws (UBBL).
  • 86.
    ARC 2423 BUILDINGSERVICES PROJECT 1 CASE STUDY ANALYSIS AND DOCUMENTATION OF BUILDING SERVICES SYSTEM 86 | P a g e Figure 7.2: Air cycle of an air-conditionerFigure 7.1: Refrigerant cycle of an air-conditioner 7.2 LITERATURE REVIEW 7.2.1 AIR-CONDITIONING SYSTEM Air-conditioning is defined as the total control of temperature, air humidity, air cleanliness and air movement in an occupied space to achieve human thermal comfort, which refers to the condition of mind that expresses satisfaction with the thermal environment. In Malaysia, thermal comfort in a building is having a filtered supplied air, with a temperature range of 22°C to 27°C and relative humidity of 55-70%, while controlling air movement to avoid the sensation of cold drafts and at the same time prevent the formation of pockets of stagnant air within the conditioned space. The design factors of a building such as its orientation, materials, heat penetration, environment, climate, activity and equipment often play an important aspect and should be considered in determining the usage of air- conditioning. Air-conditioning works by collecting and removing heat from the air inside the room and release the heat into the air outdoor. There are two cycles involved, mainly the refrigerant cycle and the air cycle. A refrigerant cycle functions by removing heat from one place to another and is done by transferring through the evaporator and removed to the outside air through a condenser, On the other hand, an air cycle is a process that distributes treated air into the room that needs to be conditioned. When heat inside the room is removed and absorbed by the evaporator, the internal air turns cooler. The medium to absorb heat can be either air or water, and air is usually distributed through ducts or chilled water pipes.
  • 87.
    ARC 2423 BUILDINGSERVICES PROJECT 1 CASE STUDY ANALYSIS AND DOCUMENTATION OF BUILDING SERVICES SYSTEM 87 | P a g e 7.2.2 MECHANICAL VENTILATION Mechanical ventilation describes the process of changing air in an enclosed space, where indoor air is withdrawn and replaced by fresh air continuously that is supplied by clean external sources using mechanical devices such as fans. The main function of mechanical ventilation is to expel stale air containing water vapour, carbon dioxide, airborne chemicals and other pollutants while drawing in outside air, presumably with lesser pollutants and water vapour, and circulates the air around and throughout the house. It is important to maintain proper mechanical ventilation as: (a) It preserves oxygen(O2) content while removing carbon dioxide(CO2) (b) It prevents heat concentrations from machinery, lighting and people (c) It reduces excess condensation (d) Growth of bacteria is controlled and prevented (e) Contaminants such as smoke, dust, gases and body odours is diluted and removed (f) Consistent freshness is provided (g) It is a good alternative in case of unreliable natural ventilation systems There are two types of mechanical ventilation system, mainly spot ventilation, which includes supply system, extract system or a combination system; and also energy-recovery ventilation system. In a supply system, fresh air is supplied by a central supply fan and stale air goes outside naturally. This system is usually used in boiler plants and factories. On the other hand, an extract system creates a negative pressure inside the building, causing air to move in naturally, though stale air is channelled out using exhaust fans. This system usually functions in basements, indoor toilets or bathrooms. For a combination system, it consists of both supply and extract system, therefore the building’s goes through slight air pressurization by using an extract fan smaller than an inlet fan. Fresh air is supplied and stale air is picked up from multiple points. This system usually works in cinemas, theatres, sports centres and so on. For an energy recovery ventilation system (ERV), it includes a controlled heat exchanger, with one or more fans pushing air through the machine. However, it is less cost-effective and not commonly used in Malaysia as it is mainly made for countries with extreme summer and winter climates.
  • 88.
    ARC 2423 BUILDINGSERVICES PROJECT 1 CASE STUDY ANALYSIS AND DOCUMENTATION OF BUILDING SERVICES SYSTEM 88 | P a g e 7.3 CASE STUDY KLPac utilizes a centralized air-conditioning system for its air cycle due to the large building size. The system is appropriate and highly efficient since for large spaces that need high cooling loads such as performing stages and theatres. The system works by distributing cool air via a duct system, then through a complex plan of diffusers from specific Air Handling Unit (AHU) rooms within the building. The quantity of AHUs depends on the built-up area and the number of users as well. Fan Coil Units are smaller units that act similarly to AHU systems. In this case, KLPac holds a total of 5 AHU, with 4 operating at the main performing stage due to its dense number of users and large scaled space, and 1 more operating at the secondary performing stage. In addition, several FCUs are found operating around the building, though they focus more on ventilating smaller spaces for activities and work such as the lobby area, office, conference rooms and studios and so on. The system is controlled in a specific control room and everything will be routed back to a single device. For its refrigerant cycle, KLPac uses an air-cooled chilled water system. Air-cooled chillers are intended for outdoor installation and operation. It is directly cooled by ambient air being mechanically circulated directly through the condenser coil to expel heat to the atmosphere. Therefore, no cooling towers are present as its purpose of exerting heat has already been done inside the chiller’s condenser.
  • 89.
    ARC 2423 BUILDINGSERVICES PROJECT 1 CASE STUDY ANALYSIS AND DOCUMENTATION OF BUILDING SERVICES SYSTEM 89 | P a g e Figure 7.3: Overview diagram of Air-Conditioning and Mechanical Ventilation System, KLPac AIR-CONDITIONING AND MECHANICAL VENTIALTION SYSTEM SUPPLY AIR DIFFUSER/GRILLE RETURN AIR GRILLE/FAN FIRE EXHAUST FAN/VENTS MECHANICAL VENTILATION SYSTEM AIR-COOLED CHILLED WATER SYSTEM EVAPORATOR COMPRESSOR EXPANSION VALVE CONDENSER CHILLED WATER PUMP PIPING SYSTEM CENTRALIZED AIR-CONDITIONING SYSTEM AIR FILTER BLOWER/FAN HEATING/COOLING COIL VIBRATOR ISOLATOR BASE DAMPER AIR HANDLING UNIT (AHU) FAN COIL UNIT (FCU) DUCTWORK
  • 90.
    ARC 2423 BUILDINGSERVICES PROJECT 1 CASE STUDY ANALYSIS AND DOCUMENTATION OF BUILDING SERVICES SYSTEM 90 | P a g e Figure 7.4: AHU-G-2 in KLPac Figure 7.5: Location of AHU-G-2 room at ground floor, KLPac Figure 7.6: Switches for each respective AHU 7.4 COMPONENTS OF SYSTEM CENTRALIZED AIR-CONDITIONING SYSTEM 7.4.1 AIR HANDLING UNIT (AHU) Air Handling Unit (AHU) is a large metal box that is connected to a ductwork ventilation system, distributing conditioned air through the building and recycles some of the return air. It comprises of several components with each own specific function. The AHU are all enclosed in rooms specifically designed for AHU only to ensure compactness and protect it from external forces or pressure. Its air source comes from recycled air from return air ducts and outside air coming in through fresh air grilles. In KLPac, each AHU is provided with its specific switch for manual controlling to save energy during periods of non-use. According to MS 1525 code 8.4.1.2.1, Control setback and shut-off “Each system should be equipped with a readily accessible means of shutting off or reducing the energy used during periods of non-use or alternate uses of the building spaces or zones served by the system.”
  • 91.
    ARC 2423 BUILDINGSERVICES PROJECT 1 CASE STUDY ANALYSIS AND DOCUMENTATION OF BUILDING SERVICES SYSTEM 91 | P a g e Figure 7.8: Centrifugal fan Figure 7.7: Air filter 7.4.1.1 AIR FILTER An air filter is typically placed first in the AHU to filter incoming air from the return air duct and outside air. Its main function is to provide clean dust-free air to building occupants. 7.4.1.2 BLOWER/FAN A direct-driven or belt-driven centrifugal fan, depending on the required air quantity and pressure, is commonly used in an AHU as it can move a small or large quantity of air efficiently. Its main function is to propel air for distribution. There are two fans present in an AHU; fan that blows air through the cooling coil and supply fan that blows air into the supply duct.
  • 92.
    ARC 2423 BUILDINGSERVICES PROJECT 1 CASE STUDY ANALYSIS AND DOCUMENTATION OF BUILDING SERVICES SYSTEM 92 | P a g e Figure 7.10: Vibrator insulator base Figure 7.9: Heating and cooling coil 7.4.1.3 HEATING/COOLING COIL Heating or cooling coil changes the supply air temperature and humidity level, depending on the location and application. Heating coils are made up of copper tubes, with copper or aluminium fins to aid heat transfer. The cooling coil is attached to the chilled water pipe linked from the chiller plant via a blue pipe to remove heat and cools down the air. 7.4.1.4 VIBRATOR INSULATOR The blowers in an air handler may create vibration and the large area of duct system would transmit noise and vibration to the occupants of the building. To avoid this, vibrator isolators made up of rubberized canvas-like material are usually inserted immediately before and after the air handler, between the fan compartment and the rest of the AHU.
  • 93.
    ARC 2423 BUILDINGSERVICES PROJECT 1 CASE STUDY ANALYSIS AND DOCUMENTATION OF BUILDING SERVICES SYSTEM 93 | P a g e Figure 7.12: Ceiling mounted Fan Coil Unit installed in studio room, KLPAC Figure 7.13: FCU control panel Figure 7.11: Damper 7.4.1.5 DAMPER Dampers are necessary to control the ratio of fresh air and recycled air while exhausting part of the recycled air. When the air sensor detects more than 500pm carbon dioxide in the return air from the room, the system will activate automatically and the damper will open and intake fresh air from the outside to refresh the air inside the building. According to MS 1525 code 8.4.4.2, Off-hour control “ Outdoor air supply and exhaust systems should be provided with motorised or gravity dampers or other means of automatic volume shut-off reduction during period of non-use or alternate use of the spaces served by the system.” 7.4.2 FAN COIL UNIT (FCU)
  • 94.
    ARC 2423 BUILDINGSERVICES PROJECT 1 CASE STUDY ANALYSIS AND DOCUMENTATION OF BUILDING SERVICES SYSTEM 94 | P a g e Figure 7.14: Locations of FCU at ground floor, KLPAC Figure 7.15: Ducting with opening provided Figure 7.16: Air duct Fan coil unit (FCU) system is similar to AHU but in a smaller scale and the fan speed can be controlled. FCUs are more economically installed due to their simplicity and are normally used for smaller spaces. In KLPac, FCUs are ceiling mounted in the bistro and bar, studios, offices, conference rooms, shops and lobby area. The control panels are located specifically in the spaces where the FCUs are installed. According to MS 1525 code 8.4.4.1, Off-hour control “ACMV system should be equipped with automatic controls capable of accomplishing a reduction of energy use for example through equipment shutdown during periods of non-use or alternative use of the spaces served by the system.” 7.4.3 DUCTWORK
  • 95.
    ARC 2423 BUILDINGSERVICES PROJECT 1 CASE STUDY ANALYSIS AND DOCUMENTATION OF BUILDING SERVICES SYSTEM 95 | P a g e Figure 7.17: Ducting systems at ground floor, KLPAC Air ducts distribute air from AHU to the rooms that need to be air-conditioned and blowers are installed within the ducts to aid in circulating the air. In KLPac, the ducts used are made of carbon steel and internally insulated with foil, thus making sure that the air remains cool when being transferred to the diffuser. Most of the air ducts are exposed and has openings provided for maintenance work. According to MS 1525 code 8.6, Air handling duct system insulation “All ducts, plenums and enclosures installed in or on buildings should be adequately insulated to prevent excessive energy losses. Additional insulation with vapour barriers may be required to prevent condensation under some conditions.”
  • 96.
    ARC 2423 BUILDINGSERVICES PROJECT 1 CASE STUDY ANALYSIS AND DOCUMENTATION OF BUILDING SERVICES SYSTEM 96 | P a g e Figure 7.18: Air diffuser at lobby area, KLPac Figure 7.19: Air diffuser in green room, KLPac Figure 7.20: Air grille behind seating in main performing stage, KLPAC MECHANICAL VENTILATION 7.4.4 SUPPLY AIR DIFFUSER/GRILLE
  • 97.
    ARC 2423 BUILDINGSERVICES PROJECT 1 CASE STUDY ANALYSIS AND DOCUMENTATION OF BUILDING SERVICES SYSTEM 97 | P a g e Figure 7.22: Exhaust air grille at ground floor corridor Figure 7.23: Exhaust air grille at fire pump room Figure 7.21: Sectional drawing of seating area showing fresh air distribution through air grille in main performing stage, KLPAC Diffusers are located at the edge of the ductwork where the supply air is released into the room. They do not require any generation of power and create low-velocity air movement in occupied rooms in any desired directions while producing the minimum amount of noise. Most of the diffusers in KLPac are rectangular or circular air diffusers and are either exposed in the open or concealed in ceilings. However in the main performing stage, supply air grilles were installed behind the seats to evenly distribute air inside the large area. 7.4.5 RETURN AIR GRILLE/FAN
  • 98.
    ARC 2423 BUILDINGSERVICES PROJECT 1 CASE STUDY ANALYSIS AND DOCUMENTATION OF BUILDING SERVICES SYSTEM 98 | P a g e Figure 7.24: Exhaust fan at lift control room Return air grille or functions to carry air back to designated AHU rooms. It is covered with grillwork to cover the duct behind it and avoid big objects from entering the duct and damaging the AHU. Filters are installed behind the grille to trap pollutant or dust to reduce maintenance cost. In KLPac, the air grilles are mounted on top parts of walls. In addition, they also function like a pump; in KLPac, it is installed in warm spaces containing equipment that generates heat such as the fire pump room and the lift control room. These air grilles or fan are placed under timer to suck out warm air every couple of hours to prevent overheating. According to MS 1525 code 8.4.5, Mechanical ventilation control “Each mechanical ventilation system (supply and/or exhaust) should be equipped with a readily accessible switch or other means for shut-down or volume reduction when ventilation is not required. Examples of such devices would include timer switch control, thermostat control, duty cycle programming and CO/CO2 sensor control.”
  • 99.
    ARC 2423 BUILDINGSERVICES PROJECT 1 CASE STUDY ANALYSIS AND DOCUMENTATION OF BUILDING SERVICES SYSTEM 99 | P a g e Figure 7.25: Fire exhaust fan outside of KLPac Figure 7.26: Fire exhaust vents at ceiling of main performing stage, KLPac 7.4.6 FIRE EXHAUST FAN/VENTS In KLPac, fire protection is important as it is a public building with a constant dense number of users especially during practice or performance hours. At the main performing stage, automatic fire exhaust vents are installed that will detect and open to release heat, smoke and gas in case of fire emergency. Exhaust fans connecting to smoke exhaust ductwork are used to remove smoke from buildings to enable emergency evacuation.
  • 100.
    ARC 2423 BUILDINGSERVICES PROJECT 1 CASE STUDY ANALYSIS AND DOCUMENTATION OF BUILDING SERVICES SYSTEM 100 | P a g e Figure 7.27: Outdoor air-cooled chillers, KLPAC Figure 7.28: Control panel for chiller AIR-COOLED CHILLED WATER SYSTEM 7.4.7 AIR-COOLED CHILLER Air-cooled chiller is a refrigerant system that removes heat contained in chilled water. The chiller contains an evaporator, compressor, expansion valve and condenser. The cycle begins in the evaporator where a liquid refrigerant flows over the evaporator tube bundle, absorbing heat from the chilled water circulating through and evaporates. After that, the compressor draws the refrigerant vapour out of the evaporator, and ‘pumps’ it to the condenser, raising the vapour’s pressure and temperature. The refrigerant condenses in the condenser tubes, giving up its heat to the cooling air. The high pressure liquid refrigerant from the condenser then passes through the expansion device, reducing its pressure and temperature as it re-enters the evaporator. The refrigerant again flows over the chilled water coils, absorbing more heat and completes the cycle.
  • 101.
    ARC 2423 BUILDINGSERVICES PROJECT 1 CASE STUDY ANALYSIS AND DOCUMENTATION OF BUILDING SERVICES SYSTEM 101 | P a g e Figure 7.29: Schematic diagram of air-cooled chilled water system KLPac utilizes two air-cooled chillers which are placed outside at the back of the building as the operation of chillers are noisy and may disturb the users in the building. The chillers are connected to each AHU to circulate chilled water and control panels are provided for manual adjustment. KLPac usually uses only one chiller most of the time to reduce energy consumption, except when there is a need for high cooling load, thus both chillers will be used. According to MS 1525 code 9.6.1, Central plant “In buildings where chillers are used, the EMS should be used to issue start/stop commands to the chiller control panel. The start/stop commands should be based on: a) Time schedule to match occupancy patterns; and b) Selection of the most energy efficient combination of chillers to satisfy building load, this is known as chiller sequencing (chiller optimisation programming). Chillers are typically supplied with microprocessor based control panels. Where possible, a high level of data interface between the chiller control panel and the EMS should be provided.” Chilled water Warm/used water AHU AHU CONDENSER COIL CONDENSING FANS COMPRESSOR EVAPORATOR EXPANSION VALVE
  • 102.
    ARC 2423 BUILDINGSERVICES PROJECT 1 CASE STUDY ANALYSIS AND DOCUMENTATION OF BUILDING SERVICES SYSTEM 102 | P a g e Figure 7.30: Chilled water pump Figure 7.31: Chilled water pipe from chillers connecting to AHU 7.4.8 CHILLED WATER PUMP The chilled water pump returns warm chilled water to the chiller, and also pumps chilled water to every AHU room. 7.4.9 PIPING SYSTEM The pipes from chiller are connected to the cooling coil in AHU. The pipe brings in cool water that will cool the air going through the AHU. According to MS 1525 code 8.5, Piping insulation “All piping installed to serve building and within building should be adequately insulated to prevent excessive energy losses. Additional insulation with barriers may be required to prevent condensation under some conditions.”
  • 103.
    ARC 2423 BUILDINGSERVICES PROJECT 1 CASE STUDY ANALYSIS AND DOCUMENTATION OF BUILDING SERVICES SYSTEM 103 | P a g e 7.5 FINDINGS AND ANALYSIS 1. Energy Management System (EMS) According to MS 1525 code 9.6.2, Air handling units (AHU) “Next to the chiller, the air handling units are typically the largest consumers of energy in the building. The EMS should have the facility to start and stop the air handling units based on a time schedule. For further energy savings, the cooling coil valve of the air handling units should be controlled by an intelligent controller which integrates with the EMS.” The AHU in KLPac is manually turned on and off by the workers, therefore the AHU will only open during office hours and performance hours. This is to prevent waste of energy. 2. Constant Air Supply UBBL SECTION 41 - MECHANICAL VENTILATION AND AIR-CONDITIONING “2. Any application of the waiver of the relevant by-laws shall only be considered if in addition to the permanent air-conditioning system there is provided alternative approved means of ventilation the air- conditioning enclosure, such that within half an hour of the air-conditioning system failing, not less than the stipulated volume of fresh air specified hereinafter shall be introduced into the enclosure during the period when the air-conditioning system is not functioning.” Since KLPac relies heavily on air-conditioning for its main performing stage, a GenSet functions to supply electricity for the AHU in case of sudden electricity cut-off during on-stage performances. In cases of air-conditioning failure, ceiling fans are provided to allow ventilation within a space. 3. Temperature Control According to MS 1525 code 8.4.1, Temperature control “Each system should be provided with at least one thermostat for the regulation of temperature. Each thermostat should be capable of being set by adjustment or selection of sensors over a minimum range of between 22C to 27C.” The ACMV in KLPac consists of a thermostat at the top floor that measures the temperature of building. Hence the temperature is always at an average of 23C.
  • 104.
    ARC 2423 BUILDINGSERVICES PROJECT 1 CASE STUDY ANALYSIS AND DOCUMENTATION OF BUILDING SERVICES SYSTEM 104 | P a g e 7.6 CONCLUSION In conclusion, using a centralized air-conditioning system is appropriate for KLPac due to its large scaled spaces and dense number of users. The components of air-conditioning such as AHU, ductwork and chillers were placed at appropriate areas for noise reduction and given suitable considerations such as insulation. This aids the system to run smoothly without disturbing the users and reduce wastage of energy at the same time. In addition, the building complies with the by-laws in terms of energy management system, constant air supply and temperature-control. This has contributed to the comfort and efficiency of the air-conditioning system and the ability to maintain thermal comfort throughout the building.
  • 105.
    ARC 2423 BUILDINGSERVICES PROJECT 1 CASE STUDY ANALYSIS AND DOCUMENTATION OF BUILDING SERVICES SYSTEM 105 | P a g e 8.0 ELECTRICAL SUPPLY SYSTEM by TEH GIE ENG (IVANKA) 8.1 INTRODUCTION The electric power system is a network of electric components used to supply, transmit and use electric power. This system provides an overview of electrical power distribution systems commonly encountered in residential, commercial, and industrial buildings. 
 In Peninsular Malaysia, electricity is supplied by the national grid of Tenaga National Berhad (TNB), via high- voltage electric power transmissions. Buildings such as the Kuala Lumpur Performing Arts Centre (KLPAC) receives power from the National Grid directly. Most electricity in Malaysia is generated by hydroelectric dams. Figure 8.1 shows how electricity is generated by hydroelectric dams This chapter of the report would be discussing the common system voltages used in electrical power distribution system and the connection of electrical loads and grounding. Tenaga Nasional Berhad (TNB) Electricity System Tenaga Nasional Berhad (TNB), a public listed company registered under Companies Act 1965, is entitled with the following responsibilities: • To generate, transmit, distribute and sell energy to consumer throughout Peninsular Malaysia. • To plan, install, operate and maintain electricity installation for the generation, transmission and distribution of electricity. To achieve the above objectives, the company owns and operates power plants and the National Grid, all of which are installed for the purpose mentioned above. They also provide consumer service centers, call management centers, substations and administrative offices throughout Peninsular Malaysia. TNB’s core activities are in generation, transmission and distribution of electricity which are being handled by 3 Divisions:
  • 106.
    ARC 2423 BUILDINGSERVICES PROJECT 1 CASE STUDY ANALYSIS AND DOCUMENTATION OF BUILDING SERVICES SYSTEM 106 | P a g e • Generation Division
• Transmission Division • Distribution Division The transmission voltage networks are 500kV and 132kV, whilst distributions are 33kV, 22kV, 11kV, 6.6kV and 415/240 volts. 8.2 LITERATURE REVIEW TNB supplies the electricity to the building by delivering from the power plant to the transformer room and across the transmission tower to the sb-power station nearby the building area before transmitting to the building. Figure 8.2 shows how electricity is transmitted via cables form the power Low Voltage
i. Single-phase, two-wire, 240V, up to 12 kVA maximum demand ii. Three-phase, four-wire, 415V, up to 45 kVA maximum demand iii. Three-phase, four-wire, C.T. metered, 415V, up to 1,000 kVA Medium Voltage & High Voltage
i. Three-phase, three-wire and 11 kV for load of 1,000 kVA maximum demand and above.
ii. Three-phase, three-wire, 22kV or 33kV for load of 5,000 kVA maximum demand and above
iii. Three-phase, three-wire, 66kV, 132kV and 275kV for exceptionally large load of above 25 MVA maximum demands. Firstly, electricity will be transferred from the power plant to the transmission substation. To overcome the resistance of the transmission lines, the step up transformer in the transmission substation will increase the incoming power from the power plant. High current is then transmitted to the substation through the high voltage transmission lines.Using electrical pylons along the distribution grid system, the current reaches the substations at different locations where the current is brought down and
  • 107.
    ARC 2423 BUILDINGSERVICES PROJECT 1 CASE STUDY ANALYSIS AND DOCUMENTATION OF BUILDING SERVICES SYSTEM 107 | P a g e distributed to the facilities of the area surrounding the substation. As the incoming voltage from the pylons is too high for domestic uses, the current has to be brought down from the substation to the High Tension Room, where the current is split and fed to different step down transformers in order to lower the voltage for different usage in buildings. The lower current is then transferred to Low Voltage Room (LV Room). This room contains the main switches of different facilities of the building and from here, each panel receives their respective currents from the transformer. Air circuit breakers are also normally installed in this room to prevent excessive power surges from harming the electrical appliances. From the Low Tension Room, the current from the main switch board is connected to the risers located on every floor of the building with the help of bus ducts. In each of the riser rooms, a switch board is installed to tap the current off the bus duct and transfer them further to distribution boards. High voltage facilities such as elevators, and Air Handling Unit (AHU) normally draw their current from the side switch board and whereas the other electrical appliances which require small voltage are to draw their current from the distribution board. A meter is placed for different tenants and is usually found near the riser rooms. The equipment installed in the building are normally known as electrical distribution equipment. While designing the distribution system, one must have done a thorough analysis and calculations on the amperage load and short circuit values of each individual part of the distribution system in order to achieve an efficient electric distribution system.
  • 108.
    ARC 2423 BUILDINGSERVICES PROJECT 1 CASE STUDY ANALYSIS AND DOCUMENTATION OF BUILDING SERVICES SYSTEM 108 | P a g e 8.2.1 COMPONENTS OF ELECTRICAL SYSTEM WITHIN THE BUILDING Transformer Figure 8.3 An outdoor transformer Transformer is a device that transfer alternating current from one circuit to one or more corresponding circuits, usually with an increase (step-up transformer) or decrease (step-down transformer) of voltage. The input current is fed to a primary winding, the output being taken from a secondary winding or windings inductively lined to the primary. Low Voltage Switch Figure 8.4 Low Voltage Switches The use of low voltage switch room is utilized in which all the incoming power supplies divide into separate circuits which is then managed and safeguarded. The power will be divided into a number of
  • 109.
    ARC 2423 BUILDINGSERVICES PROJECT 1 CASE STUDY ANALYSIS AND DOCUMENTATION OF BUILDING SERVICES SYSTEM 109 | P a g e functional units which covering all the electrical and mechanical constituents. Genset Figure 8.5 Generator Gensets would normally will be installed in offices, commercial buildings, shopping mall and other large scaled buildings. This is because genset will automatic start to generate and supply emergency electric power when the main electrical distribution of electricity is disrupted. Sub-switchboard and Distribution board Figure 8.6 Sub Switchboard Figure 8.7 Distribution Board
  • 110.
    ARC 2423 BUILDINGSERVICES PROJECT 1 CASE STUDY ANALYSIS AND DOCUMENTATION OF BUILDING SERVICES SYSTEM 110 | P a g e The use of sub-switchboard and distribution board are components of an electrical supply system which divides the electrical power into subsidiary circuits while provides a protective fuse for each circuit. Substation Figure 8.8 Substation A substation is a part of an electrical generation, transmission, and distribution system. Substations transform voltage from high to low, or vice versa. substations hold several important functions in order for the electrical system to be completed. Between the generating station and consumer, electric power may flow through several substations at different voltage levels. Uninterruptible Power Supply (UPS) Figure 8.9 UPS An uninterruptible power supply is an electrical apparatus that provides emergency power when the main power fails to provide electric. UPS been called as the emergency power system or standby generator because it helps in protecting some other important electrical equipment when an unexpected power disruption occurs.
  • 111.
    ARC 2423 BUILDINGSERVICES PROJECT 1 CASE STUDY ANALYSIS AND DOCUMENTATION OF BUILDING SERVICES SYSTEM 111 | P a g e 8.3 CASE STUDY: KUALA LUMPUR PERFORMING ARTS CENTRE (KLPAC) 8.3.1 SCHEMATIC DIAGRAM OF ELECTRICAL FLOW IN KLPAC, KUALA
  • 112.
    ARC 2423 BUILDINGSERVICES PROJECT 1 CASE STUDY ANALYSIS AND DOCUMENTATION OF BUILDING SERVICES SYSTEM 112 | P a g e 8.3.2 ELECTRICAL SYSTEM IN KLPAC 8.3.2.1 TNB HIGH TENSION (HT) ROOM Figure 8.10 shows the site plan of KLPAC with the Sub-station indicated. Figure 8.11 Floor Plan of the TNB Substation Figure 8.12 The TNB HT Room is located on the left From Figure 8.10, the TNB Substation is located at the northwest direction of the site plan. A service road in front of it allows accessibility by authorised personnel, such as which is easily accessible by the authorized personnel, such as the electrical engineers from TNB. In the substation, the TNB HT Room is located as the first room (see fig 8.11). Along with this room are the Consumer HT Room and Transformer & LV Switch Room which are located right next to it.
  • 113.
    ARC 2423 BUILDINGSERVICES PROJECT 1 CASE STUDY ANALYSIS AND DOCUMENTATION OF BUILDING SERVICES SYSTEM 113 | P a g e Inside the HT Room, a transformer supplies 11 KV of electricity to the Consumer HT Room before being transferred to power the entire building. This room prohibits entry except those authorized by TNB. 8.3.2.2 CONSUMER HIGH TENSION (HT) ROOM Figure 8.10 shows the site plan of KLPAC with the Sub-station indicated. Figure 8.11 Floor Plan of the TNB Substation The 11 kVA high voltage current from the TNB HT Room is then stepped down to 415V and 240V via the transformers in the Consumer HT Room (see fig 8.11) before transferring the the electricity to the consumer main switchboards located next door. a) SAFETY Figure 8.13 Transformers found generally in Consumer HT Room As we were not allowed to enter the Consumer HT Room, we could only inquire about the electrical
  • 114.
    ARC 2423 BUILDINGSERVICES PROJECT 1 CASE STUDY ANALYSIS AND DOCUMENTATION OF BUILDING SERVICES SYSTEM 114 | P a g e components inside and the safety features installed. Alongside the transformers, there are also fire safety equipment and switch panels for the transformer. Rubber mats are placed in front of the panels for safety. An exhaust fan is installed to prevent overheating of the transformers as well as to maintain the coolness of the room temperature. Each transformer is surrounded by a protective metal cage. Copper wires run along the wall around the room and into the ground. An earthing cable is installed to absorb the currents and spew them out of the transformer in case of emergency. Figure 8.14 Pressurized CO2 tanks Should a fire break out in the HT Consumer Room, the smoke detector inside the room will trigger the alarm and send the signal to the control room. Simultaneously, the transformer will shut down immediately and Carbon Dioxide (CO2) will be released from the pressurized CO2 tanks nearby the transformer to the room itself as CO2 controls the fire from spreading continuously. 8.3.2.3 TRANSFORMER AND LOW VOLTAGE (TX & LV) SWITCHGEAR The stepped down current from each transformer is transferred to their own respective Main Switch Boards (MSB) in the LV Room. In KLPAC, there are 2 MSBs for the landlord and tenant.These panels are the main power switches of the entire building. Similarly, these panels are set back from the wall to allow maintenance from the engineers.
  • 115.
    ARC 2423 BUILDINGSERVICES PROJECT 1 CASE STUDY ANALYSIS AND DOCUMENTATION OF BUILDING SERVICES SYSTEM 115 | P a g e Figure 8.15 Ground Floor Plan with LV Room indicated Figure 8.16 Location of LV Room
  • 116.
    Figure 8.17 SchematicDrawing for MSB 1 Figure 8.18 Schematic Drawing for MSB 2 MSB 1 supplies stepped down current to the Landlord to power the audio and lighting for the common spaces such as the Experimental Theatre, Kitchen, Bistro, Kitchen, Stage and etc ( see Fig. 8.17). MSB 2 supplies stepped down current to power the air conditioner for all four floors (see Fig. 8.18). Figure 8.19 Main Switchboards for Landlord and Tenant Figure 8.20 shows the TNB Check Meter The TNB Check Meter in the TX & LV Room shows the electrical usage of both the landlord and the tenant.
  • 117.
    ARC 2423 BUILDINGSERVICES PROJECT 1 CASE STUDY ANALYSIS AND DOCUMENTATION OF BUILDING SERVICES SYSTEM 117 | P a g e a) AIR CIRCUIT BREAKER (ACB) Figure 8.21 ACB installed in the LV Panel Figure 8.22 An ACB unit The International Electrotechnical Commission (IEC) Standard IEC 60947-2 defines a circuit breaker as “a mechanical switching device, capable of making,carrying and breaking currents under normal circuit conditions and also making, carrying for a specified time and breaking currents under specified abnormal circuit conditions such as those of short- circuit.” There is an ACB panel attached to each panel in LV Room (Figure 8.21). This panel contains the breakers of the circuit in the room. When high surge of current issued from the transformers and enters to the LV Room suddenly, these breakers will use high density air to break the circuit from causing any unnecessary damage to the main switch boards. One of the differences between ACB and fuse is that breakers are used for high voltage current. Besides, breakers break the circuits faster than the fuses in order to prevent damage to the appliances when high current passes through them. In other words, fuses are normally used in lower voltage electrical equipment, such as Distribution Board (DB). In addition to that, fuses can only be used once and would need to be replaced once it blows. However breakers can be reset a finite number of times as each break causes a bit of damage. There are many types of breakers and the usage of breakers in different circuits may refer to the density or the load of electric current.
  • 118.
    ARC 2423 BUILDINGSERVICES PROJECT 1 CASE STUDY ANALYSIS AND DOCUMENTATION OF BUILDING SERVICES SYSTEM 118 | P a g e b) MOLDED CASE CIRCUIT BREAKER (MCCB) An MCCB functions as a protection for circuits with low voltage distribution systems. It protects connect devices agains overloads and short circuits. It is commonly used in panelboards and switchboards where they are fixed mounted. In KLPAC, MCCB is used in both MSBs as well as in most of the SSBs (Sub- Switch Boards). Figure 8.23 MCCBs installed in the LV panel shown on schematic. MCCBs are available with special features which make them suitable for the protection of motor circuits when used in conjunction with a separate overload protection device. When used in such applications, they are often referred to as motor circuit protectors (MCPs). c) BUS SYSTEM The bus system allows users to control and monitor the MSB from the computer which is at the control room/ security room. A tray system will carry the electric current from the LV room to the different facilities such as the SUb-Switch Board (SSB) and Distribution Boards (DB) at each floor. KLPAC uses the Single Bus System. It is the simplest and most cost effective system, whereby all the feeders and transformer bay are connected to one single bus as shown. The advantages of the single bus system includes its simple design as well its convenience to operate. However one major difficulty of
  • 119.
    ARC 2423 BUILDINGSERVICES PROJECT 1 CASE STUDY ANALYSIS AND DOCUMENTATION OF BUILDING SERVICES SYSTEM 119 | P a g e this type of arrangement is that maintenance of equipment of any bay cannot be possible without interrupting the feeder or transformer connected to that bay. Figure 8.24 Example of a Single Bus System The indoor 11KV switchboards usually apply single bus bar arrangement. In KLPAC, this can be seen in the figure below, which shows the schematic of drawing of the 11KV Switchboards.(see Fig 8.25) Figure 8.25 Single Bus Bar Arrangements for both MSBs in the LV Room In KLPAC, Mineral Insulated Copper Clad (MICC) Cables are used for the bus duct system within the building. The wire connects the current from the Genset Room (see 8.3.2.4) to LV Room and also wiring from LV Room to essential facilities for fire emergency, such as smoke screen fans, exhaust fans and lifts because MICC wires are good in resisting the heat produced when the current passes through. Besides, the copper wires, which have high melting point, will hold and stay in shape for an average time of an hour should a fire occur.
  • 120.
    ARC 2423 BUILDINGSERVICES PROJECT 1 CASE STUDY ANALYSIS AND DOCUMENTATION OF BUILDING SERVICES SYSTEM 120 | P a g e 8.3.2.4 GENSET ROOM The purpose of the Genset Room is to provide electricity to the building in case of a breakdown in power supply from the TNB. Figure 8.26 Ground Floor Plan with Genset Room indicated Figure 8.27 Position of Genset Room In KLPAC, the Genset is responsible to supply electricity only to the Air-Cond Panels (ACPs) at the Experimental Theatre and the Main Stage as performances is the priority of KLPAC and could not afford to be disrupted (see fig 6.28). Electricity from the generator is not supplied to the tenant’s offices due to shortage of electricity. Also, it also supplies electricity to the fire-fighting system should a fire break out and there is a cut in electricity (see fig 6.27) The generator used in KL PAC is by Perkins (see fig 6.26) and it is started by a lithium cadmium battery and uses diesel to fuel the electricity production.
  • 121.
    ARC 2423 BUILDINGSERVICES PROJECT 1 CASE STUDY ANALYSIS AND DOCUMENTATION OF BUILDING SERVICES SYSTEM 121 | P a g e Figure 8.28 Perkins Generator Figure 8.29 Schematic Drawing of power supply by the genset to the fire fighting system Figure 8.30 Schematic Drawing of power supply by the genset to the air conditioner panels a) LITHIUM CADMIUM BATTERY The Generator requires the lithium cadmium battery for a spark of electricity in order to run the system. It is placed in close proximity to the machine.
  • 122.
    ARC 2423 BUILDINGSERVICES PROJECT 1 CASE STUDY ANALYSIS AND DOCUMENTATION OF BUILDING SERVICES SYSTEM 122 | P a g e Figure 8.31 Litium Cadmium Battery found beside the generator b) DIESEL FUEL Figure 8.32 Diesel Tank Once the engine is started, diesel fuel which is placed at a higher altitude than the generator to flow down, is used by the engine to undergo the process of combustion to power up the dynamo. The dynamo will then generate an electric field and current that is generated will be brought to the MSBs in the LV room next door before being transferred to the common areas.
  • 123.
    ARC 2423 BUILDINGSERVICES PROJECT 1 CASE STUDY ANALYSIS AND DOCUMENTATION OF BUILDING SERVICES SYSTEM 123 | P a g e C) SMOKE CHAMBER Figure 8.33 Smoke Chamber The CO2 produced by the generator is channeled out from the exhaust to the outside via a smoke chamber. The warning indicator lights outside the Genset Room determines whether the room is safe to be entered. Should it turn red, it indicates that a fire has broke out inside the room. d) SAFETY There are also pressurized CO2 tanks and lights to be found inside and outside the Genset Room respectively , with their function are same with the those at the TNB HT Room, Consumer HT Room and LV Room. e) MAINTENANCE Maintenance should be done on the generator. Every month it should be tested with and without load to ensure the performance of the generator in the light of an electricity shortage.
  • 124.
    ARC 2423 BUILDINGSERVICES PROJECT 1 CASE STUDY ANALYSIS AND DOCUMENTATION OF BUILDING SERVICES SYSTEM 124 | P a g e 8.3.2.5 ELECTRICAL ROOM Electrical rooms are located at the same position at each floor of the building, from Ground Floor to the 3rd Floor. Figure 8.34 Ground Floor Plan with Electrical Room indicated. Figure 8.35 Localtion of Electrical Room The purpose of this room is the distribute the electricity channelled from the LV room to the users at each floor. The main reason behind the allocation of this room at each floor is to provide electricity channeled from LV Room to the users at each floor. In order to run the electricity from Ground floor to the 3rd Floor, a series of cable trunking system is applied. Bus duct are installed and runs the vertical length of every riser, as shown in Figure 6.34 and Fig 6.45. It carries the main power supply vertically to each electric room at every floor and is tapped off at the Sub Switch Board (SSB) (see 8.3.2.5.a).
  • 125.
    ARC 2423 BUILDINGSERVICES PROJECT 1 CASE STUDY ANALYSIS AND DOCUMENTATION OF BUILDING SERVICES SYSTEM 125 | P a g e Figure 8.36 Trunking System Figure 8.37 Sub Switchboards inside the Electrical Room with trunking and tray system a) SUB SWITCH BOARD (SSB) Appliances which require high voltage such as lifts tap electricity directly from the SSB whereas low voltage appliances such as lightings are powered up by Distribution Boards (DBs). Figure 8.38 Sub Swithboard for the lift
  • 126.
    ARC 2423 BUILDINGSERVICES PROJECT 1 CASE STUDY ANALYSIS AND DOCUMENTATION OF BUILDING SERVICES SYSTEM 126 | P a g e 8.3.2.6 TENANT UNITS In KL PAC, the tenant units for each floors are different due to the nature and purpose of each space. a) DISTRIBUTION BOARD (DB) From the meter, the electricity will reach DB (Figure 8.40), which is located outside electric room. This DB functions as an extension and power control for areas far away from the risers. Figure 8.39 Schematic drawing of Distribution Board for the Experimental Theatre Figure 8.40 A Distribution Board. In the DBs at KL PAC, MCCB and Earth Leakage Circuit Board (ELCB) for leaking currents to be earthed. The usage of DBs is for easier distribution of power supply. The final readings for the tenant are divided into two different amperes, under 20A (lighting) and 12A (electrical appliances). b) Maintenance For this reason, these units should be correctly rated, regularly tested, and never bypassed. The cause of a tripped breaker or blown fuse should also always be investigated prior to a reset to avoid possible damage to equipment or appliances and electrical shock.
  • 127.
    ARC 2423 BUILDINGSERVICES PROJECT 1 CASE STUDY ANALYSIS AND DOCUMENTATION OF BUILDING SERVICES SYSTEM 127 | P a g e 8.3.2.7 WIRING Trunks and tray systems of wiring are used to connect the power source to every part of the building. The thickness of wiring always varies depending on the voltage it carries. Higher voltage will require thicker wire to reduce resistance and thicker insulation for safety purposes. 8.3.2.8 EARTHING The purpose of earthing is for the safety of the human life, buildings as well as equipment.Lightning, line surges and unintentional contact with higher voltage lines can cause the transmision of high voltages to the electrical distribution system. Thus the earthing allows for minimal damages to the system. Figure 8.41 Front Elevation of KLPAC with Earth Pit indicated.
  • 128.
    A lighting conductoris installed across the roof of KL PAC to transmit the excess high voltages should the building be struck by lighting . The conductor will carry the high voltages immediately to the earth pit whereby the electricity will be be earthed via the earthing rod (see fig 6.39) and is neutralised. Figure 8.42 Detail Drawing of Earth Pit
  • 129.
    ARC 2423 BUILDINGSERVICES PROJECT 1 CASE STUDY ANALYSIS AND DOCUMENTATION OF BUILDING SERVICES SYSTEM 129 | P a g e 8.4 CONCLUSION According to Uniform Building By Laws (UBBL) 1984, there are some laws and regulations that needed to be fulfilled by the building. The by-laws are as stated below:- Section 240. (1) Every floor or zone of any floor with a net area exceeding 929 square meters shall be provided with an electrical isolation switch located within a staircase enclosure to permit the disconnection of electrical power supply to the relevant floor or zone served. (2) The switch shall be of a type similar to the fireman's switch specified in the Institution of Electrical Engineers Regulations then in force. Section 241. In places where there are deaf persons and in places where by natire of the occupancy audible alarm system is undesirable, visible indicator alarm signals shall be incorporated in addition to the normal alarm system. Whereas according to Electricity Supply Act 1997 [Act 447] P. U. (A) 38/94 Electricity Regulations 1997, it is listed that:- Regulation 15, Apparatus, conductor, accessory, etc. Any conductor or apparatus that is exposed to the weather, water, corrosion, under heating or use in inflammable surroundings or in an explosive atmosphere shall be constructed or protected in such a manner as to prevent danger. Regulation 16, Switch, switch fuse, fuse switch, circuit breaker, contractor, fuse, etc. (3) Any fuse or circuit breaker shall be (a) constructed and arranged in such a manner so as to break the current when it danger; and exceeds a given value for such a sufficient time to prevent (b) constructed guarded or placed in a manner as to prevent danger or overheating, arcing or from the scattering of hot metal or other substances or enclosure. Based on the laws and regulations stated above, KL PAC has fulfill all of them via the installation of circuit breakers and safety precautions inside each electric rooms. Hence, it is said that KL PAC has achieved all the requirements regarding to electricity in UBBL 1984 and Electricity Supply Act 1997.
  • 130.
    ARC 2423 BUILDINGSERVICES PROJECT 1 CASE STUDY ANALYSIS AND DOCUMENTATION OF BUILDING SERVICES SYSTEM 130 | P a g e 9.0 MECHANICAL TRANSPORTATION SYSTEM by LOO MEI CHUEN 9.1 INTRODUCTION This research discusses about the mechanical transportation system in KLPAC and this case study is compiled with details on mechanical transportation at KLPAC, referencing conformance to UBBL Mechanical Transportation System Requirements. It starts with a literature review, explaining the mechanical transportation and elaborates on the type of mechanical transportation. The research concludes with an analysis and recommendations for improvements to mechanical transportation system at KLPAC. In KLPAC, Dover Brand elevators were used. Dover Elevators (Malaysia) Sdn Bhd has the aim of supplying, installing and maintaining high quality Dover Brand of elevators to ever increasing demand of high rise buildings such as the KLPAC for various usages. Dover Elevator System Inc., had been very flexible and forward looking to allow the highly sophisticated controller and traction machine of proprietary designs, to be manufactured in Malaysia, South Korea and China to make the products more cost effective in order to remain competitive in the market. It has to be reiterated that the aforementioned products are of highest quality standards bearing the brand name of DOVER. Figure 9.1.1 Picture of the Passenger Lift in KLPAC Figure 9.1.2 Pictures given by the Dover Company
  • 131.
    ARC 2423 BUILDINGSERVICES PROJECT 1 CASE STUDY ANALYSIS AND DOCUMENTATION OF BUILDING SERVICES SYSTEM 131 | P a g e 9.2 LITERATURE REVIEW Mechanical transportation in a building, usually elevator and escalator are advance vertical and horizontal transportation tools for human to travel between floors. Not only it helps reducing energy, it saves a lot of time. In building with more than four storeys, a mechanical transportation system should be implemented with the introduction of an elevator. An elevator is a type of vertical transport equipment that efficiently moves people or goods between floors of a building. It is introduced to bring convenience to the users by allowing them access varies levels with a push of a button. As a bonus addition, elevators also provide the most convenience as a transport for infirm and mobility impaired people to travel between floors. For high-rise buildings, there is different elevator zoning to increase efficiency by reducing wait time. For mid-rise building, zooning is usually not required as the wait time is lower than high-rise buildings. The efficiency also depends on the speed and capacity of the elevator. Different type of elevator has different function and must be choose carefully before installing to achieve efficiency. For a better quality of performance, lift lobby and interior of the elevator car can be designed to improve user’s satisfaction. Besides that, factors such as the smoothness of ride, degree of noise and accuracy of floor leveling also affects the quality of ride. Another option of mechanical transportation system is the escalator which is most commonly used in shopping malls, airports, commercial buildings, or in some high buildings because it is an ideally suited transportation system for high column applications. However, escalator is not always practical for high rise buildings as it may consume a lot of valuable floor space. In KLPAC, there is only one type of mechanical vertical transportation found in the building, which is the elevator. There are few types of elevators that can be found for example, Passenger Elevator, Service Elevator and Loading Bay Elevator.
  • 132.
    ARC 2423 BUILDINGSERVICES PROJECT 1 CASE STUDY ANALYSIS AND DOCUMENTATION OF BUILDING SERVICES SYSTEM 132 | P a g e 9.3 TYPES OF ELEVATOR There are two main types of elevators commonly used:  Electric elevator o Traction with machine room o Machine-room-less (MRL) traction  Hydraulic elevator Traction elevator is lifted by ropes, which pass over wheel attached to an electric motor above the elevator shaft. A counter weight makes the elevators more efficient by offsetting the weight of the car and occupants so that the motor does not have to move as much weight. Geared traction elevators have a gearbox that is attached to the motor, which drives the wheel that moves the ropes. Whereas gear-less traction elevators have the wheel attached directly to the motor. Machine Room-less (MRL) elevators are traction elevators that do not have a dedicated machine room above the elevator shaft. The machine sits in the override space and is accessed from the top of the elevator cab when maintenance or repairs are required. The control boxes are located in a control room that is adjacent to the elevator shaft on the highest landing and within around 150 feet of the machine. MRL elevators are comparable to geared traction elevators in terms of initial and maintenance costs, but they have relatively low energy consumption compared to geared elevators. Hydraulic elevators are supported by a piston at the bottom of the elevator that pushes the elevator up as electric motor forces oil or another hydraulic fluid into the piston. The elevator descends as a valve releases the fluid from the piston. The machine room is located at the lowest level adjacent to the elevator shaft and this hydraulic elevator is suitable for goods lifting, hospital and old folk’s home.
  • 133.
    ARC 2423 BUILDINGSERVICES PROJECT 1 CASE STUDY ANALYSIS AND DOCUMENTATION OF BUILDING SERVICES SYSTEM 133 | P a g e 9.4 CASE STUDY 9.4.1 DRAWINGS Figure 9.4.1.1 Ground floor plan indicating the location of all the elevators in KLPAC. Stairs are closely located to the elevators in case of emergency. Other than that, under minimum standard of service, KLPAC fulfills the terms of maximum walking distance of 45m to the elevator lobby. Passengers Lift Service Lift Loading Bay Lift Entrance Lift lobby Stair s Passengers Lift Stair s Passengers Lift
  • 134.
    ARC 2423 BUILDINGSERVICES PROJECT 1 CASE STUDY ANALYSIS AND DOCUMENTATION OF BUILDING SERVICES SYSTEM 134 | P a g e Figure 9.4.1.2 Figures show cross section of the hoistway for the elevator in KLPAC consisting some of the elevator components
  • 135.
    ARC 2423 BUILDINGSERVICES PROJECT 1 CASE STUDY ANALYSIS AND DOCUMENTATION OF BUILDING SERVICES SYSTEM 135 | P a g e Figure 9.4.1.3 Figure shows position of the Elevator Room Machine
  • 136.
    ARC 2423 BUILDINGSERVICES PROJECT 1 CASE STUDY ANALYSIS AND DOCUMENTATION OF BUILDING SERVICES SYSTEM 136 | P a g e Figures 9.4.1.4 Front elevation showing elevator components and their dimensions Figures 9.4.1.5 Rough elevator machine room to shaft floor plan
  • 137.
    ARC 2423 BUILDINGSERVICES PROJECT 1 CASE STUDY ANALYSIS AND DOCUMENTATION OF BUILDING SERVICES SYSTEM 137 | P a g e 9.4.2 ELEVATOR COMPONENTS Figures 9.4.1.5 Schematic diagram showing the parts and components of a geared elevator system (Source: http://www.electrical –knowhow.com/2012/04/elevators-types-and-classification-part.html) In KLPAC, electrical elevator is used as mechanical transportation. The type of lift is geared traction elevator where the elevator cars are computerized and controlled by control system which is located at the roof top. The way it works is that the control system receives signal and the elevator cars are pulled up by hoisting rope over a sheave and is powered by geared machine. The elevator car is balances by a counterweight. Also, an electrically controlled brake is installed between the motor and the reduction unit stops the elevator, holding the car at the desired floor level.
  • 138.
    ARC 2423 BUILDINGSERVICES PROJECT 1 CASE STUDY ANALYSIS AND DOCUMENTATION OF BUILDING SERVICES SYSTEM 138 | P a g e Figures 9.4.1.6 Passengers Lift Figures 9.4.1.7 Pictures of COP (Car operating panel), ventilation hole inside the car and key hole to the shaft Key hole to the shaft Two panel center opening car door Floor indicator Lift call button Type: Passenger Elevator Model: Sgt 8-CO60-3 Capacity: 545KG/8 Persons Speed: 60 MPM Car Door: Two Panel Center Opening Type: Passenger Elevator Model: Sgt 8-CO60-3 Capacity: 545KG/8 Persons Speed: 60 MPM Car Door: Two Panel Center Opening
  • 139.
    ARC 2423 BUILDINGSERVICES PROJECT 1 CASE STUDY ANALYSIS AND DOCUMENTATION OF BUILDING SERVICES SYSTEM 139 | P a g e 9.4.3 GEARED MACHINE Figures 9.4.1.6 Geared Machine found in Machine Room located at rooftop of KLPAC Geared-traction machine is powered by AC-DC electrical motor. It functions to turn the sheave which then moves the lift car. Compared with gear-less traction, it uses less energy to turn the motor and help to save energy cost. This gear-traction elevator is only suitable for low to mid-rise buildings like KLPAC and the speed is lower compared to gear-less machine which ranged around 200 to 500 feet per minute. The brand of elevator that KLPAC uses is Sgt 8-CO60-3 and the geared machine is checked and maintained every month by people from the elevator (Dover) company.
  • 140.
    ARC 2423 BUILDINGSERVICES PROJECT 1 CASE STUDY ANALYSIS AND DOCUMENTATION OF BUILDING SERVICES SYSTEM 140 | P a g e Figures 9.4.1.7 Picture shows components of the lift system Lights are used to illuminate the interior of the machine room. Lifting beam is found on top of the machine to help raising and lowering parts during maintenance. Geared-traction machine is powered by AC- DC electrical motor. It functions to turn the sheave which then moves the lift car. Compared with gear-less traction, it uses less energy to turn the motor and help to save energy cost An Overspeed Governor is an elevator device which act as a stop device in case the elevator runs beyond the rated speed. This device must be installed for traction elevators.
  • 141.
    ARC 2423 BUILDINGSERVICES PROJECT 1 CASE STUDY ANALYSIS AND DOCUMENTATION OF BUILDING SERVICES SYSTEM 141 | P a g e 9.4.4 CONTROL SYSTEM Table 9.4.4.1 Diagram showing how elevator system works in KLPAC ELEVATOR User Commands User Interface Feedback to Users Control System Elevator System Car Electricity Strain Energy Heat, Noise, Friction Air People & Cargo Shaft People & Cargo Air Commands Feedback Air People & Cargo Commands Feedback Sensor Data
  • 142.
    ARC 2423 BUILDINGSERVICES PROJECT 1 CASE STUDY ANALYSIS AND DOCUMENTATION OF BUILDING SERVICES SYSTEM 142 | P a g e Figure 9.4.4.2 Control System Panel found in Machine Room in KLPAC Elevator control panel (system) is a device that can be found at the machine room usually located at the top of life. It functions as a brain to the elevator system that receives signal from user or operator and sends out signal to different components of the elevator. It is also the system responsible for coordinating all aspects of elevator service such as travel, speed, and accelerating, decelerating, door opening speed and delay, leveling and hall lantern signals. When an elevator breaks down, only a compatible person has the qualification to repair from the control system.
  • 143.
    ARC 2423 BUILDINGSERVICES PROJECT 1 CASE STUDY ANALYSIS AND DOCUMENTATION OF BUILDING SERVICES SYSTEM 143 | P a g e Figure 9.4.4.3 Overspeed Governor An Overspeed Governor is an elevator device which act as a stop device in case the elevator runs beyond the rated speed. This device must be installed for traction elevators. Figure 9.4.4.4 Ventilation inside Machine Room Vents can be found in the machine room, they serve the purpose of ventilating the interior of the machine room.
  • 144.
    ARC 2423 BUILDINGSERVICES PROJECT 1 CASE STUDY ANALYSIS AND DOCUMENTATION OF BUILDING SERVICES SYSTEM 144 | P a g e 9.4.5 OVER LOAD AND FIRE SERVICE INDICATOR Over Load Indicator a. Over Load Indicator will illuminate, and a buzzer will sound, when the load in the elevator is exceeding the contract load. b. Under over load operation, the elevator will be removed from normal service, and the elevator’s doors will open and remain open, until the load in the elevator is less than the contact load. Fire Service Indicator 1. Fire Service Indicator wil illuminate, and a buzzer will sound, during building fire emergency operation. 2. Under fire service operation, the elevator will home to the main/ground floor, and the elevator’s doors will open and remain open. In the event of a fire, users are recommended to never use the elevators to evacuate the building. Instead, should use the stairways to get to a safe place. Under no circumstances should anyone except trained firefighters be allowed to use the elevators after a fire has been reported. Fire Service is initiated automatically by the building’s smoke detectors. When this service is initiated, all hall and car calls are canceled, the elevator return to the main floor, the door open and remain open. Trained firefighters then may activate the Fire Service Key switch in the elevator and then gain control of the car.
  • 145.
    ARC 2423 BUILDINGSERVICES PROJECT 1 CASE STUDY ANALYSIS AND DOCUMENTATION OF BUILDING SERVICES SYSTEM 145 | P a g e 9.5 ANALYSIS 1. For a mid-rise building, KLPAC has successfully provided enough (3) elevators according to the requirement stated by UBBL 1984 section 124, elevators: 124 – For all non-residential buildings exceeding 4 storeys above or below the main access level at least one elevator shaft be provided. 2. KLPAC has met the requirement of UBBL to position stairs near the elevators in case of emergency and to install a smoke detector at every lift lobbies in the building. UBBL 1984 section 152-157, ventilation to elevator shafts: 152(1) – Every opening in an elevator shaft or elevator entrance shall open into a protected lobby unless other suitable means of protection to the opening to the satisfaction of the local authority is provided. These requirements shall not apply to open type industrial and other special buildings as may be approved by D.G.F.S. 153(1) – All elevator lobbies shall be provided with smoke detectors. 3. KLPAC has also met the requirement of UBBL to make sure the car moves to ground floor with doors open when emergency happens. 154(1) – On failure of mains power all elevators shall return in sequence directly to the designated floor, commencing with the fire elevators, without answering any car or landing calls and park with doors open. 9.6 CONCLUSION In conclusion, geared traction elevator system is a good choice for this building KLPAC due to its medium number of users, low installation cost, appropriate number of floors and acceptable maintenance cost. All of its mechanical transportation do bring convenience to the users and the building also complied with the UBBL and is fully functioning well.
  • 146.
    ARC 2423 BUILDINGSERVICES PROJECT 1 CASE STUDY ANALYSIS AND DOCUMENTATION OF BUILDING SERVICES SYSTEM 146 | P a g e 10 REFERENCES ABC Dry Powder Fire Extinguishers,BC Dry Powder extinguishers, M28 Extinguishers, Monnex Extinguishers. (n.d.). Retrieved from http://www.lhcfp.co.uk/dry_powder_fire_extinguishers.htm About Concrete Sinks | DoItYourself.com. (n.d.). Retrieved from http://www.doityourself.com/stry/about-concrete-sinks#b Breakers versus Fuses, Why you should select one!. (n.d.). Retrieved from http://www.bdfuses.com/breaker.php Building services handbook / Fred Hall and Roger Greeno.Hall, F. (Fred), 2011 Cooling Technology - Water Cooled Chillers & Air Cooled Chillers. (n.d.). Retrieved from http://www.coolingtechnology.com/about_process_cooling/water-cooled-chiller/default.html Drainage features and compliance when building. (n.d.). Retrieved from http://www.level.org.nz/water/wastewater/drainage-systems/ Drainage system interceptor traps. (n.d.). Retrieved from http://www.draindomain.com/interceptor%20traps.html Dry Pipe Fire Sprinkler System | VFP Fire Systems. (n.d.). Retrieved from http://www.vfpfire.com/systems-dry-pipe.php Earthtrends Country Profile:Water Resources and Freshwater Ecosystems – Malaysia, 2003 Electrical Bus System and Electrical Substation Layout | Electrical4u. (n.d.). Retrieved from http://www.electrical4u.com/electrical-bus-system-and-electrical-substation-layout/ Figuring Out Your Drain-Waste-Vent Lines - For Dummies. (n.d.). Retrieved from http://www.dummies.com/how-to/content/figuring-out-your-drainwastevent-lines.html Fire Alarm Bells, Waterflow Alarm Bells - System Sensor. (n.d.). Retrieved from https://www.systemsensor.com/en-us/Pages/Sprinkler-AlarmBells.aspx Fire Alarm Systems. (n.d.). Retrieved from http://www.firesafe.org.uk/fire-alarms/ Fire Control Centres | Firewize. (n.d.). Retrieved from http://firewize.com/book/technical-data/fire- control-centres
  • 147.
    ARC 2423 BUILDINGSERVICES PROJECT 1 CASE STUDY ANALYSIS AND DOCUMENTATION OF BUILDING SERVICES SYSTEM 147 | P a g e Fire Extinguisher, A B C Type Dry Powder Fire Extinguisher, CO2 Fire Extinguisher. (n.d.). Retrieved from http://www.supremexfireextinguisher.com/fireextinguisher.html Fire Extinguisher Malaysia - Fire Extinguisher Types. (n.d.). Retrieved from http://www.fireextinguishermalaysia.com/Fire-Extinguisher-Types.html Fire Hydrant Systems - Fire Hydrant System, Wet Riser System and Fire System In Buildings Manufacturer & Supplier from Mumbai, India. (n.d.). Retrieved from http://www.indiamart.com/pona- corporation/fire-hydrant-system.html Fire Sprinkler Systems - Fire Sprinkler System - Automatic Sprinkler Systems - Wormald. (n.d.). Retrieved from https://www.wormald.com.au/systems/fire-sprinkler-systems Fire-Rated Doors by Overhead Door. (n.d.). Retrieved from http://www.overheaddoor.com/commercial- doors/Pages/fire-rated-doors.aspx Geomast Antifire co limited. (n.d.). Retrieved from http://www.geomast.com/Default.aspx?_Page=662&_Control=CTL_Article_ArticleList&_Content=322 Grease traps - Environmental Monitoring & Protection - Stormwater Management | City of Toronto. (n.d.). Retrieved from http://www1.toronto.ca/wps/portal/contentonly?vgnextoid=319807ceb6f8e310VgnVCM10000071d60f 89RCRD&vgnextchannel=fe4cfe4eda8ae310VgnVCM10000071d60f89RCRD Heating, R. (1992). ASHRAE handbook (Inch-Pound ed.). Atlanta, Ga.: American Society of Heating, Refrigerating, and Air-Conditioning Engineers. How a Toilet Works. (n.d.). Retrieved from http://www.factsfacts.com/MyHomeRepair/ToiletFlush.htm How Air Conditioners Work: Chilled-water and Cooling-tower AC Units - HowStuffWorks. (n.d.). Retrieved from http://home.howstuffworks.com/ac4.htm How all waste traps, p traps, u bends, s traps and bottle traps work | DIY Doctor. (n.d.). Retrieved from http://www.diydoctor.org.uk/projects/howwastetrapswork.htm Jockey Pump | Grundfos. (n.d.). Retrieved from http://www.grundfos.com/service- support/encyclopedia-search/jockey-pump.html Joint Monitoring Program for Water Supply and Sanitation: Access data for Malaysia, 5 December 2010
  • 148.
    ARC 2423 BUILDINGSERVICES PROJECT 1 CASE STUDY ANALYSIS AND DOCUMENTATION OF BUILDING SERVICES SYSTEM 148 | P a g e Kitchen Sinks: Easy-Clean, Surprisingly Affordable Ceramic. (n.d.). Retrieved from http://www.houzz.com/ideabooks/7860127/list/kitchen-sinks-easy-clean-surprisingly-affordable- ceramic Molded Case Circuit Breakers | MCCB Components and Applications. (n.d.). Retrieved from http://www.galco.com/comp/prod/circ-mold.htm Osafe Fire Inspection | Fire Extinguisher. (n.d.). Retrieved from http://osafefi.com/?ws=pages&pages_id=4228 Pressurisation System - Colt International UK. (n.d.). Retrieved from http://www.coltinfo.co.uk/pressurisation-system-smoke-fire-ventilation.html Pros & Cons for Stainless Steel Kitchen Sinks | Home Guides | SF Gate. (n.d.). Retrieved from http://homeguides.sfgate.com/pros-cons-stainless-steel-kitchen-sinks-82712.html Plumbing Trap | Drain Traps | Plumbing Traps | Drainage Trap | Drainage Traps | Drainage Traps Types. (n.d.). Retrieved from http://www.gharexpert.com/articles/Waste-Water-Drainage-1790/Traps--Types- Uses_0.aspx Septic System Basics. (n.d.). Retrieved from http://www.co.thurston.wa.us/health/ehoss/septic_basics.html Stein, B., & Reynolds, J. (1992). Mechanical and electrical equipment for buildings (8th ed.). New York: J. Wiley & Sons. Syarikat Bekalan Air Selangor Sdn Bhd (SYABAS): History of Water Supply Services in Kuala Lumpur, Selangor and Putrajaya The Septic Tank. (n.d.). Retrieved from http://www.co.thurston.wa.us/health/ehoss/tank.html TNB Electricity System | Tenaga Nasional Berhad (200866-W). (n.d.). Retrieved from http://www.tnb.com.my/business/for-housing-developers-electrical-contractors/tnb-electricity- system.html Uniform Building By-laws 1984 all amendments up to August 1996 : Act 133 [7th ed.]. compiled by MDC Legal Advisers. Published 1996 by Published & printed by MDC Publishers Printers in Kuala Lumpur . What is an Inspection Chamber? | Drainage Sales. (n.d.). Retrieved from http://www.drainagepipe.co.uk/help-centre/tips-guides/what-is-an-inspection-chamber-/
  • 149.
    ARC 2423 BUILDINGSERVICES PROJECT 1 CASE STUDY ANALYSIS AND DOCUMENTATION OF BUILDING SERVICES SYSTEM 149 | P a g e What is Earthing | Electrical Notes & Articles. (2011, November 27). Retrieved from https://electricalnotes.wordpress.com/2011/11/27/what-is-earthing/
  • 150.
    ARC 2423 BUILDINGSERVICES PROJECT 1 CASE STUDY ANALYSIS AND DOCUMENTATION OF BUILDING SERVICES SYSTEM 150 | P a g e 11 APPENDIX - see behind