 The Tallest Man-made Structure ever built, Opens in Dubai.... A mixed use
development which has office, retail , hotels and residential spaces.
 The Burj Khalifa was revealed to be 828m (2,716ft) high, far taller than the
previous record holder, Taipei 101.
 With a total built-up area of about 6 million sq ft, Burj Khalifa features nearly 2
million sq ft of residential space and over 300,000 sq ft of prime office space, in
addition to the area occupied by the keenly awaited Armani Hotel Dubai and the
Armani Residences. The tower also lays claim to the highest occupied floor, the
tallest service lift, and the world's highest observation deck - on the 124th floor.
 The world's highest mosque and swimming pool will meanwhile be located on the
158th and 76th floors.
BurjDubai includes163 habitable floors plus 46 maintenance levels
in the spire and 9 parking levels in the basement.
Floor Area 309,473 sq.m.
The tapering spire is made out of reinforced concrete, steel,
stainless steel and glass. The exterior cladding of reflective glazing
is designed to withstand Dubai's extreme summer temperatures
The building contains more than 1,000 apartments and 49 floors of
office space, served by 57 lifts. There are a total of four swimming
pools and a private library
A 160-room hotel carrying the Giorgio Armani logo will occupy the
lower part of the tower
The foundations were dug to depths of 50m (164 ft).
Architecture
•The architecture features a triple-
lobed footprint, an abstraction of the
hymenocallis flower.
•The tower composed of three
elements around central core.
•The modular, Y-shaped structure,
with setbacks along each of its three
wings provides an inherently stable
configuration for the structure and
provides good floor plates for
residential.
Architecture
•Twenty-six helical levels decrease the cross section
of the tower incrementally as it spirals skyward.
•The central core emerges at the top and culminates
in a sculpted spire.
• A Y-shaped floor plan maximizes views of the
Arabian Gulf.
The architects incorporated islamic traditional patterns and modern sophistication to
design a structure that will stand the test of time.
Organic and desert Influence:
The hymenocallis desert flower was the main source of inspiration for the architects.
The design not only reduces wind forces on the building, but also allows each tenant
to have an incredible view of the surrounds
Islamic Design influence
From the top of the structure the islamic design influences can clearly been seen,
Including the use of arches and other architectural structures
 The superstructure is supported by a large reinforced concrete mat,
which is in turn supported by bored reinforced concrete piles.
 The mat is 3.7 meters thick, and was constructed in four separate pours
totaling 12,500 cubic meters of concrete.
 The minimum centre-to-centre spacing of the piles for the  tower is 2.5
times the pile diameter.
 The 1.5 meter diameter x 43 meter long piles represent the largest and
longest piles conventionally available in the region.
 A high density, low permeability concrete was used in the foundations,
as well as a cathodic protection system under the mat, to minimize any
detrimental effects form corrosive chemicals in local ground water.
 It is founded on a 3.7m thick raft supported on bored piles, 1.5 m in
diameter, extending approximately 50m below the base of the raft.
 The minimum centre-to-centre spacing of the piles for the tower is 2.5
times the pile diameter.
 The Podium provides a base anchoring the tower to the
ground, allowing on grade access from three different
sides to three different levels of the building.
 Fully glazed entry pavilions constructed with a
suspended cable-net structure provide separate entries
for the corporate suites at B1 and Concourse levels, the
Burj Khalifa residences at ground level and the Armani
Hotel at Level 1.
 The structure is modular in nature with a central hexagonal shaft or
core and three branches that spread out at 120 degrees from
each other.
 Attached to these branches are wall like columns at 9 meter
spacing that simply drop off as each leg sets back, avoiding
complex and costly structural transfers.
 In addition to its aesthetic and functional advantages, the
spiraling “Y” shaped plan was utilized to shape the structural core
of Burj Khalifa. 
 This design helps to reduce the wind forces on the tower, as well as
to keep the structure simple and foster constructability.
 The structural system can be described as a “buttressed core”,
and consists of high performance concrete wall construction.Each
of the wings buttress the others via a six-sided central core, or
hexagonal hub. 
 This central core provides the torsional resistance of the structure,
similar to a closed pipe or axle.Corridor walls extend from the
central core to near the end of each wing, terminating in
thickened hammer head walls. 
 These corridor walls and hammerhead walls behave similar to the
webs and flanges of a beam to resist the wind shears and
moments.Perimeter columns and flat plate floor construction
complete the system.
 The setbacks are organized with the tower’s grid, such that the
building stepping is accomplished by aligning columns above with
walls below to provide a smooth load path. As such, the tower
does not contain any structural transfers.
 These setbacks also have the advantage of providing a different
width to the tower for each differing floor plate. This stepping and
shaping of the tower has the effect of “confusing the wind”: Wind
vortices never get organized over the height of the building
because at each new tier the wind encounters a different building
shape.
It is opening in times of economic uncertainty for Dubai, but the building's developers, Emaar, are confident for its future and say 90% of the building is sold.
It is opening in times of economic uncertainty for Dubai, but the building's developers, Emaar, are confident for its future and say 90% of the building is sold.
GROUND FLOOR PLAN
BASEMENT PARKING
HOTEL FLOOR PLAN
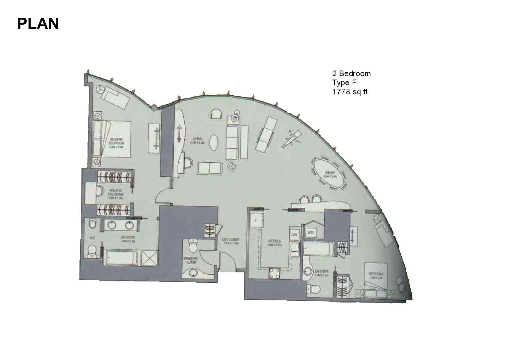
RESIDENTIAL FLOOR PLAN
PLAN
PLAN
PLAN
OFFICE FLOOR PLAN
The top four floors have been reserved for communications and broadcasting. These
floors occupy the levels just below the spire.
 Seven double-storey height
mechanical floors house the
equipment that bring Burj Khalifa to
life.
 Distributed around every 30 storeys,
the mechanical floors house the
electrical sub-stations, water tanks
and pumps, air-handling units etc,
that are essential for the operation of
the tower and the comfort of its
occupants.
An outdoor observation deck, named At the Top, opened on 5 January 2010 on the 124th
floor. At 452 m (1,483 ft), it was the highest observation deck
Burj Khalifa opened the 148th floor SKY level at 555 m (1,821 ft), once again giving it the
highest observation deck in the world on 15 October 2014.
The crowning touch of Burj Khalifa is
its telescopic spire comprised of
more than 4,000 tons of structural
steel.
The spire was constructed from
inside the building and jacked to its
full height of over 200 metres (700
feet) using a hydraulic pump.
The spire also houses
communications equipment.
The exterior cladding is comprised of reflective glazing
with aluminum and textured stainless steel spandrel
panels and stainless steel vertical tubular fins.
Close to 26,000 glass panels, each individually hand-cut,
were used.
The cladding system is designed to withstand Dubai's
extreme summer heat.
Burj Khalifa is home to 57 elevators and 8
escalators the building service/fireman's
elevator have a capacity of 5,500 kg and is
the world's tallest service elevator.
Burj Khalifa is the first mega-high rise in
which certain elevators are programmed to
permit controlled evacuation for certain fire
or security events.
Burj Khalifa's observatory elevators are
double deck cabs with a capacity for 12-14
people per cab.
Traveling at 10 metres per second.
The Burj Khalifa features distinct sections: residential apartments, serviced
apartments and hotel rooms, and corporate offices. Elevators have been
arranged in zones to serve these different audiences, with ‘sky lobby’ system.
The sky lobby is an intermediate floor where residents, guests and executives will
change from an express elevator to a local elevator, which stops at every floor
within a certain segment of the building.
Burj Khalifa’s sky lobbies are located on level 43, 76 and 123 and will include a
lounge area and kiosk, amongst other amenities.
Seven double-storey mechanical floors house the equipment that bring Burj Khalifa
to life.
Distributed around every 30 storeys, the mechanical floors house the electrical
sub-stations, water tanks, pumps and air handling units that are essential for the
running of the building.
These mechanical areas typically serve the 15 floors above and below them.
MEP operations are managed by a central BMS, with local control panels in each
plant room, all connected by fibre-optic cabling.
Plumbing systems
The Burj Khalifa's water system supplies an average of 946,000 L
(250,000 US gal) of water per day through 100 km (62 mi) of pipes.
An additional 213 km (132 mi) of piping serves the fire emergency system, and
34 km (21 mi) supplies chilled water for the air conditioning system.
The waste water system uses gravity to discharge water from plumbing fixtures,
floor drains, mechanical equipment and storm water, to the city municipal sewer.
The tower's water system supplies an average of 946,000 litres (250,000 gallons)
of water daily
At peak cooling, Burj Khalifa will require about 10,000 tons of cooling, equal to the
cooling capacity provided by about 10,000 tons of melting ice
Dubai's hot, humid climate combined with the building's cooling requirements
creates a significant amount of condensation. This water is collected and drained in
a separate piping system to a holding tank in the basement car park
The condensate collection system provides about 15 million gallons of supplement
water per year, equal to about 20 Olympic-sized swimming pools
The tower's peak electrical demand is 36mW, equal to about 360,000 100 Watt
bulbs operating simultaneously
Air conditioning
The air conditioning system draws air from the upper floors where the air is cooler
and cleaner than on the ground.
At peak cooling times, the tower's cooling is equivalent to that provided by 13,000
short tons (26,000,000 lb) of melting ice in one day,or about 46 MW.
The condensate collection system, which uses the hot and humid outside air,
combined with the cooling requirements of the building, results in a significant
amount of condensation of moisture from the air.
The condensed water is collected and drained into a holding tank located in the
basement car park; this water is then pumped into the site irrigation system for use
on the Burj Khalifa park.
First Application of “Lifeboat” evacuations
Refuge levels: 42,75,111 & 138
10 elevators avaiable for emergency evacuations
Fire safety and speed of evacuation were prime factors in the
design of Burj Khalifa.
Concrete surrounds all stairwells and the building service and
fireman's elevator will have a capacity of 5,500 kg and will be
the world's tallest service elevator.
There are pressurized, air-conditioned refuge areas located
approximately every 25 floors.
The park's 11 hectares of greenery and water features serve as both entry to Burj Khalifa and
outdoor living space.
The landscape design includes three distinct areas to serve each of tower's three uses: hotel,
residential and office space
Spectacular stone paving patterns welcome visitors at each entry.
The main entry drive is circled with a palm court, water features, outdoor spaces and a forest
grove above. The grand terrace features garden spaces, all-around pedestrian circulation,
custom site furnishings, a functional island and a lake edge promenade.
The landscape design includes six major water features: the main entry fountain, hotel entry
fountain, residential entry fountain, the grand water terrace, children's fountain pool and the
sculptural fountain.
The plants and the shrubbery will be watered by the buildings's condensation collection
system that uses water from the cooling system. The system will provide 68,000,000 L
(15,000,000 imp gal) annually
INTERIORS
INTERIORS
INTERIORS
REFERENCES:
http://www.constructionweekonline.com/article-7400-how-the-burj-was-built/5/
http://architecturalmoleskine.blogspot.in/2010/01/burj-dubai-tallest-building-in-
world.html
WWW.WORLDFLOORPLANS.COM
http://www.archinomy.com/case-studies/1892/burj-khalifa
http://www.ctbuh.org/TallBuildings/FeaturedTallBuildings/Archive2010/BurjKhalifaDubai
/tabid/3918/language/en-GB/Default.aspx
WWW.WIKIPEDIA.ORG

Bhurj khalifa _Net Case Study

  • 3.
     The TallestMan-made Structure ever built, Opens in Dubai.... A mixed use development which has office, retail , hotels and residential spaces.  The Burj Khalifa was revealed to be 828m (2,716ft) high, far taller than the previous record holder, Taipei 101.  With a total built-up area of about 6 million sq ft, Burj Khalifa features nearly 2 million sq ft of residential space and over 300,000 sq ft of prime office space, in addition to the area occupied by the keenly awaited Armani Hotel Dubai and the Armani Residences. The tower also lays claim to the highest occupied floor, the tallest service lift, and the world's highest observation deck - on the 124th floor.  The world's highest mosque and swimming pool will meanwhile be located on the 158th and 76th floors.
  • 4.
    BurjDubai includes163 habitablefloors plus 46 maintenance levels in the spire and 9 parking levels in the basement. Floor Area 309,473 sq.m. The tapering spire is made out of reinforced concrete, steel, stainless steel and glass. The exterior cladding of reflective glazing is designed to withstand Dubai's extreme summer temperatures The building contains more than 1,000 apartments and 49 floors of office space, served by 57 lifts. There are a total of four swimming pools and a private library A 160-room hotel carrying the Giorgio Armani logo will occupy the lower part of the tower The foundations were dug to depths of 50m (164 ft).
  • 5.
    Architecture •The architecture featuresa triple- lobed footprint, an abstraction of the hymenocallis flower. •The tower composed of three elements around central core. •The modular, Y-shaped structure, with setbacks along each of its three wings provides an inherently stable configuration for the structure and provides good floor plates for residential.
  • 6.
    Architecture •Twenty-six helical levelsdecrease the cross section of the tower incrementally as it spirals skyward. •The central core emerges at the top and culminates in a sculpted spire. • A Y-shaped floor plan maximizes views of the Arabian Gulf.
  • 7.
    The architects incorporatedislamic traditional patterns and modern sophistication to design a structure that will stand the test of time. Organic and desert Influence: The hymenocallis desert flower was the main source of inspiration for the architects. The design not only reduces wind forces on the building, but also allows each tenant to have an incredible view of the surrounds
  • 8.
    Islamic Design influence Fromthe top of the structure the islamic design influences can clearly been seen, Including the use of arches and other architectural structures
  • 9.
     The superstructureis supported by a large reinforced concrete mat, which is in turn supported by bored reinforced concrete piles.  The mat is 3.7 meters thick, and was constructed in four separate pours totaling 12,500 cubic meters of concrete.  The minimum centre-to-centre spacing of the piles for the  tower is 2.5 times the pile diameter.  The 1.5 meter diameter x 43 meter long piles represent the largest and longest piles conventionally available in the region.  A high density, low permeability concrete was used in the foundations, as well as a cathodic protection system under the mat, to minimize any detrimental effects form corrosive chemicals in local ground water.
  • 10.
     It isfounded on a 3.7m thick raft supported on bored piles, 1.5 m in diameter, extending approximately 50m below the base of the raft.
  • 11.
     The minimumcentre-to-centre spacing of the piles for the tower is 2.5 times the pile diameter.
  • 13.
     The Podiumprovides a base anchoring the tower to the ground, allowing on grade access from three different sides to three different levels of the building.  Fully glazed entry pavilions constructed with a suspended cable-net structure provide separate entries for the corporate suites at B1 and Concourse levels, the Burj Khalifa residences at ground level and the Armani Hotel at Level 1.
  • 15.
     The structureis modular in nature with a central hexagonal shaft or core and three branches that spread out at 120 degrees from each other.  Attached to these branches are wall like columns at 9 meter spacing that simply drop off as each leg sets back, avoiding complex and costly structural transfers.  In addition to its aesthetic and functional advantages, the spiraling “Y” shaped plan was utilized to shape the structural core of Burj Khalifa.   This design helps to reduce the wind forces on the tower, as well as to keep the structure simple and foster constructability.
  • 16.
     The structuralsystem can be described as a “buttressed core”, and consists of high performance concrete wall construction.Each of the wings buttress the others via a six-sided central core, or hexagonal hub.   This central core provides the torsional resistance of the structure, similar to a closed pipe or axle.Corridor walls extend from the central core to near the end of each wing, terminating in thickened hammer head walls.   These corridor walls and hammerhead walls behave similar to the webs and flanges of a beam to resist the wind shears and moments.Perimeter columns and flat plate floor construction complete the system.
  • 17.
     The setbacksare organized with the tower’s grid, such that the building stepping is accomplished by aligning columns above with walls below to provide a smooth load path. As such, the tower does not contain any structural transfers.
  • 18.
     These setbacksalso have the advantage of providing a different width to the tower for each differing floor plate. This stepping and shaping of the tower has the effect of “confusing the wind”: Wind vortices never get organized over the height of the building because at each new tier the wind encounters a different building shape.
  • 20.
    It is openingin times of economic uncertainty for Dubai, but the building's developers, Emaar, are confident for its future and say 90% of the building is sold.
  • 21.
    It is openingin times of economic uncertainty for Dubai, but the building's developers, Emaar, are confident for its future and say 90% of the building is sold.
  • 22.
  • 23.
  • 24.
  • 25.
  • 26.
  • 27.
  • 28.
  • 29.
  • 33.
    The top fourfloors have been reserved for communications and broadcasting. These floors occupy the levels just below the spire.
  • 34.
     Seven double-storeyheight mechanical floors house the equipment that bring Burj Khalifa to life.  Distributed around every 30 storeys, the mechanical floors house the electrical sub-stations, water tanks and pumps, air-handling units etc, that are essential for the operation of the tower and the comfort of its occupants.
  • 35.
    An outdoor observationdeck, named At the Top, opened on 5 January 2010 on the 124th floor. At 452 m (1,483 ft), it was the highest observation deck Burj Khalifa opened the 148th floor SKY level at 555 m (1,821 ft), once again giving it the highest observation deck in the world on 15 October 2014.
  • 36.
    The crowning touchof Burj Khalifa is its telescopic spire comprised of more than 4,000 tons of structural steel. The spire was constructed from inside the building and jacked to its full height of over 200 metres (700 feet) using a hydraulic pump. The spire also houses communications equipment.
  • 37.
    The exterior claddingis comprised of reflective glazing with aluminum and textured stainless steel spandrel panels and stainless steel vertical tubular fins. Close to 26,000 glass panels, each individually hand-cut, were used. The cladding system is designed to withstand Dubai's extreme summer heat.
  • 40.
    Burj Khalifa ishome to 57 elevators and 8 escalators the building service/fireman's elevator have a capacity of 5,500 kg and is the world's tallest service elevator. Burj Khalifa is the first mega-high rise in which certain elevators are programmed to permit controlled evacuation for certain fire or security events. Burj Khalifa's observatory elevators are double deck cabs with a capacity for 12-14 people per cab. Traveling at 10 metres per second.
  • 42.
    The Burj Khalifafeatures distinct sections: residential apartments, serviced apartments and hotel rooms, and corporate offices. Elevators have been arranged in zones to serve these different audiences, with ‘sky lobby’ system. The sky lobby is an intermediate floor where residents, guests and executives will change from an express elevator to a local elevator, which stops at every floor within a certain segment of the building. Burj Khalifa’s sky lobbies are located on level 43, 76 and 123 and will include a lounge area and kiosk, amongst other amenities.
  • 43.
    Seven double-storey mechanicalfloors house the equipment that bring Burj Khalifa to life. Distributed around every 30 storeys, the mechanical floors house the electrical sub-stations, water tanks, pumps and air handling units that are essential for the running of the building. These mechanical areas typically serve the 15 floors above and below them. MEP operations are managed by a central BMS, with local control panels in each plant room, all connected by fibre-optic cabling.
  • 44.
    Plumbing systems The BurjKhalifa's water system supplies an average of 946,000 L (250,000 US gal) of water per day through 100 km (62 mi) of pipes. An additional 213 km (132 mi) of piping serves the fire emergency system, and 34 km (21 mi) supplies chilled water for the air conditioning system. The waste water system uses gravity to discharge water from plumbing fixtures, floor drains, mechanical equipment and storm water, to the city municipal sewer.
  • 45.
    The tower's watersystem supplies an average of 946,000 litres (250,000 gallons) of water daily At peak cooling, Burj Khalifa will require about 10,000 tons of cooling, equal to the cooling capacity provided by about 10,000 tons of melting ice Dubai's hot, humid climate combined with the building's cooling requirements creates a significant amount of condensation. This water is collected and drained in a separate piping system to a holding tank in the basement car park The condensate collection system provides about 15 million gallons of supplement water per year, equal to about 20 Olympic-sized swimming pools The tower's peak electrical demand is 36mW, equal to about 360,000 100 Watt bulbs operating simultaneously
  • 46.
    Air conditioning The airconditioning system draws air from the upper floors where the air is cooler and cleaner than on the ground. At peak cooling times, the tower's cooling is equivalent to that provided by 13,000 short tons (26,000,000 lb) of melting ice in one day,or about 46 MW. The condensate collection system, which uses the hot and humid outside air, combined with the cooling requirements of the building, results in a significant amount of condensation of moisture from the air. The condensed water is collected and drained into a holding tank located in the basement car park; this water is then pumped into the site irrigation system for use on the Burj Khalifa park.
  • 47.
    First Application of“Lifeboat” evacuations Refuge levels: 42,75,111 & 138 10 elevators avaiable for emergency evacuations Fire safety and speed of evacuation were prime factors in the design of Burj Khalifa. Concrete surrounds all stairwells and the building service and fireman's elevator will have a capacity of 5,500 kg and will be the world's tallest service elevator. There are pressurized, air-conditioned refuge areas located approximately every 25 floors.
  • 48.
    The park's 11hectares of greenery and water features serve as both entry to Burj Khalifa and outdoor living space. The landscape design includes three distinct areas to serve each of tower's three uses: hotel, residential and office space
  • 49.
    Spectacular stone pavingpatterns welcome visitors at each entry.
  • 51.
    The main entrydrive is circled with a palm court, water features, outdoor spaces and a forest grove above. The grand terrace features garden spaces, all-around pedestrian circulation, custom site furnishings, a functional island and a lake edge promenade. The landscape design includes six major water features: the main entry fountain, hotel entry fountain, residential entry fountain, the grand water terrace, children's fountain pool and the sculptural fountain. The plants and the shrubbery will be watered by the buildings's condensation collection system that uses water from the cooling system. The system will provide 68,000,000 L (15,000,000 imp gal) annually
  • 52.
  • 53.
  • 54.
  • 55.