o Systems and devices by which trains are operated efficiently,
tracks are used to maximum extent maintaining the safety of
passengers and goods. Includes use and working of signals and
controlling
o Provide for safe and efficient movement of trains
o Ensure safety between two or more approaching or crossing
trains
o Provide for safe and efficient shunting operations
o Guide the trains during repairs and maintenance of the track
o Safeguard the trains at converging junction and give
directional indications.
o Operational Characteristics: Detonating, Hand, Fixed signals
o Functional Characteristics: Stop, Warner, shunting, Colored
signals
o Locational Characteristics: Reception (outer, home),
Departure (starter, advanced starter) signals
o Special Characteristics: Repeater, Routing, Calling on, Point
indicator signals
o Detonating Signals: when hand or fixed signals are not
visible, detonators are placed on rails, which explode with
loud sound when train passes over them, indicating the
driver to be cautious.
o Hand Signals: colored flags or lights are used to indicate stop
(red), proceed (green) or proceed with caution (yellow).
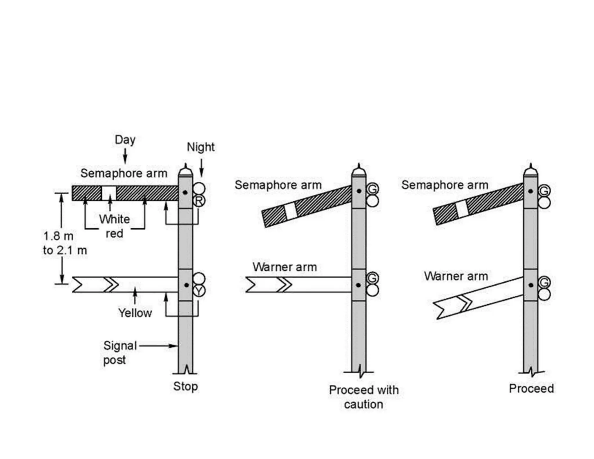
o Fixed Signals: fixed in position and include semaphore and
warner type. Consist of an arm fixed on vertical post, placed
on LHS of track, facing the direction of movement with
horizontal arm projecting away from the track. Pulled by
levers in signal cabin.
o When semaphore arm is
horizontal it is said to be ON
and indicates STOP.
o If lowered to 45o, said to be
OFF and indicates PROCEED
o Colored lights are used during
night hours
o Signal mechanism is such that
if something goes wrong it
will always indicate STOP.
Semaphore arm 1.2 to 1.7 m
White band Spindle
Lamp
Spectacle
Crank rod
counterwt
cam
Lever
Chain Signal Post
Pulley
To signal cabin
G. L.
o Similar to semaphore in
shape except for a V notch
at free end. The white band
is also V shaped
o These signals are provided
ahead of ordinary
semaphore signal and warn
about the main signal.
V notch and band
Warner arm
o If warner is ON it means
main signal is also ON. If
warner is OFF it means
proceed cautiously and if
main is also OFF then
proceed further.
o Disc signals consisting of a
white disc with horizontal
red band and colored lights
(green and Red)
o Operated by pulling lever
manually.
o Used for shunting
operations in yards
70 cm lever
Green
Glass
Red
glass
Disc
Red
Band
Post
 High intensity beam,
colored lights are used.
 Visible at night and day
also
 Working is automatic. If
section ahead is occupied
it gives red indication only.
Three aspects, red, green
and yellow
Hood
Red
Yellow
Green
Post
o RS control the reception of trains. Further classified as
o Outer Signal: first reception signal faced by driver while
approaching. Indicates end of block section and start of
station limits
o Home signal: second reception signal faced while
approaching station. Indicates entry into station yard
o Control the departure of trains. Faced by driver while leaving
the station. Further type
o Starter Signal: first departure signal faced by driver. Generally
located at the end of platform. Indicates to start the train.
o Advanced starter Signal: second departure signal faced by
driver while leaving station. Placed beyond the outermost set
of switches. Indicates end of station and start of block
section.
o Whenever there is obstruction to the sight of main signal due
to bridge, pole, building etc., another signal with a duplicate
arm of smaller size is provided, which repeats the indication
of main signal.
o Routing signal: when no of branches takeoff from main track
it is difficult to place individual signal post for each track at
diverging point, so these signals are combined and placed on
single post with signal for main track at higher level.
o Used to call the train waiting beyond
the home signal. Consists of a
smaller arm than semaphore arm
and is placed on home signal post at
lower level.
o PI- used to indicate the position of
points. Rotating box with green and
white color code. Green means
points are set to main, while green
means set to branch track. Used for
shunting op.
Box
Green
Disc
White
Side
view
Front
view

Topic- Signals in Railway Engineering.pdf

  • 1.
    o Systems anddevices by which trains are operated efficiently, tracks are used to maximum extent maintaining the safety of passengers and goods. Includes use and working of signals and controlling
  • 2.
    o Provide forsafe and efficient movement of trains o Ensure safety between two or more approaching or crossing trains o Provide for safe and efficient shunting operations o Guide the trains during repairs and maintenance of the track o Safeguard the trains at converging junction and give directional indications.
  • 3.
    o Operational Characteristics:Detonating, Hand, Fixed signals o Functional Characteristics: Stop, Warner, shunting, Colored signals o Locational Characteristics: Reception (outer, home), Departure (starter, advanced starter) signals o Special Characteristics: Repeater, Routing, Calling on, Point indicator signals
  • 4.
    o Detonating Signals:when hand or fixed signals are not visible, detonators are placed on rails, which explode with loud sound when train passes over them, indicating the driver to be cautious. o Hand Signals: colored flags or lights are used to indicate stop (red), proceed (green) or proceed with caution (yellow). o Fixed Signals: fixed in position and include semaphore and warner type. Consist of an arm fixed on vertical post, placed on LHS of track, facing the direction of movement with horizontal arm projecting away from the track. Pulled by levers in signal cabin.
  • 5.
    o When semaphorearm is horizontal it is said to be ON and indicates STOP. o If lowered to 45o, said to be OFF and indicates PROCEED o Colored lights are used during night hours o Signal mechanism is such that if something goes wrong it will always indicate STOP. Semaphore arm 1.2 to 1.7 m White band Spindle Lamp Spectacle Crank rod counterwt cam Lever Chain Signal Post Pulley To signal cabin G. L.
  • 7.
    o Similar tosemaphore in shape except for a V notch at free end. The white band is also V shaped o These signals are provided ahead of ordinary semaphore signal and warn about the main signal. V notch and band Warner arm o If warner is ON it means main signal is also ON. If warner is OFF it means proceed cautiously and if main is also OFF then proceed further.
  • 10.
    o Disc signalsconsisting of a white disc with horizontal red band and colored lights (green and Red) o Operated by pulling lever manually. o Used for shunting operations in yards 70 cm lever Green Glass Red glass Disc Red Band Post
  • 11.
     High intensitybeam, colored lights are used.  Visible at night and day also  Working is automatic. If section ahead is occupied it gives red indication only. Three aspects, red, green and yellow Hood Red Yellow Green Post
  • 12.
    o RS controlthe reception of trains. Further classified as o Outer Signal: first reception signal faced by driver while approaching. Indicates end of block section and start of station limits o Home signal: second reception signal faced while approaching station. Indicates entry into station yard
  • 13.
    o Control thedeparture of trains. Faced by driver while leaving the station. Further type o Starter Signal: first departure signal faced by driver. Generally located at the end of platform. Indicates to start the train. o Advanced starter Signal: second departure signal faced by driver while leaving station. Placed beyond the outermost set of switches. Indicates end of station and start of block section.
  • 15.
    o Whenever thereis obstruction to the sight of main signal due to bridge, pole, building etc., another signal with a duplicate arm of smaller size is provided, which repeats the indication of main signal. o Routing signal: when no of branches takeoff from main track it is difficult to place individual signal post for each track at diverging point, so these signals are combined and placed on single post with signal for main track at higher level.
  • 16.
    o Used tocall the train waiting beyond the home signal. Consists of a smaller arm than semaphore arm and is placed on home signal post at lower level. o PI- used to indicate the position of points. Rotating box with green and white color code. Green means points are set to main, while green means set to branch track. Used for shunting op. Box Green Disc White Side view Front view