TABLE OF CONTENTS
1BLD 61003 BUILDING STRUCTURES STRUCTURAL ANALYSIS OF A BUNGALOW Report
TABLE OF CONTENTS
01 INTRODUCTION 2
02 ARCHITECTURAL DRAWINGS 3
02.1 GROUND FLOOR PLAN 4
02.2 FIRST FLOOR PLAN 5
02.3 ROOF PLAN 6
03 STRUCTURAL PLANS 7
03.1 FOUNDATION PLAN 8
03.2 GROUND FLOOR STRUCTURAL PLAN 9
03.3 FIRST FLOOR STRUCTURAL PLAN 10
03.4 ROOF STRUCTURAL PLAN 11
04 DESIGN BRIEF 12
05 LOAD DISTRIBUTION DIAGRAM 16
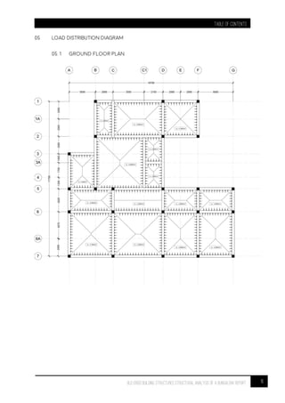
05.1 GROUND FLOOR PLAN 16
05.2 FIRST FLOOR PLAN 17
06 TRIBUTARY AREA DIAGRAM 18
06.1 GROUND FLOOR PLAN 18
06.2 FIRST FLOOR PLAN 19
06.3 ROOF PLAN 20
07 INDIVIDUAL COMPONENT 21
08 BEAM AND COLUMN ANALYSIS 22
08.1 AIDA JUNITA
08.2 BRIDGET TAN
08.3 KHOR YEN MIN
TABLE OF CONTENTS
2BLD 61003 BUILDING STRUCTURES STRUCTURAL ANALYSIS OF A BUNGALOW Report
01 INTRODUCTION
TABLE OF CONTENTS
3BLD 61003 BUILDING STRUCTURES STRUCTURAL ANALYSIS OF A BUNGALOW Report
TABLE OF CONTENTS
4BLD 61003 BUILDING STRUCTURES STRUCTURAL ANALYSIS OF A BUNGALOW Report
02 ARCHITECTURAL DRAWINGS
02.1 GROUND FLOOR PLAN
TABLE OF CONTENTS
5BLD 61003 BUILDING STRUCTURES STRUCTURAL ANALYSIS OF A BUNGALOW Report
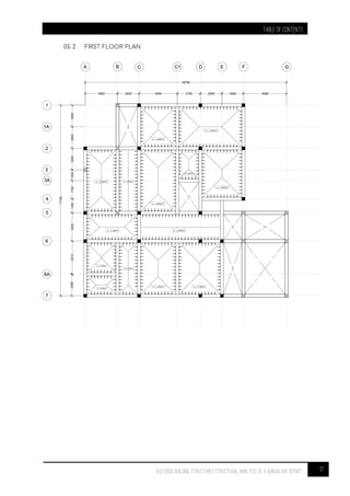
02.2 FIRST FLOOR PLAN
TABLE OF CONTENTS
6BLD 61003 BUILDING STRUCTURES STRUCTURAL ANALYSIS OF A BUNGALOW Report
02.3 ROOF PLAN
TABLE OF CONTENTS
7BLD 61003 BUILDING STRUCTURES STRUCTURAL ANALYSIS OF A BUNGALOW Report
TABLE OF CONTENTS
8BLD 61003 BUILDING STRUCTURES STRUCTURAL ANALYSIS OF A BUNGALOW Report
03 STRUCTURAL PLANS
03.1 FOUNDATION PLAN
TABLE OF CONTENTS
9BLD 61003 BUILDING STRUCTURES STRUCTURAL ANALYSIS OF A BUNGALOW Report
03.2 GROUND FLOOR STRUCTURAL PLAN
TABLE OF CONTENTS
10BLD 61003 BUILDING STRUCTURES STRUCTURAL ANALYSIS OF A BUNGALOW Report
03.3 FIRST FLOOR STRUCTURAL PLAN
TABLE OF CONTENTS
11BLD 61003 BUILDING STRUCTURES STRUCTURAL ANALYSIS OF A BUNGALOW Report
03.4 ROOF STRUCTURAL PLAN
TABLE OF CONTENTS
12BLD 61003 BUILDING STRUCTURES STRUCTURAL ANALYSIS OF A BUNGALOW Report
TABLE OF CONTENTS
13BLD 61003 BUILDING STRUCTURES STRUCTURAL ANALYSIS OF A BUNGALOW Report
04 DESIGN BRIEF
Structural Members Specifications
Density of Material
TABLE OF CONTENTS
14BLD 61003 BUILDING STRUCTURES STRUCTURAL ANALYSIS OF A BUNGALOW Report
Live Load Assumed
TABLE OF CONTENTS
15BLD 61003 BUILDING STRUCTURES STRUCTURAL ANALYSIS OF A BUNGALOW Report
Quantify Dead Loads Acting On Structure
TABLE OF CONTENTS
16BLD 61003 BUILDING STRUCTURES STRUCTURAL ANALYSIS OF A BUNGALOW Report
05 LOAD DISTRIBUTION DIAGRAM
05.1 ground floor PLAN
TABLE OF CONTENTS
17BLD 61003 BUILDING STRUCTURES STRUCTURAL ANALYSIS OF A BUNGALOW Report
05.2 FIRST floor PLAN
TABLE OF CONTENTS
18BLD 61003 BUILDING STRUCTURES STRUCTURAL ANALYSIS OF A BUNGALOW Report
06 TRIBUTARY AREA DIAGRAM
06.1 ground floor PLAN
TABLE OF CONTENTS
19BLD 61003 BUILDING STRUCTURES STRUCTURAL ANALYSIS OF A BUNGALOW Report
06.2 FIRST floor PLAN
TABLE OF CONTENTS
20BLD 61003 BUILDING STRUCTURES STRUCTURAL ANALYSIS OF A BUNGALOW Report
06.3 ROOF PLAN
TABLE OF CONTENTS
21BLD 61003 BUILDING STRUCTURES STRUCTURAL ANALYSIS OF A BUNGALOW Report
07 INDIVIDUAL COMPONENT
07.1 GROUND FLOOR PLAN (BEAM) 07.2 FIRST FLOOR PLAN (BEAM)
07.3 GROUND FLOOR PLAN (COLUMN) 07.4 FIRST FLOOR PLAN (COLUMN)
07.5 ROOF PLAN (COLUMN)
AIDA JUNITA
BRIDGET TAN
KHOR YEN MIN
TABLE OF CONTENTS
22BLD 61003 BUILDING STRUCTURES STRUCTURAL ANALYSIS OF A BUNGALOW Report
TABLE OF CONTENTS
23BLD 61003 BUILDING STRUCTURES STRUCTURAL ANALYSIS OF A BUNGALOW Report
TABLE OF CONTENTS
24BLD 61003 BUILDING STRUCTURES STRUCTURAL ANALYSIS OF A BUNGALOW Report
PROJECT 2 - BUILDING STRUCTURE
PROJECT 2 - BUILDING STRUCTURE
PROJECT 2 - BUILDING STRUCTURE
PROJECT 2 - BUILDING STRUCTURE
PROJECT 2 - BUILDING STRUCTURE
PROJECT 2 - BUILDING STRUCTURE
PROJECT 2 - BUILDING STRUCTURE
PROJECT 2 - BUILDING STRUCTURE
PROJECT 2 - BUILDING STRUCTURE
PROJECT 2 - BUILDING STRUCTURE
PROJECT 2 - BUILDING STRUCTURE
PROJECT 2 - BUILDING STRUCTURE
PROJECT 2 - BUILDING STRUCTURE
PROJECT 2 - BUILDING STRUCTURE
PROJECT 2 - BUILDING STRUCTURE
PROJECT 2 - BUILDING STRUCTURE
PROJECT 2 - BUILDING STRUCTURE
PROJECT 2 - BUILDING STRUCTURE
PROJECT 2 - BUILDING STRUCTURE
PROJECT 2 - BUILDING STRUCTURE
PROJECT 2 - BUILDING STRUCTURE

PROJECT 2 - BUILDING STRUCTURE

  • 2.
    TABLE OF CONTENTS 1BLD61003 BUILDING STRUCTURES STRUCTURAL ANALYSIS OF A BUNGALOW Report TABLE OF CONTENTS 01 INTRODUCTION 2 02 ARCHITECTURAL DRAWINGS 3 02.1 GROUND FLOOR PLAN 4 02.2 FIRST FLOOR PLAN 5 02.3 ROOF PLAN 6 03 STRUCTURAL PLANS 7 03.1 FOUNDATION PLAN 8 03.2 GROUND FLOOR STRUCTURAL PLAN 9 03.3 FIRST FLOOR STRUCTURAL PLAN 10 03.4 ROOF STRUCTURAL PLAN 11 04 DESIGN BRIEF 12 05 LOAD DISTRIBUTION DIAGRAM 16 05.1 GROUND FLOOR PLAN 16 05.2 FIRST FLOOR PLAN 17 06 TRIBUTARY AREA DIAGRAM 18 06.1 GROUND FLOOR PLAN 18 06.2 FIRST FLOOR PLAN 19 06.3 ROOF PLAN 20 07 INDIVIDUAL COMPONENT 21 08 BEAM AND COLUMN ANALYSIS 22 08.1 AIDA JUNITA 08.2 BRIDGET TAN 08.3 KHOR YEN MIN
  • 3.
    TABLE OF CONTENTS 2BLD61003 BUILDING STRUCTURES STRUCTURAL ANALYSIS OF A BUNGALOW Report 01 INTRODUCTION
  • 4.
    TABLE OF CONTENTS 3BLD61003 BUILDING STRUCTURES STRUCTURAL ANALYSIS OF A BUNGALOW Report
  • 5.
    TABLE OF CONTENTS 4BLD61003 BUILDING STRUCTURES STRUCTURAL ANALYSIS OF A BUNGALOW Report 02 ARCHITECTURAL DRAWINGS 02.1 GROUND FLOOR PLAN
  • 6.
    TABLE OF CONTENTS 5BLD61003 BUILDING STRUCTURES STRUCTURAL ANALYSIS OF A BUNGALOW Report 02.2 FIRST FLOOR PLAN
  • 7.
    TABLE OF CONTENTS 6BLD61003 BUILDING STRUCTURES STRUCTURAL ANALYSIS OF A BUNGALOW Report 02.3 ROOF PLAN
  • 8.
    TABLE OF CONTENTS 7BLD61003 BUILDING STRUCTURES STRUCTURAL ANALYSIS OF A BUNGALOW Report
  • 9.
    TABLE OF CONTENTS 8BLD61003 BUILDING STRUCTURES STRUCTURAL ANALYSIS OF A BUNGALOW Report 03 STRUCTURAL PLANS 03.1 FOUNDATION PLAN
  • 10.
    TABLE OF CONTENTS 9BLD61003 BUILDING STRUCTURES STRUCTURAL ANALYSIS OF A BUNGALOW Report 03.2 GROUND FLOOR STRUCTURAL PLAN
  • 11.
    TABLE OF CONTENTS 10BLD61003 BUILDING STRUCTURES STRUCTURAL ANALYSIS OF A BUNGALOW Report 03.3 FIRST FLOOR STRUCTURAL PLAN
  • 12.
    TABLE OF CONTENTS 11BLD61003 BUILDING STRUCTURES STRUCTURAL ANALYSIS OF A BUNGALOW Report 03.4 ROOF STRUCTURAL PLAN
  • 13.
    TABLE OF CONTENTS 12BLD61003 BUILDING STRUCTURES STRUCTURAL ANALYSIS OF A BUNGALOW Report
  • 14.
    TABLE OF CONTENTS 13BLD61003 BUILDING STRUCTURES STRUCTURAL ANALYSIS OF A BUNGALOW Report 04 DESIGN BRIEF Structural Members Specifications Density of Material
  • 15.
    TABLE OF CONTENTS 14BLD61003 BUILDING STRUCTURES STRUCTURAL ANALYSIS OF A BUNGALOW Report Live Load Assumed
  • 16.
    TABLE OF CONTENTS 15BLD61003 BUILDING STRUCTURES STRUCTURAL ANALYSIS OF A BUNGALOW Report Quantify Dead Loads Acting On Structure
  • 17.
    TABLE OF CONTENTS 16BLD61003 BUILDING STRUCTURES STRUCTURAL ANALYSIS OF A BUNGALOW Report 05 LOAD DISTRIBUTION DIAGRAM 05.1 ground floor PLAN
  • 18.
    TABLE OF CONTENTS 17BLD61003 BUILDING STRUCTURES STRUCTURAL ANALYSIS OF A BUNGALOW Report 05.2 FIRST floor PLAN
  • 19.
    TABLE OF CONTENTS 18BLD61003 BUILDING STRUCTURES STRUCTURAL ANALYSIS OF A BUNGALOW Report 06 TRIBUTARY AREA DIAGRAM 06.1 ground floor PLAN
  • 20.
    TABLE OF CONTENTS 19BLD61003 BUILDING STRUCTURES STRUCTURAL ANALYSIS OF A BUNGALOW Report 06.2 FIRST floor PLAN
  • 21.
    TABLE OF CONTENTS 20BLD61003 BUILDING STRUCTURES STRUCTURAL ANALYSIS OF A BUNGALOW Report 06.3 ROOF PLAN
  • 22.
    TABLE OF CONTENTS 21BLD61003 BUILDING STRUCTURES STRUCTURAL ANALYSIS OF A BUNGALOW Report 07 INDIVIDUAL COMPONENT 07.1 GROUND FLOOR PLAN (BEAM) 07.2 FIRST FLOOR PLAN (BEAM) 07.3 GROUND FLOOR PLAN (COLUMN) 07.4 FIRST FLOOR PLAN (COLUMN) 07.5 ROOF PLAN (COLUMN) AIDA JUNITA BRIDGET TAN KHOR YEN MIN
  • 23.
    TABLE OF CONTENTS 22BLD61003 BUILDING STRUCTURES STRUCTURAL ANALYSIS OF A BUNGALOW Report
  • 24.
    TABLE OF CONTENTS 23BLD61003 BUILDING STRUCTURES STRUCTURAL ANALYSIS OF A BUNGALOW Report
  • 25.
    TABLE OF CONTENTS 24BLD61003 BUILDING STRUCTURES STRUCTURAL ANALYSIS OF A BUNGALOW Report