 PREPARED BY :
SAGAR SHAH (09bcl027)
MANSI JAIN (09bcl034)
RUJUTA MEHTA (09bcl037)
 INTRODUCTION
 What is precast?
 Advantages
 Case studies of precast buildings (India/abroad)
 Companies involved in precast buildings (India/abroad)
 ELEMENTS OF PRECAST BUILDINGS AND VARIOUS SYSTEMS
 Precast footings
 Beams
 Columns
 Slab
 Shear walls
 Partition walls
 Connection between precast elements
 CONSTRUCTION METHODOLOGY
 DESIGN OF PRECAST BUILDING SYSTEM
 Loads (DL, LL, WL, EL)
 Analysis
 Design
 Detailing of reinforcement
 Cost estimate
 COMPARISON BETWEEN CAST-IN-SITU AND PRECAST BUILDING
DESIGNS
 PREPARATION OF MODEL OF PRECAST BUILDINGS
 Scaled model / Prototype ( to demonstrate construction and other aspects of
precast buildings)
 STANDARDS
 WHAT IS PRECAST ?
Precast concrete is a construction product produced
by casting concrete in a reusable mold or "form" which
is then cured in a controlled environment, transported
to the construction site and lifted and set into place.
PRECAST BUILDINGS CONVENTIONAL BUILDINGS
Designed, manufactured, and tested
under supervision of experienced
management.
Concrete cast at site where contractors
do not take care of mix design
proportions.
Entire concrete blocks are cured
uniformly for the required amount of
time.
Curing is not done uniformly at sites.
Production is not hampered with
weather delays
Production is severely hampered.
Aesthetically pleasing appearance Special aesthetic design required
PRECAST BUILDINGS CONVENTIONAL BUILDINGS
Environment -friendly Non environment-friendly
Stationary equipment efficiency
designed for repetitive production.
Cost of formwork per unit to be lower
than for site-cast production.
Special design and features developed for
each project at higher costs
Greater flexibility : Design and
manufacturing at same location.
Not flexible
Construction is faster. Construction is comparatively slower.
 A precast building is constructed by assembling and
connecting various prefabricated elements required in
the building structure. These elements are:
 Precast slabs
 Precast beams
 Precast columns
 Precast walls
 Precast foundation
 Precast slabs are cast in a factory environment and
include the following prestressed concrete options:
 Hollow core units:
A Hollow core slab offers the ideal structural section by
reducing deadweight while providing the maximum
structural efficiency within the slab depth. Precast
floors are available with a variety of factory-formed
notches, slots and reinforcement arrangements which
offer various design approaches.
 Double-tee units:
 Double Tee (TT) slabs are two symmetrically placed
beams interacting with a slab forming in one section
with a “double tee” shape made in precast, prestressed
concrete.
 Resistant to moisture and corrosion. Parking garages,
office buildings, commercial buildings, factories,
industrial buildings, etc., are all ideal applications.
 Made with G50 concrete and ½” strands ASTM A416 as
standard, each double Tee slab is normally 2400mm
wide.
 BEARING SUPPORTS FOR DOUBLE TEE SLABS
 Double tee slabs can be supported on many types of
supports designed to carry the required dead and live loads.
Precast beams, precast walls, poured concrete beams and
walls, masonry walls, insulated concrete forming system
walls and structural steel beams are all suitable for use with
double tee slabs as load bearing systems.
 Solid concrete units:
These are simple solid core slabs which appear same as solid slabs cast in
situ; the only difference being that they are prefabricated.
 Slab Depths: range from 75mm to 240mm with upstands – giving overall
depths between 150mm and 300mm.
 Slab Widths: Usually manufactured to 600mm or 1200mm nominal size.
 Rapid Construction: Precast slabs are manufactured to the specific needs
of the building, eliminating shuttering and adding to speed of
construction.
 Design Efficient: Composite floors can be designed to act compositely
with the structure of the building to reduce member sizes.
 Soffit Finish: The soffit of the solid prestressed slab is generally from a
steel mould and is therefore suitable for an exposed finish in structures
such as car parks, industrial buildings and for a wide variety of applied
finishes in other types of buildings.
 Biaxial voided slabs :
 A relatively new technology developed in Europe has taken the
efficiency of cast-in-place flat plate slabs to new heights.
 Floor spans up to 17 meters (~56 feet) and overall slab thicknesses up to
60 cm (~24 inches).
 These slabs are more efficient than traditional structural floor systems
commonly used in the construction of office buildings. The main effect
of the voided slab system is to decrease the overall weight by as much as
35% when compared to a solid slab of the same capacity, while still
offering other advantages.
 The voided slab system has the same bearing capacity as conventional
concrete solid slabs, and standard design and detailing techniques can
be directly applied.
 Beams and beam shells are both used for suspended
flooring. Beams are typically used as ledges for other forms
of precast flooring to sit on, but can also be used as a
flooring option in their own right. They are generally
manufactured to suit each particular situation and profiles
can include
 Tee-beams,
 L-beams,
 Rectangular beams,
 U-beams and
 Beamshells.
 Beams can be either reinforced or prestressed.
 Tee-Beams :
 Tee-beams (either single or double) cover the span range
beyond slab-type members such as hollowcore planks.
 Tee-beams are a very efficient structural shape.
 The units are generally cast with straight strands or
deflected strands, depending on design considerations.
 The Tee-beams are the basis for the design of
economical, fire rated structures where construction
time, long spans or heavy loadings are important cost
influences.
 Inverted Tee-Beams (Ledger) :
 Inverted Tee-beams are generally used for flooring
systems like beam and infill where they provide a ledger
for precast floor units to sit on. Inverted Tee-beams are
structurally similar to a standard single Tee-beam.
 L-Beam (Spandrel):
 L-beams have an 'L' shape profile which provides a ledge
for a precast flooring system to sit on.
 These beams are generally used to span clear sections
and are reinforced and/or prestressed.
 Rectangular Beams:
 Rectangular beams get their name from the end profile.
These beams are generally used to span clear sections
and are reinforced and/or prestressed.
 U-Beams:
 U-beams as the name suggests have a 'U' shaped profile.
These beams are generally used to span clear sections
and are reinforced and/or pretensioned.
 They are more commonly used for single-unit
pedestrian bridges than with composite flooring
systems.
 Beam Shells:
 This is a complimentary composite system of precast elemnts
that contain all the positive main beam reinforcement and
most/all of the stirrups in a minimum volume of concrete for
economy and ease of handling.
 They are generally ‘U’ shaped and mostly used in conjunction
with precast flooring such as hollowcore or permanent
formwork panels to eliminate on site forming.
 Precast concrete columns are modular in design in
order to be made into different heights.
 Widths are 12", 18" and 24".
 Columns are not structural, but can be used as such
only after a structural engineer has adapted them to a
building.
 Precast column can be produced as either single
storey corbel column or multi storey corbel column.
 Columns can either be rectangular or circular in
section.
 Projecting rebar can be provided for tying in to in-situ
floors. Options for foundation connections include
cast in base plates, dowel tubes or projections.
 Beam support is achieved by either flared heads,
corbels or bolt-on brackets.
 A wall system can be comprised of :
 flat or curved panels (solid, hollow-core, or insulated)
 window or mullion panels
 ribbed panels
 double-tee .
 Precast footings are a recent innovation.
 No holes need to be dug for footings, as the precast
blocks are set on grade, and the posts, columns or
beams fit in pockets cast in the concrete block.
 Precast concrete foundations are pre-engineered
systems manufactured in a controlled environment.
Precast footings Cast in situ footings
• Built off site • Formed and cast on site
• Lowest site impact (0.5-1.0 days) • High site impact (5-8 days)
• Negligible impact by weather • Construction impacted by weather
• Panelized = joints for expansion and
Contraction
• Monolithically cast = cracks
 The type of structural system should be determined
keeping in mind
 the purpose of building,
 the efficiency of the system,
 the location and
 the client’s need.
 Depending on the load-bearing structure, precast systems
can be divided into the follow categories:
 Large-panel systems
 Frame systems
 Slab-column systems with walls
 Mixed systems
 “Large-panel system” refers to multistory structures composed of large
wall and floor concrete panels connected in the vertical and horizontal
directions so that the wall panels enclose appropriate spaces for the
rooms within a building.
 These panels form a box-like structure.
 Both vertical and horizontal panels resist gravity load.
 Wall panels are usually one storey high.
 Horizontal floor and roof panels span either as one-way or two-way
slabs.
 When properly joined together, these horizontal elements act as
diaphragms that transfer the lateral loads to the walls.
 Depending on wall layout, there are
three basic configurations of large-
panel buildings:
 Cross-wall system : The main walls
that resist gravity and lateral loads are
placed in the short direction of the
building.
 Longitudinal-wall system: The walls
resisting gravity and lateral loads are
placed in the longitudinal direction.
 Two-way system. The walls are placed
in both directions.
 Precast frames can be constructed using either linear
elements or spatial beam column sub-assemblages.
 The use of linear elements generally means placing the
connecting faces at the beam-column junctions. The
beams can be seated on corbels at the columns, for ease
of construction and to aid the shear transfer from the
beam to the column.
 The beam-column joints accomplished in this way are
hinged.
 However, rigid beam-column connections are used in
some cases, when the continuity of longitudinal
reinforcement through the beam-column joint needs to
be ensured.
 The components of a precast reinforced concrete
frame are shown in Figure:
 These systems rely on shear walls to sustain lateral
load effects, whereas the slab-column structure resists
mainly gravity loads.
 There are two main systems in this category:
 Lift-slab system with walls
 Prestressed slab-column system
 Lift –slab system:
 The load-bearing structure consists of precast reinforced
concrete columns and slabs.
 Precast columns are usually two stories high.
 All precast structural elements are assembled by means of
special joints.
 Precast concrete floor slabs are lifted from the ground up to
the final height by lifting cranes.
 The slab panels are lifted to the top of the column and then
moved downwards to the final position.
 Temporary supports are used to keep the slabs in the position
until the connection with the columns has been achieved.
 The prestressed slab-column system:
 Horizontal prestressing in two orthogonal directions to
achieve continuity.
 The precast concrete column elements are 1 to 3 stories high.
 After erecting the slabs and columns of a storey, the columns
and floor slabs are prestressed by means of prestressing
tendons that pass through ducts in the columns at the floor
level and along the gaps left between adjacent slabs.
 After prestressing, the gaps between the slabs are filled with
in situ concrete and the tendons then become bonded with
the spans.
post-tensioned slab column connection
 Connections are locations of high stress concentrations
and are weak points in the structural systems.
 Connections of different precast concrete components
like footing beams, columns, slabs and wall panels are
very essential in precast concrete building.
 Depending upon the type of connection, a joint can be
considered simply supported, fixed and hinged.
 Primarily precast building connections can be classified
as:
 Typical European prefabrication.
 Equivalent monolithic moment resisting connection.
 Post-tensioned dry joint.
 Hybrid connection.
 In this type of connection concrete structures are
designed with plastic hinges occurring at column bases
and beams are hinged to the column.
 Advantages :
 increases speed of construction.
 high quality control can be maintained as all precasted
elements are required to be dry jointed at site.
 Limitations :
 lack of lateral stability since beams and slab are simply
supported; moment resisting connections are required to
achieve adequate stiffness.
 not preferable as it causes significant deformation and
high lateral displacement during a seismic event.
Typical European fabrication for
industrial building
 Precast concrete structures are traditionally designed
as moment resisting frames with plastic hinges
occurring at the column base, and beams hinged to
the columns.
 A ductile moment resisting connection between the
column and the beam can provide, with respect to a
simply supported precast beam, the advantage of
designing continuous beams with a reduced beam
depth, or with an increase of either span length or
carried load.
 Schematic diagrams explaining different type of cast-
in-place connections.
 Picture of factory set of components
 They show a good seismic behavior due to limited residual
structural deformations, which allow immediate occupancy
of the buildings after a seismic event.
 The post-tensioned tendons act as elastic springs re-
centering the joint and in this way resetting the initial
conditions existing before the seismic event.
 In such connection a tendon is passed through the
connection and post-tensioned.
 In the hybrid solutions, the beams are jointed to the
column by ordinary longitudinal reinforcement,
dissipating the energy, and post-tensioned unbonded
tendons allowing a controlled rocking of the beam.
 The typical effect is a “flag-shaped” hysteretic
behavior, with a reduction of the damage of the jointed
elements due to opening and closing of the pre-
existing gap at the beam-column interface.
 CONSTRUCTION CONSIDERATIONS
 All safety issues on site when handling precast elements,
 The lifting capacity of the crane used.
 The working boom-radius of the crane.
 The suitability of construction materials for the purpose of
use, i.e. sealant, grouting, shim plate, propping etc.
 Co-ordination with the precaster and specialist supplier to
achieve the best performance and working method.
 SEQUENCE OF WORK
 QUICK CHECK
 Ensure the correct panel before hoisting.
 Ensure the crane lifting capacity before hoisting the
panel.
 Ensure the desired crane’s working radius.
 Ensure the anchorage for the propping does not damage
cast-in building services.
 Ensure the desired verticality/position is achieved.
 Estimated time to install a typical precast element is 1/2
to 3/4 hour
 THE PROCEDURE
 Diagram below illustrates the sequence of installation
for the precast beam-slab system:
 Post installation
 Verify alignment and verticality of every wall.
 Verify cast slab level at 1 m grid.
 Report deviation and rectify if required.
 CONSTRAINTS AND SOLUTIONS
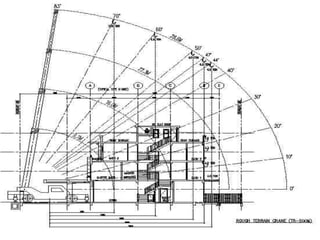
 Access
 CRANE CAPACITY AND REACH
 COORDINATION
 INSTALLATION
 HANDLING
PRECAST BUILDING SYSTEM

PRECAST BUILDING SYSTEM

  • 1.
     PREPARED BY: SAGAR SHAH (09bcl027) MANSI JAIN (09bcl034) RUJUTA MEHTA (09bcl037)
  • 2.
     INTRODUCTION  Whatis precast?  Advantages  Case studies of precast buildings (India/abroad)  Companies involved in precast buildings (India/abroad)  ELEMENTS OF PRECAST BUILDINGS AND VARIOUS SYSTEMS  Precast footings  Beams  Columns  Slab  Shear walls  Partition walls  Connection between precast elements
  • 3.
     CONSTRUCTION METHODOLOGY DESIGN OF PRECAST BUILDING SYSTEM  Loads (DL, LL, WL, EL)  Analysis  Design  Detailing of reinforcement  Cost estimate  COMPARISON BETWEEN CAST-IN-SITU AND PRECAST BUILDING DESIGNS  PREPARATION OF MODEL OF PRECAST BUILDINGS  Scaled model / Prototype ( to demonstrate construction and other aspects of precast buildings)  STANDARDS
  • 4.
     WHAT ISPRECAST ? Precast concrete is a construction product produced by casting concrete in a reusable mold or "form" which is then cured in a controlled environment, transported to the construction site and lifted and set into place.
  • 5.
    PRECAST BUILDINGS CONVENTIONALBUILDINGS Designed, manufactured, and tested under supervision of experienced management. Concrete cast at site where contractors do not take care of mix design proportions. Entire concrete blocks are cured uniformly for the required amount of time. Curing is not done uniformly at sites. Production is not hampered with weather delays Production is severely hampered. Aesthetically pleasing appearance Special aesthetic design required
  • 6.
    PRECAST BUILDINGS CONVENTIONALBUILDINGS Environment -friendly Non environment-friendly Stationary equipment efficiency designed for repetitive production. Cost of formwork per unit to be lower than for site-cast production. Special design and features developed for each project at higher costs Greater flexibility : Design and manufacturing at same location. Not flexible Construction is faster. Construction is comparatively slower.
  • 7.
     A precastbuilding is constructed by assembling and connecting various prefabricated elements required in the building structure. These elements are:  Precast slabs  Precast beams  Precast columns  Precast walls  Precast foundation
  • 8.
     Precast slabsare cast in a factory environment and include the following prestressed concrete options:  Hollow core units: A Hollow core slab offers the ideal structural section by reducing deadweight while providing the maximum structural efficiency within the slab depth. Precast floors are available with a variety of factory-formed notches, slots and reinforcement arrangements which offer various design approaches.
  • 9.
     Double-tee units: Double Tee (TT) slabs are two symmetrically placed beams interacting with a slab forming in one section with a “double tee” shape made in precast, prestressed concrete.  Resistant to moisture and corrosion. Parking garages, office buildings, commercial buildings, factories, industrial buildings, etc., are all ideal applications.  Made with G50 concrete and ½” strands ASTM A416 as standard, each double Tee slab is normally 2400mm wide.
  • 10.
     BEARING SUPPORTSFOR DOUBLE TEE SLABS  Double tee slabs can be supported on many types of supports designed to carry the required dead and live loads. Precast beams, precast walls, poured concrete beams and walls, masonry walls, insulated concrete forming system walls and structural steel beams are all suitable for use with double tee slabs as load bearing systems.
  • 11.
     Solid concreteunits: These are simple solid core slabs which appear same as solid slabs cast in situ; the only difference being that they are prefabricated.  Slab Depths: range from 75mm to 240mm with upstands – giving overall depths between 150mm and 300mm.  Slab Widths: Usually manufactured to 600mm or 1200mm nominal size.  Rapid Construction: Precast slabs are manufactured to the specific needs of the building, eliminating shuttering and adding to speed of construction.  Design Efficient: Composite floors can be designed to act compositely with the structure of the building to reduce member sizes.  Soffit Finish: The soffit of the solid prestressed slab is generally from a steel mould and is therefore suitable for an exposed finish in structures such as car parks, industrial buildings and for a wide variety of applied finishes in other types of buildings.
  • 12.
     Biaxial voidedslabs :  A relatively new technology developed in Europe has taken the efficiency of cast-in-place flat plate slabs to new heights.  Floor spans up to 17 meters (~56 feet) and overall slab thicknesses up to 60 cm (~24 inches).  These slabs are more efficient than traditional structural floor systems commonly used in the construction of office buildings. The main effect of the voided slab system is to decrease the overall weight by as much as 35% when compared to a solid slab of the same capacity, while still offering other advantages.  The voided slab system has the same bearing capacity as conventional concrete solid slabs, and standard design and detailing techniques can be directly applied.
  • 13.
     Beams andbeam shells are both used for suspended flooring. Beams are typically used as ledges for other forms of precast flooring to sit on, but can also be used as a flooring option in their own right. They are generally manufactured to suit each particular situation and profiles can include  Tee-beams,  L-beams,  Rectangular beams,  U-beams and  Beamshells.  Beams can be either reinforced or prestressed.
  • 14.
     Tee-Beams : Tee-beams (either single or double) cover the span range beyond slab-type members such as hollowcore planks.  Tee-beams are a very efficient structural shape.  The units are generally cast with straight strands or deflected strands, depending on design considerations.  The Tee-beams are the basis for the design of economical, fire rated structures where construction time, long spans or heavy loadings are important cost influences.
  • 15.
     Inverted Tee-Beams(Ledger) :  Inverted Tee-beams are generally used for flooring systems like beam and infill where they provide a ledger for precast floor units to sit on. Inverted Tee-beams are structurally similar to a standard single Tee-beam.
  • 16.
     L-Beam (Spandrel): L-beams have an 'L' shape profile which provides a ledge for a precast flooring system to sit on.  These beams are generally used to span clear sections and are reinforced and/or prestressed.
  • 17.
     Rectangular Beams: Rectangular beams get their name from the end profile. These beams are generally used to span clear sections and are reinforced and/or prestressed.  U-Beams:  U-beams as the name suggests have a 'U' shaped profile. These beams are generally used to span clear sections and are reinforced and/or pretensioned.  They are more commonly used for single-unit pedestrian bridges than with composite flooring systems.
  • 18.
     Beam Shells: This is a complimentary composite system of precast elemnts that contain all the positive main beam reinforcement and most/all of the stirrups in a minimum volume of concrete for economy and ease of handling.  They are generally ‘U’ shaped and mostly used in conjunction with precast flooring such as hollowcore or permanent formwork panels to eliminate on site forming.
  • 19.
     Precast concretecolumns are modular in design in order to be made into different heights.  Widths are 12", 18" and 24".  Columns are not structural, but can be used as such only after a structural engineer has adapted them to a building.  Precast column can be produced as either single storey corbel column or multi storey corbel column.
  • 20.
     Columns caneither be rectangular or circular in section.  Projecting rebar can be provided for tying in to in-situ floors. Options for foundation connections include cast in base plates, dowel tubes or projections.  Beam support is achieved by either flared heads, corbels or bolt-on brackets.
  • 21.
     A wallsystem can be comprised of :  flat or curved panels (solid, hollow-core, or insulated)  window or mullion panels  ribbed panels  double-tee .
  • 23.
     Precast footingsare a recent innovation.  No holes need to be dug for footings, as the precast blocks are set on grade, and the posts, columns or beams fit in pockets cast in the concrete block.  Precast concrete foundations are pre-engineered systems manufactured in a controlled environment.
  • 24.
    Precast footings Castin situ footings • Built off site • Formed and cast on site • Lowest site impact (0.5-1.0 days) • High site impact (5-8 days) • Negligible impact by weather • Construction impacted by weather • Panelized = joints for expansion and Contraction • Monolithically cast = cracks
  • 25.
     The typeof structural system should be determined keeping in mind  the purpose of building,  the efficiency of the system,  the location and  the client’s need.  Depending on the load-bearing structure, precast systems can be divided into the follow categories:  Large-panel systems  Frame systems  Slab-column systems with walls  Mixed systems
  • 26.
     “Large-panel system”refers to multistory structures composed of large wall and floor concrete panels connected in the vertical and horizontal directions so that the wall panels enclose appropriate spaces for the rooms within a building.  These panels form a box-like structure.  Both vertical and horizontal panels resist gravity load.  Wall panels are usually one storey high.  Horizontal floor and roof panels span either as one-way or two-way slabs.  When properly joined together, these horizontal elements act as diaphragms that transfer the lateral loads to the walls.
  • 27.
     Depending onwall layout, there are three basic configurations of large- panel buildings:  Cross-wall system : The main walls that resist gravity and lateral loads are placed in the short direction of the building.  Longitudinal-wall system: The walls resisting gravity and lateral loads are placed in the longitudinal direction.  Two-way system. The walls are placed in both directions.
  • 28.
     Precast framescan be constructed using either linear elements or spatial beam column sub-assemblages.  The use of linear elements generally means placing the connecting faces at the beam-column junctions. The beams can be seated on corbels at the columns, for ease of construction and to aid the shear transfer from the beam to the column.  The beam-column joints accomplished in this way are hinged.  However, rigid beam-column connections are used in some cases, when the continuity of longitudinal reinforcement through the beam-column joint needs to be ensured.
  • 29.
     The componentsof a precast reinforced concrete frame are shown in Figure:
  • 30.
     These systemsrely on shear walls to sustain lateral load effects, whereas the slab-column structure resists mainly gravity loads.  There are two main systems in this category:  Lift-slab system with walls  Prestressed slab-column system
  • 31.
     Lift –slabsystem:  The load-bearing structure consists of precast reinforced concrete columns and slabs.  Precast columns are usually two stories high.  All precast structural elements are assembled by means of special joints.  Precast concrete floor slabs are lifted from the ground up to the final height by lifting cranes.  The slab panels are lifted to the top of the column and then moved downwards to the final position.  Temporary supports are used to keep the slabs in the position until the connection with the columns has been achieved.
  • 32.
     The prestressedslab-column system:  Horizontal prestressing in two orthogonal directions to achieve continuity.  The precast concrete column elements are 1 to 3 stories high.  After erecting the slabs and columns of a storey, the columns and floor slabs are prestressed by means of prestressing tendons that pass through ducts in the columns at the floor level and along the gaps left between adjacent slabs.  After prestressing, the gaps between the slabs are filled with in situ concrete and the tendons then become bonded with the spans. post-tensioned slab column connection
  • 33.
     Connections arelocations of high stress concentrations and are weak points in the structural systems.  Connections of different precast concrete components like footing beams, columns, slabs and wall panels are very essential in precast concrete building.  Depending upon the type of connection, a joint can be considered simply supported, fixed and hinged.  Primarily precast building connections can be classified as:  Typical European prefabrication.  Equivalent monolithic moment resisting connection.  Post-tensioned dry joint.  Hybrid connection.
  • 34.
     In thistype of connection concrete structures are designed with plastic hinges occurring at column bases and beams are hinged to the column.  Advantages :  increases speed of construction.  high quality control can be maintained as all precasted elements are required to be dry jointed at site.  Limitations :  lack of lateral stability since beams and slab are simply supported; moment resisting connections are required to achieve adequate stiffness.  not preferable as it causes significant deformation and high lateral displacement during a seismic event.
  • 35.
    Typical European fabricationfor industrial building
  • 36.
     Precast concretestructures are traditionally designed as moment resisting frames with plastic hinges occurring at the column base, and beams hinged to the columns.  A ductile moment resisting connection between the column and the beam can provide, with respect to a simply supported precast beam, the advantage of designing continuous beams with a reduced beam depth, or with an increase of either span length or carried load.
  • 38.
     Schematic diagramsexplaining different type of cast- in-place connections.
  • 40.
     Picture offactory set of components
  • 46.
     They showa good seismic behavior due to limited residual structural deformations, which allow immediate occupancy of the buildings after a seismic event.  The post-tensioned tendons act as elastic springs re- centering the joint and in this way resetting the initial conditions existing before the seismic event.  In such connection a tendon is passed through the connection and post-tensioned.
  • 48.
     In thehybrid solutions, the beams are jointed to the column by ordinary longitudinal reinforcement, dissipating the energy, and post-tensioned unbonded tendons allowing a controlled rocking of the beam.  The typical effect is a “flag-shaped” hysteretic behavior, with a reduction of the damage of the jointed elements due to opening and closing of the pre- existing gap at the beam-column interface.
  • 51.
     CONSTRUCTION CONSIDERATIONS All safety issues on site when handling precast elements,  The lifting capacity of the crane used.  The working boom-radius of the crane.  The suitability of construction materials for the purpose of use, i.e. sealant, grouting, shim plate, propping etc.  Co-ordination with the precaster and specialist supplier to achieve the best performance and working method.
  • 52.
     SEQUENCE OFWORK  QUICK CHECK  Ensure the correct panel before hoisting.  Ensure the crane lifting capacity before hoisting the panel.  Ensure the desired crane’s working radius.  Ensure the anchorage for the propping does not damage cast-in building services.  Ensure the desired verticality/position is achieved.  Estimated time to install a typical precast element is 1/2 to 3/4 hour
  • 53.
     THE PROCEDURE Diagram below illustrates the sequence of installation for the precast beam-slab system:
  • 56.
     Post installation Verify alignment and verticality of every wall.  Verify cast slab level at 1 m grid.  Report deviation and rectify if required.
  • 57.
     CONSTRAINTS ANDSOLUTIONS  Access
  • 58.
     CRANE CAPACITYAND REACH  COORDINATION
  • 59.