SIR NORMAN FOSTER
“the best architecture comes from a synthesis of
all the elements that separately comprise
a building…”
-Foster
• Born in 1935 in Manchester,
England
• He attended Grammar School
In Burnage.
• Entered Manchester School of
Architecture when 21 years old
• Received Master’s Degree
at Yale University
• Norman, Wendy, Sue Rogers and Richard Rogers form firm
‘Team 4’ in 1963
• Foster’s Associates (now known as Foster and Partners)
created in 1967 30st Mary Axe , London
• Receives AIA Gold Medal (1994)
• Wins the Pritzker Architecture Prize (1999)
• Currently has offices across the world in London, Berlin and
Singapore with over 500 employees
DESIGN PHILOSOPHY
“Technology is part of civilization and being anti-technology
would be like declaring war on architecture and civilization itself.
If I can get carried away with some passion about the poetry of
the light in one of my projects, then I can also, in the same vein,
enjoy the poetry of the hydraulic engineering.”
-Foster
Hearst Tower , New YorkSt. Mary Axe, London
DESIGN INSPIRATION?
London City Hall (GLA)El Potato de Rojo
Willis Building (Ipswich)
General information
Willis Faber and Dumas Headquarters,
Ipswich
Style
High Tech
• The Willis building in Ipswich, England
(originally the Willis Faber and Dumas
Headquarters ) is one of the earliest
buildings designed by Norman Foster
after establishing Foster Associates.
• Constructed between 1970 and 1975 for the insurance firm now known as Willis Group
Holdings, it is now seen as a landmark in the development of the 'high tech'
architectural style.
• The building houses some 1,300 office staff in open plan offices spread over three
floors
• The center of the building is constructed from a grid of concrete pillars, 14 m (46 ft)
apart, supporting cantilevered concrete slab floors.
• The exterior is clad in a dark smoked glass curtain wall.
• The use of dark glass, a curtain wall and lack of right angle
corners mirrors the art deco Express Building in Manchester -
one of Norman Foster's favorite buildings.
• The central escalator well leads up to a rooftop staff
restaurant surrounded by a rooftop garden (360 panorama).
• Originally there was also a swimming pool for employees to
enjoy during their lunch break. This has now been covered up
(not filled in due to it being a listed building) and the space is
used for more offices. The swimming pool can be seen
underneath the false floor.
30 St Mary Axe
General information
Height
Technical details
Type Office
Location
St. Mary Axe
London, United Kingdom
Roof 180 meters (591 ft)
Floor count 41
Floor area 47,950 square meters (516,100 sq ft)
Coordinates
51°30′52″N 00°04′49″W /
51.51444°N 0.08028°W
• The building has become an iconic symbol of
London and is one of the city's most widely
recognized examples of modern architecture.
• The building uses energy-saving methods which
allow it to use half the power a similar tower
would typically consume.
• Gaps in each floor create six shafts that serve as
a natural ventilation system for the entire
building even though required firebreaks on
every sixth floor interrupt the "chimney.“
• The shafts create a giant double glazing effect;
air is sandwiched between two layers of glazing
and insulates the office space inside.
• Architects promote double glazing in residential
houses to avoid the inefficient convection of
heat, but the tower exploits this effect.
• The shafts pull warm air out of the building during the summer and warm the
building in the winter using passive solar heating. The shafts also allow
sunlight to pass through the building, making the work environment more
pleasing, and keeping the lighting costs down.
• The primary methods for controlling wind-excited sways are to increase
the stiffness, or increase damping with tuned/active mass dampers. To a
design by Arup, its fully triangulated perimeter structure makes the
building sufficiently stiff without any extra reinforcements.
• Despite its overall curved glass shape, there is only one piece of curved
glass on the building—the lens-shaped cap at the very top.
• On the building's top level (the 40th floor), there is a bar for tenants and
their guests featuring a 360° view of London.
• A restaurant operates on the 39th floor, and private dining rooms on the
38th.
• Whereas most buildings have extensive lift equipment on the roof of the
building, this was not possible for the Gherkin, since a bar had been
planned for the 40th floor. The architects dealt with this by having the
main lift only reach the 34th floor, and then having a push-from-below lift
to the 39th floor.
• There is a marble stairwell and a disabled persons' lift which leads the
visitor up to the bar in the dome.
• The building is visible over long distances: from the north, for instance, it
can be seen from the M11 motorway some 32 kilometers (20 mi)
away, while to the west it can be seen from the statue of George III in
Windsor Great Park.
Hearst Tower (New York City)
• General information
• Height
• Technical details
Type Office
Location
300 West 57 Street
New York City, U.S.
Roof 182 m (597 ft)
Floor count 46
Floor area 80,000 square metres (861,100 sq ft)
Coordinates
40°46′00″N 73°59′00″W /
40.766538°N 73.983452°W
• Hearst Tower is the first "green" high rise office building completed in New
York City, with a number of environmental considerations built into the
plan.
• The floor of the atrium is paved with heat conductive limestone.
• Polyethylene tubing is embedded under the floor and filled with
circulating water for cooling in the summer and heating in the winter.
• Rain collected on the roof is stored in a tank in the basement for use in
the cooling system, to irrigate plants and for the water sculpture in the
main lobby.
• 85% of the building's structural steel contains recycled material.
• Overall, the building has been designed to use 26% less energy than the
minimum requirements for the city of New York, and earned a gold
designation from the United States Green Building
Council’s LEED certification program, becoming New York City's first LEED
Gold skyscraper.
• The atrium features escalators which run through a 3-story water
sculpture titled Icefall, a wide waterfall built with thousands of glass
panels, which cools and humidifies the lobby air. The water element
is complemented by a 70-foot-tall (21 m) fresco
painting titled Riverlines by artist Richard Long.
• According to Curbed, "Designing a cleaning rig
that could that clean the Hearst Tower took the
engineers at Tractel-Swingstage three years (and
around $3 million); the company's vice-president
of engineering had never seen anything like
what Foster and Partners' called the building's
'bird's mouths.'"
Wembley Stadium
• General information
Type stadium
Location London, England
Coordinates
51°33′21″N 0°16′47″W /
51.55583°N 0.27972°WCoordinates:
Capacity
90,000 (football, rugby league, rugby union)
86,000 (American football)
75,000 to 90,000 seated and 15,000 standing (concerts)
60,000 to 72,000 (athletics)
Field dimensions 105 by 68 meters (115 by 74 yd )
Architect
Foster and Partners, HOK Sport, Nathaniel Litchfield and
Partners (planning consultants)
Field dimensions 105 by 68 meters (115 by 74 yd )
• It is a UEFA category four stadium. The 90,000-capacity venue (105,000
combined seating and standing) is the second largest stadium in Europe,
and serves as England's national stadium.
• The stadium's signature feature is a circular section lattice arch of 7 m
(23 ft) internal diameter with a 315 m (1,033 ft) span, erected some 22°
off true, and rising to 133 m (436 ft). It supports all the weight of the north
roof and 60% of the weight of the retractable roof on the southern side.
• The archway is the world's longest unsupported roof structure.
• Instead of the 39 steps climbed, in the original stadium, to enter the Royal
Box and collect a trophy, there are now 107.
• A "platform system" has been designed to convert the stadium for
athletics use, but its use would decrease the stadium's capacity to
approximately 60,000.
Covering
• The stadium roof has an area of
40,000 m2, of which 13,722 m2
is movable.
• The primary reason for the
sliding roof was to avoid shading
the pitch, as grass demands direct
sunlight to grow effectively.
• The sliding roof design minimizes
the shadow by having the roof pulled back on the east, west and
south.
• Angus Campbell, chief architect, also said that an aim was for the
pitch to be in sunlight during the match between the beginning of
May and the end of June, between 3 pm and 5 pm, which is when
the FA and World cups would be played. However it was mentioned
during live commentary of the FA Cup Final in 2007 that the pitch
was in partial shade at the start at 3 pm and also during the match.
• The stadium roof rises to 52 meters above the pitch and is
supported by an arch rising 133 meters above the level of the
external concourse. With a span of 315 meters, the arch is the
longest single span roof structure in the world.
Norman foster

Norman foster

  • 1.
    SIR NORMAN FOSTER “thebest architecture comes from a synthesis of all the elements that separately comprise a building…” -Foster
  • 2.
    • Born in1935 in Manchester, England • He attended Grammar School In Burnage. • Entered Manchester School of Architecture when 21 years old • Received Master’s Degree at Yale University • Norman, Wendy, Sue Rogers and Richard Rogers form firm ‘Team 4’ in 1963 • Foster’s Associates (now known as Foster and Partners) created in 1967 30st Mary Axe , London • Receives AIA Gold Medal (1994) • Wins the Pritzker Architecture Prize (1999) • Currently has offices across the world in London, Berlin and Singapore with over 500 employees
  • 3.
    DESIGN PHILOSOPHY “Technology ispart of civilization and being anti-technology would be like declaring war on architecture and civilization itself. If I can get carried away with some passion about the poetry of the light in one of my projects, then I can also, in the same vein, enjoy the poetry of the hydraulic engineering.” -Foster Hearst Tower , New YorkSt. Mary Axe, London
  • 4.
    DESIGN INSPIRATION? London CityHall (GLA)El Potato de Rojo
  • 5.
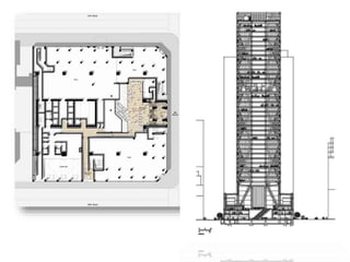
    Willis Building (Ipswich) Generalinformation Willis Faber and Dumas Headquarters, Ipswich Style High Tech • The Willis building in Ipswich, England (originally the Willis Faber and Dumas Headquarters ) is one of the earliest buildings designed by Norman Foster after establishing Foster Associates. • Constructed between 1970 and 1975 for the insurance firm now known as Willis Group Holdings, it is now seen as a landmark in the development of the 'high tech' architectural style. • The building houses some 1,300 office staff in open plan offices spread over three floors • The center of the building is constructed from a grid of concrete pillars, 14 m (46 ft) apart, supporting cantilevered concrete slab floors. • The exterior is clad in a dark smoked glass curtain wall.
  • 6.
    • The useof dark glass, a curtain wall and lack of right angle corners mirrors the art deco Express Building in Manchester - one of Norman Foster's favorite buildings. • The central escalator well leads up to a rooftop staff restaurant surrounded by a rooftop garden (360 panorama). • Originally there was also a swimming pool for employees to enjoy during their lunch break. This has now been covered up (not filled in due to it being a listed building) and the space is used for more offices. The swimming pool can be seen underneath the false floor.
  • 9.
    30 St MaryAxe General information Height Technical details Type Office Location St. Mary Axe London, United Kingdom Roof 180 meters (591 ft) Floor count 41 Floor area 47,950 square meters (516,100 sq ft) Coordinates 51°30′52″N 00°04′49″W / 51.51444°N 0.08028°W
  • 10.
    • The buildinghas become an iconic symbol of London and is one of the city's most widely recognized examples of modern architecture. • The building uses energy-saving methods which allow it to use half the power a similar tower would typically consume. • Gaps in each floor create six shafts that serve as a natural ventilation system for the entire building even though required firebreaks on every sixth floor interrupt the "chimney.“ • The shafts create a giant double glazing effect; air is sandwiched between two layers of glazing and insulates the office space inside. • Architects promote double glazing in residential houses to avoid the inefficient convection of heat, but the tower exploits this effect. • The shafts pull warm air out of the building during the summer and warm the building in the winter using passive solar heating. The shafts also allow sunlight to pass through the building, making the work environment more pleasing, and keeping the lighting costs down.
  • 11.
    • The primarymethods for controlling wind-excited sways are to increase the stiffness, or increase damping with tuned/active mass dampers. To a design by Arup, its fully triangulated perimeter structure makes the building sufficiently stiff without any extra reinforcements. • Despite its overall curved glass shape, there is only one piece of curved glass on the building—the lens-shaped cap at the very top. • On the building's top level (the 40th floor), there is a bar for tenants and their guests featuring a 360° view of London. • A restaurant operates on the 39th floor, and private dining rooms on the 38th. • Whereas most buildings have extensive lift equipment on the roof of the building, this was not possible for the Gherkin, since a bar had been planned for the 40th floor. The architects dealt with this by having the main lift only reach the 34th floor, and then having a push-from-below lift to the 39th floor. • There is a marble stairwell and a disabled persons' lift which leads the visitor up to the bar in the dome. • The building is visible over long distances: from the north, for instance, it can be seen from the M11 motorway some 32 kilometers (20 mi) away, while to the west it can be seen from the statue of George III in Windsor Great Park.
  • 15.
    Hearst Tower (NewYork City) • General information • Height • Technical details Type Office Location 300 West 57 Street New York City, U.S. Roof 182 m (597 ft) Floor count 46 Floor area 80,000 square metres (861,100 sq ft) Coordinates 40°46′00″N 73°59′00″W / 40.766538°N 73.983452°W
  • 16.
    • Hearst Toweris the first "green" high rise office building completed in New York City, with a number of environmental considerations built into the plan. • The floor of the atrium is paved with heat conductive limestone. • Polyethylene tubing is embedded under the floor and filled with circulating water for cooling in the summer and heating in the winter. • Rain collected on the roof is stored in a tank in the basement for use in the cooling system, to irrigate plants and for the water sculpture in the main lobby. • 85% of the building's structural steel contains recycled material. • Overall, the building has been designed to use 26% less energy than the minimum requirements for the city of New York, and earned a gold designation from the United States Green Building Council’s LEED certification program, becoming New York City's first LEED Gold skyscraper.
  • 17.
    • The atriumfeatures escalators which run through a 3-story water sculpture titled Icefall, a wide waterfall built with thousands of glass panels, which cools and humidifies the lobby air. The water element is complemented by a 70-foot-tall (21 m) fresco painting titled Riverlines by artist Richard Long. • According to Curbed, "Designing a cleaning rig that could that clean the Hearst Tower took the engineers at Tractel-Swingstage three years (and around $3 million); the company's vice-president of engineering had never seen anything like what Foster and Partners' called the building's 'bird's mouths.'"
  • 21.
    Wembley Stadium • Generalinformation Type stadium Location London, England Coordinates 51°33′21″N 0°16′47″W / 51.55583°N 0.27972°WCoordinates: Capacity 90,000 (football, rugby league, rugby union) 86,000 (American football) 75,000 to 90,000 seated and 15,000 standing (concerts) 60,000 to 72,000 (athletics) Field dimensions 105 by 68 meters (115 by 74 yd ) Architect Foster and Partners, HOK Sport, Nathaniel Litchfield and Partners (planning consultants) Field dimensions 105 by 68 meters (115 by 74 yd )
  • 22.
    • It isa UEFA category four stadium. The 90,000-capacity venue (105,000 combined seating and standing) is the second largest stadium in Europe, and serves as England's national stadium. • The stadium's signature feature is a circular section lattice arch of 7 m (23 ft) internal diameter with a 315 m (1,033 ft) span, erected some 22° off true, and rising to 133 m (436 ft). It supports all the weight of the north roof and 60% of the weight of the retractable roof on the southern side. • The archway is the world's longest unsupported roof structure. • Instead of the 39 steps climbed, in the original stadium, to enter the Royal Box and collect a trophy, there are now 107. • A "platform system" has been designed to convert the stadium for athletics use, but its use would decrease the stadium's capacity to approximately 60,000.
  • 23.
    Covering • The stadiumroof has an area of 40,000 m2, of which 13,722 m2 is movable. • The primary reason for the sliding roof was to avoid shading the pitch, as grass demands direct sunlight to grow effectively. • The sliding roof design minimizes the shadow by having the roof pulled back on the east, west and south. • Angus Campbell, chief architect, also said that an aim was for the pitch to be in sunlight during the match between the beginning of May and the end of June, between 3 pm and 5 pm, which is when the FA and World cups would be played. However it was mentioned during live commentary of the FA Cup Final in 2007 that the pitch was in partial shade at the start at 3 pm and also during the match. • The stadium roof rises to 52 meters above the pitch and is supported by an arch rising 133 meters above the level of the external concourse. With a span of 315 meters, the arch is the longest single span roof structure in the world.