Jordan University of Science and Technology
College of Architecture and Design / Department of Architecture
Arch. 331 Modern Architecture
Instructor: Dr. Raed Al Tal
Summer 2012
The International Style
The term of the International Style was born in 1932;
the First International Exhibition of Modern
Architecture at the Museum of Modern Art in New
York
Modern architecture form 1920s to the end of the
1950s – or possibly the 1970s
The book published for this occasion indicates their
principles :
“There is first a new conception of architecture as
volume rather than mass. Secondly, regularity rather
than axial symmetry serves the chief means order
design.”
They hoped to “put architecture back on its real
plane, the economic and social plane,”
“The most efficacious production is derived from
rationalization and standardization, ” they declared
Le Corbusier (Charles Edouard Jeanneret ) 1887-
1966 , one of the spiritual founders of the modern
architecture / International Style
He was a writer, painter, architect and urban
planner
urban planner
painter
Le Corbusier Dining Table
In his book Towards a New Architecture (1927),
Le Corbusier announced his” five points of a new
architecture,”
- free standing supports – pilots
- the roof garden
- the free plan
- the ribbon window
- the freely composed façade
The Villa Savoye fulfilled the principles of the five "Points
of a New Architecture" Le Corbusier and Pierre Jeanneret
had formulated:
The pilotis (columns which raised the house above the
ground),
free plan (due to free-standing walls, everything is
optional),
free façades (the exterior walls are no longer load-
bearing),
flat roof with roof garden (replacing land lost underneath
the building),
and ribbon windows.
The American architect Frank Lloyd characterized these
solid cubes, which appear to rest precariously on thin
supporting poles, "big boxes on sticks."
Quotations
"Space and light and order. Those are the things that men need
just as much as they need bread or a place to sleep.“
"The house is a machine for living in." (Vers une architecture,
1923)
"It is a question of building which is at the root of the social
unrest of today: architecture or revolution." (Vers une
architecture, 1923)
"Modern life demands, and is waiting for, a new kind of plan,
both for the house and the city." (Vers une architecture, 1923)
"The 'Styles' are a lie." (Vers une architecture, 1923)
We can see all of Le Corbusier’s principles in
Villa Savoye at Poissy 1928-1931
Villa Savoye - Main Floor Perspective
Villa Savoye - Ground Floor Perspective
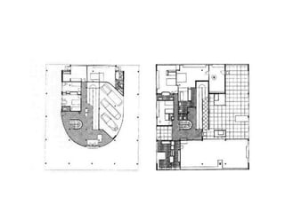
Villa Savoye - Ground Floor Plan
Villa Savoye - Roof Perspective
Villa Savoye - Living Room
Villa Savoye - Front Facade
Villa Savoye - Ramp up to Main Floor
Le Corbusier’s concept of a cube as a Cubist painter
where he saw vertical and horizontal planes in
movement (flow of space)
The project of Domino House, 1914
The project of Domino House, 1914
It is simple a frame (the basis for low cost housing)
Consists of two concrete slabs kept apart by
columns and linked only by an open stair
Flat roofs are convenient because they make
possible a totally free plan. In traditional
architecture, pitched roofs must rest on a wall; now
you could put the walls wherever you liked.
Le Corbusier’s Modulor , a scale of architectural
proportions based on the human body and the golden
section
Modulor considered the standard human height as
1829 mm
The Pavillon Suisse at the Citè Universitaire, Paris 1930
-pilots and ribbon windows
-he introduced the idea of hierarchy of function: the 45
bedroom block is lifted up on pilots
-the communal areas at ground level flow freely, enclosed by a
wall of random rubble stonework
the Pavillon Suisse (1932)
Unitè d’Habitation , Marseilles, 1946
-carefully taken from the Modulor
-337 split-level apartments in 23 different types
-Apartments entered from wide internal corridors
or streets
-There are 18 floors
-About third of the way up, the internal corridor is
-a two storey shopping mall
Unitè d’Habitation , Marseilles, 1946
-On the top floor there is roof garden/ fantastic
landscape (includes- gymnasium, running track, a
nursery school, tunnels and caves for children play
in, a swimming pool, seats, cantilevered balcony and
a restaurant.
Carpenter Center for the Visual Arts
Location : Harvard U., Cambridge, MA
Date : 1960-63 (W: 1961-64)
Construction : concrete
The Carpenter Center for the Visual Arts at Harvard University,
in Cambridge, Massachusetts is the only building actually built
by Le Corbusier in the United States, and one of only two in the
Americas (the other is the Curutchet House in La Plata,
Argentina.)
The Carpenter Center at nightIt houses the department of
Visual and Environmental Studies of the University, as well
as the Harvard Film Archive, the largest collection of 35mm
films in New England. It screens a large quantity of
independent, international and silent films.
Le Corbusier never actually saw the building. He was invited
to the opening ceremony, but he declined the invitation on
account of his poor health.
Some have humorously described the building's appearance
as that of two pianos mating.
Brutalism
Le Corbusier used the French phrase béton brut, or raw
concrete, to describe the construction of his rough,
concrete buildings. Brutalism grew out of the Bauhaus
Movement and the béton brut buildings by Le Corbusier
and his followers.
Heavy and angular, Brutalist buildings can be constructed
quickly and economically.
Common features include:
Precast concrete slabs
Rough, unfinished surfaces
Exposed steel beams
Massive, sculptural shapes
f: passage
Sainte Marie de La Tourette, Lyon, France (Le Corbusier,
1960)
The Palace of Soviets, Boris Iofan
Modern Architecture - Lecture 3
Modern Architecture - Lecture 3

Modern Architecture - Lecture 3

  • 1.
    Jordan University ofScience and Technology College of Architecture and Design / Department of Architecture Arch. 331 Modern Architecture Instructor: Dr. Raed Al Tal Summer 2012 The International Style
  • 2.
    The term ofthe International Style was born in 1932; the First International Exhibition of Modern Architecture at the Museum of Modern Art in New York Modern architecture form 1920s to the end of the 1950s – or possibly the 1970s The book published for this occasion indicates their principles : “There is first a new conception of architecture as volume rather than mass. Secondly, regularity rather than axial symmetry serves the chief means order design.”
  • 3.
    They hoped to“put architecture back on its real plane, the economic and social plane,” “The most efficacious production is derived from rationalization and standardization, ” they declared
  • 4.
    Le Corbusier (CharlesEdouard Jeanneret ) 1887- 1966 , one of the spiritual founders of the modern architecture / International Style He was a writer, painter, architect and urban planner
  • 5.
  • 8.
  • 12.
  • 16.
    In his bookTowards a New Architecture (1927), Le Corbusier announced his” five points of a new architecture,” - free standing supports – pilots - the roof garden - the free plan - the ribbon window - the freely composed façade
  • 17.
    The Villa Savoyefulfilled the principles of the five "Points of a New Architecture" Le Corbusier and Pierre Jeanneret had formulated: The pilotis (columns which raised the house above the ground), free plan (due to free-standing walls, everything is optional), free façades (the exterior walls are no longer load- bearing), flat roof with roof garden (replacing land lost underneath the building), and ribbon windows. The American architect Frank Lloyd characterized these solid cubes, which appear to rest precariously on thin supporting poles, "big boxes on sticks."
  • 18.
    Quotations "Space and lightand order. Those are the things that men need just as much as they need bread or a place to sleep.“ "The house is a machine for living in." (Vers une architecture, 1923) "It is a question of building which is at the root of the social unrest of today: architecture or revolution." (Vers une architecture, 1923) "Modern life demands, and is waiting for, a new kind of plan, both for the house and the city." (Vers une architecture, 1923) "The 'Styles' are a lie." (Vers une architecture, 1923)
  • 19.
    We can seeall of Le Corbusier’s principles in Villa Savoye at Poissy 1928-1931
  • 23.
    Villa Savoye -Main Floor Perspective
  • 24.
    Villa Savoye -Ground Floor Perspective
  • 25.
    Villa Savoye -Ground Floor Plan
  • 27.
    Villa Savoye -Roof Perspective
  • 30.
    Villa Savoye -Living Room
  • 31.
    Villa Savoye -Front Facade
  • 34.
    Villa Savoye -Ramp up to Main Floor
  • 35.
    Le Corbusier’s conceptof a cube as a Cubist painter where he saw vertical and horizontal planes in movement (flow of space) The project of Domino House, 1914
  • 36.
    The project ofDomino House, 1914 It is simple a frame (the basis for low cost housing) Consists of two concrete slabs kept apart by columns and linked only by an open stair Flat roofs are convenient because they make possible a totally free plan. In traditional architecture, pitched roofs must rest on a wall; now you could put the walls wherever you liked.
  • 37.
    Le Corbusier’s Modulor, a scale of architectural proportions based on the human body and the golden section Modulor considered the standard human height as 1829 mm
  • 40.
    The Pavillon Suisseat the Citè Universitaire, Paris 1930 -pilots and ribbon windows -he introduced the idea of hierarchy of function: the 45 bedroom block is lifted up on pilots -the communal areas at ground level flow freely, enclosed by a wall of random rubble stonework
  • 41.
  • 45.
    Unitè d’Habitation ,Marseilles, 1946 -carefully taken from the Modulor -337 split-level apartments in 23 different types -Apartments entered from wide internal corridors or streets -There are 18 floors -About third of the way up, the internal corridor is -a two storey shopping mall
  • 46.
    Unitè d’Habitation ,Marseilles, 1946
  • 52.
    -On the topfloor there is roof garden/ fantastic landscape (includes- gymnasium, running track, a nursery school, tunnels and caves for children play in, a swimming pool, seats, cantilevered balcony and a restaurant.
  • 55.
    Carpenter Center forthe Visual Arts Location : Harvard U., Cambridge, MA Date : 1960-63 (W: 1961-64) Construction : concrete
  • 56.
    The Carpenter Centerfor the Visual Arts at Harvard University, in Cambridge, Massachusetts is the only building actually built by Le Corbusier in the United States, and one of only two in the Americas (the other is the Curutchet House in La Plata, Argentina.)
  • 57.
    The Carpenter Centerat nightIt houses the department of Visual and Environmental Studies of the University, as well as the Harvard Film Archive, the largest collection of 35mm films in New England. It screens a large quantity of independent, international and silent films. Le Corbusier never actually saw the building. He was invited to the opening ceremony, but he declined the invitation on account of his poor health. Some have humorously described the building's appearance as that of two pianos mating.
  • 58.
    Brutalism Le Corbusier usedthe French phrase béton brut, or raw concrete, to describe the construction of his rough, concrete buildings. Brutalism grew out of the Bauhaus Movement and the béton brut buildings by Le Corbusier and his followers.
  • 59.
    Heavy and angular,Brutalist buildings can be constructed quickly and economically. Common features include: Precast concrete slabs Rough, unfinished surfaces Exposed steel beams Massive, sculptural shapes
  • 69.
  • 78.
    Sainte Marie deLa Tourette, Lyon, France (Le Corbusier, 1960)
  • 79.
    The Palace ofSoviets, Boris Iofan