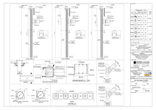
SECTION X-X
900Ø
STIRRUPS T10 @ 250 mm
4 T 10
200200 940
-1.50 m
X
GUIDE WALL
200
200
940

X
 
28Ø25mm
length 40cm
thick 14mm
thick 20mm
length 40cmX15cm
thick 20mm
length 40cmX5cm
thick 20mm
Ø


151515 105
5
10
44
5
15 15 15 15
15
15
15
15
15
15
10
15 15 15 15 15 15 15
15
15
15
15
15
15
10
Ø900mm
LEVEL- 0.00m
CAPPING BEAM
-1.50 m

VERTICAL SECTION A-A
+
TOE LEVEL
-19.50 m
EXCAVATION
LEVEL
-13.60m

12.0m
24T25
INSIDEOUTSIDE


 
24T25 MAIN STEEL
T10 @150 SPIRALS
CROSS SECTION A1
Retaining Wall
6.0m
12T25
A1
Concrete WALLER BEAM
1100 x 1100 mm
4 T32 L= 0.4m
MAIN SECANT PILE
SECONDARY SECANTPILE


INSIDE
OUTSIDE
DETAIL (L)

4 T32 L= 0.4m
4 T32 L= 0.4m
4 T32 L= 0.4m
THICKENSAS-PER THE PLAN
Ø O.D. X 16MM STEEL PIPE
(HORZ. STRUT)
WITH 1.2 X 1.1 X 20MM THK. PLATE
BOLTED TO WALER BEAM
SECANT PILE.
4T32 STEEL BAR PER
PILE TOP & BOTTOM
WEDL @ EACH R.C. PILE
EPOXY GROUT
SECTION K"(WAILER BEAM )

15mm WELD ALL AROUND THE
STELL PLATE & STEEL PIPE
R.C Waller Beam
1100 x 1100mm
12 Bolts T32mm (600mm)
34T25mm
6T25 mm


10@150mm
6T25 mm
SECTION-K"
THICKENS900mm Ø O.D. X
16MM STEEL PIPE (HORZ.
STRUT)
WITH 1.1 X 1.2 X 25MM
THK. PLATE
BOLTED TO WALER BEAM
SIZE OF WELDS = 20mm
LEVEL OF STRUT
-6.00m
600
4T16 mm
2T16 mm
900
Secant Pile
CAPPING BEAM (l.e.v: -1.50)
2T16 mm

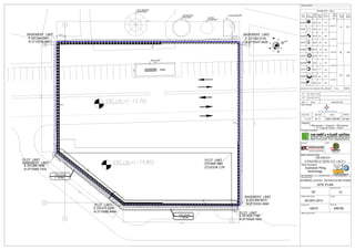
BASEMENTLIMIT
1200mm
1100mm
1100mm x 1100mm
Wailer Beam
12T25 Tension Bars
27 T25 Cross
Concrete Corbel
PLAN
DETAIL OF
CORBEL WITH
ONE STRUT
(DETAIL - E)
TOP VIEW
900mmO.D. X AS PER PLAN
STEEL PIPE (HORZ. STRUT)
WITH 1.2m X 1.1m WITH THK 20 mm. PLATE
BOLTED TO WALER BEAM


1200mm
1100mm
1100mm x 1100mm
Wailer Beam
12T25 Tension Bars
27 T25 Cross
PLAN
DETAIL OF
CORBEL WITH
TWO STRUT
(DETAIL - F)
TOP VIEW

1200mm


Concrete Corbel
900mmO.D. X AS PER PLAN
STEEL PIPE (HORZ. STRUT)
WITH 1.2m X 1.1m WITH
THK 20 mm. PLATE
BOLTED TO WALER BEAM
L= -13.50m
L= -12.0m
L= -8.0m
6.0m
12T25
L= -18.0m
6.0m
12T25
12.0m
6.0m
6.0m
-8.0m
-12m
-13.5m
-14m
-18 m
- 0.0m+
- 1.5m
- 2.1m
-19.50 m
- 6.0m
L= -13.5m
L= -14.0m

 
60T25 MAIN STEEL
T10 @150 SPIRALS
CROSS SECTION A2
A2
KEY PLAN:
Drawing No.
Submission Date
Project ID
Official Use Only
Revision No.
Scale
Plan ID
Drawing Title
NORTH DIRECTION
01
08-MAR-2014
REV. DATE DESCRIPTION
TEL: (02)5504222 P.O. BOX: 48181 FAX: (02)5504221
Piling Contractor
SHORING LAYOUT ,DETAILS &SECTIONS
Australian Piling
Technology
CP-493
SHORING
PLOT.NO
E 20-01
Consultant
PROJECT:
AREASECTOR JOB NO.
C-76 ABU DHABI
MAIN CONTRACTING
88
PILE
LEGEND
DIM
(mm)
No.Of
Piles
Anchor
Type
F.cu
(N/mm²)
TOE
LEVEL
(m)
900
-19.50
40
No.of
Anchor
900 2088
PILE
TYPE
HARD
SOFT
TOTAL :SHORING IN THIS DRAWING 1761-176
01 15-APR-2014
COMMERCIAL BUILDING
CLIENT
MRS .SHIRINA MATTAR BINT
RASHID AL-MANSOURY
(3B + G + M + 4 +P+ ROOF FLOOR)
Kojakian Eng'g Consultants
45786
PLOT NO:- C-67 (E20-01)
SH3
DETAILS&SECTIONS
EXC.LVL=( -15.30m )
3985cm
2440cm
753cm
528cm528cm528cm
55°
753cm 753cm 753cm 753cm
528cm106cm
753cm 753cm 753cm 753cm 753cm
528cm528cm528cm528cm
106cm
55°
35°
55°
55°
35°35°
35°
55°
55°
35°
55°
55°
35°35°
35°
1712cm
792cm
1712cm
792cm
1712cm
792cm
1712cm
792cm
3985cm
2440cm
EXC.LVL=( -13.60m )
1
2
3
4
5
6
7
8
9
10
11
12
13
14
15
16
17
18
19
20
21
22
23
24
25
26
27
28
29
30
31
32
33
34
35
36
37
38
39
40
41
42
43
44
45
46
47
48
49
50
51
52
53
54
55
56
57
58
59
60
61
62
63
64
65
66
67
68
69
70
71
72
73
74
75
76
77
78
79
80
81
82
83
84
85
86
87
88
89
90
91
92
93
94
95
96
97
98
99
100
101
102
103
104
105
106
107
108
109
110
111
112
113
114
115
116
117
118
119
120
121
122
123
124
125
126
127
128
129
130
131
132
133
134
135
136
137
138
139
140
141
142
143
144
145
146
147
148
149
150
151
152
153
154
155
156
157
158
159
160
161
162
163
164
165
166
167
168
169
170
171
172
173
174
175
176
4165cm
2620cm
10cm10cm
10cm 10cm
PLOT LIMIT
N=0.0 ,E=0.0










  











 
 







P
LOT
LIMI
T
P
LOT
LIMI
TP
LOT
LIMI
TP
LOT
L IMI
T
 



KEY PLAN:
Drawing No.
Submission Date
Project ID
Official Use Only
Revision No.
Scale
Plan ID
Drawing Title
NORTH DIRECTION
01
08-MAR-2014
REV. DATE DESCRIPTION
TEL: (02)5504222 P.O. BOX: 48181 FAX: (02)5504221
Piling Contractor
SHORING LAYOUT ,DETAILS &SECTIONS
Australian Piling
Technology
CP-493
SHORING
PLOT.NO
E 20-01
Consultant
PROJECT:
AREASECTOR JOB NO.
C-76 ABU DHABI
MAIN CONTRACTING
88
PILE
LEGEND
DIM
(mm)
No.Of
Piles
Anchor
Type
F.cu
(N/mm²)
TOE
LEVEL
(m)
900
-19.50
40
No.of
Anchor
900 2088
PILE
TYPE
HARD
SOFT
TOTAL :SHORING IN THIS DRAWING 1761-176
01 15-APR-2014
COMMERCIAL BUILDING
CLIENT
MRS .SHIRINA MATTAR BINT
RASHID AL-MANSOURY
(3B + G + M + 4 +P+ ROOF FLOOR)
Kojakian Eng'g Consultants
45786
PLOT NO:- C-67 (E20-01)
SH2
SITE PLAN
SEC
.A-A
SEC
.A-A
EXC.LVL=( -15.30m )
3985cm
2440cm
753cm
528cm528cm528cm
55°
753cm 753cm 753cm 753cm
528cm106cm
753cm 753cm 753cm 753cm 753cm
528cm528cm528cm528cm
106cm
55°
35°
55°
55°
35°35°
35°
55°
55°
35°
55°
55°
35°35°
35°
1712cm
792cm
1712cm
792cm
1712cm
792cm
1712cm
792cm
3985cm
2440cm
EXC.LVL=( -13.60m )
1
2
3
4
5
6
7
8
9
10
11
12
13
14
15
16
17
18
19
20
21
22
23
24
25
26
27
28
29
30
31
32
33
34
35
36
37
38
39
40
41
42
43
44
45
46
47
48
49
50
51
52
53
54
55
56
57
58
59
60
61
62
63
64
65
66
67
68
69
70
71
72
73
74
75
76
77
78
79
80
81
82
83
84
85
86
87
88
89
90
91
92
93
94
95
96
97
98
99
100
101
102
103
104
105
106
107
108
109
110
111
112
113
114
115
116
117
118
119
120
121
122
123
124
125
126
127
128
129
130
131
132
133
134
135
136
137
138
139
140
141
142
143
144
145
146
147
148
149
150
151
152
153
154
155
156
157
158
159
160
161
162
163
164
165
166
167
168
169
170
171
172
173
174
175
176
4165cm
2620cm
10cm10cm
10cm 10cm
DETAIL -L
DETAIL -E
DETAIL -F
KEY PLAN:
Drawing No.
Submission Date
Project ID
Official Use Only
Revision No.
Scale
Plan ID
Drawing Title
NORTH DIRECTION
01
08-MAR-2014
REV. DATE DESCRIPTION
TEL: (02)5504222 P.O. BOX: 48181 FAX: (02)5504221
Piling Contractor
SHORING LAYOUT ,DETAILS &SECTIONS
Australian Piling
Technology
CP-493
SHORING
PLOT.NO
E 20-01
Consultant
PROJECT:
AREASECTOR JOB NO.
C-76 ABU DHABI
MAIN CONTRACTING
88
PILE
LEGEND
DIM
(mm)
No.Of
Piles
Anchor
Type
F.cu
(N/mm²)
TOE
LEVEL
(m)
900
-19.50
40
No.of
Anchor
900 2088
PILE
TYPE
HARD
SOFT
TOTAL :SHORING IN THIS DRAWING 1761-176
01 15-APR-2014
COMMERCIAL BUILDING
CLIENT
MRS .SHIRINA MATTAR BINT
RASHID AL-MANSOURY
(3B + G + M + 4 +P+ ROOF FLOOR)
Kojakian Eng'g Consultants
45786
PLOT NO:- C-67 (E20-01)
SH1
SECANT PILES WITH STRUT
SECTION X-X
750
STIRRUPS T10 @ 250 mm
4 T 10
200200 770
X
GUIDE WALL
200
200
770

X
MAIN SECANT PILE
(HARD)
SECONDARY SECANT
PILE (SOFT)


OUTSIDE
HORIZONTAL SCHEME OF SEC.(N-N)

(Detail - A1)
750mm dia. SEC. PILES
12T25Ø/ T10-200mm c/c
0.00
5.00
10.00
Length(m)
1
2
3
4
6
7
8
9
11
12
13
14
11.00m
A1
12T25/11.00m
EL. -1.00 GWT
EL. -8.00 Max. Exca. Level
EL. -13.00 Pile Toe Level
8.00
SECANT PILES
Main Reinforcement and
Lateral Stirrups (spiral type)
s
s
(s = 200mm c/c)
Covering = 75mm
CAPING/WAILER
BEAM
EL. + 0.00_
GRD. LVL.
203x102x23kg/m
KING POSTS
@ 1.50m c/c
A1 A1
Fcu = 40N/mm2
Fy = 460N/mm2
750mm Ø
Earth SideExcavation Side
-1.50
900mm
1200mm
750mm
750mm x 1000mm
Capping Beam
12T25 Tension Bars
11 T25 Cross
Tie Bars Concrete Corbel
PLAN
750mm x 1000mm
Capping / Waler Beam
7T25 Tension Bars
11 T25 Cross
Tie Bars
Concrete Corbel
ISOMETRIC VIEW
DETAIL OF
CORBEL
900mm dia. Strut
Pipe / thk = 16mm
1000mm x 1200mm
Steel Plate/thk=20mm
900mm Ø O.D. X 16mm
STEEL PIPE (HORZ. STRUT)
WITH 1.1 X 1.0 X 25mmTHK.
PLATE
BOLTED TO WALER BEAM
SIZE OF WELDS = 20mm
LEVEL OF STRUT
-2.00m

24T25 mm
2T20 mm

Secant Pile
CAPPING BEAM / WALLER BEAM (l.e.v: -1.50m)
2T20 mm
SECTION A-A
EL. -10.00 Max. Exca. Level
EL. -14.00 Pile Toe Level
10.00
750mm Ø
SECANT PILES
Main Reinforcement and
Lateral Stirrups (spiral type)
s
s
(s = 150mm c/c)
Covering = 75mm
B1 B1
(Detail - B1)
750mm dia. SEC. PILES
16T25Ø/ T10-150mm c/c
0.00
5.00
10.00
Length(m)
1
2
3
4
6
7
8
9
11
12
13
14
12.0m
B1
16T25/12.00m
FOR CAR LIFT AREA
Fcu = 40N/mm2
Fy = 460N/mm2 1.50m
SECTION B-B
CAPING/WAILER
BEAM
EL. + 0.00_
GRD. LVL.
203x102x23kg/m
KING POSTS
@ 1.50m c/c -1.50
900mm Ø O.D. X 16mm
STEEL PIPE (HORZ. STRUT)
WITH 1.1 X 1.0 X 25mmTHK.
PLATE
BOLTED TO WALER BEAM
SIZE OF WELDS = 20mm
LEVEL OF STRUT
-2.00m
KEY PLAN:
Drawing No.
Submission Date
Project ID
Official Use Only
Revision No.
Scale
Plan ID
Drawing Title
General Notes
00
11-01-2015
CONSULTANT:
OWNER:
PROJECT:
REV. DATE DESCRIPTION
AREASECTOR JOB NO.PLOT.NO
MAIN CONTRACTING
TEL: (02)5504222 P.O. BOX: 48181 FAX: (02)5504221
Piling Contractor
SHORING LAYOUT
Australian Piling
Technology
C9 E18-03 ABU DHABI CP-513

59846

PILE LEGEND DIM
(mm)
No.
Of
S.Piles
F.cu(N
/mm²
)
TOE
LEVEL



 
PILE TYPE


TOTAL :SHORING IN THIS DRAWING 
 
 


EXCAVATION
LEVEL


1098291
SH-01
1 2 3 4 5 6
A
B
C
D

24.40m(PLOT LIMIT )
26.40m(BASEMENT LIMIT)

15.20m (PLOT LIMIT )

19.20m (BASEMENT LIMIT)
BASEMENT EXTENSION
BASEMENT EXTENSION
BASEMENT EXTENSION
PLOT LIMIT
BASEMENT EXTENSION

PLOT LIMIT
PLOT LIMIT PLOT LIMIT
EL. -8.00m Max. Exca. Level
P1
P2
P3
P4
P5
P6
P7
P8
P9
P10
P11
P12
P13
P14
P15
P16
P17
P18
P19
P20
P21
P22
P23
P24
P25
P26
P27
P28
P29
P30
P31
P32
P33
P34
P35
P36
P37
P38
P39
P40
P41
P42
P43
P44
P45
P46
P47
P48
P49
P50
P51
P52
P53
P54
P55
P56
P57
P58
P59
P60
P61
P62
P63
P64
P65
P66
P67
P68
P69
P70
P71
P72
P73
P74
P75
P76
P77
P78
P79
P80
P81
P82
P83
P84
P85
P86
P87
P88
P89
P90
P91
P92
P93
P94
P95
P96
P97
P98
P99
P100
P101
P102
P103
P104
P105
P106
P107
P108
P109
P110
P111
P112
P113
P114
P115
P116
P117
P118
P119
P120
P121
P122
P123
P124
P125
P126
P127
P128
P129
P130
P131
P132
P133
P134
P135
P136
P137
P138
P139
P140
P141
P142
P143
P144
P145
P146
EL. -10.00m Max. Exca. Level
KEY PLAN:
Drawing No.
Submission Date
Project ID
Official Use Only
Revision No.
Scale
Plan ID
Drawing Title
General Notes
00
11-01-2015
CONSULTANT:
OWNER:
PROJECT:
REV. DATE DESCRIPTION
AREASECTOR JOB NO.PLOT.NO
MAIN CONTRACTING
TEL: (02)5504222 P.O. BOX: 48181 FAX: (02)5504221
Piling Contractor
SHORING LAYOUT
Australian Piling
Technology
C9 E18-03 ABU DHABI CP-513

59846

PILE LEGEND DIM
(mm)
No.
Of
S.Piles
F.cu(N
/mm²
)
TOE
LEVEL



 
PILE TYPE


TOTAL :SHORING IN THIS DRAWING 
 
 


EXCAVATION
LEVEL


1098291
SH-03
SITE PLAN
S
E
W
NE
SW
SE
NW
EL. -8.00m Max. Exca. Level
P1
P2
P3
P4
P5
P6
P7
P8
P9
P10
P11
P12
P13
P14
P15
P16
P17
P18
P19
P20
P21
P22
P23
P24
P25
P26
P27
P28
P29
P30
P31
P32
P33
P34
P35
P36
P37
P38
P39
P40
P41
P42
P43
P44
P45
P46
P47
P48
P49
P50
P51
P52
P53
P54
P55
P56
P57
P58
P59
P60
P61
P62
P63
P64
P65
P66
P67
P68
P69
P70
P71
P72
P73
P74
P75
P76
P77
P78
P79
P80
P81
P82
P83
P84
P85
P86
P87
P88
P89
P90
P91
P92
P93
P94
P95
P96
P97
P98
P99
P100
P101
P102
P103
P104
P105
P106
P107
P108
P109
P110
P111
P112
P113
P114
P115
P116
P117
P118
P119
P120
P121
P122
P123
P124
P125
P126
P127
P128
P129
P130
P131
P132
P133
P134
P135
P136
P137
P138
P139
P140
P141
P142
P143
P144
P145
P146
EL. -10.00m Max. Exca. Level
8.30m 8.30m
8.85m
8.85m
8.30m 8.30m
10.54m
45°m
45°m
10.54m
45°m
45°m
900
m
m
Ø
O
.D
.X
16m
m
STEEL
PIPE
(H
O
RZ.STRU
T)
900
m
m
Ø
O.D.X
16m
m
STEEL
PIPE
(HORZ.STRUT)
8.30m
8.85m
8.85m
8.30m
10.54m
45°m
45°m
10.54m
45°m
45°m
900
m
m
Ø
O.D.X
16m
m
STEEL
PIPE
(HORZ.STRUT)
900
m
m
Ø
O
.D
.X
16m
m
STEEL
PIPE
(H
O
RZ.STRU
T)
26.40m(BASEMENT LIMIT)
19.20m (BASEMENT LIMIT)
Section (N-N)
BB
AA
A A
BB
KEY PLAN:
Drawing No.
Submission Date
Project ID
Official Use Only
Revision No.
Scale
Plan ID
Drawing Title
General Notes
00
11-01-2015
CONSULTANT:
OWNER:
PROJECT:
REV. DATE DESCRIPTION
AREASECTOR JOB NO.PLOT.NO
MAIN CONTRACTING
TEL: (02)5504222 P.O. BOX: 48181 FAX: (02)5504221
Piling Contractor
SHORING LAYOUT
Australian Piling
Technology
C9 E18-03 ABU DHABI CP-513

59846

PILE LEGEND DIM
(mm)
No.
Of
S.Piles
F.cu(N
/mm²
)
TOE
LEVEL



 
PILE TYPE


TOTAL :SHORING IN THIS DRAWING 
 
 


EXCAVATION
LEVEL


1098291
SH-02
S
E
W
NE
SW
SE
NW












SEC. .A-A SEC. .A-A
EXC.LVL=(-11.50m)
EXC.LVL=(-10.00m)
EXC.LVL=(-10.00m)
SEC.N-N
SEC.N-N
SEC.B-B
SEC.B-B
DETAIL -E
1
2
3
4
5
6
7
8
9
10
11
12
13
14
15
16
17
18
19
20
21
22
23
24
25
26
27
28
29
30
31
32
33
34
35
36
37
38
39
40
41
42
43
44
45
46
47
48
49
50
51
52
53
54
55
56
57
58
59
60
61
62
63
64
65
66
67
68
69
70
71
72
73
74
75
76
77
78
79
80
81
82
83
84
85
86
87
88
89
9091
92
93
94
95
96
97
98
99
100
101
102
103
104
105
106
107
108
109
110
111
112
113
114
115
116
117
118
119
120
121
122
123
124
125
126
127
128
129
130
131
132
133
134
135
136
137
138
139
140
141
142
143
144
145
146
147
148
149
150
151
152
153
154
155
156
157
158
159
160
161
162
163
164
165
166
167
168
169
170
171
172
173
174
175
176
177
178
179
180
DETAIL -L
NEW SEC.K-K NEW SEC.K-K
NEW SEC M-M NEW SEC M-M
KEY PLAN:
Drawing No.
Submission Date
Project ID
Official Use Only
Revision No.
Scale
Plan ID
Drawing Title
General Notes
00
08-FEB-2014
TEL: (02)5504222 P.O. BOX: 48181 FAX: (02)5504221
Piling Contractor
SHORING LAYOUT ,DETAILS & SECTIONS
Australian Piling
Technology
78
PILE
LEGEND
DIM
(mm)
No.Of
Piles
Anchor
Type
F.cu
(N/mm²)
TOE
LEVEL
(m)
750
-14.00
40
No.of
Anchor
750 2079
PILE
TYPE
HARD
SOFT
10750
750 10
HARD
SOFT
-16.50
TOTAL :SHORING IN THIS DRAWING 1801-180
40
20
CONSULTANT:
OWNER:
PROJECT:
REV. DATE DESCRIPTION
AREASECTOR JOB NO.PLOT.NO
MAIN CONTRACTING
CP-490
(SHORING)ME-11 M.B.Z.CITYC175
COMMERCIAL DEVELOPMENT
HASHIM CONTRACTING
& GEN. MAINT.
M/S ABDULLAH & MATAR MOHAMED MURAD
MOHAMED AL BALOUSHI&
HEIRS OF SALEM MOHAMED MURAD AL BALOUSH
(SAIF ,SALMA ,MOHAMMED ,HASA ,AND SAEED& )
HIS WIDOW WADEHA GHASAB SAEED AL AMERI,
08-FEB-2014
36726 820665
2750 40HARD
1750 40HARD
-14.00
SH1
First Layer of Strut
SECTION X-X
750
STIRRUPS T10 @ 250 mm
4 T 10
200200 790
-1.00 m
X
GUIDE WALL
200
200
790

X
32Ø25mm
length 40cm
thick 16mm
thick 20mm
length 40cmX15cm
thick 20mm
length 40cmX5cm
thick 20mm
Ø


131313 55
5
5
5
13 13 13 13
13
13
13
13
13
13
13


Ø90cm
13
8
513 13 13 13 13 13 13 13 10
LEVEL- 0.00m
CAPPING BEAM
-1.00 m

VERTICAL SECTIONA-A
+
TOE LEVEL
-16.50 m
EXCAVATION
LEVEL
-11.50m

5.00m
22T25
INSIDE
OUTSIDE


 
22T25 MAIN STEEL
T10 @150 SPIRALS
CROSS SECTION A1
Retaining Wall
12.0m
22T25

A1
MAIN SECANT PILE
SECONDARY SECANT
PILE


INSIDE
OUTSIDE
DETAIL (L)

Concrete WALLER BEAM
1100 x 1100 mm
4 T25 L= 0.4m4 T25 L= 0.4m4 T25 L= 0.4m4 T25 L= 0.4m
LEVEL- 0.00m
CAPPING BEAM
-1.00 m

VERTICAL SECTION (K-K)

+
TOE LEVEL
-14.00 m
EXCAVATION
LEVEL
-10.00 m

12.0m
11T 25
INSIDE
OUTSIDE

 
22T25 MAIN STEEL
T10 @150 SPIRALS
CROSS SECTION K1
SECTION-K"
900mmØ O.D. X 16MM
STEEL PIPE (HORZ. STRUT)
WITH 1.1 X 1.2 X 25MM
THK. PLATE
BOLTED TO WALER BEAM
SIZE OF WELDS = 20mm
LEVEL OF STRUT
-3.50m
Retaining Wall
900mmØ O.D. X 16MM STEEL PIPE
(HORZ. STRUT)
WITH 1.2 X 1.1 X 20MM THK. PLATE
BOLTED TO WALER BEAM
SECANT PILE.
4T32 STEEL BAR PER
PILE TOP & BOTTOM
WEDL @ EACH R.C. PILE
EPOXY GROUT
SECTION K"(WAILER BEAM )

15mm WELD ALL AROUND THE
STELL PLATE & STEEL PIPE
R.C Waller Beam
1100 x 1100mm
12 Bolts T32mm (600mm)
24T25mm
4T16 mm


10@150mm
4T16 mm
12.0m
K1

SECTION-K"
900mmØ O.D. X 16MM
STEEL PIPE (HORZ. STRUT)
WITH 1.1 X 1.2 X 25MM
THK. PLATE
BOLTED TO WALER BEAM
SIZE OF WELDS = 20mm
LEVEL OF STRUT
-3.50m
BASEMENTLIMIT
11T 25
400
4T16 mm
2T16 mm
750
Secant Pile
CAPPING BEAM (l.e.v: -1.00)
2T16 mm

BASEMENTLIMIT
LEVEL- 0.00m
CAPPING BEAM
-1.00 m

VERTICAL SECTION (B-B)

+
TOE LEVEL
-14.00 m
EXCAVATION
LEVEL
-10.00 m

12.0m
7T 25
INSIDE
OUTSIDE

 
14T25 MAIN STEEL
T10 @150 SPIRALS
CROSS SECTION B1
SECTION-K"
900mmØ O.D. X 16MM
STEEL PIPE (HORZ. STRUT)
WITH 1.1 X 1.2 X 25MM
THK. PLATE
BOLTED TO WALER BEAM
SIZE OF WELDS = 20mm
LEVEL OF STRUT
-3.50m
Retaining Wall
12.0m
B1

BASEMENTLIMIT
7T 25
1200mm
1100mm
1100mm x 1100mm
Wailer Beam
12T25 Tension Bars
27 T25 Cross
Concrete Corbel
PLAN
DETAIL OF
CORBEL(1) FOR
LAYER STRUT(1)
(DETAIL - E)
TOP VIEW
900mmO.D. X AS PER PLAN
STEEL PIPE (HORZ. STRUT)
WITH 1.2m X 1.1m WITH THK 20 mm. PLATE
BOLTED TO WALER BEAM


LEVEL- 0.00m
CAPPING BEAM
-1.00 m

VERTICAL SECTION (M-M)

+
TOE LEVEL
-14.00 m
EXCAVATION
LEVEL
-10.00 m

12.0m
7T 25
INSIDEOUTSIDE

 
14T25 MAIN STEEL
T10 @150 SPIRALS
CROSS SECTION M1
SECTION-K"
900mmØ O.D. X 16MM
STEEL PIPE (HORZ. STRUT)
WITH 1.1 X 1.2 X 25MM
THK. PLATE
BOLTED TO WALER BEAM
SIZE OF WELDS = 20mm
LEVEL OF STRUT
-3.50m
Retaining Wall
12.0m
M1

BASEMENTLIMIT
7T 25
KEY PLAN:
Drawing No.
Submission Date
Project ID
Official Use Only
Revision No.
Scale
Plan ID
Drawing Title
General Notes
00
08-FEB-2014
TEL: (02)5504222 P.O. BOX: 48181 FAX: (02)5504221
Piling Contractor
SHORING LAYOUT ,DETAILS & SECTIONS
Australian Piling
Technology
78
PILE
LEGEND
DIM
(mm)
No.Of
Piles
Anchor
Type
F.cu
(N/mm²)
TOE
LEVEL
(m)
750
-14.00
40
No.of
Anchor
750 2079
PILE
TYPE
HARD
SOFT
10750
750 10
HARD
SOFT
-16.50
TOTAL :SHORING IN THIS DRAWING 1801-180
40
20
CONSULTANT:
OWNER:
PROJECT:
REV. DATE DESCRIPTION
AREASECTOR JOB NO.PLOT.NO
MAIN CONTRACTING
CP-490
(SHORING)ME-11 M.B.Z.CITYC175
COMMERCIAL DEVELOPMENT
HASHIM CONTRACTING
& GEN. MAINT.
M/S ABDULLAH & MATAR MOHAMED MURAD
MOHAMED AL BALOUSHI&
HEIRS OF SALEM MOHAMED MURAD AL BALOUSH
(SAIF ,SALMA ,MOHAMMED ,HASA ,AND SAEED& )
HIS WIDOW WADEHA GHASAB SAEED AL AMERI,
08-FEB-2014
36726 820665
2750 40HARD
1750 40HARD
-14.00
SH2
DETAILS&SECTIONS
SECTION X-X
900
STIRRUPS T10 @ 250 mm
4 T 10
200200 940
X
GUIDE WALL
200
200
940

X
LEVEL- 0.00m
CAPPING BEAM
-2.00 m

VERTICAL SECTIONA-A
+
TOE LEVEL
-23.00 m
EXCAVATION
LEVEL
-16.00m

12.00m
23T32
INSIDE
OUTSIDE


 
23T32 MAIN STEEL
T10 @150 SPIRALS
CROSS SECTION A1
Retaining Wall
12.00m
23T32

A1
MAIN SECANT PILE
SECONDARY SECANT
PILE


INSIDE
OUTSIDE
DETAIL (L)

HSHHH SS S
LEVEL- 0.00m
CAPPING BEAM
-2.00 m

VERTICAL SECTION (K-K)
+
TOE LEVEL
-17.00 m
EXCAVATION
LEVEL
-12.60 m

5.0m
16T25
INSIDE
OUTSIDE

 
16T25 MAIN STEEL
T10 @150 SPIRALS
CROSS SECTION K1
SECTION-K"
900mm Ø O.D. X 16mm
STEEL PIPE (HORZ. STRUT)
WITH 1.1 X 1.2 X 25MM
THK. PLATE
BOLTED TO WALER BEAM
SIZE OF WELDS = 20mm
LEVEL OF STRUT
-6.00m
Retaining Wall
900mmØ O.D. X 16mmSTEEL PIPE
(HORZ. STRUT)
WITH 1.2 X 1.1 X 20MM THK. PLATE
BOLTED TO WALER BEAM
SECANT PILE.
4T32 STEEL BAR PER
PILE TOP & BOTTOM
WEDL @ EACH R.C. PILE
EPOXY GROUT
SECTION K"(WAILER BEAM )

15mm WELD ALL AROUND THE
STELL PLATE & STEEL PIPE
R.C Waller Beam
1000 x 1000mm
12 Bolts T32mm (600mm)
18T25mm
4T16 mm


10@150mm
4T16 mm
12.0m
K1

SECTION-K"
900mm Ø O.D. X 16mm
STEEL PIPE (HORZ. STRUT)
WITH 1.1 X 1.2 X 25MM
THK. PLATE
BOLTED TO WALER BEAM
SIZE OF WELDS = 20mm
LEVEL OF STRUT
-6.00m
BASEMENTLIMIT
16T25
60cm
12T20 mm
2T20 mm
90 cm
Secant Pile
CAPPING BEAM (l.e.v: -2.00)
2T20 mm
BASEMENTLIMIT
LEVEL - 0.00m
CAPPING BEAM
-2.00 m

VERTICAL SECTION (B-B)
+
TOE LEVEL
-19.50 m
EXCAVATION
LEVEL
-14.00 m

7.0m
19T25
INSIDE
OUTSIDE

 
19T25 MAIN STEEL
T10 @150 SPIRALS
CROSS SECTION B1
SECTION-K"
900mm Ø O.D. X 16mm
STEEL PIPE (HORZ. STRUT)
WITH 1.1 X 1.2 X 25MM
THK. PLATE
BOLTED TO WALER BEAM
SIZE OF WELDS = 20mm
LEVEL OF STRUT
-6.00m
Retaining Wall
12.0m
B1

BASEMENTLIMIT
19T25
1200mm
1000mm
1000mm x 1000mm
Wailer Beam
9T25 Tension Bars
17 T25 Cross
Concrete Corbel
PLAN
DETAIL OF
CORBEL(1)
(DETAIL - E)
TOP VIEW
900mmO.D. X AS PER PLAN
STEEL PIPE (HORZ. STRUT)
WITH 1.2m X 1.1m WITH THK 20 mm. PLATE
BOLTED TO WALER BEAM









SHORT STRUT Ø90cm CONFECTION
25Ø32mm
length 40cm
thick 16mm
thick 20mm
length 40cmX15cm
thick 20mm
length 40cmX5cm
thick 20mm
Ø



18Ø32mm
length 40cm
thick 16mm
thick 20mm
length 40cmX15cm
thick 20mm
length 40cmX5cm
thick 20mm
Ø
LONG STRUT Ø90cm CONFECTION

1200mm
1000mm
1000mm x 1000mm
Wailer Beam
9T25 Tension Bars
24 T25 Cross
Concrete Corbel
PLAN
DETAIL OF
CORBEL(2)
(DETAIL - M)
TOP VIEW
900mmO.D. X AS PER PLAN
STEEL PIPE (HORZ. STRUT)
WITH 1.2m X 1.1m WITH THK 20 mm. PLATE
BOLTED TO WALER BEAM


Drawing No.
Submission Date
Project ID
Official Use Only
Revision No.
Scale
Plan ID
Drawing Title
General Notes
02
20-AUG-2014
REV. DATE DESCRIPTION
TEL: (02)5504222 P.O. BOX: 48181 FAX: (02)5504221
Piling Contractor
SHORING LAYOUT ,DETAILS &SECTIONS
Australian Piling
Technology
CP-505
PLOT.NO
E-14
CONSULTANT :
PROJECT:
AREASECTOR JOB NO.
C-37 ABU DHABI
MAIN CONTRACTING
HASHIM
CONTRACTING & GEN. MAINT.
OWNER NAME
34
PILE
LEGEND
DIM
(mm)
No.Of
Piles
F.cu
(N/mm²)
TOE
LEVEL
(m)
900
-23.00
45
900 2035
PILE
TYPE
HARD
SOFT
s
H
H
S
20900
900 20
HARD
SOFT
900
900
HARD
SOFT
-19.50
TOTAL :SHORING IN THIS DRAWING 1481-148
45
20
02 09-NOV-2014
20
19s
H 45
20
-17.00
PERIMETER: 112 m
Architects, Engineers, Planners & Interior Designers
C O N S U L T A N T SE N G I N E E R I N G
UNITED ARAB EMIRATES
FAX
TELEPHONE + 971 2 6762100
+ 971 2 6762302
9th FLOOR AL KHAZNA TOWER
P.O. Box 33937, ABU DHABI
AL NAJDA STREET
EMAIL: arkonsul@emirates.net.ae
www.arkonsult.net
INHERITORS OF
MOHAMED BAKHEET MOHAMED
BAKHEET AL MAZROUEI
BAKHEET
COMMERCIAL & RESIDENTIAL TOWER
3 BASEMENTS WITH 34 PARKING BAYS,
GROUND FL. WITH RETAIL AREA,
MEZZANINE FL. WITH OFFICES,
18 TYPICAL FLOORS
10093 923136
02
DETAILS&SECTIONS
45°m6.56m
900
m
m
Ø
O
.D
.X
16m
m
STEEL
PIPE
(H
O
RZ.STRU
T)
14.47m
5.488m 5.812m 5.812m
5.488m
5.488m
5.488m
45°m
45°m
14.47m
900
m
m
Ø
O
.D
.X
16m
m
STEEL
PIPE
(H
O
RZ.STRU
T)
900
m
m
Ø
O
.D
. X
16m
m
STEEL
PIPE
(H
O
RZ. STRU
T)
45°m
45°m
6.56m
900
m
m
Ø
O
.D
. X
16m
m
STEEL
PIPE
(H
O
RZ. STRU
T)
5.488m
5.488m
5.488m
45°m
45°m
6.56m
900
m
m
Ø
O.D.X
16m
m
STEEL
PIPE
(HORZ.STRUT)
14.47m
5.488m 5.812m 5.812m
5.488m
5.488m
45°m
45°m
14.47m
900
m
m
Ø
O.D.X
16m
m
STEEL
PIPE
(HORZ.STRUT)
900
m
m
Ø
O
.D
. X
16m
m
STEEL
PIPE
(H
O
RZ. STRU
T)
45°m
6.56m
900
m
m
Ø
O
.D
.X
16m
m
STEEL
PIPE
(H
O
RZ.STRU
T)
5.488m
5.488m
5.488m
5.488m
45°m 45°m
45°m 45°m
45°m 45°m
SEC.B-B
SEC.B-B
SEC.K-K
SEC.K-K
SEC. .A-A SEC. .A-A
SEC.B-B
SEC.B-B
26.40m Basement Limit
31.24m Basement Limit
DETAIL -L
TYPICAL
S
H
S
H
S
H
S
H
S
H
S
H
S
H
S
H
S
H
S
H
S
H
S
H
S
H
S
H
S
H
S
H
S
H
S
H
S
H
S
H
S
H
S
H
S
H
S
H
S
H
S
H
S
H
S
H
S
H
S
H
S
H
S
H
S
H
S
H
S
s
H
s
H
s
H
s
H
s H s
H
s Hs Hs Hs Hs Hs Hs Hs Hs Hs Hs Hs Hs Hs H
sH sH sH sH sH sH sH sH sH sH sH sH sH
s
H
s
H
s
H
s
H
s
H
H
s
H
1
2
3
4
5
6
7
8
9
10
11
12
13
14
15
16
17
18
19
20
21
22
23
24
25
26
27
28
29
30
31
32
33
34
35
36
37
38
39
40
41
42
43
44
45
46
47
48
49
50
51
52
53
54
55
56
57
58
59
60
61
62
63
64
65
66
67
68
69
70
71
72
73
74
75
76
77
78
79
80
81
82
83
84
85
86
87
88
89
90
91
92
93
94
95
96
97
98
99
100
101
102
103
104
105
106
107
108
109
110
111
112
113
114
115
116
117
118
119
120
121
122
123
124
125
126
127
128
129
130
131
132
133
134
135
136
137
138
139
140
141
142
143
144
145
146
147
148
1.00m
Wailer Beam
Wailer Beam
WailerBeam
WailerBeam
SEC.G-G
SEC.G-G
SEC.T-T
SEC.T-T
DETAIL -M
DETAIL -E
SEC. .A-A SEC. .A-A
Drawing No.
Submission Date
Project ID
Official Use Only
Revision No.
Scale
Plan ID
Drawing Title
General Notes
02
20-AUG-2014
REV. DATE DESCRIPTION
TEL: (02)5504222 P.O. BOX: 48181 FAX: (02)5504221
Piling Contractor
SHORING LAYOUT ,DETAILS &SECTIONS
Australian Piling
Technology
CP-505
PLOT.NO
E-14
CONSULTANT :
PROJECT:
AREASECTOR JOB NO.
C-37 ABU DHABI
MAIN CONTRACTING
HASHIM
CONTRACTING & GEN. MAINT.
OWNER NAME
34
PILE
LEGEND
DIM
(mm)
No.Of
Piles
F.cu
(N/mm²)
TOE
LEVEL
(m)
900
-23.00
45
900 2035
PILE
TYPE
HARD
SOFT
s
H
H
S
20900
900 20
HARD
SOFT
900
900
HARD
SOFT
-19.50
TOTAL :SHORING IN THIS DRAWING 1481-148
45
20
02 09-NOV-2014
20
19s
H 45
20
-17.00
PERIMETER: 112 m
Architects, Engineers, Planners & Interior Designers
C O N S U L T A N T SE N G I N E E R I N G
UNITED ARAB EMIRATES
FAX
TELEPHONE + 971 2 6762100
+ 971 2 6762302
9th FLOOR AL KHAZNA TOWER
P.O. Box 33937, ABU DHABI
AL NAJDA STREET
EMAIL: arkonsul@emirates.net.ae
www.arkonsult.net
INHERITORS OF
MOHAMED BAKHEET MOHAMED
BAKHEET AL MAZROUEI
BAKHEET
COMMERCIAL & RESIDENTIAL TOWER
3 BASEMENTS WITH 34 PARKING BAYS,
GROUND FL. WITH RETAIL AREA,
MEZZANINE FL. WITH OFFICES,
18 TYPICAL FLOORS
10093 923136
01
SHORING SHOP DRAWING
P1
P2
P3
P4
P5
P6
P7
P8
P10
P11
P12
P13
P14
P15
P16
P17
P18
P19
P20
P21
P22
P23
P24
P25
P26
P27
P28
P29
P30
P31
P32
P33
P34
P35
P36
P37
P38
P39
P40
P41
P42
P43
P44
P45
P46
P47
P48
P49
P50
P51
P52
P53
P54
P55
P56
P57
P58
P59
P60
P61
P62
P63
P64
P65
P66
P67
P68
P69
P70
P71
P72
P73
P74
P75
P76
P77
P78
P79
P80
P81
P82
P83
P84
P85
P86
P87
P88
P89
P90
P91
P92
P93
P94
P95
P96
P97
P98
P309
P310
P311
P312
P313
P314
P315
P316
P317
P318
P319
P320
P321
P322
P323
P324
P325
P326
P327
P328
P329
P330
P331
P332
P333
P334
P335
P336
P337
P338
P339
P340
P341
P342
P343
P344
P345
P346
P347
P348
P349
P350
P351
P352
P353
5cm
5cm
5cm
5cm
5cm
7366cm
4464cm
6642cm
P9
P99
P100
P101
P102
P103
P104
P105
P106
P107
P108
P109
P110
P111
P112
P113
P114
P115
P116
P117
P118
P119
P120
P121
P122
P123
P124
P125
P126
P127
P128
P129
P130
P131
P132
P133
P134
P135
P136
P137
P138
P139
P140
P141
P142
P143
P144
P145
P146
P147
P148
P149
P150
P151
P152
P153
P154
P155
P156
P157
P158
P159
P160
P161
P162
P163
P164
P165
P166
P167
P168
P169
P170
P171
P172
P173
P174
P175
P176
P177
P178
P179
P180
P181
P182
P183
P184
P185
P186
P187
P188
P189
P190
P191
P192
P193
P194
P195
P196
P197
P198
P199
P200
P201
P202
P203
P204
P205
P206
P207
P208
P209
P210
P211
P212
P213
P214
P215
P216
P217
P218
P219
P220
P221
P222
P223
P224
P225
P226
P227
P228
P229
P230
P231
P232
P233
P234
P235
P236
P237
P238
P239
P240
P241
P242
P243
P244
P245
P246
P247
P248
P249
P250
P251
P252
P253
P254
P255
P256
P257
P258
P259
P260
P261
P262
P263
P264
P265
P266
P267
P268
P269
P270
P271
P272
P273
P274
P275
P276
P277
P278
P279
P280
P281
P282
P283
P284
P285
P286
P287
P288
P289
P290
P291
P292
P293
P294
P295
P296
P297
P298
P299
P300
P301
P302
P303
P304
P305
P306
P307
P308
P354
P355
P356
P357
P358
P359
P360
P361
P362
P363
P364
P365
P366
P367
P368
P369
P370
P371
P372
P373
P374
P375
P376
P377
P378
P379
P380
P381
P382
P383
P384
P385
P386
P387
P388
P389
P390
P391
P392
P393
P394
P395
P396
P397
P398
P399
P400
P401
P402
P403
P404
P405
P406
P407
P408
P409
P410
P411
P412
P413
P414
P415
P416
P417
P418
P419
P420
P421
P422
P423
P424
P425
P426
P427
P428
P429
P430
P431
P432
P433
P434
P435
P436
P437
P438
4685cm
3412cm
A
A
A
A
21
39
1
9
SEC..D-DSEC.D-D
S
E
W
NE
SW
SE
NW
SEC. .A -A SEC.A -A
E 231344.6567
N 2710276.3567
E 231426.5012
N 2710332.3069
E 231362.0135
N 2710347.9426
BASEMENT LIMITBASEMENT LIMIT
BASEMENT LIMIT
PLOT LIMIT
PLOT LIMIT
PLOT LIMIT
PLOT LIMIT
BASEMENT LIMIT
89cm
1061cm
2051cm
2899cm
3748cm
900
M
M
Ø
O
.D
.X
20M
M
STEEL
PIPE
(H
O
RZ.STRU
T)
900
M
M
Ø
O
.D
.X
20M
M
STEEL
PIPE
(H
O
RZ.STRU
T)
1000
M
M
Ø
O
.D
.X
16M
M
STEEL
PIPE
(H
O
RZ.STRU
T)
1000
M
M
Ø
O
.D
.X
16M
M
STEEL
PIPE
(H
O
RZ.STRU
T)
UC
(457 X 191 X 98)
UC
(457 X 191 X 98)
26°
600cm 600cm 700cm 750cm
750cm700cm600cm600cm974cm600cm600cm700cm750cm
SEC. .N -N SEC.N -N
DETAIL -(L)
TYPICAL
DETAIL -F
45°
45°
45°
45°
45°
45°
45°
45°
45°
45°
45°
45°
45°
45°
45°
45°
E 231425.720
N 2710329.150
E 231388.390
N 2710265.750
E 231415.230
N 2710286.850
E 231426.5012
N 2710332.3069
DETAIL -L
900 MMØ O.D. X 20MM
STEEL PIPE (HORZ. STRUT)
SEC. .D-D SEC.D-D
SEC.T-TSEC.T-T
A2
A3
A4
A5
A6
A7
A8
180cm180cm180cm180cm180cm180cm180cm
A
A
A
A
A
A
A
A
A
A
A
180cm
180cm
180cm
180cm
180cm
180cm
180cm
180cm
180cm
180cm
180cm
10
11
12
13
14
15
16
17
18
19
20
A22
A23
A24
A25
A26
A27
A28
A29
A30
A31
A32
A33
A34
A35
A36
A37
A38
180cm180cm180cm180cm180cm180cm180cm180cm180cm180cm180cm180cm180cm180cm180cm180cm180cm
A40
A41
A42
A43
A44
A45
A46
A47
A48
A49
A50
A51
A52
A53
A54
A55
A56
A57
A58
A59
A60
A61
180cm 180cm 180cm 180cm 180cm 180cm 180cm 180cm 180cm 180cm 180cm 180cm 180cm 180cm 180cm 180cm 180cm 180cm 180cm 180cm 180cm 180cm
SEC..G-G
SEC.G-G
TOE LEVEL
= -23.0m
TOE LEVEL
= -25.0m
SEC..P-PSEC..P-P
SEC.Q-Q
SEC.Q-Q
600cm
600cm
1061cm
2051cm
2899cm
3748cm
900
M
M
Ø
O
.D
. X
20M
M
STEEL
PIPE
(H
O
RZ. STRU
T)
900
M
M
Ø
O
.D
. X
20M
M
STEEL
PIPE
(H
O
RZ. STRU
T)
1000
M
M
Ø
O
.D
. X
16M
M
STEEL
PIPE
(H
O
RZ. STRU
T)
1000
M
M
Ø
O
.D
. X
16M
M
STEEL
PIPE
(H
O
RZ. STRU
T)
UC
(457 X 191 X 98)
UC
(457 X 191 X 98)
600cm 600cm 700cm 750cm
Drawing No.
Submission Date
Project ID
Official Use Only
Revision No.
Scale
Plan ID
Drawing Title
General Notes
01
09-DEC-2013
REV. DATE DESCRIPTION
TEL: (02)5504222 P.O. BOX: 48181 FAX: (02)5504221
Piling Contractor
SHORING LAYOUT ,DETAILS & SECTIONS
Australian Piling
Technology
CP-484
PLOT.NO
W-5
Principal Consultant
PROJECT:
AREASECTOR JOB NO.
C-23 ABU DHABI
MAIN CONTRACTING
ARABIAN
CONSTRUCTION CO. (ACC)
Structural
Master developer
HVAC :
T: 02-6767976
F: 02-6767990
Po Box 127489
Abu Dhabi, UAE
www.implement-ae.com
T: 02-6767976
F: 02-6767990
Po Box 127489
Abu Dhabi, UAE
www.implement-ae.com
62
PILE
LEGEND
DIM
(mm)
No.Of
Piles
Anchor
Type
F.cu
(N/mm²)
TOE
LEVEL
(m)
800
-20.00
50
No.of
Anchor
800 2061
A
PILE
TYPE
HARD
SOFT
23800
800 23
HARD
SOFT
31
800
800
31
HARD
SOFT
-23.00
B
TOTAL :SHORING IN THIS DRAWING P438P1-P438
60
20
D 62
34
61
00 28-DEC-2013
50
20SOFT
HARD 800
800
60
60
-21.00
3 Basements + Ground + Mezzanine
+ 35 Typical Floors + Roof
42675
01 20-MAY-2014
43
800
800
44
HARD
SOFT
60
20
50
20
-25.00
-23.00
PERIMETER: 266 m
856756
01
First Layer of Strut & Anchor
D
1
30
D
B
B1
13
SEC..D'-D'SEC.D'-D'
S
E
NE
SW
SE
NW
P1
P2
P3
P4
P5
P6
P7
P8
P10
P11
P12
P13
P14
P15
P16
P17
P18
P19
P20
P21
P22
P23
P24
P25
P26
P27
P28
P29
P30
P31
P32
P33
P34
P35
P36
P37
P38
P39
P40
P41
P42
P43
P44
P45
P46
P47
P48
P49
P50
P51
P52
P53
P54
P55
P56
P57
P58
P59
P60
P61
P62
P63
P64
P65
P66
P67
P68
P69
P70
P71
P72
P73
P74
P75
P76
P77
P78
P79
P80
P81
P82
P83
P84
P85
P86
P87
P88
P89
P90
P91
P92
P93
P94
P95
P96
P97
P98
P309
P310
P311
P312
P313
P314
P315
P316
P317
P318
P319
P320
P321
P322
P323
P324
P325
P326
P327
P328
P329
P330
P331
P332
P333
P334
P335
P336
P337
P338
P339
P340
P341
P342
P343
P344
P345
P346
P347
P348
P349
P350
P351
P352
P353
5cm
5cm
5cm
5cm
5cm
7366cm
4464cm
6642cm
P9
P99
P100
P101
P102
P103
P104
P105
P106
P107
P108
P109
P110
P111
P112
P113
P114
P115
P116
P117
P118
P119
P120
P121
P122
P123
P124
P125
P126
P127
P128
P129
P130
P131
P132
P133
P134
P135
P136
P137
P138
P139
P140
P141
P142
P143
P144
P145
P146
P147
P148
P149
P150
P151
P152
P153
P154
P155
P156
P157
P158
P159
P160
P161
P162
P163
P164
P165
P166
P167
P168
P169
P170
P171
P172
P173
P174
P175
P176
P177
P178
P179
P180
P181
P182
P183
P184
P185
P186
P187
P188
P189
P190
P191
P192
P193
P194
P195
P196
P197
P198
P199
P200
P201
P202
P203
P204
P205
P206
P207
P208
P209
P210
P211
P212
P213
P214
P215
P216
P217
P218
P219
P220
P221
P222
P223
P224
P225
P226
P227
P228
P229
P230
P231
P232
P233
P234
P235
P236
P237
P238
P239
P240
P241
P242
P243
P244
P245
P246
P247
P248
P249
P250
P251
P252
P253
P254
P255
P256
P257
P258
P259
P260
P261
P262
P263
P264
P265
P266
P267
P268
P269
P270
P271
P272
P273
P274
P275
P276
P277
P278
P279
P280
P281
P282
P283
P284
P285
P286
P287
P288
P289
P290
P291
P292
P293
P294
P295
P296
P297
P298
P299
P300
P301
P302
P303
P304
P305
P306
P307
P308
P354
P355
P356
P357
P358
P359
P360
P361
P362
P363
P364
P365
P366
P367
P368
P369
P370
P371
P372
P373
P374
P375
P376
P377
P378
P379
P380
P381
P382
P383
P384
P385
P386
P387
P388
P389
P390
P391
P392
P393
P394
P395
P396
P397
P398
P399
P400
P401
P402
P403
P404
P405
P406
P407
P408
P409
P410
P411
P412
P413
P414
P415
P416
P417
P418
P419
P420
P421
P422
P423
P424
P425
P426
P427
P428
P429
P430
P431
P432
P433
P434
P435
P436
P437
P438
4685cm
3412cm
SEC. .N' -N' SEC.N' -N'
E 231344.6567
N 2710276.3567
E 231426.5012
N 2710332.3069
E 231362.0135
N 2710347.9426
BASEMENT LIMITBASEMENT LIMIT
BASEMENT LIMIT
PLOT LIMIT
PLOT LIMIT
PLOT LIMIT
PLOT LIMIT
BASEMENT LIMIT
E 231425.720
N 2710329.150
E 231388.390
N 2710265.750
E 231415.230
N 2710286.850
E 231426.5012
N 2710332.3069
SEC. .D'-D' SEC.D'-D'
SEC..T'-T'SEC.T'-T'
SEC. .A' -A' SEC.A' -A '
B2
B3
B4
B5
B6
B7
B8
B9
B10
B11
B12
B14
B15
B16
B17
B18
B19
B20
B21
B22
B23
B24
B25
B26
B27
B28
B29
B30
B31
B32
B33
B34
120cm120cm120cm120cm120cm120cm120cm120cm120cm120cm120cm
120cm
120cm
120cm
120cm
120cm
120cm
120cm
120cm
120cm
120cm
120cm
120cm
120cm
120cm
120cm
120cm
120cm
120cm
120cm
120cm
120cm
2
D
3
D
4
D
5
D
6
D
7
D
8
D
9
D
10
D
11
D
12
D
13
D
14
D
15
D
16
D
17
D
18
D
19
D
20
D
D
D
D
D
D
D
D
D
D
21
22
23
24
25
26
27
28
29
120cm120cm120cm120cm120cm120cm120cm120cm120cm120cm120cm120cm120cm120cm120cm120cm120cm120cm120cm120cm120cm120cm120cm120cm120cm120cm120cm120cm
D31
D32
D33
D34
D35
D36
D37
D38
D39
D40
D41
D42
D43
D44
D45
D46
D47
D48
D49
D50
D51
D52
D53
D54
D55
D56
D57
D58
D59
D60
D61
D62
120cm120cm120cm120cm120cm120cm120cm120cm120cm120cm120cm120cm120cm120cm120cm120cm120cm120cm120cm120cm120cm120cm120cm120cm120cm120cm120cm120cm120cm120cm120cm120cm
SEC..G'-G'
SEC.G'-G'
SEC. .A' -A' SEC.A' -A '
TOE LEVEL
= -23.0m
TOE LEVEL
= -25.0m
SEC..P''-P''SEC..P''-P''
SEC.Q"-Q"
SEC.Q"-Q"
Drawing No.
Submission Date
Project ID
Official Use Only
Revision No.
Scale
Plan ID
Drawing Title
General Notes
01
09-DEC-2013
REV. DATE DESCRIPTION
TEL: (02)5504222 P.O. BOX: 48181 FAX: (02)5504221
Piling Contractor
SHORING LAYOUT ,DETAILS & SECTIONS
Australian Piling
Technology
CP-484
PLOT.NO
W-5
Principal Consultant
PROJECT:
AREASECTOR JOB NO.
C-23 ABU DHABI
MAIN CONTRACTING
ARABIAN
CONSTRUCTION CO. (ACC)
Structural
Master developer
HVAC :
T: 02-6767976
F: 02-6767990
Po Box 127489
Abu Dhabi, UAE
www.implement-ae.com
T: 02-6767976
F: 02-6767990
Po Box 127489
Abu Dhabi, UAE
www.implement-ae.com
62
PILE
LEGEND
DIM
(mm)
No.Of
Piles
Anchor
Type
F.cu
(N/mm²)
TOE
LEVEL
(m)
800
-20.00
50
No.of
Anchor
800 2061
A
PILE
TYPE
HARD
SOFT
23800
800 23
HARD
SOFT
31
800
800
31
HARD
SOFT
-23.00
B
TOTAL :SHORING IN THIS DRAWING P438P1-P438
60
20
D 62
34
61
00 28-DEC-2013
50
20SOFT
HARD 800
800
60
60
-21.00
3 Basements + Ground + Mezzanine
+ 35 Typical Floors + Roof
42675
01 20-MAY-2014
43
800
800
44
HARD
SOFT
60
20
50
20
-25.00
-23.00
PERIMETER: 266 m
856756
02
Second Layer of Anchor
SECTION X-X
800
STIRRUPS T10 @ 250 mm
4 T 10
200200 840
X
GUIDE WALL
200200840
∅840
X
RETAININGSIDE
EXCAVATIONSIDE
(-4.00 m ) ANCHOR(A) LEVEL
-23.0m PILE TOE
CAPPING BEAM
CAPPING BEAM
(+ 0.25 m )
23.25m
800∅
G1
800∅
75 75
19T32 MAIN STEEL
T10 @150 SPIRALS
CROSS SECTION G1
RetainingWall
19T 32
5cm
3.85m
Capacity
Spacing (m
)
Number
Elongation
of Strands
(mm)
Anchor
(Kn)
A
1.80
4Table Anchors Details
BOND LENGTH
FREE LENGTH
BL = 5.00m
FL =11.50 m
Anchor-"A" 4 Strand(7 steel wire 15.24 mm)
Grad 270 -Low Relax(ASTM A416)
288.68
29.27
30
(-7.90 m ) ANCHOR(B) LEVEL
Capacity
Spacing (m
)
Number
Elongation
of Strands
(mm)
Anchor
(Kn)
B
1.20
8Table Anchors Details
BOND LENGTH
FREE LENGTH
BL = 8.00m
FL =8.00m
35
Anchor-"B"
8 Strand(7 steel wire 15.24 mm)
Grad 270 -Low Relax(ASTM A416)
1053
25.43
SECTION G-G&G' -G'
MAX. EXCAVATION LVL -14.85 m
TOP OF STEEL
-0.75m
800∅
75 75
20 T 25 MAIN STEEL
T10 @150 SPIRALS
CROSS SECTION D1
SECTION D-D & D'-D'
D1
RETAININGSIDE
EXCAVATIONSIDE
(-4.00 m ) ANCHOR LEVEL(A)
- 20.00 m TOE LEVEL
(0.00 ) GATE LEVEL
CAPPING BEAM
CAPPING BEAM
MAX. EXCAVATION LVL -13.70 m
(-7.90 m ) ANCHOR (D) LEVEL
Capacity
Spacing (m
)
Number
Elongation
of Strands
(mm)
Anchor
(Kn)
D
1.20
6Table Anchors Details
BOND LENGTH
FREE LENGTH
BL 7.00=m
FL 9.0=m
Anchor-"D" 6 Strand(7 steel wire 15.24 mm)
Grad 270 -Low Relax(ASTM A416)
(- 1.70 m )
18.30m
800∅
35
865
27.97
FULL LENGTH
20T25
1.00m
Capacity
Spacing (m
)
Number
Elongation
of Strands
(mm)
Anchor
(Kn)
A
1.80
4Table Anchors Details
BOND LENGTH
FREE LENGTH
BL 5.00 =m
FL 11.50=m
Anchor-"A" 4 Strand(7 steel wire 15.24 mm)
Grad 270 -Low Relax(ASTM A416)
288.68
29.27
30
5cm
RetainingWall
SEC..1
SEC..1
PVC Spacer
Pvc Grouting Pipe
7 wir strands
SECTION (1-1)
Grouting Body(D=140mm)
(Fcu=20N/mm²)
SEC..2
SEC.2
PVC SpacerPvc Grouting Pipe
7 wir strands
Grouting Body(D=140mm)
(Fcu=20N/mm²)
SECTION (2-2)
SEC..3
SEC.3
SECTION (3-3)
PVC SpacerPvc Grouting Pipe
7 wir strands
Grouting Body(D=140mm)
(Fcu=20N/mm²)
LEVEL- 0.00m
CAPPING BEAM
-1.70 m
800∅
SECTION A-A&A'-A'
1.00m
+
TOE LEVEL
-23.00 m
EXCAVATION
LEVEL
-14.85 m
21.30m
FULL LENGTH
27T 32
INSIDEOUTSIDE
5cm
800∅
75 75
27 T 32 MAIN STEEL
T10 @150 SPIRALS
CROSS SECTION A1
RetainingWall
SECTION-K"(WAILER BEAM )
10@150
A1
SECTION"6"
Lock Nut
20
Steel plate 18mm
Steel wedge plate
Strands
channel for wailr
2-[260X90X35) or Equivalent
CAPPING BEAM
AS-PER STRUCTURAL
DRAWING
1000mm
800mm
CAPPING BEAM (l.e.v: -1.70)
-1.70 m
-2.70 m
SECANT PILE
SECTION 6"
-4.00 m
30°
PVC Spacer
Pvc Grouting Pipe
7 wir strands
SECTION (1-1)
Grouting Body(D=140mm)
(Fcu=20N/mm²)
SEC..1
SEC..1
Lock Nut
20
Steel plate 18mm
Steel wedge plate
35
Strands
channel for wailr
2-[260X90X35) or Equivalent
Anchor in Level (l.e.v: -7.90)
-7.90 m
Secant Pile
MAINSECANTPILE
SECONDARYSECANT
PILE
60cm
120cm
INSIDE
OUTSIDE
DETAIL (L)
20cm
6.0m
LEVEL- 0.00m
CAPPING BEAM
-1.70 m
800∅
SECTION (N-N)&(N'-N')
1.00m
+
TOE LEVEL
-21.00 m
EXCAVATION
LEVEL
-13.70 m
19.30m
N1
FULL LENGTH
17T 32
INSIDEOUTSIDE
800∅
75 75
17 T 32 MAIN STEEL
T10 @150 SPIRALS
CROSS SECTION N1
SECTION-K"
RetainingWall
10@15010@15010@120
3.0m
N2
800∅
75 75
17 T 32 MAIN STEEL
T10 @120 SPIRALS
CROSS SECTION N2
N3
800∅
75 75
17 T 32 MAIN STEEL
T10 @150 SPIRALS
CROSS SECTION N3
5cm
PLOTLIMIT
PLOTLIMIT
PLOTLIMIT
SECTION-K"
3.0m
PLOTLIMIT
10@15010@120
CAPPING BEAM
800∅
SECTION T-T & T'-T'
3.85m
TOE LEVEL
-25.0m
EXCAVATION
LEVEL
-14.85 m
25.25m
A1
16T 40
INSIDEOUTSIDE
5cm
800∅
75 75
16 T 40 MAIN STEEL
T10 @150 SPIRALS
CROSS SECTION A1
RetainingWall
10@150
PLOTLIMIT
SECTION-K"
3.0m
10@15010@120
Fcu = 60N/mm
Fy = 460N/mm
2
2
+0.25m
TOP OF STEEL
-0.75m
-3.60 m
-3.60 m
Fcu = 60N/mm
Fy = 460N/mm
2
2
THICKENS AS-PER THE
PLAN Ø O.D. X 16MM
STEEL PIPE (HORZ. STRUT)
WITH 1.1 X 1.2 X 20MM
THK. PLATE
BOLTED TO WALER BEAM
SIZE OF WELDS = 20mm
LEVEL OF STRUT
-4.60m
SECTION "W"
Lock Nut
20
Steel plate 18mm
Steel wedge plate
Strands
channel for wailr
2-[260X90X35) or Equivalent
CAPPING BEAM
AS-PER STRUCTURAL
DRAWING
3850mm
800mm
CAPPING BEAM (l.e.v: +0.25m)
+0.25 m
-3.60 m
SECANT PILE
SECTION "W"
-4.00 m
30°
THICKENS AS-PER THE
PLAN Ø O.D. X 16MM
STEEL PIPE (HORZ. STRUT)
WITH 1.1 X 1.2 X 20MM
THK. PLATE
BOLTED TO WALER BEAM
SIZE OF WELDS = 20mm
LEVEL OF STRUT
-4.60m
RETAININGSIDE
EXCAVATIONSIDE
(-4.00 m ) ANCHOR(A) LEVEL
-25.0m PILE TOE
CAPPING BEAM
CAPPING BEAM
(+ 0.25 m )
25.25m
800∅
G1
800∅
75 75
19T32 MAIN STEEL
T10 @150 SPIRALS
CROSS SECTION G1
RetainingWall
19T 32
5cm
3.85m
Capacity
Spacing (m
)
Number
Elongation
of Strands
(mm)
Anchor
(Kn)
A
1.80
4Table Anchors Details
BOND LENGTH
FREE LENGTH
BL = 5.00m
FL =11.50 m
Anchor-"A" 4 Strand(7 steel wire 15.24 mm)
Grad 270 -Low Relax(ASTM A416)
288.68
29.27
30
(-7.90 m ) ANCHOR(B) LEVEL
Capacity
Spacing (m
)
Number
Elongation
of Strands
(mm)
Anchor
(Kn)
B
1.20
8Table Anchors Details
BOND LENGTH
FREE LENGTH
BL = 8.00m
FL =8.00m
35
Anchor-"B"
8 Strand(7 steel wire 15.24 mm)
Grad 270 -Low Relax(ASTM A416)
1053
25.43
SECTION P-P&P'' -P''
MAX. EXCAVATION LVL -14.85 m
TOP OF STEEL
-0.75m
SEC..1
SEC..1
PVC Spacer
Pvc Grouting Pipe
7 wir strands
SECTION (1-1)
Grouting Body(D=140mm)
(Fcu=20N/mm²)
SEC..2
SEC.2
PVC SpacerPvc Grouting Pipe
7 wir strands
Grouting Body(D=140mm)
(Fcu=20N/mm²)
SECTION (2-2)
PLOTLIMIT
Fcu = 60N/mm
Fy = 460N/mm
2
2
-3.60 m
SECTION "W"
CAPPING BEAM
800∅
SECTION Q-Q & Q''-Q''
3.85m TOE LEVEL
-23.0m
EXCAVATION
LEVEL
-14.85 m
23.25m
A1
16T 40
INSIDEOUTSIDE
5cm
800∅
75 75
16 T 40 MAIN STEEL
T10 @150 SPIRALS
CROSS SECTION A1
RetainingWall
10@150
PLOTLIMIT
SECTION-K"
3.0m
10@15010@120
+0.25m
TOP OF STEEL
-0.75m
-3.60 m
THICKENS AS-PER THE
PLAN Ø O.D. X 16MM
STEEL PIPE (HORZ. STRUT)
WITH 1.1 X 1.2 X 20MM
THK. PLATE
BOLTED TO WALER BEAM
SIZE OF WELDS = 20mm
LEVEL OF STRUT
-4.60m
thick 20mm
thick 20mm
∅900
110
120
STRUT CONFECTION
FOR FIRST LAYER
900 mmØ O.D. X 20mm
thick 16mm
∅1000
110
120
UB(1016X305X349)
PLATE
(120X120X20mm)
Braket
12 bolt grade 4.8 M16
SecantPile
THICKENS AS-PER THE
PLAN Ø O.D. X 16MM
STEEL PIPE (HORZ. STRUT)
WITH 1.1 X 1.2 X 20MM
THK. PLATE
BOLTED TO WALER BEAM
SIZE OF WELDS = 20mm
LEVEL OF STRUT
-4.60m
THICKENS AS-PER THE
PLAN Ø O.D. X 16MM
STEEL PIPE (HORZ. STRUT)
WITH 1.1 X 1.2 X 20MM
THK. PLATE
BOLTED TO WALER BEAM
SIZE OF WELDS = 20mm
LEVEL OF STRUT
-4.60m
1200m
m
1000mm
PLAN
DETAIL OF
CORBEL(2) FOR
STRUT
(DETAIL - F)
TOP VIEW
THICKENS AS-PER THE PLAN Ø O.D. X 20MM
STEEL PIPE (HORZ. STRUT)
WITH 1.2m X 1.1m WITH THK 20 mm. PLATE
BOLTED TO WALER BEAM
ASPER
PLAN
45
10mm Stiffener
@200mm
STRUT CONFECTION
FOR FIRST LAYER
1000 mmØ O.D. X 16mm
Working.Load=4500KN Working.Load=5700KN
Working.Load=5700KN
Fcu = 60N/mm
Fy = 460N/mm
2
2
Working.Load=4500KN
thick 20mm
Drawing No.
Submission Date
Project ID
Official Use Only
Revision No.
Scale
Plan ID
Drawing Title
General Notes
01
09-DEC-2013
REV. DATE DESCRIPTION
TEL: (02)5504222 P.O. BOX: 48181 FAX: (02)5504221
Piling Contractor
SHORING LAYOUT ,DETAILS & SECTIONS
Australian Piling
Technology
CP-484
PLOT.NO
W-5
Principal Consultant
PROJECT:
AREASECTOR JOB NO.
C-23 ABU DHABI
MAIN CONTRACTING
ARABIAN
CONSTRUCTION CO. (ACC)
Structural
Master developer
HVAC :
T: 02-6767976
F: 02-6767990
Po Box 127489
Abu Dhabi, UAE
www.implement-ae.com
T: 02-6767976
F: 02-6767990
Po Box 127489
Abu Dhabi, UAE
www.implement-ae.com
62
PILE
LEGEND
DIM
(mm)
No.Of
Piles
Anchor
Type
F.cu
(N/mm²)
TOE
LEVEL
(m)
800
-20.00
50
No.of
Anchor
800 2061
A
PILE
TYPE
HARD
SOFT
23800
800 23
HARD
SOFT
31
800
800
31
HARD
SOFT
-23.00
B
TOTAL :SHORING IN THIS DRAWING P438P1-P438
60
20
D 62
34
61
00 28-DEC-2013
50
20SOFT
HARD 800
800
60
60
-21.00
3 Basements + Ground + Mezzanine
+ 35 Typical Floors + Roof
42675
01 20-MAY-2014
43
800
800
44
HARD
SOFT
60
20
50
20
-25.00
-23.00
PERIMETER: 266 m
856756
03
DETAILS&SECTIONS
P1
P2
P3
P4
P5
P6
P7
P8
P10
P11
P12
P13
P14
P15
P16
P17
P18
P19
P20
P21
P22
P23
P24
P25
P26
P27
P28
P29
P30
P31
P32
P33
P34
P35
P36
P37
P38
P39
P40
P41
P42
P43
P44
P45
P46
P47
P48
P49
P50
P51
P52
P53
P54
P55
P56
P57
P58
P59
P60
P61
P62
P63
P64
P65
P66
P67
P68
P69
P70
P71
P72
P73
P74
P75
P76
P77
P78
P79
P80
P81
P82
P83
P84
P85
P86
P87
P88
P89
P90
P91
P92
P93
P94
P95
P96
P97
P98
P309
P310
P311
P312
P313
P314
P315
P316
P317
P318
P319
P320
P321
P322
P323
P324
P325
P326
P327
P328
P329
P330
P331
P332
P333
P334
P335
P336
P337
P338
P339
P340
P341
P342
P343
P344
P345
P346
P347
P348
P349
P350
P351
P352
P353
5cm
5cm
5cm
5cm
5cm
7366cm
4464cm
6642cm
P9
P99
P100
P101
P102
P103
P104
P105
P106
P107
P108
P109
P110
P111
P112
P113
P114
P115
P116
P117
P118
P119
P120
P121
P122
P123
P124
P125
P126
P127
P128
P129
P130
P131
P132
P133
P134
P135
P136
P137
P138
P139
P140
P141
P142
P143
P144
P145
P146
P147
P148
P149
P150
P151
P152
P153
P154
P155
P156
P157
P158
P159
P160
P161
P162
P163
P164
P165
P166
P167
P168
P169
P170
P171
P172
P173
P174
P175
P176
P177
P178
P179
P180
P181
P182
P183
P184
P185
P186
P187
P188
P189
P190
P191
P192
P193
P194
P195
P196
P197
P198
P199
P200
P201
P202
P203
P204
P205
P206
P207
P208
P209
P210
P211
P212
P213
P214
P215
P216
P217
P218
P219
P220
P221
P222
P223
P224
P225
P226
P227
P228
P229
P230
P231
P232
P233
P234
P235
P236
P237
P238
P239
P240
P241
P242
P243
P244
P245
P246
P247
P248
P249
P250
P251
P252
P253
P254
P255
P256
P257
P258
P259
P260
P261
P262
P263
P264
P265
P266
P267
P268
P269
P270
P271
P272
P273
P274
P275
P276
P277
P278
P279
P280
P281
P282
P283
P284
P285
P286
P287
P288
P289
P290
P291
P292
P293
P294
P295
P296
P297
P298
P299
P300
P301
P302
P303
P304
P305
P306
P307
P308
P354
P355
P356
P357
P358
P359
P360
P361
P362
P363
P364
P365
P366
P367
P368
P369
P370
P371
P372
P373
P374
P375
P376
P377
P378
P379
P380
P381
P382
P383
P384
P385
P386
P387
P388
P389
P390
P391
P392
P393
P394
P395
P396
P397
P398
P399
P400
P401
P402
P403
P404
P405
P406
P407
P408
P409
P410
P411
P412
P413
P414
P415
P416
P417
P418
P419
P420
P421
P422
P423
P424
P425
P426
P427
P428
P429
P430
P431
P432
P433
P434
P435
P436
P437
P438
4685cm
3412cm
231404.980
2710334.179
E 231425.7186
N 2710329.1503
231404.980
2710334.179
E 231388.3896
N 2710265.7532
E 231415.2299
N 2710286.8489
E 231344.6567
N 2710276.3567
E 231426.5012
N 2710332.3069
E 231362.0135
N 2710347.9426
BASEMENT LIMITBASEMENT LIMIT
BASEMENT LIMIT
PLOT LIMIT
PLOT LIMIT
PLOT LIMIT
PLOT LIMIT
BASEMENT LIMIT
WASHROOM
BUILDING
kiosk BUILDING
WATER
FOUNTAIN
SNG PLANT
PLAY GROUND
EQUIPMENT
295cm
120cm
332cm
120cm
150cm
332cm
295cm
96cm
S
E
W
NE
SW
SE
NW
TOE LEVEL
= -23.0m
TOE LEVEL
= -25.0m
Drawing No.
Submission Date
Project ID
Official Use Only
Revision No.
Scale
Plan ID
Drawing Title
General Notes
01
09-DEC-2013
REV. DATE DESCRIPTION
TEL: (02)5504222 P.O. BOX: 48181 FAX: (02)5504221
Piling Contractor
SHORING LAYOUT ,DETAILS & SECTIONS
Australian Piling
Technology
CP-484
PLOT.NO
W-5
Principal Consultant
PROJECT:
AREASECTOR JOB NO.
C-23 ABU DHABI
MAIN CONTRACTING
ARABIAN
CONSTRUCTION CO. (ACC)
Structural
Master developer
HVAC :
T: 02-6767976
F: 02-6767990
Po Box 127489
Abu Dhabi, UAE
www.implement-ae.com
T: 02-6767976
F: 02-6767990
Po Box 127489
Abu Dhabi, UAE
www.implement-ae.com
62
PILE
LEGEND
DIM
(mm)
No.Of
Piles
Anchor
Type
F.cu
(N/mm²)
TOE
LEVEL
(m)
800
-20.00
50
No.of
Anchor
800 2061
A
PILE
TYPE
HARD
SOFT
23800
800 23
HARD
SOFT
31
800
800
31
HARD
SOFT
-23.00
B
TOTAL :SHORING IN THIS DRAWING P438P1-P438
60
20
D 62
34
61
00 28-DEC-2013
50
20SOFT
HARD 800
800
60
60
-21.00
3 Basements + Ground + Mezzanine
+ 35 Typical Floors + Roof
42675
01 20-MAY-2014
43
800
800
44
HARD
SOFT
60
20
50
20
-25.00
-23.00
PERIMETER: 266 m
856756
04
SITE PLAN
P1
P2
P3
P4
P5
P6
P7
P8
P10
P11
P12
P13
P14
P15
P16
P17
P18
P19
P20
P21
P22
P23
P24
P25
P26
P27
P28
P29
P30
P31
P32
P33
P34
P35
P36
P37
P38
P39
P40
P41
P42
P43
P44
P45
P46
P47
P48
P49
P50
P51
P52
P53
P54
P55
P56
P57
P58
P59
P60
P61
P62
P63
P64
P65
P66
P67
P68
P69
P70
P71
P72
P73
P74
P75
P76
P77
P78
P79
P80
P81
P82
P83
P84
P85
P86
P87
P88
P89
P90
P91
P92
P93
P94
P95
P96
P97
P98
P309
P310
P311
P312
P313
P314
P315
P316
P317
P318
P319
P320
P321
P322
P323
P324
P325
P326
P327
P328
P329
P330
P331
P332
P333
P334
P335
P336
P337
P338
P339
P340
P341
P342
P343
P344
P345
P346
P347
P348
P349
P350
P351
P352
P353





P9
P99
P100
P101
P102
P103
P104
P105
P106
P107
P108
P109
P110
P111
P112
P113
P114
P115
P116
P117
P118
P119
P120
P121
P122
P123
P124
P125
P126
P127
P128
P129
P130
P131
P132
P133
P134
P135
P136
P137
P138
P139
P140
P141
P142
P143
P144
P145
P146
P147
P148
P149
P150
P151
P152
P153
P154
P155
P156
P157
P158
P159
P160
P161
P162
P163
P164
P165
P166
P167
P168
P169
P170
P171
P172
P173
P174
P175
P176
P177
P178
P179
P180
P181
P182
P183
P184
P185
P186
P187
P188
P189
P190
P191
P192
P193
P194
P195
P196
P197
P198
P199
P200
P201
P202
P203
P204
P205
P206
P207
P208
P209
P210
P211
P212
P213
P214
P215
P216
P217
P218
P219
P220
P221
P222
P223
P224
P225
P226
P227
P228
P229
P230
P231
P232
P233
P234
P235
P236
P237
P238
P239
P240
P241
P242
P243
P244
P245
P246
P247
P248
P249
P250
P251
P252
P253
P254
P255
P256
P257
P258
P259
P260
P261
P262
P263
P264
P265
P266
P267
P268
P269
P270
P271
P272
P273
P274
P275
P276
P277
P278
P279
P280
P281
P282
P283
P284
P285
P286
P287
P288
P289
P290
P291
P292
P293
P294
P295
P296
P297
P298
P299
P300
P301
P302
P303
P304
P305
P306
P307
P308
P354
P355
P356
P357
P358
P359
P360
P361
P362
P363
P364
P365
P366
P367
P368
P369
P370
P371
P372
P373
P374
P375
P376
P377
P378
P379
P380
P381
P382
P383
P384
P385
P386
P387
P388
P389
P390
P391
P392
P393
P394
P395
P396
P397
P398
P399
P400
P401
P402
P403
P404
P405
P406
P407
P408
P409
P410
P411
P412
P413
P414
P415
P416
P417
P418
P419
P420
P421
P422
P423
P424
P425
P426
P427
P428
P429
P430
P431
P432
P433
P434
P435
P436
P437
P438


A
A
A
A
21
39
1
9
S
E
W
NE
SW
SE
NW
SEC. .A -A SEC.A -A
E 231344.6567
N 2710276.3567
E 231426.5012
N 2710332.3069
E 231362.0135
N 2710347.9426
BASEMENT LIMITBASEMENT LIMIT
BASEMENT LIMIT
PLOT LIMIT
PLOT LIMIT
PLOT LIMIT
PLOT LIMIT
BASEMENT LIMIT
26°
   

TYPICAL
DETAIL -F
45°
45°
45°
45°
45°
45°
45°
45°
45°
45°
45°
45°
45°
45°
E 231425.720
N 2710329.150
E 231388.390
N 2710265.750
E 231415.230
N 2710286.850
E 231426.5012
N 2710332.3069
DETAIL -L
900 MMØ O.D. X 20MM
STEEL PIPE (HORZ. STRUT)
SEC.T - T
SEC.T - T
A2
A
3
A4
A5
A
6
A7
A8

A
A
A
A
A
A
A
A
A
A
A











10
11
12
13
14
15
16
17
18
19
20
A22
A23
A24
A25
A26
A27
A28
A29
A30
A31
A32
A33
A34
A35
A36
A37
A38

A
40
A
41
A
42
A
43
A
44
A
45
A
46
A
47
A
48
A
49
A
50
A
51
A
52
A
53
A
54
A
55
A
56
A
57
A
58
A
59
A
60
A
61
                     
SEC..G-G
SEC.G-G
TOE LEVEL
= -23.0m
TOE LEVEL
= -25.0m
SEC. .P-P
SEC. .P-P
SEC.Q-Q
SEC.Q-Q


   
M24 Bolt
Grade 8.8
14.4cm
14.4cm
14.4cm
14.4cm
20mm
20mm

M24 Bolt
Grade 8.8
14.4cm
14.4cm
14.4cm
14.4cm
20mm
20mm
120cm
120cm
120cm
120cm




CASE 1
FOR STRUT Ø100cm
CASE 2
FOR STRUT Ø90cm
Ø100cm
Ø90cm





900
M
M
Ø
O
.D
. X
20M
M
STEEL
PIPE
(H
O
RZ. STRU
T)
900
M
M
Ø
O
.D
. X
20M
M
STEEL
PIPE
(H
O
RZ. STRU
T)
1000
M
M
Ø
O
.D
. X
16M
M
STEEL
PIPE
(H
O
RZ. STRU
T)1000
M
M
Ø
O
.D
. X
16M
M
STEEL
PIPE
(H
O
RZ. STRU
T)
UC
(457 X191 X 98)
UC
(457 X191 X 98)














900
M
M
Ø
O
.D
.X
20M
M
STEEL
PIPE
(H
O
RZ.STRU
T)
900
M
M
Ø
O
.D
.X
20M
M
STEEL
PIPE
(H
O
RZ.STRU
T)
1000
M
M
Ø
O
.D
.X
16M
M
STEEL
PIPE
(H
O
RZ.STRU
T)
1000
M
M
Ø
O
.D
.X
16M
M
STEEL
PIPE
(H
O
RZ.STRU
T)
UC
(457 X191 X 98)
UC
(457 X191 X 98)














TYPICAL DETAIL -F
TYPICAL
DETAIL -F Drawing No.
Submission Date
Project ID
Official Use Only
Revision No.
Scale
Plan ID
Drawing Title
General Notes
01
20-MAY-2014
REV. DATE DESCRIPTION
TEL: (02)5504222 P.O. BOX: 48181 FAX: (02)5504221
Piling Contractor
SHORING LAYOUT ,DETAILS & SECTIONS
Australian Piling
Technology
CP-484
PLOT.NO
W-5
Principal Consultant
PROJECT:
AREASECTOR JOB NO.
C-23 ABU DHABI
MAIN CONTRACTING
ARABIAN
CONSTRUCTION CO. (ACC)
Structural
Master developer
HVAC :
T: 02-6767976
F: 02-6767990
Po Box 127489
Abu Dhabi, UAE
www.implement-ae.com
T: 02-6767976
F: 02-6767990
Po Box 127489
Abu Dhabi, UAE
www.implement-ae.com
62
PILE
LEGEND
DIM
(mm)
No.Of
Piles
Anchor
Type
F.cu
(N/mm²)
TOE
LEVEL
(m)
800
-20.00
50
No.of
Anchor
800 2061
A
PILE
TYPE
HARD
SOFT
23800
800 23
HARD
SOFT
31
800
800
31
HARD
SOFT
-23.00
B
TOTAL :SHORING IN THIS DRAWING P438P1-P438
60
20
D 62
34
61
00 20-MAY-2014
50
20SOFT
HARD 800
800
60
60
-21.00
3 Basements + Ground + Mezzanine
+ 35 Typical Floors + Roof
42675
43
800
800
44
HARD
SOFT
60
20
50
20
-25.00
-23.00
PERIMETER: 266 m
01
CONNECTION DETAILS FOR STRUT

many projects shoring

  • 1.
    SECTION X-X 900Ø STIRRUPS T10@ 250 mm 4 T 10 200200 940 -1.50 m X GUIDE WALL 200 200 940  X   28Ø25mm length 40cm thick 14mm thick 20mm length 40cmX15cm thick 20mm length 40cmX5cm thick 20mm Ø   151515 105 5 10 44 5 15 15 15 15 15 15 15 15 15 15 10 15 15 15 15 15 15 15 15 15 15 15 15 15 10 Ø900mm LEVEL- 0.00m CAPPING BEAM -1.50 m  VERTICAL SECTION A-A + TOE LEVEL -19.50 m EXCAVATION LEVEL -13.60m  12.0m 24T25 INSIDEOUTSIDE     24T25 MAIN STEEL T10 @150 SPIRALS CROSS SECTION A1 Retaining Wall 6.0m 12T25 A1 Concrete WALLER BEAM 1100 x 1100 mm 4 T32 L= 0.4m MAIN SECANT PILE SECONDARY SECANTPILE   INSIDE OUTSIDE DETAIL (L)  4 T32 L= 0.4m 4 T32 L= 0.4m 4 T32 L= 0.4m THICKENSAS-PER THE PLAN Ø O.D. X 16MM STEEL PIPE (HORZ. STRUT) WITH 1.2 X 1.1 X 20MM THK. PLATE BOLTED TO WALER BEAM SECANT PILE. 4T32 STEEL BAR PER PILE TOP & BOTTOM WEDL @ EACH R.C. PILE EPOXY GROUT SECTION K"(WAILER BEAM )  15mm WELD ALL AROUND THE STELL PLATE & STEEL PIPE R.C Waller Beam 1100 x 1100mm 12 Bolts T32mm (600mm) 34T25mm 6T25 mm   10@150mm 6T25 mm SECTION-K" THICKENS900mm Ø O.D. X 16MM STEEL PIPE (HORZ. STRUT) WITH 1.1 X 1.2 X 25MM THK. PLATE BOLTED TO WALER BEAM SIZE OF WELDS = 20mm LEVEL OF STRUT -6.00m 600 4T16 mm 2T16 mm 900 Secant Pile CAPPING BEAM (l.e.v: -1.50) 2T16 mm  BASEMENTLIMIT 1200mm 1100mm 1100mm x 1100mm Wailer Beam 12T25 Tension Bars 27 T25 Cross Concrete Corbel PLAN DETAIL OF CORBEL WITH ONE STRUT (DETAIL - E) TOP VIEW 900mmO.D. X AS PER PLAN STEEL PIPE (HORZ. STRUT) WITH 1.2m X 1.1m WITH THK 20 mm. PLATE BOLTED TO WALER BEAM   1200mm 1100mm 1100mm x 1100mm Wailer Beam 12T25 Tension Bars 27 T25 Cross PLAN DETAIL OF CORBEL WITH TWO STRUT (DETAIL - F) TOP VIEW  1200mm   Concrete Corbel 900mmO.D. X AS PER PLAN STEEL PIPE (HORZ. STRUT) WITH 1.2m X 1.1m WITH THK 20 mm. PLATE BOLTED TO WALER BEAM L= -13.50m L= -12.0m L= -8.0m 6.0m 12T25 L= -18.0m 6.0m 12T25 12.0m 6.0m 6.0m -8.0m -12m -13.5m -14m -18 m - 0.0m+ - 1.5m - 2.1m -19.50 m - 6.0m L= -13.5m L= -14.0m    60T25 MAIN STEEL T10 @150 SPIRALS CROSS SECTION A2 A2 KEY PLAN: Drawing No. Submission Date Project ID Official Use Only Revision No. Scale Plan ID Drawing Title NORTH DIRECTION 01 08-MAR-2014 REV. DATE DESCRIPTION TEL: (02)5504222 P.O. BOX: 48181 FAX: (02)5504221 Piling Contractor SHORING LAYOUT ,DETAILS &SECTIONS Australian Piling Technology CP-493 SHORING PLOT.NO E 20-01 Consultant PROJECT: AREASECTOR JOB NO. C-76 ABU DHABI MAIN CONTRACTING 88 PILE LEGEND DIM (mm) No.Of Piles Anchor Type F.cu (N/mm²) TOE LEVEL (m) 900 -19.50 40 No.of Anchor 900 2088 PILE TYPE HARD SOFT TOTAL :SHORING IN THIS DRAWING 1761-176 01 15-APR-2014 COMMERCIAL BUILDING CLIENT MRS .SHIRINA MATTAR BINT RASHID AL-MANSOURY (3B + G + M + 4 +P+ ROOF FLOOR) Kojakian Eng'g Consultants 45786 PLOT NO:- C-67 (E20-01) SH3 DETAILS&SECTIONS
  • 2.
    EXC.LVL=( -15.30m ) 3985cm 2440cm 753cm 528cm528cm528cm 55° 753cm753cm 753cm 753cm 528cm106cm 753cm 753cm 753cm 753cm 753cm 528cm528cm528cm528cm 106cm 55° 35° 55° 55° 35°35° 35° 55° 55° 35° 55° 55° 35°35° 35° 1712cm 792cm 1712cm 792cm 1712cm 792cm 1712cm 792cm 3985cm 2440cm EXC.LVL=( -13.60m ) 1 2 3 4 5 6 7 8 9 10 11 12 13 14 15 16 17 18 19 20 21 22 23 24 25 26 27 28 29 30 31 32 33 34 35 36 37 38 39 40 41 42 43 44 45 46 47 48 49 50 51 52 53 54 55 56 57 58 59 60 61 62 63 64 65 66 67 68 69 70 71 72 73 74 75 76 77 78 79 80 81 82 83 84 85 86 87 88 89 90 91 92 93 94 95 96 97 98 99 100 101 102 103 104 105 106 107 108 109 110 111 112 113 114 115 116 117 118 119 120 121 122 123 124 125 126 127 128 129 130 131 132 133 134 135 136 137 138 139 140 141 142 143 144 145 146 147 148 149 150 151 152 153 154 155 156 157 158 159 160 161 162 163 164 165 166 167 168 169 170 171 172 173 174 175 176 4165cm 2620cm 10cm10cm 10cm 10cm PLOT LIMIT N=0.0 ,E=0.0                                    P LOT LIMI T P LOT LIMI TP LOT LIMI TP LOT L IMI T      KEY PLAN: Drawing No. Submission Date Project ID Official Use Only Revision No. Scale Plan ID Drawing Title NORTH DIRECTION 01 08-MAR-2014 REV. DATE DESCRIPTION TEL: (02)5504222 P.O. BOX: 48181 FAX: (02)5504221 Piling Contractor SHORING LAYOUT ,DETAILS &SECTIONS Australian Piling Technology CP-493 SHORING PLOT.NO E 20-01 Consultant PROJECT: AREASECTOR JOB NO. C-76 ABU DHABI MAIN CONTRACTING 88 PILE LEGEND DIM (mm) No.Of Piles Anchor Type F.cu (N/mm²) TOE LEVEL (m) 900 -19.50 40 No.of Anchor 900 2088 PILE TYPE HARD SOFT TOTAL :SHORING IN THIS DRAWING 1761-176 01 15-APR-2014 COMMERCIAL BUILDING CLIENT MRS .SHIRINA MATTAR BINT RASHID AL-MANSOURY (3B + G + M + 4 +P+ ROOF FLOOR) Kojakian Eng'g Consultants 45786 PLOT NO:- C-67 (E20-01) SH2 SITE PLAN
  • 3.
    SEC .A-A SEC .A-A EXC.LVL=( -15.30m ) 3985cm 2440cm 753cm 528cm528cm528cm 55° 753cm753cm 753cm 753cm 528cm106cm 753cm 753cm 753cm 753cm 753cm 528cm528cm528cm528cm 106cm 55° 35° 55° 55° 35°35° 35° 55° 55° 35° 55° 55° 35°35° 35° 1712cm 792cm 1712cm 792cm 1712cm 792cm 1712cm 792cm 3985cm 2440cm EXC.LVL=( -13.60m ) 1 2 3 4 5 6 7 8 9 10 11 12 13 14 15 16 17 18 19 20 21 22 23 24 25 26 27 28 29 30 31 32 33 34 35 36 37 38 39 40 41 42 43 44 45 46 47 48 49 50 51 52 53 54 55 56 57 58 59 60 61 62 63 64 65 66 67 68 69 70 71 72 73 74 75 76 77 78 79 80 81 82 83 84 85 86 87 88 89 90 91 92 93 94 95 96 97 98 99 100 101 102 103 104 105 106 107 108 109 110 111 112 113 114 115 116 117 118 119 120 121 122 123 124 125 126 127 128 129 130 131 132 133 134 135 136 137 138 139 140 141 142 143 144 145 146 147 148 149 150 151 152 153 154 155 156 157 158 159 160 161 162 163 164 165 166 167 168 169 170 171 172 173 174 175 176 4165cm 2620cm 10cm10cm 10cm 10cm DETAIL -L DETAIL -E DETAIL -F KEY PLAN: Drawing No. Submission Date Project ID Official Use Only Revision No. Scale Plan ID Drawing Title NORTH DIRECTION 01 08-MAR-2014 REV. DATE DESCRIPTION TEL: (02)5504222 P.O. BOX: 48181 FAX: (02)5504221 Piling Contractor SHORING LAYOUT ,DETAILS &SECTIONS Australian Piling Technology CP-493 SHORING PLOT.NO E 20-01 Consultant PROJECT: AREASECTOR JOB NO. C-76 ABU DHABI MAIN CONTRACTING 88 PILE LEGEND DIM (mm) No.Of Piles Anchor Type F.cu (N/mm²) TOE LEVEL (m) 900 -19.50 40 No.of Anchor 900 2088 PILE TYPE HARD SOFT TOTAL :SHORING IN THIS DRAWING 1761-176 01 15-APR-2014 COMMERCIAL BUILDING CLIENT MRS .SHIRINA MATTAR BINT RASHID AL-MANSOURY (3B + G + M + 4 +P+ ROOF FLOOR) Kojakian Eng'g Consultants 45786 PLOT NO:- C-67 (E20-01) SH1 SECANT PILES WITH STRUT
  • 4.
    SECTION X-X 750 STIRRUPS T10@ 250 mm 4 T 10 200200 770 X GUIDE WALL 200 200 770  X MAIN SECANT PILE (HARD) SECONDARY SECANT PILE (SOFT)   OUTSIDE HORIZONTAL SCHEME OF SEC.(N-N)  (Detail - A1) 750mm dia. SEC. PILES 12T25Ø/ T10-200mm c/c 0.00 5.00 10.00 Length(m) 1 2 3 4 6 7 8 9 11 12 13 14 11.00m A1 12T25/11.00m EL. -1.00 GWT EL. -8.00 Max. Exca. Level EL. -13.00 Pile Toe Level 8.00 SECANT PILES Main Reinforcement and Lateral Stirrups (spiral type) s s (s = 200mm c/c) Covering = 75mm CAPING/WAILER BEAM EL. + 0.00_ GRD. LVL. 203x102x23kg/m KING POSTS @ 1.50m c/c A1 A1 Fcu = 40N/mm2 Fy = 460N/mm2 750mm Ø Earth SideExcavation Side -1.50 900mm 1200mm 750mm 750mm x 1000mm Capping Beam 12T25 Tension Bars 11 T25 Cross Tie Bars Concrete Corbel PLAN 750mm x 1000mm Capping / Waler Beam 7T25 Tension Bars 11 T25 Cross Tie Bars Concrete Corbel ISOMETRIC VIEW DETAIL OF CORBEL 900mm dia. Strut Pipe / thk = 16mm 1000mm x 1200mm Steel Plate/thk=20mm 900mm Ø O.D. X 16mm STEEL PIPE (HORZ. STRUT) WITH 1.1 X 1.0 X 25mmTHK. PLATE BOLTED TO WALER BEAM SIZE OF WELDS = 20mm LEVEL OF STRUT -2.00m  24T25 mm 2T20 mm  Secant Pile CAPPING BEAM / WALLER BEAM (l.e.v: -1.50m) 2T20 mm SECTION A-A EL. -10.00 Max. Exca. Level EL. -14.00 Pile Toe Level 10.00 750mm Ø SECANT PILES Main Reinforcement and Lateral Stirrups (spiral type) s s (s = 150mm c/c) Covering = 75mm B1 B1 (Detail - B1) 750mm dia. SEC. PILES 16T25Ø/ T10-150mm c/c 0.00 5.00 10.00 Length(m) 1 2 3 4 6 7 8 9 11 12 13 14 12.0m B1 16T25/12.00m FOR CAR LIFT AREA Fcu = 40N/mm2 Fy = 460N/mm2 1.50m SECTION B-B CAPING/WAILER BEAM EL. + 0.00_ GRD. LVL. 203x102x23kg/m KING POSTS @ 1.50m c/c -1.50 900mm Ø O.D. X 16mm STEEL PIPE (HORZ. STRUT) WITH 1.1 X 1.0 X 25mmTHK. PLATE BOLTED TO WALER BEAM SIZE OF WELDS = 20mm LEVEL OF STRUT -2.00m KEY PLAN: Drawing No. Submission Date Project ID Official Use Only Revision No. Scale Plan ID Drawing Title General Notes 00 11-01-2015 CONSULTANT: OWNER: PROJECT: REV. DATE DESCRIPTION AREASECTOR JOB NO.PLOT.NO MAIN CONTRACTING TEL: (02)5504222 P.O. BOX: 48181 FAX: (02)5504221 Piling Contractor SHORING LAYOUT Australian Piling Technology C9 E18-03 ABU DHABI CP-513  59846  PILE LEGEND DIM (mm) No. Of S.Piles F.cu(N /mm² ) TOE LEVEL      PILE TYPE   TOTAL :SHORING IN THIS DRAWING        EXCAVATION LEVEL   1098291 SH-01
  • 5.
    1 2 34 5 6 A B C D  24.40m(PLOT LIMIT ) 26.40m(BASEMENT LIMIT)  15.20m (PLOT LIMIT )  19.20m (BASEMENT LIMIT) BASEMENT EXTENSION BASEMENT EXTENSION BASEMENT EXTENSION PLOT LIMIT BASEMENT EXTENSION  PLOT LIMIT PLOT LIMIT PLOT LIMIT EL. -8.00m Max. Exca. Level P1 P2 P3 P4 P5 P6 P7 P8 P9 P10 P11 P12 P13 P14 P15 P16 P17 P18 P19 P20 P21 P22 P23 P24 P25 P26 P27 P28 P29 P30 P31 P32 P33 P34 P35 P36 P37 P38 P39 P40 P41 P42 P43 P44 P45 P46 P47 P48 P49 P50 P51 P52 P53 P54 P55 P56 P57 P58 P59 P60 P61 P62 P63 P64 P65 P66 P67 P68 P69 P70 P71 P72 P73 P74 P75 P76 P77 P78 P79 P80 P81 P82 P83 P84 P85 P86 P87 P88 P89 P90 P91 P92 P93 P94 P95 P96 P97 P98 P99 P100 P101 P102 P103 P104 P105 P106 P107 P108 P109 P110 P111 P112 P113 P114 P115 P116 P117 P118 P119 P120 P121 P122 P123 P124 P125 P126 P127 P128 P129 P130 P131 P132 P133 P134 P135 P136 P137 P138 P139 P140 P141 P142 P143 P144 P145 P146 EL. -10.00m Max. Exca. Level KEY PLAN: Drawing No. Submission Date Project ID Official Use Only Revision No. Scale Plan ID Drawing Title General Notes 00 11-01-2015 CONSULTANT: OWNER: PROJECT: REV. DATE DESCRIPTION AREASECTOR JOB NO.PLOT.NO MAIN CONTRACTING TEL: (02)5504222 P.O. BOX: 48181 FAX: (02)5504221 Piling Contractor SHORING LAYOUT Australian Piling Technology C9 E18-03 ABU DHABI CP-513  59846  PILE LEGEND DIM (mm) No. Of S.Piles F.cu(N /mm² ) TOE LEVEL      PILE TYPE   TOTAL :SHORING IN THIS DRAWING        EXCAVATION LEVEL   1098291 SH-03 SITE PLAN S E W NE SW SE NW
  • 6.
    EL. -8.00m Max.Exca. Level P1 P2 P3 P4 P5 P6 P7 P8 P9 P10 P11 P12 P13 P14 P15 P16 P17 P18 P19 P20 P21 P22 P23 P24 P25 P26 P27 P28 P29 P30 P31 P32 P33 P34 P35 P36 P37 P38 P39 P40 P41 P42 P43 P44 P45 P46 P47 P48 P49 P50 P51 P52 P53 P54 P55 P56 P57 P58 P59 P60 P61 P62 P63 P64 P65 P66 P67 P68 P69 P70 P71 P72 P73 P74 P75 P76 P77 P78 P79 P80 P81 P82 P83 P84 P85 P86 P87 P88 P89 P90 P91 P92 P93 P94 P95 P96 P97 P98 P99 P100 P101 P102 P103 P104 P105 P106 P107 P108 P109 P110 P111 P112 P113 P114 P115 P116 P117 P118 P119 P120 P121 P122 P123 P124 P125 P126 P127 P128 P129 P130 P131 P132 P133 P134 P135 P136 P137 P138 P139 P140 P141 P142 P143 P144 P145 P146 EL. -10.00m Max. Exca. Level 8.30m 8.30m 8.85m 8.85m 8.30m 8.30m 10.54m 45°m 45°m 10.54m 45°m 45°m 900 m m Ø O .D .X 16m m STEEL PIPE (H O RZ.STRU T) 900 m m Ø O.D.X 16m m STEEL PIPE (HORZ.STRUT) 8.30m 8.85m 8.85m 8.30m 10.54m 45°m 45°m 10.54m 45°m 45°m 900 m m Ø O.D.X 16m m STEEL PIPE (HORZ.STRUT) 900 m m Ø O .D .X 16m m STEEL PIPE (H O RZ.STRU T) 26.40m(BASEMENT LIMIT) 19.20m (BASEMENT LIMIT) Section (N-N) BB AA A A BB KEY PLAN: Drawing No. Submission Date Project ID Official Use Only Revision No. Scale Plan ID Drawing Title General Notes 00 11-01-2015 CONSULTANT: OWNER: PROJECT: REV. DATE DESCRIPTION AREASECTOR JOB NO.PLOT.NO MAIN CONTRACTING TEL: (02)5504222 P.O. BOX: 48181 FAX: (02)5504221 Piling Contractor SHORING LAYOUT Australian Piling Technology C9 E18-03 ABU DHABI CP-513  59846  PILE LEGEND DIM (mm) No. Of S.Piles F.cu(N /mm² ) TOE LEVEL      PILE TYPE   TOTAL :SHORING IN THIS DRAWING        EXCAVATION LEVEL   1098291 SH-02 S E W NE SW SE NW
  • 7.
                SEC. .A-A SEC..A-A EXC.LVL=(-11.50m) EXC.LVL=(-10.00m) EXC.LVL=(-10.00m) SEC.N-N SEC.N-N SEC.B-B SEC.B-B DETAIL -E 1 2 3 4 5 6 7 8 9 10 11 12 13 14 15 16 17 18 19 20 21 22 23 24 25 26 27 28 29 30 31 32 33 34 35 36 37 38 39 40 41 42 43 44 45 46 47 48 49 50 51 52 53 54 55 56 57 58 59 60 61 62 63 64 65 66 67 68 69 70 71 72 73 74 75 76 77 78 79 80 81 82 83 84 85 86 87 88 89 9091 92 93 94 95 96 97 98 99 100 101 102 103 104 105 106 107 108 109 110 111 112 113 114 115 116 117 118 119 120 121 122 123 124 125 126 127 128 129 130 131 132 133 134 135 136 137 138 139 140 141 142 143 144 145 146 147 148 149 150 151 152 153 154 155 156 157 158 159 160 161 162 163 164 165 166 167 168 169 170 171 172 173 174 175 176 177 178 179 180 DETAIL -L NEW SEC.K-K NEW SEC.K-K NEW SEC M-M NEW SEC M-M KEY PLAN: Drawing No. Submission Date Project ID Official Use Only Revision No. Scale Plan ID Drawing Title General Notes 00 08-FEB-2014 TEL: (02)5504222 P.O. BOX: 48181 FAX: (02)5504221 Piling Contractor SHORING LAYOUT ,DETAILS & SECTIONS Australian Piling Technology 78 PILE LEGEND DIM (mm) No.Of Piles Anchor Type F.cu (N/mm²) TOE LEVEL (m) 750 -14.00 40 No.of Anchor 750 2079 PILE TYPE HARD SOFT 10750 750 10 HARD SOFT -16.50 TOTAL :SHORING IN THIS DRAWING 1801-180 40 20 CONSULTANT: OWNER: PROJECT: REV. DATE DESCRIPTION AREASECTOR JOB NO.PLOT.NO MAIN CONTRACTING CP-490 (SHORING)ME-11 M.B.Z.CITYC175 COMMERCIAL DEVELOPMENT HASHIM CONTRACTING & GEN. MAINT. M/S ABDULLAH & MATAR MOHAMED MURAD MOHAMED AL BALOUSHI& HEIRS OF SALEM MOHAMED MURAD AL BALOUSH (SAIF ,SALMA ,MOHAMMED ,HASA ,AND SAEED& ) HIS WIDOW WADEHA GHASAB SAEED AL AMERI, 08-FEB-2014 36726 820665 2750 40HARD 1750 40HARD -14.00 SH1 First Layer of Strut
  • 8.
    SECTION X-X 750 STIRRUPS T10@ 250 mm 4 T 10 200200 790 -1.00 m X GUIDE WALL 200 200 790  X 32Ø25mm length 40cm thick 16mm thick 20mm length 40cmX15cm thick 20mm length 40cmX5cm thick 20mm Ø   131313 55 5 5 5 13 13 13 13 13 13 13 13 13 13 13   Ø90cm 13 8 513 13 13 13 13 13 13 13 10 LEVEL- 0.00m CAPPING BEAM -1.00 m  VERTICAL SECTIONA-A + TOE LEVEL -16.50 m EXCAVATION LEVEL -11.50m  5.00m 22T25 INSIDE OUTSIDE     22T25 MAIN STEEL T10 @150 SPIRALS CROSS SECTION A1 Retaining Wall 12.0m 22T25  A1 MAIN SECANT PILE SECONDARY SECANT PILE   INSIDE OUTSIDE DETAIL (L)  Concrete WALLER BEAM 1100 x 1100 mm 4 T25 L= 0.4m4 T25 L= 0.4m4 T25 L= 0.4m4 T25 L= 0.4m LEVEL- 0.00m CAPPING BEAM -1.00 m  VERTICAL SECTION (K-K)  + TOE LEVEL -14.00 m EXCAVATION LEVEL -10.00 m  12.0m 11T 25 INSIDE OUTSIDE    22T25 MAIN STEEL T10 @150 SPIRALS CROSS SECTION K1 SECTION-K" 900mmØ O.D. X 16MM STEEL PIPE (HORZ. STRUT) WITH 1.1 X 1.2 X 25MM THK. PLATE BOLTED TO WALER BEAM SIZE OF WELDS = 20mm LEVEL OF STRUT -3.50m Retaining Wall 900mmØ O.D. X 16MM STEEL PIPE (HORZ. STRUT) WITH 1.2 X 1.1 X 20MM THK. PLATE BOLTED TO WALER BEAM SECANT PILE. 4T32 STEEL BAR PER PILE TOP & BOTTOM WEDL @ EACH R.C. PILE EPOXY GROUT SECTION K"(WAILER BEAM )  15mm WELD ALL AROUND THE STELL PLATE & STEEL PIPE R.C Waller Beam 1100 x 1100mm 12 Bolts T32mm (600mm) 24T25mm 4T16 mm   10@150mm 4T16 mm 12.0m K1  SECTION-K" 900mmØ O.D. X 16MM STEEL PIPE (HORZ. STRUT) WITH 1.1 X 1.2 X 25MM THK. PLATE BOLTED TO WALER BEAM SIZE OF WELDS = 20mm LEVEL OF STRUT -3.50m BASEMENTLIMIT 11T 25 400 4T16 mm 2T16 mm 750 Secant Pile CAPPING BEAM (l.e.v: -1.00) 2T16 mm  BASEMENTLIMIT LEVEL- 0.00m CAPPING BEAM -1.00 m  VERTICAL SECTION (B-B)  + TOE LEVEL -14.00 m EXCAVATION LEVEL -10.00 m  12.0m 7T 25 INSIDE OUTSIDE    14T25 MAIN STEEL T10 @150 SPIRALS CROSS SECTION B1 SECTION-K" 900mmØ O.D. X 16MM STEEL PIPE (HORZ. STRUT) WITH 1.1 X 1.2 X 25MM THK. PLATE BOLTED TO WALER BEAM SIZE OF WELDS = 20mm LEVEL OF STRUT -3.50m Retaining Wall 12.0m B1  BASEMENTLIMIT 7T 25 1200mm 1100mm 1100mm x 1100mm Wailer Beam 12T25 Tension Bars 27 T25 Cross Concrete Corbel PLAN DETAIL OF CORBEL(1) FOR LAYER STRUT(1) (DETAIL - E) TOP VIEW 900mmO.D. X AS PER PLAN STEEL PIPE (HORZ. STRUT) WITH 1.2m X 1.1m WITH THK 20 mm. PLATE BOLTED TO WALER BEAM   LEVEL- 0.00m CAPPING BEAM -1.00 m  VERTICAL SECTION (M-M)  + TOE LEVEL -14.00 m EXCAVATION LEVEL -10.00 m  12.0m 7T 25 INSIDEOUTSIDE    14T25 MAIN STEEL T10 @150 SPIRALS CROSS SECTION M1 SECTION-K" 900mmØ O.D. X 16MM STEEL PIPE (HORZ. STRUT) WITH 1.1 X 1.2 X 25MM THK. PLATE BOLTED TO WALER BEAM SIZE OF WELDS = 20mm LEVEL OF STRUT -3.50m Retaining Wall 12.0m M1  BASEMENTLIMIT 7T 25 KEY PLAN: Drawing No. Submission Date Project ID Official Use Only Revision No. Scale Plan ID Drawing Title General Notes 00 08-FEB-2014 TEL: (02)5504222 P.O. BOX: 48181 FAX: (02)5504221 Piling Contractor SHORING LAYOUT ,DETAILS & SECTIONS Australian Piling Technology 78 PILE LEGEND DIM (mm) No.Of Piles Anchor Type F.cu (N/mm²) TOE LEVEL (m) 750 -14.00 40 No.of Anchor 750 2079 PILE TYPE HARD SOFT 10750 750 10 HARD SOFT -16.50 TOTAL :SHORING IN THIS DRAWING 1801-180 40 20 CONSULTANT: OWNER: PROJECT: REV. DATE DESCRIPTION AREASECTOR JOB NO.PLOT.NO MAIN CONTRACTING CP-490 (SHORING)ME-11 M.B.Z.CITYC175 COMMERCIAL DEVELOPMENT HASHIM CONTRACTING & GEN. MAINT. M/S ABDULLAH & MATAR MOHAMED MURAD MOHAMED AL BALOUSHI& HEIRS OF SALEM MOHAMED MURAD AL BALOUSH (SAIF ,SALMA ,MOHAMMED ,HASA ,AND SAEED& ) HIS WIDOW WADEHA GHASAB SAEED AL AMERI, 08-FEB-2014 36726 820665 2750 40HARD 1750 40HARD -14.00 SH2 DETAILS&SECTIONS
  • 9.
    SECTION X-X 900 STIRRUPS T10@ 250 mm 4 T 10 200200 940 X GUIDE WALL 200 200 940  X LEVEL- 0.00m CAPPING BEAM -2.00 m  VERTICAL SECTIONA-A + TOE LEVEL -23.00 m EXCAVATION LEVEL -16.00m  12.00m 23T32 INSIDE OUTSIDE     23T32 MAIN STEEL T10 @150 SPIRALS CROSS SECTION A1 Retaining Wall 12.00m 23T32  A1 MAIN SECANT PILE SECONDARY SECANT PILE   INSIDE OUTSIDE DETAIL (L)  HSHHH SS S LEVEL- 0.00m CAPPING BEAM -2.00 m  VERTICAL SECTION (K-K) + TOE LEVEL -17.00 m EXCAVATION LEVEL -12.60 m  5.0m 16T25 INSIDE OUTSIDE    16T25 MAIN STEEL T10 @150 SPIRALS CROSS SECTION K1 SECTION-K" 900mm Ø O.D. X 16mm STEEL PIPE (HORZ. STRUT) WITH 1.1 X 1.2 X 25MM THK. PLATE BOLTED TO WALER BEAM SIZE OF WELDS = 20mm LEVEL OF STRUT -6.00m Retaining Wall 900mmØ O.D. X 16mmSTEEL PIPE (HORZ. STRUT) WITH 1.2 X 1.1 X 20MM THK. PLATE BOLTED TO WALER BEAM SECANT PILE. 4T32 STEEL BAR PER PILE TOP & BOTTOM WEDL @ EACH R.C. PILE EPOXY GROUT SECTION K"(WAILER BEAM )  15mm WELD ALL AROUND THE STELL PLATE & STEEL PIPE R.C Waller Beam 1000 x 1000mm 12 Bolts T32mm (600mm) 18T25mm 4T16 mm   10@150mm 4T16 mm 12.0m K1  SECTION-K" 900mm Ø O.D. X 16mm STEEL PIPE (HORZ. STRUT) WITH 1.1 X 1.2 X 25MM THK. PLATE BOLTED TO WALER BEAM SIZE OF WELDS = 20mm LEVEL OF STRUT -6.00m BASEMENTLIMIT 16T25 60cm 12T20 mm 2T20 mm 90 cm Secant Pile CAPPING BEAM (l.e.v: -2.00) 2T20 mm BASEMENTLIMIT LEVEL - 0.00m CAPPING BEAM -2.00 m  VERTICAL SECTION (B-B) + TOE LEVEL -19.50 m EXCAVATION LEVEL -14.00 m  7.0m 19T25 INSIDE OUTSIDE    19T25 MAIN STEEL T10 @150 SPIRALS CROSS SECTION B1 SECTION-K" 900mm Ø O.D. X 16mm STEEL PIPE (HORZ. STRUT) WITH 1.1 X 1.2 X 25MM THK. PLATE BOLTED TO WALER BEAM SIZE OF WELDS = 20mm LEVEL OF STRUT -6.00m Retaining Wall 12.0m B1  BASEMENTLIMIT 19T25 1200mm 1000mm 1000mm x 1000mm Wailer Beam 9T25 Tension Bars 17 T25 Cross Concrete Corbel PLAN DETAIL OF CORBEL(1) (DETAIL - E) TOP VIEW 900mmO.D. X AS PER PLAN STEEL PIPE (HORZ. STRUT) WITH 1.2m X 1.1m WITH THK 20 mm. PLATE BOLTED TO WALER BEAM          SHORT STRUT Ø90cm CONFECTION 25Ø32mm length 40cm thick 16mm thick 20mm length 40cmX15cm thick 20mm length 40cmX5cm thick 20mm Ø    18Ø32mm length 40cm thick 16mm thick 20mm length 40cmX15cm thick 20mm length 40cmX5cm thick 20mm Ø LONG STRUT Ø90cm CONFECTION  1200mm 1000mm 1000mm x 1000mm Wailer Beam 9T25 Tension Bars 24 T25 Cross Concrete Corbel PLAN DETAIL OF CORBEL(2) (DETAIL - M) TOP VIEW 900mmO.D. X AS PER PLAN STEEL PIPE (HORZ. STRUT) WITH 1.2m X 1.1m WITH THK 20 mm. PLATE BOLTED TO WALER BEAM   Drawing No. Submission Date Project ID Official Use Only Revision No. Scale Plan ID Drawing Title General Notes 02 20-AUG-2014 REV. DATE DESCRIPTION TEL: (02)5504222 P.O. BOX: 48181 FAX: (02)5504221 Piling Contractor SHORING LAYOUT ,DETAILS &SECTIONS Australian Piling Technology CP-505 PLOT.NO E-14 CONSULTANT : PROJECT: AREASECTOR JOB NO. C-37 ABU DHABI MAIN CONTRACTING HASHIM CONTRACTING & GEN. MAINT. OWNER NAME 34 PILE LEGEND DIM (mm) No.Of Piles F.cu (N/mm²) TOE LEVEL (m) 900 -23.00 45 900 2035 PILE TYPE HARD SOFT s H H S 20900 900 20 HARD SOFT 900 900 HARD SOFT -19.50 TOTAL :SHORING IN THIS DRAWING 1481-148 45 20 02 09-NOV-2014 20 19s H 45 20 -17.00 PERIMETER: 112 m Architects, Engineers, Planners & Interior Designers C O N S U L T A N T SE N G I N E E R I N G UNITED ARAB EMIRATES FAX TELEPHONE + 971 2 6762100 + 971 2 6762302 9th FLOOR AL KHAZNA TOWER P.O. Box 33937, ABU DHABI AL NAJDA STREET EMAIL: arkonsul@emirates.net.ae www.arkonsult.net INHERITORS OF MOHAMED BAKHEET MOHAMED BAKHEET AL MAZROUEI BAKHEET COMMERCIAL & RESIDENTIAL TOWER 3 BASEMENTS WITH 34 PARKING BAYS, GROUND FL. WITH RETAIL AREA, MEZZANINE FL. WITH OFFICES, 18 TYPICAL FLOORS 10093 923136 02 DETAILS&SECTIONS
  • 10.
    45°m6.56m 900 m m Ø O .D .X 16m m STEEL PIPE (H O RZ.STRU T) 14.47m 5.488m 5.812m 5.812m 5.488m 5.488m 5.488m 45°m 45°m 14.47m 900 m m Ø O .D .X 16m m STEEL PIPE (H O RZ.STRU T) 900 m m Ø O .D .X 16m m STEEL PIPE (H O RZ. STRU T) 45°m 45°m 6.56m 900 m m Ø O .D . X 16m m STEEL PIPE (H O RZ. STRU T) 5.488m 5.488m 5.488m 45°m 45°m 6.56m 900 m m Ø O.D.X 16m m STEEL PIPE (HORZ.STRUT) 14.47m 5.488m 5.812m 5.812m 5.488m 5.488m 45°m 45°m 14.47m 900 m m Ø O.D.X 16m m STEEL PIPE (HORZ.STRUT) 900 m m Ø O .D . X 16m m STEEL PIPE (H O RZ. STRU T) 45°m 6.56m 900 m m Ø O .D .X 16m m STEEL PIPE (H O RZ.STRU T) 5.488m 5.488m 5.488m 5.488m 45°m 45°m 45°m 45°m 45°m 45°m SEC.B-B SEC.B-B SEC.K-K SEC.K-K SEC. .A-A SEC. .A-A SEC.B-B SEC.B-B 26.40m Basement Limit 31.24m Basement Limit DETAIL -L TYPICAL S H S H S H S H S H S H S H S H S H S H S H S H S H S H S H S H S H S H S H S H S H S H S H S H S H S H S H S H S H S H S H S H S H S H S s H s H s H s H s H s H s Hs Hs Hs Hs Hs Hs Hs Hs Hs Hs Hs Hs Hs H sH sH sH sH sH sH sH sH sH sH sH sH sH s H s H s H s H s H H s H 1 2 3 4 5 6 7 8 9 10 11 12 13 14 15 16 17 18 19 20 21 22 23 24 25 26 27 28 29 30 31 32 33 34 35 36 37 38 39 40 41 42 43 44 45 46 47 48 49 50 51 52 53 54 55 56 57 58 59 60 61 62 63 64 65 66 67 68 69 70 71 72 73 74 75 76 77 78 79 80 81 82 83 84 85 86 87 88 89 90 91 92 93 94 95 96 97 98 99 100 101 102 103 104 105 106 107 108 109 110 111 112 113 114 115 116 117 118 119 120 121 122 123 124 125 126 127 128 129 130 131 132 133 134 135 136 137 138 139 140 141 142 143 144 145 146 147 148 1.00m Wailer Beam Wailer Beam WailerBeam WailerBeam SEC.G-G SEC.G-G SEC.T-T SEC.T-T DETAIL -M DETAIL -E SEC. .A-A SEC. .A-A Drawing No. Submission Date Project ID Official Use Only Revision No. Scale Plan ID Drawing Title General Notes 02 20-AUG-2014 REV. DATE DESCRIPTION TEL: (02)5504222 P.O. BOX: 48181 FAX: (02)5504221 Piling Contractor SHORING LAYOUT ,DETAILS &SECTIONS Australian Piling Technology CP-505 PLOT.NO E-14 CONSULTANT : PROJECT: AREASECTOR JOB NO. C-37 ABU DHABI MAIN CONTRACTING HASHIM CONTRACTING & GEN. MAINT. OWNER NAME 34 PILE LEGEND DIM (mm) No.Of Piles F.cu (N/mm²) TOE LEVEL (m) 900 -23.00 45 900 2035 PILE TYPE HARD SOFT s H H S 20900 900 20 HARD SOFT 900 900 HARD SOFT -19.50 TOTAL :SHORING IN THIS DRAWING 1481-148 45 20 02 09-NOV-2014 20 19s H 45 20 -17.00 PERIMETER: 112 m Architects, Engineers, Planners & Interior Designers C O N S U L T A N T SE N G I N E E R I N G UNITED ARAB EMIRATES FAX TELEPHONE + 971 2 6762100 + 971 2 6762302 9th FLOOR AL KHAZNA TOWER P.O. Box 33937, ABU DHABI AL NAJDA STREET EMAIL: arkonsul@emirates.net.ae www.arkonsult.net INHERITORS OF MOHAMED BAKHEET MOHAMED BAKHEET AL MAZROUEI BAKHEET COMMERCIAL & RESIDENTIAL TOWER 3 BASEMENTS WITH 34 PARKING BAYS, GROUND FL. WITH RETAIL AREA, MEZZANINE FL. WITH OFFICES, 18 TYPICAL FLOORS 10093 923136 01 SHORING SHOP DRAWING
  • 11.
    P1 P2 P3 P4 P5 P6 P7 P8 P10 P11 P12 P13 P14 P15 P16 P17 P18 P19 P20 P21 P22 P23 P24 P25 P26 P27 P28 P29 P30 P31 P32 P33 P34 P35 P36 P37 P38 P39 P40 P41 P42 P43 P44 P45 P46 P47 P48 P49 P50 P51 P52 P53 P54 P55 P56 P57 P58 P59 P60 P61 P62 P63 P64 P65 P66 P67 P68 P69 P70 P71 P72 P73 P74 P75 P76 P77 P78 P79 P80 P81 P82 P83 P84 P85 P86 P87 P88 P89 P90 P91 P92 P93 P94 P95 P96 P97 P98 P309 P310 P311 P312 P313 P314 P315 P316 P317 P318 P319 P320 P321 P322 P323 P324 P325 P326 P327 P328 P329 P330 P331 P332 P333 P334 P335 P336 P337 P338 P339 P340 P341 P342 P343 P344 P345 P346 P347 P348 P349 P350 P351 P352 P353 5cm 5cm 5cm 5cm 5cm 7366cm 4464cm 6642cm P9 P99 P100 P101 P102 P103 P104 P105 P106 P107 P108 P109 P110 P111 P112 P113 P114 P115 P116 P117 P118 P119 P120 P121 P122 P123 P124 P125 P126 P127 P128 P129 P130 P131 P132 P133 P134 P135 P136 P137 P138 P139 P140 P141 P142 P143 P144 P145 P146 P147 P148 P149 P150 P151 P152 P153 P154 P155 P156 P157 P158 P159 P160 P161 P162 P163 P164 P165 P166 P167 P168 P169 P170 P171 P172 P173 P174 P175 P176 P177 P178 P179 P180 P181 P182 P183 P184 P185 P186 P187 P188 P189 P190 P191 P192 P193 P194 P195 P196 P197 P198 P199 P200 P201 P202 P203 P204 P205 P206 P207 P208 P209 P210 P211 P212 P213 P214 P215 P216 P217 P218 P219 P220 P221 P222 P223 P224 P225 P226 P227 P228 P229 P230 P231 P232 P233 P234 P235 P236 P237 P238 P239 P240 P241 P242 P243 P244 P245 P246 P247 P248 P249 P250 P251 P252 P253 P254 P255 P256 P257 P258 P259 P260 P261 P262 P263 P264 P265 P266 P267 P268 P269 P270 P271 P272 P273 P274 P275 P276 P277 P278 P279 P280 P281 P282 P283 P284 P285 P286 P287 P288 P289 P290 P291 P292 P293 P294 P295 P296 P297 P298 P299 P300 P301 P302 P303 P304 P305 P306 P307 P308 P354 P355 P356 P357 P358 P359 P360 P361 P362 P363 P364 P365 P366 P367 P368 P369 P370 P371 P372 P373 P374 P375 P376 P377 P378 P379 P380 P381 P382 P383 P384 P385 P386 P387 P388 P389 P390 P391 P392 P393 P394 P395 P396 P397 P398 P399 P400 P401 P402 P403 P404 P405 P406 P407 P408 P409 P410 P411 P412 P413 P414 P415 P416 P417 P418 P419 P420 P421 P422 P423 P424 P425 P426 P427 P428 P429 P430 P431 P432 P433 P434 P435 P436 P437 P438 4685cm 3412cm A A A A 21 39 1 9 SEC..D-DSEC.D-D S E W NE SW SE NW SEC. .A -ASEC.A -A E 231344.6567 N 2710276.3567 E 231426.5012 N 2710332.3069 E 231362.0135 N 2710347.9426 BASEMENT LIMITBASEMENT LIMIT BASEMENT LIMIT PLOT LIMIT PLOT LIMIT PLOT LIMIT PLOT LIMIT BASEMENT LIMIT 89cm 1061cm 2051cm 2899cm 3748cm 900 M M Ø O .D .X 20M M STEEL PIPE (H O RZ.STRU T) 900 M M Ø O .D .X 20M M STEEL PIPE (H O RZ.STRU T) 1000 M M Ø O .D .X 16M M STEEL PIPE (H O RZ.STRU T) 1000 M M Ø O .D .X 16M M STEEL PIPE (H O RZ.STRU T) UC (457 X 191 X 98) UC (457 X 191 X 98) 26° 600cm 600cm 700cm 750cm 750cm700cm600cm600cm974cm600cm600cm700cm750cm SEC. .N -N SEC.N -N DETAIL -(L) TYPICAL DETAIL -F 45° 45° 45° 45° 45° 45° 45° 45° 45° 45° 45° 45° 45° 45° 45° 45° E 231425.720 N 2710329.150 E 231388.390 N 2710265.750 E 231415.230 N 2710286.850 E 231426.5012 N 2710332.3069 DETAIL -L 900 MMØ O.D. X 20MM STEEL PIPE (HORZ. STRUT) SEC. .D-D SEC.D-D SEC.T-TSEC.T-T A2 A3 A4 A5 A6 A7 A8 180cm180cm180cm180cm180cm180cm180cm A A A A A A A A A A A 180cm 180cm 180cm 180cm 180cm 180cm 180cm 180cm 180cm 180cm 180cm 10 11 12 13 14 15 16 17 18 19 20 A22 A23 A24 A25 A26 A27 A28 A29 A30 A31 A32 A33 A34 A35 A36 A37 A38 180cm180cm180cm180cm180cm180cm180cm180cm180cm180cm180cm180cm180cm180cm180cm180cm180cm A40 A41 A42 A43 A44 A45 A46 A47 A48 A49 A50 A51 A52 A53 A54 A55 A56 A57 A58 A59 A60 A61 180cm 180cm 180cm 180cm 180cm 180cm 180cm 180cm 180cm 180cm 180cm 180cm 180cm 180cm 180cm 180cm 180cm 180cm 180cm 180cm 180cm 180cm SEC..G-G SEC.G-G TOE LEVEL = -23.0m TOE LEVEL = -25.0m SEC..P-PSEC..P-P SEC.Q-Q SEC.Q-Q 600cm 600cm 1061cm 2051cm 2899cm 3748cm 900 M M Ø O .D . X 20M M STEEL PIPE (H O RZ. STRU T) 900 M M Ø O .D . X 20M M STEEL PIPE (H O RZ. STRU T) 1000 M M Ø O .D . X 16M M STEEL PIPE (H O RZ. STRU T) 1000 M M Ø O .D . X 16M M STEEL PIPE (H O RZ. STRU T) UC (457 X 191 X 98) UC (457 X 191 X 98) 600cm 600cm 700cm 750cm Drawing No. Submission Date Project ID Official Use Only Revision No. Scale Plan ID Drawing Title General Notes 01 09-DEC-2013 REV. DATE DESCRIPTION TEL: (02)5504222 P.O. BOX: 48181 FAX: (02)5504221 Piling Contractor SHORING LAYOUT ,DETAILS & SECTIONS Australian Piling Technology CP-484 PLOT.NO W-5 Principal Consultant PROJECT: AREASECTOR JOB NO. C-23 ABU DHABI MAIN CONTRACTING ARABIAN CONSTRUCTION CO. (ACC) Structural Master developer HVAC : T: 02-6767976 F: 02-6767990 Po Box 127489 Abu Dhabi, UAE www.implement-ae.com T: 02-6767976 F: 02-6767990 Po Box 127489 Abu Dhabi, UAE www.implement-ae.com 62 PILE LEGEND DIM (mm) No.Of Piles Anchor Type F.cu (N/mm²) TOE LEVEL (m) 800 -20.00 50 No.of Anchor 800 2061 A PILE TYPE HARD SOFT 23800 800 23 HARD SOFT 31 800 800 31 HARD SOFT -23.00 B TOTAL :SHORING IN THIS DRAWING P438P1-P438 60 20 D 62 34 61 00 28-DEC-2013 50 20SOFT HARD 800 800 60 60 -21.00 3 Basements + Ground + Mezzanine + 35 Typical Floors + Roof 42675 01 20-MAY-2014 43 800 800 44 HARD SOFT 60 20 50 20 -25.00 -23.00 PERIMETER: 266 m 856756 01 First Layer of Strut & Anchor
  • 12.
    D 1 30 D B B1 13 SEC..D'-D'SEC.D'-D' S E NE SW SE NW P1 P2 P3 P4 P5 P6 P7 P8 P10 P11 P12 P13 P14 P15 P16 P17 P18 P19 P20 P21 P22 P23 P24 P25 P26 P27 P28 P29 P30 P31 P32 P33 P34 P35 P36 P37 P38 P39 P40 P41 P42 P43 P44 P45 P46 P47 P48 P49 P50 P51 P52 P53 P54 P55 P56 P57 P58 P59 P60 P61 P62 P63 P64 P65 P66 P67 P68 P69 P70 P71 P72 P73 P74 P75 P76 P77 P78 P79 P80 P81 P82 P83 P84 P85 P86 P87 P88 P89 P90 P91 P92 P93 P94 P95 P96 P97 P98 P309 P310 P311 P312 P313 P314 P315 P316 P317 P318 P319 P320 P321 P322 P323 P324 P325 P326 P327 P328 P329 P330 P331 P332 P333 P334 P335 P336 P337 P338 P339 P340 P341 P342 P343 P344 P345 P346 P347 P348 P349 P350 P351 P352 P353 5cm 5cm 5cm 5cm 5cm 7366cm 4464cm 6642cm P9 P99 P100 P101 P102 P103 P104 P105 P106 P107 P108 P109 P110 P111 P112 P113 P114 P115 P116 P117 P118 P119 P120 P121 P122 P123 P124 P125 P126 P127 P128 P129 P130 P131 P132 P133 P134 P135 P136 P137 P138 P139 P140 P141 P142 P143 P144 P145 P146 P147 P148 P149 P150 P151 P152 P153 P154 P155 P156 P157 P158 P159 P160 P161 P162 P163 P164 P165 P166 P167 P168 P169 P170 P171 P172 P173 P174 P175 P176 P177 P178 P179 P180 P181 P182 P183 P184 P185 P186 P187 P188 P189 P190 P191 P192 P193 P194 P195 P196 P197 P198 P199 P200 P201 P202 P203 P204 P205 P206 P207 P208 P209 P210 P211 P212 P213 P214 P215 P216 P217 P218 P219 P220 P221 P222 P223 P224 P225 P226 P227 P228 P229 P230 P231 P232 P233 P234 P235 P236 P237 P238 P239 P240 P241 P242 P243 P244 P245 P246 P247 P248 P249 P250 P251 P252 P253 P254 P255 P256 P257 P258 P259 P260 P261 P262 P263 P264 P265 P266 P267 P268 P269 P270 P271 P272 P273 P274 P275 P276 P277 P278 P279 P280 P281 P282 P283 P284 P285 P286 P287 P288 P289 P290 P291 P292 P293 P294 P295 P296 P297 P298 P299 P300 P301 P302 P303 P304 P305 P306 P307 P308 P354 P355 P356 P357 P358 P359 P360 P361 P362 P363 P364 P365 P366 P367 P368 P369 P370 P371 P372 P373 P374 P375 P376 P377 P378 P379 P380 P381 P382 P383 P384 P385 P386 P387 P388 P389 P390 P391 P392 P393 P394 P395 P396 P397 P398 P399 P400 P401 P402 P403 P404 P405 P406 P407 P408 P409 P410 P411 P412 P413 P414 P415 P416 P417 P418 P419 P420 P421 P422 P423 P424 P425 P426 P427 P428 P429 P430 P431 P432 P433 P434 P435 P436 P437 P438 4685cm 3412cm SEC. .N' -N'SEC.N' -N' E 231344.6567 N 2710276.3567 E 231426.5012 N 2710332.3069 E 231362.0135 N 2710347.9426 BASEMENT LIMITBASEMENT LIMIT BASEMENT LIMIT PLOT LIMIT PLOT LIMIT PLOT LIMIT PLOT LIMIT BASEMENT LIMIT E 231425.720 N 2710329.150 E 231388.390 N 2710265.750 E 231415.230 N 2710286.850 E 231426.5012 N 2710332.3069 SEC. .D'-D' SEC.D'-D' SEC..T'-T'SEC.T'-T' SEC. .A' -A' SEC.A' -A ' B2 B3 B4 B5 B6 B7 B8 B9 B10 B11 B12 B14 B15 B16 B17 B18 B19 B20 B21 B22 B23 B24 B25 B26 B27 B28 B29 B30 B31 B32 B33 B34 120cm120cm120cm120cm120cm120cm120cm120cm120cm120cm120cm 120cm 120cm 120cm 120cm 120cm 120cm 120cm 120cm 120cm 120cm 120cm 120cm 120cm 120cm 120cm 120cm 120cm 120cm 120cm 120cm 120cm 2 D 3 D 4 D 5 D 6 D 7 D 8 D 9 D 10 D 11 D 12 D 13 D 14 D 15 D 16 D 17 D 18 D 19 D 20 D D D D D D D D D D 21 22 23 24 25 26 27 28 29 120cm120cm120cm120cm120cm120cm120cm120cm120cm120cm120cm120cm120cm120cm120cm120cm120cm120cm120cm120cm120cm120cm120cm120cm120cm120cm120cm120cm D31 D32 D33 D34 D35 D36 D37 D38 D39 D40 D41 D42 D43 D44 D45 D46 D47 D48 D49 D50 D51 D52 D53 D54 D55 D56 D57 D58 D59 D60 D61 D62 120cm120cm120cm120cm120cm120cm120cm120cm120cm120cm120cm120cm120cm120cm120cm120cm120cm120cm120cm120cm120cm120cm120cm120cm120cm120cm120cm120cm120cm120cm120cm120cm SEC..G'-G' SEC.G'-G' SEC. .A' -A' SEC.A' -A ' TOE LEVEL = -23.0m TOE LEVEL = -25.0m SEC..P''-P''SEC..P''-P'' SEC.Q"-Q" SEC.Q"-Q" Drawing No. Submission Date Project ID Official Use Only Revision No. Scale Plan ID Drawing Title General Notes 01 09-DEC-2013 REV. DATE DESCRIPTION TEL: (02)5504222 P.O. BOX: 48181 FAX: (02)5504221 Piling Contractor SHORING LAYOUT ,DETAILS & SECTIONS Australian Piling Technology CP-484 PLOT.NO W-5 Principal Consultant PROJECT: AREASECTOR JOB NO. C-23 ABU DHABI MAIN CONTRACTING ARABIAN CONSTRUCTION CO. (ACC) Structural Master developer HVAC : T: 02-6767976 F: 02-6767990 Po Box 127489 Abu Dhabi, UAE www.implement-ae.com T: 02-6767976 F: 02-6767990 Po Box 127489 Abu Dhabi, UAE www.implement-ae.com 62 PILE LEGEND DIM (mm) No.Of Piles Anchor Type F.cu (N/mm²) TOE LEVEL (m) 800 -20.00 50 No.of Anchor 800 2061 A PILE TYPE HARD SOFT 23800 800 23 HARD SOFT 31 800 800 31 HARD SOFT -23.00 B TOTAL :SHORING IN THIS DRAWING P438P1-P438 60 20 D 62 34 61 00 28-DEC-2013 50 20SOFT HARD 800 800 60 60 -21.00 3 Basements + Ground + Mezzanine + 35 Typical Floors + Roof 42675 01 20-MAY-2014 43 800 800 44 HARD SOFT 60 20 50 20 -25.00 -23.00 PERIMETER: 266 m 856756 02 Second Layer of Anchor
  • 13.
    SECTION X-X 800 STIRRUPS T10@ 250 mm 4 T 10 200200 840 X GUIDE WALL 200200840 ∅840 X RETAININGSIDE EXCAVATIONSIDE (-4.00 m ) ANCHOR(A) LEVEL -23.0m PILE TOE CAPPING BEAM CAPPING BEAM (+ 0.25 m ) 23.25m 800∅ G1 800∅ 75 75 19T32 MAIN STEEL T10 @150 SPIRALS CROSS SECTION G1 RetainingWall 19T 32 5cm 3.85m Capacity Spacing (m ) Number Elongation of Strands (mm) Anchor (Kn) A 1.80 4Table Anchors Details BOND LENGTH FREE LENGTH BL = 5.00m FL =11.50 m Anchor-"A" 4 Strand(7 steel wire 15.24 mm) Grad 270 -Low Relax(ASTM A416) 288.68 29.27 30 (-7.90 m ) ANCHOR(B) LEVEL Capacity Spacing (m ) Number Elongation of Strands (mm) Anchor (Kn) B 1.20 8Table Anchors Details BOND LENGTH FREE LENGTH BL = 8.00m FL =8.00m 35 Anchor-"B" 8 Strand(7 steel wire 15.24 mm) Grad 270 -Low Relax(ASTM A416) 1053 25.43 SECTION G-G&G' -G' MAX. EXCAVATION LVL -14.85 m TOP OF STEEL -0.75m 800∅ 75 75 20 T 25 MAIN STEEL T10 @150 SPIRALS CROSS SECTION D1 SECTION D-D & D'-D' D1 RETAININGSIDE EXCAVATIONSIDE (-4.00 m ) ANCHOR LEVEL(A) - 20.00 m TOE LEVEL (0.00 ) GATE LEVEL CAPPING BEAM CAPPING BEAM MAX. EXCAVATION LVL -13.70 m (-7.90 m ) ANCHOR (D) LEVEL Capacity Spacing (m ) Number Elongation of Strands (mm) Anchor (Kn) D 1.20 6Table Anchors Details BOND LENGTH FREE LENGTH BL 7.00=m FL 9.0=m Anchor-"D" 6 Strand(7 steel wire 15.24 mm) Grad 270 -Low Relax(ASTM A416) (- 1.70 m ) 18.30m 800∅ 35 865 27.97 FULL LENGTH 20T25 1.00m Capacity Spacing (m ) Number Elongation of Strands (mm) Anchor (Kn) A 1.80 4Table Anchors Details BOND LENGTH FREE LENGTH BL 5.00 =m FL 11.50=m Anchor-"A" 4 Strand(7 steel wire 15.24 mm) Grad 270 -Low Relax(ASTM A416) 288.68 29.27 30 5cm RetainingWall SEC..1 SEC..1 PVC Spacer Pvc Grouting Pipe 7 wir strands SECTION (1-1) Grouting Body(D=140mm) (Fcu=20N/mm²) SEC..2 SEC.2 PVC SpacerPvc Grouting Pipe 7 wir strands Grouting Body(D=140mm) (Fcu=20N/mm²) SECTION (2-2) SEC..3 SEC.3 SECTION (3-3) PVC SpacerPvc Grouting Pipe 7 wir strands Grouting Body(D=140mm) (Fcu=20N/mm²) LEVEL- 0.00m CAPPING BEAM -1.70 m 800∅ SECTION A-A&A'-A' 1.00m + TOE LEVEL -23.00 m EXCAVATION LEVEL -14.85 m 21.30m FULL LENGTH 27T 32 INSIDEOUTSIDE 5cm 800∅ 75 75 27 T 32 MAIN STEEL T10 @150 SPIRALS CROSS SECTION A1 RetainingWall SECTION-K"(WAILER BEAM ) 10@150 A1 SECTION"6" Lock Nut 20 Steel plate 18mm Steel wedge plate Strands channel for wailr 2-[260X90X35) or Equivalent CAPPING BEAM AS-PER STRUCTURAL DRAWING 1000mm 800mm CAPPING BEAM (l.e.v: -1.70) -1.70 m -2.70 m SECANT PILE SECTION 6" -4.00 m 30° PVC Spacer Pvc Grouting Pipe 7 wir strands SECTION (1-1) Grouting Body(D=140mm) (Fcu=20N/mm²) SEC..1 SEC..1 Lock Nut 20 Steel plate 18mm Steel wedge plate 35 Strands channel for wailr 2-[260X90X35) or Equivalent Anchor in Level (l.e.v: -7.90) -7.90 m Secant Pile MAINSECANTPILE SECONDARYSECANT PILE 60cm 120cm INSIDE OUTSIDE DETAIL (L) 20cm 6.0m LEVEL- 0.00m CAPPING BEAM -1.70 m 800∅ SECTION (N-N)&(N'-N') 1.00m + TOE LEVEL -21.00 m EXCAVATION LEVEL -13.70 m 19.30m N1 FULL LENGTH 17T 32 INSIDEOUTSIDE 800∅ 75 75 17 T 32 MAIN STEEL T10 @150 SPIRALS CROSS SECTION N1 SECTION-K" RetainingWall 10@15010@15010@120 3.0m N2 800∅ 75 75 17 T 32 MAIN STEEL T10 @120 SPIRALS CROSS SECTION N2 N3 800∅ 75 75 17 T 32 MAIN STEEL T10 @150 SPIRALS CROSS SECTION N3 5cm PLOTLIMIT PLOTLIMIT PLOTLIMIT SECTION-K" 3.0m PLOTLIMIT 10@15010@120 CAPPING BEAM 800∅ SECTION T-T & T'-T' 3.85m TOE LEVEL -25.0m EXCAVATION LEVEL -14.85 m 25.25m A1 16T 40 INSIDEOUTSIDE 5cm 800∅ 75 75 16 T 40 MAIN STEEL T10 @150 SPIRALS CROSS SECTION A1 RetainingWall 10@150 PLOTLIMIT SECTION-K" 3.0m 10@15010@120 Fcu = 60N/mm Fy = 460N/mm 2 2 +0.25m TOP OF STEEL -0.75m -3.60 m -3.60 m Fcu = 60N/mm Fy = 460N/mm 2 2 THICKENS AS-PER THE PLAN Ø O.D. X 16MM STEEL PIPE (HORZ. STRUT) WITH 1.1 X 1.2 X 20MM THK. PLATE BOLTED TO WALER BEAM SIZE OF WELDS = 20mm LEVEL OF STRUT -4.60m SECTION "W" Lock Nut 20 Steel plate 18mm Steel wedge plate Strands channel for wailr 2-[260X90X35) or Equivalent CAPPING BEAM AS-PER STRUCTURAL DRAWING 3850mm 800mm CAPPING BEAM (l.e.v: +0.25m) +0.25 m -3.60 m SECANT PILE SECTION "W" -4.00 m 30° THICKENS AS-PER THE PLAN Ø O.D. X 16MM STEEL PIPE (HORZ. STRUT) WITH 1.1 X 1.2 X 20MM THK. PLATE BOLTED TO WALER BEAM SIZE OF WELDS = 20mm LEVEL OF STRUT -4.60m RETAININGSIDE EXCAVATIONSIDE (-4.00 m ) ANCHOR(A) LEVEL -25.0m PILE TOE CAPPING BEAM CAPPING BEAM (+ 0.25 m ) 25.25m 800∅ G1 800∅ 75 75 19T32 MAIN STEEL T10 @150 SPIRALS CROSS SECTION G1 RetainingWall 19T 32 5cm 3.85m Capacity Spacing (m ) Number Elongation of Strands (mm) Anchor (Kn) A 1.80 4Table Anchors Details BOND LENGTH FREE LENGTH BL = 5.00m FL =11.50 m Anchor-"A" 4 Strand(7 steel wire 15.24 mm) Grad 270 -Low Relax(ASTM A416) 288.68 29.27 30 (-7.90 m ) ANCHOR(B) LEVEL Capacity Spacing (m ) Number Elongation of Strands (mm) Anchor (Kn) B 1.20 8Table Anchors Details BOND LENGTH FREE LENGTH BL = 8.00m FL =8.00m 35 Anchor-"B" 8 Strand(7 steel wire 15.24 mm) Grad 270 -Low Relax(ASTM A416) 1053 25.43 SECTION P-P&P'' -P'' MAX. EXCAVATION LVL -14.85 m TOP OF STEEL -0.75m SEC..1 SEC..1 PVC Spacer Pvc Grouting Pipe 7 wir strands SECTION (1-1) Grouting Body(D=140mm) (Fcu=20N/mm²) SEC..2 SEC.2 PVC SpacerPvc Grouting Pipe 7 wir strands Grouting Body(D=140mm) (Fcu=20N/mm²) SECTION (2-2) PLOTLIMIT Fcu = 60N/mm Fy = 460N/mm 2 2 -3.60 m SECTION "W" CAPPING BEAM 800∅ SECTION Q-Q & Q''-Q'' 3.85m TOE LEVEL -23.0m EXCAVATION LEVEL -14.85 m 23.25m A1 16T 40 INSIDEOUTSIDE 5cm 800∅ 75 75 16 T 40 MAIN STEEL T10 @150 SPIRALS CROSS SECTION A1 RetainingWall 10@150 PLOTLIMIT SECTION-K" 3.0m 10@15010@120 +0.25m TOP OF STEEL -0.75m -3.60 m THICKENS AS-PER THE PLAN Ø O.D. X 16MM STEEL PIPE (HORZ. STRUT) WITH 1.1 X 1.2 X 20MM THK. PLATE BOLTED TO WALER BEAM SIZE OF WELDS = 20mm LEVEL OF STRUT -4.60m thick 20mm thick 20mm ∅900 110 120 STRUT CONFECTION FOR FIRST LAYER 900 mmØ O.D. X 20mm thick 16mm ∅1000 110 120 UB(1016X305X349) PLATE (120X120X20mm) Braket 12 bolt grade 4.8 M16 SecantPile THICKENS AS-PER THE PLAN Ø O.D. X 16MM STEEL PIPE (HORZ. STRUT) WITH 1.1 X 1.2 X 20MM THK. PLATE BOLTED TO WALER BEAM SIZE OF WELDS = 20mm LEVEL OF STRUT -4.60m THICKENS AS-PER THE PLAN Ø O.D. X 16MM STEEL PIPE (HORZ. STRUT) WITH 1.1 X 1.2 X 20MM THK. PLATE BOLTED TO WALER BEAM SIZE OF WELDS = 20mm LEVEL OF STRUT -4.60m 1200m m 1000mm PLAN DETAIL OF CORBEL(2) FOR STRUT (DETAIL - F) TOP VIEW THICKENS AS-PER THE PLAN Ø O.D. X 20MM STEEL PIPE (HORZ. STRUT) WITH 1.2m X 1.1m WITH THK 20 mm. PLATE BOLTED TO WALER BEAM ASPER PLAN 45 10mm Stiffener @200mm STRUT CONFECTION FOR FIRST LAYER 1000 mmØ O.D. X 16mm Working.Load=4500KN Working.Load=5700KN Working.Load=5700KN Fcu = 60N/mm Fy = 460N/mm 2 2 Working.Load=4500KN thick 20mm Drawing No. Submission Date Project ID Official Use Only Revision No. Scale Plan ID Drawing Title General Notes 01 09-DEC-2013 REV. DATE DESCRIPTION TEL: (02)5504222 P.O. BOX: 48181 FAX: (02)5504221 Piling Contractor SHORING LAYOUT ,DETAILS & SECTIONS Australian Piling Technology CP-484 PLOT.NO W-5 Principal Consultant PROJECT: AREASECTOR JOB NO. C-23 ABU DHABI MAIN CONTRACTING ARABIAN CONSTRUCTION CO. (ACC) Structural Master developer HVAC : T: 02-6767976 F: 02-6767990 Po Box 127489 Abu Dhabi, UAE www.implement-ae.com T: 02-6767976 F: 02-6767990 Po Box 127489 Abu Dhabi, UAE www.implement-ae.com 62 PILE LEGEND DIM (mm) No.Of Piles Anchor Type F.cu (N/mm²) TOE LEVEL (m) 800 -20.00 50 No.of Anchor 800 2061 A PILE TYPE HARD SOFT 23800 800 23 HARD SOFT 31 800 800 31 HARD SOFT -23.00 B TOTAL :SHORING IN THIS DRAWING P438P1-P438 60 20 D 62 34 61 00 28-DEC-2013 50 20SOFT HARD 800 800 60 60 -21.00 3 Basements + Ground + Mezzanine + 35 Typical Floors + Roof 42675 01 20-MAY-2014 43 800 800 44 HARD SOFT 60 20 50 20 -25.00 -23.00 PERIMETER: 266 m 856756 03 DETAILS&SECTIONS
  • 14.
    P1 P2 P3 P4 P5 P6 P7 P8 P10 P11 P12 P13 P14 P15 P16 P17 P18 P19 P20 P21 P22 P23 P24 P25 P26 P27 P28 P29 P30 P31 P32 P33 P34 P35 P36 P37 P38 P39 P40 P41 P42 P43 P44 P45 P46 P47 P48 P49 P50 P51 P52 P53 P54 P55 P56 P57 P58 P59 P60 P61 P62 P63 P64 P65 P66 P67 P68 P69 P70 P71 P72 P73 P74 P75 P76 P77 P78 P79 P80 P81 P82 P83 P84 P85 P86 P87 P88 P89 P90 P91 P92 P93 P94 P95 P96 P97 P98 P309 P310 P311 P312 P313 P314 P315 P316 P317 P318 P319 P320 P321 P322 P323 P324 P325 P326 P327 P328 P329 P330 P331 P332 P333 P334 P335 P336 P337 P338 P339 P340 P341 P342 P343 P344 P345 P346 P347 P348 P349 P350 P351 P352 P353 5cm 5cm 5cm 5cm 5cm 7366cm 4464cm 6642cm P9 P99 P100 P101 P102 P103 P104 P105 P106 P107 P108 P109 P110 P111 P112 P113 P114 P115 P116 P117 P118 P119 P120 P121 P122 P123 P124 P125 P126 P127 P128 P129 P130 P131 P132 P133 P134 P135 P136 P137 P138 P139 P140 P141 P142 P143 P144 P145 P146 P147 P148 P149 P150 P151 P152 P153 P154 P155 P156 P157 P158 P159 P160 P161 P162 P163 P164 P165 P166 P167 P168 P169 P170 P171 P172 P173 P174 P175 P176 P177 P178 P179 P180 P181 P182 P183 P184 P185 P186 P187 P188 P189 P190 P191 P192 P193 P194 P195 P196 P197 P198 P199 P200 P201 P202 P203 P204 P205 P206 P207 P208 P209 P210 P211 P212 P213 P214 P215 P216 P217 P218 P219 P220 P221 P222 P223 P224 P225 P226 P227 P228 P229 P230 P231 P232 P233 P234 P235 P236 P237 P238 P239 P240 P241 P242 P243 P244 P245 P246 P247 P248 P249 P250 P251 P252 P253 P254 P255 P256 P257 P258 P259 P260 P261 P262 P263 P264 P265 P266 P267 P268 P269 P270 P271 P272 P273 P274 P275 P276 P277 P278 P279 P280 P281 P282 P283 P284 P285 P286 P287 P288 P289 P290 P291 P292 P293 P294 P295 P296 P297 P298 P299 P300 P301 P302 P303 P304 P305 P306 P307 P308 P354 P355 P356 P357 P358 P359 P360 P361 P362 P363 P364 P365 P366 P367 P368 P369 P370 P371 P372 P373 P374 P375 P376 P377 P378 P379 P380 P381 P382 P383 P384 P385 P386 P387 P388 P389 P390 P391 P392 P393 P394 P395 P396 P397 P398 P399 P400 P401 P402 P403 P404 P405 P406 P407 P408 P409 P410 P411 P412 P413 P414 P415 P416 P417 P418 P419 P420 P421 P422 P423 P424 P425 P426 P427 P428 P429 P430 P431 P432 P433 P434 P435 P436 P437 P438 4685cm 3412cm 231404.980 2710334.179 E 231425.7186 N 2710329.1503 231404.980 2710334.179 E231388.3896 N 2710265.7532 E 231415.2299 N 2710286.8489 E 231344.6567 N 2710276.3567 E 231426.5012 N 2710332.3069 E 231362.0135 N 2710347.9426 BASEMENT LIMITBASEMENT LIMIT BASEMENT LIMIT PLOT LIMIT PLOT LIMIT PLOT LIMIT PLOT LIMIT BASEMENT LIMIT WASHROOM BUILDING kiosk BUILDING WATER FOUNTAIN SNG PLANT PLAY GROUND EQUIPMENT 295cm 120cm 332cm 120cm 150cm 332cm 295cm 96cm S E W NE SW SE NW TOE LEVEL = -23.0m TOE LEVEL = -25.0m Drawing No. Submission Date Project ID Official Use Only Revision No. Scale Plan ID Drawing Title General Notes 01 09-DEC-2013 REV. DATE DESCRIPTION TEL: (02)5504222 P.O. BOX: 48181 FAX: (02)5504221 Piling Contractor SHORING LAYOUT ,DETAILS & SECTIONS Australian Piling Technology CP-484 PLOT.NO W-5 Principal Consultant PROJECT: AREASECTOR JOB NO. C-23 ABU DHABI MAIN CONTRACTING ARABIAN CONSTRUCTION CO. (ACC) Structural Master developer HVAC : T: 02-6767976 F: 02-6767990 Po Box 127489 Abu Dhabi, UAE www.implement-ae.com T: 02-6767976 F: 02-6767990 Po Box 127489 Abu Dhabi, UAE www.implement-ae.com 62 PILE LEGEND DIM (mm) No.Of Piles Anchor Type F.cu (N/mm²) TOE LEVEL (m) 800 -20.00 50 No.of Anchor 800 2061 A PILE TYPE HARD SOFT 23800 800 23 HARD SOFT 31 800 800 31 HARD SOFT -23.00 B TOTAL :SHORING IN THIS DRAWING P438P1-P438 60 20 D 62 34 61 00 28-DEC-2013 50 20SOFT HARD 800 800 60 60 -21.00 3 Basements + Ground + Mezzanine + 35 Typical Floors + Roof 42675 01 20-MAY-2014 43 800 800 44 HARD SOFT 60 20 50 20 -25.00 -23.00 PERIMETER: 266 m 856756 04 SITE PLAN
  • 15.
    P1 P2 P3 P4 P5 P6 P7 P8 P10 P11 P12 P13 P14 P15 P16 P17 P18 P19 P20 P21 P22 P23 P24 P25 P26 P27 P28 P29 P30 P31 P32 P33 P34 P35 P36 P37 P38 P39 P40 P41 P42 P43 P44 P45 P46 P47 P48 P49 P50 P51 P52 P53 P54 P55 P56 P57 P58 P59 P60 P61 P62 P63 P64 P65 P66 P67 P68 P69 P70 P71 P72 P73 P74 P75 P76 P77 P78 P79 P80 P81 P82 P83 P84 P85 P86 P87 P88 P89 P90 P91 P92 P93 P94 P95 P96 P97 P98 P309 P310 P311 P312 P313 P314 P315 P316 P317 P318 P319 P320 P321 P322 P323 P324 P325 P326 P327 P328 P329 P330 P331 P332 P333 P334 P335 P336 P337 P338 P339 P340 P341 P342 P343 P344 P345 P346 P347 P348 P349 P350 P351 P352 P353      P9 P99 P100 P101 P102 P103 P104 P105 P106 P107 P108 P109 P110 P111 P112 P113 P114 P115 P116 P117 P118 P119 P120 P121 P122 P123 P124 P125 P126 P127 P128 P129 P130 P131 P132 P133 P134 P135 P136 P137 P138 P139 P140 P141 P142 P143 P144 P145 P146 P147 P148 P149 P150 P151 P152 P153 P154 P155 P156 P157 P158 P159 P160 P161 P162 P163 P164 P165 P166 P167 P168 P169 P170 P171 P172 P173 P174 P175 P176 P177 P178 P179 P180 P181 P182 P183 P184 P185 P186 P187 P188 P189 P190 P191 P192 P193 P194 P195 P196 P197 P198 P199 P200 P201 P202 P203 P204 P205 P206 P207 P208 P209 P210 P211 P212 P213 P214 P215 P216 P217 P218 P219 P220 P221 P222 P223 P224 P225 P226 P227 P228 P229 P230 P231 P232 P233 P234 P235 P236 P237 P238 P239 P240 P241 P242 P243 P244 P245 P246 P247 P248 P249 P250 P251 P252 P253 P254 P255 P256 P257 P258 P259 P260 P261 P262 P263 P264 P265 P266 P267 P268 P269 P270 P271 P272 P273 P274 P275 P276 P277 P278 P279 P280 P281 P282 P283 P284 P285 P286 P287 P288 P289 P290 P291 P292 P293 P294 P295 P296 P297 P298 P299 P300 P301 P302 P303 P304 P305 P306 P307 P308 P354 P355 P356 P357 P358 P359 P360 P361 P362 P363 P364 P365 P366 P367 P368 P369 P370 P371 P372 P373 P374 P375 P376 P377 P378 P379 P380 P381 P382 P383 P384 P385 P386 P387 P388 P389 P390 P391 P392 P393 P394 P395 P396 P397 P398 P399 P400 P401 P402 P403 P404 P405 P406 P407 P408 P409 P410 P411 P412 P413 P414 P415 P416 P417 P418 P419 P420 P421 P422 P423 P424 P425 P426 P427 P428 P429 P430 P431 P432 P433 P434 P435 P436 P437 P438   A A A A 21 39 1 9 S E W NE SW SE NW SEC. .A -ASEC.A -A E 231344.6567 N 2710276.3567 E 231426.5012 N 2710332.3069 E 231362.0135 N 2710347.9426 BASEMENT LIMITBASEMENT LIMIT BASEMENT LIMIT PLOT LIMIT PLOT LIMIT PLOT LIMIT PLOT LIMIT BASEMENT LIMIT 26°      TYPICAL DETAIL -F 45° 45° 45° 45° 45° 45° 45° 45° 45° 45° 45° 45° 45° 45° E 231425.720 N 2710329.150 E 231388.390 N 2710265.750 E 231415.230 N 2710286.850 E 231426.5012 N 2710332.3069 DETAIL -L 900 MMØ O.D. X 20MM STEEL PIPE (HORZ. STRUT) SEC.T - T SEC.T - T A2 A 3 A4 A5 A 6 A7 A8  A A A A A A A A A A A            10 11 12 13 14 15 16 17 18 19 20 A22 A23 A24 A25 A26 A27 A28 A29 A30 A31 A32 A33 A34 A35 A36 A37 A38  A 40 A 41 A 42 A 43 A 44 A 45 A 46 A 47 A 48 A 49 A 50 A 51 A 52 A 53 A 54 A 55 A 56 A 57 A 58 A 59 A 60 A 61                       SEC..G-G SEC.G-G TOE LEVEL = -23.0m TOE LEVEL = -25.0m SEC. .P-P SEC. .P-P SEC.Q-Q SEC.Q-Q       M24 Bolt Grade 8.8 14.4cm 14.4cm 14.4cm 14.4cm 20mm 20mm  M24 Bolt Grade 8.8 14.4cm 14.4cm 14.4cm 14.4cm 20mm 20mm 120cm 120cm 120cm 120cm     CASE 1 FOR STRUT Ø100cm CASE 2 FOR STRUT Ø90cm Ø100cm Ø90cm      900 M M Ø O .D . X 20M M STEEL PIPE (H O RZ. STRU T) 900 M M Ø O .D . X 20M M STEEL PIPE (H O RZ. STRU T) 1000 M M Ø O .D . X 16M M STEEL PIPE (H O RZ. STRU T)1000 M M Ø O .D . X 16M M STEEL PIPE (H O RZ. STRU T) UC (457 X191 X 98) UC (457 X191 X 98)               900 M M Ø O .D .X 20M M STEEL PIPE (H O RZ.STRU T) 900 M M Ø O .D .X 20M M STEEL PIPE (H O RZ.STRU T) 1000 M M Ø O .D .X 16M M STEEL PIPE (H O RZ.STRU T) 1000 M M Ø O .D .X 16M M STEEL PIPE (H O RZ.STRU T) UC (457 X191 X 98) UC (457 X191 X 98)               TYPICAL DETAIL -F TYPICAL DETAIL -F Drawing No. Submission Date Project ID Official Use Only Revision No. Scale Plan ID Drawing Title General Notes 01 20-MAY-2014 REV. DATE DESCRIPTION TEL: (02)5504222 P.O. BOX: 48181 FAX: (02)5504221 Piling Contractor SHORING LAYOUT ,DETAILS & SECTIONS Australian Piling Technology CP-484 PLOT.NO W-5 Principal Consultant PROJECT: AREASECTOR JOB NO. C-23 ABU DHABI MAIN CONTRACTING ARABIAN CONSTRUCTION CO. (ACC) Structural Master developer HVAC : T: 02-6767976 F: 02-6767990 Po Box 127489 Abu Dhabi, UAE www.implement-ae.com T: 02-6767976 F: 02-6767990 Po Box 127489 Abu Dhabi, UAE www.implement-ae.com 62 PILE LEGEND DIM (mm) No.Of Piles Anchor Type F.cu (N/mm²) TOE LEVEL (m) 800 -20.00 50 No.of Anchor 800 2061 A PILE TYPE HARD SOFT 23800 800 23 HARD SOFT 31 800 800 31 HARD SOFT -23.00 B TOTAL :SHORING IN THIS DRAWING P438P1-P438 60 20 D 62 34 61 00 20-MAY-2014 50 20SOFT HARD 800 800 60 60 -21.00 3 Basements + Ground + Mezzanine + 35 Typical Floors + Roof 42675 43 800 800 44 HARD SOFT 60 20 50 20 -25.00 -23.00 PERIMETER: 266 m 01 CONNECTION DETAILS FOR STRUT