6 9 0 x 2 3 0 R C S T R I P
FOUNDATION @ MIN DEPTH
9 0 0 B E L O W N G L
(4 x Y12 WITH MIN 30mm
COVERAGE AND R10 STIRRUPS
@ 300 CS) WITH 50 BLINDING
SCREED BELOW FOOTING AS
T O E N G I N E E R S S P E C .
V E H I C L E
INSPECTION PIT
STEEL FLOATED 150 HEAVY DUTY
REINFORCED CONC FLOOR SLAB ON
DPC ON HARDCORE COMPACTED
F I L L T O 9 8 % A A S H T O
SMOOTH FLOATED 85 RC
FLOOR SLAB ON COMPACTED
HARDCORE FILL TO SUIT
150 HEAVY DUTY REINFORCED
C O NC R A MP O N H A R DC O R E
COMPACTED FILL TO 98% AASHTO
460x460 BRICK CLAD IPE180
COLUMNS @ 5000 CS BOLTED TO
R C P A D F O U N D A T I O N
IBR CHROMADEK ON ALUBUBBLE INSULATION ON
125x65x6 CHANNEL PURLINS BOLTED @ 1600 CS MAX
T O I P E 1 8 0 T R U S S E S @ 5 0 0 0 C S
IBR CHROMADEK ON ALUBUBBLE INSULATION ON
75x50 TIMBER PURLINS NAILED @ MAX 1200 CS TO
2 2 8 x 3 8 T I M B E R T R U S S E S @ 1 10 0 C S M A X
230 CONCRETE BRICK WALL
PLASTERED ON BOTH SIDES
A N D P A I N T E D T O S U I T
M E C H A N I C S
CREEPER ON 50X5
A N G L E R A I L S
O V E R P I T
STD STEEL DOOR
F R A M E F I T T E D
WITH HARDWOOD
OR STEEL DOOR
PRECAST
L I N T O L
IPE180 TRUSSES @
B O L T E D T O I PE 1 80
COLUMNS @ 5000 CS
FIBRE CEMENT BARGE
B O A R D O R L I K E
C O N C D R A I N
COVERED WITH 50mm
S T E E L G R I D
STAINLESS
S T E E L
VENTILATOR
SUMP
PUMP
I N D U S T R I A L R O L L
DOWN STEEL DOORS
0000 NGL1
+0125 FFL1
+0325 FFL2
+2450
+2941
+3625
+5128
+5500 MAX
-1629
-1929
m a x 1 : 5 0 g r a d i e n t
RC COLUMN FOOTING
( s e e d e t a i l )
9kg
extinguisher
escape
ladder
50 STEEL FRAMED EAVES BOLTED
T O I P E 1 8 0 C O L U M N
CLOSED WITH EXPANDED METAL
6 GYPRUM CEILING FIXED TO 38x38
TIMBER BRANDERS FIXED TO U/S
OF TRUSSES @ MAX 400 CS
c o n c
b a s i n
-0775
50/100 THICK CONC APRON
R A K I N G @ 1 : 5 0 M A X
GRADIENT BACK TO BRICK
S P O O N D R A I N0
5
10
20
30
40
50
60
10
5
20
30
brick
scale

















             
   
   
  

  
        
   
       





                                            
A
A

  
        

  
        
fire rated
d o o r















                           
ROLL UP
D O O R
ROLL UP
D O O R
ROLL UP
D O O R
ROLL UP
D O O R
ROLL UP
D O O R
AC
AC
REMBLOCK30
R ET AI NI N G
WALL @ 70°
N E W G R O U N D
GRADIENT 1:200
OVER APPROX. 51m
F R O M B A S E O F
RETAINING WALL
f a l l d i r e c t i o n
ROLL UP
D O O R
ROLL UP
D O O R
ROLL UP
D O O R
ROLL UP
D O O R
REMBLOCK30
R E TA I NI NG
WALL @ 70°
c o n c
b a s i n
3 0 m p a
C O N C R E T E
R250 STEEL
REINFORCING
150 SMOOTH FLOATED
HEAVY DUTY REINFORCED
CONCRETE FLOOR SLAB
150 CONCRETE
RAMP (30mpa)
R250 STEEL
REINFORCING
5 0 m m
INDUSTRIAL
S T E E L
G R I D
STEEL REINFORCING AND
THREADBAR TO SPEC
220x220X20
BASEPLATE
FIXED WITH
4xM20 BOLTS
115 BRICK
STUB WALL
ON 150 RC
DRAIN SLAB
1 0 0 m m
COMPACTED
S O I LC RE T E
OR SIMILAR
I P E 1 8 0
COLUMN
H AR DCOR E F I LL
C O M P A C T E D T O
98% MOD AASHTO
I N 1 5 0 L A Y E R S
HARDCORE FILL
COMPACTED TO
9 8 % M O D
A A S H T O
115 (460) BRICK
COLUMN CLADDING
85 SMOOTH FLOATED
REINFORCED CONCRETE
F L O O R S L A B
230 PLASTERED
C O N C B R I C K
W A L L5 0 / 1 0 0 C A S T
C O N C R E T E
A P R O N
Y 1 2 S T E E L
REINFORCING
R10 STIRRUPS
@ 3 0 0 C S
3 0 m p a
C O N C R E T E
R250 STEEL
REINFORCING
50 CONCRETE
B L I N D I N G
CONC PAVERS ON
C O M P A C T E D
PREPARED BASE
B R I C K S P O O N
D R A I N M A X
±150mm DEEP
2 3 0 R E I N F O R C E D
CONCRETE OR BRICK
R E T A I N I N G W A L L
HARDCORE FILL
CO MP ACT E D T O
98% MOD AASHTO
1 5 0 H E A V Y D U T Y
CONCRETE FLOORSLAB
R 2 5 0 S T E E L
REINFORCING
M I N 3 0 H A R D
CEMENT SCREED
W I T H F A L L
GRADIENT MIN 1:50
S U M P
P U M P
50mm STEEL
G R A T E
S T A I N L E S S
S T E E L
E X T R A C T O R
I P E 1 8 0
125x65x6 STEEL PURLINS
B O L T E D T O T R U S S E S
0 . 5 I B R
CHROMADEK
ROOF SHEETS
A L U B U B B L E
I N S U L A T I O N
4 x M18 STEEL
BOLTS @ EQUAL
C E N T E R S
I PE1 60 ST E E L
H A U N C H
S T E E L
STIFFENER
DATE: PROJECT: DRAWING: SCALE:
DRAWN BY:CLIENT:
PLOT: SIGNED:
2016 CHANGES SET
(POST APPROVAL
AMENDMENTS)
FLOOR PLAN
SECTION A-A
ELEVATIONS
DETAILS
1:10 1:20 1:50 1:75
1:100
G HZAMBEZI SAFARIS
CLIENT ADDRESS:
08/03/2016
736, KASANE
PVT BAG K15
KASANE
WORKSHOP
AND
EQUIPMENT
STORAGE
REVISIONS
PAGE #:
A1L
DRAWING NUMBER:
/
SUBMITTED:




















ZS/2016/002/06
FIRE LEGEND
SEE SITE PLAN
BUILDING AREAS
SITE AREA 3513 sqm
PROPOSED WORKSHOP 364.6 sqm
COVERAGE 10.4%
PARKING
19 PARKINGS (MIN 10 @ 1 per 40m²)
- 16 STANDARD (OVERSIZE) [3x5]
- 1 DISABLED [3.8x5]
- 2 MEDIUM BUS [3x7]
- 2 LOADING/PARKING/MAINTENENCE BAYS(COVERED)[5x9]
- 1 MAINTENANCE/INSPECTION BAY (COVERED) [5x9]
- 1 LOADING BAY (UNCOVERED) [5x9]
(+ 1 WASH BAY)
(+ UP TO 8 BICYCLE SPACES)
PRISON
SEBOBA
THEBE
RIVER
SAFARIS
PRISON
FARM
CJSS
BPC
SS
TO
NGOMA
IC
IC
1800blockwall
1 8 0 0 b l o c k w a l l
d r a i n t o s e p a r a t o r
S P O O N D R A I N
150 CONCRETE
SLAB
drain to
separator
IC
IC
S P O O N D R A I N
SPOONDRAIN
L E V E L E D
EARTH AREA
L E V E L E D
EARTH AREA
PAVED AREA
PAVED AREA
3 - W A Y
SPOTLIGHTS
M O U N T E D
O N C C A
P O L E T O
S P E C
3 - W A Y
SPOTLIGHTS
M O U N T E D
O N C C A
P O L E T O
S P E C
2 - W A Y
SPOTLIGHTS
M O U N T E D
O N C C A
P O L E T O
S P E C
2 - W A Y
SP O T L I G H T S
MOUNTED ON
CCA POLE TO
S P E C
F U T U R E
DEVELOPMENT
DATE: PROJECT: DRAWING: SCALE:
DRAWN BY:CLIENT:
PLOT: SIGNED:
2016 CHANGES SET
(POST APPROVAL
AMENDMENTS)
SITE PLAN
LOCATION PLAN
1:200 1:5000
G HZAMBEZI SAFARIS
CLIENT ADDRESS:
08/03/2016
736, KASANE
WORKSHOP
AND
OPERATIONS
BASE
REVISIONS
PAGE #:
ZS/2016/001/06
A1L
DRAWING NUMBER:
/
SUBMITTED:
PVT BAG K15
KASANE
FAP
XXXX
FAP
FIRE LEGEND BUILDING AREAS
SITE AREA 3513 sqm
PROPOSED WORKSHOP 364.6 sqm
COVERAGE 10.4%
PARKING
19 PARKINGS (MIN 10 @ 1 per 40m²)
- 16 STANDARD (OVERSIZE) [3x5]
- 1 DISABLED [3.8x5]
- 2 MEDIUM BUS [3x7]
- 2 LOADING/PARKING/MAINTENENCE BAYS(COVERED)[5x9]
- 1 MAINTENANCE/INSPECTION BAY (COVERED) [5x9]
- 1 LOADING BAY (UNCOVERED) [5x9]
(+ 1 WASH BAY)
(+ UP TO 8 BICYCLE SPACES)




SOCKETS + LIGHTS - GROUPS, PHASES + BREAKER SIZES
DATE: PROJECT: DRAWING: SCALE:
DRAWN BY:CLIENT:
PLOT: SIGNED:
G H
CLIENT ADDRESS:
REVISIONS
PAGE #:
A1L
DRAWING NUMBER:
/
SUBMITTED:
ELECTRICAL PLAN
LIGHTS LAYOUT
1:50
G H ZS/2016/ELEC/L/01ZAMBEZI SAFARIS
03/03/2016
736, KASANE
PVT BAG K15
KASANE
WORKSHOP
AND
EQUIPMENT
STORAGE
SOCKETS + LIGHTS - GROUPS, PHASES + BREAKER SIZES
DATE: PROJECT: DRAWING: SCALE:
DRAWN BY:CLIENT:
PLOT: SIGNED:CLIENT ADDRESS:
REVISIONS
PAGE #:
A1L
DRAWING NUMBER:
/
SUBMITTED:
ELECTRICAL PLAN
POWER LAYOUT
1:50
G H ZS/2016/ELEC/P/01ZAMBEZI SAFARIS
03/03/2016
736, KASANE
PVT BAG K15
KASANE
WORKSHOP
AND
EQUIPMENT
STORAGE

Kalahari Safaris Operations Base

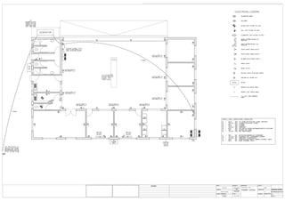
  • 1.
    6 9 0x 2 3 0 R C S T R I P FOUNDATION @ MIN DEPTH 9 0 0 B E L O W N G L (4 x Y12 WITH MIN 30mm COVERAGE AND R10 STIRRUPS @ 300 CS) WITH 50 BLINDING SCREED BELOW FOOTING AS T O E N G I N E E R S S P E C . V E H I C L E INSPECTION PIT STEEL FLOATED 150 HEAVY DUTY REINFORCED CONC FLOOR SLAB ON DPC ON HARDCORE COMPACTED F I L L T O 9 8 % A A S H T O SMOOTH FLOATED 85 RC FLOOR SLAB ON COMPACTED HARDCORE FILL TO SUIT 150 HEAVY DUTY REINFORCED C O NC R A MP O N H A R DC O R E COMPACTED FILL TO 98% AASHTO 460x460 BRICK CLAD IPE180 COLUMNS @ 5000 CS BOLTED TO R C P A D F O U N D A T I O N IBR CHROMADEK ON ALUBUBBLE INSULATION ON 125x65x6 CHANNEL PURLINS BOLTED @ 1600 CS MAX T O I P E 1 8 0 T R U S S E S @ 5 0 0 0 C S IBR CHROMADEK ON ALUBUBBLE INSULATION ON 75x50 TIMBER PURLINS NAILED @ MAX 1200 CS TO 2 2 8 x 3 8 T I M B E R T R U S S E S @ 1 10 0 C S M A X 230 CONCRETE BRICK WALL PLASTERED ON BOTH SIDES A N D P A I N T E D T O S U I T M E C H A N I C S CREEPER ON 50X5 A N G L E R A I L S O V E R P I T STD STEEL DOOR F R A M E F I T T E D WITH HARDWOOD OR STEEL DOOR PRECAST L I N T O L IPE180 TRUSSES @ B O L T E D T O I PE 1 80 COLUMNS @ 5000 CS FIBRE CEMENT BARGE B O A R D O R L I K E C O N C D R A I N COVERED WITH 50mm S T E E L G R I D STAINLESS S T E E L VENTILATOR SUMP PUMP I N D U S T R I A L R O L L DOWN STEEL DOORS 0000 NGL1 +0125 FFL1 +0325 FFL2 +2450 +2941 +3625 +5128 +5500 MAX -1629 -1929 m a x 1 : 5 0 g r a d i e n t RC COLUMN FOOTING ( s e e d e t a i l ) 9kg extinguisher escape ladder 50 STEEL FRAMED EAVES BOLTED T O I P E 1 8 0 C O L U M N CLOSED WITH EXPANDED METAL 6 GYPRUM CEILING FIXED TO 38x38 TIMBER BRANDERS FIXED TO U/S OF TRUSSES @ MAX 400 CS c o n c b a s i n -0775 50/100 THICK CONC APRON R A K I N G @ 1 : 5 0 M A X GRADIENT BACK TO BRICK S P O O N D R A I N0 5 10 20 30 40 50 60 10 5 20 30 brick scale                                                                                                                      A A                           fire rated d o o r                                            ROLL UP D O O R ROLL UP D O O R ROLL UP D O O R ROLL UP D O O R ROLL UP D O O R AC AC REMBLOCK30 R ET AI NI N G WALL @ 70° N E W G R O U N D GRADIENT 1:200 OVER APPROX. 51m F R O M B A S E O F RETAINING WALL f a l l d i r e c t i o n ROLL UP D O O R ROLL UP D O O R ROLL UP D O O R ROLL UP D O O R REMBLOCK30 R E TA I NI NG WALL @ 70° c o n c b a s i n 3 0 m p a C O N C R E T E R250 STEEL REINFORCING 150 SMOOTH FLOATED HEAVY DUTY REINFORCED CONCRETE FLOOR SLAB 150 CONCRETE RAMP (30mpa) R250 STEEL REINFORCING 5 0 m m INDUSTRIAL S T E E L G R I D STEEL REINFORCING AND THREADBAR TO SPEC 220x220X20 BASEPLATE FIXED WITH 4xM20 BOLTS 115 BRICK STUB WALL ON 150 RC DRAIN SLAB 1 0 0 m m COMPACTED S O I LC RE T E OR SIMILAR I P E 1 8 0 COLUMN H AR DCOR E F I LL C O M P A C T E D T O 98% MOD AASHTO I N 1 5 0 L A Y E R S HARDCORE FILL COMPACTED TO 9 8 % M O D A A S H T O 115 (460) BRICK COLUMN CLADDING 85 SMOOTH FLOATED REINFORCED CONCRETE F L O O R S L A B 230 PLASTERED C O N C B R I C K W A L L5 0 / 1 0 0 C A S T C O N C R E T E A P R O N Y 1 2 S T E E L REINFORCING R10 STIRRUPS @ 3 0 0 C S 3 0 m p a C O N C R E T E R250 STEEL REINFORCING 50 CONCRETE B L I N D I N G CONC PAVERS ON C O M P A C T E D PREPARED BASE B R I C K S P O O N D R A I N M A X ±150mm DEEP 2 3 0 R E I N F O R C E D CONCRETE OR BRICK R E T A I N I N G W A L L HARDCORE FILL CO MP ACT E D T O 98% MOD AASHTO 1 5 0 H E A V Y D U T Y CONCRETE FLOORSLAB R 2 5 0 S T E E L REINFORCING M I N 3 0 H A R D CEMENT SCREED W I T H F A L L GRADIENT MIN 1:50 S U M P P U M P 50mm STEEL G R A T E S T A I N L E S S S T E E L E X T R A C T O R I P E 1 8 0 125x65x6 STEEL PURLINS B O L T E D T O T R U S S E S 0 . 5 I B R CHROMADEK ROOF SHEETS A L U B U B B L E I N S U L A T I O N 4 x M18 STEEL BOLTS @ EQUAL C E N T E R S I PE1 60 ST E E L H A U N C H S T E E L STIFFENER DATE: PROJECT: DRAWING: SCALE: DRAWN BY:CLIENT: PLOT: SIGNED: 2016 CHANGES SET (POST APPROVAL AMENDMENTS) FLOOR PLAN SECTION A-A ELEVATIONS DETAILS 1:10 1:20 1:50 1:75 1:100 G HZAMBEZI SAFARIS CLIENT ADDRESS: 08/03/2016 736, KASANE PVT BAG K15 KASANE WORKSHOP AND EQUIPMENT STORAGE REVISIONS PAGE #: A1L DRAWING NUMBER: / SUBMITTED:                     ZS/2016/002/06 FIRE LEGEND SEE SITE PLAN BUILDING AREAS SITE AREA 3513 sqm PROPOSED WORKSHOP 364.6 sqm COVERAGE 10.4% PARKING 19 PARKINGS (MIN 10 @ 1 per 40m²) - 16 STANDARD (OVERSIZE) [3x5] - 1 DISABLED [3.8x5] - 2 MEDIUM BUS [3x7] - 2 LOADING/PARKING/MAINTENENCE BAYS(COVERED)[5x9] - 1 MAINTENANCE/INSPECTION BAY (COVERED) [5x9] - 1 LOADING BAY (UNCOVERED) [5x9] (+ 1 WASH BAY) (+ UP TO 8 BICYCLE SPACES)
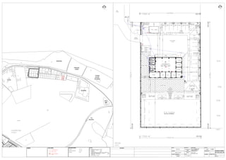
  • 2.
    PRISON SEBOBA THEBE RIVER SAFARIS PRISON FARM CJSS BPC SS TO NGOMA IC IC 1800blockwall 1 8 00 b l o c k w a l l d r a i n t o s e p a r a t o r S P O O N D R A I N 150 CONCRETE SLAB drain to separator IC IC S P O O N D R A I N SPOONDRAIN L E V E L E D EARTH AREA L E V E L E D EARTH AREA PAVED AREA PAVED AREA 3 - W A Y SPOTLIGHTS M O U N T E D O N C C A P O L E T O S P E C 3 - W A Y SPOTLIGHTS M O U N T E D O N C C A P O L E T O S P E C 2 - W A Y SPOTLIGHTS M O U N T E D O N C C A P O L E T O S P E C 2 - W A Y SP O T L I G H T S MOUNTED ON CCA POLE TO S P E C F U T U R E DEVELOPMENT DATE: PROJECT: DRAWING: SCALE: DRAWN BY:CLIENT: PLOT: SIGNED: 2016 CHANGES SET (POST APPROVAL AMENDMENTS) SITE PLAN LOCATION PLAN 1:200 1:5000 G HZAMBEZI SAFARIS CLIENT ADDRESS: 08/03/2016 736, KASANE WORKSHOP AND OPERATIONS BASE REVISIONS PAGE #: ZS/2016/001/06 A1L DRAWING NUMBER: / SUBMITTED: PVT BAG K15 KASANE FAP XXXX FAP FIRE LEGEND BUILDING AREAS SITE AREA 3513 sqm PROPOSED WORKSHOP 364.6 sqm COVERAGE 10.4% PARKING 19 PARKINGS (MIN 10 @ 1 per 40m²) - 16 STANDARD (OVERSIZE) [3x5] - 1 DISABLED [3.8x5] - 2 MEDIUM BUS [3x7] - 2 LOADING/PARKING/MAINTENENCE BAYS(COVERED)[5x9] - 1 MAINTENANCE/INSPECTION BAY (COVERED) [5x9] - 1 LOADING BAY (UNCOVERED) [5x9] (+ 1 WASH BAY) (+ UP TO 8 BICYCLE SPACES)    
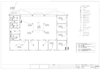
  • 3.
    SOCKETS + LIGHTS- GROUPS, PHASES + BREAKER SIZES DATE: PROJECT: DRAWING: SCALE: DRAWN BY:CLIENT: PLOT: SIGNED: G H CLIENT ADDRESS: REVISIONS PAGE #: A1L DRAWING NUMBER: / SUBMITTED: ELECTRICAL PLAN LIGHTS LAYOUT 1:50 G H ZS/2016/ELEC/L/01ZAMBEZI SAFARIS 03/03/2016 736, KASANE PVT BAG K15 KASANE WORKSHOP AND EQUIPMENT STORAGE
  • 4.
    SOCKETS + LIGHTS- GROUPS, PHASES + BREAKER SIZES DATE: PROJECT: DRAWING: SCALE: DRAWN BY:CLIENT: PLOT: SIGNED:CLIENT ADDRESS: REVISIONS PAGE #: A1L DRAWING NUMBER: / SUBMITTED: ELECTRICAL PLAN POWER LAYOUT 1:50 G H ZS/2016/ELEC/P/01ZAMBEZI SAFARIS 03/03/2016 736, KASANE PVT BAG K15 KASANE WORKSHOP AND EQUIPMENT STORAGE