Jitesh Thakur
BSc. Interior Design +
1 yr. Residential Design Diploma
Dezyne E’cole Ajmer,
Residential Design
Residential Design
What is Residential Design
Residential Design is the design of the interior of private residence. As
this type design is very specific for individual situations, the need and
wants of the individual and paramount in this areas of interior design.
Residential DesignInterior Design
What is Interior Design
Interior Design Is About So Much More Than ‘What Looks Right’. It Is About Taking A
Holistic View Of The Way That Individuals Use And Enjoy The Spaces That They Inhabit. It
Is About Finding And Creating A Cohesive Answer To A Set Of Problems And Dressing .
What is Residential Interior Design
Residential design is an technical work because is implement the working efficiency of
the person living inside the house. As flow of money increase in market, and to maintain
their status in society people need well designed interior, because residence is a place
which denotes the personality of the person living inside the house.
Residential Design
Commercial Design
Case Study
We have to do a space planning for Mr. Mukesh who is a bank manager in State bank
of India. He has a family of two children one boy age 16 and a girl age 12, and a wife
who loves watching TV and Gardening.
We have to device an open plan on a pot size of 50ft x 60ft.
Building is a structure having various components like foundation, wall,
columns, floors, roofs, doors, and various types of surface finishes made
according to NBC (National Building Code of India)
Site Consideration
Location of India :
Location of India in the world is
Northeast direction.
Longitude – 68o E – 98o E
Latitude – 8o NE – 37o NE
Map of Rajasthan
Location of India :
 Location of India in the world is
Northeast direction.
 Longitude – 68o E – 98o E
 Latitude – 8o NE – 37o NE
The India has a tropical monsoon
climate, since the greater larger part of
the country lies within the tropics.
Major Landmarks
 Distance from the Major Landmarks –
 Shopping center (1.2Km)
 Hospital (350m)
 Bus stand (1Km)
 Railway station (2.5Km)
 Dimension of site (50’x60’)
Location Of Site
Savitri
College
1
Residential Zone
6
Savitri College
1
R.T.D.C.
2
MainRoad
3
Main Road
3
Ajmer
Hospital
5
Site
4
Connectivity Of The Site To The Main Road And Sun Roads, To Major Landmarks Like
Railway Station, Bus Stop, Shopping Center, School, Etc. Must Be Check. Distance From
The Major Landmarks Are -
 SITE PLAN SPECIFICATION
1.Savitri College
2.R.T.D.C
3.Main Road
4.Site
5.Ajmer Hospital
6.Residential Zone
Orientation Of Site
Savitri
College
1
Residential Zone
6
Savitri College
1
R.T.D.C.
2
MainRoad
3
Main Road
3
Ajmer
Hospital
5
Site
4
Before considering any plan we first study about the orientation of the plot, by using
compass we identify North, East, South, and West direction. And with the help of
orientation we decide the face of house.
The orientation of the site given is north south direction. The north direction doesn’t
have heat rays of sun it only has sun’s light. That is why the north direction has comes
in shaded zone.
North
East
Acceptable
quadrant for
window
orientation
Summer Sun
Preferred zone for
building orientation
South
Climatology
Climatology is the branch which deals with the
climate and changes throughout the year of the
weather.
 Macro Climate of India :
Location of India in the world is Northeast
Direction.
Longitude – 68o E – 98o E
Latitude – 8o NE – 37o NE
The whole India has a tropical monsoon climate,
since the greater part of the country lies within
the tropics.
Climate can be sub-divided into two major
divisions :
1.Macro Climate
2.Micro Climate
Macro Climate
Macro climate are characterized by quantitative indexes. That refers to the entire
area being considered I.E. Intervals with which particular climatic characteristics
change throughout the area or their average value for the entire area. The macro
climate is contrasted with local climate and macro climate.
Micro Climate
The micro climate around the building, taking advantage of existing topographical,
adjacent building and vegetation for solar protection. Good site layout can also take
grate advantage of local breezes by the formation of air funnels and also add natural
ventilation by staggering the building layout.
Layout of Site
The Building Bye-laws followed by giving set backs. And landscaping given in the plot.
Bio Climatic Design
Bioclimatic Design
Bioclimatic design has developed out a sensitivity to ecological and regional contexts
and the need to conserve energy and environmental resources. Bioclimatic
approaches to architecture offer a way to design for a long term and sustainable use
of environmental and material resources.
Natural ventilation can provide comfort in all seasons, especially in summer
when it can reduce or eliminate the need for air conditioning in some climates
Bioclimatic Design Strategies
(1) In Rajasthan southern sun shines brightly and straight roof transfer heat
immediately so while planning any space we need to design slanted roof towards the
southern direction which will tends to leaser heating of the roof and the heat
transfer time will be decrease.
(2) Use Deciduous trees in southern direction to decrease the speed
of air comes inside the house.
Bioclimatic Design Strategies
(3) Water bodies should be taken up in south direction because air carry’s moisture
with them which will help to decrease the temperature inside the house.
.
(4) Water bodies should be taken up in south direction because air
carry’s moisture with them which will help to decrease the
temperature inside the house.
Green building
Green Building
Green building and sustainable design are used interchangeably to describe any
building design in an environmentally sensitive manner. . This system was developed
by Unites State Green Building Council (USGBC).
.
Orientation
Before considering any plan we first study about the orientation of the plot, by
using compass we identify North, East, south and west direction. And with
orientation we decide the face of house.
North
South
East West
Daylight Design
Day lighting
. Day lighting refers to the use of natural light, be it brilliant sunlight or muted
overcast light. Day lighting has been touted for its many aesthetics and health
benefits by designers and researchers alike.
• Other Important Points :
(1) Use vertical windows for proper sunlight.
(2) Use Clerestory and skylight windows for sunlight of intense sun.
Green building
Overhang Design
OVERHANG
Overhangs can be very useful for intense sun and rain control. They also reduce the
glare of daylight. As an interior designer we pay attention to overhangs. . A house
with improper overhangs can overheat in the summer, can suffer from water entry
problems at windows and doors, and can have premature siding rot.
Types of Overhang –
• Roof overhang - Roof overhang protect siding, doors, and windows from rot and
water entry. The most important function of wide roof overhang is to help keep
water off doors and windows
(2) Window overhang –
 Light Shelves – windows receive a large amount of energy from the sun. Light
shelve is an horizontal plane placed below the top of a window, usually just above
door height allow light to reflected from its upper surface to the ceiling height.
Overhang Design
Window Design
Window
It is an opening in the wall of a building , for the admission of light and air . Such an
opening with the frame , sashes, and panels of glass or any other device by which it
is closed.
The selection of size, shape, location and number of windows to be provided in a
room depends upon the following considerations:
1.Size of room to be lighted
2.Location of the room and its utility
3.Direction of wind and its speed
4.Climatic conditions of the site such as humidity, temperature variation etc.
 Design of Windows-
1.The size and number of windows should be sufficient to provide adequate light and
ventilation in the room.
2.Windows should be located opposite to each other wherever possible
3.The window sill should be placed at 75 to 100cm above the floor level.
4.Buildings in humid region need special attention for adequate ventilation of the
room.
 Window Placement for Day lighting -
(1) Centered Window –
(2) Turning a corner –
(3) Skylight –
(4) Horizontal –
(5) Off center –
(6) Window Wall –
(7) Vertical –
 Classification of Windows -
1. Fixed Window
2. Pivoted Window
3. Double Hung Window
4. Sliding Window
5. Casement Window
6. Sash and Glazed
7. Louvered Window
8. Metal Window
9. Bay Window
10. Clerestory Window
11. Corner Window
12. Dormer and Gable Window
13. Skylights and Fanlights
TOPOGRAPHY
 Topography refers to the configuration surface features of a plot of land, which
influences where and how to build and develop a site. The microclimate of a site is
influenced by the ground elevation, the nature and orientation of landforms, and the
presence of bodies of water
LANDSCAPING
Landscaping design is the art of arranging of modifying the features of a landscape,
an urban area, etc. for aesthetics or practical purposes.
Landscape Design :
• Landscape design creates practical and pleasing outdoor living space.
• Landscape design develops a series of outdoor room.
• landscape design brings the family’s wants, needs, and values into the design.
Residential Design
LANDSCAPING
Staircase Design
Staircase
A stair may be defined as the series of steps suitably arranged for the purpose of
connecting different floors of A building. It is an arrangement of treads, risers,
stringers, newel posts, handrails and baluster, so designed and constructed as to
provide an easy and quick access to the different floors, rendering comfort and safety
to the users.
 Classification of Stairs –
1. Straight Stairs – The most obvious use of the straight stair is to form an access to
entrance, porch or portico. Straight stair cannot be avoided in places.
2. Dog-legged stairs – It consists of two straight flights of steps with
abrupt turn between them.
3. Open-newel Stair – It consists of two or more straight flights
4. Geometrical Stair – Well between the open-newel stair with the difference
that the open onward and the backward flights is curved.
5. Circular Stair – Circular stair is commonly provided at the backside of a building
for rendering to its various floors for service purpose.
Wall Planes
A stair may be defined as the series of steps suitably arranged for the purpose of
connecting different floors of A building. It is an arrangement of treads, risers,
stringers, newel posts, handrails and baluster, so designed and constructed as to
provide an easy and quick access to the different floors, rendering comfort and safety
to the users.
1. Parallel and vertical planes: A pair of parallel vertical planes defines a field of
space between them. The open end of field, established by the vertical
edges
2. L-shaped planes:.
3. U- shaped planes: A U-shape configuration of vertical planes defines a field
of space that has an inward as well as outward orientation.
Approach
An approach refers to the entrance of the building i.e the path way by which the
person get connected with the entrance of the house.
 Types of approach –
 Frontal Approach - A frontal approach leads directly to the entrance
of a building along a straight line, axial path.
2. Oblique Approach – An oblique approach enhance the effect of perspective on
the front façade and form of a building.
3. Spiral Approach – a spiral path prolongs the sequence of the approach and
emphasizes the three-dimensional form of a building as we move around its
perimeter.
Anthropometrics
Interior design is all about space and people. To make a building architecturally
successful, the link between the space and inhabitant of that space is very important
Ergonomics
Ergonomics is the scientific discipline concerned with the understanding of
interactions among human and other elements of system & profession
Living Room
Passage Behind Chairs
The minimum space recommended for
passage behind chairs is 22 inches, a
satisfactory range is 22 to 25 inches. If
passage behind the chairs is not
required, a minimum of 5 inches plus
the depth of the chair must be provided
for pushing back chair while leaving the
table.
Size of place setting
The minimum width needed for each
place setting is 21 inches. How ever a
width of up of 29 inches is desirable
for greater freedom of movement. A
25-inch width is usually adequate;
this permits chairs 19 inches wide to
be placed 6 inches apart. The
minimum depth for place setting is 14
½ inches. These dimensions allow
space for china, glassware, silver and
elbow.
Jitesh Thakur
B.Sc.- Interior Design
I Year Residential Diploma
Dezyne E’cole College
www.dezyneecole.com
Dining Room Space Planning
Standard Dimensions
Standard Dimensions
Top Plan of the Dining Room
Dining Room
S.No
.
Object
Furniture
Standard
Dimensions
Optimum
Dimensions
1 Single Chair 1’6”x2’ 2’x2’
2 Dining Table 5’ Varies
3 Powder Room 4’x4’ Varies
4 Window 5’ 7’
5 Door 4’ 6’
6 Main circulation 5’ 6’
7 Back circulation 18’’ 24’’
Passage Behind Chairs
The minimum space recommended for
passage behind chairs is 22 inches, a
satisfactory range is 22 to 25 inches. If
passage behind the chairs is not
required, a minimum of 5 inches plus
the depth of the chair must be provided
for pushing back chair while leaving the
table.
Size of place setting
The minimum width needed for each
place setting is 21 inches. How ever a
width of up of 29 inches is desirable
for greater freedom of movement. A
25-inch width is usually adequate;
this permits chairs 19 inches wide to
be placed 6 inches apart. The
minimum depth for place setting is 14
½ inches. These dimensions allow
space for china, glassware, silver and
elbow.
Jitesh Thakur
B.Sc.- Interior Design
I Year Residential Diploma
Dezyne E’cole College
www.dezyneecole.com
Dining Room Space Planning
Standard Dimensions
Standard Dimensions
Top Plan of the Dining Room
Dining Room
S.n
o
Object
Furniture
Standard
Dimensions
Optimum
Dimensions
1 Dining 4’x4’ 5’x5’
2 Chair 18’’x24’’ 24’’x24’’
3 Powder room 4’x4’ 4’x4’
4 Storage cabinet 3’6’’x2’ Varies
5 Back circulation 18’’ 24’’
6 Main circulation 5’ 6’
7 Window 4’ Varies
8 Door 4’ 6’
Passage Behind Chairs
The minimum space recommended for
passage behind chairs is 22 inches, a
satisfactory range is 22 to 25 inches. If
passage behind the chairs is not
required, a minimum of 5 inches plus
the depth of the chair must be provided
for pushing back chair while leaving the
table.
Size of place setting
The minimum width needed for each
place setting is 21 inches. How ever a
width of up of 29 inches is desirable
for greater freedom of movement. A
25-inch width is usually adequate;
this permits chairs 19 inches wide to
be placed 6 inches apart. The
minimum depth for place setting is 14
½ inches. These dimensions allow
space for china, glassware, silver and
elbow.
Jitesh Thakur
B.Sc.- Interior Design
I Year Residential Diploma
Dezyne E’cole College
www.dezyneecole.com
Dining Room Space Planning
Standard Dimensions
Standard Dimensions
Top Plan of the Dining Room
Dining Room
S.n
o
Object
Furniture
Standard
Dimensions
Optimum
Dimensions
1 Table size 9’6’’x5’6’’ 12’x6’
2 Chair Size 18’’x24’’ 24’’x24’’
3 Back circulation 18’’ 24’’
4 Main circulation 5’ 6’
5 Storage Cabinet 4’4’’x2’ Varies
6 Window 4’ Varies
7 Door 4’ 6’
PLANNING PROCESS
Some points are necessary to be kept in consideration.
 Aspect :
 Prospect :
 Grouping :
 Circulation :
 Sanitation :
Building Bye Laws
 Building Bye- Laws - Building bye-laws consists of certain rules and
regulations framed by a municipal or town planning or urban development board to
control the development of area under its jurisdiction
Louis Kahn Principles
 Every human being has a different personality that
consist of one or more characteristics.
 LEADER/FOLLOWING:
 GROUPING:
 LONER:
 SERVANT:
 WORKER:
 WATCHER:
 OUTREACHING:
Elements of Design
The elements are components or parts which can be isolated and defined in any
visual design or work of art.
(1) Line –
(2) Shape -
(3) Color –
(4) Texture -
(5) Pattern –
(6) Movement -
Principles of Design
(1) Balance –
(2) Proportion -
Principles of Design
(3) Rhythm –
(4) Emphasis -
(3) Unity –
Architectural Layouts
3D View Of House
Front Elevation
3D Night View
Left Elevation Right Elevation
Back Elevation
Front Elevation with Daylight
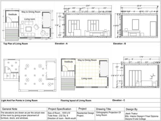
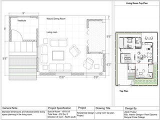
Case Study
From the plot size of 50’x60’, I have designed an living room of size 15’x15’6’’. The
requirement of the client is to give the reading area and the sitting area for guests.
And a window so that he can feel connected with the exterior environment.
Architectural Layout
Of Living Room
Mood-Vital
Vitality and enthusiasm are best
promoted in design and graphics by
using the hue most commonly known
as vermillion, or any of its many tints
and shades. By using color
combinations with this red-orange hue
at the center, a feeling of vigor and
warmth can easily be created. These
combinations are youthful and playful
and are often seen in advertisement
displaying energetic lifestyles and
personalities. The combination of red-
orange partnered with its
complements. The following colors are
procured from Asian paints color
pallet.
Colours
Living
Room
Perfect Peach
8000
Dreamside
7954
Orange Appeal
7949
Contemporary
StyleContemporary interior design is the opposite of
classic. It is bold and trendy and emphasizes
popular design. In contemporary homes,
shapes and texture take the spotlight. Natural
materials, such as lines and jute are often
paired with curvy, geometric furniture and mix
and match metal and wood, unlike stark
modern or elegant traditional spaces, a
contemporary house is not afraid of colors,
bright, contrasting hues and stark black and
white are both often found in this interior
design style. Contemporary style is often
defined by clean lines with a casual
atmosphere, open spaces, natural colors, and
elements and material inspired by nature.
Chevron pattern, chalkboard paint and plastic
furniture might be popular today, but
contemporary decorating ideas always evolves
to stay on top of what’s new. When it comes to
contemporary architecture dramatic and
shapes are must have components, white
indoor-outdoor living, open floor plans and
natural light are also key.
Living Room
Way to Dining Room
Living Room
Entrance
Vestibule
Residential Design
Living Room
RoomWay to Dining Room
Living Room
Entrance
Vestibule
Wall 1
Contemporary
Style Wall Board
Wall 1
Marshalls-non woven Fabric yellows
wallpaper
Window Type – Casement Window
Size – 6ft. X 5ft.
Company – Local Market
Material – Wood and Glass
Size – 0.54mtr. x 10mtr. = 5.4sq.mtr
(58sq.ft)
Contemporary
Style
Living
RoomWay to Dining Room
Living Room
Entrance
Vestibule
Wall Board
2
Wall 2
Color –
Company – Asian Paints
Dreamside
7954
Window Type –Picture Window
Size – 3ft. X 5ft.
Company – Local Market
Material – Wood and Glass
Contemporary
Style
Living Room
Room
Way to Dining Room
Living RoomEntrance
Vestibule
Floor Board
Way to Dining Room
Living Room
Entrance
Vestibule
Wooden Flooring
Types of Flooring
Vitrified Tile Flooring
Ceramic Flooring
Marble and quartz Rio Crema Dune
300x300 mm
Company – NITCO tiles
Ceramic Tile
Company – Asterlano
Price – 3,495Rs
Material – Wool
Color - Orange
Size - 96in. X 60in. (LXB)
Machine made
CARPET
Contemporary
Style
Living Room
Room
Light Board
Brand – The light house
Size – 12in. X 12in x 57in.
Price –1,655 Rs.
Shade Color – Off White
Base Color – Black
Shade Material – Poly cotton
Brand– SGC
Size – 28in x 4in.
Price –3,567 Rs.
Shade Color – Off White
Material - Metal
Site - Woodworth
Size – 9in. X 6in.
Shade – 16in. (Dia.)
Shade Height – 10in.
Price –2,039 Rs.
Base Color – Walnut Color
Weight – 3.5 Kg.
Brand – Philips
Size – 12in. X 4in.
Price – 11$
Base Color – Brown
Brand – Philips
Size – Area 30sq. Mtr.
Price – 8,807
Base Color – Brown
Model No. – L8669
Brand – Philips
Size – 6in. X 4in.
Price – 3,734 Rs.
Base Color – Silver
Brand – Crompton
Size – 6in. X 6in.
Price – 850 Rs.
Power – 2W
Brand – SGC
Size – 8in. X 4in.
Price - 2,279 Rs.
Color – Silver
Contemporary
Style
Living RoomAccessories Board
Brand – Local Market
Size – 30in x 20in.
Price –1,800 Rs.
Frame Color – Black
Material - Wood
Brand – Sanskruti
Size – 6.3in.(L) x 6.3in.(W) x 8.7in.(H)
Price –967 Rs.
Color – Orange
Material - Glass
Living RoomLiving Room
Room
Brand – Sanskruti
Size – 11.5in.(L) x 7.6in.(W) x 14in.(H)
Price – 2,583 Rs.
Color – Orange
Material – Polyresin
Weight – 850 Gram
Color - white
Brand – Decardo Flower Vase
Size – 3.5in. (Dia.) x 13in.(H)
Price –392 Rs.
Color – Orange
Material – Ceramic
Weight – 800 Gram
Brand – Local Market
Size – 20in x 20in.
Price –351 Rs.
Color – Orange, Brown & White
Material - Upholstery
Company – Asterlano
Price – 3,495Rs
Material – Wool
Color - Orange
Size - 96in. X 60in. (LXB)
Machine made
Brand – Marigold
Size – 90in x 48in.
Price – 1727 Rs.
Color – Beige
Material - Polyester
Brand – Local Market
Size – 12in. (Dia.)
Price – 831 Rs.
Color – Brown
Material – Wood And
Glass
Contemporary
Style Way to Dining Room
Living Room
Entrance
Vestibule
Furniture Board
1.
2.
3.
4.
6.
5.
7.
8.
S.No Brand Price (Rs) Material
Dimension
(LXBXD)
1.
2.
3.
4.
5.
6.
7.
Local Market
Prestige
Woodsworth
Florinaopolis
No-branco
No-branco
Sba Furniture
4,500
3,586
5,567
11,550
17,550
3,586
3,723
Wood&
Leather
Solid wood
Mango wood
Polyester
Polyester
Wood&
glass
Polyester
32’’x32’’
22’’x18’’x18’’
14’’x40’’x40’’
30’’x30’’x33’’
30’’x57’’x33’’
30’’x69’’x33’’
28’’x18’’x18’’
8.
Tomel Wall
Shelf 3,499 Wood 36’’x30’x9’’
Residential Design
Living Room
Wall 2
Assignment
Top Plan 1,3,5
Project
Note Project Report Drawing Title Date of Project Submitted To Submitted By
Date of Given-
Date of Sub.-
Residential Design Double Flemish Bond Dezyne E’cole College
www.dezyneecole.com
Jitesh Thakur
Ist Year Diploma
Top Plan 2,4,6
Elevation
3d View Isometric View
Header
Streather
- Flemish Bond
Double Flemish Bond
In this each course presents
the same appearance both in
the front and back elevations.
Every course consists of
headers and stretchers laid
alternately.
Weathered pointing used in
the face work of the wall. In
this the mortar is cut or
struck off with a trowel.
Weathered joint is effective
because it shades water.
Half Bat
Stretcher
Quarter queen
clouser
Queen closure
Header
Pointing Top plan
Weathered pointing
In this arrangement each
course consists of alternate
header and stretcher. The
alternate header of each
course are centered over the
stretchers in the course below.
Every alternate course starts
with a header at the corner .
For the breaking of vertical
joints in the successive
courses, closers are inserted in
alternate courses next to the
quoin header.
1st Course
2nd Course
Mortar layer
Top Plan 1,3,5 Project
Note Project Report Drawing Title Date of Project Submitted To Submitted By
Date of Given-
Date of Sub.-
Residential Design English Bond Dezyne E’cole College
www.dezyneecole.com
Jitesh Thakur
Ist Year Diploma
Top Plan 2,4,6
Elevation
3d View Isometric View
This bond consists of
alternate course of header
and stretcher. In this
arrangement, vertical joints
in the header courses come
over each other and the
vertical joints in the
stretcher course are also in
the same line. For the
breaking of vertical joints in
the successive course it is
essential to place queen
closer, after the first header
in each heading course.
Pointing
Header
Stretcher
Header
Stretcher
Queen closure
Concave pointing is
used in the face work of
the wall
Quarter Queen closure
Top plan
Concave pointing
Tooled joint is used because
it provides maximum
protection against water
penetration and are used in
areas subject to high wind
and heavy rains.
Mortar layer
1st Course
2nd Course
Thank You

Jitesh Thakur, Residential Designer

  • 1.
    Jitesh Thakur BSc. InteriorDesign + 1 yr. Residential Design Diploma Dezyne E’cole Ajmer, Residential Design
  • 2.
  • 3.
    What is ResidentialDesign Residential Design is the design of the interior of private residence. As this type design is very specific for individual situations, the need and wants of the individual and paramount in this areas of interior design.
  • 6.
  • 7.
    What is InteriorDesign Interior Design Is About So Much More Than ‘What Looks Right’. It Is About Taking A Holistic View Of The Way That Individuals Use And Enjoy The Spaces That They Inhabit. It Is About Finding And Creating A Cohesive Answer To A Set Of Problems And Dressing .
  • 9.
    What is ResidentialInterior Design Residential design is an technical work because is implement the working efficiency of the person living inside the house. As flow of money increase in market, and to maintain their status in society people need well designed interior, because residence is a place which denotes the personality of the person living inside the house.
  • 10.
  • 13.
  • 14.
    Case Study We haveto do a space planning for Mr. Mukesh who is a bank manager in State bank of India. He has a family of two children one boy age 16 and a girl age 12, and a wife who loves watching TV and Gardening. We have to device an open plan on a pot size of 50ft x 60ft.
  • 15.
    Building is astructure having various components like foundation, wall, columns, floors, roofs, doors, and various types of surface finishes made according to NBC (National Building Code of India) Site Consideration Location of India : Location of India in the world is Northeast direction. Longitude – 68o E – 98o E Latitude – 8o NE – 37o NE
  • 16.
    Map of Rajasthan Locationof India :  Location of India in the world is Northeast direction.  Longitude – 68o E – 98o E  Latitude – 8o NE – 37o NE The India has a tropical monsoon climate, since the greater larger part of the country lies within the tropics.
  • 17.
    Major Landmarks  Distancefrom the Major Landmarks –  Shopping center (1.2Km)  Hospital (350m)  Bus stand (1Km)  Railway station (2.5Km)  Dimension of site (50’x60’)
  • 18.
    Location Of Site Savitri College 1 ResidentialZone 6 Savitri College 1 R.T.D.C. 2 MainRoad 3 Main Road 3 Ajmer Hospital 5 Site 4 Connectivity Of The Site To The Main Road And Sun Roads, To Major Landmarks Like Railway Station, Bus Stop, Shopping Center, School, Etc. Must Be Check. Distance From The Major Landmarks Are -  SITE PLAN SPECIFICATION 1.Savitri College 2.R.T.D.C 3.Main Road 4.Site 5.Ajmer Hospital 6.Residential Zone
  • 19.
    Orientation Of Site Savitri College 1 ResidentialZone 6 Savitri College 1 R.T.D.C. 2 MainRoad 3 Main Road 3 Ajmer Hospital 5 Site 4 Before considering any plan we first study about the orientation of the plot, by using compass we identify North, East, South, and West direction. And with the help of orientation we decide the face of house. The orientation of the site given is north south direction. The north direction doesn’t have heat rays of sun it only has sun’s light. That is why the north direction has comes in shaded zone. North East Acceptable quadrant for window orientation Summer Sun Preferred zone for building orientation South
  • 20.
    Climatology Climatology is thebranch which deals with the climate and changes throughout the year of the weather.  Macro Climate of India : Location of India in the world is Northeast Direction. Longitude – 68o E – 98o E Latitude – 8o NE – 37o NE The whole India has a tropical monsoon climate, since the greater part of the country lies within the tropics. Climate can be sub-divided into two major divisions : 1.Macro Climate 2.Micro Climate
  • 21.
    Macro Climate Macro climateare characterized by quantitative indexes. That refers to the entire area being considered I.E. Intervals with which particular climatic characteristics change throughout the area or their average value for the entire area. The macro climate is contrasted with local climate and macro climate.
  • 22.
    Micro Climate The microclimate around the building, taking advantage of existing topographical, adjacent building and vegetation for solar protection. Good site layout can also take grate advantage of local breezes by the formation of air funnels and also add natural ventilation by staggering the building layout.
  • 23.
    Layout of Site TheBuilding Bye-laws followed by giving set backs. And landscaping given in the plot.
  • 24.
  • 25.
    Bioclimatic Design Bioclimatic designhas developed out a sensitivity to ecological and regional contexts and the need to conserve energy and environmental resources. Bioclimatic approaches to architecture offer a way to design for a long term and sustainable use of environmental and material resources. Natural ventilation can provide comfort in all seasons, especially in summer when it can reduce or eliminate the need for air conditioning in some climates
  • 26.
    Bioclimatic Design Strategies (1)In Rajasthan southern sun shines brightly and straight roof transfer heat immediately so while planning any space we need to design slanted roof towards the southern direction which will tends to leaser heating of the roof and the heat transfer time will be decrease. (2) Use Deciduous trees in southern direction to decrease the speed of air comes inside the house.
  • 27.
    Bioclimatic Design Strategies (3)Water bodies should be taken up in south direction because air carry’s moisture with them which will help to decrease the temperature inside the house. . (4) Water bodies should be taken up in south direction because air carry’s moisture with them which will help to decrease the temperature inside the house.
  • 28.
  • 29.
    Green Building Green buildingand sustainable design are used interchangeably to describe any building design in an environmentally sensitive manner. . This system was developed by Unites State Green Building Council (USGBC). .
  • 30.
    Orientation Before considering anyplan we first study about the orientation of the plot, by using compass we identify North, East, south and west direction. And with orientation we decide the face of house. North South East West
  • 31.
  • 32.
    Day lighting . Daylighting refers to the use of natural light, be it brilliant sunlight or muted overcast light. Day lighting has been touted for its many aesthetics and health benefits by designers and researchers alike.
  • 34.
    • Other ImportantPoints : (1) Use vertical windows for proper sunlight. (2) Use Clerestory and skylight windows for sunlight of intense sun.
  • 35.
  • 36.
    OVERHANG Overhangs can bevery useful for intense sun and rain control. They also reduce the glare of daylight. As an interior designer we pay attention to overhangs. . A house with improper overhangs can overheat in the summer, can suffer from water entry problems at windows and doors, and can have premature siding rot. Types of Overhang – • Roof overhang - Roof overhang protect siding, doors, and windows from rot and water entry. The most important function of wide roof overhang is to help keep water off doors and windows
  • 37.
    (2) Window overhang–  Light Shelves – windows receive a large amount of energy from the sun. Light shelve is an horizontal plane placed below the top of a window, usually just above door height allow light to reflected from its upper surface to the ceiling height.
  • 38.
  • 39.
    Window It is anopening in the wall of a building , for the admission of light and air . Such an opening with the frame , sashes, and panels of glass or any other device by which it is closed. The selection of size, shape, location and number of windows to be provided in a room depends upon the following considerations: 1.Size of room to be lighted 2.Location of the room and its utility 3.Direction of wind and its speed 4.Climatic conditions of the site such as humidity, temperature variation etc.  Design of Windows- 1.The size and number of windows should be sufficient to provide adequate light and ventilation in the room. 2.Windows should be located opposite to each other wherever possible 3.The window sill should be placed at 75 to 100cm above the floor level. 4.Buildings in humid region need special attention for adequate ventilation of the room.
  • 40.
     Window Placementfor Day lighting - (1) Centered Window – (2) Turning a corner –
  • 41.
    (3) Skylight – (4)Horizontal –
  • 42.
    (5) Off center– (6) Window Wall –
  • 43.
    (7) Vertical – Classification of Windows - 1. Fixed Window
  • 44.
    2. Pivoted Window 3.Double Hung Window
  • 45.
    4. Sliding Window 5.Casement Window
  • 46.
    6. Sash andGlazed 7. Louvered Window
  • 47.
  • 48.
  • 49.
    12. Dormer andGable Window 13. Skylights and Fanlights
  • 50.
    TOPOGRAPHY  Topography refersto the configuration surface features of a plot of land, which influences where and how to build and develop a site. The microclimate of a site is influenced by the ground elevation, the nature and orientation of landforms, and the presence of bodies of water
  • 52.
    LANDSCAPING Landscaping design isthe art of arranging of modifying the features of a landscape, an urban area, etc. for aesthetics or practical purposes. Landscape Design : • Landscape design creates practical and pleasing outdoor living space. • Landscape design develops a series of outdoor room. • landscape design brings the family’s wants, needs, and values into the design.
  • 53.
  • 54.
  • 55.
    Staircase A stair maybe defined as the series of steps suitably arranged for the purpose of connecting different floors of A building. It is an arrangement of treads, risers, stringers, newel posts, handrails and baluster, so designed and constructed as to provide an easy and quick access to the different floors, rendering comfort and safety to the users.  Classification of Stairs – 1. Straight Stairs – The most obvious use of the straight stair is to form an access to entrance, porch or portico. Straight stair cannot be avoided in places.
  • 56.
    2. Dog-legged stairs– It consists of two straight flights of steps with abrupt turn between them. 3. Open-newel Stair – It consists of two or more straight flights
  • 57.
    4. Geometrical Stair– Well between the open-newel stair with the difference that the open onward and the backward flights is curved. 5. Circular Stair – Circular stair is commonly provided at the backside of a building for rendering to its various floors for service purpose.
  • 58.
    Wall Planes A stairmay be defined as the series of steps suitably arranged for the purpose of connecting different floors of A building. It is an arrangement of treads, risers, stringers, newel posts, handrails and baluster, so designed and constructed as to provide an easy and quick access to the different floors, rendering comfort and safety to the users.
  • 59.
    1. Parallel andvertical planes: A pair of parallel vertical planes defines a field of space between them. The open end of field, established by the vertical edges 2. L-shaped planes:. 3. U- shaped planes: A U-shape configuration of vertical planes defines a field of space that has an inward as well as outward orientation.
  • 60.
    Approach An approach refersto the entrance of the building i.e the path way by which the person get connected with the entrance of the house.  Types of approach –  Frontal Approach - A frontal approach leads directly to the entrance of a building along a straight line, axial path.
  • 61.
    2. Oblique Approach– An oblique approach enhance the effect of perspective on the front façade and form of a building. 3. Spiral Approach – a spiral path prolongs the sequence of the approach and emphasizes the three-dimensional form of a building as we move around its perimeter.
  • 63.
    Anthropometrics Interior design isall about space and people. To make a building architecturally successful, the link between the space and inhabitant of that space is very important
  • 65.
    Ergonomics Ergonomics is thescientific discipline concerned with the understanding of interactions among human and other elements of system & profession
  • 66.
  • 67.
    Passage Behind Chairs Theminimum space recommended for passage behind chairs is 22 inches, a satisfactory range is 22 to 25 inches. If passage behind the chairs is not required, a minimum of 5 inches plus the depth of the chair must be provided for pushing back chair while leaving the table. Size of place setting The minimum width needed for each place setting is 21 inches. How ever a width of up of 29 inches is desirable for greater freedom of movement. A 25-inch width is usually adequate; this permits chairs 19 inches wide to be placed 6 inches apart. The minimum depth for place setting is 14 ½ inches. These dimensions allow space for china, glassware, silver and elbow. Jitesh Thakur B.Sc.- Interior Design I Year Residential Diploma Dezyne E’cole College www.dezyneecole.com Dining Room Space Planning Standard Dimensions Standard Dimensions Top Plan of the Dining Room Dining Room S.No . Object Furniture Standard Dimensions Optimum Dimensions 1 Single Chair 1’6”x2’ 2’x2’ 2 Dining Table 5’ Varies 3 Powder Room 4’x4’ Varies 4 Window 5’ 7’ 5 Door 4’ 6’ 6 Main circulation 5’ 6’ 7 Back circulation 18’’ 24’’
  • 68.
    Passage Behind Chairs Theminimum space recommended for passage behind chairs is 22 inches, a satisfactory range is 22 to 25 inches. If passage behind the chairs is not required, a minimum of 5 inches plus the depth of the chair must be provided for pushing back chair while leaving the table. Size of place setting The minimum width needed for each place setting is 21 inches. How ever a width of up of 29 inches is desirable for greater freedom of movement. A 25-inch width is usually adequate; this permits chairs 19 inches wide to be placed 6 inches apart. The minimum depth for place setting is 14 ½ inches. These dimensions allow space for china, glassware, silver and elbow. Jitesh Thakur B.Sc.- Interior Design I Year Residential Diploma Dezyne E’cole College www.dezyneecole.com Dining Room Space Planning Standard Dimensions Standard Dimensions Top Plan of the Dining Room Dining Room S.n o Object Furniture Standard Dimensions Optimum Dimensions 1 Dining 4’x4’ 5’x5’ 2 Chair 18’’x24’’ 24’’x24’’ 3 Powder room 4’x4’ 4’x4’ 4 Storage cabinet 3’6’’x2’ Varies 5 Back circulation 18’’ 24’’ 6 Main circulation 5’ 6’ 7 Window 4’ Varies 8 Door 4’ 6’
  • 69.
    Passage Behind Chairs Theminimum space recommended for passage behind chairs is 22 inches, a satisfactory range is 22 to 25 inches. If passage behind the chairs is not required, a minimum of 5 inches plus the depth of the chair must be provided for pushing back chair while leaving the table. Size of place setting The minimum width needed for each place setting is 21 inches. How ever a width of up of 29 inches is desirable for greater freedom of movement. A 25-inch width is usually adequate; this permits chairs 19 inches wide to be placed 6 inches apart. The minimum depth for place setting is 14 ½ inches. These dimensions allow space for china, glassware, silver and elbow. Jitesh Thakur B.Sc.- Interior Design I Year Residential Diploma Dezyne E’cole College www.dezyneecole.com Dining Room Space Planning Standard Dimensions Standard Dimensions Top Plan of the Dining Room Dining Room S.n o Object Furniture Standard Dimensions Optimum Dimensions 1 Table size 9’6’’x5’6’’ 12’x6’ 2 Chair Size 18’’x24’’ 24’’x24’’ 3 Back circulation 18’’ 24’’ 4 Main circulation 5’ 6’ 5 Storage Cabinet 4’4’’x2’ Varies 6 Window 4’ Varies 7 Door 4’ 6’
  • 70.
  • 71.
    Some points arenecessary to be kept in consideration.  Aspect :  Prospect :  Grouping :  Circulation :  Sanitation :
  • 72.
    Building Bye Laws Building Bye- Laws - Building bye-laws consists of certain rules and regulations framed by a municipal or town planning or urban development board to control the development of area under its jurisdiction
  • 73.
    Louis Kahn Principles Every human being has a different personality that consist of one or more characteristics.  LEADER/FOLLOWING:  GROUPING:
  • 74.
  • 75.
  • 76.
    Elements of Design Theelements are components or parts which can be isolated and defined in any visual design or work of art. (1) Line – (2) Shape -
  • 77.
  • 78.
  • 79.
    Principles of Design (1)Balance – (2) Proportion -
  • 80.
    Principles of Design (3)Rhythm – (4) Emphasis -
  • 81.
  • 82.
  • 93.
  • 94.
  • 95.
  • 96.
    Left Elevation RightElevation Back Elevation Front Elevation with Daylight
  • 99.
    Case Study From theplot size of 50’x60’, I have designed an living room of size 15’x15’6’’. The requirement of the client is to give the reading area and the sitting area for guests. And a window so that he can feel connected with the exterior environment.
  • 100.
  • 106.
    Mood-Vital Vitality and enthusiasmare best promoted in design and graphics by using the hue most commonly known as vermillion, or any of its many tints and shades. By using color combinations with this red-orange hue at the center, a feeling of vigor and warmth can easily be created. These combinations are youthful and playful and are often seen in advertisement displaying energetic lifestyles and personalities. The combination of red- orange partnered with its complements. The following colors are procured from Asian paints color pallet. Colours Living Room Perfect Peach 8000 Dreamside 7954 Orange Appeal 7949
  • 107.
    Contemporary StyleContemporary interior designis the opposite of classic. It is bold and trendy and emphasizes popular design. In contemporary homes, shapes and texture take the spotlight. Natural materials, such as lines and jute are often paired with curvy, geometric furniture and mix and match metal and wood, unlike stark modern or elegant traditional spaces, a contemporary house is not afraid of colors, bright, contrasting hues and stark black and white are both often found in this interior design style. Contemporary style is often defined by clean lines with a casual atmosphere, open spaces, natural colors, and elements and material inspired by nature. Chevron pattern, chalkboard paint and plastic furniture might be popular today, but contemporary decorating ideas always evolves to stay on top of what’s new. When it comes to contemporary architecture dramatic and shapes are must have components, white indoor-outdoor living, open floor plans and natural light are also key. Living Room Way to Dining Room Living Room Entrance Vestibule Residential Design
  • 108.
    Living Room RoomWay toDining Room Living Room Entrance Vestibule Wall 1 Contemporary Style Wall Board Wall 1 Marshalls-non woven Fabric yellows wallpaper Window Type – Casement Window Size – 6ft. X 5ft. Company – Local Market Material – Wood and Glass Size – 0.54mtr. x 10mtr. = 5.4sq.mtr (58sq.ft)
  • 109.
    Contemporary Style Living RoomWay to DiningRoom Living Room Entrance Vestibule Wall Board 2 Wall 2 Color – Company – Asian Paints Dreamside 7954 Window Type –Picture Window Size – 3ft. X 5ft. Company – Local Market Material – Wood and Glass
  • 110.
    Contemporary Style Living Room Room Way toDining Room Living RoomEntrance Vestibule Floor Board Way to Dining Room Living Room Entrance Vestibule Wooden Flooring Types of Flooring Vitrified Tile Flooring Ceramic Flooring Marble and quartz Rio Crema Dune 300x300 mm Company – NITCO tiles Ceramic Tile Company – Asterlano Price – 3,495Rs Material – Wool Color - Orange Size - 96in. X 60in. (LXB) Machine made CARPET
  • 111.
    Contemporary Style Living Room Room Light Board Brand– The light house Size – 12in. X 12in x 57in. Price –1,655 Rs. Shade Color – Off White Base Color – Black Shade Material – Poly cotton Brand– SGC Size – 28in x 4in. Price –3,567 Rs. Shade Color – Off White Material - Metal Site - Woodworth Size – 9in. X 6in. Shade – 16in. (Dia.) Shade Height – 10in. Price –2,039 Rs. Base Color – Walnut Color Weight – 3.5 Kg. Brand – Philips Size – 12in. X 4in. Price – 11$ Base Color – Brown Brand – Philips Size – Area 30sq. Mtr. Price – 8,807 Base Color – Brown Model No. – L8669 Brand – Philips Size – 6in. X 4in. Price – 3,734 Rs. Base Color – Silver Brand – Crompton Size – 6in. X 6in. Price – 850 Rs. Power – 2W Brand – SGC Size – 8in. X 4in. Price - 2,279 Rs. Color – Silver
  • 112.
    Contemporary Style Living RoomAccessories Board Brand– Local Market Size – 30in x 20in. Price –1,800 Rs. Frame Color – Black Material - Wood Brand – Sanskruti Size – 6.3in.(L) x 6.3in.(W) x 8.7in.(H) Price –967 Rs. Color – Orange Material - Glass Living RoomLiving Room Room Brand – Sanskruti Size – 11.5in.(L) x 7.6in.(W) x 14in.(H) Price – 2,583 Rs. Color – Orange Material – Polyresin Weight – 850 Gram Color - white Brand – Decardo Flower Vase Size – 3.5in. (Dia.) x 13in.(H) Price –392 Rs. Color – Orange Material – Ceramic Weight – 800 Gram Brand – Local Market Size – 20in x 20in. Price –351 Rs. Color – Orange, Brown & White Material - Upholstery Company – Asterlano Price – 3,495Rs Material – Wool Color - Orange Size - 96in. X 60in. (LXB) Machine made Brand – Marigold Size – 90in x 48in. Price – 1727 Rs. Color – Beige Material - Polyester Brand – Local Market Size – 12in. (Dia.) Price – 831 Rs. Color – Brown Material – Wood And Glass
  • 113.
    Contemporary Style Way toDining Room Living Room Entrance Vestibule Furniture Board 1. 2. 3. 4. 6. 5. 7. 8. S.No Brand Price (Rs) Material Dimension (LXBXD) 1. 2. 3. 4. 5. 6. 7. Local Market Prestige Woodsworth Florinaopolis No-branco No-branco Sba Furniture 4,500 3,586 5,567 11,550 17,550 3,586 3,723 Wood& Leather Solid wood Mango wood Polyester Polyester Wood& glass Polyester 32’’x32’’ 22’’x18’’x18’’ 14’’x40’’x40’’ 30’’x30’’x33’’ 30’’x57’’x33’’ 30’’x69’’x33’’ 28’’x18’’x18’’ 8. Tomel Wall Shelf 3,499 Wood 36’’x30’x9’’ Residential Design Living Room
  • 115.
  • 116.
  • 119.
    Top Plan 1,3,5 Project NoteProject Report Drawing Title Date of Project Submitted To Submitted By Date of Given- Date of Sub.- Residential Design Double Flemish Bond Dezyne E’cole College www.dezyneecole.com Jitesh Thakur Ist Year Diploma Top Plan 2,4,6 Elevation 3d View Isometric View Header Streather - Flemish Bond Double Flemish Bond In this each course presents the same appearance both in the front and back elevations. Every course consists of headers and stretchers laid alternately. Weathered pointing used in the face work of the wall. In this the mortar is cut or struck off with a trowel. Weathered joint is effective because it shades water. Half Bat Stretcher Quarter queen clouser Queen closure Header Pointing Top plan Weathered pointing In this arrangement each course consists of alternate header and stretcher. The alternate header of each course are centered over the stretchers in the course below. Every alternate course starts with a header at the corner . For the breaking of vertical joints in the successive courses, closers are inserted in alternate courses next to the quoin header. 1st Course 2nd Course Mortar layer
  • 120.
    Top Plan 1,3,5Project Note Project Report Drawing Title Date of Project Submitted To Submitted By Date of Given- Date of Sub.- Residential Design English Bond Dezyne E’cole College www.dezyneecole.com Jitesh Thakur Ist Year Diploma Top Plan 2,4,6 Elevation 3d View Isometric View This bond consists of alternate course of header and stretcher. In this arrangement, vertical joints in the header courses come over each other and the vertical joints in the stretcher course are also in the same line. For the breaking of vertical joints in the successive course it is essential to place queen closer, after the first header in each heading course. Pointing Header Stretcher Header Stretcher Queen closure Concave pointing is used in the face work of the wall Quarter Queen closure Top plan Concave pointing Tooled joint is used because it provides maximum protection against water penetration and are used in areas subject to high wind and heavy rains. Mortar layer 1st Course 2nd Course
  • 121.