Dezyne E’cole College
By- AASHISH JAIN, B.Sc. Interior Design+1 Year Residential Design Diploma
Residential Design
A design which refers to the design of clients home, the objective is to
create a design that fit the functioning of client’s home so that his energy
efficiency can increase.
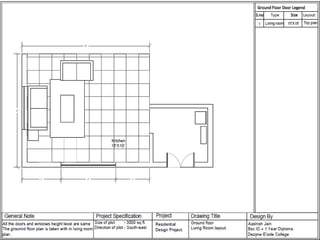
Living Room
Kitchen
Kitchen
Dining Room
Landscaping
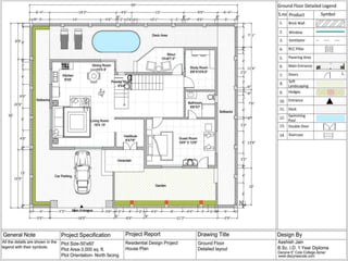
You Are Supposed To Make A Plan Of A House, The Land Area Is 50’x60’ For A Client Mr.
Khan Who Has 4 Members In His Family. He(44) And His Wife(40) And Two Children
Both Are Boys. Apart From The Basic Needs Of The House They Asked For Certain Areas
For Their House Which Are As Follows:
• One Guest Room On The Ground Floor.
• Master Bedroom And Children’s Bedroom Close To Each Other.
• Swimming Pool With A Deck Area.
• Sit Outs
• Attached Living Room, Dining And Kitchen.
• Secondary Living Room.
• As Children Are 12 And 15 Years Of Age, A Study Room Was Required By Mr. Khan.
Site
Consideration
INDIA
India Lies On The INDIAN Plate,
The Northern Portion Of The Indo
Australian Plate, Whose
Continental Crust Forms The Indian
Subcontinent. The Country Is
Situated North Of The Equator
Between 84’ And 376’ North
Latitude And 687’ And 9725’ East
Longitude. It Is The Seventh
Largest Country In The World With
A Total Area Of 3,287,263
Kilometers. India Measures 3214
Km From North To South And 2933
From East To West. It Has A Land
Frontier Of 15,200 Km And A
Coastline Frontier Of 7,517 Km.
Latitude:
Lines OF Latitude Measures North-South Position Between The Poles. The Equator Is Defined As 0, The North Pole Is 90
North And South Pole Is 90 South. Lines Of Latitude Are Parallel To Each Other And Are Referred To As Parallels.
Longitude:
Lines of longitude or meridian run between north and south poles. The measure east-west position. The prime meridian is
assigned the value of 0
Rajasthan
India’s Largest State By Area, Located On The Western Side Of The Country. Western Rajasthan Is Relatively Dry And
Infertile And Southern Part Is Wetter, Hilly And Fertile. On Average, Winter Temperature Range From 8°-28 ° C And
Summer Temperature 25 °-46 ° C. My Site Is Situated In Ajmer.
Longitude- 69° E To 78° E
Latitude- 23° N To 30° N
Ajmer
Ajmer Has A Typical Desert Climate And Hot And Arid. Summers Are
Hot With Maximum Temperature Near 40° C While Minimum Is 28°
C. Winters Are Chilly With Minimum Temperature 5° C.
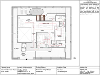
My Site Is Located At Civil Lines,Ajmer.
KEY PLAN OF THE SITE
Savitri
College
1
R.T.D.C
2
Ajmer
Hospital
5
Residential
zone
6
Residential
zone
6
Main Road 3
MainRoad3
Site
4
SITE PLAN SPECIFICATION
1. Savitri College
2. R.T.D.C
3. Main Road
4. Site
5. Ajmer Hospital
6. Residential Zone
The Distance From The Major Landmarks:
• Shopping Center - 1.2 Km
• Railway Station - 2.5 Km
• Bus Stand - 1km
• Hospital – 350 M
• Dimension Of The Site – 50’x60’
• Area Of The Site – 3000 Sq. Ft
MACROCLIMATE
Macroclimate Is The Climate Of A
Large Geographic Areas Such As
Geographic Zones, Continents And
Oceans Or Large Parts Thereof, Or
Even The Entire Earth; It Deals With
Main Climatic Features Of These
Areas. If Such A Part Of The Earth’s
Surface Is Sufficiently Uniform In Its
Geographic Factors And Conditions
Of General Atmospheric Circulation
It Will Have A Certain Macroclimate.
Macroclimate Are Characterized By
Quantitative Indexes That Refer To
The Entire Area Being Considered
That Is, Intervals Which Particular
Climatic Characteristics Change
Throughout The Area Or Their
Average Values For The Entire Area.
The Macroclimate Is Contrasted
With Local Climate And
Microclimate.
Savitri
College
1
R.T.D.C
2
Ajmer
Hospital
5
Residential
zone
6
Residentialzone
6
Main Road 3
MainRoad3
MICROCLIMATE
A Microclimate Is A Local Set Of Atmospheric
Conditions That Differ From Those Of The
Surrounding Area. It Is The Climate Of A Small,
Specific Place Within A Large Area. An Area As
Small As Yard Or Park Can Have Several Different
Microclimate Depending Upon How Much
Sunlight, Shade Or Exposure To The Wind Is There
At A Particular Spot. To Maintain The
Microclimate Of A Space Or A Residential
Building, Various Methods Can Be Used Such As
Landscaping Around The Building, Cavity Wall
Construction, Slanted Roof, Water Bodies And
Also Of Right Material Are The Best Examples Or
We Can Say Methods To Maintain Or Control
Microclimate.
BIOCLIMATIC DESIGN
UNIVERAL DESIGN
MAKING DESIGN ACCESSIBLE TO EVERYONE.
LEED CERTIFICATION
Site Layout
ORIENTATION
Before Planning Any Space, We First Check The Orientation I.E. Direction EWNS Of A Place. We Check The Orientation By Placing A
Compass In Center Of The Plot And The Directions Are Noted. As India Is Located In Northern Hemisphere, We Will Plan According
To The Climatic Conditions I.E. Macroclimate.
NORTH
SOUTH
WEST EAST
WINTER SUN
SUMMER SUN
INTENSE SUN
Preferred
Zone For
Building
Orientation
Acceptable
QUADRANT
Of
Windows
orientation
TOTAL SHADE
BUILDING BYE LAWS
SETBACKS
APPROACH
Frontal Approach Frontal Approach
Top View Isometric View
Frontal Approach- A Frontal Approach Leads Directly To The Entrance Of A Building Along A Straight, Axial Path. The
Visual Goal That Terminates The Approach Is Clear; It May Be The Entire Front Façade Of A Building Or An Elaborated Entrance
Within The Plane.
Oblique Approach Oblique Approach
Top View Isometric View
Oblique Approach- A Oblique Approach Enhances The Effect Of Perspective On The Front Façade And Form Of A Building. The
Path Can Be Redirected One Or More Times To Delay And Prolong The Sequence Of The Approach. If A Building Is Approached At An
Extreme Angle,its Entrance Can Project Beyond Its Façade To Be More Clearly Visible.
Top View
Isometric View
Spiral Approach Spiral Approach
Spiral Approach- A Spiral Path Prolongs The Sequence Of The Approach And Emphasizes The Three Dimensional Form Of A Building
As We Move Around Its Perimeter. The Building Entrance Might Be Viewed Intermittently During The Approach To Clarify Its Position Or
It May Be Hidden Until The Point Of Arrival.
DAYLIGHT
WHY DAYLIGHT IS
NECESSARY?
• AESTHETICS
• PHYSCHOLOGICAL RESPONSE
• HEALTH
• ENERGY/COST
VENTILATION
Ventilation Due To Wind Effect
VENTILATION DUE TO STACK EFFECT
Inlet Inlet
Outlet Outlet
Outlet
Outlet
Inlet Inlet
(a) a>30 (b) a<30 (c) Flat Roof
Suction
Zone
Pressure Zone Pressure Zone Pressure Zone
Suction Zone
WIND PRESSURE AND SUCTION ZONE
Doors
A Door May Be Defined As An Opening Left In A Wall For The
Purposes Of Providing Access To The Users Of The Structures .
Location of doors
1. The Doors Should Be Provided In Opposite
Walls Facing Each Other.
2. Doors Should As Far As Possible Be Located
Near The Corner Of A Room (About 20 Cm
Away From The Corner)
3. Door Should Meet The Functional
Requirements Of The Room.
4. Number Of Doors In A Room Should Be Kept
Minimum To Achieve Optimum Utilization Of
Space. Large Number Of Doors Besides
Causing Obstruction, Consume More Area In
Circulation.
Door Frame
Door Frame Is Made Up Of Two Typical Members Known
As Jambs Or Posts And Flat Member Connecting The
Jambs At Top Called Head. The Cross-sectional
Dimensions Of The Jamb And The Head Are Normally
Kept Same. The Size Of Door Frame Is Worked Out After
Allowing A Clearance Of 5 Mm. All-round For
Convenience Of Fixing The Frame In The Opening.
Types of doors
1. Battened And Ledged Doors
2. Battened Ledged And Braced Doors
3. Battened Ledged, Braced And Framed Doors
4. Framed And Panelled Doors
5. Glazed Or Sash Doors
6. Flush Doors
7. Fly Proof Doors
8. Revolving Doors
9. Sliding Doors
10. Swing Doors
11. Collapsible Steel Doors
12. Rolling Steel Doors
13. Rolling Grill Doors
14. M.S. Sheet Doors
15. Fire Check Doors
Windows
A Window May Be Defined As An Opening Made In A Wall For The
Purpose Of Providing Daylight, Ventilation And Vision.
• Total Area Of Window Opening Should Normally Vary
From 10 To 20% Of The Floor Area Of The Room.In Hot
And Arid Regions It Could Be 10 To 15% Of The Floor
Area.
• In Case Of Public Buildings Like, Schools, Offices,
Factories, Hospitals Etc. The Minimum Area Of
Windows Should Be 20% Of The Floor Area.
• For Adequate Natural Light, The Area Of Glass Panes In
Windows Should Be At Least 8% Of The Floor Area.
• Size Of The Room To Be Lighted.
• Location Of The Room And Utility.
• Architectural Treatment Is To Be Given To The Building.
• Direction Of Wind And Its Speed.
• Climatic Considerations Of The Site Such As Humidity, Temperature Variation Etc.
Types of windows
1. Fixed Windows
2. Pivoted Windows
3. Double Hung Windows
4. Sliding Windows
5. Casement Windows
6. Sash And Glazed Windows
7. Louvered Or Venetianed Windows
8. Metal Windows
9. Bay Windows
10. Clerestory Windows
11. Corner Windows
12. Dormer Windows
13. Gable Windows
14. Sky Lights
15. Fan Lights
16. Ventilators
ANTHROPOMETRICS
The study of human body dimensions
and measurements.
ERGONOMICS
The Study Of Human Body Dimensions With Furniture.
SPACE PLANNING
LOUIS KAHN PRINCIPLES
LEADING
FO
FO
FO
FO
GRGR
GR SERVANT
B
L
GR
LO
WA
WA
WA
OR
ENTRANCE
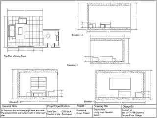
GROUND FLOOR-TOP PLAN
FIRST FLOOR-TOP PLAN
ARCHITECTURAL
LAYOUT
ORTHOGRAPHIC PROJECTIONS OF HOUSE
FRONT ELEVATION BACK ELEVATION
RIGHT ELEVATION LEFT ELEVATION
ISO-METRIC VIEW OF HOUSE
NIGHT VIEW OF HOUSE
INTERIOR VIEWS
FROM THE ABOVE CASE STUDY I AM TAKING A PART OF
IT THAT IS THE LIVING ROOM FOR DESIGN
DEVELOPMENT
ARCHITECTURAL
LAYOUT
DESIGN
DEVELOPMENT
COMPOSITION-WALL1
COMPOSITION-WALL2
These are the major topics that I have learnt during the First Year Diploma Programme.
This presentation showcases the small portion of my year end project.
I studied various topics like;-
• Ergonomics
• Anthropometrics
• Louis Kahn Principles
• Elements of Design
• Principles of Design
• Building Bye Laws
My residential plan features all the above points, these helped me in developing and
improving my skills.
CONCLUSION
THANK
YOU

Aashish jain ,Residential Designer Presentation,Dezyne E'cole

  • 1.
    Dezyne E’cole College By-AASHISH JAIN, B.Sc. Interior Design+1 Year Residential Design Diploma
  • 2.
  • 3.
    A design whichrefers to the design of clients home, the objective is to create a design that fit the functioning of client’s home so that his energy efficiency can increase.
  • 5.
  • 6.
  • 7.
  • 8.
  • 10.
    You Are SupposedTo Make A Plan Of A House, The Land Area Is 50’x60’ For A Client Mr. Khan Who Has 4 Members In His Family. He(44) And His Wife(40) And Two Children Both Are Boys. Apart From The Basic Needs Of The House They Asked For Certain Areas For Their House Which Are As Follows: • One Guest Room On The Ground Floor. • Master Bedroom And Children’s Bedroom Close To Each Other. • Swimming Pool With A Deck Area. • Sit Outs • Attached Living Room, Dining And Kitchen. • Secondary Living Room. • As Children Are 12 And 15 Years Of Age, A Study Room Was Required By Mr. Khan.
  • 11.
  • 12.
    INDIA India Lies OnThe INDIAN Plate, The Northern Portion Of The Indo Australian Plate, Whose Continental Crust Forms The Indian Subcontinent. The Country Is Situated North Of The Equator Between 84’ And 376’ North Latitude And 687’ And 9725’ East Longitude. It Is The Seventh Largest Country In The World With A Total Area Of 3,287,263 Kilometers. India Measures 3214 Km From North To South And 2933 From East To West. It Has A Land Frontier Of 15,200 Km And A Coastline Frontier Of 7,517 Km. Latitude: Lines OF Latitude Measures North-South Position Between The Poles. The Equator Is Defined As 0, The North Pole Is 90 North And South Pole Is 90 South. Lines Of Latitude Are Parallel To Each Other And Are Referred To As Parallels. Longitude: Lines of longitude or meridian run between north and south poles. The measure east-west position. The prime meridian is assigned the value of 0
  • 13.
    Rajasthan India’s Largest StateBy Area, Located On The Western Side Of The Country. Western Rajasthan Is Relatively Dry And Infertile And Southern Part Is Wetter, Hilly And Fertile. On Average, Winter Temperature Range From 8°-28 ° C And Summer Temperature 25 °-46 ° C. My Site Is Situated In Ajmer. Longitude- 69° E To 78° E Latitude- 23° N To 30° N
  • 14.
    Ajmer Ajmer Has ATypical Desert Climate And Hot And Arid. Summers Are Hot With Maximum Temperature Near 40° C While Minimum Is 28° C. Winters Are Chilly With Minimum Temperature 5° C. My Site Is Located At Civil Lines,Ajmer. KEY PLAN OF THE SITE
  • 15.
    Savitri College 1 R.T.D.C 2 Ajmer Hospital 5 Residential zone 6 Residential zone 6 Main Road 3 MainRoad3 Site 4 SITEPLAN SPECIFICATION 1. Savitri College 2. R.T.D.C 3. Main Road 4. Site 5. Ajmer Hospital 6. Residential Zone The Distance From The Major Landmarks: • Shopping Center - 1.2 Km • Railway Station - 2.5 Km • Bus Stand - 1km • Hospital – 350 M • Dimension Of The Site – 50’x60’ • Area Of The Site – 3000 Sq. Ft
  • 16.
    MACROCLIMATE Macroclimate Is TheClimate Of A Large Geographic Areas Such As Geographic Zones, Continents And Oceans Or Large Parts Thereof, Or Even The Entire Earth; It Deals With Main Climatic Features Of These Areas. If Such A Part Of The Earth’s Surface Is Sufficiently Uniform In Its Geographic Factors And Conditions Of General Atmospheric Circulation It Will Have A Certain Macroclimate. Macroclimate Are Characterized By Quantitative Indexes That Refer To The Entire Area Being Considered That Is, Intervals Which Particular Climatic Characteristics Change Throughout The Area Or Their Average Values For The Entire Area. The Macroclimate Is Contrasted With Local Climate And Microclimate.
  • 17.
    Savitri College 1 R.T.D.C 2 Ajmer Hospital 5 Residential zone 6 Residentialzone 6 Main Road 3 MainRoad3 MICROCLIMATE AMicroclimate Is A Local Set Of Atmospheric Conditions That Differ From Those Of The Surrounding Area. It Is The Climate Of A Small, Specific Place Within A Large Area. An Area As Small As Yard Or Park Can Have Several Different Microclimate Depending Upon How Much Sunlight, Shade Or Exposure To The Wind Is There At A Particular Spot. To Maintain The Microclimate Of A Space Or A Residential Building, Various Methods Can Be Used Such As Landscaping Around The Building, Cavity Wall Construction, Slanted Roof, Water Bodies And Also Of Right Material Are The Best Examples Or We Can Say Methods To Maintain Or Control Microclimate.
  • 18.
  • 19.
    UNIVERAL DESIGN MAKING DESIGNACCESSIBLE TO EVERYONE.
  • 20.
  • 21.
  • 22.
    ORIENTATION Before Planning AnySpace, We First Check The Orientation I.E. Direction EWNS Of A Place. We Check The Orientation By Placing A Compass In Center Of The Plot And The Directions Are Noted. As India Is Located In Northern Hemisphere, We Will Plan According To The Climatic Conditions I.E. Macroclimate. NORTH SOUTH WEST EAST WINTER SUN SUMMER SUN INTENSE SUN Preferred Zone For Building Orientation Acceptable QUADRANT Of Windows orientation TOTAL SHADE
  • 23.
  • 24.
  • 25.
  • 26.
    Frontal Approach FrontalApproach Top View Isometric View Frontal Approach- A Frontal Approach Leads Directly To The Entrance Of A Building Along A Straight, Axial Path. The Visual Goal That Terminates The Approach Is Clear; It May Be The Entire Front Façade Of A Building Or An Elaborated Entrance Within The Plane.
  • 28.
    Oblique Approach ObliqueApproach Top View Isometric View Oblique Approach- A Oblique Approach Enhances The Effect Of Perspective On The Front Façade And Form Of A Building. The Path Can Be Redirected One Or More Times To Delay And Prolong The Sequence Of The Approach. If A Building Is Approached At An Extreme Angle,its Entrance Can Project Beyond Its Façade To Be More Clearly Visible.
  • 30.
    Top View Isometric View SpiralApproach Spiral Approach Spiral Approach- A Spiral Path Prolongs The Sequence Of The Approach And Emphasizes The Three Dimensional Form Of A Building As We Move Around Its Perimeter. The Building Entrance Might Be Viewed Intermittently During The Approach To Clarify Its Position Or It May Be Hidden Until The Point Of Arrival.
  • 32.
  • 33.
    WHY DAYLIGHT IS NECESSARY? •AESTHETICS • PHYSCHOLOGICAL RESPONSE • HEALTH • ENERGY/COST
  • 36.
  • 37.
    Ventilation Due ToWind Effect
  • 38.
    VENTILATION DUE TOSTACK EFFECT Inlet Inlet Outlet Outlet Outlet Outlet Inlet Inlet
  • 39.
    (a) a>30 (b)a<30 (c) Flat Roof Suction Zone Pressure Zone Pressure Zone Pressure Zone Suction Zone WIND PRESSURE AND SUCTION ZONE
  • 40.
    Doors A Door MayBe Defined As An Opening Left In A Wall For The Purposes Of Providing Access To The Users Of The Structures .
  • 41.
    Location of doors 1.The Doors Should Be Provided In Opposite Walls Facing Each Other. 2. Doors Should As Far As Possible Be Located Near The Corner Of A Room (About 20 Cm Away From The Corner) 3. Door Should Meet The Functional Requirements Of The Room. 4. Number Of Doors In A Room Should Be Kept Minimum To Achieve Optimum Utilization Of Space. Large Number Of Doors Besides Causing Obstruction, Consume More Area In Circulation. Door Frame Door Frame Is Made Up Of Two Typical Members Known As Jambs Or Posts And Flat Member Connecting The Jambs At Top Called Head. The Cross-sectional Dimensions Of The Jamb And The Head Are Normally Kept Same. The Size Of Door Frame Is Worked Out After Allowing A Clearance Of 5 Mm. All-round For Convenience Of Fixing The Frame In The Opening. Types of doors 1. Battened And Ledged Doors 2. Battened Ledged And Braced Doors 3. Battened Ledged, Braced And Framed Doors 4. Framed And Panelled Doors 5. Glazed Or Sash Doors 6. Flush Doors 7. Fly Proof Doors 8. Revolving Doors 9. Sliding Doors 10. Swing Doors 11. Collapsible Steel Doors 12. Rolling Steel Doors 13. Rolling Grill Doors 14. M.S. Sheet Doors 15. Fire Check Doors
  • 42.
    Windows A Window MayBe Defined As An Opening Made In A Wall For The Purpose Of Providing Daylight, Ventilation And Vision.
  • 43.
    • Total AreaOf Window Opening Should Normally Vary From 10 To 20% Of The Floor Area Of The Room.In Hot And Arid Regions It Could Be 10 To 15% Of The Floor Area. • In Case Of Public Buildings Like, Schools, Offices, Factories, Hospitals Etc. The Minimum Area Of Windows Should Be 20% Of The Floor Area. • For Adequate Natural Light, The Area Of Glass Panes In Windows Should Be At Least 8% Of The Floor Area. • Size Of The Room To Be Lighted. • Location Of The Room And Utility. • Architectural Treatment Is To Be Given To The Building. • Direction Of Wind And Its Speed. • Climatic Considerations Of The Site Such As Humidity, Temperature Variation Etc. Types of windows 1. Fixed Windows 2. Pivoted Windows 3. Double Hung Windows 4. Sliding Windows 5. Casement Windows 6. Sash And Glazed Windows 7. Louvered Or Venetianed Windows 8. Metal Windows 9. Bay Windows 10. Clerestory Windows 11. Corner Windows 12. Dormer Windows 13. Gable Windows 14. Sky Lights 15. Fan Lights 16. Ventilators
  • 44.
    ANTHROPOMETRICS The study ofhuman body dimensions and measurements.
  • 45.
    ERGONOMICS The Study OfHuman Body Dimensions With Furniture.
  • 48.
  • 49.
    LOUIS KAHN PRINCIPLES LEADING FO FO FO FO GRGR GRSERVANT B L GR LO WA WA WA OR ENTRANCE
  • 50.
  • 51.
  • 52.
  • 63.
    ORTHOGRAPHIC PROJECTIONS OFHOUSE FRONT ELEVATION BACK ELEVATION RIGHT ELEVATION LEFT ELEVATION
  • 64.
  • 65.
  • 66.
  • 68.
    FROM THE ABOVECASE STUDY I AM TAKING A PART OF IT THAT IS THE LIVING ROOM FOR DESIGN DEVELOPMENT
  • 69.
  • 75.
  • 88.
  • 89.
  • 90.
    These are themajor topics that I have learnt during the First Year Diploma Programme. This presentation showcases the small portion of my year end project. I studied various topics like;- • Ergonomics • Anthropometrics • Louis Kahn Principles • Elements of Design • Principles of Design • Building Bye Laws My residential plan features all the above points, these helped me in developing and improving my skills. CONCLUSION
  • 91.