Contoso Ltd.
Structural Analysis and Design of
Institutional Building with Hollow Core Slab
Contoso Ltd.
OBJECTIVE
• To analyze and design a
multi –storey Institutional
building with hollow core
slab.
• Analysis and design is done
with the aid of Staad.pro
Software.
Contoso Ltd.
STAAD.Pro
Software used for the analysis
and design of the building.
AUTOCAD 2016
Used for drafting and detailing
of the designed structural
elements
Contoso Ltd.
Add a footer
4
PRESTRESSED CONCRETE
What is prestressed concrete?
○ Prestressed concrete is a type of concrete in
which internal stresses are induced to
counteract extract stresses.
○ Prestressing is a method in which compression
force is applied to the reinforced concrete
section.
○ The effect of prestressing is to reduce the tensile
stress in the section to the point till the tensile
stress is below the cracking stress. Thus the
concrete does not crack.
Contoso Ltd.
5
Add a footer
METHODFORPRETENSIONING
Contoso Ltd.
Add a footer
6
PRESTRESSING OF CONCRETE
Contoso Ltd.
Hollow Core
Slab
• Hollow core slab is a precast,
or a prestressed concrete
component having holes and
strands
• It is also called as a Voided
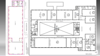
Slab
• HCS units are the most useful
elements of floor construction
in multi-storey building &
residential apartments.
Contoso Ltd.
SITE DETAILS
• G+6 Institutional building
• Site is located at Darussalam,
Nampally.
• Plot Area: 2742 Sq. mt
• Ground: 11713 Sq. mt
• Total height: 28.2 mt
Contoso Ltd.
Contoso Ltd.
10
Add a footer
Contoso Ltd.
DESIGNING FEATURES
SLABS BEAMS COLUMNS STAIR
CASE
FOUNDATION
Contoso Ltd.
HOLLOW
CORE SLAB
A hollow core slab refers to a
precast slab that is prepared
using pre stressed concrete.
Benefits include
○ It is generally used in the
construction of floors for high rise
apartments or multi storey
buildings.
○ They consume lesser raw material
& possess higher concrete strength,
are structurally efficient, have
reduced thickness.
Add a footer
12
Contoso Ltd.
Add a footer
13
ADVANTAGES OF HOLLOW CORE SLAB
• Remarkably lower price
when compared to other
• Longer span & greater
loads than conventional
slabs of the same thickness.
• No need for scaffolding
• Speed and ease of
construction
• High strength
• Light weight and durable
• Fire Resistance and sound
insulation
• Reduced on site labor
• Prefinished ceilings
• construction
• Preexisting longitudinal
holes that can be used as
conduits.
Contoso Ltd.
Add a footer
14
Production Process Of
Hollow core Slab
Bed Preparation
Stressing the strands
Casting
Storage and Curing
Transportation to site
Erection
Contoso Ltd.
Add a footer
15
BED PREPARATION
• The Pre stressing steel
beds are cleaned
thoroughly & slightly
oiled to allow easy
stripping
• Steel strands are then
laid & fixed at both ends
Contoso Ltd.
Add a footer
16
STRESSING OF STRANDS
• The strands are stressed
one by one, under strict
quality control.
• The stressing forces, no.
of strands & their
position are all
determined by slab
design
Contoso Ltd.
Add a footer
17
CASTING AND AUTOMATIC EXTRUSION
• In order to meet the
durability & strength for
slab, top quality concrete
is batched & transported
to extruder.
• which compacts it, then
extrudes the hollow core
section continuously.
Contoso Ltd.
Add a footer
18
Detensioning and CuttingDETENSIONING AND CUTTING
• 18 hrs later, when quality
checks confirm that
required concrete
strength has been
reached, strands are
detensioned.
• PSC concrete bed is cut
into different elements
according to design.
Contoso Ltd.
Add a footer
19
STORAGE AND CURING
• Hollow core slabs are
then stored & cured in
the yard according to
quality procedures & up
to the specified time.
Contoso Ltd.
Add a footer
20
TRANSPORTATION TO SITE
• Transport is done by
flat trailers, with slabs
stacked horizontally,
supported by timber
planks & well secured
to avoid transport
damage.
Contoso Ltd.
Add a footer
21
ERECTION
• Hollow core slabs are
lifted from the trailers on
site by a special spreader
beam and lifting belts.
• Up to 600 sq. mt. of
Hollow core slabs can be
erected by one team in
one day making it fastest
system available
Contoso Ltd.
Add a footer
22
Contoso Ltd.
23
Add a footer
REALWORLDEXAMPLE
Contoso Ltd.
○ A beam is a
structural element
that is capable of
withstanding load
primarily by
resisting against
bending
○ Main function of
the beams are to
transfer loads from
the structure onto
columns and
foundation
24
Add a footer
BEAMS
Contoso Ltd.
25
Add a footer
TYPES OF BEAMS
• Cantilever beams
• Simple beams/fixed
beams
• Overhanging beams
Contoso Ltd.
26
CROSS-SECTION OF A BEAM
Contoso Ltd.
27
Add a footer
REAL WORLD PICTURES
Contoso Ltd.
COLUMNS
Add a footer
28
• A structural
member subjected
to axial
compressive forces
is called a column
• Normally, columns
carry heavy
compressive loads
• Columns are used
in concrete and
steel buildings.
Contoso Ltd.
TYPES OF COLUMNS
○Long Columns
When the length of column
is more as compared to its
c/s area
29
○Short columns
When the length of column
is less than compared to its
c/s area, it is called as strut
○Intermediate
Length of column is
between 4d<L<30d
Contoso Ltd.
Add a footer
30
Contoso Ltd.
31
Add a footer
Contoso Ltd.
○A stair is a system of
steps by which people
and objects may pass
from one level of a
building to another level
○It divides the large
vertical distance into
number of part
distances called as steps
32
Add a footer
STAIRCASE
Contoso Ltd.
33
Parts of Staircase:
1. Step
2. Tread
3. Rise
4. Handrail
5. Baluster
6. Newel Post
7. Run
8. Nosing
9. String or Stingers
Contoso Ltd.
34
Add a footer
Types of Staircase
Straight
Staircase
Dog Legged
Staircase
Quarter Turn
Staircase
Open Newel
Staircase
Contoso Ltd.
35
Add a footer
Three Quarter
Turn Staircase
Bifurcated
Staircase
Geometrical
Staircase
Circular
Staircase
Contoso Ltd.
36
Add a footer
CROSS-SECTION OF STAIRCASE
Contoso Ltd.
○Footings are structural
members used to
support columns and
walls to transmit and
distribute their load
onto the ground
37
FOOTINGS
Contoso Ltd.
38
Types of Footings
Wall Footing Isolated Footing Combined Footing
Contoso Ltd.
39
Add a footer
Mat Footing Pile Footing
Contoso Ltd.
40
Add a footer
CROSS-SECTION OF AN ISOLATED FOOTING
Contoso Ltd.
41
Add a footer
TYPES OF FOOTINGS
Contoso Ltd.
42
Add a footer
REAL WORLD PICTURES
Contoso Ltd.
Add a footer
43
ACTIVITIES TO BE
PERFORMED
Contoso Ltd.
Calculation of load, bending
moments and shear forces
Designing of HCS, beams,
columns and footings
Drawing of detailed
structure
Add a footer
44
ANALYSIS DESIGNING DRAWING
Contoso Ltd.
ACTIVITY-1
IDENTIFICATION OF SLAB PANEL
• Depending on the
project requirements,
in particular span and
loading performance
the most adequate
and economical slab
is selected.
Contoso Ltd.
Hollow core slabs are
available in various
range of depthslike
160, 200, 265, 320,
400, 450 and 500mm
slabs. The longest
spancan reach up to
18m
Add a footer
46
Contoso Ltd.
ACTIVITY-2
Calculation of loads
Add a footer
47
1. Dead load
• Dead load of the walls
• Dead load of slab
• Floor finish
• Total dead load of slab
2. Live Load
• Class rooms, conference hall
• Corridors, passages
• Staircase and toilets
Contoso Ltd.
3. WindLoad
Windloads dependon the velocityof windat the locationof the
structure, permeabilityof the structure, height of structure etc.
Add a footer
48
Contoso Ltd.
ACTIVITY-3
Design of HC slab panels
Add a footer
49
• As per is code 1348 2012 for
prestressed concrete
Contoso Ltd.
CONNECTION OF HC SLAB PANELS
Add a footer
50
Contoso Ltd.
ACTIVITY-4
LAYOUT OF SLAB
Add a footer
51
• Complete layout of slab
is done
• Autocad 2020 is used
Contoso Ltd.
ACTIVITY-5
DESIGN OF BEAMS AND COLUMNS
Add a footer
52
• Designing is carried out using STAAD PRO
• The nodes were assigned and the corresponding beams
were added
• The columns were produced by translational repeat
• The section properties and support details were added.
• Load case details were assigned and analysis were
done.
Contoso Ltd.
EXAMPLE OF STAAD PRO DESIGN
Add a footer
53
Contoso Ltd.
SHEAR FORCE AND BENDING MOMENT
DIAGRAMS
Add a footer
54
Contoso Ltd.
ACTIVITY-6
DESIGN OF FOOTINGS
Add a footer
55
• Footings are designed
by using Microsoft
excel
Contoso Ltd.
Add a footer
56
Contoso Ltd.
Add a footer
57
Contoso Ltd.
Team
MOHD.
ZAHED
FAROOQUI
160316732062
B.E. CIVIL
MOHD
ABDUL
MUJEEB
160316732100
B.E. CIVIL
MOHD.
RAZA
160316732066
B.E. CIVIL
Add a footer
58
SYED
AHMED
WASIF ALI
160316732096
B.E.CIVIL
Contoso Ltd.
CO-ORDINATOR AND MENTOR
Add a footer
59
ABDUL WAJID SIDDIQUI
Coordinator & Assistant Professor, DCET
Contoso Ltd.
Thank You

HOLLOW CORE SLABS

  • 1.
    Contoso Ltd. Structural Analysisand Design of Institutional Building with Hollow Core Slab
  • 2.
    Contoso Ltd. OBJECTIVE • Toanalyze and design a multi –storey Institutional building with hollow core slab. • Analysis and design is done with the aid of Staad.pro Software.
  • 3.
    Contoso Ltd. STAAD.Pro Software usedfor the analysis and design of the building. AUTOCAD 2016 Used for drafting and detailing of the designed structural elements
  • 4.
    Contoso Ltd. Add afooter 4 PRESTRESSED CONCRETE What is prestressed concrete? ○ Prestressed concrete is a type of concrete in which internal stresses are induced to counteract extract stresses. ○ Prestressing is a method in which compression force is applied to the reinforced concrete section. ○ The effect of prestressing is to reduce the tensile stress in the section to the point till the tensile stress is below the cracking stress. Thus the concrete does not crack.
  • 5.
    Contoso Ltd. 5 Add afooter METHODFORPRETENSIONING
  • 6.
    Contoso Ltd. Add afooter 6 PRESTRESSING OF CONCRETE
  • 7.
    Contoso Ltd. Hollow Core Slab •Hollow core slab is a precast, or a prestressed concrete component having holes and strands • It is also called as a Voided Slab • HCS units are the most useful elements of floor construction in multi-storey building & residential apartments.
  • 8.
    Contoso Ltd. SITE DETAILS •G+6 Institutional building • Site is located at Darussalam, Nampally. • Plot Area: 2742 Sq. mt • Ground: 11713 Sq. mt • Total height: 28.2 mt
  • 9.
  • 10.
  • 11.
    Contoso Ltd. DESIGNING FEATURES SLABSBEAMS COLUMNS STAIR CASE FOUNDATION
  • 12.
    Contoso Ltd. HOLLOW CORE SLAB Ahollow core slab refers to a precast slab that is prepared using pre stressed concrete. Benefits include ○ It is generally used in the construction of floors for high rise apartments or multi storey buildings. ○ They consume lesser raw material & possess higher concrete strength, are structurally efficient, have reduced thickness. Add a footer 12
  • 13.
    Contoso Ltd. Add afooter 13 ADVANTAGES OF HOLLOW CORE SLAB • Remarkably lower price when compared to other • Longer span & greater loads than conventional slabs of the same thickness. • No need for scaffolding • Speed and ease of construction • High strength • Light weight and durable • Fire Resistance and sound insulation • Reduced on site labor • Prefinished ceilings • construction • Preexisting longitudinal holes that can be used as conduits.
  • 14.
    Contoso Ltd. Add afooter 14 Production Process Of Hollow core Slab Bed Preparation Stressing the strands Casting Storage and Curing Transportation to site Erection
  • 15.
    Contoso Ltd. Add afooter 15 BED PREPARATION • The Pre stressing steel beds are cleaned thoroughly & slightly oiled to allow easy stripping • Steel strands are then laid & fixed at both ends
  • 16.
    Contoso Ltd. Add afooter 16 STRESSING OF STRANDS • The strands are stressed one by one, under strict quality control. • The stressing forces, no. of strands & their position are all determined by slab design
  • 17.
    Contoso Ltd. Add afooter 17 CASTING AND AUTOMATIC EXTRUSION • In order to meet the durability & strength for slab, top quality concrete is batched & transported to extruder. • which compacts it, then extrudes the hollow core section continuously.
  • 18.
    Contoso Ltd. Add afooter 18 Detensioning and CuttingDETENSIONING AND CUTTING • 18 hrs later, when quality checks confirm that required concrete strength has been reached, strands are detensioned. • PSC concrete bed is cut into different elements according to design.
  • 19.
    Contoso Ltd. Add afooter 19 STORAGE AND CURING • Hollow core slabs are then stored & cured in the yard according to quality procedures & up to the specified time.
  • 20.
    Contoso Ltd. Add afooter 20 TRANSPORTATION TO SITE • Transport is done by flat trailers, with slabs stacked horizontally, supported by timber planks & well secured to avoid transport damage.
  • 21.
    Contoso Ltd. Add afooter 21 ERECTION • Hollow core slabs are lifted from the trailers on site by a special spreader beam and lifting belts. • Up to 600 sq. mt. of Hollow core slabs can be erected by one team in one day making it fastest system available
  • 22.
  • 23.
    Contoso Ltd. 23 Add afooter REALWORLDEXAMPLE
  • 24.
    Contoso Ltd. ○ Abeam is a structural element that is capable of withstanding load primarily by resisting against bending ○ Main function of the beams are to transfer loads from the structure onto columns and foundation 24 Add a footer BEAMS
  • 25.
    Contoso Ltd. 25 Add afooter TYPES OF BEAMS • Cantilever beams • Simple beams/fixed beams • Overhanging beams
  • 26.
  • 27.
    Contoso Ltd. 27 Add afooter REAL WORLD PICTURES
  • 28.
    Contoso Ltd. COLUMNS Add afooter 28 • A structural member subjected to axial compressive forces is called a column • Normally, columns carry heavy compressive loads • Columns are used in concrete and steel buildings.
  • 29.
    Contoso Ltd. TYPES OFCOLUMNS ○Long Columns When the length of column is more as compared to its c/s area 29 ○Short columns When the length of column is less than compared to its c/s area, it is called as strut ○Intermediate Length of column is between 4d<L<30d
  • 30.
  • 31.
  • 32.
    Contoso Ltd. ○A stairis a system of steps by which people and objects may pass from one level of a building to another level ○It divides the large vertical distance into number of part distances called as steps 32 Add a footer STAIRCASE
  • 33.
    Contoso Ltd. 33 Parts ofStaircase: 1. Step 2. Tread 3. Rise 4. Handrail 5. Baluster 6. Newel Post 7. Run 8. Nosing 9. String or Stingers
  • 34.
    Contoso Ltd. 34 Add afooter Types of Staircase Straight Staircase Dog Legged Staircase Quarter Turn Staircase Open Newel Staircase
  • 35.
    Contoso Ltd. 35 Add afooter Three Quarter Turn Staircase Bifurcated Staircase Geometrical Staircase Circular Staircase
  • 36.
    Contoso Ltd. 36 Add afooter CROSS-SECTION OF STAIRCASE
  • 37.
    Contoso Ltd. ○Footings arestructural members used to support columns and walls to transmit and distribute their load onto the ground 37 FOOTINGS
  • 38.
    Contoso Ltd. 38 Types ofFootings Wall Footing Isolated Footing Combined Footing
  • 39.
    Contoso Ltd. 39 Add afooter Mat Footing Pile Footing
  • 40.
    Contoso Ltd. 40 Add afooter CROSS-SECTION OF AN ISOLATED FOOTING
  • 41.
    Contoso Ltd. 41 Add afooter TYPES OF FOOTINGS
  • 42.
    Contoso Ltd. 42 Add afooter REAL WORLD PICTURES
  • 43.
    Contoso Ltd. Add afooter 43 ACTIVITIES TO BE PERFORMED
  • 44.
    Contoso Ltd. Calculation ofload, bending moments and shear forces Designing of HCS, beams, columns and footings Drawing of detailed structure Add a footer 44 ANALYSIS DESIGNING DRAWING
  • 45.
    Contoso Ltd. ACTIVITY-1 IDENTIFICATION OFSLAB PANEL • Depending on the project requirements, in particular span and loading performance the most adequate and economical slab is selected.
  • 46.
    Contoso Ltd. Hollow coreslabs are available in various range of depthslike 160, 200, 265, 320, 400, 450 and 500mm slabs. The longest spancan reach up to 18m Add a footer 46
  • 47.
    Contoso Ltd. ACTIVITY-2 Calculation ofloads Add a footer 47 1. Dead load • Dead load of the walls • Dead load of slab • Floor finish • Total dead load of slab 2. Live Load • Class rooms, conference hall • Corridors, passages • Staircase and toilets
  • 48.
    Contoso Ltd. 3. WindLoad Windloadsdependon the velocityof windat the locationof the structure, permeabilityof the structure, height of structure etc. Add a footer 48
  • 49.
    Contoso Ltd. ACTIVITY-3 Design ofHC slab panels Add a footer 49 • As per is code 1348 2012 for prestressed concrete
  • 50.
    Contoso Ltd. CONNECTION OFHC SLAB PANELS Add a footer 50
  • 51.
    Contoso Ltd. ACTIVITY-4 LAYOUT OFSLAB Add a footer 51 • Complete layout of slab is done • Autocad 2020 is used
  • 52.
    Contoso Ltd. ACTIVITY-5 DESIGN OFBEAMS AND COLUMNS Add a footer 52 • Designing is carried out using STAAD PRO • The nodes were assigned and the corresponding beams were added • The columns were produced by translational repeat • The section properties and support details were added. • Load case details were assigned and analysis were done.
  • 53.
    Contoso Ltd. EXAMPLE OFSTAAD PRO DESIGN Add a footer 53
  • 54.
    Contoso Ltd. SHEAR FORCEAND BENDING MOMENT DIAGRAMS Add a footer 54
  • 55.
    Contoso Ltd. ACTIVITY-6 DESIGN OFFOOTINGS Add a footer 55 • Footings are designed by using Microsoft excel
  • 56.
  • 57.
  • 58.
    Contoso Ltd. Team MOHD. ZAHED FAROOQUI 160316732062 B.E. CIVIL MOHD ABDUL MUJEEB 160316732100 B.E.CIVIL MOHD. RAZA 160316732066 B.E. CIVIL Add a footer 58 SYED AHMED WASIF ALI 160316732096 B.E.CIVIL
  • 59.
    Contoso Ltd. CO-ORDINATOR ANDMENTOR Add a footer 59 ABDUL WAJID SIDDIQUI Coordinator & Assistant Professor, DCET
  • 60.