Ese Dhe Projekte
Per
Studente
Detyre me skicim
Ndertimi i skemes
elektrike
te konsumatoreve
elektrike
te baneses ,menyrat
e shmangieve
te konsumimeve
te panevojshme.
#MesueseAurela
DETYRE ME SKICIM NDERTIMI
I SKEMES ELEKTRIKE TE KONSUMATOREVE
ELEKTRIKE TE BANESES ,MENYRAT E
SHMANGIEVE TE KONSUMIMEVE TE
PANEVOJSHME.
#MESUESEAURELA
TEMA : Ndertimi i skemes elektrike te konsumatoreve elektrike te
baneses dhe menyrat e shmangieve te konsumimeve te panevojshme.
Objektivat:
 Të vizatojnë një skemë të thjeshtë elektrike të konsumatorëve elektrikë të përdorimit
shtëpiak në banesën e tyre.
 Të lexojnë fuqinë e cdo konsumatori që përdorin në banesë dhe të matin kohën e
përdorimit të tyre.
 Të njëhsojnë energjinë e harxhuar dhe koston ditore e atë mujore.
 Të propozojnë mënyra të ndryshme për të kursyer enerjginë elektrike.
Njohuritw qw do te merren
 Qarku elektrik dhe pjesët e tij
 Efekti termik i rrymës elektrike
 Puna dhe fuqia e rrymës alternative
 Njëhsimi i nxehtësisë që merr një trup
 Rendimenti i ngrohësit termik dhe atij elektrik
 Drita dhe burimet e saj
 Efekti fotoelektrik
 Përcjellshmëria termike
 Teknologji: Vizatimet teknike
Burimet e informacionit
 Fizika
 Teknologjia
 Hulumtime nga Interneti
 Panelet diellore, llambat me shkarkesa në gaze, llambat halogjene
#MesueseAurela
DETYRE ME SKICIM NDERTIMI
I SKEMES ELEKTRIKE TE KONSUMATOREVE
ELEKTRIKE TE BANESES ,MENYRAT E
SHMANGIEVE TE KONSUMIMEVE TE
PANEVOJSHME.
#MESUESEAURELA
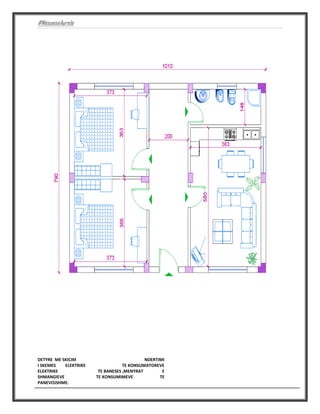
Skicimi ne format A-4 dhe A-3 ose në DVD ku përfshihen:
 Tema projektit
 Qëllimi i projektit
 Burimet e informacionit ( referenca)
 Skema e pajisjeve elektrike dhe e konsumatorëve elektrikë të shtëpisë së tyre
 Tabela e pajisjeve elektrike dhe e konsumatorëve elektrikë me fuqitë përkatëse për
secilin prej tyre dhe energjia mesatare ditore dhe mujore e harxhuar
 Mënyrat e kursimit të energjisë elektrike
 Propozime për përmirësime të mundshme për kursimin e energjisë dhe mënyra
përshpenzime sa më të vogla të energjisë elektrike në shtëpinë time në shkollë dhe në
qytetin tim
#MesueseAurela
DETYRE ME SKICIM NDERTIMI
I SKEMES ELEKTRIKE TE KONSUMATOREVE
ELEKTRIKE TE BANESES ,MENYRAT E
SHMANGIEVE TE KONSUMIMEVE TE
PANEVOJSHME.
#MESUESEAURELA
Objektivat e mia :
 Te skicoj planin e baneses time me program inxhinierik (autocad) !
 Te njehsoj sasine e energjise te harxhuar dhe koston ditore e mujore !
 Te propozoj menyra te ndryshme per te shmangur harxhimin e
panevojshem te energjise
Burimet :
 Bashkepunimi me inxhinier ndertimi per ndertimin e skices
 Bashkepunimi me prinderit per gjetjen e fuqise se konsumatoreve
Dhe llogaritjen e kostos .
 Konsultimi me prinderit per te shmangur harxhimin e panvojshem te
energjise.
#MesueseAurela
DETYRE ME SKICIM NDERTIMI
I SKEMES ELEKTRIKE TE KONSUMATOREVE
ELEKTRIKE TE BANESES ,MENYRAT E
SHMANGIEVE TE KONSUMIMEVE TE
PANEVOJSHME.
#MESUESEAURELA
#MesueseAurela
DETYRE ME SKICIM NDERTIMI
I SKEMES ELEKTRIKE TE KONSUMATOREVE
ELEKTRIKE TE BANESES ,MENYRAT E
SHMANGIEVE TE KONSUMIMEVE TE
PANEVOJSHME.
#MESUESEAURELA
REALIZIMI I SKICES …
- I PARAQITUR NE FORMAT a3
 NjehsIMI I sasiSE Se energjise te harxhuar dhe koston ditore e mujore
Nr
Pajisja
elektrike
Fuqi
a Perdorimi
Perdorimi
mujor
Energji
a Kosto
shpenz
mujor
sh.m.m
kw/h
1 TELEVIZOR
1.5
KW
6
ore/dite
180
ore/muaj
9
kw/dite
69.3
lek/dite
2079
lek/muaj
270
KW/ORE
2 LAVATRICE
1.8
KW
3
ore/2dit
e
45
ore/muaj
2.7
kw/dite
20.79
lek/dite
623.7
lek/muaj
81
KW/ORE
3 SOBE
6
KW
3
ore/dite
90
ore/muaj
18
kw/dite
138.6
lek/dite
4158
lek/muaj
540
KW/ORE
4
KONDICION
ER
1.9
KW
4
ore/dite
120
ore/muaj
7.6
kw/dite
58.52
lek/dit
1755
lek/muaj
228
KW/ORE
5 MIKROVALE
0.8
KW
1
ore/dite
30
ore/muaj
0.8
kw/dite
6.16
lek/dite
1851
lek/muaj
24
KW/ORE
6
LAVASTOVI
LJE
1.9
KW
1.5
ore/dite
45
ore/muaj
2.7
kw/dite
20.79
lek/dite
623.7
lek/muaj
81
KW/ORE
7
THARESE
RROBASH
1.5
KW
3
ore/2dit
e
45
ore/muaj
2.2
kw/dite
17.32
lek/dite
519.6
lek/muaj
66
KW/ORE
8
THARESE
FLOKESH
1.8
KW
2
ore/dite
60
ore/muaj
3.6
kw/dite
27.72
lek/dite
831.6
lek/muaj
108
KW/ORE
9 HEKUR
2.2
KW
2
ore/dite
60
ore/muaj
4.4
kw/dite
33.88
lek/dite
1016
lek/muaj
132
KW/ORE
1
0
FSHESE ME
KORENT
1.4
KW
1
ore/dite
30
ore/muaj
1.4
kw/dite
10.78
lek/dite
323.4
lek/muaj
42
KW/ORE
13781
lek/muaj
1572
KW/ORE
#MesueseAurela
DETYRE ME SKICIM NDERTIMI
I SKEMES ELEKTRIKE TE KONSUMATOREVE
ELEKTRIKE TE BANESES ,MENYRAT E
SHMANGIEVE TE KONSUMIMEVE TE
PANEVOJSHME.
#MESUESEAURELA
Propozimi I menyrave te ndryshme per te shmangur
harxhimin e panevojshem te energjise…
1. Ndryshoni llambat e zakonshme duke vënë llamba ekologjike.
Një ndër mënyrat më të thjeshta për të zvogëluar konsumin e energjisë elektrike është të
zëvendësoni llambat e zakonshme me ato ekonomike
2. Izoloni ngrohësin e ujit.
Izoloni papafingon, muret dhe cilindrin e ujit të ngrohtë. Pjesa më e madhe e energjisë elektrike
konsumohet më kot, pasi shërben për të ngrohur hapësirën.
3. Ndryshoni ngrohësin e ujit.
Nëse keni një ngrohës uji të vjetër, atëherë me siguri ju kërkon shumë energji, dhe rrjedhimisht
edhe shumë para.
4. Kurseni energjinë kur gatuani.
Ndajeni ushqimin në copa të vogla kur gatuani, pasi do të gatuhet më shpejt dhe do të harxhojë
më pak energji. Është e rëndësishme të kini kujdes që tenxheret apo tiganët të jenë në madhësinë
e duhur dhe ta shpërndajnë nxehtësinë njëtrajtësisht.
Nëse doni të ngrohni shtëpinë, mund ta mbani hapur derën e kuzhinës pasi të keni përfunduar, që
nxehtësia e sobave elektrike të shpërndahet edhe në pjesën tjetër.

Detyre me skicim !!!!

  • 1.
    Ese Dhe Projekte Per Studente Detyreme skicim Ndertimi i skemes elektrike te konsumatoreve elektrike te baneses ,menyrat e shmangieve te konsumimeve te panevojshme.
  • 2.
    #MesueseAurela DETYRE ME SKICIMNDERTIMI I SKEMES ELEKTRIKE TE KONSUMATOREVE ELEKTRIKE TE BANESES ,MENYRAT E SHMANGIEVE TE KONSUMIMEVE TE PANEVOJSHME. #MESUESEAURELA TEMA : Ndertimi i skemes elektrike te konsumatoreve elektrike te baneses dhe menyrat e shmangieve te konsumimeve te panevojshme. Objektivat:  Të vizatojnë një skemë të thjeshtë elektrike të konsumatorëve elektrikë të përdorimit shtëpiak në banesën e tyre.  Të lexojnë fuqinë e cdo konsumatori që përdorin në banesë dhe të matin kohën e përdorimit të tyre.  Të njëhsojnë energjinë e harxhuar dhe koston ditore e atë mujore.  Të propozojnë mënyra të ndryshme për të kursyer enerjginë elektrike. Njohuritw qw do te merren  Qarku elektrik dhe pjesët e tij  Efekti termik i rrymës elektrike  Puna dhe fuqia e rrymës alternative  Njëhsimi i nxehtësisë që merr një trup  Rendimenti i ngrohësit termik dhe atij elektrik  Drita dhe burimet e saj  Efekti fotoelektrik  Përcjellshmëria termike  Teknologji: Vizatimet teknike Burimet e informacionit  Fizika  Teknologjia  Hulumtime nga Interneti  Panelet diellore, llambat me shkarkesa në gaze, llambat halogjene
  • 3.
    #MesueseAurela DETYRE ME SKICIMNDERTIMI I SKEMES ELEKTRIKE TE KONSUMATOREVE ELEKTRIKE TE BANESES ,MENYRAT E SHMANGIEVE TE KONSUMIMEVE TE PANEVOJSHME. #MESUESEAURELA Skicimi ne format A-4 dhe A-3 ose në DVD ku përfshihen:  Tema projektit  Qëllimi i projektit  Burimet e informacionit ( referenca)  Skema e pajisjeve elektrike dhe e konsumatorëve elektrikë të shtëpisë së tyre  Tabela e pajisjeve elektrike dhe e konsumatorëve elektrikë me fuqitë përkatëse për secilin prej tyre dhe energjia mesatare ditore dhe mujore e harxhuar  Mënyrat e kursimit të energjisë elektrike  Propozime për përmirësime të mundshme për kursimin e energjisë dhe mënyra përshpenzime sa më të vogla të energjisë elektrike në shtëpinë time në shkollë dhe në qytetin tim
  • 4.
    #MesueseAurela DETYRE ME SKICIMNDERTIMI I SKEMES ELEKTRIKE TE KONSUMATOREVE ELEKTRIKE TE BANESES ,MENYRAT E SHMANGIEVE TE KONSUMIMEVE TE PANEVOJSHME. #MESUESEAURELA Objektivat e mia :  Te skicoj planin e baneses time me program inxhinierik (autocad) !  Te njehsoj sasine e energjise te harxhuar dhe koston ditore e mujore !  Te propozoj menyra te ndryshme per te shmangur harxhimin e panevojshem te energjise Burimet :  Bashkepunimi me inxhinier ndertimi per ndertimin e skices  Bashkepunimi me prinderit per gjetjen e fuqise se konsumatoreve Dhe llogaritjen e kostos .  Konsultimi me prinderit per te shmangur harxhimin e panvojshem te energjise.
  • 5.
    #MesueseAurela DETYRE ME SKICIMNDERTIMI I SKEMES ELEKTRIKE TE KONSUMATOREVE ELEKTRIKE TE BANESES ,MENYRAT E SHMANGIEVE TE KONSUMIMEVE TE PANEVOJSHME. #MESUESEAURELA
  • 6.
    #MesueseAurela DETYRE ME SKICIMNDERTIMI I SKEMES ELEKTRIKE TE KONSUMATOREVE ELEKTRIKE TE BANESES ,MENYRAT E SHMANGIEVE TE KONSUMIMEVE TE PANEVOJSHME. #MESUESEAURELA REALIZIMI I SKICES … - I PARAQITUR NE FORMAT a3  NjehsIMI I sasiSE Se energjise te harxhuar dhe koston ditore e mujore Nr Pajisja elektrike Fuqi a Perdorimi Perdorimi mujor Energji a Kosto shpenz mujor sh.m.m kw/h 1 TELEVIZOR 1.5 KW 6 ore/dite 180 ore/muaj 9 kw/dite 69.3 lek/dite 2079 lek/muaj 270 KW/ORE 2 LAVATRICE 1.8 KW 3 ore/2dit e 45 ore/muaj 2.7 kw/dite 20.79 lek/dite 623.7 lek/muaj 81 KW/ORE 3 SOBE 6 KW 3 ore/dite 90 ore/muaj 18 kw/dite 138.6 lek/dite 4158 lek/muaj 540 KW/ORE 4 KONDICION ER 1.9 KW 4 ore/dite 120 ore/muaj 7.6 kw/dite 58.52 lek/dit 1755 lek/muaj 228 KW/ORE 5 MIKROVALE 0.8 KW 1 ore/dite 30 ore/muaj 0.8 kw/dite 6.16 lek/dite 1851 lek/muaj 24 KW/ORE 6 LAVASTOVI LJE 1.9 KW 1.5 ore/dite 45 ore/muaj 2.7 kw/dite 20.79 lek/dite 623.7 lek/muaj 81 KW/ORE 7 THARESE RROBASH 1.5 KW 3 ore/2dit e 45 ore/muaj 2.2 kw/dite 17.32 lek/dite 519.6 lek/muaj 66 KW/ORE 8 THARESE FLOKESH 1.8 KW 2 ore/dite 60 ore/muaj 3.6 kw/dite 27.72 lek/dite 831.6 lek/muaj 108 KW/ORE 9 HEKUR 2.2 KW 2 ore/dite 60 ore/muaj 4.4 kw/dite 33.88 lek/dite 1016 lek/muaj 132 KW/ORE 1 0 FSHESE ME KORENT 1.4 KW 1 ore/dite 30 ore/muaj 1.4 kw/dite 10.78 lek/dite 323.4 lek/muaj 42 KW/ORE 13781 lek/muaj 1572 KW/ORE
  • 7.
    #MesueseAurela DETYRE ME SKICIMNDERTIMI I SKEMES ELEKTRIKE TE KONSUMATOREVE ELEKTRIKE TE BANESES ,MENYRAT E SHMANGIEVE TE KONSUMIMEVE TE PANEVOJSHME. #MESUESEAURELA Propozimi I menyrave te ndryshme per te shmangur harxhimin e panevojshem te energjise… 1. Ndryshoni llambat e zakonshme duke vënë llamba ekologjike. Një ndër mënyrat më të thjeshta për të zvogëluar konsumin e energjisë elektrike është të zëvendësoni llambat e zakonshme me ato ekonomike 2. Izoloni ngrohësin e ujit. Izoloni papafingon, muret dhe cilindrin e ujit të ngrohtë. Pjesa më e madhe e energjisë elektrike konsumohet më kot, pasi shërben për të ngrohur hapësirën. 3. Ndryshoni ngrohësin e ujit. Nëse keni një ngrohës uji të vjetër, atëherë me siguri ju kërkon shumë energji, dhe rrjedhimisht edhe shumë para. 4. Kurseni energjinë kur gatuani. Ndajeni ushqimin në copa të vogla kur gatuani, pasi do të gatuhet më shpejt dhe do të harxhojë më pak energji. Është e rëndësishme të kini kujdes që tenxheret apo tiganët të jenë në madhësinë e duhur dhe ta shpërndajnë nxehtësinë njëtrajtësisht. Nëse doni të ngrohni shtëpinë, mund ta mbani hapur derën e kuzhinës pasi të keni përfunduar, që nxehtësia e sobave elektrike të shpërndahet edhe në pjesën tjetër.