SCHOOL OF ARCHITECTURE, BUILDING & DESIGN
Bachelor of Science (Honours) in Architecture
INTERNSHIP REPORT
INTERNSHIP TRAINING AND REPORT (ARC2615,
ARC2613 & ARC2622)
Prepared by:
Tan Jo Lynn (0318518)
Architecture Firm:
Unit One Design Sdn. Bhd.
Tutor: Ar. Zahari Zubi
Internship Training and Report Page !1
Internship Training and Report Page !2
ARC2615 / ARC2613 / ARC2622
ARCHITECTURE INTERNSHIP LOG SHEETS AND REPORT
Student Details
Internship Company Taylor's University
Student Full Name Lakeside Campus
Stu.No No.1
Home Address Jalan Taylor's PJS7/13
47500 Subang Selangor
Malaysia
Phone No. Home
Phone No. Mobile
VoIP Software (Skype) / Overseas No.
Email
School of Architecture, Building & Design
Lecturer Details
Location Name Email Office No.
Kuala Lumpur Zahari Zubir Zahari.Zubir@taylors.edu.my 603-5629 5000
UNIT ONE DESIGN
TAN JO LYNN
jolynn_960427@hotmail.com
0318518
NO. 19, JLN BAYAN 1A, BDR PUCHONG JAYA,
47170 PUCHONG, SELANGOR DARUL
EHSAN, MALAYSIA.
+603-80805815
+6012-2179259
TABLE OF CONTENT
CHAPTER 1.0 ACKNOWLEDGEMENT 4
CHAPTER 2.0 INTRODUCTION TO MODULE 5
CHAPTER 3.0 INTRODUCTION TO COMPANY 6
CHAPTER 4.0 REPORT
Section 5.1 Programming 7
Section 5.2 Schematic Design 8
Section 5.3 Contract Documentation 17
CHAPTER 5.0 CONCLUSION 25
CHAPTER 6.0 APPENDIX 27
CHAPTER 7.0 LOG SHEET 34
Internship Training and Report Page !3
1.0 ACKNOWLEDGEMENT
The internship opportunity I had with Unit One Design was a great chance for learning and
professional development.
To begin with, I would want to thank Mr. John Ding (Chief Director) for providing us the
opportunity to experience and learn in this company, as well as Ar. Ken Wong (Executive Chief
Director) for his patience in guiding and advising us throughout our internship.
Besides that, I want to express my gratitude to Mr. Joel (Project Director) for his effort in
managing our daily job scope during the whole of internship. I would also like to thank Mr. Hilmi,
Ms. Fong and Ms. Audrey, who have gave us guidance on our assigned work. As well as Mr. Bryan,
Mr. Jay and Ms. Christie for providing information during site visits.
Lastly, I would like to thank Ar. Zahari Zubir, my tutor, for guiding us to have a better
understanding towards this module, its objectives and requirements.
In conclusion, we were able to learn and experience professional information about
architecture field. I perceive this opportunity as a big milestone in my development and I would use
gained skills and knowledge in best possible way.
Tan Jo Lynn
Student of Taylor’s University
Bachelor of Science (Honours) Architecture
Internship Training and Report Page !4
2.0 INTRODUCTION TO MODULE
This module intends to introduce understanding of requirements, activities and management
as well as operations in real life architectural practices. It is aimed to enable students to be involve
in professional practices. Hence, allow them to gain knowledge and generate awareness of
principles and procedure of law and legislation applied to proper architectural drawings as well as
different activities that occur within an architecture firm.
Therefore, students are required to produce a weekly assessment log sheet for their tutor to
keep track of their job scope given in the office. They are also require to generate a final report,
which include the log sheet collected, as a documentation of their experiences, learnings and
observations.
Internship Training and Report Page !5
3.0 INTRODUCTION TO COMPANY
Unit One Design was establish in the year of 1996, founded by Mr. John Ding and Ar. Ken
Wong. It was previously placed in Sri Hartamas and is currently located in Solaris Dutamas,
Publika. It started off as a small architecture firm, where it has grown into a company consists of
approximately 30 members now with 42 awards won.
Their design philosophy is to create progressive works with clear function and design
integrity. Based on that, they search for solution for their projects by analysing, observing and
communicating to achieve detail understating of clients’ needs. Their intention is to combine
architecture, interior design, graphics, retail and product design in their production.
Company Name Unit One Design
Address D4-1-12 Solaris Dutamas
No. 1 Jalan Dutamas 1
50480 Kuala Lumpur, Malaysia
Contact Number +603 6411 6122
Email mailbox@unitone.com.my
Internship Training and Report Page !6
4.0 REPORT
4.1 Programming
The first job I was appointed to is to key in planned schedule and job scope of members in the
company into a programming software called the smart sheet. It is an online application used by the
company to manage their working schedule, job scope and deadlines as fail to plan, is plan to fail.
After completing the assigned job, I understood the importance of time management and
planning. I have also gained awareness of the basic flow chart of the architecture firm, where it
usually starts with generating concepts and schematic designs, goes through D.O., design
development and B.P. submission, lastly ends with tender and construction drawings that needs the
most time to be completed.
During the process of completing drawings for the Kepong project, I was briefed by Mr.
Hilmi about certain stages of the flow chart. For example, B.P. stand for Building Plan, where the
submission of B.P. drawings is to achieve authority approval to build the architecture. In the design
development stage, engineers are involved due to the consideration of position of structures and
M&E. While during the tender stage, the drawings will be sent to the quantity surveyor to estimate
the cost , which will then goes through the process award.
Internship Training and Report Page !7
Figure 4.1.1 Smart sheet
4.2 Schematic Design
Sketching, 3D modelling and Rendering
SERAI CONDOMINIUM - BERNARD CHAN
Serai Condominium | Bukit Bandaraya, 59000 Bangsar, Kuala Lumpur | Condominium
This building is located in Bangsar, developed by Bandar Raya Development, consisting of
approximately 121 units. Each standard unit is about 4,025 sf and 14,000 sf. Their common area
consists of recreational podium, wading pool, lounge etc. The project Unit One Design involve in is
a refurbishment of one of the unit in the building.
I was assigned to construct a 3D model of a furniture in an alcove with Loh Wei Shuen
based on a series of drawings done by Loh Wei Shuen previously. It is located decide a dining area,
viewing towards Personas Twin towers. We also generated its perspectives in PDF form with
SketchUp for further rendering which will be done by others.
Through this accredited job, I have learnt new skills in using SketchUp. For example, I have
learnt how to create a scene for conveniency of setting the angle of point of view for later purposes.
I have also learnt to set style of rendering depending of the purpose of the perspective.
Internship Training and Report Page !8
Figure 4.2.1 SketchUp model of the interior fitting.
ISOLA KLCC
Isola KLCC | Jalan Yap Kwan Seng, 50450 Kuala Lumpur | Service Residence
The building is located in Kuala Lumpur city, developed by the OCR Land Holdings Sdn. Bhd.. It
consists of 4 towers with approximately 680 to 3,080 sf built up area and 140 units. Facilities
included in the building are sky swimming pool, yoga deck, outdoor screening etc.
I have involved in amending the 3D model, which is done by one of my colleagues earlier,
by using SketchUp. I was assigned to create additional structure that is located along the openings
at the side of the 4 towers.
Internship Training and Report Page !9
Figure 4.2.2 Perspective of the interior fitting.
Figure 4.2.3 SketchUp model of Isola KLCC.
Site Visit and Site Measurement
SERAI
Serai Condominium | Bukit Bandaraya, 59000 Bangsar, Kuala Lumpur | Condominium
This project is located in the same building as the previous mentioned project, Serai Condominium
- Bernard Chan. The unit is approximately 4025 sf. which consists of basic spaces like 4 bedrooms,
one living, one dining, a gym, wet and dry kitchen, laundry etc. But instead of having drafted
furnitures, this project was still in the site measurement stage.
Lee Yih and I was in charge of measuring the interior of the unit in this assigned job. It was
to generate base drawings of the unit for further development of the project. We were given the
accessibility to the whole space to measure its dimensions which include the built in furnitures,
windows and doors as well as the sanitary appliances. Later, we were require to produce its floor
plan, elevations and sections based on our sketches and measurements.
In this assigned job, I was able to use my skills gained during Measured Drawing (Semester
2.5). I was glad that I have experienced this job scope before hand so that I knew the brief idea of
the procedure. At the same time, I have learnt the process of a design stage where the base drawings
are required before a design development produce to understand the space better.
Internship Training and Report Page !10
Figure 4.2.4 Interior perspective of the unit.
Internship Training and Report Page !11
----
1247.TD.XX-XXX
SECTION1,2,3,4
SECTION 01
PRODUCED BY AN AUTODESK EDUCATIONAL PRODUCT
PRODUCEDBYANAUTODESKEDUCATIONALPRODUCT
PRODUCEDBYANAUTODESKEDUCATIONALPRODUCT
PRODUCEDBYANAUTODESKEDUCATIONALPRODUCT
Figure 4.2.5 Base drawing of the unit.
----
1247.TD.XX-XXX
WETKITCHEN-ELEVATION1,2,3,4
ELEVATION 01 ELEVATION 02
ELEVATION 04ELEVATION 03
2800
28002800
2800
PRODUCED BY AN AUTODESK EDUCATIONAL PRODUCT
PRODUCEDBYANAUTODESKEDUCATIONALPRODUCT
PRODUCEDBYANAUTODESKEDUCATIONALPRODUCT
PRODUCEDBYANAUTODESKEDUCATIONALPRODUCT
Figure 4.2.6 Elevations of kitchen.
BBCC SALES GALLERY
Built Bintang City Centre | Jalan Hang Tuah, 55100 Kuala Lumpur, Malaysia | Sales Gallery
The sales gallery is sited in Jalan Hang Tuah, on the old Pudu prison site. It is redeveloped by UDA
and Eco World Development Sdn. Bhd. The sales gallery is placed beside the old Pudu prison’s
gate, which is left as preservation of history. Its purpose is to promote the master plan that is
situated on a 19.4 acre land that includes commercial area, residential area, office suites and
entertainment hub.
During the site visit, we were requested to observe and to ask questions. Ms. Christie and
Mr. Jay were there to give us guidance and provide us information. We have pay attention to
methods of how they have communicated with the clients and their problem solving skills to meet
clients’ needs.
Besides that, we were brought to two show units, which were located at a temporary show
gallery beside the sale gallery construction site. We were assigned to take photos of overall and
every corner and detail of the designed and furnished show units. It is then to be compiled and
documented with drawn point of view on the floor plans. The purpose of this is to enable shifting of
the show units into the complete sales gallery in the future.
Internship Training and Report Page !12
Figure 4.2.7 BBCC site.
We were accredited to head towards the site later for interior accessorising when the
construction process is completed. There were two tasks of accessorising, one was to arrange the
space of the show unit base on photo documented by us previously, while the second one was
interior accessorising of other spaces of the sales gallery for example, boardroom, bar backdrop,
discussion room etc.
Internship Training and Report Page !13
Figure 4.2.8 Meeting with clients at BBCC site.
Figure 4.2.10 Photo taken for documentation.
Figure 4.2.9 Interior construction.
Internship Training and Report Page !14
Figure 4.2.10 Completed interior of show unit.
Figure 4.2.11 Lounge of the sales gallery.
Figure 4.2.12 Boardroom.
ALEXIS
Alexis Bistro | Jalan Mesui, Bukit Bintang, 50200 Kuala Lumpur, Malaysia | Casual Dining, Bar
This project is situated in Bukit Bintang. It is a dining bar that serves Italian cuisines, which
consists of spaces like a bar, dining area, kitchen, store room etc. The project handled by Unit One
Design is the interior spaces including its built in furnitures for example its bar counter.
The appointed job was to measure and produce a reflected ceiling plan of the kitchen, which
is located at the back of the shop. We were required to assess the dimensions of the pipes, exposed
roof structures, their position and purposes. Later, we sketched out a draft of the drawing and took
photos for further documentation. Based on the data collected, we produced a reflected ceiling plan
by using AutoCAD. We were also required to complete a photo documentation for better reference.
With this experience, I have learnt types of pipe for example, AC pipes, trunking, conduit,
water pipes, ventilation ducts etc. I have understood the standard dimensions of them as well as the
distance between each pipe and their purposes. It has also enable me to have awareness to observe
different type of pipes in different spaces of vary functions.
Internship Training and Report Page !15
Figure 4.2.13 Exterior of Alexis Bistro.
Internship Training and Report Page !16
Figure 4.2.14 Photo taken for reference of position of pipes.
13 14 15
181716
Figure 4.2.15 Measuring roof structures and dimension of pipes.
YKS SALES GALLERY
Isola KLCC Show Gallery | Jalan Yap Kwan Seng, 50450 Kuala Lumpur | Sales Gallery
The sales gallery is located in Jalan Yap Kwan Seng. It is built for the purpose of promoting Isola
KLCC which will be located across the street, with the land area of 0.37 acres, consisting 4 towers
and serve as a residential building. The tower is designed by Unit One Design as well as its sales
gallery.
I have involved in the arrangement the interior accessorising and the lighting adjustment
with Loh Wei Shuen and Lee Yih, with the guidance of Mr. John Ding and Ar. Ken Wong. We were
instructed to be observant of the details and surrounding, and position accessories we have prepared
earlier based on our observations to create a harmony atmosphere. Later, we were responsible for
setting the lightings, the built in spotlights, to have proper light rays to generate a proper ambiance.
Internship Training and Report Page !17
Figure 4.2.16 Reflected Ceiling drawn.
As a result, I have understood the importance of context, detailing and interior design, where
architecture is about meeting of skin and skeleton. I have leant that the interior ambience is to be
met to allow user to have best experiences.
Internship Training and Report Page !18
Figure 4.2.17 Interior with completed accessorising.
Figure 4.2.18 Documentation of accessories.
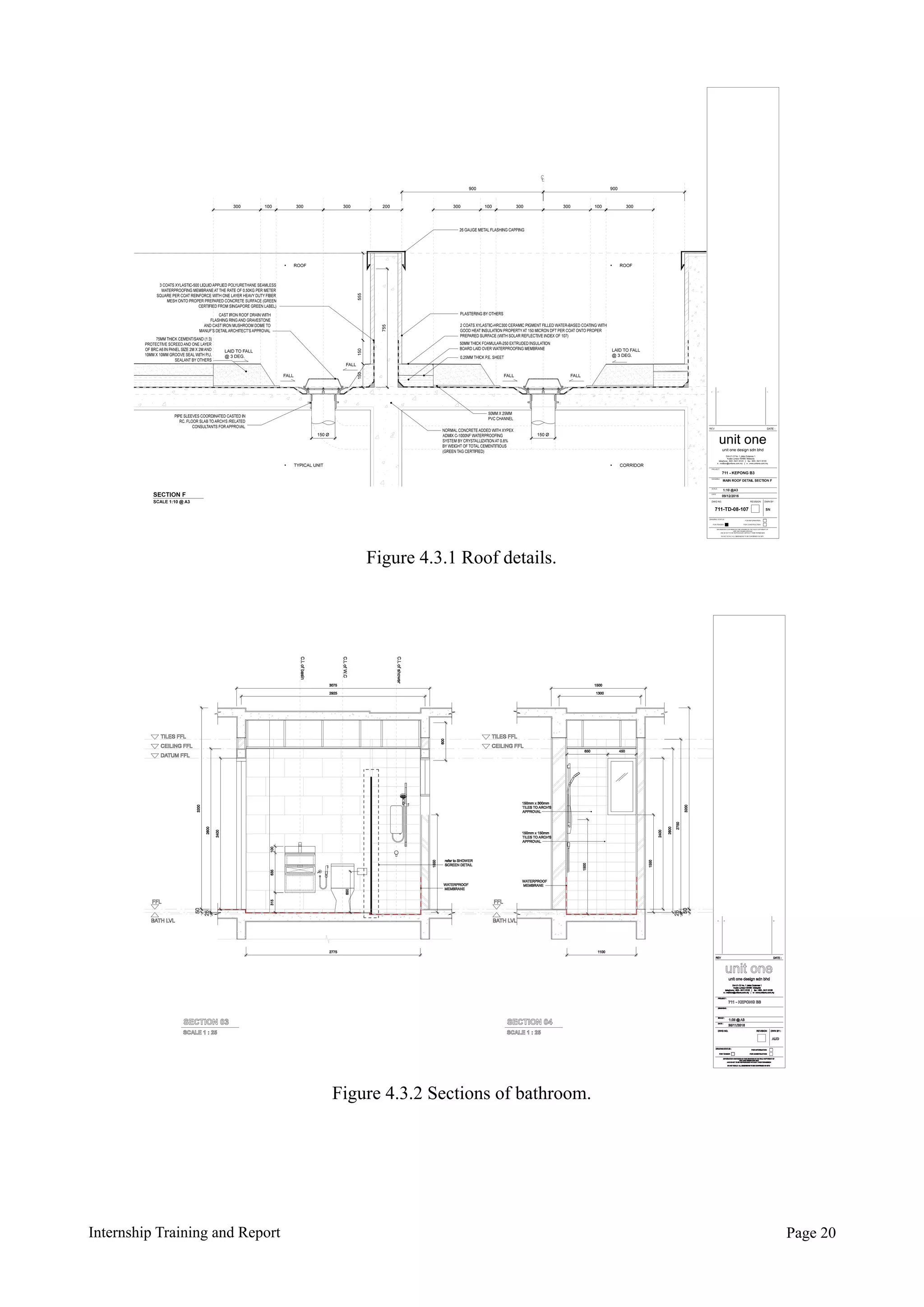
4.3 Contract Documentation
KEPONG
Fortune Perdana Lakeside Residence | Jalan Metro Perdana 6, Off Jalan Kepong, Mukim Batu,
Kuala Lumpur | Service Apartment
The building is placed in Jalan Kepong, developed by Asian PAC Holding Berhad. It serves as a
service apartment consisting 4 blocks, with 6 levels of podium and 28 of floors above ground. The
common area includes wading pool, multipurpose and barbecues area, yoga deck etc. It has
residential units as well as retail units.
I was appointed to make amendments to the tender drawings that was drawn by my
colleagues previously. The drawings include reflected ceiling plan, door and window schedule and
key plans. Later, I was requested to produce section drawings for bathroom, gym and lift lobby as
well as construction details of roof structures. Besides that, as or the bathroom drawings, I was
asked to amend the dimension of the sanitary wares was well as their position according to the
finalise decision. I have also been given task to create a hoarding signage board for the construction
site by referring to previous signboard’s drawings.
By committing to this job, I have learnt new skill in AutoCAD which is creating and using
‘Block’ for conveniency of amending drawings. I have also gained understanding of flat roof
structure, its materiality and construction, as well as the standard requirements of a signage board,
which is needed to be presented at the gate of a construction site.
Internship Training and Report Page !19
Internship Training and Report Page !20
Figure 4.3.1 Roof details.
Figure 4.3.2 Sections of bathroom.
Internship Training and Report Page !21
1200
100
300
300 3100 300
150
49501600
150100
300
100
300
100
300
100
300
100
300300
100
300
4000
100
300
100
5015050150
PANDANGAN HADAPAN 1: 25 KERATAN 1 1: 25
BH REALTY SDN.BHD. CO. (CO.NO:107179-X)
Tel: 603-2786 3388 Fax: 603-2786 2282
Tingkat 12, Menara SMI, No. 6, Lorong P. Ramlee,50250 Kuala Lumpur, Malaysia
CADANGAN PEMBANGUNAN PERDAGANGAN 34 TINGKAT YANG MENGANDUNGI :
I. 1 BLOK PANGSAPURI SERVIS 27 TINGKAT
(462 UNIT)
II. 6 TINGKAT PODIUM DAN KEDAI (38 UNIT)
DI ARAS BAWAH DAN TINGKAT 1
III. 1 UNIT PENCAWANG ELEKTRIK DI ARAS BAWAH
VI. 4 TINGKAT TEMPAT LETAK KERETA DI ARAS BAWAH, 2, 3, 4 DAN 5
V. KEMUDAHAN PENDUDUK DI TINGKAT 6
DI ATAS PT 22637 (LOT 63582), JALAN METRO PERDANA 6, OFF JALAN KEPONG, MUKIM BATU,
KUALA LUMPUR
UNTUK TETUAN:
BH REALTY SDN. BHD.
SCALE :
AND IS NOT TO BE REPRODUCED WITHOUT THEIR PERMISSION
REV DATE :
PROJECT :
DRAWING :
DATE :
DWG NO. REVISION DWN BY :
INFORMATION CONTAINED IN THIS DRAWING IS THE SOLE COPYRIGHT OF
UNIT ONE DESIGN SDN BHD
DO NOT SCALE ALL DIMENSIONS TO BE CONFIRMED ON SITE
unit one
D4-U1-12 No. 1 Jalan Dutamas 1
Kuala Lumpur 50480 Malaysia
telephone : 603 - 6411 6122 | fax : 603 - 6411 6133
e : mailbox@unitone.com.my | w : www.unitone.com.my
unit one design sdn bhd
DRAWING STATUS :
FOR INFORMATION
FOR CONSTRUCTIONFOR TENDER
711.KEPONG B3
20/01/2017
RM
- - -
718-CD-10-001
SIGNBOARD-1
PRODUCED BY AN AUTODESK EDUCATIONAL PRODUCT
PRODUCEDBYANAUTODESKEDUCATIONALPRODUCT
PRODUCEDBYANAUTODESKEDUCATIONALPRODUCT
PRODUCEDBYANAUTODESKEDUCATIONALPRODUCT
Figure 4.3.3 Signage board.
SCALE :
AND IS NOT TO BE REPRODUCED WITHOUT THEIR PERMISSION
REV DATE :
PROJECT :
DRAWING :
DATE :
DWG NO. REVISION DWN BY :
INFORMATION CONTAINED IN THIS DRAWING IS THE SOLE COPYRIGHT OF
UNIT ONE DESIGN SDN BHD
DO NOT SCALE ALL DIMENSIONS TO BE CONFIRMED ON SITE
unit one
D4-U1-12 No. 1 Jalan Dutamas 1
Kuala Lumpur 50480 Malaysia
telephone : 603 - 6411 6122 | fax : 603 - 6411 6133
e : mailbox@unitone.com.my | w : www.unitone.com.my
unit one design sdn bhd
DRAWING STATUS :
FOR INFORMATION
FOR CONSTRUCTIONFOR TENDER
711 - KEPONG B3
17/01/2017
--
KINDERGARTEN
- FLOOR PLAN, SECTION 01 & 02
-- @ A1 / 1:100 @ A3
711.TD.04.210
RQ
2
1
SEC 02
--.--
SEC01
--.--
9350
6551 2799
1800
240018001800
11977
1800
315161222704
19742950
1100
600
1000
200mm THICK RC STRUCTURE WITH
PLASTER AND PAINTED ON BOTH SIDE
150mm THICK BRICK WALL WITH
PLASTER AND PAINTED ON BOTH SIDE
1000mm WIDTH BOMBA-APPROVED
1-HOUR FIRE-RATED SINGLE LEAF
METAL FRAME SOLID TIMBER DOOR,
IN SPRAY PAINTED
FINISH.
1800mm POWDER-COATED ALUMINUM
FRAME CASEMENT & FIXED
WINDOW WITH 8.35mm THK CLEAR
FLOAT GLASS
1800mm POWDER-COATED ALUMINUM
FRAME CASEMENT & FIXED
WINDOW WITH 8.35mm THK CLEAR
FLOAT GLASS
2 1
10946
327132004475
100
2400
1050
4200
32001000
LEVEL 07
LEVEL 06
250mm THICK RC STRUCTURE WITH
PLASTER AND PAINTED ON BOTH SIDE
RC CONCRETE SLAB
1800mm POWDER-COATED ALUMINUM
FRAME CASEMENT & FIXED
WINDOW WITH 8.35mm THK CLEAR
FLOAT GLASS
1800mm POWDER-COATED ALUMINUM
FRAME CASEMENT & FIXED
WINDOW WITH 8.35mm THK CLEAR
FLOAT GLASS
RQ
4200
32001000
9350
3400 2824
LEVEL 07
LEVEL 06
250mm THICK RC STRUCTURE WITH
PLASTER AND PAINTED ON BOTH SIDE
RC CONCRETE SLAB
1800
2400
2400
SCALE 1 : 100
FLOOR PLAN
SCALE 1 : 100
SECTION 01
SCALE 1 : 100
SECTION 02
1000mm WIDTH BOMBA-APPROVED
1-HOUR FIRE-RATED SINGLE LEAF
METAL FRAME SOLID TIMBER DOOR,
IN SPRAY PAINTED
FINISH.
1800mm POWDER-COATED ALUMINUM
FRAME CASEMENT & FIXED
WINDOW WITH 8.35mm THK CLEAR
FLOAT GLASS
1800mm POWDER-COATED ALUMINUM
FRAME CASEMENT & FIXED
WINDOW WITH 8.35mm THK CLEAR
FLOAT GLASS
1800mm POWDER-COATED ALUMINUM
FRAME CASEMENT & FIXED
WINDOW WITH 8.35mm THK CLEAR
FLOAT GLASS
1800mm POWDER-COATED ALUMINUM
FRAME CASEMENT & FIXED
WINDOW WITH 8.35mm THK CLEAR
FLOAT GLASS
4050
13502700
4050
13502700
3127
PRODUCED BY AN AUTODESK EDUCATIONAL PRODUCT
PRODUCEDBYANAUTODESKEDUCATIONALPRODUCT
PRODUCEDBYANAUTODESKEDUCATIONALPRODUCT
PRODUCEDBYANAUTODESKEDUCATIONALPRODUCT
Figure 4.3.4 Drawings of gym.
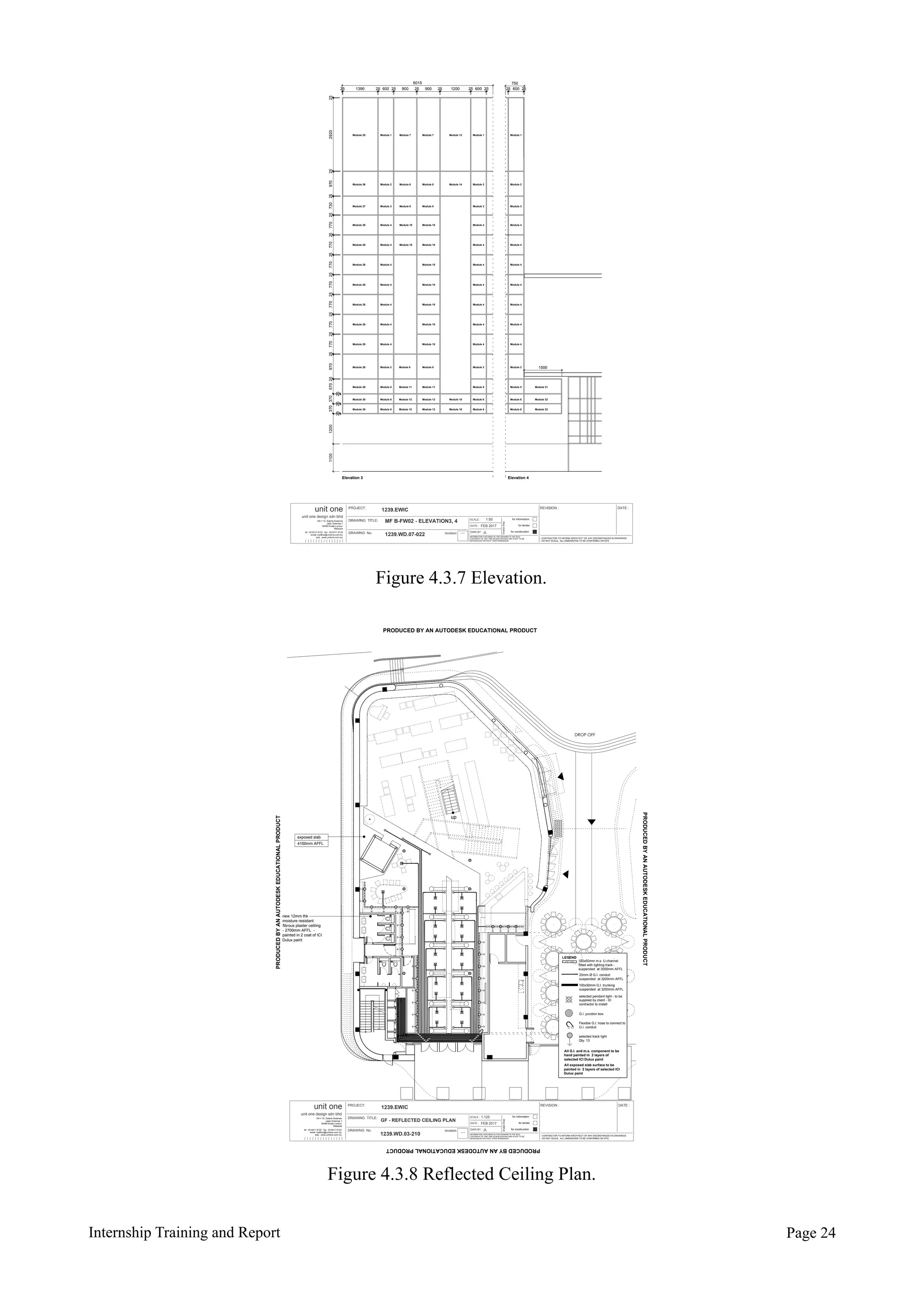
EWIC
Eco World International Centre | Jalan Hang Tuah, 55100 Kuala Lumpur, Malaysia | Sales Gallery
The project is located along side with the project BBCC in Jalan Hang Tuah. It is a international
sales gallery and is part of the Bukit Bintang City Centre sales gallery, which consists of three
storeys above ground. The spaces inside includes display gallery, reception, discussion room bar,
boardroom, open office etc.
The assigned job scope in this project is to digitalise sketches and drafting of interior
furnitures designed and customised by Unit One Design as well as the reflected ceiling plan. We
were to produce plan, elevations, sections and construction details based on drafts given, including
its dimensions, materials, annotations etc. by using AutoCAD. Then, we were given standard title
block to to place with the drawings and print them out to be further inspect and confirmation.
Through committing into this job, I have learnt knowledge about Plot Style, one of the
function of AutoCAD. I have understood that each project has it very own Plot Style which will be
used by contributors to standardise the line weights and line types of the series of drawings. I have
also learnt several construction of furnitures, standard dimensions of some structure and component
as well as materials suitable for them. Besides that, I have realise the importance of detailing in
architecture, importance of creating a harmony interior while designing the exterior.
Internship Training and Report Page !22
Internship Training and Report Page !23
FEB2017
JL
1:20
B-CF03-PLAN
1239.WD.20-050
PROJECT:
DRAWINGTITLE:
DRAWINGNo.
forinformation
fortender
forconstruction
DATE:
SCALE:
DWNBY:
dwg status
REVISION:DATE:
revision
-CONTRACTORTOINFORMARCHITECTOFANYDISCREPANCIESINDRAWINGS
-DONOTSCALE.ALLDIMENSIONSTOBECONFIRMEDONSITE
1239.EWICunitone
unitonedesignsdnbhd
D4-1-12,SolarisDutamas
JalanDutamas1
50480KualaLumpur
Malaysia
INFORMATIONCONTAINEDINTHISDRAWINGISTHESOLE
COPYRIGHTOFUNITONEDESIGNSDNBHDANDISNOTTOBE
REPRODUCEDWITHOUTTHEIRPERMISSION
tel:0364116122fax:0364116133
email:mailbox@unitone.com.my
web:www.unitone.com.my
PLAN 01
Scale 1:20
PLAN 02
Scale 1:20
150 2100 150 150 2100 150
4800
50120050
200200200200200200
50120050
150 2100 150 150 2100 150
4800
150150
det 04
ele 01
ele 02
SEC 02
SEC 01
solid oak top
25 x 50 MS RHS
to be spray painted
20-051
20-051
20-051
20-051
20-052
Figure 4.3.5 Plan for one of the interior furniture.
FEB2017
JL
1:2
B-CF01-DETAIL1,2,3,4
1239.WD.20-052
PROJECT:
DRAWINGTITLE:
DRAWINGNo.
forinformation
fortender
forconstruction
DATE:
SCALE:
DWNBY:
dwg status
REVISION:DATE:
revision
-CONTRACTORTOINFORMARCHITECTOFANYDISCREPANCIESINDRAWINGS
-DONOTSCALE.ALLDIMENSIONSTOBECONFIRMEDONSITE
1239.EWICunitone
unitonedesignsdnbhd
D4-1-12,SolarisDutamas
JalanDutamas1
50480KualaLumpur
Malaysia
INFORMATIONCONTAINEDINTHISDRAWINGISTHESOLE
COPYRIGHTOFUNITONEDESIGNSDNBHDANDISNOTTOBE
REPRODUCEDWITHOUTTHEIRPERMISSION
tel:0364116122fax:0364116133
email:mailbox@unitone.com.my
web:www.unitone.com.my
DETAIL 01 DETAIL 03
DETAIL 02 DETAIL 04
50
20
solid oak top
25 25 25
25 x 50 MS RHS
to be spray painted
25 x 50 MS RHS
to be spray painted
solid oak top
150
50
25 25 25
100
150
25
50
25 25 25
25 x 50 MS RHS
to be spray painted
wheel with brake
25 x 50 MS RHS
to be spray painted
25 x 50 MS RHS
to be spray painted
Figure 4.3.6 Details.
Internship Training and Report Page !24
PROJECT:
DRAWING TITLE:
DRAWING No.
for information
for tender
for construction
DATE :
SCALE :
DWN BY :
dwgstatus
REVISION : DATE :
revision
- CONTRACTOR TO INFORM ARCHITECT OF ANY DISCREPANCIES IN DRAWINGS
- DO NOT SCALE. ALL DIMENSIONS TO BE CONFIRMED ON SITE
1239.EWIC
FEB 2017
JL
unit one
unit one design sdn bhd
D4-1-12, Solaris Dutamas
Jalan Dutamas 1
50480 Kuala Lumpur
Malaysia
INFORMATION CONTAINED IN THIS DRAWING IS THE SOLE
COPYRIGHT OF UNIT ONE DESIGN SDN BHD AND IS NOT TO BE
REPRODUCED WITHOUT THEIR PERMISSION
tel : 03 6411 6122 fax : 03 6411 6133
email: mailbox@unitone.com.my
web : www.unitone.com.my
1:125
GF - REFLECTED CEILING PLAN
1239.WD.03-210
DROP OFF
up
exposed slab
4150mm AFFL
new 12mm thk
moisture resistant
fibrous plaster celiling
- 2700mm AFFL -
painted in 2 coat of ICI
Dulux paint
LEGEND
100x50mm m.s. U channel
fitted with lighting track -
suspended at 3000mm AFFL
20mm Ø G.I. conduit
suspended at 3200mm AFFL
100x50mm G.I. trunking
suspended at 3250mm AFFL
Flexible G.I. hose to connect to
G.I. conduit
All G.I. and m.s. component to be
hand painted in 2 layers of
selected ICI Dulux paint
All exposed slab surface to be
painted in 2 layers of selected ICI
Dulux paint
G.I. junction box
selected pendant light - to be
supplied by client - ID
contractor to install
selected track light
Qty: 13
PRODUCED BY AN AUTODESK EDUCATIONAL PRODUCT
PRODUCEDBYANAUTODESKEDUCATIONALPRODUCT
PRODUCEDBYANAUTODESKEDUCATIONALPRODUCT
PRODUCEDBYANAUTODESKEDUCATIONALPRODUCT
Figure 4.3.7 Elevation.
- -
1:50
1239.WD.07-022
MF B-FW02 - ELEVATION3, 4
1239.EWIC
FEB 2017
JL
INFORMATION CONTAINED IN THIS DRAWING IS THE SOLE
COPYRIGHT OF UNIT ONE DESIGN SDN BHD AND IS NOT TO BE
REPRODUCED WITHOUT THEIR PERMISSION
25 25 25 25 25 25 25 25 251390 600 900 900 1200 600 600
6015 750
12001100
1500
Elevation 3 Elevation 4
Module 30 Module 6 Module 12 Module 12 Module 18 Module 6 Module 6 Module 32
Module 29 Module 5 Module 11 Module 11 Module 5 Module 5 Module 31
Module 26 Module 2 Module 8 Module 8 Module 2 Module 2
Module 28 Module 4 Module 10 Module 4 Module 4
Module 26 Module 2 Module 8 Module 8 Module 14 Module 2 Module 2
Module 27 Module 3 Module 9 Module 9 Module 3 Module 3
Module 25 Module 1 Module 7 Module 7 Module 13 Module 1 Module 1
Module 30 Module 6 Module 12 Module 12 Module 18 Module 6 Module 6 Module 32
Module 28 Module 4 Module 10 Module 4 Module 4
Module 28 Module 4 Module 10 Module 4 Module 4
Module 28 Module 4 Module 10 Module 4 Module 4
Module 28 Module 4 Module 10 Module 4 Module 4
Module 28 Module 4 Module 10 Module 4 Module 4
Module 28 Module 4 Module 10 Module 4 Module 4Module 10
Module 10
2529202597025730770770257702597025570
25
370370252525770257702577025770
2525
Figure 4.3.8 Reflected Ceiling Plan.
ISSUE SHEET
Eco World International Centre | Jalan Hang Tuah, 55100 Kuala Lumpur, Malaysia | Sales Gallery
I was appointed to compile completed drawings of EWIC in order to be issue out to the contractors
and clients, thus, creating issue sheets for the compiled documents.
The compiled documents were requested to duplicated into few copies, which includes one
set of blue paper copy for office purposes, two sets yellow paper copy for contractors and one set of
white copy to be hand over to the client. The drawings are required to be titled with assigned
drawing numbers and arranged according to them for conveniency of further examination and
documentation. Each series of number also represent different sets of drawing for different
component of the interior.
By completing this job, I have learnt the importance of proper management and record-
keeping of projects and works. I have also gain knowledge on methods of more systematic
documentation as well as the idea of clear data compilation for conveniency of contractors and
clients use.
Internship Training and Report Page !25
5.0 CONCLUSION
In conclusion, through committing in to this module, the experiences here have taught me more
than I could have imagined. By getting into this position, I have also gain better understanding of
my skills and where my career path will lead me to. It is a challenging task but it definitely gave me
some beneficial lessons.
Throughout my internship at Unit One Design, I was fortunate to have firsthand experiences
and learnt about varieties of elements that goes into a project, the basic process of planning of a
project, its development and completion, as well as how hard work and detailing goes into every
stage. Another lesson I have achieved was the types of work an Architect has to perform, which in
turn, has given me with more insight into the variety of roles and responsibilities that an Architect
should perform.
Reflecting back to my first day during the internship, it was one of the memorable days of
my time at Unit One Design. After being led to our working space, I was assigned to help in keying
in work schedules and declines into an online application, which has shown me the importance of
planning in this company as well as their well management. This instantly made me feel confident
and definite about learning and experiencing more with the professionals.
Besides that, I observed that workplace was relatively distinct from what I had discover
working at Unit One Design. There are interior designer, project architect, project director and
others all working in one office. This range of people have different strengths and qualifications and
by cooperating with each other and organising job in sync together, progress of work flows
smoothly and are able to complete their work efficiently. Their friendliness and positive ambience
have also created a good atmosphere in the environment.
Throughout the few weeks I also had the opportunity to go for site visit. This is another
aspect which I was grateful I had the chance to be involved. I had the opportunity to go on site on to
the Bukit Bintang City Centre, Isola KLCC Sales Gallery, Alexis Bistro and Serai Condominium.
My responsibilities were to observe, data collection for reference, base drawings production, site
measurement and interior accessing. This was probably the most enjoyable part of my internship
Internship Training and Report Page !26
experience at Unit One Design because I was able to see the work that I was working on brought to
real-life. This has enabled me to understand importance stages of a project.
For addition, I have become more familiar with my skill set for using software like
SketchUp and AutoCAD. Thus, giving support towards further development of my studies and
career.
Last but but not least, I have learnt that attitude and commitment is the most important thing
of all. It is the mindset to learnt, to strive your best at every given job, to try and to not scared of
making mistakes that brings you forward. As I move on to graduation, I believe attitude with
experiences will preps me for the real world.
Overall, my internship experience at Unit One Design was positive and great. I could not
thank everyone more for giving me such amazing guidance and opportunity to learn from people
who are expertise in architecture throughout these 10 weeks.
Internship Training and Report Page !27
6.0 APPENDIX
Internship Training and Report Page !28
Figure 5.1 Project: Kepong. Dimensions of chosen sanitary wares.
Figure 5.2 Project: Alexis. Amendments for Alexis Bistro
kitchen’s reflected ceiling plan.
Internship Training and Report Page !29
Figure 5.4 Project: Alexis. Sketches of reflected ceiling plan
of Alexis Bistro’s kitchen.
Figure 5.3 Project: Alexis. Sketches of reflected ceiling plan
of Alexis Bistro’s kitchen.
Internship Training and Report Page !30
Figure 5.5 Project: Serai. Sketches drew for collecting data.
Figure 5.6 Project: Serai. Base drawings with sketches.
Internship Training and Report Page !31
Figure 5.7 Project: EWIC. Sketches given to be
digitalise by using AutoCAD.
Figure 5.8 Project: EWIC. Sketches given to be
digitalise by using AutoCAD.
Internship Training and Report Page !32
Figure 5.9 Project: EWIC. Sketches of reflected ceiling
plan of EWIC given to be digitalise by using AutoCAD.
Figure 5.10 Project: EWIC. Sketch given to be digitalise
by using AutoCAD.
Internship Training and Report Page !33
Figure 5.11 A hardcopy of work schedule done by using
Smart Sheet.
Figure 5.12 Issue sheet.
Internship Training and Report Page !34
7.0 LOG SHEET
Internship Training and Report Page !35
Internship Training and Report Page !36
Internship Training and Report Page !37
Internship Training and Report Page !38
Internship Training and Report Page !39
Internship Training and Report Page !40
Internship Training and Report Page !41
Internship Training and Report Page !42

BSC (H) ARCHITECTURE DEGREE SEM 4.5 INTERNSHIP REPORT FINAL

  • 1.
    SCHOOL OF ARCHITECTURE,BUILDING & DESIGN Bachelor of Science (Honours) in Architecture INTERNSHIP REPORT INTERNSHIP TRAINING AND REPORT (ARC2615, ARC2613 & ARC2622) Prepared by: Tan Jo Lynn (0318518) Architecture Firm: Unit One Design Sdn. Bhd. Tutor: Ar. Zahari Zubi Internship Training and Report Page !1
  • 2.
    Internship Training andReport Page !2 ARC2615 / ARC2613 / ARC2622 ARCHITECTURE INTERNSHIP LOG SHEETS AND REPORT Student Details Internship Company Taylor's University Student Full Name Lakeside Campus Stu.No No.1 Home Address Jalan Taylor's PJS7/13 47500 Subang Selangor Malaysia Phone No. Home Phone No. Mobile VoIP Software (Skype) / Overseas No. Email School of Architecture, Building & Design Lecturer Details Location Name Email Office No. Kuala Lumpur Zahari Zubir Zahari.Zubir@taylors.edu.my 603-5629 5000 UNIT ONE DESIGN TAN JO LYNN jolynn_960427@hotmail.com 0318518 NO. 19, JLN BAYAN 1A, BDR PUCHONG JAYA, 47170 PUCHONG, SELANGOR DARUL EHSAN, MALAYSIA. +603-80805815 +6012-2179259
  • 3.
    TABLE OF CONTENT CHAPTER1.0 ACKNOWLEDGEMENT 4 CHAPTER 2.0 INTRODUCTION TO MODULE 5 CHAPTER 3.0 INTRODUCTION TO COMPANY 6 CHAPTER 4.0 REPORT Section 5.1 Programming 7 Section 5.2 Schematic Design 8 Section 5.3 Contract Documentation 17 CHAPTER 5.0 CONCLUSION 25 CHAPTER 6.0 APPENDIX 27 CHAPTER 7.0 LOG SHEET 34 Internship Training and Report Page !3
  • 4.
    1.0 ACKNOWLEDGEMENT The internshipopportunity I had with Unit One Design was a great chance for learning and professional development. To begin with, I would want to thank Mr. John Ding (Chief Director) for providing us the opportunity to experience and learn in this company, as well as Ar. Ken Wong (Executive Chief Director) for his patience in guiding and advising us throughout our internship. Besides that, I want to express my gratitude to Mr. Joel (Project Director) for his effort in managing our daily job scope during the whole of internship. I would also like to thank Mr. Hilmi, Ms. Fong and Ms. Audrey, who have gave us guidance on our assigned work. As well as Mr. Bryan, Mr. Jay and Ms. Christie for providing information during site visits. Lastly, I would like to thank Ar. Zahari Zubir, my tutor, for guiding us to have a better understanding towards this module, its objectives and requirements. In conclusion, we were able to learn and experience professional information about architecture field. I perceive this opportunity as a big milestone in my development and I would use gained skills and knowledge in best possible way. Tan Jo Lynn Student of Taylor’s University Bachelor of Science (Honours) Architecture Internship Training and Report Page !4
  • 5.
    2.0 INTRODUCTION TOMODULE This module intends to introduce understanding of requirements, activities and management as well as operations in real life architectural practices. It is aimed to enable students to be involve in professional practices. Hence, allow them to gain knowledge and generate awareness of principles and procedure of law and legislation applied to proper architectural drawings as well as different activities that occur within an architecture firm. Therefore, students are required to produce a weekly assessment log sheet for their tutor to keep track of their job scope given in the office. They are also require to generate a final report, which include the log sheet collected, as a documentation of their experiences, learnings and observations. Internship Training and Report Page !5
  • 6.
    3.0 INTRODUCTION TOCOMPANY Unit One Design was establish in the year of 1996, founded by Mr. John Ding and Ar. Ken Wong. It was previously placed in Sri Hartamas and is currently located in Solaris Dutamas, Publika. It started off as a small architecture firm, where it has grown into a company consists of approximately 30 members now with 42 awards won. Their design philosophy is to create progressive works with clear function and design integrity. Based on that, they search for solution for their projects by analysing, observing and communicating to achieve detail understating of clients’ needs. Their intention is to combine architecture, interior design, graphics, retail and product design in their production. Company Name Unit One Design Address D4-1-12 Solaris Dutamas No. 1 Jalan Dutamas 1 50480 Kuala Lumpur, Malaysia Contact Number +603 6411 6122 Email mailbox@unitone.com.my Internship Training and Report Page !6
  • 7.
    4.0 REPORT 4.1 Programming Thefirst job I was appointed to is to key in planned schedule and job scope of members in the company into a programming software called the smart sheet. It is an online application used by the company to manage their working schedule, job scope and deadlines as fail to plan, is plan to fail. After completing the assigned job, I understood the importance of time management and planning. I have also gained awareness of the basic flow chart of the architecture firm, where it usually starts with generating concepts and schematic designs, goes through D.O., design development and B.P. submission, lastly ends with tender and construction drawings that needs the most time to be completed. During the process of completing drawings for the Kepong project, I was briefed by Mr. Hilmi about certain stages of the flow chart. For example, B.P. stand for Building Plan, where the submission of B.P. drawings is to achieve authority approval to build the architecture. In the design development stage, engineers are involved due to the consideration of position of structures and M&E. While during the tender stage, the drawings will be sent to the quantity surveyor to estimate the cost , which will then goes through the process award. Internship Training and Report Page !7 Figure 4.1.1 Smart sheet
  • 8.
    4.2 Schematic Design Sketching,3D modelling and Rendering SERAI CONDOMINIUM - BERNARD CHAN Serai Condominium | Bukit Bandaraya, 59000 Bangsar, Kuala Lumpur | Condominium This building is located in Bangsar, developed by Bandar Raya Development, consisting of approximately 121 units. Each standard unit is about 4,025 sf and 14,000 sf. Their common area consists of recreational podium, wading pool, lounge etc. The project Unit One Design involve in is a refurbishment of one of the unit in the building. I was assigned to construct a 3D model of a furniture in an alcove with Loh Wei Shuen based on a series of drawings done by Loh Wei Shuen previously. It is located decide a dining area, viewing towards Personas Twin towers. We also generated its perspectives in PDF form with SketchUp for further rendering which will be done by others. Through this accredited job, I have learnt new skills in using SketchUp. For example, I have learnt how to create a scene for conveniency of setting the angle of point of view for later purposes. I have also learnt to set style of rendering depending of the purpose of the perspective. Internship Training and Report Page !8 Figure 4.2.1 SketchUp model of the interior fitting.
  • 9.
    ISOLA KLCC Isola KLCC| Jalan Yap Kwan Seng, 50450 Kuala Lumpur | Service Residence The building is located in Kuala Lumpur city, developed by the OCR Land Holdings Sdn. Bhd.. It consists of 4 towers with approximately 680 to 3,080 sf built up area and 140 units. Facilities included in the building are sky swimming pool, yoga deck, outdoor screening etc. I have involved in amending the 3D model, which is done by one of my colleagues earlier, by using SketchUp. I was assigned to create additional structure that is located along the openings at the side of the 4 towers. Internship Training and Report Page !9 Figure 4.2.2 Perspective of the interior fitting. Figure 4.2.3 SketchUp model of Isola KLCC.
  • 10.
    Site Visit andSite Measurement SERAI Serai Condominium | Bukit Bandaraya, 59000 Bangsar, Kuala Lumpur | Condominium This project is located in the same building as the previous mentioned project, Serai Condominium - Bernard Chan. The unit is approximately 4025 sf. which consists of basic spaces like 4 bedrooms, one living, one dining, a gym, wet and dry kitchen, laundry etc. But instead of having drafted furnitures, this project was still in the site measurement stage. Lee Yih and I was in charge of measuring the interior of the unit in this assigned job. It was to generate base drawings of the unit for further development of the project. We were given the accessibility to the whole space to measure its dimensions which include the built in furnitures, windows and doors as well as the sanitary appliances. Later, we were require to produce its floor plan, elevations and sections based on our sketches and measurements. In this assigned job, I was able to use my skills gained during Measured Drawing (Semester 2.5). I was glad that I have experienced this job scope before hand so that I knew the brief idea of the procedure. At the same time, I have learnt the process of a design stage where the base drawings are required before a design development produce to understand the space better. Internship Training and Report Page !10 Figure 4.2.4 Interior perspective of the unit.
  • 11.
    Internship Training andReport Page !11 ---- 1247.TD.XX-XXX SECTION1,2,3,4 SECTION 01 PRODUCED BY AN AUTODESK EDUCATIONAL PRODUCT PRODUCEDBYANAUTODESKEDUCATIONALPRODUCT PRODUCEDBYANAUTODESKEDUCATIONALPRODUCT PRODUCEDBYANAUTODESKEDUCATIONALPRODUCT Figure 4.2.5 Base drawing of the unit. ---- 1247.TD.XX-XXX WETKITCHEN-ELEVATION1,2,3,4 ELEVATION 01 ELEVATION 02 ELEVATION 04ELEVATION 03 2800 28002800 2800 PRODUCED BY AN AUTODESK EDUCATIONAL PRODUCT PRODUCEDBYANAUTODESKEDUCATIONALPRODUCT PRODUCEDBYANAUTODESKEDUCATIONALPRODUCT PRODUCEDBYANAUTODESKEDUCATIONALPRODUCT Figure 4.2.6 Elevations of kitchen.
  • 12.
    BBCC SALES GALLERY BuiltBintang City Centre | Jalan Hang Tuah, 55100 Kuala Lumpur, Malaysia | Sales Gallery The sales gallery is sited in Jalan Hang Tuah, on the old Pudu prison site. It is redeveloped by UDA and Eco World Development Sdn. Bhd. The sales gallery is placed beside the old Pudu prison’s gate, which is left as preservation of history. Its purpose is to promote the master plan that is situated on a 19.4 acre land that includes commercial area, residential area, office suites and entertainment hub. During the site visit, we were requested to observe and to ask questions. Ms. Christie and Mr. Jay were there to give us guidance and provide us information. We have pay attention to methods of how they have communicated with the clients and their problem solving skills to meet clients’ needs. Besides that, we were brought to two show units, which were located at a temporary show gallery beside the sale gallery construction site. We were assigned to take photos of overall and every corner and detail of the designed and furnished show units. It is then to be compiled and documented with drawn point of view on the floor plans. The purpose of this is to enable shifting of the show units into the complete sales gallery in the future. Internship Training and Report Page !12 Figure 4.2.7 BBCC site.
  • 13.
    We were accreditedto head towards the site later for interior accessorising when the construction process is completed. There were two tasks of accessorising, one was to arrange the space of the show unit base on photo documented by us previously, while the second one was interior accessorising of other spaces of the sales gallery for example, boardroom, bar backdrop, discussion room etc. Internship Training and Report Page !13 Figure 4.2.8 Meeting with clients at BBCC site. Figure 4.2.10 Photo taken for documentation. Figure 4.2.9 Interior construction.
  • 14.
    Internship Training andReport Page !14 Figure 4.2.10 Completed interior of show unit. Figure 4.2.11 Lounge of the sales gallery. Figure 4.2.12 Boardroom.
  • 15.
    ALEXIS Alexis Bistro |Jalan Mesui, Bukit Bintang, 50200 Kuala Lumpur, Malaysia | Casual Dining, Bar This project is situated in Bukit Bintang. It is a dining bar that serves Italian cuisines, which consists of spaces like a bar, dining area, kitchen, store room etc. The project handled by Unit One Design is the interior spaces including its built in furnitures for example its bar counter. The appointed job was to measure and produce a reflected ceiling plan of the kitchen, which is located at the back of the shop. We were required to assess the dimensions of the pipes, exposed roof structures, their position and purposes. Later, we sketched out a draft of the drawing and took photos for further documentation. Based on the data collected, we produced a reflected ceiling plan by using AutoCAD. We were also required to complete a photo documentation for better reference. With this experience, I have learnt types of pipe for example, AC pipes, trunking, conduit, water pipes, ventilation ducts etc. I have understood the standard dimensions of them as well as the distance between each pipe and their purposes. It has also enable me to have awareness to observe different type of pipes in different spaces of vary functions. Internship Training and Report Page !15 Figure 4.2.13 Exterior of Alexis Bistro.
  • 16.
    Internship Training andReport Page !16 Figure 4.2.14 Photo taken for reference of position of pipes. 13 14 15 181716 Figure 4.2.15 Measuring roof structures and dimension of pipes.
  • 17.
    YKS SALES GALLERY IsolaKLCC Show Gallery | Jalan Yap Kwan Seng, 50450 Kuala Lumpur | Sales Gallery The sales gallery is located in Jalan Yap Kwan Seng. It is built for the purpose of promoting Isola KLCC which will be located across the street, with the land area of 0.37 acres, consisting 4 towers and serve as a residential building. The tower is designed by Unit One Design as well as its sales gallery. I have involved in the arrangement the interior accessorising and the lighting adjustment with Loh Wei Shuen and Lee Yih, with the guidance of Mr. John Ding and Ar. Ken Wong. We were instructed to be observant of the details and surrounding, and position accessories we have prepared earlier based on our observations to create a harmony atmosphere. Later, we were responsible for setting the lightings, the built in spotlights, to have proper light rays to generate a proper ambiance. Internship Training and Report Page !17 Figure 4.2.16 Reflected Ceiling drawn.
  • 18.
    As a result,I have understood the importance of context, detailing and interior design, where architecture is about meeting of skin and skeleton. I have leant that the interior ambience is to be met to allow user to have best experiences. Internship Training and Report Page !18 Figure 4.2.17 Interior with completed accessorising. Figure 4.2.18 Documentation of accessories.
  • 19.
    4.3 Contract Documentation KEPONG FortunePerdana Lakeside Residence | Jalan Metro Perdana 6, Off Jalan Kepong, Mukim Batu, Kuala Lumpur | Service Apartment The building is placed in Jalan Kepong, developed by Asian PAC Holding Berhad. It serves as a service apartment consisting 4 blocks, with 6 levels of podium and 28 of floors above ground. The common area includes wading pool, multipurpose and barbecues area, yoga deck etc. It has residential units as well as retail units. I was appointed to make amendments to the tender drawings that was drawn by my colleagues previously. The drawings include reflected ceiling plan, door and window schedule and key plans. Later, I was requested to produce section drawings for bathroom, gym and lift lobby as well as construction details of roof structures. Besides that, as or the bathroom drawings, I was asked to amend the dimension of the sanitary wares was well as their position according to the finalise decision. I have also been given task to create a hoarding signage board for the construction site by referring to previous signboard’s drawings. By committing to this job, I have learnt new skill in AutoCAD which is creating and using ‘Block’ for conveniency of amending drawings. I have also gained understanding of flat roof structure, its materiality and construction, as well as the standard requirements of a signage board, which is needed to be presented at the gate of a construction site. Internship Training and Report Page !19
  • 20.
    Internship Training andReport Page !20 Figure 4.3.1 Roof details. Figure 4.3.2 Sections of bathroom.
  • 21.
    Internship Training andReport Page !21 1200 100 300 300 3100 300 150 49501600 150100 300 100 300 100 300 100 300 100 300300 100 300 4000 100 300 100 5015050150 PANDANGAN HADAPAN 1: 25 KERATAN 1 1: 25 BH REALTY SDN.BHD. CO. (CO.NO:107179-X) Tel: 603-2786 3388 Fax: 603-2786 2282 Tingkat 12, Menara SMI, No. 6, Lorong P. Ramlee,50250 Kuala Lumpur, Malaysia CADANGAN PEMBANGUNAN PERDAGANGAN 34 TINGKAT YANG MENGANDUNGI : I. 1 BLOK PANGSAPURI SERVIS 27 TINGKAT (462 UNIT) II. 6 TINGKAT PODIUM DAN KEDAI (38 UNIT) DI ARAS BAWAH DAN TINGKAT 1 III. 1 UNIT PENCAWANG ELEKTRIK DI ARAS BAWAH VI. 4 TINGKAT TEMPAT LETAK KERETA DI ARAS BAWAH, 2, 3, 4 DAN 5 V. KEMUDAHAN PENDUDUK DI TINGKAT 6 DI ATAS PT 22637 (LOT 63582), JALAN METRO PERDANA 6, OFF JALAN KEPONG, MUKIM BATU, KUALA LUMPUR UNTUK TETUAN: BH REALTY SDN. BHD. SCALE : AND IS NOT TO BE REPRODUCED WITHOUT THEIR PERMISSION REV DATE : PROJECT : DRAWING : DATE : DWG NO. REVISION DWN BY : INFORMATION CONTAINED IN THIS DRAWING IS THE SOLE COPYRIGHT OF UNIT ONE DESIGN SDN BHD DO NOT SCALE ALL DIMENSIONS TO BE CONFIRMED ON SITE unit one D4-U1-12 No. 1 Jalan Dutamas 1 Kuala Lumpur 50480 Malaysia telephone : 603 - 6411 6122 | fax : 603 - 6411 6133 e : mailbox@unitone.com.my | w : www.unitone.com.my unit one design sdn bhd DRAWING STATUS : FOR INFORMATION FOR CONSTRUCTIONFOR TENDER 711.KEPONG B3 20/01/2017 RM - - - 718-CD-10-001 SIGNBOARD-1 PRODUCED BY AN AUTODESK EDUCATIONAL PRODUCT PRODUCEDBYANAUTODESKEDUCATIONALPRODUCT PRODUCEDBYANAUTODESKEDUCATIONALPRODUCT PRODUCEDBYANAUTODESKEDUCATIONALPRODUCT Figure 4.3.3 Signage board. SCALE : AND IS NOT TO BE REPRODUCED WITHOUT THEIR PERMISSION REV DATE : PROJECT : DRAWING : DATE : DWG NO. REVISION DWN BY : INFORMATION CONTAINED IN THIS DRAWING IS THE SOLE COPYRIGHT OF UNIT ONE DESIGN SDN BHD DO NOT SCALE ALL DIMENSIONS TO BE CONFIRMED ON SITE unit one D4-U1-12 No. 1 Jalan Dutamas 1 Kuala Lumpur 50480 Malaysia telephone : 603 - 6411 6122 | fax : 603 - 6411 6133 e : mailbox@unitone.com.my | w : www.unitone.com.my unit one design sdn bhd DRAWING STATUS : FOR INFORMATION FOR CONSTRUCTIONFOR TENDER 711 - KEPONG B3 17/01/2017 -- KINDERGARTEN - FLOOR PLAN, SECTION 01 & 02 -- @ A1 / 1:100 @ A3 711.TD.04.210 RQ 2 1 SEC 02 --.-- SEC01 --.-- 9350 6551 2799 1800 240018001800 11977 1800 315161222704 19742950 1100 600 1000 200mm THICK RC STRUCTURE WITH PLASTER AND PAINTED ON BOTH SIDE 150mm THICK BRICK WALL WITH PLASTER AND PAINTED ON BOTH SIDE 1000mm WIDTH BOMBA-APPROVED 1-HOUR FIRE-RATED SINGLE LEAF METAL FRAME SOLID TIMBER DOOR, IN SPRAY PAINTED FINISH. 1800mm POWDER-COATED ALUMINUM FRAME CASEMENT & FIXED WINDOW WITH 8.35mm THK CLEAR FLOAT GLASS 1800mm POWDER-COATED ALUMINUM FRAME CASEMENT & FIXED WINDOW WITH 8.35mm THK CLEAR FLOAT GLASS 2 1 10946 327132004475 100 2400 1050 4200 32001000 LEVEL 07 LEVEL 06 250mm THICK RC STRUCTURE WITH PLASTER AND PAINTED ON BOTH SIDE RC CONCRETE SLAB 1800mm POWDER-COATED ALUMINUM FRAME CASEMENT & FIXED WINDOW WITH 8.35mm THK CLEAR FLOAT GLASS 1800mm POWDER-COATED ALUMINUM FRAME CASEMENT & FIXED WINDOW WITH 8.35mm THK CLEAR FLOAT GLASS RQ 4200 32001000 9350 3400 2824 LEVEL 07 LEVEL 06 250mm THICK RC STRUCTURE WITH PLASTER AND PAINTED ON BOTH SIDE RC CONCRETE SLAB 1800 2400 2400 SCALE 1 : 100 FLOOR PLAN SCALE 1 : 100 SECTION 01 SCALE 1 : 100 SECTION 02 1000mm WIDTH BOMBA-APPROVED 1-HOUR FIRE-RATED SINGLE LEAF METAL FRAME SOLID TIMBER DOOR, IN SPRAY PAINTED FINISH. 1800mm POWDER-COATED ALUMINUM FRAME CASEMENT & FIXED WINDOW WITH 8.35mm THK CLEAR FLOAT GLASS 1800mm POWDER-COATED ALUMINUM FRAME CASEMENT & FIXED WINDOW WITH 8.35mm THK CLEAR FLOAT GLASS 1800mm POWDER-COATED ALUMINUM FRAME CASEMENT & FIXED WINDOW WITH 8.35mm THK CLEAR FLOAT GLASS 1800mm POWDER-COATED ALUMINUM FRAME CASEMENT & FIXED WINDOW WITH 8.35mm THK CLEAR FLOAT GLASS 4050 13502700 4050 13502700 3127 PRODUCED BY AN AUTODESK EDUCATIONAL PRODUCT PRODUCEDBYANAUTODESKEDUCATIONALPRODUCT PRODUCEDBYANAUTODESKEDUCATIONALPRODUCT PRODUCEDBYANAUTODESKEDUCATIONALPRODUCT Figure 4.3.4 Drawings of gym.
  • 22.
    EWIC Eco World InternationalCentre | Jalan Hang Tuah, 55100 Kuala Lumpur, Malaysia | Sales Gallery The project is located along side with the project BBCC in Jalan Hang Tuah. It is a international sales gallery and is part of the Bukit Bintang City Centre sales gallery, which consists of three storeys above ground. The spaces inside includes display gallery, reception, discussion room bar, boardroom, open office etc. The assigned job scope in this project is to digitalise sketches and drafting of interior furnitures designed and customised by Unit One Design as well as the reflected ceiling plan. We were to produce plan, elevations, sections and construction details based on drafts given, including its dimensions, materials, annotations etc. by using AutoCAD. Then, we were given standard title block to to place with the drawings and print them out to be further inspect and confirmation. Through committing into this job, I have learnt knowledge about Plot Style, one of the function of AutoCAD. I have understood that each project has it very own Plot Style which will be used by contributors to standardise the line weights and line types of the series of drawings. I have also learnt several construction of furnitures, standard dimensions of some structure and component as well as materials suitable for them. Besides that, I have realise the importance of detailing in architecture, importance of creating a harmony interior while designing the exterior. Internship Training and Report Page !22
  • 23.
    Internship Training andReport Page !23 FEB2017 JL 1:20 B-CF03-PLAN 1239.WD.20-050 PROJECT: DRAWINGTITLE: DRAWINGNo. forinformation fortender forconstruction DATE: SCALE: DWNBY: dwg status REVISION:DATE: revision -CONTRACTORTOINFORMARCHITECTOFANYDISCREPANCIESINDRAWINGS -DONOTSCALE.ALLDIMENSIONSTOBECONFIRMEDONSITE 1239.EWICunitone unitonedesignsdnbhd D4-1-12,SolarisDutamas JalanDutamas1 50480KualaLumpur Malaysia INFORMATIONCONTAINEDINTHISDRAWINGISTHESOLE COPYRIGHTOFUNITONEDESIGNSDNBHDANDISNOTTOBE REPRODUCEDWITHOUTTHEIRPERMISSION tel:0364116122fax:0364116133 email:mailbox@unitone.com.my web:www.unitone.com.my PLAN 01 Scale 1:20 PLAN 02 Scale 1:20 150 2100 150 150 2100 150 4800 50120050 200200200200200200 50120050 150 2100 150 150 2100 150 4800 150150 det 04 ele 01 ele 02 SEC 02 SEC 01 solid oak top 25 x 50 MS RHS to be spray painted 20-051 20-051 20-051 20-051 20-052 Figure 4.3.5 Plan for one of the interior furniture. FEB2017 JL 1:2 B-CF01-DETAIL1,2,3,4 1239.WD.20-052 PROJECT: DRAWINGTITLE: DRAWINGNo. forinformation fortender forconstruction DATE: SCALE: DWNBY: dwg status REVISION:DATE: revision -CONTRACTORTOINFORMARCHITECTOFANYDISCREPANCIESINDRAWINGS -DONOTSCALE.ALLDIMENSIONSTOBECONFIRMEDONSITE 1239.EWICunitone unitonedesignsdnbhd D4-1-12,SolarisDutamas JalanDutamas1 50480KualaLumpur Malaysia INFORMATIONCONTAINEDINTHISDRAWINGISTHESOLE COPYRIGHTOFUNITONEDESIGNSDNBHDANDISNOTTOBE REPRODUCEDWITHOUTTHEIRPERMISSION tel:0364116122fax:0364116133 email:mailbox@unitone.com.my web:www.unitone.com.my DETAIL 01 DETAIL 03 DETAIL 02 DETAIL 04 50 20 solid oak top 25 25 25 25 x 50 MS RHS to be spray painted 25 x 50 MS RHS to be spray painted solid oak top 150 50 25 25 25 100 150 25 50 25 25 25 25 x 50 MS RHS to be spray painted wheel with brake 25 x 50 MS RHS to be spray painted 25 x 50 MS RHS to be spray painted Figure 4.3.6 Details.
  • 24.
    Internship Training andReport Page !24 PROJECT: DRAWING TITLE: DRAWING No. for information for tender for construction DATE : SCALE : DWN BY : dwgstatus REVISION : DATE : revision - CONTRACTOR TO INFORM ARCHITECT OF ANY DISCREPANCIES IN DRAWINGS - DO NOT SCALE. ALL DIMENSIONS TO BE CONFIRMED ON SITE 1239.EWIC FEB 2017 JL unit one unit one design sdn bhd D4-1-12, Solaris Dutamas Jalan Dutamas 1 50480 Kuala Lumpur Malaysia INFORMATION CONTAINED IN THIS DRAWING IS THE SOLE COPYRIGHT OF UNIT ONE DESIGN SDN BHD AND IS NOT TO BE REPRODUCED WITHOUT THEIR PERMISSION tel : 03 6411 6122 fax : 03 6411 6133 email: mailbox@unitone.com.my web : www.unitone.com.my 1:125 GF - REFLECTED CEILING PLAN 1239.WD.03-210 DROP OFF up exposed slab 4150mm AFFL new 12mm thk moisture resistant fibrous plaster celiling - 2700mm AFFL - painted in 2 coat of ICI Dulux paint LEGEND 100x50mm m.s. U channel fitted with lighting track - suspended at 3000mm AFFL 20mm Ø G.I. conduit suspended at 3200mm AFFL 100x50mm G.I. trunking suspended at 3250mm AFFL Flexible G.I. hose to connect to G.I. conduit All G.I. and m.s. component to be hand painted in 2 layers of selected ICI Dulux paint All exposed slab surface to be painted in 2 layers of selected ICI Dulux paint G.I. junction box selected pendant light - to be supplied by client - ID contractor to install selected track light Qty: 13 PRODUCED BY AN AUTODESK EDUCATIONAL PRODUCT PRODUCEDBYANAUTODESKEDUCATIONALPRODUCT PRODUCEDBYANAUTODESKEDUCATIONALPRODUCT PRODUCEDBYANAUTODESKEDUCATIONALPRODUCT Figure 4.3.7 Elevation. - - 1:50 1239.WD.07-022 MF B-FW02 - ELEVATION3, 4 1239.EWIC FEB 2017 JL INFORMATION CONTAINED IN THIS DRAWING IS THE SOLE COPYRIGHT OF UNIT ONE DESIGN SDN BHD AND IS NOT TO BE REPRODUCED WITHOUT THEIR PERMISSION 25 25 25 25 25 25 25 25 251390 600 900 900 1200 600 600 6015 750 12001100 1500 Elevation 3 Elevation 4 Module 30 Module 6 Module 12 Module 12 Module 18 Module 6 Module 6 Module 32 Module 29 Module 5 Module 11 Module 11 Module 5 Module 5 Module 31 Module 26 Module 2 Module 8 Module 8 Module 2 Module 2 Module 28 Module 4 Module 10 Module 4 Module 4 Module 26 Module 2 Module 8 Module 8 Module 14 Module 2 Module 2 Module 27 Module 3 Module 9 Module 9 Module 3 Module 3 Module 25 Module 1 Module 7 Module 7 Module 13 Module 1 Module 1 Module 30 Module 6 Module 12 Module 12 Module 18 Module 6 Module 6 Module 32 Module 28 Module 4 Module 10 Module 4 Module 4 Module 28 Module 4 Module 10 Module 4 Module 4 Module 28 Module 4 Module 10 Module 4 Module 4 Module 28 Module 4 Module 10 Module 4 Module 4 Module 28 Module 4 Module 10 Module 4 Module 4 Module 28 Module 4 Module 10 Module 4 Module 4Module 10 Module 10 2529202597025730770770257702597025570 25 370370252525770257702577025770 2525 Figure 4.3.8 Reflected Ceiling Plan.
  • 25.
    ISSUE SHEET Eco WorldInternational Centre | Jalan Hang Tuah, 55100 Kuala Lumpur, Malaysia | Sales Gallery I was appointed to compile completed drawings of EWIC in order to be issue out to the contractors and clients, thus, creating issue sheets for the compiled documents. The compiled documents were requested to duplicated into few copies, which includes one set of blue paper copy for office purposes, two sets yellow paper copy for contractors and one set of white copy to be hand over to the client. The drawings are required to be titled with assigned drawing numbers and arranged according to them for conveniency of further examination and documentation. Each series of number also represent different sets of drawing for different component of the interior. By completing this job, I have learnt the importance of proper management and record- keeping of projects and works. I have also gain knowledge on methods of more systematic documentation as well as the idea of clear data compilation for conveniency of contractors and clients use. Internship Training and Report Page !25
  • 26.
    5.0 CONCLUSION In conclusion,through committing in to this module, the experiences here have taught me more than I could have imagined. By getting into this position, I have also gain better understanding of my skills and where my career path will lead me to. It is a challenging task but it definitely gave me some beneficial lessons. Throughout my internship at Unit One Design, I was fortunate to have firsthand experiences and learnt about varieties of elements that goes into a project, the basic process of planning of a project, its development and completion, as well as how hard work and detailing goes into every stage. Another lesson I have achieved was the types of work an Architect has to perform, which in turn, has given me with more insight into the variety of roles and responsibilities that an Architect should perform. Reflecting back to my first day during the internship, it was one of the memorable days of my time at Unit One Design. After being led to our working space, I was assigned to help in keying in work schedules and declines into an online application, which has shown me the importance of planning in this company as well as their well management. This instantly made me feel confident and definite about learning and experiencing more with the professionals. Besides that, I observed that workplace was relatively distinct from what I had discover working at Unit One Design. There are interior designer, project architect, project director and others all working in one office. This range of people have different strengths and qualifications and by cooperating with each other and organising job in sync together, progress of work flows smoothly and are able to complete their work efficiently. Their friendliness and positive ambience have also created a good atmosphere in the environment. Throughout the few weeks I also had the opportunity to go for site visit. This is another aspect which I was grateful I had the chance to be involved. I had the opportunity to go on site on to the Bukit Bintang City Centre, Isola KLCC Sales Gallery, Alexis Bistro and Serai Condominium. My responsibilities were to observe, data collection for reference, base drawings production, site measurement and interior accessing. This was probably the most enjoyable part of my internship Internship Training and Report Page !26
  • 27.
    experience at UnitOne Design because I was able to see the work that I was working on brought to real-life. This has enabled me to understand importance stages of a project. For addition, I have become more familiar with my skill set for using software like SketchUp and AutoCAD. Thus, giving support towards further development of my studies and career. Last but but not least, I have learnt that attitude and commitment is the most important thing of all. It is the mindset to learnt, to strive your best at every given job, to try and to not scared of making mistakes that brings you forward. As I move on to graduation, I believe attitude with experiences will preps me for the real world. Overall, my internship experience at Unit One Design was positive and great. I could not thank everyone more for giving me such amazing guidance and opportunity to learn from people who are expertise in architecture throughout these 10 weeks. Internship Training and Report Page !27
  • 28.
    6.0 APPENDIX Internship Trainingand Report Page !28 Figure 5.1 Project: Kepong. Dimensions of chosen sanitary wares. Figure 5.2 Project: Alexis. Amendments for Alexis Bistro kitchen’s reflected ceiling plan.
  • 29.
    Internship Training andReport Page !29 Figure 5.4 Project: Alexis. Sketches of reflected ceiling plan of Alexis Bistro’s kitchen. Figure 5.3 Project: Alexis. Sketches of reflected ceiling plan of Alexis Bistro’s kitchen.
  • 30.
    Internship Training andReport Page !30 Figure 5.5 Project: Serai. Sketches drew for collecting data. Figure 5.6 Project: Serai. Base drawings with sketches.
  • 31.
    Internship Training andReport Page !31 Figure 5.7 Project: EWIC. Sketches given to be digitalise by using AutoCAD. Figure 5.8 Project: EWIC. Sketches given to be digitalise by using AutoCAD.
  • 32.
    Internship Training andReport Page !32 Figure 5.9 Project: EWIC. Sketches of reflected ceiling plan of EWIC given to be digitalise by using AutoCAD. Figure 5.10 Project: EWIC. Sketch given to be digitalise by using AutoCAD.
  • 33.
    Internship Training andReport Page !33 Figure 5.11 A hardcopy of work schedule done by using Smart Sheet. Figure 5.12 Issue sheet.
  • 34.
    Internship Training andReport Page !34 7.0 LOG SHEET
  • 35.
    Internship Training andReport Page !35
  • 36.
    Internship Training andReport Page !36
  • 37.
    Internship Training andReport Page !37
  • 38.
    Internship Training andReport Page !38
  • 39.
    Internship Training andReport Page !39
  • 40.
    Internship Training andReport Page !40
  • 41.
    Internship Training andReport Page !41
  • 42.
    Internship Training andReport Page !42