LITERATURE STUDY
BARRIER FREE DESIGN
&
SERVICES
SUBMITTED BY
318106101002- CH SAI SIRISHA
318106101006- G RISHITHA
318106101014- M PREETI SREE
318106101015- N SATYASANJAY
318106101016- N SAISRIKAR
318106101017- P NITHIN KUMAR
318106101019- K SAIAISHWARYA
318106101022- S SAAHITI
318106101023- SK C D SHABNAM
• SERVICES
• LOBBIES
• STAICASES AND CORRIDORS
• ESCALATORS
• ELEVATORS
• NATURAL LIGHTING
• NATURAL VENTILATION
• DATA BASED SYSTEMS
• HVAC
• PASSIVE DESIGN
STRATERGIES
• FIRE SYSTEM
• WATER AND WASTE
MANAGEMENT
• ELECTRICAL ROOM
• SURVEILLENCE ROOM
• NET ZERO ENERGY
• BARRIER FREE DESIGN
• INTRODUCTION
• SPACE ALLOWANCES
• DESIGN CONSIDERATIONS
LOBBIES
REFERENCE:ISB HYDERABAD
IIM AHEMDABAD
• LOBBY, is a space from which one or more
other rooms or corridors can be accessed, typically
found near the main entrance to a building. It may
be used
for access, circulation, or as a waiting area.
• lobbies often serve as the "public face" of building
interiors and are becoming more interactive spaces
that provide an enhanced user experience.
• To accommodate maximum pedestrian traffic.
• Design space to accommodate peak loads.
Massachusetts Institute of Technology
(MIT)
Entrance lobby
• Double-height / triple height lobby spaces are attractive and spacious,
but can exhibit undesirable sound characteristics. An excess of hard
finishes can reflect too much sound and create reverberation. So,
created a pattern in ceiling with undulations which reduce reverberation.
• Function of a lobby space often
influence a visitor's first
impression upon entering a
building.
• Utilize daylighting through the
appropriate placement of windows
to reduce electric lighting needs
UCN Campus in
Aalborg
• lobbies
provide occupants
with a relief
opportunity, such
as breaks, from
more confined
spaces.
Whenever
possible,
incorporate views
to nature or
incorporate
elements such as
a plants, and
natural materials.
Amity University
Dubai
Lobbies as interactive
spaces
IIM
AHEMDABAD
• Lighting is essential to lobby design.
Incorporating day lighting is a great way to
freshen and improve the quality of lobby
space.
• Natural ventilation drawn by placing
appropriate openings, shading devices to
decrease direct solar gain.
Lobbies as
circulation
spaces
• Thermal comfort, fresh-air circulation, makes the
space comfortable.
STAIRCASESANDCORRIDOR
• Traditionally, grand staircases were the focal point of many buildings and served as a means of
entry and connection. In many cases, they were located at the center or heart of the building
and were used both actively, as a vertical bridge or pathway to a destination, and passively for
sitting or gathering.
• Today, well-designed, visible, open stairs stimulate a variety of benefits including circulation,
creativity and connection.
• The staircase has re-surfaced as an active design concept in educational environments
serving as a multipurpose, student-centered area.
• Stairs can affect the way we see our surroundings
•stairs can affect the way we feel as we use or view them and the way we interact with our surroundings.
“Aswe move across a stairway, the form dictates our pacing, our feeling, our safety and our relationship and
engagement with the space around us.
• Having broader treads and wider staircase reduces the pace. The surroundings are also an add on to the
pace on the staircase.
• Whereas having taller risers ,is quite uncomfortable thus we move more quickly.
STAIRCAS
ES:
• Arranging stair cases
at openings in
windward side ,
allows ventilation
and acts as a
funneling effect.
• Usually stairs are
situated at the core of
the building for an easy
access from all the
directions.
• Creates a focal point
to the space.
• A larger buildingwhich
requires more than 1
stair- case would have
multiple staircases at
either corners of the
building.
ISB Hyderabad
Central circular
staircase
IIM ahmedabad
Straight staircase at the entrance leading to the main
block
IIT kharagpur
Two quarter turn stair
case
IIT Roorkee
Bifurcated
staircase
LEARNING STAIRS
• The physical design of stairs has evolved in many cases to the size of a seat
insteadof a step, making them an ideal setting forcongregating.
• Learning stairs are being designed in a variety of buildings in various shapes
and sizes but are often characterized by an open feel including wide, deep
stairs that can be used more like seats or bleachers situated next to the
traditional circulation stairs.
• They may be fitted with electrical outlets for charging and use of personal
devices and laptops, cove lighting and cushions or pillows to encourage
comfort andconvenience.
• 1. Community and Collaboration
• 2. Playfulness and Creativity
• 3. Flexibility and Efficiency
• 4. Circulation and Wellness
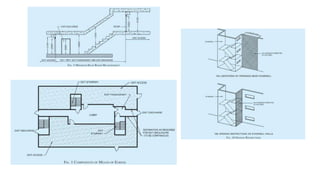
• All buildings, which are 15 m in height or above, having area more than 500 m2 on each floor shall have a
minimum of two staircases.
• They shall be of enclosed type; at least one of them shall be on external walls of buildings and shall open
directly to the exterior, interior open space or to an open place of safety.
• The travel distance between each of the nearest exit ( staircase) must be 30 m.
• Internal stairs shall be constructed of noncombustible materials throught.
• A staircase shall not be arranged round a lift shaft.
• Min. width of the staircase must be 1.5m.
• The minimum width of tread without nosing shall be 300 mm for internal staircase. The treads shall be
constructed and maintained in a manner to prevent slipping.
• The maximum height of riser shall be 150 mm and the number shall be limited to 15 per flight
• The minimum headroom in a passage under the landing of a staircase and under the staircase shall be 2.2 m.
• An external staircase is desirable to be provided for high rise buildings.
• No external staircase, used as a fire escape, shall be inclined at an angle greater than 45 ° from the horizontal.
GENERAL REQUIREMENTS OF STAIRCASES FROM
NBC (2005)
The benefits of a single-loaded
arrangement are:
•Overall building depth is shallower than
double-loaded, which is better for
constrained sites
•The orientation of all apartments is
towards a preferred aspect
•External corridors allow for a naturally lit
and ventilated corridor
•There is potential for double aspect
dwellings with cross ventilation if the
corridor is external
•They may be used in combination with
double- loaded arrangements.
• A single loaded corridor runs along
an external (or atrium) face of the
building.
• The associated dwellings are
accessed off one side only.
Single-loaded corridor
access
CORRIDO
RS:
Double-loaded corridor
access
• The double-loaded
arrangement locates the
corridor within the building.
• Apartments are accessed off both
sides of the corridor and are
therefore predominantly single
aspect.
• The overall building depth is
deeper than a single-loaded
arrangement and solutions for a
The benefits of a double-loaded corridor are:
•greater efficiency of circulation space compared to a single
loaded corridor
•higher overall density of residential units, which may be required in
city or district centre locations where good public transport links and
amenities
•the potential for double-fronted buildings on sites where this
is appropriate
•opportunity for more variety in apartment mix due to greater
building depth.
It is better to limit the number of apartments off one double
loaded corridor. Other things to consider include:
•windows at the end of the corridor to let in light and air, and allow
views out
•extra space around lifts and circulation areas, to form lobbies
where people can meet
•extra width and height in the corridor, particularly around doorways,
to give a feeling of spaciousness
•​using an atrium in a building with a deep plan. This can let in light to
the middle of the building.
• Having a corridor along the
periphery of the courtyard
is beneficial in the
followingways:
• It allows more amount of light
into the interior spaces, reducing
theuse of artificial light sources.
• Provides good ventilation.
• Acts as a great connectivity to
the interior and exterior
spaces.
• Usually educational
buildingsthat keep
renovatingand evolvingwould
have better scope in a courtyard
pattern.
• Where stairways discharge through corridors and passageways, the height of corridors and
An example of corridors at IIM banglore
,partially open to sky that facilitates to walk
through even during rains.
Corridors that act as
bridges connecting the
upper floors.
Having wide corridors also act as
interactive spaces, such as the on
above fom IIM Ahemadabad
ESCALATORS
 Escalators, elevators and stairs are mechanical devices used for transporting people vertically
between different levels of buildings.
 Escalators take the form of a moving staircase, consisting of a 'chain' of single-piece aluminum or
stainless-steel steps guided by a system of tracks in a continuous loop.
 Escalators limits the angle of elevation to when the rise deosn’t exceed 6m and speed along line of
slope not greater than 0.5m/s.
 The escalators can have a max permissible thread width of 1060 mm and min of 600 mm.
Dimensions of escalators for initial planning.
 Traffic capacity of escalators: The traffic capacity of escalators depends on the rate at which people
step on escalator which in turn depends on width of escalator.
 The speed of escalator can be up to 0.75m/s where increasing the speed can results in greater capacity,
higher speeds tend deter passengers stepping on it.
Approx. width and traffic capacity of escalators.
•For escalators serving in 1 direction of travel, super-imposed flights occupy less plan area but requires
the users to walk between successive flights. Cross-over arrangement avoids this and double crossover
can be used in large
areas for movement in both directions.
• When escalators extend through fire compartment boundaries, self-closing shutters are required.
Layouts of superimposed, cross-over and double crossover
escalators.
ELEVATORS
 Elevator, also called lift, car that moves in a vertical shaft to carry passengers or freight between the levels of
a multistory building. Most modern elevators are propelled by electric motors, with the aid of a
counterweight, through a system of cables and sheaves (pulleys).
 Some of the classes of electric elevators are:
Light traffic
passenger/perambulator
Passenger
General purpose
passenger Intensive
traffic passenger
General purpose
goods Heavy duty
goods e.t.c.
• Elevators shall be made mandatory for all buildings which are 15m and above (without stilts) or 18m and above
(with stilts)
in height.
• For buildings less than 15m (without stilts) or 18m (with stilts) the provision of lift is on the discretion of the
owners in order to facilitate movement of elderly people.
• All the floors including basement and terrace shall be accessible for 24hours by the lifts.
• The lifts provided in the buildings shall not be considered as a means of escape in case of emergency.
• The lift machine room shall be separate and no other machinery shall be installed in it.
SIDE BY SIDE
ARRANGEMENT: WIDTH OF
CORRIDOR =WIDTH OF LIFT
CAR
OPPOSITE
ARRANGEMENT:
WIDTH OF CORRIDOR
=WIDTH OF LIFT CAR
NOT A GOOD
ARRANGEMENT
LIFT ARRANGEMENT- 2
CAR
SIDE BY SIDE
ARRANGEMENT:
WIDTH OF CORRIDOR
=1.5-2A
Where A is the width of lift
LIFT ARRANGEMENT- 3
CAR
OPPOSITE
ARRANGEMENT:
WIDTH OF CORRIDOR
=1.5A
Where A is the width of lift
LIFT ARRANGEMENT- 4
CAR
SIDE BY SIDE
ARRANGEMENT:
WIDTH OF CORRIDOR
=1.5-2A
Where A is the width of lift
OPPOSITE
ARRANGEMENT:
WIDTH OF CORRIDOR
=1.5A
Where A is the width of lift
Paternoster elevators: A paternoster or paternoster lift is a passenger elevator which consists of a chain of open
compartments (each usually designed for two persons) that move slowly in a loop up and down inside a building
without stopping.
 For paternoster elevators, car dimensions limited to
Clear height – 2200mm
Width and depth – 900 to 1000
Max floor area – 0.93 m2
Landing entrance height – 2600 to 2800.
Max permissible speed – 0.4m/s
Traffic capacity: with random interfloor traffic randomly distributed among the building,30person/min can be carried with
little waiting when installation serves 5 floors,35p/min when 11 floors are served and 42p/min with 16 floors.
Elevators for disabled: Min dimensions of elevator car to accommodate standard wheelchair :
Internal depth – 1100mm
t
e
Width - 900mm
Clear opening – 700mm
In some buildings the lift should be sufficien
for another person to hold the chair-bound:
Min depth – 1400mm
Width – 1100mm
 In special cases, large wheelchairs are to b
accommodated :
depth – 1800mm
Width – 1000mm
Opening – 800mm
a. clearance for center opening doors for wheelchair users.
b. Clearance for side opening doors for wheelchair users.
Planning of elevators:
 Elevators serving single zone of upper floors should be grouped in plan with interlinked controls.
 Arrangement of lobbies should allow waiting; passenger move rapidly to which ever car that arrives 1st.
 No more than 4 elevator entrances should be alongside each other, facing entrances should be 2500mm – 3500mm apart.
 In large building, lobby area tends to be 5-6m2 on upper floors and 15-20m2 in ground floors.
 In large buildings, there should be single main loading floor, and all the passengers entering the building at other levels
should be brought by the means of secondary circulation to the buildings main lobby.
 The noise generated by the elevators must be taken care of.the machine rooms should be somewhere at remote zone and
risk of noise through structural continuity should be examined.
Lift lobby
dimensions.
NATURALLIGHTING
SIN
o
. (1)
Type of
Interior or
Activity
(2)
Range of
Service
IDwninance
(See Note) lux
(3)
Quality
Class or
Direct Glare
Limitation
(4)
Remark
s (5)
Recommended Values of lliuminance NBC (
2005 )
NATURAL
LIGHTING:
a) Careful planning of the brightness
and colour pattern within both the
working areas and the
surroundings so that attention is
drawn naturally to the important
areas, detail is seen quickly and
accurately and the room is free
from any sense of gloom or
monotony
b) Using directional lighting, where
appropriate, to assist perception of
task detail and to give good
modeling.
c) Controlling direct and reflected
glare from light sources to
eliminate visual discomfort
Good lighting is necessary for all
buildings.
MAIN SOURCES OF
DAYLIGHT
FORM OF
BUILDING
FACTOR
S
AFFECTI
NG DAY
LIGHTIN
G
ORIENTATION OF
BUILDING
GLAZING
RATIO
EFFECTIVE
WAYS TO
REDUCE GLARE
Internal
blinds
Light shelves +
shades
WINDOW HEIGHT AND LOCATION
• As a general rule, the higher the window head
height, the deeper into the space the daylight
can penetrate.
• Therefore, good daylighting fenestration practice
dictates that the window should ideally be
composed of two discrete components: a
daylight window and a view window.
• Overhead day lighting Skylights can be either passive
or active, the majority of skylights are passive because
they have a clear or diffusing medium (usually acrylic)
that simply allows daylight to penetrate an opening in
the roof.
• They are often comprised of a double layer of material,
for increased insulation. They can be of any shapes.
OVER HEAD
DAYLIGHTING
Not withstanding the area of openings
obtained through the minimum aggregate
areas of such openings, excluding doors
inclusive of frames, shall be not less than:
a) one-tenth of the floor area for dry
hot climate
b) one-sixth of the floor area for wet
hot climate;
c) one-eighth of the floor area
for intermediate climate;and
d) one-twelfth of the floor area for
cold climate.
NOTES
1. If a window is partly fixed, the
openable area shall be counted.
2 . No portion of a room shall be assumed
tobe lighted, if it is more than 7.5 m away
from the
opening assumed for lighting that portion
Adding on vegetation
along the openings
allows to filter light and
achieve the correct
illumination levels.
Using
skylights
Using
lightwells
Perforated
walls
Clerestory
windows
IIM Ahmedabad
The large geometric openings at the IIM
Ahmedabad
acts as light wells and also for ventilation.
Amherst College New Science Center,
Amherst
North-light top lighting
IIT Gandhinagar
Open spaces that are shaded partially.
Creating unique patterns through natural
light.
IIT Gandhinagar
Jaali walls in a hostel
block
ISB Hyderabad
Skylight above
stairs
SHADING SYSTEMS
REFERENCE : IIT KANPUR
Windows – shading devices:
 Sun Shading Devices are any mechanical equipment or textiles that are used either internally or
externally or in between the internal and the external building space with the primary objective
creating comfortable environment.
 Need of Sun Shading Devices - To reduce the heat gains during summer, reduce the cooling
loads and therefore minimize energy costs.
Types of shading devices:
There are 2 types of shading devices – Retractable types and Fixed
external types. Retractable shading devices:
 These devices, which can be fixed, adjustable or retractable are called as retractable shading
devices.
 They can be found near the windows, utility areas, and even for external shading.
 Vertical fins ,lovures and blinds are used for retractable shading.
Different types of retractable shading systems at the windows depending on the level of
sunlight.
Fixed external types:
 Fixed exterior shading devices such as overhangs are generally most practical for small
commercial buildings. The optimal length of an overhang depends on the size of the
window and the relative importance of heating and cooling in the building.
Importance of shading device:
 Passive design solutions help reduce the energy consumption. One of the ways to reduce the total
required energy is to use shading devices for façades that have large openings. Façades with
large openings will allow more daylight and exterior views, but this can also lead to increased
cooling and/or heating demand in buildings. The most important reason for using shading is to
prevent direct sunlight and solar radiation, thus reducing cooling requirements, and to allow
desirable solar gains in the heating seasons.
ACTIVITY REQUIRED
ILLUMINANCE
TEACHING AND
LECTURING
TABLE
BLACKBOARD
200-500
300-500
LABARATORY 200-500
SEWING 500-700
PAINTING 500-700
LIBRARY SHE
LF
TABL
E
100-200
300-500
ADMINSTRATIVE TYPIN
G
OFFIC
300-600
200-500
Illuminance required at different zones in an institution based on case study from
Tehran, Iran.
SHADIN
G
MODEL
MAX
ILLUMIN
A NCE
MIN
ILLUMIN
A NCE
AVG LUX UNIFOR
MI TY
RATIO
UNIFOR
MI TY
RATIO
(MIN/AV
G
)
MAX DF% MIN DF% AVG DF %
WITHOUT 2200 54.09 1127 0.004 0.019 22 0.54 4.76
LIGHT-
SELF
998 24.81 511 0.030 0.123 10 0.25 2.38
LOUVRE 398 12.42 203 0.032 0.093 4 0.12 1.37
OVERH
AN G
1677 39.51 858 0.24 0.110 17 0.39 3.58
Analysis of daylight based on use of different types of
shading devices.
Shading of roof:
• Shading of roof through design features like pergolas or solar photovoltaic panels helps in
reducing the incident direct solar radiation on the roof surface. This in turn helps to reduce the air
temperature of the roof and conduction gains in the space below. fully shaded roof of Centre for
Environment, IIT Kanpur through Pergolas and Solar PV panels.
Impact of shaded roof:
It is observed in air conditioned buildings, adopting ECBC envelope in building has high energy
saving potential. However, shaded roof has similar energy saving potential as that of ECBC
compliant roof. Shading of roof could can be done by designing pergolas, trellis on roof or by
installation of solar panels.
FULLY SHADED ROOF OF RESEARCH LAB IN IIT KANPUR,THROUGH
PERGOLAS ANS SOLAR PANELS.
Shading of walls:
Shading walls from direct sun can be one of the simplest and most effective ways of reducing the
heat load on a building. Clever use of shade can dramatically improve the comfort conditions
inside and reduce reliance on expensive air conditioning systems. As in the warm & humid
climate, the East and West facades receive maximum solar intensity especially in summers,
shading the East and West facades is a challenge. As eastern and western walls heat significantly
in summers, overhangs may not be enough. The entire east and west walls have to be shaded to
protect from the strong summer solar intensity.
GREEN FASCADE IN WARM
AND HUMID CLIMATE,USED
AS SHADING.
MECHANICAL SHADING PROVIDED ON EXTERNAL
WALLS OF IIT KANPUR.
SECTION SHOWING SHADING SYSTEMS PROVIDED IN ENVIRONMENTAL AND SCIENCE ENGINEERING BLOCK IN IIT KANPUR.
NATURALVENTILATION
• Natural ventilation is the procedure of entering fresh air into a home from outside. This new air, forces
the dirty, warm air in the rooms out by the opening in the roof. This can be operated without mechanical
assistance.
• Natural ventilation is one of the most practical techniques to decrease energy usage in buildings. It
utilizes the natural power of wind and buoyancy to enter fresh air and spread it in buildings for the
occupants. Natural ventilation is operated by pressure varieties between one section of a building and
another, or between the outside and inside.
• Natural ventilation can provide a sufficient supply of breathing air, adequate ventilation of pollutants,
enough thermal conditioning, and humidity waste through a well-connection to the dynamics of the
environment. Designers usually select natural ventilation because it decreases carbon production and
is cheaper to install and run than full mechanical ventilation.
• Natural Ventilation and human comfort are related together
TYPES OF VENTILATION:
1. WIND OPERATED [CROSS VENTILATION]
2. BUOYANCY OPERATED [STACK EFFECT]
The effectiveness of natural ventilation
The impact of Natural Ventilation can increase in the building according to your consideration of the
following matters:
•Prevailing wind velocity and direction
•Building conditions and orientation
•Window sizing, location, and functioning
•Surrounding environment
•Outdoor temperature and moisture
Design Considerations
If you’re thinking about designing natural
ventilation in your new building, you should
notice the following basic design
techniques:
•External components
•Window types and verification
•Building appearance and dimensions
•Ridge vents
•Building orientation and position
•Air inlets and outlets
Wind-Based Ventilation (Cross- Ventilation)
Moving wind near a building will produce
different sections of low and high pressure.
The windward part of the house is an area that
is high pressure, while the leeward part & roof
are low pressure. Placing different types and
sizes of openings in the low and high-pressure
sections can force air to transfer through the
building at an increased rate and in the
desirable direction.
The simplest method to know wind-driven or
wind-based ventilation is to look at an open
window. Fresh air enters through one side,
transfers throughout the house, and then exits
through the opposite side, forcing the stale
warm air out that was in the building.
Furthermore, this is an attractive, low-cost
ventilation solution in specific applications.
Buoyancy- Driven Ventilation (The Stack Effect)
This type of Natural Ventilation seems complex, but it works fundamentally like a fireplace. Because
warm air goes up and cool air remains low, this procedure forces warm air to rise.
The heat produced in buildings goes up towards the ceiling. In huge buildings, where the
construction is of noticeable height, the natural trend of warm air to rise produces air transfer
throughout the whole of the building. This is what is usually introduced as the stack effect or thermal
buoyancy. Warm air goes up through the building and exits via the natural ventilator. The wall
openings at the floor level permit cool air to come in, taking the place of the warm air that exits.
Natural ventilation can practically
supply a high ventilation level more
economically due to the
employment of natural powers and
large openings. They are more
energy effective, especially if
heating is not needed. The systems
which are well-designed could be
utilized to provide higher levels of
daylight.
The advantage of natural ventilation is its capability to supply a very high air-change level at a low
cost, with a very ordinary system. Although the air-change rate can change considerably, buildings
with new ventilation systems (that are modeled and worked appropriately) can obtain very high air-
change levels by natural power, which can considerably be greater in quantity than minimum
ventilation needs.
.
What is mixed mode ventilation?
Mixed mode ventilation or hybrid ventilation is a
sustainable ventilation strategy that can improve
the indoor air quality and effectively regulate the
indoor temperature. This enhances occupant
comfort and productivity. Mixed mode ventilation
systems combine the benefits of fresh air
ventilation with the added support of mechanical
fans and systems to move and change air for a
comfortable and healthy indoor climate
How do mixed mode ventilation systems work?
Mixed mode ventilation systems reduce energy consumption through the reduction of mechanical fan
use and, in some cases, the cooling demands. Like natural ventilation systems with WindowMaster,
mixed mode ventilation systems utilize sensors to monitor indoor temperature, CO2 levels, and
humidity, as well as outdoor conditions. Based on this data, the system will automatically either chose
natural ventilation or mechanical ventilation depending on which system is the most optimal to use. The
system will then switch back to the natural ventilation strategies when appropriate. For example, if the
weather is too cold, too rainy, or too hot, the mixed mode ventilation system adjusts the building
openings appropriately and communicates with the mechanical ventilation system to optimize the
indoor environment. The system then takes a holistic approach to ensure occupant comfort and indoor
climate health for a high-performance building.
How does mixed mode ventilation work in the different seasons?
•Summer time
•Window actuators control building openings to let cool outdoor air into the building.
This is sometimes achieved through night cooling. Depending on climate, the
building openings may also open during the day to change the air or cool the
building, depending on indoor temperature parameters. These strategies ensure
sustainable building operation through a minimum use of energy.
Winter time
•In some climates, a mixed mode ventilation strategy can work with a mechanical
ventilation system to ventilate the building while recovering heat generated in the
indoor environment. In this way, heat recovery can reduce heating demands while
minimizing or eliminating the experience of draft.
Spring/Fall
Window Master mixed mode ventilation systems are intelligent indoor controls
that monitor indoor and outdoor climate factors to deliver optimal indoor comfort.
The climate can vary greatly during these seasons, so a combination of
summer/winter strategy is often employed. The control system chooses between
natural ventilation or mechanical ventilation, depending on what is most
appropriate for both the indoor and outdoor conditions.
HEATING,VENTILATION,ANDAIR
CONDITIONING(HVAC)
• Heating, ventilation, and air conditioning (HVAC) is the technology of indoor and vehicular
environmental comfort. Its goal is to Provide thermal comfort and acceptable indoor air quality.
HVAC system design is a subdiscipline of mechanical engineering,based on the principles of
thermodynamics, fluidmechanics and heat transfer. "Refrigeration" is sometimes added to
the field's abbreviation, As HVAC&R or HVACR or "ventilation" is dropped, as in HACR (as in The
designation of hacr-rated circuit breakers).
• Ventilating or ventilation (the"v" in hvac) is the process of exchanging or replacing air in any space
to provide high indoor air quality which involves temperature control, oxygen replenishment, and
removal of moisture, odors, smoke, heat, dust, airborne bacteria, carbon dioxide, and other
gases. Ventilation removes unpleasant smells and excessive moisture, introduces outside air,
keeps interior building air circulating, and prevents stagnation of the interior air.
Purpose:
• The purpose of the hvac system is to provide the occupants with a comfortable &
healthy living environment.
•It does more than just control air temperature
•It also provides moisture control
•Controlling relative humidity is important for comfort,iaq and building durability.
MOISTURE AND INDOOR AIR
QUALITY:
RELATIVE HUMIDITY LEVELS HAVE A
SIGNIFICANT
IMPACT ON A VARIETY OF IAQ ISSUES
VENTILATION-THE “V” IN HVAC:
HVAC IS NOT JUST HEATING & COOLING
•SPOT VENTILATION IS USED PRIMARILY TO REMOVE MOISTURE &
POLLUTANTS AT THE SOURCE
•WHOLE BUILDING VENTILATION IS USED TO ENSURE OCCUPANTS
HAVE FRESH AIR PROVIDED IN A CONTROLLED MANNER
•AIR EXCHANGES THROUGH LEAKS ARE
IRREGULAR,INEFFECTIVE,INEFFICIENT AND UNHEALTHY.
LOAD CALCULATION PROCESS
SELECT DESIGN CONDITIONS
FILLING OUT BUILDING
DESCRIPTION CHOOSING
SYSTEM TYPE
SELECTING DISTRIBUTION
PREFERENCES DRAWINGG THE
ROOM-BY ROOM FLOOR PLAN
SELECTING EQUIPEMENT TYPE
DRAW DUCTS
GENERATING A
REPORT
DUCT TESTING REQUIREMENTS
DUCT LEAKAGE MUST ONE OF THE FOLLOWING:
POST-CONSTRUCTION DUCT LEAKAGE TO OUTDOORS <8
cfm per 100 ft2 POST-CONSTRUCTION TOTAL DUCT
LEAKAGE <12cfm per 100 ft2 ROUGH-in TOTAL DUCT
LEAKAGE w/AHU <6 cfm per 100 ft2
ROUGH-in TOTAL DUCT LEAKAGE WITHOUT AHU <4 cfm per
100 ft2
THE USUAL SUSPECTS
•DESIGN TEMPERATURES
•BUILDING ORIENTATION
Types of HVAC systems:
• Cooling only split-
system
• Ductless system
• Heat pump
• Packaged-system
PROPER SIZING:
• The duct size must adequately
handle air flow intake and return
in order for an HVAC system to
operate at optimal levels.
Optimal airflow based on cubic
feet per minute as well as
velocity of air provided by other
components of the HVAC
system determine the correct
ductwork sizing for each
scenario.
COVERAGE CHART:
• The
capacity of the hvac is choosed
dep ending on the area.
• 1.5 tons –600 to 1100 square
feet
• 2-tons – 901 to 1400 square
feet
• 2.5-tons –1201 to
1650 square feet
• 3 tons – 1501 to
2100
square
feet
• 3.5 tons – 1801-2300 square
feet
• 4 tons
–
• 5 tons
–
2101 to 2700square
feet
2401 to 3300square
feet
Rectangular
• Rectangular or square ducting comes in standard sizes ranging from 3-
by-7 inches to 35-by-40 inches. Sizing is based on airflow needs per
cubic foot per minute, as well as velocity.
The HVAC model that you're interested in should offer information
regarding the maximum airflow per cubic foot per minute, or CFM, to
help you determine adequate duct sizes. The type of ducting you use,
such as flex ducting or rigid ducting, also determines the velocity of
supply and return air.Airflow is also affected by the length of straight
portions of ductwork, as well as the number of trunks or branches in
your overall duct design.
Round
• Round ducting comes in standard sizes ranging from 4.9 inches in
diameter to just over 41 inches in diameter, with sizing also depending on
airflow needs per cubic foot per minute and
velocity. Size of your ductwork may also be affected by the design and
construction of your home or business as well as the need to
reduce the size of ducts coming from each vent or register in the system
in order to provide constant air velocity and air pressure throughout the
system and into different rooms.
BTU= British thermal
unit.
HVAC EQUIPMENT SIZING:
SYSTEMS ARE SIZED IN ORDER TO BEST FULFILL
THEIR FUNCTION
•HEATING IS SIZED ATA RATE TO REPLACE LOST BTUs
•AC SIZED FOR BOTH SENSIBLE & LATENT
•DEPENDS ON CLIMATIC CONDITIONS
ORIENTATIO
N:
•THE HEATING & COOLING LOADS ON A HOUSE ARE DEPENDENT ON THE
ORIENTATION,ESPECIALLY
FOR WINDOWS.
•BY COMPARING THE ORIENTATION LISTED ON MANUAL J DOCUMENTATION
TO THE ACTUAL ORIENTATION OF THE HOME.
PARTS OF THE HVAC
SYSTEM
PARTS OF HVAC SYSTEM IN
DIFFERENT FLOORS
HVAC SYSYTEM IN MULTIPLE
FLOORS
HVAC SYSTEM IN A
FLOOR
Passive design strategies reduce upfront costs, operating expenses and required maintenance. They are as
intelligent as they are cost effective. Passive design features, like additional insulation, light shelves, shade
walls and innovative heating/cooling design reduce the amount of energy that an HVAC system needs in
order to adequately heat or cool a space. Less demanding HVAC systems have lower upfront installation
costs and are cheaper to operate. Money saved can then be put towards adding even more energy saving
features to a building. A return on investment can be calculated to illustrate the value of an energy efficient
system.
PASSIVE DESIGN
STATERIGES:
1. OVERHANGS FOR SOUTH
FAÇADE
2. FINS FOR THE WEST FAVADE
3. GREEN ROOF
4. HIGH PERFORMANCE GLAZING
5. ROOF INSULATION OVER THE
DECK
6. LIGHT SHELVES
7. OPENINGS FOR NATURAL
VENTILATION
8. THERMAL MASS
9. POND FOR EVAPORATIVE
COOLING
10. THERMAL COMFORT
FIRESYSTEMS
Aims in Fire Safety Design
• To prevent fire
• To safeguard the lives of occupants and firefighters
• To reduce damage on the building, its contents, and
on surrounding buildings
Basic Principles
• Fire Avoidance
• Fire Detection
• Fire Growth Restriction
• Fire Containment
• Fire Control
• Smoke Control
• Escape Provisions
Fire Avoidance
Reducing the possibility of accidental ignition of
construction materials, as well as fittings and fixtures.
This implies: a. keeping separate heat sources and
materials which might ignite readily through proper
planning and zoning b. need to specify materials to
reduce the risk of fire starting c. reducing fire load Basic
Makes use of manual and automatic (electric/
electronic) methods of informing the occupants in
charge that a fire has occurred in a given location.
Heat and smoke alarm systems inside Fire Risk and
Fire Load areas. Basic Principles Mechanical Fire
Detection 2Fire Detection Fire alarm systems must be
accessible in all zones especially in fire-prone areas.
Basic Principles Actively extinguishing or slowing
down the development of a fire before the full
involvement of the room. This is done by the room’s
local occupants. Means:
1. Fire Extinguisher
2. Water Supply
3. Fire Blanket
4. Bucket of Sand
Fire Growth Restriction Mechanical Means of
Restricting Fire Growth 6 Sprinkler Specifications:
Sprinklers can be spaced from 3.6 to 6.0 meters
apart.
Portable fire extinguishing -These devices are used for extinguishing fire as soon- as it starts. -
They are not so useful when once the fire has spread. The discharge from a portable fire
extinguisher lasts only for a short duration of 20 to 120 seconds.
Fire sand bucket - A fire sand bucket or fire bucket is a steel bucket filled withstand which is
used to put out fires. -They are placed in prominent positions in rooms or corridors. They are a
low-technology method of fighting small fires. -The main advantages of fire buckets are that they
are cheap, reliable and easy to use.
Fire Hydrants These are provided on a ring main of 150 mm dia. in the ground around the
building periphery. The ring main gets water from under ground water tank with pressure, so that
available pressure at each hydrant is of the order of about 3.5 to 4 kg/cm. The fire hydrants are
placed at 300ft.c/c with easy access in case of emergency.
Automatic Sprinkler System - This arrangement is adopted for Commercial & industrial
buildings. -The system consists of a net work of 20 mm dia. Fixed to the ceiling of the room
spaced at 3 m center to center. -Heat actuated sprinkler heads are fixed to these pipes. The pipes
get supply from a header. Each sprinkler head is provided with a fusible plug. -In the event of fire,
the fusible plug in the sprinkler nearest to the wire melts due to rise of temperature, and water
gushes out of the sprinkler head. The fire is thus brought under control in a short period.
Wet Riser system These system is adopted in high rise Buildings as wellas Public buildings such
as Cinemas,malls,Multiplexes etc. The system consist of providing 100 to 150 mm dia. vertical
G.I.Pipes (Risers) at suitable locations in the buildings. A fire pump is used to feed water from
under ground fire fighting water tank to these pipes, to ensure a pressure of 3 kg/cm2. at upper
most outlet. The fire fighting tank of 75,000 litres to 1 lakh litres are provided.
To provide safety, the routes must be properly protected
from the effects of fire and smoke for an acceptable time
period, usually a minimum of 60 minutes. This can be
achieved by: - Compartmentation - Fire resistance of escape
route structure - Use of smoke control systems to keep
smoke out of escape routes Protected escape routes are
designed in such a way that they lead to a place of safety,
and once inside the occupants are safe from the immediate
danger from fire and smoke.
• Occupant Load – is usedFordetermining
the exits requirement, the number of persons
within anyfloor areaor the occupant load
should be basedon the actual number of
occupants.
Capacity of
Exits
• Theunit of exit width, usedto measurethe capacityof
anyexit, should be 50cm.
• Aclear width of 25 cmshould be countedasan
additional halfunit.
• Clearwidths lessthan 25 cmshould not be counted for
exit width.
Arrangement of Exits
 the travel distanceto anexit from the dead
end of the corridorshouldnot exceed6m
THIS IS A FLOOR PLAN OF ISB
HYDERABAD THERE ARE 2 FIRE
EXIT STAIRCASES IN EVERY
CORNER .
THERE ARE TOTAL 14 FIRE
EXITS IN THE BUILDING .
FIRE EXIT
REFERENCE: ISB
HYDERABAD
• Exit door should not open immediately upon a flight of
stairs, a landing equal to at least the width of the door
should be provided in the stairwayat eachdoorway.
• the level of landing should be the same asthat of the
floor which itserves.
• the height ofcorridors and passagewaysshould be not
lessthan 2.4 m, Where stairwaysdischargethrough
corridors andpassageways.
• Interior stairs should be constructed ofnon-
combustible materialsthroughout.
• Interior staircaseshould be constructed asaself-
contained unit with anexternal wall constituting at
least one of its sidesand should be completely
enclosed.
• Astaircaseshould not be arrangedround aliftshaft
unlessthe latter is totally enclosedby amaterial of
fire-resistance rating asthat for the type of
constructionitself.
• Hollow combustible construction should notbe
permitted.
• No gaspiping should be laid in thestairway.
REFERENCE CASESTUDY:IIT GANDINAGAR
WATER AND WASTE
MANAGEMENT
We will be studying the water services such as
• Water supply
• Drainage of waste water
• Water recycling sytems
• Rain water harvesting
• Storm water drainage
• Sewage treatment
• Solid waste management
IIT Gandhinagar has been taken as reference to study the above mentioned
Indian Institute of Gandhinagar is an institute that has been constantly
working towards sustainability and developing a green campus since the initial stage. The
master planners have well thought of the water and waste services of the campus
design.
WATER SOURCES ON CAMPUS
Fresh water from the Narmada
Canal Bore Well Water
Rooftop Rainwater
Collection Surface
Rainwater Runoff
Recycled Water
CONTENT
ROOFTOP RAINWATER
COLLECTION
All the rooftops of the approximately
2,21,000 sq m of built up area of
Phase IA campus buildings (both
housing and academic buildings) are
connected to a rooftop rainwater
collection pipe network. These pipes
are connected, with a gravity feed
system, to the rainwater storage
structures located throughout the
campus (Jal Mandaps) that have been
designed to be prominent landscape
features.
SURFACE
RAINWATER
RUNOFF
•During the monsoon season surface
rainwater runoff is collected via a
gravity- main network. After
calculating the intensity of rainfall, the
rainwater collection network was
designed based on standards
RECYCLED
WATER
As specified in the Masterplan, recycled
water can be used for toilet flushing and
irrigation purposes
Raw sewage from the campus is thus
collected and pumped through Sewage
Pumping Stations 1 and 2 to the Sewage
Treatment Plant.
JAL
MANDAPS
A separate piping system was designed for the collection of rainwater on the
roofs of each building and then for the transfer of this water, using gravity,
to feed the rainwater collection tanks, called Jal Mandaps by the landscape
architect, and designed to be attractive viewing pavilions as well as storage
tanks.
In fact, the above-ground structures of the Jal Mandaps have been
designed specifically as social spaces.
They take inspiration from the vavs in Gujarat, encouraging social
interaction. The rainwater collected in each of these Jal Mandaps is
pumped to the Water Treatment Plant where it is mixed with Narmada
Canal water, treated, and piped
back to the rooftop tanks through WSCs after chlorination to be used
eventually as drinking water.
JAL
MANDAPS
DISTRIBUTION
NETWORKS :
All buildings are provided with dual plumbing
with separate lines for fresh water and
recycled water from the Water Service
Centre. Each of these lines goes into its own
chamber in a multiple chamber rooftop tank
where the two waters are separated by an air
chamber between.
The freshwater tank is further divided by a wall
that prioritises distribution to the building fire
hoses. If the freshwater tank for the use of the
occupants should go dry, there is still water for
firefighting. In addition, each building has a
separate piping system that drains off roof
rainwater into the Jal Mandap storage tanks
WATER DISTRIBUTION
NETWORK
SEWAGE DISCARGE
SYSTEMS
The master planners for the campus
proposed using an innovative sewage
treatment system, called a De-centralized
Wastewater Treatment System
(DEWATS), which features root zone
treatment of the sewage. It met the
following principles as specified in the
Masterplan:
a)Low energy consumption
b) Minimum use of chemicals
c)Ease of operation and maintenance
This unconventional system uses
almost no power and has no
mechanical parts.
There is zero discharge.
The wastewater and sewage generated on
campus are treated through anaerobic
reactors and a root zone treatment
system. The water recycled is piped
WATER TREATMENT PLANT :
The water treatment plants
requires following spaces for
treatment of water.
They are
inlet
chambers
flash mixers
Clarifocculato
r Filter feed
tank
Multigrade Filter (MGF)
Clean Water Pumping Station
(CWPS).
SEWAGE NETWORK
SOLID WASTE
MANAGEMENT
Biogas plants and compost pits are
installed on the campus to treat all the
organic waste.
Food waste from the hostel mess is
segregated at the source and is fed to the
biogas plant.
The compost pits take all other organic
kitchen waste— vegetable peelings, etc.
later used as manure in the landscaping.
The segregation of waste is done at the
source. The institute’s ‘Green Office’ is
actively involved in waste reduction
initiatives, along with other green campus
efforts. Staff training, monitoring the
implementation of various initiatives, and
providing general education regarding
Water Efficiency
Initiatives
• Water-Efficient Fixtures
These dispense water at a controlled rate by mixing foam with the stream of
water. The use of foam basically adds air to the water stream, resulting
typically in about a 70% reduction in water consumption
• Solar Water Heaters
All the residential buildings on campus have solar water units installed
on their rooftops
• Passive Downdraft Evaporative Cooling (PDEC)
This system consists of a set of nozzles at the top of a central shaft through
which a fine water mist is generated using a pump. This fine water mist
released at the top of the shaft evaporates thereby cooling the air at the top
of the shaft. This cooler air sinks on account of cooler air being heavier than
ambient air, and enters the lower floors containing the dining areas.This
system is effective in hot and dry weather and is able to achieve an
additional cooling effect of nearly 5 degrees Celsius giving needed relief
during the Summer months.
• Waterless Urinals
ISB HYDREBAD
WATER SOURCE: municipal water. It is stored in an
underground sump of 30-40k capacity. They also have
borewell.
The rain water is collected into the ISB lake ans this water is
used
for irrigation purpose.
The sustainable campus of ISB also has its own
• WATER TREATMENT PLANT (WTP)
The water stored in the sump goes to WTP where is treated
and sent to the academic block student villages rec centre
etc.
• SEWAGE TREATMENT PLANT (STP)
The treated water is allowed to flow into the artificial lake
and is used for watering plants
WATER HARVESTING SYSTEM
• ISB also has a water harvesting system which is evident
in every nook of design as shown in the picture. The
sloping glazed chajjas direct rainwater into the drains
INFERENCES
• Rooftop rain water and surface run off rain water can be collected through collection pipe networks and storm
water drains and stored in rain water storage structures. This rain water can be used for irrigation, or can even be
used as drinking water after proper treatment.
• The collection pipe networks can be gravity fed systems.
• The rain water collection structures were designed as social gathering spaces taking inspiration from the vavs
(step wells) of Gujarat.[site context]
• Dual plumbing system is followed for fresh water and recycled water.
• The water tank for fire fighting system never goees dry , even when the fresh water tank does.
• The DEWATS system is a very efficient and eco friendly way to treat water. It can be incorporated in the design if
enough
space is available.
• Installation of Bio gas plants ,compost pits and segregation of waste at the source deals with solid waste
management.
• Water efficiency initiavtives such as water efficient fixtures,waterless urinals,solar water heaters,passive down
draft cooling [suitable for hot and dry climates] can be implemented.
• Water recharge ponds - natural or man made have to be retained.
• Vegetation to prevent runoff of rain water and to recharge the ground water tables has to be planted.
• Steps to increase the ground water levels - such as retaining natural ground ,vegetation, natural ponds - have to
be taken.
ELECTRICALROOMS
Design Requirements for Electrical
Rooms
1. Electrical Rooms’ geometry, location in the building, access and construction must be considered early at
the Design
Stage in order to limit:
• Noise transmission to other spaces.
• Vibration transmission to other spaces.
• Conflicting circulation with the other users of the building.
2. Distribution of Electrical Rooms:
• Transformer vaults and switchgear rooms shall be located as far away as possible from program spaces
(e.g. data server rooms, computer laboratories, etc.) for avoiding Electric Magnetic Field disturbances.
• Transformer vaults must remain free of other systems not associated with electrical distribution systems.
• Transformer vaults shall be located as close as possible to the building’s service entrance.
• Main distribution with switchgear shall be designed in a separate room if possible.
3.Electrical panels:
• Minimum of one (1) panel per floor; this panel shall serve only that floor.
• There shall be no feed-through or riser panels; individual feeds to each panels are required.
• Elevator equipment rooms and shafts shall be exclusive to this usage and therefore not be used for other
electrical distribution.
4 . Walls:
• Concrete or concrete blocks are preferred.
• Gypsum boards can be used for distribution closets and rooms with dry transformers.
• Walls shall be painted; they cannot be left unfinished, nor simply primed.
• Specify a (3) hours fire resistance for rooms with transformers using dielectric liquids.
5.Ceilings:
• Exposed structure (no ceiling).
• Ceiling shall be painted.
• Gypsum board insulated assembly can be used in room where sound attenuation is a concern.
6. Doors:
• Standard height double doors are preferred. Doors dimensions shall always accommodate the biggest piece of
equipment to be moved-in/moved-out of the electrical room.
• Width shall be as dedicated by Codes and equipment requirements (minimum 915mm).
• Specify metal kick plate on push of doors.
• Specify Card Reader Access.
• Doors shall be fire rated as per Codes requirements.
7. Electricity:
• All lighting shall utilize energy efficient fixtures, refer to section 26 50 00 for specific requirements.
• Lighting shall be switched at each door to the room. Light switches shall be easy to reach when entering the
room.
• Electrical rooms must also have properly-sized
entrances/exits, which must be kept clear from
obstructions at all times.
• If service capacity is greater than 1200 Amperes, the
following requirements apply:
• Two exits must be provided.
• Doors located less than 25 feet from working space must
open in the exit direction, and must be openable with
simple pressure (panic hardware).
• For installations where the service entrance is above
1000 kVA, at least 7 feet of clearance are required
between different pieces of equipment.
• Between the equipment and walls, 5 feet of
clearance are required as a minimum.
• After the stage of estimating
electrical loads and determining the
initial number of electrical panels will
be used, the Electrical Panel Board
Room dimensions will be estimated
by the following steps:
• Step#1:
The dimensions of the electric panels
are estimated either from previous
projects or in accordance with the
catalogs of the manufacturers.
• Step#2:
After determining the number of
electricity boards and their approximate
dimension, the working space should
be taken into consideration. According
to NEC Cod minimum depth of working
space is:
ELECTRICAL ROOMS
DIMENSIONS:
Dimensions of transformer room
depend on:
1- The project country and the specifications of the installation according to the
electricity company. Room dimensions must be approved from electrical
company first.
2 - Is there are any low voltage or medium voltage panels in the transformer
room or not?
For indoor substation
"1 transformer "
For indoor substation "1 transformer with
HV switch-gear " For indoor substation "2 or 3
transformer "
The dimensions of Generator room
can be found Easier, through
manufacturer catalogs, for example:
by using Cummins catalog:
SURVEILLANCEROOM
 A control room's purpose is production control,
and serves as a central space where a large
physical facility or physically dispersed service
can be monitored and controlled.
 Surveillance rooms are used at lot of
places for security purposes like airports,
data centers, colleges , traffic areas etc.
Design:
 The design of a control room
incorporates ergonomic and aesthetic features
including optimum traffic flow, acoustics,
illumination, and health and safety of the
workers.
 Ergonomic considerations determine the
placement of humans and equipment to ensure
that operators can easily move into, out of, and
around the control room, and can interact with
each other without any hindrances during
emergency situations; and to keep noise and
other distractions to a minimum.
 creating initial markings on the floor and on walls to show where objects like monitors and
desks will fit may serve as a good indicator as to the kind of free space.
 Getting an idea of the sight lines for any video walls and make sure you can comfortably see them
without straining or leaning around objects or desk furniture.
Light required:
light can be a factor which can make or break the effectiveness of a surveillance control room.
Sunlight can reflect off monitors, and bright strip lights can cause eye fatigue at night. Lighting
levels in general should be much lower than typical office lighting. If possible, having some
controlled natural light available is also useful as its typically a more subtle and less irritating light
source for operators.
Any windows should have easy to control blinds, with frosting considered depending which
direction they face.
lighting should fall into the region of 200-300 lux.
Line of sight:
Personnel in surveillance control rooms may find themselves looking up at large monitors regularly,
so it’s
essential that important line of sights are clear.
IMAGES SHOWNG VARIOUS VISION FIELDS AND LINE OF SIGHT
FOR MONITORS.
Arrangement of display
monitors :
 Arrangement of monitors and workspace plays a keyrole in the effective operation of surveillance
rooms.
• As for wall mounted monitor displays, ensure that they are positioned and angled correctly so that
the risk of glare and reflection can be reduced.
Different layouts of surveillance
rooms:
CENTRALIZED CONTROL ROOM
LAYOUT.
LINEAR
LAYOUT.
CIRCULAR
LAYOUT
NETZEROENERGYCONCEPT
REFERENCE:IIT GUJARAT
IIM CALCUTA
IIT Gandhinagar- India’s first
campus to receive a five-star
GRIHA LD rating Optimization of
Energy
• In comparison to GRIHA LD base
buildings, the campus is 46% more
energy efficient.
• The energy optimization is gained by
reducing heat gain or increasing cooling
in the campus.
• The architects opted for fly ash bricks for
the construction which generates the
lowest heat gain.
• Fly ash bricks were used in the cavity walls
and
outside walls of the campus buildings.
Exclusive use of exposed concrete and grit plaster is done
externally. The central court called- Samvad court (court of
‘kites in the sky’) uses an interesting concept of perforated
shade. An interesting play of light and shadows can be
observed in space.
• A Passive Downdraft Evaporative Cooling(PDEC)
technique using a mist pump has been adopted for the
dining hall.
• It helps reduce the indoor temperature with hardly any
energy consumption. Academic Complex Building 7 uses
a combination of a PDEC mist pump, a night purge
system, and a cavity wall system. Jali screens have been
provided to reduce glare in housing buildings.
• The use of various passive cooling techniques is seen
throughout the campus. All these techniques help to cope
with the harsh summers in this region.
• A building monitoring system(BMS) is
installed to manage cooling strategies.
• In the case of street light 85% more
energy efficiency is observed.
• Street lights designed here meet the
minimum lighting requirement, installed
with automatic switches.
Solar
carport
• The campus demands approximately 1MW of
energy, of which the solar carport and the rooftop
solar panels together can provide 500kWp.
• The 90 vehicles carport is created to facilitate safe
parking space on the campus. This is the first and
one of a kind facility in the region paving a path for
future adaptations of the same model.
5. Sustainable
transport
• Site planning has been done to improve walkability in the campus through continuous and universally
accessible footpaths.
• A green transportation mode is provided on the campus by two CNG-based vans that drive several times a day
between
the housing block and the Academic Complex.
• Electric charging facilities are provided for more than 10% of the total car and two-wheeler parking slots. A
‘Sustainable Cycle Pooling Initiative’ for students, staff, and faculty exists on the campus.
IIM kolkata is another campus which is leading towards net-zero waste
management:
• “At Joka, we not only want to be net-zero, but net-positive.
• By this, we mean to produce more energy than we consume. We have a 135-acre campus and huge
resources of water from lakes. We are keen on solar energy plants.
• Additionally, the lakes can be used as a heat sink and help as cooling towers for air-conditioning
plants, thereby reducing air-conditioning heat output.
• By using variable refrigerant flow (VRF) air-conditioners, we can not only reduce our energy consumption but
also save
30% of it,” he said.
• The water we will generate will be used in washrooms, air-conditioning and horticulture, among others. We
will also focus on a sewage treatment plant at Joka.
• We will get manure from it, which will allow us to produce fuel and electricity, not just on campus but also to
B A R R I E R F RE E D E SI G N
What is a Barrier-Free
Environment?
• A barrier-free environment is a space that allows for free and safe movement, function and
access for all or a set of services that can be accessed by all, without obstacles, with dignity
and with as much independence as possible.
Who all face barriers?
• Persons with disabilities for whom barriers become major obstacles like,
• Non-Ambulatory disabilities : Impairments that, confine individuals to wheelchairs.
• Semi-Ambulatory disabilities : Impairments that cause individuals to walk with difficultyor
insecurity using braces or crutches.
• Sight disabilities : Total blindness or impairments affecting sight to the extent.
• Hearing disabilities : Deafness or hearing handicaps.
Universal Design or Design for All
• Throughout the world it is being realized that there need not be an exclusive design effort to suit
the needs of people with differences. One proper design, which keeps in mind all the
requirements, can work forall.
NON- AMBULATORY
DISABILITIES
• Persons restricted on wheel chair should use the facilities within the built environment
independently without a helper’s assistance. However, wheelchair design must assume that
the user should be able to operate the wheelchair without help.
• When planning spaces in buildings to cater for wheelchair turning, a guide is to
impose on the plan a circle of 1500 mm diameter, wheel to wheel, is 450 -
500mm. The fixed turning radius, front structure to rear structure, is 785 mm.
• The maximum high forward reach allowed
shall be 1200 mm. The minimum low
forward reach is 400 mm.
• If the high forward reach is over an
obstruction500 mm deep the reach and
clearances shall be 1100 mm from floor.
• Parallel approach by a person in a wheelchair, the
maximum high side reach allowed shall be 1300 mm
and the low side reach shall be no less than 250mm
above the finished floor.
• The average unilateral vertical reach is 1500
mm and ranges from 1350 to 1 600 mm.
• The average turning spaces required is 1800 x 1800 mm.
In case a corridor, a minimum of 1350 mm between two
walls would permit a 360 degree turn. minimum width of
1650 mm, preferably 1800 mm, is required for two
individualsin wheelchairs to pass each other.
• The comfortable reach zone when seated on a wheelchair is between 900 mm and
1200 mm.The maximum reach zone is between 1200 mm and 1400mm.
SEMI- AMBULATORY
DISABILITIES
• Persons in this category who use walking aids such as crutches or canes. The persons in this
category include those who can not walk without a cane and those who have some trouble in
their upper or lower limbs although they can walk unassisted.
• When walking with a normal gait, the distance
between crutch tips ranges from 760 to 840 mm
depending on the height of the person.
• The radial range of the white cane is a band 900 mm wide.
SPACE
ALLOWANCES
TYPE OF THE BUILDING MINIMUM PROVISIONS
1. Single detached, single
dwellingunits.
A minimum of 2 per cent of the total
number of units to be constructed
with barrier-free features.
2. Staff housing, multiple dwelling ,
high -
rise dwellingunits and tenements
A minimum of 1 unit for every 25
units, whereafter 1 additional unit for
every 100 units should be
accessible.The main entrances and
exits must be accessible.
3. Post offices, banks and financial
service institutions
A minimum of 1 lowered service
counter on the premises. A minimum
of 1 lowered ATM. 1 cash
disbursementpoint on the premises.
Stamp vending machine.
4. Food centres A minimum of 1 table without stools
or seats attached to the floor for
every 10 tables. A minimum of 2
tables without stools or seats
attached to the floor for the whole
TYPE OF THE BUILDING MINIMUM PROVISIONS
5. Community centers , village halls,
auditorium, concert halls, assembly
halls, cinemas, theatres and other
places of public assembly.
Accessible entrances, exits, aisles
and main community or public
gathering areas. Accessible toilet
facilities should be near by. Seating
for persons with disabilities should
be accessible from main entrances
and lobbies. Various seating/viewing
choices to be provided for persons in
wheelchairs throughout the main
seating area. A minimum of 2
wheelchair spaces for a seating
capacity of up to 100 seats and 4
wheelchair spaces for seating
capacity from over 100 to 400 seats.
• Public walks should be at least 1200 mmwide and should have a gradient not greater than
1:20.
• Ramps with Gradients - a slope not greater than 1:20 or maximum of 1:12 for short distance
up to 9000 mm.
• A ramp shall have handrailson at least one side, and
preferably two sides,
Handrails @ 900m high (adults) , 760mm high
(children) level platforms @ for every 10m- 12m
@ 1.5m min. at turnings
@ 1.8m long at top& bottom ends of
ramp
Projections @ 300mm on either sides of handrail
Kerb @ 50mm high on exposed side oframp
DESIGN CONSIDERATIONS
• Doors and Doorways for any type ofdoors the clear width
should be 900 to 1000 mm,
Kick plates @ 400mm from floor
Horizontal/vertical handles @ 300mm in
length & 800mm high from floor
• A corridor should have a width of at least 1200 mm to allowa 90
degree turn to be made through a door.
• Windows , sill should not be greater than 800mm
and window controls should be in 900mm to 1200 mm
from the floor.
• Elevators have two kinds vertical movement & inclined movement
• lifts - opening of car @ 900mm min.
inner dimensions @ 2000mm x
1300mm min. call buttons @ b/w
900mm - 1200mm handrails inside @
800mm – 900mm high
clear landing area @ 1500mm x
1500mm
• Inclined Movement Platform Lifts - It consists of three elements: a railing,
anelectric generator and a moving platform or a seat.
• This type of lift can be installed along the stair wall leaving 900 mm clear
width.
• Desk for wheelchair users, a section should be @ 750mm –
900mm
Unobstructed knee space @ 600mm –
650mm
The utilization space of 1500mm x
1500mm Free passage @ 900mm
min.
• Counter section of Cafeteria @ 900mm
passage way @ 900mm min. preferable 1200mm
Hostel furniture
1.Table Height – 700mm -800mm high with
at least 600mm of knee clearance.
2. Beds- Bed height from floor 450mm -
500mm.
3.Desk clear floor space: 700mm x 1200mm
clear 4.Bed transfer space: Clear transfer
space should be in between 750mm -
1200mm from a wheelchair to the bed.
• A clear floor space at
least 750 mm x 1200
mm.
• shelves shall be a
maximum of 1250
mm
above FFL.
• Clothes rods 1200 mm
above the finished floor
level and depth must not
exceed 500 mm from the
user.
Storage
Toilet
• Internal dimensions notless
than
1500 mm x 1500 mm.
• Top edge of the toilet seat should
be
500 mm high.
• Wall hung type not more than
430 mm from the floor vertical
grab-bars on either side 900 mm
to 1500 mm above FFL.
• Top edge of washbasin must
be between 800 mm - 850
mm.
Number of seats in a
seating area
Number of required
spaces for wheelchair
users
up to 600 6 i.e. 1/100
up to 1000 6 + 2
over 1000
8+1 for each additional
increment of 1000 seats
Library
• Book stack areas should have aisles preferably 1650mm
wide, or a minimum of 900mm wide,
• Study tables, with clear knee space of at least 700mm high.
Auditoriums
• Accessible seating should be distributed and integrated throughout seating
areas of conference rooms .
• A foldable wooden ramp of 1: 12 ratio should beprovided.
Sports /Recreationarea
• Controlled access points/mechanical gate should be designed to
accommodate the free movement of wheelchairs. The width of
such gate should be minimum 915 mm wide.
• Seating height for bench, not more than 450mm high.
• Walking more than 200m and standing for more than 10 minutes is
difficult for persons therefore seating has to be provided wherever
people may have to rest along the circulation path.
Parking
• Accessible parking spaces shall be at least 2400 mm
wide.
• Passenger loading zones shall provide an access
aisle at least 1500 mm wide and 4800 mm long
adjacent and parallel to the vehicle pull-up space.
• Vehicle standing spaces and access aisles shall
be level with surface slopes not exceeding 1:50 in
all directions.
SAFETY MEASURES
• Walks or driveways should have a non-slip surface.
• Finishes of floor surface with non slip floormaterial.
• Installation of handrail to support the body weight at the critical places e.g. staircase, toilet, ramp, passage
• To prevent a cane or crutch tip from slipping off the side of the stairs or ramp, install a 20 mm high lip on the
exposed edge.
• Care should be taken that the extension of the handrails is not in itself a hazard. Extension up to 300 mm may
be made on the side of a continuingwall.
• Walks of near maximum grade and considerable length should have level areas at intervals for purposes
of rest and safety.
• The surfaces of the concrete ramps can be made non-skid by brooming the surface or by finishing with an
indenting roller.
• Raised thresholds for doorways should be avoided if provided it should not be greater than 25mm
and rubber thresholds are preferable.
• For people with hearing disabilities rooms should be acoustically well insulated. They may rely on lip
reading so good overall lighting which is non-reflective to be designed.
• Sight disabilities, marking with the use of color, illumination and, in certain cases, the texture of material to aid
the identification of doors, stairs, ramps, passage ways, skirting boards, etc. Unwanted mirroring affects and
reflections may be avoided which causes extra glare.
TENJIBLOCKS
Universal Designin Urban PublicSpaces
CREATIVECOMBINATIONOFRAMPSANDSTAIRS
Theidea of blending ramps and stairs
together appears, on the surface, to be a
great approach to universal design. It
provides for visually appealing stairs while
including aramp. But the implementation of
that idea leaves alot to be desired from an
accessibility and safety point of view.
Someof the problems with these ramps are
• step colours
• handrails
• no flat landing
• steep ramp
• long ramp without abreak
• risers merging intoramp
• Theseproblems have to be taken into
consideration while taking inspiration from
these stairs +ramp combination.
Otherwise it would just make avisually
stunning but very unsafeand inaccessible
design.
UNIVERSALDESIGN
• Hazelwood School by Alan
Dunlop Architect Limited,
Glasgow
• Glasgow’s Hazelwood
School was designed to
provide blind and deaf
students with the same
educational resourcesas
their peers.Alan Dunlop
came up with an ingenious
design—acork-clad trail
rail wall, which provides
signifiers and tactile cues
to guide students around
the school. Weaving
throughout the school, the
sensorywall helps students
master their mobility and
orientation skills.
Alot of universities
allow only bicycles
inside the campus.
Thisdesign of addinga
smallramp next to the
stairs makesit easier
for the users to carry
around their bicycles
through thecampus.
THANK YOU

Barrierfree design and services literature study

  • 1.
    LITERATURE STUDY BARRIER FREEDESIGN & SERVICES SUBMITTED BY 318106101002- CH SAI SIRISHA 318106101006- G RISHITHA 318106101014- M PREETI SREE 318106101015- N SATYASANJAY 318106101016- N SAISRIKAR 318106101017- P NITHIN KUMAR 318106101019- K SAIAISHWARYA 318106101022- S SAAHITI 318106101023- SK C D SHABNAM
  • 2.
    • SERVICES • LOBBIES •STAICASES AND CORRIDORS • ESCALATORS • ELEVATORS • NATURAL LIGHTING • NATURAL VENTILATION • DATA BASED SYSTEMS • HVAC • PASSIVE DESIGN STRATERGIES • FIRE SYSTEM • WATER AND WASTE MANAGEMENT • ELECTRICAL ROOM • SURVEILLENCE ROOM • NET ZERO ENERGY • BARRIER FREE DESIGN • INTRODUCTION • SPACE ALLOWANCES • DESIGN CONSIDERATIONS
  • 3.
  • 4.
    • LOBBY, isa space from which one or more other rooms or corridors can be accessed, typically found near the main entrance to a building. It may be used for access, circulation, or as a waiting area. • lobbies often serve as the "public face" of building interiors and are becoming more interactive spaces that provide an enhanced user experience. • To accommodate maximum pedestrian traffic. • Design space to accommodate peak loads.
  • 5.
    Massachusetts Institute ofTechnology (MIT) Entrance lobby • Double-height / triple height lobby spaces are attractive and spacious, but can exhibit undesirable sound characteristics. An excess of hard finishes can reflect too much sound and create reverberation. So, created a pattern in ceiling with undulations which reduce reverberation. • Function of a lobby space often influence a visitor's first impression upon entering a building. • Utilize daylighting through the appropriate placement of windows to reduce electric lighting needs
  • 6.
    UCN Campus in Aalborg •lobbies provide occupants with a relief opportunity, such as breaks, from more confined spaces. Whenever possible, incorporate views to nature or incorporate elements such as a plants, and natural materials. Amity University Dubai Lobbies as interactive spaces
  • 7.
    IIM AHEMDABAD • Lighting isessential to lobby design. Incorporating day lighting is a great way to freshen and improve the quality of lobby space. • Natural ventilation drawn by placing appropriate openings, shading devices to decrease direct solar gain. Lobbies as circulation spaces
  • 8.
    • Thermal comfort,fresh-air circulation, makes the space comfortable.
  • 9.
  • 10.
    • Traditionally, grandstaircases were the focal point of many buildings and served as a means of entry and connection. In many cases, they were located at the center or heart of the building and were used both actively, as a vertical bridge or pathway to a destination, and passively for sitting or gathering. • Today, well-designed, visible, open stairs stimulate a variety of benefits including circulation, creativity and connection. • The staircase has re-surfaced as an active design concept in educational environments serving as a multipurpose, student-centered area. • Stairs can affect the way we see our surroundings •stairs can affect the way we feel as we use or view them and the way we interact with our surroundings. “Aswe move across a stairway, the form dictates our pacing, our feeling, our safety and our relationship and engagement with the space around us. • Having broader treads and wider staircase reduces the pace. The surroundings are also an add on to the pace on the staircase. • Whereas having taller risers ,is quite uncomfortable thus we move more quickly. STAIRCAS ES:
  • 11.
    • Arranging staircases at openings in windward side , allows ventilation and acts as a funneling effect. • Usually stairs are situated at the core of the building for an easy access from all the directions. • Creates a focal point to the space. • A larger buildingwhich requires more than 1 stair- case would have multiple staircases at either corners of the building.
  • 13.
    ISB Hyderabad Central circular staircase IIMahmedabad Straight staircase at the entrance leading to the main block IIT kharagpur Two quarter turn stair case IIT Roorkee Bifurcated staircase
  • 14.
    LEARNING STAIRS • Thephysical design of stairs has evolved in many cases to the size of a seat insteadof a step, making them an ideal setting forcongregating. • Learning stairs are being designed in a variety of buildings in various shapes and sizes but are often characterized by an open feel including wide, deep stairs that can be used more like seats or bleachers situated next to the traditional circulation stairs. • They may be fitted with electrical outlets for charging and use of personal devices and laptops, cove lighting and cushions or pillows to encourage comfort andconvenience. • 1. Community and Collaboration • 2. Playfulness and Creativity • 3. Flexibility and Efficiency • 4. Circulation and Wellness
  • 16.
    • All buildings,which are 15 m in height or above, having area more than 500 m2 on each floor shall have a minimum of two staircases. • They shall be of enclosed type; at least one of them shall be on external walls of buildings and shall open directly to the exterior, interior open space or to an open place of safety. • The travel distance between each of the nearest exit ( staircase) must be 30 m. • Internal stairs shall be constructed of noncombustible materials throught. • A staircase shall not be arranged round a lift shaft. • Min. width of the staircase must be 1.5m. • The minimum width of tread without nosing shall be 300 mm for internal staircase. The treads shall be constructed and maintained in a manner to prevent slipping. • The maximum height of riser shall be 150 mm and the number shall be limited to 15 per flight • The minimum headroom in a passage under the landing of a staircase and under the staircase shall be 2.2 m. • An external staircase is desirable to be provided for high rise buildings. • No external staircase, used as a fire escape, shall be inclined at an angle greater than 45 ° from the horizontal. GENERAL REQUIREMENTS OF STAIRCASES FROM NBC (2005)
  • 17.
    The benefits ofa single-loaded arrangement are: •Overall building depth is shallower than double-loaded, which is better for constrained sites •The orientation of all apartments is towards a preferred aspect •External corridors allow for a naturally lit and ventilated corridor •There is potential for double aspect dwellings with cross ventilation if the corridor is external •They may be used in combination with double- loaded arrangements. • A single loaded corridor runs along an external (or atrium) face of the building. • The associated dwellings are accessed off one side only. Single-loaded corridor access CORRIDO RS:
  • 18.
    Double-loaded corridor access • Thedouble-loaded arrangement locates the corridor within the building. • Apartments are accessed off both sides of the corridor and are therefore predominantly single aspect. • The overall building depth is deeper than a single-loaded arrangement and solutions for a The benefits of a double-loaded corridor are: •greater efficiency of circulation space compared to a single loaded corridor •higher overall density of residential units, which may be required in city or district centre locations where good public transport links and amenities •the potential for double-fronted buildings on sites where this is appropriate •opportunity for more variety in apartment mix due to greater building depth. It is better to limit the number of apartments off one double loaded corridor. Other things to consider include: •windows at the end of the corridor to let in light and air, and allow views out •extra space around lifts and circulation areas, to form lobbies where people can meet •extra width and height in the corridor, particularly around doorways, to give a feeling of spaciousness •​using an atrium in a building with a deep plan. This can let in light to the middle of the building.
  • 19.
    • Having acorridor along the periphery of the courtyard is beneficial in the followingways: • It allows more amount of light into the interior spaces, reducing theuse of artificial light sources. • Provides good ventilation. • Acts as a great connectivity to the interior and exterior spaces. • Usually educational buildingsthat keep renovatingand evolvingwould have better scope in a courtyard pattern. • Where stairways discharge through corridors and passageways, the height of corridors and
  • 20.
    An example ofcorridors at IIM banglore ,partially open to sky that facilitates to walk through even during rains. Corridors that act as bridges connecting the upper floors. Having wide corridors also act as interactive spaces, such as the on above fom IIM Ahemadabad
  • 21.
  • 22.
     Escalators, elevatorsand stairs are mechanical devices used for transporting people vertically between different levels of buildings.  Escalators take the form of a moving staircase, consisting of a 'chain' of single-piece aluminum or stainless-steel steps guided by a system of tracks in a continuous loop.  Escalators limits the angle of elevation to when the rise deosn’t exceed 6m and speed along line of slope not greater than 0.5m/s.  The escalators can have a max permissible thread width of 1060 mm and min of 600 mm. Dimensions of escalators for initial planning.  Traffic capacity of escalators: The traffic capacity of escalators depends on the rate at which people step on escalator which in turn depends on width of escalator.  The speed of escalator can be up to 0.75m/s where increasing the speed can results in greater capacity, higher speeds tend deter passengers stepping on it.
  • 23.
    Approx. width andtraffic capacity of escalators. •For escalators serving in 1 direction of travel, super-imposed flights occupy less plan area but requires the users to walk between successive flights. Cross-over arrangement avoids this and double crossover can be used in large areas for movement in both directions. • When escalators extend through fire compartment boundaries, self-closing shutters are required. Layouts of superimposed, cross-over and double crossover escalators.
  • 24.
  • 25.
     Elevator, alsocalled lift, car that moves in a vertical shaft to carry passengers or freight between the levels of a multistory building. Most modern elevators are propelled by electric motors, with the aid of a counterweight, through a system of cables and sheaves (pulleys).  Some of the classes of electric elevators are: Light traffic passenger/perambulator Passenger General purpose passenger Intensive traffic passenger General purpose goods Heavy duty goods e.t.c. • Elevators shall be made mandatory for all buildings which are 15m and above (without stilts) or 18m and above (with stilts) in height. • For buildings less than 15m (without stilts) or 18m (with stilts) the provision of lift is on the discretion of the owners in order to facilitate movement of elderly people. • All the floors including basement and terrace shall be accessible for 24hours by the lifts. • The lifts provided in the buildings shall not be considered as a means of escape in case of emergency. • The lift machine room shall be separate and no other machinery shall be installed in it.
  • 26.
    SIDE BY SIDE ARRANGEMENT:WIDTH OF CORRIDOR =WIDTH OF LIFT CAR OPPOSITE ARRANGEMENT: WIDTH OF CORRIDOR =WIDTH OF LIFT CAR NOT A GOOD ARRANGEMENT LIFT ARRANGEMENT- 2 CAR
  • 27.
    SIDE BY SIDE ARRANGEMENT: WIDTHOF CORRIDOR =1.5-2A Where A is the width of lift LIFT ARRANGEMENT- 3 CAR OPPOSITE ARRANGEMENT: WIDTH OF CORRIDOR =1.5A Where A is the width of lift LIFT ARRANGEMENT- 4 CAR SIDE BY SIDE ARRANGEMENT: WIDTH OF CORRIDOR =1.5-2A Where A is the width of lift OPPOSITE ARRANGEMENT: WIDTH OF CORRIDOR =1.5A Where A is the width of lift
  • 29.
    Paternoster elevators: Apaternoster or paternoster lift is a passenger elevator which consists of a chain of open compartments (each usually designed for two persons) that move slowly in a loop up and down inside a building without stopping.  For paternoster elevators, car dimensions limited to Clear height – 2200mm Width and depth – 900 to 1000 Max floor area – 0.93 m2 Landing entrance height – 2600 to 2800. Max permissible speed – 0.4m/s Traffic capacity: with random interfloor traffic randomly distributed among the building,30person/min can be carried with little waiting when installation serves 5 floors,35p/min when 11 floors are served and 42p/min with 16 floors.
  • 30.
    Elevators for disabled:Min dimensions of elevator car to accommodate standard wheelchair : Internal depth – 1100mm t e Width - 900mm Clear opening – 700mm In some buildings the lift should be sufficien for another person to hold the chair-bound: Min depth – 1400mm Width – 1100mm  In special cases, large wheelchairs are to b accommodated : depth – 1800mm Width – 1000mm Opening – 800mm a. clearance for center opening doors for wheelchair users. b. Clearance for side opening doors for wheelchair users.
  • 31.
    Planning of elevators: Elevators serving single zone of upper floors should be grouped in plan with interlinked controls.  Arrangement of lobbies should allow waiting; passenger move rapidly to which ever car that arrives 1st.  No more than 4 elevator entrances should be alongside each other, facing entrances should be 2500mm – 3500mm apart.  In large building, lobby area tends to be 5-6m2 on upper floors and 15-20m2 in ground floors.  In large buildings, there should be single main loading floor, and all the passengers entering the building at other levels should be brought by the means of secondary circulation to the buildings main lobby.  The noise generated by the elevators must be taken care of.the machine rooms should be somewhere at remote zone and risk of noise through structural continuity should be examined. Lift lobby dimensions.
  • 32.
  • 33.
    SIN o . (1) Type of Interioror Activity (2) Range of Service IDwninance (See Note) lux (3) Quality Class or Direct Glare Limitation (4) Remark s (5) Recommended Values of lliuminance NBC ( 2005 ) NATURAL LIGHTING: a) Careful planning of the brightness and colour pattern within both the working areas and the surroundings so that attention is drawn naturally to the important areas, detail is seen quickly and accurately and the room is free from any sense of gloom or monotony b) Using directional lighting, where appropriate, to assist perception of task detail and to give good modeling. c) Controlling direct and reflected glare from light sources to eliminate visual discomfort Good lighting is necessary for all buildings.
  • 34.
  • 35.
  • 36.
  • 37.
    WINDOW HEIGHT ANDLOCATION • As a general rule, the higher the window head height, the deeper into the space the daylight can penetrate. • Therefore, good daylighting fenestration practice dictates that the window should ideally be composed of two discrete components: a daylight window and a view window. • Overhead day lighting Skylights can be either passive or active, the majority of skylights are passive because they have a clear or diffusing medium (usually acrylic) that simply allows daylight to penetrate an opening in the roof. • They are often comprised of a double layer of material, for increased insulation. They can be of any shapes. OVER HEAD DAYLIGHTING
  • 39.
    Not withstanding thearea of openings obtained through the minimum aggregate areas of such openings, excluding doors inclusive of frames, shall be not less than: a) one-tenth of the floor area for dry hot climate b) one-sixth of the floor area for wet hot climate; c) one-eighth of the floor area for intermediate climate;and d) one-twelfth of the floor area for cold climate. NOTES 1. If a window is partly fixed, the openable area shall be counted. 2 . No portion of a room shall be assumed tobe lighted, if it is more than 7.5 m away from the opening assumed for lighting that portion Adding on vegetation along the openings allows to filter light and achieve the correct illumination levels. Using skylights Using lightwells Perforated walls Clerestory windows
  • 40.
    IIM Ahmedabad The largegeometric openings at the IIM Ahmedabad acts as light wells and also for ventilation. Amherst College New Science Center, Amherst North-light top lighting IIT Gandhinagar Open spaces that are shaded partially. Creating unique patterns through natural light. IIT Gandhinagar Jaali walls in a hostel block ISB Hyderabad Skylight above stairs
  • 41.
  • 42.
    Windows – shadingdevices:  Sun Shading Devices are any mechanical equipment or textiles that are used either internally or externally or in between the internal and the external building space with the primary objective creating comfortable environment.  Need of Sun Shading Devices - To reduce the heat gains during summer, reduce the cooling loads and therefore minimize energy costs. Types of shading devices: There are 2 types of shading devices – Retractable types and Fixed external types. Retractable shading devices:  These devices, which can be fixed, adjustable or retractable are called as retractable shading devices.  They can be found near the windows, utility areas, and even for external shading.  Vertical fins ,lovures and blinds are used for retractable shading.
  • 43.
    Different types ofretractable shading systems at the windows depending on the level of sunlight.
  • 44.
    Fixed external types: Fixed exterior shading devices such as overhangs are generally most practical for small commercial buildings. The optimal length of an overhang depends on the size of the window and the relative importance of heating and cooling in the building.
  • 45.
    Importance of shadingdevice:  Passive design solutions help reduce the energy consumption. One of the ways to reduce the total required energy is to use shading devices for façades that have large openings. Façades with large openings will allow more daylight and exterior views, but this can also lead to increased cooling and/or heating demand in buildings. The most important reason for using shading is to prevent direct sunlight and solar radiation, thus reducing cooling requirements, and to allow desirable solar gains in the heating seasons. ACTIVITY REQUIRED ILLUMINANCE TEACHING AND LECTURING TABLE BLACKBOARD 200-500 300-500 LABARATORY 200-500 SEWING 500-700 PAINTING 500-700 LIBRARY SHE LF TABL E 100-200 300-500 ADMINSTRATIVE TYPIN G OFFIC 300-600 200-500 Illuminance required at different zones in an institution based on case study from Tehran, Iran.
  • 46.
    SHADIN G MODEL MAX ILLUMIN A NCE MIN ILLUMIN A NCE AVGLUX UNIFOR MI TY RATIO UNIFOR MI TY RATIO (MIN/AV G ) MAX DF% MIN DF% AVG DF % WITHOUT 2200 54.09 1127 0.004 0.019 22 0.54 4.76 LIGHT- SELF 998 24.81 511 0.030 0.123 10 0.25 2.38 LOUVRE 398 12.42 203 0.032 0.093 4 0.12 1.37 OVERH AN G 1677 39.51 858 0.24 0.110 17 0.39 3.58 Analysis of daylight based on use of different types of shading devices.
  • 47.
    Shading of roof: •Shading of roof through design features like pergolas or solar photovoltaic panels helps in reducing the incident direct solar radiation on the roof surface. This in turn helps to reduce the air temperature of the roof and conduction gains in the space below. fully shaded roof of Centre for Environment, IIT Kanpur through Pergolas and Solar PV panels. Impact of shaded roof: It is observed in air conditioned buildings, adopting ECBC envelope in building has high energy saving potential. However, shaded roof has similar energy saving potential as that of ECBC compliant roof. Shading of roof could can be done by designing pergolas, trellis on roof or by installation of solar panels. FULLY SHADED ROOF OF RESEARCH LAB IN IIT KANPUR,THROUGH PERGOLAS ANS SOLAR PANELS.
  • 48.
    Shading of walls: Shadingwalls from direct sun can be one of the simplest and most effective ways of reducing the heat load on a building. Clever use of shade can dramatically improve the comfort conditions inside and reduce reliance on expensive air conditioning systems. As in the warm & humid climate, the East and West facades receive maximum solar intensity especially in summers, shading the East and West facades is a challenge. As eastern and western walls heat significantly in summers, overhangs may not be enough. The entire east and west walls have to be shaded to protect from the strong summer solar intensity. GREEN FASCADE IN WARM AND HUMID CLIMATE,USED AS SHADING. MECHANICAL SHADING PROVIDED ON EXTERNAL WALLS OF IIT KANPUR.
  • 49.
    SECTION SHOWING SHADINGSYSTEMS PROVIDED IN ENVIRONMENTAL AND SCIENCE ENGINEERING BLOCK IN IIT KANPUR.
  • 50.
  • 51.
    • Natural ventilationis the procedure of entering fresh air into a home from outside. This new air, forces the dirty, warm air in the rooms out by the opening in the roof. This can be operated without mechanical assistance. • Natural ventilation is one of the most practical techniques to decrease energy usage in buildings. It utilizes the natural power of wind and buoyancy to enter fresh air and spread it in buildings for the occupants. Natural ventilation is operated by pressure varieties between one section of a building and another, or between the outside and inside. • Natural ventilation can provide a sufficient supply of breathing air, adequate ventilation of pollutants, enough thermal conditioning, and humidity waste through a well-connection to the dynamics of the environment. Designers usually select natural ventilation because it decreases carbon production and is cheaper to install and run than full mechanical ventilation. • Natural Ventilation and human comfort are related together TYPES OF VENTILATION: 1. WIND OPERATED [CROSS VENTILATION] 2. BUOYANCY OPERATED [STACK EFFECT]
  • 52.
    The effectiveness ofnatural ventilation The impact of Natural Ventilation can increase in the building according to your consideration of the following matters: •Prevailing wind velocity and direction •Building conditions and orientation •Window sizing, location, and functioning •Surrounding environment •Outdoor temperature and moisture Design Considerations If you’re thinking about designing natural ventilation in your new building, you should notice the following basic design techniques: •External components •Window types and verification •Building appearance and dimensions •Ridge vents •Building orientation and position •Air inlets and outlets
  • 53.
    Wind-Based Ventilation (Cross-Ventilation) Moving wind near a building will produce different sections of low and high pressure. The windward part of the house is an area that is high pressure, while the leeward part & roof are low pressure. Placing different types and sizes of openings in the low and high-pressure sections can force air to transfer through the building at an increased rate and in the desirable direction. The simplest method to know wind-driven or wind-based ventilation is to look at an open window. Fresh air enters through one side, transfers throughout the house, and then exits through the opposite side, forcing the stale warm air out that was in the building. Furthermore, this is an attractive, low-cost ventilation solution in specific applications.
  • 54.
    Buoyancy- Driven Ventilation(The Stack Effect) This type of Natural Ventilation seems complex, but it works fundamentally like a fireplace. Because warm air goes up and cool air remains low, this procedure forces warm air to rise. The heat produced in buildings goes up towards the ceiling. In huge buildings, where the construction is of noticeable height, the natural trend of warm air to rise produces air transfer throughout the whole of the building. This is what is usually introduced as the stack effect or thermal buoyancy. Warm air goes up through the building and exits via the natural ventilator. The wall openings at the floor level permit cool air to come in, taking the place of the warm air that exits.
  • 55.
    Natural ventilation canpractically supply a high ventilation level more economically due to the employment of natural powers and large openings. They are more energy effective, especially if heating is not needed. The systems which are well-designed could be utilized to provide higher levels of daylight. The advantage of natural ventilation is its capability to supply a very high air-change level at a low cost, with a very ordinary system. Although the air-change rate can change considerably, buildings with new ventilation systems (that are modeled and worked appropriately) can obtain very high air- change levels by natural power, which can considerably be greater in quantity than minimum ventilation needs.
  • 56.
    . What is mixedmode ventilation? Mixed mode ventilation or hybrid ventilation is a sustainable ventilation strategy that can improve the indoor air quality and effectively regulate the indoor temperature. This enhances occupant comfort and productivity. Mixed mode ventilation systems combine the benefits of fresh air ventilation with the added support of mechanical fans and systems to move and change air for a comfortable and healthy indoor climate How do mixed mode ventilation systems work? Mixed mode ventilation systems reduce energy consumption through the reduction of mechanical fan use and, in some cases, the cooling demands. Like natural ventilation systems with WindowMaster, mixed mode ventilation systems utilize sensors to monitor indoor temperature, CO2 levels, and humidity, as well as outdoor conditions. Based on this data, the system will automatically either chose natural ventilation or mechanical ventilation depending on which system is the most optimal to use. The system will then switch back to the natural ventilation strategies when appropriate. For example, if the weather is too cold, too rainy, or too hot, the mixed mode ventilation system adjusts the building openings appropriately and communicates with the mechanical ventilation system to optimize the indoor environment. The system then takes a holistic approach to ensure occupant comfort and indoor climate health for a high-performance building.
  • 57.
    How does mixedmode ventilation work in the different seasons? •Summer time •Window actuators control building openings to let cool outdoor air into the building. This is sometimes achieved through night cooling. Depending on climate, the building openings may also open during the day to change the air or cool the building, depending on indoor temperature parameters. These strategies ensure sustainable building operation through a minimum use of energy. Winter time •In some climates, a mixed mode ventilation strategy can work with a mechanical ventilation system to ventilate the building while recovering heat generated in the indoor environment. In this way, heat recovery can reduce heating demands while minimizing or eliminating the experience of draft. Spring/Fall Window Master mixed mode ventilation systems are intelligent indoor controls that monitor indoor and outdoor climate factors to deliver optimal indoor comfort. The climate can vary greatly during these seasons, so a combination of summer/winter strategy is often employed. The control system chooses between natural ventilation or mechanical ventilation, depending on what is most appropriate for both the indoor and outdoor conditions.
  • 58.
  • 59.
    • Heating, ventilation,and air conditioning (HVAC) is the technology of indoor and vehicular environmental comfort. Its goal is to Provide thermal comfort and acceptable indoor air quality. HVAC system design is a subdiscipline of mechanical engineering,based on the principles of thermodynamics, fluidmechanics and heat transfer. "Refrigeration" is sometimes added to the field's abbreviation, As HVAC&R or HVACR or "ventilation" is dropped, as in HACR (as in The designation of hacr-rated circuit breakers). • Ventilating or ventilation (the"v" in hvac) is the process of exchanging or replacing air in any space to provide high indoor air quality which involves temperature control, oxygen replenishment, and removal of moisture, odors, smoke, heat, dust, airborne bacteria, carbon dioxide, and other gases. Ventilation removes unpleasant smells and excessive moisture, introduces outside air, keeps interior building air circulating, and prevents stagnation of the interior air. Purpose: • The purpose of the hvac system is to provide the occupants with a comfortable & healthy living environment. •It does more than just control air temperature •It also provides moisture control •Controlling relative humidity is important for comfort,iaq and building durability.
  • 60.
    MOISTURE AND INDOORAIR QUALITY: RELATIVE HUMIDITY LEVELS HAVE A SIGNIFICANT IMPACT ON A VARIETY OF IAQ ISSUES VENTILATION-THE “V” IN HVAC: HVAC IS NOT JUST HEATING & COOLING •SPOT VENTILATION IS USED PRIMARILY TO REMOVE MOISTURE & POLLUTANTS AT THE SOURCE •WHOLE BUILDING VENTILATION IS USED TO ENSURE OCCUPANTS HAVE FRESH AIR PROVIDED IN A CONTROLLED MANNER •AIR EXCHANGES THROUGH LEAKS ARE IRREGULAR,INEFFECTIVE,INEFFICIENT AND UNHEALTHY.
  • 61.
    LOAD CALCULATION PROCESS SELECTDESIGN CONDITIONS FILLING OUT BUILDING DESCRIPTION CHOOSING SYSTEM TYPE SELECTING DISTRIBUTION PREFERENCES DRAWINGG THE ROOM-BY ROOM FLOOR PLAN SELECTING EQUIPEMENT TYPE DRAW DUCTS GENERATING A REPORT DUCT TESTING REQUIREMENTS DUCT LEAKAGE MUST ONE OF THE FOLLOWING: POST-CONSTRUCTION DUCT LEAKAGE TO OUTDOORS <8 cfm per 100 ft2 POST-CONSTRUCTION TOTAL DUCT LEAKAGE <12cfm per 100 ft2 ROUGH-in TOTAL DUCT LEAKAGE w/AHU <6 cfm per 100 ft2 ROUGH-in TOTAL DUCT LEAKAGE WITHOUT AHU <4 cfm per 100 ft2 THE USUAL SUSPECTS •DESIGN TEMPERATURES •BUILDING ORIENTATION
  • 62.
    Types of HVACsystems: • Cooling only split- system • Ductless system • Heat pump • Packaged-system PROPER SIZING: • The duct size must adequately handle air flow intake and return in order for an HVAC system to operate at optimal levels. Optimal airflow based on cubic feet per minute as well as velocity of air provided by other components of the HVAC system determine the correct ductwork sizing for each scenario. COVERAGE CHART: • The capacity of the hvac is choosed dep ending on the area. • 1.5 tons –600 to 1100 square feet • 2-tons – 901 to 1400 square feet • 2.5-tons –1201 to 1650 square feet • 3 tons – 1501 to 2100 square feet • 3.5 tons – 1801-2300 square feet • 4 tons – • 5 tons – 2101 to 2700square feet 2401 to 3300square feet
  • 63.
    Rectangular • Rectangular orsquare ducting comes in standard sizes ranging from 3- by-7 inches to 35-by-40 inches. Sizing is based on airflow needs per cubic foot per minute, as well as velocity. The HVAC model that you're interested in should offer information regarding the maximum airflow per cubic foot per minute, or CFM, to help you determine adequate duct sizes. The type of ducting you use, such as flex ducting or rigid ducting, also determines the velocity of supply and return air.Airflow is also affected by the length of straight portions of ductwork, as well as the number of trunks or branches in your overall duct design. Round • Round ducting comes in standard sizes ranging from 4.9 inches in diameter to just over 41 inches in diameter, with sizing also depending on airflow needs per cubic foot per minute and velocity. Size of your ductwork may also be affected by the design and construction of your home or business as well as the need to reduce the size of ducts coming from each vent or register in the system in order to provide constant air velocity and air pressure throughout the system and into different rooms.
  • 64.
  • 65.
    HVAC EQUIPMENT SIZING: SYSTEMSARE SIZED IN ORDER TO BEST FULFILL THEIR FUNCTION •HEATING IS SIZED ATA RATE TO REPLACE LOST BTUs •AC SIZED FOR BOTH SENSIBLE & LATENT •DEPENDS ON CLIMATIC CONDITIONS
  • 66.
    ORIENTATIO N: •THE HEATING &COOLING LOADS ON A HOUSE ARE DEPENDENT ON THE ORIENTATION,ESPECIALLY FOR WINDOWS. •BY COMPARING THE ORIENTATION LISTED ON MANUAL J DOCUMENTATION TO THE ACTUAL ORIENTATION OF THE HOME.
  • 67.
    PARTS OF THEHVAC SYSTEM PARTS OF HVAC SYSTEM IN DIFFERENT FLOORS
  • 68.
    HVAC SYSYTEM INMULTIPLE FLOORS HVAC SYSTEM IN A FLOOR
  • 69.
    Passive design strategiesreduce upfront costs, operating expenses and required maintenance. They are as intelligent as they are cost effective. Passive design features, like additional insulation, light shelves, shade walls and innovative heating/cooling design reduce the amount of energy that an HVAC system needs in order to adequately heat or cool a space. Less demanding HVAC systems have lower upfront installation costs and are cheaper to operate. Money saved can then be put towards adding even more energy saving features to a building. A return on investment can be calculated to illustrate the value of an energy efficient system. PASSIVE DESIGN STATERIGES: 1. OVERHANGS FOR SOUTH FAÇADE 2. FINS FOR THE WEST FAVADE 3. GREEN ROOF 4. HIGH PERFORMANCE GLAZING 5. ROOF INSULATION OVER THE DECK 6. LIGHT SHELVES 7. OPENINGS FOR NATURAL VENTILATION 8. THERMAL MASS 9. POND FOR EVAPORATIVE COOLING 10. THERMAL COMFORT
  • 70.
  • 71.
    Aims in FireSafety Design • To prevent fire • To safeguard the lives of occupants and firefighters • To reduce damage on the building, its contents, and on surrounding buildings Basic Principles • Fire Avoidance • Fire Detection • Fire Growth Restriction • Fire Containment • Fire Control • Smoke Control • Escape Provisions Fire Avoidance Reducing the possibility of accidental ignition of construction materials, as well as fittings and fixtures. This implies: a. keeping separate heat sources and materials which might ignite readily through proper planning and zoning b. need to specify materials to reduce the risk of fire starting c. reducing fire load Basic Makes use of manual and automatic (electric/ electronic) methods of informing the occupants in charge that a fire has occurred in a given location. Heat and smoke alarm systems inside Fire Risk and Fire Load areas. Basic Principles Mechanical Fire Detection 2Fire Detection Fire alarm systems must be accessible in all zones especially in fire-prone areas. Basic Principles Actively extinguishing or slowing down the development of a fire before the full involvement of the room. This is done by the room’s local occupants. Means: 1. Fire Extinguisher 2. Water Supply 3. Fire Blanket 4. Bucket of Sand Fire Growth Restriction Mechanical Means of Restricting Fire Growth 6 Sprinkler Specifications: Sprinklers can be spaced from 3.6 to 6.0 meters apart.
  • 72.
    Portable fire extinguishing-These devices are used for extinguishing fire as soon- as it starts. - They are not so useful when once the fire has spread. The discharge from a portable fire extinguisher lasts only for a short duration of 20 to 120 seconds. Fire sand bucket - A fire sand bucket or fire bucket is a steel bucket filled withstand which is used to put out fires. -They are placed in prominent positions in rooms or corridors. They are a low-technology method of fighting small fires. -The main advantages of fire buckets are that they are cheap, reliable and easy to use. Fire Hydrants These are provided on a ring main of 150 mm dia. in the ground around the building periphery. The ring main gets water from under ground water tank with pressure, so that available pressure at each hydrant is of the order of about 3.5 to 4 kg/cm. The fire hydrants are placed at 300ft.c/c with easy access in case of emergency. Automatic Sprinkler System - This arrangement is adopted for Commercial & industrial buildings. -The system consists of a net work of 20 mm dia. Fixed to the ceiling of the room spaced at 3 m center to center. -Heat actuated sprinkler heads are fixed to these pipes. The pipes get supply from a header. Each sprinkler head is provided with a fusible plug. -In the event of fire, the fusible plug in the sprinkler nearest to the wire melts due to rise of temperature, and water gushes out of the sprinkler head. The fire is thus brought under control in a short period. Wet Riser system These system is adopted in high rise Buildings as wellas Public buildings such as Cinemas,malls,Multiplexes etc. The system consist of providing 100 to 150 mm dia. vertical G.I.Pipes (Risers) at suitable locations in the buildings. A fire pump is used to feed water from under ground fire fighting water tank to these pipes, to ensure a pressure of 3 kg/cm2. at upper most outlet. The fire fighting tank of 75,000 litres to 1 lakh litres are provided.
  • 74.
    To provide safety,the routes must be properly protected from the effects of fire and smoke for an acceptable time period, usually a minimum of 60 minutes. This can be achieved by: - Compartmentation - Fire resistance of escape route structure - Use of smoke control systems to keep smoke out of escape routes Protected escape routes are designed in such a way that they lead to a place of safety, and once inside the occupants are safe from the immediate danger from fire and smoke.
  • 75.
    • Occupant Load– is usedFordetermining the exits requirement, the number of persons within anyfloor areaor the occupant load should be basedon the actual number of occupants. Capacity of Exits • Theunit of exit width, usedto measurethe capacityof anyexit, should be 50cm. • Aclear width of 25 cmshould be countedasan additional halfunit. • Clearwidths lessthan 25 cmshould not be counted for exit width. Arrangement of Exits  the travel distanceto anexit from the dead end of the corridorshouldnot exceed6m
  • 77.
    THIS IS AFLOOR PLAN OF ISB HYDERABAD THERE ARE 2 FIRE EXIT STAIRCASES IN EVERY CORNER . THERE ARE TOTAL 14 FIRE EXITS IN THE BUILDING . FIRE EXIT REFERENCE: ISB HYDERABAD
  • 78.
    • Exit doorshould not open immediately upon a flight of stairs, a landing equal to at least the width of the door should be provided in the stairwayat eachdoorway. • the level of landing should be the same asthat of the floor which itserves. • the height ofcorridors and passagewaysshould be not lessthan 2.4 m, Where stairwaysdischargethrough corridors andpassageways. • Interior stairs should be constructed ofnon- combustible materialsthroughout. • Interior staircaseshould be constructed asaself- contained unit with anexternal wall constituting at least one of its sidesand should be completely enclosed. • Astaircaseshould not be arrangedround aliftshaft unlessthe latter is totally enclosedby amaterial of fire-resistance rating asthat for the type of constructionitself. • Hollow combustible construction should notbe permitted. • No gaspiping should be laid in thestairway.
  • 79.
  • 80.
    We will bestudying the water services such as • Water supply • Drainage of waste water • Water recycling sytems • Rain water harvesting • Storm water drainage • Sewage treatment • Solid waste management IIT Gandhinagar has been taken as reference to study the above mentioned Indian Institute of Gandhinagar is an institute that has been constantly working towards sustainability and developing a green campus since the initial stage. The master planners have well thought of the water and waste services of the campus design. WATER SOURCES ON CAMPUS Fresh water from the Narmada Canal Bore Well Water Rooftop Rainwater Collection Surface Rainwater Runoff Recycled Water CONTENT
  • 81.
    ROOFTOP RAINWATER COLLECTION All therooftops of the approximately 2,21,000 sq m of built up area of Phase IA campus buildings (both housing and academic buildings) are connected to a rooftop rainwater collection pipe network. These pipes are connected, with a gravity feed system, to the rainwater storage structures located throughout the campus (Jal Mandaps) that have been designed to be prominent landscape features.
  • 82.
    SURFACE RAINWATER RUNOFF •During the monsoonseason surface rainwater runoff is collected via a gravity- main network. After calculating the intensity of rainfall, the rainwater collection network was designed based on standards
  • 83.
    RECYCLED WATER As specified inthe Masterplan, recycled water can be used for toilet flushing and irrigation purposes Raw sewage from the campus is thus collected and pumped through Sewage Pumping Stations 1 and 2 to the Sewage Treatment Plant.
  • 84.
    JAL MANDAPS A separate pipingsystem was designed for the collection of rainwater on the roofs of each building and then for the transfer of this water, using gravity, to feed the rainwater collection tanks, called Jal Mandaps by the landscape architect, and designed to be attractive viewing pavilions as well as storage tanks. In fact, the above-ground structures of the Jal Mandaps have been designed specifically as social spaces. They take inspiration from the vavs in Gujarat, encouraging social interaction. The rainwater collected in each of these Jal Mandaps is pumped to the Water Treatment Plant where it is mixed with Narmada Canal water, treated, and piped back to the rooftop tanks through WSCs after chlorination to be used eventually as drinking water.
  • 85.
  • 86.
    DISTRIBUTION NETWORKS : All buildingsare provided with dual plumbing with separate lines for fresh water and recycled water from the Water Service Centre. Each of these lines goes into its own chamber in a multiple chamber rooftop tank where the two waters are separated by an air chamber between. The freshwater tank is further divided by a wall that prioritises distribution to the building fire hoses. If the freshwater tank for the use of the occupants should go dry, there is still water for firefighting. In addition, each building has a separate piping system that drains off roof rainwater into the Jal Mandap storage tanks
  • 87.
  • 88.
    SEWAGE DISCARGE SYSTEMS The masterplanners for the campus proposed using an innovative sewage treatment system, called a De-centralized Wastewater Treatment System (DEWATS), which features root zone treatment of the sewage. It met the following principles as specified in the Masterplan: a)Low energy consumption b) Minimum use of chemicals c)Ease of operation and maintenance This unconventional system uses almost no power and has no mechanical parts. There is zero discharge. The wastewater and sewage generated on campus are treated through anaerobic reactors and a root zone treatment system. The water recycled is piped
  • 89.
    WATER TREATMENT PLANT: The water treatment plants requires following spaces for treatment of water. They are inlet chambers flash mixers Clarifocculato r Filter feed tank Multigrade Filter (MGF) Clean Water Pumping Station (CWPS).
  • 90.
  • 91.
    SOLID WASTE MANAGEMENT Biogas plantsand compost pits are installed on the campus to treat all the organic waste. Food waste from the hostel mess is segregated at the source and is fed to the biogas plant. The compost pits take all other organic kitchen waste— vegetable peelings, etc. later used as manure in the landscaping. The segregation of waste is done at the source. The institute’s ‘Green Office’ is actively involved in waste reduction initiatives, along with other green campus efforts. Staff training, monitoring the implementation of various initiatives, and providing general education regarding
  • 92.
    Water Efficiency Initiatives • Water-EfficientFixtures These dispense water at a controlled rate by mixing foam with the stream of water. The use of foam basically adds air to the water stream, resulting typically in about a 70% reduction in water consumption • Solar Water Heaters All the residential buildings on campus have solar water units installed on their rooftops • Passive Downdraft Evaporative Cooling (PDEC) This system consists of a set of nozzles at the top of a central shaft through which a fine water mist is generated using a pump. This fine water mist released at the top of the shaft evaporates thereby cooling the air at the top of the shaft. This cooler air sinks on account of cooler air being heavier than ambient air, and enters the lower floors containing the dining areas.This system is effective in hot and dry weather and is able to achieve an additional cooling effect of nearly 5 degrees Celsius giving needed relief during the Summer months. • Waterless Urinals
  • 93.
    ISB HYDREBAD WATER SOURCE:municipal water. It is stored in an underground sump of 30-40k capacity. They also have borewell. The rain water is collected into the ISB lake ans this water is used for irrigation purpose. The sustainable campus of ISB also has its own • WATER TREATMENT PLANT (WTP) The water stored in the sump goes to WTP where is treated and sent to the academic block student villages rec centre etc. • SEWAGE TREATMENT PLANT (STP) The treated water is allowed to flow into the artificial lake and is used for watering plants WATER HARVESTING SYSTEM • ISB also has a water harvesting system which is evident in every nook of design as shown in the picture. The sloping glazed chajjas direct rainwater into the drains
  • 94.
    INFERENCES • Rooftop rainwater and surface run off rain water can be collected through collection pipe networks and storm water drains and stored in rain water storage structures. This rain water can be used for irrigation, or can even be used as drinking water after proper treatment. • The collection pipe networks can be gravity fed systems. • The rain water collection structures were designed as social gathering spaces taking inspiration from the vavs (step wells) of Gujarat.[site context] • Dual plumbing system is followed for fresh water and recycled water. • The water tank for fire fighting system never goees dry , even when the fresh water tank does. • The DEWATS system is a very efficient and eco friendly way to treat water. It can be incorporated in the design if enough space is available. • Installation of Bio gas plants ,compost pits and segregation of waste at the source deals with solid waste management. • Water efficiency initiavtives such as water efficient fixtures,waterless urinals,solar water heaters,passive down draft cooling [suitable for hot and dry climates] can be implemented. • Water recharge ponds - natural or man made have to be retained. • Vegetation to prevent runoff of rain water and to recharge the ground water tables has to be planted. • Steps to increase the ground water levels - such as retaining natural ground ,vegetation, natural ponds - have to be taken.
  • 95.
  • 96.
    Design Requirements forElectrical Rooms 1. Electrical Rooms’ geometry, location in the building, access and construction must be considered early at the Design Stage in order to limit: • Noise transmission to other spaces. • Vibration transmission to other spaces. • Conflicting circulation with the other users of the building. 2. Distribution of Electrical Rooms: • Transformer vaults and switchgear rooms shall be located as far away as possible from program spaces (e.g. data server rooms, computer laboratories, etc.) for avoiding Electric Magnetic Field disturbances. • Transformer vaults must remain free of other systems not associated with electrical distribution systems. • Transformer vaults shall be located as close as possible to the building’s service entrance. • Main distribution with switchgear shall be designed in a separate room if possible. 3.Electrical panels: • Minimum of one (1) panel per floor; this panel shall serve only that floor. • There shall be no feed-through or riser panels; individual feeds to each panels are required. • Elevator equipment rooms and shafts shall be exclusive to this usage and therefore not be used for other electrical distribution.
  • 97.
    4 . Walls: •Concrete or concrete blocks are preferred. • Gypsum boards can be used for distribution closets and rooms with dry transformers. • Walls shall be painted; they cannot be left unfinished, nor simply primed. • Specify a (3) hours fire resistance for rooms with transformers using dielectric liquids. 5.Ceilings: • Exposed structure (no ceiling). • Ceiling shall be painted. • Gypsum board insulated assembly can be used in room where sound attenuation is a concern. 6. Doors: • Standard height double doors are preferred. Doors dimensions shall always accommodate the biggest piece of equipment to be moved-in/moved-out of the electrical room. • Width shall be as dedicated by Codes and equipment requirements (minimum 915mm). • Specify metal kick plate on push of doors. • Specify Card Reader Access. • Doors shall be fire rated as per Codes requirements. 7. Electricity: • All lighting shall utilize energy efficient fixtures, refer to section 26 50 00 for specific requirements. • Lighting shall be switched at each door to the room. Light switches shall be easy to reach when entering the room.
  • 98.
    • Electrical roomsmust also have properly-sized entrances/exits, which must be kept clear from obstructions at all times. • If service capacity is greater than 1200 Amperes, the following requirements apply: • Two exits must be provided. • Doors located less than 25 feet from working space must open in the exit direction, and must be openable with simple pressure (panic hardware). • For installations where the service entrance is above 1000 kVA, at least 7 feet of clearance are required between different pieces of equipment. • Between the equipment and walls, 5 feet of clearance are required as a minimum.
  • 99.
    • After thestage of estimating electrical loads and determining the initial number of electrical panels will be used, the Electrical Panel Board Room dimensions will be estimated by the following steps: • Step#1: The dimensions of the electric panels are estimated either from previous projects or in accordance with the catalogs of the manufacturers. • Step#2: After determining the number of electricity boards and their approximate dimension, the working space should be taken into consideration. According to NEC Cod minimum depth of working space is: ELECTRICAL ROOMS DIMENSIONS:
  • 100.
    Dimensions of transformerroom depend on: 1- The project country and the specifications of the installation according to the electricity company. Room dimensions must be approved from electrical company first. 2 - Is there are any low voltage or medium voltage panels in the transformer room or not? For indoor substation "1 transformer "
  • 101.
    For indoor substation"1 transformer with HV switch-gear " For indoor substation "2 or 3 transformer "
  • 102.
    The dimensions ofGenerator room can be found Easier, through manufacturer catalogs, for example: by using Cummins catalog:
  • 103.
  • 104.
     A controlroom's purpose is production control, and serves as a central space where a large physical facility or physically dispersed service can be monitored and controlled.  Surveillance rooms are used at lot of places for security purposes like airports, data centers, colleges , traffic areas etc. Design:  The design of a control room incorporates ergonomic and aesthetic features including optimum traffic flow, acoustics, illumination, and health and safety of the workers.  Ergonomic considerations determine the placement of humans and equipment to ensure that operators can easily move into, out of, and around the control room, and can interact with each other without any hindrances during emergency situations; and to keep noise and other distractions to a minimum.
  • 105.
     creating initialmarkings on the floor and on walls to show where objects like monitors and desks will fit may serve as a good indicator as to the kind of free space.  Getting an idea of the sight lines for any video walls and make sure you can comfortably see them without straining or leaning around objects or desk furniture. Light required: light can be a factor which can make or break the effectiveness of a surveillance control room. Sunlight can reflect off monitors, and bright strip lights can cause eye fatigue at night. Lighting levels in general should be much lower than typical office lighting. If possible, having some controlled natural light available is also useful as its typically a more subtle and less irritating light source for operators. Any windows should have easy to control blinds, with frosting considered depending which direction they face. lighting should fall into the region of 200-300 lux. Line of sight: Personnel in surveillance control rooms may find themselves looking up at large monitors regularly, so it’s essential that important line of sights are clear.
  • 106.
    IMAGES SHOWNG VARIOUSVISION FIELDS AND LINE OF SIGHT FOR MONITORS.
  • 108.
    Arrangement of display monitors:  Arrangement of monitors and workspace plays a keyrole in the effective operation of surveillance rooms. • As for wall mounted monitor displays, ensure that they are positioned and angled correctly so that the risk of glare and reflection can be reduced.
  • 109.
    Different layouts ofsurveillance rooms: CENTRALIZED CONTROL ROOM LAYOUT.
  • 110.
  • 111.
  • 112.
    IIT Gandhinagar- India’sfirst campus to receive a five-star GRIHA LD rating Optimization of Energy • In comparison to GRIHA LD base buildings, the campus is 46% more energy efficient. • The energy optimization is gained by reducing heat gain or increasing cooling in the campus. • The architects opted for fly ash bricks for the construction which generates the lowest heat gain. • Fly ash bricks were used in the cavity walls and outside walls of the campus buildings. Exclusive use of exposed concrete and grit plaster is done externally. The central court called- Samvad court (court of ‘kites in the sky’) uses an interesting concept of perforated shade. An interesting play of light and shadows can be observed in space.
  • 113.
    • A PassiveDowndraft Evaporative Cooling(PDEC) technique using a mist pump has been adopted for the dining hall. • It helps reduce the indoor temperature with hardly any energy consumption. Academic Complex Building 7 uses a combination of a PDEC mist pump, a night purge system, and a cavity wall system. Jali screens have been provided to reduce glare in housing buildings. • The use of various passive cooling techniques is seen throughout the campus. All these techniques help to cope with the harsh summers in this region. • A building monitoring system(BMS) is installed to manage cooling strategies. • In the case of street light 85% more energy efficiency is observed. • Street lights designed here meet the minimum lighting requirement, installed with automatic switches.
  • 114.
    Solar carport • The campusdemands approximately 1MW of energy, of which the solar carport and the rooftop solar panels together can provide 500kWp. • The 90 vehicles carport is created to facilitate safe parking space on the campus. This is the first and one of a kind facility in the region paving a path for future adaptations of the same model.
  • 115.
    5. Sustainable transport • Siteplanning has been done to improve walkability in the campus through continuous and universally accessible footpaths. • A green transportation mode is provided on the campus by two CNG-based vans that drive several times a day between the housing block and the Academic Complex. • Electric charging facilities are provided for more than 10% of the total car and two-wheeler parking slots. A ‘Sustainable Cycle Pooling Initiative’ for students, staff, and faculty exists on the campus. IIM kolkata is another campus which is leading towards net-zero waste management: • “At Joka, we not only want to be net-zero, but net-positive. • By this, we mean to produce more energy than we consume. We have a 135-acre campus and huge resources of water from lakes. We are keen on solar energy plants. • Additionally, the lakes can be used as a heat sink and help as cooling towers for air-conditioning plants, thereby reducing air-conditioning heat output. • By using variable refrigerant flow (VRF) air-conditioners, we can not only reduce our energy consumption but also save 30% of it,” he said. • The water we will generate will be used in washrooms, air-conditioning and horticulture, among others. We will also focus on a sewage treatment plant at Joka. • We will get manure from it, which will allow us to produce fuel and electricity, not just on campus but also to
  • 116.
    B A RR I E R F RE E D E SI G N
  • 117.
    What is aBarrier-Free Environment? • A barrier-free environment is a space that allows for free and safe movement, function and access for all or a set of services that can be accessed by all, without obstacles, with dignity and with as much independence as possible. Who all face barriers? • Persons with disabilities for whom barriers become major obstacles like, • Non-Ambulatory disabilities : Impairments that, confine individuals to wheelchairs. • Semi-Ambulatory disabilities : Impairments that cause individuals to walk with difficultyor insecurity using braces or crutches. • Sight disabilities : Total blindness or impairments affecting sight to the extent. • Hearing disabilities : Deafness or hearing handicaps. Universal Design or Design for All • Throughout the world it is being realized that there need not be an exclusive design effort to suit the needs of people with differences. One proper design, which keeps in mind all the requirements, can work forall.
  • 118.
    NON- AMBULATORY DISABILITIES • Personsrestricted on wheel chair should use the facilities within the built environment independently without a helper’s assistance. However, wheelchair design must assume that the user should be able to operate the wheelchair without help.
  • 119.
    • When planningspaces in buildings to cater for wheelchair turning, a guide is to impose on the plan a circle of 1500 mm diameter, wheel to wheel, is 450 - 500mm. The fixed turning radius, front structure to rear structure, is 785 mm. • The maximum high forward reach allowed shall be 1200 mm. The minimum low forward reach is 400 mm. • If the high forward reach is over an obstruction500 mm deep the reach and clearances shall be 1100 mm from floor. • Parallel approach by a person in a wheelchair, the maximum high side reach allowed shall be 1300 mm and the low side reach shall be no less than 250mm above the finished floor. • The average unilateral vertical reach is 1500 mm and ranges from 1350 to 1 600 mm. • The average turning spaces required is 1800 x 1800 mm. In case a corridor, a minimum of 1350 mm between two walls would permit a 360 degree turn. minimum width of 1650 mm, preferably 1800 mm, is required for two individualsin wheelchairs to pass each other.
  • 120.
    • The comfortablereach zone when seated on a wheelchair is between 900 mm and 1200 mm.The maximum reach zone is between 1200 mm and 1400mm.
  • 121.
    SEMI- AMBULATORY DISABILITIES • Personsin this category who use walking aids such as crutches or canes. The persons in this category include those who can not walk without a cane and those who have some trouble in their upper or lower limbs although they can walk unassisted. • When walking with a normal gait, the distance between crutch tips ranges from 760 to 840 mm depending on the height of the person. • The radial range of the white cane is a band 900 mm wide.
  • 123.
    SPACE ALLOWANCES TYPE OF THEBUILDING MINIMUM PROVISIONS 1. Single detached, single dwellingunits. A minimum of 2 per cent of the total number of units to be constructed with barrier-free features. 2. Staff housing, multiple dwelling , high - rise dwellingunits and tenements A minimum of 1 unit for every 25 units, whereafter 1 additional unit for every 100 units should be accessible.The main entrances and exits must be accessible. 3. Post offices, banks and financial service institutions A minimum of 1 lowered service counter on the premises. A minimum of 1 lowered ATM. 1 cash disbursementpoint on the premises. Stamp vending machine. 4. Food centres A minimum of 1 table without stools or seats attached to the floor for every 10 tables. A minimum of 2 tables without stools or seats attached to the floor for the whole
  • 124.
    TYPE OF THEBUILDING MINIMUM PROVISIONS 5. Community centers , village halls, auditorium, concert halls, assembly halls, cinemas, theatres and other places of public assembly. Accessible entrances, exits, aisles and main community or public gathering areas. Accessible toilet facilities should be near by. Seating for persons with disabilities should be accessible from main entrances and lobbies. Various seating/viewing choices to be provided for persons in wheelchairs throughout the main seating area. A minimum of 2 wheelchair spaces for a seating capacity of up to 100 seats and 4 wheelchair spaces for seating capacity from over 100 to 400 seats.
  • 125.
    • Public walksshould be at least 1200 mmwide and should have a gradient not greater than 1:20. • Ramps with Gradients - a slope not greater than 1:20 or maximum of 1:12 for short distance up to 9000 mm. • A ramp shall have handrailson at least one side, and preferably two sides, Handrails @ 900m high (adults) , 760mm high (children) level platforms @ for every 10m- 12m @ 1.5m min. at turnings @ 1.8m long at top& bottom ends of ramp Projections @ 300mm on either sides of handrail Kerb @ 50mm high on exposed side oframp DESIGN CONSIDERATIONS
  • 126.
    • Doors andDoorways for any type ofdoors the clear width should be 900 to 1000 mm, Kick plates @ 400mm from floor Horizontal/vertical handles @ 300mm in length & 800mm high from floor • A corridor should have a width of at least 1200 mm to allowa 90 degree turn to be made through a door. • Windows , sill should not be greater than 800mm and window controls should be in 900mm to 1200 mm from the floor.
  • 127.
    • Elevators havetwo kinds vertical movement & inclined movement • lifts - opening of car @ 900mm min. inner dimensions @ 2000mm x 1300mm min. call buttons @ b/w 900mm - 1200mm handrails inside @ 800mm – 900mm high clear landing area @ 1500mm x 1500mm • Inclined Movement Platform Lifts - It consists of three elements: a railing, anelectric generator and a moving platform or a seat. • This type of lift can be installed along the stair wall leaving 900 mm clear width.
  • 128.
    • Desk forwheelchair users, a section should be @ 750mm – 900mm Unobstructed knee space @ 600mm – 650mm The utilization space of 1500mm x 1500mm Free passage @ 900mm min. • Counter section of Cafeteria @ 900mm passage way @ 900mm min. preferable 1200mm Hostel furniture 1.Table Height – 700mm -800mm high with at least 600mm of knee clearance. 2. Beds- Bed height from floor 450mm - 500mm. 3.Desk clear floor space: 700mm x 1200mm clear 4.Bed transfer space: Clear transfer space should be in between 750mm - 1200mm from a wheelchair to the bed.
  • 129.
    • A clearfloor space at least 750 mm x 1200 mm. • shelves shall be a maximum of 1250 mm above FFL. • Clothes rods 1200 mm above the finished floor level and depth must not exceed 500 mm from the user. Storage Toilet • Internal dimensions notless than 1500 mm x 1500 mm. • Top edge of the toilet seat should be 500 mm high. • Wall hung type not more than 430 mm from the floor vertical grab-bars on either side 900 mm to 1500 mm above FFL. • Top edge of washbasin must be between 800 mm - 850 mm.
  • 130.
    Number of seatsin a seating area Number of required spaces for wheelchair users up to 600 6 i.e. 1/100 up to 1000 6 + 2 over 1000 8+1 for each additional increment of 1000 seats Library • Book stack areas should have aisles preferably 1650mm wide, or a minimum of 900mm wide, • Study tables, with clear knee space of at least 700mm high. Auditoriums • Accessible seating should be distributed and integrated throughout seating areas of conference rooms . • A foldable wooden ramp of 1: 12 ratio should beprovided.
  • 131.
    Sports /Recreationarea • Controlledaccess points/mechanical gate should be designed to accommodate the free movement of wheelchairs. The width of such gate should be minimum 915 mm wide. • Seating height for bench, not more than 450mm high. • Walking more than 200m and standing for more than 10 minutes is difficult for persons therefore seating has to be provided wherever people may have to rest along the circulation path. Parking • Accessible parking spaces shall be at least 2400 mm wide. • Passenger loading zones shall provide an access aisle at least 1500 mm wide and 4800 mm long adjacent and parallel to the vehicle pull-up space. • Vehicle standing spaces and access aisles shall be level with surface slopes not exceeding 1:50 in all directions.
  • 132.
    SAFETY MEASURES • Walksor driveways should have a non-slip surface. • Finishes of floor surface with non slip floormaterial. • Installation of handrail to support the body weight at the critical places e.g. staircase, toilet, ramp, passage • To prevent a cane or crutch tip from slipping off the side of the stairs or ramp, install a 20 mm high lip on the exposed edge. • Care should be taken that the extension of the handrails is not in itself a hazard. Extension up to 300 mm may be made on the side of a continuingwall. • Walks of near maximum grade and considerable length should have level areas at intervals for purposes of rest and safety. • The surfaces of the concrete ramps can be made non-skid by brooming the surface or by finishing with an indenting roller. • Raised thresholds for doorways should be avoided if provided it should not be greater than 25mm and rubber thresholds are preferable. • For people with hearing disabilities rooms should be acoustically well insulated. They may rely on lip reading so good overall lighting which is non-reflective to be designed. • Sight disabilities, marking with the use of color, illumination and, in certain cases, the texture of material to aid the identification of doors, stairs, ramps, passage ways, skirting boards, etc. Unwanted mirroring affects and reflections may be avoided which causes extra glare.
  • 133.
  • 134.
    CREATIVECOMBINATIONOFRAMPSANDSTAIRS Theidea of blendingramps and stairs together appears, on the surface, to be a great approach to universal design. It provides for visually appealing stairs while including aramp. But the implementation of that idea leaves alot to be desired from an accessibility and safety point of view. Someof the problems with these ramps are • step colours • handrails • no flat landing • steep ramp • long ramp without abreak • risers merging intoramp • Theseproblems have to be taken into consideration while taking inspiration from these stairs +ramp combination. Otherwise it would just make avisually stunning but very unsafeand inaccessible design.
  • 135.
    UNIVERSALDESIGN • Hazelwood Schoolby Alan Dunlop Architect Limited, Glasgow • Glasgow’s Hazelwood School was designed to provide blind and deaf students with the same educational resourcesas their peers.Alan Dunlop came up with an ingenious design—acork-clad trail rail wall, which provides signifiers and tactile cues to guide students around the school. Weaving throughout the school, the sensorywall helps students master their mobility and orientation skills. Alot of universities allow only bicycles inside the campus. Thisdesign of addinga smallramp next to the stairs makesit easier for the users to carry around their bicycles through thecampus.
  • 137.