ASU – Ain Shams University
Faculty of Engineering
Department of Architectural Engineering
ARC 122: History & Theory of Architecture
Fall 2017
Instructor: Dr. Yasser Mahgoub
Lecture 8 - Ancient Egyptian
Graphic History of Architecture
Egyptian Civilization
• Egypt and Mesopotamia are the earliest
known recorded civilizations.
Egyptian Civilization
• Ancient Egypt is one of the most influential
civilizations throughout history, which
developed a vast array of diverse structures
and great architectural monuments along the
Nile, including pyramids and temples.
• Nile River was the driving force for ancient
Egypt.
Characteristics
• Landscape
– Nile Valley cliffs provided a rich assortment of
building stone
• Varieties include sandstone, granite, and alluvial clay
for bricks
Characteristics
• Water was an essential ingredient for
the Egyptian Life. Egypt is the gift of
the Nile as revealed by Herodotus 484
BC.
• The Egyptian nation was shaped by
the Nile.
• Engineers learned to survey, to level
and to organize large working groups.
• The Nile acted as a transportation
means for different building
materials.
• The chariot was introduced later in the Egyptian
Civilization.
Characteristics
• Due to the scarcity of wood, the two
predominant building materials used in
ancient Egypt were sun-baked mud brick and
stone, mainly limestone, but also sandstone
and granite in considerable quantities.
Characteristics
• From the Old Kingdom onward, stone was generally
reserved for tombs and temples, while bricks were
used even for royal palaces, fortresses, the walls of
temple precincts and towns, and for subsidiary
buildings in temple complexes.
Ancient Egyptian house models, Museé du Louvre, Paris, France. Models of houses
were often buried in Egyptian tombs to help give the souls of the dead a place to call
home in the afterlife.
Ancient Egypt
The Egyptian history is divided to
three kingdoms:
1. The Old Kingdom. From the
1st to the 8th dynasties (2920-
2134 BC). The era of the
Pyramids
2. The Middle Kingdom. From
11th to the 13th dynasties
(2040-1640 BC). The era of life
and death. The synthesis
between temples and tombs
3. The New kingdom from 18th
to the 20th dynasties (1550 –
1070 BC). The era of temples
Old
• 1st to the 8th D.
• 2920 BC - 2134 BC
Middle
• 11th to the 13th D.
• 2040 BC - 1640 BC
New
• 18th to the 20th D.
• 1550 BC – 1070 BC
Characteristics
• The history of Egypt begins in
the year 3000BC, by the union
of the Lower and Upper parts
of Egypt by king Menes who
established his kingdom in
Memphis. He was represented
by Falcon Headed God Horus.
• When the pharaoh dies he is
identified as Osiris the lord of
the Underworld, and his
successor resumes his role as
the new Horus.
Characteristics
• The Egyptian Theology links Horus
with Osiris and The God of the Sun
RA, whose is symbolized by the Sun.
• The pyramid shape on the top of the
obelisk or the pyramid itself
represents this linkage between life
and death, between up and down
and finally between the underworld
and the upper world.
The Seated Scribe
• About 4,600 years old.
• Very informal sculpture, not rigid.
• Not a king, but extremely important
because he could write.
• Meant for the interior of a tomb –
the afterlife.
• The sculpture was discovered in
1850 and dated to the period of the
4th Dynasty, 2620–2500 BCE. It is
currently part of a permanent
collection of Egyptian antiquities in
the Louvre Museum in Paris.
Egyptian Civilization
• Egyptians were obsessed with the afterlife and
the dead. These beliefs had a great impact on
the culture and its architecture.
The Book of the Dead
Book of the Dead
• Modern name of an ancient
Egyptian funerary text.
• Text consists of a number of magic
spells intended to assist a dead
person’s journey through the
underworld and into the afterlife.
• The deceased was required to
pass a series of gates, caverns and
mounds guarded by supernatural
creatures.
The Old Kingdom:
The Era of Pyramids
The Old Kingdom: The Era of Pyramids
• Mastabas:
• It is the earliest tom forms.
• They were built as eternal homes. They were built from
durable materials like bricks while retaining characteristic
details of living like bundle reed columns that connect life
with death in architecture.
• Mastabas
– First known Egyptian tombs
– Bench-shaped masses rising above 10 M.
– Composed generally of sun-baked mud brick
– Featured sloping walls and a flat roof
– Burial chamber usually was surrounded by storage
rooms used to store goods for the deceased to
take along their journey in the afterlife
The Old Kingdom: The Era of Pyramids
The Old Kingdom: The Era of Pyramids
• Mastabas:
• The basic design of a Mastaba is
a block like structure above the
ground level containing a small
room for offerings with a
statue of the deceased in this
room.
• There is a tunnel in this room
called a Serdab that leads to the
underground where the kings’
mummy rests in it.
• Mastabas
– Serdabs
– State chambers that featured
an statue of the deceased
– False doors were included to
allow for the soul of the
deceased to escape the
structure
– Mastabas served as a model
for the later Egyptian
pyramids
The Old Kingdom: The Era of Pyramids
Map of the Giza Plateau, showing the mastabas constructed within the complex
The Old Kingdom: The Era of Pyramids
The Old Kingdom: The Era of Pyramids
• From Mastaba to Pyramids:
• Mastabas were enlarged to form a pyramid.
• Pyramids symbolized a lifting skyward trend of the
Pharos’s body from the earth to the sky.
• The pyramid form represented an upward sloping form
whose peak caught the sun rays of the morning.
The First Known Architect in History
The First Known Architect in History
Imhotep:
• The very first architect in
history was Imhotep.
• As one of the officials of
the Pharaoh Zoser, he designed
the Pyramid of Zoser (the Step
Pyramid) at Saqqara in Egypt in
2630 – 2611 BC.
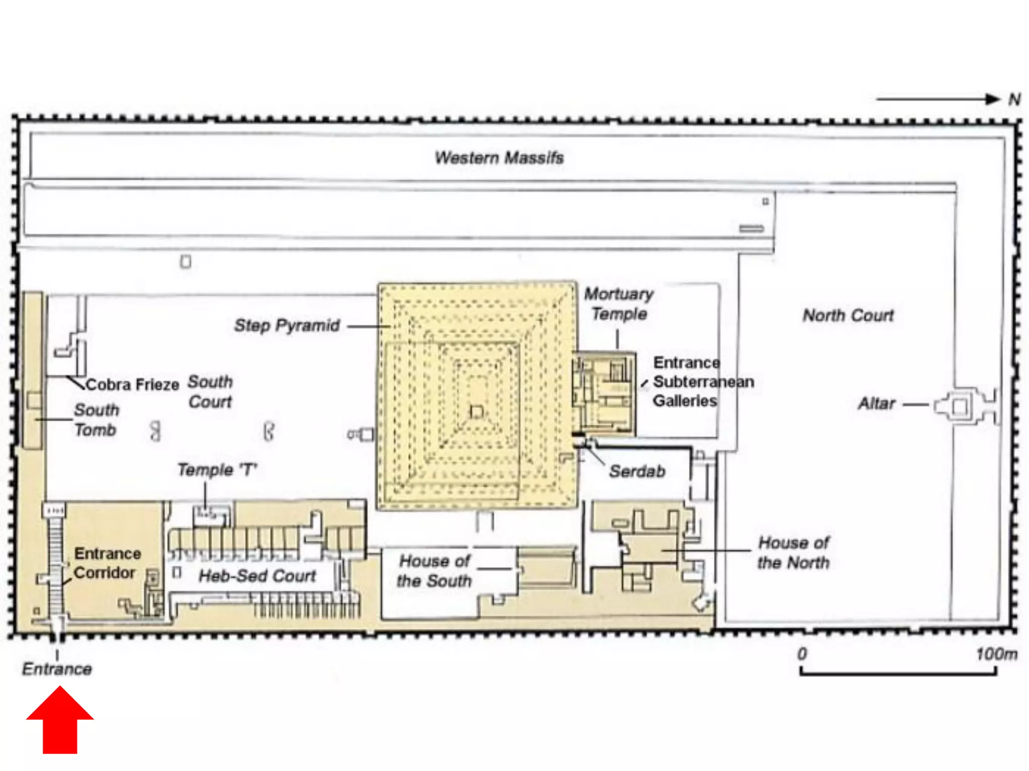
The Old Kingdom: The Era of Pyramids
Imhotep:
• He is credited for designing the
first funerary complex at Saqqara,
the first stone construction in
Egypt.
• He may have been responsible for
the first known use of columns in
architecture.
Old Kingdom Architecture: Saqqara
The Stepped Pyramid:
• It began in its original design as a mastaba and was raised to
six stepped pyramid in the sky.
• The pyramid was covered by lime stone; while the whole
complex represented the earthy palace of Imhotep on earth.
Old Kingdom Architecture: Saqqara
The Stepped Pyramid:
• It is a rectangular form covering 35 acres and surrounded by a wall
of 10 M (33 feet) high with only one entrance, that leads to a
narrow colonnaded processional hall.
• At the end of the colonnaded way one enters a great central court
that is dominated by Zoser stepped pyramid that rises 60 M (197
feet) above the ground level on a 121 M (397ft) X 109 M (358 ft)
base.
Old Kingdom Architecture: Saqqara
• Saqqara
– Enormous funerary complex built by the Great
King Zoser in 2750 B.C.
– Key features:
• Residence for the king in the afterlife (tomb)
• Replica of the royal palace
• Stage for the enactment for the rituals of kingship
Old Kingdom Architecture:
Saqqara
• Saqqara
– Designed by Imhotep
• The first recorded architect in history
• Would later be considered a god by the Egyptians
– First conceived as a mastaba with huge stone
blocks
• Unlike earlier mastabas which used mud-bricks
Old Kingdom Architecture:
Saqqara
• Saqqara
– The complex was repeatedly enlarged over time
• Layers were added in an upward fashion
– These additions by Imhotep eventually created
the first Egyptian pyramid
• Step pyramid
– Differs from the geometrically perfect pyramids (i.e. the Great
Pyramids)
– Successive layers of smaller structure added upwards
Old Kingdom Architecture:
Saqqara
• Saqqara
– Stands 204 ft. , present day
– Surrounded by a 33 ft. high wall
– Entrance Hall
• Columns are used to imitate the bundles of reeds found
along the Nile
• Real reeds were commonly used to construct
residential structures during this time
Old Kingdom Architecture: Saqqara
Old Kingdom Architecture: Saqqara
Old Kingdom Architecture: Saqqara
Old Kingdom Architecture: Saqqara
Old Kingdom Architecture: Saqqara
The Stepped Pyramid:
• All columns were covered by reeds in stone and papyrus as a
literal connection between life and death.
The Old Kingdom: The Era of Pyramids
The Evolution of Pyramids.
1. Stepped Pyramid at Saqqara
2. Snefreu Pyramid at Meidum. Pyramid began as a stepped core of 7
steps which was transformed as a true pyramid by adding an outer
layer to the steppes. Due to its steep inclination the outer layer
collapsed.
Old Kingdom Architecture:
Pyramid at Medum
• Pyramid at Medum
– c. 2704 – 2656 B.C.
– Demonstrates Egyptian attempts at building a steeped,
rather than stepped pyramid
• Geometrically perfect pyramid
• Requires at least a 52° angle from the horizontal
– Outer layers were insufficiently supported
• Gave way to the immense pressure
The Old Kingdom: The Era of Pyramids
The Evolution of Pyramids.
3. Dahshur Pyramid. It is named the bent pyramid and have a
smaller inclination of 41 degrees to prevent its collapse as in
Senefru pyramid. Its stability is gained from the reduction of
its inclination and strong lime stone covering of the exterior.
The Old Kingdom: The Era of Pyramids
The Evolution of Pyramids.
4. The true pyramid at Giza is an example of a 4th
dynasty pyramid. It is designed on a true base of 230 M
(755 ft x 755 ft) with an inclination of 51 degrees. Its
height is 146 M (481 ft) above the ground level.
Old Kingdom Architecture:
Khufu’s Pyramid at Giza
• Pyramid at Giza
– The first successful steep pyramid
– Created by the great pharaoh Khufu (Cheops in
Greek)
– Also known as the Great Pyramid
– Originally 482 ft. high on a plan of 760 ft.
– Modern scientists remain puzzled on its
construction
Old Kingdom Architecture:
Khufu’s Pyramid at Giza
• Khufu’s Pyramid at Giza
– Grand Gallery
• Grandiose passage leading from the entrance to the
King’s Chamber
• Originally intended to be used only once, for the king’s
burial
The Old Kingdom: The Era of Pyramids
The Evolution of Pyramids.
4. The true pyramid at Giza
It has three burial chambers. The roughly finished one represents the
underworld and lies underground. The middle room is the tunnel that
finally leads to the third burial room of Cheops these chambers have
ventilating shafts connected to the exterior.
Old Kingdom Architecture:
Khufu’s Pyramid at Giza
Old Kingdom Architecture:
Khufu’s Pyramid at Giza
• Khufu’s Pyramid ‫خوفو‬
– Many scientists theorize
its massive stone blocks
were quarried and
transported by large
sleds and barges
– Blocks were then lifted
atop ramps to be placed
at higher levels
Old Kingdom Architecture:
Khufu’s Pyramid at Giza
• Khufu’s Pyramid at Giza
– Queen’s Chamber
• The original burial place
• Located underground, beneath the Great Pyramid
– King’s Chamber
• Replaced the original chamber
• Constructed within the pyramid itself
• Considered one of the finest examples of megalithic
architecture in existence
Old Kingdom Architecture:
Additional Giza Structures
• Chefren ‫خفرع‬
– Followed the Great
Pyramid in construction
• c. 2530 B.C.
• Built for the pharaoh
Chefren
• Smaller than the Great
Pyramid
Old Kingdom Architecture:
Additional Giza Structures
• Mycerinus ‫منقرع‬
– Built after Chefren’s
Pyramid
– c. 2500 B.C.
– The last of the large
Egyptian steep pyramids
The Old Kingdom: The Era of Pyramids
• Pyramids as burial places continued to be built all through the 4th
dynasty in Egypt. Many questions were posed on how they were
built in spite of the available technologies at that time. Egypt lacked
metals harder than copper and they used no wheel based
transportation.
– The construction of the pyramid was done during the flood season
where agriculture was completely impossible.
– Ramps as a means of transportation were erected by sides of the
rising pyramids to move rocks uphill.
– The rising of the pyramid core was used as a construction staircase
that was used to pull and level the building blocks on to the upper
levels.
– All pyramids were considered as tombs and burial places for Egyptian
Pharos.
– All Egyptian art and architecture was designed to assist and support
the concept of the after death and one's passage to the next world.
The Old Kingdom: The Era of Pyramids
• The 4th dynasty finalizes
the pyramid era and the
beginning of the priest
cult and the emergence
of the sun god as an
emblem and ruler of
Egypt.
The First Intermediate Period
The First Intermediate Period
• After the collapse of the Old Kingdom,
Egypt entered a period of weak
Pharaonic power and decentralization
called the First Intermediate Period.
• This period is a period of unrest and
upheavals. The capital was relocated
from Memphis to Thebes.
• The Pharaoh's role was shifted from a
divine ruler and representative to a
secular one.
• Tombs were also very important with
a low finishing quality.
The Middle Kingdom
The Middle Kingdom. The Era of Life and Death.
The Synthesis Between Temples and Tombs
• Examples is the tomb Mentuhotep II at the Deir
el Bahary. It is an example of architectural
innovation. It combines both temple and tomb
design, style and character in one single whole.
The Middle Kingdom. The Era of Life and Death.
The Synthesis Between Temples and Tombs
Deir el Bahari
The complex is approached axially with two levels
of columns surrounding a masonry mass, long
thought to be a pyramid in the middle.
• This central axis continues through the hypostyle
hall then to the burial vault carved in the cliff.
• This integration between life and death issues
and ideas (burial chambers and the concept of
procession and movement) is what distinguishes
the 2nd kingdom of Egyptian architecture.
The Middle Kingdom. The Era of Life and Death.
The Synthesis Between Temples and Tombs
• This synthesis is relevant in:
– Axially designed Temple
– Hypostyle hall
– Burial Chamber
– Ramps and stepped designs echoing Hatshepsut's
temple 400 years later.
Middle and New Kingdom:
Characteristics
• Egyptian tombs return to below the ground
– Many tombs begin to appear in the cliffs of the
Nile Valley.
• Builders decide to sacrifice the
monumentality of tombs for security from
grave robbers.
– Shaft tombs
• Long, underground corridors and chambers hollowed
out of Nile Valley cliffs
• Little architectural significance
Tomb of Rameses V/VI
The Middle Kingdom. The Era of Life and Death.
The Synthesis Between Temples and Tombs
• Another example is Beni Hassan tombs that were
cut through rock cliffs that also have a porch and
a hypostyle hall.
• In these tombs are a replication of living space
besides burial chambers.
• Stone was carved to imitate a non-stone material
(palms, reeds and Lotus plants). This was utilized
as a symbol of the direct connection between life
and death.
• It is a combination between the architecture of
death and the architecture of life.
Middle and New Kingdom:
Beni Hasan
• Beni Hasan
– 125 miles upstream from Giza on the East bank of
the Nile River
– Hollowed out of the Nile Valley cliffs
– Features:
• Colonnaded portico for public worship
• Combined chapel and effigy chamber
Middle and New Kingdom:
Beni Hasan
Middle and New Kingdom:
Mortuary Temples
• Mortuary Temples
– Followed the decline of the pyramids and the
concealment of burial chambers
– Developed into Egypt’s most important
monumental form
– Funerary complexes set before the Old Kingdom
pyramids are some of the most striking mortuary
temples
Middle and New Kingdom:
Mortuary Temples
• Mortuary Temples
– Usually comprised of three interconnected parts:
• A temple near the Nile where the king’s body was
embalmed
• A mortuary temple where rituals were performed
• A long, narrow causeway between thick walls
connecting the two temples
Middle and New Kingdom:
Mortuary Temples
• Temple Complex of Khafre
– One of the most impressive preserved temple complex’s
Photo: Sullivan
Middle and New Kingdom:
Middle Kingdom Mortuary Temples
• The Sphinx
– Represented the god Re-
Harakthe on guard over
the king’s tomb
– Contained an intricately
constructed set of
interiors
Asu history and theory lecture 8-ancient egyptian a 16-12-2017

Asu history and theory lecture 8-ancient egyptian a 16-12-2017

  • 1.
    ASU – AinShams University Faculty of Engineering Department of Architectural Engineering ARC 122: History & Theory of Architecture Fall 2017 Instructor: Dr. Yasser Mahgoub Lecture 8 - Ancient Egyptian Graphic History of Architecture
  • 2.
    Egyptian Civilization • Egyptand Mesopotamia are the earliest known recorded civilizations.
  • 5.
    Egyptian Civilization • AncientEgypt is one of the most influential civilizations throughout history, which developed a vast array of diverse structures and great architectural monuments along the Nile, including pyramids and temples. • Nile River was the driving force for ancient Egypt.
  • 7.
    Characteristics • Landscape – NileValley cliffs provided a rich assortment of building stone • Varieties include sandstone, granite, and alluvial clay for bricks
  • 8.
    Characteristics • Water wasan essential ingredient for the Egyptian Life. Egypt is the gift of the Nile as revealed by Herodotus 484 BC. • The Egyptian nation was shaped by the Nile. • Engineers learned to survey, to level and to organize large working groups. • The Nile acted as a transportation means for different building materials. • The chariot was introduced later in the Egyptian Civilization.
  • 9.
    Characteristics • Due tothe scarcity of wood, the two predominant building materials used in ancient Egypt were sun-baked mud brick and stone, mainly limestone, but also sandstone and granite in considerable quantities.
  • 10.
    Characteristics • From theOld Kingdom onward, stone was generally reserved for tombs and temples, while bricks were used even for royal palaces, fortresses, the walls of temple precincts and towns, and for subsidiary buildings in temple complexes.
  • 11.
    Ancient Egyptian housemodels, Museé du Louvre, Paris, France. Models of houses were often buried in Egyptian tombs to help give the souls of the dead a place to call home in the afterlife.
  • 12.
  • 15.
    The Egyptian historyis divided to three kingdoms: 1. The Old Kingdom. From the 1st to the 8th dynasties (2920- 2134 BC). The era of the Pyramids 2. The Middle Kingdom. From 11th to the 13th dynasties (2040-1640 BC). The era of life and death. The synthesis between temples and tombs 3. The New kingdom from 18th to the 20th dynasties (1550 – 1070 BC). The era of temples Old • 1st to the 8th D. • 2920 BC - 2134 BC Middle • 11th to the 13th D. • 2040 BC - 1640 BC New • 18th to the 20th D. • 1550 BC – 1070 BC
  • 17.
    Characteristics • The historyof Egypt begins in the year 3000BC, by the union of the Lower and Upper parts of Egypt by king Menes who established his kingdom in Memphis. He was represented by Falcon Headed God Horus. • When the pharaoh dies he is identified as Osiris the lord of the Underworld, and his successor resumes his role as the new Horus.
  • 18.
    Characteristics • The EgyptianTheology links Horus with Osiris and The God of the Sun RA, whose is symbolized by the Sun. • The pyramid shape on the top of the obelisk or the pyramid itself represents this linkage between life and death, between up and down and finally between the underworld and the upper world.
  • 19.
    The Seated Scribe •About 4,600 years old. • Very informal sculpture, not rigid. • Not a king, but extremely important because he could write. • Meant for the interior of a tomb – the afterlife. • The sculpture was discovered in 1850 and dated to the period of the 4th Dynasty, 2620–2500 BCE. It is currently part of a permanent collection of Egyptian antiquities in the Louvre Museum in Paris.
  • 20.
    Egyptian Civilization • Egyptianswere obsessed with the afterlife and the dead. These beliefs had a great impact on the culture and its architecture. The Book of the Dead
  • 21.
    Book of theDead • Modern name of an ancient Egyptian funerary text. • Text consists of a number of magic spells intended to assist a dead person’s journey through the underworld and into the afterlife. • The deceased was required to pass a series of gates, caverns and mounds guarded by supernatural creatures.
  • 22.
    The Old Kingdom: TheEra of Pyramids
  • 23.
    The Old Kingdom:The Era of Pyramids • Mastabas: • It is the earliest tom forms. • They were built as eternal homes. They were built from durable materials like bricks while retaining characteristic details of living like bundle reed columns that connect life with death in architecture.
  • 24.
    • Mastabas – Firstknown Egyptian tombs – Bench-shaped masses rising above 10 M. – Composed generally of sun-baked mud brick – Featured sloping walls and a flat roof – Burial chamber usually was surrounded by storage rooms used to store goods for the deceased to take along their journey in the afterlife The Old Kingdom: The Era of Pyramids
  • 25.
    The Old Kingdom:The Era of Pyramids • Mastabas: • The basic design of a Mastaba is a block like structure above the ground level containing a small room for offerings with a statue of the deceased in this room. • There is a tunnel in this room called a Serdab that leads to the underground where the kings’ mummy rests in it.
  • 26.
    • Mastabas – Serdabs –State chambers that featured an statue of the deceased – False doors were included to allow for the soul of the deceased to escape the structure – Mastabas served as a model for the later Egyptian pyramids The Old Kingdom: The Era of Pyramids
  • 27.
    Map of theGiza Plateau, showing the mastabas constructed within the complex The Old Kingdom: The Era of Pyramids
  • 32.
    The Old Kingdom:The Era of Pyramids • From Mastaba to Pyramids: • Mastabas were enlarged to form a pyramid. • Pyramids symbolized a lifting skyward trend of the Pharos’s body from the earth to the sky. • The pyramid form represented an upward sloping form whose peak caught the sun rays of the morning.
  • 34.
    The First KnownArchitect in History
  • 35.
    The First KnownArchitect in History Imhotep: • The very first architect in history was Imhotep. • As one of the officials of the Pharaoh Zoser, he designed the Pyramid of Zoser (the Step Pyramid) at Saqqara in Egypt in 2630 – 2611 BC.
  • 36.
    The Old Kingdom:The Era of Pyramids Imhotep: • He is credited for designing the first funerary complex at Saqqara, the first stone construction in Egypt. • He may have been responsible for the first known use of columns in architecture.
  • 37.
    Old Kingdom Architecture:Saqqara The Stepped Pyramid: • It began in its original design as a mastaba and was raised to six stepped pyramid in the sky. • The pyramid was covered by lime stone; while the whole complex represented the earthy palace of Imhotep on earth.
  • 38.
    Old Kingdom Architecture:Saqqara The Stepped Pyramid: • It is a rectangular form covering 35 acres and surrounded by a wall of 10 M (33 feet) high with only one entrance, that leads to a narrow colonnaded processional hall. • At the end of the colonnaded way one enters a great central court that is dominated by Zoser stepped pyramid that rises 60 M (197 feet) above the ground level on a 121 M (397ft) X 109 M (358 ft) base.
  • 41.
    Old Kingdom Architecture:Saqqara • Saqqara – Enormous funerary complex built by the Great King Zoser in 2750 B.C. – Key features: • Residence for the king in the afterlife (tomb) • Replica of the royal palace • Stage for the enactment for the rituals of kingship
  • 42.
    Old Kingdom Architecture: Saqqara •Saqqara – Designed by Imhotep • The first recorded architect in history • Would later be considered a god by the Egyptians – First conceived as a mastaba with huge stone blocks • Unlike earlier mastabas which used mud-bricks
  • 43.
    Old Kingdom Architecture: Saqqara •Saqqara – The complex was repeatedly enlarged over time • Layers were added in an upward fashion – These additions by Imhotep eventually created the first Egyptian pyramid • Step pyramid – Differs from the geometrically perfect pyramids (i.e. the Great Pyramids) – Successive layers of smaller structure added upwards
  • 44.
    Old Kingdom Architecture: Saqqara •Saqqara – Stands 204 ft. , present day – Surrounded by a 33 ft. high wall – Entrance Hall • Columns are used to imitate the bundles of reeds found along the Nile • Real reeds were commonly used to construct residential structures during this time
  • 45.
  • 46.
  • 47.
  • 48.
  • 49.
    Old Kingdom Architecture:Saqqara The Stepped Pyramid: • All columns were covered by reeds in stone and papyrus as a literal connection between life and death.
  • 51.
    The Old Kingdom:The Era of Pyramids The Evolution of Pyramids. 1. Stepped Pyramid at Saqqara 2. Snefreu Pyramid at Meidum. Pyramid began as a stepped core of 7 steps which was transformed as a true pyramid by adding an outer layer to the steppes. Due to its steep inclination the outer layer collapsed.
  • 52.
    Old Kingdom Architecture: Pyramidat Medum • Pyramid at Medum – c. 2704 – 2656 B.C. – Demonstrates Egyptian attempts at building a steeped, rather than stepped pyramid • Geometrically perfect pyramid • Requires at least a 52° angle from the horizontal – Outer layers were insufficiently supported • Gave way to the immense pressure
  • 53.
    The Old Kingdom:The Era of Pyramids The Evolution of Pyramids. 3. Dahshur Pyramid. It is named the bent pyramid and have a smaller inclination of 41 degrees to prevent its collapse as in Senefru pyramid. Its stability is gained from the reduction of its inclination and strong lime stone covering of the exterior.
  • 54.
    The Old Kingdom:The Era of Pyramids The Evolution of Pyramids. 4. The true pyramid at Giza is an example of a 4th dynasty pyramid. It is designed on a true base of 230 M (755 ft x 755 ft) with an inclination of 51 degrees. Its height is 146 M (481 ft) above the ground level.
  • 57.
    Old Kingdom Architecture: Khufu’sPyramid at Giza • Pyramid at Giza – The first successful steep pyramid – Created by the great pharaoh Khufu (Cheops in Greek) – Also known as the Great Pyramid – Originally 482 ft. high on a plan of 760 ft. – Modern scientists remain puzzled on its construction
  • 58.
    Old Kingdom Architecture: Khufu’sPyramid at Giza • Khufu’s Pyramid at Giza – Grand Gallery • Grandiose passage leading from the entrance to the King’s Chamber • Originally intended to be used only once, for the king’s burial
  • 60.
    The Old Kingdom:The Era of Pyramids The Evolution of Pyramids. 4. The true pyramid at Giza It has three burial chambers. The roughly finished one represents the underworld and lies underground. The middle room is the tunnel that finally leads to the third burial room of Cheops these chambers have ventilating shafts connected to the exterior.
  • 62.
  • 64.
    Old Kingdom Architecture: Khufu’sPyramid at Giza • Khufu’s Pyramid ‫خوفو‬ – Many scientists theorize its massive stone blocks were quarried and transported by large sleds and barges – Blocks were then lifted atop ramps to be placed at higher levels
  • 65.
    Old Kingdom Architecture: Khufu’sPyramid at Giza • Khufu’s Pyramid at Giza – Queen’s Chamber • The original burial place • Located underground, beneath the Great Pyramid – King’s Chamber • Replaced the original chamber • Constructed within the pyramid itself • Considered one of the finest examples of megalithic architecture in existence
  • 67.
    Old Kingdom Architecture: AdditionalGiza Structures • Chefren ‫خفرع‬ – Followed the Great Pyramid in construction • c. 2530 B.C. • Built for the pharaoh Chefren • Smaller than the Great Pyramid
  • 68.
    Old Kingdom Architecture: AdditionalGiza Structures • Mycerinus ‫منقرع‬ – Built after Chefren’s Pyramid – c. 2500 B.C. – The last of the large Egyptian steep pyramids
  • 69.
    The Old Kingdom:The Era of Pyramids • Pyramids as burial places continued to be built all through the 4th dynasty in Egypt. Many questions were posed on how they were built in spite of the available technologies at that time. Egypt lacked metals harder than copper and they used no wheel based transportation. – The construction of the pyramid was done during the flood season where agriculture was completely impossible. – Ramps as a means of transportation were erected by sides of the rising pyramids to move rocks uphill. – The rising of the pyramid core was used as a construction staircase that was used to pull and level the building blocks on to the upper levels. – All pyramids were considered as tombs and burial places for Egyptian Pharos. – All Egyptian art and architecture was designed to assist and support the concept of the after death and one's passage to the next world.
  • 71.
    The Old Kingdom:The Era of Pyramids • The 4th dynasty finalizes the pyramid era and the beginning of the priest cult and the emergence of the sun god as an emblem and ruler of Egypt.
  • 72.
  • 73.
    The First IntermediatePeriod • After the collapse of the Old Kingdom, Egypt entered a period of weak Pharaonic power and decentralization called the First Intermediate Period. • This period is a period of unrest and upheavals. The capital was relocated from Memphis to Thebes. • The Pharaoh's role was shifted from a divine ruler and representative to a secular one. • Tombs were also very important with a low finishing quality.
  • 74.
  • 75.
    The Middle Kingdom.The Era of Life and Death. The Synthesis Between Temples and Tombs • Examples is the tomb Mentuhotep II at the Deir el Bahary. It is an example of architectural innovation. It combines both temple and tomb design, style and character in one single whole.
  • 77.
    The Middle Kingdom.The Era of Life and Death. The Synthesis Between Temples and Tombs Deir el Bahari The complex is approached axially with two levels of columns surrounding a masonry mass, long thought to be a pyramid in the middle. • This central axis continues through the hypostyle hall then to the burial vault carved in the cliff. • This integration between life and death issues and ideas (burial chambers and the concept of procession and movement) is what distinguishes the 2nd kingdom of Egyptian architecture.
  • 80.
    The Middle Kingdom.The Era of Life and Death. The Synthesis Between Temples and Tombs • This synthesis is relevant in: – Axially designed Temple – Hypostyle hall – Burial Chamber – Ramps and stepped designs echoing Hatshepsut's temple 400 years later.
  • 81.
    Middle and NewKingdom: Characteristics • Egyptian tombs return to below the ground – Many tombs begin to appear in the cliffs of the Nile Valley. • Builders decide to sacrifice the monumentality of tombs for security from grave robbers. – Shaft tombs • Long, underground corridors and chambers hollowed out of Nile Valley cliffs • Little architectural significance
  • 88.
  • 95.
    The Middle Kingdom.The Era of Life and Death. The Synthesis Between Temples and Tombs • Another example is Beni Hassan tombs that were cut through rock cliffs that also have a porch and a hypostyle hall. • In these tombs are a replication of living space besides burial chambers. • Stone was carved to imitate a non-stone material (palms, reeds and Lotus plants). This was utilized as a symbol of the direct connection between life and death. • It is a combination between the architecture of death and the architecture of life.
  • 96.
    Middle and NewKingdom: Beni Hasan • Beni Hasan – 125 miles upstream from Giza on the East bank of the Nile River – Hollowed out of the Nile Valley cliffs – Features: • Colonnaded portico for public worship • Combined chapel and effigy chamber
  • 97.
    Middle and NewKingdom: Beni Hasan
  • 98.
    Middle and NewKingdom: Mortuary Temples • Mortuary Temples – Followed the decline of the pyramids and the concealment of burial chambers – Developed into Egypt’s most important monumental form – Funerary complexes set before the Old Kingdom pyramids are some of the most striking mortuary temples
  • 104.
    Middle and NewKingdom: Mortuary Temples • Mortuary Temples – Usually comprised of three interconnected parts: • A temple near the Nile where the king’s body was embalmed • A mortuary temple where rituals were performed • A long, narrow causeway between thick walls connecting the two temples
  • 105.
    Middle and NewKingdom: Mortuary Temples • Temple Complex of Khafre – One of the most impressive preserved temple complex’s Photo: Sullivan
  • 106.
    Middle and NewKingdom: Middle Kingdom Mortuary Temples • The Sphinx – Represented the god Re- Harakthe on guard over the king’s tomb – Contained an intricately constructed set of interiors