XCE 703 - COST ESTIMATION
AND VALUATION
UNIT – 1
ESTIMATION OF BUILDINGS
PREPARED BY
Dr.B.ANUPRIYA
Associate Professor/CIVIL
• Estimation
Estimating is the technique of Computing the
various quantities and the expected
Expenditure on a particular work or project.
• Need for estimation and costing
– Estimate give an idea of the cost of the work
– Estimate gives an idea of time required for the completion
of the work.
– Estimate is required to invite the tenders and Quotations
ESTIMATION OF BUILDINGS
Method of Estimating
• Detail Estimate: It consists of working out
quantities of different items of work and then
working out the cost.
Item
No.
Particulars of
Items of work
No. L( m) B( m) D( m) Q
• Abstract of Estimated cost: Cost under item of
work is calculated from the quantities already
computed at workable rate.
Item
no.
Description
/Particulars
Quantity Unit Rate Amount
• Earth work excavation
• Concrete in foundation
• Soling ( when the soil is soft one layer of dry brick is applied below the
foundation concrete)
• Damp Proof Course
• Masonry
• Deduction for openings ( doors & Windows)
• Lintel over openings
• R.C.C work
• Flooring & Roofing
• Plastering & Pointing
• White washing & colour washing
• Painting
MAIN ITEMS OF WORK
S.No Particulars of Item Units
1. Earth work Excavation M3
2. Concreting M3
3. D.P.C M2
4. Brick Work in Foundation,
Plinth & Superstructure
M3
5. Roofing M3
6. Plastering & Pointing M2
UNITS OF MEASUREMENTS
METHODS OF BUILDING ESTIMATES
Individual wall method ( Long wall Short wall
method)
Centre Line method
Q= Total c/c distance X Breadth X Depth
PROBLEM 1
For the given plan of super structure of a
single room building 5 m X 4 m, estimate the
quantities of
I. Earth work excavation in foundation
II. Concrete in foundation
III. Brick work in foundation & Plinth
IV. Brick Work in superstructure
Particulars of Item No L( m) B(m) H( m) Q ( m3 )
Earth work Excavation
in foundation
Long wall
Short wall
2
2
6.2
3.4
0.9
0.9
0.9
0.9
Total
10.04
5.51
15.55 m3
Long wall- short wall method
Note
L = 5.3 +0.9/2 +0.9/2
= 6.2 m
B= 4.3-0.9 = 3.4 m
1.
Particulars of Item No L( m) B(m) H( m) Q ( m3 )
Concrete in foundation
Long wall
Short wall
2
2
6.2
3.4
0.9
0.9
0.3
0.3
Total
3.35
1.83
5.18 m3
Note
L = 5.3 +0.9/2 +0.9/2= 6.2 m
B= 4.3-0.9 = 3.4 m
2.
Particulars of Item No L( m) B(m) H( m) Q ( m3 )
Brick Work in
foundation & Plinth
Long Wall
I st Footing
2nd Footing
Plinth
2
2
2
5.9
5.8
5.7
0.6
0.5
0.4
0.3
0.3
0.6
2.13
1.74
2.74
3.
Note
L = 5.3 +0.6= 5.9 m
L = 5.3 +0.5= 5.8 m
L = 5.3 +0.4= 5.7 m
Particulars of Item No L( m) B(m) H( m) Q ( m3 )
Short Wall
I st Footing
2nd Footing
Plinth
2
2
2
3.7
3.8
3.9
0.6
0.5
0.4
0.3
0.3
0.6
1.33
1.14
1.87
Total 10.95 m3
3.
Note
L = 4.3 - 0.6= 3.7 m
L = 4.3 -0.5= 3.8 m
L = 4.3 -0.4= 3.7 m
Particulars of Item No L( m) B(m) H( m) Q ( m3 )
Brick Work in Super
structure
Long wall
Short wall
2
2
5.6
4.0
0.3
0.3
3.5
3.5
11.76
8.40
Total 20.16 m3
4.
Note
L = 5.3+0.3= 5.6 m
L = 4.3 +0.3= 4.0 m
CENTRE LINE METHOD
Total Centre Length of wall = 5.3 +4.3 +5.3 +4.3 = 19.20 m
No Particulars of Item No L( m) B(m) H( m) Q ( m3 )
1. EWE in foundation 1 19.20 0.9 0.9 15.55 m3
2. Concrete in
foundation
1 19.20 0.9 0.3 5.18 m3
3. Brick Work
I st footing
2 nd footing
Plinth
1
1
1
19.20
19.20
19.20
0.6
0.5
0.4
0.3
0.3
0.6
Total
3.46
2.88
4.61
10.95 m3
4. B.W in super
structure
1 19.20 0.3 3.5 20.16 m3
CENTRE LINE METHOD
PROBLEM 2
For the given plan of super structure of a single room
building 5 m X 4 m, estimate the quantities of
I. Earth work excavation in foundation
II. Concrete in foundation
III. Brick work in foundation & Plinth
IV. Brick Work in superstructure
PROBLEM 2
Estimate the quantities of the following items of a two
roomed building from the given plan
Total Centre length of wall = 2 X 10.60 + 3 X 6.3 = 40.10 m
DOOR: D- 1.20 m x 2.10 m
WINDOW: W- 1.0 m X 1.5 m
SHELVES: S – 1.0 m X 1.5 m
C/S of wall on AA
CENTRE LINE METHOD
Total Centre length of wall = 2 X 10.60 + 3 X 6.3 = 40.10 m
CENTRE LINE METHOD
No Particulars of Item No L( m) B(m) D( m) Q ( m3 )
1. EWE in foundation 1 39 1.10 1.0 42.9 m3
2. Lime Concrete in
foundation
1 39 1.10 0.3 12.87 m3
Earth work Excavation Length L= 40.10 – 2 X ( 1.10 /2) = 39.0 m
Note
Total Centre length of wall = 2 X 10.60 + 3 X 6.3 = 40.10 m
3. Brick Work
I st footing
2 nd footing
3 rd footing
4 th footing
Plinth wall above
footing
1
1
1
1
1
39.30
39.40
39.50
39.60
39.70
0.8
0.7
0.6
0.5
0.4
0.20
0.10
0.10
0.10
0.80
Total
6.29
2.76
2.37
1.98
12.70
26.10 m3
Note
L= 40.10 – 2X ( 0.80 / 2) = 39.30
L= 40.10 – 2X ( 0.70 / 2) = 39.40
L= 40.10 – 2X ( 0.60 / 2) = 39.50
L= 40.10 – 2X ( 0.50 / 2) = 39.60
L= 40.10 – 2X ( 0.40 / 2) = 39.70
No Particulars of Item No L( m) B(m) D( m) Q ( m3 )
4. Damp Proof Course
2.5 cm c/c
Deduct door sill
1
2
39.70
1.20
0.40
0.40
-
-
Net
15.88
0.96
14.92 m2
Note
L= 40.10 – 2X ( 0.40 / 2) = 39.70
DOOR: D- 1.20 m x 2.10 m
No Particulars of Item No L( m) B(m) D( m) Q ( m3 )
4. I st class B.W in super
structure
1 39.80 0.30 4.2 50.15
Deduct
L= 40.10 – 2 X ( 0.30/2)= 39.80m
Door Openings 2 1.20 0.30 2.10 1.51
Window Openings 4 1.0 0.30 1.50 1.80
Shelves( Back of the wall 10
cm thick wall)
2 1.0 0.20 1.50 0.60
Lintel over door
( Bearing 15 cm)
2 1.50 0.30 0.15 0.14
Lintel over window
( Bearing 15 cm)
4 1.30 0.30 0.15 0.23
Lintel over shelves
( Bearing 15 cm)
2 1.30 0.30 0.15 0.12
Total Deduction 4.40 m3
Net Total 45.75 m3
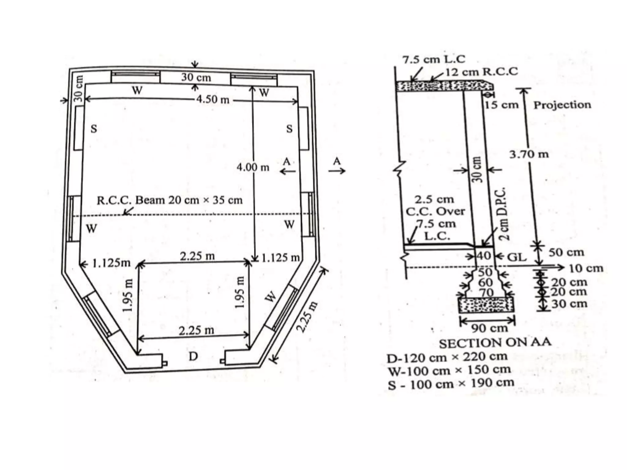
PROBLEM 3
For the given plan calculate the detail and abstract
estimate by centre line method.
Door D = 1000 X 2000
Window W = 1200X 1500
CENTRE LINE METHOD
Total length = 2 X (3.3+3.8+3.8+4.3) + 3.8+3.3+3.8= 41.3
Door D = 1000 X 2000
Window W = 1200X 1500
No Particulars of Item No L( m) B(m) D( m) Q ( m3 )
1. EWE in foundation 1 39.5 0.9 1.0 35.55 m3
2. Concreting in
foundation
1 39.5 0.9 0.3 10.66 m3
CENTRE LINE METHOD
Note:
L= 41.3 – 4 X 0.9/2 = 39.5
No Particulars of Item No L( m) B(m) D( m) Q ( m3 )
3. R.R Masonry in C.M
I st Footing
II nd Footing
Basement
1
1
1
40.1
40.3
40.5
0.6
0.5
0.4
0.3
0.4
0.6
Total
7.21
8.06
9.72
25.0 m3
Note:
L= 41.3 – 4 X 0.6/2 = 40.1
L= 41.3 – 4 X 0.5/2 = 40.3
L= 41.3 – 4 X 0.4/2 = 40.5
No Particulars of Item No L( m) B(m) D( m) Q ( m2 )
4. D.P.C ( 1: 2 : 4)
Deduct for door sills
1
3
40.5
1.0
0.4
0.3
-
-
Net
16.2
0.9
15.3 m2
L= 41.3 – 4 X 0.4/2 = 40.5 Door D = 1000 X 2000 mm
No Particulars of Item No L( m) B(m) D( m) Q ( m3 )
5. First class B.W in
superstructure
Parapet wall
1
1
40.7
30.4
0.3
0.3
3.
0.6
Total
36.63
5.472
42.10 m3
Note: L= 41.3 – 4 X 0.3/2 = 40.7 L= 2( 7.1 + 8.1) = 30.4
Deduction:
Doors 3 1.0 0.3 2.0 1.80
Windows 8 1.2 0.3 1.5 4.32
Lintel openings over
Doors 3 1.2 0.3 0.1 0.108
Windows 8 1.4 0.3 0.1 0.336
Total 6.564 m3
Net Total 35.53 m3
No Particulars of Item No L( m) B(m) H( m) Q ( m2 )
6. Plastering with 12
mm in C.M 1:5
Plastering for Parapet
wall - Sides
Top
Deduction for
opening Doors
Windows
1X2
1X2
1
3X2
8X2
40.1
30.4
30.4
1.0
1.2
-
-
0.3
-
-
3.0
0.6
-
Total
2.0
1.5
Total
240.6m2
36.48
9.12
45.60 m2
12.0
28.8
40.8 m2
Net Plastering = 240.6 + 45.60 – 40.8 = 245.4 m2
No Particulars of Item No L( m) B(m) H( m) Q ( m2 )
7. Flooring with 25 mm
C.C( 1: 2:4)
Kitchen
Bed
Hall
Sills of Doors
1
1
1
3
3.0
3.5
6.8
1.0
3.5
3.5
4.0
0.3
-
-
-
-
Total
10.5
12.25
27.20
0.9
50.85 m2
8. Celling ( same as
flooring
50.85 m2
9. White washing ( Same as plastering for walls & celling)
= 245.4 +50.85 = 296.25 m2
No Particulars of Item No L( m) B(m) H( m) Q ( m3 )
10. R.C.C ( 1: 2: 4) for
slabs
Lintel over doors
Lintel over windows
Lintel over beams
1
3
8
1
7.4
1.2
1.4
40.7
8.4
0.3
0.3
0.3
1.5
0.1
0.1
0.3
9.324
0.108
0.336
3.663
Total 13.431m3
Note:
L= 41.3- (4 X 0.3/2) = 40.7
S.No Abstract Estimate Quantity UNIT Rate Per Amount
1. Earth work excavation 35.33 m3 465 10m3 1653.00
2. C.C ( 1:4:8) 10.66 m3 1545 1m3 16477.50
3. R.R Masonry 25.0 m3 1391 m3 34775.00
4. Sand Filling in basement 23.22 m3 195 10m3 464.00
5. Brick Masonry 35.53 m3 2291 m3 81417.60
6. R.C.C ( 1:2:4) for lintel ,
Beam
4.107 m3 6030 m3 24765.20
7. R.C.C for Slab 9.324 m3 6030 m3 56223.70
8. C.C for Flooring 5.085 m3 1452 m3 7383.40
9. Supplying & fixing wood
for doors
6.0 m2 1650 m2 9900.00
10. Supplying & fixing wood
for windows & ventilators
14.40 m2 1650 m2 33120.0
ABSTRACT ESTIMATE
S.No Abstract Estimate Quantity UNIT Rate Per Amount
11. Plastering to all exposed
surfaces
245.40 m2 582 10m2 14282.30
12. White washing 296.25 m2 116 10m2 3436.50
13. Flooring with tiles 50.85 m2 4230 10m2 21509.50
14. Painting 45.90 m2 335 10m2 1537.65
Total 3,06945.35
Provision for water supply & sanitary arrangements @12.5% 38,368.20
Provision for electrification @7.5% 23,020.90
Provision for architectural appearance @2% 6138.90
Provision for unforeseen items @ 2% 6138.90
Provision for contingencies @ 4% 12,277.80
Total Amount 3,928,90.00
Exercise Problem
PROBLEM 1
Estimate the quantities of the
following items of a two roomed
building from the given plan
(i) Earth work Excavation (ii) C.C ( 1:4:8)
(iii) Brick Masonry.
D- 1X2.1
W-1.5X1.2
Part A Questions
1. Define Estimate.
2. What are the different types of estimate?
3. Describe centre line method.
4. What are the methods of estimate?
5. Define separate or individual wall method.
6. Define centre line method.
7. Define abstract estimate.
8. Explain about preliminary estimate.
9. Explain about revised estimate.
10. Briefly explain about bay method.
Part B
1. Briefly explain various types of estimate in detail.
2. Differentiate abstract and detail estimate.
3. Estimate in detail the quantities of the following
items of work for an industrial building using centre
line method. (i) Earth work excavation in
foundation. (ii) concrete in foundation. (iii) Brick
work in foundation. (IV) Brick work in
superstructure.
( Hint)
Centre to centre length of inclined wall:
=
= 2.46 m
Total centre line length of wall= 4.80 +(2X4.15)+(2X2.46)+2.25
= 20.27m
1. UNIT -I ESTIMATION OF BUILDINGS.pdf

1. UNIT -I ESTIMATION OF BUILDINGS.pdf

  • 1.
    XCE 703 -COST ESTIMATION AND VALUATION UNIT – 1 ESTIMATION OF BUILDINGS PREPARED BY Dr.B.ANUPRIYA Associate Professor/CIVIL
  • 2.
    • Estimation Estimating isthe technique of Computing the various quantities and the expected Expenditure on a particular work or project. • Need for estimation and costing – Estimate give an idea of the cost of the work – Estimate gives an idea of time required for the completion of the work. – Estimate is required to invite the tenders and Quotations ESTIMATION OF BUILDINGS
  • 3.
    Method of Estimating •Detail Estimate: It consists of working out quantities of different items of work and then working out the cost. Item No. Particulars of Items of work No. L( m) B( m) D( m) Q
  • 4.
    • Abstract ofEstimated cost: Cost under item of work is calculated from the quantities already computed at workable rate. Item no. Description /Particulars Quantity Unit Rate Amount
  • 5.
    • Earth workexcavation • Concrete in foundation • Soling ( when the soil is soft one layer of dry brick is applied below the foundation concrete) • Damp Proof Course • Masonry • Deduction for openings ( doors & Windows) • Lintel over openings • R.C.C work • Flooring & Roofing • Plastering & Pointing • White washing & colour washing • Painting MAIN ITEMS OF WORK
  • 6.
    S.No Particulars ofItem Units 1. Earth work Excavation M3 2. Concreting M3 3. D.P.C M2 4. Brick Work in Foundation, Plinth & Superstructure M3 5. Roofing M3 6. Plastering & Pointing M2 UNITS OF MEASUREMENTS
  • 7.
    METHODS OF BUILDINGESTIMATES Individual wall method ( Long wall Short wall method)
  • 8.
    Centre Line method Q=Total c/c distance X Breadth X Depth
  • 9.
    PROBLEM 1 For thegiven plan of super structure of a single room building 5 m X 4 m, estimate the quantities of I. Earth work excavation in foundation II. Concrete in foundation III. Brick work in foundation & Plinth IV. Brick Work in superstructure
  • 11.
    Particulars of ItemNo L( m) B(m) H( m) Q ( m3 ) Earth work Excavation in foundation Long wall Short wall 2 2 6.2 3.4 0.9 0.9 0.9 0.9 Total 10.04 5.51 15.55 m3 Long wall- short wall method Note L = 5.3 +0.9/2 +0.9/2 = 6.2 m B= 4.3-0.9 = 3.4 m 1.
  • 12.
    Particulars of ItemNo L( m) B(m) H( m) Q ( m3 ) Concrete in foundation Long wall Short wall 2 2 6.2 3.4 0.9 0.9 0.3 0.3 Total 3.35 1.83 5.18 m3 Note L = 5.3 +0.9/2 +0.9/2= 6.2 m B= 4.3-0.9 = 3.4 m 2.
  • 13.
    Particulars of ItemNo L( m) B(m) H( m) Q ( m3 ) Brick Work in foundation & Plinth Long Wall I st Footing 2nd Footing Plinth 2 2 2 5.9 5.8 5.7 0.6 0.5 0.4 0.3 0.3 0.6 2.13 1.74 2.74 3. Note L = 5.3 +0.6= 5.9 m L = 5.3 +0.5= 5.8 m L = 5.3 +0.4= 5.7 m
  • 14.
    Particulars of ItemNo L( m) B(m) H( m) Q ( m3 ) Short Wall I st Footing 2nd Footing Plinth 2 2 2 3.7 3.8 3.9 0.6 0.5 0.4 0.3 0.3 0.6 1.33 1.14 1.87 Total 10.95 m3 3. Note L = 4.3 - 0.6= 3.7 m L = 4.3 -0.5= 3.8 m L = 4.3 -0.4= 3.7 m
  • 15.
    Particulars of ItemNo L( m) B(m) H( m) Q ( m3 ) Brick Work in Super structure Long wall Short wall 2 2 5.6 4.0 0.3 0.3 3.5 3.5 11.76 8.40 Total 20.16 m3 4. Note L = 5.3+0.3= 5.6 m L = 4.3 +0.3= 4.0 m
  • 16.
    CENTRE LINE METHOD TotalCentre Length of wall = 5.3 +4.3 +5.3 +4.3 = 19.20 m
  • 17.
    No Particulars ofItem No L( m) B(m) H( m) Q ( m3 ) 1. EWE in foundation 1 19.20 0.9 0.9 15.55 m3 2. Concrete in foundation 1 19.20 0.9 0.3 5.18 m3 3. Brick Work I st footing 2 nd footing Plinth 1 1 1 19.20 19.20 19.20 0.6 0.5 0.4 0.3 0.3 0.6 Total 3.46 2.88 4.61 10.95 m3 4. B.W in super structure 1 19.20 0.3 3.5 20.16 m3 CENTRE LINE METHOD
  • 18.
    PROBLEM 2 For thegiven plan of super structure of a single room building 5 m X 4 m, estimate the quantities of I. Earth work excavation in foundation II. Concrete in foundation III. Brick work in foundation & Plinth IV. Brick Work in superstructure
  • 19.
    PROBLEM 2 Estimate thequantities of the following items of a two roomed building from the given plan Total Centre length of wall = 2 X 10.60 + 3 X 6.3 = 40.10 m
  • 20.
    DOOR: D- 1.20m x 2.10 m WINDOW: W- 1.0 m X 1.5 m SHELVES: S – 1.0 m X 1.5 m C/S of wall on AA
  • 21.
    CENTRE LINE METHOD TotalCentre length of wall = 2 X 10.60 + 3 X 6.3 = 40.10 m
  • 22.
    CENTRE LINE METHOD NoParticulars of Item No L( m) B(m) D( m) Q ( m3 ) 1. EWE in foundation 1 39 1.10 1.0 42.9 m3 2. Lime Concrete in foundation 1 39 1.10 0.3 12.87 m3 Earth work Excavation Length L= 40.10 – 2 X ( 1.10 /2) = 39.0 m Note Total Centre length of wall = 2 X 10.60 + 3 X 6.3 = 40.10 m
  • 23.
    3. Brick Work Ist footing 2 nd footing 3 rd footing 4 th footing Plinth wall above footing 1 1 1 1 1 39.30 39.40 39.50 39.60 39.70 0.8 0.7 0.6 0.5 0.4 0.20 0.10 0.10 0.10 0.80 Total 6.29 2.76 2.37 1.98 12.70 26.10 m3 Note L= 40.10 – 2X ( 0.80 / 2) = 39.30 L= 40.10 – 2X ( 0.70 / 2) = 39.40 L= 40.10 – 2X ( 0.60 / 2) = 39.50 L= 40.10 – 2X ( 0.50 / 2) = 39.60 L= 40.10 – 2X ( 0.40 / 2) = 39.70
  • 24.
    No Particulars ofItem No L( m) B(m) D( m) Q ( m3 ) 4. Damp Proof Course 2.5 cm c/c Deduct door sill 1 2 39.70 1.20 0.40 0.40 - - Net 15.88 0.96 14.92 m2 Note L= 40.10 – 2X ( 0.40 / 2) = 39.70 DOOR: D- 1.20 m x 2.10 m
  • 25.
    No Particulars ofItem No L( m) B(m) D( m) Q ( m3 ) 4. I st class B.W in super structure 1 39.80 0.30 4.2 50.15 Deduct L= 40.10 – 2 X ( 0.30/2)= 39.80m Door Openings 2 1.20 0.30 2.10 1.51 Window Openings 4 1.0 0.30 1.50 1.80 Shelves( Back of the wall 10 cm thick wall) 2 1.0 0.20 1.50 0.60 Lintel over door ( Bearing 15 cm) 2 1.50 0.30 0.15 0.14 Lintel over window ( Bearing 15 cm) 4 1.30 0.30 0.15 0.23 Lintel over shelves ( Bearing 15 cm) 2 1.30 0.30 0.15 0.12 Total Deduction 4.40 m3 Net Total 45.75 m3
  • 26.
    PROBLEM 3 For thegiven plan calculate the detail and abstract estimate by centre line method. Door D = 1000 X 2000 Window W = 1200X 1500
  • 27.
    CENTRE LINE METHOD Totallength = 2 X (3.3+3.8+3.8+4.3) + 3.8+3.3+3.8= 41.3 Door D = 1000 X 2000 Window W = 1200X 1500
  • 28.
    No Particulars ofItem No L( m) B(m) D( m) Q ( m3 ) 1. EWE in foundation 1 39.5 0.9 1.0 35.55 m3 2. Concreting in foundation 1 39.5 0.9 0.3 10.66 m3 CENTRE LINE METHOD Note: L= 41.3 – 4 X 0.9/2 = 39.5
  • 29.
    No Particulars ofItem No L( m) B(m) D( m) Q ( m3 ) 3. R.R Masonry in C.M I st Footing II nd Footing Basement 1 1 1 40.1 40.3 40.5 0.6 0.5 0.4 0.3 0.4 0.6 Total 7.21 8.06 9.72 25.0 m3 Note: L= 41.3 – 4 X 0.6/2 = 40.1 L= 41.3 – 4 X 0.5/2 = 40.3 L= 41.3 – 4 X 0.4/2 = 40.5
  • 30.
    No Particulars ofItem No L( m) B(m) D( m) Q ( m2 ) 4. D.P.C ( 1: 2 : 4) Deduct for door sills 1 3 40.5 1.0 0.4 0.3 - - Net 16.2 0.9 15.3 m2 L= 41.3 – 4 X 0.4/2 = 40.5 Door D = 1000 X 2000 mm
  • 31.
    No Particulars ofItem No L( m) B(m) D( m) Q ( m3 ) 5. First class B.W in superstructure Parapet wall 1 1 40.7 30.4 0.3 0.3 3. 0.6 Total 36.63 5.472 42.10 m3 Note: L= 41.3 – 4 X 0.3/2 = 40.7 L= 2( 7.1 + 8.1) = 30.4 Deduction: Doors 3 1.0 0.3 2.0 1.80 Windows 8 1.2 0.3 1.5 4.32 Lintel openings over Doors 3 1.2 0.3 0.1 0.108 Windows 8 1.4 0.3 0.1 0.336 Total 6.564 m3 Net Total 35.53 m3
  • 32.
    No Particulars ofItem No L( m) B(m) H( m) Q ( m2 ) 6. Plastering with 12 mm in C.M 1:5 Plastering for Parapet wall - Sides Top Deduction for opening Doors Windows 1X2 1X2 1 3X2 8X2 40.1 30.4 30.4 1.0 1.2 - - 0.3 - - 3.0 0.6 - Total 2.0 1.5 Total 240.6m2 36.48 9.12 45.60 m2 12.0 28.8 40.8 m2 Net Plastering = 240.6 + 45.60 – 40.8 = 245.4 m2
  • 33.
    No Particulars ofItem No L( m) B(m) H( m) Q ( m2 ) 7. Flooring with 25 mm C.C( 1: 2:4) Kitchen Bed Hall Sills of Doors 1 1 1 3 3.0 3.5 6.8 1.0 3.5 3.5 4.0 0.3 - - - - Total 10.5 12.25 27.20 0.9 50.85 m2 8. Celling ( same as flooring 50.85 m2 9. White washing ( Same as plastering for walls & celling) = 245.4 +50.85 = 296.25 m2
  • 34.
    No Particulars ofItem No L( m) B(m) H( m) Q ( m3 ) 10. R.C.C ( 1: 2: 4) for slabs Lintel over doors Lintel over windows Lintel over beams 1 3 8 1 7.4 1.2 1.4 40.7 8.4 0.3 0.3 0.3 1.5 0.1 0.1 0.3 9.324 0.108 0.336 3.663 Total 13.431m3 Note: L= 41.3- (4 X 0.3/2) = 40.7
  • 35.
    S.No Abstract EstimateQuantity UNIT Rate Per Amount 1. Earth work excavation 35.33 m3 465 10m3 1653.00 2. C.C ( 1:4:8) 10.66 m3 1545 1m3 16477.50 3. R.R Masonry 25.0 m3 1391 m3 34775.00 4. Sand Filling in basement 23.22 m3 195 10m3 464.00 5. Brick Masonry 35.53 m3 2291 m3 81417.60 6. R.C.C ( 1:2:4) for lintel , Beam 4.107 m3 6030 m3 24765.20 7. R.C.C for Slab 9.324 m3 6030 m3 56223.70 8. C.C for Flooring 5.085 m3 1452 m3 7383.40 9. Supplying & fixing wood for doors 6.0 m2 1650 m2 9900.00 10. Supplying & fixing wood for windows & ventilators 14.40 m2 1650 m2 33120.0 ABSTRACT ESTIMATE
  • 36.
    S.No Abstract EstimateQuantity UNIT Rate Per Amount 11. Plastering to all exposed surfaces 245.40 m2 582 10m2 14282.30 12. White washing 296.25 m2 116 10m2 3436.50 13. Flooring with tiles 50.85 m2 4230 10m2 21509.50 14. Painting 45.90 m2 335 10m2 1537.65 Total 3,06945.35 Provision for water supply & sanitary arrangements @12.5% 38,368.20 Provision for electrification @7.5% 23,020.90 Provision for architectural appearance @2% 6138.90 Provision for unforeseen items @ 2% 6138.90 Provision for contingencies @ 4% 12,277.80 Total Amount 3,928,90.00
  • 37.
    Exercise Problem PROBLEM 1 Estimatethe quantities of the following items of a two roomed building from the given plan (i) Earth work Excavation (ii) C.C ( 1:4:8) (iii) Brick Masonry. D- 1X2.1 W-1.5X1.2
  • 38.
    Part A Questions 1.Define Estimate. 2. What are the different types of estimate? 3. Describe centre line method. 4. What are the methods of estimate? 5. Define separate or individual wall method. 6. Define centre line method. 7. Define abstract estimate. 8. Explain about preliminary estimate. 9. Explain about revised estimate. 10. Briefly explain about bay method.
  • 39.
    Part B 1. Brieflyexplain various types of estimate in detail. 2. Differentiate abstract and detail estimate. 3. Estimate in detail the quantities of the following items of work for an industrial building using centre line method. (i) Earth work excavation in foundation. (ii) concrete in foundation. (iii) Brick work in foundation. (IV) Brick work in superstructure.
  • 41.
    ( Hint) Centre tocentre length of inclined wall: = = 2.46 m Total centre line length of wall= 4.80 +(2X4.15)+(2X2.46)+2.25 = 20.27m