BUILDING TECHNOLOGY
BLD 61403 / Industrialised Building System
ANG AVERLLEN
CHONG WEN BIN
FOONG WING HOE
IGNATIUS JEE SHAO LANG
TAN WUI XIANG
YEN WEI ZHENG
0321444
0327442
0320085
0320069
0321128
0320266
MR. KHAIROOL AIZAT AHMAD JAMAL
TUTOR /
CONTENT
1.0 Concept & Framework of IBS
1.1 Introduction
1.2 Advantages of IBS
1.3 Classification
1.4 Sequence of activity of IBS Construction Method
1.5 Case Study
2.0 Drawings
2.1 Plan
2.1.1 Floor Plan (Unit)
2.1.2 Foundation Plan
2.1.3 Structural Plan
2.1.4 Roof Plan
2.2 Elevation
2.3 Section
3.0 Sequence of Construction
3.1 Axonometric Drawing
3.2 Sequence of Construction
4.0 System Components & Detail Drawings
4.1 Foundation Footing
4.2 Pre-cast Concrete Column
4.3 Pre-cast Concrete Beam
4.4 Pre-cast Concrete Solid Flat Slab
4.5 In-Situ Concrete Wall
4.6 Pre-cast Concrete Staircase & Landing
4.7 Pre-cast Concrete Toilet Pod
4.8 Prefabricated Steel Roof Truss
5.0 Schedule of modular components
6.0 IBS score calculation
7.0 Conclusion
8.0 Reference
Industrialised building system (IBS) is a term used in Malaysia for a
technique of construction where by components are manufactured in a
controlled environment, either at site or off site, placed and assembled
into construction works. Worldwide, IBS is also known as Pre-fabricated/
Pre-fab Construction, Modern Method of Construction (MMC) and Off-
site Construction. In simple terms, it is mass-producing the parts of a
building and assembling them during construction- a little like Lego, but
much more complicated, and certainly not as easy as a robot that builds
and entire house in just 2 days.
CIDB Malaysia, through IBS Centre is promoting the usage of IBS to
increase productivity and quality at construction sites through various
promotion programmes, training and incentives. The content of IBS (IBS
Score) is determined based on the Construction Industry Standard 18
(CIS 18: 2010); either manually, web application or fully automated CAD-
based IBS Score calculator.
1.0 / CONCEPT & FRAMEWORK OF IBS
According to MIDA 2015, it has as many as 96 companies approved with
manufacturing license with incentives/ without incentives. There are 210
IBS manufacturers registered with CIDB under the Assessment of IBS
Status (AIS) for certification of components, companies and installers.
Another updates from MIDA is that CIDB aims to increase 100 new IBS
manufacturers by 2020 to be driven by various initiatives under the
Construction Industry Transformation Programme (CITP).
96 companies 210 IBS manufacturers 100 new IBS by 2020
COST SAVING
01
02
03
04
05
06
LESS LABOUR AT SITE
LESS CONSTRUCTION TIME
REDUCE OVERALL COST
FLEXIBILITY IN ARCHITECTURAL DESIGN
WASTE REDUCTION
07
08
09
OPTIMISED USE OF MATERIALS
BETTER QUALITY & FINISHES
INCREASE SITE SAFETY
1.1 Introduction
1.2 Advantages of IBS
Current Status of IBS in Malaysia /
The Malaysian construction industry is
undergoing a transitional change from an industry
employing conventional technology to one which
is more systematic and mechanised. Based on
structural classification by CIDB, there are 5 main
IBS groups identified as being popularly used in
Malaysia.There are various Industrialised Building System (IBS) used throughout the world,
and they can be classified into 3 major categories. The typical classification are
shown on top.
Frame/Post & Beam Panel System Box System
Pre-cast Concrete
Framing/Panel/Box
Steel Formwork
Pre-cast columns,
beams, slabs, 3D
components (balconies,
staircases, toilets, lift
chambers), permanent
concrete formwork.
Steel Framing Prefabricated Timber
Framing
Block Work
Tunnel forms, beams
and columns moulding
forms, permanent
steel formwork (metal
decks).
Steel beams and
columns, portal frame
and roof trusses.
Timber frames and roof
trusses.
Interlocking concrete
masonry units (CMU),
lightweight concrete
blocks.
1.0 / CONCEPT & FRAMEWORK OF IBS
1.3 Classification (Typical)
1.3 Classification (Malaysia)
1.0 / CONCEPT & FRAMEWORK OF IBS
1.4 Sequence of Activity of IBS Construction Method
The process of study and design, then
finalise the design and choose the most
suitable IBS method to construct the
building.
1 /DESIGN
Manufacturing the pre-cast components
off-site under a sheltered environment
(factory etc).
2 /PRODUCTION LINE
Gather the completed components (slab/
wall/beam/roof truss/column etc) before
delivering to the site.
Assembling and erecting all the pre-cast
components to form a final unit.
6 /FORM A FINAL UNIT
When the components have delivered to
the site, construction workers will
proceed to assembling process. For
example, connecting pre-cast staircase
to slab.
5 /ASSEMBLE & ERECTION
Transporting complete assemblies or
sub-assemblies to the final construction
site where the structure to be located by
using heavy truck.
4 /DELIVERY
3 /PRODUCTION LINE
1.0 / CONCEPT & FRAMEWORK OF IBS
1.5 Case Study SERI BAISURI
by JMB MALAYSIA
Seri Baiduri is a freehold apartment in Shah Alam, Selangor. There
are 4 blocks with 10 storeys each. There are a total of 640 units,
with 16 units per floor. Each block comes with two lifts.Built-up for
each unit is 920 sq ft, featuring 3 bedrooms and 2 bathrooms.
Each unit also comes with two open carpark bays.
01 Background
02 Full IBS Factor
Pre-cast system:
1. Column
2. Beam
3. Slab
4. Staircase
Steel Framing System
1. Steel Roof Trusses
03 Partial IBS Factor
1. Reusable system formwork for in-situ concrete structures
2. Custom window and door sets
Pre-cast components:
1. Pre-cast wall, column, beam
2. Pre-cast hollow core slab
3. Pre-cast toilet pod
4. Pre-cast staircase & landing
5. Pre-cast load bearing walls
04 Conventional Construction
1. Foundation
2. Ground floor
3. Transfer beam
4. RC Slab
05 NIL IBS Factor
1. Timber formwork
Cutting down on construction costs and time, IBS could
potentially be the future of affordable housing in Malaysia.
Adoption of this technology on a large scale will encourage
even lower construction prices, resulting in the ability to
build cheaper, quality homes at a faster rate.
Why IBS?
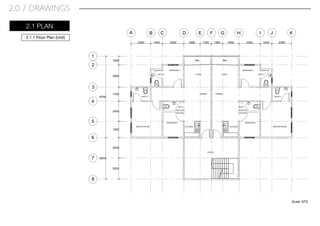
2.0 / DRAWINGS
2.1 PLAN
2.1.1 Floor Plan (Unit)
KITCHEN
DINNING
LIVING
BAL
BEDROOM 3
BATH 1
MASTER ROOM
BATH 2
BATH 3
BEDROOM 2
KITCHEN
DINNING
LIVING
BAL
BEDROOM 3
BATH 1
MASTER ROOM
BATH 2
BATH 3
BEDROOM 2
A B C D E F G H I J K
1
2
3
4
5
6
7
8
FOYER
Scale: NTS
2.0 / DRAWINGS
2.1 PLAN
2.1.2 Foundation Plan
A B C D E F G H I J K
1
2
3
4
5
6
7
8
Scale: NTS
2.1.3 Structural Plan
A B C D E F G H I J K
1
2
3
4
5
6
7
8
2.0 / DRAWINGS
2.1 PLAN
Scale: NTS
2.1.4 Roof Plan
2.0 / DRAWINGS
2.1 PLAN
A B C D E F G H I J K
1
2
3
4
5
6
7
8
Scale: NTS
2.2 Elevation
2.0 / DRAWINGS
Front Elevation Back Elevation
Left Elevation Right Elevation
2.0 / DRAWINGS
2.2 Elevation
2.0 / DRAWINGS
2.3 Section
Side SectionFront Section
3.0 / SEQUENCE OF CONSTRUCTION
3.1 Axonometric
Cast In-Situ Concrete Wall
Foundation Footing
Pre-cast Concrete Column
Pre-cast Concrete Beam
Prefabricated Steel Roof
Truss
Pre-cast Concrete Staircase
Pre-cast Concrete Toilet Pod
Pre-cast Concrete Solid
Flat Slab
3.0 / SEQUENCE OF CONSTRUCTION
3.2 Sequence of Construction
1
2
3FOUNDATION FOOTING
The construction process starts with
the site excavation then foundation
making. Placement of footings is crucial
to provide the proper support for the
foundation and ultimately the structure.
Footings are made of concrete with
rebar reinforcement that has been
poured into an excavated trench.
GROUND BEAM
The foundation footings will then be
connected to the ground beam. The
ground beams support most of the
building load.
PRE-CAST CONCRETE SOLID FLAT
SLAB TO BEAM
The pre-cast concrete solid flat slab will
then delivered to the site and install. The
slab will be connected to each other by
using cement grout. It will also be
connected to the beam to the key way
using steel bars. The joint will then be
once again curated to fully secure the
joint.
4
PRE-CAST CONCRETE COLUMN TO
FOOTING
Next, install the pre-cast concrete
column, connect it to the foundation
footings. The column will be fixed in
position with galvanised washer, nuts
and bolts
3.0 / SEQUENCE OF CONSTRUCTION
3.2 Sequence of Construction
5 PRE-CAST CONCRETE BEAM TO
COLUMN
After the pre-cast concrete columns
are being erected, then install the pre-
cast concrete beam to the column. The
beams are set on bearing pads on the
column corbels. Steel angles are welded
to metal plates cast into the beams and
columns and the joint is grouted solid.
6
CAST IN-SITU CONCRETE WALL
After the overall frame work has been
done, setting up the formwork for cast in-
situ concrete wall. Formwork plastic panel
allows the production of walls of any
thickness and height. The formwork is
reusable and recyclable.
7
BUILDING UP THE STRUCTURE
In this case of apartment where it
contains 3 levels, the process and
sequence is same goes to the first
and second floor.
(Column -> Beam -> Wall)
PREFABRICATED STEEL ROOF
TRUSS TO ROOF BEAM
While the overall structure is complete,
the steel roof trusses will be connected
to the pre-cast roof beam.
3.0 / SEQUENCE OF CONSTRUCTION
3.2 Sequence of Construction
8
P R E - C A S T C O N C R E T E
STAIRCASE
Lift and rig the staircase to its
designated location with the use of
wire ropes. The precast staircase is
mount to the beam. The landing of
the staircase will be connecting to
the wall also by using bolt.
9
10
COMPLETED STRUCTURE
The final step will be installing the roof
shingles to prevent water and direct
sunlight penetrate into the building.
4.0 / SYSTEM COMPONENTS & DETAIL DRAWINGS
4.1 Foundation Footing
300mm x 300mm
Precast column is placed on
top of footing
600mm x 600mm x 150mm
Foundation footing
Fixed in position with
galvanised washer, nuts
and bolts
Grout to be filled in to protect the joints
from fire and corrosion.
Footings are an important part of foundation construction. They are typically made of concrete with rebar reinforcement that has been poured into an
excavated trench. The purpose of footings is to support the foundation and prevent settling. Footings are especially important in areas with
troublesome soils. Concrete footings may also be needed for projects such as a deck, pergola, retaining wall or other types of construction.
01 General Information
02 Installation Method of Column to Footing
1 2 3
Column Shoe
Formwork of Foundation Footing:
4.0 / SYSTEM COMPONENTS & DETAIL DRAWINGS
4.2 Pre-cast Concrete Column
Precast Concrete Columns can be circular, square or rectangular. Concrete
Columns can be designed and manufactured to client specifications and
can incorporate additional features and fittings.
Precast Concrete Columns are generally considered for use on in-situ
concrete flat slab projects where there s a high demand on tower crane
hook time and tight construction programmes.
01 General Information 02 Advantages
1. Unaffected by site weather conditions.
2. Reduction in labour requirement on site.
3. Pre-cast column can be erected 5 times faster than an in-
situ column.
4. Ability to achieve high quality and uniform finish.
5. Substantial health & safety dividend.
6. The erection process of the pre-cast column is a silent
process which can take place anytime.
7. When using high strength concrete, a reduction in
reinforcement steel can be achieve.
03 Installation Process
Pre-cast
concrete column
reinforced with
rebars
Metal shim
Metal bearing
plate and
embedded
anchor bolts
are casted on
the ends of
columns
1 2
The embedded anchor bolts extruding from the pile caps are attach
with the metal bearing plate fixed at the end of upper column with
galvanised metal nuts, which is then welded to prevent rotation of
structure.
3
The four open
corners of column
section is entirely dry
packed with grout to
protect the metal
joint from fire and
corrosion.
300mm x 300mm
Precast column
Metal shim with
15mm thickness
Anchor rebar boltsGalvanised
metal nut
20mm
Metal bearing plate
with 15mm thickness
4.0 / SYSTEM COMPONENTS & DETAIL DRAWINGS
4.3 Pre-cast Concrete Beam
The beams are set on bearing pads on the column corbels.
Steel angles are welded to metal plates cast into the beams and columns and the joint is grouted solid.
Precast concrete beam and block is the rapid solution to high quality,
economical concrete floor construction. The prestressed concrete beams
are manufactured in lengths to suit each application, and beam spacing
can be adjusted to suit anticipated loads.
01 General Information
Reinforcing for
corbels
02 Installation Method of Beam to Column
Weld plate cast
into beams
Stirrups
Prestressed
tendons
Bearing pad on corbel
300mm x 300mm
Precast concrete beam
1. Installation of beam is weather independent reducing site delays.
2. Minimise excavations; of particular benefit where excavated material
must be removed from site.
3. Beams offer cost and time savings with close tolerances.
4. Strong in torsion compared to structural-steel beams and requires a
lesser structural requirement on the connection.
5. Structurally efficient beams can be left exposed with natural finishes.
02 Advantages
4.0 / SYSTEM COMPONENTS & DETAIL DRAWINGS
4.4 Pre-cast Concrete Solid Flat Slab
Flat slabs are highly versatile elements widely used in construction,
providing minimum depth, fast construction and allowing flexible column
grids.
01 General Information
1. Construction: Construction of flat slabs is one of the quickest methods
available. Lead times are very short as this is one of the most common
forms of construction.
2. Cost, whole life cost, value: Flat slabs are considered to be faster and
more economic than other forms of construction, as partition heads do
not need to be cut around down-stand beams or ribs.
3. Mechanical and engineering: Flat slabs provide the most flexible
arrangements for services distribution as services do not have to divert
around structural elements.
02 Advantages
1. Solid flat slabs are set on bearing pads on precast beams
2. The steel reinforcing bars are inserted into the slab keyways to span the joint.
3. The reinforced bars is then slotted in to interlock with the beam s stirrup.
4. The joint is then grouted solid
5. The slab may remain untopped as shown, or topped with several inches of cast in place concrete
02 Installation Process
10mm Ø Steel loop tie bar
300mm x 300mm
Precast column
150mm x 900mm
Precast solid flat slab
10mm Ø stirrup
300mm x 300mm
Precast beam
Prefabricated welded mesh
100mm thick cast in-
situ cement screed
Floor slab seam joined
together with concrete grout
Water proofing membrane
16mm Ø Reinforced bar
4.0 / SYSTEM COMPONENTS & DETAIL DRAWINGS
4.5 In-situ Concrete Wall
Formwork plastic panel allows the production of walls of any
thickness and height. As the panels are made of plastic material
(ABS), the concrete finish is extremely smooth and uniform,
ensuring high quality. The panels are handled effortlessly as they
are extremely light (max. 11 kg) making production fast even with a
single worker. Most importantly, the panels are reusable.
01 General Information 02 Formwork Components
Formwork layout: The wide range of items and sizes meet any
requirements.
Anchoring to the ground to stabilise the formwork is simply done
using timber.
Ground anchoring
Shoring
The shoring is performed using a steel bracket to connect push-pull props
to the formwork in order to prevent the formwork toppling. The brackets
are available in various sizes to suit any commercially available props.
Pouring cement into the
shutter formwork
4.0 / SYSTEM COMPONENTS & DETAIL DRAWINGS
4.5 In-situ Concrete Wall
03 Advantages of Formwork02 Formwork Components
A / Handle
B / Spacer
C / Panel 120x60
D / Tie rod
E / Alignment bar
F / Anchor nut
1. Lightweight material
2. Faster to assemble
3. Modular installation parts
4. Water resistant
5. Versatile in shapes and curves
6. Reusable and cost effective
7. Easily kept and can be store in smaller places
The handle functions as an important component to connect and
secure them in place.
4.0 / SYSTEM COMPONENTS & DETAIL DRAWINGS
4.6 Pre-cast Concrete Staircase & Landing
03 Advantages
1. High quality finish gives durable concrete staircase for long
maintenance free life.
2. Saving of space on site.
3. Dense pre-cast concrete gives excellent acoustic properties
addressing sound transfer issues.
4. Obvious choice for fire escape stairs.
5. Durable and maintenance free service.
6. Rapid installation & early safe access to subsequent floors for
trades ad materials.
Precast concrete stairs and landings are the ideal solution for fast
track high quality concrete staircase construction. Precast
concrete landings can be designed as individual units or can be
manufactured as complete precast stair flight and attached landing.
Precast landings can be attached to the top or bottom of the
precast stair flight, or supplied with both top and bottom landings.
01 General Information
02 Installation Process
Setting out
Lifting & Installation
Joint casting & Sealing
Rebate cast-in floor slab for angle
connection
Pre-cast landing angle support
Applied finish to landing area by
others to accomodate
manufacturing, building & fixing
tolerance
The stairs are supported on soft pads at discrete points, a joint separate wall and stair.
Lift and rig the staircase to its
designated location with the use of
wire ropes.
Installation of staircase produced
simultaneously with the construction
of walls. The final step is to joint the
pre-cast staircase to the wall.
Set reference and offset line to
determine the position of the pre-
cast staircase to be installed.
4.0 / SYSTEM COMPONENTS & DETAIL DRAWINGS
4.7 Pre-cast Concrete Toilet Pod
50mm thick dry wall
50mm thick glazed tiles
100mm RC slab
Opening for lighting
and exhaust fan
installation
Prefabricated bathrooms are self-supporting sanitary pods. These
complete structures are factory assembled, including all walls, ceiling and
floor. The final fit out is then installed within the basic structure. This
includes tiling, wall, coatings, sanitary appliances and all mechanical and
electrical installations (with termination of services at a pre-agreed point,
normally within a pre-formed service area).
01 General Information
1. Speeds up the building process with up to an 80% time saving.
2. All design guidelines can be implemented and controlled.
3. Lightweight ‒ offering cost savings on building structure.
4. Numerous combinations of the structural elements and modular assembly.
5. Watertight, leakage resistance.
02 Advantages
150mm cast in-
situ wall panel
50mm dry wall
Mirror
Sink
50mm glazed tiles
Embedd
ed WC
100mm RC slab
150mm precast slab
600mm x 1200mm
Awning window
4.0 / SYSTEM COMPONENTS & DETAIL DRAWINGS
4.8 Prefabricated Steel Roof Truss
1. Even though they are considered to be more expensive, metal roof trusses
can span further than wood.
2. Metal roof trusses can be manufactured to exact standards.
3. They are much more lightweight and this allows for larger shipments. This
reduces the time it takes to get to the project site.
4. Metal roof trusses are fire resistant.
5. They are compatible with almost all types of roofing systems.
6. No insect infestations can occur.
7. Chemical treatments are not necessary to maintain the trusses.
01 Advantages
02 Installation of Pre-cast Roof Truss to Roof Beam (Details)
Metal gusset
Triple grip with 3 screw
connection
150mm Precast ceiling slab
Prefabricated welded mesh
300mm x 300mm
Precast concrete beam
C-channel steel purlin
12mm metal
upper plate
2mm metal
lower plate
10mm Ø plain truss anchor
stud U-shaped
Galvanised steel truss
Metal gusset plate bolted
with truss member
Precast concrete roof
beam
02 Installation of Pre-cast Roof Truss to Roof Beam
1. The prefabricated roof trusses are secured unto the
building via L-brackets and the rafters are bolted on the
trusses.
2. The steel trusses are prefabricated in the steel casting yard.
3. Trusses are transfer by the crane into its position and
bolted into place.
5.0 / SCHEDULE OF MODULAR COMPONENTS
Type
Foundation
F1 F2 F3
Dimension
Isometric
Quantity
Type
Column
C1 C2 C3
Dimension
Isometric
Quantity
C4 C5 C6 C7
2 24 48 3 6 42 6
600
50
400
600
300
400
150
450
150
450
300
600
150
450
450
150
600
400 400
450
300150
27.09
System
System
Foundation Footing
Pre-cast Concrete Column
12 24 8
Foundation Footing Column
Type
B8 B9 B10
Dimension
Isometric
Quantity 25 36 12
Type
Beam
B1 B2 B3
Dimension
Isometric
Quantity
B4 B5 B6 B7
4 12 24 72 12 36 75
Beam
2 400 x 150 x 3150 300 x 150 x 3150 400 x 300 x 2250 300 x 300 x 2250 300 x 300 x 1725 400 x 300 x 1725 300 x 300 x 1400
400 x 300 x 1400 300 x 225 x 1400 400 x 225 x 1400
150
75
250
150
400
250
150
75
225
250
150
300
150
System
System
Pre-cast Concrete Beam
Pre-cast Concrete Beam
Beam
5.0 / SCHEDULE OF MODULAR COMPONENTS
Type
S8 S9
Dimension
Isometric
Quantity 6 6
Type
Slab
S1 S2 S3
Dimension
Isometric
Quantity
S4 S5 S6 S7
6 6 6 6 3 3 12
Slab
150 x 750 x 3150 150 x 4050 x 3150 150 x 2100 x 3150 150 x 1650 x 1800 150 x 2275 x 6450 150 x 2350 x 3575 150 x 1650 x 1200
150 x 1400 x 1250 150 x 1400 x 2200
S10 S11 S12 S13
150 x4050 x 2400 150 x 1400 x2400 150 x 2350 x 2400 150 x 4050 x 3600
6 6 6 6
System
System Pre-cast Concrete Slab
Pre-cast Concrete Slab
Slab
5.0 / SCHEDULE OF MODULAR COMPONENTS
Type
Wall
W1 W2 W3
Dimension
Isometric
Quantity
W4 W5 W6 W7
Type
Wall
W8 W9 W10
Dimension
Isometric
Quantity
W11 W12 W13 W14
6 6 6 6 6 12 6
6 6 6 6 6 6 6
525
3200
300
150
75 75
2700
3002900
55
2900300
900
2900300
1350 150 2400
3200
2900300
150
1950
2400
3200
125 900 1185
1950
3200
1200
1200
3200
300
2250
1100
800
3200
35 35
900
1100
3200
3200
300
1025
3200
1750
2050
3200
1750
900
3002100
System
System
Pre-cast Concrete Wall
Pre-cast Concrete Wall
Wall
5.0 / SCHEDULE OF MODULAR COMPONENTS
Cast In-Situ concrete wall
Cast In-Situ concrete wall
Type
Wall
W15 W16 W17
Dimension
Isometric
Quantity
W18 W19 W20 W21
Type
Wall
W22 W23 W24
Dimension
Isometric
Quantity
W25 W26 W27 W28
6 6 6 6 6 6 6
6 12 3 3 3 3 3
2900300
3150
3200
825
2900
1200
2900
1550 2050
3200
900
2900
2050
2900
1200300
600
1100
3200
2900
1400
2900
1200
3750 3750
2900300
3200
300
450
1000
2275 3225 3150
1000
1000
3200
300
2850
600
2100
System
System
Pre-cast Concrete Wall
Pre-cast Concrete Wall
Wall
5.0 / SCHEDULE OF MODULAR COMPONENTS
Cast In-Situ concrete wall
Cast In-Situ concrete wall
Type
W29 W30
Dimension
Isometric
Quantity
Wall
Type
WD1
Isometric
Quantity
Window
WD3WD2
Type
D1 D2
Isometric
Quantity
Door
3 3
Type
B1
Isometric
Quantity
Balcony
Dimension
6 6
1212 6
42
2050
3200
3200
1975
34.77
16.08 53.89
34.77
54.15
17.15
1200
600
1200
1200 1200
1200
System
SystemSystem
System Pre-cast Concrete Wall
Preferred Sizes for Door Set
Preferred Sizes for Window Set
Railing
Wall Window
Door Balcony
5.0 / SCHEDULE OF MODULAR COMPONENTS
Cast In-Situ concrete wall
Type
Staircase
S1 S2
Isometric
Quantity 2 2
Type
R1
Isometric
Quantity
Roof Truss
R2
6 3
Type
T1
Isometric
Quantity
Toilet Pod
Dimension
18
1200
225
175
175
1200
225
3200
1400 2050
900600
3200
11000 5000
6900
19500
1200
2100
System
System
SystemPre-cast Concrete Staircase
Steel Roof Trusses
Pre-cast Concrete Toilet Pod
Staircase Toilet Pod
Roof Truss
5.0 / SCHEDULE OF MODULAR COMPONENTS
6.0 / IBS SCORE CALCULATION
Elements Area​ ​(m​2​ ​​
)​ ​/
Length​ ​(m)
IBS
factor
Coverage IBS​ ​score
Part​ ​1​ ​:​ ​Structure​ ​Elements
Prefabricated​ ​Steel​ ​Truss 199.38m​2
1.0 199.38​ ​/​ ​755.94
=0.26
50​ ​x​ ​0.26​ ​x​ ​1.0
=​ ​13.0
Precast​ ​Concrete​ ​Beams​ ​&
Columns​ ​with​ ​Precast
Concrete​ ​Solid​ ​Flat​ ​Slab
Total​ ​area​ ​=​ ​185.52m​2​
​ ​x​ ​3
​ ​​ ​​ ​​ ​​ ​​ ​​ ​​ ​​ ​​ ​​ ​​ ​​ ​​ ​​ ​​ ​​ ​​ ​​ ​​ ​Storey
​ ​​ ​​ ​​ ​​ ​​ ​​ ​​ ​​ ​​ ​​ ​​ ​​ ​​ ​​ ​​ ​​ ​=​ ​556.56m​2
556.56m​2
1.0 556.56​ ​/​ ​755.94
=0.74
50​ ​x​ ​0.74​ ​x​ ​1.0
=​ ​37.0
Total​ ​Part​ ​1 755.94m​2
1.00 50.0
Part​ ​2​ ​:​ ​Wall​ ​System
Internal​ ​wall​ ​:​ ​In-situ
Concrete​ ​with​ ​Reusable
System​ ​Formwork
Total​ ​length​ ​=​ ​79.10m​ ​x​ ​3
​ ​​ ​​ ​​ ​​ ​​ ​​ ​​ ​​ ​​ ​​ ​​ ​​ ​​ ​​ ​​ ​​ ​​ ​​ ​​ ​​ ​​ ​​ ​Storey
​ ​​ ​​ ​​ ​​ ​​ ​​ ​​ ​​ ​​ ​​ ​​ ​​ ​​ ​​ ​​ ​​ ​​ ​​ ​​ ​=​ ​237.30m
237.30m 0.5 237.70​ ​/​ ​434.10
=​ ​0.55
20​ ​x​ ​0.55​ ​x​ ​0.5
=​ ​5.5
External​ ​Wall​ ​:​ ​In-situ
Concrete​ ​with​ ​Reusable
System​ ​Formwork
Total​ ​length​ ​=​ ​65.60m​ ​x​ ​3
​ ​​ ​​ ​​ ​​ ​​ ​​ ​​ ​​ ​​ ​​ ​​ ​​ ​​ ​​ ​​ ​​ ​​ ​​ ​​ ​​ ​​ ​​ ​Storey
​ ​​ ​​ ​​ ​​ ​​ ​​ ​​ ​​ ​​ ​​ ​​ ​​ ​​ ​​ ​​ ​​ ​​ ​​ ​​ ​=​ ​196.80m
196.80m 0.5 196.80​ ​/​ ​434.10
=​ ​0.45
20​ ​x​ ​0.45​ ​x​ ​0.5
=​ ​4.5
Total​ ​Part​ ​2 434.10m 1.00 10.0
Part​ ​3​ ​:​ ​Other​ ​Simplified
Construction​ ​Solutions
100%​ ​beam​ ​dimensions
complies​ ​to​ ​MS​ ​1064
100% 4
100%​ ​column​ ​dimension
complies​ ​to​ ​MS​ ​1064
100% 4
100%​ ​door​ ​sizes​ ​complies​ ​to
MS​ ​1064
70% 2
100%​ ​window​ ​complies​ ​to
MS​ ​1064
100% 4
0%​ ​wall​ ​complies​ ​to​ ​MS
1064
0% 0
Horizontal​ ​repetition​ ​to
structure​ ​=​ ​100%
100% 2
Vertical​ ​repetition​ ​of
structural​ ​floor​ ​layout​ ​=100%
100% 2
Repetition​ ​of​ ​floor​ ​to​ ​floor
height​ ​=​ ​100%
100% 2
Total​ ​Part​ ​3 20
IBS​ ​Contents​ ​Score
of​ ​Project​ ​(Part​ ​1​ ​+​ ​Part​ ​2​ ​+
Part​ ​3)
80
1.Construction​ ​Area
i.​ ​​ ​Construction​ ​area​ ​of​ ​1-unit​ ​apartment​ ​​ ​​ ​​ ​=​ ​76.59m​2
ii.​ ​​ ​Lobby​ ​area​ ​​ ​​ ​​ ​​ ​​ ​​ ​​ ​​ ​​ ​​ ​​ ​​ ​​ ​​ ​​ ​​ ​​ ​​ ​​ ​​ ​​ ​​ ​​ ​​ ​​ ​​ ​​ ​​ ​​ ​​ ​​ ​​ ​​ ​​ ​​ ​​ ​​ ​​ ​​ ​​ ​​ ​​ ​​ ​​ ​=​ ​32.34m​2
iii.​ ​Construction​ ​area​ ​for​ ​1​ ​floor​ ​​ ​​ ​​ ​​ ​​ ​​ ​​ ​​ ​​ ​​ ​​ ​​ ​​ ​​ ​​ ​​ ​​ ​=​ ​(76.59​ ​x​ ​2​ ​units​ ​+​ ​32.34)
​ ​​ ​​ ​​ ​​ ​​ ​​ ​​ ​​ ​​ ​​ ​​ ​​ ​​ ​​ ​​ ​​ ​​ ​​ ​​ ​​ ​​ ​​ ​​ ​​ ​​ ​​ ​​ ​​ ​​ ​​ ​​ ​​ ​​ ​​ ​​ ​​ ​​ ​​ ​​ ​​ ​​ ​​ ​​ ​​ ​​ ​​ ​​ ​​ ​​ ​​ ​​ ​​ ​​ ​​ ​​ ​​ ​​ ​​ ​​ ​​ ​​ ​​ ​​ ​​ ​​ ​​ ​=​ ​185.52m​2
iv.​ ​Construction​ ​area​ ​of​ ​roof​ ​​ ​​ ​​ ​​ ​​ ​​ ​​ ​​ ​​ ​​ ​​ ​​ ​​ ​​ ​​ ​​ ​​ ​​ ​​ ​​ ​​ ​​ ​=​ ​199.38m​2
Total​ ​Construction​ ​Area​ ​​ ​​ ​​ ​​ ​​ ​​ ​​ ​​ ​​ ​​ ​​ ​​ ​​ ​​ ​​ ​​ ​​ ​​ ​​ ​​ ​​ ​​ ​​ ​​ ​​ ​​=​ ​Ground​ ​Floor​ ​Area​ ​+​ ​First​ ​Floor​ ​Area​ ​+
​ ​​ ​​ ​​ ​​ ​​ ​​ ​​ ​​ ​​ ​​ ​​ ​​ ​​ ​​ ​​ ​​ ​​ ​​ ​​ ​​ ​​ ​​ ​​ ​​ ​​ ​​ ​​ ​​ ​​ ​​ ​​ ​​ ​​ ​​ ​​ ​​ ​​ ​​ ​​ ​​ ​​ ​​ ​​ ​​ ​​ ​​ ​​ ​​ ​​ ​​ ​​ ​​ ​​ ​​ ​​ ​​ ​​ ​​ ​​ ​​ ​​ ​​ ​​ ​​ ​​ ​​ ​​ ​​ ​​ ​Second​ ​Floor​ ​Area​ ​+​ ​Roof​ ​Level​ ​Area
​ ​​ ​​ ​​ ​​ ​​ ​​ ​​ ​​ ​​ ​​ ​​ ​​ ​​ ​​ ​​ ​​ ​​ ​​ ​​ ​​ ​​ ​​ ​​ ​​ ​​ ​​ ​​ ​​ ​​ ​​ ​​ ​​ ​​ ​​ ​​ ​​ ​​ ​​ ​​ ​​ ​​ ​​ ​​ ​​ ​​ ​​ ​​ ​​ ​​ ​​ ​​ ​​ ​​ ​​ ​​ ​​ ​​ ​​ ​​ ​​ ​​ ​​ ​​ ​​ ​​ ​​ ​=​ ​755.94m​2
2.​ ​Structural​ ​System
i.​ ​​ ​​ ​​ ​Beams​ ​​ ​​ ​​ ​​ ​​ ​​ ​​ ​​ ​​ ​​ ​:​ ​​ ​​ ​​ ​Precast​ ​Concrete​ ​Beam
ii.​ ​​ ​​ ​Columns​ ​​ ​​ ​​ ​​ ​​ ​​ ​​ ​:​ ​​ ​​ ​​ ​Precast​ ​Concrete​ ​Column
iii.​ ​​ ​Floor​ ​Slabs​ ​​ ​​ ​​ ​:​ ​​ ​​ ​Precast​ ​Concrete​ ​Solid​ ​Flat​ ​Slab
iv.​ ​​ ​Roof​ ​Truss​ ​​ ​​ ​​ ​:​ ​​ ​​ ​​ ​Prefabricated​ ​Steel​ ​Truss
3.​ ​Wall​ ​System
i.​ ​​ ​​ ​​ ​Exterior​ ​Walls​ ​​ ​​ ​​ ​​ ​​ ​​ ​:​ ​​ ​​ ​​ ​In-situ​ ​Concrete​ ​with​ ​Reusable​ ​System​ ​Formwork
ii.​ ​​ ​​ ​Interior​ ​Walls​ ​​ ​​ ​​ ​​ ​​ ​​ ​​ ​:​ ​​ ​​ ​​ ​In-situ​ ​Concrete​ ​with​ ​Reusable​ ​System​ ​Formwork
4.​ ​Other​ ​simplified​ ​construction​ ​solutions
i.​ ​​ ​Beam​ ​​ ​​ ​​ ​​ ​​ ​:​ ​​ ​100%​ ​complies​ ​to​ ​MS​ ​1064
​ ​​ ​​ ​​ ​Column​ ​​ ​​ ​:​ ​​ ​100%​ ​complies​ ​to​ ​MS​ ​1064
​ ​​ ​​ ​​ ​Door​ ​​ ​​ ​​ ​​ ​​ ​​ ​​ ​:​ ​​ ​100%​ ​complies​ ​to​ ​MS​ ​1064
​ ​​ ​​ ​​ ​Window​ ​​ ​​ ​:​ ​​ ​100%​ ​complies​ ​to​ ​MS​ ​1064
ii.​ ​Horizontal​ ​repetition​ ​of​ ​structure​ ​​ ​​ ​​ ​​ ​​ ​​ ​​ ​​ ​​ ​​ ​​ ​​ ​​ ​​ ​​ ​​ ​​ ​:​ ​100%
​ ​​ ​​ ​​ ​Vertical​ ​repetition​ ​of​ ​structural​ ​floor​ ​layout​ ​​ ​​ ​:​ ​100%
​ ​​ ​​ ​​ ​Repetition​ ​of​ ​floor​ ​to​ ​floor​ ​height​ ​​ ​​ ​​ ​​ ​​ ​​ ​​ ​​ ​​ ​​ ​​ ​​ ​​ ​​ ​​ ​​ ​​ ​:​ ​100%
6.0 / IBS SCORE CALCULATION
7.0 / CONCLUSION
IBS has improved the building construction industry significantly, and there are many
advantages of constructing building by using IBS. After studying the IBS building
construction methods and the construction process, we determined that IBS requires
less construction time because casting of forecast element at factory and foundation
work at site can occur simultaneously and the work at site is only the erection of IBS
components. This leads to earlier occupation of the building.
Not only that, it plays an important role in reducing labour at site. The use of IBS will
reduce the construction process at site and consequently reduce the number of labour
required at site. Furthermore, IBS can reduce total cost of construction. The formwork of
IBS components are made of steel, aluminium or other materials that allows for repetitive
use and this leads to considerable cost savings. Besides that, building constructed with
IBS has higher quality and better finishes. An IBS component have quality and better
finishes de to the careful selection of materials, use of advanced technology, better and
strict quality assurance control since production in factory is under sheltered
environment.
However, there is still lack in awareness of these benefits among players in the
construction sector. Therefore, it is important that the government or constructor
promoting the use of IBS, advocate the use of IBS to reduce construction time
consuming, cost, labour, and most importantly safer and systematic factory working
environment.
8.0 / REFERENCE
1. Blanc, A., McEvay, M., Plank, R. (ed). 1983. Architecture and Construction in Steel. London: E + FN
2. Editor, P. (2016, December 19). More Affordable Homes In Malaysia: Building Homes Cheaper And Faster. Retrieved October 07, 2017, from https://www.propsocial.my/
topic/903/more-affordable-homes-in-malaysia-building-homes-cheaper-and-faster-posted-by-propsocial-editor

3. Ltd, S. E. (n.d.). GEOPANEL - Modular reusable plastic formworkThe universal panel for walls. Retrieved October 07, 2017, from http://www.everitts.co.nz/concrete-
formwork/geopanel-modular-reusable-plastic-formwork.php
4. Lyall, Sutherland. Remarkable Structures: Engineering Today's Innovative Buildings. Princeton Achitectural Press, New York.
5. M. P. (Ed.). (2016, September 9). REHDA in talks with govt over incentives for developers using IBS. Retrieved October 07, 2017, from http://
www.malaysiapropertynews.com.my/2016/09/rehda-in-talks-with-govt-over-incentives-for-developers-using-ibs-.htm
6. Zakariah, Z. (2015, October 23). IBS gets a boost in 2016 Budget. Retrieved October 07, 2017, from https://www.nst.com.my/news/2015/10/ibs-gets-boost-2016-budget

B tech final report pdf

  • 1.
    BUILDING TECHNOLOGY BLD 61403/ Industrialised Building System ANG AVERLLEN CHONG WEN BIN FOONG WING HOE IGNATIUS JEE SHAO LANG TAN WUI XIANG YEN WEI ZHENG 0321444 0327442 0320085 0320069 0321128 0320266 MR. KHAIROOL AIZAT AHMAD JAMAL TUTOR /
  • 2.
    CONTENT 1.0 Concept &Framework of IBS 1.1 Introduction 1.2 Advantages of IBS 1.3 Classification 1.4 Sequence of activity of IBS Construction Method 1.5 Case Study 2.0 Drawings 2.1 Plan 2.1.1 Floor Plan (Unit) 2.1.2 Foundation Plan 2.1.3 Structural Plan 2.1.4 Roof Plan 2.2 Elevation 2.3 Section 3.0 Sequence of Construction 3.1 Axonometric Drawing 3.2 Sequence of Construction 4.0 System Components & Detail Drawings 4.1 Foundation Footing 4.2 Pre-cast Concrete Column 4.3 Pre-cast Concrete Beam 4.4 Pre-cast Concrete Solid Flat Slab 4.5 In-Situ Concrete Wall 4.6 Pre-cast Concrete Staircase & Landing 4.7 Pre-cast Concrete Toilet Pod 4.8 Prefabricated Steel Roof Truss 5.0 Schedule of modular components 6.0 IBS score calculation 7.0 Conclusion 8.0 Reference
  • 3.
    Industrialised building system(IBS) is a term used in Malaysia for a technique of construction where by components are manufactured in a controlled environment, either at site or off site, placed and assembled into construction works. Worldwide, IBS is also known as Pre-fabricated/ Pre-fab Construction, Modern Method of Construction (MMC) and Off- site Construction. In simple terms, it is mass-producing the parts of a building and assembling them during construction- a little like Lego, but much more complicated, and certainly not as easy as a robot that builds and entire house in just 2 days. CIDB Malaysia, through IBS Centre is promoting the usage of IBS to increase productivity and quality at construction sites through various promotion programmes, training and incentives. The content of IBS (IBS Score) is determined based on the Construction Industry Standard 18 (CIS 18: 2010); either manually, web application or fully automated CAD- based IBS Score calculator. 1.0 / CONCEPT & FRAMEWORK OF IBS According to MIDA 2015, it has as many as 96 companies approved with manufacturing license with incentives/ without incentives. There are 210 IBS manufacturers registered with CIDB under the Assessment of IBS Status (AIS) for certification of components, companies and installers. Another updates from MIDA is that CIDB aims to increase 100 new IBS manufacturers by 2020 to be driven by various initiatives under the Construction Industry Transformation Programme (CITP). 96 companies 210 IBS manufacturers 100 new IBS by 2020 COST SAVING 01 02 03 04 05 06 LESS LABOUR AT SITE LESS CONSTRUCTION TIME REDUCE OVERALL COST FLEXIBILITY IN ARCHITECTURAL DESIGN WASTE REDUCTION 07 08 09 OPTIMISED USE OF MATERIALS BETTER QUALITY & FINISHES INCREASE SITE SAFETY 1.1 Introduction 1.2 Advantages of IBS Current Status of IBS in Malaysia /
  • 4.
    The Malaysian constructionindustry is undergoing a transitional change from an industry employing conventional technology to one which is more systematic and mechanised. Based on structural classification by CIDB, there are 5 main IBS groups identified as being popularly used in Malaysia.There are various Industrialised Building System (IBS) used throughout the world, and they can be classified into 3 major categories. The typical classification are shown on top. Frame/Post & Beam Panel System Box System Pre-cast Concrete Framing/Panel/Box Steel Formwork Pre-cast columns, beams, slabs, 3D components (balconies, staircases, toilets, lift chambers), permanent concrete formwork. Steel Framing Prefabricated Timber Framing Block Work Tunnel forms, beams and columns moulding forms, permanent steel formwork (metal decks). Steel beams and columns, portal frame and roof trusses. Timber frames and roof trusses. Interlocking concrete masonry units (CMU), lightweight concrete blocks. 1.0 / CONCEPT & FRAMEWORK OF IBS 1.3 Classification (Typical) 1.3 Classification (Malaysia)
  • 5.
    1.0 / CONCEPT& FRAMEWORK OF IBS 1.4 Sequence of Activity of IBS Construction Method The process of study and design, then finalise the design and choose the most suitable IBS method to construct the building. 1 /DESIGN Manufacturing the pre-cast components off-site under a sheltered environment (factory etc). 2 /PRODUCTION LINE Gather the completed components (slab/ wall/beam/roof truss/column etc) before delivering to the site. Assembling and erecting all the pre-cast components to form a final unit. 6 /FORM A FINAL UNIT When the components have delivered to the site, construction workers will proceed to assembling process. For example, connecting pre-cast staircase to slab. 5 /ASSEMBLE & ERECTION Transporting complete assemblies or sub-assemblies to the final construction site where the structure to be located by using heavy truck. 4 /DELIVERY 3 /PRODUCTION LINE
  • 6.
    1.0 / CONCEPT& FRAMEWORK OF IBS 1.5 Case Study SERI BAISURI by JMB MALAYSIA Seri Baiduri is a freehold apartment in Shah Alam, Selangor. There are 4 blocks with 10 storeys each. There are a total of 640 units, with 16 units per floor. Each block comes with two lifts.Built-up for each unit is 920 sq ft, featuring 3 bedrooms and 2 bathrooms. Each unit also comes with two open carpark bays. 01 Background 02 Full IBS Factor Pre-cast system: 1. Column 2. Beam 3. Slab 4. Staircase Steel Framing System 1. Steel Roof Trusses 03 Partial IBS Factor 1. Reusable system formwork for in-situ concrete structures 2. Custom window and door sets Pre-cast components: 1. Pre-cast wall, column, beam 2. Pre-cast hollow core slab 3. Pre-cast toilet pod 4. Pre-cast staircase & landing 5. Pre-cast load bearing walls 04 Conventional Construction 1. Foundation 2. Ground floor 3. Transfer beam 4. RC Slab 05 NIL IBS Factor 1. Timber formwork Cutting down on construction costs and time, IBS could potentially be the future of affordable housing in Malaysia. Adoption of this technology on a large scale will encourage even lower construction prices, resulting in the ability to build cheaper, quality homes at a faster rate. Why IBS?
  • 7.
    2.0 / DRAWINGS 2.1PLAN 2.1.1 Floor Plan (Unit) KITCHEN DINNING LIVING BAL BEDROOM 3 BATH 1 MASTER ROOM BATH 2 BATH 3 BEDROOM 2 KITCHEN DINNING LIVING BAL BEDROOM 3 BATH 1 MASTER ROOM BATH 2 BATH 3 BEDROOM 2 A B C D E F G H I J K 1 2 3 4 5 6 7 8 FOYER Scale: NTS
  • 8.
    2.0 / DRAWINGS 2.1PLAN 2.1.2 Foundation Plan A B C D E F G H I J K 1 2 3 4 5 6 7 8 Scale: NTS
  • 9.
    2.1.3 Structural Plan AB C D E F G H I J K 1 2 3 4 5 6 7 8 2.0 / DRAWINGS 2.1 PLAN Scale: NTS
  • 10.
    2.1.4 Roof Plan 2.0/ DRAWINGS 2.1 PLAN A B C D E F G H I J K 1 2 3 4 5 6 7 8 Scale: NTS
  • 11.
    2.2 Elevation 2.0 /DRAWINGS Front Elevation Back Elevation
  • 12.
    Left Elevation RightElevation 2.0 / DRAWINGS 2.2 Elevation
  • 13.
    2.0 / DRAWINGS 2.3Section Side SectionFront Section
  • 14.
    3.0 / SEQUENCEOF CONSTRUCTION 3.1 Axonometric Cast In-Situ Concrete Wall Foundation Footing Pre-cast Concrete Column Pre-cast Concrete Beam Prefabricated Steel Roof Truss Pre-cast Concrete Staircase Pre-cast Concrete Toilet Pod Pre-cast Concrete Solid Flat Slab
  • 15.
    3.0 / SEQUENCEOF CONSTRUCTION 3.2 Sequence of Construction 1 2 3FOUNDATION FOOTING The construction process starts with the site excavation then foundation making. Placement of footings is crucial to provide the proper support for the foundation and ultimately the structure. Footings are made of concrete with rebar reinforcement that has been poured into an excavated trench. GROUND BEAM The foundation footings will then be connected to the ground beam. The ground beams support most of the building load. PRE-CAST CONCRETE SOLID FLAT SLAB TO BEAM The pre-cast concrete solid flat slab will then delivered to the site and install. The slab will be connected to each other by using cement grout. It will also be connected to the beam to the key way using steel bars. The joint will then be once again curated to fully secure the joint. 4 PRE-CAST CONCRETE COLUMN TO FOOTING Next, install the pre-cast concrete column, connect it to the foundation footings. The column will be fixed in position with galvanised washer, nuts and bolts
  • 16.
    3.0 / SEQUENCEOF CONSTRUCTION 3.2 Sequence of Construction 5 PRE-CAST CONCRETE BEAM TO COLUMN After the pre-cast concrete columns are being erected, then install the pre- cast concrete beam to the column. The beams are set on bearing pads on the column corbels. Steel angles are welded to metal plates cast into the beams and columns and the joint is grouted solid. 6 CAST IN-SITU CONCRETE WALL After the overall frame work has been done, setting up the formwork for cast in- situ concrete wall. Formwork plastic panel allows the production of walls of any thickness and height. The formwork is reusable and recyclable. 7 BUILDING UP THE STRUCTURE In this case of apartment where it contains 3 levels, the process and sequence is same goes to the first and second floor. (Column -> Beam -> Wall)
  • 17.
    PREFABRICATED STEEL ROOF TRUSSTO ROOF BEAM While the overall structure is complete, the steel roof trusses will be connected to the pre-cast roof beam. 3.0 / SEQUENCE OF CONSTRUCTION 3.2 Sequence of Construction 8 P R E - C A S T C O N C R E T E STAIRCASE Lift and rig the staircase to its designated location with the use of wire ropes. The precast staircase is mount to the beam. The landing of the staircase will be connecting to the wall also by using bolt. 9 10 COMPLETED STRUCTURE The final step will be installing the roof shingles to prevent water and direct sunlight penetrate into the building.
  • 18.
    4.0 / SYSTEMCOMPONENTS & DETAIL DRAWINGS 4.1 Foundation Footing 300mm x 300mm Precast column is placed on top of footing 600mm x 600mm x 150mm Foundation footing Fixed in position with galvanised washer, nuts and bolts Grout to be filled in to protect the joints from fire and corrosion. Footings are an important part of foundation construction. They are typically made of concrete with rebar reinforcement that has been poured into an excavated trench. The purpose of footings is to support the foundation and prevent settling. Footings are especially important in areas with troublesome soils. Concrete footings may also be needed for projects such as a deck, pergola, retaining wall or other types of construction. 01 General Information 02 Installation Method of Column to Footing 1 2 3 Column Shoe Formwork of Foundation Footing:
  • 19.
    4.0 / SYSTEMCOMPONENTS & DETAIL DRAWINGS 4.2 Pre-cast Concrete Column Precast Concrete Columns can be circular, square or rectangular. Concrete Columns can be designed and manufactured to client specifications and can incorporate additional features and fittings. Precast Concrete Columns are generally considered for use on in-situ concrete flat slab projects where there s a high demand on tower crane hook time and tight construction programmes. 01 General Information 02 Advantages 1. Unaffected by site weather conditions. 2. Reduction in labour requirement on site. 3. Pre-cast column can be erected 5 times faster than an in- situ column. 4. Ability to achieve high quality and uniform finish. 5. Substantial health & safety dividend. 6. The erection process of the pre-cast column is a silent process which can take place anytime. 7. When using high strength concrete, a reduction in reinforcement steel can be achieve. 03 Installation Process Pre-cast concrete column reinforced with rebars Metal shim Metal bearing plate and embedded anchor bolts are casted on the ends of columns 1 2 The embedded anchor bolts extruding from the pile caps are attach with the metal bearing plate fixed at the end of upper column with galvanised metal nuts, which is then welded to prevent rotation of structure. 3 The four open corners of column section is entirely dry packed with grout to protect the metal joint from fire and corrosion. 300mm x 300mm Precast column Metal shim with 15mm thickness Anchor rebar boltsGalvanised metal nut 20mm Metal bearing plate with 15mm thickness
  • 20.
    4.0 / SYSTEMCOMPONENTS & DETAIL DRAWINGS 4.3 Pre-cast Concrete Beam The beams are set on bearing pads on the column corbels. Steel angles are welded to metal plates cast into the beams and columns and the joint is grouted solid. Precast concrete beam and block is the rapid solution to high quality, economical concrete floor construction. The prestressed concrete beams are manufactured in lengths to suit each application, and beam spacing can be adjusted to suit anticipated loads. 01 General Information Reinforcing for corbels 02 Installation Method of Beam to Column Weld plate cast into beams Stirrups Prestressed tendons Bearing pad on corbel 300mm x 300mm Precast concrete beam 1. Installation of beam is weather independent reducing site delays. 2. Minimise excavations; of particular benefit where excavated material must be removed from site. 3. Beams offer cost and time savings with close tolerances. 4. Strong in torsion compared to structural-steel beams and requires a lesser structural requirement on the connection. 5. Structurally efficient beams can be left exposed with natural finishes. 02 Advantages
  • 21.
    4.0 / SYSTEMCOMPONENTS & DETAIL DRAWINGS 4.4 Pre-cast Concrete Solid Flat Slab Flat slabs are highly versatile elements widely used in construction, providing minimum depth, fast construction and allowing flexible column grids. 01 General Information 1. Construction: Construction of flat slabs is one of the quickest methods available. Lead times are very short as this is one of the most common forms of construction. 2. Cost, whole life cost, value: Flat slabs are considered to be faster and more economic than other forms of construction, as partition heads do not need to be cut around down-stand beams or ribs. 3. Mechanical and engineering: Flat slabs provide the most flexible arrangements for services distribution as services do not have to divert around structural elements. 02 Advantages 1. Solid flat slabs are set on bearing pads on precast beams 2. The steel reinforcing bars are inserted into the slab keyways to span the joint. 3. The reinforced bars is then slotted in to interlock with the beam s stirrup. 4. The joint is then grouted solid 5. The slab may remain untopped as shown, or topped with several inches of cast in place concrete 02 Installation Process 10mm Ø Steel loop tie bar 300mm x 300mm Precast column 150mm x 900mm Precast solid flat slab 10mm Ø stirrup 300mm x 300mm Precast beam Prefabricated welded mesh 100mm thick cast in- situ cement screed Floor slab seam joined together with concrete grout Water proofing membrane 16mm Ø Reinforced bar
  • 22.
    4.0 / SYSTEMCOMPONENTS & DETAIL DRAWINGS 4.5 In-situ Concrete Wall Formwork plastic panel allows the production of walls of any thickness and height. As the panels are made of plastic material (ABS), the concrete finish is extremely smooth and uniform, ensuring high quality. The panels are handled effortlessly as they are extremely light (max. 11 kg) making production fast even with a single worker. Most importantly, the panels are reusable. 01 General Information 02 Formwork Components Formwork layout: The wide range of items and sizes meet any requirements. Anchoring to the ground to stabilise the formwork is simply done using timber. Ground anchoring Shoring The shoring is performed using a steel bracket to connect push-pull props to the formwork in order to prevent the formwork toppling. The brackets are available in various sizes to suit any commercially available props. Pouring cement into the shutter formwork
  • 23.
    4.0 / SYSTEMCOMPONENTS & DETAIL DRAWINGS 4.5 In-situ Concrete Wall 03 Advantages of Formwork02 Formwork Components A / Handle B / Spacer C / Panel 120x60 D / Tie rod E / Alignment bar F / Anchor nut 1. Lightweight material 2. Faster to assemble 3. Modular installation parts 4. Water resistant 5. Versatile in shapes and curves 6. Reusable and cost effective 7. Easily kept and can be store in smaller places The handle functions as an important component to connect and secure them in place.
  • 24.
    4.0 / SYSTEMCOMPONENTS & DETAIL DRAWINGS 4.6 Pre-cast Concrete Staircase & Landing 03 Advantages 1. High quality finish gives durable concrete staircase for long maintenance free life. 2. Saving of space on site. 3. Dense pre-cast concrete gives excellent acoustic properties addressing sound transfer issues. 4. Obvious choice for fire escape stairs. 5. Durable and maintenance free service. 6. Rapid installation & early safe access to subsequent floors for trades ad materials. Precast concrete stairs and landings are the ideal solution for fast track high quality concrete staircase construction. Precast concrete landings can be designed as individual units or can be manufactured as complete precast stair flight and attached landing. Precast landings can be attached to the top or bottom of the precast stair flight, or supplied with both top and bottom landings. 01 General Information 02 Installation Process Setting out Lifting & Installation Joint casting & Sealing Rebate cast-in floor slab for angle connection Pre-cast landing angle support Applied finish to landing area by others to accomodate manufacturing, building & fixing tolerance The stairs are supported on soft pads at discrete points, a joint separate wall and stair. Lift and rig the staircase to its designated location with the use of wire ropes. Installation of staircase produced simultaneously with the construction of walls. The final step is to joint the pre-cast staircase to the wall. Set reference and offset line to determine the position of the pre- cast staircase to be installed.
  • 25.
    4.0 / SYSTEMCOMPONENTS & DETAIL DRAWINGS 4.7 Pre-cast Concrete Toilet Pod 50mm thick dry wall 50mm thick glazed tiles 100mm RC slab Opening for lighting and exhaust fan installation Prefabricated bathrooms are self-supporting sanitary pods. These complete structures are factory assembled, including all walls, ceiling and floor. The final fit out is then installed within the basic structure. This includes tiling, wall, coatings, sanitary appliances and all mechanical and electrical installations (with termination of services at a pre-agreed point, normally within a pre-formed service area). 01 General Information 1. Speeds up the building process with up to an 80% time saving. 2. All design guidelines can be implemented and controlled. 3. Lightweight ‒ offering cost savings on building structure. 4. Numerous combinations of the structural elements and modular assembly. 5. Watertight, leakage resistance. 02 Advantages 150mm cast in- situ wall panel 50mm dry wall Mirror Sink 50mm glazed tiles Embedd ed WC 100mm RC slab 150mm precast slab 600mm x 1200mm Awning window
  • 26.
    4.0 / SYSTEMCOMPONENTS & DETAIL DRAWINGS 4.8 Prefabricated Steel Roof Truss 1. Even though they are considered to be more expensive, metal roof trusses can span further than wood. 2. Metal roof trusses can be manufactured to exact standards. 3. They are much more lightweight and this allows for larger shipments. This reduces the time it takes to get to the project site. 4. Metal roof trusses are fire resistant. 5. They are compatible with almost all types of roofing systems. 6. No insect infestations can occur. 7. Chemical treatments are not necessary to maintain the trusses. 01 Advantages 02 Installation of Pre-cast Roof Truss to Roof Beam (Details) Metal gusset Triple grip with 3 screw connection 150mm Precast ceiling slab Prefabricated welded mesh 300mm x 300mm Precast concrete beam C-channel steel purlin 12mm metal upper plate 2mm metal lower plate 10mm Ø plain truss anchor stud U-shaped Galvanised steel truss Metal gusset plate bolted with truss member Precast concrete roof beam 02 Installation of Pre-cast Roof Truss to Roof Beam 1. The prefabricated roof trusses are secured unto the building via L-brackets and the rafters are bolted on the trusses. 2. The steel trusses are prefabricated in the steel casting yard. 3. Trusses are transfer by the crane into its position and bolted into place.
  • 27.
    5.0 / SCHEDULEOF MODULAR COMPONENTS Type Foundation F1 F2 F3 Dimension Isometric Quantity Type Column C1 C2 C3 Dimension Isometric Quantity C4 C5 C6 C7 2 24 48 3 6 42 6 600 50 400 600 300 400 150 450 150 450 300 600 150 450 450 150 600 400 400 450 300150 27.09 System System Foundation Footing Pre-cast Concrete Column 12 24 8 Foundation Footing Column
  • 28.
    Type B8 B9 B10 Dimension Isometric Quantity25 36 12 Type Beam B1 B2 B3 Dimension Isometric Quantity B4 B5 B6 B7 4 12 24 72 12 36 75 Beam 2 400 x 150 x 3150 300 x 150 x 3150 400 x 300 x 2250 300 x 300 x 2250 300 x 300 x 1725 400 x 300 x 1725 300 x 300 x 1400 400 x 300 x 1400 300 x 225 x 1400 400 x 225 x 1400 150 75 250 150 400 250 150 75 225 250 150 300 150 System System Pre-cast Concrete Beam Pre-cast Concrete Beam Beam 5.0 / SCHEDULE OF MODULAR COMPONENTS
  • 29.
    Type S8 S9 Dimension Isometric Quantity 66 Type Slab S1 S2 S3 Dimension Isometric Quantity S4 S5 S6 S7 6 6 6 6 3 3 12 Slab 150 x 750 x 3150 150 x 4050 x 3150 150 x 2100 x 3150 150 x 1650 x 1800 150 x 2275 x 6450 150 x 2350 x 3575 150 x 1650 x 1200 150 x 1400 x 1250 150 x 1400 x 2200 S10 S11 S12 S13 150 x4050 x 2400 150 x 1400 x2400 150 x 2350 x 2400 150 x 4050 x 3600 6 6 6 6 System System Pre-cast Concrete Slab Pre-cast Concrete Slab Slab 5.0 / SCHEDULE OF MODULAR COMPONENTS
  • 30.
    Type Wall W1 W2 W3 Dimension Isometric Quantity W4W5 W6 W7 Type Wall W8 W9 W10 Dimension Isometric Quantity W11 W12 W13 W14 6 6 6 6 6 12 6 6 6 6 6 6 6 6 525 3200 300 150 75 75 2700 3002900 55 2900300 900 2900300 1350 150 2400 3200 2900300 150 1950 2400 3200 125 900 1185 1950 3200 1200 1200 3200 300 2250 1100 800 3200 35 35 900 1100 3200 3200 300 1025 3200 1750 2050 3200 1750 900 3002100 System System Pre-cast Concrete Wall Pre-cast Concrete Wall Wall 5.0 / SCHEDULE OF MODULAR COMPONENTS Cast In-Situ concrete wall Cast In-Situ concrete wall
  • 31.
    Type Wall W15 W16 W17 Dimension Isometric Quantity W18W19 W20 W21 Type Wall W22 W23 W24 Dimension Isometric Quantity W25 W26 W27 W28 6 6 6 6 6 6 6 6 12 3 3 3 3 3 2900300 3150 3200 825 2900 1200 2900 1550 2050 3200 900 2900 2050 2900 1200300 600 1100 3200 2900 1400 2900 1200 3750 3750 2900300 3200 300 450 1000 2275 3225 3150 1000 1000 3200 300 2850 600 2100 System System Pre-cast Concrete Wall Pre-cast Concrete Wall Wall 5.0 / SCHEDULE OF MODULAR COMPONENTS Cast In-Situ concrete wall Cast In-Situ concrete wall
  • 32.
    Type W29 W30 Dimension Isometric Quantity Wall Type WD1 Isometric Quantity Window WD3WD2 Type D1 D2 Isometric Quantity Door 33 Type B1 Isometric Quantity Balcony Dimension 6 6 1212 6 42 2050 3200 3200 1975 34.77 16.08 53.89 34.77 54.15 17.15 1200 600 1200 1200 1200 1200 System SystemSystem System Pre-cast Concrete Wall Preferred Sizes for Door Set Preferred Sizes for Window Set Railing Wall Window Door Balcony 5.0 / SCHEDULE OF MODULAR COMPONENTS Cast In-Situ concrete wall
  • 33.
    Type Staircase S1 S2 Isometric Quantity 22 Type R1 Isometric Quantity Roof Truss R2 6 3 Type T1 Isometric Quantity Toilet Pod Dimension 18 1200 225 175 175 1200 225 3200 1400 2050 900600 3200 11000 5000 6900 19500 1200 2100 System System SystemPre-cast Concrete Staircase Steel Roof Trusses Pre-cast Concrete Toilet Pod Staircase Toilet Pod Roof Truss 5.0 / SCHEDULE OF MODULAR COMPONENTS
  • 34.
    6.0 / IBSSCORE CALCULATION Elements Area​ ​(m​2​ ​​ )​ ​/ Length​ ​(m) IBS factor Coverage IBS​ ​score Part​ ​1​ ​:​ ​Structure​ ​Elements Prefabricated​ ​Steel​ ​Truss 199.38m​2 1.0 199.38​ ​/​ ​755.94 =0.26 50​ ​x​ ​0.26​ ​x​ ​1.0 =​ ​13.0 Precast​ ​Concrete​ ​Beams​ ​& Columns​ ​with​ ​Precast Concrete​ ​Solid​ ​Flat​ ​Slab Total​ ​area​ ​=​ ​185.52m​2​ ​ ​x​ ​3 ​ ​​ ​​ ​​ ​​ ​​ ​​ ​​ ​​ ​​ ​​ ​​ ​​ ​​ ​​ ​​ ​​ ​​ ​​ ​​ ​Storey ​ ​​ ​​ ​​ ​​ ​​ ​​ ​​ ​​ ​​ ​​ ​​ ​​ ​​ ​​ ​​ ​​ ​=​ ​556.56m​2 556.56m​2 1.0 556.56​ ​/​ ​755.94 =0.74 50​ ​x​ ​0.74​ ​x​ ​1.0 =​ ​37.0 Total​ ​Part​ ​1 755.94m​2 1.00 50.0 Part​ ​2​ ​:​ ​Wall​ ​System Internal​ ​wall​ ​:​ ​In-situ Concrete​ ​with​ ​Reusable System​ ​Formwork Total​ ​length​ ​=​ ​79.10m​ ​x​ ​3 ​ ​​ ​​ ​​ ​​ ​​ ​​ ​​ ​​ ​​ ​​ ​​ ​​ ​​ ​​ ​​ ​​ ​​ ​​ ​​ ​​ ​​ ​​ ​Storey ​ ​​ ​​ ​​ ​​ ​​ ​​ ​​ ​​ ​​ ​​ ​​ ​​ ​​ ​​ ​​ ​​ ​​ ​​ ​​ ​=​ ​237.30m 237.30m 0.5 237.70​ ​/​ ​434.10 =​ ​0.55 20​ ​x​ ​0.55​ ​x​ ​0.5 =​ ​5.5 External​ ​Wall​ ​:​ ​In-situ Concrete​ ​with​ ​Reusable System​ ​Formwork Total​ ​length​ ​=​ ​65.60m​ ​x​ ​3 ​ ​​ ​​ ​​ ​​ ​​ ​​ ​​ ​​ ​​ ​​ ​​ ​​ ​​ ​​ ​​ ​​ ​​ ​​ ​​ ​​ ​​ ​​ ​Storey ​ ​​ ​​ ​​ ​​ ​​ ​​ ​​ ​​ ​​ ​​ ​​ ​​ ​​ ​​ ​​ ​​ ​​ ​​ ​​ ​=​ ​196.80m 196.80m 0.5 196.80​ ​/​ ​434.10 =​ ​0.45 20​ ​x​ ​0.45​ ​x​ ​0.5 =​ ​4.5 Total​ ​Part​ ​2 434.10m 1.00 10.0 Part​ ​3​ ​:​ ​Other​ ​Simplified Construction​ ​Solutions 100%​ ​beam​ ​dimensions complies​ ​to​ ​MS​ ​1064 100% 4 100%​ ​column​ ​dimension complies​ ​to​ ​MS​ ​1064 100% 4 100%​ ​door​ ​sizes​ ​complies​ ​to MS​ ​1064 70% 2 100%​ ​window​ ​complies​ ​to MS​ ​1064 100% 4 0%​ ​wall​ ​complies​ ​to​ ​MS 1064 0% 0 Horizontal​ ​repetition​ ​to structure​ ​=​ ​100% 100% 2 Vertical​ ​repetition​ ​of structural​ ​floor​ ​layout​ ​=100% 100% 2 Repetition​ ​of​ ​floor​ ​to​ ​floor height​ ​=​ ​100% 100% 2 Total​ ​Part​ ​3 20 IBS​ ​Contents​ ​Score of​ ​Project​ ​(Part​ ​1​ ​+​ ​Part​ ​2​ ​+ Part​ ​3) 80
  • 35.
    1.Construction​ ​Area i.​ ​​​Construction​ ​area​ ​of​ ​1-unit​ ​apartment​ ​​ ​​ ​​ ​=​ ​76.59m​2 ii.​ ​​ ​Lobby​ ​area​ ​​ ​​ ​​ ​​ ​​ ​​ ​​ ​​ ​​ ​​ ​​ ​​ ​​ ​​ ​​ ​​ ​​ ​​ ​​ ​​ ​​ ​​ ​​ ​​ ​​ ​​ ​​ ​​ ​​ ​​ ​​ ​​ ​​ ​​ ​​ ​​ ​​ ​​ ​​ ​​ ​​ ​​ ​​ ​​ ​=​ ​32.34m​2 iii.​ ​Construction​ ​area​ ​for​ ​1​ ​floor​ ​​ ​​ ​​ ​​ ​​ ​​ ​​ ​​ ​​ ​​ ​​ ​​ ​​ ​​ ​​ ​​ ​​ ​=​ ​(76.59​ ​x​ ​2​ ​units​ ​+​ ​32.34) ​ ​​ ​​ ​​ ​​ ​​ ​​ ​​ ​​ ​​ ​​ ​​ ​​ ​​ ​​ ​​ ​​ ​​ ​​ ​​ ​​ ​​ ​​ ​​ ​​ ​​ ​​ ​​ ​​ ​​ ​​ ​​ ​​ ​​ ​​ ​​ ​​ ​​ ​​ ​​ ​​ ​​ ​​ ​​ ​​ ​​ ​​ ​​ ​​ ​​ ​​ ​​ ​​ ​​ ​​ ​​ ​​ ​​ ​​ ​​ ​​ ​​ ​​ ​​ ​​ ​​ ​​ ​=​ ​185.52m​2 iv.​ ​Construction​ ​area​ ​of​ ​roof​ ​​ ​​ ​​ ​​ ​​ ​​ ​​ ​​ ​​ ​​ ​​ ​​ ​​ ​​ ​​ ​​ ​​ ​​ ​​ ​​ ​​ ​​ ​=​ ​199.38m​2 Total​ ​Construction​ ​Area​ ​​ ​​ ​​ ​​ ​​ ​​ ​​ ​​ ​​ ​​ ​​ ​​ ​​ ​​ ​​ ​​ ​​ ​​ ​​ ​​ ​​ ​​ ​​ ​​ ​​ ​​=​ ​Ground​ ​Floor​ ​Area​ ​+​ ​First​ ​Floor​ ​Area​ ​+ ​ ​​ ​​ ​​ ​​ ​​ ​​ ​​ ​​ ​​ ​​ ​​ ​​ ​​ ​​ ​​ ​​ ​​ ​​ ​​ ​​ ​​ ​​ ​​ ​​ ​​ ​​ ​​ ​​ ​​ ​​ ​​ ​​ ​​ ​​ ​​ ​​ ​​ ​​ ​​ ​​ ​​ ​​ ​​ ​​ ​​ ​​ ​​ ​​ ​​ ​​ ​​ ​​ ​​ ​​ ​​ ​​ ​​ ​​ ​​ ​​ ​​ ​​ ​​ ​​ ​​ ​​ ​​ ​​ ​​ ​Second​ ​Floor​ ​Area​ ​+​ ​Roof​ ​Level​ ​Area ​ ​​ ​​ ​​ ​​ ​​ ​​ ​​ ​​ ​​ ​​ ​​ ​​ ​​ ​​ ​​ ​​ ​​ ​​ ​​ ​​ ​​ ​​ ​​ ​​ ​​ ​​ ​​ ​​ ​​ ​​ ​​ ​​ ​​ ​​ ​​ ​​ ​​ ​​ ​​ ​​ ​​ ​​ ​​ ​​ ​​ ​​ ​​ ​​ ​​ ​​ ​​ ​​ ​​ ​​ ​​ ​​ ​​ ​​ ​​ ​​ ​​ ​​ ​​ ​​ ​​ ​​ ​=​ ​755.94m​2 2.​ ​Structural​ ​System i.​ ​​ ​​ ​​ ​Beams​ ​​ ​​ ​​ ​​ ​​ ​​ ​​ ​​ ​​ ​​ ​:​ ​​ ​​ ​​ ​Precast​ ​Concrete​ ​Beam ii.​ ​​ ​​ ​Columns​ ​​ ​​ ​​ ​​ ​​ ​​ ​​ ​:​ ​​ ​​ ​​ ​Precast​ ​Concrete​ ​Column iii.​ ​​ ​Floor​ ​Slabs​ ​​ ​​ ​​ ​:​ ​​ ​​ ​Precast​ ​Concrete​ ​Solid​ ​Flat​ ​Slab iv.​ ​​ ​Roof​ ​Truss​ ​​ ​​ ​​ ​:​ ​​ ​​ ​​ ​Prefabricated​ ​Steel​ ​Truss 3.​ ​Wall​ ​System i.​ ​​ ​​ ​​ ​Exterior​ ​Walls​ ​​ ​​ ​​ ​​ ​​ ​​ ​:​ ​​ ​​ ​​ ​In-situ​ ​Concrete​ ​with​ ​Reusable​ ​System​ ​Formwork ii.​ ​​ ​​ ​Interior​ ​Walls​ ​​ ​​ ​​ ​​ ​​ ​​ ​​ ​:​ ​​ ​​ ​​ ​In-situ​ ​Concrete​ ​with​ ​Reusable​ ​System​ ​Formwork 4.​ ​Other​ ​simplified​ ​construction​ ​solutions i.​ ​​ ​Beam​ ​​ ​​ ​​ ​​ ​​ ​:​ ​​ ​100%​ ​complies​ ​to​ ​MS​ ​1064 ​ ​​ ​​ ​​ ​Column​ ​​ ​​ ​:​ ​​ ​100%​ ​complies​ ​to​ ​MS​ ​1064 ​ ​​ ​​ ​​ ​Door​ ​​ ​​ ​​ ​​ ​​ ​​ ​​ ​:​ ​​ ​100%​ ​complies​ ​to​ ​MS​ ​1064 ​ ​​ ​​ ​​ ​Window​ ​​ ​​ ​:​ ​​ ​100%​ ​complies​ ​to​ ​MS​ ​1064 ii.​ ​Horizontal​ ​repetition​ ​of​ ​structure​ ​​ ​​ ​​ ​​ ​​ ​​ ​​ ​​ ​​ ​​ ​​ ​​ ​​ ​​ ​​ ​​ ​​ ​:​ ​100% ​ ​​ ​​ ​​ ​Vertical​ ​repetition​ ​of​ ​structural​ ​floor​ ​layout​ ​​ ​​ ​:​ ​100% ​ ​​ ​​ ​​ ​Repetition​ ​of​ ​floor​ ​to​ ​floor​ ​height​ ​​ ​​ ​​ ​​ ​​ ​​ ​​ ​​ ​​ ​​ ​​ ​​ ​​ ​​ ​​ ​​ ​​ ​:​ ​100% 6.0 / IBS SCORE CALCULATION
  • 36.
    7.0 / CONCLUSION IBShas improved the building construction industry significantly, and there are many advantages of constructing building by using IBS. After studying the IBS building construction methods and the construction process, we determined that IBS requires less construction time because casting of forecast element at factory and foundation work at site can occur simultaneously and the work at site is only the erection of IBS components. This leads to earlier occupation of the building. Not only that, it plays an important role in reducing labour at site. The use of IBS will reduce the construction process at site and consequently reduce the number of labour required at site. Furthermore, IBS can reduce total cost of construction. The formwork of IBS components are made of steel, aluminium or other materials that allows for repetitive use and this leads to considerable cost savings. Besides that, building constructed with IBS has higher quality and better finishes. An IBS component have quality and better finishes de to the careful selection of materials, use of advanced technology, better and strict quality assurance control since production in factory is under sheltered environment. However, there is still lack in awareness of these benefits among players in the construction sector. Therefore, it is important that the government or constructor promoting the use of IBS, advocate the use of IBS to reduce construction time consuming, cost, labour, and most importantly safer and systematic factory working environment.
  • 37.
    8.0 / REFERENCE 1.Blanc, A., McEvay, M., Plank, R. (ed). 1983. Architecture and Construction in Steel. London: E + FN 2. Editor, P. (2016, December 19). More Affordable Homes In Malaysia: Building Homes Cheaper And Faster. Retrieved October 07, 2017, from https://www.propsocial.my/ topic/903/more-affordable-homes-in-malaysia-building-homes-cheaper-and-faster-posted-by-propsocial-editor
 3. Ltd, S. E. (n.d.). GEOPANEL - Modular reusable plastic formworkThe universal panel for walls. Retrieved October 07, 2017, from http://www.everitts.co.nz/concrete- formwork/geopanel-modular-reusable-plastic-formwork.php 4. Lyall, Sutherland. Remarkable Structures: Engineering Today's Innovative Buildings. Princeton Achitectural Press, New York. 5. M. P. (Ed.). (2016, September 9). REHDA in talks with govt over incentives for developers using IBS. Retrieved October 07, 2017, from http:// www.malaysiapropertynews.com.my/2016/09/rehda-in-talks-with-govt-over-incentives-for-developers-using-ibs-.htm 6. Zakariah, Z. (2015, October 23). IBS gets a boost in 2016 Budget. Retrieved October 07, 2017, from https://www.nst.com.my/news/2015/10/ibs-gets-boost-2016-budget