2dmuetcourse-110709082805-phpapp02.doc                                    Page 1 of 66




                 Muhammad Atif Khan K.K.
                 Assistant Professor
                 Department Of Mechanical Engineering M.U.E.T. Jamshoro




Defining CAD / CADD
          CAD
Submitted by , MOHAMMAD YOUNUS unushyd@gmail.com                          Page 1 of 66
2dmuetcourse-110709082805-phpapp02.doc                                            Page 2 of 66
           An acronym for Computer Aided Design
           It is synonymously used for Computer Aided Drafting.
          CADD, An acronym for Computer Aided Design & Drafting
           CAD/CADD refers to the use of software and computer for creating precise engineering
           drawings and designs
What is AutoCAD
          It is a general-purpose computer-aided drafting application program.
          It is the largest selling software for Computer Assisted/Aided /Automated Drafting.
          More people use AutoCAD than any other CAD software.
          Today, AutoCAD is translated into 18 languages and used by millions of users worldwide.
          AutoCAD LT is a "scaled down" version of AutoCAD and It costs less. Compared to the
           full edition of AutoCAD, AutoCAD LT lacks several features. Most notably, it has no 3D
           modeling capabilities.
          Autodesk has also developed a few discipline-specific enhancements of AutoCAD, such as,
           AutoCAD Architecture AutoCAD Mechanical, AutoCAD Electrical, AutoCAD Civil 3D,
           and AutoCAD Map 3D are examples of industry-specific CAD applications built on the
           AutoCAD platform.
AutoCAD-Version history
                         Re                                         Ver Re       Date of
    Official      Vers         Date of
                         lea                     Official name      sion lea     release
    name          ion          release
                         se                                              se
    Version 1.0   1.0    1     1982, December    Release 13         N/A     13   1994, November
    Version 1.2   1.2    2     1983, April       Release 14         N/A     14   1997, February
    Version 1.3   1.0    3     1983, August      AutoCAD 2000       15.0    15   1999, March
    Version 1.4   1.4    4     1983, October     AutoCAD 2000i      15.1    16   2000, July
    Version 2.0   2.0    5     1984, October     AutoCAD 2002       15.6    17   2001, June
    Version 2.1   2.1    6     1985, May         AutoCAD 2004       16.0    18   2003, March
    Version 2.5   2.5    7     1986, June        AutoCAD 2005       16.1    19   2004, March
    Version 2.6   2.6    8     1987, April       AutoCAD 2006       16.2    20   2005, March
    Release 9     N/A    9     1987, September   AutoCAD 2007       17.0    21   2006, March
    Release 10    N/A    10    1988, October     AutoCAD 2008       17.1    22   2007, March
    Release 11    N/A    11    1990, October     AutoCAD 2009       17.2    23   2008, March
    Release 12    N/A    12    1992, June
Scope of AutoCAD
It is used to increase speed & accuracy in the production of drawings in any field, such as

      Civil Engg                           Electrical Engg.                   Structural Engg
      Construction                         Electronics Engg.                  Architectural Engg
       industry                             Biomedical                         Manufacturing Engg
      Geographic                           Chemical Engg                      Multimedia
       Information                          Petroleum Engg                     Land Management
       Systems                              Mining Engg                        City & Regional
      Surveying                            Industrial Engg                     Planning
      Facilities                           Metallurgy Engg                    & many more………
       Management                           Mechatronics
      Mechanical Engg                      Computer Engg

Advantages of AutoCAD over manual/instrumental drafting
      Speed                                                    Neatness
Submitted by , MOHAMMAD YOUNUS unushyd@gmail.com                                  Page 2 of 66
2dmuetcourse-110709082805-phpapp02.doc                                          Page 3 of 66
      Accuracy                                              Helps in Engineering Analysis.
      Legibility improved.                                  Helps in Computer Aided
      Improved Presentations.                                Manufacturing (CAM).
      Flexibility in Editing.                               High rate of drawing production.
      Easy Storage/Transport                                Enhanced visualization.
      Easy retrieval/Access of Drawings                     & many more….
      Sharing CADD Drawings.

 AutoCAD Graphical User Interface (GUI) or Main screen
Graphical user interface (GUI) allow computer users to interact with computer by selecting small
images called icons to execute instructions, eliminating the need to use text commands.




The AutoCAD screen consists of following important areas. These are,

       The drawing area
       The blank area (On your computers it may be in black color) in the middle of the screen
       where you draw. You can think of this as a sheet of drafting paper, except that this black piece
Submitted by , MOHAMMAD YOUNUS unushyd@gmail.com                                Page 3 of 66
2dmuetcourse-110709082805-phpapp02.doc                                            Page 4 of 66
       of paper can be of any size( Infinite size) — even the size of a huge factory or even the size
       of a city. At the bottom of the drawing area is a tab labeled Model. We will draw on this tab.
       You use the layout tabs to lay out your drawing for plotting we will learn to draw here later.
       The UCS icon
       Notice the symbol with two arrows at the bottom-left corner of the drawing area in Figure
       above. This symbol is called the User Coordinate System (UCS) icon. The arrows point to the
       positive directions of the X and Y axes.
       The crosshairs
       In the drawing area, notice the two intersecting lines with a small box at their intersection.
       The small box is called the pickbox because it helps you to select, or pick, objects. The lines
       are called crosshairs. They show you the location of the mouse cursor in relation to other
       objects in your drawing. As you move your mouse around, the pickbox and crosshairs move
       with your mouse. At the bottom of your screen, at the left end of the status bar, you can see
       the X,Y coordinates change as you move your mouse.
       The menus and toolbars
       Beneath the menu bar there are two rows of toolbars. In addition, your screen has two more
       toolbars, the Draw and Modify toolbar, which is probably docked at the right side of the
       screen. Use the menus and toolbars together to give AutoCAD commands to draw, edit, get
       information, and so on.
       On the Draw toolbar, move the mouse cursor over the first button. You should see a tool tip
       that says Line. Also notice the status bar, which tells you that this button creates straight-line
       segments. You use toolbar buttons to execute commands.
       For example, to draw a line, you click the Line button on the Draw toolbar.
       The command line
       All commands can be executed by typing them on the command line. Even if you use a menu
       item or toolbar button to execute a command, you may see a response on the command line.
       AutoCAD often provide options that must be typed in from the keyboard. Text that you type
       appears on the command line.
       The status bar
       At the left are the X,Y coordinates. As you move your mouse, these coordinates change. (If
       they don’t change, click them and move your mouse again.)

Note: You can use the CLEANSCREENON command to hide the title bar, toolbars, and status bar,
leaving more room for the drawing area. To return to the regular display, use the
CLEANSCREENOFF command or press Ctrl+0 to toggle between the two displays.

 Different ways to start AutoCAD?
You can launch AutoCAD with the following methods:
       Choose Start-(All)-Programs-Autodesk-AutoCAD 200X-AutoCAD 200X.
       Double-click an AutoCAD drawing file.
       Double-click the AutoCAD icon on the Windows desktop.
       Click the AutoCAD icon on the taskbar’s Start menu.
       Click the AutoCAD icon on the Quick Launch toolbar on the taskbar.

 QSAVE or SAVE
Quickly saves the current drawing

          Standard toolbar:
          File menu: Save or save as
Submitted by , MOHAMMAD YOUNUS unushyd@gmail.com                                  Page 4 of 66
2dmuetcourse-110709082805-phpapp02.doc                                         Page 5 of 66
        Command line: qsave or save
If the drawing is named, AutoCAD saves the drawing without requesting a file name. If the
drawing is unnamed, AutoCAD displays the Save Drawing As dialog box (see SAVEAS) and
saves the drawing with the file name you specify.
 Closing/Exiting AutoCAD
If you saved your most recent changes to all open drawings, you can exit AutoCAD without saving
the drawings again. If you have not saved your changes, AutoCAD prompts you to save or discard
the changes.
        To exit AutoCAD
         Click ( X ) close button at upper right corner
         From the File menu, choose Exit.
        OR
         Command line: Type QUIT or EXIT & press ENTER
 Different ways to access/start commands
You can use any of the following methods to start a command. The easiest way to start a command is to
type it in the Command Line window, other methods are

          Menu bar
          Toolbars, Right clicks on any toolbar, displays all toolbars.
          Shortcut menu, right click mouse having cursor at different positions on screen and see
           different menus, called as shortcut menus.
 Using Shortcut Menus
You can right-click your pointing device to display shortcut menus from which you can quickly choose
options Shortcut menus are context-sensitive. You can display shortcut menus from most of the
following AutoCAD window/main screen areas




 Erasing objects / ERASE command
          Modify toolbar:
          Modify menu: Erase
          Shortcut menu: Select the objects to erase,
           right-click in the drawing area, and click Erase.
        Command entry: erase
           Select objects: Use an object selection method                                            or
           Enter L (Last) to erase the last object drawn. or
           Enter all to erase all objects from the drawing.
           And press ENTER when you finish selecting objects
The objects are removed from the drawing.


Submitted by , MOHAMMAD YOUNUS unushyd@gmail.com                               Page 5 of 66
2dmuetcourse-110709082805-phpapp02.doc                                         Page 6 of 66
 Canceling a command
Sometimes you might find yourself using a command, and all of a sudden you want to stop using it
and switch to a different one. If you don’t want to complete the current command, press Esc or right-
click and choose Cancel from the shortcut menu.
 Repeating last command
    AutoCAD allows you to repeat the previous command without having to select it from a user
    interface element again, You can use these methods to repeat a previously used command:

          Press Enter when no command is active.
          Press the space bar when no command is active.
          Press the Up arrow key when no command is active and press Enter. You can
           Step back to retrieve previously used commands within the current session and not just
           the most recently used command.
          Right-click the drawing window and choose Repeat Command Name.
          Right-click the drawing window and choose Recent Input & .command name.
          Right-click the Command Line window and
           choose Recent
          Command: command name
 Changing the color of an object using
    properties toolbar

Select the objects whose color you want to view or modify,
and click color button in the properties toolbar as highlighted
in the figure to see available colors. Pick any desired color.
 Turning the toolbars ON and OFF
       Displaying the toolbars shortcut menu
       Right click on any icon/button and choose the toolbar from the list
       to be displayed as shown in the figure.
       Displaying the toolbars through keyboard/command
       line
       Command: -TOOLBAR
       Enter toolbar name or [ALL]: Type any toolbar’s name such as
       Draw or modify or any other toolbar’s name
       Enter an option [Show/Hide/Left/Right/Top/Bottom/Float]
       <Show>: Type F for float and press enter
       Enter new position (screen coordinates) <0,0>: accept the default
       0,0 by pressing enter
       Enter number of rows for toolbar <1>: accept the default by
       pressing enter.




Submitted by , MOHAMMAD YOUNUS unushyd@gmail.com                               Page 6 of 66
2dmuetcourse-110709082805-phpapp02.doc                                          Page 7 of 66
 Undo command or Correcting mistakes
Reverses the effect of commands




 Coordinates systems used in AutoCAD
Introduction

As a general rule, everything you draw with
AutoCAD will be drawn full size/actual size.
This often comes as quite a surprise to those
who are new to CAD and have spent a number
of years working on a drawing board.

When you start drawing with AutoCAD you
do not have to decide upon a drawing scale as
you do when using a drawing board. When
drawing on paper you must decide do draw at
say, 1:20 or 1:200 depending upon the size of
the object that you are drawing so that your
scaled drawing will fit on the drawing sheet, be that A3 or A1.

In AutoCAD you do not need to decide upon a drawing scale until you come to print the drawing and
because the scaling of your drawing takes place at the printing stage, you can create drawings at a
scale of 1:1. This has particular advantages because you can, for example, measure lengths, areas and
volumes within an AutoCAD drawing and not need to compensate for any scale factor.
 LINE Command, close, undo and continue options
                                               With the Line command you can draw a simple line from
                                               one point to another. When you pick the first point and
                                               move the cross-hairs to the location of the second point
                                               you will see a rubber band line which shows you where
                                               the line will be drawn when the second point is picked.
                                               Each line segment drawn is a separate object and can be
moved or erased as required. To end this command, just hit the key on the keyboard.
Undo & Close options in LINE command
The undo option erases the last segment only, where as close option draws the last line segment joining
with the start point and at the same time terminates the line command.
Continue option in LINE command
At any stage you terminated/ended the line command but immediately you decide to continue the line
from last point of the last segment you just drawn, start line command when it asks for the start point
just press enter the line will be started from the end point of the last segment drawn, thus continuing
the line.
2dmuetcourse-110709082805-phpapp02.doc                                            Page 8 of 66
 Understanding startup dialog box-Tutorial
Starting AutoCAD
 From the start menu choose all programs, and then choose AutoCAD from the menu.
 If you have shortcut on desktop then directly double click on AutoCAD icon.

Exploring the startup dialog box
When you start AutoCAD, the startup dialog box may or may not be displayed depending upon the
default settings & the version of software, If it is not displayed then follow this,

Turn ON/OFF the display of startup dialog box
     From the Tools menu, choose Options-
      Or
     Type Options at command line & press enter
     In the Options dialogue box Choose,
      System-General options-Startup-select,
      Show or do not show Startup Dialog box
     Choose Apply/OK.

Now close the software/AutoCAD and re-start, it you will see the startup dialogue box displayed
each time you start AutoCAD.

The dialog box provides you with four different ways to start working in AutoCAD, you can,
  A. Open an existing drawing.
  B. Start a drawing from scratch
  C. Start a drawing based on a template.(This will be discussed later)
  D. Use wizards to help you setup/start your drawing (This will be discussed later)




To open an existing drawing, click
   In the Startup dialog box, choose “Open a Drawing”, and then choose Browse. OR If AutoCAD
    is already started, from the File menu, choose Open. In the Select File dialog box, select a files (If
    there is no recently used file than use browse button to locate the file) & chose Open.
   Now select VIEW-ZOOM from menu bar and try zoom IN, OUT, ALL, and EXTENT options
    and observe the difference between them also use PAN REALTIME, and ZOOM WINDOW &
    ZOOM PREVIOUS from the standard tool bar docked in the top area of GUI/screen.
2dmuetcourse-110709082805-phpapp02.doc                                            Page 9 of 66


Note: Repeat this several times changing the file each time and practicing various zoom options as
listed above. Now close AutoCAD and repeat the same again and again, each time opening a
different file. When you have practiced this several times, follow the next step
To create a new drawing using Start from Scratch, click
    In the Startup dialog box, choose “Start from Scratch”. OR If AutoCAD is already started, from
     the File menu, choose New, and then choose Start from Scratch in the Create New Drawing
     dialog box. Select Imperial/English (For making drawing in inches & feet, or. English units) or
     Metric (For making drawing in millimeters, or metric units), and then choose OK.
    A new drawing file opens, based on the English/Imperial or metric settings and with the default
     name drawing1.dwg (Note: By default all AutoCAD drawing files are saved as dwg files, having
     dwg as file extension).
    Now turn ON the GRIDS (Small dots displayed on screen, they are not printed they help in
     visually aligning objects on screen and show the limits of working area.) if they are not visible by
     pressing GRID button in the status bar at lower part of the GUI/AutoCAD main screen.
    Make any free hand using line command and mouse, forget the accuracy of the drawing.
To save your new drawing
  From the File menu, choose Save As.
  In the “Save Drawing As” dialog box under File Name, enter a name for the drawing, select
   destination in “save in” and choose Save. AutoCAD automatically appends the drawing extension
   (.dwg) to the new file name.
Creating a new drawing using Start from scratch option
A quick way to begin a new drawing is to start from scratch, which starts a drawing that uses settings
from a default drawing template file.
The setting you select determines default values used for many system variables controlling text,
dimensions, grid, snap, and the default line type and hatch pattern file.
    English/Imperial:
    Creates a new drawing based on the Imperial measurement system. The drawing is based on the
    acad.dwt template, and the default drawing boundary, called the drawing limits, is 12 × 9 inches.
    Metric:
    Creates a new drawing based on the metric measurement system. The drawing is based on the
    acadiso.dwt template, and the default drawing boundary is 420 × 297 millimeters.

 Hints & Guidelines when using AutoCAD commands
 When using command line
Commands often have options/sub-commands, which are displayed within brackets. To choose an
option, enter the option's capitalized letter (uppercase or lowercase) on the command line. If an option
is preceded by a number, such as the CIRCLE command 3Point option, enter the number and
capitalized letter.

    Commands are not case sensitive.
    Some commands display dialogue box while others display only options at command line therefore,
     always keep watching command line for options while working in AutoCAD
    Space bar can also be used as ENTER / RETURN key
    If a command is in progress related help can generally be accessed by pressing F1 key.
    Hitting “ENTER” or “SPACEBAR” at “COMMAND” prompt will re-invoke the last command.
    Pressing “ESC” key is your best friend for getting out of sticky situations.
2dmuetcourse-110709082805-phpapp02.doc                                         Page 10 of 66
 Accelerator Keys/function keys
Use Accelerator Keys/function keys to toggle modes “On” & “OFF”. For example,

     F1 = Help
     F2 = Switches state of text window
     F3 = OSNAP on or off.
     F6 = COORDINATES on or off.
     F7 = GRIDMODE on or off.
     F8 = ORTHOMODE on or off.
     F9 = SNAPMODE on or off.
     Save often ! ! ! !
 Standard Paper Sizes




Metric ISO, Imperial ANSI and USA Architectural are
the world’s top standards for paper sizes. Of these metric
is number one!
An A0 sheet is 1m². This allows paper weights to be
expressed in grams per square meter. Example: 110gsm
paper.
The ratio - length to width - of ISO sheets is 1 to the Square Root 2. This relationship of 1:Sq root 2
is particularly important for reduction onto microfilm, or reduction and enlargement on photocopiers.
All metric equipment including microfilm cameras, microfilm printers, photocopiers, and even
drawing pen sizes, are designed around this ratio. This makes the process of archiving drawings,
resizing, and modifying drawings easy.

The ISO paper sizes are devised in such a way that each smaller size is exactly half the size of the
previous one. If you cut an A0 sheet in half you get two A1 sheets. Oversize* sheets are used when it
is desirable to give extra protection to the drawing sheets by providing a binding or trimming margin.
2dmuetcourse-110709082805-phpapp02.doc                                         Page 11 of 66


 In how many different ways can we enter a point or specify a location
Answer of this question is 3 or even more.

1.   Entering absolute/real coordinates.
     Absolute Cartesian Coordinate data entry style is X,Y ( All X , Y & Z values are given w.r.t fixed
     origin.)
     The simplest and most elementary form of coordinate values is absolute coordinates.

     Absolute coordinates conform to the following format:
     X, Y

     One problem with using absolute
     coordinates is that all coordinate values
     refer back to the origin 0, 0 fixed in the
     lower left corner.

Now, let’s make our first step into drawing
and learn about coordinate system by going
over these topics.

        Try yourself-Tutorial
        Command: LINE
        Command: Specify first point: -2,1
        Specify next point or [Undo]: 3,4
        Specify next point or [Undo]: ENTER

In the example given above, we drew the
line, We gave the point information that is
asked by AutoCAD by entering real/absolute
coordinates in form of x,y. Let’s continue to
convert it into a triangle.

        Command: LINE
        Command: Specify first point: -2,1
        Specify next point or [Undo]: 3,4
        Specify next point or [Undo]: 3,1
        Specify next point or [Close/Undo]:
        -2,1
        Specify next point or [Close/Undo]: ENTER




atifkhan68@hotmail.com                                                        0333-2642151
2dmuetcourse-110709082805-phpapp02.doc                                         Page 12 of 66


 Absolute coordinate input-Tutorial- 1
First open a new drawing with imperial settings by using start from scratch, and draw it on a graph
paper and try to complete the table first and later draw it on computer,




 Absolute coordinate input-Tutorial- 2
First open a new drawing with imperial settings by using start from scratch, first on a graph paper
and later draw it on computer,




 Absolute coordinate input-Tutorial- 3




atifkhan68@hotmail.com                                                        0333-2642151
2dmuetcourse-110709082805-phpapp02.doc                                           Page 13 of 66


2.  Entering relative coordinates:
With absolute coordinates, the origin at 0, 0 must be kept in mind at all times in order for the correct
coordinate to be entered. With complicated objects, this is sometimes difficult to accomplish and as a
result, the wrong coordinate is entered, it is possible to reset the last coordinate to become a new
origin or 0, 0 point. The new point would be relative to the previous point, and for this reason, this
point is called a relative coordinate.

The format is as follows:
@X, Y

In this format, we use the same X and Y values with one exception: the @ symbol that resets the
previous point to 0, 0 i.e. origin, and makes entering coordinates less confusing.

Let’s make the previous example by using relative coordinates. Let’s draw the same triangle by
starting from -2,1 point, going 5 units in right direction and 3 units in upper direction and end in
same -2,1 point.

         Try yourself-Tutorial
         Command: LINE
         Command: Specify first point: -2,1
         Specify next point or [Undo]: @ 5,0
         Specify next point or [Undo]: @3,0
         Specify next point or [Close/Undo]: C

As you can see, entering relative coordinates is done
by using @ symbol from the last point and entering
Δx,Δy values. @ means that we will enter relative
coordinates.

 Relative coordinate input-Tutorial- 1
First open a new file with metric settings,
If AutoCAD is already open, close all files and,
Click File menu and choose New, In the New
Drawing dialogue box select start from scratch and
choose metric & click OK, Now ZOOMOUT once
to see all GRID area.

If you just started AutoCAD than In the Startup
dialogue box select start from scratch and choose
metric & click OK
Relative Coordinate System.
‘@’ character is used for relative coordinate input.
Putting it at the beginning of an entry, the place you
are on is considered as the origin and the desired
coordinate relative to this origin is entered. Briefly,
‘@’ character means ‘with respect to.


atifkhan68@hotmail.com                                                          0333-2642151
2dmuetcourse-110709082805-phpapp02.doc                                        Page 14 of 66
Start LINE command,
         Command: LINE
         Specify first point: pick any point on the screen
         at lower left corner of GRID area, and follow the
         steps below.
Firstly, draw a 100-unit line.
         Specify next point or [Undo]: @100,0 ‘Enter’

Then, draw a 100-unit line through Y axis.
       Specify next point or [Undo]: @0,100

The 80-unit line is in negative X direction.
       Specify next point or [Undo]: @-80,0

The following movement is in both negative directions
of X and Y axes.
       Specify next point or [Undo]: @-20,-20

The last line is in negative Y direction.
       Specify next point or [Undo]: @0,-80
       Specify next point or [Undo]: Press ENTER

 Relative coordinate input-Tutorial- 2
First open a new drawing with imperial settings by using start from scratch, and draw it on a graph
paper and try to complete the table first and later draw it on computer,




 Relative coordinate input-Tutorial- 3




atifkhan68@hotmail.com                                                       0333-2642151
2dmuetcourse-110709082805-phpapp02.doc                                        Page 15 of 66
 Relative coordinate input-Tutorial- 4




 Relative coordinate input-Tutorial - 5
First open a new drawing with imperial settings by using start from scratch, and first draw on a graph
paper and later draw it on computer,




 Relative coordinate input-Tutorial-6
First open a new drawing with imperial settings by using start from scratch, and first draw on a
graph paper and later draw it on computer,




atifkhan68@hotmail.com                                                        0333-2642151
2dmuetcourse-110709082805-phpapp02.doc                                        Page 16 of 66
 Relative coordinate input-Tutorial- 7
First open a new drawing with imperial settings by using start from scratch, and first draw on a
graph paper and later draw it on computer,




3.  Entering Relative Polar Coordinates:
Another popular method of entering coordinates is the polar coordinate mode. The format is shown
below:
@ Distance < angle or
@ Length < direction




As the preceding format implies, the polar coordinate method requires a known distance and an
angle. The @ symbol, resets the previous point to 0, 0. The direction is preceded by the < symbol,
which reads the next number as polar or angular
direction.

We know that angles increase in counter clockwise
direction in AutoCAD. The example given here
explains how to enter polar coordinates.

         Try yourself-Tutorial
         Command: LINE
         LINE Specify first point: -2,1
         Specify next point or [Undo]: @5<0
         Specify next point or [Undo]: @3<90
         Specify next point or [Close/Undo]: c



atifkhan68@hotmail.com                                                        0333-2642151
2dmuetcourse-110709082805-phpapp02.doc                                        Page 17 of 66
 Polar coordinate input-Tutorial-1
Many AutoCAD users have some troubles with angles. The reason beyond this is the lack of
information about polar coordinate system. Examining the figure below, let us start to learn polar
coordinate system.

First open a new file with metric settings,
If AutoCAD is already open, close all files and,
Click File menu and choose New, In the New Drawing dialogue box select start from scratch and
choose metric & click OK, Now ZOOMOUT once to see all GRID area.

If you just started AutoCAD than In the Startup dialogue box select start from scratch and choose
metric & click OK

Firstly, let us draw a coordinate plane and lines with entering length and angles. The formula for
polar coordinate entry is: @length<angle (between the X axis). The length and angles of our lines let
be 100 unit and 45 degrees respectively.

To draw the first line, run the line
command,
       Command: LINE
       Specify first point: 0,0 and press
       enter
       Specify next point or [Undo]:
         @100<45

The angle for the second line is 45
degrees less than 180.
Repeat line command and
       Command: LINE
       Specify first point: 0,0 ENTER
       Specify next point or [Undo]:
       @100<135 and press enter

The angle for the third line is 45 degrees
less than 270.
Repeat line command,
        Command: LINE
        Specify first point: 0,0 ENTER
        Specify next point or [Undo]: @100<225 and press enter

The angle for our last line is 45 degrees less than 360.
Repeat line command,
       Command: LINE
       Specify first point: 0,0 ENTER
       Specify next point or [Undo]: @100<315 and press enter




atifkhan68@hotmail.com                                                        0333-2642151
2dmuetcourse-110709082805-phpapp02.doc   Page 18 of 66
 Polar coordinate input-Tutorial- 2




 Polar coordinate input-Tutorial- 3




 Polar coordinate input-Tutorial- 4




atifkhan68@hotmail.com                   0333-2642151
2dmuetcourse-110709082805-phpapp02.doc                                        Page 19 of 66
 Polar & Relative (Combined) coordinate input-Tutorial- 5
First open a new drawing with imperial settings by using start from scratch, and first draw on a
graph paper and later draw it on computer,




 Polar & Relative (Combined) coordinate input-Tutorial- 6
First open a new drawing with imperial settings by using start from scratch, and first draw on a
graph paper and later draw it on computer,




 Drawing Aids
Introduction
Drawing with AutoCAD is really just like drawing on a drawing board. Most new comers to
Computer Aided Design assume that they will need to learn how to draw all over again. In fact, many
of the drawing aids that AutoCAD provides are analogous to traditional drafting tools. This means
that in many respects, the drawing techniques are very similar. If you ever get stuck, think how you
would complete a task on a drawing board and then look for a similar way to do it with AutoCAD.

Grid command

Status Bar    (right-click for settings)
Pull-down None
Keyboard GRID or F7




atifkhan68@hotmail.com                                                        0333-2642151
2dmuetcourse-110709082805-phpapp02.doc                                         Page 20 of 66
The drawing grid is a regular pattern of dots displayed on the screen which acts as a visual aid; it is
the equivalent of having a sheet of graph paper behind your drawing on a drawing board. These grid
dots are not plotted. You can control the grid spacing, so it can give you a general idea about the size
of drawn objects. The grid dots extend over the area you specify as the grid limits. The grid helps you
align objects and visualize the distances between them. If you zoom in or out of your drawing, you may
need to adjust grid spacing to be more appropriate for the new magnification.

  Command Sequence/Try yourself
  Command: GRID
  Specify grid spacing(X) or [ON/OFF/Snap/Aspect]
  <10.000>: (enter grid spacing e.g. Type 1 & press enter,
  also try different values and observe changes in the
  display)

  Study yourself & explore other options
  Although you can use the command line to control the
  visibility of the grid by using the "ON" and "OFF"
  options or by using the F7 key or, better still, by
  clicking the GRID button on the status bar. However,
  the command line does offer some additional options.
  The Snap option allows you to automatically set the grid spacing to the current snap spacing

  You can also change the aspect ratio of the grid. By default, the X and Y spacing of the Grid are
  the same, resulting in a regular square matrix of grid points. But you can display a grid with
  different X and Y spacing by using the "Aspect" option.

  You can access grid settings by right-clicking the Grid button on the status bar and selecting
  Settings… from the short-cut menu. You can also do this from the pull-down menu, Tools
  Drafting Settings… and click on the "Snap and Grid" tab.

Limits command (Grid Limits)
You may have noticed that the grid does not extend infinitely in all directions. In fact, it is only
displayed within a finite rectangle. You can control the extent of the visible grid using Drawing
Limits.

Toolbar None
Pull-down Format Drawing Limits
Keyboard LIMITS
Drawing Limits is used to define the extent of the grid display The grid is displayed within a
rectangle defined by two pick points or co-ordinates.

  Command Sequence/Try yourself
  Command: LIMITS
  Reset Model space limits:
  Specify lower left corner or [ON/OFF] <0.0000,0.0000>:(enter co-ordinates 2,2)
  Specify upper right corner <12,9>: (enter co-ordinates 8,7 )
  & observe the change in grid area.



atifkhan68@hotmail.com                                                         0333-2642151
2dmuetcourse-110709082805-phpapp02.doc                                           Page 21 of 66
   Explore other options by yourself
   Drawing Limits can also be used to turn Limits mode on or off. Limits mode can be used to control
   where objects can and cannot be drawn. Limits is turned off by default which means that there is
   no restriction as to where points can be picked and objects drawn. When Limits is on, AutoCAD
   will not allow points to be picked or co-ordinates entered at the command line which fall outside
   of the specified drawing limits. If you try to pick a point outside the drawing limits when Limits
   mode is turned on, AutoCAD reports to the command line:
   **Outside limits
   Limits mode is useful if you know the extent of your plotted drawing sheet and you want to
   prevent objects being drawn outside of this area. However, Drawing Limits is most commonly
   used simply to control the extent of the Grid.

Ortho command/Ortho Mode
Status Bar
Pull-down None
Keyboard ORTHO or F8

Ortho is short for orthogonal, which means either vertical or horizontal. Like the other options on the
status bar, Ortho is not really a command; it is a drawing mode which can either be turned on or off.
Ortho mode can be toggled on or off in one of three ways. The quickest way is just to click on the
ORTHO button on the status bar. The appearance of the button tells you whether Ortho is currently
turned on or turned off. When Ortho is turned on, the ORTHO button appears pressed in. You can
see how this appears by looking at the status bar illustration below. In the illustration, Ortho is turned
on but Grid and Snap are turned off.




Ortho can also be toggled on and off using the F8 Function. Finally, you can also type ORTHO at the
command prompt as in the command sequence below. With Ortho mode turned on you can only
draw lines which are either vertical or horizontal.

    Try yourself,
    Turn Ortho mode on now and draw some lines to get a feeling for how it works.
    Command: ORTHO
    Enter mode [ON/OFF] <OFF>: (type ON or OFF)
    Ortho mode is probably the simplest of all the drawing aids, and historically one of the oldest. It
    is either on or it is off and there are no special settings to make. You may not be surprised to
    learn, therefore, that its use has largely been superseded by more recent features, particularly
    Polar Tracking (You will learn later)

Snap Mode/Snap Command
Status Bar     (right-click for settings)
Pull-down None
Keyboard SNAP or F9



atifkhan68@hotmail.com                                                          0333-2642151
2dmuetcourse-110709082805-phpapp02.doc                                         Page 22 of 66
Snap mode takes AutoCAD one step further than the drawing board. With Snap mode turned on
AutoCAD only allows you to pick points at regular intervals/jumps. The Snap is completely
independent of the display grid. However, the Grid spacing and Snap spacing are usually set to the
same value for the ease of understanding.

    Command Sequence
    Command: SNAP
    Specify snap spacing or [ON/OFF/Aspect/Rotate/Style/Type] <10.0000>: (enter the required snap
    spacing in drawing units)

    Explore yourself
    Although you can use the Snap command to turn Snap mode on and off, it is much more efficient
    to use the F9 function key on the keyboard or to click the SNAP button on the status bar.
    The "Aspect" option can be used to vary the horizontal and vertical snap spacing independently.
    "Rotate" is used to set the snap grid to any angle.

    You can force the display grid to conform with the snap grid by setting the display grid spacing to
    zero. The display grid will then automatically change each time the snap grid is changed. When
    Snap mode is turned on and the Grid is displayed, the Snap and Grid spacing are the same and the
    crosshairs will jump from one grid point to another as you move across the screen.
    This makes it very easy to draw objects which have a regular shape. The Snap command is used
    to set the snap spacing.

    All of the Snap variables can also be set using the pull down menu, Tools-Drafting Settings
    dialogue box. Right-click on the SNAP button and choose Settings… from the short-cut menu.

 Direct distance input-Tutorial
Object:
Comparing the all coordinate entry methods, by creating this
simple drawing using:
        Absolute coordinate method.
        Relative coordinate method.
        Polar coordinate method.
        Direct distance entry method
Using direct distance entry ( Time saving )
A method to specify a second point by first moving the curser to
indicate the direction and then entering a distance. If ortho is
turned ON (Or Polar tracking is used.) only then we can make accurate horizontal and vertical lines
otherwise this method does not give us accuracy in drawing lines.

Procedure:
 Start the software; open a new drawing using start from scratch and English / Imperial option.
   Turn ON the GRID.




atifkhan68@hotmail.com                                                        0333-2642151
2dmuetcourse-110709082805-phpapp02.doc                                                Page 23 of 66
   Make the object drawing four times (Each time change the color of line when using different
    methods by using object properties toolbar) by following all four methods separately in the same
    drawing one over the other. And try to understand difference between these methods.

      Absolute Method                  Relative Metho    Polar Method      Direct Distance Entry Method
                                       d
      Type   L or LINE & Press Enter   L         Enter   L         Enter   L             Enter
      Type   2,2       & Press Enter   2,2       Enter   2,2       Enter   2,2           Enter
      Type   8,2       & Press Enter   @ 6 , 0 Enter     @ 6 < 0 Enter     Move curser right, type 6, Enter
      Type   8,4       & Press Enter   @ 0 , 2 Enter     @ 2 < 90 Enter    Move curser up, type 2, Enter
      Type   6,4       & Press Enter   @ -2 , 0 Enter    @ 2 < 180 Enter   Move curser left, type 2, Enter
      Type   6,6       & Press Enter   @ 0 , 2 Enter     @ 2 < 90 Enter    Move curser up, type 2, Enter
      Type   4,6       & Press Enter   @ -2 , 0 Enter    @ 2 < 180 Enter   Move curser left , type 2, Enter
      Type   4,8       & Press Enter   @ 0 , 2 Enter     @ 2 < 90 Enter    Move curser up, type 2, Enter
      Type   2,8       & Press Enter   @ -2 , 0 Enter    @ 2 < 180 Enter   Move curser left, type 2 , Enter
      Type   2 , 2 Enter, Esc/Enter    C        Enter    C         Enter   C             Enter




 UNITS command/Drawing Units Dialog Box
   Format menu: Units
  Command entry: units (or 'units for transparent use)
Defines the unit and angle formats.
Length
Specifies the current unit of measurement and the precision for the
current units.
   Type
   Sets the current format for units of measure. The values include
   Architectural, Decimal, Engineering, Fractional, and Scientific.
   The Engineering and Architectural formats produce feet-and-
   inches displays and assume that each drawing unit represents one inch. The other formats can
   represent any real-world unit.
     Precision
   Sets the number of decimal places or fractional size displayed for linear measurements.




atifkhan68@hotmail.com                                                               0333-2642151
2dmuetcourse-110709082805-phpapp02.doc                                           Page 24 of 66
Note:-How to enter different units for length (Syntax)
Enter feet and inches using the following format/syntax:
feet'-inches" or feet’ inches" or feet inches

You can separate feet, inches, and fractional inches with a dash, a space, or nothing. You can use any
of the following syntax cases to enter valid feet-inch formatted values:
    • 5’ or 60”
    • 5’-9” or 5’ 9” or 5’9”
    • 5’-1/2” or 5’ 1/2” or 5’1/2”
    • 5’-9-1/2” or 5’ 9-1/2” or 5’9-1/2”
    • 5’-9 1/2” or 5’ 9 1/2” or 5’9 1/2”
To designate inches for linear calculations, entering double quotes (“) is optional. For example,
instead of entering 5’9-1/2”, you could enter 5’9-1/2.
Warning With imperial units, CAL interprets a minus or a dash (-) as a unit separator rather than a
subtraction operation. To specify subtraction, include at least one space before or after the minus
sign. For example, to subtract 9” from 5’, enter 5’ -9” rather than 5’-9”.
Angle
  Specifies the current angle format and the precision for the current angle display.
     Type
     Sets the current angle format.
     Precision
     Sets the precision for the current angle display.
     Clockwise
    Calculates positive angles in the clockwise direction. The default direction for positive angles is
    counterclockwise.
Insertion Scale
Controls the unit of measurement for blocks and drawings that are inserted into the current drawing.
A block or a drawing that is created with units that are different from the units specified with this
option is scaled when inserted. The insertion scale is the ratio of the units used in the source block or
drawing and the units used in the target drawing. Select Unitless to insert the block without scaling it
to match the specified units.
Sample Output
Displays an example of the current settings for units and angles.
Direction
Defines the angle for 0 degrees and specifies the direction in which
angles are measured. When prompted for an angle.
     Base Angle
     East, North, West & South, Sets the direction of the zero angle.
     Other
     Specifies a direction different from the points of the compass.
     Angle
     Specifies a value for the zero angle when other is selected, you can
     specify the angle by entering a value.
     Pick an Angle Button
    Defines the zero angle in the graphics area based on the angle of an imaginary line that connects
    any two points you specify with the pointing device. Available only when other is selected.




atifkhan68@hotmail.com                                                          0333-2642151
2dmuetcourse-110709082805-phpapp02.doc                                          Page 25 of 66


   CIRCLE Command
  Along with Line and Polyline, the Circle command is probably one of the most frequently used.
  Fortunately it is also one of the simplest. However, in common with the other commands in this section
  there are a number of options that can help you construct just the circle you need. Most of these options
  are self explanatory. The Circle command, for example, offers 6 ways to create a circle,
  Try yourself-Tutorial
          Command: CIRCLE
          Specify center point for circle or [3P/2P/Ttr (tan tan radius)]: (pick P1
          anywhere or type 6,6)
          Specify radius of circle or [Diameter] (pick P2 anywhere or type 2.5 as radius)




  Explore and practice various circle command options

  For example, the circle command gives you three extra options to define a circle. 3P which uses any
  three points on the circumference, 2P which uses two points on the circumference to form a diameter
  and Ttr which stands for Tangent Tangent Radius. Obviously to use this last option you need to have
  drawn two lines which you can use as tangents to the circle. Try these options out to see how they
  work. Note that to invoke a command option; you need only type the upper-case part of the option
  name. For example, if you want to use the Ttr option, you need only enter "T". There are two more
  circle options on the pull-down menu that enable you to draw a circle by defining the center and
  diameter or by using 3 tangents.

 Exercise




   atifkhan68@hotmail.com                                                         0333-2642151
2dmuetcourse-110709082805-phpapp02.doc                                          Page 26 of 66
 RECTANGLE Command

                                                                                                     The



Rectangle command is used to draw a rectangle whose sides                                             are
vertical and horizontal. The position and size of the rectangle are defined by picking two diagonal
corners. The rectangle isn't really an AutoCAD object at all. It is, in fact, just a closed polyline which is
automatically drawn for you.

Try yourself-Tutorial,
      First, Open an imperial file by using start from scratch option,
      Command: RECTANG
       Specify first corner point or [Chamfer/Elevation/Fillet/Thickness/Width]: (pick
       P1 or Type 0 , 0)
       Specify other corner point or [Dimensions]: (pick P2 or type 12 , 9)
       Notice that, instead of picking a second point to draw the rectangle, you have the option of
       entering dimensions. Say you wanted to draw a rectangle 8 drawing units long and 5 drawing units
       wide. The command sequence would look like this:

Try yourself-Tutorial
      Command: RECTANG
       Specify first corner point or [Chamfer/Elevation/
       Fillet/Thickness/Width]: (pick a point P1 anywhere or                                          type
       2,2)
       Specify      other corner point or [Dimensions]: D
       Specify      length for rectangles <0.0000>: 8
       Specify      width for rectangles <0.0000>: 5
       Specify      other corner point or [Dimensions]: (pick a point to fix the orientation)


 Selecting objects or Defining selection set
Introduction
Before you start to use the AutoCAD Modify commands, you need to know something about selecting
objects. All of the Modify commands require that you make one or more object selections. A selection
set can consist of a single object, or it can be a more complex grouping. You can create the selection set
either before or after you choose an editing command. You can make several changes to the same
selection set. AutoCAD has a whole range of tools which are designed to help you select just the objects
you need. This tutorial is designed to demonstrate the use of many of the selection options. As with so
many aspects of AutoCAD, developing a good working knowledge of these options can drastically
improve your drawing speed and efficiency.

Before you can edit objects, you need to create a selection set of the objects. Use one of the following
methods to create selection sets.
Selecting Objects by Picking/Pointing with mouse.
When you start a Modify command such as ERASE, two things happen. First, the cursor changes from
the usual crosshairs to the pickbox and second, you will see the "Select objects" prompt on the command
line. Both of these cues are to let you know that AutoCAD is expecting you to select one or more objects.
    atifkhan68@hotmail.com                                                          0333-2642151
2dmuetcourse-110709082805-phpapp02.doc                                         Page 27 of 66
To select an object, place the pickbox
over a part of the object and left-click                                                            the
mouse. When the object has been
picked it is highlighted in a dashed                                                                line
to show that it is part of the current
selection and the command line
reports "1 found". You will now see                                                                 the
"Select objects" prompt on the command line again. At this point you can continue adding more objects to
the current selection by picking them or you can press  or the Space Bar to complete the selection.

       Draw a circle using the CIRCLE command, the size and position of the circle does not matter.
       Erase the Circle, Try yourself-Tutorial Tutorial

       Erase the circle using the ERASE command, Modify Erase from the pull-down or                from the
       Modify toolbar.
       Command: ERASE
       Select objects: (place the pickbox over a circle circumference and left-click)
       1 found
       Select objects: (press       to complete the selection and erase the object)

Creating selection sets by picking objects can become quite tedious if you want to select a large number
of objects. Just imagine having to pick a hundred or more objects in a large drawing. Fortunately
AutoCAD provides a number of selection options which can help you select objects more efficiently.

When you pick one or more objects in response to the "Select objects" prompt, you are effectively
creating a selection set. Selection sets are an important concept in AutoCAD because they can be used to
great effect, especially when drawings become large or complicated.
Window Selection/ Window or W, option
The Window option is invoked by typing W in response to the "Select objects" prompt. Window allows
you to define a rectangle using two points in exactly the same way as the RECTANGLE command. Once
the window is defined, all objects which lie entirely within the window will be selected.

       Try yourself-Tutorial
       First draw several circles of any size as shown in figure and than, start ERASE command,
       Command: ERASE
       Select objects: W
       First corner: (pick first corner of selection window)
       Specify opposite corner: (pick second corner of the selection window)
       Select objects: (at this point you can either select more objects or       to complete the selection
       set and continue with the current command.)




    atifkhan68@hotmail.com                                                         0333-2642151
2dmuetcourse-110709082805-phpapp02.doc                                        Page 28 of 66
Crossing Window Selection/Crossing or C option
The Crossing Window option is invoked by typing C at the "Select objects" prompt and is a variation
of the Window command, A crossing selection is displayed as dashed line. The command sequence is
exactly the same but objects are selected which lie entirely within the window and those which cross
the window border




The Undo option
It often happens that you inadvertently add objects which you don't want to a selection set during its
compilation. When this occurs in the middle of a complicated selection it can be pretty annoying.
Fortunately AutoCAD allows you to undo the last selection made during the compilation of a
selection set. All you need do is enter U at the next "Select objects" prompt to remove the objects
previously added.
Selects all objects /All option
The All option is invoked by typing ALL at the "Select objects" prompt. You can use this option to select
all the objects in the current drawing, no picking is required. Objects on Locked or Frozen layers are not
selected but objects on layers which are simply turned off are selected.

 Use of OBJECTSNAP/OSNAP to locate points [ F3 ]
       Making drawings accurately

Introduction

    Tools menu: Drafting Settings
   Shortcut menu: Right-click Snap, Grid, Polar, Osnap, Otrack, or Dyn on the status bar and
click Settings.
   Command entry: dsettings (or 'dsettings for transparent use)

The Object Snaps (Osnaps for short) are drawing aids which are used in conjunction with other
commands to help you draw accurately. Osnaps allow you to snap onto a specific object location when
you are picking a point. For example, using Osnaps you can accurately                             pick
the end point of a line or the center of a circle. Osnaps in AutoCAD are                          so
important that you cannot draw accurately without them. For this reason,                          you
must develop a good understanding of what the Osnaps are and how they
work. This tutorial describes the use of all the osnaps. There are a
number of worked examples which demonstrate Osnaps in use.

Using OSNAP through keyboard or OSNAP toolbar




    atifkhan68@hotmail.com                                                       0333-2642151
2dmuetcourse-110709082805-phpapp02.doc                                        Page 29 of 66


     ENDpoint
     The Endpoint Osnap snaps to the end points of lines and arcs and to polyline vertices. This is one of
     the most useful and commonly used Osnaps

     Toolbar Object Snap
     Pull-down Shift + Right Click Endpoint
     Keyboard END (when picking)
.
     MIDpoint
     The Midpoint Osnap snaps to the mid points of lines and arcs and to
     the mid point of polyline segments.

     Toolbar Object Snap
     Pull-down Shift + Right Click Midpoint
     Keyboard MID (when picking)

     INTersection
     The Intersection Osnap snaps to the physical intersection of any two
     drawing objects (i.e. where lines, arcs or circles etc. cross each other)                         and
     to Polyline vertices.

     Toolbar Object Snap
     Pull-down Shift + Right Click Intersection
     Keyboard INT (when picking)

     CENter
     The Center Osnap snaps to the centre of a circle, arc or polyline arc
     segment. The cursor must pass over the circumference of the circle or                            the
     arc so that the centre can be found.

     Toolbar Object Snap
     Pull-down Shift + Right Click Center
     Keyboard CEN (when picking)

     QUADrant
     The Quadrant Osnap snaps to one of the four circle quadrant points located at north, south, east and
     west or 90, 270, 0 and 180 degrees respectively.

     Toolbar Object Snap
     Pull-down Shift + Right Click Quadrant
     Keyboard QUA or QUAD (when picking)

     TANgent
     The Tangent Osnap snaps to a tangent point on a circle. This osnap
     works in two ways. You can either draw a line from a point to the tangent point (see illustration) or
     you can draw a line from a tangent point, the latter is referred to as
     the "Deferred Tangent" snap mode.


    atifkhan68@hotmail.com                                                        0333-2642151
2dmuetcourse-110709082805-phpapp02.doc                                           Page 30 of 66
   Toolbar Object Snap
   Pull-down Shift + Right Click Tangent
   Keyboard TAN (when picking)

   PERpendicular
   The Perpendicular Osnap snaps to a point which forms a perpendicular with the selected object. As
   with the Tangent Osnap, Perpendicular can be used to draw a line to a perpendicular point, as in the
   illustration or from a perpendicular point, known as the
   "Deferred Perpendicular" snap mode.

   Toolbar Object Snap
   Pull-down Shift + Right Click Perpendicular
   Keyboard PER or PERP (when picking)

   PARallel
   The Parallel Osnap is used to draw a line parallel to any other line in your drawing. In operation, this
   osnap is slightly less intuitive than some of the others. To draw a parallel line, first start the Line
   command, specify the first point when prompted and then start the Parallel Osnap. Hover the cursor
   over an existing line until you see the Parallel snap marker. Now, move the cursor close to a parallel
   position and a dotted line will appear, indicating the parallel. You can now pick the second point of
   your line. The Snap Tip also includes a relative polar co-ordinate.

   Toolbar Object Snap
   Pull-down Shift + Right Click Parallel
   Keyboard PAR or PARA (when picking)

 Exercises




  atifkhan68@hotmail.com                                                           0333-2642151
2dmuetcourse-110709082805-phpapp02.doc                                         Page 31 of 66




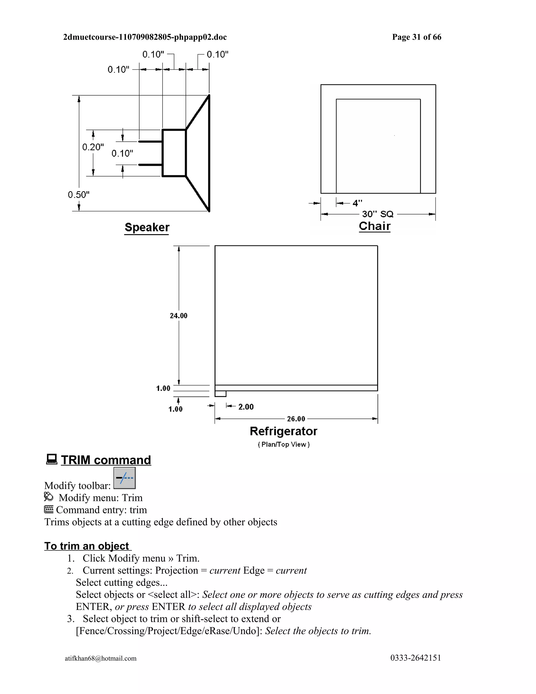
 TRIM command
Modify toolbar:
   Modify menu: Trim
   Command entry: trim
Trims objects at a cutting edge defined by other objects

To trim an object
     1. Click Modify menu Âť Trim.
     2. Current settings: Projection = current Edge = current
       Select cutting edges...
       Select objects or <select all>: Select one or more objects to serve as cutting edges and press
       ENTER, or press ENTER to select all displayed objects
     3. Select object to trim or shift-select to extend or
       [Fence/Crossing/Project/Edge/eRase/Undo]: Select the objects to trim.

    atifkhan68@hotmail.com                                                         0333-2642151
2dmuetcourse-110709082805-phpapp02.doc                                          Page 32 of 66


 FILLET command
Filleting connects two objects with a smoothly fitted arc of a specified radius. Although in real world
an inside corner is called a fillet and an outside corner is called a round, AutoCAD treats both as
fillets.

Setting the Fillet Radius first
   To set the fillet radius
   1. From the Modify menu, choose Fillet.
   2. Enter r (Radius).
   3. Specify the fillet radius.
   4. Press ENTER to reenter the FILLET command.
   5. Select the objects to fillet.

 CHAMFER command
Chamfering connects two nonparallel objects by extending or trimming them to intersect or to join
with a beveled line. You can chamfer lines, polylines, xlines, and rays. With the distance method, you
specify the amount that each line should be trimmed or extended.
The chamfer distance is the amount each object is trimmed or extended to meet the chamfer line or to
intersect the other object. If both chamfer distances are 0, chamfering trims or extends the two objects
until they meet but does not draw a chamfer line.

The default setting for the first distance is the last distance specified. The default setting for the
second distance is whatever you choose for the first distance, because symmetrical distances are
common. However, you can reset the chamfer distances.
To chamfer by specifying distances

       1.   From the Modify menu, choose Chamfer or
       2.   Command line CHAMFER
       3.   Enter d (Distance).
       4.   Enter the first chamfer distance.
       5.   Enter the second chamfer distance.
       6.   Press ENTER to reenter the CHAMFER command.
       7.   Select the lines for chamfering.

 The Ellipse Command
Toolbar Draw
Pull-down Draw Ellipse Axis, End
Keyboard ELLIPSE     short-cut EL

The Ellipse command gives you a number of different creation options. The default option is to pick the
two end points of an axis and then a third point to define the eccentricity of the ellipse. After you have
mastered the default option, try out the others.

Try yourself-Tutorial


    atifkhan68@hotmail.com                                                         0333-2642151
2dmuetcourse-110709082805-phpapp02.doc                                          Page 33 of 66
        Command: ELLIPSE
        Specify axis endpoint of ellipse or [Arc/Center]: (pick P1)
        Specify other endpoint of axis: (pick P2)
        Specify distance to other axis or [Rotation]: (pick P3)


 OFFSET command




Offset creates a new object whose shape parallels the shape of a selected object. Offsetting a circle or an
arc creates a larger or smaller circle or arc, depending on which side you specify for the offset.
A highly effective drawing technique is to offset objects and then trim or extend their ends.




You can offset
   Lines
   Arcs
   Circles
   Ellipses and elliptical arcs
   2D polylines
   Construction lines (xlines) and rays
   Splines

To offset an object by specifying a distance
    1. Click Modify menu Âť Offset.
    2. Specify the offset distance.
        You can enter a value or use the pointing device to specify the distance/gap
    3. Select the object to offset.
    4. Specify a point on the side where you want to place the new objects.
    5. Select another object to offset, or press ENTER to end the command.

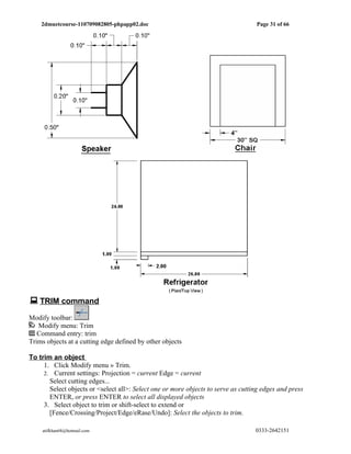
 Exercise – Oval Wash Basin (Assume missing dimensions, if any)




     atifkhan68@hotmail.com                                                         0333-2642151
2dmuetcourse-110709082805-phpapp02.doc   Page 34 of 66




atifkhan68@hotmail.com                   0333-2642151
2dmuetcourse-110709082805-phpapp02.doc                                                  35 of 66
 Exercise – Fancy Door (Assume missing dimensions, If any)




 The Rectangular Array
Toolbar Modify
Pull-down Modify Array
Keyboard ARRAY short-cut AR
The Array command makes multiple copies of selected                                                        objects in
a rectangular matrix (columns and rows) or a polar (circular)                                              pattern.
The illustration on the right shows the results of a rectangular                                           array
with two columns and three rows. The distance between rows                                                 is
indicated with the dimension DR and between columns with                                                   DC.
When creating rectangular arrays it is important to remember                                               that new
rows are created above the original object and new columns                                                 are
created to the right of the original object. The resulting array is, therefore, always created with the original
object in the bottom left hand position with respect to the current co-ordinate system. In the illustration, the
original object is shown in dashed line and the new objects in continuous lines.
Note: It is possible to create arrays which do not align with the World Co-ordinate System by setting a User
Co-ordinate System first
    atifkhan68@hotmail.com                   0333-2642151                              Page 35 of 66
2dmuetcourse-110709082805-phpapp02.doc                                               36 of 66
Try yourself-Tutorial
Try creating this array yourself. First                                                                open a
new file with metric settings, draw a                                                                  rectangle
20 drawing units wide and 10 drawing                                                                   units tall
somewhere in the lower left quarter of                                                                 the
drawing area.

Now start the Array command. First of                                                                  all, make
sure that the Rectangular Array button                                                                     is
selected and that you are looking at the
Rectangular Array dialogue box and now                                                                 follow
the steps below:

   1.   Click the Select objects button.                                                              The
        dialogue box will temporarily
        disappear enabling you to select the rectangle you just drew. Press enter button on your keyboard to
        complete the selection. You are now returned to the dialogue box and the message immediately below
        the Select Objects button should read "1 objects selected".
   2. Enter the number of rows required in the Rows edit box. For this example, enter the value "3". Notice
      that the schematic preview on the right hand side of the dialogue box updates to reflect the values you
      are entering.
   3. Enter the number of columns required in the Columns edit box. Enter the value "2".
   4.   Enter the row offset in the Row Offset edit box. This is the distance DR as discussed earlier. Note that
        is not the distance between rows. In this example, our rectangle is 1 units high and we will enter a row
        offset of 15. The result will be a 5 unit gap between rows of rectangles.
   5. Enter the column offset in the Column Offset edit box. The same parameters apply as for the row
      offset. Enter a value of 25 to give a 5 unit gap between our rectangles.
   6. Click on the Preview button. Once again, the dialogue box disappears and the specified array is
      temporarily drawn so that we can preview it. We are now offered 3 choices. If the array isn't quite
      right, click the Modify button to return to the Array
      dialogue box. If you are happy with the array, click                                            the
      Accept button, the array will be permanently drawn                                              and the
      command is ended.
You should now have an array that looks similar to the one in the illustration above consisting of 6 rectangles
arranged in 3 rows and 2 columns. As you can se, this command is very powerful and can save lots of time if
used carefully.
Note: Try negative values specifying DR ( -15 ) & DC ( -25 ) in step no.4 & 5 , and see the different arrays
you get with such combinations.




    atifkhan68@hotmail.com                   0333-2642151                           Page 36 of 66
2dmuetcourse-110709082805-phpapp02.doc                                               37 of 66
 Exercise – Ventilation Panel
Complete the drawing of the ventilation panel. Use the Array command with the Rectangular option to create
a total of 8 rows and 5 columns.




 Exercise




 The Polar Array
The polar array works in a similar way to the rectangular array. The main difference is that rather than
specifying the number and offset for rows and columns, you must specify a center point and the total number
of objects in the array (including the original                                                          object).

Try yourself-Tutorial
You can try this for yourself by drawing another
rectangle as described above. This time, though,                                                         locate
the rectangle in the centre top half of the
drawing area. Now, start the Array command,                                                              click
the Polar Array button       and follow the steps                                                        below:

   1. Same as earlier
   2. Specify the center point for the array.                                                            This is
      the point C in the illustration below.                                                             You
      can do this by entering x and y co-

    atifkhan68@hotmail.com                   0333-2642151                           Page 37 of 66
2dmuetcourse-110709082805-phpapp02.doc                                               38 of 66
        ordinates into the appropriate edit boxes if you know what these values should be. However, this is
        rarely the case and most often you will want to click the Pick Center Point button to pick a point from
        the drawing area. Pick a point somewhere below the rectangle you have just drawn.
   3. Enter a value for the total number of items. For this example, enter the value "6". Notice that once
      again, the schematic preview updates to reflect the values you have entered.
   4.   Make sure that the Rotate items as copied checkbox is checked/selected
   5. Same as step six in earlier
      example
The array you have just drawn should                                                                     look
something like the one illustrated                                                                       below,
left. Take some time to play around                                                                      with
the other options in the Array dialogue                                                                  box to
see what they can do.
The illustration shows the results of a                                                                  polar
array using an original rectangle copied                                                                 six
times about a centre point C, through an                                                                 angle
of 360 degrees. The only difference
between the array on the left and
the one on the right is that the Rotate items as copied checkbox was not checked in the right hand example.
All new objects created with the Array command will inherit the object properties of the original object.

 Exercises – Polar array




 Exercises (Door, Window & Chair)
    atifkhan68@hotmail.com                   0333-2642151                           Page 38 of 66
2dmuetcourse-110709082805-phpapp02.doc                                            39 of 66




 The Copy and Move Commands
With Copy command you can create Copies/duplicates of objects at a specified distance in a specified
direction
    atifkhan68@hotmail.com                   0333-2642151                        Page 39 of 66
2dmuetcourse-110709082805-phpapp02.doc                                                 40 of 66


Try yourself-Tutorial
First start a drawing with imperial settings, draw the figure show below,

Command: Rectangle
Specify first corner point or
[Chamfer/Elevation/Fillet/Thickness/Width]: pick a point P1                                           anywhere
Specify other corner point or [Area/Dimensions/Rotation]: Type @2,                                    1 and press
enter

Now start Line command
Command: _line Specify first point: Select the lower left corner of                                   rectangle P1
as start point of line
Specify next point or [Undo]: Select the upper right corner of                                        rectangle P2
as end of line
Specify next point or [Undo]: Press enter to end the Line command

Start Circle command to draw the circle
Command: circle
Specify center point for circle or [3P/2P/Ttr (tan tan radius)]: Pick the mid point of the diagonal line
Specify radius of circle or [Diameter] <0.3126>: Type 0.25

To create a copy/duplicate of the rectangle at a gap of one inch from the previous rectangle.
Start Copy command by any one of the following methods




Command: copy
Select objects: Select the rectangle only
Select objects: Press enter to end selection
Specify base point or [Displacement] <Displacement>: Select lower left corner of the rectangle P1
Specify second point or <use first point as displacement>: Type @3, 0 and press enter
Specify second point or [Exit/Undo] <Exit>: (If you want to create more copies specify next location) But
now press enter to end copy command




With Move command you can move objects at a specified distance and direction from the originals.
    atifkhan68@hotmail.com                   0333-2642151                             Page 40 of 66
2dmuetcourse-110709082805-phpapp02.doc                                               41 of 66
The Move command works in a similar way to the Copy command except that no duplicate/copy is made, the
selected object(s) is simply moved/shifted from one location to another.

To move/shift the diagonal line and circle start move command by any one of the following methods,




Command: move
Select objects: Select the diagonal line
Select objects: Now select the circle
Select objects: Press enter to end move command
Specify base point or [Displacement] <Displacement>: Select the upper right corner P2 of the rectangle
Specify second point or <use first point as displacement>: Select upper right corner P3 of the copied rectangle
on the right side




 POINT Command
 Points are very simple objects and the process of creating them is also very simple. Points are rarely used as
 drawing components. They are normally used just as drawing aids in a similar way that Construction Lines
 and Rays are used. When adding points to a drawing it is usually desirable to set the point style first because
 the default style can be difficult to see.

The point command will insert a point marker in your drawing at a position which you pick in the drawing
window or at any co-ordinate location which you enter at the keyboard. The default point style is a simple dot,
which is often difficult to see but you can change the point style to something more easily visible or elaborate
using the point style dialogue box. You can snap to points using the Node object snap (You will learn this when
doing Object Snap tutorial for details)

Points can be used for "setting out" a drawing in addition to construction lines. You can Snap to points using
the Node object snap.

Try yourself-Tutorial
       (Draw some points at various locations)
      Command: POINT
       Current point modes: PDMODE=0 PDSIZE=0.0000
       Specify a point: (pick any point or type the coordinates                                      where you
       want to draw a point)



    atifkhan68@hotmail.com                   0333-2642151                           Page 41 of 66
2dmuetcourse-110709082805-phpapp02.doc                                                            42 of 66
        Strangely, in Multiple Point mode (the default for the Point button on the Draw toolbar) you will need
        to use the escape key (Esc) on your keyboard to end the command. The usual right-click or enter
        doesn't work.

                                                        You can start the point style command from the keyboard by
                                                        typing DDPTYPE or you can start it from the pull-down menu
                                                        at Format Point Style… The command starts by displaying a
                                                        dialogue box offering a number of options.

                                                  To change the point style, just pick the picture of the style you
                                                  want and then click the "OK" button. Any new points created
after the style has been set will automatically display in the new style.

One interesting aspect of points is that their size can be set to an absolute value or relative to the screen size,
expressed as a percentage. The default is for points to display relative to the screen size, which is very useful
because it means that points will remain the same size, irrespective of zoom factor. This is particularly
convenient when drawings become complex and the drawing process requires a lot of zooming in and out.

 The Construction Line Command
The Construction Line command creates a line of infinite length which passes through two picked points. Construction lines are very
useful for creating construction frameworks or grids within which to design.
Construction lines are not normally used as objects in finished drawings, it is usual, therefore,nto draw all your
construction lines on a separate layer which will be turned off or frozen prior to printing. Because of their nature,
the Zoom Extents command option ignores construction lines.

Try yourself-Tutorial
      First open a new drawing using start from scratch with imperial settings, zoom out once and add/draw
      some line using xline command,
      Command: XLINE
      Specify a point or [Hor/Ver/Ang/Bisect/Offset]: (pick a point anywhere or type 0,0)
      Specify through point: (pick a second point anywhere or type 12,9)
      Specify through point:         (to end )

         You may notice that there are a number of options with this command. For example, the "Hor" and
         "Ver" options can be used to draw construction lines that are truly horizontal or vertical. In both these
         cases, only a single pick point is required because the direction of the line is predetermined. To use a
         command option, simply enter the capitalized part of the option name at the command prompt. Follow
         the command sequence below to see how you would draw a construction line using the Horizontal
         option.

 Exercise -




     atifkhan68@hotmail.com                        0333-2642151                                   Page 42 of 66
2dmuetcourse-110709082805-phpapp02.doc                                                    43 of 66




 The Polyline command
The Polyline or Pline command is similar to the line command except that the resulting object may be
composed of a number of segments which form a single object. In addition to the two ends a polyline is said to
have vertices (singular vertex) where intermediate line segments join. In practice the Polyline command works
in the same way as the Line command allowing you to pick as many points as you like. Again, just hit to
end. As with the Line command, you also have the option to automatically close a polyline end to end. To do
this, type C to use the close option instead of hitting .

You may be wondering, if Polylines are so useful, why bother using ordinary lines at all? There are a number of
answers to this question. The most frequently given answer is that because of their complexity, polylines use up
more disk space than the equivalent line. As it is desirable to keep file sizes as small as possible, it is a good idea
to use lines rather than polylines unless you have a particular requirement. You will also find, as you work with
AutoCAD that lines and polylines are operationally different. Sometimes it is easier to work with polylines for
certain tasks and at other times lines are best. You will quickly learn the pros and cons of these two sorts of line
when you begin drawing with AutoCAD.

Follow the command sequence below to see how this works. Polylines can also be given line widths to make
them appear solid. The figure shows a number of polylines to give you an idea of the flexibility of this type of
line.

Try yourself-Tutorial
      Command: PLINE
        Specify   start point: (pick P1)
        Current   line-width is 0.0000
        Specify   next point or [Arc/Halfwidth/Length/Undo/Width]: (pick P2)
        Specify   next point or [Arc/Close/Halfwidth/Length/Undo/Width]: (pick P3)
        Specify   next point or [Arc/Close/Halfwidth/Length/Undo/Width]: (pick P4)
        Specify   next point or [Arc/Close/Halfwidth/Length/Undo/Width]: (pick P5)
        Specify   next point or [Arc/Close/Halfwidth/Length/Undo/Width]:     (or C to close)

The figure on the left was created by hitting the key after the fifth point was picked. The figure on the right
demonstrates the effect of using the Close option. Try experimenting with options such as Arc and Width and
see if you can create polylines like the ones in the illustration above.

    atifkhan68@hotmail.com                    0333-2642151                               Page 43 of 66
2dmuetcourse-110709082805-phpapp02.doc                                                44 of 66


Polylines can be edited after they are created to, for example, change their width. You can do this using the
PEDIT command which will be discussed/taught later.

 The Donut Command
This command draws a solid donut shape.                                                        AutoCAD
asks you to define the inside diameter i.e. the                                                diameter of
the hole and then the outside diameter of the                                                  donut. The
donut is then drawn in outline and you are                                                     asked to pick
the centre point in order to position the donut.                                               You can
continue picking centre points to draw more                                                    donuts or
you can hit to end the command.                                                                Surprisingly,
donuts are constructed from single closed polylines composed of two arc segments which have been given a
width. Fortunately AutoCAD works all this out for you, so all you see is a donut.

Try yourself-Tutorial
      First open a new imperial drawing file, and try this
      Command: DONUT
       Specify    inside diameter of donut <0.5000>: (type 2 as inside/hole diameter)
       Specify    outside diameter of donut <1.0000>: (type 4 as outside diameter )
       Specify    center of donut or <exit>: (pick P1 anywhere or type 2,2)
       Specify    center of donut or <exit>:    (to end or continue to pick for more donuts)
       Curiously enough AutoCAD doesn't seem to mind if you make the inside diameter of a donut larger
       than the outside diameter, try it and see.
 Exercise - Printed Circuit
Complete the printed circuit board. Use Donut with an inside diameter of 0.1 and an outside diameter of 0.2 to
create the pads. Use Pline with a width of 0.12 to complete the traces. Use a 0.25 Grid and Grid Snap to place all
pads (Donuts) on a point.




    atifkhan68@hotmail.com                   0333-2642151                            Page 44 of 66
2dmuetcourse-110709082805-phpapp02.doc                                            45 of 66
 The Polygon Command




The Polygon command can be used to draw any regular polygon from 3 sides                             up to
1024 sides. This command requires four inputs from the user, the number of                           sides, a
pick point for the centre of the polygon, whether you want the polygon
inscribed (Inside a circle) or circumscribed(Outside a circle) and then a pick                       point
which determines both the radius of this imaginary circle and the orientation                        of the
polygon. The polygon command creates a closed polyline in the shape of the                           required
polygon.

Try yourself-Tutorial
      Command: POLYGON
       Enter number of sides <4>: 5
       Specify center of polygon or [Edge]: (pick P1 anywhere or                                     type
       12,0)
       Enter an option [Inscribed in circle/Circumscribed about                                      circle]
       <I>:   (to accept the inscribed default)
       Specify radius of circle: (pick P2 anywhere or type 2 as a                                    radius)


Try yourself-Tutorial
       Enter number of sides <4>: 5
       Specify center of polygon or [Edge]: (pick P1 anywhere or type 12,9)
       Enter an option [Inscribed in circle/Circumscribed about circle] <I>:                     ( type C for
       circumscribed)
       Specify radius of circle: (pick P2 anywhere or type 2 as radius)

Try yourself-Tutorial
      Command: POLYGON
       Enter number of sides <4>: 5
       Specify center of polygon or [Edge]: (type E to define by edge length)
       Specify first end point of Edge: (pick P1 anywhere or type 6,4.5)
       Specify first end point of Edge: (pick P2 or specify length by any method)




    atifkhan68@hotmail.com                   0333-2642151                        Page 45 of 66
2dmuetcourse-110709082805-phpapp02.doc                                                46 of 66
 Exercises




 The Arc Command
                                          The Arc command allows you to draw an arc of a circle. There are
                                          numerous ways to define an arc, the default method uses three pick
                                          points, a start point, a second point and an end point. Using this
                                          method, the drawn arc will start at the first pick point, pass through
                                          the second point and end at the third point. Once you have mastered
the default method try some of the others. You may, for example need to draw an arc with a specific radius.
All of the Arc command options are available from the pull-down menu.

Try yourself-Tutorial
      Command: ARC
       Specify start point of arc or [Center]: (pick P1
       anywhere)
       Specify second point of arc or [Center/End]:                                                     (pick P2
       anywhere)
       Specify end point of arc: (pick P3)

Note: It is also possible to create an arc by trimming a circle object. In practice, many arcs are actually
created this way.
 Exercise – Drawing ARCS




    atifkhan68@hotmail.com                   0333-2642151                            Page 46 of 66
2dmuetcourse-110709082805-phpapp02.doc                       47 of 66
 Exercise – Bath Tub




  atifkhan68@hotmail.com                   0333-2642151   Page 47 of 66
2dmuetcourse-110709082805-phpapp02.doc                                              48 of 66


 ROTATE Command
Try yourself-Tutorial
First draw a figure similar to the one shown on right, or draw any other figure,
Start ROTATE command by using any one of the following methods




       Command: _ROTATE
       Current positive angle in UCS: ANGDIR=ccw ANGBASE=0
       Select objects: Select Entities (Select the arrow only)
       Specify base point: Select the point around which you will rotate the
       entities.(Select the center of the circle)
       Specify rotation angle or [Copy/Reference]: Enter angle (Type 120
       degree angle & press enter)
 Loading different line types into drawing file using
       Linetype Manager
  Format menu: Linetype
  Command entry: linetype (or 'linetype for transparent use)
     Loads linetypes and sets the current linetype.
       Load
       Displays the Load or Reload Linetypes dialog box, in which you can load into the drawing selected
       linetypes and add them to the linetype list.
       Current
       Sets the selected linetype to be the current linetype.
       Delete
       Deletes selected linetypes from the drawing. You can delete only unused linetypes. The BYLAYER,
       BYBLOCK, and CONTINUOUS linetypes cannot be deleted.

 Exercises – Bed, Desktop Phone set & Slotted Flat Head Screw




    atifkhan68@hotmail.com                   0333-2642151                          Page 48 of 66
2dmuetcourse-110709082805-phpapp02.doc                                                  49 of 66
 Creating & formatting Multiline / Paragraph text

Draw toolbar:
   Draw menu: Text Âť Multiline Text
  Command entry: mtext




To create multiline text
1. Click Draw menu Âť Text Âť Multiline Text.
2. Specify opposite corners of a bounding box to define the width of the multiline text object.
    The In-Place Text Editor is displayed as shown above.
3. If you want to use a text style other than the default, click the arrow next to the Text Style control on the
    toolbar and then select a style.
4. Enter text.
Note Text that would otherwise be difficult to read (if it is very small, very large, or is rotated) is displayed at
a legible size and is oriented horizontally so that you can easily read and edit it.

5. To override the current text style, select text as follows:
    To select one or more letters, click and drag the pointing device over the characters.
    To select a word, double-click the word.
    To select a paragraph, triple-click the paragraph.
6. On the toolbar, make format changes as follows:
    To change the font of the selected text, select a font from the list.
    To change the height of the selected text, enter a new value in the Height box.


    atifkhan68@hotmail.com                   0333-2642151                              Page 49 of 66
2dmuetcourse-110709082805-phpapp02.doc                                               50 of 66
     To format text in a TrueType font with boldface or italics, or to create underlined or overlined text for
      any font, click the corresponding button on the toolbar. SHX fonts do not support boldface or italics.
    To apply color to selected text, choose a color from the Color list. Click Other to display the Select
      Color dialog box.
7. To save your changes and exit the editor, use one of the following methods:
    Click OK on the toolbar.
    Click in the drawing outside the editor.
    Press CTRL+ENTER.

To insert symbols or special characters in multiline text
1. Double-click a multiline text object to open the In-Place Text Editor.
2. On the expanded toolbar, click Symbol.
3. Click one of the options on the menu, or click Other to display the Character Map dialog box.
   To access the Character Map dialog box, you must have charmap.exe installed. See MicrosoftÂŽ WindowsÂŽ
   Help for information about adding programs to your system.
4. In the Character Map dialog box, select a font.
5. Select a character, and use one of the following methods:
   S To insert a single character, drag the selected character into the editor.
   T To insert multiple characters, click Select to add each character to the Characters to Copy box. When
       you have all the characters you want, click Copy. Right-click in the editor. Click Paste.
2.To save your changes and exit the editor, use one of the following methods:
   T Click OK on the toolbar.
   C Click in the drawing outside the editor.
Press CTRL+ENTER.
 The Mirror Command




The Mirror command allows you to mirror selected objects in your                                      drawing
by picking them and then defining the position of an imaginary                                        mirror
line using two points.

Try yourself
First create a figure similar to the shown above and use mirror                                       command
       Command: MIRROR
       Select objects: (pick object to mirror, P1)
       Select objects:    (to end selection)
       Specify first point of mirror line: (pick P2)
       Specify second point of mirror line: (pick P3)
       Delete source objects? [Yes/No] <N>: (for No to keep the                                       original
       object)
Notice that in the command sequence above, pressing the key                                       when
asked whether to "Delete source objects?" resulted in a "No"                                      response.
This is because "No" is the default option. AutoCAD always shows the default option within triangular
    atifkhan68@hotmail.com                   0333-2642151                           Page 50 of 66
2dmuetcourse-110709082805-phpapp02.doc                                            51 of 66
brackets, in this case "<N>". Many AutoCAD commands offer default options. They are usually the most
commonly used and you need only right-click and select "Enter" from the menu or press on the keyboard to
accept them.
In order to create perfectly horizontal or vertical mirror lines use Ortho.

 Exercise – Mirror the Pulley
Draw one side of the pulley shown in Figure. Use the Mirror command to complete the other side, Save the
drawing as PULLEY.




 Exercise – Mirror the elevation
Practice drawing half of the figure shown below and than use mirror command to create the opposite half.
Assume any appropriate dimensions/sizes.




 Creating Layers, using Layer manager dialogue box-Tutorial
Object
Create following layers, assign color and line type to each
layer by using the layer and line type properties dialogue box.
Introduction
Layers are like transparent overlays on which you organize                                               and
group different kinds of drawing information. The objects                                                you
create have common properties including colors, Linetypes,                                               and
lineweights. An object can assume these properties from the
layer it is drawn on, or properties can be specifically assigned                                         to
individual objects. Color helps you distinguish similar elements in your drawings, enhancing your drawing

    atifkhan68@hotmail.com                   0333-2642151                        Page 51 of 66
2dmuetcourse-110709082805-phpapp02.doc                                               52 of 66
and increasing legibility. Organizing layers and the objects on layers makes it easier to manage the
information in your drawings.

You can assign properties to layers as well as to
individual objects in a drawing. If you want a
specific object to have a different color, Linetype,
lineweight than the layer it is drawn on, you can
change the object property setting.

Common layers mostly used in drawings are walls,
doors, windows, plumbing, electrical, fixtures,
structural elements, notes (text), dimensions, ceiling,
insulation, posts, title block, center, hidden, hatch, object and so on.
Procedure
The formation of layers in a drawing involves the following steps.
First open a new drawing file using start from scratch and imperial settings. Give it a name (Layer practice) by
using Save as option in the file menu.
Creating and Naming Layers
       Use any one of the following methods to display the Layer properties manager dialog as shown.
       Layers toolbar:
           Format menu: Layer
          Command entry: layer (or 'layer for transparent use or –layer to avoid dialogue box)
       Listed in the box is only one layer which is default Layer. Generally drawings are not created on 0
       layer, instead it should be created on newly created layers. To create these Layers, click on the “New
       Layer” button and notice a layer is automatically added to the list of layers. This layer is given a
       default name “Layer 1” but you can type Object here as this is the layer which we want to create.
       Pressing/Typing/Entering a comma at the end of the layer’s name, allows more layers to be added to
       the list of layers. Once the comma was entered after the layer “Object” and the new layer appears,
       enter the new name of the layer as “Hidden”. Repeat this procedure of using comma to create other
       desired layers. The layer listing will be as shown above in figure except the circle on the color swatch.




    atifkhan68@hotmail.com                   0333-2642151                           Page 52 of 66
2dmuetcourse-110709082805-phpapp02.doc                                                53 of 66




Assigning Color to a Layer
      As all the layers are displayed, the names may be different but
      they all have the same color and line type (see figure). At this
      time the dialog box comes in real handy to assign color and
      linetypes to layers in quick and easy manner. First
      select/highlight the desired layer to add color or line types by
      picking the layer. A horizontal shaded bar displays that this is                                        the
      selected layer.
      Click on the color swatch identified by the circle in the above
      figure, and assign/select the color “Red” for the “Hidden”
      layer name. Repeat this procedure for assigning colors to other layers.
Assigning a Linetype to a Layer
      Once the color has been assigned to a layer the next step is to assign the line type to the layer. The
      “Hidden” layer requires the line type called the “Hidden”. Click on the “Continuous” to display the
      select “Line type” Dialog box as shown in the figure beside. By default continuous is the only line type
      loaded into your file. Clicking on the Load
      button, displays “Load OR Reload Line Types”
      dialog box as shown below.
      Select/pick the desired line types (Keep Ctrl OR
      Shift keys pressed while selecting multiple line
      types.) Click Ok button to return to the Select
      Line type dialog box. You will see that hidden                                                         line
      type is listed along with the “Continuous”.

      As the line type has just been loaded, it still has not been assigned to the “Hidden” layer. Click on
      Hidden layer line type listed in the
      select line type dialog box and click
      on OK button. Once the Layer and
      line type properties dialog box
      reappears, notice that the “Hidden”
      line type has been assigned to the
      “Hidden” layer. Repeat this procedure
      to assign line types to other layers.

      It is to be noted that when layers are
      first created they are listed in the
      order they were entered/created.
      When the layers are saved and Layer
      & Line type dialog box is displayed
      again, all layers are recorded alphabetically.

Deleting Layers



   atifkhan68@hotmail.com                   0333-2642151                            Page 53 of 66
2dmuetcourse-110709082805-phpapp02.doc                                            54 of 66
Renaming Layers
        You may want to rename a layer to better define how it's used in your drawing. You can rename a
        layer at any time during a drawing session. You cannot rename layer 0. To rename a layer first
        highlight/select the layer name than keep Alt key pressed and click the name with mouse pointer.
 WBLOCK creating block outside the existing drawing file
To save a block or object as a separate drawing file
 At the Command prompt, enter wblock.
 In the Write Block dialog box,
     Source:
    1
   Block: Allows us to select an existing block/local block                                            in the
   current drawing to be saved as a block/file outside the
   existing drawing, select a name from the list. OR
   Entire Drawing: Selects current drawing for creating a
   block. OR
   Objects: Allows us to select individual objects for
   creating a block, as mentioned above, but with only                                                 one
   difference, i.e. It also permits us to specify the
   location/destination outside the existing file, where the                                           block
   will be saved.
               Under Objects, choose the Select Objects
              2
             button to use the pointing device to select objects for the block creation.
         The dialog box closes temporarily while you select objects for the block. Press ENTER when you
         are done selecting blocks. The dialog box reopens.
                Under Objects, specify whether to retain, convert to a block, or delete the selected
              3
             objects. You may select any one of these options.
                Retain: Keeps selected objects in the current drawing, in their original state.
                Convert to Block: Existing selected objects are also converted into a block (Single
                object).
                Delete: Removes/erases selected objects from the screen after the block is created.
               Under Base Point, enter the coordinate values for the insertion base point or choose Pick
              4
             Point button. Pick Point button temporarily closes the dialog box so that you can specify an
             insertion base point in the current drawing.
                Destination : Click on the button [...] to Specify the new name and location of the file.
              5
            You can also choose the units of measurement to be used when the block is inserted in future.
         The block is saved as a separate drawing.
         Command line WBLOCK

          Exercise – Create & save as blocks




    atifkhan68@hotmail.com                   0333-2642151                        Page 54 of 66
2dmuetcourse-110709082805-phpapp02.doc                       55 of 66




     Inserting or using a
        Block/WBlock/Symbol in a
        drawing

    Insert toolbar:
       Insert menu: Block
       Command entry: insert
atifkhan68@hotmail.com                   0333-2642151   Page 55 of 66
2dmuetcourse-110709082805-phpapp02.doc                                               56 of 66
            Name: Specifies the name of a block to insert, or the name of a file to insert as a block. OR
         1
     Browse: Opens the Select Drawing File dialog box (a standard file selection dialog box) where
        you can select a block or drawing file to insert.
        Path: Specifies the path to the block.
          Insertion Point: Specifies the insertion point for the block.
         2
        Specify On-Screen: Specifies the insertion point of the block using the pointing device.
             X, Sets the X coordinate value.
             Y, Sets the Y coordinate value.
             Z, Sets the Z coordinate value.
       Scale: Specifies the scale for the inserted block. Specifying negative values for the X, Y, and Z
        scale factors inserts a mirror image of a block.
        Specify On-Screen: Specifies the scale of the block using the pointing device.
             X, Sets the X scale factor.
             Y, Sets the Y scale factor.
             Z, Sets the Z scale factor.
        Uniform Scale: Specifies a single scale value for X, Y, and Z coordinates. A value specified for X
        is also reflected in the Y and Z values.
       Rotation: Specifies the rotation angle for the inserted block in the current UCS.
             Specify On-Screen: Specifies the rotation of the block using the pointing device.
             Angle :Sets a rotation angle for the inserted block.
       Block Unit: Displays information about the block units.
             Unit: Specifies the INSUNITS value for the inserted block.
             Factor: Displays the unit scale factor, which is calculated based on the INSUNITS value of
             the block and the drawing units.
       Explode: Explodes the block and inserts the individual parts of the block. When Explode is
        selected, you can specify a uniform scale factor only.




atifkhan68@hotmail.com                   0333-2642151                           Page 56 of 66
2dmuetcourse-110709082805-phpapp02.doc                        57 of 66
     Exercise – Creating and inserting a block/wblock




     PROJECT – Constructing a bathroom plan




atifkhan68@hotmail.com                   0333-2642151    Page 57 of 66
2dmuetcourse-110709082805-phpapp02.doc                       58 of 66




atifkhan68@hotmail.com                   0333-2642151   Page 58 of 66
2dmuetcourse-110709082805-phpapp02.doc                                59 of 66




     Exercises




     Printing/plotting in model space
    From the File menu, choose Page Setup manager. OR use
    any one of the following methods

      Layouts toolbar:
       File menu: Page Setup Manager
      Shortcut menu: Right-click the Model tab or a layout tab
    and choose Page Setup Manager.
      Command entry: pagesetup

    In the Page Setup manager dialog box, chose New.
    In the new page setup dialogue box, write any appropriate
    name in place of Setup1 for the printout/print pre-view
    settings. Choose OK to close the new Page Setup dialog
    box.

atifkhan68@hotmail.com                   0333-2642151            Page 59 of 66
2dmuetcourse-110709082805-phpapp02.doc                                                60 of 66
    Note: You can create & save several printout/print pre-view settings, and can print/recall/review any
    setting by choosing set current in the page setup manager dialogue box

    Now you see page setup model dialogue box,
    The page setup –Model dialogue box
    Specifies device and print
    settings, and plots your
    drawing.

    1. Printer/Plotter
    Choose an appropriate printer
    2. Paper Size
    Displays standard paper sizes that are
    available for the selected plotting device.
    If no plotter is selected, the full standard
    paper size list is displayed and available
    for selection.
    3. Plot Area
    Specifies the area of the drawing to be
    plotted. Under What to Plot, you can
    select an area of the drawing to be plotted.
      Display
      Plots the current view in the Model tab.
      Extents
      Plots all the area of the current space of the drawing that contains objects. All geometry/drawing in
      the current space is plotted.
      Limits
      When plotting from the Model tab, plots the entire drawing area that is defined by the grid limits.
      Window
      Plots any portion of the drawing that you specify. When you specify the two corners of the area to
      plot, the Window button becomes available.
      Click the Window button to use the pointing device to specify the two corners of the area to be
      plotted, or enter coordinate values.
        Command: Specify first corner: Specify a point
        Specify other corner: Specify a point
    4. Plot Scale
    Controls the relative size of drawing units to plotted units. The default setting is Fit to Paper when
    plotting from the Model tab.
    5. Preview
    Displays the drawing as it will appear when plotted on paper. To exit the print preview and return to
    the Page Setup dialog box, press ESC, press ENTER, or right-click and click Exit on the shortcut
    menu.
    6. Plot Offset
    Specifies an offset of the plot area relative to the lower-left corner of the printable area or to the edge
    of the paper
      Center the Plot
      Automatically calculates the X and Y offset values to center the plot on the paper. This option is not
      available when Plot Area is set to Layout.
    7. Drawing Orientation


atifkhan68@hotmail.com                   0333-2642151                            Page 60 of 66
2dmuetcourse-110709082805-phpapp02.doc                                               61 of 66
    Specifies the orientation of the drawing on the paper for plotters that support landscape or portrait
    orientation.
      Portrait
      Orients and plots the drawing so that the short edge of the paper represents the top of the page.
      Landscape
      Orients and plots the drawing so that the long edge of the paper represents the top of the page.
      Plot Upside-Down
      Orients and plots the drawing upside-down.
      Note : Icon represents the orientation of the drawing on the page as a letter on the paper.
    8. Plot Style Table
    Chose monochrome for printing black & white only.
    9. Scale
      Controls the relative size of drawing units to plotted units. The default setting is Fit to Paper when
      plotting from the Model tab.
     Hatching Areas & Gradient
    Hatching fills a specified area in a drawing with a pattern.
    You can hatch an enclosed area or a specified boundary
    using the BHATCH and HATCH commands.

    BHATCH creates associative or nonassociative hatches.
    Associative hatches are linked to their boundaries and are
    updated when the boundaries are modified. Nonassociative
    hatches are independent of their boundaries.
    To hatch areas
          Toolbar: Draw
             Menu:      Draw     Hatch
             Command entry: hatch
                                OR bhatch
          At the command prompt, enter hatch.
          In the Hatch and Gradient dialog box, first choose
          Hatch
      1. click Add: Pick points.
         In your drawing, specify a point inside each area that you want hatched, and then press
         ENTER.
         This point is known as the internal point.
      2. In the pattern, verify that the sample pattern is the pattern you want to use. To change
         patterns, select another pattern from the Pattern list.
      3. In the Hatch and Gradient dialog box, make adjustments, if necessary.
         Under Draw Order, click one of the options.
         You can change the draw order of the hatch so that the hatch is drawn either behind or in
         front of the hatch boundary, or behind or in front of all other objects.
      4. Click the preview to see how the hatch looks like, if it is acceptable than press enter else
         press escape key to see the dialogue box again and to make desired changes.
      5. Finally, Click OK.
     Exercise-Placing Tiles using Hatch
    First construct Kitchen and Bathroom by assuming any dimensions/size and use Hatch command to
    place Tiles.

atifkhan68@hotmail.com                   0333-2642151                           Page 61 of 66
2dmuetcourse-110709082805-phpapp02.doc                       62 of 66




     Exercise-Using Hatch




atifkhan68@hotmail.com                   0333-2642151   Page 62 of 66
2dmuetcourse-110709082805-phpapp02.doc                                              63 of 66
     Exercise-R.C.C Column




     Dimensioning on drawings
    Dimensioning is the process of adding measurement annotation to a drawing.

    BASIC TYPES OF DIMENSIONING
    You can create dimensions for a variety of object types in many orientations. The basic types of
    dimensioning are
        • Linear
        • Radial (radius, diameter and jogged)
        • Angular
        • Ordinate
        • Arc Length
    Linear dimensions can be horizontal, vertical, aligned, rotated, baseline, or continued (chained).
    Some examples are shown in the illustration.




atifkhan68@hotmail.com                   0333-2642151                          Page 63 of 66
2dmuetcourse-110709082805-phpapp02.doc                                                64 of 66




    PARTS OF A DIMENSION




    Here is a list of the parts of a dimension along with their descriptions.

               Dimensions have several distinct elements: dimension text, dimension lines, arrowheads,
                and extension lines.
               Dimension text is a text string that usually indicates the measurement value. The text can
                also include prefixes, suffixes, and tolerances.
               A dimension line indicates the direction and extent of a dimension. For angular
                dimensions, the dimension line is an arc.
               Arrowheads, also called symbols of termination, are displayed at each end of the
                dimension line. You can specify different sizes and shapes for arrowheads or tick marks.
               Extension lines, also called projection lines or witness lines, extend from the feature to the
                dimension line.
               A center mark is a small cross that marks the center of a circle or arc.
               Centerlines are broken lines that mark the center of a circle or arc.




atifkhan68@hotmail.com                   0333-2642151                            Page 64 of 66
2dmuetcourse-110709082805-phpapp02.doc                                              65 of 66
     Creating a dimension style




 PROJECTS
       Constructing house plans (Assume missing dimensions)
Construct the floor plan shown in Figure. For the exterior walls use a 6” width and 4” width for the
interior walls. Use the Rectangle and Ellipse command to design the tub, wash basin, and toilet or
you may use blocks if you have.




atifkhan68@hotmail.com                                                         Page 65 of 66
2dmuetcourse-110709082805-phpapp02.doc        66 of 66




atifkhan68@hotmail.com                   Page 66 of 66

Autocade 2D complete course

  • 1.
    2dmuetcourse-110709082805-phpapp02.doc Page 1 of 66 Muhammad Atif Khan K.K. Assistant Professor Department Of Mechanical Engineering M.U.E.T. Jamshoro Defining CAD / CADD  CAD Submitted by , MOHAMMAD YOUNUS unushyd@gmail.com Page 1 of 66
  • 2.
    2dmuetcourse-110709082805-phpapp02.doc Page 2 of 66 An acronym for Computer Aided Design It is synonymously used for Computer Aided Drafting.  CADD, An acronym for Computer Aided Design & Drafting CAD/CADD refers to the use of software and computer for creating precise engineering drawings and designs What is AutoCAD  It is a general-purpose computer-aided drafting application program.  It is the largest selling software for Computer Assisted/Aided /Automated Drafting.  More people use AutoCAD than any other CAD software.  Today, AutoCAD is translated into 18 languages and used by millions of users worldwide.  AutoCAD LT is a "scaled down" version of AutoCAD and It costs less. Compared to the full edition of AutoCAD, AutoCAD LT lacks several features. Most notably, it has no 3D modeling capabilities.  Autodesk has also developed a few discipline-specific enhancements of AutoCAD, such as, AutoCAD Architecture AutoCAD Mechanical, AutoCAD Electrical, AutoCAD Civil 3D, and AutoCAD Map 3D are examples of industry-specific CAD applications built on the AutoCAD platform. AutoCAD-Version history Re Ver Re Date of Official Vers Date of lea Official name sion lea release name ion release se se Version 1.0 1.0 1 1982, December Release 13 N/A 13 1994, November Version 1.2 1.2 2 1983, April Release 14 N/A 14 1997, February Version 1.3 1.0 3 1983, August AutoCAD 2000 15.0 15 1999, March Version 1.4 1.4 4 1983, October AutoCAD 2000i 15.1 16 2000, July Version 2.0 2.0 5 1984, October AutoCAD 2002 15.6 17 2001, June Version 2.1 2.1 6 1985, May AutoCAD 2004 16.0 18 2003, March Version 2.5 2.5 7 1986, June AutoCAD 2005 16.1 19 2004, March Version 2.6 2.6 8 1987, April AutoCAD 2006 16.2 20 2005, March Release 9 N/A 9 1987, September AutoCAD 2007 17.0 21 2006, March Release 10 N/A 10 1988, October AutoCAD 2008 17.1 22 2007, March Release 11 N/A 11 1990, October AutoCAD 2009 17.2 23 2008, March Release 12 N/A 12 1992, June Scope of AutoCAD It is used to increase speed & accuracy in the production of drawings in any field, such as  Civil Engg  Electrical Engg.  Structural Engg  Construction  Electronics Engg.  Architectural Engg industry  Biomedical  Manufacturing Engg  Geographic  Chemical Engg  Multimedia Information  Petroleum Engg  Land Management Systems  Mining Engg  City & Regional  Surveying  Industrial Engg Planning  Facilities  Metallurgy Engg  & many more……… Management  Mechatronics  Mechanical Engg  Computer Engg Advantages of AutoCAD over manual/instrumental drafting  Speed  Neatness Submitted by , MOHAMMAD YOUNUS unushyd@gmail.com Page 2 of 66
  • 3.
    2dmuetcourse-110709082805-phpapp02.doc Page 3 of 66  Accuracy  Helps in Engineering Analysis.  Legibility improved.  Helps in Computer Aided  Improved Presentations. Manufacturing (CAM).  Flexibility in Editing.  High rate of drawing production.  Easy Storage/Transport  Enhanced visualization.  Easy retrieval/Access of Drawings  & many more….  Sharing CADD Drawings.  AutoCAD Graphical User Interface (GUI) or Main screen Graphical user interface (GUI) allow computer users to interact with computer by selecting small images called icons to execute instructions, eliminating the need to use text commands. The AutoCAD screen consists of following important areas. These are, The drawing area The blank area (On your computers it may be in black color) in the middle of the screen where you draw. You can think of this as a sheet of drafting paper, except that this black piece Submitted by , MOHAMMAD YOUNUS unushyd@gmail.com Page 3 of 66
  • 4.
    2dmuetcourse-110709082805-phpapp02.doc Page 4 of 66 of paper can be of any size( Infinite size) — even the size of a huge factory or even the size of a city. At the bottom of the drawing area is a tab labeled Model. We will draw on this tab. You use the layout tabs to lay out your drawing for plotting we will learn to draw here later. The UCS icon Notice the symbol with two arrows at the bottom-left corner of the drawing area in Figure above. This symbol is called the User Coordinate System (UCS) icon. The arrows point to the positive directions of the X and Y axes. The crosshairs In the drawing area, notice the two intersecting lines with a small box at their intersection. The small box is called the pickbox because it helps you to select, or pick, objects. The lines are called crosshairs. They show you the location of the mouse cursor in relation to other objects in your drawing. As you move your mouse around, the pickbox and crosshairs move with your mouse. At the bottom of your screen, at the left end of the status bar, you can see the X,Y coordinates change as you move your mouse. The menus and toolbars Beneath the menu bar there are two rows of toolbars. In addition, your screen has two more toolbars, the Draw and Modify toolbar, which is probably docked at the right side of the screen. Use the menus and toolbars together to give AutoCAD commands to draw, edit, get information, and so on. On the Draw toolbar, move the mouse cursor over the first button. You should see a tool tip that says Line. Also notice the status bar, which tells you that this button creates straight-line segments. You use toolbar buttons to execute commands. For example, to draw a line, you click the Line button on the Draw toolbar. The command line All commands can be executed by typing them on the command line. Even if you use a menu item or toolbar button to execute a command, you may see a response on the command line. AutoCAD often provide options that must be typed in from the keyboard. Text that you type appears on the command line. The status bar At the left are the X,Y coordinates. As you move your mouse, these coordinates change. (If they don’t change, click them and move your mouse again.) Note: You can use the CLEANSCREENON command to hide the title bar, toolbars, and status bar, leaving more room for the drawing area. To return to the regular display, use the CLEANSCREENOFF command or press Ctrl+0 to toggle between the two displays.  Different ways to start AutoCAD? You can launch AutoCAD with the following methods:  Choose Start-(All)-Programs-Autodesk-AutoCAD 200X-AutoCAD 200X.  Double-click an AutoCAD drawing file.  Double-click the AutoCAD icon on the Windows desktop.  Click the AutoCAD icon on the taskbar’s Start menu.  Click the AutoCAD icon on the Quick Launch toolbar on the taskbar.  QSAVE or SAVE Quickly saves the current drawing  Standard toolbar:  File menu: Save or save as Submitted by , MOHAMMAD YOUNUS unushyd@gmail.com Page 4 of 66
  • 5.
    2dmuetcourse-110709082805-phpapp02.doc Page 5 of 66  Command line: qsave or save If the drawing is named, AutoCAD saves the drawing without requesting a file name. If the drawing is unnamed, AutoCAD displays the Save Drawing As dialog box (see SAVEAS) and saves the drawing with the file name you specify.  Closing/Exiting AutoCAD If you saved your most recent changes to all open drawings, you can exit AutoCAD without saving the drawings again. If you have not saved your changes, AutoCAD prompts you to save or discard the changes. To exit AutoCAD  Click ( X ) close button at upper right corner  From the File menu, choose Exit. OR  Command line: Type QUIT or EXIT & press ENTER  Different ways to access/start commands You can use any of the following methods to start a command. The easiest way to start a command is to type it in the Command Line window, other methods are  Menu bar  Toolbars, Right clicks on any toolbar, displays all toolbars.  Shortcut menu, right click mouse having cursor at different positions on screen and see different menus, called as shortcut menus.  Using Shortcut Menus You can right-click your pointing device to display shortcut menus from which you can quickly choose options Shortcut menus are context-sensitive. You can display shortcut menus from most of the following AutoCAD window/main screen areas  Erasing objects / ERASE command  Modify toolbar:  Modify menu: Erase  Shortcut menu: Select the objects to erase, right-click in the drawing area, and click Erase.  Command entry: erase Select objects: Use an object selection method or Enter L (Last) to erase the last object drawn. or Enter all to erase all objects from the drawing. And press ENTER when you finish selecting objects The objects are removed from the drawing. Submitted by , MOHAMMAD YOUNUS unushyd@gmail.com Page 5 of 66
  • 6.
    2dmuetcourse-110709082805-phpapp02.doc Page 6 of 66  Canceling a command Sometimes you might find yourself using a command, and all of a sudden you want to stop using it and switch to a different one. If you don’t want to complete the current command, press Esc or right- click and choose Cancel from the shortcut menu.  Repeating last command AutoCAD allows you to repeat the previous command without having to select it from a user interface element again, You can use these methods to repeat a previously used command:  Press Enter when no command is active.  Press the space bar when no command is active.  Press the Up arrow key when no command is active and press Enter. You can Step back to retrieve previously used commands within the current session and not just the most recently used command.  Right-click the drawing window and choose Repeat Command Name.  Right-click the drawing window and choose Recent Input & .command name.  Right-click the Command Line window and choose Recent  Command: command name  Changing the color of an object using properties toolbar Select the objects whose color you want to view or modify, and click color button in the properties toolbar as highlighted in the figure to see available colors. Pick any desired color.  Turning the toolbars ON and OFF Displaying the toolbars shortcut menu Right click on any icon/button and choose the toolbar from the list to be displayed as shown in the figure. Displaying the toolbars through keyboard/command line Command: -TOOLBAR Enter toolbar name or [ALL]: Type any toolbar’s name such as Draw or modify or any other toolbar’s name Enter an option [Show/Hide/Left/Right/Top/Bottom/Float] <Show>: Type F for float and press enter Enter new position (screen coordinates) <0,0>: accept the default 0,0 by pressing enter Enter number of rows for toolbar <1>: accept the default by pressing enter. Submitted by , MOHAMMAD YOUNUS unushyd@gmail.com Page 6 of 66
  • 7.
    2dmuetcourse-110709082805-phpapp02.doc Page 7 of 66  Undo command or Correcting mistakes Reverses the effect of commands  Coordinates systems used in AutoCAD Introduction As a general rule, everything you draw with AutoCAD will be drawn full size/actual size. This often comes as quite a surprise to those who are new to CAD and have spent a number of years working on a drawing board. When you start drawing with AutoCAD you do not have to decide upon a drawing scale as you do when using a drawing board. When drawing on paper you must decide do draw at say, 1:20 or 1:200 depending upon the size of the object that you are drawing so that your scaled drawing will fit on the drawing sheet, be that A3 or A1. In AutoCAD you do not need to decide upon a drawing scale until you come to print the drawing and because the scaling of your drawing takes place at the printing stage, you can create drawings at a scale of 1:1. This has particular advantages because you can, for example, measure lengths, areas and volumes within an AutoCAD drawing and not need to compensate for any scale factor.  LINE Command, close, undo and continue options With the Line command you can draw a simple line from one point to another. When you pick the first point and move the cross-hairs to the location of the second point you will see a rubber band line which shows you where the line will be drawn when the second point is picked. Each line segment drawn is a separate object and can be moved or erased as required. To end this command, just hit the key on the keyboard. Undo & Close options in LINE command The undo option erases the last segment only, where as close option draws the last line segment joining with the start point and at the same time terminates the line command. Continue option in LINE command At any stage you terminated/ended the line command but immediately you decide to continue the line from last point of the last segment you just drawn, start line command when it asks for the start point just press enter the line will be started from the end point of the last segment drawn, thus continuing the line.
  • 8.
    2dmuetcourse-110709082805-phpapp02.doc Page 8 of 66  Understanding startup dialog box-Tutorial Starting AutoCAD  From the start menu choose all programs, and then choose AutoCAD from the menu.  If you have shortcut on desktop then directly double click on AutoCAD icon. Exploring the startup dialog box When you start AutoCAD, the startup dialog box may or may not be displayed depending upon the default settings & the version of software, If it is not displayed then follow this, Turn ON/OFF the display of startup dialog box  From the Tools menu, choose Options- Or  Type Options at command line & press enter  In the Options dialogue box Choose, System-General options-Startup-select, Show or do not show Startup Dialog box  Choose Apply/OK. Now close the software/AutoCAD and re-start, it you will see the startup dialogue box displayed each time you start AutoCAD. The dialog box provides you with four different ways to start working in AutoCAD, you can, A. Open an existing drawing. B. Start a drawing from scratch C. Start a drawing based on a template.(This will be discussed later) D. Use wizards to help you setup/start your drawing (This will be discussed later) To open an existing drawing, click  In the Startup dialog box, choose “Open a Drawing”, and then choose Browse. OR If AutoCAD is already started, from the File menu, choose Open. In the Select File dialog box, select a files (If there is no recently used file than use browse button to locate the file) & chose Open.  Now select VIEW-ZOOM from menu bar and try zoom IN, OUT, ALL, and EXTENT options and observe the difference between them also use PAN REALTIME, and ZOOM WINDOW & ZOOM PREVIOUS from the standard tool bar docked in the top area of GUI/screen.
  • 9.
    2dmuetcourse-110709082805-phpapp02.doc Page 9 of 66 Note: Repeat this several times changing the file each time and practicing various zoom options as listed above. Now close AutoCAD and repeat the same again and again, each time opening a different file. When you have practiced this several times, follow the next step To create a new drawing using Start from Scratch, click  In the Startup dialog box, choose “Start from Scratch”. OR If AutoCAD is already started, from the File menu, choose New, and then choose Start from Scratch in the Create New Drawing dialog box. Select Imperial/English (For making drawing in inches & feet, or. English units) or Metric (For making drawing in millimeters, or metric units), and then choose OK.  A new drawing file opens, based on the English/Imperial or metric settings and with the default name drawing1.dwg (Note: By default all AutoCAD drawing files are saved as dwg files, having dwg as file extension).  Now turn ON the GRIDS (Small dots displayed on screen, they are not printed they help in visually aligning objects on screen and show the limits of working area.) if they are not visible by pressing GRID button in the status bar at lower part of the GUI/AutoCAD main screen.  Make any free hand using line command and mouse, forget the accuracy of the drawing. To save your new drawing  From the File menu, choose Save As.  In the “Save Drawing As” dialog box under File Name, enter a name for the drawing, select destination in “save in” and choose Save. AutoCAD automatically appends the drawing extension (.dwg) to the new file name. Creating a new drawing using Start from scratch option A quick way to begin a new drawing is to start from scratch, which starts a drawing that uses settings from a default drawing template file. The setting you select determines default values used for many system variables controlling text, dimensions, grid, snap, and the default line type and hatch pattern file. English/Imperial: Creates a new drawing based on the Imperial measurement system. The drawing is based on the acad.dwt template, and the default drawing boundary, called the drawing limits, is 12 × 9 inches. Metric: Creates a new drawing based on the metric measurement system. The drawing is based on the acadiso.dwt template, and the default drawing boundary is 420 × 297 millimeters.  Hints & Guidelines when using AutoCAD commands  When using command line Commands often have options/sub-commands, which are displayed within brackets. To choose an option, enter the option's capitalized letter (uppercase or lowercase) on the command line. If an option is preceded by a number, such as the CIRCLE command 3Point option, enter the number and capitalized letter.  Commands are not case sensitive.  Some commands display dialogue box while others display only options at command line therefore, always keep watching command line for options while working in AutoCAD  Space bar can also be used as ENTER / RETURN key  If a command is in progress related help can generally be accessed by pressing F1 key.  Hitting “ENTER” or “SPACEBAR” at “COMMAND” prompt will re-invoke the last command.  Pressing “ESC” key is your best friend for getting out of sticky situations.
  • 10.
    2dmuetcourse-110709082805-phpapp02.doc Page 10 of 66  Accelerator Keys/function keys Use Accelerator Keys/function keys to toggle modes “On” & “OFF”. For example, F1 = Help F2 = Switches state of text window F3 = OSNAP on or off. F6 = COORDINATES on or off. F7 = GRIDMODE on or off. F8 = ORTHOMODE on or off. F9 = SNAPMODE on or off. Save often ! ! ! !  Standard Paper Sizes Metric ISO, Imperial ANSI and USA Architectural are the world’s top standards for paper sizes. Of these metric is number one! An A0 sheet is 1m². This allows paper weights to be expressed in grams per square meter. Example: 110gsm paper. The ratio - length to width - of ISO sheets is 1 to the Square Root 2. This relationship of 1:Sq root 2 is particularly important for reduction onto microfilm, or reduction and enlargement on photocopiers. All metric equipment including microfilm cameras, microfilm printers, photocopiers, and even drawing pen sizes, are designed around this ratio. This makes the process of archiving drawings, resizing, and modifying drawings easy. The ISO paper sizes are devised in such a way that each smaller size is exactly half the size of the previous one. If you cut an A0 sheet in half you get two A1 sheets. Oversize* sheets are used when it is desirable to give extra protection to the drawing sheets by providing a binding or trimming margin.
  • 11.
    2dmuetcourse-110709082805-phpapp02.doc Page 11 of 66  In how many different ways can we enter a point or specify a location Answer of this question is 3 or even more. 1. Entering absolute/real coordinates. Absolute Cartesian Coordinate data entry style is X,Y ( All X , Y & Z values are given w.r.t fixed origin.) The simplest and most elementary form of coordinate values is absolute coordinates. Absolute coordinates conform to the following format: X, Y One problem with using absolute coordinates is that all coordinate values refer back to the origin 0, 0 fixed in the lower left corner. Now, let’s make our first step into drawing and learn about coordinate system by going over these topics. Try yourself-Tutorial Command: LINE Command: Specify first point: -2,1 Specify next point or [Undo]: 3,4 Specify next point or [Undo]: ENTER In the example given above, we drew the line, We gave the point information that is asked by AutoCAD by entering real/absolute coordinates in form of x,y. Let’s continue to convert it into a triangle. Command: LINE Command: Specify first point: -2,1 Specify next point or [Undo]: 3,4 Specify next point or [Undo]: 3,1 Specify next point or [Close/Undo]: -2,1 Specify next point or [Close/Undo]: ENTER atifkhan68@hotmail.com 0333-2642151
  • 12.
    2dmuetcourse-110709082805-phpapp02.doc Page 12 of 66  Absolute coordinate input-Tutorial- 1 First open a new drawing with imperial settings by using start from scratch, and draw it on a graph paper and try to complete the table first and later draw it on computer,  Absolute coordinate input-Tutorial- 2 First open a new drawing with imperial settings by using start from scratch, first on a graph paper and later draw it on computer,  Absolute coordinate input-Tutorial- 3 atifkhan68@hotmail.com 0333-2642151
  • 13.
    2dmuetcourse-110709082805-phpapp02.doc Page 13 of 66 2. Entering relative coordinates: With absolute coordinates, the origin at 0, 0 must be kept in mind at all times in order for the correct coordinate to be entered. With complicated objects, this is sometimes difficult to accomplish and as a result, the wrong coordinate is entered, it is possible to reset the last coordinate to become a new origin or 0, 0 point. The new point would be relative to the previous point, and for this reason, this point is called a relative coordinate. The format is as follows: @X, Y In this format, we use the same X and Y values with one exception: the @ symbol that resets the previous point to 0, 0 i.e. origin, and makes entering coordinates less confusing. Let’s make the previous example by using relative coordinates. Let’s draw the same triangle by starting from -2,1 point, going 5 units in right direction and 3 units in upper direction and end in same -2,1 point. Try yourself-Tutorial Command: LINE Command: Specify first point: -2,1 Specify next point or [Undo]: @ 5,0 Specify next point or [Undo]: @3,0 Specify next point or [Close/Undo]: C As you can see, entering relative coordinates is done by using @ symbol from the last point and entering Δx,Δy values. @ means that we will enter relative coordinates.  Relative coordinate input-Tutorial- 1 First open a new file with metric settings, If AutoCAD is already open, close all files and, Click File menu and choose New, In the New Drawing dialogue box select start from scratch and choose metric & click OK, Now ZOOMOUT once to see all GRID area. If you just started AutoCAD than In the Startup dialogue box select start from scratch and choose metric & click OK Relative Coordinate System. ‘@’ character is used for relative coordinate input. Putting it at the beginning of an entry, the place you are on is considered as the origin and the desired coordinate relative to this origin is entered. Briefly, ‘@’ character means ‘with respect to. atifkhan68@hotmail.com 0333-2642151
  • 14.
    2dmuetcourse-110709082805-phpapp02.doc Page 14 of 66 Start LINE command, Command: LINE Specify first point: pick any point on the screen at lower left corner of GRID area, and follow the steps below. Firstly, draw a 100-unit line. Specify next point or [Undo]: @100,0 ‘Enter’ Then, draw a 100-unit line through Y axis. Specify next point or [Undo]: @0,100 The 80-unit line is in negative X direction. Specify next point or [Undo]: @-80,0 The following movement is in both negative directions of X and Y axes. Specify next point or [Undo]: @-20,-20 The last line is in negative Y direction. Specify next point or [Undo]: @0,-80 Specify next point or [Undo]: Press ENTER  Relative coordinate input-Tutorial- 2 First open a new drawing with imperial settings by using start from scratch, and draw it on a graph paper and try to complete the table first and later draw it on computer,  Relative coordinate input-Tutorial- 3 atifkhan68@hotmail.com 0333-2642151
  • 15.
    2dmuetcourse-110709082805-phpapp02.doc Page 15 of 66  Relative coordinate input-Tutorial- 4  Relative coordinate input-Tutorial - 5 First open a new drawing with imperial settings by using start from scratch, and first draw on a graph paper and later draw it on computer,  Relative coordinate input-Tutorial-6 First open a new drawing with imperial settings by using start from scratch, and first draw on a graph paper and later draw it on computer, atifkhan68@hotmail.com 0333-2642151
  • 16.
    2dmuetcourse-110709082805-phpapp02.doc Page 16 of 66  Relative coordinate input-Tutorial- 7 First open a new drawing with imperial settings by using start from scratch, and first draw on a graph paper and later draw it on computer, 3. Entering Relative Polar Coordinates: Another popular method of entering coordinates is the polar coordinate mode. The format is shown below: @ Distance < angle or @ Length < direction As the preceding format implies, the polar coordinate method requires a known distance and an angle. The @ symbol, resets the previous point to 0, 0. The direction is preceded by the < symbol, which reads the next number as polar or angular direction. We know that angles increase in counter clockwise direction in AutoCAD. The example given here explains how to enter polar coordinates. Try yourself-Tutorial Command: LINE LINE Specify first point: -2,1 Specify next point or [Undo]: @5<0 Specify next point or [Undo]: @3<90 Specify next point or [Close/Undo]: c atifkhan68@hotmail.com 0333-2642151
  • 17.
    2dmuetcourse-110709082805-phpapp02.doc Page 17 of 66  Polar coordinate input-Tutorial-1 Many AutoCAD users have some troubles with angles. The reason beyond this is the lack of information about polar coordinate system. Examining the figure below, let us start to learn polar coordinate system. First open a new file with metric settings, If AutoCAD is already open, close all files and, Click File menu and choose New, In the New Drawing dialogue box select start from scratch and choose metric & click OK, Now ZOOMOUT once to see all GRID area. If you just started AutoCAD than In the Startup dialogue box select start from scratch and choose metric & click OK Firstly, let us draw a coordinate plane and lines with entering length and angles. The formula for polar coordinate entry is: @length<angle (between the X axis). The length and angles of our lines let be 100 unit and 45 degrees respectively. To draw the first line, run the line command, Command: LINE Specify first point: 0,0 and press enter Specify next point or [Undo]: @100<45 The angle for the second line is 45 degrees less than 180. Repeat line command and Command: LINE Specify first point: 0,0 ENTER Specify next point or [Undo]: @100<135 and press enter The angle for the third line is 45 degrees less than 270. Repeat line command, Command: LINE Specify first point: 0,0 ENTER Specify next point or [Undo]: @100<225 and press enter The angle for our last line is 45 degrees less than 360. Repeat line command, Command: LINE Specify first point: 0,0 ENTER Specify next point or [Undo]: @100<315 and press enter atifkhan68@hotmail.com 0333-2642151
  • 18.
    2dmuetcourse-110709082805-phpapp02.doc Page 18 of 66  Polar coordinate input-Tutorial- 2  Polar coordinate input-Tutorial- 3  Polar coordinate input-Tutorial- 4 atifkhan68@hotmail.com 0333-2642151
  • 19.
    2dmuetcourse-110709082805-phpapp02.doc Page 19 of 66  Polar & Relative (Combined) coordinate input-Tutorial- 5 First open a new drawing with imperial settings by using start from scratch, and first draw on a graph paper and later draw it on computer,  Polar & Relative (Combined) coordinate input-Tutorial- 6 First open a new drawing with imperial settings by using start from scratch, and first draw on a graph paper and later draw it on computer,  Drawing Aids Introduction Drawing with AutoCAD is really just like drawing on a drawing board. Most new comers to Computer Aided Design assume that they will need to learn how to draw all over again. In fact, many of the drawing aids that AutoCAD provides are analogous to traditional drafting tools. This means that in many respects, the drawing techniques are very similar. If you ever get stuck, think how you would complete a task on a drawing board and then look for a similar way to do it with AutoCAD. Grid command Status Bar (right-click for settings) Pull-down None Keyboard GRID or F7 atifkhan68@hotmail.com 0333-2642151
  • 20.
    2dmuetcourse-110709082805-phpapp02.doc Page 20 of 66 The drawing grid is a regular pattern of dots displayed on the screen which acts as a visual aid; it is the equivalent of having a sheet of graph paper behind your drawing on a drawing board. These grid dots are not plotted. You can control the grid spacing, so it can give you a general idea about the size of drawn objects. The grid dots extend over the area you specify as the grid limits. The grid helps you align objects and visualize the distances between them. If you zoom in or out of your drawing, you may need to adjust grid spacing to be more appropriate for the new magnification. Command Sequence/Try yourself Command: GRID Specify grid spacing(X) or [ON/OFF/Snap/Aspect] <10.000>: (enter grid spacing e.g. Type 1 & press enter, also try different values and observe changes in the display) Study yourself & explore other options Although you can use the command line to control the visibility of the grid by using the "ON" and "OFF" options or by using the F7 key or, better still, by clicking the GRID button on the status bar. However, the command line does offer some additional options. The Snap option allows you to automatically set the grid spacing to the current snap spacing You can also change the aspect ratio of the grid. By default, the X and Y spacing of the Grid are the same, resulting in a regular square matrix of grid points. But you can display a grid with different X and Y spacing by using the "Aspect" option. You can access grid settings by right-clicking the Grid button on the status bar and selecting Settings… from the short-cut menu. You can also do this from the pull-down menu, Tools Drafting Settings… and click on the "Snap and Grid" tab. Limits command (Grid Limits) You may have noticed that the grid does not extend infinitely in all directions. In fact, it is only displayed within a finite rectangle. You can control the extent of the visible grid using Drawing Limits. Toolbar None Pull-down Format Drawing Limits Keyboard LIMITS Drawing Limits is used to define the extent of the grid display The grid is displayed within a rectangle defined by two pick points or co-ordinates. Command Sequence/Try yourself Command: LIMITS Reset Model space limits: Specify lower left corner or [ON/OFF] <0.0000,0.0000>:(enter co-ordinates 2,2) Specify upper right corner <12,9>: (enter co-ordinates 8,7 ) & observe the change in grid area. atifkhan68@hotmail.com 0333-2642151
  • 21.
    2dmuetcourse-110709082805-phpapp02.doc Page 21 of 66 Explore other options by yourself Drawing Limits can also be used to turn Limits mode on or off. Limits mode can be used to control where objects can and cannot be drawn. Limits is turned off by default which means that there is no restriction as to where points can be picked and objects drawn. When Limits is on, AutoCAD will not allow points to be picked or co-ordinates entered at the command line which fall outside of the specified drawing limits. If you try to pick a point outside the drawing limits when Limits mode is turned on, AutoCAD reports to the command line: **Outside limits Limits mode is useful if you know the extent of your plotted drawing sheet and you want to prevent objects being drawn outside of this area. However, Drawing Limits is most commonly used simply to control the extent of the Grid. Ortho command/Ortho Mode Status Bar Pull-down None Keyboard ORTHO or F8 Ortho is short for orthogonal, which means either vertical or horizontal. Like the other options on the status bar, Ortho is not really a command; it is a drawing mode which can either be turned on or off. Ortho mode can be toggled on or off in one of three ways. The quickest way is just to click on the ORTHO button on the status bar. The appearance of the button tells you whether Ortho is currently turned on or turned off. When Ortho is turned on, the ORTHO button appears pressed in. You can see how this appears by looking at the status bar illustration below. In the illustration, Ortho is turned on but Grid and Snap are turned off. Ortho can also be toggled on and off using the F8 Function. Finally, you can also type ORTHO at the command prompt as in the command sequence below. With Ortho mode turned on you can only draw lines which are either vertical or horizontal. Try yourself, Turn Ortho mode on now and draw some lines to get a feeling for how it works. Command: ORTHO Enter mode [ON/OFF] <OFF>: (type ON or OFF) Ortho mode is probably the simplest of all the drawing aids, and historically one of the oldest. It is either on or it is off and there are no special settings to make. You may not be surprised to learn, therefore, that its use has largely been superseded by more recent features, particularly Polar Tracking (You will learn later) Snap Mode/Snap Command Status Bar (right-click for settings) Pull-down None Keyboard SNAP or F9 atifkhan68@hotmail.com 0333-2642151
  • 22.
    2dmuetcourse-110709082805-phpapp02.doc Page 22 of 66 Snap mode takes AutoCAD one step further than the drawing board. With Snap mode turned on AutoCAD only allows you to pick points at regular intervals/jumps. The Snap is completely independent of the display grid. However, the Grid spacing and Snap spacing are usually set to the same value for the ease of understanding. Command Sequence Command: SNAP Specify snap spacing or [ON/OFF/Aspect/Rotate/Style/Type] <10.0000>: (enter the required snap spacing in drawing units) Explore yourself Although you can use the Snap command to turn Snap mode on and off, it is much more efficient to use the F9 function key on the keyboard or to click the SNAP button on the status bar. The "Aspect" option can be used to vary the horizontal and vertical snap spacing independently. "Rotate" is used to set the snap grid to any angle. You can force the display grid to conform with the snap grid by setting the display grid spacing to zero. The display grid will then automatically change each time the snap grid is changed. When Snap mode is turned on and the Grid is displayed, the Snap and Grid spacing are the same and the crosshairs will jump from one grid point to another as you move across the screen. This makes it very easy to draw objects which have a regular shape. The Snap command is used to set the snap spacing. All of the Snap variables can also be set using the pull down menu, Tools-Drafting Settings dialogue box. Right-click on the SNAP button and choose Settings… from the short-cut menu.  Direct distance input-Tutorial Object: Comparing the all coordinate entry methods, by creating this simple drawing using:  Absolute coordinate method.  Relative coordinate method.  Polar coordinate method.  Direct distance entry method Using direct distance entry ( Time saving ) A method to specify a second point by first moving the curser to indicate the direction and then entering a distance. If ortho is turned ON (Or Polar tracking is used.) only then we can make accurate horizontal and vertical lines otherwise this method does not give us accuracy in drawing lines. Procedure:  Start the software; open a new drawing using start from scratch and English / Imperial option. Turn ON the GRID. atifkhan68@hotmail.com 0333-2642151
  • 23.
    2dmuetcourse-110709082805-phpapp02.doc Page 23 of 66  Make the object drawing four times (Each time change the color of line when using different methods by using object properties toolbar) by following all four methods separately in the same drawing one over the other. And try to understand difference between these methods. Absolute Method Relative Metho Polar Method Direct Distance Entry Method d Type L or LINE & Press Enter L Enter L Enter L Enter Type 2,2 & Press Enter 2,2 Enter 2,2 Enter 2,2 Enter Type 8,2 & Press Enter @ 6 , 0 Enter @ 6 < 0 Enter Move curser right, type 6, Enter Type 8,4 & Press Enter @ 0 , 2 Enter @ 2 < 90 Enter Move curser up, type 2, Enter Type 6,4 & Press Enter @ -2 , 0 Enter @ 2 < 180 Enter Move curser left, type 2, Enter Type 6,6 & Press Enter @ 0 , 2 Enter @ 2 < 90 Enter Move curser up, type 2, Enter Type 4,6 & Press Enter @ -2 , 0 Enter @ 2 < 180 Enter Move curser left , type 2, Enter Type 4,8 & Press Enter @ 0 , 2 Enter @ 2 < 90 Enter Move curser up, type 2, Enter Type 2,8 & Press Enter @ -2 , 0 Enter @ 2 < 180 Enter Move curser left, type 2 , Enter Type 2 , 2 Enter, Esc/Enter C Enter C Enter C Enter  UNITS command/Drawing Units Dialog Box Format menu: Units Command entry: units (or 'units for transparent use) Defines the unit and angle formats. Length Specifies the current unit of measurement and the precision for the current units. Type Sets the current format for units of measure. The values include Architectural, Decimal, Engineering, Fractional, and Scientific. The Engineering and Architectural formats produce feet-and- inches displays and assume that each drawing unit represents one inch. The other formats can represent any real-world unit. Precision Sets the number of decimal places or fractional size displayed for linear measurements. atifkhan68@hotmail.com 0333-2642151
  • 24.
    2dmuetcourse-110709082805-phpapp02.doc Page 24 of 66 Note:-How to enter different units for length (Syntax) Enter feet and inches using the following format/syntax: feet'-inches" or feet’ inches" or feet inches You can separate feet, inches, and fractional inches with a dash, a space, or nothing. You can use any of the following syntax cases to enter valid feet-inch formatted values: • 5’ or 60” • 5’-9” or 5’ 9” or 5’9” • 5’-1/2” or 5’ 1/2” or 5’1/2” • 5’-9-1/2” or 5’ 9-1/2” or 5’9-1/2” • 5’-9 1/2” or 5’ 9 1/2” or 5’9 1/2” To designate inches for linear calculations, entering double quotes (“) is optional. For example, instead of entering 5’9-1/2”, you could enter 5’9-1/2. Warning With imperial units, CAL interprets a minus or a dash (-) as a unit separator rather than a subtraction operation. To specify subtraction, include at least one space before or after the minus sign. For example, to subtract 9” from 5’, enter 5’ -9” rather than 5’-9”. Angle Specifies the current angle format and the precision for the current angle display. Type Sets the current angle format. Precision Sets the precision for the current angle display. Clockwise Calculates positive angles in the clockwise direction. The default direction for positive angles is counterclockwise. Insertion Scale Controls the unit of measurement for blocks and drawings that are inserted into the current drawing. A block or a drawing that is created with units that are different from the units specified with this option is scaled when inserted. The insertion scale is the ratio of the units used in the source block or drawing and the units used in the target drawing. Select Unitless to insert the block without scaling it to match the specified units. Sample Output Displays an example of the current settings for units and angles. Direction Defines the angle for 0 degrees and specifies the direction in which angles are measured. When prompted for an angle. Base Angle East, North, West & South, Sets the direction of the zero angle. Other Specifies a direction different from the points of the compass. Angle Specifies a value for the zero angle when other is selected, you can specify the angle by entering a value. Pick an Angle Button Defines the zero angle in the graphics area based on the angle of an imaginary line that connects any two points you specify with the pointing device. Available only when other is selected. atifkhan68@hotmail.com 0333-2642151
  • 25.
    2dmuetcourse-110709082805-phpapp02.doc Page 25 of 66  CIRCLE Command Along with Line and Polyline, the Circle command is probably one of the most frequently used. Fortunately it is also one of the simplest. However, in common with the other commands in this section there are a number of options that can help you construct just the circle you need. Most of these options are self explanatory. The Circle command, for example, offers 6 ways to create a circle, Try yourself-Tutorial Command: CIRCLE Specify center point for circle or [3P/2P/Ttr (tan tan radius)]: (pick P1 anywhere or type 6,6) Specify radius of circle or [Diameter] (pick P2 anywhere or type 2.5 as radius) Explore and practice various circle command options For example, the circle command gives you three extra options to define a circle. 3P which uses any three points on the circumference, 2P which uses two points on the circumference to form a diameter and Ttr which stands for Tangent Tangent Radius. Obviously to use this last option you need to have drawn two lines which you can use as tangents to the circle. Try these options out to see how they work. Note that to invoke a command option; you need only type the upper-case part of the option name. For example, if you want to use the Ttr option, you need only enter "T". There are two more circle options on the pull-down menu that enable you to draw a circle by defining the center and diameter or by using 3 tangents.  Exercise atifkhan68@hotmail.com 0333-2642151
  • 26.
    2dmuetcourse-110709082805-phpapp02.doc Page 26 of 66  RECTANGLE Command The Rectangle command is used to draw a rectangle whose sides are vertical and horizontal. The position and size of the rectangle are defined by picking two diagonal corners. The rectangle isn't really an AutoCAD object at all. It is, in fact, just a closed polyline which is automatically drawn for you. Try yourself-Tutorial, First, Open an imperial file by using start from scratch option, Command: RECTANG Specify first corner point or [Chamfer/Elevation/Fillet/Thickness/Width]: (pick P1 or Type 0 , 0) Specify other corner point or [Dimensions]: (pick P2 or type 12 , 9) Notice that, instead of picking a second point to draw the rectangle, you have the option of entering dimensions. Say you wanted to draw a rectangle 8 drawing units long and 5 drawing units wide. The command sequence would look like this: Try yourself-Tutorial Command: RECTANG Specify first corner point or [Chamfer/Elevation/ Fillet/Thickness/Width]: (pick a point P1 anywhere or type 2,2) Specify other corner point or [Dimensions]: D Specify length for rectangles <0.0000>: 8 Specify width for rectangles <0.0000>: 5 Specify other corner point or [Dimensions]: (pick a point to fix the orientation)  Selecting objects or Defining selection set Introduction Before you start to use the AutoCAD Modify commands, you need to know something about selecting objects. All of the Modify commands require that you make one or more object selections. A selection set can consist of a single object, or it can be a more complex grouping. You can create the selection set either before or after you choose an editing command. You can make several changes to the same selection set. AutoCAD has a whole range of tools which are designed to help you select just the objects you need. This tutorial is designed to demonstrate the use of many of the selection options. As with so many aspects of AutoCAD, developing a good working knowledge of these options can drastically improve your drawing speed and efficiency. Before you can edit objects, you need to create a selection set of the objects. Use one of the following methods to create selection sets. Selecting Objects by Picking/Pointing with mouse. When you start a Modify command such as ERASE, two things happen. First, the cursor changes from the usual crosshairs to the pickbox and second, you will see the "Select objects" prompt on the command line. Both of these cues are to let you know that AutoCAD is expecting you to select one or more objects. atifkhan68@hotmail.com 0333-2642151
  • 27.
    2dmuetcourse-110709082805-phpapp02.doc Page 27 of 66 To select an object, place the pickbox over a part of the object and left-click the mouse. When the object has been picked it is highlighted in a dashed line to show that it is part of the current selection and the command line reports "1 found". You will now see the "Select objects" prompt on the command line again. At this point you can continue adding more objects to the current selection by picking them or you can press or the Space Bar to complete the selection. Draw a circle using the CIRCLE command, the size and position of the circle does not matter. Erase the Circle, Try yourself-Tutorial Tutorial Erase the circle using the ERASE command, Modify Erase from the pull-down or from the Modify toolbar. Command: ERASE Select objects: (place the pickbox over a circle circumference and left-click) 1 found Select objects: (press to complete the selection and erase the object) Creating selection sets by picking objects can become quite tedious if you want to select a large number of objects. Just imagine having to pick a hundred or more objects in a large drawing. Fortunately AutoCAD provides a number of selection options which can help you select objects more efficiently. When you pick one or more objects in response to the "Select objects" prompt, you are effectively creating a selection set. Selection sets are an important concept in AutoCAD because they can be used to great effect, especially when drawings become large or complicated. Window Selection/ Window or W, option The Window option is invoked by typing W in response to the "Select objects" prompt. Window allows you to define a rectangle using two points in exactly the same way as the RECTANGLE command. Once the window is defined, all objects which lie entirely within the window will be selected. Try yourself-Tutorial First draw several circles of any size as shown in figure and than, start ERASE command, Command: ERASE Select objects: W First corner: (pick first corner of selection window) Specify opposite corner: (pick second corner of the selection window) Select objects: (at this point you can either select more objects or to complete the selection set and continue with the current command.) atifkhan68@hotmail.com 0333-2642151
  • 28.
    2dmuetcourse-110709082805-phpapp02.doc Page 28 of 66 Crossing Window Selection/Crossing or C option The Crossing Window option is invoked by typing C at the "Select objects" prompt and is a variation of the Window command, A crossing selection is displayed as dashed line. The command sequence is exactly the same but objects are selected which lie entirely within the window and those which cross the window border The Undo option It often happens that you inadvertently add objects which you don't want to a selection set during its compilation. When this occurs in the middle of a complicated selection it can be pretty annoying. Fortunately AutoCAD allows you to undo the last selection made during the compilation of a selection set. All you need do is enter U at the next "Select objects" prompt to remove the objects previously added. Selects all objects /All option The All option is invoked by typing ALL at the "Select objects" prompt. You can use this option to select all the objects in the current drawing, no picking is required. Objects on Locked or Frozen layers are not selected but objects on layers which are simply turned off are selected.  Use of OBJECTSNAP/OSNAP to locate points [ F3 ] Making drawings accurately Introduction Tools menu: Drafting Settings Shortcut menu: Right-click Snap, Grid, Polar, Osnap, Otrack, or Dyn on the status bar and click Settings. Command entry: dsettings (or 'dsettings for transparent use) The Object Snaps (Osnaps for short) are drawing aids which are used in conjunction with other commands to help you draw accurately. Osnaps allow you to snap onto a specific object location when you are picking a point. For example, using Osnaps you can accurately pick the end point of a line or the center of a circle. Osnaps in AutoCAD are so important that you cannot draw accurately without them. For this reason, you must develop a good understanding of what the Osnaps are and how they work. This tutorial describes the use of all the osnaps. There are a number of worked examples which demonstrate Osnaps in use. Using OSNAP through keyboard or OSNAP toolbar atifkhan68@hotmail.com 0333-2642151
  • 29.
    2dmuetcourse-110709082805-phpapp02.doc Page 29 of 66 ENDpoint The Endpoint Osnap snaps to the end points of lines and arcs and to polyline vertices. This is one of the most useful and commonly used Osnaps Toolbar Object Snap Pull-down Shift + Right Click Endpoint Keyboard END (when picking) . MIDpoint The Midpoint Osnap snaps to the mid points of lines and arcs and to the mid point of polyline segments. Toolbar Object Snap Pull-down Shift + Right Click Midpoint Keyboard MID (when picking) INTersection The Intersection Osnap snaps to the physical intersection of any two drawing objects (i.e. where lines, arcs or circles etc. cross each other) and to Polyline vertices. Toolbar Object Snap Pull-down Shift + Right Click Intersection Keyboard INT (when picking) CENter The Center Osnap snaps to the centre of a circle, arc or polyline arc segment. The cursor must pass over the circumference of the circle or the arc so that the centre can be found. Toolbar Object Snap Pull-down Shift + Right Click Center Keyboard CEN (when picking) QUADrant The Quadrant Osnap snaps to one of the four circle quadrant points located at north, south, east and west or 90, 270, 0 and 180 degrees respectively. Toolbar Object Snap Pull-down Shift + Right Click Quadrant Keyboard QUA or QUAD (when picking) TANgent The Tangent Osnap snaps to a tangent point on a circle. This osnap works in two ways. You can either draw a line from a point to the tangent point (see illustration) or you can draw a line from a tangent point, the latter is referred to as the "Deferred Tangent" snap mode. atifkhan68@hotmail.com 0333-2642151
  • 30.
    2dmuetcourse-110709082805-phpapp02.doc Page 30 of 66 Toolbar Object Snap Pull-down Shift + Right Click Tangent Keyboard TAN (when picking) PERpendicular The Perpendicular Osnap snaps to a point which forms a perpendicular with the selected object. As with the Tangent Osnap, Perpendicular can be used to draw a line to a perpendicular point, as in the illustration or from a perpendicular point, known as the "Deferred Perpendicular" snap mode. Toolbar Object Snap Pull-down Shift + Right Click Perpendicular Keyboard PER or PERP (when picking) PARallel The Parallel Osnap is used to draw a line parallel to any other line in your drawing. In operation, this osnap is slightly less intuitive than some of the others. To draw a parallel line, first start the Line command, specify the first point when prompted and then start the Parallel Osnap. Hover the cursor over an existing line until you see the Parallel snap marker. Now, move the cursor close to a parallel position and a dotted line will appear, indicating the parallel. You can now pick the second point of your line. The Snap Tip also includes a relative polar co-ordinate. Toolbar Object Snap Pull-down Shift + Right Click Parallel Keyboard PAR or PARA (when picking)  Exercises atifkhan68@hotmail.com 0333-2642151
  • 31.
    2dmuetcourse-110709082805-phpapp02.doc Page 31 of 66  TRIM command Modify toolbar: Modify menu: Trim Command entry: trim Trims objects at a cutting edge defined by other objects To trim an object 1. Click Modify menu » Trim. 2. Current settings: Projection = current Edge = current Select cutting edges... Select objects or <select all>: Select one or more objects to serve as cutting edges and press ENTER, or press ENTER to select all displayed objects 3. Select object to trim or shift-select to extend or [Fence/Crossing/Project/Edge/eRase/Undo]: Select the objects to trim. atifkhan68@hotmail.com 0333-2642151
  • 32.
    2dmuetcourse-110709082805-phpapp02.doc Page 32 of 66  FILLET command Filleting connects two objects with a smoothly fitted arc of a specified radius. Although in real world an inside corner is called a fillet and an outside corner is called a round, AutoCAD treats both as fillets. Setting the Fillet Radius first To set the fillet radius 1. From the Modify menu, choose Fillet. 2. Enter r (Radius). 3. Specify the fillet radius. 4. Press ENTER to reenter the FILLET command. 5. Select the objects to fillet.  CHAMFER command Chamfering connects two nonparallel objects by extending or trimming them to intersect or to join with a beveled line. You can chamfer lines, polylines, xlines, and rays. With the distance method, you specify the amount that each line should be trimmed or extended. The chamfer distance is the amount each object is trimmed or extended to meet the chamfer line or to intersect the other object. If both chamfer distances are 0, chamfering trims or extends the two objects until they meet but does not draw a chamfer line. The default setting for the first distance is the last distance specified. The default setting for the second distance is whatever you choose for the first distance, because symmetrical distances are common. However, you can reset the chamfer distances. To chamfer by specifying distances 1. From the Modify menu, choose Chamfer or 2. Command line CHAMFER 3. Enter d (Distance). 4. Enter the first chamfer distance. 5. Enter the second chamfer distance. 6. Press ENTER to reenter the CHAMFER command. 7. Select the lines for chamfering.  The Ellipse Command Toolbar Draw Pull-down Draw Ellipse Axis, End Keyboard ELLIPSE short-cut EL The Ellipse command gives you a number of different creation options. The default option is to pick the two end points of an axis and then a third point to define the eccentricity of the ellipse. After you have mastered the default option, try out the others. Try yourself-Tutorial atifkhan68@hotmail.com 0333-2642151
  • 33.
    2dmuetcourse-110709082805-phpapp02.doc Page 33 of 66 Command: ELLIPSE Specify axis endpoint of ellipse or [Arc/Center]: (pick P1) Specify other endpoint of axis: (pick P2) Specify distance to other axis or [Rotation]: (pick P3)  OFFSET command Offset creates a new object whose shape parallels the shape of a selected object. Offsetting a circle or an arc creates a larger or smaller circle or arc, depending on which side you specify for the offset. A highly effective drawing technique is to offset objects and then trim or extend their ends. You can offset  Lines  Arcs  Circles  Ellipses and elliptical arcs  2D polylines  Construction lines (xlines) and rays  Splines To offset an object by specifying a distance 1. Click Modify menu » Offset. 2. Specify the offset distance. You can enter a value or use the pointing device to specify the distance/gap 3. Select the object to offset. 4. Specify a point on the side where you want to place the new objects. 5. Select another object to offset, or press ENTER to end the command.  Exercise – Oval Wash Basin (Assume missing dimensions, if any) atifkhan68@hotmail.com 0333-2642151
  • 34.
    2dmuetcourse-110709082805-phpapp02.doc Page 34 of 66 atifkhan68@hotmail.com 0333-2642151
  • 35.
    2dmuetcourse-110709082805-phpapp02.doc 35 of 66  Exercise – Fancy Door (Assume missing dimensions, If any)  The Rectangular Array Toolbar Modify Pull-down Modify Array Keyboard ARRAY short-cut AR The Array command makes multiple copies of selected objects in a rectangular matrix (columns and rows) or a polar (circular) pattern. The illustration on the right shows the results of a rectangular array with two columns and three rows. The distance between rows is indicated with the dimension DR and between columns with DC. When creating rectangular arrays it is important to remember that new rows are created above the original object and new columns are created to the right of the original object. The resulting array is, therefore, always created with the original object in the bottom left hand position with respect to the current co-ordinate system. In the illustration, the original object is shown in dashed line and the new objects in continuous lines. Note: It is possible to create arrays which do not align with the World Co-ordinate System by setting a User Co-ordinate System first atifkhan68@hotmail.com 0333-2642151 Page 35 of 66
  • 36.
    2dmuetcourse-110709082805-phpapp02.doc 36 of 66 Try yourself-Tutorial Try creating this array yourself. First open a new file with metric settings, draw a rectangle 20 drawing units wide and 10 drawing units tall somewhere in the lower left quarter of the drawing area. Now start the Array command. First of all, make sure that the Rectangular Array button is selected and that you are looking at the Rectangular Array dialogue box and now follow the steps below: 1. Click the Select objects button. The dialogue box will temporarily disappear enabling you to select the rectangle you just drew. Press enter button on your keyboard to complete the selection. You are now returned to the dialogue box and the message immediately below the Select Objects button should read "1 objects selected". 2. Enter the number of rows required in the Rows edit box. For this example, enter the value "3". Notice that the schematic preview on the right hand side of the dialogue box updates to reflect the values you are entering. 3. Enter the number of columns required in the Columns edit box. Enter the value "2". 4. Enter the row offset in the Row Offset edit box. This is the distance DR as discussed earlier. Note that is not the distance between rows. In this example, our rectangle is 1 units high and we will enter a row offset of 15. The result will be a 5 unit gap between rows of rectangles. 5. Enter the column offset in the Column Offset edit box. The same parameters apply as for the row offset. Enter a value of 25 to give a 5 unit gap between our rectangles. 6. Click on the Preview button. Once again, the dialogue box disappears and the specified array is temporarily drawn so that we can preview it. We are now offered 3 choices. If the array isn't quite right, click the Modify button to return to the Array dialogue box. If you are happy with the array, click the Accept button, the array will be permanently drawn and the command is ended. You should now have an array that looks similar to the one in the illustration above consisting of 6 rectangles arranged in 3 rows and 2 columns. As you can se, this command is very powerful and can save lots of time if used carefully. Note: Try negative values specifying DR ( -15 ) & DC ( -25 ) in step no.4 & 5 , and see the different arrays you get with such combinations. atifkhan68@hotmail.com 0333-2642151 Page 36 of 66
  • 37.
    2dmuetcourse-110709082805-phpapp02.doc 37 of 66  Exercise – Ventilation Panel Complete the drawing of the ventilation panel. Use the Array command with the Rectangular option to create a total of 8 rows and 5 columns.  Exercise  The Polar Array The polar array works in a similar way to the rectangular array. The main difference is that rather than specifying the number and offset for rows and columns, you must specify a center point and the total number of objects in the array (including the original object). Try yourself-Tutorial You can try this for yourself by drawing another rectangle as described above. This time, though, locate the rectangle in the centre top half of the drawing area. Now, start the Array command, click the Polar Array button and follow the steps below: 1. Same as earlier 2. Specify the center point for the array. This is the point C in the illustration below. You can do this by entering x and y co- atifkhan68@hotmail.com 0333-2642151 Page 37 of 66
  • 38.
    2dmuetcourse-110709082805-phpapp02.doc 38 of 66 ordinates into the appropriate edit boxes if you know what these values should be. However, this is rarely the case and most often you will want to click the Pick Center Point button to pick a point from the drawing area. Pick a point somewhere below the rectangle you have just drawn. 3. Enter a value for the total number of items. For this example, enter the value "6". Notice that once again, the schematic preview updates to reflect the values you have entered. 4. Make sure that the Rotate items as copied checkbox is checked/selected 5. Same as step six in earlier example The array you have just drawn should look something like the one illustrated below, left. Take some time to play around with the other options in the Array dialogue box to see what they can do. The illustration shows the results of a polar array using an original rectangle copied six times about a centre point C, through an angle of 360 degrees. The only difference between the array on the left and the one on the right is that the Rotate items as copied checkbox was not checked in the right hand example. All new objects created with the Array command will inherit the object properties of the original object.  Exercises – Polar array  Exercises (Door, Window & Chair) atifkhan68@hotmail.com 0333-2642151 Page 38 of 66
  • 39.
    2dmuetcourse-110709082805-phpapp02.doc 39 of 66  The Copy and Move Commands With Copy command you can create Copies/duplicates of objects at a specified distance in a specified direction atifkhan68@hotmail.com 0333-2642151 Page 39 of 66
  • 40.
    2dmuetcourse-110709082805-phpapp02.doc 40 of 66 Try yourself-Tutorial First start a drawing with imperial settings, draw the figure show below, Command: Rectangle Specify first corner point or [Chamfer/Elevation/Fillet/Thickness/Width]: pick a point P1 anywhere Specify other corner point or [Area/Dimensions/Rotation]: Type @2, 1 and press enter Now start Line command Command: _line Specify first point: Select the lower left corner of rectangle P1 as start point of line Specify next point or [Undo]: Select the upper right corner of rectangle P2 as end of line Specify next point or [Undo]: Press enter to end the Line command Start Circle command to draw the circle Command: circle Specify center point for circle or [3P/2P/Ttr (tan tan radius)]: Pick the mid point of the diagonal line Specify radius of circle or [Diameter] <0.3126>: Type 0.25 To create a copy/duplicate of the rectangle at a gap of one inch from the previous rectangle. Start Copy command by any one of the following methods Command: copy Select objects: Select the rectangle only Select objects: Press enter to end selection Specify base point or [Displacement] <Displacement>: Select lower left corner of the rectangle P1 Specify second point or <use first point as displacement>: Type @3, 0 and press enter Specify second point or [Exit/Undo] <Exit>: (If you want to create more copies specify next location) But now press enter to end copy command With Move command you can move objects at a specified distance and direction from the originals. atifkhan68@hotmail.com 0333-2642151 Page 40 of 66
  • 41.
    2dmuetcourse-110709082805-phpapp02.doc 41 of 66 The Move command works in a similar way to the Copy command except that no duplicate/copy is made, the selected object(s) is simply moved/shifted from one location to another. To move/shift the diagonal line and circle start move command by any one of the following methods, Command: move Select objects: Select the diagonal line Select objects: Now select the circle Select objects: Press enter to end move command Specify base point or [Displacement] <Displacement>: Select the upper right corner P2 of the rectangle Specify second point or <use first point as displacement>: Select upper right corner P3 of the copied rectangle on the right side  POINT Command Points are very simple objects and the process of creating them is also very simple. Points are rarely used as drawing components. They are normally used just as drawing aids in a similar way that Construction Lines and Rays are used. When adding points to a drawing it is usually desirable to set the point style first because the default style can be difficult to see. The point command will insert a point marker in your drawing at a position which you pick in the drawing window or at any co-ordinate location which you enter at the keyboard. The default point style is a simple dot, which is often difficult to see but you can change the point style to something more easily visible or elaborate using the point style dialogue box. You can snap to points using the Node object snap (You will learn this when doing Object Snap tutorial for details) Points can be used for "setting out" a drawing in addition to construction lines. You can Snap to points using the Node object snap. Try yourself-Tutorial (Draw some points at various locations) Command: POINT Current point modes: PDMODE=0 PDSIZE=0.0000 Specify a point: (pick any point or type the coordinates where you want to draw a point) atifkhan68@hotmail.com 0333-2642151 Page 41 of 66
  • 42.
    2dmuetcourse-110709082805-phpapp02.doc 42 of 66 Strangely, in Multiple Point mode (the default for the Point button on the Draw toolbar) you will need to use the escape key (Esc) on your keyboard to end the command. The usual right-click or enter doesn't work. You can start the point style command from the keyboard by typing DDPTYPE or you can start it from the pull-down menu at Format Point Style… The command starts by displaying a dialogue box offering a number of options. To change the point style, just pick the picture of the style you want and then click the "OK" button. Any new points created after the style has been set will automatically display in the new style. One interesting aspect of points is that their size can be set to an absolute value or relative to the screen size, expressed as a percentage. The default is for points to display relative to the screen size, which is very useful because it means that points will remain the same size, irrespective of zoom factor. This is particularly convenient when drawings become complex and the drawing process requires a lot of zooming in and out.  The Construction Line Command The Construction Line command creates a line of infinite length which passes through two picked points. Construction lines are very useful for creating construction frameworks or grids within which to design. Construction lines are not normally used as objects in finished drawings, it is usual, therefore,nto draw all your construction lines on a separate layer which will be turned off or frozen prior to printing. Because of their nature, the Zoom Extents command option ignores construction lines. Try yourself-Tutorial First open a new drawing using start from scratch with imperial settings, zoom out once and add/draw some line using xline command, Command: XLINE Specify a point or [Hor/Ver/Ang/Bisect/Offset]: (pick a point anywhere or type 0,0) Specify through point: (pick a second point anywhere or type 12,9) Specify through point: (to end ) You may notice that there are a number of options with this command. For example, the "Hor" and "Ver" options can be used to draw construction lines that are truly horizontal or vertical. In both these cases, only a single pick point is required because the direction of the line is predetermined. To use a command option, simply enter the capitalized part of the option name at the command prompt. Follow the command sequence below to see how you would draw a construction line using the Horizontal option.  Exercise - atifkhan68@hotmail.com 0333-2642151 Page 42 of 66
  • 43.
    2dmuetcourse-110709082805-phpapp02.doc 43 of 66  The Polyline command The Polyline or Pline command is similar to the line command except that the resulting object may be composed of a number of segments which form a single object. In addition to the two ends a polyline is said to have vertices (singular vertex) where intermediate line segments join. In practice the Polyline command works in the same way as the Line command allowing you to pick as many points as you like. Again, just hit to end. As with the Line command, you also have the option to automatically close a polyline end to end. To do this, type C to use the close option instead of hitting . You may be wondering, if Polylines are so useful, why bother using ordinary lines at all? There are a number of answers to this question. The most frequently given answer is that because of their complexity, polylines use up more disk space than the equivalent line. As it is desirable to keep file sizes as small as possible, it is a good idea to use lines rather than polylines unless you have a particular requirement. You will also find, as you work with AutoCAD that lines and polylines are operationally different. Sometimes it is easier to work with polylines for certain tasks and at other times lines are best. You will quickly learn the pros and cons of these two sorts of line when you begin drawing with AutoCAD. Follow the command sequence below to see how this works. Polylines can also be given line widths to make them appear solid. The figure shows a number of polylines to give you an idea of the flexibility of this type of line. Try yourself-Tutorial Command: PLINE Specify start point: (pick P1) Current line-width is 0.0000 Specify next point or [Arc/Halfwidth/Length/Undo/Width]: (pick P2) Specify next point or [Arc/Close/Halfwidth/Length/Undo/Width]: (pick P3) Specify next point or [Arc/Close/Halfwidth/Length/Undo/Width]: (pick P4) Specify next point or [Arc/Close/Halfwidth/Length/Undo/Width]: (pick P5) Specify next point or [Arc/Close/Halfwidth/Length/Undo/Width]: (or C to close) The figure on the left was created by hitting the key after the fifth point was picked. The figure on the right demonstrates the effect of using the Close option. Try experimenting with options such as Arc and Width and see if you can create polylines like the ones in the illustration above. atifkhan68@hotmail.com 0333-2642151 Page 43 of 66
  • 44.
    2dmuetcourse-110709082805-phpapp02.doc 44 of 66 Polylines can be edited after they are created to, for example, change their width. You can do this using the PEDIT command which will be discussed/taught later.  The Donut Command This command draws a solid donut shape. AutoCAD asks you to define the inside diameter i.e. the diameter of the hole and then the outside diameter of the donut. The donut is then drawn in outline and you are asked to pick the centre point in order to position the donut. You can continue picking centre points to draw more donuts or you can hit to end the command. Surprisingly, donuts are constructed from single closed polylines composed of two arc segments which have been given a width. Fortunately AutoCAD works all this out for you, so all you see is a donut. Try yourself-Tutorial First open a new imperial drawing file, and try this Command: DONUT Specify inside diameter of donut <0.5000>: (type 2 as inside/hole diameter) Specify outside diameter of donut <1.0000>: (type 4 as outside diameter ) Specify center of donut or <exit>: (pick P1 anywhere or type 2,2) Specify center of donut or <exit>: (to end or continue to pick for more donuts) Curiously enough AutoCAD doesn't seem to mind if you make the inside diameter of a donut larger than the outside diameter, try it and see.  Exercise - Printed Circuit Complete the printed circuit board. Use Donut with an inside diameter of 0.1 and an outside diameter of 0.2 to create the pads. Use Pline with a width of 0.12 to complete the traces. Use a 0.25 Grid and Grid Snap to place all pads (Donuts) on a point. atifkhan68@hotmail.com 0333-2642151 Page 44 of 66
  • 45.
    2dmuetcourse-110709082805-phpapp02.doc 45 of 66  The Polygon Command The Polygon command can be used to draw any regular polygon from 3 sides up to 1024 sides. This command requires four inputs from the user, the number of sides, a pick point for the centre of the polygon, whether you want the polygon inscribed (Inside a circle) or circumscribed(Outside a circle) and then a pick point which determines both the radius of this imaginary circle and the orientation of the polygon. The polygon command creates a closed polyline in the shape of the required polygon. Try yourself-Tutorial Command: POLYGON Enter number of sides <4>: 5 Specify center of polygon or [Edge]: (pick P1 anywhere or type 12,0) Enter an option [Inscribed in circle/Circumscribed about circle] <I>: (to accept the inscribed default) Specify radius of circle: (pick P2 anywhere or type 2 as a radius) Try yourself-Tutorial Enter number of sides <4>: 5 Specify center of polygon or [Edge]: (pick P1 anywhere or type 12,9) Enter an option [Inscribed in circle/Circumscribed about circle] <I>: ( type C for circumscribed) Specify radius of circle: (pick P2 anywhere or type 2 as radius) Try yourself-Tutorial Command: POLYGON Enter number of sides <4>: 5 Specify center of polygon or [Edge]: (type E to define by edge length) Specify first end point of Edge: (pick P1 anywhere or type 6,4.5) Specify first end point of Edge: (pick P2 or specify length by any method) atifkhan68@hotmail.com 0333-2642151 Page 45 of 66
  • 46.
    2dmuetcourse-110709082805-phpapp02.doc 46 of 66  Exercises  The Arc Command The Arc command allows you to draw an arc of a circle. There are numerous ways to define an arc, the default method uses three pick points, a start point, a second point and an end point. Using this method, the drawn arc will start at the first pick point, pass through the second point and end at the third point. Once you have mastered the default method try some of the others. You may, for example need to draw an arc with a specific radius. All of the Arc command options are available from the pull-down menu. Try yourself-Tutorial Command: ARC Specify start point of arc or [Center]: (pick P1 anywhere) Specify second point of arc or [Center/End]: (pick P2 anywhere) Specify end point of arc: (pick P3) Note: It is also possible to create an arc by trimming a circle object. In practice, many arcs are actually created this way.  Exercise – Drawing ARCS atifkhan68@hotmail.com 0333-2642151 Page 46 of 66
  • 47.
    2dmuetcourse-110709082805-phpapp02.doc 47 of 66  Exercise – Bath Tub atifkhan68@hotmail.com 0333-2642151 Page 47 of 66
  • 48.
    2dmuetcourse-110709082805-phpapp02.doc 48 of 66  ROTATE Command Try yourself-Tutorial First draw a figure similar to the one shown on right, or draw any other figure, Start ROTATE command by using any one of the following methods Command: _ROTATE Current positive angle in UCS: ANGDIR=ccw ANGBASE=0 Select objects: Select Entities (Select the arrow only) Specify base point: Select the point around which you will rotate the entities.(Select the center of the circle) Specify rotation angle or [Copy/Reference]: Enter angle (Type 120 degree angle & press enter)  Loading different line types into drawing file using Linetype Manager Format menu: Linetype Command entry: linetype (or 'linetype for transparent use) Loads linetypes and sets the current linetype. Load Displays the Load or Reload Linetypes dialog box, in which you can load into the drawing selected linetypes and add them to the linetype list. Current Sets the selected linetype to be the current linetype. Delete Deletes selected linetypes from the drawing. You can delete only unused linetypes. The BYLAYER, BYBLOCK, and CONTINUOUS linetypes cannot be deleted.  Exercises – Bed, Desktop Phone set & Slotted Flat Head Screw atifkhan68@hotmail.com 0333-2642151 Page 48 of 66
  • 49.
    2dmuetcourse-110709082805-phpapp02.doc 49 of 66  Creating & formatting Multiline / Paragraph text Draw toolbar: Draw menu: Text » Multiline Text Command entry: mtext To create multiline text 1. Click Draw menu » Text » Multiline Text. 2. Specify opposite corners of a bounding box to define the width of the multiline text object. The In-Place Text Editor is displayed as shown above. 3. If you want to use a text style other than the default, click the arrow next to the Text Style control on the toolbar and then select a style. 4. Enter text. Note Text that would otherwise be difficult to read (if it is very small, very large, or is rotated) is displayed at a legible size and is oriented horizontally so that you can easily read and edit it. 5. To override the current text style, select text as follows:  To select one or more letters, click and drag the pointing device over the characters.  To select a word, double-click the word.  To select a paragraph, triple-click the paragraph. 6. On the toolbar, make format changes as follows:  To change the font of the selected text, select a font from the list.  To change the height of the selected text, enter a new value in the Height box. atifkhan68@hotmail.com 0333-2642151 Page 49 of 66
  • 50.
    2dmuetcourse-110709082805-phpapp02.doc 50 of 66  To format text in a TrueType font with boldface or italics, or to create underlined or overlined text for any font, click the corresponding button on the toolbar. SHX fonts do not support boldface or italics.  To apply color to selected text, choose a color from the Color list. Click Other to display the Select Color dialog box. 7. To save your changes and exit the editor, use one of the following methods:  Click OK on the toolbar.  Click in the drawing outside the editor.  Press CTRL+ENTER. To insert symbols or special characters in multiline text 1. Double-click a multiline text object to open the In-Place Text Editor. 2. On the expanded toolbar, click Symbol. 3. Click one of the options on the menu, or click Other to display the Character Map dialog box. To access the Character Map dialog box, you must have charmap.exe installed. See Microsoft® Windows® Help for information about adding programs to your system. 4. In the Character Map dialog box, select a font. 5. Select a character, and use one of the following methods: S To insert a single character, drag the selected character into the editor. T To insert multiple characters, click Select to add each character to the Characters to Copy box. When you have all the characters you want, click Copy. Right-click in the editor. Click Paste. 2.To save your changes and exit the editor, use one of the following methods: T Click OK on the toolbar. C Click in the drawing outside the editor. Press CTRL+ENTER.  The Mirror Command The Mirror command allows you to mirror selected objects in your drawing by picking them and then defining the position of an imaginary mirror line using two points. Try yourself First create a figure similar to the shown above and use mirror command Command: MIRROR Select objects: (pick object to mirror, P1) Select objects: (to end selection) Specify first point of mirror line: (pick P2) Specify second point of mirror line: (pick P3) Delete source objects? [Yes/No] <N>: (for No to keep the original object) Notice that in the command sequence above, pressing the key when asked whether to "Delete source objects?" resulted in a "No" response. This is because "No" is the default option. AutoCAD always shows the default option within triangular atifkhan68@hotmail.com 0333-2642151 Page 50 of 66
  • 51.
    2dmuetcourse-110709082805-phpapp02.doc 51 of 66 brackets, in this case "<N>". Many AutoCAD commands offer default options. They are usually the most commonly used and you need only right-click and select "Enter" from the menu or press on the keyboard to accept them. In order to create perfectly horizontal or vertical mirror lines use Ortho.  Exercise – Mirror the Pulley Draw one side of the pulley shown in Figure. Use the Mirror command to complete the other side, Save the drawing as PULLEY.  Exercise – Mirror the elevation Practice drawing half of the figure shown below and than use mirror command to create the opposite half. Assume any appropriate dimensions/sizes.  Creating Layers, using Layer manager dialogue box-Tutorial Object Create following layers, assign color and line type to each layer by using the layer and line type properties dialogue box. Introduction Layers are like transparent overlays on which you organize and group different kinds of drawing information. The objects you create have common properties including colors, Linetypes, and lineweights. An object can assume these properties from the layer it is drawn on, or properties can be specifically assigned to individual objects. Color helps you distinguish similar elements in your drawings, enhancing your drawing atifkhan68@hotmail.com 0333-2642151 Page 51 of 66
  • 52.
    2dmuetcourse-110709082805-phpapp02.doc 52 of 66 and increasing legibility. Organizing layers and the objects on layers makes it easier to manage the information in your drawings. You can assign properties to layers as well as to individual objects in a drawing. If you want a specific object to have a different color, Linetype, lineweight than the layer it is drawn on, you can change the object property setting. Common layers mostly used in drawings are walls, doors, windows, plumbing, electrical, fixtures, structural elements, notes (text), dimensions, ceiling, insulation, posts, title block, center, hidden, hatch, object and so on. Procedure The formation of layers in a drawing involves the following steps. First open a new drawing file using start from scratch and imperial settings. Give it a name (Layer practice) by using Save as option in the file menu. Creating and Naming Layers Use any one of the following methods to display the Layer properties manager dialog as shown. Layers toolbar: Format menu: Layer Command entry: layer (or 'layer for transparent use or –layer to avoid dialogue box) Listed in the box is only one layer which is default Layer. Generally drawings are not created on 0 layer, instead it should be created on newly created layers. To create these Layers, click on the “New Layer” button and notice a layer is automatically added to the list of layers. This layer is given a default name “Layer 1” but you can type Object here as this is the layer which we want to create. Pressing/Typing/Entering a comma at the end of the layer’s name, allows more layers to be added to the list of layers. Once the comma was entered after the layer “Object” and the new layer appears, enter the new name of the layer as “Hidden”. Repeat this procedure of using comma to create other desired layers. The layer listing will be as shown above in figure except the circle on the color swatch. atifkhan68@hotmail.com 0333-2642151 Page 52 of 66
  • 53.
    2dmuetcourse-110709082805-phpapp02.doc 53 of 66 Assigning Color to a Layer As all the layers are displayed, the names may be different but they all have the same color and line type (see figure). At this time the dialog box comes in real handy to assign color and linetypes to layers in quick and easy manner. First select/highlight the desired layer to add color or line types by picking the layer. A horizontal shaded bar displays that this is the selected layer. Click on the color swatch identified by the circle in the above figure, and assign/select the color “Red” for the “Hidden” layer name. Repeat this procedure for assigning colors to other layers. Assigning a Linetype to a Layer Once the color has been assigned to a layer the next step is to assign the line type to the layer. The “Hidden” layer requires the line type called the “Hidden”. Click on the “Continuous” to display the select “Line type” Dialog box as shown in the figure beside. By default continuous is the only line type loaded into your file. Clicking on the Load button, displays “Load OR Reload Line Types” dialog box as shown below. Select/pick the desired line types (Keep Ctrl OR Shift keys pressed while selecting multiple line types.) Click Ok button to return to the Select Line type dialog box. You will see that hidden line type is listed along with the “Continuous”. As the line type has just been loaded, it still has not been assigned to the “Hidden” layer. Click on Hidden layer line type listed in the select line type dialog box and click on OK button. Once the Layer and line type properties dialog box reappears, notice that the “Hidden” line type has been assigned to the “Hidden” layer. Repeat this procedure to assign line types to other layers. It is to be noted that when layers are first created they are listed in the order they were entered/created. When the layers are saved and Layer & Line type dialog box is displayed again, all layers are recorded alphabetically. Deleting Layers atifkhan68@hotmail.com 0333-2642151 Page 53 of 66
  • 54.
    2dmuetcourse-110709082805-phpapp02.doc 54 of 66 Renaming Layers You may want to rename a layer to better define how it's used in your drawing. You can rename a layer at any time during a drawing session. You cannot rename layer 0. To rename a layer first highlight/select the layer name than keep Alt key pressed and click the name with mouse pointer.  WBLOCK creating block outside the existing drawing file To save a block or object as a separate drawing file  At the Command prompt, enter wblock.  In the Write Block dialog box,  Source: 1 Block: Allows us to select an existing block/local block in the current drawing to be saved as a block/file outside the existing drawing, select a name from the list. OR Entire Drawing: Selects current drawing for creating a block. OR Objects: Allows us to select individual objects for creating a block, as mentioned above, but with only one difference, i.e. It also permits us to specify the location/destination outside the existing file, where the block will be saved.  Under Objects, choose the Select Objects 2 button to use the pointing device to select objects for the block creation. The dialog box closes temporarily while you select objects for the block. Press ENTER when you are done selecting blocks. The dialog box reopens.  Under Objects, specify whether to retain, convert to a block, or delete the selected 3 objects. You may select any one of these options. Retain: Keeps selected objects in the current drawing, in their original state. Convert to Block: Existing selected objects are also converted into a block (Single object). Delete: Removes/erases selected objects from the screen after the block is created.  Under Base Point, enter the coordinate values for the insertion base point or choose Pick 4 Point button. Pick Point button temporarily closes the dialog box so that you can specify an insertion base point in the current drawing.  Destination : Click on the button [...] to Specify the new name and location of the file. 5 You can also choose the units of measurement to be used when the block is inserted in future. The block is saved as a separate drawing. Command line WBLOCK  Exercise – Create & save as blocks atifkhan68@hotmail.com 0333-2642151 Page 54 of 66
  • 55.
    2dmuetcourse-110709082805-phpapp02.doc 55 of 66  Inserting or using a Block/WBlock/Symbol in a drawing Insert toolbar: Insert menu: Block Command entry: insert atifkhan68@hotmail.com 0333-2642151 Page 55 of 66
  • 56.
    2dmuetcourse-110709082805-phpapp02.doc 56 of 66  Name: Specifies the name of a block to insert, or the name of a file to insert as a block. OR 1  Browse: Opens the Select Drawing File dialog box (a standard file selection dialog box) where you can select a block or drawing file to insert. Path: Specifies the path to the block.  Insertion Point: Specifies the insertion point for the block. 2 Specify On-Screen: Specifies the insertion point of the block using the pointing device. X, Sets the X coordinate value. Y, Sets the Y coordinate value. Z, Sets the Z coordinate value.  Scale: Specifies the scale for the inserted block. Specifying negative values for the X, Y, and Z scale factors inserts a mirror image of a block. Specify On-Screen: Specifies the scale of the block using the pointing device. X, Sets the X scale factor. Y, Sets the Y scale factor. Z, Sets the Z scale factor. Uniform Scale: Specifies a single scale value for X, Y, and Z coordinates. A value specified for X is also reflected in the Y and Z values.  Rotation: Specifies the rotation angle for the inserted block in the current UCS. Specify On-Screen: Specifies the rotation of the block using the pointing device. Angle :Sets a rotation angle for the inserted block.  Block Unit: Displays information about the block units. Unit: Specifies the INSUNITS value for the inserted block. Factor: Displays the unit scale factor, which is calculated based on the INSUNITS value of the block and the drawing units.  Explode: Explodes the block and inserts the individual parts of the block. When Explode is selected, you can specify a uniform scale factor only. atifkhan68@hotmail.com 0333-2642151 Page 56 of 66
  • 57.
    2dmuetcourse-110709082805-phpapp02.doc 57 of 66  Exercise – Creating and inserting a block/wblock  PROJECT – Constructing a bathroom plan atifkhan68@hotmail.com 0333-2642151 Page 57 of 66
  • 58.
    2dmuetcourse-110709082805-phpapp02.doc 58 of 66 atifkhan68@hotmail.com 0333-2642151 Page 58 of 66
  • 59.
    2dmuetcourse-110709082805-phpapp02.doc 59 of 66  Exercises  Printing/plotting in model space From the File menu, choose Page Setup manager. OR use any one of the following methods Layouts toolbar: File menu: Page Setup Manager Shortcut menu: Right-click the Model tab or a layout tab and choose Page Setup Manager. Command entry: pagesetup In the Page Setup manager dialog box, chose New. In the new page setup dialogue box, write any appropriate name in place of Setup1 for the printout/print pre-view settings. Choose OK to close the new Page Setup dialog box. atifkhan68@hotmail.com 0333-2642151 Page 59 of 66
  • 60.
    2dmuetcourse-110709082805-phpapp02.doc 60 of 66 Note: You can create & save several printout/print pre-view settings, and can print/recall/review any setting by choosing set current in the page setup manager dialogue box Now you see page setup model dialogue box, The page setup –Model dialogue box Specifies device and print settings, and plots your drawing. 1. Printer/Plotter Choose an appropriate printer 2. Paper Size Displays standard paper sizes that are available for the selected plotting device. If no plotter is selected, the full standard paper size list is displayed and available for selection. 3. Plot Area Specifies the area of the drawing to be plotted. Under What to Plot, you can select an area of the drawing to be plotted. Display Plots the current view in the Model tab. Extents Plots all the area of the current space of the drawing that contains objects. All geometry/drawing in the current space is plotted. Limits When plotting from the Model tab, plots the entire drawing area that is defined by the grid limits. Window Plots any portion of the drawing that you specify. When you specify the two corners of the area to plot, the Window button becomes available. Click the Window button to use the pointing device to specify the two corners of the area to be plotted, or enter coordinate values. Command: Specify first corner: Specify a point Specify other corner: Specify a point 4. Plot Scale Controls the relative size of drawing units to plotted units. The default setting is Fit to Paper when plotting from the Model tab. 5. Preview Displays the drawing as it will appear when plotted on paper. To exit the print preview and return to the Page Setup dialog box, press ESC, press ENTER, or right-click and click Exit on the shortcut menu. 6. Plot Offset Specifies an offset of the plot area relative to the lower-left corner of the printable area or to the edge of the paper Center the Plot Automatically calculates the X and Y offset values to center the plot on the paper. This option is not available when Plot Area is set to Layout. 7. Drawing Orientation atifkhan68@hotmail.com 0333-2642151 Page 60 of 66
  • 61.
    2dmuetcourse-110709082805-phpapp02.doc 61 of 66 Specifies the orientation of the drawing on the paper for plotters that support landscape or portrait orientation. Portrait Orients and plots the drawing so that the short edge of the paper represents the top of the page. Landscape Orients and plots the drawing so that the long edge of the paper represents the top of the page. Plot Upside-Down Orients and plots the drawing upside-down. Note : Icon represents the orientation of the drawing on the page as a letter on the paper. 8. Plot Style Table Chose monochrome for printing black & white only. 9. Scale Controls the relative size of drawing units to plotted units. The default setting is Fit to Paper when plotting from the Model tab.  Hatching Areas & Gradient Hatching fills a specified area in a drawing with a pattern. You can hatch an enclosed area or a specified boundary using the BHATCH and HATCH commands. BHATCH creates associative or nonassociative hatches. Associative hatches are linked to their boundaries and are updated when the boundaries are modified. Nonassociative hatches are independent of their boundaries. To hatch areas Toolbar: Draw Menu: Draw Hatch Command entry: hatch OR bhatch At the command prompt, enter hatch. In the Hatch and Gradient dialog box, first choose Hatch 1. click Add: Pick points. In your drawing, specify a point inside each area that you want hatched, and then press ENTER. This point is known as the internal point. 2. In the pattern, verify that the sample pattern is the pattern you want to use. To change patterns, select another pattern from the Pattern list. 3. In the Hatch and Gradient dialog box, make adjustments, if necessary. Under Draw Order, click one of the options. You can change the draw order of the hatch so that the hatch is drawn either behind or in front of the hatch boundary, or behind or in front of all other objects. 4. Click the preview to see how the hatch looks like, if it is acceptable than press enter else press escape key to see the dialogue box again and to make desired changes. 5. Finally, Click OK.  Exercise-Placing Tiles using Hatch First construct Kitchen and Bathroom by assuming any dimensions/size and use Hatch command to place Tiles. atifkhan68@hotmail.com 0333-2642151 Page 61 of 66
  • 62.
    2dmuetcourse-110709082805-phpapp02.doc 62 of 66  Exercise-Using Hatch atifkhan68@hotmail.com 0333-2642151 Page 62 of 66
  • 63.
    2dmuetcourse-110709082805-phpapp02.doc 63 of 66  Exercise-R.C.C Column  Dimensioning on drawings Dimensioning is the process of adding measurement annotation to a drawing. BASIC TYPES OF DIMENSIONING You can create dimensions for a variety of object types in many orientations. The basic types of dimensioning are • Linear • Radial (radius, diameter and jogged) • Angular • Ordinate • Arc Length Linear dimensions can be horizontal, vertical, aligned, rotated, baseline, or continued (chained). Some examples are shown in the illustration. atifkhan68@hotmail.com 0333-2642151 Page 63 of 66
  • 64.
    2dmuetcourse-110709082805-phpapp02.doc 64 of 66 PARTS OF A DIMENSION Here is a list of the parts of a dimension along with their descriptions.  Dimensions have several distinct elements: dimension text, dimension lines, arrowheads, and extension lines.  Dimension text is a text string that usually indicates the measurement value. The text can also include prefixes, suffixes, and tolerances.  A dimension line indicates the direction and extent of a dimension. For angular dimensions, the dimension line is an arc.  Arrowheads, also called symbols of termination, are displayed at each end of the dimension line. You can specify different sizes and shapes for arrowheads or tick marks.  Extension lines, also called projection lines or witness lines, extend from the feature to the dimension line.  A center mark is a small cross that marks the center of a circle or arc.  Centerlines are broken lines that mark the center of a circle or arc. atifkhan68@hotmail.com 0333-2642151 Page 64 of 66
  • 65.
    2dmuetcourse-110709082805-phpapp02.doc 65 of 66  Creating a dimension style  PROJECTS Constructing house plans (Assume missing dimensions) Construct the floor plan shown in Figure. For the exterior walls use a 6” width and 4” width for the interior walls. Use the Rectangle and Ellipse command to design the tub, wash basin, and toilet or you may use blocks if you have. atifkhan68@hotmail.com Page 65 of 66
  • 66.
    2dmuetcourse-110709082805-phpapp02.doc 66 of 66 atifkhan68@hotmail.com Page 66 of 66