/hammad_haroon.portfolio
1
2
3
4
5
6
7
8
9
artery | a culinary arts school
Ayvalik
zen_office | factory office
Multan
polycrystal | bank building
Islamabad
pivot | mass housing
Ankara
submerged | residence
Karachi
terrace_shift | residence
Eskisehir
soundscape | landscape design
Ankara
a study in steel | exhibition hall
Antalya
social_bridge | co-house
Eskisehir
contents
the following pages contain some projects
from four years in the Middle East Technical
University in Turkey, and my time practising.
i hope you enjoy.
to my family for their support,
my professors for their patience,
and to you, for your time...
acookingschoolwithaheart
In the beautiful coastal city of Ayvalık, the
locals are famous for their production of homemade olive
oil, among other things, and it is used heavily in the Medit-
erannean palate of the city, and Turkey overall.
The brief calls for a culinary arts school on a
plot next to the coast, with educational facilities such as
training kitchens, classrooms and auditoriums; public
facilities such as a restaurant, and accomodation for
students.
Inspired by the multitudes of docks that reach
out into the ocean, the project is composed of 3 linear
blocks, soaring towards the west, such that it allows a
public vista of the ocean from the street, as well as from
within the school.
Each mass contains varying functions, with a
gradual increase in studiousness and privacy; the first
mass contains the entrance hall, restaurant and vegetable
roof garden, the second: training kitchens and classrooms;
and the third contains the accomodations, on the upper
levels.
These are connected by an artery, an architec-
tural mass which incorporates the entrance hall, horizon-
tal and verticul circulation within and between the 3
masses, and a demonstration kitchen.
type culinary institute
location Ayvalık, Turkey
studio architectural design V
with Prof. Erkin Aytaç,
Pelin Yoncacı, Serdar Erişen
artery
site plan
N
3 parallel blocks with different
programs, opening views to the sea
One block pushed back to increase
public access; the other forward to
increase privacy
all three connected via the ‘artery’ bridge
massing
(a new)perspective
artery
section
an architectural mass that connects the 3
blocks, like a wormhole
the artery collides against the first block
skims the second
and plunges into the third,
dissipating and disintegrating
into capillaries
until it ends in the demonstration kitchen
a great mass becoming a furniture piece
entrance
restaurant
entrance hall
circulation
classrooms+lecture hall
teaching kitchens
demonstration kitchen
seats
walkways to accomodation
accomodation
demonstration
kitchen
perspective from
roof garden
headquartersforacandycompany
zen_office
The clients are a company that manufactures
candy in Pakistan. Situated in their hot, industrial
factory environment, the requirement was to build a
serene executive office building surrounded by nature,
protected from the noise and dust of the factory. The
program needed to accomodate communal and meet-
ing spaces for guests and middle management, as well
as four distinct executive offices. These were to have a
separate entrance from the ‘public’ portion of the build-
ing.
The design was concieved as 5 masses; with
the meeting and gathering spaces in the largest one,
that then generated 4 identical forms that become the
executive offices. These masses were then separated to
form linear gardens and courtyards, which are framed
by openings in the corridor, and in gathering spaces.
The executive offices are surrouded by nature on all
sides, to create a zen-like atmosphere in which to work,
rest, meet and meditate.
type office building
location Multan, Pakistan
studio Arshad Shahid Abdulla
under Ar. Naheed Kazmi
Renders by ASA
punching in a box creates 5 masses
1 communal and 4 distinct executive spaces
largest mass rotated away from south
to face main factory
subtractions filled with gardens
and courtyards
EXECUTIVE ENTRANCE
ENTRANCE
executive offices
offices
exterior
exterior
s
front
elevation
courtyard
t
n
foregroundtower//backdropmountains
polycrystal
The clients are a large national bank in
Pakistan, who want to make an iconic building in the
capital, near the Parliament with the mountains serving
as a backdrop.
The concept is that of gleaming geological
form that complements and reflects the mountains. A
polycrystal, shining on the skyline of Pakistan’s capital.
A cave like podium, with an atrium that goes up 3
stories, accomodates gathering, working and recre-
ational spaces for the building’s occupants. Separate
entrances for the tenant’s and for the bank employees
feed the atrium, continuing to the two separate lift
lobbies.
On the top levels of the building, the
footprint of the floor is carved out to generate a green
atrium on the south, going all the way up to the roof.
This protects the airconditioned office spaces from the
direct heat of the south sun. The occupants then have
views to both the atrium and the mountains on the
north.
type office building (highrise)
location Islamabad, Pakistan
studio Arshad Shahid Abdulla
under Ar. Naheed Kazmi
Renders by ASA
jinnah avenue
in islamabad-pakistan
margalla hills
topography
concept
polycrystal
A natural object formed by millions of
years of pressure from the Himalayan
earth, made of crystals that vary in
translucency, is a simultaneous
representation of natural form, growth
and contemporary aesthetic.
t
process
site
site conditions program stacking subtracting atriums from slab footprints
ground floor second floor
typical office floor executive atrium floor
e
a
atrium
atrium
executive
atrium
type sports housing
location Çayyolu, Ankara, Turkey
studio architectural design IV
instructors Erkin Aytaç, Pelin Yoncacı, Serdar Erişen
communallivingforathletes
Northwest of the sports club, Çayyolu Spor
Külübü, lies an almost triangular plot of land suitable
for housing of athletes and other sport-oriented
individuals, who’d wish to use the facilities of the
sports club, as well as be in proximity to recreational
and sport facilities, as well as green areas.
Named ‘pivot’, for the way the linear masses
emerge from and then revolve around the central
multipurpose hall, the mass separates at certain points
on the ground, creating openings for vehicular, bicycle
and pedestrian circulation to seep in.
The rotation of the design around the pivot
is not constant; this creates a gradual variation in
density of housing, as well as green areas, social spaces
and recreational/sport facilities.
pivot.living
The line of the design goes around the site, fragment-
ing more and more frequently, making increasing the
permeability towards the sports club to the southeast,
and blocking off the urban and mountainous areas to
the southwest and northwest, with its higher density
of green areas and impermeability.
The commercial and social zone are at the most
permeable point, acting as connectors to the public
sports club, a buffer zone to the outside world.
Each opening in the ground, leads to different areas
within the site, creating circulation for bicycles as well
as pedestrians.
site plan
the line of housing/
zoning
peaks and valleys ensure
that sun reaches courtyards
peaks contain penthouses
with better views
voids beneath the valleys form
pathways for people to enter the site
valleys form social
terraces
fragmen
ta
ti
on
deep green
park
social plaza/
flower garden
outdoor
sports
commercial
zone
public
green
isometric massing/activities
commercial zone
social park/flower
garden
deep green zone
public
fragmented
light vegetation
private
dense
heavy vegetation
deep green zone
multipurpose central hall
social park
commercial plaza
typical circulation
core/entrance
typical opening
outdoor sports court
southwest elevation
50 sq. meters
75 sq. meters
double storey
75 sq. meters
single storey
100 sq. meters
double storeyThe housing units are designed as modules of
5x10m, the smallest of which is 50 sq. m and
designed for 1-2 people; this unit is made
into an L shape either in the horizontal or
vertical plane to become 75 sq. m, or made
into two storeys for the 100 sq. m unit.
possible combination of
housing units
tetris
partial plans physical model
0.0m plan +0.3m plan
livingunder,aboveandaroundagarden
For this residence in the metropolitan city
of Karachi, the clients’ chief request was an expansive
garden for their grandchildren, as well as living and
sleeping spaces for themselves.
At the time I joined, the design was in its
conceptual stages, with the main idea being for the
house to have a green ramp from the ground floor
garden to the first floor. However, integrating this with
the spaces, as well as solving the height of the ramp
was a challenge, as it needed to rise high enough for
headspace on the ground floor, as well as stay within
the confines of the plot.
These issues were resolved by designing the
topography for the plot, inside, as well as outside. In
the final product, the entrance leads dow to a series of
spaces, each with its own level, and finally at the
bottom, a delightful hidden courtyard, which gives
views to the two bedrooms, the living room, as well as
the first floor garden.
type residence
location Karachi, Pakistan
studio Arshad Shahid Abdulla
(internship)
back alley
submerged.house
process models
back-of-house
-1' - 0"
0' - 0"
-2' - 0"
-4' - 6"
-7' - 0"
-2' - 0"
-2' - 0"
2' - 3"
ground floor plan
courtyard
exterior
living space
house A6
terrace_shift
Imaginary clients are a family consisting of a
single professor with 3 children, a boy and 2 younger
girls. The keywords were used to generate a split level
house where each member has their own individual
space on the street side, while communal areas are on
the canal side for family time.
night person
educator
student
occupants
1 male adult
1 boy
2 girls
separate rooms with study spaces
large study, storage
living space separated from rest of the family,
each not disturbing the others routines
immediate
response
type row house
location Eskişehir, Turkey
studio architectural design III
render of alleyway view to canal. Above, the professor’s
study balcony and living room can be seen.
Maximum volume of the
house is filled with 3 floors
Each floor shifted laterally to create
alleys and terraces along the longitudinal axis
canal end of the house pulled down
to bring occupants closer to the element
Cutting out of the first
floor creates a tall void in the
middle, as well as making two
balconies
massing
longitudinal section
voids | gardens, terraces, and alleyways
The shifting of the voids manifests itself within the sections; at the ground
level, the floor to sky open void created, forms an alleyway at the side of the
house (shown in the adjacent image), which is used for the entrance, also
created a ‘third facade’ for a row house that would normally have only two.
At the first floor, the second void contains a terrace garden, along the side of
the family room. This also provides ventilation for the bathroom windows
of the second, and third floor.
On the top floor, the voids become balconies for the professor’s study, and
bedroom, places to sit outside the house and look down upon the street or
residential alleyway.
+2.3m
+5.8m
-2.0m
+8.0m
-0.8m
0.0m
+4.0m
+7.5m
+10.5m
transverse section
to canal
transverse section
from canal
COHOUSE 4
HOUSE A6
CANAL
CANAL
proposed programmatic
site plan
PEDESTRIAN STREET
The site plan below shows the two plots allotted, one for the house and one
for the co-house project that follows this one.
SHIFT occupies lot A6, with a canal at the back of the house and a pedestri
an street at the front. The house, constructed on plot a6 (site plan on page
3), lies 2 plots away from the co-house, and the street, giving the residents
ease of access to the outside community. West of the plot is the canal, and
east is the pedestrian street, ensuring the nearby aura is that of peace and
calm.
plans
ground floor first floor second floor
C’
+5.6m
+7.5m
from professor’s study
looking towards the street entrance
+2.3m
+4.0m
-0.8m
+0.0m
anacousticshelterinthemiddle
ofacity
The notion of cities as a collection of chaot-
ic elements, is a general one, but an oft-overlooked
element of chaos is sound. Since the advent of motor-
ized vehicles, cities have been victim to noise pollu-
tion emitted by various sources, including daily traffic.
The site, a park next to Kavaklidere Cadde-
si, a street in the bustling metropolis of Ankara, faces
the same problem. Located on a busy, central intersec-
tion with diplomatic buildings, it demands relaxation,
and particularly seclusion from the noise outside.
The solution is a soundscape; the design of
which entails a two-pronged process, protection from
negative sounds, by greenery and carefully placed
vertical elements, and then filling the ensuing vacuum
with desired sounds. These are created by ‘sound
sculptures’, powered by wind, and also water, which is
supplied by 2 pools on either end with a stream
between them.
Spaces within the park contain hierarchies
between them; public spaces contain open areas for
performance, and sculpture viewing, while private
areas are more silent, and introspective.
type park
location Ankara, Turkey
studio landscape design
with Prof. Fünda Baş Bütüner
soundscape
public diplomatic
surrounding zones, road network and site location
private
manufacturing
replacing
resonating
sound
watersource
whitenoise
Main Fountain
Pool Vantage
Point
Performing
Space
Private
Space
End
Pool
longitudinal
section
plan
generator pool
“We’vegotthewindplayingtheorganin
ourband;thefame’sgonetohishead
though,doesn’tturn
upforpractice
halfthetime”
scene around a wind organ
sea organ hydraulophoneswind organs wind organs
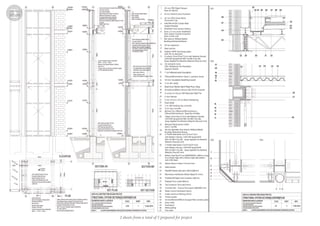
divingintodetailsforasteel
exhibitionhall
For this construction design course, the
devil is in the details. Autodesk Revit and AutoCAD
were used to design a transparent, steel exhibition hall,
with high beam spans, as well as brick and glass
cladding with shading devices to shield the occupants
from the sun.
Apart from the reinforced concrete strip
and raft foundation, the whole structure was designed
to be assembled on-site, using factory produced
sub-assembly components.
type exhibition hall
location Antalya, Turkey
studio Construction Design Practice
with Prof. Ayşe Tavukçuoğlu
Tiles
Pedestals
Rigid insulation
Waterproofing membrane
Top concrete
Top concrete
Steel deck
Steel deck
C-profiles
I-beam
Box profile joists
METSEC Roof Truss
a study in steel
Slab-wall connection
Roof-wall connection
section perspective
showing details
Detail section-perspective
roof-parapet
ground-foundationcolumn-slab
slab-facade
column-roof
2 sheets from a total of 5 prepared for project
agatheringspaceasasocialbridge
The brief calls for a community activity genera-
tor in proximity to the row houses, to serve as ignition for
community activities, production, social life; in this case
the program designed is that of a social bridge, connecting
the insulated row house canal community with the urban
fabric of Eskisehir.
In a tiny 6x18 house, individuals cannot hold
social or business related events. This lack of space
threatens to isolate the individual, leaving him in danger
of turning into a hermit. The answer is a home away from
home - a place where the resident can hold parties, call
over friends, marry his childhood sweetheart, and at the
same building, call community gatherings or business
meetings with clients/sellers of his/her home business.
The social activities within the private sphere
of the house are extracted and condensed into a social,
public sphere.
activities
communal living
relaxation
socializing
business meetings
type cohouse
location Eskişehir, Turkey
studio architectural design III
social_bridge
southwest perspective
A community predicted to be this peaceful and leisurely sadly lies beside a busy commer-
cial road filled with shops, loud cars and dirty vibes. A micro culture shock is to be experi-
enced as soon as the person sets foot off the community, leaving the canal and homes
behind him, and stepping into a dog eat dog world.
The solution? An open resting place on his way to the outside world, where he can sip
on coffee and brace himself for the daily discomfort he is to go through in the world
outside his home.
southeast perspective
perspective from major street
A bridge isn’t simply just an avenue of circulation, a
mere line to walk upon; it is often a meeting place, a
point in between two landmasses upon which two
separate entities might communicate, and for
individuals, an element upon which one may simply
stand and feed the ducks.
Social_bridge occupies cohouse 4, at the edge of the
community and in proximity to the urban fabric of
Eskisehir.
This seamlessly complements its role as a connector
between the two sets of lives, those of the outer
urban area, and those of the insulated canal commu-
nity.
The building exudes a strong presence along the street
corner, with a booking office and cafe on street level, as well
as a main entrance to the building.
The red perforated brickwork on the south facade is visible
as a singular perspective point from down the street,
making the building visible and significant, a beacon of
shining red in the city.
The brickwork serves as protection from the heat of the
sun in the south, as well as from the distracting visual
elements of the street, while letting in light and air to the
balcony.
thank you
forreading.
fin.

Architectural Portfolio

  • 1.
  • 2.
    1 2 3 4 5 6 7 8 9 artery | aculinary arts school Ayvalik zen_office | factory office Multan polycrystal | bank building Islamabad pivot | mass housing Ankara submerged | residence Karachi terrace_shift | residence Eskisehir soundscape | landscape design Ankara a study in steel | exhibition hall Antalya social_bridge | co-house Eskisehir contents
  • 3.
    the following pagescontain some projects from four years in the Middle East Technical University in Turkey, and my time practising. i hope you enjoy. to my family for their support, my professors for their patience, and to you, for your time...
  • 4.
    acookingschoolwithaheart In the beautifulcoastal city of Ayvalık, the locals are famous for their production of homemade olive oil, among other things, and it is used heavily in the Medit- erannean palate of the city, and Turkey overall. The brief calls for a culinary arts school on a plot next to the coast, with educational facilities such as training kitchens, classrooms and auditoriums; public facilities such as a restaurant, and accomodation for students. Inspired by the multitudes of docks that reach out into the ocean, the project is composed of 3 linear blocks, soaring towards the west, such that it allows a public vista of the ocean from the street, as well as from within the school. Each mass contains varying functions, with a gradual increase in studiousness and privacy; the first mass contains the entrance hall, restaurant and vegetable roof garden, the second: training kitchens and classrooms; and the third contains the accomodations, on the upper levels. These are connected by an artery, an architec- tural mass which incorporates the entrance hall, horizon- tal and verticul circulation within and between the 3 masses, and a demonstration kitchen. type culinary institute location Ayvalık, Turkey studio architectural design V with Prof. Erkin Aytaç, Pelin Yoncacı, Serdar Erişen artery
  • 5.
    site plan N 3 parallelblocks with different programs, opening views to the sea One block pushed back to increase public access; the other forward to increase privacy all three connected via the ‘artery’ bridge massing
  • 6.
  • 7.
  • 8.
    an architectural massthat connects the 3 blocks, like a wormhole the artery collides against the first block skims the second and plunges into the third, dissipating and disintegrating into capillaries until it ends in the demonstration kitchen a great mass becoming a furniture piece entrance restaurant entrance hall circulation classrooms+lecture hall teaching kitchens demonstration kitchen seats walkways to accomodation accomodation demonstration kitchen
  • 9.
  • 10.
    headquartersforacandycompany zen_office The clients area company that manufactures candy in Pakistan. Situated in their hot, industrial factory environment, the requirement was to build a serene executive office building surrounded by nature, protected from the noise and dust of the factory. The program needed to accomodate communal and meet- ing spaces for guests and middle management, as well as four distinct executive offices. These were to have a separate entrance from the ‘public’ portion of the build- ing. The design was concieved as 5 masses; with the meeting and gathering spaces in the largest one, that then generated 4 identical forms that become the executive offices. These masses were then separated to form linear gardens and courtyards, which are framed by openings in the corridor, and in gathering spaces. The executive offices are surrouded by nature on all sides, to create a zen-like atmosphere in which to work, rest, meet and meditate. type office building location Multan, Pakistan studio Arshad Shahid Abdulla under Ar. Naheed Kazmi Renders by ASA
  • 11.
    punching in abox creates 5 masses 1 communal and 4 distinct executive spaces largest mass rotated away from south to face main factory subtractions filled with gardens and courtyards EXECUTIVE ENTRANCE ENTRANCE
  • 12.
  • 13.
  • 14.
  • 15.
  • 16.
    foregroundtower//backdropmountains polycrystal The clients area large national bank in Pakistan, who want to make an iconic building in the capital, near the Parliament with the mountains serving as a backdrop. The concept is that of gleaming geological form that complements and reflects the mountains. A polycrystal, shining on the skyline of Pakistan’s capital. A cave like podium, with an atrium that goes up 3 stories, accomodates gathering, working and recre- ational spaces for the building’s occupants. Separate entrances for the tenant’s and for the bank employees feed the atrium, continuing to the two separate lift lobbies. On the top levels of the building, the footprint of the floor is carved out to generate a green atrium on the south, going all the way up to the roof. This protects the airconditioned office spaces from the direct heat of the south sun. The occupants then have views to both the atrium and the mountains on the north. type office building (highrise) location Islamabad, Pakistan studio Arshad Shahid Abdulla under Ar. Naheed Kazmi Renders by ASA
  • 17.
  • 18.
    concept polycrystal A natural objectformed by millions of years of pressure from the Himalayan earth, made of crystals that vary in translucency, is a simultaneous representation of natural form, growth and contemporary aesthetic.
  • 19.
    t process site site conditions programstacking subtracting atriums from slab footprints
  • 20.
    ground floor secondfloor typical office floor executive atrium floor e a
  • 21.
  • 22.
    type sports housing locationÇayyolu, Ankara, Turkey studio architectural design IV instructors Erkin Aytaç, Pelin Yoncacı, Serdar Erişen communallivingforathletes Northwest of the sports club, Çayyolu Spor Külübü, lies an almost triangular plot of land suitable for housing of athletes and other sport-oriented individuals, who’d wish to use the facilities of the sports club, as well as be in proximity to recreational and sport facilities, as well as green areas. Named ‘pivot’, for the way the linear masses emerge from and then revolve around the central multipurpose hall, the mass separates at certain points on the ground, creating openings for vehicular, bicycle and pedestrian circulation to seep in. The rotation of the design around the pivot is not constant; this creates a gradual variation in density of housing, as well as green areas, social spaces and recreational/sport facilities. pivot.living
  • 23.
    The line ofthe design goes around the site, fragment- ing more and more frequently, making increasing the permeability towards the sports club to the southeast, and blocking off the urban and mountainous areas to the southwest and northwest, with its higher density of green areas and impermeability. The commercial and social zone are at the most permeable point, acting as connectors to the public sports club, a buffer zone to the outside world. Each opening in the ground, leads to different areas within the site, creating circulation for bicycles as well as pedestrians. site plan the line of housing/ zoning peaks and valleys ensure that sun reaches courtyards peaks contain penthouses with better views voids beneath the valleys form pathways for people to enter the site valleys form social terraces fragmen ta ti on deep green park social plaza/ flower garden outdoor sports commercial zone public green
  • 24.
    isometric massing/activities commercial zone socialpark/flower garden deep green zone public fragmented light vegetation private dense heavy vegetation deep green zone multipurpose central hall social park commercial plaza typical circulation core/entrance typical opening outdoor sports court
  • 25.
    southwest elevation 50 sq.meters 75 sq. meters double storey 75 sq. meters single storey 100 sq. meters double storeyThe housing units are designed as modules of 5x10m, the smallest of which is 50 sq. m and designed for 1-2 people; this unit is made into an L shape either in the horizontal or vertical plane to become 75 sq. m, or made into two storeys for the 100 sq. m unit.
  • 26.
  • 27.
    partial plans physicalmodel 0.0m plan +0.3m plan
  • 28.
    livingunder,aboveandaroundagarden For this residencein the metropolitan city of Karachi, the clients’ chief request was an expansive garden for their grandchildren, as well as living and sleeping spaces for themselves. At the time I joined, the design was in its conceptual stages, with the main idea being for the house to have a green ramp from the ground floor garden to the first floor. However, integrating this with the spaces, as well as solving the height of the ramp was a challenge, as it needed to rise high enough for headspace on the ground floor, as well as stay within the confines of the plot. These issues were resolved by designing the topography for the plot, inside, as well as outside. In the final product, the entrance leads dow to a series of spaces, each with its own level, and finally at the bottom, a delightful hidden courtyard, which gives views to the two bedrooms, the living room, as well as the first floor garden. type residence location Karachi, Pakistan studio Arshad Shahid Abdulla (internship) back alley submerged.house process models back-of-house
  • 29.
    -1' - 0" 0'- 0" -2' - 0" -4' - 6" -7' - 0" -2' - 0" -2' - 0" 2' - 3" ground floor plan courtyard exterior living space
  • 30.
    house A6 terrace_shift Imaginary clientsare a family consisting of a single professor with 3 children, a boy and 2 younger girls. The keywords were used to generate a split level house where each member has their own individual space on the street side, while communal areas are on the canal side for family time. night person educator student occupants 1 male adult 1 boy 2 girls separate rooms with study spaces large study, storage living space separated from rest of the family, each not disturbing the others routines immediate response type row house location Eskişehir, Turkey studio architectural design III
  • 31.
    render of alleywayview to canal. Above, the professor’s study balcony and living room can be seen. Maximum volume of the house is filled with 3 floors Each floor shifted laterally to create alleys and terraces along the longitudinal axis canal end of the house pulled down to bring occupants closer to the element Cutting out of the first floor creates a tall void in the middle, as well as making two balconies massing
  • 32.
  • 33.
    voids | gardens,terraces, and alleyways The shifting of the voids manifests itself within the sections; at the ground level, the floor to sky open void created, forms an alleyway at the side of the house (shown in the adjacent image), which is used for the entrance, also created a ‘third facade’ for a row house that would normally have only two. At the first floor, the second void contains a terrace garden, along the side of the family room. This also provides ventilation for the bathroom windows of the second, and third floor. On the top floor, the voids become balconies for the professor’s study, and bedroom, places to sit outside the house and look down upon the street or residential alleyway. +2.3m +5.8m -2.0m +8.0m -0.8m 0.0m +4.0m +7.5m +10.5m transverse section to canal transverse section from canal COHOUSE 4 HOUSE A6 CANAL CANAL proposed programmatic site plan PEDESTRIAN STREET The site plan below shows the two plots allotted, one for the house and one for the co-house project that follows this one. SHIFT occupies lot A6, with a canal at the back of the house and a pedestri an street at the front. The house, constructed on plot a6 (site plan on page 3), lies 2 plots away from the co-house, and the street, giving the residents ease of access to the outside community. West of the plot is the canal, and east is the pedestrian street, ensuring the nearby aura is that of peace and calm.
  • 34.
    plans ground floor firstfloor second floor C’ +5.6m +7.5m from professor’s study looking towards the street entrance +2.3m +4.0m -0.8m +0.0m
  • 35.
    anacousticshelterinthemiddle ofacity The notion ofcities as a collection of chaot- ic elements, is a general one, but an oft-overlooked element of chaos is sound. Since the advent of motor- ized vehicles, cities have been victim to noise pollu- tion emitted by various sources, including daily traffic. The site, a park next to Kavaklidere Cadde- si, a street in the bustling metropolis of Ankara, faces the same problem. Located on a busy, central intersec- tion with diplomatic buildings, it demands relaxation, and particularly seclusion from the noise outside. The solution is a soundscape; the design of which entails a two-pronged process, protection from negative sounds, by greenery and carefully placed vertical elements, and then filling the ensuing vacuum with desired sounds. These are created by ‘sound sculptures’, powered by wind, and also water, which is supplied by 2 pools on either end with a stream between them. Spaces within the park contain hierarchies between them; public spaces contain open areas for performance, and sculpture viewing, while private areas are more silent, and introspective. type park location Ankara, Turkey studio landscape design with Prof. Fünda Baş Bütüner soundscape public diplomatic surrounding zones, road network and site location private manufacturing replacing resonating sound
  • 36.
  • 37.
  • 38.
    divingintodetailsforasteel exhibitionhall For this constructiondesign course, the devil is in the details. Autodesk Revit and AutoCAD were used to design a transparent, steel exhibition hall, with high beam spans, as well as brick and glass cladding with shading devices to shield the occupants from the sun. Apart from the reinforced concrete strip and raft foundation, the whole structure was designed to be assembled on-site, using factory produced sub-assembly components. type exhibition hall location Antalya, Turkey studio Construction Design Practice with Prof. Ayşe Tavukçuoğlu Tiles Pedestals Rigid insulation Waterproofing membrane Top concrete Top concrete Steel deck Steel deck C-profiles I-beam Box profile joists METSEC Roof Truss a study in steel Slab-wall connection Roof-wall connection section perspective showing details
  • 39.
  • 40.
    2 sheets froma total of 5 prepared for project
  • 41.
    agatheringspaceasasocialbridge The brief callsfor a community activity genera- tor in proximity to the row houses, to serve as ignition for community activities, production, social life; in this case the program designed is that of a social bridge, connecting the insulated row house canal community with the urban fabric of Eskisehir. In a tiny 6x18 house, individuals cannot hold social or business related events. This lack of space threatens to isolate the individual, leaving him in danger of turning into a hermit. The answer is a home away from home - a place where the resident can hold parties, call over friends, marry his childhood sweetheart, and at the same building, call community gatherings or business meetings with clients/sellers of his/her home business. The social activities within the private sphere of the house are extracted and condensed into a social, public sphere. activities communal living relaxation socializing business meetings type cohouse location Eskişehir, Turkey studio architectural design III social_bridge
  • 42.
    southwest perspective A communitypredicted to be this peaceful and leisurely sadly lies beside a busy commer- cial road filled with shops, loud cars and dirty vibes. A micro culture shock is to be experi- enced as soon as the person sets foot off the community, leaving the canal and homes behind him, and stepping into a dog eat dog world. The solution? An open resting place on his way to the outside world, where he can sip on coffee and brace himself for the daily discomfort he is to go through in the world outside his home.
  • 43.
    southeast perspective perspective frommajor street A bridge isn’t simply just an avenue of circulation, a mere line to walk upon; it is often a meeting place, a point in between two landmasses upon which two separate entities might communicate, and for individuals, an element upon which one may simply stand and feed the ducks. Social_bridge occupies cohouse 4, at the edge of the community and in proximity to the urban fabric of Eskisehir. This seamlessly complements its role as a connector between the two sets of lives, those of the outer urban area, and those of the insulated canal commu- nity. The building exudes a strong presence along the street corner, with a booking office and cafe on street level, as well as a main entrance to the building. The red perforated brickwork on the south facade is visible as a singular perspective point from down the street, making the building visible and significant, a beacon of shining red in the city. The brickwork serves as protection from the heat of the sun in the south, as well as from the distracting visual elements of the street, while letting in light and air to the balcony.
  • 44.