The victor menezes convention center (VMCC)
IIT - mumbai
The kongu convention center - Tamil nadu
Zayed university - abu dhabi
Centre pompidou - Metz
Convention center – jaipur
Case study - University convention center
THE VICTOR MENEZES CONVENTION CENTER (VMCC)
IIT Mumbai
Structure:(G+5) Structure
Architect: Hafeez Contractor
Contractor: M/s Godrej and Boyce Mfg.Co.Ltd
Total Built-up Area: 1,15,000 sq ft
40 CR PROJECT
Building Inaugurated on January 8, 2011.
LOCATION
GR FLOOR – VIP LOUNGE
AUDITORIUM
SEMINAR ROOM
1ST FLOOR- SEMINAR ROOM
AUDITORIUM
2ND FLOOR- LECTURE HALL
VIP LOUNGE
AHU ROOM
3RD FLOOR- LECTURE HALL
VIP ROOM
4TH FLOOR- BOARD ROOM
VIP LOUNGE
CONFERENCE ROOM
LABS
Requirements
The Victor Menezes Convention Center (VMCC) hosts a well-
equipped auditorium, seminar rooms, lounges, etc that can hold
several parallel sessions and poster sessions.
DESIGN OBJECTIVES
Monumental
monotony /Similar design elements- sun shading design double height openings
FLOOR HEIGHT 4.5M EACH
VIP Entry
Auditorium -- 389
Lecture Hall – 150
Seminar Room – 70
Foyer (Exhibitions and Poster Sessions)1-- 700--765 sq.m
Foyer (Exhibitions and Poster Sessions)2-- 500-553 sq.m
Terrace Canopy (above Auditorium) -- 650 sq. M
Terrace
Outdoor Garden Cafeteria -- 674 sq. m
Board Room -- 30 (addon chairs 20)
Conference Room -- 30 (addon chairs 20)
Business (VIP) Lounge -- 12
Garden
Entrance foyer
VIPentry
Auditorium entry
Main entry
The Victor Menezes Convention Centre has an auditorium that can
hold an audience of 380 Lecture Halls- One hall of 300 capacity
6 halls of 150 capacity10 halls of 40 capacity
Two Conference Rooms of 30 capacity each
Civil Engineering in the fourth and fifth floors.
LIFT LOBBY
LECTURE HALLS
Auditorium Exhibition hall
FIRST FLOOR
GR FLOOR @101.10M LVL
First floor lobby
VIP Lounge
Seminar Hall
LECTURE HALL-conical
VIP ROOM
SECOND FLOOR
THIRD FLOOR
LECTURE HALL
VIP LOUNGE
AHU ROOM
BOARD ROOM
VIP LOUNGE
CONFERENCE ROOM
LABS
FOURTH FLOOR
THE KONGU CONVENTION CENTRE
ERODE , TAMIL NADU
Client : Kongu Engineering College
Project Cost : INR 52 Crores
Area : 2,00,000 sq ft
Commencement date : October 2007
Completion date : July 2010
Client : Kongu Engineering College
ABOUT
The Kongu Covention Centre consists of a Multipurpose hall, one of the largest
in India with a seating capacity of 4500 persons.
Alternatively it has one indoor basket ball court and four indoor badminton courts which are used as sports hall.
The building follows a massive geometric form culminating base and football stadium. It has the facilities for Conference
halls , Seminar halls , Training centre , Guest rooms and VIP rooms , offices , HighTech audio Visual facilities for Global
conferencing , Cafeteria , Offices etc.
SITE
Requirements
1. The client’s need was to have a large scale auditorium with stage and
seating capacity to accomodate 4500 persons.
2. The auditorium will also have multi-purpose usage for indoor sports
activity like badminton , table-tennis & basketball.
3.The backroom facilities to also function as seminar rooms & rehearsal
rooms.
4. The building will also serve as a background to the athletics arena
which also acts a large gathering space for college functions.
5. Saluting bay for exterior sports facilities.
DESIGN OBJECTIVES
1. Achieving fluidity in functions by serving multiple purposes within the
same building.
2. Achieving low construction costs
3. Breaking the monotony of the sterile geometry of the Institute campus
4. Designing a symbolic and an iconic structure
5. Incorporated large and ambient column free spaces so that there is no
hindrance to visibility
6. Use of sustainable materials and techniques (both active and passive)
thereby incorporating energy efficiency
CONCEPT
The Architects Prof. Charanjit Shah and Ar. Gurpreet Shah wanted to break the monotony
of the Kongu Engineering Campus. A form that is dynamic and can define identity of the
campus was contemplated
EVOLUTION OF FORM
The basic form of the Auditorium has been inspired from the Garuda
(eagle) in flight. In Hindu
religion, Garuda is a Hindu deity usually the mount (vahanam) of Lord
Vishnu, having a body
of a strong man with a white face, red wings, and an eagle’s beak and with
a crown on his head.
This ancient deity was said to be massive, large enough to block out the
sun. The auditorium form evolves from the shape of the Garuda as the building’s
central wing being
longer & massive (resembling the body of eagle) while both of the side wings
having a lesser volume with cutouts for efficient light & ventilation for outdoor
public interaction spaces.
Integration of multiple activities in single infrastructure leads to better utlisation of spaces
and facilities
Sports facilities : When the auditorium is used for sports activities and
National Level competitions
level 2 lighting as per International standards has been provided
Stage lights and spot lights also have been used for National level plays
and performances
The truss network, primary , secondary and tertiary used in the structure aids
to span large column
free spaces upto 50 m. Double trusses have been used to span over the Central
auditorium.
The wings (left and right) are spanned/ supported on the intermediate truss to
provide acces to the Central spine without any hindrance
THE STRUCTURE
SUSTAINIBILITY
1. As the air gets heated it moves up and escapes through the
clere storey windows
2. Fresh cooled air is circulated from the ducted air cooled
system
3. Use of sheets with thermal insulation cuts the heat gain
• Use of renewable energy sources.
• Conservation and protection of fertile top soil during
construction and post construction.
• Use of fly ash content in for concrete works, plastering etc.
• Plantation of Evergreen trees and native trees for low
maintenance.
• Solid waste segregation for Bio-degradable and non-Bio
degradable waste.
PASSIVE STRATEGIES
• Thermal mass; aerated blocks/ hollow blocks
• Insulated roofing.
• Sun shading.
• Trees for shade.
• Green parking-minimizing the hard surface.
• Hollow glass blocks.
• Minimizing heat gain & maximizing day light
in common public areas and backstage &
pre-functional areas.
ACTIVE STRATEGIES
• Recycling of water.
• Storm water retained on site to recharge
groundwater.
• Adherence to ECBC code.SAILENT FEATURES
SOLAR LIGHTING
To minimise energy consumption
in the campus
PAVERS
As access to car parking slots and intermediate
road network to cut heat island effect and
minimise bitumen top
The Kongu Convention Centre was initially built as an auditorium for
various institutional activities. The architects of the project suggested that
the large auditorium could be used for multiple purposes, which would also
make the use of the building more frequent without increasing the overall
cost of the building. The client liked the idea and reciprocated positively.
Multiple functionalities were then incorporated in the building
and at present the Kongu convention centre also functions as a
hall for various sports activities. So the Kongu Convention
centre is a perfect example of not only achieving an
architectural marvel in minimum cost but also shows how an
interactive relationship
between the architect and the client can bring about better
buildings and justify the term ‘Architecture’ to the fullest.
Hamburg architects BRT’s
The design intent for the shape of the building ensemble and the sculptural roof was the shape and lightness of
the chador, a semi-circular cloth worn by Muslim women as a mantle that exposes only the face or parts of it.
This Project occupies approximately 75 ha, with
a total built surface about 200.000 m2.
Zayed University, Abu Dhabi
Design Objectives
Jointless free-form roof of 8,000 tonnes of steel with aluminium
cladding
The central campus includes the following
buildings on a north-south axis:
Convention Center (CON) with 33.000 m2 GFA including huge column free conference rooms and a
theatre with 1100 seats,
The Administration (AF2) with 16.000 m2 GFA,
The campus, faculties (Interdisciplinary Studies, IS),
Dining halls (DH) totalling 17.000
GFA and a Library (LIB) with 20.500 m2 GFA accomodating up to 500,000 volumes and four lecture
halls.
Site Plan
WELL EQUIPPED
INTERIORS
SOUTH
NORTH
WEST
The roughly 25,000 aluminium panels have typical dimensions of ca. 1500 mm × 1500 mm by 3 mm thickness and are
mounted on their own substructure at the upper side ceiling and the soffit. This left a structural height of constantly only 1.50
m.
The sculptural roof was conceived to be a jointless,
continuously curved shape of aluminum cladding with a
constant overall thickness of only 1,75 m.
CENTRE POMPIDOU-METZ
Shigeru Ban Architects
Project brief-location
The Centre Pompidou-Metz was completed in May of 2010
structural engineering by
SJB Kempter Fitze AG and digital modeling by Design toProduction Stuttgart
Location: Metz, France
Area: 10,660 sqm
Cost:69.33 million Euros
The Centre Pompidou in Metz is a large hexagonal structure with
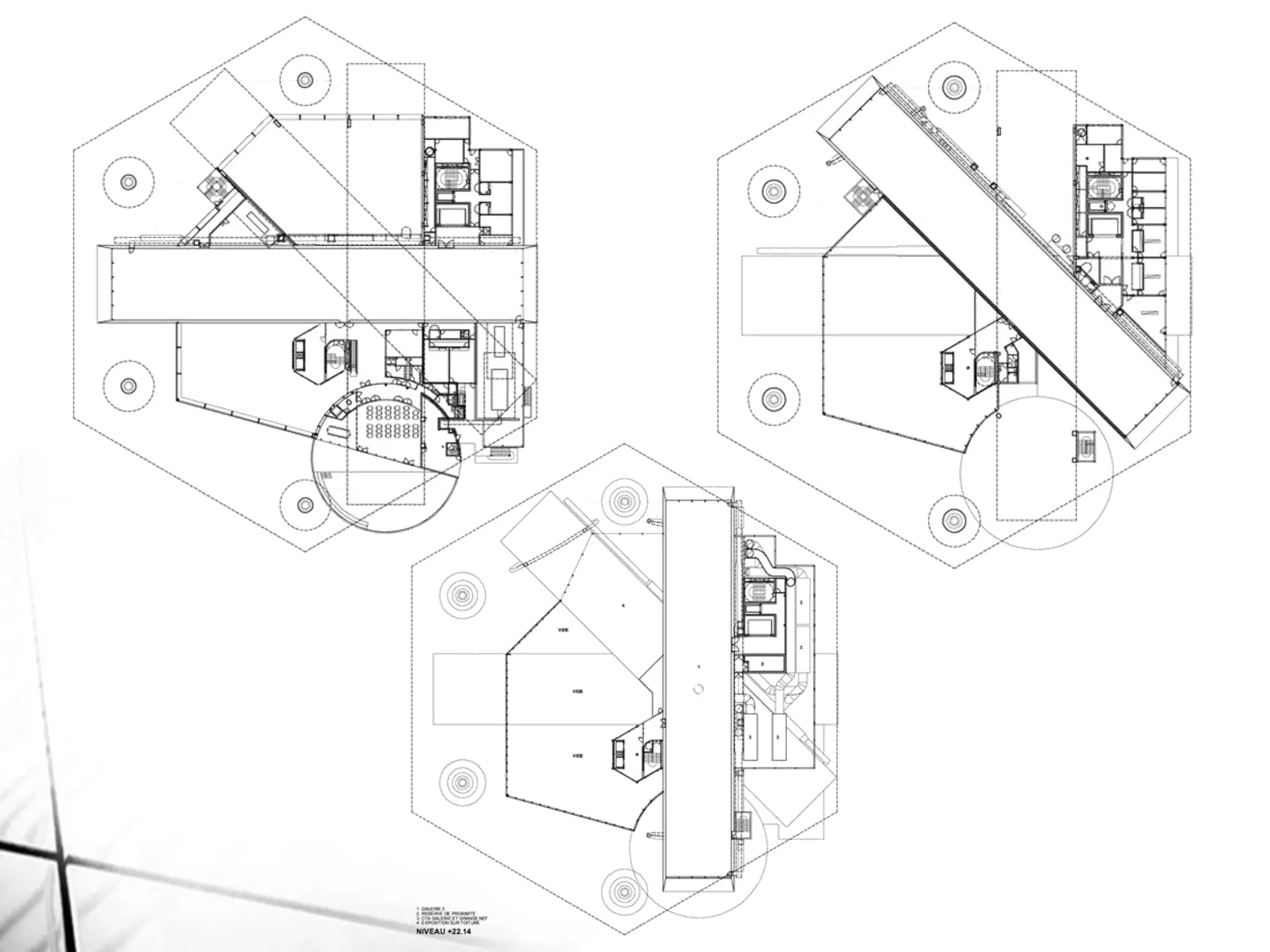
three galleries running through the building.
The Interior atmosphere is light with a pale wood roof, white walls
and a pearl-grey concrete floor.
The roof ties the interior and exterior and the three exhibition
galleries make up highly innovative architectural choices
THE SITE:METZ,FRANCE
Site plan
Tessellated regular hexagons
Larger support beams travel along five effective
spines
Three large exhibition
and gallery spaces, auditorium, theatre and a central
forum
CANTILEVERED GALLERIES
These extruded rectangles, each measuring 100-
meter in length and fifteen-meter wide,
contain galleries and supporting program,
cantilevered out and over the open forum space.
Structurally enabled by four steel beams
forum
Grande Nef
hexagonal tower
Gallery 1
Gallery 2
Gallery 3
Auditorium
(144 seats)
restaurant
Bookshop
studio
(196 seats)
coffee
Ticketing &
cloakroom
The three tubes are stacked vertically and arranged around the
Hexagonal Steel Frame Tower Structurally enabled by 4 steel horizontal
beams at each corner
405 foundation piles
All three spaces intersect over a central core attached to the trussed spire, supported by the
mast, internal steel, and over 970 metric tons of reinforced concrete throughout the project
ROOF LATTICE STRUCTURE
The roof spans an area over 8,500 square meters primary timber
Glulam roof canopy and the central steel truss spire double-curved
timbers of spruce sourced from Austria
Evenly spaced from the center, supported at the
foundation
Structured same way as the Canopy Additionally
reinforced by Pre-stressed bolts & Metal Rings
The glazing at the end of each tube allows for the only source of natural lighting in each of the three
galleries, which utilize large curtains specially designed to control the amount of direct natural light into
each space. These cantilevered spaces puncture an additional system
of simple lightweight steel trusses and a glazed curtain wall system, which encloses the forum space
beneath the canopy
TENSILE MEMBRANE
The moisture-resistant
membrane of fiberglass and
Teflon (PTFE or Poly-Tetra-
Fluoro Ethylene) is stretched
over the lattice structure
Interlacing
IRVING CONVENTION CENTER at Las Colinas
Project brief-location
period of construction
Architect & builder Studio Hillier
project received 2015 North American Copper in Architecture Award
The convention center is a counter proposal to the culture of
containment that has proliferated,University of Dallas
The Irving Convention Center is designed as two boxes, stacked and
rotated to create cantilevered corners that provide several shaded outdoor
areas
Exhibition hall -4500sq.M
Prefunction area 1700sq.M
MEETING ROOMS & JUNIOR BALLROOM LEVEL
Meeting rooms 12nos 950sq.M
Board room 85sq.M
Junior ballroom 630 sq.M
Prefunction area 1000sq.M
Covered terrace 500sq.M
Lower cafe terrace1700sq.M
GRAND BALLROOM LEVEL
Grand Ballroom 1700SQ.M
PREFUNCTION AREA 100SQ.M
VERTICAL SECTION
HORIZONTAL SECTION
meeting attendees will discover the antidote in
the non-programmed space that constructs a
set of outdoor experiences in the form of ramps,
stairs and expansive roof terraces plein-air.
The stramp, (stair-ramp) open a dialogue of free
and independent movement that we associate
with civic space.
These un-programmed spaces invite the chance, spontaneous
encounters where people are most likely to engage each other.
Cantilevers of steel and mesh produce vast areas of shade. The copper
perforated panels subvert expectations of weight and mass and in
their place offer transparency and illusion.
The project is LEED certified for its integration of
sustainable principles and generative design.
Use of untreated water from Lake Carolyn for
flushing toilets, irrigation and make-up water
supply to cooling towers:
Estimated consumption reduced by 19 million
gallons/yr; 3,600 tons of recycled steel sourced
from old vehicles by North Texas supplier;
150 tons of milled, perforated copper panels
fabricated in the city of Irving; Use of copper:
natural, light weight, low maintenance material.
• Materials and construction
CONVENTION CENTER – JAIPUR
Project brief-location
period of construction
Architect & builder
Extent of site & building
Estimate
The fast growing fascinating city of jaipur inspired the facility’s design to a great extent .The convention centre is
designed to share the urban growth of the city by giving it a modern land mark depicting the tremendous growth and
business opportunities ,this colourful and culturally rich city is offering.
The proposed convention centre at the university of Rajasthan, Jaipur is envisaged as an land mark for the university
campus and the whole of Jaipur itself.
Design Concept
The design is based on forming a shell around the basic infrastructure and the requirements of a world class
convention centre.
The design consists of placing the main convention hall (auditorium) and Lecture /seminar halls on
opposite sides with the central area forming an atrium .Both the convention hall (auditorium) and Lecture
/seminar halls have stepped seating for optimal view from the audience to the speaker.
The exterior shell of the building is derived from following the shape of
these lecture halls and the auditorium and thus forms a egg shape
structure
AREA STATEMENT
GR.Floor
Main convention hal l (audi) -to seat 600 +audience – 800sq.m
Back stage –green rooms & rooms for dignitaries -50sq.m
Lecture halls -2 each of 120sq.m to seat 80 people -240sq.m
Seminar halls -4 each of 150 sq.m to seat 100 people -600sq.m
Landscaped atrium -1100sq.m
Service & circulation area -500sq.m
F.Floor
Conference rooms -3 each of 500sq.m - 900 sq.m
Services and circulation area -900sq.m
S.Floor
Cafe/banquet/dining hall -1000sq.m
The building shell is formed by steel space frame with triangular panels with internal RCC frame designed to
support the floors.
The panels are alternately glass and opaque this allows maximum light and ventilation into the building and
thus reducing the need for day time artificial lighting .
Due to the orientation of the building the glass exterior allows for the minimal direct sun into the building
which reduces the solar gain and effectively reduces the mechanical ventilation load.
The Ground floor consists of the lecture /seminar hall on one side and the convention hall(audi) on the other.
The auditorium has entry/exit at both levels, the ground and first floor. this allows for the uniform distribution of
audience on both floors and avoid over crowding. both the convention hall and the seminar halls opens to a landscaped
atrium.
The first floor consists of conference rooms placed
over the lecture /seminar halls .
The Second floor has been envisaged to accomdate
a cafe/ banquet /Dining area.
Among the other facilities ,the auditorium is provide with a large back stage area ,this can allow
main auditorium to be configured and accommodate this diverse range of events from the
convention to a concert or a theatrical performance.
Mons Convention
Center | Daniel
Libeskind
https://lmnarchitects.com/project/
vancouver-convention-centre-west
http://issuu-download.tiny-
tools.com/print.php?doc_id=16020
1171819-
c322d1e45eb4403a146140cd229
36d5c#
http://issuu-download.tiny-
tools.com/print.php?doc_id=13060
4034001-
fe26654e1527a626a883da73d6d
0dd18
Owensboro-Davies County Convention
Center / Trahan Architects

Presentation case study convention center

  • 1.
    The victor menezesconvention center (VMCC) IIT - mumbai The kongu convention center - Tamil nadu Zayed university - abu dhabi Centre pompidou - Metz Convention center – jaipur Case study - University convention center
  • 2.
    THE VICTOR MENEZESCONVENTION CENTER (VMCC) IIT Mumbai Structure:(G+5) Structure Architect: Hafeez Contractor Contractor: M/s Godrej and Boyce Mfg.Co.Ltd Total Built-up Area: 1,15,000 sq ft 40 CR PROJECT Building Inaugurated on January 8, 2011.
  • 3.
    LOCATION GR FLOOR –VIP LOUNGE AUDITORIUM SEMINAR ROOM 1ST FLOOR- SEMINAR ROOM AUDITORIUM 2ND FLOOR- LECTURE HALL VIP LOUNGE AHU ROOM 3RD FLOOR- LECTURE HALL VIP ROOM 4TH FLOOR- BOARD ROOM VIP LOUNGE CONFERENCE ROOM LABS Requirements The Victor Menezes Convention Center (VMCC) hosts a well- equipped auditorium, seminar rooms, lounges, etc that can hold several parallel sessions and poster sessions.
  • 4.
    DESIGN OBJECTIVES Monumental monotony /Similardesign elements- sun shading design double height openings FLOOR HEIGHT 4.5M EACH VIP Entry
  • 5.
    Auditorium -- 389 LectureHall – 150 Seminar Room – 70 Foyer (Exhibitions and Poster Sessions)1-- 700--765 sq.m Foyer (Exhibitions and Poster Sessions)2-- 500-553 sq.m Terrace Canopy (above Auditorium) -- 650 sq. M Terrace Outdoor Garden Cafeteria -- 674 sq. m Board Room -- 30 (addon chairs 20) Conference Room -- 30 (addon chairs 20) Business (VIP) Lounge -- 12 Garden Entrance foyer
  • 6.
    VIPentry Auditorium entry Main entry TheVictor Menezes Convention Centre has an auditorium that can hold an audience of 380 Lecture Halls- One hall of 300 capacity 6 halls of 150 capacity10 halls of 40 capacity Two Conference Rooms of 30 capacity each Civil Engineering in the fourth and fifth floors.
  • 7.
  • 8.
    Auditorium Exhibition hall FIRSTFLOOR GR FLOOR @101.10M LVL
  • 9.
    First floor lobby VIPLounge Seminar Hall
  • 10.
    LECTURE HALL-conical VIP ROOM SECONDFLOOR THIRD FLOOR LECTURE HALL VIP LOUNGE AHU ROOM
  • 11.
    BOARD ROOM VIP LOUNGE CONFERENCEROOM LABS FOURTH FLOOR
  • 12.
  • 13.
    ERODE , TAMILNADU Client : Kongu Engineering College Project Cost : INR 52 Crores Area : 2,00,000 sq ft Commencement date : October 2007 Completion date : July 2010 Client : Kongu Engineering College
  • 14.
    ABOUT The Kongu CoventionCentre consists of a Multipurpose hall, one of the largest in India with a seating capacity of 4500 persons. Alternatively it has one indoor basket ball court and four indoor badminton courts which are used as sports hall. The building follows a massive geometric form culminating base and football stadium. It has the facilities for Conference halls , Seminar halls , Training centre , Guest rooms and VIP rooms , offices , HighTech audio Visual facilities for Global conferencing , Cafeteria , Offices etc. SITE
  • 15.
    Requirements 1. The client’sneed was to have a large scale auditorium with stage and seating capacity to accomodate 4500 persons. 2. The auditorium will also have multi-purpose usage for indoor sports activity like badminton , table-tennis & basketball. 3.The backroom facilities to also function as seminar rooms & rehearsal rooms. 4. The building will also serve as a background to the athletics arena which also acts a large gathering space for college functions. 5. Saluting bay for exterior sports facilities. DESIGN OBJECTIVES 1. Achieving fluidity in functions by serving multiple purposes within the same building. 2. Achieving low construction costs 3. Breaking the monotony of the sterile geometry of the Institute campus 4. Designing a symbolic and an iconic structure 5. Incorporated large and ambient column free spaces so that there is no hindrance to visibility 6. Use of sustainable materials and techniques (both active and passive) thereby incorporating energy efficiency
  • 16.
    CONCEPT The Architects Prof.Charanjit Shah and Ar. Gurpreet Shah wanted to break the monotony of the Kongu Engineering Campus. A form that is dynamic and can define identity of the campus was contemplated EVOLUTION OF FORM The basic form of the Auditorium has been inspired from the Garuda (eagle) in flight. In Hindu religion, Garuda is a Hindu deity usually the mount (vahanam) of Lord Vishnu, having a body of a strong man with a white face, red wings, and an eagle’s beak and with a crown on his head. This ancient deity was said to be massive, large enough to block out the sun. The auditorium form evolves from the shape of the Garuda as the building’s central wing being longer & massive (resembling the body of eagle) while both of the side wings having a lesser volume with cutouts for efficient light & ventilation for outdoor public interaction spaces.
  • 17.
    Integration of multipleactivities in single infrastructure leads to better utlisation of spaces and facilities
  • 21.
    Sports facilities :When the auditorium is used for sports activities and National Level competitions level 2 lighting as per International standards has been provided Stage lights and spot lights also have been used for National level plays and performances
  • 23.
    The truss network,primary , secondary and tertiary used in the structure aids to span large column free spaces upto 50 m. Double trusses have been used to span over the Central auditorium. The wings (left and right) are spanned/ supported on the intermediate truss to provide acces to the Central spine without any hindrance THE STRUCTURE
  • 24.
    SUSTAINIBILITY 1. As theair gets heated it moves up and escapes through the clere storey windows 2. Fresh cooled air is circulated from the ducted air cooled system 3. Use of sheets with thermal insulation cuts the heat gain
  • 25.
    • Use ofrenewable energy sources. • Conservation and protection of fertile top soil during construction and post construction. • Use of fly ash content in for concrete works, plastering etc. • Plantation of Evergreen trees and native trees for low maintenance. • Solid waste segregation for Bio-degradable and non-Bio degradable waste. PASSIVE STRATEGIES • Thermal mass; aerated blocks/ hollow blocks • Insulated roofing. • Sun shading. • Trees for shade. • Green parking-minimizing the hard surface. • Hollow glass blocks. • Minimizing heat gain & maximizing day light in common public areas and backstage & pre-functional areas. ACTIVE STRATEGIES • Recycling of water. • Storm water retained on site to recharge groundwater. • Adherence to ECBC code.SAILENT FEATURES SOLAR LIGHTING To minimise energy consumption in the campus PAVERS As access to car parking slots and intermediate road network to cut heat island effect and minimise bitumen top
  • 26.
    The Kongu ConventionCentre was initially built as an auditorium for various institutional activities. The architects of the project suggested that the large auditorium could be used for multiple purposes, which would also make the use of the building more frequent without increasing the overall cost of the building. The client liked the idea and reciprocated positively. Multiple functionalities were then incorporated in the building and at present the Kongu convention centre also functions as a hall for various sports activities. So the Kongu Convention centre is a perfect example of not only achieving an architectural marvel in minimum cost but also shows how an interactive relationship between the architect and the client can bring about better buildings and justify the term ‘Architecture’ to the fullest.
  • 27.
    Hamburg architects BRT’s Thedesign intent for the shape of the building ensemble and the sculptural roof was the shape and lightness of the chador, a semi-circular cloth worn by Muslim women as a mantle that exposes only the face or parts of it. This Project occupies approximately 75 ha, with a total built surface about 200.000 m2. Zayed University, Abu Dhabi Design Objectives
  • 28.
    Jointless free-form roofof 8,000 tonnes of steel with aluminium cladding
  • 29.
    The central campusincludes the following buildings on a north-south axis: Convention Center (CON) with 33.000 m2 GFA including huge column free conference rooms and a theatre with 1100 seats, The Administration (AF2) with 16.000 m2 GFA, The campus, faculties (Interdisciplinary Studies, IS), Dining halls (DH) totalling 17.000 GFA and a Library (LIB) with 20.500 m2 GFA accomodating up to 500,000 volumes and four lecture halls.
  • 30.
  • 32.
  • 34.
  • 35.
  • 36.
    The roughly 25,000aluminium panels have typical dimensions of ca. 1500 mm × 1500 mm by 3 mm thickness and are mounted on their own substructure at the upper side ceiling and the soffit. This left a structural height of constantly only 1.50 m.
  • 39.
    The sculptural roofwas conceived to be a jointless, continuously curved shape of aluminum cladding with a constant overall thickness of only 1,75 m.
  • 40.
  • 41.
    Project brief-location The CentrePompidou-Metz was completed in May of 2010 structural engineering by SJB Kempter Fitze AG and digital modeling by Design toProduction Stuttgart Location: Metz, France Area: 10,660 sqm Cost:69.33 million Euros The Centre Pompidou in Metz is a large hexagonal structure with three galleries running through the building. The Interior atmosphere is light with a pale wood roof, white walls and a pearl-grey concrete floor. The roof ties the interior and exterior and the three exhibition galleries make up highly innovative architectural choices
  • 42.
  • 43.
  • 44.
    Tessellated regular hexagons Largersupport beams travel along five effective spines
  • 45.
    Three large exhibition andgallery spaces, auditorium, theatre and a central forum CANTILEVERED GALLERIES These extruded rectangles, each measuring 100- meter in length and fifteen-meter wide, contain galleries and supporting program, cantilevered out and over the open forum space. Structurally enabled by four steel beams
  • 46.
    forum Grande Nef hexagonal tower Gallery1 Gallery 2 Gallery 3 Auditorium (144 seats) restaurant Bookshop studio (196 seats) coffee Ticketing & cloakroom The three tubes are stacked vertically and arranged around the Hexagonal Steel Frame Tower Structurally enabled by 4 steel horizontal beams at each corner
  • 49.
    405 foundation piles Allthree spaces intersect over a central core attached to the trussed spire, supported by the mast, internal steel, and over 970 metric tons of reinforced concrete throughout the project
  • 51.
    ROOF LATTICE STRUCTURE Theroof spans an area over 8,500 square meters primary timber Glulam roof canopy and the central steel truss spire double-curved timbers of spruce sourced from Austria
  • 53.
    Evenly spaced fromthe center, supported at the foundation Structured same way as the Canopy Additionally reinforced by Pre-stressed bolts & Metal Rings
  • 54.
    The glazing atthe end of each tube allows for the only source of natural lighting in each of the three galleries, which utilize large curtains specially designed to control the amount of direct natural light into each space. These cantilevered spaces puncture an additional system of simple lightweight steel trusses and a glazed curtain wall system, which encloses the forum space beneath the canopy
  • 55.
    TENSILE MEMBRANE The moisture-resistant membraneof fiberglass and Teflon (PTFE or Poly-Tetra- Fluoro Ethylene) is stretched over the lattice structure Interlacing
  • 56.
    IRVING CONVENTION CENTERat Las Colinas Project brief-location period of construction Architect & builder Studio Hillier project received 2015 North American Copper in Architecture Award
  • 58.
    The convention centeris a counter proposal to the culture of containment that has proliferated,University of Dallas
  • 59.
    The Irving ConventionCenter is designed as two boxes, stacked and rotated to create cantilevered corners that provide several shaded outdoor areas
  • 61.
  • 62.
    MEETING ROOMS &JUNIOR BALLROOM LEVEL Meeting rooms 12nos 950sq.M Board room 85sq.M Junior ballroom 630 sq.M Prefunction area 1000sq.M Covered terrace 500sq.M Lower cafe terrace1700sq.M
  • 63.
    GRAND BALLROOM LEVEL GrandBallroom 1700SQ.M PREFUNCTION AREA 100SQ.M
  • 64.
  • 65.
    meeting attendees willdiscover the antidote in the non-programmed space that constructs a set of outdoor experiences in the form of ramps, stairs and expansive roof terraces plein-air. The stramp, (stair-ramp) open a dialogue of free and independent movement that we associate with civic space.
  • 66.
    These un-programmed spacesinvite the chance, spontaneous encounters where people are most likely to engage each other. Cantilevers of steel and mesh produce vast areas of shade. The copper perforated panels subvert expectations of weight and mass and in their place offer transparency and illusion.
  • 67.
    The project isLEED certified for its integration of sustainable principles and generative design. Use of untreated water from Lake Carolyn for flushing toilets, irrigation and make-up water supply to cooling towers: Estimated consumption reduced by 19 million gallons/yr; 3,600 tons of recycled steel sourced from old vehicles by North Texas supplier; 150 tons of milled, perforated copper panels fabricated in the city of Irving; Use of copper: natural, light weight, low maintenance material. • Materials and construction
  • 68.
    CONVENTION CENTER –JAIPUR Project brief-location period of construction Architect & builder Extent of site & building Estimate
  • 69.
    The fast growingfascinating city of jaipur inspired the facility’s design to a great extent .The convention centre is designed to share the urban growth of the city by giving it a modern land mark depicting the tremendous growth and business opportunities ,this colourful and culturally rich city is offering. The proposed convention centre at the university of Rajasthan, Jaipur is envisaged as an land mark for the university campus and the whole of Jaipur itself.
  • 70.
    Design Concept The designis based on forming a shell around the basic infrastructure and the requirements of a world class convention centre. The design consists of placing the main convention hall (auditorium) and Lecture /seminar halls on opposite sides with the central area forming an atrium .Both the convention hall (auditorium) and Lecture /seminar halls have stepped seating for optimal view from the audience to the speaker. The exterior shell of the building is derived from following the shape of these lecture halls and the auditorium and thus forms a egg shape structure
  • 71.
    AREA STATEMENT GR.Floor Main conventionhal l (audi) -to seat 600 +audience – 800sq.m Back stage –green rooms & rooms for dignitaries -50sq.m Lecture halls -2 each of 120sq.m to seat 80 people -240sq.m Seminar halls -4 each of 150 sq.m to seat 100 people -600sq.m Landscaped atrium -1100sq.m Service & circulation area -500sq.m F.Floor Conference rooms -3 each of 500sq.m - 900 sq.m Services and circulation area -900sq.m S.Floor Cafe/banquet/dining hall -1000sq.m
  • 73.
    The building shellis formed by steel space frame with triangular panels with internal RCC frame designed to support the floors. The panels are alternately glass and opaque this allows maximum light and ventilation into the building and thus reducing the need for day time artificial lighting . Due to the orientation of the building the glass exterior allows for the minimal direct sun into the building which reduces the solar gain and effectively reduces the mechanical ventilation load.
  • 75.
    The Ground floorconsists of the lecture /seminar hall on one side and the convention hall(audi) on the other. The auditorium has entry/exit at both levels, the ground and first floor. this allows for the uniform distribution of audience on both floors and avoid over crowding. both the convention hall and the seminar halls opens to a landscaped atrium.
  • 76.
    The first floorconsists of conference rooms placed over the lecture /seminar halls .
  • 77.
    The Second floorhas been envisaged to accomdate a cafe/ banquet /Dining area.
  • 78.
    Among the otherfacilities ,the auditorium is provide with a large back stage area ,this can allow main auditorium to be configured and accommodate this diverse range of events from the convention to a concert or a theatrical performance.
  • 80.
    Mons Convention Center |Daniel Libeskind https://lmnarchitects.com/project/ vancouver-convention-centre-west http://issuu-download.tiny- tools.com/print.php?doc_id=16020 1171819- c322d1e45eb4403a146140cd229 36d5c# http://issuu-download.tiny- tools.com/print.php?doc_id=13060 4034001- fe26654e1527a626a883da73d6d 0dd18 Owensboro-Davies County Convention Center / Trahan Architects