ADOLF LOOS
(1870 -1933)
Adolf Loos
• Wrote a book -Ornament and crime (1908)
• Against Art Noveau, Vienna secession
• Was in US for 3 years – inspired by Louis sullivan
• ANTI – GESAMTKUNSTWERK –
• Ornament – wasteful in labour and material
• Ideology - Only a small part of Architecture belongs to
art – eg, tomb and the monument; Everything else that
serves a purpose, should be excluded from the realms
of art.
• Smooth , un-ornate , sleek & simple designs
• Modern art have no past , no future
AMERICAN BAR, Vienna
(1908)
American bar (1907 )
• Use of finest material
• Ceiling, wall, floor with lack onyx and dark
marble and refined by sleek brass fittings
• Glass on wall above bar – increase in width
(Visibility)
GOLDMAN
AND SALATCH
BUILDING
(1910)
Goldman & Salatsch Building – Loos
Haus(1910)
• One of the first modern office in Vienna
• Steel and concrete construction – marble
façade
• 4 stories of residence above business floor
• Façade was a green stone
• Bare white facades of residential floors.
STEINER HOUSE
(1910)
The Steiner House
• Limits – Shape of the site+ Planning code
(Street front one storey & dormer windows)
• Year façade 3 stories
• Large front windows - light to the office of the
painter at first level
• Semi circular metal sheathed roof
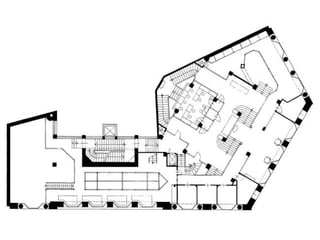
RAUMPLAN
• Architecture not conceived by drawings but by
spaces. No plan, elevation , section were
drawn first, G Doest exist; (G – Completely
plain wall above ruptures to windows)
• Interconnected continual spaces, rooms, halls
and terraces – each space of diff height,
function and symbolic importance of space
SCHEU HOUSE
(1913)
Scheu House
• Stepped to be in Asymmetry
• 2 houses - main + rented @top level
• 16m long with 4 m terrace
• Bedroom near the terrace facing East
• Flat roof as outdoor terrace
• Dark oak in social areas + wood painted white
in bed
MULLER HOUSE
(1930)
Villa Muller, 1930
• Public outside – Private inside as separate as
possible
• Dumb outside – wealth inside
• More traditional, warm , rich and comfortable
Adolf loos
Adolf loos
Adolf loos
Adolf loos
Adolf loos
Adolf loos
Adolf loos
Adolf loos
Adolf loos
Adolf loos
Adolf loos
Adolf loos
Adolf loos
Adolf loos
Adolf loos
Adolf loos

Adolf loos

  • 1.
  • 2.
    Adolf Loos • Wrotea book -Ornament and crime (1908) • Against Art Noveau, Vienna secession • Was in US for 3 years – inspired by Louis sullivan • ANTI – GESAMTKUNSTWERK – • Ornament – wasteful in labour and material • Ideology - Only a small part of Architecture belongs to art – eg, tomb and the monument; Everything else that serves a purpose, should be excluded from the realms of art. • Smooth , un-ornate , sleek & simple designs • Modern art have no past , no future
  • 3.
  • 4.
    American bar (1907) • Use of finest material • Ceiling, wall, floor with lack onyx and dark marble and refined by sleek brass fittings • Glass on wall above bar – increase in width (Visibility)
  • 7.
  • 8.
    Goldman & SalatschBuilding – Loos Haus(1910) • One of the first modern office in Vienna • Steel and concrete construction – marble façade • 4 stories of residence above business floor • Façade was a green stone • Bare white facades of residential floors.
  • 15.
  • 16.
    The Steiner House •Limits – Shape of the site+ Planning code (Street front one storey & dormer windows) • Year façade 3 stories • Large front windows - light to the office of the painter at first level • Semi circular metal sheathed roof
  • 23.
    RAUMPLAN • Architecture notconceived by drawings but by spaces. No plan, elevation , section were drawn first, G Doest exist; (G – Completely plain wall above ruptures to windows) • Interconnected continual spaces, rooms, halls and terraces – each space of diff height, function and symbolic importance of space
  • 24.
  • 25.
    Scheu House • Steppedto be in Asymmetry • 2 houses - main + rented @top level • 16m long with 4 m terrace • Bedroom near the terrace facing East • Flat roof as outdoor terrace • Dark oak in social areas + wood painted white in bed
  • 29.
  • 30.
    Villa Muller, 1930 •Public outside – Private inside as separate as possible • Dumb outside – wealth inside • More traditional, warm , rich and comfortable