METHODS OF DOCUMENTATION AND MEASURED DRAWING
ARC 1215
ROYAL MUSEUM KEDAH
LOT 82, SEKSYEN 16, ALOR SETAR,
KOTA SETAR, KEDAH
PREPARED BY
GROUP 11
1
NO.
DRAWING LIST
SHEET NO.
01 / 31
SCALEDRAWING REFERENCE
2017 / ARC1215/ RMUZKEDAH / A
1 : 75
1 : 75
1 : 75
1 : 75
1 : 75
02 / 31
03 / 31
04 / 31
05 / 31
06 / 31
KEY PLAN, LOCATION PLAN, SITE PLAN & SITE SECTION
DESCRIPTION
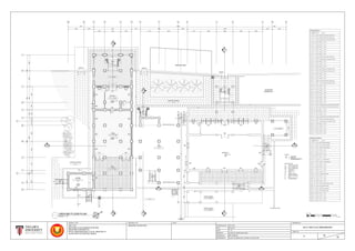
GROUND FLOOR PLAN
FIRST FLOOR PLAN
ROOF PLAN
GROUND FLOOR REFLECTED CEILING PLAN
FIRST FLOOR REFLECTED CEILING PLAN
2 07 / 312017 / ARC1215/ RMUZKEDAH / B NORTHWEST ELEVATION & SOUTHWEST ELEVATION 1 : 75
08 / 31 NORTHEAST ELEVATION & SOUTHEAST ELEVATION 1 : 75
3 09 / 312017 / ARC1215/ RMUZKEDAH / C SECTION A - A & SECTION B - B 1 : 75
10 / 31 SECTION C - C, SECTION D - D 1 : 75
4 12 / 312017 / ARC1215/ RMUZKEDAH / D
13 / 31
NORTHWEST ELEVATION (STREET VIEW), GATE 01 - 03 AS SHOWN
COLUMN 01- 04, ORNAMENTATION OF CEILING LIGHT CANOPIES,
ORNAMENTATION OF DOORS 20 & DOORS 20 & 23
AS SHOWN
GATE 04 - 07
14 / 31
15 / 31
16 / 31
18 / 31
19 / 31
20 / 31
21 / 31
23 / 31
STAIRCASE DETAILS 1
STAIRCASE DETAILS 2
STAIRCASE DETAILS 3
STAIRCASE DETAILS 5
2017 / ARC1215/ RMUZKEDAH / E5 DOOR DETAILS 1
DOOR DETAILS 2
DOOR DETAILS 3
DOOR DETAILS 4
DOOR DETAILS 6
28 / 31
AS SHOWN
AS SHOWN
AS SHOWN
AS SHOWN
1 : 25
1 : 25
1 : 25
1 : 25
WINDOW DETAILS 1 1 : 25
TUTOR
KHAIROOL AIZAT AHMAD JAMAL
1 : 25
NO. SHEET NO. SCALEDRAWING REFERENCE DESCRIPTION
STAIRCASE DETAILS 6
24 / 31
25 / 31
26 / 31
DOOR DETAILS 5 1 : 25
29 / 31
WINDOW DETAILS 2
30 / 31
31 / 31
WINDOW DETAILS 3
WINDOW DETAILS 4
1 : 25
1 : 25
1 : 25
2017 / ARC1215/ RMUZKEDAH / F6 AXONOMETRIC
AS SHOWN
4 2017 / ARC1215/ RMUZKEDAH / D
27 / 31
NO. NAME STUDENT ID
1
2
3
4
5
6
7
ALLEN TAN HOANG YEAP
BRIAN KOH JUN YAN
CHERILYN CHIA QIAO XIN
CHIN SHEE WEI
CHONG CHIN PIN
HOW SENG GUAN
LIM SHEN
0329459
0322002
0321986
0322499
0319595
1007P73021
0323209
8 LIM YANG KANG 0320538
9
10
11
12
13
14
LIM ZANYU
LIM ZIA HUEI
PE ZHI YONG
RACHAEL CHEONG KAH YAN
SII SIAW HUA
TEO VI VIEN
0325034
0321031
0319765
0329186
0322608
0321645
15
STUDENT ID
WONG WAN JIUAN 0327173
AS SHOWN
NO. NAME
17 / 31
22 / 31
1 : 25
STAIRCASE DETAILS 4
AS SHOWN
AS SHOWN
11 / 31 SECTION E - E 1 : 75
N
PARKING
AREA
Q
PARKING
AREA
OUTDOOR
EXHIBITION 1
OUTDOOR
EXHIBITION 2
OFFICE
WASHROOM
DATARAN MEDAN
BANDAR
BALAI BESAR
FALL
FALL
FALL
FALLFALL
FALL
FALL
KUALA KEDAH
LEBUHRAYAUTARASELATAN
ALOR SETAR
N
LEBUHRAYADARULAMAN
JALAN PUTRA
JALAN ISTANA LAMA
JALAN
SULTAN
BADLISHAH
BALAI SENI
ALOR SETAR TOWER
ZAHIR MOSQUE
PUTRA MEDICAL
ALOR SETAR
AMAN
CENTRAL
CENTRE
BALAI NOBAT
N
BALAI BESAR
SCALE 1 : 250
SITE PLAN
NOT TO SCALEKEY PLAN
LOCATION PLAN
SCALE 1 : 250
SITE SECTION
NOT TO SCALE
SITE
LEBUHRAYA
DARUL AMAN
BALAI NOBAT BALAI BESAR SITE
ROYAL MUSEUM
PERSISIRAN SUNGAI RAJA SADA ALOR SETAR BSN BANK
SITE
STARTING DATE
DATE
SCALE
CHECKED BY
20.01.2017
06.03.2017
AS SHOWN
HOW SENG GUAN
MR. KHAIROOL
TRM'S MEMBERS
SITE SECTION
SITE PLAN
LOCATION PLAN
KEY PLAN
PROJECT TITLE
MEASURED BY
DRAWN BY
ARC 1215
METHODS OF DOCUMENTATION AND
MEASURED DRAWING ON
ROYAL MUSEUM KEDAH, LOT 82, SEKSYEN 16
ALOR STAR, KOTA SETAR, KEDAH
DRAWING TITLE NOTE
2017/ ARC1215/ RMUZKEDAH
A 01
31
DRAWING NO.
SHEET NO.
LEBURRAYADARULAMAN
PERSISIRANSUNGAIRAJA
G.L. 0
F.F.L. ±0.175M
F.F.L. ±0.07M
G.L. 0
F.F.L. 0
DP 120
DP 110
OFFICE 1
HALL
STORE
OFFICE 2
3450
UP
GATE 3
TO BOUNDARY DRAIN
TO
BOUNDARY
DRAIN
UP
(CONCRETE PAVEMENT)
GATE 2
GATE 1
UP
UP
F.F.L. ±0.225M
F.F.L. ±0.175M
F.F.L. ±0.175M
1
5
FIRST FLOOR EAVE LINE
G.L. 0
1
UP
G.L. 0
1
5
1
5
15
1 5
UP
UP
UP
UP
UP
5
1
1
5
1 5
PARKING AREA
TC BW1
CR NV
TC -
TL NV
TC BW1 / PTN
CPT AC
TC BW1 / PTN
CPT AC
F.F.L. ±0.190M
D29
D30
D31
D32
D34 D34
D18
D40
D35D30
D36
D41
D39
D37
D38
W8b
W17 W17
W17 W17
W18
W18
W18
D33
W18
W18
W19
W20
W21 W21
W20
W22W22
W22
W23
1
5
(CONCRETE PAVEMENT)
1
5
F.F.L. ±0.08M
DP 190
DP 80
DP 120
FIRST FLOOR EAVE LINE
31502650
TC -
CP NV
(CEMENT RENDER)
(CEMENT RENDER)
424256410 5900
3945 2465 9515 2170 9530 2283 18927 2450 3450
2780 3975 2760 3277 4090 4090 33904715 4815
7905159534070
39553950584020059963
31877984070
8055
406239901072840200518503990
5840
- BW1 / PTN
AC-
OUTDOOR
EXHIBITION 1
2240
4080
1
A0 A1 A B C D E F G J K L M N
1a
2
3
4
5a
5b
6
7
8
9
10
5
2a
H
AA
C - 09
AA
C - 09
BB
C - 09
BB
C - 09
EE
C - 10
EE
C - 10
DD
C - 10
DD
C - 10
CC
C - 10
CC
C - 10
1 2
3 4
1 - CEILING TYPE
2 - WALL TYPE
3 - FLOOR TYPE
4 - NATURAL VENTILATION (N/V)
AIR-CONDITIONED (A/C)
SPECIFICATION:
TC TIMBER CEILING BOARD
BW 1 240mm THK BRICK WALL
BW 2 120mm THK BRICK WALL
CPT CARPET
TF TIMBER FLOOR BOARD
NV NATURAL VENTILATION
AC AIR-CONDITIONING
CR CEMENT RENDER
TL TILE
PTN PARTITION WALL
TW TIMBER WALL
BW 3 200mm THK BRICK WALL
CP CONCRETE PAVEMENT
LEGEND
D20
FOLDING DOOR, EDGE HUNG
1070 x 1900
DOOR SCHEDULE
NO. SIZE TYPE
D1
D2
D3
D4
D5
D6
D7
D8
D9
D10
D11
D12
D13
D14
D15
D16
D17
D18
D19
D21
D22
D23
D28
D24
D25
D26
D27
D29
D30
W16
D31
D32
D33
D34
D35
D36
D37
D38
D39
D40
D41
D42
2152 x 2600
2152 x 2600
1336 x 2600
1336 x 2600
1200 x 2070
1200 x 2070
1020 x 1990
1375 x 2465
1220 x 2090
3830 x 2340
DOUBLE LEAF, SINGLE ACTION
1050 x 1566
FOLDING DOOR, EDGE HUNG
1520 x 2225
- DITTO -
FOLDING DOOR, EDGE HUNG
1220 x 2090
1120 x 1820
1250 x 2245
1150 x 1985
1180 x 2095
1100 x 1850
860 x 1700
2580 x 1760
1275 x 2340
1275 x 2340
DOUBLE LEAF, SINGLE ACTION
DOUBLE LEAF, SINGLE ACTION
1275 x 2340
FOLDING DOOR, EDGE HUNG
1060 x 2200
1820 x 2200
1336 x 2600
1365 x 2048
910 x 2200
2230 x 2200
800 x 2200
1430 x 2200
3215 x 2200
1807 x 2200
1158 x 2080
DOUBLE LEAF, SINGLE ACTION
1370 x 2120
1250 x 2116
1010 x 2095
1158 x 2080
SINGLE LEAF, DOUBLE ACTION, GLASS
DOUBLE LEAF, DOUBLE ACTION, GLASS
1020 x 1330
DOUBLE LEAF, SINGLE ACTION
- DITTO -
- DITTO -
- DITTO -
- DITTO -
- DITTO -
- DITTO -
- DITTO -
- DITTO -
- DITTO -
- DITTO -
- DITTO -
- DITTO -
- DITTO -
- DITTO -
- DITTO -
- DITTO -
- DITTO -
DOUBLE LEAF, DOUBLE ACTION, GLASS
- DITTO -
- DITTO -
- DITTO -
- DITTO -
- DITTO -
- DITTO -
- DITTO -
WINDOW SCHEDULE
W1
W2
W3
W4
W5
W6
W7
W8
W9
W10
W11
W12
W13
W14
W15
W17
W18
W19
W20
W21
W22
W23
W24
W25
1520 x 2600
980 x 1975
1010 x 1560
1130 x 1560
1040 x 1745
900 x 1345
420 x 1345
910 x 995
1050 x 1566
LOUVRE WINDOW
ARCHED WINDOW
ARCHED WINDOW
- DITTO -
1300 x 1618
960 x 1210
2150 x 1285
1300 x 1717
1035 x 1965
1260 x 1435
3110 x 2094
1300 x 1680
GLASS WINDOW
790 x 1350
DOUBLE HUNG
- DITTO -
- DITTO -
- DITTO -
DOUBLE HUNG
LOUVRE WINDOW
- DITTO -
- DITTO -
ARCHED WINDOW, GLASS
DOUBLE HUNG
1140 x 1470
960 x 1470
3600 x 2768
- DITTO -
- DITTO -
1200 x 2250
805 x 2200
- DITTO -
SINGLE LEAF, SINGLE ACTION
1200 x 2100 - DITTO -
- DITTO -
FOLDING DOOR, EDGE HUNG
- DITTO -
DOUBLE HUNG
- DITTO -
- DITTO -
920 x 1260
1260 x 1435
- DITTO -
3624 x 1700
- DITTO -
- DITTO -
- DITTO -
SHEET
NO.
NO. SIZE TYPESHEET
NO.
E - 20
E - 20
E - 20
E - 20
E - 21
E - 21
E - 22
E - 22
E - 21
E - 20
E - 25
E - 22
E - 22
E - 22
E - 22
E - 21
E - 23
E - 25
E - 25
E - 21
E - 23
E - 23
E - 22
E - 22
E - 21
E - 23
E - 21
E - 23
E - 23
E - 24
E - 24
E - 24
E - 24
E - 24
E - 24
E - 25
E - 24
E - 23
E - 25
E - 25
E - 25
E - 23
E - 26
E - 26
E - 27
E - 27
E - 26
E - 26
E - 26
E - 28
E - 27
E - 27
E - 27
E - 27
E - 27
E - 28
E - 28
E - 28
E - 28
E - 29
E - 28
E - 29
E - 28
E - 26
E - 26
E - 28
E - 29
N
SCALE 1 : 75
GROUND FLOOR PLAN
STARTING DATE
DATE
SCALE
CHECKED BY
GROUND FLOOR PLAN
PROJECT TITLE
MEASURED BY
DRAWN BY
ARC 1215
METHODS OF DOCUMENTATION AND
MEASURED DRAWING ON
ROYAL MUSEUM KEDAH, LOT 82, SEKSYEN 16
ALOR STAR, KOTA SETAR, KEDAH
DRAWING TITLE NOTE
2017/ ARC1215/ RMUZKEDAH
A 02
30
DRAWING NO.
SHEET NO.
20.01.2017
06.03.2017
1 : 75
ALLEN TAN, WONG WAN JIUAN
MR. KHAIROOL
ALLEN TAN, BRIAN KOH, LIM ZANYU, LIM ZIA HUEI
0 0.5 1 21.5 3 4 5 6 7 7.5 (M)
M 1 : 75
WEDDING
HALL
VERANDAH 1
F.F.L. ±2.5M
F.F.L. ±2.8M
F.F.L. ±2.5M
F.F.L. ±3.2M
F.F.L. ±2.9M
F.F.L. ±3.5M
F.F.L. ±2.2M
F.F.L. ±2.2M
F.F.L. ±2.0M
F.F.L. ±2.2M
ROOFEAVELINE
PRAYER
ROOM
YTM
TUNKU
ABDUL
RAHMAN
PUTRA'S
ROOM
BEDROOM-
BILIK BERADU
VERANDAH 2
ROYAL
COLLECTION
MEETING
ROOM
MUSEUM MAIN
ENTRANCE
GRAMOPHONE
SEWING MACHINE
PRAYER
ROOM
(EXHIBITION)
EXHIBITION
AREA
SULTAN'S
ENTRANCE
EXHIBITION
AREA
ROYAL
FAMILY
ROYAL REGALIA
VERANDAH 4 VERANDAH 5VERANDAH
3
DN
DN
ROOF EAVE LINE
ROOF EAVE LINE
THE LATE
SULTAN
ABDUL
HAMID HALIM
SHAH
THE LATE
SULTAN
BADHSAH
SULTAN ABDUL
HALIM
MUADZAM
SHAH
ROYAL
COLLECTION
AND
WEAPON
(CARPET)
1
5
10
1
5
10
1
5
10
1
5
1
5
10
1
5
10
15
1510
1
10
1
5
1 5 10
DN
DN
DN
DN
DN
DN
DN
TC BW1
TF AC
10
DN
DN
DN
DN
DN
F.F.L. ±2.5M
TC BW1
TF AC
TC BW1/TW
TF AC
TC BW1/TW
TF AC
TC BW1
TF NV
TC TW
TF AC
TC TW/BW2
TF AC
TC TW/BW2
TF AC
TC TW/BW2
TF AC
TC TW
TF AC
TC TW
TF AC
TC TW/BW3
TF AC
D10
D1
D2 D3D3
D4
D4
D4
D4
D5
D7 D8
D8 D8
D9
D11
D12D9
W1 W1
W1
W1
W1
W1
W1
W1
W1
W1
W1
W1
W1W1
W1
W1
W1
W1
W1
W1
W1
W1
W1
W1
W1
W1
W1
W2W2
W1
D14
D15
D16
D17
D16 D8 D8 D8
D18
D19
D20
D21
D23
D24
D22
D25
D26
D27
D28
W3 W3 W3 W4 W4
W5 W5
W8
W5
W9
W6
W6
W7
W6
W6
W10
W9
W11
W11
W12
W13W14
W15
W4
D5
D5
D5
D6
D6
D6
D13
D-13
SC01
D-13
SC02
D-14
SC03
D-15
SC05
D-16
SC08
D-17
SC09
D-17
SC10
D-14
SC04
D-18
SC12
D-18
SC11
D-16
SC07
D-15
SC06
42425
3945
6410 5900
95152465 22832170 9530 34507367 4080 7480 2450
27602780 3975 3277 4090 4090 33904715
15953
4815
7905
9790
4070
395511968
3187798
8055
4070406239908401072200539901850
5840
1 4
1
4
TC TW
TF NV
241054890
400023802265345054803435309522452645
5
3950
1
A0 A1 A B C D E F G J K L M N
1a
2
3
4
5a
5b
6
7
8
9
10
5
2a
H
9
5
W7
W5
W16
W16
AA
C - 09
AA
C - 09
BB
C - 09
BB
C - 09
EE
C - 10
EE
C - 10
DD
C - 10
DD
C - 10
CC
C - 10
CC
C - 10
D20
FOLDING DOOR, EDGE HUNG
1070 x 1900
DOOR SCHEDULE
NO. SIZE TYPE
D1
D2
D3
D4
D5
D6
D7
D8
D9
D10
D11
D12
D13
D14
D15
D16
D17
D18
D19
D21
D22
D23
D28
D24
D25
D26
D27
D29
D30
W16
D31
D32
D33
D34
D35
D36
D37
D38
D39
D40
D41
D42
2152 x 2600
2152 x 2600
1336 x 2600
1336 x 2600
1200 x 2070
1200 x 2070
1020 x 1990
1375 x 2465
1220 x 2090
3830 x 2340
DOUBLE LEAF, SINGLE ACTION
1050 x 1566
FOLDING DOOR, EDGE HUNG
1520 x 2225
- DITTO -
FOLDING DOOR, EDGE HUNG
1220 x 2090
1120 x 1820
1250 x 2245
1150 x 1985
1180 x 2095
1100 x 1850
860 x 1700
2580 x 1760
1275 x 2340
1275 x 2340
DOUBLE LEAF, SINGLE ACTION
DOUBLE LEAF, SINGLE ACTION
1275 x 2340
FOLDING DOOR, EDGE HUNG
1060 x 2200
1820 x 2200
1336 x 2600
1365 x 2048
910 x 2200
2230 x 2200
800 x 2200
1430 x 2200
3215 x 2200
1807 x 2200
1158 x 2080
DOUBLE LEAF, SINGLE ACTION
1370 x 2120
1250 x 2116
1010 x 2095
1158 x 2080
SINGLE LEAF, DOUBLE ACTION, GLASS
DOUBLE LEAF, DOUBLE ACTION, GLASS
1020 x 1330
DOUBLE LEAF, SINGLE ACTION
- DITTO -
- DITTO -
- DITTO -
- DITTO -
- DITTO -
- DITTO -
- DITTO -
- DITTO -
- DITTO -
- DITTO -
- DITTO -
- DITTO -
- DITTO -
- DITTO -
- DITTO -
- DITTO -
- DITTO -
DOUBLE LEAF, DOUBLE ACTION, GLASS
- DITTO -
- DITTO -
- DITTO -
- DITTO -
- DITTO -
- DITTO -
- DITTO -
WINDOW SCHEDULE
W1
W2
W3
W4
W5
W6
W7
W8
W9
W10
W11
W12
W13
W14
W15
W17
W18
W19
W20
W21
W22
W23
W24
W25
1520 x 2600
980 x 1975
1010 x 1560
1130 x 1560
1040 x 1745
900 x 1345
420 x 1345
910 x 995
1050 x 1566
LOUVRE WINDOW
ARCHED WINDOW
ARCHED WINDOW
- DITTO -
1300 x 1618
960 x 1210
2150 x 1285
1300 x 1717
1035 x 1965
1260 x 1435
3110 x 2094
1300 x 1680
GLASS WINDOW
790 x 1350
DOUBLE HUNG
- DITTO -
- DITTO -
- DITTO -
DOUBLE HUNG
LOUVRE WINDOW
- DITTO -
- DITTO -
ARCHED WINDOW, GLASS
DOUBLE HUNG
1140 x 1470
960 x 1470
3600 x 2768
- DITTO -
- DITTO -
1200 x 2250
805 x 2200
- DITTO -
SINGLE LEAF, SINGLE ACTION
1200 x 2100 - DITTO -
- DITTO -
FOLDING DOOR, EDGE HUNG
- DITTO -
DOUBLE HUNG
- DITTO -
- DITTO -
920 x 1260
1260 x 1435
- DITTO -
3624 x 1700
- DITTO -
- DITTO -
- DITTO -
SHEET
NO.
NO. SIZE TYPESHEET
NO.
E - 20
E - 20
E - 20
E - 20
E - 21
E - 21
E - 22
E - 22
E - 21
E - 20
E - 25
E - 22
E - 22
E - 22
E - 22
E - 21
E - 23
E - 25
E - 25
E - 21
E - 23
E - 23
E - 22
E - 22
E - 21
E - 23
E - 21
E - 23
E - 23
E - 24
E - 24
E - 24
E - 24
E - 24
E - 24
E - 25
E - 24
E - 23
E - 25
E - 25
E - 25
E - 23
E - 26
E - 26
E - 27
E - 27
E - 26
E - 26
E - 26
E - 28
E - 27
E - 27
E - 27
E - 27
E - 27
E - 28
E - 28
E - 28
E - 28
E - 29
E - 28
E - 29
E - 28
E - 26
E - 26
E - 28
E - 29
1 2
3 4
1 - CEILING TYPE
2 - WALL TYPE
3 - FLOOR TYPE
4 - NATURAL VENTILATION (N/V)
AIR-CONDITIONED (A/C)
SPECIFICATION:
TC TIMBER CEILING BOARD
BW 1 240mm THK BRICK WALL
BW 2 120mm THK BRICK WALL
CPT CARPET
TF TIMBER FLOOR BOARD
NV NATURAL VENTILATION
AC AIR-CONDITIONING
CR CEMENT RENDER
TL TILE
PTN PARTITION WALL
TW TIMBER WALL
BW 3 200mm THK BRICK WALL
CP CONCRETE PAVEMENT
LEGEND
STARTING DATE
DATE
SCALE
CHECKED BY
FIRST FLOOR PLAN
PROJECT TITLE
MEASURED BY
DRAWN BY
ARC 1215
METHODS OF DOCUMENTATION AND
MEASURED DRAWING ON
ROYAL MUSEUM KEDAH, LOT 82, SEKSYEN 16
ALOR STAR, KOTA SETAR, KEDAH
DRAWING TITLE NOTE
2017/ ARC1215/ RMUZKEDAH
A 03
31
DRAWING NO.
ISSUE SHEET NO.
20.01.2017
06.03.2017
1 : 75
WONG WAN JIUAN, RACHEAL CHEONG, LIM ZIA HUEI, CHONG CHIN PIN, HOW SENG GUAN
MR. KHAIROOL
TRM'S MEMBERS
N
SCALE 1 : 75
FIRST FLOOR PLAN
0 0.5 1 21.5 3 4 5 6 7 7.5 (M)
M 1 : 75
FALLFALL FALLFALL
FALL
FALL
FALL
FALL
FALL
FALL
FALL
FALL
FALL
FALL
FALL
FALL FALL
FALL
FALL
FALL
FALL
FALL
FALL
FALL
FALL
424256410 5900
9530 2283
39534070
14388
315040623990
25746
9515 2170 18927
3187
241054890
864534505480653022452645
FALL
FALL
9
5
1
A0 A1 A B C D E F G J K L M N
1a
2
3
4
5a
5b
6
7
8
9
10
5
2a
AA
C - 09
H
BB
C - 09
BB
C - 09
EE
C - 10
EE
C - 10
DD
C - 10
DD
C - 10
CC
C - 10
CC
C - 10
AA
C - 09
FALL
FALL
N
SCALE 1 : 75
ROOF PLAN
STARTING DATE
DATE
SCALE
CHECKED BY
ROOF PLAN
PROJECT TITLE
MEASURED BY
DRAWN BY
ARC 1215
METHODS OF DOCUMENTATION AND
MEASURED DRAWING ON
ROYAL MUSEUM KEDAH, LOT 82, SEKSYEN 16
ALOR STAR, KOTA SETAR, KEDAH
DRAWING TITLE NOTE
2017/ ARC1215/ RMUZKEDAH
A 04
31
DRAWING NO.
ISSUE SHEET NO.
20.01.2017
06.03.2017
1 : 75
WONG WAN JIUAN
MR. KHAIROOL
-
0 0.5 1 21.5 3 4 5 6 7 7.5 (M)
M 1 : 75
VERANDAHS' EAVE LINE
1
A0 A1 A B C D E F G J K L M N
1a
2
3
4
5a
5b
6
7
8
9
10
5
2a
H
424256410 5900
9530 2283
39534070
14388
315040623990
25746
9515 2170 18927
3187
24105
4000238022653450548034353095
9
5
STARTING DATE
DATE
SCALE
CHECKED BY
20.01.2017
06.03.2017
1 : 75
LIM ZANYU, WONG WAN JIUAN
MR. KHAIROOL
-
GROUND FLOOR REFLECTED CEILING PLAN
PROJECT TITLE
MEASURED BY
DRAWN BY
ARC 1215
METHODS OF DOCUMENTATION AND
MEASURED DRAWING ON
ROYAL MUSEUM KEDAH, LOT 82, SEKSYEN 16
ALOR STAR, KOTA SETAR, KEDAH
DRAWING TITLE NOTE
2017/ ARC1215/ RMUZKEDAH
A 05
31
DRAWING NO.
SHEET NO.
0 0.5 1 21.5 3 4 5 6 7 7.5 (M)
M 1 : 75
N
SCALE 1 : 75
REFLECTED CEILING PLAN
GROUND FLOOR
1
A0 A1 A B C D E F G J K L M N
1a
2
3
4
5a
5b
6
7
8
9
10
5
2a
H
424256410 5900
9530 2283
39534070
18305
315040623990
25746
9515 2170 18927
3187
241054890
400023802265345054803435309522452645
9
5
C.L. ±4.4M
C.L. ±4.6M
C.L. ±4.0M
C.L. ±4.0M
C.L. ±4.0M
C.L. ±3.5M
C.L. ±4.2M
9790
3917
LEGEND
HANGING LIGHT
CEILING LIGHT CANOPY /
ORNAMENTATION
RECESSED FLUORESCENT FIXTURE
CHANDELIER
TIMBER CEILING BOARD
BATTEN FLUORESCE
N
SCALE 1 : 75
REFLECTED CEILING PLAN
STARTING DATE
DATE
SCALE
CHECKED BY
PROJECT TITLE
MEASURED BY
DRAWN BY
ARC 1215
METHODS OF DOCUMENTATION AND
MEASURED DRAWING ON
ROYAL MUSEUM KEDAH, LOT 82, SEKSYEN 16
ALOR STAR, KOTA SETAR, KEDAH
DRAWING TITLE NOTE
2017/ ARC1215/ RMUZKEDAH
A 06
31
DRAWING NO.
SHEET NO.
FIRST FLOOR REFLECTED CEILING PLAN 1. CEILING HEIGHT LEVEL IS MEASURED FROM THE FIRST
FLOOR'S FINISHED FLOOR LEVEL
20.01.2017
06.03.2017
1 : 75
LIM ZANYU, WONG WAN JIUAN
MR. KHAIROOL
-
0 0.5 1 21.5 3 4 5 6 7 7.5 (M)
M 1 : 75
FIRST FLOOR
25004400
FIRST FLOOR LEVEL
GROUND LEVEL (G.L. 0)
28004600
FIRST FLOOR LEVEL
GROUND LEVEL (G.L. 0 )
1 1a 2 2a 3 5a 5b 6 8 10
33768
3950
3955
MUSEUM MAIN ENTRANCE
9790 20023
3990 1850 3917
3990
4062 3985 4070
WEDDING HALL PRAYER ROOM
54735
2780
9515
48154080 3975
21702450
2283
18927
471573677480
3450 6410
2465 3945
11813
2760
RUMAH PELAMINMIDDLE ROOMEXHITBITION AREA PRAYER ROOMWASH ROOM
25004400
FIRST FLOOR LEVEL
GROUND LEVEL (G.L. 0 )
32404200
FIRST FLOOR LEVEL
GROUND LEVEL (G.L. 0)
A0A1ABCDEFGHJKLMN
STARTING DATE
DATE
SCALE
CHECKED BY
20.01.2017
06.03.2017
1 : 75
RACHAEL CHEONG, LIM ZIA HUEI, TEO VI VIEN, CHONG CHIN PING, WONG WAN JIUAN
MR. KHAIROOL
TRM'S MEMBERS
SOUTHWEST ELEVATION
NORTHWEST ELEVATION
PROJECT TITLE
MEASURED BY
DRAWN BY
ARC 1215
METHODS OF DOCUMENTATION AND
MEASURED DRAWING ON
ROYAL MUSEUM KEDAH, LOT 82, SEKSYEN 16
ALOR STAR, KOTA SETAR, KEDAH
DRAWING TITLE NOTE
2017/ ARC1215/ RMUZKEDAH
B 07
31
DRAWING NO.
SHEET NO.
0 0.5 1 21.5 3 4 5 6 7 7.5 (M)
M 1 : 75
SCALE 1 : 75
NORTHWEST ELEVATION
SCALE 1 : 75
SOUTHWEST ELEVATION
54735
27602780
RUMAH PELAMIN
9515
MIDDLE ROOM EXHITBITION AREA
4815 40803975
2170
24502283
18927
4715 7367 7480 3450
PRAYER ROOM
6410
24653945
11813
WASH ROOM
28004600
FIRST FLOOR LEVEL
GROUND LEVEL (G.L. 0)
32404200
FIRST FLOOR LEVEL
GROUND LEVEL (G.L. 0 )
CA EB D F G HA1A0 J MLK N
32004968
ROOF LEVEL
FIRST FLOOR LEVEL
GROUND LEVEL GROUND LEVEL
FIRST FLOOR LEVEL
ROOF LEVEL
32004968
28981
8636
3991
SULTAN'S ENTRANCEWASH AREA
7954
3450548034357980
EXHIBITION AREAVERANDAH 3
23802265
30954885
11a10
STARTING DATE
DATE
SCALE
CHECKED BY
20.01.2017
06.03.2017
1 : 75
RACHAEL CHEONG, LIM ZIA HUEI, TEO VI VIEN, CHONG CHIN PING, WONG WAN JIUAN
MR. KHAIROOL
TRM'S MEMEBERS
SOUTHEAST ELEVATION
NORTHEAST ELEVATION
PROJECT TITLE
MEASURED BY
DRAWN BY
ARC 1215
METHODS OF DOCUMENTATION AND
MEASURED DRAWING ON
ROYAL MUSEUM KEDAH, LOT 82, SEKSYEN 16
ALOR STAR, KOTA SETAR, KEDAH
DRAWING TITLE NOTE
2017/ ARC1215/ RMUZKEDAH
B 08
31
DRAWING NO.
SHEET NO.
0 0.5 1 21.5 3 4 5 6 7 7.5 (M)
M 1 : 75
SCALE 1 : 75
SOUTHEAST ELEVATION
SCALE 1 : 75
NORTHEAST ELEVATION
1a
3917
MUSEUM MAIN ENTRANCE
31 10
33768
62 85a 5b
3955
3990
20023
3990
9790
2a
40623950
WEDDING HALL
2790
1850 3985
CEILING LEVEL (C.L. ±4.6M)
4070
4585
GROUND LEVEL (G.L. 0)
BEDROOM - BILIK BERADU
3445
24904385
CEILING LEVEL (C.L. ±4.4M)
GROUND LEVEL (G.L. 0)
FIRST FLOOR LEVEL
(F.F.L. ±2.5M)
FIRST FLOOR LEVEL
(F.F.L. ±2.8M)
4580
CEILING LEVEL (C.L. ±4.6M)
2820
3240
GROUND LEVEL (F.F.L. 0)
FIRST FLOOR LEVEL (F.F.L. ±2.8M)
CEILING LEVEL (C.L. ±4.2M)
GROUND LEVEL (G.L. 0 )
FIRST FLOOR LEVEL (F.F.L. ±3.2M)
4200
A B C D E F G J K L M NH
48325
9515
2780 3975 2760
4715 4815 2283
7367 4080 7480
2170 18927 2450 3450
RUMAH PELAMIN MIDDLE ROOM EXHITBITION AREAPRAYER ROOM WASH ROOM
A1A0
STARTING DATE
DATE
SCALE
CHECKED BY
SECTION B - B
SECTION A - A
PROJECT TITLE
MEASURED BY
DRAWN BY
ARC 1215
METHODS OF DOCUMENTATION AND
MEASURED DRAWING ON
ROYAL MUSEUM KEDAH, LOT 82, SEKSYEN 16
ALOR STAR, KOTA SETAR, KEDAH
DRAWING TITLE NOTE
2017/ ARC1215/ RMUZKEDAH
C 09
31
DRAWING NO.
ISSUE SHEET NO.
20.01.2017
06.03.2017
1 : 75
LIM ZIA HUEI, CHONG CHIN PIN, HOW SENG GUAN
MR. KHAIROOL
TRM'S MEMBERS
SECTION B - B
SCALE 1 : 75
0 0.5 1 21.5 3 4 5 6 7 7.5 (M)
M 1 : 75
SECTION A - A
SCALE 1 : 75
33004200
CEILING LEVEL (C.L. ±4.6M)
FIRST FLOOR LEVEL (F.F.L. ±2.8M)
GROUND LEVEL (F.F.L. 0)
37213
29003500
CEILING LEVEL (C.L. ±4.2M)
FIRST FLOOR LEVEL (F.F.L. ±2.9M)
GROUND LEVEL (G.L. 0 )
3 110 28 5a5b
4600152702318 4217 7905
SULTAN'S ENTRANCEEXHIBITION AREA
2910 3530 5480 33502903
25003975
GROUND LEVEL (G.L. 0)
2500
CEILING LEVEL (C.L. ±4.0M)
3975
GROUND LEVEL (G.L. 0)
CEILING LEVEL (C.L. ±4.0M)
1a
3917
MUSEUM MAIN ENTRANCE
3 10
29813
62 85a 5b
3990
20023
3990
9790
2a
40623950
WEDDING HALL
1850 3985 4070
BEDROOM - BILIK BERADU
3445
FIRST FLOOR LEVEL
(F.F.L. ±2.5M)
FIRST FLOOR LEVEL
(F.F.L. ±2.5M)
STARTING DATE
DATE
SCALE
CHECKED BY
SECTION D - D
SECTION C - C
PROJECT TITLE
MEASURED BY
DRAWN BY
ARC 1215
METHODS OF DOCUMENTATION AND
MEASURED DRAWING ON
ROYAL MUSEUM KEDAH, LOT 82, SEKSYEN 16
ALOR STAR, KOTA SETAR, KEDAH
DRAWING TITLE NOTE
2017/ ARC1215/ RMUZKEDAH
C 10
31
DRAWING NO.
ISSUE SHEET NO.
20.01.2017
06.03.2017
1 : 75
LIM ZIA HUEI, CHONG CHIN PIN, HOW SENG GUAN
MR. KHAIROOL
TRM'S MEMBERS
SECTION D - D
SCALE 1 : 75
0 0.5 1 21.5 3 4 5 6 7 7.5 (M)
M 1 : 75
SECTION C- C
SCALE 1 : 75
FIRST FLOOR LEVEL (F.F.L. ±2.0M)
GROUND LEVEL (G.L. 0 )
19852325
CEILING LEVEL (C.L. ±4.2M)
11704227
CEILING LEVEL (C.L. ±4.6M)
FIRST FLOOR LEVEL (F.F.L. ±1.2M)
GROUND LEVEL (F.F.L. 0)
A B C D E F G J K L M NH
48325
9515
2780 3975 2760 4715 4815 2283 7367 4080 7480
2170 2283 18927 2450 3450
RUMAH PELAMIN MIDDLE ROOM EXHITBITION AREAPRAYER ROOM WASH ROOM
A1A0
STARTING DATE
DATE
SCALE
CHECKED BY
SECTION E - E
PROJECT TITLE
MEASURED BY
DRAWN BY
ARC 1215
METHODS OF DOCUMENTATION AND
MEASURED DRAWING ON
ROYAL MUSEUM KEDAH, LOT 82, SEKSYEN 16
ALOR STAR, KOTA SETAR, KEDAH
DRAWING TITLE NOTE
2017/ ARC1215/ RMUZKEDAH
C 11
31
DRAWING NO.
ISSUE SHEET NO.
20.01.2017
06.03.2017
1 : 75
LIM ZIA HUEI, CHONG CHIN PIN, HOW SENG GUAN
MR. KHAIROOL
TRM'S MEMBERS
SECTION E - E
SCALE 1 : 75
0 0.5 1 21.5 3 4 5 6 7 7.5 (M)
M 1 : 75
54735
A0A1ABCDEFGHJKLMN
2780
9515
48154080 3975
21702450
2283
18927
471573677480
3450 6410
2465 3945
11813
2760 RUMAH PELAMINMIDDLE ROOMEXHITBITION AREA PRAYER ROOMWASH ROOM
25004400
CEILING LEVEL (C.L. ±4.4M)
FIRST FLOOR LEVEL
(F.F.L. ±2.5M)
GROUND LEVEL (G.L. 0 )
32404200
CEILING LEVEL (C.L. ±4.2M)
FIRST FLOOR LEVEL
(F.F.L. ±3.2M)
GROUND LEVEL (G.L. 0)
1837374
2415416818
3813
5275
808425 1692 808 425
3597
5901488593
629
173154
3629
3852105
3629
6293852105
3597
590 1490 590
GATE 01 - 03
NORTHWEST ELEVATION (STREET VIEW)
CLIENT PROJECT TITLE
ARC 1215
METHODS OF DOCUMENTATION AND
MEASURED DRAWING ON
ROYAL MUSEUM KEDAH, LOT 82, SEKSYEN 16
ALOR STAR, KOTA SETAR, KEDAH
DRAWING TITLE NOTE
01
FRONT ELEVATION
SCALE 1 : 25
02
REAR ELEVATION
SCALE 1 : 25
01
FRONT ELEVATION
SCALE 1 : 25
01
FRONT ELEVATION
SCALE 1 : 25
02
REAR ELEVATION
SCALE 1 : 25
02
REAR ELEVATION
SCALE 1 : 25
G01
GATE 01
G02
GATE 02 G03
GATE 03
NORTHWEST ELEVATION (STREET VIEW)
SCALE 1 : 75
DRAWING NO.
STARTING DATE
DATE
SCALE
CHECKED BY
20.01.2017
03.03.2017
AS SHOWN
TRM'S MEMBERS
MR. KHAIROOL
TRM'S MEMBERSMEASURED BY
DRAWN BY
2017/ ARC1215/ RMUZKEDAH
D 12
31
SHEET NO.ISSUE
2630
475 1535 485
3130
3502648
2383
2125
2700
1250 1250
100200100
2210
2430
2580
4120
20002000
1075985
2510
2210
2130
402
3057
2755
2130
475 1535 485
2630
GATE 04 - 07
CLIENT PROJECT TITLE
ARC 1215
METHODS OF DOCUMENTATION AND
MEASURED DRAWING ON
ROYAL MUSEUM KEDAH, LOT 82, SEKSYEN 16
ALOR STAR, KOTA SETAR, KEDAH
DRAWING TITLE NOTE
SCALE 1 : 25
G05
GATE 05
02
REAR ELEVATION
SCALE 1 : 25
01
FRONT ELEVATION
SCALE 1 : 25
01
FRONT ELEVATION
SCALE 1 : 25
01
FRONT ELEVATION
SCALE 1 : 25
02
REAR ELEVATION
SCALE 1 : 25
G04
GATE 04
G05
GATE 05
G06
GATE 06
G07
GATE 07
02
REAR ELEVATION
SCALE 1 : 25
01
FRONT ELEVATION
SCALE 1 : 25
DRAWING NO.
STARTING DATE
DATE
SCALE
CHECKED BY
20.01.2017
03.03.2017
AS SHOWN
TRM'S MEMBERS
MR. KHAIROOL
TRM'S MEMBERSMEASURED BY
DRAWN BY
2017/ ARC1215/ RMUZKEDAH
D 13
31
SHEET NO.ISSUE
1
2
3
4
5
6
7
8
9
10
3067
300
3199639
1888
639
2936
1915
200
1888
2936
1888
4716
5782
1876570 682 682
682
1
2
3
4
5
6
7
8
9
10
3295290
3717
2523
656 656
3088
2410
1432
3729
2565 582582
3088
1432
2940
682
01
PLAN
02
SIDE ELEVATION
03
FRONT ELEVATION
04
SECTION
05
SECTION DETAIL
06
ISONOMETRIC
01
PLAN
02
SIDE ELEVATION
03
FRONT ELEVATION
04
SECTION
05
SECTION DETAIL
06
ISONOMETRIC
SCALE 1 : 25
SC02
STAIRCASE 02
SCALE 1 : 25
SC01
STAIRCASE 01
SCALE 1:25
SCALE 1:10
SCALE 1:10
SCALE 1:25
SCALE 1:25
SCALE 1:25 SCALE 1:25
SCALE 1:25 SCALE 1:25
SCALE 1:25
STARTING DATE
DATE
SCALE
CHECKED BY
20.01.2017
06.03.2017
AS SHOWN
ALLEN
MR. KHAIROOL
TRM'S MEMBERS
STAIRCASE 02
STAIRCASE 01
PROJECT TITLE
MEASURED BY
DRAWN BY
ARC 1215
METHODS OF DOCUMENTATION AND
MEASURED DRAWING ON
ROYAL MUSEUM KEDAH, LOT 82, SEKSYEN 16
ALOR STAR, KOTA SETAR, KEDAH
DRAWING TITLE NOTE
2017/ ARC1215/ RMUZKEDAH
D 14
31
DRAWING NO.
SHEET NO.
20 x 200 FLOOR BOARD
180 x 180 H.W. BEAM
190 x 130 H.W. BEAM
3
4
5
6
7
8
9
10
11
1
2
3490
2870
660
260
1930
1520
100 100
2760
2050
230
1930
124070 70
3364
1240
950
200
3440
660 50
2770
1
2
3
4
5
6
7
8
9
10
11
12
13
14
3746
210
2680
1570
555
555
3909
2910
210
3152
2318
702
702
3884
1550
3710
1399
05
SECTION DETAIL
06
ISONOMETRIC
05
SECTION DETAIL
06
ISONOMETRIC
01
PLAN
02
SIDE ELEVATION
03
FRONT ELEVATION
04
SECTION
01
PLAN
02
SIDE ELEVATION
03
FRONT ELEVATION
04
SECTION
SCALE 1 : 25
SC04
STAIRCASE 04
SCALE 1 : 25
SC03
STAIRCASE 03
SCALE 1:25 SCALE 1:25
SCALE 1:25 SCALE 1:25
SCALE 1:25 SCALE 1:25
SCALE 1:25SCALE 1:25 SCALE 1:5
SCALE 1:10
STARTING DATE
DATE
SCALE
CHECKED BY
20.01.2017
06.03.2017
AS SHOWN
ALLEN
MR. KHAIROOL
TRM'S MEMBERS
STAIRCASE DETAILS 1
PROJECT TITLE
MEASURED BY
DRAWN BY
ARC 1215
METHODS OF DOCUMENTATION AND
MEASURED DRAWING ON
ROYAL MUSEUM KEDAH, LOT 82, SEKSYEN 16
ALOR STAR, KOTA SETAR, KEDAH
DRAWING TITLE NOTE
2017/ ARC1215/ RMUZKEDAH
D 15
31
DRAWING NO.
SHEET NO.
20 x 200 FLOOR BOARD
180 x 180 H.W. BEAM
190 x 130 H.W. BEAM
1
2
3
4
5
6
7
8
9
10
11
12
13
14
15
16
17
4913
1225
3735
235
620
1719
100095
2940
1140250
1625
98095
1291
160
5160
27595
38161080150
620
1
2
3
4
5
6
7
8
9
10
11
12
3713
1050
3296
1056
130
350
1530
1220
95
1050
1752
1220
95
95
2940
1056350130
240
2828
95
95
2840
3820
04
SECTION DETAIL
05
ISONOMETRIC
04
SECTION DETAIL
05
ISONOMETRIC
01
PLAN
03
SIDE ELEVATION
02
FRONT ELEVATION
01
PLAN
03
SIDE ELEVATION
02
FRONT ELEVATION
SCALE 1 : 25
SC05
STAIRCASE 05
SCALE 1 : 25
SC06
STAIRCASE 06
SCALE 1:25 SCALE 1:25 SCALE 1:25
SCALE 1:25 SCALE 1:25 SCALE 1:25
SCALE 1:5
SCALE 1:5
20 x 200 FLOOR BOARD
180 x 180 H.W. BEAM
190 x 130 H.W. BEAM
STARTING DATE
DATE
SCALE
CHECKED BY
20.01.2017
06.03.2017
AS SHOWN
ALLEN
MR. KHAIROOL
TRM'S MEMBERS
STAIRCASE DETAILS 1
PROJECT TITLE
MEASURED BY
DRAWN BY
ARC 1215
METHODS OF DOCUMENTATION AND
MEASURED DRAWING ON
ROYAL MUSEUM KEDAH, LOT 82, SEKSYEN 16
ALOR STAR, KOTA SETAR, KEDAH
DRAWING TITLE NOTE
2017/ ARC1215/ RMUZKEDAH
D 16
31
DRAWING NO.
SHEET NO.
20 x 200 FLOOR BOARD
180 x 180 H.W. BEAM
190 x 130 H.W. BEAM
1
2
3
4
5
6
1675
1400
200
2310
1220
80
1380
150180
2310
1220
170170
2212
150180
1768
540
1350
240
80
1
2
3
4
5
6
7
8
9
10
3388
2680
744
2874
280
2330
1560
110
2245
1991118190
2947
2201100190
3340
770 300
2330
1440 100110
110
05
SECTION DETAIL
06
ISONOMETRIC
05
SECTION DETAIL
06
ISONOMETRIC
01
PLAN
02
SIDE ELEVATION
03
FRONT ELEVATION
04
SECTION
01
PLAN
02
SIDE ELEVATION
03
FRONT ELEVATION
04
SECTION
SCALE 1 : 25
SC08
STAIRCASE 08
SCALE 1 : 25
SC07
STAIRCASE 07
SCALE 1:25 SCALE 1:25
SCALE 1:25SCALE 1:25
SCALE 1:25 SCALE 1:25
SCALE 1:25SCALE 1:25 SCALE 1:5
SCALE 1:5
20 x 200 FLOOR BOARD
180 x 180 H.W. BEAM
190 x 130 H.W. BEAM
20 x 200 FLOOR BOARD
180 x 180 H.W. BEAM
190 x 130 H.W. BEAM
STARTING DATE
DATE
SCALE
CHECKED BY
20.01.2017
06.03.2017
AS SHOWN
ALLEN
MR. KHAIROOL
TRM'S MEMBERS
STAIRCASE DETAILS 1
PROJECT TITLE
MEASURED BY
DRAWN BY
ARC 1215
METHODS OF DOCUMENTATION AND
MEASURED DRAWING ON
ROYAL MUSEUM KEDAH, LOT 82, SEKSYEN 16
ALOR STAR, KOTA SETAR, KEDAH
DRAWING TITLE NOTE
2017/ ARC1215/ RMUZKEDAH
D 17
31
DRAWING NO.
SHEET NO.
1
2
3
4
5
6
7
8
9
10
11
12
13
3376
2993
570240
1530
1220
95 95
3174
1276
220
3376
570
2971
3268
2265220
1056174
1530
1220
95 95
1
2
3
4
5
6
7
8
9
10
11
12
2505
2275
210
1365
1125 120120
2515
1764
265645
2505
2275
195
1365
1125 120120
05
SECTION DETAIL
06
ISONOMETRIC
05
SECTION DETAIL
06
ISONOMETRIC
01
PLAN
02
SIDE ELEVATION
03
FRONT ELEVATION
04
SECTION
01
PLAN
02
SIDE ELEVATION
03
FRONT ELEVATION
04
SECTION
SCALE 1 : 25
SC09
STAIRCASE 09
SCALE 1 : 25
SC10
STAIRCASE 10
SCALE 1:25
SCALE 1:25 SCALE 1:25
SCALE 1:25
SCALE 1:25SCALE 1:25
SCALE 1:25 SCALE 1:25
SCALE 1:5
SCALE 1:5
STARTING DATE
DATE
SCALE
CHECKED BY
20.01.2017
06.03.2017
AS SHOWN
ALLEN
MR. KHAIROOL
TRM'S MEMBERS
STAIRCASE DETAILS 1
PROJECT TITLE
MEASURED BY
DRAWN BY
ARC 1215
METHODS OF DOCUMENTATION AND
MEASURED DRAWING ON
ROYAL MUSEUM KEDAH, LOT 82, SEKSYEN 16
ALOR STAR, KOTA SETAR, KEDAH
DRAWING TITLE NOTE
2017/ ARC1215/ RMUZKEDAH
D 18
31
DRAWING NO.
SHEET NO.
20 x 200 FLOOR BOARD
180 x 180 H.W. BEAM
190 x 130 H.W. BEAM
20 x 200 FLOOR BOARD
180 x 180 H.W. BEAM
190 x 130 H.W. BEAM
1
2
3
4
225
1215
100
1500
185
840
1155
100
1970
1500
185
991
100 246
1091
1
2
3
4
5
990
166
1150
100
2067
1300
196
1015
100 191 70
1300
196
1090
100
05
SECTION DETAIL
06
ISONOMETRIC
05
SECTION DETAIL
06
ISONOMETRIC
01
PLAN
02
SIDE ELEVATION
03
FRONT ELEVATION
04
SECTION
01
PLAN
02
SIDE ELEVATION
03
FRONT ELEVATION
04
SECTION
SCALE 1 : 25
SC11
STAIRCASE 11
SCALE 1 : 25
SC12
STAIRCASE 12
SCALE 1:25 SCALE 1:25
SCALE 1:25SCALE 1:25
SCALE 1:25 SCALE 1:25
SCALE 1:25SCALE 1:25
SCALE 1:5
SCALE 1:5
20 x 200 FLOOR BOARD
180 x 180 H.W. BEAM
190 x 130 H.W. BEAM
20 x 200 FLOOR BOARD
180 x 180 H.W. BEAM
190 x 130 H.W. BEAM
20 x 200 FLOOR BOARD
180 x 180 H.W. BEAM
190 x 130 H.W. BEAM
STARTING DATE
DATE
SCALE
CHECKED BY
20.01.2017
06.03.2017
AS SHOWN
ALLEN
MR. KHAIROOL
TRM'S MEMBERS
STAIRCASE DETAILS 1
PROJECT TITLE
MEASURED BY
DRAWN BY
ARC 1215
METHODS OF DOCUMENTATION AND
MEASURED DRAWING ON
ROYAL MUSEUM KEDAH, LOT 82, SEKSYEN 16
ALOR STAR, KOTA SETAR, KEDAH
DRAWING TITLE NOTE
2017/ ARC1215/ RMUZKEDAH
D 19
31
DRAWING NO.
SHEET NO.
20 x 200 FLOOR BOARD
180 x 180 H.W. BEAM
190 x 130 H.W. BEAM
465
795
795
500
700
700
465
746
746
200
258
620
2360
200
620
500
700
2670
465
746
21302490
465
795
2017/ ARC1215/ RMUZKEDAH
D 20
31
01
PLAN
SCALE 1: 25
C01
COLUMN 01
C02
COLUMN 02
C03
COLUMN 03
C04
COLUMN 04
01
ORNAMENTATION 01
02
ORNAMENTATION 02
03
ORNAMENTATION 03
04
ORNAMENTATION 04
05
ORNAMENTATION 07
05
NOT TO SCALE
NOT TO SCALE NOT TO SCALE NOT TO SCALE NOT TO SCALE
STARTING DATE
DATE
SCALE
CHECKED BY
20.01.2017
06.03.2017
AS SHOWN
PE ZHI YONG
MR. KHAIROOL
TRM'S MEMBERS
ORNAMENTATION OF DOORS 20 & 23
ORNAMENTATION OF CELING LIGHT CANOPIES
COLUMN 01 - 04
PROJECT TITLE
MEASURED BY
DRAWN BY
ARC 1215
METHODS OF DOCUMENTATION AND
MEASURED DRAWING ON
ROYAL MUSEUM KEDAH, LOT 82, SEKSYEN 16
ALOR STAR, KOTA SETAR, KEDAH
DRAWING TITLE NOTE DRAWING NO.
SHEET NO.
06
ORNAMENTATION 05
07
ORNAMENTATION 06
07
06
NOT TO SCALE NOT TO SCALE
L01
ORNAMENTATION OF CELING LIGHT CANOPIES
D20
DOOR 20
D23
DOOR 23
SCALE 1 : 25
SCALE 1 : 25
02
ELEVATION
SCALE 1: 25 03
ISONOMETRIC
SCALE 1: 25
01
PLAN
SCALE 1: 25 02
ELEVATION
SCALE 1: 25 03
ISONOMETRIC
SCALE 1: 25
01
PLAN
SCALE 1: 25 02
ELEVATION
SCALE 1: 25 03
ISONOMETRIC
SCALE 1: 25
01
PLAN
SCALE 1: 25 02
ELEVATION
SCALE 1: 25 03
ISONOMETRIC
SCALE 1: 25
2152
1832
400
240
100
1592
15301560102010
10401010
2152
1832
399 390
2600
1750
399390
137
198
375
600970
408 408 408408
280 280 280280
1832
2152
1832
400
240
100
1592
2152
1832
399 390
2600
1750
399390
198
375
600637300
408 408 408408
280 280 280280
1832
400
240
100
1336
1016
776
1336
1016
254 254 254
2600
1750
198
375
5181050
403 413
280 280
1016
400
240
100
1336
1016
776
1336
1016
254
2600
1725
254
198
375
573637
254
300
403 413
280 280
1016
100
3830
3570
585 600 600 600 600 585
3830
2340
1180740
585 600
3570
600 600 600 585
2125
3830
600585
455 455
600
455
600
455
600
455
585
455
DIMENSION REFER TO DIAGRAM
QTY
MATERIAL
DOOR TYPE
D1
DESCRIPTION
DOOR - TIMBER, GREEN PAINT
FRAME - TIMBER, WHITE PAINT
DIMENSION REFER TO DIAGRAM
QTY
MATERIAL
DOOR TYPE
D2
DESCRIPTION
DIMENSION REFER TO DIAGRAM
QTY
MATERIAL
DOOR TYPE
D3
DESCRIPTION
DIMENSION REFER TO DIAGRAM
QTY
MATERIAL
DOOR TYPE
D4
DESCRIPTION
DOOR - TIMBER, WHITE PAINT
FRAME - TIMBER, WHITE PAINT
DIMENSION REFER TO DIAGRAM
QTY
MATERIAL
DOOR TYPE
D10
DESCRIPTION
DOOR - TIMBER, WHITE PAINT
FRAME - TIMBER, WHITE PAINT
1
FOLDING DOOR, EDGE HUNG
LOCATED AT FIRST FLOOR, MUSEUM MAIN ENTRANCE (1)
DOOR - TIMBER, WHITE PAINT
FRAME - TIMBER, WHITE PAINT
1
DOUBLE LEAF, SINGLE ACTION
DOOR - TIMBER, WHITE PAINT
FRAME - TIMBER, WHITE PAINT
2
SCALE 1 : 25
PLAN
01
SCALE 1 : 25
ISOMETRIC
03
LOCATED AT FIRST FLOOR, EXHIBITION AREA (11)
1
DOUBLE LEAF, SINGLE ACTION
LOCATED AT FIRST FLOOR, WEDDING HALL (2)
4
LOCATED AT FIRST FLOOR, MUSEUM MAIN ENTRANCE (1)
FOLDING DOOR, EDGE HUNG
LOCATED AT FIRST FLOOR, MUSEUM MAIN ENTRANCE (1)
FOLDING DOOR, EDGE HUNG
SCALE 1 : 25
PLAN
01
SCALE 1 : 25
ISOMETRIC
03
SCALE 1 : 25
ELEVATION (FRONT & BACK)
02
SCALE 1 : 25
PLAN
01
SCALE 1 : 25
ISOMETRIC
03
SCALE 1 : 25
ELEVATION (FRONT & BACK)
02SCALE 1 : 25
ELEVATION (FRONT & BACK)
02
STARTING DATE
DATE
SCALE
CHECKED BY
PROJECT TITLE
MEASURED BY
DRAWN BY
ARC 1215
METHODS OF DOCUMENTATION AND
MEASURED DRAWING ON
ROYAL MUSEUM KEDAH, LOT 82, SEKSYEN 16
ALOR STAR, KOTA SETAR, KEDAH
DRAWING TITLE NOTE DRAWING NO.
ISSUE SHEET NO.
DOOR DETAILS 1
2017/ ARC1215/ RMUZKEDAH
E 21
31
20.01.2017
06.03.2017
1 : 25
LIM SHEN, TRM'S MEMBER
MR. KHAIROOL
TRM'S MEMBER
SCALE 1 : 5
SCALE 1 : 25
PLAN
01
SCALE 1 : 25
ISOMETRIC
03
SCALE 1 : 25
PLAN
01
SCALE 1 : 25
ISOMETRIC
03
SCALE 1 : 25
ELEVATION (FRONT & BACK)
02SCALE 1 : 25
ELEVATION (FRONT & BACK)
02
1200
480 500
9801200
980
100
1990
360360880
1000
490 510
370 370
2100
1250
1925
410480650
500 490
9901250
990
100
1010
510 500
340 330
2245
720
2070
960
1200
1200
960
370620
100
1950
490 500
375 375
990
475 485
1220
1994
380380890
524 504
1220
1028
100
1060
540 520
375 375
1028
2090
1200
2070
720370620
9601200
100
960
1950
475 485
990
490 500
375 375
1336
1016
400
240
100
930
1336
1016
302
2600
1870
302
300
472
825330
302
410
475
335
485
335
1016
1760
605590
575 585 585 575
2580
140
1670
585 585
430
585 585
430 430 430
2580
2320
2580
100
575 585 585 575
2320
DIMENSION REFER TO DIAGRAM
QTY
MATERIAL
DOOR TYPE
D20
DESCRIPTION
DOOR - TIMBER, GREEN PAINT
FRAME - TIMBER, WHITE PAINT
DIMENSION REFER TO DIAGRAM
QTY
MATERIAL
DOOR TYPE
D27
DESCRIPTION
DIMENSION REFER TO DIAGRAM
QTY
MATERIAL
DOOR TYPE
D5
DESCRIPTION
DIMENSION REFER TO DIAGRAM
QTY
MATERIAL
DOOR TYPE
D6
DESCRIPTION
DIMENSION REFER TO DIAGRAM
QTY
MATERIAL
DOOR TYPE
D9
DESCRIPTION
DOOR - TIMBER, WHITE PAINT
FRAME - TIMBER, WHITE PAINT
DIMENSION REFER TO DIAGRAM
QTY
MATERIAL
DOOR TYPE
D16
DESCRIPTION
DOOR - TIMBER, GREEN PAINT
FRAME - TIMBER, WHITE PAINT
DIMENSION REFER TO DIAGRAM
QTY
MATERIAL
DOOR TYPE
D25
DESCRIPTION
DOOR - TIMBER, WHITE PAINT
FRAME - TIMBER, WHITE PAINT
1
FOLDING DOOR, EDGE HUNG
LOCATED AT FIRST FLOOR, ROYAL REGALIA (17)
DOUBLE LEAF, SINGLE ACTION
DOUBLE LEAF, SINGLE ACTION
DOOR - TIMBER, WHITE PAINT
FRAME - TIMBER, WHITE PAINT
LOCATED AT FIRST FLOOR, YTM TUNKU ABDUL RAHMAN PUTRA'S ROOM (4)
DOOR - TIMBER, GREEN PAINT
FRAME - TIMBER, WHITE PAINT
LOCATED AT FIRST FLOOR, ROYAL COLLECTION (7)
4
1
DOUBLE LEAF, SINGLE ACTION
DOOR - TIMBER, WHITE PAINT
FRAME - TIMBER, WHITE PAINT
3
SCALE 1 : 25
PLAN
01
SCALE 1 : 25
ISOMETRIC
03
DOUBLE LEAF, SINGLE ACTION
LOCATED AT FIRST FLOOR, EXHIBITION AREA (11)
1
DOUBLE LEAF, SINGLE ACTION
LOCATED AT FIRST FLOOR, ROYAL COLLECTION AND WEAPON (16)
1
DOUBLE LEAF, SINGLE ACTION
LOCATED AT FIRST FLOOR, EXHIBITION AREA (11)
2
SCALE 1 : 25
PLAN
01 SCALE 1 : 25
ELEVATION (FRONT & BACK)
02
SCALE 1 : 25
ISOMETRIC
03
SCALE 1 : 25
ELEVATION (FRONT & BACK)
02
LOCATED AT FIRST FLOOR, ROYAL COLLECTION (7)
STARTING DATE
DATE
SCALE
CHECKED BY
PROJECT TITLE
MEASURED BY
DRAWN BY
ARC 1215
METHODS OF DOCUMENTATION AND
MEASURED DRAWING ON
ROYAL MUSEUM KEDAH, LOT 82, SEKSYEN 16
ALOR STAR, KOTA SETAR, KEDAH
DRAWING TITLE NOTE DRAWING NO.
ISSUE SHEET NO.
DOOR DETAILS 2
2017/ ARC1215/ RMUZKEDAH
E 22
31
20.01.2017
06.03.2017
1 : 25
LIM SHEN, TRM'S MEMBER
MR. KHAIROOL
TRM'S MEMBER
SCALE 1 : 25
PLAN
01
SCALE 1 : 25
ISOMETRIC
03
SCALE 1 : 25
PLAN
01
SCALE 1 : 25
ISOMETRIC
03
SCALE 1 : 25
PLAN
01
SCALE 1 : 25
ISOMETRIC
03
SCALE 1 : 25
PLAN
01
SCALE 1 : 25
ISOMETRIC
03
SCALE 1 : 25
PLAN
01
SCALE 1 : 25
ISOMETRIC
03
SCALE 1 : 25
ELEVATION (FRONT & BACK)
02 SCALE 1 : 25
ELEVATION (FRONT & BACK)
02 SCALE 1 : 25
ELEVATION (FRONT & BACK)
02
SCALE 1 : 25
ELEVATION (FRONT & BACK)
02 SCALE 1 : 25
ELEVATION (FRONT & BACK)
02
1020
1918
356680614
433 423
1020
100
856
445
880
435
295 295
1990
856
1375
2465
636504660
593 583
11761375
100
1176
1206
608 598
420 420
1220
100
1220
1994
570620550
524 504
1028
1028
1060
540 520
375 375
2228
100
1120
1120
1760
410510480
510 490
1000
980
980
500 480
340 340
1820
100
805
715
805
715
565
2030
500600500
2200
FIRST FLOOR LEVEL
(F.F.L. ±3.280M)
FIRST FLOOR LEVEL
(F.F.L. ±3.280M)
1200
960
100
620
2105
475 485
960
1200
455650
990
490 500
335 335
2250
FIRST FLOOR LEVEL
(F.F.L. ±3.2M)
FIRST FLOOR LEVEL
(F.F.L. ±3.2M)
100
1275
1275
2075
585585585
505 510
1015
1035
1035
515 520
370 370
2340
585585585
1015
100
1275
1035
1275
505 510
2075
370 370
1035
515 520
2340
DIMENSION REFER TO DIAGRAM
QTY
MATERIAL
DOOR TYPE
D7
DESCRIPTION
DOOR - TIMBER, WHITE PAINT
FRAME - TIMBER, WHITE PAINT
DIMENSION REFER TO DIAGRAM
QTY
MATERIAL
DOOR TYPE
D8
DESCRIPTION
DOOR - TIMBER, WHITE PAINT
FRAME - TIMBER, WHITE PAINT
DIMENSION REFER TO DIAGRAM
QTY
MATERIAL
DOOR TYPE
D12
DESCRIPTION
DIMENSION REFER TO DIAGRAM
QTY
MATERIAL
DOOR TYPE
D13
DESCRIPTION
DIMENSION REFER TO DIAGRAM
QTY
MATERIAL
DOOR TYPE
D14
DESCRIPTION
DIMENSION REFER TO DIAGRAM
QTY
MATERIAL
DOOR TYPE
D15
DESCRIPTION
DOOR - TIMBER, BROWN PAINT
FRAME - TIMBER, BROWN PAINT
DIMENSION REFER TO DIAGRAM
QTY
MATERIAL
DOOR TYPE
D23
DESCRIPTION
DOOR - TIMBER, GREEN PAINT
FRAME - TIMBER, WHITE PAINT
DIMENSION REFER TO DIAGRAM
QTY
MATERIAL
DOOR TYPE
D24
DESCRIPTION
DOOR - TIMBER, GREEN PAINT
FRAME - TIMBER, WHITE PAINT
1
DOUBLE LEAF, SINGLE ACTION
LOCATED AT FIRST FLOOR, EXHIBITION AREA (11)
DOUBLE LEAF, SINGLE ACTION
LOCATED AT FIRST FLOOR, EXHIBITION AREA (11)
DOUBLE LEAF, SINGLE ACTION
DOUBLE LEAF, SINGLE ACTION
DOOR - TIMBER, WHITE PAINT
FRAME - TIMBER, WHITE PAINT
LOCATED AT FIRST FLOOR, ROYAL FAMILY (12)
DOOR - TIMBER, GREEN PAINT
FRAME - TIMBER, WHITE PAINT
LOCATED AT FIRST FLOOR, ROYAL FAMILY (12)
1
16
DOUBLE LEAF, SINGLE ACTION
DOOR - TIMBER, BROWN PAINT
FRAME - TIMBER, BROWN PAINT
LOCATED AT FIRST FLOOR, ROYAL FAMILY (12)
1
DOUBLE LEAF, SINGLE ACTION
LOCATED AT FIRST FLOOR, VERANDAH (18)
1
DOUBLE LEAF, SINGLE ACTION
LOCATED AT FIRST FLOOR, ROYAL REGALIA (17)
1
SINGLE LEAF, SINGLE ACTION
LOCATED AT FIRST FLOOR, ROYAL FAMILY (12)
1
STARTING DATE
DATE
SCALE
CHECKED BY
PROJECT TITLE
MEASURED BY
DRAWN BY
ARC 1215
METHODS OF DOCUMENTATION AND
MEASURED DRAWING ON
ROYAL MUSEUM KEDAH, LOT 82, SEKSYEN 16
ALOR STAR, KOTA SETAR, KEDAH
DRAWING TITLE NOTE DRAWING NO.
ISSUE SHEET NO.
DOOR DETAILS 3
2017/ ARC1215/ RMUZKEDAH
E 23
31
20.01.2017
06.03.2017
1 : 25
LIM SHEN, TRM'S MEMBER
MR. KHAIROOL
TRM'S MEMBER
SCALE 1 : 25
PLAN
01
SCALE 1 : 25
ISOMETRIC
03
SCALE 1 : 25
PLAN
01
SCALE 1 : 25
ISOMETRIC
03
SCALE 1 : 25
PLAN
01
SCALE 1 : 25
ISOMETRIC
03
SCALE 1 : 25
PLAN
01
SCALE 1 : 25
ISOMETRIC
03
SCALE 1 : 25
PLAN
01
SCALE 1 : 25
ISOMETRIC
03
SCALE 1 : 25
PLAN
01
SCALE 1 : 25
ISOMETRIC
03
SCALE 1 : 25
PLAN
01
SCALE 1 : 25
ISOMETRIC
03
SCALE 1 : 25
PLAN
01
SCALE 1 : 25
ISOMETRIC
03
SCALE 1 : 25
ELEVATION (FRONT & BACK)
02 SCALE 1 : 25
ELEVATION (FRONT & BACK)
02
SCALE 1 : 25
ELEVATION (FRONT & BACK)
02 SCALE 1 : 25
ELEVATION (FRONT & BACK)
02
SCALE 1 : 25
ELEVATION (FRONT & BACK)
02SCALE 1 : 25
ELEVATION (FRONT & BACK)
02SCALE 1 : 25
ELEVATION (FRONT & BACK)
02SCALE 1 : 25
ELEVATION (FRONT & BACK)
02
100
1275
1015
1015
1275
505 510
595630595
2230
370 370
1035
515 520
2365
1365
1069
400
240
100
895 895
1365
450 445
350630590
1820
154515272710
10252025
305 305
915
460 455
2048
1060
960
240
100
1060
960
485 475
350720750
2110
2200
960
340 340
485 475
100
1158
978
345
1158
978
494 484
350630630
1910
350 350
998
494504
2080
1900
1070
100
1070
880 880
900670
1900
900
450
288 288
450
1720
630350630
1920
1250
978
494
100
1250
990
380
350
484
998
350
2116
504 494
860
1700
690690
360 370
226 226
100
860
730
860
370
226
380
226
1100
1100
1750
745745
440 450
890
280
920
890
455
280
100
465
1850
DIMENSION REFER TO DIAGRAM
QTY
MATERIAL
DOOR TYPE
D26
DESCRIPTION
DOOR - TIMBER, WHITE PAINT
FRAME - TIMBER, WHITE PAINT
DIMENSION REFER TO DIAGRAM
QTY
MATERIAL
DOOR TYPE
D28
DESCRIPTION
DOOR - TIMBER, GREEN PAINT
FRAME - TIMBER, WHITE PAINT
DIMENSION REFER TO DIAGRAM
QTY
MATERIAL
DOOR TYPE
D29
DESCRIPTION
DIMENSION REFER TO DIAGRAM
QTY
MATERIAL
DOOR TYPE
D38
DESCRIPTION
DIMENSION REFER TO DIAGRAM
QTY
MATERIAL
DOOR TYPE
D42
DESCRIPTION
DIMENSION REFER TO DIAGRAM
QTY
MATERIAL
DOOR TYPE
D17
DESCRIPTION
DOOR - TIMBER, WHITE PAINT
FRAME - TIMBER, WHITE PAINT
DIMENSION REFER TO DIAGRAM
QTY
MATERIAL
DOOR TYPE
D21
DESCRIPTION
DOOR - TIMBER, GREEN PAINT
FRAME - TIMBER, WHITE PAINT
DIMENSION REFER TO DIAGRAM
QTY
MATERIAL
DOOR TYPE
D22
DESCRIPTION
DOOR - TIMBER, WHITE PAINT
FRAME - TIMBER, WHITE PAINT
1
DOUBLE LEAF, SINGLE ACTION
LOCATED AT FIRST FLOOR, BEDROOM - BILIK BERADU (5)
DOUBLE LEAF, SINGLE ACTION
LOCATED AT FIRST FLOOR, PRAYER ROOM (OFFICER'S USE) (3)
DOUBLE LEAF, SINGLE ACTION
DOUBLE LEAF, SINGLE ACTION
FRAME - TIMBER, WHITE PAINT
DOOR - TIMBER, GREEN PAINT
FRAME - TIMBER, WHITE PAINT
LOCATED AT GROUND FLOOR, OFFICE (1)
1
11
DOUBLE LEAF, SINGLE ACTION
DOOR - TIMBER, GREEN PAINT
FRAME - TIMBER, WHITE PAINT
LOCATED AT GROUND FLOOR PLAN, OFFICE (1)
1
DOUBLE LEAF, SINGLE ACTION
LOCATED AT FIRST FLOOR, ROYAL REGALIA (17)
1
DOUBLE LEAF, SINGLE ACTION
LOCATED AT FIRST FLOOR, VERANDAH (18)
1
DOUBLE LEAF, SINGLE ACTION
LOCATED AT FIRST FLOOR, ROYAL COLLECTION AND WEAPON (16)
1
DOOR - TIMBER, GREEN PAINT
LOCATED AT FIRST FLOOR, PRAYER ROOM (OFFICER'S USE) (3)
STARTING DATE
DATE
SCALE
CHECKED BY
PROJECT TITLE
MEASURED BY
DRAWN BY
ARC 1215
METHODS OF DOCUMENTATION AND
MEASURED DRAWING ON
ROYAL MUSEUM KEDAH, LOT 82, SEKSYEN 16
ALOR STAR, KOTA SETAR, KEDAH
DRAWING TITLE NOTE DRAWING NO.
ISSUE SHEET NO.
DOOR DETAILS 4
2017/ ARC1215/ RMUZKEDAH
E 24
31
20.01.2017
06.03.2017
1 : 25
LIM SHEN, TRM'S MEMBER
MR. KHAIROOL
TRM'S MEMBER
SCALE 1 : 25
PLAN
01
SCALE 1 : 25
ISOMETRIC
03
SCALE 1 : 25
PLAN
01
SCALE 1 : 25
ISOMETRIC
03
SCALE 1 : 25
PLAN
01
SCALE 1 : 25
ISOMETRIC
03
SCALE 1 : 25
PLAN
01
SCALE 1 : 25
ISOMETRIC
03
SCALE 1 : 25
PLAN
01
SCALE 1 : 25
ISOMETRIC
03
SCALE 1 : 25
PLAN
01
SCALE 1 : 25
ISOMETRIC
03
SCALE 1 : 25
PLAN
01
SCALE 1 : 25
ISOMETRIC
03
SCALE 1 : 25
PLAN
01
SCALE 1 : 25
ISOMETRIC
03
SCALE 1 : 25
ELEVATION (FRONT & BACK)
02 SCALE 1 : 25
ELEVATION (FRONT & BACK)
02 SCALE 1 : 25
ELEVATION (FRONT & BACK)
02 SCALE 1 : 25
ELEVATION (FRONT & BACK)
02
SCALE 1 : 25
ELEVATION (FRONT & BACK)
02
SCALE 1 : 25
ELEVATION (FRONT & BACK)
02SCALE 1 : 25
ELEVATION (FRONT & BACK)
02SCALE 1 : 25
ELEVATION (FRONT & BACK)
02
SCALE 1 : 5
2230
240
340
995 995
2230
2200
1990
465
80
2090910
3540
910 2090
2200
3540
800
225
800
2200
740
3215
1052 2133
3215
2200
1430
240
920 250
1430
2200
1170 1170
1820
90
1820
2200
1807
80
1807
2200
DIMENSION REFER TO DIAGRAM
QTY
MATERIAL
DOOR TYPE
D30
DESCRIPTION
DOOR - GLASS
FRAME - ALUMINIUM
DIMENSION REFER TO DIAGRAM
QTY
MATERIAL
DOOR TYPE
D31
DESCRIPTION
DIMENSION REFER TO DIAGRAM
QTY
MATERIAL
DOOR TYPE
D32
DESCRIPTION
DIMENSION REFER TO DIAGRAM
QTY
MATERIAL
DOOR TYPE
D33
DESCRIPTION
DIMENSION REFER TO DIAGRAM
QTY
MATERIAL
DOOR TYPE
D34
DESCRIPTION
DIMENSION REFER TO DIAGRAM
QTY
MATERIAL
DOOR TYPE
D35
DESCRIPTION
DIMENSION REFER TO DIAGRAM
QTY
MATERIAL
DOOR TYPE
D37
DESCRIPTION
1
DOUBLE LEAF, DOUBLE ACTION
LOCATED AT GROUND FLOOR, OFFICE (1)LOCATED AT GROUND FLOOR, OFFICE (1)
1
1
SINGLE LEAF, SINGLE ACTION
DOOR - GLASS
FRAME - ALUMINIUM
LOCATED AT GROUND FLOOR, HALL (2)
1
DOUBLE LEAF, DOUBLE ACTION
1
DOUBLE LEAF, DOUBLE ACTION
2
SINGLE LEAF, SINGLE ACTION
1
DOOR - GLASS
FRAME - ALUMINIUM
SINGLE LEAF, DOUBLE ACTION
LOCATED AT GROUND FLOOR, OFFICE (1)
DOOR - GLASS
FRAME - ALUMINIUM
SINGLE LEAF, SINGLE ACTION
DOOR - GLASS
FRAME - ALUMINIUM
LOCATED AT GROUND FLOOR, HALL (2)
DOOR - GLASS
FRAME - ALUMINIUM
LOCATED AT GROUND FLOOR, HALL (2)
DOOR - GLASS
FRAME - ALUMINIUM
LOCATED AT GROUND FLOOR, HALL (2)
STARTING DATE
DATE
SCALE
CHECKED BY
PROJECT TITLE
MEASURED BY
DRAWN BY
ARC 1215
METHODS OF DOCUMENTATION AND
MEASURED DRAWING ON
ROYAL MUSEUM KEDAH, LOT 82, SEKSYEN 16
ALOR STAR, KOTA SETAR, KEDAH
DRAWING TITLE NOTE DRAWING NO.
ISSUE SHEET NO.
DOOR DETAILS 5
2017/ ARC1215/ RMUZKEDAH
E 25
31
20.01.2017
06.03.2017
1 : 25
LIM SHEN, TRM'S MEMBER
MR. KHAIROOL
TRM'S MEMBER
SCALE 1 : 25
PLAN
01
SCALE 1 : 25
ISOMETRIC
03
SCALE 1 : 25
PLAN
01
SCALE 1 : 25
ISOMETRIC
03
SCALE 1 : 25
ELEVATION (FRONT & BACK)
02 SCALE 1 : 25
PLAN
01
SCALE 1 : 25
ISOMETRIC
03
SCALE 1 : 25
PLAN
01
SCALE 1 : 25
ISOMETRIC
03
SCALE 1 : 25
PLAN
01
SCALE 1 : 25
ISOMETRIC
03
SCALE 1 : 25
PLAN
01
SCALE 1 : 25
ISOMETRIC
03
SCALE 1 : 25
PLAN
01
SCALE 1 : 25
ISOMETRIC
03
SCALE 1 : 25
ELEVATION (FRONT & BACK)
02 SCALE 1 : 25
ELEVATION (FRONT & BACK)
02
SCALE 1 : 25
ELEVATION (FRONT & BACK)
02SCALE 1 : 25
ELEVATION (FRONT & BACK)
02SCALE 1 : 25
ELEVATION (FRONT & BACK)
02SCALE 1 : 25
ELEVATION (FRONT & BACK)
02
1520
2144
545545545
679 689
1368
100
1520
1368
475
695
1400
2225
705
475
1180
1985
290600600
485 475
960
100
1180
960
2095
990
500 490
295 295
1150
1925
305695660
495 505
1000
100
1150
1000
1020
515
353
1985
505
355
890
1010
440 450
100
1010
890
1985
290600600
2095
295 295
920
455 465
5252243
2768
900 900
800 800
3600
417
290
417417417
290 290 290
1933
1800
1673
750750
1095
2768
52510001000
1673
200
820 1710 820
3600
1158
494 484
978
1910
395395395395
100
1158
978
345
998
494
350
2080
504
350
1370
1170
2120
1895
100
1370
1220
600 590
1190
DIMENSION REFER TO DIAGRAM
QTY
MATERIAL
DOOR TYPE
D11
DESCRIPTION
DOOR - TIMBER, GREEN PAINT
FRAME - TIMBER, WHITE PAINT
DIMENSION REFER TO DIAGRAM
QTY
MATERIAL
DOOR TYPE
D18
DESCRIPTION
DOOR - TIMBER, WHITE PAINT
FRAME - TIMBER, WHITE PAINT
DIMENSION REFER TO DIAGRAM
QTY
MATERIAL
DOOR TYPE
D19
DESCRIPTION
DIMENSION REFER TO DIAGRAM
QTY
MATERIAL
DOOR TYPE
D41
DESCRIPTION
DIMENSION REFER TO DIAGRAM
QTY
MATERIAL
DOOR TYPE
D36
DESCRIPTION
DIMENSION REFER TO DIAGRAM
QTY
MATERIAL
DOOR TYPE
D39
DESCRIPTION
DOOR - TIMBER, GREEN PAINT
FRAME - TIMBER, WHITE PAINT
DIMENSION REFER TO DIAGRAM
QTY
MATERIAL
DOOR TYPE
D40
DESCRIPTION
FRAME - TIMBER, WHITE PAINT
1
DOUBLE LEAF, SINGLE ACTION
LOCATED AT FIRST FLOOR, EXHIBITION AREA (11)
DOUBLE LEAF, SINGLE ACTION
LOCATED BETWEEN FIRST FLOOR, SULTAN ABDUL HALIM MUADZAM SHAH (15) AND
ROYAL COLLECTION AND WEAPON (16)
DOUBLE LEAF, SINGLE ACTION
DOUBLE LEAF, SINGLE ACTION
DOOR - TIMBER, WHITE PAINT
FRAME - TIMBER, WHITE PAINT
LOCATED AT FIRST FLOOR, ROYAL REGALIA (17)
DOOR - TIMBER, GREEN PAINT
FRAME - TIMBER, WHITE PAINT
LOCATED AT GROUND FLOOR, OFFICE (1)
1
1
1
DOUBLE LEAF, SINGLE ACTION; FOLDING DOOR, EDGE HUNG
DOOR - TIMBER, BROWN PAINT; GLASS
FRAME - TIMBER, BROWN PAINT; ALUMINIUM
LOCATED AT GROUND FLOOR, OFFICE (1). ATTACHED WITH WINDOWS.
1
DOUBLE LEAF, SINGLE ACTION
1
DOUBLE LEAF, SINGLE ACTION
1
LOCATED AT GROUND FLOOR, OFFICE (1)
DOOR - TIMBER, GREEN PAINT
LOCATED AT GROUND FLOOR, OFFICE (1)
STARTING DATE
DATE
SCALE
CHECKED BY
PROJECT TITLE
MEASURED BY
DRAWN BY
ARC 1215
METHODS OF DOCUMENTATION AND
MEASURED DRAWING ON
ROYAL MUSEUM KEDAH, LOT 82, SEKSYEN 16
ALOR STAR, KOTA SETAR, KEDAH
DRAWING TITLE NOTE DRAWING NO.
ISSUE SHEET NO.
DOOR DETAILS 6
2017/ ARC1215/ RMUZKEDAH
E 26
31
20.01.2017
06.03.2017
1 : 25
LIM SHEN, TRM'S MEMBER
MR. KHAIROOL
TRM'S MEMBER
SCALE 1 : 25
PLAN
01
SCALE 1 : 25
ISOMETRIC
03
SCALE 1 : 25
ELEVATION (FRONT & BACK)
02
SCALE 1 : 25
PLAN
01
SCALE 1 : 25
ISOMETRIC
03
SCALE 1 : 25
PLAN
01
SCALE 1 : 25
ISOMETRIC
03
SCALE 1 : 25
PLAN
01
SCALE 1 : 25
ISOMETRIC
03
SCALE 1 : 25
PLAN
01
SCALE 1 : 25
ISOMETRIC
03
SCALE 1 : 25
PLAN
01
SCALE 1 : 25
ISOMETRIC
03
SCALE 1 : 25
PLAN
01
SCALE 1 : 25
ISOMETRIC
03
SCALE 1 : 25
ELEVATION (FRONT & BACK)
02 SCALE 1 : 25
ELEVATION (FRONT & BACK)
02
SCALE 1 : 25
ELEVATION (FRONT & BACK)
02SCALE 1 : 25
ELEVATION (FRONT & BACK)
02
SCALE 1 : 25
ELEVATION (FRONT & BACK)
02SCALE 1 : 25
ELEVATION (FRONT & BACK)
02
DIMENSION REFER TO DIAGRAM
QTY
MATERIAL
WINDOW TYPE
W1
DESCRIPTION
WINDOW - TIMBER, GREEN PAINT
FRAME - TIMBER, WHITE PAINT
DIMENSION REFER TO DIAGRAM
QTY
MATERIAL
W2
DESCRIPTION
WINDOW - TIMBER, GREEN PAINT
FRAME - TIMBER, WHITE PAINT
DIMENSION REFER TO DIAGRAM
QTY
MATERIAL
W5
DESCRIPTION
DIMENSION REFER TO DIAGRAM
QTY
MATERIAL
WINDOW TYPE
W6
DESCRIPTION
DIMENSION REFER TO DIAGRAM
QTY
MATERIAL
WINDOW TYPE
W7
DESCRIPTION
DIMENSION REFER TO DIAGRAM
QTY
MATERIAL
WINDOW TYPE
W22
DESCRIPTION
WINDOW - TIMBER, BROWN PAINT; GLASS
FRAME - TIMBER, BROWN PAINT; ALUMINIUM
DIMENSION REFER TO DIAGRAM
QTY
MATERIAL
DESCRIPTION
28
DOUBLE LEAF, SINGLE ACTION
LOCATED AT FIRST FLOOR, MUSEUM MAIN ENTRANCE (1), WEDDING HALL (2),
YTM TUNKU ABDUL RAHMAN PUTRA'S ROOM (4) AND BEDROOM - BILIK BERADU (5)
WINDOW - TIMBER, GREEN PAINT
FRAME - TIMBER, WHITE PAINT
WINDOW - TIMBER, GREEN PAINT
FRAME - CONCRETE, WHITE PAINT
44
2
DOUBLE LEAF, SINGLE ACTION
WINDOW - TIMBER, GREEN PAINT
FRAME - CONCRETE, WHITE PAINT
2
DOUBLE LEAF, SINGLE ACTION
LOCATED AT GROUND FLOOR, OFFICE (1)
2
LOCATED AT FIRST FLOOR, MUSEUM MAIN ENTRANCE (1)
LOCATED AT FIRST FLOOR, PRAYER ROOM (EXHIBITION PURPOSE) (10) AND
EXHIBITION AREA (11)
DOUBLE LEAF, SINGLE ACTION
LOCATED AT FIRST FLOOR, ADJACENT TO EXHIBITION AREA (11)
LOCATED AT FIRST FLOOR, ADJACENT TO EXHIBITION AREA (11)
WINDOW TYPE DOUBLE LEAF, SINGLE ACTION
WINDOW TYPE DOUBLE LEAF, SINGLE ACTION
QTY
WINDOW TYPE
W23
WINDOW - TIMBER, BROWN PAINT; GLASS
FRAME - TIMBER, BROWN PAINT; ALUMINIUM
DOUBLE LEAF, SINGLE ACTION
LOCATED AT GROUND FLOOR, OFFICE (1)
2
STARTING DATE
DATE
SCALE
CHECKED BY
PROJECT TITLE
MEASURED BY
DRAWN BY
ARC 1215
METHODS OF DOCUMENTATION AND
MEASURED DRAWING ON
ROYAL MUSEUM KEDAH, LOT 82, SEKSYEN 16
ALOR STAR, KOTA SETAR, KEDAH
DRAWING TITLE NOTE DRAWING NO.
ISSUE SHEET NO.
WINDOW DETAILS 1
2017/ ARC1215/ RMUZKEDAH
E 27
31
20.01.2017
06.03.2017
1 : 25
LIM SHEN, TRM'S MEMBER
MR. KHAIROOL
TRM'S MEMBER
SCALE 1 : 25
PLAN
01 SCALE 1 : 25
ELEVATION (FRONT & BACK)
02
SCALE 1 : 25
ISOMETRIC
03
SCALE 1 : 25
PLAN
01 SCALE 1 : 25
ELEVATION (FRONT & BACK)
02
SCALE 1 : 25
ISOMETRIC
03
SCALE 1 : 25
PLAN
01 SCALE 1 : 25
ELEVATION (FRONT & BACK)
02
SCALE 1 : 25
ISOMETRIC
03
SCALE 1 : 25
PLAN
01 SCALE 1 : 25
ELEVATION (FRONT & BACK)
02
SCALE 1 : 25
ISOMETRIC
03
SCALE 1 : 25
PLAN
01 SCALE 1 : 25
ELEVATION (FRONT & BACK)
02
SCALE 1 : 25
ISOMETRIC
03
SCALE 1 : 25
PLAN
01 SCALE 1 : 25
ELEVATION (FRONT & BACK)
02
SCALE 1 : 25
ISOMETRIC
03
SCALE 1 : 25
PLAN
01
SCALE 1 : 25
ISOMETRIC
03
SCALE 1 : 25
ELEVATION (FRONT & BACK)
02
1010
100
770
800
395 405
1770
1560
699699
1010
390
300
380
770
300
1130
100
890
1130
920
455
365 365
1770
1560
699699
465
890
440450
100
1050
865
1050
443 443
290
885
1566
1400
590580
290
443 443
885
100
1050
865
1050
445 440
885
1566
1400
590580
865
430
290 290
435
2300
470 455 620 530
1150925
1415
1340
600600
460445610520
390 485 360 375
9051130
100
2300
905 1130
100
960
820
1160
415 425
840
1380
1210
525535
405 415
313 323
820
100
1300
1025
1300
523 523
384 380
1618
1345
560560
DIMENSION REFER TO DIAGRAM
QTY
MATERIAL
WINDOW TYPE
W3
DESCRIPTION
WINDOW - TIMBER, GREEN PAINT; GLASS
FRAME - TIMBER, WHITE PAINT; TIMBER, WHITE PAINT
DIMENSION REFER TO DIAGRAM
QTY
MATERIAL
WINDOW TYPE
W4
DESCRIPTION
FRAME - TIMBER, WHITE PAINT
DIMENSION REFER TO DIAGRAM
QTY
MATERIAL
WINDOW TYPE
W9
DESCRIPTION
DIMENSION REFER TO DIAGRAM
QTY
MATERIAL
WINDOW TYPE
W10
DESCRIPTION
DIMENSION REFER TO DIAGRAM
QTY
MATERIAL
WINDOW TYPE
W11
DESCRIPTION
DIMENSION REFER TO DIAGRAM
QTY
MATERIAL
WINDOW TYPE
W12
DESCRIPTION
WINDOW - TIMBER, GREEN PAINT
FRAME - TIMBER, WHITE PAINT
DIMENSION REFER TO DIAGRAM
QTY
MATERIAL
W13
DESCRIPTION
FRAME - TIMBER, WHITE PAINT
3
DOUBLE LEAF, SINGLE ACTION
LOCATED AT FIRST FLOOR, MEETING ROOM (6) AND ROYAL COLLECTION (7)
DOUBLE LEAF, SINGLE ACTION DOUBLE LEAF, SINGLE ACTION
WINDOW - TIMBER, GREEN PAINT
FRAME - TIMBER, WHITE PAINT
LOCATED AT FIRST FLOOR, ADJACENT TO ROYAL FAMILY (12)
WINDOW - TIMBER, GREEN PAINT
FRAME - TIMBER, WHITE PAINT
LOCATED AT FIRST FLOOR, ADJACENT TO ROYAL FAMILY (12)
12
3
DOUBLE LEAF, SINGLE ACTION
WINDOW - TIMBER, WHITE PAINT
FRAME - TIMBER, WHITE PAINT
2
DOUBLE LEAF, SINGLE ACTION
1
DOUBLE LEAF, SINGLE ACTION
LOCATED AT FIRST FLOOR, ADJACENT TO ROYAL REGALIA (17)
1
WINDOW - TIMBER, GREEN PAINT
DOUBLE LEAF, SINGLE ACTION
LOCATED AT FIRST FLOOR, MEETING ROOM (6) AND SEWING MACHINE (9)
LOCATED AT FIRST FLOOR, EXHIBITION AREA (11)
WINDOW TYPE
WINDOW - TIMBER, GREEN PAINT
LOCATED AT FIRST FLOOR, ROYAL REGALIA (17)
STARTING DATE
DATE
SCALE
CHECKED BY
PROJECT TITLE
MEASURED BY
DRAWN BY
ARC 1215
METHODS OF DOCUMENTATION AND
MEASURED DRAWING ON
ROYAL MUSEUM KEDAH, LOT 82, SEKSYEN 16
ALOR STAR, KOTA SETAR, KEDAH
DRAWING TITLE NOTE DRAWING NO.
ISSUE SHEET NO.
WINDOW DETAILS 2
2017/ ARC1215/ RMUZKEDAH
E 28
31
20.01.2017
06.03.2017
1 : 25
LIM SHEN, TRM'S MEMBER
MR. KHAIROOL
TRM'S MEMBER
SCALE 1 : 25
PLAN
01 SCALE 1 : 25
ELEVATION (FRONT & BACK)
02
SCALE 1 : 25
ISOMETRIC
03
SCALE 1 : 25
PLAN
01 SCALE 1 : 25
ELEVATION (FRONT & BACK)
02
SCALE 1 : 25
ISOMETRIC
03
SCALE 1 : 25
PLAN
01 SCALE 1 : 25
ELEVATION (FRONT & BACK)
02
SCALE 1 : 25
ISOMETRIC
03
SCALE 1 : 25
PLAN
01 SCALE 1 : 25
ELEVATION (FRONT & BACK)
02
SCALE 1 : 25
ISOMETRIC
03
SCALE 1 : 25
PLAN
01 SCALE 1 : 25
ELEVATION (FRONT & BACK)
02
SCALE 1 : 25
ISOMETRIC
03
SCALE 1 : 25
PLAN
01 SCALE 1 : 25
ELEVATION (FRONT & BACK)
02
SCALE 1 : 25
ISOMETRIC
03
SCALE 1 : 25
PLAN
01 SCALE 1 : 25
ELEVATION (FRONT & BACK)
02
SCALE 1 : 25
ISOMETRIC
03
910
734
100
910
387 397
232 232
995
885
280280
1140
880
240
100
1140
455 445
330 330
1300
890
400
240
100
1300
440 450
890
1307
551518
15451550502010
25102520
1717
890
440 450
313 315
1234
934
300
125
1260
960
1435
1195
493493
960
475
335 335
485
1460
1110
240
100
1260
565 575
420 420
1435
1325
445660
1300
890
400
240
100
1300
440 450
890
1254
625435
890
440 450
300 300
1680
1020
780
100
810
400 410
1330
1120
1020
990
690
380
100
710
350 360
1350
1270
790
DIMENSION REFER TO DIAGRAM
QTY
MATERIAL
WINDOW TYPE
W8
DESCRIPTION
WINDOW - TIMBER, GREEN PAINT
FRAME - TIMBER, WHITE PAINT
DIMENSION REFER TO DIAGRAM
QTY
MATERIAL
WINDOW TYPE
W15
DESCRIPTION
WINDOW - TIMBER, WHITE PAINT
FRAME - TIMBER, WHITE PAINT
DIMENSION REFER TO DIAGRAM
QTY
MATERIAL
WINDOW TYPE
W16
DESCRIPTION
DIMENSION REFER TO DIAGRAM
QTY
MATERIAL
WINDOW TYPE
W17
DESCRIPTION
DIMENSION REFER TO DIAGRAM
QTY
MATERIAL
WINDOW TYPE
W19
DESCRIPTION
DIMENSION REFER TO DIAGRAM
QTY
MATERIAL
WINDOW TYPE
W21
DESCRIPTION
WINDOW - TIMBER, GREEN PAINT
FRAME - TIMBER, WHITE PAINT
DIMENSION REFER TO DIAGRAM
QTY
MATERIAL
WINDOW TYPE
W14
DESCRIPTION
WINDOW - TIMBER, WHITE PAINT
FRAME - TIMBER, WHITE PAINT
DIMENSION REFER TO DIAGRAM
QTY
MATERIAL
WINDOW TYPE
W24
DESCRIPTION
WINDOW - TIMBER, GREEN PAINT
FRAME - TIMBER, WHITE PAINT
1
DOUBLE LEAF, SINGLE ACTION
LOCATED AT FIRST FLOOR, ROYAL FAMILY (12)
DOUBLE LEAF, SINGLE ACTION
LOCATED AT FIRST FLOOR, THE LATE SULTAN ABDUL HAMID HALIM SHAH (13)
DOUBLE LEAF, SINGLE ACTION DOUBLE LEAF, SINGLE ACTION
WINDOW - TIMBER, GREEN PAINT
FRAME - TIMBER, WHITE PAINT
LOCATED AT FIRST FLOOR, PRAYER ROOM (OFFICER'S ROOM) (3)
WINDOW - TIMBER, GREEN PAINT
FRAME - TIMBER, WHITE PAINT
LOCATED AT GROUND FLOOR, OFFICE (1)
22 1
ARCH WINDOW
WINDOW - GLASS
FRAME - ALUMINIUM
LOCATED AT GROUND FLOOR, OFFICE (1)
1
DOUBLE LEAF, SINGLE ACTION
LOCATED AT GROUND FLOOR, OFFICE (1)
1
DOUBLE LEAF, SINGLE ACTION
LOCATED AT FIRST FLOOR, ROYAL REGALIA (17)
1
DOUBLE LEAF, SINGLE ACTION
LOCATED AT GROUND FLOOR, STORE (3)
1
STARTING DATE
DATE
SCALE
CHECKED BY
PROJECT TITLE
MEASURED BY
DRAWN BY
ARC 1215
METHODS OF DOCUMENTATION AND
MEASURED DRAWING ON
ROYAL MUSEUM KEDAH, LOT 82, SEKSYEN 16
ALOR STAR, KOTA SETAR, KEDAH
DRAWING TITLE NOTE DRAWING NO.
ISSUE SHEET NO.
WINDOW DETAILS 3
2017/ ARC1215/ RMUZKEDAH
E 29
31
20.01.2017
06.03.2017
1 : 25
LIM SHEN, TRM'S MEMBER
MR. KHAIROOL
TRM'S MEMBER
SCALE 1 : 25
PLAN
01 SCALE 1 : 25
ELEVATION (FRONT & BACK)
02
SCALE 1 : 25
ISOMETRIC
03
SCALE 1 : 25
PLAN
01 SCALE 1 : 25
ELEVATION (FRONT & BACK)
02
SCALE 1 : 25
ISOMETRIC
03
SCALE 1 : 25
PLAN
01 SCALE 1 : 25
ELEVATION (FRONT & BACK)
02
SCALE 1 : 25
ISOMETRIC
03
SCALE 1 : 25
PLAN
01 SCALE 1 : 25
ELEVATION (FRONT & BACK)
02
SCALE 1 : 25
ISOMETRIC
03
SCALE 1 : 25
PLAN
01 SCALE 1 : 25
ELEVATION (FRONT & BACK)
02
SCALE 1 : 25
ISOMETRIC
03
SCALE 1 : 25
PLAN
01 SCALE 1 : 25
ELEVATION (FRONT & BACK)
02
SCALE 1 : 25
ISOMETRIC
03
SCALE 1 : 25
PLAN
01 SCALE 1 : 25
ELEVATION (FRONT & BACK)
02
SCALE 1 : 25
ISOMETRIC
03
SCALE 1 : 25
PLAN
01 SCALE 1 : 25
ELEVATION (FRONT & BACK)
02
SCALE 1 : 25
ISOMETRIC
03
SCALE 1 : 5
960
760
390
100
960
380 380
1470
1255
760
tile flooring
1035
975
30
1034
307 300 307
2120
1551460415
3109
1016 1016 1016
30
3109
1016 1016 1016
2094
DIMENSION REFER TO DIAGRAM
QTY
MATERIAL
WINDOW TYPE
W25
DESCRIPTION
WINDOW - TIMBER, GREEN PAINT
FRAME - TIMBER, WHITE PAINT
DIMENSION REFER TO DIAGRAM
QTY
MATERIAL
WINDOW TYPE
W18
DESCRIPTION
WINDOW - GLASS
FRAME - ALUMINIUM
DIMENSION REFER TO DIAGRAM
QTY
MATERIAL
WINDOW TYPE
W20
DESCRIPTION
3
DOUBLE LEAF, SINGLE ACTION
LOCATED AT GROUND FLOOR, OFFICE (1)
ARCH WINDOW
LOCATED AT GROUND FLOOR, OFFICE (1)
CURTAIN WALL
FRAME - ALUMINIUM
5 2
WINDOW - GLASS
LOCATED AT GROUND FLOOR, OFFICE (1)
STARTING DATE
DATE
SCALE
CHECKED BY
PROJECT TITLE
MEASURED BY
DRAWN BY
ARC 1215
METHODS OF DOCUMENTATION AND
MEASURED DRAWING ON
ROYAL MUSEUM KEDAH, LOT 82, SEKSYEN 16
ALOR STAR, KOTA SETAR, KEDAH
DRAWING TITLE NOTE DRAWING NO.
ISSUE SHEET NO.
WINDOW DETAILS 4
2017/ ARC1215/ RMUZKEDAH
E 30
31
20.01.2017
06.03.2017
1 : 25
LIM SHEN, TRM'S MEMBER
MR. KHAIROOL
TRM'S MEMBER
SCALE 1 : 25
PLAN
01 SCALE 1 : 25
ELEVATION (FRONT & BACK)
02
SCALE 1 : 25
ISOMETRIC
03
SCALE 1 : 25
PLAN
01 SCALE 1 : 25
ELEVATION (FRONT & BACK)
02
SCALE 1 : 25
ISOMETRIC
03
SCALE 1 : 25
PLAN
01
SCALE 1 : 25
ISOMETRIC
03
SCALE 1 : 25
ELEVATION (FRONT & BACK)
02
200 x 200 H.W. BEAM
30 x 130 CEILING BOARD
TRUSSER RAFTER
PURLIN
RAFTER
H.W. BATTEN
ROOF TILE
GUTTER HOLDER
GUTTER
164 x 150 H.W. BEAM
120 x 75 H.W. FLOOR JOIST
30 x 230 FLOOR BOARD
210 x 200 H.W. BEAM
200 x 200 H.W. TIMBER COLUMN
H.W. TIMBER BEAM
130 x 25 CEILING BOARD
CEILING JOIST
210 x 150 H.W. BEAM
150 x 75 H.W. FLOOR JOIST
30 x 230 FLOOR BOARD
210 x 150 H.W. BEAM
150 x 75 H.W. FLOOR JOIST
30 x 230 FLOOR BOARD
AXONOMETRIC
DRAWING TITLE
SCALE 1 : 75
AXONOMETRY
0 0.5 1 21.5 3 4 5 6 7 7.5 (M)
M 1 : 75
PROJECT TITLE
ARC 1215
METHODS OF DOCUMENTATION
AND MEASURED DRAWING
ON ROYAL MUSEUM KEDAH,
LOT 82, SEKSYEN 16, ALOR STAR
KOTA SETAR, KEDAH
2017/ ARC1215/ RMUZKEDAH
F 31
31
DRAWING NO.
ISSUE SHEET NO.
STARTING DATE
DATE
SCALE
CHECKED BY
MEASURED BY
DRAWN BY
20.01.2017
06.03.2017
AS SHOWN
RACHEAL CHEONG, LIM ZIA HUEI, HOW SENG GUAN
MR. KHAIROOL
TRM'S MEMBERS
SCALE 1 : 25
DETAIL B
SCALE 1 : 25
DETAIL A
SCALE 1 : 25
DETAIL C
SCALE 1 : 25
DETAIL D
DETAIL D
DETAIL C
DETAIL B
DETAIL A

Royal Museum Alor Setar

  • 1.
    METHODS OF DOCUMENTATIONAND MEASURED DRAWING ARC 1215 ROYAL MUSEUM KEDAH LOT 82, SEKSYEN 16, ALOR SETAR, KOTA SETAR, KEDAH PREPARED BY GROUP 11 1 NO. DRAWING LIST SHEET NO. 01 / 31 SCALEDRAWING REFERENCE 2017 / ARC1215/ RMUZKEDAH / A 1 : 75 1 : 75 1 : 75 1 : 75 1 : 75 02 / 31 03 / 31 04 / 31 05 / 31 06 / 31 KEY PLAN, LOCATION PLAN, SITE PLAN & SITE SECTION DESCRIPTION GROUND FLOOR PLAN FIRST FLOOR PLAN ROOF PLAN GROUND FLOOR REFLECTED CEILING PLAN FIRST FLOOR REFLECTED CEILING PLAN 2 07 / 312017 / ARC1215/ RMUZKEDAH / B NORTHWEST ELEVATION & SOUTHWEST ELEVATION 1 : 75 08 / 31 NORTHEAST ELEVATION & SOUTHEAST ELEVATION 1 : 75 3 09 / 312017 / ARC1215/ RMUZKEDAH / C SECTION A - A & SECTION B - B 1 : 75 10 / 31 SECTION C - C, SECTION D - D 1 : 75 4 12 / 312017 / ARC1215/ RMUZKEDAH / D 13 / 31 NORTHWEST ELEVATION (STREET VIEW), GATE 01 - 03 AS SHOWN COLUMN 01- 04, ORNAMENTATION OF CEILING LIGHT CANOPIES, ORNAMENTATION OF DOORS 20 & DOORS 20 & 23 AS SHOWN GATE 04 - 07 14 / 31 15 / 31 16 / 31 18 / 31 19 / 31 20 / 31 21 / 31 23 / 31 STAIRCASE DETAILS 1 STAIRCASE DETAILS 2 STAIRCASE DETAILS 3 STAIRCASE DETAILS 5 2017 / ARC1215/ RMUZKEDAH / E5 DOOR DETAILS 1 DOOR DETAILS 2 DOOR DETAILS 3 DOOR DETAILS 4 DOOR DETAILS 6 28 / 31 AS SHOWN AS SHOWN AS SHOWN AS SHOWN 1 : 25 1 : 25 1 : 25 1 : 25 WINDOW DETAILS 1 1 : 25 TUTOR KHAIROOL AIZAT AHMAD JAMAL 1 : 25 NO. SHEET NO. SCALEDRAWING REFERENCE DESCRIPTION STAIRCASE DETAILS 6 24 / 31 25 / 31 26 / 31 DOOR DETAILS 5 1 : 25 29 / 31 WINDOW DETAILS 2 30 / 31 31 / 31 WINDOW DETAILS 3 WINDOW DETAILS 4 1 : 25 1 : 25 1 : 25 2017 / ARC1215/ RMUZKEDAH / F6 AXONOMETRIC AS SHOWN 4 2017 / ARC1215/ RMUZKEDAH / D 27 / 31 NO. NAME STUDENT ID 1 2 3 4 5 6 7 ALLEN TAN HOANG YEAP BRIAN KOH JUN YAN CHERILYN CHIA QIAO XIN CHIN SHEE WEI CHONG CHIN PIN HOW SENG GUAN LIM SHEN 0329459 0322002 0321986 0322499 0319595 1007P73021 0323209 8 LIM YANG KANG 0320538 9 10 11 12 13 14 LIM ZANYU LIM ZIA HUEI PE ZHI YONG RACHAEL CHEONG KAH YAN SII SIAW HUA TEO VI VIEN 0325034 0321031 0319765 0329186 0322608 0321645 15 STUDENT ID WONG WAN JIUAN 0327173 AS SHOWN NO. NAME 17 / 31 22 / 31 1 : 25 STAIRCASE DETAILS 4 AS SHOWN AS SHOWN 11 / 31 SECTION E - E 1 : 75
  • 2.
    N PARKING AREA Q PARKING AREA OUTDOOR EXHIBITION 1 OUTDOOR EXHIBITION 2 OFFICE WASHROOM DATARANMEDAN BANDAR BALAI BESAR FALL FALL FALL FALLFALL FALL FALL KUALA KEDAH LEBUHRAYAUTARASELATAN ALOR SETAR N LEBUHRAYADARULAMAN JALAN PUTRA JALAN ISTANA LAMA JALAN SULTAN BADLISHAH BALAI SENI ALOR SETAR TOWER ZAHIR MOSQUE PUTRA MEDICAL ALOR SETAR AMAN CENTRAL CENTRE BALAI NOBAT N BALAI BESAR SCALE 1 : 250 SITE PLAN NOT TO SCALEKEY PLAN LOCATION PLAN SCALE 1 : 250 SITE SECTION NOT TO SCALE SITE LEBUHRAYA DARUL AMAN BALAI NOBAT BALAI BESAR SITE ROYAL MUSEUM PERSISIRAN SUNGAI RAJA SADA ALOR SETAR BSN BANK SITE STARTING DATE DATE SCALE CHECKED BY 20.01.2017 06.03.2017 AS SHOWN HOW SENG GUAN MR. KHAIROOL TRM'S MEMBERS SITE SECTION SITE PLAN LOCATION PLAN KEY PLAN PROJECT TITLE MEASURED BY DRAWN BY ARC 1215 METHODS OF DOCUMENTATION AND MEASURED DRAWING ON ROYAL MUSEUM KEDAH, LOT 82, SEKSYEN 16 ALOR STAR, KOTA SETAR, KEDAH DRAWING TITLE NOTE 2017/ ARC1215/ RMUZKEDAH A 01 31 DRAWING NO. SHEET NO. LEBURRAYADARULAMAN PERSISIRANSUNGAIRAJA
  • 3.
    G.L. 0 F.F.L. ±0.175M F.F.L.±0.07M G.L. 0 F.F.L. 0 DP 120 DP 110 OFFICE 1 HALL STORE OFFICE 2 3450 UP GATE 3 TO BOUNDARY DRAIN TO BOUNDARY DRAIN UP (CONCRETE PAVEMENT) GATE 2 GATE 1 UP UP F.F.L. ±0.225M F.F.L. ±0.175M F.F.L. ±0.175M 1 5 FIRST FLOOR EAVE LINE G.L. 0 1 UP G.L. 0 1 5 1 5 15 1 5 UP UP UP UP UP 5 1 1 5 1 5 PARKING AREA TC BW1 CR NV TC - TL NV TC BW1 / PTN CPT AC TC BW1 / PTN CPT AC F.F.L. ±0.190M D29 D30 D31 D32 D34 D34 D18 D40 D35D30 D36 D41 D39 D37 D38 W8b W17 W17 W17 W17 W18 W18 W18 D33 W18 W18 W19 W20 W21 W21 W20 W22W22 W22 W23 1 5 (CONCRETE PAVEMENT) 1 5 F.F.L. ±0.08M DP 190 DP 80 DP 120 FIRST FLOOR EAVE LINE 31502650 TC - CP NV (CEMENT RENDER) (CEMENT RENDER) 424256410 5900 3945 2465 9515 2170 9530 2283 18927 2450 3450 2780 3975 2760 3277 4090 4090 33904715 4815 7905159534070 39553950584020059963 31877984070 8055 406239901072840200518503990 5840 - BW1 / PTN AC- OUTDOOR EXHIBITION 1 2240 4080 1 A0 A1 A B C D E F G J K L M N 1a 2 3 4 5a 5b 6 7 8 9 10 5 2a H AA C - 09 AA C - 09 BB C - 09 BB C - 09 EE C - 10 EE C - 10 DD C - 10 DD C - 10 CC C - 10 CC C - 10 1 2 3 4 1 - CEILING TYPE 2 - WALL TYPE 3 - FLOOR TYPE 4 - NATURAL VENTILATION (N/V) AIR-CONDITIONED (A/C) SPECIFICATION: TC TIMBER CEILING BOARD BW 1 240mm THK BRICK WALL BW 2 120mm THK BRICK WALL CPT CARPET TF TIMBER FLOOR BOARD NV NATURAL VENTILATION AC AIR-CONDITIONING CR CEMENT RENDER TL TILE PTN PARTITION WALL TW TIMBER WALL BW 3 200mm THK BRICK WALL CP CONCRETE PAVEMENT LEGEND D20 FOLDING DOOR, EDGE HUNG 1070 x 1900 DOOR SCHEDULE NO. SIZE TYPE D1 D2 D3 D4 D5 D6 D7 D8 D9 D10 D11 D12 D13 D14 D15 D16 D17 D18 D19 D21 D22 D23 D28 D24 D25 D26 D27 D29 D30 W16 D31 D32 D33 D34 D35 D36 D37 D38 D39 D40 D41 D42 2152 x 2600 2152 x 2600 1336 x 2600 1336 x 2600 1200 x 2070 1200 x 2070 1020 x 1990 1375 x 2465 1220 x 2090 3830 x 2340 DOUBLE LEAF, SINGLE ACTION 1050 x 1566 FOLDING DOOR, EDGE HUNG 1520 x 2225 - DITTO - FOLDING DOOR, EDGE HUNG 1220 x 2090 1120 x 1820 1250 x 2245 1150 x 1985 1180 x 2095 1100 x 1850 860 x 1700 2580 x 1760 1275 x 2340 1275 x 2340 DOUBLE LEAF, SINGLE ACTION DOUBLE LEAF, SINGLE ACTION 1275 x 2340 FOLDING DOOR, EDGE HUNG 1060 x 2200 1820 x 2200 1336 x 2600 1365 x 2048 910 x 2200 2230 x 2200 800 x 2200 1430 x 2200 3215 x 2200 1807 x 2200 1158 x 2080 DOUBLE LEAF, SINGLE ACTION 1370 x 2120 1250 x 2116 1010 x 2095 1158 x 2080 SINGLE LEAF, DOUBLE ACTION, GLASS DOUBLE LEAF, DOUBLE ACTION, GLASS 1020 x 1330 DOUBLE LEAF, SINGLE ACTION - DITTO - - DITTO - - DITTO - - DITTO - - DITTO - - DITTO - - DITTO - - DITTO - - DITTO - - DITTO - - DITTO - - DITTO - - DITTO - - DITTO - - DITTO - - DITTO - - DITTO - DOUBLE LEAF, DOUBLE ACTION, GLASS - DITTO - - DITTO - - DITTO - - DITTO - - DITTO - - DITTO - - DITTO - WINDOW SCHEDULE W1 W2 W3 W4 W5 W6 W7 W8 W9 W10 W11 W12 W13 W14 W15 W17 W18 W19 W20 W21 W22 W23 W24 W25 1520 x 2600 980 x 1975 1010 x 1560 1130 x 1560 1040 x 1745 900 x 1345 420 x 1345 910 x 995 1050 x 1566 LOUVRE WINDOW ARCHED WINDOW ARCHED WINDOW - DITTO - 1300 x 1618 960 x 1210 2150 x 1285 1300 x 1717 1035 x 1965 1260 x 1435 3110 x 2094 1300 x 1680 GLASS WINDOW 790 x 1350 DOUBLE HUNG - DITTO - - DITTO - - DITTO - DOUBLE HUNG LOUVRE WINDOW - DITTO - - DITTO - ARCHED WINDOW, GLASS DOUBLE HUNG 1140 x 1470 960 x 1470 3600 x 2768 - DITTO - - DITTO - 1200 x 2250 805 x 2200 - DITTO - SINGLE LEAF, SINGLE ACTION 1200 x 2100 - DITTO - - DITTO - FOLDING DOOR, EDGE HUNG - DITTO - DOUBLE HUNG - DITTO - - DITTO - 920 x 1260 1260 x 1435 - DITTO - 3624 x 1700 - DITTO - - DITTO - - DITTO - SHEET NO. NO. SIZE TYPESHEET NO. E - 20 E - 20 E - 20 E - 20 E - 21 E - 21 E - 22 E - 22 E - 21 E - 20 E - 25 E - 22 E - 22 E - 22 E - 22 E - 21 E - 23 E - 25 E - 25 E - 21 E - 23 E - 23 E - 22 E - 22 E - 21 E - 23 E - 21 E - 23 E - 23 E - 24 E - 24 E - 24 E - 24 E - 24 E - 24 E - 25 E - 24 E - 23 E - 25 E - 25 E - 25 E - 23 E - 26 E - 26 E - 27 E - 27 E - 26 E - 26 E - 26 E - 28 E - 27 E - 27 E - 27 E - 27 E - 27 E - 28 E - 28 E - 28 E - 28 E - 29 E - 28 E - 29 E - 28 E - 26 E - 26 E - 28 E - 29 N SCALE 1 : 75 GROUND FLOOR PLAN STARTING DATE DATE SCALE CHECKED BY GROUND FLOOR PLAN PROJECT TITLE MEASURED BY DRAWN BY ARC 1215 METHODS OF DOCUMENTATION AND MEASURED DRAWING ON ROYAL MUSEUM KEDAH, LOT 82, SEKSYEN 16 ALOR STAR, KOTA SETAR, KEDAH DRAWING TITLE NOTE 2017/ ARC1215/ RMUZKEDAH A 02 30 DRAWING NO. SHEET NO. 20.01.2017 06.03.2017 1 : 75 ALLEN TAN, WONG WAN JIUAN MR. KHAIROOL ALLEN TAN, BRIAN KOH, LIM ZANYU, LIM ZIA HUEI 0 0.5 1 21.5 3 4 5 6 7 7.5 (M) M 1 : 75
  • 4.
    WEDDING HALL VERANDAH 1 F.F.L. ±2.5M F.F.L.±2.8M F.F.L. ±2.5M F.F.L. ±3.2M F.F.L. ±2.9M F.F.L. ±3.5M F.F.L. ±2.2M F.F.L. ±2.2M F.F.L. ±2.0M F.F.L. ±2.2M ROOFEAVELINE PRAYER ROOM YTM TUNKU ABDUL RAHMAN PUTRA'S ROOM BEDROOM- BILIK BERADU VERANDAH 2 ROYAL COLLECTION MEETING ROOM MUSEUM MAIN ENTRANCE GRAMOPHONE SEWING MACHINE PRAYER ROOM (EXHIBITION) EXHIBITION AREA SULTAN'S ENTRANCE EXHIBITION AREA ROYAL FAMILY ROYAL REGALIA VERANDAH 4 VERANDAH 5VERANDAH 3 DN DN ROOF EAVE LINE ROOF EAVE LINE THE LATE SULTAN ABDUL HAMID HALIM SHAH THE LATE SULTAN BADHSAH SULTAN ABDUL HALIM MUADZAM SHAH ROYAL COLLECTION AND WEAPON (CARPET) 1 5 10 1 5 10 1 5 10 1 5 1 5 10 1 5 10 15 1510 1 10 1 5 1 5 10 DN DN DN DN DN DN DN TC BW1 TF AC 10 DN DN DN DN DN F.F.L. ±2.5M TC BW1 TF AC TC BW1/TW TF AC TC BW1/TW TF AC TC BW1 TF NV TC TW TF AC TC TW/BW2 TF AC TC TW/BW2 TF AC TC TW/BW2 TF AC TC TW TF AC TC TW TF AC TC TW/BW3 TF AC D10 D1 D2 D3D3 D4 D4 D4 D4 D5 D7 D8 D8 D8 D9 D11 D12D9 W1 W1 W1 W1 W1 W1 W1 W1 W1 W1 W1 W1 W1W1 W1 W1 W1 W1 W1 W1 W1 W1 W1 W1 W1 W1 W1 W2W2 W1 D14 D15 D16 D17 D16 D8 D8 D8 D18 D19 D20 D21 D23 D24 D22 D25 D26 D27 D28 W3 W3 W3 W4 W4 W5 W5 W8 W5 W9 W6 W6 W7 W6 W6 W10 W9 W11 W11 W12 W13W14 W15 W4 D5 D5 D5 D6 D6 D6 D13 D-13 SC01 D-13 SC02 D-14 SC03 D-15 SC05 D-16 SC08 D-17 SC09 D-17 SC10 D-14 SC04 D-18 SC12 D-18 SC11 D-16 SC07 D-15 SC06 42425 3945 6410 5900 95152465 22832170 9530 34507367 4080 7480 2450 27602780 3975 3277 4090 4090 33904715 15953 4815 7905 9790 4070 395511968 3187798 8055 4070406239908401072200539901850 5840 1 4 1 4 TC TW TF NV 241054890 400023802265345054803435309522452645 5 3950 1 A0 A1 A B C D E F G J K L M N 1a 2 3 4 5a 5b 6 7 8 9 10 5 2a H 9 5 W7 W5 W16 W16 AA C - 09 AA C - 09 BB C - 09 BB C - 09 EE C - 10 EE C - 10 DD C - 10 DD C - 10 CC C - 10 CC C - 10 D20 FOLDING DOOR, EDGE HUNG 1070 x 1900 DOOR SCHEDULE NO. SIZE TYPE D1 D2 D3 D4 D5 D6 D7 D8 D9 D10 D11 D12 D13 D14 D15 D16 D17 D18 D19 D21 D22 D23 D28 D24 D25 D26 D27 D29 D30 W16 D31 D32 D33 D34 D35 D36 D37 D38 D39 D40 D41 D42 2152 x 2600 2152 x 2600 1336 x 2600 1336 x 2600 1200 x 2070 1200 x 2070 1020 x 1990 1375 x 2465 1220 x 2090 3830 x 2340 DOUBLE LEAF, SINGLE ACTION 1050 x 1566 FOLDING DOOR, EDGE HUNG 1520 x 2225 - DITTO - FOLDING DOOR, EDGE HUNG 1220 x 2090 1120 x 1820 1250 x 2245 1150 x 1985 1180 x 2095 1100 x 1850 860 x 1700 2580 x 1760 1275 x 2340 1275 x 2340 DOUBLE LEAF, SINGLE ACTION DOUBLE LEAF, SINGLE ACTION 1275 x 2340 FOLDING DOOR, EDGE HUNG 1060 x 2200 1820 x 2200 1336 x 2600 1365 x 2048 910 x 2200 2230 x 2200 800 x 2200 1430 x 2200 3215 x 2200 1807 x 2200 1158 x 2080 DOUBLE LEAF, SINGLE ACTION 1370 x 2120 1250 x 2116 1010 x 2095 1158 x 2080 SINGLE LEAF, DOUBLE ACTION, GLASS DOUBLE LEAF, DOUBLE ACTION, GLASS 1020 x 1330 DOUBLE LEAF, SINGLE ACTION - DITTO - - DITTO - - DITTO - - DITTO - - DITTO - - DITTO - - DITTO - - DITTO - - DITTO - - DITTO - - DITTO - - DITTO - - DITTO - - DITTO - - DITTO - - DITTO - - DITTO - DOUBLE LEAF, DOUBLE ACTION, GLASS - DITTO - - DITTO - - DITTO - - DITTO - - DITTO - - DITTO - - DITTO - WINDOW SCHEDULE W1 W2 W3 W4 W5 W6 W7 W8 W9 W10 W11 W12 W13 W14 W15 W17 W18 W19 W20 W21 W22 W23 W24 W25 1520 x 2600 980 x 1975 1010 x 1560 1130 x 1560 1040 x 1745 900 x 1345 420 x 1345 910 x 995 1050 x 1566 LOUVRE WINDOW ARCHED WINDOW ARCHED WINDOW - DITTO - 1300 x 1618 960 x 1210 2150 x 1285 1300 x 1717 1035 x 1965 1260 x 1435 3110 x 2094 1300 x 1680 GLASS WINDOW 790 x 1350 DOUBLE HUNG - DITTO - - DITTO - - DITTO - DOUBLE HUNG LOUVRE WINDOW - DITTO - - DITTO - ARCHED WINDOW, GLASS DOUBLE HUNG 1140 x 1470 960 x 1470 3600 x 2768 - DITTO - - DITTO - 1200 x 2250 805 x 2200 - DITTO - SINGLE LEAF, SINGLE ACTION 1200 x 2100 - DITTO - - DITTO - FOLDING DOOR, EDGE HUNG - DITTO - DOUBLE HUNG - DITTO - - DITTO - 920 x 1260 1260 x 1435 - DITTO - 3624 x 1700 - DITTO - - DITTO - - DITTO - SHEET NO. NO. SIZE TYPESHEET NO. E - 20 E - 20 E - 20 E - 20 E - 21 E - 21 E - 22 E - 22 E - 21 E - 20 E - 25 E - 22 E - 22 E - 22 E - 22 E - 21 E - 23 E - 25 E - 25 E - 21 E - 23 E - 23 E - 22 E - 22 E - 21 E - 23 E - 21 E - 23 E - 23 E - 24 E - 24 E - 24 E - 24 E - 24 E - 24 E - 25 E - 24 E - 23 E - 25 E - 25 E - 25 E - 23 E - 26 E - 26 E - 27 E - 27 E - 26 E - 26 E - 26 E - 28 E - 27 E - 27 E - 27 E - 27 E - 27 E - 28 E - 28 E - 28 E - 28 E - 29 E - 28 E - 29 E - 28 E - 26 E - 26 E - 28 E - 29 1 2 3 4 1 - CEILING TYPE 2 - WALL TYPE 3 - FLOOR TYPE 4 - NATURAL VENTILATION (N/V) AIR-CONDITIONED (A/C) SPECIFICATION: TC TIMBER CEILING BOARD BW 1 240mm THK BRICK WALL BW 2 120mm THK BRICK WALL CPT CARPET TF TIMBER FLOOR BOARD NV NATURAL VENTILATION AC AIR-CONDITIONING CR CEMENT RENDER TL TILE PTN PARTITION WALL TW TIMBER WALL BW 3 200mm THK BRICK WALL CP CONCRETE PAVEMENT LEGEND STARTING DATE DATE SCALE CHECKED BY FIRST FLOOR PLAN PROJECT TITLE MEASURED BY DRAWN BY ARC 1215 METHODS OF DOCUMENTATION AND MEASURED DRAWING ON ROYAL MUSEUM KEDAH, LOT 82, SEKSYEN 16 ALOR STAR, KOTA SETAR, KEDAH DRAWING TITLE NOTE 2017/ ARC1215/ RMUZKEDAH A 03 31 DRAWING NO. ISSUE SHEET NO. 20.01.2017 06.03.2017 1 : 75 WONG WAN JIUAN, RACHEAL CHEONG, LIM ZIA HUEI, CHONG CHIN PIN, HOW SENG GUAN MR. KHAIROOL TRM'S MEMBERS N SCALE 1 : 75 FIRST FLOOR PLAN 0 0.5 1 21.5 3 4 5 6 7 7.5 (M) M 1 : 75
  • 5.
    FALLFALL FALLFALL FALL FALL FALL FALL FALL FALL FALL FALL FALL FALL FALL FALL FALL FALL FALL FALL FALL FALL FALL FALL FALL 4242564105900 9530 2283 39534070 14388 315040623990 25746 9515 2170 18927 3187 241054890 864534505480653022452645 FALL FALL 9 5 1 A0 A1 A B C D E F G J K L M N 1a 2 3 4 5a 5b 6 7 8 9 10 5 2a AA C - 09 H BB C - 09 BB C - 09 EE C - 10 EE C - 10 DD C - 10 DD C - 10 CC C - 10 CC C - 10 AA C - 09 FALL FALL N SCALE 1 : 75 ROOF PLAN STARTING DATE DATE SCALE CHECKED BY ROOF PLAN PROJECT TITLE MEASURED BY DRAWN BY ARC 1215 METHODS OF DOCUMENTATION AND MEASURED DRAWING ON ROYAL MUSEUM KEDAH, LOT 82, SEKSYEN 16 ALOR STAR, KOTA SETAR, KEDAH DRAWING TITLE NOTE 2017/ ARC1215/ RMUZKEDAH A 04 31 DRAWING NO. ISSUE SHEET NO. 20.01.2017 06.03.2017 1 : 75 WONG WAN JIUAN MR. KHAIROOL - 0 0.5 1 21.5 3 4 5 6 7 7.5 (M) M 1 : 75
  • 6.
    VERANDAHS' EAVE LINE 1 A0A1 A B C D E F G J K L M N 1a 2 3 4 5a 5b 6 7 8 9 10 5 2a H 424256410 5900 9530 2283 39534070 14388 315040623990 25746 9515 2170 18927 3187 24105 4000238022653450548034353095 9 5 STARTING DATE DATE SCALE CHECKED BY 20.01.2017 06.03.2017 1 : 75 LIM ZANYU, WONG WAN JIUAN MR. KHAIROOL - GROUND FLOOR REFLECTED CEILING PLAN PROJECT TITLE MEASURED BY DRAWN BY ARC 1215 METHODS OF DOCUMENTATION AND MEASURED DRAWING ON ROYAL MUSEUM KEDAH, LOT 82, SEKSYEN 16 ALOR STAR, KOTA SETAR, KEDAH DRAWING TITLE NOTE 2017/ ARC1215/ RMUZKEDAH A 05 31 DRAWING NO. SHEET NO. 0 0.5 1 21.5 3 4 5 6 7 7.5 (M) M 1 : 75 N SCALE 1 : 75 REFLECTED CEILING PLAN GROUND FLOOR
  • 7.
    1 A0 A1 AB C D E F G J K L M N 1a 2 3 4 5a 5b 6 7 8 9 10 5 2a H 424256410 5900 9530 2283 39534070 18305 315040623990 25746 9515 2170 18927 3187 241054890 400023802265345054803435309522452645 9 5 C.L. ±4.4M C.L. ±4.6M C.L. ±4.0M C.L. ±4.0M C.L. ±4.0M C.L. ±3.5M C.L. ±4.2M 9790 3917 LEGEND HANGING LIGHT CEILING LIGHT CANOPY / ORNAMENTATION RECESSED FLUORESCENT FIXTURE CHANDELIER TIMBER CEILING BOARD BATTEN FLUORESCE N SCALE 1 : 75 REFLECTED CEILING PLAN STARTING DATE DATE SCALE CHECKED BY PROJECT TITLE MEASURED BY DRAWN BY ARC 1215 METHODS OF DOCUMENTATION AND MEASURED DRAWING ON ROYAL MUSEUM KEDAH, LOT 82, SEKSYEN 16 ALOR STAR, KOTA SETAR, KEDAH DRAWING TITLE NOTE 2017/ ARC1215/ RMUZKEDAH A 06 31 DRAWING NO. SHEET NO. FIRST FLOOR REFLECTED CEILING PLAN 1. CEILING HEIGHT LEVEL IS MEASURED FROM THE FIRST FLOOR'S FINISHED FLOOR LEVEL 20.01.2017 06.03.2017 1 : 75 LIM ZANYU, WONG WAN JIUAN MR. KHAIROOL - 0 0.5 1 21.5 3 4 5 6 7 7.5 (M) M 1 : 75 FIRST FLOOR
  • 8.
    25004400 FIRST FLOOR LEVEL GROUNDLEVEL (G.L. 0) 28004600 FIRST FLOOR LEVEL GROUND LEVEL (G.L. 0 ) 1 1a 2 2a 3 5a 5b 6 8 10 33768 3950 3955 MUSEUM MAIN ENTRANCE 9790 20023 3990 1850 3917 3990 4062 3985 4070 WEDDING HALL PRAYER ROOM 54735 2780 9515 48154080 3975 21702450 2283 18927 471573677480 3450 6410 2465 3945 11813 2760 RUMAH PELAMINMIDDLE ROOMEXHITBITION AREA PRAYER ROOMWASH ROOM 25004400 FIRST FLOOR LEVEL GROUND LEVEL (G.L. 0 ) 32404200 FIRST FLOOR LEVEL GROUND LEVEL (G.L. 0) A0A1ABCDEFGHJKLMN STARTING DATE DATE SCALE CHECKED BY 20.01.2017 06.03.2017 1 : 75 RACHAEL CHEONG, LIM ZIA HUEI, TEO VI VIEN, CHONG CHIN PING, WONG WAN JIUAN MR. KHAIROOL TRM'S MEMBERS SOUTHWEST ELEVATION NORTHWEST ELEVATION PROJECT TITLE MEASURED BY DRAWN BY ARC 1215 METHODS OF DOCUMENTATION AND MEASURED DRAWING ON ROYAL MUSEUM KEDAH, LOT 82, SEKSYEN 16 ALOR STAR, KOTA SETAR, KEDAH DRAWING TITLE NOTE 2017/ ARC1215/ RMUZKEDAH B 07 31 DRAWING NO. SHEET NO. 0 0.5 1 21.5 3 4 5 6 7 7.5 (M) M 1 : 75 SCALE 1 : 75 NORTHWEST ELEVATION SCALE 1 : 75 SOUTHWEST ELEVATION
  • 9.
    54735 27602780 RUMAH PELAMIN 9515 MIDDLE ROOMEXHITBITION AREA 4815 40803975 2170 24502283 18927 4715 7367 7480 3450 PRAYER ROOM 6410 24653945 11813 WASH ROOM 28004600 FIRST FLOOR LEVEL GROUND LEVEL (G.L. 0) 32404200 FIRST FLOOR LEVEL GROUND LEVEL (G.L. 0 ) CA EB D F G HA1A0 J MLK N 32004968 ROOF LEVEL FIRST FLOOR LEVEL GROUND LEVEL GROUND LEVEL FIRST FLOOR LEVEL ROOF LEVEL 32004968 28981 8636 3991 SULTAN'S ENTRANCEWASH AREA 7954 3450548034357980 EXHIBITION AREAVERANDAH 3 23802265 30954885 11a10 STARTING DATE DATE SCALE CHECKED BY 20.01.2017 06.03.2017 1 : 75 RACHAEL CHEONG, LIM ZIA HUEI, TEO VI VIEN, CHONG CHIN PING, WONG WAN JIUAN MR. KHAIROOL TRM'S MEMEBERS SOUTHEAST ELEVATION NORTHEAST ELEVATION PROJECT TITLE MEASURED BY DRAWN BY ARC 1215 METHODS OF DOCUMENTATION AND MEASURED DRAWING ON ROYAL MUSEUM KEDAH, LOT 82, SEKSYEN 16 ALOR STAR, KOTA SETAR, KEDAH DRAWING TITLE NOTE 2017/ ARC1215/ RMUZKEDAH B 08 31 DRAWING NO. SHEET NO. 0 0.5 1 21.5 3 4 5 6 7 7.5 (M) M 1 : 75 SCALE 1 : 75 SOUTHEAST ELEVATION SCALE 1 : 75 NORTHEAST ELEVATION
  • 10.
    1a 3917 MUSEUM MAIN ENTRANCE 3110 33768 62 85a 5b 3955 3990 20023 3990 9790 2a 40623950 WEDDING HALL 2790 1850 3985 CEILING LEVEL (C.L. ±4.6M) 4070 4585 GROUND LEVEL (G.L. 0) BEDROOM - BILIK BERADU 3445 24904385 CEILING LEVEL (C.L. ±4.4M) GROUND LEVEL (G.L. 0) FIRST FLOOR LEVEL (F.F.L. ±2.5M) FIRST FLOOR LEVEL (F.F.L. ±2.8M) 4580 CEILING LEVEL (C.L. ±4.6M) 2820 3240 GROUND LEVEL (F.F.L. 0) FIRST FLOOR LEVEL (F.F.L. ±2.8M) CEILING LEVEL (C.L. ±4.2M) GROUND LEVEL (G.L. 0 ) FIRST FLOOR LEVEL (F.F.L. ±3.2M) 4200 A B C D E F G J K L M NH 48325 9515 2780 3975 2760 4715 4815 2283 7367 4080 7480 2170 18927 2450 3450 RUMAH PELAMIN MIDDLE ROOM EXHITBITION AREAPRAYER ROOM WASH ROOM A1A0 STARTING DATE DATE SCALE CHECKED BY SECTION B - B SECTION A - A PROJECT TITLE MEASURED BY DRAWN BY ARC 1215 METHODS OF DOCUMENTATION AND MEASURED DRAWING ON ROYAL MUSEUM KEDAH, LOT 82, SEKSYEN 16 ALOR STAR, KOTA SETAR, KEDAH DRAWING TITLE NOTE 2017/ ARC1215/ RMUZKEDAH C 09 31 DRAWING NO. ISSUE SHEET NO. 20.01.2017 06.03.2017 1 : 75 LIM ZIA HUEI, CHONG CHIN PIN, HOW SENG GUAN MR. KHAIROOL TRM'S MEMBERS SECTION B - B SCALE 1 : 75 0 0.5 1 21.5 3 4 5 6 7 7.5 (M) M 1 : 75 SECTION A - A SCALE 1 : 75
  • 11.
    33004200 CEILING LEVEL (C.L.±4.6M) FIRST FLOOR LEVEL (F.F.L. ±2.8M) GROUND LEVEL (F.F.L. 0) 37213 29003500 CEILING LEVEL (C.L. ±4.2M) FIRST FLOOR LEVEL (F.F.L. ±2.9M) GROUND LEVEL (G.L. 0 ) 3 110 28 5a5b 4600152702318 4217 7905 SULTAN'S ENTRANCEEXHIBITION AREA 2910 3530 5480 33502903 25003975 GROUND LEVEL (G.L. 0) 2500 CEILING LEVEL (C.L. ±4.0M) 3975 GROUND LEVEL (G.L. 0) CEILING LEVEL (C.L. ±4.0M) 1a 3917 MUSEUM MAIN ENTRANCE 3 10 29813 62 85a 5b 3990 20023 3990 9790 2a 40623950 WEDDING HALL 1850 3985 4070 BEDROOM - BILIK BERADU 3445 FIRST FLOOR LEVEL (F.F.L. ±2.5M) FIRST FLOOR LEVEL (F.F.L. ±2.5M) STARTING DATE DATE SCALE CHECKED BY SECTION D - D SECTION C - C PROJECT TITLE MEASURED BY DRAWN BY ARC 1215 METHODS OF DOCUMENTATION AND MEASURED DRAWING ON ROYAL MUSEUM KEDAH, LOT 82, SEKSYEN 16 ALOR STAR, KOTA SETAR, KEDAH DRAWING TITLE NOTE 2017/ ARC1215/ RMUZKEDAH C 10 31 DRAWING NO. ISSUE SHEET NO. 20.01.2017 06.03.2017 1 : 75 LIM ZIA HUEI, CHONG CHIN PIN, HOW SENG GUAN MR. KHAIROOL TRM'S MEMBERS SECTION D - D SCALE 1 : 75 0 0.5 1 21.5 3 4 5 6 7 7.5 (M) M 1 : 75 SECTION C- C SCALE 1 : 75
  • 12.
    FIRST FLOOR LEVEL(F.F.L. ±2.0M) GROUND LEVEL (G.L. 0 ) 19852325 CEILING LEVEL (C.L. ±4.2M) 11704227 CEILING LEVEL (C.L. ±4.6M) FIRST FLOOR LEVEL (F.F.L. ±1.2M) GROUND LEVEL (F.F.L. 0) A B C D E F G J K L M NH 48325 9515 2780 3975 2760 4715 4815 2283 7367 4080 7480 2170 2283 18927 2450 3450 RUMAH PELAMIN MIDDLE ROOM EXHITBITION AREAPRAYER ROOM WASH ROOM A1A0 STARTING DATE DATE SCALE CHECKED BY SECTION E - E PROJECT TITLE MEASURED BY DRAWN BY ARC 1215 METHODS OF DOCUMENTATION AND MEASURED DRAWING ON ROYAL MUSEUM KEDAH, LOT 82, SEKSYEN 16 ALOR STAR, KOTA SETAR, KEDAH DRAWING TITLE NOTE 2017/ ARC1215/ RMUZKEDAH C 11 31 DRAWING NO. ISSUE SHEET NO. 20.01.2017 06.03.2017 1 : 75 LIM ZIA HUEI, CHONG CHIN PIN, HOW SENG GUAN MR. KHAIROOL TRM'S MEMBERS SECTION E - E SCALE 1 : 75 0 0.5 1 21.5 3 4 5 6 7 7.5 (M) M 1 : 75
  • 13.
    54735 A0A1ABCDEFGHJKLMN 2780 9515 48154080 3975 21702450 2283 18927 471573677480 3450 6410 24653945 11813 2760 RUMAH PELAMINMIDDLE ROOMEXHITBITION AREA PRAYER ROOMWASH ROOM 25004400 CEILING LEVEL (C.L. ±4.4M) FIRST FLOOR LEVEL (F.F.L. ±2.5M) GROUND LEVEL (G.L. 0 ) 32404200 CEILING LEVEL (C.L. ±4.2M) FIRST FLOOR LEVEL (F.F.L. ±3.2M) GROUND LEVEL (G.L. 0) 1837374 2415416818 3813 5275 808425 1692 808 425 3597 5901488593 629 173154 3629 3852105 3629 6293852105 3597 590 1490 590 GATE 01 - 03 NORTHWEST ELEVATION (STREET VIEW) CLIENT PROJECT TITLE ARC 1215 METHODS OF DOCUMENTATION AND MEASURED DRAWING ON ROYAL MUSEUM KEDAH, LOT 82, SEKSYEN 16 ALOR STAR, KOTA SETAR, KEDAH DRAWING TITLE NOTE 01 FRONT ELEVATION SCALE 1 : 25 02 REAR ELEVATION SCALE 1 : 25 01 FRONT ELEVATION SCALE 1 : 25 01 FRONT ELEVATION SCALE 1 : 25 02 REAR ELEVATION SCALE 1 : 25 02 REAR ELEVATION SCALE 1 : 25 G01 GATE 01 G02 GATE 02 G03 GATE 03 NORTHWEST ELEVATION (STREET VIEW) SCALE 1 : 75 DRAWING NO. STARTING DATE DATE SCALE CHECKED BY 20.01.2017 03.03.2017 AS SHOWN TRM'S MEMBERS MR. KHAIROOL TRM'S MEMBERSMEASURED BY DRAWN BY 2017/ ARC1215/ RMUZKEDAH D 12 31 SHEET NO.ISSUE
  • 14.
    2630 475 1535 485 3130 3502648 2383 2125 2700 12501250 100200100 2210 2430 2580 4120 20002000 1075985 2510 2210 2130 402 3057 2755 2130 475 1535 485 2630 GATE 04 - 07 CLIENT PROJECT TITLE ARC 1215 METHODS OF DOCUMENTATION AND MEASURED DRAWING ON ROYAL MUSEUM KEDAH, LOT 82, SEKSYEN 16 ALOR STAR, KOTA SETAR, KEDAH DRAWING TITLE NOTE SCALE 1 : 25 G05 GATE 05 02 REAR ELEVATION SCALE 1 : 25 01 FRONT ELEVATION SCALE 1 : 25 01 FRONT ELEVATION SCALE 1 : 25 01 FRONT ELEVATION SCALE 1 : 25 02 REAR ELEVATION SCALE 1 : 25 G04 GATE 04 G05 GATE 05 G06 GATE 06 G07 GATE 07 02 REAR ELEVATION SCALE 1 : 25 01 FRONT ELEVATION SCALE 1 : 25 DRAWING NO. STARTING DATE DATE SCALE CHECKED BY 20.01.2017 03.03.2017 AS SHOWN TRM'S MEMBERS MR. KHAIROOL TRM'S MEMBERSMEASURED BY DRAWN BY 2017/ ARC1215/ RMUZKEDAH D 13 31 SHEET NO.ISSUE
  • 15.
    1 2 3 4 5 6 7 8 9 10 3067 300 3199639 1888 639 2936 1915 200 1888 2936 1888 4716 5782 1876570 682 682 682 1 2 3 4 5 6 7 8 9 10 3295290 3717 2523 656656 3088 2410 1432 3729 2565 582582 3088 1432 2940 682 01 PLAN 02 SIDE ELEVATION 03 FRONT ELEVATION 04 SECTION 05 SECTION DETAIL 06 ISONOMETRIC 01 PLAN 02 SIDE ELEVATION 03 FRONT ELEVATION 04 SECTION 05 SECTION DETAIL 06 ISONOMETRIC SCALE 1 : 25 SC02 STAIRCASE 02 SCALE 1 : 25 SC01 STAIRCASE 01 SCALE 1:25 SCALE 1:10 SCALE 1:10 SCALE 1:25 SCALE 1:25 SCALE 1:25 SCALE 1:25 SCALE 1:25 SCALE 1:25 SCALE 1:25 STARTING DATE DATE SCALE CHECKED BY 20.01.2017 06.03.2017 AS SHOWN ALLEN MR. KHAIROOL TRM'S MEMBERS STAIRCASE 02 STAIRCASE 01 PROJECT TITLE MEASURED BY DRAWN BY ARC 1215 METHODS OF DOCUMENTATION AND MEASURED DRAWING ON ROYAL MUSEUM KEDAH, LOT 82, SEKSYEN 16 ALOR STAR, KOTA SETAR, KEDAH DRAWING TITLE NOTE 2017/ ARC1215/ RMUZKEDAH D 14 31 DRAWING NO. SHEET NO. 20 x 200 FLOOR BOARD 180 x 180 H.W. BEAM 190 x 130 H.W. BEAM
  • 16.
    3 4 5 6 7 8 9 10 11 1 2 3490 2870 660 260 1930 1520 100 100 2760 2050 230 1930 124070 70 3364 1240 950 200 3440 66050 2770 1 2 3 4 5 6 7 8 9 10 11 12 13 14 3746 210 2680 1570 555 555 3909 2910 210 3152 2318 702 702 3884 1550 3710 1399 05 SECTION DETAIL 06 ISONOMETRIC 05 SECTION DETAIL 06 ISONOMETRIC 01 PLAN 02 SIDE ELEVATION 03 FRONT ELEVATION 04 SECTION 01 PLAN 02 SIDE ELEVATION 03 FRONT ELEVATION 04 SECTION SCALE 1 : 25 SC04 STAIRCASE 04 SCALE 1 : 25 SC03 STAIRCASE 03 SCALE 1:25 SCALE 1:25 SCALE 1:25 SCALE 1:25 SCALE 1:25 SCALE 1:25 SCALE 1:25SCALE 1:25 SCALE 1:5 SCALE 1:10 STARTING DATE DATE SCALE CHECKED BY 20.01.2017 06.03.2017 AS SHOWN ALLEN MR. KHAIROOL TRM'S MEMBERS STAIRCASE DETAILS 1 PROJECT TITLE MEASURED BY DRAWN BY ARC 1215 METHODS OF DOCUMENTATION AND MEASURED DRAWING ON ROYAL MUSEUM KEDAH, LOT 82, SEKSYEN 16 ALOR STAR, KOTA SETAR, KEDAH DRAWING TITLE NOTE 2017/ ARC1215/ RMUZKEDAH D 15 31 DRAWING NO. SHEET NO. 20 x 200 FLOOR BOARD 180 x 180 H.W. BEAM 190 x 130 H.W. BEAM
  • 17.
    1 2 3 4 5 6 7 8 9 10 11 12 13 14 15 16 17 4913 1225 3735 235 620 1719 100095 2940 1140250 1625 98095 1291 160 5160 27595 38161080150 620 1 2 3 4 5 6 7 8 9 10 11 12 3713 1050 3296 1056 130 350 1530 1220 95 1050 1752 1220 95 95 2940 1056350130 240 2828 95 95 2840 3820 04 SECTION DETAIL 05 ISONOMETRIC 04 SECTION DETAIL 05 ISONOMETRIC 01 PLAN 03 SIDEELEVATION 02 FRONT ELEVATION 01 PLAN 03 SIDE ELEVATION 02 FRONT ELEVATION SCALE 1 : 25 SC05 STAIRCASE 05 SCALE 1 : 25 SC06 STAIRCASE 06 SCALE 1:25 SCALE 1:25 SCALE 1:25 SCALE 1:25 SCALE 1:25 SCALE 1:25 SCALE 1:5 SCALE 1:5 20 x 200 FLOOR BOARD 180 x 180 H.W. BEAM 190 x 130 H.W. BEAM STARTING DATE DATE SCALE CHECKED BY 20.01.2017 06.03.2017 AS SHOWN ALLEN MR. KHAIROOL TRM'S MEMBERS STAIRCASE DETAILS 1 PROJECT TITLE MEASURED BY DRAWN BY ARC 1215 METHODS OF DOCUMENTATION AND MEASURED DRAWING ON ROYAL MUSEUM KEDAH, LOT 82, SEKSYEN 16 ALOR STAR, KOTA SETAR, KEDAH DRAWING TITLE NOTE 2017/ ARC1215/ RMUZKEDAH D 16 31 DRAWING NO. SHEET NO. 20 x 200 FLOOR BOARD 180 x 180 H.W. BEAM 190 x 130 H.W. BEAM
  • 18.
    1 2 3 4 5 6 1675 1400 200 2310 1220 80 1380 150180 2310 1220 170170 2212 150180 1768 540 1350 240 80 1 2 3 4 5 6 7 8 9 10 3388 2680 744 2874 280 2330 1560 110 2245 1991118190 2947 2201100190 3340 770 300 2330 1440 100110 110 05 SECTIONDETAIL 06 ISONOMETRIC 05 SECTION DETAIL 06 ISONOMETRIC 01 PLAN 02 SIDE ELEVATION 03 FRONT ELEVATION 04 SECTION 01 PLAN 02 SIDE ELEVATION 03 FRONT ELEVATION 04 SECTION SCALE 1 : 25 SC08 STAIRCASE 08 SCALE 1 : 25 SC07 STAIRCASE 07 SCALE 1:25 SCALE 1:25 SCALE 1:25SCALE 1:25 SCALE 1:25 SCALE 1:25 SCALE 1:25SCALE 1:25 SCALE 1:5 SCALE 1:5 20 x 200 FLOOR BOARD 180 x 180 H.W. BEAM 190 x 130 H.W. BEAM 20 x 200 FLOOR BOARD 180 x 180 H.W. BEAM 190 x 130 H.W. BEAM STARTING DATE DATE SCALE CHECKED BY 20.01.2017 06.03.2017 AS SHOWN ALLEN MR. KHAIROOL TRM'S MEMBERS STAIRCASE DETAILS 1 PROJECT TITLE MEASURED BY DRAWN BY ARC 1215 METHODS OF DOCUMENTATION AND MEASURED DRAWING ON ROYAL MUSEUM KEDAH, LOT 82, SEKSYEN 16 ALOR STAR, KOTA SETAR, KEDAH DRAWING TITLE NOTE 2017/ ARC1215/ RMUZKEDAH D 17 31 DRAWING NO. SHEET NO.
  • 19.
    1 2 3 4 5 6 7 8 9 10 11 12 13 3376 2993 570240 1530 1220 95 95 3174 1276 220 3376 570 2971 3268 2265220 1056174 1530 1220 95 95 1 2 3 4 5 6 7 8 9 10 11 12 2505 2275 210 1365 1125120120 2515 1764 265645 2505 2275 195 1365 1125 120120 05 SECTION DETAIL 06 ISONOMETRIC 05 SECTION DETAIL 06 ISONOMETRIC 01 PLAN 02 SIDE ELEVATION 03 FRONT ELEVATION 04 SECTION 01 PLAN 02 SIDE ELEVATION 03 FRONT ELEVATION 04 SECTION SCALE 1 : 25 SC09 STAIRCASE 09 SCALE 1 : 25 SC10 STAIRCASE 10 SCALE 1:25 SCALE 1:25 SCALE 1:25 SCALE 1:25 SCALE 1:25SCALE 1:25 SCALE 1:25 SCALE 1:25 SCALE 1:5 SCALE 1:5 STARTING DATE DATE SCALE CHECKED BY 20.01.2017 06.03.2017 AS SHOWN ALLEN MR. KHAIROOL TRM'S MEMBERS STAIRCASE DETAILS 1 PROJECT TITLE MEASURED BY DRAWN BY ARC 1215 METHODS OF DOCUMENTATION AND MEASURED DRAWING ON ROYAL MUSEUM KEDAH, LOT 82, SEKSYEN 16 ALOR STAR, KOTA SETAR, KEDAH DRAWING TITLE NOTE 2017/ ARC1215/ RMUZKEDAH D 18 31 DRAWING NO. SHEET NO. 20 x 200 FLOOR BOARD 180 x 180 H.W. BEAM 190 x 130 H.W. BEAM 20 x 200 FLOOR BOARD 180 x 180 H.W. BEAM 190 x 130 H.W. BEAM
  • 20.
    1 2 3 4 225 1215 100 1500 185 840 1155 100 1970 1500 185 991 100 246 1091 1 2 3 4 5 990 166 1150 100 2067 1300 196 1015 100 19170 1300 196 1090 100 05 SECTION DETAIL 06 ISONOMETRIC 05 SECTION DETAIL 06 ISONOMETRIC 01 PLAN 02 SIDE ELEVATION 03 FRONT ELEVATION 04 SECTION 01 PLAN 02 SIDE ELEVATION 03 FRONT ELEVATION 04 SECTION SCALE 1 : 25 SC11 STAIRCASE 11 SCALE 1 : 25 SC12 STAIRCASE 12 SCALE 1:25 SCALE 1:25 SCALE 1:25SCALE 1:25 SCALE 1:25 SCALE 1:25 SCALE 1:25SCALE 1:25 SCALE 1:5 SCALE 1:5 20 x 200 FLOOR BOARD 180 x 180 H.W. BEAM 190 x 130 H.W. BEAM 20 x 200 FLOOR BOARD 180 x 180 H.W. BEAM 190 x 130 H.W. BEAM 20 x 200 FLOOR BOARD 180 x 180 H.W. BEAM 190 x 130 H.W. BEAM STARTING DATE DATE SCALE CHECKED BY 20.01.2017 06.03.2017 AS SHOWN ALLEN MR. KHAIROOL TRM'S MEMBERS STAIRCASE DETAILS 1 PROJECT TITLE MEASURED BY DRAWN BY ARC 1215 METHODS OF DOCUMENTATION AND MEASURED DRAWING ON ROYAL MUSEUM KEDAH, LOT 82, SEKSYEN 16 ALOR STAR, KOTA SETAR, KEDAH DRAWING TITLE NOTE 2017/ ARC1215/ RMUZKEDAH D 19 31 DRAWING NO. SHEET NO. 20 x 200 FLOOR BOARD 180 x 180 H.W. BEAM 190 x 130 H.W. BEAM
  • 21.
    465 795 795 500 700 700 465 746 746 200 258 620 2360 200 620 500 700 2670 465 746 21302490 465 795 2017/ ARC1215/ RMUZKEDAH D20 31 01 PLAN SCALE 1: 25 C01 COLUMN 01 C02 COLUMN 02 C03 COLUMN 03 C04 COLUMN 04 01 ORNAMENTATION 01 02 ORNAMENTATION 02 03 ORNAMENTATION 03 04 ORNAMENTATION 04 05 ORNAMENTATION 07 05 NOT TO SCALE NOT TO SCALE NOT TO SCALE NOT TO SCALE NOT TO SCALE STARTING DATE DATE SCALE CHECKED BY 20.01.2017 06.03.2017 AS SHOWN PE ZHI YONG MR. KHAIROOL TRM'S MEMBERS ORNAMENTATION OF DOORS 20 & 23 ORNAMENTATION OF CELING LIGHT CANOPIES COLUMN 01 - 04 PROJECT TITLE MEASURED BY DRAWN BY ARC 1215 METHODS OF DOCUMENTATION AND MEASURED DRAWING ON ROYAL MUSEUM KEDAH, LOT 82, SEKSYEN 16 ALOR STAR, KOTA SETAR, KEDAH DRAWING TITLE NOTE DRAWING NO. SHEET NO. 06 ORNAMENTATION 05 07 ORNAMENTATION 06 07 06 NOT TO SCALE NOT TO SCALE L01 ORNAMENTATION OF CELING LIGHT CANOPIES D20 DOOR 20 D23 DOOR 23 SCALE 1 : 25 SCALE 1 : 25 02 ELEVATION SCALE 1: 25 03 ISONOMETRIC SCALE 1: 25 01 PLAN SCALE 1: 25 02 ELEVATION SCALE 1: 25 03 ISONOMETRIC SCALE 1: 25 01 PLAN SCALE 1: 25 02 ELEVATION SCALE 1: 25 03 ISONOMETRIC SCALE 1: 25 01 PLAN SCALE 1: 25 02 ELEVATION SCALE 1: 25 03 ISONOMETRIC SCALE 1: 25
  • 22.
    2152 1832 400 240 100 1592 15301560102010 10401010 2152 1832 399 390 2600 1750 399390 137 198 375 600970 408 408408408 280 280 280280 1832 2152 1832 400 240 100 1592 2152 1832 399 390 2600 1750 399390 198 375 600637300 408 408 408408 280 280 280280 1832 400 240 100 1336 1016 776 1336 1016 254 254 254 2600 1750 198 375 5181050 403 413 280 280 1016 400 240 100 1336 1016 776 1336 1016 254 2600 1725 254 198 375 573637 254 300 403 413 280 280 1016 100 3830 3570 585 600 600 600 600 585 3830 2340 1180740 585 600 3570 600 600 600 585 2125 3830 600585 455 455 600 455 600 455 600 455 585 455 DIMENSION REFER TO DIAGRAM QTY MATERIAL DOOR TYPE D1 DESCRIPTION DOOR - TIMBER, GREEN PAINT FRAME - TIMBER, WHITE PAINT DIMENSION REFER TO DIAGRAM QTY MATERIAL DOOR TYPE D2 DESCRIPTION DIMENSION REFER TO DIAGRAM QTY MATERIAL DOOR TYPE D3 DESCRIPTION DIMENSION REFER TO DIAGRAM QTY MATERIAL DOOR TYPE D4 DESCRIPTION DOOR - TIMBER, WHITE PAINT FRAME - TIMBER, WHITE PAINT DIMENSION REFER TO DIAGRAM QTY MATERIAL DOOR TYPE D10 DESCRIPTION DOOR - TIMBER, WHITE PAINT FRAME - TIMBER, WHITE PAINT 1 FOLDING DOOR, EDGE HUNG LOCATED AT FIRST FLOOR, MUSEUM MAIN ENTRANCE (1) DOOR - TIMBER, WHITE PAINT FRAME - TIMBER, WHITE PAINT 1 DOUBLE LEAF, SINGLE ACTION DOOR - TIMBER, WHITE PAINT FRAME - TIMBER, WHITE PAINT 2 SCALE 1 : 25 PLAN 01 SCALE 1 : 25 ISOMETRIC 03 LOCATED AT FIRST FLOOR, EXHIBITION AREA (11) 1 DOUBLE LEAF, SINGLE ACTION LOCATED AT FIRST FLOOR, WEDDING HALL (2) 4 LOCATED AT FIRST FLOOR, MUSEUM MAIN ENTRANCE (1) FOLDING DOOR, EDGE HUNG LOCATED AT FIRST FLOOR, MUSEUM MAIN ENTRANCE (1) FOLDING DOOR, EDGE HUNG SCALE 1 : 25 PLAN 01 SCALE 1 : 25 ISOMETRIC 03 SCALE 1 : 25 ELEVATION (FRONT & BACK) 02 SCALE 1 : 25 PLAN 01 SCALE 1 : 25 ISOMETRIC 03 SCALE 1 : 25 ELEVATION (FRONT & BACK) 02SCALE 1 : 25 ELEVATION (FRONT & BACK) 02 STARTING DATE DATE SCALE CHECKED BY PROJECT TITLE MEASURED BY DRAWN BY ARC 1215 METHODS OF DOCUMENTATION AND MEASURED DRAWING ON ROYAL MUSEUM KEDAH, LOT 82, SEKSYEN 16 ALOR STAR, KOTA SETAR, KEDAH DRAWING TITLE NOTE DRAWING NO. ISSUE SHEET NO. DOOR DETAILS 1 2017/ ARC1215/ RMUZKEDAH E 21 31 20.01.2017 06.03.2017 1 : 25 LIM SHEN, TRM'S MEMBER MR. KHAIROOL TRM'S MEMBER SCALE 1 : 5 SCALE 1 : 25 PLAN 01 SCALE 1 : 25 ISOMETRIC 03 SCALE 1 : 25 PLAN 01 SCALE 1 : 25 ISOMETRIC 03 SCALE 1 : 25 ELEVATION (FRONT & BACK) 02SCALE 1 : 25 ELEVATION (FRONT & BACK) 02
  • 23.
    1200 480 500 9801200 980 100 1990 360360880 1000 490 510 370370 2100 1250 1925 410480650 500 490 9901250 990 100 1010 510 500 340 330 2245 720 2070 960 1200 1200 960 370620 100 1950 490 500 375 375 990 475 485 1220 1994 380380890 524 504 1220 1028 100 1060 540 520 375 375 1028 2090 1200 2070 720370620 9601200 100 960 1950 475 485 990 490 500 375 375 1336 1016 400 240 100 930 1336 1016 302 2600 1870 302 300 472 825330 302 410 475 335 485 335 1016 1760 605590 575 585 585 575 2580 140 1670 585 585 430 585 585 430 430 430 2580 2320 2580 100 575 585 585 575 2320 DIMENSION REFER TO DIAGRAM QTY MATERIAL DOOR TYPE D20 DESCRIPTION DOOR - TIMBER, GREEN PAINT FRAME - TIMBER, WHITE PAINT DIMENSION REFER TO DIAGRAM QTY MATERIAL DOOR TYPE D27 DESCRIPTION DIMENSION REFER TO DIAGRAM QTY MATERIAL DOOR TYPE D5 DESCRIPTION DIMENSION REFER TO DIAGRAM QTY MATERIAL DOOR TYPE D6 DESCRIPTION DIMENSION REFER TO DIAGRAM QTY MATERIAL DOOR TYPE D9 DESCRIPTION DOOR - TIMBER, WHITE PAINT FRAME - TIMBER, WHITE PAINT DIMENSION REFER TO DIAGRAM QTY MATERIAL DOOR TYPE D16 DESCRIPTION DOOR - TIMBER, GREEN PAINT FRAME - TIMBER, WHITE PAINT DIMENSION REFER TO DIAGRAM QTY MATERIAL DOOR TYPE D25 DESCRIPTION DOOR - TIMBER, WHITE PAINT FRAME - TIMBER, WHITE PAINT 1 FOLDING DOOR, EDGE HUNG LOCATED AT FIRST FLOOR, ROYAL REGALIA (17) DOUBLE LEAF, SINGLE ACTION DOUBLE LEAF, SINGLE ACTION DOOR - TIMBER, WHITE PAINT FRAME - TIMBER, WHITE PAINT LOCATED AT FIRST FLOOR, YTM TUNKU ABDUL RAHMAN PUTRA'S ROOM (4) DOOR - TIMBER, GREEN PAINT FRAME - TIMBER, WHITE PAINT LOCATED AT FIRST FLOOR, ROYAL COLLECTION (7) 4 1 DOUBLE LEAF, SINGLE ACTION DOOR - TIMBER, WHITE PAINT FRAME - TIMBER, WHITE PAINT 3 SCALE 1 : 25 PLAN 01 SCALE 1 : 25 ISOMETRIC 03 DOUBLE LEAF, SINGLE ACTION LOCATED AT FIRST FLOOR, EXHIBITION AREA (11) 1 DOUBLE LEAF, SINGLE ACTION LOCATED AT FIRST FLOOR, ROYAL COLLECTION AND WEAPON (16) 1 DOUBLE LEAF, SINGLE ACTION LOCATED AT FIRST FLOOR, EXHIBITION AREA (11) 2 SCALE 1 : 25 PLAN 01 SCALE 1 : 25 ELEVATION (FRONT & BACK) 02 SCALE 1 : 25 ISOMETRIC 03 SCALE 1 : 25 ELEVATION (FRONT & BACK) 02 LOCATED AT FIRST FLOOR, ROYAL COLLECTION (7) STARTING DATE DATE SCALE CHECKED BY PROJECT TITLE MEASURED BY DRAWN BY ARC 1215 METHODS OF DOCUMENTATION AND MEASURED DRAWING ON ROYAL MUSEUM KEDAH, LOT 82, SEKSYEN 16 ALOR STAR, KOTA SETAR, KEDAH DRAWING TITLE NOTE DRAWING NO. ISSUE SHEET NO. DOOR DETAILS 2 2017/ ARC1215/ RMUZKEDAH E 22 31 20.01.2017 06.03.2017 1 : 25 LIM SHEN, TRM'S MEMBER MR. KHAIROOL TRM'S MEMBER SCALE 1 : 25 PLAN 01 SCALE 1 : 25 ISOMETRIC 03 SCALE 1 : 25 PLAN 01 SCALE 1 : 25 ISOMETRIC 03 SCALE 1 : 25 PLAN 01 SCALE 1 : 25 ISOMETRIC 03 SCALE 1 : 25 PLAN 01 SCALE 1 : 25 ISOMETRIC 03 SCALE 1 : 25 PLAN 01 SCALE 1 : 25 ISOMETRIC 03 SCALE 1 : 25 ELEVATION (FRONT & BACK) 02 SCALE 1 : 25 ELEVATION (FRONT & BACK) 02 SCALE 1 : 25 ELEVATION (FRONT & BACK) 02 SCALE 1 : 25 ELEVATION (FRONT & BACK) 02 SCALE 1 : 25 ELEVATION (FRONT & BACK) 02
  • 24.
    1020 1918 356680614 433 423 1020 100 856 445 880 435 295 295 1990 856 1375 2465 636504660 593583 11761375 100 1176 1206 608 598 420 420 1220 100 1220 1994 570620550 524 504 1028 1028 1060 540 520 375 375 2228 100 1120 1120 1760 410510480 510 490 1000 980 980 500 480 340 340 1820 100 805 715 805 715 565 2030 500600500 2200 FIRST FLOOR LEVEL (F.F.L. ±3.280M) FIRST FLOOR LEVEL (F.F.L. ±3.280M) 1200 960 100 620 2105 475 485 960 1200 455650 990 490 500 335 335 2250 FIRST FLOOR LEVEL (F.F.L. ±3.2M) FIRST FLOOR LEVEL (F.F.L. ±3.2M) 100 1275 1275 2075 585585585 505 510 1015 1035 1035 515 520 370 370 2340 585585585 1015 100 1275 1035 1275 505 510 2075 370 370 1035 515 520 2340 DIMENSION REFER TO DIAGRAM QTY MATERIAL DOOR TYPE D7 DESCRIPTION DOOR - TIMBER, WHITE PAINT FRAME - TIMBER, WHITE PAINT DIMENSION REFER TO DIAGRAM QTY MATERIAL DOOR TYPE D8 DESCRIPTION DOOR - TIMBER, WHITE PAINT FRAME - TIMBER, WHITE PAINT DIMENSION REFER TO DIAGRAM QTY MATERIAL DOOR TYPE D12 DESCRIPTION DIMENSION REFER TO DIAGRAM QTY MATERIAL DOOR TYPE D13 DESCRIPTION DIMENSION REFER TO DIAGRAM QTY MATERIAL DOOR TYPE D14 DESCRIPTION DIMENSION REFER TO DIAGRAM QTY MATERIAL DOOR TYPE D15 DESCRIPTION DOOR - TIMBER, BROWN PAINT FRAME - TIMBER, BROWN PAINT DIMENSION REFER TO DIAGRAM QTY MATERIAL DOOR TYPE D23 DESCRIPTION DOOR - TIMBER, GREEN PAINT FRAME - TIMBER, WHITE PAINT DIMENSION REFER TO DIAGRAM QTY MATERIAL DOOR TYPE D24 DESCRIPTION DOOR - TIMBER, GREEN PAINT FRAME - TIMBER, WHITE PAINT 1 DOUBLE LEAF, SINGLE ACTION LOCATED AT FIRST FLOOR, EXHIBITION AREA (11) DOUBLE LEAF, SINGLE ACTION LOCATED AT FIRST FLOOR, EXHIBITION AREA (11) DOUBLE LEAF, SINGLE ACTION DOUBLE LEAF, SINGLE ACTION DOOR - TIMBER, WHITE PAINT FRAME - TIMBER, WHITE PAINT LOCATED AT FIRST FLOOR, ROYAL FAMILY (12) DOOR - TIMBER, GREEN PAINT FRAME - TIMBER, WHITE PAINT LOCATED AT FIRST FLOOR, ROYAL FAMILY (12) 1 16 DOUBLE LEAF, SINGLE ACTION DOOR - TIMBER, BROWN PAINT FRAME - TIMBER, BROWN PAINT LOCATED AT FIRST FLOOR, ROYAL FAMILY (12) 1 DOUBLE LEAF, SINGLE ACTION LOCATED AT FIRST FLOOR, VERANDAH (18) 1 DOUBLE LEAF, SINGLE ACTION LOCATED AT FIRST FLOOR, ROYAL REGALIA (17) 1 SINGLE LEAF, SINGLE ACTION LOCATED AT FIRST FLOOR, ROYAL FAMILY (12) 1 STARTING DATE DATE SCALE CHECKED BY PROJECT TITLE MEASURED BY DRAWN BY ARC 1215 METHODS OF DOCUMENTATION AND MEASURED DRAWING ON ROYAL MUSEUM KEDAH, LOT 82, SEKSYEN 16 ALOR STAR, KOTA SETAR, KEDAH DRAWING TITLE NOTE DRAWING NO. ISSUE SHEET NO. DOOR DETAILS 3 2017/ ARC1215/ RMUZKEDAH E 23 31 20.01.2017 06.03.2017 1 : 25 LIM SHEN, TRM'S MEMBER MR. KHAIROOL TRM'S MEMBER SCALE 1 : 25 PLAN 01 SCALE 1 : 25 ISOMETRIC 03 SCALE 1 : 25 PLAN 01 SCALE 1 : 25 ISOMETRIC 03 SCALE 1 : 25 PLAN 01 SCALE 1 : 25 ISOMETRIC 03 SCALE 1 : 25 PLAN 01 SCALE 1 : 25 ISOMETRIC 03 SCALE 1 : 25 PLAN 01 SCALE 1 : 25 ISOMETRIC 03 SCALE 1 : 25 PLAN 01 SCALE 1 : 25 ISOMETRIC 03 SCALE 1 : 25 PLAN 01 SCALE 1 : 25 ISOMETRIC 03 SCALE 1 : 25 PLAN 01 SCALE 1 : 25 ISOMETRIC 03 SCALE 1 : 25 ELEVATION (FRONT & BACK) 02 SCALE 1 : 25 ELEVATION (FRONT & BACK) 02 SCALE 1 : 25 ELEVATION (FRONT & BACK) 02 SCALE 1 : 25 ELEVATION (FRONT & BACK) 02 SCALE 1 : 25 ELEVATION (FRONT & BACK) 02SCALE 1 : 25 ELEVATION (FRONT & BACK) 02SCALE 1 : 25 ELEVATION (FRONT & BACK) 02SCALE 1 : 25 ELEVATION (FRONT & BACK) 02
  • 25.
    100 1275 1015 1015 1275 505 510 595630595 2230 370 370 1035 515520 2365 1365 1069 400 240 100 895 895 1365 450 445 350630590 1820 154515272710 10252025 305 305 915 460 455 2048 1060 960 240 100 1060 960 485 475 350720750 2110 2200 960 340 340 485 475 100 1158 978 345 1158 978 494 484 350630630 1910 350 350 998 494504 2080 1900 1070 100 1070 880 880 900670 1900 900 450 288 288 450 1720 630350630 1920 1250 978 494 100 1250 990 380 350 484 998 350 2116 504 494 860 1700 690690 360 370 226 226 100 860 730 860 370 226 380 226 1100 1100 1750 745745 440 450 890 280 920 890 455 280 100 465 1850 DIMENSION REFER TO DIAGRAM QTY MATERIAL DOOR TYPE D26 DESCRIPTION DOOR - TIMBER, WHITE PAINT FRAME - TIMBER, WHITE PAINT DIMENSION REFER TO DIAGRAM QTY MATERIAL DOOR TYPE D28 DESCRIPTION DOOR - TIMBER, GREEN PAINT FRAME - TIMBER, WHITE PAINT DIMENSION REFER TO DIAGRAM QTY MATERIAL DOOR TYPE D29 DESCRIPTION DIMENSION REFER TO DIAGRAM QTY MATERIAL DOOR TYPE D38 DESCRIPTION DIMENSION REFER TO DIAGRAM QTY MATERIAL DOOR TYPE D42 DESCRIPTION DIMENSION REFER TO DIAGRAM QTY MATERIAL DOOR TYPE D17 DESCRIPTION DOOR - TIMBER, WHITE PAINT FRAME - TIMBER, WHITE PAINT DIMENSION REFER TO DIAGRAM QTY MATERIAL DOOR TYPE D21 DESCRIPTION DOOR - TIMBER, GREEN PAINT FRAME - TIMBER, WHITE PAINT DIMENSION REFER TO DIAGRAM QTY MATERIAL DOOR TYPE D22 DESCRIPTION DOOR - TIMBER, WHITE PAINT FRAME - TIMBER, WHITE PAINT 1 DOUBLE LEAF, SINGLE ACTION LOCATED AT FIRST FLOOR, BEDROOM - BILIK BERADU (5) DOUBLE LEAF, SINGLE ACTION LOCATED AT FIRST FLOOR, PRAYER ROOM (OFFICER'S USE) (3) DOUBLE LEAF, SINGLE ACTION DOUBLE LEAF, SINGLE ACTION FRAME - TIMBER, WHITE PAINT DOOR - TIMBER, GREEN PAINT FRAME - TIMBER, WHITE PAINT LOCATED AT GROUND FLOOR, OFFICE (1) 1 11 DOUBLE LEAF, SINGLE ACTION DOOR - TIMBER, GREEN PAINT FRAME - TIMBER, WHITE PAINT LOCATED AT GROUND FLOOR PLAN, OFFICE (1) 1 DOUBLE LEAF, SINGLE ACTION LOCATED AT FIRST FLOOR, ROYAL REGALIA (17) 1 DOUBLE LEAF, SINGLE ACTION LOCATED AT FIRST FLOOR, VERANDAH (18) 1 DOUBLE LEAF, SINGLE ACTION LOCATED AT FIRST FLOOR, ROYAL COLLECTION AND WEAPON (16) 1 DOOR - TIMBER, GREEN PAINT LOCATED AT FIRST FLOOR, PRAYER ROOM (OFFICER'S USE) (3) STARTING DATE DATE SCALE CHECKED BY PROJECT TITLE MEASURED BY DRAWN BY ARC 1215 METHODS OF DOCUMENTATION AND MEASURED DRAWING ON ROYAL MUSEUM KEDAH, LOT 82, SEKSYEN 16 ALOR STAR, KOTA SETAR, KEDAH DRAWING TITLE NOTE DRAWING NO. ISSUE SHEET NO. DOOR DETAILS 4 2017/ ARC1215/ RMUZKEDAH E 24 31 20.01.2017 06.03.2017 1 : 25 LIM SHEN, TRM'S MEMBER MR. KHAIROOL TRM'S MEMBER SCALE 1 : 25 PLAN 01 SCALE 1 : 25 ISOMETRIC 03 SCALE 1 : 25 PLAN 01 SCALE 1 : 25 ISOMETRIC 03 SCALE 1 : 25 PLAN 01 SCALE 1 : 25 ISOMETRIC 03 SCALE 1 : 25 PLAN 01 SCALE 1 : 25 ISOMETRIC 03 SCALE 1 : 25 PLAN 01 SCALE 1 : 25 ISOMETRIC 03 SCALE 1 : 25 PLAN 01 SCALE 1 : 25 ISOMETRIC 03 SCALE 1 : 25 PLAN 01 SCALE 1 : 25 ISOMETRIC 03 SCALE 1 : 25 PLAN 01 SCALE 1 : 25 ISOMETRIC 03 SCALE 1 : 25 ELEVATION (FRONT & BACK) 02 SCALE 1 : 25 ELEVATION (FRONT & BACK) 02 SCALE 1 : 25 ELEVATION (FRONT & BACK) 02 SCALE 1 : 25 ELEVATION (FRONT & BACK) 02 SCALE 1 : 25 ELEVATION (FRONT & BACK) 02 SCALE 1 : 25 ELEVATION (FRONT & BACK) 02SCALE 1 : 25 ELEVATION (FRONT & BACK) 02SCALE 1 : 25 ELEVATION (FRONT & BACK) 02 SCALE 1 : 5
  • 26.
    2230 240 340 995 995 2230 2200 1990 465 80 2090910 3540 910 2090 2200 3540 800 225 800 2200 740 3215 10522133 3215 2200 1430 240 920 250 1430 2200 1170 1170 1820 90 1820 2200 1807 80 1807 2200 DIMENSION REFER TO DIAGRAM QTY MATERIAL DOOR TYPE D30 DESCRIPTION DOOR - GLASS FRAME - ALUMINIUM DIMENSION REFER TO DIAGRAM QTY MATERIAL DOOR TYPE D31 DESCRIPTION DIMENSION REFER TO DIAGRAM QTY MATERIAL DOOR TYPE D32 DESCRIPTION DIMENSION REFER TO DIAGRAM QTY MATERIAL DOOR TYPE D33 DESCRIPTION DIMENSION REFER TO DIAGRAM QTY MATERIAL DOOR TYPE D34 DESCRIPTION DIMENSION REFER TO DIAGRAM QTY MATERIAL DOOR TYPE D35 DESCRIPTION DIMENSION REFER TO DIAGRAM QTY MATERIAL DOOR TYPE D37 DESCRIPTION 1 DOUBLE LEAF, DOUBLE ACTION LOCATED AT GROUND FLOOR, OFFICE (1)LOCATED AT GROUND FLOOR, OFFICE (1) 1 1 SINGLE LEAF, SINGLE ACTION DOOR - GLASS FRAME - ALUMINIUM LOCATED AT GROUND FLOOR, HALL (2) 1 DOUBLE LEAF, DOUBLE ACTION 1 DOUBLE LEAF, DOUBLE ACTION 2 SINGLE LEAF, SINGLE ACTION 1 DOOR - GLASS FRAME - ALUMINIUM SINGLE LEAF, DOUBLE ACTION LOCATED AT GROUND FLOOR, OFFICE (1) DOOR - GLASS FRAME - ALUMINIUM SINGLE LEAF, SINGLE ACTION DOOR - GLASS FRAME - ALUMINIUM LOCATED AT GROUND FLOOR, HALL (2) DOOR - GLASS FRAME - ALUMINIUM LOCATED AT GROUND FLOOR, HALL (2) DOOR - GLASS FRAME - ALUMINIUM LOCATED AT GROUND FLOOR, HALL (2) STARTING DATE DATE SCALE CHECKED BY PROJECT TITLE MEASURED BY DRAWN BY ARC 1215 METHODS OF DOCUMENTATION AND MEASURED DRAWING ON ROYAL MUSEUM KEDAH, LOT 82, SEKSYEN 16 ALOR STAR, KOTA SETAR, KEDAH DRAWING TITLE NOTE DRAWING NO. ISSUE SHEET NO. DOOR DETAILS 5 2017/ ARC1215/ RMUZKEDAH E 25 31 20.01.2017 06.03.2017 1 : 25 LIM SHEN, TRM'S MEMBER MR. KHAIROOL TRM'S MEMBER SCALE 1 : 25 PLAN 01 SCALE 1 : 25 ISOMETRIC 03 SCALE 1 : 25 PLAN 01 SCALE 1 : 25 ISOMETRIC 03 SCALE 1 : 25 ELEVATION (FRONT & BACK) 02 SCALE 1 : 25 PLAN 01 SCALE 1 : 25 ISOMETRIC 03 SCALE 1 : 25 PLAN 01 SCALE 1 : 25 ISOMETRIC 03 SCALE 1 : 25 PLAN 01 SCALE 1 : 25 ISOMETRIC 03 SCALE 1 : 25 PLAN 01 SCALE 1 : 25 ISOMETRIC 03 SCALE 1 : 25 PLAN 01 SCALE 1 : 25 ISOMETRIC 03 SCALE 1 : 25 ELEVATION (FRONT & BACK) 02 SCALE 1 : 25 ELEVATION (FRONT & BACK) 02 SCALE 1 : 25 ELEVATION (FRONT & BACK) 02SCALE 1 : 25 ELEVATION (FRONT & BACK) 02SCALE 1 : 25 ELEVATION (FRONT & BACK) 02SCALE 1 : 25 ELEVATION (FRONT & BACK) 02
  • 27.
    1520 2144 545545545 679 689 1368 100 1520 1368 475 695 1400 2225 705 475 1180 1985 290600600 485 475 960 100 1180 960 2095 990 500490 295 295 1150 1925 305695660 495 505 1000 100 1150 1000 1020 515 353 1985 505 355 890 1010 440 450 100 1010 890 1985 290600600 2095 295 295 920 455 465 5252243 2768 900 900 800 800 3600 417 290 417417417 290 290 290 1933 1800 1673 750750 1095 2768 52510001000 1673 200 820 1710 820 3600 1158 494 484 978 1910 395395395395 100 1158 978 345 998 494 350 2080 504 350 1370 1170 2120 1895 100 1370 1220 600 590 1190 DIMENSION REFER TO DIAGRAM QTY MATERIAL DOOR TYPE D11 DESCRIPTION DOOR - TIMBER, GREEN PAINT FRAME - TIMBER, WHITE PAINT DIMENSION REFER TO DIAGRAM QTY MATERIAL DOOR TYPE D18 DESCRIPTION DOOR - TIMBER, WHITE PAINT FRAME - TIMBER, WHITE PAINT DIMENSION REFER TO DIAGRAM QTY MATERIAL DOOR TYPE D19 DESCRIPTION DIMENSION REFER TO DIAGRAM QTY MATERIAL DOOR TYPE D41 DESCRIPTION DIMENSION REFER TO DIAGRAM QTY MATERIAL DOOR TYPE D36 DESCRIPTION DIMENSION REFER TO DIAGRAM QTY MATERIAL DOOR TYPE D39 DESCRIPTION DOOR - TIMBER, GREEN PAINT FRAME - TIMBER, WHITE PAINT DIMENSION REFER TO DIAGRAM QTY MATERIAL DOOR TYPE D40 DESCRIPTION FRAME - TIMBER, WHITE PAINT 1 DOUBLE LEAF, SINGLE ACTION LOCATED AT FIRST FLOOR, EXHIBITION AREA (11) DOUBLE LEAF, SINGLE ACTION LOCATED BETWEEN FIRST FLOOR, SULTAN ABDUL HALIM MUADZAM SHAH (15) AND ROYAL COLLECTION AND WEAPON (16) DOUBLE LEAF, SINGLE ACTION DOUBLE LEAF, SINGLE ACTION DOOR - TIMBER, WHITE PAINT FRAME - TIMBER, WHITE PAINT LOCATED AT FIRST FLOOR, ROYAL REGALIA (17) DOOR - TIMBER, GREEN PAINT FRAME - TIMBER, WHITE PAINT LOCATED AT GROUND FLOOR, OFFICE (1) 1 1 1 DOUBLE LEAF, SINGLE ACTION; FOLDING DOOR, EDGE HUNG DOOR - TIMBER, BROWN PAINT; GLASS FRAME - TIMBER, BROWN PAINT; ALUMINIUM LOCATED AT GROUND FLOOR, OFFICE (1). ATTACHED WITH WINDOWS. 1 DOUBLE LEAF, SINGLE ACTION 1 DOUBLE LEAF, SINGLE ACTION 1 LOCATED AT GROUND FLOOR, OFFICE (1) DOOR - TIMBER, GREEN PAINT LOCATED AT GROUND FLOOR, OFFICE (1) STARTING DATE DATE SCALE CHECKED BY PROJECT TITLE MEASURED BY DRAWN BY ARC 1215 METHODS OF DOCUMENTATION AND MEASURED DRAWING ON ROYAL MUSEUM KEDAH, LOT 82, SEKSYEN 16 ALOR STAR, KOTA SETAR, KEDAH DRAWING TITLE NOTE DRAWING NO. ISSUE SHEET NO. DOOR DETAILS 6 2017/ ARC1215/ RMUZKEDAH E 26 31 20.01.2017 06.03.2017 1 : 25 LIM SHEN, TRM'S MEMBER MR. KHAIROOL TRM'S MEMBER SCALE 1 : 25 PLAN 01 SCALE 1 : 25 ISOMETRIC 03 SCALE 1 : 25 ELEVATION (FRONT & BACK) 02 SCALE 1 : 25 PLAN 01 SCALE 1 : 25 ISOMETRIC 03 SCALE 1 : 25 PLAN 01 SCALE 1 : 25 ISOMETRIC 03 SCALE 1 : 25 PLAN 01 SCALE 1 : 25 ISOMETRIC 03 SCALE 1 : 25 PLAN 01 SCALE 1 : 25 ISOMETRIC 03 SCALE 1 : 25 PLAN 01 SCALE 1 : 25 ISOMETRIC 03 SCALE 1 : 25 PLAN 01 SCALE 1 : 25 ISOMETRIC 03 SCALE 1 : 25 ELEVATION (FRONT & BACK) 02 SCALE 1 : 25 ELEVATION (FRONT & BACK) 02 SCALE 1 : 25 ELEVATION (FRONT & BACK) 02SCALE 1 : 25 ELEVATION (FRONT & BACK) 02 SCALE 1 : 25 ELEVATION (FRONT & BACK) 02SCALE 1 : 25 ELEVATION (FRONT & BACK) 02
  • 28.
    DIMENSION REFER TODIAGRAM QTY MATERIAL WINDOW TYPE W1 DESCRIPTION WINDOW - TIMBER, GREEN PAINT FRAME - TIMBER, WHITE PAINT DIMENSION REFER TO DIAGRAM QTY MATERIAL W2 DESCRIPTION WINDOW - TIMBER, GREEN PAINT FRAME - TIMBER, WHITE PAINT DIMENSION REFER TO DIAGRAM QTY MATERIAL W5 DESCRIPTION DIMENSION REFER TO DIAGRAM QTY MATERIAL WINDOW TYPE W6 DESCRIPTION DIMENSION REFER TO DIAGRAM QTY MATERIAL WINDOW TYPE W7 DESCRIPTION DIMENSION REFER TO DIAGRAM QTY MATERIAL WINDOW TYPE W22 DESCRIPTION WINDOW - TIMBER, BROWN PAINT; GLASS FRAME - TIMBER, BROWN PAINT; ALUMINIUM DIMENSION REFER TO DIAGRAM QTY MATERIAL DESCRIPTION 28 DOUBLE LEAF, SINGLE ACTION LOCATED AT FIRST FLOOR, MUSEUM MAIN ENTRANCE (1), WEDDING HALL (2), YTM TUNKU ABDUL RAHMAN PUTRA'S ROOM (4) AND BEDROOM - BILIK BERADU (5) WINDOW - TIMBER, GREEN PAINT FRAME - TIMBER, WHITE PAINT WINDOW - TIMBER, GREEN PAINT FRAME - CONCRETE, WHITE PAINT 44 2 DOUBLE LEAF, SINGLE ACTION WINDOW - TIMBER, GREEN PAINT FRAME - CONCRETE, WHITE PAINT 2 DOUBLE LEAF, SINGLE ACTION LOCATED AT GROUND FLOOR, OFFICE (1) 2 LOCATED AT FIRST FLOOR, MUSEUM MAIN ENTRANCE (1) LOCATED AT FIRST FLOOR, PRAYER ROOM (EXHIBITION PURPOSE) (10) AND EXHIBITION AREA (11) DOUBLE LEAF, SINGLE ACTION LOCATED AT FIRST FLOOR, ADJACENT TO EXHIBITION AREA (11) LOCATED AT FIRST FLOOR, ADJACENT TO EXHIBITION AREA (11) WINDOW TYPE DOUBLE LEAF, SINGLE ACTION WINDOW TYPE DOUBLE LEAF, SINGLE ACTION QTY WINDOW TYPE W23 WINDOW - TIMBER, BROWN PAINT; GLASS FRAME - TIMBER, BROWN PAINT; ALUMINIUM DOUBLE LEAF, SINGLE ACTION LOCATED AT GROUND FLOOR, OFFICE (1) 2 STARTING DATE DATE SCALE CHECKED BY PROJECT TITLE MEASURED BY DRAWN BY ARC 1215 METHODS OF DOCUMENTATION AND MEASURED DRAWING ON ROYAL MUSEUM KEDAH, LOT 82, SEKSYEN 16 ALOR STAR, KOTA SETAR, KEDAH DRAWING TITLE NOTE DRAWING NO. ISSUE SHEET NO. WINDOW DETAILS 1 2017/ ARC1215/ RMUZKEDAH E 27 31 20.01.2017 06.03.2017 1 : 25 LIM SHEN, TRM'S MEMBER MR. KHAIROOL TRM'S MEMBER SCALE 1 : 25 PLAN 01 SCALE 1 : 25 ELEVATION (FRONT & BACK) 02 SCALE 1 : 25 ISOMETRIC 03 SCALE 1 : 25 PLAN 01 SCALE 1 : 25 ELEVATION (FRONT & BACK) 02 SCALE 1 : 25 ISOMETRIC 03 SCALE 1 : 25 PLAN 01 SCALE 1 : 25 ELEVATION (FRONT & BACK) 02 SCALE 1 : 25 ISOMETRIC 03 SCALE 1 : 25 PLAN 01 SCALE 1 : 25 ELEVATION (FRONT & BACK) 02 SCALE 1 : 25 ISOMETRIC 03 SCALE 1 : 25 PLAN 01 SCALE 1 : 25 ELEVATION (FRONT & BACK) 02 SCALE 1 : 25 ISOMETRIC 03 SCALE 1 : 25 PLAN 01 SCALE 1 : 25 ELEVATION (FRONT & BACK) 02 SCALE 1 : 25 ISOMETRIC 03 SCALE 1 : 25 PLAN 01 SCALE 1 : 25 ISOMETRIC 03 SCALE 1 : 25 ELEVATION (FRONT & BACK) 02
  • 29.
    1010 100 770 800 395 405 1770 1560 699699 1010 390 300 380 770 300 1130 100 890 1130 920 455 365 365 1770 1560 699699 465 890 440450 100 1050 865 1050 443443 290 885 1566 1400 590580 290 443 443 885 100 1050 865 1050 445 440 885 1566 1400 590580 865 430 290 290 435 2300 470 455 620 530 1150925 1415 1340 600600 460445610520 390 485 360 375 9051130 100 2300 905 1130 100 960 820 1160 415 425 840 1380 1210 525535 405 415 313 323 820 100 1300 1025 1300 523 523 384 380 1618 1345 560560 DIMENSION REFER TO DIAGRAM QTY MATERIAL WINDOW TYPE W3 DESCRIPTION WINDOW - TIMBER, GREEN PAINT; GLASS FRAME - TIMBER, WHITE PAINT; TIMBER, WHITE PAINT DIMENSION REFER TO DIAGRAM QTY MATERIAL WINDOW TYPE W4 DESCRIPTION FRAME - TIMBER, WHITE PAINT DIMENSION REFER TO DIAGRAM QTY MATERIAL WINDOW TYPE W9 DESCRIPTION DIMENSION REFER TO DIAGRAM QTY MATERIAL WINDOW TYPE W10 DESCRIPTION DIMENSION REFER TO DIAGRAM QTY MATERIAL WINDOW TYPE W11 DESCRIPTION DIMENSION REFER TO DIAGRAM QTY MATERIAL WINDOW TYPE W12 DESCRIPTION WINDOW - TIMBER, GREEN PAINT FRAME - TIMBER, WHITE PAINT DIMENSION REFER TO DIAGRAM QTY MATERIAL W13 DESCRIPTION FRAME - TIMBER, WHITE PAINT 3 DOUBLE LEAF, SINGLE ACTION LOCATED AT FIRST FLOOR, MEETING ROOM (6) AND ROYAL COLLECTION (7) DOUBLE LEAF, SINGLE ACTION DOUBLE LEAF, SINGLE ACTION WINDOW - TIMBER, GREEN PAINT FRAME - TIMBER, WHITE PAINT LOCATED AT FIRST FLOOR, ADJACENT TO ROYAL FAMILY (12) WINDOW - TIMBER, GREEN PAINT FRAME - TIMBER, WHITE PAINT LOCATED AT FIRST FLOOR, ADJACENT TO ROYAL FAMILY (12) 12 3 DOUBLE LEAF, SINGLE ACTION WINDOW - TIMBER, WHITE PAINT FRAME - TIMBER, WHITE PAINT 2 DOUBLE LEAF, SINGLE ACTION 1 DOUBLE LEAF, SINGLE ACTION LOCATED AT FIRST FLOOR, ADJACENT TO ROYAL REGALIA (17) 1 WINDOW - TIMBER, GREEN PAINT DOUBLE LEAF, SINGLE ACTION LOCATED AT FIRST FLOOR, MEETING ROOM (6) AND SEWING MACHINE (9) LOCATED AT FIRST FLOOR, EXHIBITION AREA (11) WINDOW TYPE WINDOW - TIMBER, GREEN PAINT LOCATED AT FIRST FLOOR, ROYAL REGALIA (17) STARTING DATE DATE SCALE CHECKED BY PROJECT TITLE MEASURED BY DRAWN BY ARC 1215 METHODS OF DOCUMENTATION AND MEASURED DRAWING ON ROYAL MUSEUM KEDAH, LOT 82, SEKSYEN 16 ALOR STAR, KOTA SETAR, KEDAH DRAWING TITLE NOTE DRAWING NO. ISSUE SHEET NO. WINDOW DETAILS 2 2017/ ARC1215/ RMUZKEDAH E 28 31 20.01.2017 06.03.2017 1 : 25 LIM SHEN, TRM'S MEMBER MR. KHAIROOL TRM'S MEMBER SCALE 1 : 25 PLAN 01 SCALE 1 : 25 ELEVATION (FRONT & BACK) 02 SCALE 1 : 25 ISOMETRIC 03 SCALE 1 : 25 PLAN 01 SCALE 1 : 25 ELEVATION (FRONT & BACK) 02 SCALE 1 : 25 ISOMETRIC 03 SCALE 1 : 25 PLAN 01 SCALE 1 : 25 ELEVATION (FRONT & BACK) 02 SCALE 1 : 25 ISOMETRIC 03 SCALE 1 : 25 PLAN 01 SCALE 1 : 25 ELEVATION (FRONT & BACK) 02 SCALE 1 : 25 ISOMETRIC 03 SCALE 1 : 25 PLAN 01 SCALE 1 : 25 ELEVATION (FRONT & BACK) 02 SCALE 1 : 25 ISOMETRIC 03 SCALE 1 : 25 PLAN 01 SCALE 1 : 25 ELEVATION (FRONT & BACK) 02 SCALE 1 : 25 ISOMETRIC 03 SCALE 1 : 25 PLAN 01 SCALE 1 : 25 ELEVATION (FRONT & BACK) 02 SCALE 1 : 25 ISOMETRIC 03
  • 30.
    910 734 100 910 387 397 232 232 995 885 280280 1140 880 240 100 1140 455445 330 330 1300 890 400 240 100 1300 440 450 890 1307 551518 15451550502010 25102520 1717 890 440 450 313 315 1234 934 300 125 1260 960 1435 1195 493493 960 475 335 335 485 1460 1110 240 100 1260 565 575 420 420 1435 1325 445660 1300 890 400 240 100 1300 440 450 890 1254 625435 890 440 450 300 300 1680 1020 780 100 810 400 410 1330 1120 1020 990 690 380 100 710 350 360 1350 1270 790 DIMENSION REFER TO DIAGRAM QTY MATERIAL WINDOW TYPE W8 DESCRIPTION WINDOW - TIMBER, GREEN PAINT FRAME - TIMBER, WHITE PAINT DIMENSION REFER TO DIAGRAM QTY MATERIAL WINDOW TYPE W15 DESCRIPTION WINDOW - TIMBER, WHITE PAINT FRAME - TIMBER, WHITE PAINT DIMENSION REFER TO DIAGRAM QTY MATERIAL WINDOW TYPE W16 DESCRIPTION DIMENSION REFER TO DIAGRAM QTY MATERIAL WINDOW TYPE W17 DESCRIPTION DIMENSION REFER TO DIAGRAM QTY MATERIAL WINDOW TYPE W19 DESCRIPTION DIMENSION REFER TO DIAGRAM QTY MATERIAL WINDOW TYPE W21 DESCRIPTION WINDOW - TIMBER, GREEN PAINT FRAME - TIMBER, WHITE PAINT DIMENSION REFER TO DIAGRAM QTY MATERIAL WINDOW TYPE W14 DESCRIPTION WINDOW - TIMBER, WHITE PAINT FRAME - TIMBER, WHITE PAINT DIMENSION REFER TO DIAGRAM QTY MATERIAL WINDOW TYPE W24 DESCRIPTION WINDOW - TIMBER, GREEN PAINT FRAME - TIMBER, WHITE PAINT 1 DOUBLE LEAF, SINGLE ACTION LOCATED AT FIRST FLOOR, ROYAL FAMILY (12) DOUBLE LEAF, SINGLE ACTION LOCATED AT FIRST FLOOR, THE LATE SULTAN ABDUL HAMID HALIM SHAH (13) DOUBLE LEAF, SINGLE ACTION DOUBLE LEAF, SINGLE ACTION WINDOW - TIMBER, GREEN PAINT FRAME - TIMBER, WHITE PAINT LOCATED AT FIRST FLOOR, PRAYER ROOM (OFFICER'S ROOM) (3) WINDOW - TIMBER, GREEN PAINT FRAME - TIMBER, WHITE PAINT LOCATED AT GROUND FLOOR, OFFICE (1) 22 1 ARCH WINDOW WINDOW - GLASS FRAME - ALUMINIUM LOCATED AT GROUND FLOOR, OFFICE (1) 1 DOUBLE LEAF, SINGLE ACTION LOCATED AT GROUND FLOOR, OFFICE (1) 1 DOUBLE LEAF, SINGLE ACTION LOCATED AT FIRST FLOOR, ROYAL REGALIA (17) 1 DOUBLE LEAF, SINGLE ACTION LOCATED AT GROUND FLOOR, STORE (3) 1 STARTING DATE DATE SCALE CHECKED BY PROJECT TITLE MEASURED BY DRAWN BY ARC 1215 METHODS OF DOCUMENTATION AND MEASURED DRAWING ON ROYAL MUSEUM KEDAH, LOT 82, SEKSYEN 16 ALOR STAR, KOTA SETAR, KEDAH DRAWING TITLE NOTE DRAWING NO. ISSUE SHEET NO. WINDOW DETAILS 3 2017/ ARC1215/ RMUZKEDAH E 29 31 20.01.2017 06.03.2017 1 : 25 LIM SHEN, TRM'S MEMBER MR. KHAIROOL TRM'S MEMBER SCALE 1 : 25 PLAN 01 SCALE 1 : 25 ELEVATION (FRONT & BACK) 02 SCALE 1 : 25 ISOMETRIC 03 SCALE 1 : 25 PLAN 01 SCALE 1 : 25 ELEVATION (FRONT & BACK) 02 SCALE 1 : 25 ISOMETRIC 03 SCALE 1 : 25 PLAN 01 SCALE 1 : 25 ELEVATION (FRONT & BACK) 02 SCALE 1 : 25 ISOMETRIC 03 SCALE 1 : 25 PLAN 01 SCALE 1 : 25 ELEVATION (FRONT & BACK) 02 SCALE 1 : 25 ISOMETRIC 03 SCALE 1 : 25 PLAN 01 SCALE 1 : 25 ELEVATION (FRONT & BACK) 02 SCALE 1 : 25 ISOMETRIC 03 SCALE 1 : 25 PLAN 01 SCALE 1 : 25 ELEVATION (FRONT & BACK) 02 SCALE 1 : 25 ISOMETRIC 03 SCALE 1 : 25 PLAN 01 SCALE 1 : 25 ELEVATION (FRONT & BACK) 02 SCALE 1 : 25 ISOMETRIC 03 SCALE 1 : 25 PLAN 01 SCALE 1 : 25 ELEVATION (FRONT & BACK) 02 SCALE 1 : 25 ISOMETRIC 03 SCALE 1 : 5
  • 31.
    960 760 390 100 960 380 380 1470 1255 760 tile flooring 1035 975 30 1034 307300 307 2120 1551460415 3109 1016 1016 1016 30 3109 1016 1016 1016 2094 DIMENSION REFER TO DIAGRAM QTY MATERIAL WINDOW TYPE W25 DESCRIPTION WINDOW - TIMBER, GREEN PAINT FRAME - TIMBER, WHITE PAINT DIMENSION REFER TO DIAGRAM QTY MATERIAL WINDOW TYPE W18 DESCRIPTION WINDOW - GLASS FRAME - ALUMINIUM DIMENSION REFER TO DIAGRAM QTY MATERIAL WINDOW TYPE W20 DESCRIPTION 3 DOUBLE LEAF, SINGLE ACTION LOCATED AT GROUND FLOOR, OFFICE (1) ARCH WINDOW LOCATED AT GROUND FLOOR, OFFICE (1) CURTAIN WALL FRAME - ALUMINIUM 5 2 WINDOW - GLASS LOCATED AT GROUND FLOOR, OFFICE (1) STARTING DATE DATE SCALE CHECKED BY PROJECT TITLE MEASURED BY DRAWN BY ARC 1215 METHODS OF DOCUMENTATION AND MEASURED DRAWING ON ROYAL MUSEUM KEDAH, LOT 82, SEKSYEN 16 ALOR STAR, KOTA SETAR, KEDAH DRAWING TITLE NOTE DRAWING NO. ISSUE SHEET NO. WINDOW DETAILS 4 2017/ ARC1215/ RMUZKEDAH E 30 31 20.01.2017 06.03.2017 1 : 25 LIM SHEN, TRM'S MEMBER MR. KHAIROOL TRM'S MEMBER SCALE 1 : 25 PLAN 01 SCALE 1 : 25 ELEVATION (FRONT & BACK) 02 SCALE 1 : 25 ISOMETRIC 03 SCALE 1 : 25 PLAN 01 SCALE 1 : 25 ELEVATION (FRONT & BACK) 02 SCALE 1 : 25 ISOMETRIC 03 SCALE 1 : 25 PLAN 01 SCALE 1 : 25 ISOMETRIC 03 SCALE 1 : 25 ELEVATION (FRONT & BACK) 02
  • 32.
    200 x 200H.W. BEAM 30 x 130 CEILING BOARD TRUSSER RAFTER PURLIN RAFTER H.W. BATTEN ROOF TILE GUTTER HOLDER GUTTER 164 x 150 H.W. BEAM 120 x 75 H.W. FLOOR JOIST 30 x 230 FLOOR BOARD 210 x 200 H.W. BEAM 200 x 200 H.W. TIMBER COLUMN H.W. TIMBER BEAM 130 x 25 CEILING BOARD CEILING JOIST 210 x 150 H.W. BEAM 150 x 75 H.W. FLOOR JOIST 30 x 230 FLOOR BOARD 210 x 150 H.W. BEAM 150 x 75 H.W. FLOOR JOIST 30 x 230 FLOOR BOARD AXONOMETRIC DRAWING TITLE SCALE 1 : 75 AXONOMETRY 0 0.5 1 21.5 3 4 5 6 7 7.5 (M) M 1 : 75 PROJECT TITLE ARC 1215 METHODS OF DOCUMENTATION AND MEASURED DRAWING ON ROYAL MUSEUM KEDAH, LOT 82, SEKSYEN 16, ALOR STAR KOTA SETAR, KEDAH 2017/ ARC1215/ RMUZKEDAH F 31 31 DRAWING NO. ISSUE SHEET NO. STARTING DATE DATE SCALE CHECKED BY MEASURED BY DRAWN BY 20.01.2017 06.03.2017 AS SHOWN RACHEAL CHEONG, LIM ZIA HUEI, HOW SENG GUAN MR. KHAIROOL TRM'S MEMBERS SCALE 1 : 25 DETAIL B SCALE 1 : 25 DETAIL A SCALE 1 : 25 DETAIL C SCALE 1 : 25 DETAIL D DETAIL D DETAIL C DETAIL B DETAIL A