INTRODUCTION TO
FLEXIBLE HOUSING
HOUSING AND COMMUNITY PLANNING
In this paper I discussed about the Flexible housing: its origin, advantages and
disadvantages, affordability for a person and impact of it and design
recommendations. Also the key idea of the entire flexible housing also mentioned.
Source: http://www.architecture-page.com/go/projects/social-housing-block
highly flexible and economic social housing block at Izola, Slovenia designed by Ofis Architects, Izola, Slovenia
2010
VIJESH KUMAR V
ROLL NO: 10ID60R17
10/20/2010
October 20, 2010 [INTRODUCTION TO FLEXIBLE HOUSING
2
INTRODUCTION TO
FLEXIBLE HOUSING
HOUSING AND COMMUNITY PLANNING
VIJESH KUMAR V., ROLL NO: 10ID60R17
RCG SCHOOL OF ID & M
IIT KHARAGPUR, WEST BENGAL
Contents
1. Abstract.....................................................................................................................................................................4
2. Introduction ..............................................................................................................................................................4
3. Is Flexible housing… ..................................................................................................................................................5
4. Where all started?.....................................................................................................................................................5
a. Initial stage of evolution in vernacular .................................................................................................................5
Example case: Dogon Tribes in Africa.......................................................................................................................6
b. Impact of social aspect of evolution on it to come back as new forms................................................................6
i. Area available....................................................................................................................................................7
ii. Future changes..................................................................................................................................................7
iii. Technological adaptation..................................................................................................................................7
iv. Change in number of users...............................................................................................................................7
c. Flexible housing as an idea ...................................................................................................................................7
5. Design qualities of Flexible homes............................................................................................................................8
6. Advantages of flexible housing .................................................................................................................................9
7. Example cases .........................................................................................................................................................10
a. Izola Social Housing by OFIS architects – (Social) ....................................................................................................10
b. Tempo housing designs to flexible housing, Netherland – (Industrial)..........................................................................11
c. Concept of flexible Interior – (Interior).......................................................................................................................13
8. Canada Mortage and Housing Corporation (CMHC) – Flex Housing ......................................................................14
a. Introduction ...........................................................................................................................................................14
b. Site plan................................................................................................................................................................15
c. Building Elevation, Section and Details.....................................................................................................................16
d. Features of the flexible houses as per CMHC ...........................................................................................................18
Parking and Entrances:............................................................................................................................................18
Hallways and Stairways:..........................................................................................................................................19
The Bathroom: ........................................................................................................................................................20
The Kitchen: ............................................................................................................................................................21
The Living Room/ Family Room: .............................................................................................................................22
October 20, 2010 [INTRODUCTION TO FLEXIBLE HOUSING
3
The Bedroom:..........................................................................................................................................................23
The Laundry Room:.................................................................................................................................................23
Habitable Attics:......................................................................................................................................................23
Balconies:................................................................................................................................................................23
9. Disadvantages of flexible housing...........................................................................................................................24
10. Conclusion...........................................................................................................................................................25
11. References ..........................................................................................................................................................25
October 20, 2010 [INTRODUCTION TO FLEXIBLE HOUSING
4
1. Abstract
In this paper I discussed about the Flexible housing: its origin, advantages and disadvantages, affordability for a
person and impact of it and design flexibilities. Also the key idea of the entire flexible housing also mentioned. There can
be positive as well as negative side also for an idea, it’s necessary for us to discuss both since, there may be possibility
that it may become future. The key ideas are generated from Flexible housing; Tatjana Schneider, Jeremy Till; Elsevier,
2007 and Flexible housing: opportunities and limits; Tatjana Schneider and Jeremy Till. Also there is few arguments
noted that to be discussed as a group.
2. Introduction
We all know how the populations are increasing in this world. And we also know the people who don’t have a
home; in fact there are people out there who don’t have money to have food for at least one time in a day. India is an
developing country having as much human resource and of course other also. Can you tell me Is there any person who
satisfied with his home during the time runs? Certainly doesn’t. Why? Do we have an answer? Let me tell you about my
answer for this problem.
Humans are the most uncertainty animals living in this world for taking his decisions. Never being had a
conscious mind to stick to one activity, it’s his nature. While time changes technology grows, peoples knowledge widens
and deepens in, demands increases, peoples goes for more spaces by addition or taking other – may be a war of future
or something else as interesting solution to this. Do we forget anything else? Yes the poor, they won’t have any place to
go! Is there a solution to this problem? Oh! I forgot to answer you fully to the answer above. Yeah, the people demand
increases the space consumption increases is the key sentence. You know to what it may lead to this all things?
Environmental pollution, Deforestation – Urbanization, etc.
Hmmm there is solution may be I can tell you is that create space with in space, so that consumption of space
reduces. If one space opens to other within then you have a doubt on its existence, it’s not multi-world theory here our
space exists in time to time of activity occurrences of the activity on that space. Means when you need the space the
space will be there for you. It can be done only when a person who designs knows your movement and activity pattern.
Today whatever we are thinking is not for today really, it’s for tomorrow. So keep this in mind, while thinking
for a problem don’t solve it as today’s but definitely for tomorrows as an aggregate problem. Hence an should be a
visionary who looks to past, present and future worlds.
If we think in long term view in housing to meet the need and demand of people not only for today but for
tomorrow also, preparing people to meet the challenges in the terms of housing shortage, quality and quantity; the
solution will be what I said above nothing but space with in space having lot of magical qualities in fact. May be we
never thought deep into it? We are still moving in a non adaptable construction path. Think the designs and
constructions making are in next second becoming obsolescence. The demand increases with respect to time. The
concrete blocks which we are making doesn’t allow us to make a reasonable change over time. We are simply caged in
it. There is lot of problems one above another. If the space which we are making is conscious then what more we have
to think of? If we are ready to spent a little more money and time for a intelligent building design, the solution may come
out certainly. Think again what I told, If space is within space, changes with respect to time, take home where ever you
go, change in design of house whenever you want, etc. Is that possible? If there is a solution then it will be economically
benefitted and certainly people can easily afford it in its first cost and can upgrade on time to time. Certainly we can
think of other situations also in Economic point of view. If an apartment is built, and running out of profits - certain rooms
empty. And in some other areas you have a demand. Then certainly you can move that block from here to there. So we
definitely have a question rising in our mind, what this can be called? And how much is that flexibility? etc.
Let me first tell you about this concept what it is called;
October 20, 2010 [INTRODUCTION TO FLEXIBLE HOUSING
5
3. Is Flexible housing…
Housing that can adjust to changing needs and pattern, in both social and technological ways. Means
when the needs of people changes with time, the house can be adjusted to meet that need and the pattern of house can
be changed to meet that need. In social ways is that the change we need as a personal or practical way, which is
related to the population of people and age. Expanding family is referred to personal changing need; it’s a common
example which everyone sees. Other is onset of old age is practical changing need. Technological ways of changing
need is nothing but updating of old services to consume low energy utilisation, etc. In fact all the needs will be growing
randomly with respect to time, may without following any predictions for a small duration.
The changing pattern in housing is referred to the changing layout of the house with respect to circulation,
activities and usage of space with respect to time. Of course there can be a change in demographic that is rise of the
single person household change the pattern of the house. It can be in both ways positive as increment of person by
marriage or birth; and negative again due to marriage or death. Economic is with respect to rise of the rental market.
That is when rental economy rises the people consumption reduces will change the pattern of the housing.
Environmental is the need to update housing to respond to climatic change.
The ability of persons to make changes after getting an occupation is possible. It has immediate potential for
movement and change. Do you think about from where the idea comes from? And why these ideas became popular?
May be we have half answer for why it became popular concept. Let us see from where all started.
4. Where all started?
Everything in this world has a history, no matter good or bad. Even flexibility concept also have a historical
linkage to past. Still It is very difficult to tell all the history of flexible housing since it is there in front of us for a long
period of time in different ways of form. Every concept becomes more valuable only when the necessity of it increases
to certain level of demand. On other hand nobody will look in to the concept whoever evolved as primary or secondary
solutions. It is the psychology of humans. Any let me tell about the initial stage of evolution and secondary impact of
social aspect on it to come back. The concept became more valuable only after some time during 1960’s.
Flexible housing developed in two ways. First, initial stage of evolution in vernacular and second, impact
of social aspect of evolution on it to come back as new forms.
a. Initial stage of evolution in vernacular
We know most of the certain things are
started from the vernacular. In fact this also have
a well connection with past vernacular. In the past
also people tried to adapt to the situations of
changing times and achieved. It may be due to
birth or death, climate, etc. in fact if we see all the
villages in the past were sustainable, rather till
now we modern people couldn’t even achieve with
modern technologies. There people used logical
and experienced answers to find the solutions
which were truly sustainable. Let me tell you a
story of Dogon Tribes in Africa.
Source: http://www.cairn.info/resume.php?ID_ARTICLE=CEA_177_0095
Dogon House compound, Mali, African Tribe
October 20, 2010 [INTRODUCTION TO FLEXIBLE HOUSING
6
Example case: Dogon Tribes in Africa
Paul Hereford Oliver is an architectural
historian and writer.). He has argued that “vernacular
architecture will be necessary in the future to
"ensure sustainability in both cultural and
economic terms beyond the short term." He is well
known for his 1997 work Encyclopaedia of Vernacular
Architecture of the World. Spanning 3 volumes and
2500 pages, it includes contributions from researchers
from 80 countries. As of 2005, he was at work on a
book to be called the World Atlas of Vernacular
Architecture.
Paul Oliver noted in his book: Encyclopaedia
of Vernacular Architecture and book on vernacular
housing, dwellings. Oliver notes that; there were
several demands for the people with respect to time on the structure they live in. Whatever the family is all faced same
situations of challenging family size and structure on whether nuclear or extended, the care of young children and
the infirm, and the death of the aged, the demands on the dwellings to meet a challenging family size and
structure are considerable.
In vernacular housing the range of responsibilities to these issues is then oriented by culture and climate
ranging from a single space used for the whole gamut of the family rituals to a collection of individual cells arranged
around a courtyard. The system of individual huts arranged into and an open space is extremely flexible, because of the
use of hut can be varied according to the circumstances. Here each hut constitutes a room and whole compound
constitutes the dwelling.
In this way this arrangement of the vernacular compound is the predecessor to the modern apartment plans in
which a central hall gives on to a number of undifferentiated rooms that can be adopted for various purposes – Open
plan flexible space of modernism.
- Divided space through curtains and screens, and socially divided through significant symbolic and cultural
understanding.
- Through technologically advanced systems.
b. Impact of social aspect of evolution on it to come back as new forms
Peoples take decisions through two aspects since as designers there will be Non – Architects and Architects;
Non – Architects: derive solutions through deriving long term adjustments to patterns of use and cultural
formations.
Architects: derive solutions through authority of expertise.
In fact anything which has to come up needs some force. It may be from external or internal force. Here also
the same kinds of forces acted.
The external pressures can be;
Source: http://www.crystalinks.com/dogon.html
Dogon House compound, Mali, African Tribe
October 20, 2010 [INTRODUCTION TO FLEXIBLE HOUSING
7
i. Area available
We know that the population is increasing in a higher order, since the area of demand increases
accordingly. Unfortunately the need also increase for the people to buy. Even after they bought, no one will
be ready to waste an inch of space. But again they the problem lies with people are that, they want to
accommodate everything not only for today but tomorrow also. If we look closer the demand of space /
area is increasing day by day for an individual. Due the life style they followed.
ii. Future changes
Yeah, people have of course problem with this in fact. Everything in this world changes with
respect to time. Need, demand, taste, style, everything changes. View people might be different in future.
In fact peoples are meant to be uncertain with their decisions and tastes; it changes with respect to a
fraction of second. These all will lead people to concentrate on one solution as flexible space adaptation.
The change may be social, environmental, etc. anything.
iii. Technological adaptation
Technology is developing day by day. The lifestyle of people is actually changing with the
technological development if we look closer. So there will be a need or demand of people to adapt to that
situation. I may say rate of change of technology with respect to time lead to rate of change of adaptation
of people with respect to time.
Just for example; earlier we had radio in our houses and we had space to locate it. After
Television came in to picture, now all homes have Television and a particular space for it. It may be in bed
room, living room, and kitchen and even in bathroom in fact. Think how the technology changing the
people and impact on it on the spaces. Rather while technology increases the accumulation of space also
increasing as waste.
May be we need a high technology which peoples are dreaming of as space inside space as
definitions as physics multi world theory. This is a specific problem related to the future alone.
iv. Change in number of users
Yeah, this is not the problem of future alone but in the past also. The death and birth in the family may
lead to demand or need of people. And the time line of age of people may lead to demand of new spaces
or more areas, etc.
For example; a infirm old person require only very small area rather than young people. Since their
activities levels are much higher than them.
These are not only points which lead people to the idea flexible housing.
c. Flexible housing as an idea
If there is less space, then that space has to be used in efficient and flexible manner. The attention of Dutch
Architects such as Willem Van Tijen, Johannes Van den Brock and Mart Stam turned to overlook in to process of use –
Changeability of use. Not only for the duration of one day but also for the specific conditions of each member of a
family and potential changes during the life time. Internal variability of spaces was the key element in this work. Their
desire was to make minimum size apartments as tolerable and cheap as possible.
The key idea derived by them is;
“Design in a way that the dwelling can be regrouped and arranged according to the needs of the
respective hour of the day.”
October 20, 2010 [INTRODUCTION TO FLEXIBLE HOUSING
8
5. Design qualities of Flexible homes
There are five features for flexible design. They are just mentioned below;
Adaptable
Adaptable structures features
repositionable partitions or are changeable per
user/occupant.
As we see there will be a outer shell
which is structurally stable and supporting, and
inner is adaptive.
Universal
What typifies a universally flexible
building is its ease of adaptation per use. These
buildings are often characterized by open floor
plans and typology free design.
Movable
Movable flexible buildings consist of
reloadable or repositionable structures or
buildings capable of being torn down and
reassembled in another location.
Responsive
Responsive buildings can respond to a
number of external stimuli, including, but not
limited to, energy/environment, interaction,
usage, or occupation.
Source: http://thewaywelive.wordpress.com/2007/11/15/flexibility-in-architecture/
Source: http://thewaywelive.wordpress.com/2007/11/15/flexibility-in-architecture/
Source: http://thewaywelive.wordpress.com/2007/11/15/flexibility-in-architecture/
Source: http://thewaywelive.wordpress.com/2007/11/15/flexibility-in-architecture/
October 20, 2010 [INTRODUCTION TO FLEXIBLE HOUSING
9
Transformable
Characterized by modular design
(capable of adding or removing units or
components) transformable structures can also
open and close, change form or change colour.
6. Advantages of flexible housing
The advantages are;
 Helps build stable neighbourhoods because a household can remain in the same house through
many lifestyle changes. Reduces the running cost of building.
 Allows more young households to enter the homeownership market because a smaller annual
income is required to qualify for a mortgage than a conventional mortgage.
 May increase the amount of affordable rental stock in the municipality.
 Often it is accessible type of housing that contains design features for the elderly, the disabled and
young children.
 Flexibility is seen as something that gives the user the choice as to how they want to use spaces
instead of architecturally predetermining their lives.
 In the words of the French architect Arsène-Henri, flexible housing provides ‘a private domain that will
fulfil each occupant’s expectations’; it is not about designing allegedly ‘good’ or ‘correct’ layouts but
aims to provide a space which can accommodate the vicissitudes of everyday use over the long term.
 Flexibility can be achieved through simple materials in construction and with very simple design.
This really reduces the cost of construction of the design.
 Modernism is interested in prefabrication, fast construction and new models of habitat. Hence flexible
housing is in positive direction. Because it follows both.
 Human behaviour and environment are dynamic in nature. Since there is an uncertainty in the
decision of people. Hence we can conclude flexible housing as option.
 User having a control over the environment is the key answer.
Source: http://thewaywelive.wordpress.com/2007/11/15/flexibility-in-architecture/
October 20, 2010 [INTRODUCTION TO FLEXIBLE HOUSING
10
7. Example cases
a. Izola Social Housing by OFIS architects – (Social)
Architect: OFIS architects
Location: Izola, Slovenia
Design Year: 2003
Construction Year: 2004-2006
Client: Slovenian Housing Fund and Community of Izola
The project by OFIS Architects is a winning entry for two housing blocks in a competition convoked by the
Slovenia Housing Fund, a government-run
programme that is providing low-cost
apartments for young families. The proposal
won for economic, rational and functional
issues but mostly for the ratio between gross
vs. saleable surface area and the flexibility of
the plans. The blocks are set out on a hill
with a view of Izola Bay on one side and of
the surrounding hills on the other. The given urban plot was 2blocks of 60×28 meters. Height was G+4 floors.
The brief required 30 apartments of different sizes and structures, varying from studio flats to 3-bedroom apartments.
The apartments are small, with minimum-sized rooms according to Slovenian standards. There are no structural
elements inside
the apartments,
thus providing
flexibility and the
possibility of
reorganizing
things.
A textile shade
protects the
balcony and
apartment from
prying eyes, yet
due to its semi-
transparency
allows the owner
to enjoy the views of the bay. Perforated side-panels allow summer breeze to
ventilate the space. The strong colours create different atmospheres within the
apartments. Boxes at the side of each balcony provide room for air-
conditioning units.The small rooms become visually bigger because the textile
shade creates a perspective effect that connects part of the exterior with the
interior.
Balcony modules:
Are designed as efficient system providing shading and ventilation for
the apartments. Textile elements fixed on the front of the balconies block direct
sunlight and accumulate “air buffer” zone. In the summer hot accumulated area
behind the shadings is naturally ventilated through (10 cm holes) perforated
side partitions of the balconies. In the winter the warm air stays in the area and
provides additional heating to the apartments.
Source: http://www.archdaily.com/3245/izola-social-housing-ofis-arhitekti/
Level 0 plan Level 1-3 plan
Source: http://www.archdaily.com/3245/izola-social-housing-ofis-arhitekti/
October 20, 2010 [INTRODUCTION TO FLEXIBLE HOUSING
11
b. Tempo housing designs to flexible housing, Netherland – (Industrial)
Convertible spaces have to be created that allow multiple identified in the industrialised process didn’t stop at
the point of providing initial choice in the design. The use of standardised components would also allow adaptation
overtime, with the possibility of elements being replaced or added to with minimum fuss.
October 20, 2010 [INTRODUCTION TO FLEXIBLE HOUSING
12
A new Home in 12 steps;
October 20, 2010 [INTRODUCTION TO FLEXIBLE HOUSING
13
Its completely prefabricated structure with modular design. PVC window and door frames. Internal heoght 7’8” to 8’7” and Internal
width 7’8” to 17’. Floor layout is 290 Sft.
c. Concept of flexible Interior – (Interior)
A fixed solution can not be a good design solution. An architect should have the capability to understand the
people very well and their activities to be predicted in short time in fact. That person definitely is the best architect for the
people, since he can make the design more flexible than anyone else.
Down showing an example for flexible room – have the ability to change with respect to time. The room can
carry to anywhere. The rooms interior is so flexible in such a way can accommodate most number of activities in full
length of day. If we look closer you can find that spaces are hidden, it’s coming out when only there is a need. And all
are in a small space very well accommodated.
Fluid habitation, Andrew Maynard
Source: Flexible solutions for small spaces in spatial design teaching
October 20, 2010 [INTRODUCTION TO FLEXIBLE HOUSING
14
8. Canada Mortage and Housing Corporation (CMHC) – Flex Housing
a. Introduction
Flex housing refers to the changing needs. It is another concept to create sustainable housing. Here the flex
housing has three basic qualities –
 Adaptability – Spaces are designed to evolve easily as the needs of the occupant change with minimal
expense.
 Accessibility – For all kinds of the users from old people to physically challenged. Necessarily should
be a barrier free design.
 Affordability – A house is relatively inexpensive to change. Although some features may be slightly
more expensive to install during construction, their initial expenses is recovered in lower renovation
costs over the long term. Wider doorways and lower, more accessible light switches cost very little to
incorporate at the time of construction but would be much more costly to install later. For example,
compare the extra cost of reinforcing a bathroom wall for grab bars during construction ($75), to tearing
a bathroom apart to reinforce the walls and install the bars later ($530)! The key to flexible housing
design is considering your long-term requirements before you build or renovate, and design with those
needs in mind. Some features are installed at the time of construction; others are built into the design
and can be inexpensively added later.
 Healthy housing
The example case buildings are taken from THE REGINA HEALTHY HOUSINGTM DEMONSTRATION
PROJECT, Canada. This is made to be flexible. It is taken care of many factors like Healthy living, Resource efficient,
Energy efficient, Affordable, Sustainable character of building built.
Some of the qualities outlined by CMHC for the Project are;
 New building methods allow faster “build” — modular panels replace stick-frame walls.
 Lower construction costs — $125 per square foot.
 Lower maintenance costs — more durable construction of panels and flooring. Locally-produced Pan-
brick never needs paintings and adds to R-value.
 Better insulation in walls — will significantly cut energy consumption, maintain cooler temperatures in
summer.
 Designed to fit the neighbourhood — an older neighbourhood needed a special design which
matched existing housing.
 Attractive, low-maintenance landscaping — low-water, low-maintenance yard is attractive, yet
practical.
 Stable foundation — foundation designed for Regina’s expansive clay conditions.
 Flexible construction — allows changes to the configuration as the owners need change.
 Energy efficiency — under-floor radiant hot water heating, one high-efficiency boiler supplies heating
and household hot water.
 Utilizes natural light — orientation of windows maximizes use of natural light, but reduces summer
heat gain.
 Accessibility for all — main floor is fully accessible to wheelchairs and other mobility aids.
The impetus for the project came from Robert McCrank of the law firm, McCrank Stewart Johnson, who
approached Helen Finucane of Ehrlo Community Services. The City of Regina partnered with Ehrlo Community
Services. They found a variety of partners and contributors. The City provided a location, funding, and assisted with the
building and landscape design. The plans for the home were by Regina designer, John Robinson. The design called for
a one and a half storey building in a mature neighbourhood with features to accommodate the occupant’s lifestyle.
October 20, 2010 [INTRODUCTION TO FLEXIBLE HOUSING
15
b. Site plan
October 20, 2010 [INTRODUCTION TO FLEXIBLE HOUSING
16
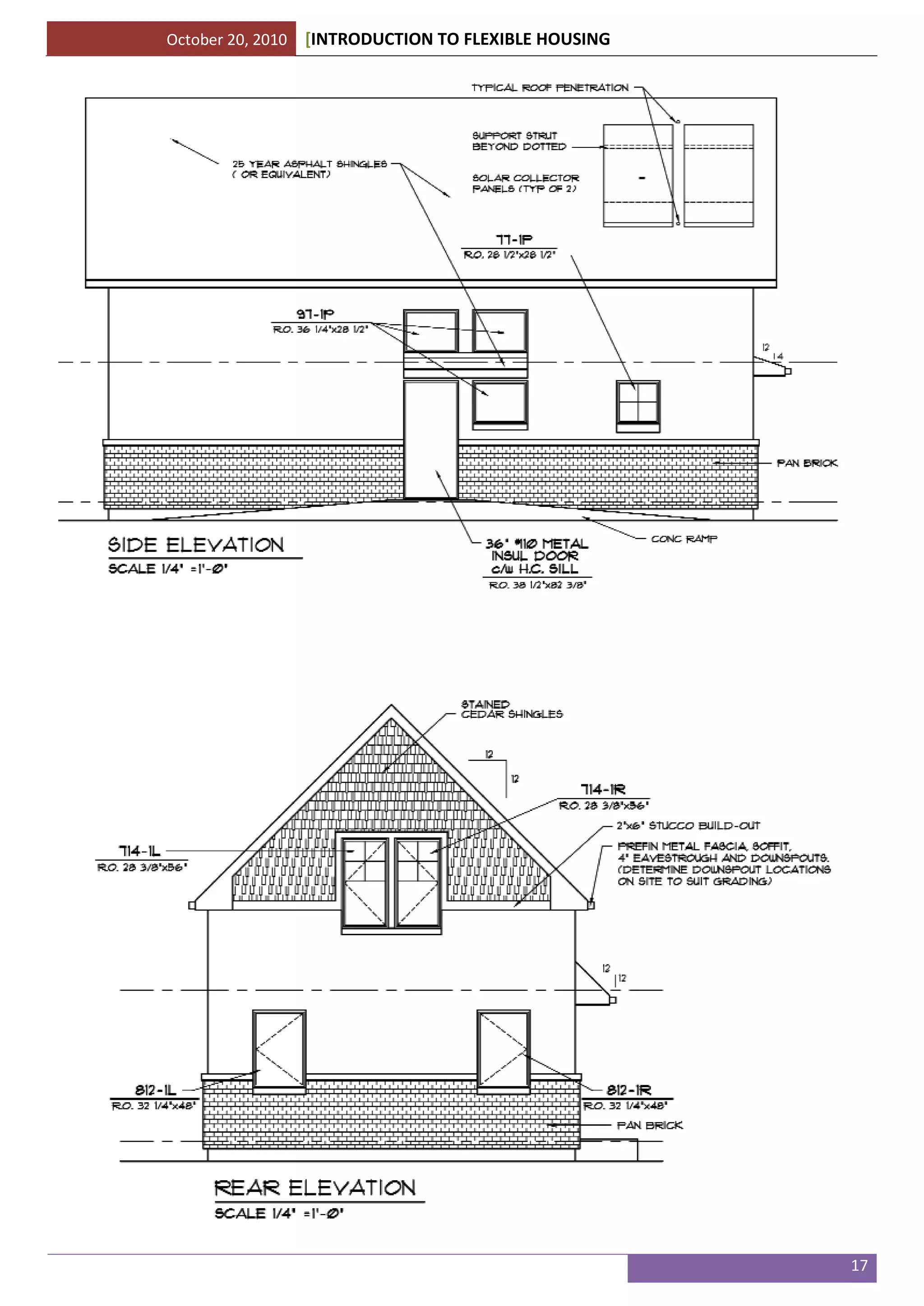
c. Building Elevation, Section and Details
October 20, 2010 [INTRODUCTION TO FLEXIBLE HOUSING
17
October 20, 2010 [INTRODUCTION TO FLEXIBLE HOUSING
18
d. Features of the flexible houses as per CMHC
Source: http://www.cmhc.ca/en/co/buho/flho/flho_005.cfm.
There are certain features noted by the CMHC for Flex Houses for each space in a residence. These are
generally spatial standards recommended.
Parking and Entrances:
Grade level, no-step; no-trip access is a logical feature of a Flex House. Parking spaces should be wide and
connected to a firm, hazard-free path leading to the entrance of the house. Unhindered access allows for easy mobility
whether wheeling a stroller or carrying an armful of groceries. There should be a covered space outside the door for
shelter, a minimum threshold to the home and non-slip flooring on the inside of the home.
October 20, 2010 [INTRODUCTION TO FLEXIBLE HOUSING
19
Entrances should be designed with security in mind. Adequate lighting and strong, easy-to-operate lever locks
and latches are chief considerations. An adaptable design might be pre-wired for an intercom or closed circuit TV
monitor to improve entranceway security.
 Parking spaces should be 2,800 mm (9 feet) wide.
 Paths should be 1,500 mm (60 inches) wide.
 The no-step, no-trip entry of the home should have no change of level greater than 19 mm (¾ inches).
 The entrance should have a clear level space of 1,500 mm X 1,500 mm (5 feet X 5 feet) both inside and outside
the door.
 The door should be between 865mm and 910 mm wide (34 inches to 36 inches).
 Install an inset window or sidelight to provide the safety of seeing who is at the door.
 Lower the viewing hole in the door to 1,065 mm (42 inches).
Hallways and Stairways:
Non-slip flooring is important in hallways, corridors and on stairs. Carpets must be well secured and handrails
should run continuously along the full length of a staircase and around any intermediate landings. Adequate lighting is
also a key safety feature. Additional Flex Housing™ features for hallways and stairways include:
 Hallways should be 1,200 mm (4 feet) wide.
 Stairs should be 1 meter (43 inches) wide and a maximum of 280 mm (11inches) deep.
 The maximum riser height should be 180 mm (7 inches).
 Flights of stairs should be straight with the same number of steps in each flight with a minimum of three and
maximum of twelve risers in each run.
 The face of the riser should be flat. If there is a nosing (the rounded edge of a stair tread), the maximum
projection should be no more than 40 mm (1½ inches). To avoid feet sliding through, avoid the use of open
risers.
 Handrails should be 30 mm (1¼ inches) to 40 mm (1½ inches) in diameter and should be between 800 mm (31
inches) and 920 mm (36 inches) above the stairs.
 Handrails should extend 300 mm (1 foot) past the bottom and top riser.
October 20, 2010 [INTRODUCTION TO FLEXIBLE HOUSING
20
The Bathroom:
In a Flex House, a bathroom should always be located on the main floor. There are a wide range of features that make
a bathroom adaptable, safe, accessible and easy to use:
 The bathroom door should be a minimum of 865 mm (34 inches) wide and open outward to avoid obstructing
the limited space inside. Install door locks that can be opened from the outside in case of an emergency.
 Leave free space on at least one side of the toilet for improved access.
 Leave free space along the full length of the bath tub for improved access.
 Reinforce walls with 16 mm (1/2 inch) plywood for the safer installation of future grab bars.
 Ensure a slip-resistant surface on the bottom of the bathtub.
 Install non-slip flooring for any area that is prone to getting wet.
 Install an adjustable hand-held shower for maximum flexibility with an aerator shower head that will reduce
water use by more than 60%.
 A low volume toilet will reduce water usage by 80%.
 Dual lever faucets are easier to use than single lever or ball-type faucets.
October 20, 2010 [INTRODUCTION TO FLEXIBLE HOUSING
21
The Kitchen:
The kitchen is often the activity centre of the home and Flex Housing™ features ensure the kitchen functions in a
convenient and safe way. An L or U shaped open-concept kitchen is ideal for accessibility.
Counters should be continuous and at the same height and level as the cook top or stove. The counters closest to these
appliances should have a heat-resistant covering and the corners of all counters should be rounded for safety.
Additional Flex Housing™ features include:
 A side-opening, wall-mounted oven with a pullout board beneath is ideal for safety and accessibility for cooks of
all ages.
 Energy efficient appliances that reduce energy consumption by as much as 50%.
 Installing pull-out work boards at varying heights.
 Knee space left under the sink or a cook top to provide universal access.
 Unglazed, low-sheen ceramic tiles are ideal for use in the kitchen.
 Providing double sinks with overflow grooves and lever handles that improve the ease of use.
 Installing adjustable cabinets with full extension shelves for maximum accessibility.
 Installing D-shaped handles on cupboards and drawers for a sturdy and easy grip
October 20, 2010 [INTRODUCTION TO FLEXIBLE HOUSING
22
The Living Room/ Family Room:
The living room of a Flex House is a place for relaxation and entertaining and as such should be warm, comfortable and
inviting. Features of a Flex House living room include:
 A door less entry with no threshold creates an open feel and easy access.
 A uniform level throughout the room eliminates abrupt changes that can create trip hazards and interfere with
accessibility.
 The installation of extra electrical, telephone and cable outlets accommodates technology and provides for
maximum flexibility in furniture arrangement.
 Light switches should be accessible from a sitting position and one switch should be located at the entrance to
the living room.
 Install or pre-wire a ceiling fixture to reduce later renovation costs.
 The installation of large, south facing windows creates a spacious appearance and helps heat the house.
October 20, 2010 [INTRODUCTION TO FLEXIBLE HOUSING
23
The Bedroom:
In a Flex House, at least one bedroom should be designed to someday be divided into two smaller rooms. Each new
room will require a door, window, lights, electrical outlets and closet space. For maximum flexibility or the future use as
a home office, install telephone jacks and electrical outlets throughout the original room.
The provision of a bedroom and full bathroom on the ground floor meets the needs of people with impaired mobility.
Additional features in the bedroom of a Flex House include:
 A minimum of 1,500 mm X 1, 500 mm (5 feet X 5 feet) of free space on at least one side of the bed.
 The installation of light switches at the bedroom entrance and beside the bed.
 Window sills should be about 750 mm (30 inches) above the floor to give children and seated adults an
unobstructed view outside.
 Closets should have lighting as well as adjustable-height shelving and hanger rods.
The Laundry Room:
In a Flex House, the laundry should be located on the same floor as the bedrooms and bathroom. Arrange the laundry
equipment for maximum convenience and ease of use. Front loading machines with front mounted controls are easiest
to use. Dryers stacked over washers should be placed with the controls no higher than 1,200 mm (4 feet).
A nearby work surface between 760 mm (30 inches) and 865 mm (34 inches) high with knee space underneath, allows
people to sit and fold their laundry.
If possible, place a washtub and task lighting close to the machines. Non-slip flooring is essential. A balanced, wall-
mounted ironing board can be moved out of the way when not being used.
Habitable Attics:
Framing an attic for use as a living space is the ultimate in flexibility. A variety of truss systems allow for the potential
extra living space and converting an attic is less expensive than building an addition.
Balconies:
Balconies are an attractive feature of many homes. Flex Housing™ principles include:
 Ensuring the balcony floor is level with the floor of the adjoining room.
 A no-step, no-trip threshold from inside floor to outside surface.
 The balcony floor should be well drained with a smooth non-slip surface.
 The railing must be a minimum of 1,250 mm (49 inches) high with the spaces between the vertical bars being
no more than 100 mm (4 inches). Avoid horizontal elements that create a "ladder" that children can't resist
climbing.
 Installing a light switch inside the door and adding an exterior electrical outlet on the balcony.
e. Conclusion from CMHC
Flex housing refers to the changing needs. It is another concept to create sustainable housing. Here the flex
housing is more adaptable character lesser flexible character. May be future innovations bring a perfect pack away
home.
October 20, 2010 [INTRODUCTION TO FLEXIBLE HOUSING
24
9. Disadvantages of flexible housing
Very well! We discussed about the advantages of flexible
housing. If there is a positive side there will be a negative side also
for any system. Then only the cycle will complete as per the nature.
If want to see problematic side of system we have to look even
closer to the system.
 As an Independent house it may be successful but
when we take group housing then there is a problem
regarding flexibility in the case of future addition.
Since some of the neighbourhoods may be
designed immobile with respect to the other in that
case the flexibility can’t be achieved in fact you have
to change the location of provide more free space
first itself.
 See the figure in case we are going to provide a
multilevel mass dwelling construction, there is no much scope of future expansion as you can see. In
fact it’s very high compared to single owner.
 Rate of change in dwelling of an individual is directly proportional to the short term economics of
individual. Since, there is an uncertainty in the long term
economics of individual.
 Since the cost of module added on time is say ‘x’, and after
some time the same module we want to add then the cost
incurred will be ‘x+x1’. Since we have to wait to make a
change for up gradation. Since the demand comes higher
supply may come much higher may cause the price to
come up on one time ( as a prediction). As per previous
point the affordability for the individual will be under
question.
 There is an argument that peoples are not really
concerned about the size of the room but number of
rooms. Is it so? How much comfortable will be the people,
as number of user increases?
 It will work well only in nuclear families.
 Flexible housing is more economic in the long term because obsolescence of housing stock is limited.
 Affordability of flexible housing is much more since the cost of initial housing is much lesser to buy. And
there is always a flexible character existing for the user to change the layouts. Buildings which can be
easily adapted over time can reduce running costs. If it comes to mass production again the cost
decreases very much relatively. Price decreases when demand increases. Still the fluctuation is always
possible towards negative. Let me conclude with earlier point, if you think it as a positive point. If
demand decreases through time the price increases usually. What will happen to the affordability and
supply stock?
 One more question comes the county like India, holds culture in the heart does they walk away from the
track they are walking now?
 Is there any solution to make our existing homes to be flexible?
 The flexibility concept is a new concept which is coming up. Definitely very deep studies required to
know the weakness and strength of it. Experience only experienced.
Source: Flexible housing; Tatjana Schneider, Jeremy Till; Elsevier,
2007, Page: 40
Source:
http://www.elasticmind.ca/innerpreneur/index.php/2009/02/2
7/get-paid-your-value-not-your-price/
October 20, 2010 [INTRODUCTION TO FLEXIBLE HOUSING
25
10. Conclusion
Flexible housing can be defined as housing that is designed for choice at the design stage, both in terms of
social use and construction, or designed for change over its lifetime. In a way I think it can be achievable since there are
services which are really flexible and other are not. May be flexibility can’t be achieved as 100% but in nominal range is
possible. For example: kitchen and toilets are fixed other services can be variable. May be in the future this 100%
flexible can be achieved. As one single box is one house to live.
 I argue all spaces are flexible if we find out the loop holes in and adapt to the right technology.
 This wider intent is examined by considering flexibility under issues of Modernism, finance,
participation, sustainability and technology in much higher level.
 Flexible housing or are the peoples are adaptive to use it to that situation Architect made for?
It may be possible in the future. Hence house as a market commodity – a product.
Housing, people just move on to the next property when their personal circumstances change. This runs
contrary to the fact that houses are one of a country’s most important assets. Peoples are not concerned about
neighbour but only themselves, if the flexible housing may comes into full fledge, yes of course all may have home – a
flexible home. Is that really possible?
In fact we have to think in other way also, that is the richer people acquire the land and builds then rents. Then
imagine how it may affect the economy of the other. In economics if demand increases supply also has to be at the
same level. In case the supply increases then price goes up. And again it may come into square one where all started.
Peoples are more concerned about the economic situation rather than anything else. If the flexible housing will
come into picture wider then peoples will be always ready to access it, may be more number of people than expected.
11. References
 Flexible housing; Tatjana Schneider, Jeremy Till; Elsevier, 2007
 http://www.cmhc-schl.gc.ca/en/inpr/afhoce/tore/afhoid/fite/remo/index.cfm : contains data for advantages
of flexible housing
 Flexible housing: opportunities and limits; Tatjana Schneider and Jeremy Till, theory, arq - vol 9. No 2.
2005, page: 157-166
 www.tempohousing.com
 http://thewaywelive.wordpress.com/2007/11/15/flexibility-in-architecture/
 http://en.wikipedia.org/wiki/Paul_Oliver
 http://archiguide.free.fr/AR/arsenehenry.htm
 Flexible solutions for small spaces in spatial design teaching
asst.Prof. Didem Bedük Tuncel, Mimar Sinan Fine Arts University, Faculty of Architecture, Department of Interior
Architecture, Meclis-i Mebusan Cad. No:24 34427 – Fındıklı /•STANBUL/TURKEY
R.Asst.Hande Z.Altinok, Mimar Sinan Fine Arts University, Faculty of Architecture, Department of Interior Architecture,
Meclis-i Mebusan Cad. No:24 34427 –Fındıklı/İSTANBUL/TURKEY
 http://www.cmhc.ca

Introduction to flexible housing

  • 1.
    INTRODUCTION TO FLEXIBLE HOUSING HOUSINGAND COMMUNITY PLANNING In this paper I discussed about the Flexible housing: its origin, advantages and disadvantages, affordability for a person and impact of it and design recommendations. Also the key idea of the entire flexible housing also mentioned. Source: http://www.architecture-page.com/go/projects/social-housing-block highly flexible and economic social housing block at Izola, Slovenia designed by Ofis Architects, Izola, Slovenia 2010 VIJESH KUMAR V ROLL NO: 10ID60R17 10/20/2010
  • 2.
    October 20, 2010[INTRODUCTION TO FLEXIBLE HOUSING 2 INTRODUCTION TO FLEXIBLE HOUSING HOUSING AND COMMUNITY PLANNING VIJESH KUMAR V., ROLL NO: 10ID60R17 RCG SCHOOL OF ID & M IIT KHARAGPUR, WEST BENGAL Contents 1. Abstract.....................................................................................................................................................................4 2. Introduction ..............................................................................................................................................................4 3. Is Flexible housing… ..................................................................................................................................................5 4. Where all started?.....................................................................................................................................................5 a. Initial stage of evolution in vernacular .................................................................................................................5 Example case: Dogon Tribes in Africa.......................................................................................................................6 b. Impact of social aspect of evolution on it to come back as new forms................................................................6 i. Area available....................................................................................................................................................7 ii. Future changes..................................................................................................................................................7 iii. Technological adaptation..................................................................................................................................7 iv. Change in number of users...............................................................................................................................7 c. Flexible housing as an idea ...................................................................................................................................7 5. Design qualities of Flexible homes............................................................................................................................8 6. Advantages of flexible housing .................................................................................................................................9 7. Example cases .........................................................................................................................................................10 a. Izola Social Housing by OFIS architects – (Social) ....................................................................................................10 b. Tempo housing designs to flexible housing, Netherland – (Industrial)..........................................................................11 c. Concept of flexible Interior – (Interior).......................................................................................................................13 8. Canada Mortage and Housing Corporation (CMHC) – Flex Housing ......................................................................14 a. Introduction ...........................................................................................................................................................14 b. Site plan................................................................................................................................................................15 c. Building Elevation, Section and Details.....................................................................................................................16 d. Features of the flexible houses as per CMHC ...........................................................................................................18 Parking and Entrances:............................................................................................................................................18 Hallways and Stairways:..........................................................................................................................................19 The Bathroom: ........................................................................................................................................................20 The Kitchen: ............................................................................................................................................................21 The Living Room/ Family Room: .............................................................................................................................22
  • 3.
    October 20, 2010[INTRODUCTION TO FLEXIBLE HOUSING 3 The Bedroom:..........................................................................................................................................................23 The Laundry Room:.................................................................................................................................................23 Habitable Attics:......................................................................................................................................................23 Balconies:................................................................................................................................................................23 9. Disadvantages of flexible housing...........................................................................................................................24 10. Conclusion...........................................................................................................................................................25 11. References ..........................................................................................................................................................25
  • 4.
    October 20, 2010[INTRODUCTION TO FLEXIBLE HOUSING 4 1. Abstract In this paper I discussed about the Flexible housing: its origin, advantages and disadvantages, affordability for a person and impact of it and design flexibilities. Also the key idea of the entire flexible housing also mentioned. There can be positive as well as negative side also for an idea, it’s necessary for us to discuss both since, there may be possibility that it may become future. The key ideas are generated from Flexible housing; Tatjana Schneider, Jeremy Till; Elsevier, 2007 and Flexible housing: opportunities and limits; Tatjana Schneider and Jeremy Till. Also there is few arguments noted that to be discussed as a group. 2. Introduction We all know how the populations are increasing in this world. And we also know the people who don’t have a home; in fact there are people out there who don’t have money to have food for at least one time in a day. India is an developing country having as much human resource and of course other also. Can you tell me Is there any person who satisfied with his home during the time runs? Certainly doesn’t. Why? Do we have an answer? Let me tell you about my answer for this problem. Humans are the most uncertainty animals living in this world for taking his decisions. Never being had a conscious mind to stick to one activity, it’s his nature. While time changes technology grows, peoples knowledge widens and deepens in, demands increases, peoples goes for more spaces by addition or taking other – may be a war of future or something else as interesting solution to this. Do we forget anything else? Yes the poor, they won’t have any place to go! Is there a solution to this problem? Oh! I forgot to answer you fully to the answer above. Yeah, the people demand increases the space consumption increases is the key sentence. You know to what it may lead to this all things? Environmental pollution, Deforestation – Urbanization, etc. Hmmm there is solution may be I can tell you is that create space with in space, so that consumption of space reduces. If one space opens to other within then you have a doubt on its existence, it’s not multi-world theory here our space exists in time to time of activity occurrences of the activity on that space. Means when you need the space the space will be there for you. It can be done only when a person who designs knows your movement and activity pattern. Today whatever we are thinking is not for today really, it’s for tomorrow. So keep this in mind, while thinking for a problem don’t solve it as today’s but definitely for tomorrows as an aggregate problem. Hence an should be a visionary who looks to past, present and future worlds. If we think in long term view in housing to meet the need and demand of people not only for today but for tomorrow also, preparing people to meet the challenges in the terms of housing shortage, quality and quantity; the solution will be what I said above nothing but space with in space having lot of magical qualities in fact. May be we never thought deep into it? We are still moving in a non adaptable construction path. Think the designs and constructions making are in next second becoming obsolescence. The demand increases with respect to time. The concrete blocks which we are making doesn’t allow us to make a reasonable change over time. We are simply caged in it. There is lot of problems one above another. If the space which we are making is conscious then what more we have to think of? If we are ready to spent a little more money and time for a intelligent building design, the solution may come out certainly. Think again what I told, If space is within space, changes with respect to time, take home where ever you go, change in design of house whenever you want, etc. Is that possible? If there is a solution then it will be economically benefitted and certainly people can easily afford it in its first cost and can upgrade on time to time. Certainly we can think of other situations also in Economic point of view. If an apartment is built, and running out of profits - certain rooms empty. And in some other areas you have a demand. Then certainly you can move that block from here to there. So we definitely have a question rising in our mind, what this can be called? And how much is that flexibility? etc. Let me first tell you about this concept what it is called;
  • 5.
    October 20, 2010[INTRODUCTION TO FLEXIBLE HOUSING 5 3. Is Flexible housing… Housing that can adjust to changing needs and pattern, in both social and technological ways. Means when the needs of people changes with time, the house can be adjusted to meet that need and the pattern of house can be changed to meet that need. In social ways is that the change we need as a personal or practical way, which is related to the population of people and age. Expanding family is referred to personal changing need; it’s a common example which everyone sees. Other is onset of old age is practical changing need. Technological ways of changing need is nothing but updating of old services to consume low energy utilisation, etc. In fact all the needs will be growing randomly with respect to time, may without following any predictions for a small duration. The changing pattern in housing is referred to the changing layout of the house with respect to circulation, activities and usage of space with respect to time. Of course there can be a change in demographic that is rise of the single person household change the pattern of the house. It can be in both ways positive as increment of person by marriage or birth; and negative again due to marriage or death. Economic is with respect to rise of the rental market. That is when rental economy rises the people consumption reduces will change the pattern of the housing. Environmental is the need to update housing to respond to climatic change. The ability of persons to make changes after getting an occupation is possible. It has immediate potential for movement and change. Do you think about from where the idea comes from? And why these ideas became popular? May be we have half answer for why it became popular concept. Let us see from where all started. 4. Where all started? Everything in this world has a history, no matter good or bad. Even flexibility concept also have a historical linkage to past. Still It is very difficult to tell all the history of flexible housing since it is there in front of us for a long period of time in different ways of form. Every concept becomes more valuable only when the necessity of it increases to certain level of demand. On other hand nobody will look in to the concept whoever evolved as primary or secondary solutions. It is the psychology of humans. Any let me tell about the initial stage of evolution and secondary impact of social aspect on it to come back. The concept became more valuable only after some time during 1960’s. Flexible housing developed in two ways. First, initial stage of evolution in vernacular and second, impact of social aspect of evolution on it to come back as new forms. a. Initial stage of evolution in vernacular We know most of the certain things are started from the vernacular. In fact this also have a well connection with past vernacular. In the past also people tried to adapt to the situations of changing times and achieved. It may be due to birth or death, climate, etc. in fact if we see all the villages in the past were sustainable, rather till now we modern people couldn’t even achieve with modern technologies. There people used logical and experienced answers to find the solutions which were truly sustainable. Let me tell you a story of Dogon Tribes in Africa. Source: http://www.cairn.info/resume.php?ID_ARTICLE=CEA_177_0095 Dogon House compound, Mali, African Tribe
  • 6.
    October 20, 2010[INTRODUCTION TO FLEXIBLE HOUSING 6 Example case: Dogon Tribes in Africa Paul Hereford Oliver is an architectural historian and writer.). He has argued that “vernacular architecture will be necessary in the future to "ensure sustainability in both cultural and economic terms beyond the short term." He is well known for his 1997 work Encyclopaedia of Vernacular Architecture of the World. Spanning 3 volumes and 2500 pages, it includes contributions from researchers from 80 countries. As of 2005, he was at work on a book to be called the World Atlas of Vernacular Architecture. Paul Oliver noted in his book: Encyclopaedia of Vernacular Architecture and book on vernacular housing, dwellings. Oliver notes that; there were several demands for the people with respect to time on the structure they live in. Whatever the family is all faced same situations of challenging family size and structure on whether nuclear or extended, the care of young children and the infirm, and the death of the aged, the demands on the dwellings to meet a challenging family size and structure are considerable. In vernacular housing the range of responsibilities to these issues is then oriented by culture and climate ranging from a single space used for the whole gamut of the family rituals to a collection of individual cells arranged around a courtyard. The system of individual huts arranged into and an open space is extremely flexible, because of the use of hut can be varied according to the circumstances. Here each hut constitutes a room and whole compound constitutes the dwelling. In this way this arrangement of the vernacular compound is the predecessor to the modern apartment plans in which a central hall gives on to a number of undifferentiated rooms that can be adopted for various purposes – Open plan flexible space of modernism. - Divided space through curtains and screens, and socially divided through significant symbolic and cultural understanding. - Through technologically advanced systems. b. Impact of social aspect of evolution on it to come back as new forms Peoples take decisions through two aspects since as designers there will be Non – Architects and Architects; Non – Architects: derive solutions through deriving long term adjustments to patterns of use and cultural formations. Architects: derive solutions through authority of expertise. In fact anything which has to come up needs some force. It may be from external or internal force. Here also the same kinds of forces acted. The external pressures can be; Source: http://www.crystalinks.com/dogon.html Dogon House compound, Mali, African Tribe
  • 7.
    October 20, 2010[INTRODUCTION TO FLEXIBLE HOUSING 7 i. Area available We know that the population is increasing in a higher order, since the area of demand increases accordingly. Unfortunately the need also increase for the people to buy. Even after they bought, no one will be ready to waste an inch of space. But again they the problem lies with people are that, they want to accommodate everything not only for today but tomorrow also. If we look closer the demand of space / area is increasing day by day for an individual. Due the life style they followed. ii. Future changes Yeah, people have of course problem with this in fact. Everything in this world changes with respect to time. Need, demand, taste, style, everything changes. View people might be different in future. In fact peoples are meant to be uncertain with their decisions and tastes; it changes with respect to a fraction of second. These all will lead people to concentrate on one solution as flexible space adaptation. The change may be social, environmental, etc. anything. iii. Technological adaptation Technology is developing day by day. The lifestyle of people is actually changing with the technological development if we look closer. So there will be a need or demand of people to adapt to that situation. I may say rate of change of technology with respect to time lead to rate of change of adaptation of people with respect to time. Just for example; earlier we had radio in our houses and we had space to locate it. After Television came in to picture, now all homes have Television and a particular space for it. It may be in bed room, living room, and kitchen and even in bathroom in fact. Think how the technology changing the people and impact on it on the spaces. Rather while technology increases the accumulation of space also increasing as waste. May be we need a high technology which peoples are dreaming of as space inside space as definitions as physics multi world theory. This is a specific problem related to the future alone. iv. Change in number of users Yeah, this is not the problem of future alone but in the past also. The death and birth in the family may lead to demand or need of people. And the time line of age of people may lead to demand of new spaces or more areas, etc. For example; a infirm old person require only very small area rather than young people. Since their activities levels are much higher than them. These are not only points which lead people to the idea flexible housing. c. Flexible housing as an idea If there is less space, then that space has to be used in efficient and flexible manner. The attention of Dutch Architects such as Willem Van Tijen, Johannes Van den Brock and Mart Stam turned to overlook in to process of use – Changeability of use. Not only for the duration of one day but also for the specific conditions of each member of a family and potential changes during the life time. Internal variability of spaces was the key element in this work. Their desire was to make minimum size apartments as tolerable and cheap as possible. The key idea derived by them is; “Design in a way that the dwelling can be regrouped and arranged according to the needs of the respective hour of the day.”
  • 8.
    October 20, 2010[INTRODUCTION TO FLEXIBLE HOUSING 8 5. Design qualities of Flexible homes There are five features for flexible design. They are just mentioned below; Adaptable Adaptable structures features repositionable partitions or are changeable per user/occupant. As we see there will be a outer shell which is structurally stable and supporting, and inner is adaptive. Universal What typifies a universally flexible building is its ease of adaptation per use. These buildings are often characterized by open floor plans and typology free design. Movable Movable flexible buildings consist of reloadable or repositionable structures or buildings capable of being torn down and reassembled in another location. Responsive Responsive buildings can respond to a number of external stimuli, including, but not limited to, energy/environment, interaction, usage, or occupation. Source: http://thewaywelive.wordpress.com/2007/11/15/flexibility-in-architecture/ Source: http://thewaywelive.wordpress.com/2007/11/15/flexibility-in-architecture/ Source: http://thewaywelive.wordpress.com/2007/11/15/flexibility-in-architecture/ Source: http://thewaywelive.wordpress.com/2007/11/15/flexibility-in-architecture/
  • 9.
    October 20, 2010[INTRODUCTION TO FLEXIBLE HOUSING 9 Transformable Characterized by modular design (capable of adding or removing units or components) transformable structures can also open and close, change form or change colour. 6. Advantages of flexible housing The advantages are;  Helps build stable neighbourhoods because a household can remain in the same house through many lifestyle changes. Reduces the running cost of building.  Allows more young households to enter the homeownership market because a smaller annual income is required to qualify for a mortgage than a conventional mortgage.  May increase the amount of affordable rental stock in the municipality.  Often it is accessible type of housing that contains design features for the elderly, the disabled and young children.  Flexibility is seen as something that gives the user the choice as to how they want to use spaces instead of architecturally predetermining their lives.  In the words of the French architect Arsène-Henri, flexible housing provides ‘a private domain that will fulfil each occupant’s expectations’; it is not about designing allegedly ‘good’ or ‘correct’ layouts but aims to provide a space which can accommodate the vicissitudes of everyday use over the long term.  Flexibility can be achieved through simple materials in construction and with very simple design. This really reduces the cost of construction of the design.  Modernism is interested in prefabrication, fast construction and new models of habitat. Hence flexible housing is in positive direction. Because it follows both.  Human behaviour and environment are dynamic in nature. Since there is an uncertainty in the decision of people. Hence we can conclude flexible housing as option.  User having a control over the environment is the key answer. Source: http://thewaywelive.wordpress.com/2007/11/15/flexibility-in-architecture/
  • 10.
    October 20, 2010[INTRODUCTION TO FLEXIBLE HOUSING 10 7. Example cases a. Izola Social Housing by OFIS architects – (Social) Architect: OFIS architects Location: Izola, Slovenia Design Year: 2003 Construction Year: 2004-2006 Client: Slovenian Housing Fund and Community of Izola The project by OFIS Architects is a winning entry for two housing blocks in a competition convoked by the Slovenia Housing Fund, a government-run programme that is providing low-cost apartments for young families. The proposal won for economic, rational and functional issues but mostly for the ratio between gross vs. saleable surface area and the flexibility of the plans. The blocks are set out on a hill with a view of Izola Bay on one side and of the surrounding hills on the other. The given urban plot was 2blocks of 60×28 meters. Height was G+4 floors. The brief required 30 apartments of different sizes and structures, varying from studio flats to 3-bedroom apartments. The apartments are small, with minimum-sized rooms according to Slovenian standards. There are no structural elements inside the apartments, thus providing flexibility and the possibility of reorganizing things. A textile shade protects the balcony and apartment from prying eyes, yet due to its semi- transparency allows the owner to enjoy the views of the bay. Perforated side-panels allow summer breeze to ventilate the space. The strong colours create different atmospheres within the apartments. Boxes at the side of each balcony provide room for air- conditioning units.The small rooms become visually bigger because the textile shade creates a perspective effect that connects part of the exterior with the interior. Balcony modules: Are designed as efficient system providing shading and ventilation for the apartments. Textile elements fixed on the front of the balconies block direct sunlight and accumulate “air buffer” zone. In the summer hot accumulated area behind the shadings is naturally ventilated through (10 cm holes) perforated side partitions of the balconies. In the winter the warm air stays in the area and provides additional heating to the apartments. Source: http://www.archdaily.com/3245/izola-social-housing-ofis-arhitekti/ Level 0 plan Level 1-3 plan Source: http://www.archdaily.com/3245/izola-social-housing-ofis-arhitekti/
  • 11.
    October 20, 2010[INTRODUCTION TO FLEXIBLE HOUSING 11 b. Tempo housing designs to flexible housing, Netherland – (Industrial) Convertible spaces have to be created that allow multiple identified in the industrialised process didn’t stop at the point of providing initial choice in the design. The use of standardised components would also allow adaptation overtime, with the possibility of elements being replaced or added to with minimum fuss.
  • 12.
    October 20, 2010[INTRODUCTION TO FLEXIBLE HOUSING 12 A new Home in 12 steps;
  • 13.
    October 20, 2010[INTRODUCTION TO FLEXIBLE HOUSING 13 Its completely prefabricated structure with modular design. PVC window and door frames. Internal heoght 7’8” to 8’7” and Internal width 7’8” to 17’. Floor layout is 290 Sft. c. Concept of flexible Interior – (Interior) A fixed solution can not be a good design solution. An architect should have the capability to understand the people very well and their activities to be predicted in short time in fact. That person definitely is the best architect for the people, since he can make the design more flexible than anyone else. Down showing an example for flexible room – have the ability to change with respect to time. The room can carry to anywhere. The rooms interior is so flexible in such a way can accommodate most number of activities in full length of day. If we look closer you can find that spaces are hidden, it’s coming out when only there is a need. And all are in a small space very well accommodated. Fluid habitation, Andrew Maynard Source: Flexible solutions for small spaces in spatial design teaching
  • 14.
    October 20, 2010[INTRODUCTION TO FLEXIBLE HOUSING 14 8. Canada Mortage and Housing Corporation (CMHC) – Flex Housing a. Introduction Flex housing refers to the changing needs. It is another concept to create sustainable housing. Here the flex housing has three basic qualities –  Adaptability – Spaces are designed to evolve easily as the needs of the occupant change with minimal expense.  Accessibility – For all kinds of the users from old people to physically challenged. Necessarily should be a barrier free design.  Affordability – A house is relatively inexpensive to change. Although some features may be slightly more expensive to install during construction, their initial expenses is recovered in lower renovation costs over the long term. Wider doorways and lower, more accessible light switches cost very little to incorporate at the time of construction but would be much more costly to install later. For example, compare the extra cost of reinforcing a bathroom wall for grab bars during construction ($75), to tearing a bathroom apart to reinforce the walls and install the bars later ($530)! The key to flexible housing design is considering your long-term requirements before you build or renovate, and design with those needs in mind. Some features are installed at the time of construction; others are built into the design and can be inexpensively added later.  Healthy housing The example case buildings are taken from THE REGINA HEALTHY HOUSINGTM DEMONSTRATION PROJECT, Canada. This is made to be flexible. It is taken care of many factors like Healthy living, Resource efficient, Energy efficient, Affordable, Sustainable character of building built. Some of the qualities outlined by CMHC for the Project are;  New building methods allow faster “build” — modular panels replace stick-frame walls.  Lower construction costs — $125 per square foot.  Lower maintenance costs — more durable construction of panels and flooring. Locally-produced Pan- brick never needs paintings and adds to R-value.  Better insulation in walls — will significantly cut energy consumption, maintain cooler temperatures in summer.  Designed to fit the neighbourhood — an older neighbourhood needed a special design which matched existing housing.  Attractive, low-maintenance landscaping — low-water, low-maintenance yard is attractive, yet practical.  Stable foundation — foundation designed for Regina’s expansive clay conditions.  Flexible construction — allows changes to the configuration as the owners need change.  Energy efficiency — under-floor radiant hot water heating, one high-efficiency boiler supplies heating and household hot water.  Utilizes natural light — orientation of windows maximizes use of natural light, but reduces summer heat gain.  Accessibility for all — main floor is fully accessible to wheelchairs and other mobility aids. The impetus for the project came from Robert McCrank of the law firm, McCrank Stewart Johnson, who approached Helen Finucane of Ehrlo Community Services. The City of Regina partnered with Ehrlo Community Services. They found a variety of partners and contributors. The City provided a location, funding, and assisted with the building and landscape design. The plans for the home were by Regina designer, John Robinson. The design called for a one and a half storey building in a mature neighbourhood with features to accommodate the occupant’s lifestyle.
  • 15.
    October 20, 2010[INTRODUCTION TO FLEXIBLE HOUSING 15 b. Site plan
  • 16.
    October 20, 2010[INTRODUCTION TO FLEXIBLE HOUSING 16 c. Building Elevation, Section and Details
  • 17.
    October 20, 2010[INTRODUCTION TO FLEXIBLE HOUSING 17
  • 18.
    October 20, 2010[INTRODUCTION TO FLEXIBLE HOUSING 18 d. Features of the flexible houses as per CMHC Source: http://www.cmhc.ca/en/co/buho/flho/flho_005.cfm. There are certain features noted by the CMHC for Flex Houses for each space in a residence. These are generally spatial standards recommended. Parking and Entrances: Grade level, no-step; no-trip access is a logical feature of a Flex House. Parking spaces should be wide and connected to a firm, hazard-free path leading to the entrance of the house. Unhindered access allows for easy mobility whether wheeling a stroller or carrying an armful of groceries. There should be a covered space outside the door for shelter, a minimum threshold to the home and non-slip flooring on the inside of the home.
  • 19.
    October 20, 2010[INTRODUCTION TO FLEXIBLE HOUSING 19 Entrances should be designed with security in mind. Adequate lighting and strong, easy-to-operate lever locks and latches are chief considerations. An adaptable design might be pre-wired for an intercom or closed circuit TV monitor to improve entranceway security.  Parking spaces should be 2,800 mm (9 feet) wide.  Paths should be 1,500 mm (60 inches) wide.  The no-step, no-trip entry of the home should have no change of level greater than 19 mm (¾ inches).  The entrance should have a clear level space of 1,500 mm X 1,500 mm (5 feet X 5 feet) both inside and outside the door.  The door should be between 865mm and 910 mm wide (34 inches to 36 inches).  Install an inset window or sidelight to provide the safety of seeing who is at the door.  Lower the viewing hole in the door to 1,065 mm (42 inches). Hallways and Stairways: Non-slip flooring is important in hallways, corridors and on stairs. Carpets must be well secured and handrails should run continuously along the full length of a staircase and around any intermediate landings. Adequate lighting is also a key safety feature. Additional Flex Housing™ features for hallways and stairways include:  Hallways should be 1,200 mm (4 feet) wide.  Stairs should be 1 meter (43 inches) wide and a maximum of 280 mm (11inches) deep.  The maximum riser height should be 180 mm (7 inches).  Flights of stairs should be straight with the same number of steps in each flight with a minimum of three and maximum of twelve risers in each run.  The face of the riser should be flat. If there is a nosing (the rounded edge of a stair tread), the maximum projection should be no more than 40 mm (1½ inches). To avoid feet sliding through, avoid the use of open risers.  Handrails should be 30 mm (1¼ inches) to 40 mm (1½ inches) in diameter and should be between 800 mm (31 inches) and 920 mm (36 inches) above the stairs.  Handrails should extend 300 mm (1 foot) past the bottom and top riser.
  • 20.
    October 20, 2010[INTRODUCTION TO FLEXIBLE HOUSING 20 The Bathroom: In a Flex House, a bathroom should always be located on the main floor. There are a wide range of features that make a bathroom adaptable, safe, accessible and easy to use:  The bathroom door should be a minimum of 865 mm (34 inches) wide and open outward to avoid obstructing the limited space inside. Install door locks that can be opened from the outside in case of an emergency.  Leave free space on at least one side of the toilet for improved access.  Leave free space along the full length of the bath tub for improved access.  Reinforce walls with 16 mm (1/2 inch) plywood for the safer installation of future grab bars.  Ensure a slip-resistant surface on the bottom of the bathtub.  Install non-slip flooring for any area that is prone to getting wet.  Install an adjustable hand-held shower for maximum flexibility with an aerator shower head that will reduce water use by more than 60%.  A low volume toilet will reduce water usage by 80%.  Dual lever faucets are easier to use than single lever or ball-type faucets.
  • 21.
    October 20, 2010[INTRODUCTION TO FLEXIBLE HOUSING 21 The Kitchen: The kitchen is often the activity centre of the home and Flex Housing™ features ensure the kitchen functions in a convenient and safe way. An L or U shaped open-concept kitchen is ideal for accessibility. Counters should be continuous and at the same height and level as the cook top or stove. The counters closest to these appliances should have a heat-resistant covering and the corners of all counters should be rounded for safety. Additional Flex Housing™ features include:  A side-opening, wall-mounted oven with a pullout board beneath is ideal for safety and accessibility for cooks of all ages.  Energy efficient appliances that reduce energy consumption by as much as 50%.  Installing pull-out work boards at varying heights.  Knee space left under the sink or a cook top to provide universal access.  Unglazed, low-sheen ceramic tiles are ideal for use in the kitchen.  Providing double sinks with overflow grooves and lever handles that improve the ease of use.  Installing adjustable cabinets with full extension shelves for maximum accessibility.  Installing D-shaped handles on cupboards and drawers for a sturdy and easy grip
  • 22.
    October 20, 2010[INTRODUCTION TO FLEXIBLE HOUSING 22 The Living Room/ Family Room: The living room of a Flex House is a place for relaxation and entertaining and as such should be warm, comfortable and inviting. Features of a Flex House living room include:  A door less entry with no threshold creates an open feel and easy access.  A uniform level throughout the room eliminates abrupt changes that can create trip hazards and interfere with accessibility.  The installation of extra electrical, telephone and cable outlets accommodates technology and provides for maximum flexibility in furniture arrangement.  Light switches should be accessible from a sitting position and one switch should be located at the entrance to the living room.  Install or pre-wire a ceiling fixture to reduce later renovation costs.  The installation of large, south facing windows creates a spacious appearance and helps heat the house.
  • 23.
    October 20, 2010[INTRODUCTION TO FLEXIBLE HOUSING 23 The Bedroom: In a Flex House, at least one bedroom should be designed to someday be divided into two smaller rooms. Each new room will require a door, window, lights, electrical outlets and closet space. For maximum flexibility or the future use as a home office, install telephone jacks and electrical outlets throughout the original room. The provision of a bedroom and full bathroom on the ground floor meets the needs of people with impaired mobility. Additional features in the bedroom of a Flex House include:  A minimum of 1,500 mm X 1, 500 mm (5 feet X 5 feet) of free space on at least one side of the bed.  The installation of light switches at the bedroom entrance and beside the bed.  Window sills should be about 750 mm (30 inches) above the floor to give children and seated adults an unobstructed view outside.  Closets should have lighting as well as adjustable-height shelving and hanger rods. The Laundry Room: In a Flex House, the laundry should be located on the same floor as the bedrooms and bathroom. Arrange the laundry equipment for maximum convenience and ease of use. Front loading machines with front mounted controls are easiest to use. Dryers stacked over washers should be placed with the controls no higher than 1,200 mm (4 feet). A nearby work surface between 760 mm (30 inches) and 865 mm (34 inches) high with knee space underneath, allows people to sit and fold their laundry. If possible, place a washtub and task lighting close to the machines. Non-slip flooring is essential. A balanced, wall- mounted ironing board can be moved out of the way when not being used. Habitable Attics: Framing an attic for use as a living space is the ultimate in flexibility. A variety of truss systems allow for the potential extra living space and converting an attic is less expensive than building an addition. Balconies: Balconies are an attractive feature of many homes. Flex Housing™ principles include:  Ensuring the balcony floor is level with the floor of the adjoining room.  A no-step, no-trip threshold from inside floor to outside surface.  The balcony floor should be well drained with a smooth non-slip surface.  The railing must be a minimum of 1,250 mm (49 inches) high with the spaces between the vertical bars being no more than 100 mm (4 inches). Avoid horizontal elements that create a "ladder" that children can't resist climbing.  Installing a light switch inside the door and adding an exterior electrical outlet on the balcony. e. Conclusion from CMHC Flex housing refers to the changing needs. It is another concept to create sustainable housing. Here the flex housing is more adaptable character lesser flexible character. May be future innovations bring a perfect pack away home.
  • 24.
    October 20, 2010[INTRODUCTION TO FLEXIBLE HOUSING 24 9. Disadvantages of flexible housing Very well! We discussed about the advantages of flexible housing. If there is a positive side there will be a negative side also for any system. Then only the cycle will complete as per the nature. If want to see problematic side of system we have to look even closer to the system.  As an Independent house it may be successful but when we take group housing then there is a problem regarding flexibility in the case of future addition. Since some of the neighbourhoods may be designed immobile with respect to the other in that case the flexibility can’t be achieved in fact you have to change the location of provide more free space first itself.  See the figure in case we are going to provide a multilevel mass dwelling construction, there is no much scope of future expansion as you can see. In fact it’s very high compared to single owner.  Rate of change in dwelling of an individual is directly proportional to the short term economics of individual. Since, there is an uncertainty in the long term economics of individual.  Since the cost of module added on time is say ‘x’, and after some time the same module we want to add then the cost incurred will be ‘x+x1’. Since we have to wait to make a change for up gradation. Since the demand comes higher supply may come much higher may cause the price to come up on one time ( as a prediction). As per previous point the affordability for the individual will be under question.  There is an argument that peoples are not really concerned about the size of the room but number of rooms. Is it so? How much comfortable will be the people, as number of user increases?  It will work well only in nuclear families.  Flexible housing is more economic in the long term because obsolescence of housing stock is limited.  Affordability of flexible housing is much more since the cost of initial housing is much lesser to buy. And there is always a flexible character existing for the user to change the layouts. Buildings which can be easily adapted over time can reduce running costs. If it comes to mass production again the cost decreases very much relatively. Price decreases when demand increases. Still the fluctuation is always possible towards negative. Let me conclude with earlier point, if you think it as a positive point. If demand decreases through time the price increases usually. What will happen to the affordability and supply stock?  One more question comes the county like India, holds culture in the heart does they walk away from the track they are walking now?  Is there any solution to make our existing homes to be flexible?  The flexibility concept is a new concept which is coming up. Definitely very deep studies required to know the weakness and strength of it. Experience only experienced. Source: Flexible housing; Tatjana Schneider, Jeremy Till; Elsevier, 2007, Page: 40 Source: http://www.elasticmind.ca/innerpreneur/index.php/2009/02/2 7/get-paid-your-value-not-your-price/
  • 25.
    October 20, 2010[INTRODUCTION TO FLEXIBLE HOUSING 25 10. Conclusion Flexible housing can be defined as housing that is designed for choice at the design stage, both in terms of social use and construction, or designed for change over its lifetime. In a way I think it can be achievable since there are services which are really flexible and other are not. May be flexibility can’t be achieved as 100% but in nominal range is possible. For example: kitchen and toilets are fixed other services can be variable. May be in the future this 100% flexible can be achieved. As one single box is one house to live.  I argue all spaces are flexible if we find out the loop holes in and adapt to the right technology.  This wider intent is examined by considering flexibility under issues of Modernism, finance, participation, sustainability and technology in much higher level.  Flexible housing or are the peoples are adaptive to use it to that situation Architect made for? It may be possible in the future. Hence house as a market commodity – a product. Housing, people just move on to the next property when their personal circumstances change. This runs contrary to the fact that houses are one of a country’s most important assets. Peoples are not concerned about neighbour but only themselves, if the flexible housing may comes into full fledge, yes of course all may have home – a flexible home. Is that really possible? In fact we have to think in other way also, that is the richer people acquire the land and builds then rents. Then imagine how it may affect the economy of the other. In economics if demand increases supply also has to be at the same level. In case the supply increases then price goes up. And again it may come into square one where all started. Peoples are more concerned about the economic situation rather than anything else. If the flexible housing will come into picture wider then peoples will be always ready to access it, may be more number of people than expected. 11. References  Flexible housing; Tatjana Schneider, Jeremy Till; Elsevier, 2007  http://www.cmhc-schl.gc.ca/en/inpr/afhoce/tore/afhoid/fite/remo/index.cfm : contains data for advantages of flexible housing  Flexible housing: opportunities and limits; Tatjana Schneider and Jeremy Till, theory, arq - vol 9. No 2. 2005, page: 157-166  www.tempohousing.com  http://thewaywelive.wordpress.com/2007/11/15/flexibility-in-architecture/  http://en.wikipedia.org/wiki/Paul_Oliver  http://archiguide.free.fr/AR/arsenehenry.htm  Flexible solutions for small spaces in spatial design teaching asst.Prof. Didem Bedük Tuncel, Mimar Sinan Fine Arts University, Faculty of Architecture, Department of Interior Architecture, Meclis-i Mebusan Cad. No:24 34427 – Fındıklı /•STANBUL/TURKEY R.Asst.Hande Z.Altinok, Mimar Sinan Fine Arts University, Faculty of Architecture, Department of Interior Architecture, Meclis-i Mebusan Cad. No:24 34427 –Fındıklı/İSTANBUL/TURKEY  http://www.cmhc.ca