Master in Collective Housing
Final Booklet: Anastasia Lizardou
2022 MCH EDITION
2022 MCH EDITION
Master in Collective Housing
Final Booklet: Anastasia Lizardou
“The Master of Advanced Studies in Collective Housing (MCH) is a
postgraduate full-time international professional program of architec-
ture and design in cities and housing presented by Universidad Politécni-
ca de Madrid (UPM) and ETH Zurich. After 14 editions, it is rated as one
of the best architecture master’s programs.
The program consists of 600 hours (60 ECTS). Participants will develop
their design skills through an intensive series of seven one-week work-
shops and complete their knowledge in speciality modules, including
energy and sustainability; housing practice; construction and technolo-
gy; leadership, processes and entrepreneurship; urban design and city
sciences; low-cost and emergency housing; and sociology, economy
and politics. Each specialty is coordinated by a technical director who
lectures with a group of guest teachers and specialists from all over the
world.
MCH has also built a close relationship with great architects who are
regular workshop leaders, such as Dietmar Eberle, Anne Lacaton, An-
drea Deplazes, Anna Heringer, Hrvoje Njiriç, Alison Brooks, Juan Herre-
ros, Elli Mosayebi, Riken Yamamoto, Cino Zucchi, Jacob van Rijs, Alejan-
dro Aravena and Wiel Aret.
It is the interaction between teachers and participants that generates
the greatest results and production each year.”
Dezeen Magazine
al |ANASTASIA LIZARDOU
natasalizardou@gmail.com
01. What makes good conditions of living?
05. 16th C. 19th C. 20th C.
04. La Corrala Futura
02. Domestic Fragments
03. Ordinariness and life
Anne Lacaton
Dietmar Eberle
Alison Brooks
Elli Mosayebi
Hrvoje Njiriç
W|Workshops
Workshop leader
Anne Lacaton
Workshop Assistant
Diego Garcia-Setien
Students
Anastasia Lizardou
Bettina Kagelmacher
Borja Alcala
Isabella Pineda
Teresita Campino
WHAT MAKES GOOD CONDITIONS OF LIVING?
WHAT MAKES GOOD CONDITIONS OF LIVING?
Syllabus
The workshop topic will emphasize on the optimal conditions to live in
the city, in a public space, in the neighborhood, in collective space,
with the close community, in the individual space. The city should
provide exceptional quality of life by offering a large range of facili-
ties, proximities, and pleasures, as well as a large variety of typologies
to fit with different needs, expectations and ways of life.
The question is opened to a very large concept of housing, which is
not specially responding to a “market product”, intended for a tradi-
tional middle-class family, but, beyond, rethink the principles of the
space for living and how housing is designed: how to create good
living conditions -architecturally, spatially, technically, sustainably,
etc.- such that, a very large and varied number of people could find
a space for living that they could appropriate of.
GROUNDFLOOR PLAN
LONGITUDINAL SECTION
~~~Fry-King~~~
WHAT MAKES GOOD CONDITIONS OF LIVING?
#public spaces
WHAT MAKES GOOD CONDITIONS OF LIVING?
#green spaces
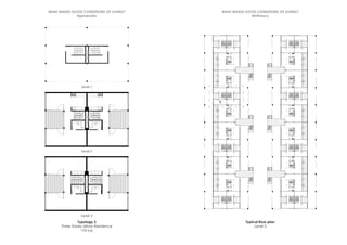
HOUSING AREA 003
256 DWELLINGS
Longitudinal Section
Typical floor plan arragment
WHAT MAKES GOOD CONDITIONS OF LIVING?
#diversity
Typical floor plan
Level 1
1
Typology 1
Smaller Dwelling
80 m2
WHAT MAKES GOOD CONDITIONS OF LIVING?
#flexibility
WHAT MAKES GOOD CONDITIONS OF LIVING?
#communal spaces
Typical floor plan
Level 2
Typology 2
Typical Dwelling
80 m2
2
WHAT MAKES GOOD CONDITIONS OF LIVING?
#winter gardens
WHAT MAKES GOOD CONDITIONS OF LIVING?
#privacy
Typical floor plan
Level 3
Typology 3
Three Storey Urban Residence
170 m2
Level 1
Level 2
Level 3
3
WHAT MAKES GOOD CONDITIONS OF LIVING?
#generosity
WHAT MAKES GOOD CONDITIONS OF LIVING?
#intimacy
Interior View from a communal space
Exterior view from a public space
WHAT MAKES GOOD CONDITIONS OF LIVING?
#harmony
WHAT MAKES GOOD CONDITIONS OF LIVING?
#views
Workshop leader
Elli Mosayebi
Workshop Assistant
Alvaro M. Fidalgo
Students:
Anastasia Lizardou
Nayanatara Tampi
Andres Solano
DOMESTIC FRAGMENTS
Syllabus
The point of departure for each design will be a specific concep-
tion of dwelling. The social relevance of this conception is of se-
condary importance. At the fore lies its spatial and architectural
potential. In its concrete formulation, the idea might even cha-
llenge the notion of ‘individual dwellings’. Buildings for collective
living are also conceivable, in which such a distinction becomes
irrelevant. Just as possible is the idea that these buildings do not
solely serve as spaces for dwelling (whereby the immediate ques-
tion would be what exactly is meant by ‘dwelling’), but also incor-
porating working, contemplation, or other activities. The sole pre-
requisite is that the apartment can belived in by several people
living independently of one another.
Besides the specific conception of dwelling, a proposition of a parti-
cular architectural element can serve as a generative impulse for the
design; an element that stands in a definite relationship to the formu-
lated intention, or independent to it providing an additional archi-
tectural point of departure. Such elements are to be more broadly
understood than simply constructive elements such as structural ele-
ments, windows, doors, stairs, fireplaces, etc., but also might include
secondary and mobile components such as the elements of kitchens
and bathrooms, or beds, tables, curtains etc.
Ultimately it is also conceivable to take such an element as the
primary origin of the project, i.e. to develop the dwelling on
the basis of an architectural element or a piece of furniture.
Can you imagine an inhabited staircase? How would you de-
sign a floor plan based on a chimney? Can the placement of
columns define a dwelling space? How would a dwelling look
that primarily serves sleeping, and in which the bed is at the
centre? Who would inhabit such spaces?
Ettore Sottsass jr., Mobile and Flexible Environment Module,
DOMESTIC FRAGMENTS
Floor plan 1:50
74 dried salmon / 32 smoked salmon
8 dried hams / 20kg salted meat / 20kg smoked meat
24kg of butter /12 lts of oil / 32kg of cheese / 144 dozen eggs
200kg of flour / 24kg sugar / 12kg salt
64kg of legumes / 80kg of rice
40kg of dried vegetables / 20kg of pickled vegetables
20kg of canned vegetables
40kg of dried fruit / 24kg of jam / 16kg of compote
8kg of coffee / 8kg of tea
240 bottles of wine
Can you imagine an inhabited fridge where you can
invite guests for dinner and then you should “restore”
the food that you consumed because its part of the
house?
Whether you can or not, thats what we had to design.
Taking into acount that we are in a climate with little rain-
fall and temperatures below 10 degrees celsius during
the summer and below 0 degrees celsius during the win-
ter. These territories are covered with moss, lichens and
small bushes and are usually swampy areas.
A HOUSE FOR 100 DAYS
FOOD FOR 100 DAYS
DOMESTIC FRAGMENTS
DOMESTIC FRAGMENTS
Detail
Miniature
DOMESTIC FRAGMENTS
DOMESTIC FRAGMENTS
Workshop leader
Hrvoje Njiriç
Workshop Assistant
Esperanza Campaña
Students
Anastasia Lizardou
Androniki Faidra Petrou
Andrew George
Fellipe Santamaria
Francisco Heredia
ORDINARINESS AND LIFE
Syllabus
The task is focused on low-cost housing, on affordable and innovative
solutions to the basic need for a small-sized housing within a specific
Mediterranean context of the city of Split in Croatia. Sometimes we
face the task to design and situate a dwelling or a group of dwellings
into a predefined contour. Reasons for this can be quite diversified –
be it an existing structure that has to be converted into apartments or
a complicated geometry of a lot, articulated in such a way to meet
urban requirements.
In this particular case the complex outline is topped with a legalized
house in the middle of the designated plot and a road that runs dia-
gonally across the site. The workshop is designed to challenge and
seek creativity with ideas and concepts in architectural design of co-
llective living spaces. It aims to promote well-tempered solutions to
housing, coming up with affordable and sustainable units with limited
size and budget to meet demands in housing market even on a such
a troubled location as Kila. The assignment gives an opportunity to
think about social, cultural and environmental effects in sustainable
design within defined parameters.
ORDINARINESS AND LIFE
STRATEGY
TYPICAL UNIT PLAN PLAN PERMUTATIONS
ORDINARINESS AND LIFE ORDINARINESS AND LIFE
ATTACHMENT DETAIL
TYPICAL BUILDING STRUCTURE WITH THE ATTACHMENT
ORDINARINESS AND LIFE ORDINARINESS AND LIFE
Interior View from the dwelling
Interior View from the attachment
ORDINARINESS AND LIFE ORDINARINESS AND LIFE
Workshop leader
Alison Brooks
Workshop Assistan
Alejandro de Miguel
Students
Anastasia Lizardou
Isabella Pineda
Paloma Allende
Sebastian Worm
Syllabus
It is likely that the Spanish “corridor house” model evolved as a synthesis
of the traditional Castilian noble house (heir to the Roman domus, with
the courtyard as the axis of the building and a structure of wooden bays
on its outer perimeter) and the Andalusian Parapet that will provide the
future corrala with the model of coexistence, without planning or infras-
tructure, sometimes forming dead ends that created a social space that
will later be repeated in the Hispanic corral.*
The history of the city is also the history of collective housing.
...In the 21st century, these archetypes are evolving to respond to both the
established urban conditions of the historic city and to the requirement for
increasing urban density. The climate crisis also demands that we re-think the
modernist housing paradigm that responded to growing urban populations
with large scale social housing projects on green field sites. Those perceived
utopias segregated new communities from their places of work and leisure
resulting in sterile ‘dormitory’ neighbourhoods.
In this Workshop we will prove the sustainable city is a diverse city - socially,
economically, architecturally and ecologically. We will re-conceive urban
housing a place of production, creativity and work, a necessary and resur-
gent cultural condition... In the historic/contemporary European city, as ex-
emplified by Madrid, housing must be designed to serve as a platform for
sustainable collective life, to enables creative communities to flourish.
LA CORRALA FUTURA
LA CORRALA FUTURA
It is our mission to design spaces that meet the needs of the users, work-
ing diligently and creatively in order to produce not only houses, but
homes for living, spaces to inspire and to enjoy.
We aim to create collective housing that captures the soul of traditional
corralas– lively corridors, communal spaces, and a sense of belonging to
the 21st century.
As we enter this new post-pandemic era, we aim to create a hybrid envi-
ronment for artists to live, work, and play. We aim to provide these artists
with the necessary space and atmosphere to create and freely explore
new mediums.
Our goal is to respect the current operation within the plot, and to en-
hance these programs and activities through architectural
planning.
We design with intention, to understand the constraints each site has,
and its geographic, historical, as well as cultural background while re-
specting the neighboring properties.
THE CONTEMPORARY CORRALA
LA CORRALA FUTURA LA CORRALA FUTURA
LA
CORRALA
FUTURA
LA
CORRALA
FUTURA
LA CORRALA FUTURA LA CORRALA FUTURA
LA
CORRALA
FUTURA
LA
CORRALA
FUTURA
LA
CORRALA
FUTURA LA CORRALA FUTURA
View from the entrance
View from the street
LA CORRALA FUTURA
LA CORRALA FUTURA
Workshop leader
Dietmar Eberle
Guests
Alberto Nicolau
Students
Anastasia Lizardou
Plaza Espana 19th C. Madrid Rio 20th C.
La Latina 16th C.
Syllabus
This workshop had a unique syllabus. Every day each one of
us had to approach a daily task in different plots which were
located in different civic environments of Madrid’s city center.
At the end of each day, we had to choose a project made by
a colleague to use for our next task.
Case study
3 different plots
Location
3 different locations in the City center of Madrid
16th C. 19th C. 20th C.
19th. C
16th. C
20th. C
La latina 20th C.
Physical Model
Axonometry of the Structure
Plan with the atmoshere
based to my volumetric from day 1
GSEducationalVersion
Groundfloor plan
Figure fround
16th C. 19th C. 20th C.
16th C. 19th C. 20th C.
Typical floor plan
Concrete Foundations
Composed Concrete - CLT
Floor structure
Post & Beam
Conrete structure
Concrete Cores
Main roof structure
Timber beams
Roof finishing with tiles
Concrete Foundations
Composed Concrete - CLT
Floor structure
Post & Beam
Conrete structure
Concrete Cores
Main roof structure
Timber beams
Roof finishing with tiles
16th C. 19th C. 20th C.
16th C. 19th C. 20th C.
View from the courtyard
View from the backstreet
16th C. 19th C. 20th C.
16th C. 19th C. 20th C.
ANASTA
SIA
LIZARDO
U
DAY
2
Typic
al
layou
t
Axon
ome
try
Plaza Espana 19th C.
Scale 1:100
Typical layout
Structure Axonometry
Based on Isabella’s volumetric from day 1
Typical floor plan
Structure
3d model
16th C. 19th C. 20th C.
16th C. 19th C. 20th C.
3.50
ANASTASIA LIZARDOU
DAY 3
Section detail
Plan Ddtail
Axonometry
3.50
Madrid Rio
Based on Bettina’s volumetric from day 2
Section detail Axonometry of the facade
Plan detail
16th C. 19th C. 20th C.
16th C. 19th C. 20th C.
04 Low Cost & Emergency Housing
01 Climate Metabolism and Architecture
02 Construction & Technology
03 Sociology, Economy & Politics
Cristiane Muniz & Fernando Viégas
Javier García-Germán
Ignacio Fernández-Solla
Daniel Sorando
S |Specialties
Specialty leader
Javier Garcίa-Germάn
Guests
Silvia Benedito
Daniel Ibañez
Renaud Haerlinger
Jaume Mayol
Sascha Roesler
Students
Anastasia Lizardou
Flavia Fernades
Ishan Goyal
Joaquin Ipince
Karol DIaz
01 Climate Metabolism and Architecture
Syllabus
The module CLIMATIC TYPOLOGIES. BODY, CLIMATE, AR-
CHITECTURE explores the design opportunities which the
field of thermodynamics and ecology are opening to
architecture, and specifically to the field of
collective housing.
The module focuses on climatic questions and on the
metabolic dimension of architecture, with the objec-
tive of finding design strategies which bridge the void
between quantitative and qualitative approaches.
As a result special attention will be given to questions
which in rare occasions are addressed in mainstream
sustainability courses. The workshop will immerse in the
quotidian implications of sustainability, connecting
everyday life to architecture, which introduces to the
specialty the ethnological dimension of architecture.
This question opens the experiential realm, introdu-
cing the human body in its physiological and psycho-
logical dimensions to architecture.
Under this perspective, the history of architecture —
which offers a rich variety of climatic and metabolic re-
ferences— will be a powerful design tool.
The module is formed by a seminar and a workshop. The
idea of integrating seminar and workshop is to introdu-
ce a series theoretical concepts and, simultaneously,
to learn how to nest them in the design process, thus
reinforcing the practical-theoretical approach of this
module. This approach, which mediates between the
technical and cultural aspects of architecture, focu-
ses on developing informed design strategies and on
its implementation on real practice.
Prototype
Winter Strategies
Prototype
Summer Strategies
Prototype
Final Design
Prototype
Material Palette
Cluster Scheme
Final Design
Specialty leader
Ignacio Fernández-Solla
Guests
David Rutter
Archie Campbell
Diego García-Setién
Students:
Anastasia Lizardou
Suzane Kteich
Gaurav Chordia
Tita Campino
03 Construction & Technology
Syllabus
The aim of this course is to analyse the building as a physi-
cal system within the technical and integration systems in
the design process. The theory is focused on the descrip-
tion of the main solutions given by architects in their most
relevant buildings and the analysis of the different techni-
cal systems that make up the building.
Highly experienced professionals in housing construction
and design will transmit their experience and knowledge
in these fields.
Tasks
•
• Each team has to select a residential project from the
Each team has to select a residential project from the
21st century list (case studies).
21st century list (case studies).
•
• Each team has to modify their project in location and
Each team has to modify their project in location and
technology terms.
technology terms.
•
• Design progress will be discussed jointly during every
Design progress will be discussed jointly during every
session.
session.
•
• Each case study will be assigned to two groups, in order
Each case study will be assigned to two groups, in order
to be
to be
relocated in two different places and two different
relocated in two different places and two different
technology contexts, as follows:
technology contexts, as follows:
- Continental, humid climate zone (D)*, in a highly in-
- Continental, humid climate zone (D)*, in a highly in-
dustrialized economy.
dustrialized economy.
- Tropical, wet climate zone (A)*, in a modestly industri-
- Tropical, wet climate zone (A)*, in a modestly industri-
alized economy.
alized economy.
•
• Students to reconceptualize the building’s design strat-
Students to reconceptualize the building’s design strat-
egies in terms of envelope, structure and services.
egies in terms of envelope, structure and services.
•
• Students to reconsider construction systems and mate-
Students to reconsider construction systems and mate-
rials, and search for an appropriate solution which al-
rials, and search for an appropriate solution which al-
lows to reindustrialize the building process, related to
lows to reindustrialize the building process, related to
the available resources in the new location.
the available resources in the new location.
Relocation site: Mcmurdo Station, US Antartic Base
1. Harsh, dry and cold weather conditions
2. Inhabitable place without support systems
3. Limitations of resources and heavy logistical dependence on their transportation
4. Fear of contamination and disruption of fragile geographical conditions
Case study
Frøsilo, MVRDV, 2005
Existing Location
Islands Brygge, Copenhagen
Climate
Baltic, that is to say, relatively continental, with cold winters
and mild to pleasantly warm summers.
Typical floor plan
Longitudinal Section
Design strategies
Building program
Section detail
Section details
Exploded facade
Exploded facade detail
1. Stainless steel (1.5mm )
2. Foam with closed cells (3mm)
3. EPDM Silicone Sealant (3mm)
4. Lamellate wood (80mm)
5. Low-Density polystyrene
charged with graphite (400mm)
6. Lamellate wood (60mm)
7. Kraft paper
8. Aluminum vapour barrier
9. Woolen felt
10. Joint seal
11. Two layers laminated glass window
12. Main steel structure
13. Steel beams and columns
14. CLT floors and roofs
15. Insulation layer
16. Stainless steel Bending
Map of pieces. Ground floor
Map of pieces. Typical floor
Catalogue of pieces
Construction phases
Specialty leaders
Cristiane Muniz & Fernado Viegas
Guests
Andreas Schiffer
Elena GIRAL from the European Commission
Juana Canet
María Aranguren
Students
Anastasia Lizardou
Christian Haro
Juanita Gomez
Karol Diaz
Jorge Sandez
06 Low Cost & Emergency Housing
Syllabus
The city of São Paulo grew dramatically during the 20th cen-
The city of São Paulo grew dramatically during the 20th cen-
tury. However, the transformation of the small village into the
tury. However, the transformation of the small village into the
largest South American metropolis in less than 100 years con-
largest South American metropolis in less than 100 years con-
tributed to blurring the relationship of its residents with the
tributed to blurring the relationship of its residents with the
surrounding geography and to increases, year per year, the
surrounding geography and to increases, year per year, the
population living in vulnerable conditions. During the pan-
population living in vulnerable conditions. During the pan-
demic, we had a 35% increase in people going to be home-
demic, we had a 35% increase in people going to be home-
less. The metropolitan region of São Paulo is the area with the
less. The metropolitan region of São Paulo is the area with the
highest number of people living in favelas in Brazil, according
highest number of people living in favelas in Brazil, according
to data from the 2010 census released by the IBGE. Accord-
to data from the 2010 census released by the IBGE. Accord-
ing to the study that maps the “subnormal agglomerations”
ing to the study that maps the “subnormal agglomerations”
- irregular settlements known as favelas, invasions, lowlands,
- irregular settlements known as favelas, invasions, lowlands,
communities, villas, resacas, mocambo, and salt houses,
communities, villas, resacas, mocambo, and salt houses,
among others - in the city of São Paulo there are more than 2
among others - in the city of São Paulo there are more than 2
million people living in these conditions.
million people living in these conditions.
This Master proposes a speculation about the relationship be-
This Master proposes a speculation about the relationship be-
tween the urban structure of the city, which sits on a site that
tween the urban structure of the city, which sits on a site that
once featured watercourses and small hills; and the contrast
once featured watercourses and small hills; and the contrast
with the housing historical situation, a kind of tragic project to
with the housing historical situation, a kind of tragic project to
pushes away poor immigrant people. We will direct our gaze
pushes away poor immigrant people. We will direct our gaze
towards the peripheral neighborhoods of this city, working to
towards the peripheral neighborhoods of this city, working to
better know this reality and to understand how we could add
better know this reality and to understand how we could add
our knowledge to these places. Infrastructural works in the
our knowledge to these places. Infrastructural works in the
20th century have changed the course of the small rivers,
20th century have changed the course of the small rivers,
and streams, narrowed their valleys creating paved areas,
and streams, narrowed their valleys creating paved areas,
turning their margins into heavy traffic corridors, pollutng their
turning their margins into heavy traffic corridors, pollutng their
waters, causing constant flooding, and killing the vegetation.
waters, causing constant flooding, and killing the vegetation.
People who had nowhere to live sought to settle in unoccu-
People who had nowhere to live sought to settle in unoccu-
pied areas, often distant from downtown, often along or over
pied areas, often distant from downtown, often along or over
small streams, increasing their risks and contributing to the
small streams, increasing their risks and contributing to the
pollution of these water channels.
pollution of these water channels.
Step 1: Organize the space
S prototype - Skylight
Step 3: Design of Prototype Infrastructures for different scales & construction phases S prototype - Balcony
Step 2: Study of the existing
S prototype - Canopy
M prototype - Roof
L prototype - Roof Structure
L prototype - Public equipment
XL prototype - Collective housing structure
S prototype - Water tank
Section CC - Collective housing prototype
Section BB - Small, Medium & Large prototypes
Section AA - Small & Medium prototypes
Small infrastructure detail Medium infrastructure detail
Large infrastructure detail XLarge infrastructure detail
al |ANASTASIA LIZARDOU
natasalizardou@gmail.com
2022 MCH EDITION

Anastasia Lizardou, MCH2022, Greece

  • 1.
    Master in CollectiveHousing Final Booklet: Anastasia Lizardou 2022 MCH EDITION
  • 2.
    2022 MCH EDITION Masterin Collective Housing Final Booklet: Anastasia Lizardou “The Master of Advanced Studies in Collective Housing (MCH) is a postgraduate full-time international professional program of architec- ture and design in cities and housing presented by Universidad Politécni- ca de Madrid (UPM) and ETH Zurich. After 14 editions, it is rated as one of the best architecture master’s programs. The program consists of 600 hours (60 ECTS). Participants will develop their design skills through an intensive series of seven one-week work- shops and complete their knowledge in speciality modules, including energy and sustainability; housing practice; construction and technolo- gy; leadership, processes and entrepreneurship; urban design and city sciences; low-cost and emergency housing; and sociology, economy and politics. Each specialty is coordinated by a technical director who lectures with a group of guest teachers and specialists from all over the world. MCH has also built a close relationship with great architects who are regular workshop leaders, such as Dietmar Eberle, Anne Lacaton, An- drea Deplazes, Anna Heringer, Hrvoje Njiriç, Alison Brooks, Juan Herre- ros, Elli Mosayebi, Riken Yamamoto, Cino Zucchi, Jacob van Rijs, Alejan- dro Aravena and Wiel Aret. It is the interaction between teachers and participants that generates the greatest results and production each year.” Dezeen Magazine
  • 3.
  • 4.
    01. What makesgood conditions of living? 05. 16th C. 19th C. 20th C. 04. La Corrala Futura 02. Domestic Fragments 03. Ordinariness and life Anne Lacaton Dietmar Eberle Alison Brooks Elli Mosayebi Hrvoje Njiriç W|Workshops
  • 5.
    Workshop leader Anne Lacaton WorkshopAssistant Diego Garcia-Setien Students Anastasia Lizardou Bettina Kagelmacher Borja Alcala Isabella Pineda Teresita Campino WHAT MAKES GOOD CONDITIONS OF LIVING? WHAT MAKES GOOD CONDITIONS OF LIVING? Syllabus The workshop topic will emphasize on the optimal conditions to live in the city, in a public space, in the neighborhood, in collective space, with the close community, in the individual space. The city should provide exceptional quality of life by offering a large range of facili- ties, proximities, and pleasures, as well as a large variety of typologies to fit with different needs, expectations and ways of life. The question is opened to a very large concept of housing, which is not specially responding to a “market product”, intended for a tradi- tional middle-class family, but, beyond, rethink the principles of the space for living and how housing is designed: how to create good living conditions -architecturally, spatially, technically, sustainably, etc.- such that, a very large and varied number of people could find a space for living that they could appropriate of.
  • 6.
    GROUNDFLOOR PLAN LONGITUDINAL SECTION ~~~Fry-King~~~ WHATMAKES GOOD CONDITIONS OF LIVING? #public spaces WHAT MAKES GOOD CONDITIONS OF LIVING? #green spaces
  • 7.
    HOUSING AREA 003 256DWELLINGS Longitudinal Section Typical floor plan arragment WHAT MAKES GOOD CONDITIONS OF LIVING? #diversity
  • 8.
    Typical floor plan Level1 1 Typology 1 Smaller Dwelling 80 m2 WHAT MAKES GOOD CONDITIONS OF LIVING? #flexibility WHAT MAKES GOOD CONDITIONS OF LIVING? #communal spaces
  • 9.
    Typical floor plan Level2 Typology 2 Typical Dwelling 80 m2 2 WHAT MAKES GOOD CONDITIONS OF LIVING? #winter gardens WHAT MAKES GOOD CONDITIONS OF LIVING? #privacy
  • 10.
    Typical floor plan Level3 Typology 3 Three Storey Urban Residence 170 m2 Level 1 Level 2 Level 3 3 WHAT MAKES GOOD CONDITIONS OF LIVING? #generosity WHAT MAKES GOOD CONDITIONS OF LIVING? #intimacy
  • 11.
    Interior View froma communal space Exterior view from a public space WHAT MAKES GOOD CONDITIONS OF LIVING? #harmony WHAT MAKES GOOD CONDITIONS OF LIVING? #views
  • 12.
    Workshop leader Elli Mosayebi WorkshopAssistant Alvaro M. Fidalgo Students: Anastasia Lizardou Nayanatara Tampi Andres Solano DOMESTIC FRAGMENTS Syllabus The point of departure for each design will be a specific concep- tion of dwelling. The social relevance of this conception is of se- condary importance. At the fore lies its spatial and architectural potential. In its concrete formulation, the idea might even cha- llenge the notion of ‘individual dwellings’. Buildings for collective living are also conceivable, in which such a distinction becomes irrelevant. Just as possible is the idea that these buildings do not solely serve as spaces for dwelling (whereby the immediate ques- tion would be what exactly is meant by ‘dwelling’), but also incor- porating working, contemplation, or other activities. The sole pre- requisite is that the apartment can belived in by several people living independently of one another. Besides the specific conception of dwelling, a proposition of a parti- cular architectural element can serve as a generative impulse for the design; an element that stands in a definite relationship to the formu- lated intention, or independent to it providing an additional archi- tectural point of departure. Such elements are to be more broadly understood than simply constructive elements such as structural ele- ments, windows, doors, stairs, fireplaces, etc., but also might include secondary and mobile components such as the elements of kitchens and bathrooms, or beds, tables, curtains etc. Ultimately it is also conceivable to take such an element as the primary origin of the project, i.e. to develop the dwelling on the basis of an architectural element or a piece of furniture. Can you imagine an inhabited staircase? How would you de- sign a floor plan based on a chimney? Can the placement of columns define a dwelling space? How would a dwelling look that primarily serves sleeping, and in which the bed is at the centre? Who would inhabit such spaces? Ettore Sottsass jr., Mobile and Flexible Environment Module, DOMESTIC FRAGMENTS
  • 13.
    Floor plan 1:50 74dried salmon / 32 smoked salmon 8 dried hams / 20kg salted meat / 20kg smoked meat 24kg of butter /12 lts of oil / 32kg of cheese / 144 dozen eggs 200kg of flour / 24kg sugar / 12kg salt 64kg of legumes / 80kg of rice 40kg of dried vegetables / 20kg of pickled vegetables 20kg of canned vegetables 40kg of dried fruit / 24kg of jam / 16kg of compote 8kg of coffee / 8kg of tea 240 bottles of wine Can you imagine an inhabited fridge where you can invite guests for dinner and then you should “restore” the food that you consumed because its part of the house? Whether you can or not, thats what we had to design. Taking into acount that we are in a climate with little rain- fall and temperatures below 10 degrees celsius during the summer and below 0 degrees celsius during the win- ter. These territories are covered with moss, lichens and small bushes and are usually swampy areas. A HOUSE FOR 100 DAYS FOOD FOR 100 DAYS DOMESTIC FRAGMENTS DOMESTIC FRAGMENTS
  • 14.
  • 15.
    Workshop leader Hrvoje Njiriç WorkshopAssistant Esperanza Campaña Students Anastasia Lizardou Androniki Faidra Petrou Andrew George Fellipe Santamaria Francisco Heredia ORDINARINESS AND LIFE Syllabus The task is focused on low-cost housing, on affordable and innovative solutions to the basic need for a small-sized housing within a specific Mediterranean context of the city of Split in Croatia. Sometimes we face the task to design and situate a dwelling or a group of dwellings into a predefined contour. Reasons for this can be quite diversified – be it an existing structure that has to be converted into apartments or a complicated geometry of a lot, articulated in such a way to meet urban requirements. In this particular case the complex outline is topped with a legalized house in the middle of the designated plot and a road that runs dia- gonally across the site. The workshop is designed to challenge and seek creativity with ideas and concepts in architectural design of co- llective living spaces. It aims to promote well-tempered solutions to housing, coming up with affordable and sustainable units with limited size and budget to meet demands in housing market even on a such a troubled location as Kila. The assignment gives an opportunity to think about social, cultural and environmental effects in sustainable design within defined parameters. ORDINARINESS AND LIFE
  • 19.
    STRATEGY TYPICAL UNIT PLANPLAN PERMUTATIONS ORDINARINESS AND LIFE ORDINARINESS AND LIFE
  • 20.
    ATTACHMENT DETAIL TYPICAL BUILDINGSTRUCTURE WITH THE ATTACHMENT ORDINARINESS AND LIFE ORDINARINESS AND LIFE
  • 22.
    Interior View fromthe dwelling Interior View from the attachment ORDINARINESS AND LIFE ORDINARINESS AND LIFE
  • 23.
    Workshop leader Alison Brooks WorkshopAssistan Alejandro de Miguel Students Anastasia Lizardou Isabella Pineda Paloma Allende Sebastian Worm Syllabus It is likely that the Spanish “corridor house” model evolved as a synthesis of the traditional Castilian noble house (heir to the Roman domus, with the courtyard as the axis of the building and a structure of wooden bays on its outer perimeter) and the Andalusian Parapet that will provide the future corrala with the model of coexistence, without planning or infras- tructure, sometimes forming dead ends that created a social space that will later be repeated in the Hispanic corral.* The history of the city is also the history of collective housing. ...In the 21st century, these archetypes are evolving to respond to both the established urban conditions of the historic city and to the requirement for increasing urban density. The climate crisis also demands that we re-think the modernist housing paradigm that responded to growing urban populations with large scale social housing projects on green field sites. Those perceived utopias segregated new communities from their places of work and leisure resulting in sterile ‘dormitory’ neighbourhoods. In this Workshop we will prove the sustainable city is a diverse city - socially, economically, architecturally and ecologically. We will re-conceive urban housing a place of production, creativity and work, a necessary and resur- gent cultural condition... In the historic/contemporary European city, as ex- emplified by Madrid, housing must be designed to serve as a platform for sustainable collective life, to enables creative communities to flourish. LA CORRALA FUTURA LA CORRALA FUTURA
  • 24.
    It is ourmission to design spaces that meet the needs of the users, work- ing diligently and creatively in order to produce not only houses, but homes for living, spaces to inspire and to enjoy. We aim to create collective housing that captures the soul of traditional corralas– lively corridors, communal spaces, and a sense of belonging to the 21st century. As we enter this new post-pandemic era, we aim to create a hybrid envi- ronment for artists to live, work, and play. We aim to provide these artists with the necessary space and atmosphere to create and freely explore new mediums. Our goal is to respect the current operation within the plot, and to en- hance these programs and activities through architectural planning. We design with intention, to understand the constraints each site has, and its geographic, historical, as well as cultural background while re- specting the neighboring properties. THE CONTEMPORARY CORRALA LA CORRALA FUTURA LA CORRALA FUTURA
  • 25.
  • 26.
    LA CORRALA FUTURALA CORRALA FUTURA
  • 27.
  • 28.
  • 29.
    View from theentrance View from the street LA CORRALA FUTURA LA CORRALA FUTURA
  • 30.
    Workshop leader Dietmar Eberle Guests AlbertoNicolau Students Anastasia Lizardou Plaza Espana 19th C. Madrid Rio 20th C. La Latina 16th C. Syllabus This workshop had a unique syllabus. Every day each one of us had to approach a daily task in different plots which were located in different civic environments of Madrid’s city center. At the end of each day, we had to choose a project made by a colleague to use for our next task. Case study 3 different plots Location 3 different locations in the City center of Madrid 16th C. 19th C. 20th C. 19th. C 16th. C 20th. C
  • 31.
    La latina 20thC. Physical Model Axonometry of the Structure Plan with the atmoshere based to my volumetric from day 1 GSEducationalVersion Groundfloor plan Figure fround 16th C. 19th C. 20th C. 16th C. 19th C. 20th C.
  • 32.
    Typical floor plan ConcreteFoundations Composed Concrete - CLT Floor structure Post & Beam Conrete structure Concrete Cores Main roof structure Timber beams Roof finishing with tiles Concrete Foundations Composed Concrete - CLT Floor structure Post & Beam Conrete structure Concrete Cores Main roof structure Timber beams Roof finishing with tiles 16th C. 19th C. 20th C. 16th C. 19th C. 20th C.
  • 33.
    View from thecourtyard View from the backstreet 16th C. 19th C. 20th C. 16th C. 19th C. 20th C.
  • 34.
    ANASTA SIA LIZARDO U DAY 2 Typic al layou t Axon ome try Plaza Espana 19thC. Scale 1:100 Typical layout Structure Axonometry Based on Isabella’s volumetric from day 1 Typical floor plan Structure 3d model 16th C. 19th C. 20th C. 16th C. 19th C. 20th C.
  • 35.
    3.50 ANASTASIA LIZARDOU DAY 3 Sectiondetail Plan Ddtail Axonometry 3.50 Madrid Rio Based on Bettina’s volumetric from day 2 Section detail Axonometry of the facade Plan detail 16th C. 19th C. 20th C. 16th C. 19th C. 20th C.
  • 36.
    04 Low Cost& Emergency Housing 01 Climate Metabolism and Architecture 02 Construction & Technology 03 Sociology, Economy & Politics Cristiane Muniz & Fernando Viégas Javier García-Germán Ignacio Fernández-Solla Daniel Sorando S |Specialties
  • 37.
    Specialty leader Javier Garcίa-Germάn Guests SilviaBenedito Daniel Ibañez Renaud Haerlinger Jaume Mayol Sascha Roesler Students Anastasia Lizardou Flavia Fernades Ishan Goyal Joaquin Ipince Karol DIaz 01 Climate Metabolism and Architecture Syllabus The module CLIMATIC TYPOLOGIES. BODY, CLIMATE, AR- CHITECTURE explores the design opportunities which the field of thermodynamics and ecology are opening to architecture, and specifically to the field of collective housing. The module focuses on climatic questions and on the metabolic dimension of architecture, with the objec- tive of finding design strategies which bridge the void between quantitative and qualitative approaches. As a result special attention will be given to questions which in rare occasions are addressed in mainstream sustainability courses. The workshop will immerse in the quotidian implications of sustainability, connecting everyday life to architecture, which introduces to the specialty the ethnological dimension of architecture. This question opens the experiential realm, introdu- cing the human body in its physiological and psycho- logical dimensions to architecture. Under this perspective, the history of architecture — which offers a rich variety of climatic and metabolic re- ferences— will be a powerful design tool. The module is formed by a seminar and a workshop. The idea of integrating seminar and workshop is to introdu- ce a series theoretical concepts and, simultaneously, to learn how to nest them in the design process, thus reinforcing the practical-theoretical approach of this module. This approach, which mediates between the technical and cultural aspects of architecture, focu- ses on developing informed design strategies and on its implementation on real practice.
  • 38.
  • 39.
  • 40.
  • 41.
    Specialty leader Ignacio Fernández-Solla Guests DavidRutter Archie Campbell Diego García-Setién Students: Anastasia Lizardou Suzane Kteich Gaurav Chordia Tita Campino 03 Construction & Technology Syllabus The aim of this course is to analyse the building as a physi- cal system within the technical and integration systems in the design process. The theory is focused on the descrip- tion of the main solutions given by architects in their most relevant buildings and the analysis of the different techni- cal systems that make up the building. Highly experienced professionals in housing construction and design will transmit their experience and knowledge in these fields. Tasks • • Each team has to select a residential project from the Each team has to select a residential project from the 21st century list (case studies). 21st century list (case studies). • • Each team has to modify their project in location and Each team has to modify their project in location and technology terms. technology terms. • • Design progress will be discussed jointly during every Design progress will be discussed jointly during every session. session. • • Each case study will be assigned to two groups, in order Each case study will be assigned to two groups, in order to be to be relocated in two different places and two different relocated in two different places and two different technology contexts, as follows: technology contexts, as follows: - Continental, humid climate zone (D)*, in a highly in- - Continental, humid climate zone (D)*, in a highly in- dustrialized economy. dustrialized economy. - Tropical, wet climate zone (A)*, in a modestly industri- - Tropical, wet climate zone (A)*, in a modestly industri- alized economy. alized economy. • • Students to reconceptualize the building’s design strat- Students to reconceptualize the building’s design strat- egies in terms of envelope, structure and services. egies in terms of envelope, structure and services. • • Students to reconsider construction systems and mate- Students to reconsider construction systems and mate- rials, and search for an appropriate solution which al- rials, and search for an appropriate solution which al- lows to reindustrialize the building process, related to lows to reindustrialize the building process, related to the available resources in the new location. the available resources in the new location. Relocation site: Mcmurdo Station, US Antartic Base 1. Harsh, dry and cold weather conditions 2. Inhabitable place without support systems 3. Limitations of resources and heavy logistical dependence on their transportation 4. Fear of contamination and disruption of fragile geographical conditions Case study Frøsilo, MVRDV, 2005 Existing Location Islands Brygge, Copenhagen Climate Baltic, that is to say, relatively continental, with cold winters and mild to pleasantly warm summers.
  • 42.
    Typical floor plan LongitudinalSection Design strategies Building program
  • 44.
  • 45.
    Exploded facade Exploded facadedetail 1. Stainless steel (1.5mm ) 2. Foam with closed cells (3mm) 3. EPDM Silicone Sealant (3mm) 4. Lamellate wood (80mm) 5. Low-Density polystyrene charged with graphite (400mm) 6. Lamellate wood (60mm) 7. Kraft paper 8. Aluminum vapour barrier 9. Woolen felt 10. Joint seal 11. Two layers laminated glass window 12. Main steel structure 13. Steel beams and columns 14. CLT floors and roofs 15. Insulation layer 16. Stainless steel Bending
  • 46.
    Map of pieces.Ground floor Map of pieces. Typical floor Catalogue of pieces
  • 47.
  • 48.
    Specialty leaders Cristiane Muniz& Fernado Viegas Guests Andreas Schiffer Elena GIRAL from the European Commission Juana Canet María Aranguren Students Anastasia Lizardou Christian Haro Juanita Gomez Karol Diaz Jorge Sandez 06 Low Cost & Emergency Housing Syllabus The city of São Paulo grew dramatically during the 20th cen- The city of São Paulo grew dramatically during the 20th cen- tury. However, the transformation of the small village into the tury. However, the transformation of the small village into the largest South American metropolis in less than 100 years con- largest South American metropolis in less than 100 years con- tributed to blurring the relationship of its residents with the tributed to blurring the relationship of its residents with the surrounding geography and to increases, year per year, the surrounding geography and to increases, year per year, the population living in vulnerable conditions. During the pan- population living in vulnerable conditions. During the pan- demic, we had a 35% increase in people going to be home- demic, we had a 35% increase in people going to be home- less. The metropolitan region of São Paulo is the area with the less. The metropolitan region of São Paulo is the area with the highest number of people living in favelas in Brazil, according highest number of people living in favelas in Brazil, according to data from the 2010 census released by the IBGE. Accord- to data from the 2010 census released by the IBGE. Accord- ing to the study that maps the “subnormal agglomerations” ing to the study that maps the “subnormal agglomerations” - irregular settlements known as favelas, invasions, lowlands, - irregular settlements known as favelas, invasions, lowlands, communities, villas, resacas, mocambo, and salt houses, communities, villas, resacas, mocambo, and salt houses, among others - in the city of São Paulo there are more than 2 among others - in the city of São Paulo there are more than 2 million people living in these conditions. million people living in these conditions. This Master proposes a speculation about the relationship be- This Master proposes a speculation about the relationship be- tween the urban structure of the city, which sits on a site that tween the urban structure of the city, which sits on a site that once featured watercourses and small hills; and the contrast once featured watercourses and small hills; and the contrast with the housing historical situation, a kind of tragic project to with the housing historical situation, a kind of tragic project to pushes away poor immigrant people. We will direct our gaze pushes away poor immigrant people. We will direct our gaze towards the peripheral neighborhoods of this city, working to towards the peripheral neighborhoods of this city, working to better know this reality and to understand how we could add better know this reality and to understand how we could add our knowledge to these places. Infrastructural works in the our knowledge to these places. Infrastructural works in the 20th century have changed the course of the small rivers, 20th century have changed the course of the small rivers, and streams, narrowed their valleys creating paved areas, and streams, narrowed their valleys creating paved areas, turning their margins into heavy traffic corridors, pollutng their turning their margins into heavy traffic corridors, pollutng their waters, causing constant flooding, and killing the vegetation. waters, causing constant flooding, and killing the vegetation. People who had nowhere to live sought to settle in unoccu- People who had nowhere to live sought to settle in unoccu- pied areas, often distant from downtown, often along or over pied areas, often distant from downtown, often along or over small streams, increasing their risks and contributing to the small streams, increasing their risks and contributing to the pollution of these water channels. pollution of these water channels.
  • 49.
    Step 1: Organizethe space S prototype - Skylight Step 3: Design of Prototype Infrastructures for different scales & construction phases S prototype - Balcony Step 2: Study of the existing S prototype - Canopy
  • 50.
    M prototype -Roof L prototype - Roof Structure L prototype - Public equipment XL prototype - Collective housing structure S prototype - Water tank
  • 51.
    Section CC -Collective housing prototype Section BB - Small, Medium & Large prototypes Section AA - Small & Medium prototypes
  • 52.
    Small infrastructure detailMedium infrastructure detail Large infrastructure detail XLarge infrastructure detail
  • 53.
  • 54.