ARCHITECTURAL
WORKING
DRAWING
ARCHITECTURAL WORKING DRAWING
The architectural working drawings together with the specifications are the
most important parts of the documents constituting the contract. Information
on the designs, locations, and dimensions of the elements of a building is
found on the architectural working drawings while information on the quality of
materials and workmanship is found in the specifications. A good architectural
working drawing gives the contractor the exact information he needs. It should
be clear, simple, and orderly arranged, and accurately drawn so that scaled
measurements will match with dimensions.
The finished drawings made by the architect, or draftsman
and used by the contractor are called architectural
working drawings. The architectural working drawings,
together with the specifications and the general conditions,
form the legal contract between the owner and the
contractor. Since the working drawings are a major portion
of the contract documents, they should be very carefully
drawn.
ARCHITECTURAL WORKING DRAWING
Students will be able to interpret, identify tools
and materials used in working drawings and fully
understand the standard procedure in layouting
and detailing architectural working plans and
drawings.
ARCHITECTURAL WORKING DRAWING
ELEMENTS OF ARCHITECTURAL WORKING DRAWING
1. Architectural sheets
a. Sheet # 1 - Title page and index (Exterior perspective, site
development plan or plot plan, and vicinity map or location
plan is often included in the plan).
PERSPECTIVE SITE DEVELOPMENT PLAN LOCATION PLAN
b. Sheet # 2 - Floor plan, of a 2 Storey House. It includes the Ground
Floor Plan and Second Floor Plan) with complete Elevation.
FLOOR PLAN ELEVATION
ELEMENTS OF ARCHITECTURAL WORKING DRAWING
1. Architectural sheets
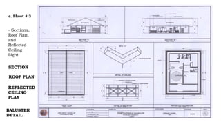
c. Sheet # 3 - Sections, Roof Plan, and Reflected Ceiling Light
SECTION ROOF PLAN REFLECTED CEILING PLAN BALUSTER DETAIL
d. Sheet # 4
DOORS and WINDOWS SCHEDULE KITCHEN DETAIL TOILET and BATH DETAIL
ELEMENTS OF ARCHITECTURAL WORKING DRAWING
2. Structural Sheet
a. Sheet # 5 - Foundation plan, Roof Framing Plan, Truss Detail, and
Column/Footing/Beam Schedules
b. Sheet # 6 - Detail of Footings, Construction Notes and General
Notes
3. Plumbing Plan/Layout
a. Sheet # 7 - Water and Sewage System Plan
b. Sheet # 8 - Storm Drainage System, and Septic Tank Detail
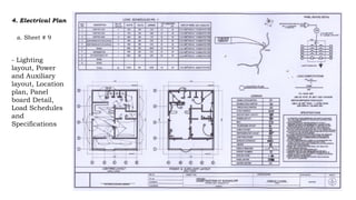
4. Electrical Plan
a. Sheet # 9 - Lighting layout, Power and Auxiliary layout, Location plan, Panel board
Detail, Load Schedules and Specifications
a. Sheet # 1
- Title page
and index
(Exterior
perspective,
site
development
plan or plot
plan, and
vicinity map
or location
plan is often
included in
the plan).
1.
Architectural
sheets
b. Sheet # 2 -
Floor plan, of
a 2 Storey
House. It
includes the
Ground
Floor Plan
and Second
Floor Plan)
with
complete
Elevation.
c. Sheet # 3
- Sections,
Roof Plan,
and
Reflected
Ceiling
Light
SECTION
ROOF PLAN
REFLECTED
CEILING
PLAN
BALUSTER
DETAIL
d. Sheet # 4
DOORS and
WINDOWS
SCHEDULE
KITCHEN
DETAIL
TOILET
and BATH
DETAIL
a. Sheet # 5
- Foundation
plan, Roof
Framing Plan,
Truss Detail,
and
Column/Footi
ng/Beam
Schedules
2. Structural
Sheet
b. Sheet # 6
3. Plumbing
Plan/Layout
a. Sheet # 7
- Water and
Sewage System
Plan
b. Sheet # 8
- Storm
Drainage
System, and
Septic Tank
Detail
4. Electrical Plan
a. Sheet # 9
- Lighting
layout, Power
and Auxiliary
layout, Location
plan, Panel
board Detail,
Load Schedules
and
Specifications
QUESTIONS:
1. Why is it important to know the complete
architectural working drawing?
It lays out the complete process of the structure
that is to be built. In every residential project, the
working drawings and design documentation are
significantly vital to understand the precision
planning and engineering of the entire structure.

aechitectural working drawing for tl.pptx

  • 1.
  • 2.
    ARCHITECTURAL WORKING DRAWING Thearchitectural working drawings together with the specifications are the most important parts of the documents constituting the contract. Information on the designs, locations, and dimensions of the elements of a building is found on the architectural working drawings while information on the quality of materials and workmanship is found in the specifications. A good architectural working drawing gives the contractor the exact information he needs. It should be clear, simple, and orderly arranged, and accurately drawn so that scaled measurements will match with dimensions.
  • 3.
    The finished drawingsmade by the architect, or draftsman and used by the contractor are called architectural working drawings. The architectural working drawings, together with the specifications and the general conditions, form the legal contract between the owner and the contractor. Since the working drawings are a major portion of the contract documents, they should be very carefully drawn. ARCHITECTURAL WORKING DRAWING
  • 4.
    Students will beable to interpret, identify tools and materials used in working drawings and fully understand the standard procedure in layouting and detailing architectural working plans and drawings. ARCHITECTURAL WORKING DRAWING
  • 5.
    ELEMENTS OF ARCHITECTURALWORKING DRAWING 1. Architectural sheets a. Sheet # 1 - Title page and index (Exterior perspective, site development plan or plot plan, and vicinity map or location plan is often included in the plan). PERSPECTIVE SITE DEVELOPMENT PLAN LOCATION PLAN b. Sheet # 2 - Floor plan, of a 2 Storey House. It includes the Ground Floor Plan and Second Floor Plan) with complete Elevation. FLOOR PLAN ELEVATION
  • 6.
    ELEMENTS OF ARCHITECTURALWORKING DRAWING 1. Architectural sheets c. Sheet # 3 - Sections, Roof Plan, and Reflected Ceiling Light SECTION ROOF PLAN REFLECTED CEILING PLAN BALUSTER DETAIL d. Sheet # 4 DOORS and WINDOWS SCHEDULE KITCHEN DETAIL TOILET and BATH DETAIL
  • 7.
    ELEMENTS OF ARCHITECTURALWORKING DRAWING 2. Structural Sheet a. Sheet # 5 - Foundation plan, Roof Framing Plan, Truss Detail, and Column/Footing/Beam Schedules b. Sheet # 6 - Detail of Footings, Construction Notes and General Notes 3. Plumbing Plan/Layout a. Sheet # 7 - Water and Sewage System Plan b. Sheet # 8 - Storm Drainage System, and Septic Tank Detail 4. Electrical Plan a. Sheet # 9 - Lighting layout, Power and Auxiliary layout, Location plan, Panel board Detail, Load Schedules and Specifications
  • 8.
    a. Sheet #1 - Title page and index (Exterior perspective, site development plan or plot plan, and vicinity map or location plan is often included in the plan). 1. Architectural sheets
  • 9.
    b. Sheet #2 - Floor plan, of a 2 Storey House. It includes the Ground Floor Plan and Second Floor Plan) with complete Elevation.
  • 10.
    c. Sheet #3 - Sections, Roof Plan, and Reflected Ceiling Light SECTION ROOF PLAN REFLECTED CEILING PLAN BALUSTER DETAIL
  • 11.
    d. Sheet #4 DOORS and WINDOWS SCHEDULE KITCHEN DETAIL TOILET and BATH DETAIL
  • 12.
    a. Sheet #5 - Foundation plan, Roof Framing Plan, Truss Detail, and Column/Footi ng/Beam Schedules 2. Structural Sheet
  • 13.
  • 14.
    3. Plumbing Plan/Layout a. Sheet# 7 - Water and Sewage System Plan
  • 15.
    b. Sheet #8 - Storm Drainage System, and Septic Tank Detail
  • 16.
    4. Electrical Plan a.Sheet # 9 - Lighting layout, Power and Auxiliary layout, Location plan, Panel board Detail, Load Schedules and Specifications
  • 17.
    QUESTIONS: 1. Why isit important to know the complete architectural working drawing? It lays out the complete process of the structure that is to be built. In every residential project, the working drawings and design documentation are significantly vital to understand the precision planning and engineering of the entire structure.