Architectural Job Phases
ARCH-1311 Introduction to Architecture
Phase 0: Conceptual (Pre-Design)
Conceptual Design services vary depending on the complexity of a project and the
experience of the owner. Most owners need the architect’s experience and research
capabilities to determine the project’s requirements.
PROGRAMMING
Programming consists of establishing and documenting requirements for your project
including: design objectives, desired rooms or spaces, room sizes, relationships between
spaces and relationships to the site.
BUDGET ANALYSIS
The budget should estimate both hard and soft costs. Hard costs are construction related—
material, labor, and the contractor’s overhead and profit. Soft costs are non-construction
related—consultants, city and bank fees, and insurance. It is also important to assess if the
budget is adequate to complete the project.
Phase 1: Schematic Design (SD)
Schematic Design is the first phase. In this step, an architect talks with
the client to determine the project requirements and goals. The
architect usually starts with rough study sketches that illustrate the
basic concepts of the design. This most often includes spatial
relationships as well as basic scale and forms the owner might
desire. Also, initial research of jurisdictional regulations is completed
at this time. Initial cost estimations are also investigated based on total
project size and complicity.
Schematic Design often produces rough drawings of a site plan, floor
plans, some elevations, and often illustrative sketches.
Phase 2: Design Development (DD)
Design Development collects the results from the Schematic Design
phase and takes them one step further. This phase involves finalizing
the design and specifying such items as materials, window and door
locations and general structural details.
Design Development usually yields a more detailed site plan as well as
floor plans, elevations and section drawings with full dimensions.
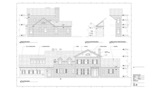
Phase 3: Construction Documents (CD)
Once the architect and client are comfortable with the drawings produced
from the Design Development phase, they can move on to the Construction
Documents. The Construction Document phase produces drawings with
much more detail which are used for the construction of your project. These
drawings typically include specifications for construction details and
materials. Once the CDs are completed, the architects send them to
contractors for pricing or bidding as well as to the building department for
required permit approvals.
Construction Documents often include a complete set of architectural
drawings (site plan, floor plans, sections, details, etc.) that are combined
with drawings from consultants (such as structural, landscape, and electrical
drawings) that have enough detail for the contractor to build your project.
Phase 4: Construction Administration (CA)
In larger projects there can be a bid or negotiation phase as well as a
Construction Administration phase service. These typically aren’t
utilized in smaller home projects, but they are an important part of
larger residential, commercial or industrial projects.
Once you have selected a contractor and construction is under way, we
move into the fifth phase of the architectural design process –
construction administration. During this phase, we will administer the
construction process to assure conformance with design intent, visit
the site during construction, and address any field conditions as they
arise.

03 Architectural Job Phases

  • 1.
    Architectural Job Phases ARCH-1311Introduction to Architecture
  • 2.
    Phase 0: Conceptual(Pre-Design) Conceptual Design services vary depending on the complexity of a project and the experience of the owner. Most owners need the architect’s experience and research capabilities to determine the project’s requirements. PROGRAMMING Programming consists of establishing and documenting requirements for your project including: design objectives, desired rooms or spaces, room sizes, relationships between spaces and relationships to the site. BUDGET ANALYSIS The budget should estimate both hard and soft costs. Hard costs are construction related— material, labor, and the contractor’s overhead and profit. Soft costs are non-construction related—consultants, city and bank fees, and insurance. It is also important to assess if the budget is adequate to complete the project.
  • 5.
    Phase 1: SchematicDesign (SD) Schematic Design is the first phase. In this step, an architect talks with the client to determine the project requirements and goals. The architect usually starts with rough study sketches that illustrate the basic concepts of the design. This most often includes spatial relationships as well as basic scale and forms the owner might desire. Also, initial research of jurisdictional regulations is completed at this time. Initial cost estimations are also investigated based on total project size and complicity. Schematic Design often produces rough drawings of a site plan, floor plans, some elevations, and often illustrative sketches.
  • 9.
    Phase 2: DesignDevelopment (DD) Design Development collects the results from the Schematic Design phase and takes them one step further. This phase involves finalizing the design and specifying such items as materials, window and door locations and general structural details. Design Development usually yields a more detailed site plan as well as floor plans, elevations and section drawings with full dimensions.
  • 12.
    Phase 3: ConstructionDocuments (CD) Once the architect and client are comfortable with the drawings produced from the Design Development phase, they can move on to the Construction Documents. The Construction Document phase produces drawings with much more detail which are used for the construction of your project. These drawings typically include specifications for construction details and materials. Once the CDs are completed, the architects send them to contractors for pricing or bidding as well as to the building department for required permit approvals. Construction Documents often include a complete set of architectural drawings (site plan, floor plans, sections, details, etc.) that are combined with drawings from consultants (such as structural, landscape, and electrical drawings) that have enough detail for the contractor to build your project.
  • 15.
    Phase 4: ConstructionAdministration (CA) In larger projects there can be a bid or negotiation phase as well as a Construction Administration phase service. These typically aren’t utilized in smaller home projects, but they are an important part of larger residential, commercial or industrial projects. Once you have selected a contractor and construction is under way, we move into the fifth phase of the architectural design process – construction administration. During this phase, we will administer the construction process to assure conformance with design intent, visit the site during construction, and address any field conditions as they arise.