Anthony A. Hauck
Director of Product Strategy | AEC Generative Design
The Future of Making Buildings
Forms Follow Formulae
Anthony Hauck | Director of Product Strategy
• 30 years in the AEC industry
• Architecture, then…
• … millwork subcontracting…
• … and back to Architecture, then…
• … AE firm lead developer + IT Director for 12 years, and now…
• … Autodesk for almost 9 years
• Joined Autodesk as Revit Platform PM
• Led the expansion of the Revit API for 2 years
• Led the Revit Product Management for 6 years thereafter
• Joined AEC Generative Design in 2015
• 90% Increase in efficiency
• Fewer parts, greater reliability
• Reduced fabrication time
• Improved quality of signal
2010 | 63 Teraflops = 300 Instance Cluster On Amazon EC2
2016 | 354 Teraflops = 1000 Instance Cluster On Amazon EC2
Columbia Supercomputer
2015
Yazdani Studio
Cannon Design
Services
Procedural
Optimization
Clients
Proposal
Generation
Core
Program
Core
Proposal
Optimization
Structural
Compliance
Circulation
Proposals
Shell
Shell
Sustainability
Budget
SPACE PLAN GENERATOR : INPUTS
.SAT
.CSV
Cell Types
Pad
Cells
Edge
Cells
Core
Cells
Corner
Cells
Corner Cells Edge Cells
Pad Cells
Core Cells
Down
Left
Up
Right
2 neighbors 3 neighbors 4 neighbors
With threshold
distance
4 neighbors
Cell Neighborhood Matrix
[01] : { 15, 2, 5 }
[02] : { 4, 6, 7, 8}
[03] : { 12, 14 }
Cell Availability
[01] : true
[02] : false
[03] : true
Cell Weightage
[01] : 5
[02] : 2
[03] : 1
Cell Id
Weights for:
• Acoustics
• Daylighting
• External View
• Direction
Cell traversal based on sequence
• Go Right, Then
• Go Up,
• Go Left, and
• Go Down
Container
Space
Root Node : Site
Outline
Container
Space
Container
A.
B.
C.
1. Shared Edges Between Nearest Departments
2. Shared Edges Between Neighbor
Programs inside Departments
3. Combines the two circulation network after
going through redundancy check
K-D Tree Data Structure
Form
Follows
Function
Function
Follows
Form
AEC Generative Design | Services
Clients Services
Computation
Simulation
Generation
Context
Data
Clients Services
Clients Services
Computation
Simulation
Generation
Context
Data
Engineering Apps
Construction Apps
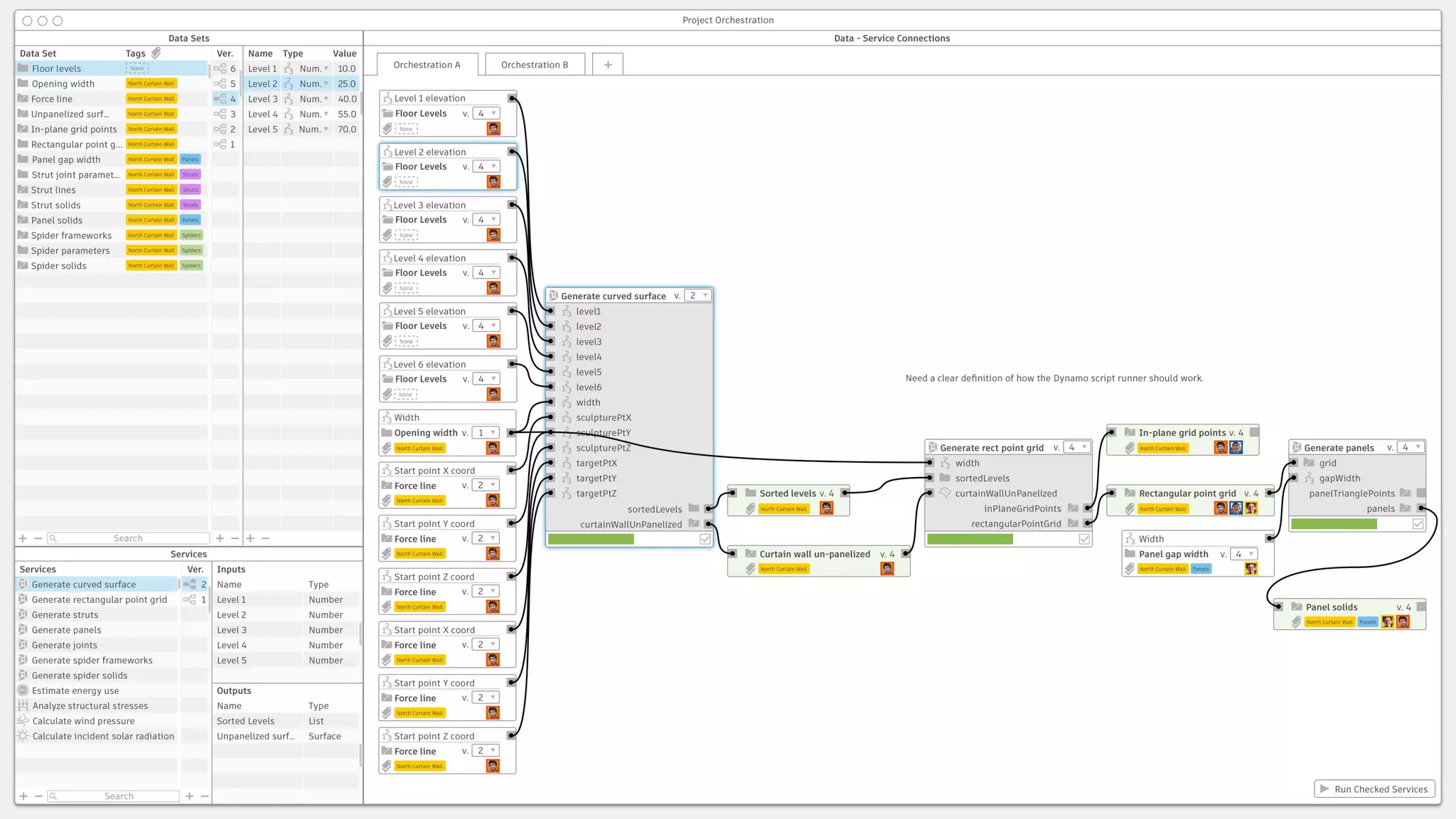
Struts
slabEdgeOffset
interiorChordOffset
exteriorChordOffset
inPlaneGridPoints
cwPoints
cwPts
slabPts
allTheStrutLines
strutSolids
Curved surface
level1
level2
level3
level4
level5
level6
width
sculpturePtX
sculpturePtY
sculpturePtZ
targetPtX
targetPtY
targetPtZ
sortedLevels
curtainWallUnPanelized
Curtain wall
un-panelized
Floor levels
Level 1 elevation
Level 2 elevation
Level 3 elevation
Level 4 elevation
Level 5 elevation
Level 6 elevation
Opening
Width
Force line
Sculpture point x
Sculpture point y
Sculpture point z
Target point x
Target point y
Target point z
Rectangular point grid
width
sortedLevels
curtainWallUnPanelized
inPlaneGridPoints
rectangularPointGrid
Sorted levels Rectangular
point grid
In-plane grid
points
Panel
Gap width
Panels
grid
gapWidth
panelTrianglePoints
panels
Panel triangle
points
Panels
Space frame
Slab edge offset
Interior chord
Exterior chord
Frame grid
points
Slab side points
Strut lines
Strut solids
Joints
legLength
legRadius
ballRadius
glassSidePts
slabSidePts
strutLines
legs
ballJoints
Legs
ballJoints
Joint
Leg length
Leg radius
Ball radius
Architecture Apps
Project Fractal | Next
470,400 sq ft
156,800 sq ft
Office
Residential
Customizers
Window to Wall Ratio
Window to Wall Ratio
Window to Wall Ratio
getResultGeometry(index)
getWindowToWallRatio()
setWindowToWallRatio(float)
getNumberOfFloors()
setNumberOfFloors(int)
getNumberOfBays()
setNumberOfBays(int)
Clients Services
background+progressvideos
http://thebuildinglab.info
@AutodeskForge
#ForgeDevCon
© 2013 Autodesk, Inc. All rights reserved.

Forge - DevCon 2016: The Future of Making Buildings Forms Follow Formulae

Editor's Notes

  • #5 From the 1960s, this design, a quadrifilar helix anetnna, was used on orbital missions to space. This model was optimized using traditional methods by engineers over several decades to produce an elegant solution that maximized performance.
  • #6 In 2003 a groundbreaking development changed the design of the NASA antennna forever. Engineers developed a computational experiment that created and searched through tens of thousands of possible antenna designs, simulating their performance and progressively evolving higher performing solutions. Interesting case study because it looks like a kindergarten project but it is unassuming in its strength. The final antenna performed more than 90% more efficiently over the traditional antenna. The antenna eliminated the need for a phasing circuit. NOT DESIGNED BY HAND -THE OPTIMAL DESIGN IS NOT A DESIGN THAT THE ENGINEERS AT NASA WOULD HAVE PURSUED using traditional methods. What I think is amazing about this project is that it is one of MOST SUCCESSFUL examples of artificial intelligence in design, exposing patterns and dependencies that surpassed decades of traditional antennae engineering.
  • #7 The NASA St-5 Experiment was performed on the worlds second fastest computer at the time, today processing power many times more powerful is available to anyone with a Amazon EC2 account. Dreamcatcher leverages a Cloud Computing Infrastructure developed within Autodesk to provide a system that optimizes the speed of the search process to create and find high performing designs. These operations are performed concurrently, or in parallel and exchange data throughout the generative design process. What impact does this have for designers?
  • #8 One place where Autodesk is helping a real project with optimization techniques is airplane manufacture. The Living, a design firm purchased by Autodesk about 2 years ago, has been working with Airbus to produce a new type of airplane bulkhead with required strength at half the weight of a standard bulkhead – saving on fuel, which saves on operating costs, or increases load limits on the target aircraft.
  • #9 One place where Autodesk is helping a real project with optimization techniques is airplane manufacture. The Living, a design firm purchased by Autodesk about 2 years ago, has been working with Airbus to produce a new type of airplane bulkhead with required strength at half the weight of a standard bulkhead – saving on fuel, which saves on operating costs, or increases load limits on the target aircraft.
  • #16 …and more recently from Cannon Design, using scripting to drive a building shell to minimize solar incidence and another to enhance residential occupant views.
  • #17 Sophisticated customers have already begun publicly prototyping new optioneering workflows. This example from the HKS LINE research studio shows recursive façade optimization for controlling daylighting and solar incidence.
  • #19 Class advertised “no experience necessary”, but our attendees covered experience from zero to active use on live projects
  • #20 Class advertised “no experience necessary”, but our attendees covered experience from zero to active use on live projects
  • #21 Class advertised “no experience necessary”, but our attendees covered experience from zero to active use on live projects
  • #22 Class advertised “no experience necessary”, but our attendees covered experience from zero to active use on live projects
  • #23 Autodesk Totonto is moving to a new facility in the MaRS innovation district, with The Living using a generative approach to the new office’s space layout.
  • #24 A number of factors had to be considered to arrive at the design goals (see appended slides for the math if you wan them)
  • #25 … an existing floor in the MaRS building
  • #26 Some early design results from the P+W project.
  • #27 We have many customers and other constituents already interested and making progress in similar endeavors. Most of them have already expressed interest in working with Autodesk.
  • #28 We have many customers and other constituents already interested and making progress in similar endeavors. Most of them have already expressed interest in working with Autodesk.
  • #29 Various requirements were applied to the space, such as team proximity and amenity distribution, such as kitchens and conference rooms. A circulation form was imposed on the other requirements.
  • #30 …generating many possibilities.
  • #31 Scoring against those possibilities led to evaluations of satisfaction against the eight identified metrics.
  • #32 We’ll extend this work into an environment that will support the procedural generation and exploration of multiple design options optimized for design and owner goals.
  • #35 One customer is using Dynamo to visualize the intersection of core, shell and program.
  • #36 First, through this charter. If we can fulfill this mission, we can… Preserve our position in AEC as the market and thought leader Avoid a major disruption and competitive threat if someone else beats us with something interesting OnShape Lagoa Flux Technology is available to everyone… Data centers available to anyone on Amazon, Azure etc… Lot's of open source components to build on Low cost barrier to entry …but access to the customer base and in-house expertise isn’t. We can leverage our market position and 50 years of academic development into new solutions, targeted at first and progressively more comprehensive.                                   
  • #38 Using a truss-configuration Dynamo graph, the team created this video showing both direct interaction with condition sliders and the automated production of every possibility the Dynamo graph can generate. In the future, such a display would include structural fitness evaluation.
  • #40 Subsequently, the team created this video showing generating, filtering, and sorting of designs generated by an arbitrary Dynamo graph.
  • #41 Project Fractal has begun to construct a client + services architecture that we’ll use to access contextual information and record goals, provide multiple generation services competing in the Saturn optimization environment for consideration by a design team. We’ll record the logic of proposal generation in Dynamo scripts for use and extension by customers and partners. Ultimately, we can broker a marketplace for the exchange of expertise as expressed in visual programming and contextual data.
  • #42 Additionally, the Project Fractal team has been working with Perkins + Will and Georgia Tech on a hospital planning research project using a real commission to explore new planning possibilities. The Perkins + Will team consists of Tyson Curcio, COO, John Haymaker, Director or Research, Richard Herring, Director of Hospital Planning, and Diana Davis, Senior Hospital Planner. Subhajit Das, our Georgia Tech co-op, is working with the P+W team in Atlanta also in conjunction with Chuck Eastman of Georgia Tech.
  • #43 Input data : csv and .sat
  • #46 Space Data Structure based on k-D Data Structure, Slice & Dice Technique, which stores each of the entities on separate nodes on the tree Mostly used to search nearest neighbor in large databases, also has application in ray tracing Finds common edges between neighbor depts. They are potential circulation routes Same for programs Redundancy check on circulations with the aid of cell grid to optimize routes
  • #47 Supplying the first graph to Project Fractal, we can see generated options on the left, coupled with the capability to edit individual options using Dynamo graph inputs exposed as sliders. The Customizer interface in FormIt Prop provides a similar capability to edit geometry using sliders to trigger changes in a Dynamo graph evaluated the cloud.
  • #49 The team has begun to engage with design firms both to gather design expertise and test Fractal’s interaction models.
  • #53 
  • #54 The team has begun to engage with design firms both to gather design expertise and test Fractal’s interaction models.
  • #55 A bunch of options generated based on the primary inputs Select option(s), an Insight run is kicked off
  • #56  Glazing options reflect range of WWRs in Insight widget.
  • #57 Modelled WWR reflected in Insight widget.
  • #59 If you’d like to learn more, please visit the The Building Lab blog, where we’re posting regularly about the project.
  • #60 If you’d like to learn more, please visit the The Building Lab blog, where we’re posting regularly about the project.
  • #62 The team has begun to engage with design firms both to gather design expertise and test Fractal’s interaction models.
  • #64 If you’d like to learn more, please visit the The Building Lab blog, where we’re posting regularly about the project.
  • #65 The team has begun to engage with design firms both to gather design expertise and test Fractal’s interaction models.