OFFICE
DATA COLLECTION
r
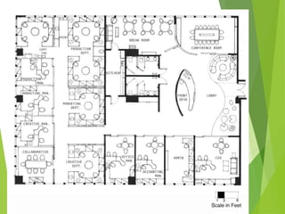
Relationships between
workgroups and their relative size
Relationship between spaces in offic
The Office space type refers to a variety of spaces including: meeting
spaces integrated into the office environment, reception, office support
spaces such as work rooms, storage rooms, file rooms, mail rooms, copier
areas, service units/coffee bar, and coat storage integrated into the office
environment, and telephone and communications equipment rooms
located in tenant suites containing tenant equipment.
Workspaces Meeting spaces Support spaces
Open space
 Specific, task-oriented work,
focusing on data input into
electronic media. Typical
assignment for clerical and data-
entry staff.
 An open workspace for more than
ten people, suitable for activities
which demand frequent
communication or routine
activities which need relatively
little concentration.
 4.5sq.m
Cubicle
A semi-enclosed workspace for one
person, suitable for activities which
demand medium concentration and
medium interaction.
Private office
An enclosed workspace for one person,
suitable for activities which are
confidential, demand a lot of concentration
or include many small meetings with area
of 9 to 22 sq.m
Team room
An enclosed workspace for four to ten
people; suitable for teamwork which may
be confidential and demands frequent
internal communication.
Team space
A semi-enclosed workspace for two to
six people; suitable for teamwork
which demands frequent internal
communication and a medium level of
concentration
Conference and meeting
rooms
Conference room occupancy is calculated
at 15 square feet per person.
Meeting room
Support
spaces
Mail area
Game room break area
Pantry area circulation space library area storage area
Print area locker area smoking area
Cellular Office
Sequential arrangement of one- and multi-person offices along the facade is
characteristic of this type. Accessed via a shared hallway.
Autonomous, focused work
Confidential meetings
Status
Individual office
Privacy
Individuality
Multi person office
Communication with other employees
Facts & Figures
Net square footage: 625,8 m²
Fixed workstations: 29
Workplaces (incl. touchdown): 59m²
Combination Office
Combination of standardized one- and multi-person offices for focused work,
with significantly reduced floor space. Communication occurs in the interior
multi-functional shared area (central area). Hallway walls are transparent in
order to provide the central area with natural light. The central zone also
serves as the central meeting point for exchange, interaction and support
areas.
Transparency: Visual contact possible thanks to central break-out area
Facts & Figures
Net square footage: 625,8 m²
Fixed workstations: 32m²
Fixed workstation: 19,6
Workplaces (incl. touchdown): 84m²
Workplaces (incl. touchdown): 7,5
Team Office
Different office types within one office building or floor. The focus is on the
variability and flexibility of office layouts. Designed to be partially open and
transparent, or modified at short notice for a company’s special requirements.
Mix of office types
Team building and organisation
Project work
Facts & Figures
Net square footage: 625,8 m²
Fixed workstations: 43m²
Fixed workstation: 14,6
Workplaces (incl. touchdown): 91m²
Workplaces (incl. touchdown): 6,9
Open Office
Brings together the advantages of several office forms in open-plan application
scenarios. Communication and the quality of interaction become the focus
without mitigating privacy and the opportunity to concentrate. Employees
choose the zones and areas that are best suited to their activities. Space
efficiency is achieved with compacted, non-territorial workplace areas.
Efficient use of space
Mix of open-plan, group and combination offices
Openness and exchange of knowledge
Facts & Figures
Net square footage: 625,8 m²
Fixed workstations: 47m²
Workplaces (incl. touchdown): 103m²
The Office Floor space Standard
• The office accommodation
workplace density benchmark target
for agencies is 12m² per person
maximum.
• A workplace density target of 10m2
per person maximum for call centres
is considered achievable.
Balanced supply and extract
mechanical system
Spatial organisation
• In order to create flexibility, promote air quality, increase natural light penetration
and reduce costs, attempt to limit the number of enclosed workstations to 45% of
the total workstations on a floor.
• Enclosed offices should be positioned on the building core and provided with glazing
to receive natural light. Screens should be 1.65m (65") or lower in height.
• Allocate approximately 25% of the space as circulation space.
• To create flexibility, apply a modular approach to planning; i.e., plan spaces which
are compatible with building grids. Most existing facilities are built on a 5' x 5' grid
 Basic Requirements for Means of Egress
 1. For any room or space with only one exit, the maximum occupant load should
not exceed 50 people.
 2. For any room or space with only two exits, the maximum occupant load should
not exceed 500 people.
 3. For any room or space with only three exits, the maximum occupant load
should not exceed 1000 people.
 4. For rooms with fixed seating (such as auditoriums), the occupant load should
not exceed the number of fixed seats, plus the number of designated wheelchair
spaces, if provided. The occupant load for the stage or platform would be
calculated separately from the seating area.
 5. For rooms with more than 50 occupants, doors must swing in the direction of
egress (i.e. the doors must swing out of the room).
 6. For rooms with more than 100 occupants, doors should be equipped with panic
hardware (crash bars).
 7. If the room has two doors, but they are very close to each other, it only counts
as one door, and the maximum occupant load would still be limited to 50 or
fewer. In buildings without automatic sprinkler protection, the doors must be
separated by at least ½ the diagonal dimension of the room.
LOBBY
Rooms without furniture (such as a
relatively empty room used for a stand-up
reception) would be calculated at 7
square feet per person.
Reception desk
ATRIUM
An envisioned campus where unplanned collaborations could take place,
that envisons to create a central hub for the campus.
The atrium houses a reception, employee mailboxes, cafe, foosball, fitness
center, two 40-seat(max) viewing rooms, and a large theater
Atria are often designed as grand spaces
that bring attention to lighting,
temperature, and air flow
Create a vertical "chimney" effect with
low intakes and high outlets to
facilitate natural ventilation.
Circular executive desk
Modern furniture

office design

  • 1.
  • 3.
    r Relationships between workgroups andtheir relative size Relationship between spaces in offic
  • 6.
    The Office spacetype refers to a variety of spaces including: meeting spaces integrated into the office environment, reception, office support spaces such as work rooms, storage rooms, file rooms, mail rooms, copier areas, service units/coffee bar, and coat storage integrated into the office environment, and telephone and communications equipment rooms located in tenant suites containing tenant equipment. Workspaces Meeting spaces Support spaces
  • 7.
    Open space  Specific,task-oriented work, focusing on data input into electronic media. Typical assignment for clerical and data- entry staff.  An open workspace for more than ten people, suitable for activities which demand frequent communication or routine activities which need relatively little concentration.  4.5sq.m
  • 8.
    Cubicle A semi-enclosed workspacefor one person, suitable for activities which demand medium concentration and medium interaction.
  • 10.
    Private office An enclosedworkspace for one person, suitable for activities which are confidential, demand a lot of concentration or include many small meetings with area of 9 to 22 sq.m
  • 11.
    Team room An enclosedworkspace for four to ten people; suitable for teamwork which may be confidential and demands frequent internal communication. Team space A semi-enclosed workspace for two to six people; suitable for teamwork which demands frequent internal communication and a medium level of concentration
  • 12.
    Conference and meeting rooms Conferenceroom occupancy is calculated at 15 square feet per person.
  • 13.
  • 14.
    Support spaces Mail area Game roombreak area Pantry area circulation space library area storage area Print area locker area smoking area
  • 15.
    Cellular Office Sequential arrangementof one- and multi-person offices along the facade is characteristic of this type. Accessed via a shared hallway. Autonomous, focused work Confidential meetings Status Individual office Privacy Individuality Multi person office Communication with other employees Facts & Figures Net square footage: 625,8 m² Fixed workstations: 29 Workplaces (incl. touchdown): 59m²
  • 16.
    Combination Office Combination ofstandardized one- and multi-person offices for focused work, with significantly reduced floor space. Communication occurs in the interior multi-functional shared area (central area). Hallway walls are transparent in order to provide the central area with natural light. The central zone also serves as the central meeting point for exchange, interaction and support areas. Transparency: Visual contact possible thanks to central break-out area Facts & Figures Net square footage: 625,8 m² Fixed workstations: 32m² Fixed workstation: 19,6 Workplaces (incl. touchdown): 84m² Workplaces (incl. touchdown): 7,5
  • 17.
    Team Office Different officetypes within one office building or floor. The focus is on the variability and flexibility of office layouts. Designed to be partially open and transparent, or modified at short notice for a company’s special requirements. Mix of office types Team building and organisation Project work Facts & Figures Net square footage: 625,8 m² Fixed workstations: 43m² Fixed workstation: 14,6 Workplaces (incl. touchdown): 91m² Workplaces (incl. touchdown): 6,9
  • 18.
    Open Office Brings togetherthe advantages of several office forms in open-plan application scenarios. Communication and the quality of interaction become the focus without mitigating privacy and the opportunity to concentrate. Employees choose the zones and areas that are best suited to their activities. Space efficiency is achieved with compacted, non-territorial workplace areas. Efficient use of space Mix of open-plan, group and combination offices Openness and exchange of knowledge Facts & Figures Net square footage: 625,8 m² Fixed workstations: 47m² Workplaces (incl. touchdown): 103m²
  • 20.
    The Office Floorspace Standard • The office accommodation workplace density benchmark target for agencies is 12m² per person maximum. • A workplace density target of 10m2 per person maximum for call centres is considered achievable.
  • 21.
    Balanced supply andextract mechanical system
  • 22.
    Spatial organisation • Inorder to create flexibility, promote air quality, increase natural light penetration and reduce costs, attempt to limit the number of enclosed workstations to 45% of the total workstations on a floor. • Enclosed offices should be positioned on the building core and provided with glazing to receive natural light. Screens should be 1.65m (65") or lower in height. • Allocate approximately 25% of the space as circulation space. • To create flexibility, apply a modular approach to planning; i.e., plan spaces which are compatible with building grids. Most existing facilities are built on a 5' x 5' grid
  • 23.
     Basic Requirementsfor Means of Egress  1. For any room or space with only one exit, the maximum occupant load should not exceed 50 people.  2. For any room or space with only two exits, the maximum occupant load should not exceed 500 people.  3. For any room or space with only three exits, the maximum occupant load should not exceed 1000 people.  4. For rooms with fixed seating (such as auditoriums), the occupant load should not exceed the number of fixed seats, plus the number of designated wheelchair spaces, if provided. The occupant load for the stage or platform would be calculated separately from the seating area.  5. For rooms with more than 50 occupants, doors must swing in the direction of egress (i.e. the doors must swing out of the room).  6. For rooms with more than 100 occupants, doors should be equipped with panic hardware (crash bars).  7. If the room has two doors, but they are very close to each other, it only counts as one door, and the maximum occupant load would still be limited to 50 or fewer. In buildings without automatic sprinkler protection, the doors must be separated by at least ½ the diagonal dimension of the room.
  • 24.
    LOBBY Rooms without furniture(such as a relatively empty room used for a stand-up reception) would be calculated at 7 square feet per person. Reception desk
  • 25.
    ATRIUM An envisioned campuswhere unplanned collaborations could take place, that envisons to create a central hub for the campus. The atrium houses a reception, employee mailboxes, cafe, foosball, fitness center, two 40-seat(max) viewing rooms, and a large theater
  • 26.
    Atria are oftendesigned as grand spaces that bring attention to lighting, temperature, and air flow Create a vertical "chimney" effect with low intakes and high outlets to facilitate natural ventilation.
  • 28.
  • 33.