Existing garage to
be converted to
bedroom.
garage floor to be
raised to existing
bedroom ffl
BEDROOM 1 BEDROOM 2 BEDROOM 3
BATH KITCHEN DINING
rwp
EXISTING WALL
TO BE
DEMOLISHED
ROLL UP DOOR
NEW CARPARK
open to sky
EXISTING WINDOW TO BE
REMOVED AND REPLACED
WITH SLIDING DOOR
ROLLUPDOOR
NEW LOUNGE
1000
WALK-IN
DRESSING
DOUBLE GARAGE
existing walls to
be demolished
10 990 site boundary
11 700 site boundary
18 990 site boundary
16630siteboundary
VELDCASTLE ROAD
11 500 site boundary
6 330 site boundary
SITE PLAN scale 1 : 100
240090140
3010140 existing door to be
bricked up and
finished good
existing window to
be removed,
bricked up and
finished good EN-SUITE
sg sg sg
SOUTH ELEVATION
TRUENORTH
strong
sum
m
er winds
winter rain
&
winds
W1 W2 W3 W4
D 2
D 1
W5
W6
W7
W1 W2 W3 W4 W5
REVISION
DATE
D
25:10:11
SITE PLAN/ FLOOR PLAN/
ELEVATIONS
CROSSMOOR
project no
drawn
design
scale
date
MOBILE: 082 3227362
EMAIL: rajesh.asharam@gmail.com
TEL./FAX. 031-4093357
CHATSWORTH . DURBAN . 4092
375 CROSSMOOR DRIVE
ASHARAM
A R C H I T E C T U R E
r a j e s h
AS SHOWN
R.A
03212
N.H.DIP ARCH. S.A. - PR. NO.20559 (S.A.C.A.P)
drawing no 1/1
drawing title
project title
authorauthor/architect
ON
ERF 1554 CASTLEHILL
AT
66 VELDCASTLE ROAD - NEWLANDS
FOR
BSE & NC MLANGENI
PROPOSED GARAGE, BOUNDARY
WALLS , ADDITIONS & ALTERATIONS
TO DWELLING
ffl
ffl ffl
top of wall plate top of wall plate
1600
SECTIONAL ELEVATION B - B
1800 400 3500 400
400
200200
1000 sandstone tiling to columns to
architects detail
150
smooth plaster coping - 150mm high
textured plastering to architects
details
30mm raised plaster coping surround
to inset to take dry-stack rockwork to
detail
2500 66
SECTION C-C
1404920
6220
DINING
NEW
LOUNGE
200mm plaster band
1401800140
3050
140
1080
1250400
2440
existing conc. strip foundation
sandstone tiling to columns to
architects detail
site boundary
IBR profiled metal sheeting
new parapet walls - flashed and
counterflashed with approved material
top of wall plate
top of wall plate
existing floor slab
new parapet walls - flashed and
counterflashed with approved material
700 x 230 conc.
strip foundation
140 boundary
wall
1600
1000
ffl ffl
W7
sg sg
W6
sg sg sg
D2
ffl
top of wall plate
ffl ffl
top of wall plate
ffl
sandstone tiling to columns to
architects detail
200mm plaster band
new parapet walls - flashed
and counterflashed with
approved material
existing roof line
site boundarynew concrete tiled roof flashed and
counerflashed at parapets
sandstone tiling to columns to
architects detail
700 x 230 conc.
strip footings
min 100mm thick conc. slab
with ref 193 mesh and usb green plastic sheeting on
450mm consolidated fill - termite poisoned by specialist
new conc. tiles on 38x38mm battens on 250 microns plastic
sandstone tiling to columns to
architects detail
4490
170mm thick conc.
slab to eng. details
new parapet wall - flashed and
counter-flashed with approved
material
new ibr-profiled awning built
into brickwork - to be flashed
and counterflashed
all walls to be plastered
and painted
all walls plastered
and painted
new parapet walls - flashed
and counterflashed with
approved material
sandstone tiling to columns to
architects detail
site boundary
site boundary
textured plaster to
architects detail
textured plaster to
architects detail
sandstone tiling to columns to
architects detail
200mm plaster band
dry-stack rockwork to
architects detail
dry-stack rockwork to
architects detail
roll up garage door
700 x 230 conc.
strip footings 100mm thick conc. slab
with ref 193 mesh and usb green plastic sheeting on
450mm consolidated fill - termite poisoned by specialist
170mm thick conc. slab to eng detail
2550
GARAGE
ffl ffl
ffl ffl
4210 400
6500
2880 3210 400 2690 400 1940
400
3980
500
900 140 3700 140
1402000
sandstone tiling to columns to
architects detail
new roof line
SUN DECK
open to sky
SUN DECK
open to sky
SUN DECK
open to sky
SUN DECK
open to sky
1040
6500
6220140 140
4000
5000
2200
existing roof trusses at 760c/c
sandstone tiling to columns to
architects detail
2440
top of wall plate
2140
7790
AA
BB
3600 400
C C
4004200400
1500 1500
SITE AREA
ALLOWED COVERAGE
ALLOWED F.A.R.
EXISTING BUILDING
COVERAGE
F.A.R
PROPOSED WORK
SUN DECK
NEW LOUNGE
ENTRANCE PATIO
CAR-PORT
DOUBLE GARAGE/STORAGE
--------------------
TOTAL
PROPOSED COVERAGE
PROPOSED F.A.R.
TOTAL COVERAGE
TOTAL F.A.R.
SCHEDULE OF AREAS
STORAGE
16950
6800
900
2140
1000
1800 400 3500 400
400
200200
1000
1500 1500
STEELCASTLE
ROAD
3 000 building line
3 000 building line
10001450
site boundary
1200
line of cantilevered slab
above to engineers details
construct new block piers to
u/s slab to existing
boundary wall
u/s slab level
770
u/s slab level
SECTION A-A
NORTH ELEVATION
NORTH ELEVATION
NORTH ELEVATIONSOUTH ELEVATION entrance gate
PLAN - entrance gate
WEST/ N.W. ELEVATION
existing boundary wall (PA 072/10/2011)
existing boundary wall (PA 072/10/2011)
existing boundary wall (PA 072/10/2011)
3000S&Dservitude
101.500
101.000
100.000
98.500
98.500
99.000
E
30:05:12
30:05:12
smooth plaster & paint
smooth plaster & paint
smooth plaster & paint
smooth plaster & paint
smooth plaster & paint smooth plaster & paint
smooth plaster & paint
smooth plaster & paint
SUN DECK
open to sky
Y.S
existing sewer pipe
r.e
r.e
existing sewer pipe
House Carol Submission

House Carol Submission

  • 1.
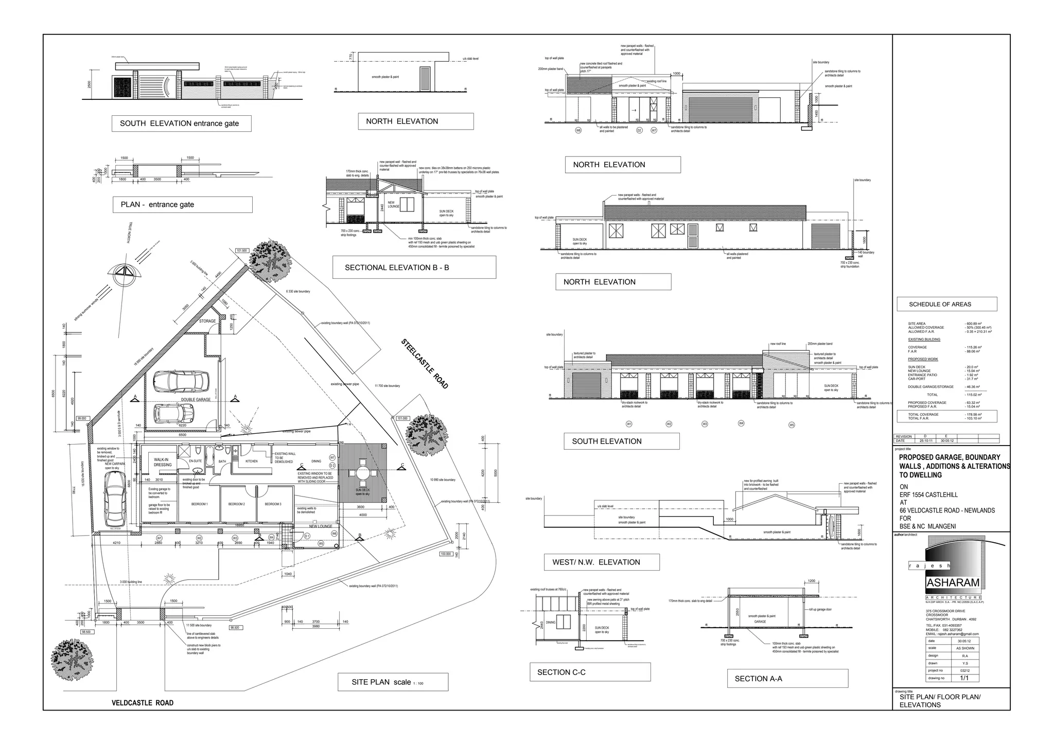
    Existing garage to beconverted to bedroom. garage floor to be raised to existing bedroom ffl BEDROOM 1 BEDROOM 2 BEDROOM 3 BATH KITCHEN DINING rwp EXISTING WALL TO BE DEMOLISHED ROLL UP DOOR NEW CARPARK open to sky EXISTING WINDOW TO BE REMOVED AND REPLACED WITH SLIDING DOOR ROLLUPDOOR NEW LOUNGE 1000 WALK-IN DRESSING DOUBLE GARAGE existing walls to be demolished 10 990 site boundary 11 700 site boundary 18 990 site boundary 16630siteboundary VELDCASTLE ROAD 11 500 site boundary 6 330 site boundary SITE PLAN scale 1 : 100 240090140 3010140 existing door to be bricked up and finished good existing window to be removed, bricked up and finished good EN-SUITE sg sg sg SOUTH ELEVATION TRUENORTH strong sum m er winds winter rain & winds W1 W2 W3 W4 D 2 D 1 W5 W6 W7 W1 W2 W3 W4 W5 REVISION DATE D 25:10:11 SITE PLAN/ FLOOR PLAN/ ELEVATIONS CROSSMOOR project no drawn design scale date MOBILE: 082 3227362 EMAIL: rajesh.asharam@gmail.com TEL./FAX. 031-4093357 CHATSWORTH . DURBAN . 4092 375 CROSSMOOR DRIVE ASHARAM A R C H I T E C T U R E r a j e s h AS SHOWN R.A 03212 N.H.DIP ARCH. S.A. - PR. NO.20559 (S.A.C.A.P) drawing no 1/1 drawing title project title authorauthor/architect ON ERF 1554 CASTLEHILL AT 66 VELDCASTLE ROAD - NEWLANDS FOR BSE & NC MLANGENI PROPOSED GARAGE, BOUNDARY WALLS , ADDITIONS & ALTERATIONS TO DWELLING ffl ffl ffl top of wall plate top of wall plate 1600 SECTIONAL ELEVATION B - B 1800 400 3500 400 400 200200 1000 sandstone tiling to columns to architects detail 150 smooth plaster coping - 150mm high textured plastering to architects details 30mm raised plaster coping surround to inset to take dry-stack rockwork to detail 2500 66 SECTION C-C 1404920 6220 DINING NEW LOUNGE 200mm plaster band 1401800140 3050 140 1080 1250400 2440 existing conc. strip foundation sandstone tiling to columns to architects detail site boundary IBR profiled metal sheeting new parapet walls - flashed and counterflashed with approved material top of wall plate top of wall plate existing floor slab new parapet walls - flashed and counterflashed with approved material 700 x 230 conc. strip foundation 140 boundary wall 1600 1000 ffl ffl W7 sg sg W6 sg sg sg D2 ffl top of wall plate ffl ffl top of wall plate ffl sandstone tiling to columns to architects detail 200mm plaster band new parapet walls - flashed and counterflashed with approved material existing roof line site boundarynew concrete tiled roof flashed and counerflashed at parapets sandstone tiling to columns to architects detail 700 x 230 conc. strip footings min 100mm thick conc. slab with ref 193 mesh and usb green plastic sheeting on 450mm consolidated fill - termite poisoned by specialist new conc. tiles on 38x38mm battens on 250 microns plastic sandstone tiling to columns to architects detail 4490 170mm thick conc. slab to eng. details new parapet wall - flashed and counter-flashed with approved material new ibr-profiled awning built into brickwork - to be flashed and counterflashed all walls to be plastered and painted all walls plastered and painted new parapet walls - flashed and counterflashed with approved material sandstone tiling to columns to architects detail site boundary site boundary textured plaster to architects detail textured plaster to architects detail sandstone tiling to columns to architects detail 200mm plaster band dry-stack rockwork to architects detail dry-stack rockwork to architects detail roll up garage door 700 x 230 conc. strip footings 100mm thick conc. slab with ref 193 mesh and usb green plastic sheeting on 450mm consolidated fill - termite poisoned by specialist 170mm thick conc. slab to eng detail 2550 GARAGE ffl ffl ffl ffl 4210 400 6500 2880 3210 400 2690 400 1940 400 3980 500 900 140 3700 140 1402000 sandstone tiling to columns to architects detail new roof line SUN DECK open to sky SUN DECK open to sky SUN DECK open to sky SUN DECK open to sky 1040 6500 6220140 140 4000 5000 2200 existing roof trusses at 760c/c sandstone tiling to columns to architects detail 2440 top of wall plate 2140 7790 AA BB 3600 400 C C 4004200400 1500 1500 SITE AREA ALLOWED COVERAGE ALLOWED F.A.R. EXISTING BUILDING COVERAGE F.A.R PROPOSED WORK SUN DECK NEW LOUNGE ENTRANCE PATIO CAR-PORT DOUBLE GARAGE/STORAGE -------------------- TOTAL PROPOSED COVERAGE PROPOSED F.A.R. TOTAL COVERAGE TOTAL F.A.R. SCHEDULE OF AREAS STORAGE 16950 6800 900 2140 1000 1800 400 3500 400 400 200200 1000 1500 1500 STEELCASTLE ROAD 3 000 building line 3 000 building line 10001450 site boundary 1200 line of cantilevered slab above to engineers details construct new block piers to u/s slab to existing boundary wall u/s slab level 770 u/s slab level SECTION A-A NORTH ELEVATION NORTH ELEVATION NORTH ELEVATIONSOUTH ELEVATION entrance gate PLAN - entrance gate WEST/ N.W. ELEVATION existing boundary wall (PA 072/10/2011) existing boundary wall (PA 072/10/2011) existing boundary wall (PA 072/10/2011) 3000S&Dservitude 101.500 101.000 100.000 98.500 98.500 99.000 E 30:05:12 30:05:12 smooth plaster & paint smooth plaster & paint smooth plaster & paint smooth plaster & paint smooth plaster & paint smooth plaster & paint smooth plaster & paint smooth plaster & paint SUN DECK open to sky Y.S existing sewer pipe r.e r.e existing sewer pipe