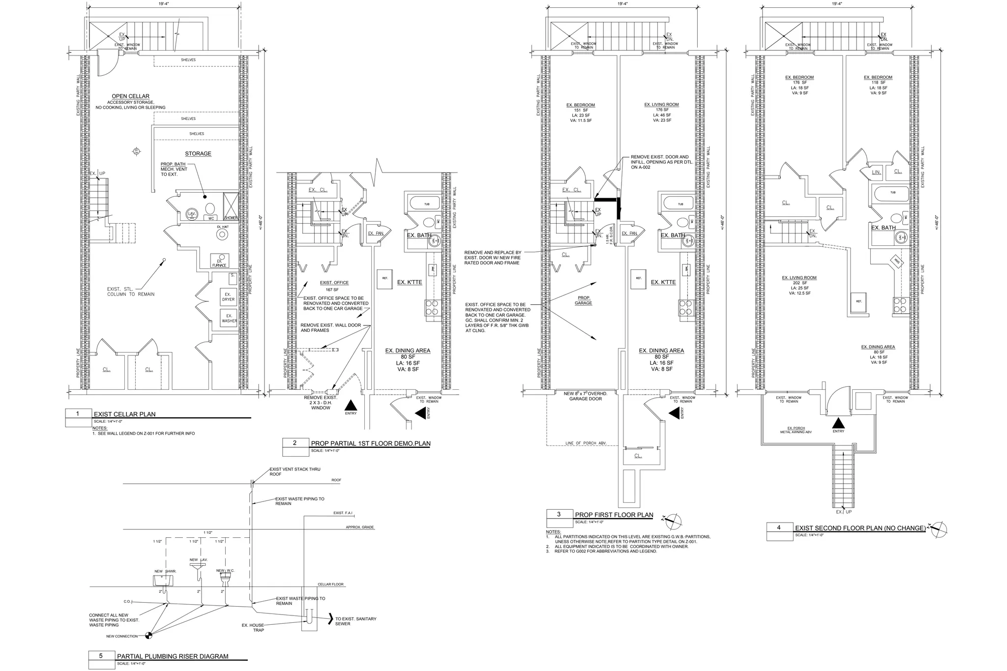
EX. BATH
EX. PORCH
METAL AWNING ABV ENTRY
EX. LIVING ROOM
202 SF
LA: 25 SF
VA: 12.5 SF
EX. DINING AREA
80 SF
LA: 18 SF
VA: 9 SF
EX. BEDROOM
176 SF
LA: 18 SF
VA: 9 SF
EX. BEDROOM
118 SF
LA: 18 SF
VA: 9 SF
EXIST SECOND FLOOR PLAN (NO CHANGE)
SCALE: 1/4"=1'-0"
4
19'-4"
+/-46'-0"
STORAGE
PROP. BATH
MECH. VENT
TO EXT.
SD
CM
NOTES:
1. SEE WALL LEGEND ON Z-001 FOR FURTHER INFO
EXIST CELLAR PLAN
SCALE: 1/4"=1'-0"
1
+/-46'-0"
19'-4"
OPEN CELLAR
ACCESSORY STORAGE,
NO COOKING, LIVING OR SLEEPING
PROP.
GARAGE
EX. K'TTE
EX. DINING AREA
80 SF
LA: 16 SF
VA: 8 SF
EX. BATH
EX. BEDROOM
151 SF
LA: 23 SF
VA: 11.5 SF
EX. LIVING ROOM
176 SF
LA: 46 SF
VA: 23 SF
EXIST. OFFICE SPACE TO BE
RENOVATED AND CONVERTED
BACK TO ONE CAR GARAGE.
GC. SHALL CONFIRM MIN. 2
LAYERS OF F.R. 5/8" THK GWB
AT CLNG.
19'-4"
+/-46'-0"
.
PROP FIRST FLOOR PLAN
SCALE: 1/4"=1'-0"
3
1.5HR.
F.R.S.C.DR.
NEW 8 x 7 OVERHD.
GARAGE DOOR
0 0
REMOVE EXIST. DOOR AND
INFILL, OPENING AS PER DTL.
ON A-002
REMOVE AND REPLACE BY
EXIST. DOOR W/ NEW FIRE
RATED DOOR AND FRAME
NOTES:
1. ALL PARTITIONS INDICATED ON THIS LEVEL ARE EXISTING G.W.B. PARTITIONS,
UNESS OTHERWISE NOTE,REFER TO PARTITION TYPE DETAIL ON Z-001.
2. ALL EQUIPMENT INDICATED IS TO BE COORDINATED WITH OWNER.
3. REFER TO G002 FOR ABBREVIATIONS AND LEGEND.
EXIST. OFFICE
167 SF
EX. DINING AREA
80 SF
LA: 16 SF
VA: 8 SF
ENTRY
EXIST. OFFICE SPACE TO BE
RENOVATED AND CONVERTED
BACK TO ONE CAR GARAGE
REMOVE EXIST. WALL DOOR
AND FRAMES
REMOVE EXIST.
2 X 3 - D.H.
WINDOW
EX. K'TTE
EX. BATH
ROOF
EXIST VENT STACK THRU
ROOF
EXIST WASTE PIPING TO
REMAIN
EXIST. F.A.I
APPROX. GRADE
CELLAR FLOOR
1 1/2"
1 1/2" 1 1/2" 1 1/2"
NEW SHWR.
NEW LAV.
NEW W.C.
2" 2" 2"
CONNECT ALL NEW
WASTE PIPING TO EXIST.
WASTE PIPING
EXIST WASTE PIPING TO
REMAIN
EX. HOUSE
TRAP
TO EXIST. SANITARY
SEWER
C.O.
NEW CONNECTION
PARTIAL PLUMBING RISER DIAGRAM
SCALE: 1/4"=1'-0"
5
NOTES:
PROP PARTIAL 1ST FLOOR DEMO.PLAN
SCALE: 1/4"=1'-0"
2

A-100-A100.00

  • 1.
    EX. BATH EX. PORCH METALAWNING ABV ENTRY EX. LIVING ROOM 202 SF LA: 25 SF VA: 12.5 SF EX. DINING AREA 80 SF LA: 18 SF VA: 9 SF EX. BEDROOM 176 SF LA: 18 SF VA: 9 SF EX. BEDROOM 118 SF LA: 18 SF VA: 9 SF EXIST SECOND FLOOR PLAN (NO CHANGE) SCALE: 1/4"=1'-0" 4 19'-4" +/-46'-0" STORAGE PROP. BATH MECH. VENT TO EXT. SD CM NOTES: 1. SEE WALL LEGEND ON Z-001 FOR FURTHER INFO EXIST CELLAR PLAN SCALE: 1/4"=1'-0" 1 +/-46'-0" 19'-4" OPEN CELLAR ACCESSORY STORAGE, NO COOKING, LIVING OR SLEEPING PROP. GARAGE EX. K'TTE EX. DINING AREA 80 SF LA: 16 SF VA: 8 SF EX. BATH EX. BEDROOM 151 SF LA: 23 SF VA: 11.5 SF EX. LIVING ROOM 176 SF LA: 46 SF VA: 23 SF EXIST. OFFICE SPACE TO BE RENOVATED AND CONVERTED BACK TO ONE CAR GARAGE. GC. SHALL CONFIRM MIN. 2 LAYERS OF F.R. 5/8" THK GWB AT CLNG. 19'-4" +/-46'-0" . PROP FIRST FLOOR PLAN SCALE: 1/4"=1'-0" 3 1.5HR. F.R.S.C.DR. NEW 8 x 7 OVERHD. GARAGE DOOR 0 0 REMOVE EXIST. DOOR AND INFILL, OPENING AS PER DTL. ON A-002 REMOVE AND REPLACE BY EXIST. DOOR W/ NEW FIRE RATED DOOR AND FRAME NOTES: 1. ALL PARTITIONS INDICATED ON THIS LEVEL ARE EXISTING G.W.B. PARTITIONS, UNESS OTHERWISE NOTE,REFER TO PARTITION TYPE DETAIL ON Z-001. 2. ALL EQUIPMENT INDICATED IS TO BE COORDINATED WITH OWNER. 3. REFER TO G002 FOR ABBREVIATIONS AND LEGEND. EXIST. OFFICE 167 SF EX. DINING AREA 80 SF LA: 16 SF VA: 8 SF ENTRY EXIST. OFFICE SPACE TO BE RENOVATED AND CONVERTED BACK TO ONE CAR GARAGE REMOVE EXIST. WALL DOOR AND FRAMES REMOVE EXIST. 2 X 3 - D.H. WINDOW EX. K'TTE EX. BATH ROOF EXIST VENT STACK THRU ROOF EXIST WASTE PIPING TO REMAIN EXIST. F.A.I APPROX. GRADE CELLAR FLOOR 1 1/2" 1 1/2" 1 1/2" 1 1/2" NEW SHWR. NEW LAV. NEW W.C. 2" 2" 2" CONNECT ALL NEW WASTE PIPING TO EXIST. WASTE PIPING EXIST WASTE PIPING TO REMAIN EX. HOUSE TRAP TO EXIST. SANITARY SEWER C.O. NEW CONNECTION PARTIAL PLUMBING RISER DIAGRAM SCALE: 1/4"=1'-0" 5 NOTES: PROP PARTIAL 1ST FLOOR DEMO.PLAN SCALE: 1/4"=1'-0" 2