E1 E1 E2
M A S T E R
BEDROOM
ENSUITE
TOILET
BEDROOM
2
C O V E R E D
P O R C H
KITCHEN
WALLTOBEDEMOLISHED
E X I S T I N G
DOOR TO BE
BRICKED UP
DOOR TO
BE ADDED
B I C
B I C
BIC
BIC
TO
UPSTAIRS
V E R A N D A H
NE1
NG2
E2
S H O W E R
+ T O I L E T
DINING
LIVINGROOM
C2FC2F
D22F
C2F
NC4FNC4F
NC4FNG2
NG5 NG5NG5
a l u . s l i d i n g d o o r
a l u . s l i d i n g d o o r a l u . s l i d i n g d o o r
C2FD2FD2F
NG11
E2E2E2
U001a l u . s l i d i n g d o o r
A A
B
A A
L O F T
A R E A
U P S T A I R S D E C K
FROM
DOWNSTAIRS
B
B
B
DATE: PROJECT: DRAWING: SCALE:
DRAWN BY:CLIENT/APPLICANT:
PLOT: SIGNED:
1: 50
G H
PAGE #:
TFHE/001/01
CLIENT ADDRESS:
OCT 2014
PAGE FORMAT: A1P
DRAWING NUMBER:
/
HOUSE EXTENSION
-
SUBMITTED:
826, PLATEAU, KASANE
T FRAYNE
P.O. Box 1056
Kasane
FIRST FLOOR PLAN 1:50
GROUND FLOOR PLAN 1:50
E X I S T I N G
C O T T A G E
AREAS
SITE 1500 sqm
EXISTING COTTAGE 60 sqm
PROPOSED EXTENSION 86.7 sqm
TOTAL BUILDING ±146.7 sqm
COVERAGE ±9.8%
REVISIONS
FFL1 0000
NGL ±-0200
+2100
+3225
+3905
FFL2 +3000
+5100
+5400
+5711
+6714
-1200
-1600
-1800
-0400
-0550
-0085
IBR ROOF SHEETING FIXED WITH
SCREWS TO 75x50 TIMBER PURLINS
FIXED @ MAX 1200 CS TO 114x38
TIMBER TRUSSES BUILT TO SUIT, FIXED
@ MAX 850 CS INTO 230 BRICK WALL
230 LOAD BEARING BRICK WALL
PLASTERED ON BOTH SIDES TO SUIT
(MIN 10 mpa BRICK STRENGTH TO FFL2)
1 5 0 X 1 5 0
S T E E L
C O L U M N
400x800 RC STRIP FOUNDATION
ON 200 WELL COMPACTED
CALCRETE BASE @ MIN DEPTH
- 1 6 0 0 B E L O W N G L
85 SMOOTH FINISHED
RC FLOOR SLAB ON
D P C O N W E L L
COMPACTED EARTH
F I L L T O S U I T
22 T+G FLOORING ON 19 PLYWOOD
FIXED TO 140x60 STEEL CHANNEL
JOISTS FIXED @ 600 CS MAX TO
BRICK WALL WITH 100x75X6 ANGLE
SECTION BOLTED INTO WALL
S U I T A B L Y
L I G H T C O N C
F O O T I N G F O R
S T E E L D E C K
C O L U M N S M I N
D E P T H 1 1 0 0
B E L O W N G L
std steel
window std steel
window
std steel
window
std steel
window
std steel
window
std steel
window
AIR
VENT
9 m m G Y P S U M
CEILING FIXED TO
3 8 x 3 8 T I M B E R
B R A N D E R S
S C R E W E D @
4 0 0 C S MA X T O
U/SIDE OF FLOOR
S T E E L J O I S T S
2 2 8 x 5 0 T I M B E R
BEARERS BOLTED TO
1 5 0 x 1 5 0 S T E E L
COLUMN SUITABLY
22 T+G DECKING FIXED TO
19mm PLYWOOD FIXED TO
228x38 JOISTS @ 600 CS
MAX ON 228x50 BEARERS
114x38 TIMBER PERGOLA
S T R U C T U R E T O S U I T
50x50 STEEL
BALUSTRADE
DETAIL B
FFL1 0000
NGL -0200
+2100
+3225
+3905
FFL2 +3000
+5100
+5400
+5711
+6714
-1200
-1600
-1800
-0400
-0550
+3905
+3225
-0085 -0085
IBR ROOF SHEETING FIXED WITH
SCREWS TO 75x50 TIMBER PURLINS
FIXED @ MAX 800 CS TO 114x38
TIMBER TRUSSES BUILT TO SUIT, FIXED
@ MAX 850 CS INTO 230 BRICK WALL
115 LOAD BEARING BRICK
WALL PLASTERED ON BOTH
S I D E S T O S U I T
12mm PLYWOOD CEILING
FIXED TO U/SIDE OF PURLINS
B E T W E E N T R U S S E S
AIR
VENT
BARGEBOARD
T O S U I T
IBR ROOF SHEETING FIXED WITH
SCREWS TO 75x50 TIMBER PURLINS
FIXED @ MAX 1000 CS TO 228x38
TIMBER TRUSSES, FIXED @ MAX 900
C S I N T O 2 3 0 B R I C K W A L L
EXISTING 200 CONC
BLOCK WALL TO BE
R A I S E D T O
SPECIFIED HEIGHT
RIDGE CAP
T O S U I T
T I M B E R
D E C K
S T E E L
COLUMN
400x800 RC STRIP FOUNDATION
ON 200 WELL COMPACTED
CALCRETE BASE @ MIN DEPTH
- 1 6 0 0 B E L O W N G L
200x515 RC STRIP
FOOTING ON 15 0
WELL COMPACTED
C A L C R E T E B A S E
1 8 0 0 x 2 1 0 0
a l u . s l i d i n g d o o r
P R O P O S E D E X T E N S I O N E X I S T I N G C O T T A G E
std steel
window
85 SMOOTH FINISHED
RC FLOOR SLAB ON
D P C O N W E L L
COMPACTED EARTH
F I L L T O S U I T
BUILT
IN
CUPBOARD
AIR
VENT
2 0 0 x 6 0 0 R C S T R I P
FOUNDATION @ MIN
DEPTH 900 BELOW NGL
ON 150 COMPACTED
CALCRETE BASE LAYER
DETAIL A
DETAIL C
9 0 0 x 2 1 0 0
custom fixed
timber window
SUITABLE STEEL
FLASHING CHASED
I N T O W A L L
E1 E1 E2
M A S T E R
BEDROOM
ENSUITE
TOILET
BEDROOM
2
C O V E R E D
P O R C H
KITCHEN
WALLTOBEDEMOLISHED
E X I S T I N G
D OO R TO BE
BRIC KED UP
D O O R T O
BE ADDED
B I C
B I C
BIC
BIC
TO
UPSTAIRS
V E R A N D A H
NE1
NG2
E2
S H O W E R
+ T O I L E T
DINING
LIVINGROOM
C2FC2F
D22F
C2F
NC4FNC4F
NC4F
NG2
NG5 NG5NG5
a l u . s l i d i n g d o o r
a l u . s l i d i n g d o o r a l u . s l i d i n g d o o r
ENTRANCE
G A T E
WASTE
A R E A
exist.
tree
exist.
tree
G A R D E N
IC
ICIC
IC
COUNCIL/WUC
S E W E R
CONNECTION
1 . 5 m s e t b a c k l i n e
1 . 5 m s e t b a c k l i n e
1.5msetbackline
5msetbackline
P A R K I N G
P A R K I N G
e x i s t i n g 1 . 8 m b l o c k w a l l
P L O T 8 2 7
P L O T 8 2 5
G
RE
IC
15mROAD
2 0 0 C AL CR ETE BA SE LAY ER
COMPACTED TO 96% MOD AASHTO
230 CONC STOCK
B R I C K 1 0 m p a
M I N I M U M
C O N C R E T E
STRIP FOOTING
CAST EN-SITU
Y12
REINFORCING
8 5 SM O OT H FI NI S H E D
CONCRETE FLOOR SLAB
HARDCORE FILL TO
96% MOD AASHTO
I N L A Y E R S O F
1 5 0 m m
WELL COMPACTED
B A C K F I L L
2 5 0
MICRON
D P C
150 CAL CRET E BAS E
LAYER COMPACTED TO
9 6 % M O D A A S H T O
200x 515 CO NC ST RIP
FOOTING CAST EN-SITU
H A R D C O R E F I L L
COMPACTED TO 96%
M O D A A S H T O I N
150mm LAYERS TO
S U IT AB L E DEP T H
85 SMOOTH FLOATED CONC
FLOOR SLAB REINFORCED WITH
A193 REINFORCING MESH
250
MICRON
DPC Y 1 2 R E I N F O R C I N G
115 CONC BRICK SEMI
LOAD BEARING WALL
PLASTERED ON BOTH
S I D E S
230 LOADBEARING
CONC STOCK BRICK
WALL PLASTERED
B O T H S I D E S
2 2 m m T + G F L O O R I N G
1 9 m m P L Y W O O D
1 4 0 X 6 0 S T E E L
C H A N N E L J O I S T
38x38 TIMBER BRANDER
FIXED WITH SCREWS TO
UNDERSIDE OF STEEL
JOISTS @ 400 CS MAX
9mm GYPSUM
CEILING FIXED
TO BRANDERS
100x75 STEEL
ANGLE BOLTED
TO BRICK WALL
S T D A I R
V E N T
CAST INTO
W A L L
DATE: PROJECT: DRAWING: SCALE:
DRAWN BY:CLIENT:
PLOT: SIGNED:
APPROVAL SET
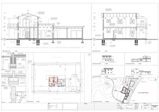
SECTION A-A 1:50
SECTION B-B 1:50
ELEVATIONS 1:200
SITE PLAN 1:200
LOCATION PLAN 1:500
DETAIL A 1:25
DETAIL B+C 1:10
1:10 1:25 1:50 1:200
1:5000
G H
CLIENT ADDRESS:
P.O. Box 1056
Kasane
SUBMITTED:REVISIONS
PAGE #:
A1L
DRAWING NUMBER:
/
TFHE/002/01
OCT 2014
HOUSE EXTENSION
-
826, PLATEAU, KASANE
T FRAYNE
LOCATION PLAN 1:5000
NE ELEVATION 1:200 NW ELEVATION 1:200
SE ELEVATION 1:200SW ELEVATION 1:200
SITE PLAN 1:200
SECTION A-A 1:50 SECTION B-B 1:50
PROPOSED
EXTENSION
DETAIL A 1:25
DETAIL C 1:10
DETAIL B 1:10
AREAS
SITE 1500 sqm
EXISTING COTTAGE 60 sqm
PROPOSED EXTENSION 86.7 sqm
TOTAL BUILDING ±146.7 sqm
COVERAGE ±9.8%
*SITE SHOWN IN RED
EXISTING
COTTAGE

Frayne House Extension

  • 1.
    E1 E1 E2 MA S T E R BEDROOM ENSUITE TOILET BEDROOM 2 C O V E R E D P O R C H KITCHEN WALLTOBEDEMOLISHED E X I S T I N G DOOR TO BE BRICKED UP DOOR TO BE ADDED B I C B I C BIC BIC TO UPSTAIRS V E R A N D A H NE1 NG2 E2 S H O W E R + T O I L E T DINING LIVINGROOM C2FC2F D22F C2F NC4FNC4F NC4FNG2 NG5 NG5NG5 a l u . s l i d i n g d o o r a l u . s l i d i n g d o o r a l u . s l i d i n g d o o r C2FD2FD2F NG11 E2E2E2 U001a l u . s l i d i n g d o o r A A B A A L O F T A R E A U P S T A I R S D E C K FROM DOWNSTAIRS B B B DATE: PROJECT: DRAWING: SCALE: DRAWN BY:CLIENT/APPLICANT: PLOT: SIGNED: 1: 50 G H PAGE #: TFHE/001/01 CLIENT ADDRESS: OCT 2014 PAGE FORMAT: A1P DRAWING NUMBER: / HOUSE EXTENSION - SUBMITTED: 826, PLATEAU, KASANE T FRAYNE P.O. Box 1056 Kasane FIRST FLOOR PLAN 1:50 GROUND FLOOR PLAN 1:50 E X I S T I N G C O T T A G E AREAS SITE 1500 sqm EXISTING COTTAGE 60 sqm PROPOSED EXTENSION 86.7 sqm TOTAL BUILDING ±146.7 sqm COVERAGE ±9.8% REVISIONS
  • 2.
    FFL1 0000 NGL ±-0200 +2100 +3225 +3905 FFL2+3000 +5100 +5400 +5711 +6714 -1200 -1600 -1800 -0400 -0550 -0085 IBR ROOF SHEETING FIXED WITH SCREWS TO 75x50 TIMBER PURLINS FIXED @ MAX 1200 CS TO 114x38 TIMBER TRUSSES BUILT TO SUIT, FIXED @ MAX 850 CS INTO 230 BRICK WALL 230 LOAD BEARING BRICK WALL PLASTERED ON BOTH SIDES TO SUIT (MIN 10 mpa BRICK STRENGTH TO FFL2) 1 5 0 X 1 5 0 S T E E L C O L U M N 400x800 RC STRIP FOUNDATION ON 200 WELL COMPACTED CALCRETE BASE @ MIN DEPTH - 1 6 0 0 B E L O W N G L 85 SMOOTH FINISHED RC FLOOR SLAB ON D P C O N W E L L COMPACTED EARTH F I L L T O S U I T 22 T+G FLOORING ON 19 PLYWOOD FIXED TO 140x60 STEEL CHANNEL JOISTS FIXED @ 600 CS MAX TO BRICK WALL WITH 100x75X6 ANGLE SECTION BOLTED INTO WALL S U I T A B L Y L I G H T C O N C F O O T I N G F O R S T E E L D E C K C O L U M N S M I N D E P T H 1 1 0 0 B E L O W N G L std steel window std steel window std steel window std steel window std steel window std steel window AIR VENT 9 m m G Y P S U M CEILING FIXED TO 3 8 x 3 8 T I M B E R B R A N D E R S S C R E W E D @ 4 0 0 C S MA X T O U/SIDE OF FLOOR S T E E L J O I S T S 2 2 8 x 5 0 T I M B E R BEARERS BOLTED TO 1 5 0 x 1 5 0 S T E E L COLUMN SUITABLY 22 T+G DECKING FIXED TO 19mm PLYWOOD FIXED TO 228x38 JOISTS @ 600 CS MAX ON 228x50 BEARERS 114x38 TIMBER PERGOLA S T R U C T U R E T O S U I T 50x50 STEEL BALUSTRADE DETAIL B FFL1 0000 NGL -0200 +2100 +3225 +3905 FFL2 +3000 +5100 +5400 +5711 +6714 -1200 -1600 -1800 -0400 -0550 +3905 +3225 -0085 -0085 IBR ROOF SHEETING FIXED WITH SCREWS TO 75x50 TIMBER PURLINS FIXED @ MAX 800 CS TO 114x38 TIMBER TRUSSES BUILT TO SUIT, FIXED @ MAX 850 CS INTO 230 BRICK WALL 115 LOAD BEARING BRICK WALL PLASTERED ON BOTH S I D E S T O S U I T 12mm PLYWOOD CEILING FIXED TO U/SIDE OF PURLINS B E T W E E N T R U S S E S AIR VENT BARGEBOARD T O S U I T IBR ROOF SHEETING FIXED WITH SCREWS TO 75x50 TIMBER PURLINS FIXED @ MAX 1000 CS TO 228x38 TIMBER TRUSSES, FIXED @ MAX 900 C S I N T O 2 3 0 B R I C K W A L L EXISTING 200 CONC BLOCK WALL TO BE R A I S E D T O SPECIFIED HEIGHT RIDGE CAP T O S U I T T I M B E R D E C K S T E E L COLUMN 400x800 RC STRIP FOUNDATION ON 200 WELL COMPACTED CALCRETE BASE @ MIN DEPTH - 1 6 0 0 B E L O W N G L 200x515 RC STRIP FOOTING ON 15 0 WELL COMPACTED C A L C R E T E B A S E 1 8 0 0 x 2 1 0 0 a l u . s l i d i n g d o o r P R O P O S E D E X T E N S I O N E X I S T I N G C O T T A G E std steel window 85 SMOOTH FINISHED RC FLOOR SLAB ON D P C O N W E L L COMPACTED EARTH F I L L T O S U I T BUILT IN CUPBOARD AIR VENT 2 0 0 x 6 0 0 R C S T R I P FOUNDATION @ MIN DEPTH 900 BELOW NGL ON 150 COMPACTED CALCRETE BASE LAYER DETAIL A DETAIL C 9 0 0 x 2 1 0 0 custom fixed timber window SUITABLE STEEL FLASHING CHASED I N T O W A L L E1 E1 E2 M A S T E R BEDROOM ENSUITE TOILET BEDROOM 2 C O V E R E D P O R C H KITCHEN WALLTOBEDEMOLISHED E X I S T I N G D OO R TO BE BRIC KED UP D O O R T O BE ADDED B I C B I C BIC BIC TO UPSTAIRS V E R A N D A H NE1 NG2 E2 S H O W E R + T O I L E T DINING LIVINGROOM C2FC2F D22F C2F NC4FNC4F NC4F NG2 NG5 NG5NG5 a l u . s l i d i n g d o o r a l u . s l i d i n g d o o r a l u . s l i d i n g d o o r ENTRANCE G A T E WASTE A R E A exist. tree exist. tree G A R D E N IC ICIC IC COUNCIL/WUC S E W E R CONNECTION 1 . 5 m s e t b a c k l i n e 1 . 5 m s e t b a c k l i n e 1.5msetbackline 5msetbackline P A R K I N G P A R K I N G e x i s t i n g 1 . 8 m b l o c k w a l l P L O T 8 2 7 P L O T 8 2 5 G RE IC 15mROAD 2 0 0 C AL CR ETE BA SE LAY ER COMPACTED TO 96% MOD AASHTO 230 CONC STOCK B R I C K 1 0 m p a M I N I M U M C O N C R E T E STRIP FOOTING CAST EN-SITU Y12 REINFORCING 8 5 SM O OT H FI NI S H E D CONCRETE FLOOR SLAB HARDCORE FILL TO 96% MOD AASHTO I N L A Y E R S O F 1 5 0 m m WELL COMPACTED B A C K F I L L 2 5 0 MICRON D P C 150 CAL CRET E BAS E LAYER COMPACTED TO 9 6 % M O D A A S H T O 200x 515 CO NC ST RIP FOOTING CAST EN-SITU H A R D C O R E F I L L COMPACTED TO 96% M O D A A S H T O I N 150mm LAYERS TO S U IT AB L E DEP T H 85 SMOOTH FLOATED CONC FLOOR SLAB REINFORCED WITH A193 REINFORCING MESH 250 MICRON DPC Y 1 2 R E I N F O R C I N G 115 CONC BRICK SEMI LOAD BEARING WALL PLASTERED ON BOTH S I D E S 230 LOADBEARING CONC STOCK BRICK WALL PLASTERED B O T H S I D E S 2 2 m m T + G F L O O R I N G 1 9 m m P L Y W O O D 1 4 0 X 6 0 S T E E L C H A N N E L J O I S T 38x38 TIMBER BRANDER FIXED WITH SCREWS TO UNDERSIDE OF STEEL JOISTS @ 400 CS MAX 9mm GYPSUM CEILING FIXED TO BRANDERS 100x75 STEEL ANGLE BOLTED TO BRICK WALL S T D A I R V E N T CAST INTO W A L L DATE: PROJECT: DRAWING: SCALE: DRAWN BY:CLIENT: PLOT: SIGNED: APPROVAL SET SECTION A-A 1:50 SECTION B-B 1:50 ELEVATIONS 1:200 SITE PLAN 1:200 LOCATION PLAN 1:500 DETAIL A 1:25 DETAIL B+C 1:10 1:10 1:25 1:50 1:200 1:5000 G H CLIENT ADDRESS: P.O. Box 1056 Kasane SUBMITTED:REVISIONS PAGE #: A1L DRAWING NUMBER: / TFHE/002/01 OCT 2014 HOUSE EXTENSION - 826, PLATEAU, KASANE T FRAYNE LOCATION PLAN 1:5000 NE ELEVATION 1:200 NW ELEVATION 1:200 SE ELEVATION 1:200SW ELEVATION 1:200 SITE PLAN 1:200 SECTION A-A 1:50 SECTION B-B 1:50 PROPOSED EXTENSION DETAIL A 1:25 DETAIL C 1:10 DETAIL B 1:10 AREAS SITE 1500 sqm EXISTING COTTAGE 60 sqm PROPOSED EXTENSION 86.7 sqm TOTAL BUILDING ±146.7 sqm COVERAGE ±9.8% *SITE SHOWN IN RED EXISTING COTTAGE