®
®
date
project number
title
The drawings and written material herein constitute original work of the
architect, and as intellectual property and instruments of service, are
subject to copyright and may not be reproduced, distributed, published
or used in any way without the express written consent of the architect.
plotted:
revisions
sheet
original issue
project
landscape architect
223 NORTH GRAHAM ST
CHARLOTTE, NORTH CAROLINA 28202
704.333.0325
structural engineer
RAYMOND L. GOODSON (RLG)
12001 N. CENTRAL EXPY., SUITE 300
DALLAS, TEXAS 75243
214.739.8100
mechanical engineer
JJA, Inc.
8150 N. CENTRAL EXPY., SUITE M-2100
DALLAS, TEXAS 75206
214.739.8880
construction manager
HILL & WILKINSON
2703 TELECOM PKWY, STE 120
RICHARDSON, TEXAS 75082
214.299.4300
civil engineer
222 WEST LAS COLINAS BLVD.
IRVING, TEXAS 75039, SUITE 1405 N
214.785.6009
architecture interiors planning graphics
8070 Park Lane, Ste. 300 Dallas, Texas 75231
Tel 972.701.9000 Fax 972.991.3008
www.bokapowell.com
design architect
2520 BROADWAY ST.
BOULDER, COLORADO 80304
720.565.0505
client/owner
BRIGHT REALTY
2520 KING ARTHUR BLVD., SUITE 200
LEWISVILLE, TEXAS 75056
972.410.6600
10/25/20184:53:27PM
C:BOKAPREVIT_PROJECTSARCH_14149_THE_REALM_CENTRAL_v16_jessary.rvt
A0.01
INDEX SHEET
10.24.2018
PERMIT
14149.100
THE REALM AT CASTLE HILLS
LEWISVILLE, TEXAS
10.27.2017
10.27.2017
SHEET INDEX
SHEETNUMBER
SHEET NAME
WCPR06-07.18.2018
WCPR07-07.20.2018
ASI02-08.02.2018
WCPR08-08.07.2018
WCPR09-08.20.2018
ASI03-10.15.2018
WCPR10-10.24.2018
A5.13 WALL SECTIONS
A5.14 WALL SECTIONS ●
A5.15 WALL SECTIONS ●
A5.16 WALL SECTIONS
A5.70 SECTION DETAILS
A5.71 SECTION DETAILS ●
A5.72 SECTION DETAILS ● ●
A5.73 SECTION DETAILS ● ● ●
A5.74 SECTION DETAILS ● ●
A5.75 SECTION DETAILS ●
A5.76 SECTION DETAILS ● ●
A6.01 REFLECTED CEILING PLAN - LEVEL 1
A6.01a LEVEL 1 REFLECTED CEILING PLAN - AREA A
A6.01b LEVEL 1 REFLECTED CEILING PLAN - AREA B
A6.02 REFLECTED CEILING PLAN - LEVEL 2 ●
A6.03 REFLECTED CEILING PLAN - LEVEL 3
A6.04 REFLECTED CEILING PLAN - LEVEL 4
A6.05 REFLECTED CEILING PLAN - LEVEL 5
A6.06 REFLECTED CEILING PLAN - LEVEL 6
A6.07 REFLECTED CEILING PLAN - LEVEL 7
A6.08 REFLECTED CEILING PLAN - LEVEL 8 ●
A6.09 REFLECTED CEILING PLAN - LEVEL 9 ●
A6.41 ENLARGED REFLECTED CEILING PLANS
A6.42 ENLARGED REFLECTED CEILING PLANS
A6.43 ENLARGED REFLECTED CEILING PLANS
A6.70 CEILING DETAILS
A6.71 COVE DETAILS
A7.00 INTERIOR FINISH SCHEDULE
A7.01 INTERIOR FINISH PLAN - LEVEL 1
A7.02 INTERIOR FINISH PLAN - LEVEL 2
A7.03 INTERIOR FINISH PLAN - LEVEL 3
A7.04 INTERIOR FINISH PLAN - LEVEL 4
A7.05 INTERIOR FINISH PLAN - LEVEL 5
A7.06 INTERIOR FINISH PLAN - LEVEL 6
A7.07 INTERIOR FINISH PLAN - LEVEL 7
A7.08 INTERIOR FINISH PLAN - LEVEL 8
A7.09 INTERIOR FINISH PLAN - LEVEL 9
A7.10 ENLARGED INTERIOR FINISH PLANS
A7.11 ENLARGED INTERIOR FINISH PLANS
A7.12 ENLARGED INTERIOR FINISH PLANS
A7.40 INTERIOR ELEVATIONS
A7.41 INTERIOR ELEVATIONS
A7.42 INTERIOR ELEVATIONS
A7.43 INTERIOR ELEVATIONS
A7.44 INTERIOR ELEVATIONS
A7.45 INTERIOR ELEVATIONS
A7.46 INTERIOR ELEVATIONS
A7.47 INTERIOR ELEVATIONS
A7.48 INTERIOR ELEVATIONS
A7.49 INTERIOR ELEVATIONS
A7.50 INTERIOR ELEVATIONS
A7.51 INTERIOR ELEVATIONS
A7.52 INTERIOR RAILING DETAILS
A7.80 TILE DETAILS
A8.51 CASEWORK SECTIONS - SOLID SURFACING /
STONE
A8.70 FLOOR TRANSITION DETAILS
ARCHITECTURE - GARAGE
G0.21 LIFE SAFETY
G0.22 LIFE SAFETY
G0.23 LIFE SAFETY
G0.24 LIFE SAFETY
G0.25 LIFE SAFETY
G2.01 GARAGE FLOOR PLAN - LEVEL G1
G2.02 GARAGE FLOOR PLAN - LEVEL G2
G2.03 GARAGE FLOOR PLAN - LEVEL G3
G2.04 GARAGE FLOOR PLAN - LEVEL G4
G2.05 GARAGE FLOOR PLAN - LEVEL G5
G2.80 GARAGE PLAN DETAILS
G3.70 GARAGE VERTICAL CIRCULATION - ELEVATOR /
STAIR
G3.71 GARAGE VERTICALCIRCULAITON - STAIR
G3.72 GARAGE VERTICAL CIRCULATION - SECTIONS
G3.73 GARAGE VERTICAL CIRCULATION - SECTIONS
G3.74 GARAGE VERTICAL CIRCULATION - DETAILS
G3.75 GARAGE VERTICAL CIRCULATION - DETAILS
G3.90 GARAGE DETAILS
G3.91 GARAGE DETAILS
G4.00 GARAGE EXTERIOR ELEVATIONS
G4.01 GARAGE EXTERIOR ELEVATIONS
G4.10 GARAGE PRECAST PANEL ELEVATIONS
G4.11 GARAGE PRECAST PANEL ELEVATIONS
G4.12 GARAGE PRECAST PANEL ELEVATIONS
G4.13 GARAGE PRECAST PANEL ELEVATIONS
G4.14 GARAGE PRECAST PANEL ELEVATIONS
G4.70 GARAGE PRECAST PANEL DETAILS
G5.00 GARAGE BUILDING SECTIONS
G5.01 GARAGE BUILDING SECTIONS
G5.10 GARAGE WALL SECTIONS
G5.11 GARAGE WALL SECTIONS
G5.12 GARAGE WALL SECTIONS
G5.70 GARAGE SECTION DETAILS
G6.01 GARAGE REFLECTED CEILING PLAN - LEVEL G1
G6.02 GARAGE REFLECTED CEILING PLAN - LEVEL G2
G6.03 GARAGE REFLECTED CEILING PLAN - LEVEL G3
G6.04 GARAGE REFLECTED CEILING PLAN - LEVEL G4
G6.05 GARAGE REFLECTED CEILING PLANS - LEVEL G5
G6.30 GARAGE ENLARGED REFLECTED CEILING PLANS
G7.00 GARAGE INTERIOR ELEVATIONS
SHEET INDEX
SHEETNUMBER
SHEET NAME
WCPR06-07.18.2018
WCPR07-07.20.2018
ASI02-08.02.2018
WCPR08-08.07.2018
WCPR09-08.20.2018
ASI03-10.15.2018
WCPR10-10.24.2018
L6.03 SITE DETAILS
L6.04 SITE DETAILS
L6.05 SITE DETAILS
L6.06 SITE DETAILS
L6.07 SITE DETAILS
L6.08 SITE DETAILS
L6.09 SITE DETAILS
L6.10 SITE DETAILS
L6.20 SITE FURNITURE DETAILS
L6.21 SITE FURNITURE DETAILS
L6.22 SITE FURNITURE DETAILS
L6.23 SITE FURNITURE DETAILS
L6.24 SITE FURNITURE DETAILS
L6.30 SITE LIGHTING DETAILS
L6.31 SITE LIGHTING DETAILS
L6.32 SITE LIGHTING DETAILS
L7.00 SECTION KEY MAP
L7.01 SECTION A
L7.02 SECTION B
L7.03 SECTION C
L7.04 SECTION D
L7.05 SECTION E
ARCHITECTURE
A1.01 OVERALL SITE PLAN
A1.02 ENLARGED SITE PLAN
A1.03 SITE PLAN DETAILS
A2.01 FLOOR PLAN - LEVEL 1
A2.01a LEVEL 1 FLOOR PLAN - AREA A
A2.01b LEVEL 1 FLOOR PLAN - AREA B
A2.02 FLOOR PLAN - LEVEL 2
A2.02a LEVEL 2 FLOOR PLAN - AREA A
A2.02b LEVEL 2 FLOOR PLAN - AREA B
A2.03 FLOOR PLAN - LEVEL 3 ●
A2.04 FLOOR PLAN - LEVEL 4
A2.05 FLOOR PLAN - LEVEL 5
A2.06 FLOOR PLAN - LEVEL 6
A2.07 FLOOR PLAN - LEVEL 7
A2.08 FLOOR PLAN - LEVEL 8
A2.09 FLOOR PLAN - LEVEL 9
A2.10 ROOF PLAN ●
A2.50 ENLARGED PLANS
A2.51 ENLARGED PLANS ●
A2.52 ENLARGED PLANS ●
A2.53 ENLARGED PLANS
A2.54 ENLARGED PLANS
A2.55 ENLARGED PLANS ●
A2.56 ENLARGED PLANS
A2.57 ENLARGED PLANS ●
A2.58 ENLARGED PLANS ●
A2.59 ENLARGED PLANS ●
A2.71 ROOF DETAILS - SINGLE PLY
A2.72 ROOF DETAILS - SINGLE PLY
A2.73 ROOF DETAILS - SINGLE PLY
A2.80 PLAN DETAILS
A2.81 PLAN DETAILS ●
A2.82 PLAN DETAILS ●
A2.83 PLAN DETAILS
A2.84 PLAN DETAILS ●
A2.85 PLAN DETAILS ●
A2.86 PLAN DETAILS
A2.87 PLAN DETAILS ●
A2.88 ENLARGED PLAN DETAILS
A2.89 PLAN DETAILS ●
A3.00 PARTITION TYPES
A3.01 PARTITION TYPES
A3.05 STANDARD BLOCKING/BACKING DETAILS
A3.07 GYPSUM DETAILS
A3.10 DOOR TYPES & SCHEDULE
A3.14 EXTERIOR DOOR HEAD DETAILS
A3.15 INTERIOR DOOR HEAD DETAILS
A3.17 EXTERIOR DOOR JAMB DETAILS
A3.18 INTERIOR DOOR JAMB DETAILS
A3.20 DOOR SILL DETAILS
A3.23 SPECIALTY DOOR DETAILS
A3.30 WINDOW TYPES ●
A3.31 WINDOW TYPES
A3.32 WINDOW TYPES
A3.33 WINDOW TYPES
A3.34 WINDOW DETAILS
A3.35 WINDOW DETAILS
A3.60 ENLARGED STAIR PLANS & SECTIONS ●
A3.61 ENLARGED STAIR PLANS & SECTIONS
A3.62 ENLARGED ELEVATOR PLANS & SECTIONS
A3.70 CONCRETE FILLED METAL PAN STAIR DETAILS
A3.71 CONCRETE FILLED METAL PAN STAIR DETAILS
A3.76 LUMINOUS EGRESS PATH MARKINGS
A3.90 ELEVATOR DETAILS
A4.01 EXTERIOR ELEVATION - WEST ● ● ●
A4.01A 3D ELEVATION - WEST
A4.02 EXTERIOR ELEVATION - NORTH ●
A4.02A 3D ELEVATION - NORTH
A4.03 EXTERIOR ELEVATION - EAST ●
A4.03A 3D ELEVATION - EAST
A4.04 EXTERIOR ELEVATION - SOUTH ●
A4.04A 3D ELEVATION - SOUTH
A4.05 PARTIAL EXTERIOR ELEVATIONS
A4.10 ENLARGED ELEVATIONS
A4.11 ENLARGED ELEVATIONS
A5.01 BUILDING SECTION
A5.02 BUILDING SECTION ●
A5.03 BUILDING SECTION
A5.10 WALL SECTIONS ●
A5.11 WALL SECTIONS ●
A5.12 WALL SECTIONS ●
SHEET INDEX
SHEETNUMBER
SHEET NAME
WCPR06-07.18.2018
WCPR07-07.20.2018
ASI02-08.02.2018
WCPR08-08.07.2018
WCPR09-08.20.2018
ASI03-10.15.2018
WCPR10-10.24.2018
BC (8)-13 BARRICADE AND CONSTRUCTION CHANNELIZING
DEVICES
BC (9)-13 BARRICADE AND CONSTRUCTION CHANNELIZING
DEVICES
BC
(10)-13
BARRICADE AND CHANNELIZING DEVICES
BC
(11)-13
BARRICADE AND CONSTRUCTION PAVEMENT
MARKINGS
BC
(12)-13
BARRICADE AND CONSTRUCTION PAVEMENT
MARKING PATTERNS
CCCG-12 CONCRETE CURB AND CURB AND GUTTER
JS-94 CONCRETE PAVING DETAILS JOINT SEALS
PM (1)-12 TYPICAL STANDARD PAVEMENT MARKINGS
PM (2)-12 POSITION GUIDANCE USING RAISED MARKERS
REFLECTORIZED PROFILE MARKINGS
PM (3)-12 PAVEMENT MARKINGS FOR TWO-WAY LEFT TURN
LANES DIVIDED HIGHWAYS AND RURAL LEFT
TURN BAYS
TSR
(1)-13
TYPICAL SIGN REQUIREMENTS
TSR
(2)-13
TYPICAL SIGN REQUIREMENTS
TSR
(3)-13
TYPICAL SIGN REQUIREMENTS
TSR
(4)-13
TYPICAL SIGN REQUIREMENTS
TSR
(5)-13
TYPICAL SIGN REQUIREMENTS
SMD
(GEN)-08
SIGN MOUNTING DETAILS SMALL ROADSIDE SIGN
GENERAL NOTES & DETAILS
SMD
(SLIP-1)-0
8 (DAL)
SIGN MOUNTING DETAILS SMALL ROADSIDE
SIGNS TRIANGULAR SLIPBASE SYSTEM
SMD
(SLIP-2)-0
8
SIGN MOUNTING DETAILS SMALL ROADSIDE
SIGNS TRIANGULAR SLIPBASE SYSTEM
SMD
(SLIP-3)-0
8
SIGN MOUNTING DETAILS SMALL ROADSIDE
SIGNS TRIANGULAR SLIPBASE SYSTEM
IL-C CURB INLET TYPE C AND EXTENSION TYPE E
EC (1)-09 TEMPORARY EROSION, SEDIMENT, AND WATER
POLLUTION CONTROL MEASURES
EC (3)-93 TEMPORARY EROSION, SEDIMENT, AND WATER
POLLUTION CONTROL MEASURES
CP-TEP-0
3 (FW)
CONCRETE PAVEMENT TIES TO EXISTING
PAVEMENT
CRCP
(1)-13 1
OF 2
CONTINUOUSLY REINFORCED CONCRETE
PAVEMENT
CRCP
(1)-13 2
OF 2
CONTINUOUSLY REINFORCED CONCRETE
PAVEMENT
MISCELLANEOUS PIPE DETAILS
CSDD-00
(FW)
CONCRETE SIDEWALK AND DRIVEWAY DETAILS
VEGETATION ESTABLISHMENT SHEET
INLET AND MANHOLE CAPPING DETAIL
LANDSCAPE - FOR REFERENCE ONLY
L0.00 LANDSCAPE COVER SHEET
L0.01 GENERAL NOTES
L0.02 GENERAL NOTES
L0.03 GENERAL NOTES
L0.04 OVERALL SITE PLAN FUTURE
L0.05 OVERALL SITE PLAN PHASE 1A + 1B
L0.06 PUBLIC + PRIVATE BOUNDARIES
L0.07 ACCESSIBLE ROUTES
L1.00 SITE PLAN
L1.01 SITE PLAN ENLARGEMENT
L1.02 SITE PLAN ENLARGEMENT
L1.03 SITE PLAN ENLARGEMENT
L1.04 SITE PLAN ENLARGEMENT
L1.05 SITE PLAN ENLARGEMENT
L1.06 SITE PLAN ENLARGEMENT
L1.07 SITE PLAN SLAB
L2.00 LAYOUT PLAN
L2.01 LAYOUT PLAN ENLARGEMENT
L2.02 LAYOUT PLAN ENLARGEMENT
L2.03 LAYOUT PLAN ENLARGEMENT
L2.04 LAYOUT PLAN ENLARGEMENT
L2.05 LAYOUT PLAN ENLARGEMENT
L2.06 LAYOUT PLAN ENLARGEMENT
L3.00 SITE GRADING PLAN
L3.01 SITE GRADING PLAN ENLARGEMENT
L3.02 SITE GRADING PLAN ENLARGEMENT
L3.03 SITE GRADING PLAN ENLARGEMENT
L3.04 SITE GRADING PLAN ENLARGEMENT
L3.05 SITE GRADING PLAN ENLARGEMENT
L3.06 SITE GRADING PLAN ENLARGEMENT
L4.00 PLANTING PLAN
L4.01 PLANTING PLAN ENLARGEMENT
L4.02 PLANTING PLAN ENLARGEMENT
L4.03 PLANTING PLAN ENLARGEMENT
L4.04 PLANTING PLAN ENLARGEMENT
L4.05 PLANTING PLAN ENLARGEMENT
L4.06 PLANTING PLAN ENLARGEMENT
L4.10 SITE PLANTING DETAILS
L4.11 SITE PLANTING DETAILS
L4.12 SITE PLANTING DETAILS
L5.00 SITE LIGHTING PLAN
L5.01 LIGHTING PLAN ENLARGEMENT
L5.02 LIGHTING PLAN ENLARGEMENT
L5.03 LIGHTING PLAN ENLARGEMENT
L5.04 LIGHTING PLAN ENLARGEMENT
L5.05 LIGHTING PLAN ENLARGEMENT
L5.06 LIGHTING PLAN ENLARGEMENT
L6.00 SITE DETAILS
L6.01 SITE DETAILS
L6.02 SITE DETAILS
SHEET INDEX
SHEETNUMBER
SHEET NAME
WCPR06-07.18.2018
WCPR07-07.20.2018
ASI02-08.02.2018
WCPR08-08.07.2018
WCPR09-08.20.2018
ASI03-10.15.2018
WCPR10-10.24.2018
GENERAL LIFE & SAFETY
A0.00 COVER SHEET ● ● ● ● ●
A0.01 INDEX SHEET ● ● ● ● ●
A0.02 INDEX SHEET ● ● ● ● ●
A0.04 INFORMATION SHEET
A0.21 LIFE SAFETY PLAN - LEVEL 1
A0.22 LIFE SAFETY PLAN - LEVEL 2
A0.23 LIFE SAFETY PLAN - LEVEL 3
A0.24 LIFE SAFETY PLAN - LEVEL 4
A0.25 LIFE SAFETY PLAN - LEVEL 5
A0.26 LIFE SAFETY PLAN - LEVEL 6
A0.27 LIFE SAFETY PLAN - LEVEL 7
A0.28 LIFE SAFETY PLAN - LEVEL 8
A0.29 LIFE SAFETY PLAN - LEVEL 9
A0.30 TAS 2012 INFORMATION
A0.31 TAS 2012 INFORMATION
A0.40 CLEAR FLOOR SPACE
A0.45 TOILET ACCESSORIES
CIVIL - FOR REFERENCE ONLY
C0.00 CIVIL COVER SHEET
PAGE 1
OF 2
FINAL PLAT
PAGE 2
OF 2
FINAL PLAT
C1.00 GENERAL NOTES
C1.01 REFERENCE OVERALL PLAN
C1.02 SITE PLAN I
C1.03 SITE PLAN II
C1.04 SITE PLAN III
C1.05 DIMENSION CONTROL PLAN I
C1.06 DIMENSION CONTROL PLAN II
C2.00 PAVING PLAN I
C2.01 PAVING PLAN II
C2.02 TYPICAL SECTIONS
C3.00 GRADING PLAN I
C3.01 GRADING PLAN II
DAM 1 DRAINAGE AREA MAP
DAM 2 DRAINAGE AREA MAP
C4.01 DRAINAGE AREA MAP
C4.02 DRAINAGE CALCULATIONS
C4.03 STORM PLAN I
C4.04 STORM PLAN II
C4.05 STORM PROFILE A
C4.06 STORM PROFILE A & B
C4.07 STORM PROFILE D, E, F, & G
C4.08 STORM PROFILE LAT A
C4.09 STORM PROFILE LAT A, B, & D
C4.10 STORM PROFILE LAT E & F
C5.00 OVERALL UTILITY PLAN
C5.01 UTILITY PLAN I
C5.02 UTILITY PLAN II
C5.03 SS PROFILE A
C5.04 SS PROFILE A
C5.05 SS PROFILE A
C5.06 SS PROFILE B
C5.07 SS PROFILE LAT A & B
C5.08 WL PROFILE A I
C5.09 WL PROFILE A II
C5.10 WL PROFILE A III
C5.11 WL PROFILE B & C
C5.12 WL PROFILE LAT A
C5.13 WL PROFILE LAT C
C6.00 EROSION CONTROL PLAN
C6.01 EROSION CONTROL DETAILS
C7.00 PAVING DETAILS
C7.01 PAVING DETAILS
C7.02 PAVING DETAILS
C7.03 STORM DETAILS
C7.04 STORM DETAILS
C7.05 SANITARY SEWER DETAILS
C7.06 SANITARY SEWER DETAILS
C7.07 SANITARY SEWER DETAILS
C7.08 WATER DETAILS
C7.09 WATER DETAILS
C7.10 WATER DETAILS
C7.11 WATER DETAILS
C7.12 WATER DETAILS
1 OF 8 DEMOLITION PLAN - TXDOT TURN LANE 1
2 OF 8 PAVING PLAN - TXDOT TURN LANE 1
3 OF 8 STRIPING PLAN - TXDOT TURN LANE 1
4 OF 8 GRADING AND DRAINAGE PLAN - TXDOT TURN
LANE 1
5 OF 8 DEMOLITION PLAN - TXDOT TURN LANE 2
6 OF 8 PAVING PLAN - TXDOT TURN LANE 2
7 OF 8 STRIPING PLAN - TXDOT TURN LANE 2
8 OF 8 GRADING AND DRAINAGE PLAN - TXDOT TURN
LANE 2
TCP
(1-1)-12
TRAFFIC CONTROL PLAN CONVENTIONAL ROAD
SHOULDER WORK
TCP
(2-1)-12
TRAFFIC CONTROL PLAN CONVENTIONAL ROAD
SHOULDER WORK
TCP
(2-6)-12
TRAFFIC CONTROL PLAN LANE CLOSURES ON
DIVIDED HIGHWAYS
BC (1)-13 BARRICADE AND CONSTRUCTION GENERAL
NOTES AND REQUIREMENTS
BC (2)-13 BARRICADE AND CONSTRUCTION PROJECT LIMIT
BC (3)-13 BARRICADE AND CONSTRUCTION WORK ZONE
SPEED LIMIT
BC (4)-13 BARRICADE AND CONSTRUCTION TEMPORARY
SIGN NOTES
BC (5)-13 BARRICADE AND CONSTRUCTION TYPICAL SIGN
SUPPORT
BC (6)-13 BARRICADE AND CONSTRUCTION PORTABLE
CHANGEABLE MESSAGE SIGN (PCMS)
BC (7)-13 BARRICADE AND CONSTRUCTION ARROW PANEL,
REFLECTORS, WARNING LIGHTS, & ATTENUATOR
13 131313
1 Construction Documents 12.12.2017
2 Addendum 02 01.11.2018
3 WCPR 01 03.09.2018
4 WCPR 02 05.02.2018
5 WCPR 03 06.13.2018
6 WCPR 04 06.21.2018
7 WCPR 05 06.29.2018
8 ASI 01 07.06.2018
9 WCPR 06 07.18.2018
10 WCPR 07 07.20.2018
11 WCPR 08 08.07.2018
12 WCPR 09 08.20.2018
13 WCPR 10 10.24.2018
®
®
date
project number
title
The drawings and written material herein constitute original work of the
architect, and as intellectual property and instruments of service, are
subject to copyright and may not be reproduced, distributed, published
or used in any way without the express written consent of the architect.
plotted:
revisions
sheet
original issue
project
landscape architect
223 NORTH GRAHAM ST
CHARLOTTE, NORTH CAROLINA 28202
704.333.0325
structural engineer
RAYMOND L. GOODSON (RLG)
12001 N. CENTRAL EXPY., SUITE 300
DALLAS, TEXAS 75243
214.739.8100
mechanical engineer
JJA, Inc.
8150 N. CENTRAL EXPY., SUITE M-2100
DALLAS, TEXAS 75206
214.739.8880
construction manager
HILL & WILKINSON
2703 TELECOM PKWY, STE 120
RICHARDSON, TEXAS 75082
214.299.4300
civil engineer
222 WEST LAS COLINAS BLVD.
IRVING, TEXAS 75039, SUITE 1405 N
214.785.6009
architecture interiors planning graphics
8070 Park Lane, Ste. 300 Dallas, Texas 75231
Tel 972.701.9000 Fax 972.991.3008
www.bokapowell.com
design architect
2520 BROADWAY ST.
BOULDER, COLORADO 80304
720.565.0505
client/owner
BRIGHT REALTY
2520 KING ARTHUR BLVD., SUITE 200
LEWISVILLE, TEXAS 75056
972.410.6600
10/25/20184:53:34PM
C:BOKAPREVIT_PROJECTSARCH_14149_THE_REALM_CENTRAL_v16_jessary.rvt
A0.02
INDEX SHEET
10.24.2018
PERMIT
14149.100
THE REALM AT CASTLE HILLS
LEWISVILLE, TEXAS
10.27.2017
10.27.2017
SHEET INDEX.
SHEETNUMBER
SHEET NAME
WCPR06-07.18.2018
WCPR07-07.20.2018
ASI02-08.02.2018
WCPR08-08.07.2018
WCPR09-08.20.2018
ASI03-10.15.2018
WCPR10-10.24.2018
E2.03 LEVEL 3 ELECTRICAL PLANS
E2.04 LEVEL 4 ELECTRICAL PLANS
E2.05 LEVEL 5 ELECTRICAL PLANS
E2.06 LEVEL 6 ELECTRICAL PLANS
E2.07 LEVEL 7 ELECTRICAL PLANS
E2.08 LEVEL 8 ELECTRICAL PLANS
E2.09 LEVEL 9 ELECTRICAL PLANS
E2.10 ROOF POWER PLAN
E3.01 ELECTRICAL ENLARGED PLANS ●
E3.02 ELECTRICAL ENLARGED PLANS
E3.03 ELECTRICAL ENLARGED PLANS
E4.01 ELECTRICAL RISERS - OFFICE BUILDING ●
E4.02 ELECTRICAL RISERS ●
E5.01 ELECTRICAL DETAILS
E5.02 ELECTRICAL DETAILS
E5.03 LIGHTING CONTROL DIAGRAM
E5.04 LIGHTING CONTROL DIAGRAM
E5.05 LIGHTING CONTROL DIAGRAM
E5.06 LIGHTING CONTROL DIAGRAM
E5.07 LIGHTING CONTROL DIAGRAM
E5.08 LIGHTING CONTROL DIAGRAM
E5.09 LIGHTING CONTROL DIAGRAM
E5.10 LIGHTING CONTROL DIAGRAM
E6.01 ELECTRICAL LIGHTING AND RELAY PANEL
SCHEDULES
E6.02 ELECTRICAL SCHEDULES DISTRIBUTION PANELS
E6.03 ELECTRICAL SCHEDULES LIGHTING PANELS
E6.04 ELECTRICAL SCHEDULES GENERAL POWER
PANELS
●
E6.05 ELECTRICAL SCHEDULES GENERAL POWER
PANELS
E6.06 ELECTRICAL SCHEDULES EMERGENCY SYSTEMS ●
E6.07 ELECTRICAL SCHEDULES EMERGENCY SYSTEMS ●
ELECTRICAL GARAGE
GE2.01 GARAGE FIRST FLOOR PLAN - ELECTRICAL
GE2.02 GARAGE SECOND FLOOR PLAN - ELECTRICAL
GE2.03 GARAGE THIRD FLOOR PLAN - ELECTRICAL
GE2.04 GARAGE FOURTH FLOOR PLAN - ELECTRICAL
GE2.05 GARAGE FIFTH FLOOR PLAN - ELECTRICAL
GE6.01 ELECTRICAL SCHEDULES - GARAGE ●
PLUMBING
P0.00 PLUMBING AND FIRE PROTECTION COVER SHEET
P1.00 SITE PLAN - PLUMBING AND FIRE PROTECTION
P2.00 LEVEL 1 UNDERFLOOR PLAN - PLUMBING
P2.01 LEVEL 1 FLOOR PLAN - PLUMBING
P2.02 LEVEL 2 FLOOR PLAN - PLUMBING
P2.03 LEVEL 3 FLOOR PLAN - PLUMBING
P2.04 LEVEL 4 FLOOR PLAN - PLUMBING
P2.05 LEVEL 5 FLOOR PLAN - PLUMBING
P2.06 LEVEL 6 FLOOR PLAN - PLUMBING
P2.07 LEVEL 7 FLOOR PLAN - PLUMBING
P2.08 LEVEL 8 FLOOR PLAN - PLUMBING
P2.09 LEVEL 9 FLOOR PLAN - PLUMBING
P2.10 ROOF PLAN - PLUMBING
P3.01 ENLARGED FLOOR PLANS - PLUMBING
P3.02 ENLARGED FLOOR PLANS - PLUMBING
P3.03 ENLARGED FLOOR PLAN - PLUMBING
P4.01 FIRE PROTECTION AND PLUMBING DIAGRAMS
P4.02 PLUMBING WATER RISER DIAGRAM
P4.03 PLUMBING SANITARY RISER DIAGRAM
P4.04 PLUMBING SANITARY RISER DIAGRAM
P5.01 PLUMBING DETAILS AND DIAGRAMS
P5.02 PLUMBING DETAILS AND DIAGRAMS
P5.03 PLUMBING DETAILS AND DIAGRAMS
P6.01 PLUMBING SCHEDULES
PLUMBING GARAGE
GP2.00 GARAGE UNDERFLOOR PLAN - PLUMBING
GP2.01 GARAGE FIRST FLOOR PLAN - PLUMBING
GP2.02 GARAGE SECOND FLOOR PLAN - PLUMBING
GP2.03 GARAGE THIRD FLOOR PLAN - PLUMBING
GP2.04 GARAGE FOURTH FLOOR PLAN - PLUMBING
GP2.05 GARAGE FIFTH FLOOR PLAN - PLUMBING
GP3.01 GARAGE ENLARGED PLANS - PLUMBING
SHEET INDEX.
SHEETNUMBER
SHEET NAME
WCPR06-07.18.2018
WCPR07-07.20.2018
ASI02-08.02.2018
WCPR08-08.07.2018
WCPR09-08.20.2018
ASI03-10.15.2018
WCPR10-10.24.2018
STRUCTURAL
S1.01 STRUCTURAL ABBREVIATIONS AND LEGEND
S1.02 GENERAL NOTES
S1.03 GENERAL NOTES (CONTINUED)
S1.04 SPECIAL INSPECTIONS
S1.05 SPECIAL INSPECTIONS (CONTINUED)
S2.01 LEVEL 1 FOUNDATION PLAN ●
S2.02 LEVEL 2 FRAMING PLAN
S2.03 LEVEL 3 FRAMING PLAN ●
S2.04 LEVEL 4 FRAMING PLAN ●
S2.05 LEVEL 5 FRAMING PLAN ●
S2.06 LEVEL 6 FRAMING PLAN
S2.07 LEVEL 7 FRAMING PLAN
S2.08 LEVEL 8 FRAMING PLAN ●
S2.09 LEVEL 9 FRAMING PLAN ●
S2.09.5 PRECAST PANEL / CURTAIN WALL BRACING PLAN
S2.10 ROOF FRAMING PLAN ●
S2.11 PARTIAL PLANS
S2.12 ENLARGED ELEVATOR PLANS
S2.13 ENLARGED STAIR PLANS ●
S2.14 PARTIAL PLANS ●
S3.01 COLUMN SCHEDULE
S3.10 CONCRETE GIRDER SCHEDULES
S3.11 CONCRETE BEAM SCHEDULE ●
S4.01 TYPICAL DETAILS - PIER AND SLAB-ON-GRADE
S4.02 TYPICAL DETAILS - ELEVATOR AND STAIR
S4.05 TYPICAL DETAILS - CMU WALL
S4.10 TYPICAL DETAILS - ELEVATED CONCRETE
FRAMING
S4.11 TYPICAL DETAILS - ELEVATED CONCRETE
FRAMING
S4.12 TYPICAL DETAILS - ELEVATED PT CONCRETE
FRAMING
S4.20 TYPICAL DETAILS - STEEL FRAMING
S5.01 FOUNDATION PILASTER PLAN DETAILS
S5.02 FOUNDATION PILASTER PLAN DETAILS
S5.03 FOUNDATION PILASTER PLAN DETAILS
S5.05 FOUNDATION SECTIONS AND DETAILS
S5.06 FOUNDATION SECTIONS AND DETAILS
S6.01 FRAMING SECTIONS AND DETAILS ●
S6.02 FRAMING SECTIONS AND DETAILS ●
S6.03 FRAMING SECTIONS AND DETAILS
S6.04 FRAMING SECTIONS AND DETAILS ●
S6.05 FRAMING SECTIONS AND DETAILS ●
S6.06 FRAMING SECTIONS AND DETAILS ●
S6.07 FRAMING SECTIONS AND DETAILS
S6.10 FRAMING SECTIONS AND DETAILS
S6.11 FRAMING SECTIONS AND DETAILS ●
S7.01 FRAMING SECTIONS AND DETAILS ●
S7.02 FRAMING SECTIONS AND DETAILS
STRUCTURAL - GARAGE
GS2.01 GARAGE FOUNDATION PLAN
GS2.02 GARAGE ENLARGED PLANS
GS4.01 TYPICAL DETAILS - FOUNDATIONS
GS4.02 TYPICAL DETAILS - SLAB-ON-GRADE
GS5.01 FOUNDATION SECTIONS AND DETAILS
GS5.02 FOUNDATION SECTIONS AND DETAILS
MECHANICAL
M0.00 HVAC COVER SHEET
M0.01 HVAC COMCHECK SHEET
M2.01 LEVEL 1 FLOOR PLAN - HVAC
M2.02 LEVEL 2 FLOOR PLAN - HVAC
M2.03 LEVEL 3 FLOOR PLAN - HVAC
M2.04 LEVEL 4 FLOOR PLAN - HVAC
M2.05 LEVEL 5 FLOOR PLAN - HVAC
M2.06 LEVEL 6 FLOOR PLAN - HVAC
M2.07 LEVEL 7 FLOOR PLAN - HVAC
M2.08 LEVEL 8 FLOOR PLAN - HVAC
M2.09 LEVEL 9 FLOOR PLAN - HVAC
M2.10 ROOF PLAN - HVAC
M3.01 ENLARGED PLANS - HVAC
M4.01 HVAC RISERS
M4.02 HVAC RISERS
M4.03 HVAC RISERS
M5.01 MECHANICAL DETAILS
M5.02 MECHANICAL DETAILS
M5.03 MECHANICAL DETAILS
M5.04 MECHANICAL DETAILS
M6.01 MECHANICAL SCHEDULES
M6.02 MECHANICAL SCHEDULES
M6.03 MECHANICAL SCHEDULES
M7.01 MECHANICAL CONTROLS
M7.02 MECHANICAL CONTROLS
MECHANICAL - GARAGE
GM2.01 GARAGE FIRST FLOOR PLAN - HVAC
GM2.02 GARAGE SECOND FLOOR PLAN - HVAC
GM2.03 GARAGE THIRD FLOOR PLAN - HVAC
GM2.04 GARAGE FOURTH FLOOR PLAN - HVAC
GM6.01 PARKING GARAGE MECHANICAL SCHEDULES
ELECTRICAL
E0.00 ELECTRICAL COVER SHEET
E1.00 ELECTRICAL SITE PLAN
E1.01 PARTIAL ELECTRICAL SITE PLAN
E1.02 PARTIAL ELECTRICAL SITE PLAN
E1.03 PARTIAL ELECTRICAL SITE PLAN
E1.04 PARTIAL ELECTRICAL SITE PLAN
E1.05 PARTIAL ELECTRICAL SITE PLAN
E1.06 PARTIAL ELECTRICAL SITE PLAN
E2.01A LEVEL 1 POWER PLAN
E2.01B LEVEL 1 LIGHTING PLAN
E2.02A LEVEL 2 POWER PLAN ● ●
E2.02B LEVEL 2 LIGHTING PLAN
14 14
1 Construction Documents 12.12.2017
2 Addendum 02 01.11.2018
3 WCPR 01 03.09.2018
4 WCPR 02 05.02.2018
5 WCPR 03 06.13.2018
6 WCPR 04 06.21.2018
7 WCPR 05 06.29.2018
8 ASI 01 07.06.2018
9 WCPR 06 07.18.2018
10 WCPR 07 07.20.2018
11 ASI 02 08.02.2018
12 WCPR 08 08.07.2018
13 WCPR 09 08.20.2018
14 WCPR 10 10.24.2018
SLOPE
SLOPE
SLOPE
1/4"PERFT
SLOPE
1/4"PERFT
SLOPE
1/4"PERFT
SLOPE
1/4"PERFT
SLOPE
1/4"PERFT
SLOPE
1/4"PERFT
SLOPE
1/4"PERFT
SLOPE
1/4"PERFT
D
F
C
134567810 01
A5.01
01
A5.02
03
A5.10
02
A5.10
01
A5.10
02
A5.13
01
A5.13
04
A5.12
03
A5.12
04
A5.10
A
A.2
E.8
29 03
A5.11
B
E
03
A5.13
01
A5.03
02
A5.12
01
A5.12
02
A5.11
04
A5.11
MECHANICAL
1001
1
01
A5.11
62' - 7 1/256" 121' - 7" 62' - 7 1/2"
246' - 9 1/2"
162' - 7 3/4"
1' - 3 7/8" 160' - 0" 1' - 3 7/8"
62' - 7" 121' - 7" 62' - 7 1/2"
246' - 9 1/2"
/10 A2.71
/10 A2.71
7.8 3.2
01
A5.14
02
A5.14
CONCRETE COLUMN, (TYP.)
REF. STRUCTURAL
DRAWINGS
3
3
EDGE OF WALL BELOW
EDGE OF WALL BELOW
7' - 9 5/8"
/01 A2.57
1001
1003
/01 A2.58
16'-0"
04
A5.13
SLOPE 1/4" PER FOOT
06
A2.57
VESTIBULE
1002
SLOPE 1/4" PER FOOT
1002
ELEV
CONTROLS
1003
ELECTRICAL
1004
1004
4
5
4
5
4
5
4
5
6
6
6
2
TYP.
/01 A2.58
O.H.
8
8
7
7
1'-2"
6'-37/8"5'-0"15'-0"5'-0"15'-0"5'-0"15'-0"5'-0"15'-0"
5'-0"
6'-37/8"
1'-21/4"
3' - 0" 3' - 0"
3'-05/8"3'-05/8"3'-05/8"3'-05/8"
3' - 0" 3' - 0"
6' - 3 7/8" 5' - 0"
5 5/8"
12' - 0 3/8" 5' - 0" 12' - 6" 5' - 0" 7' - 11 5/8" 10' - 0" 5' - 0" 10' - 3" 4' - 6" 10' - 0" 5' - 0" 10' - 6" 4' - 6" 10' - 0" 5' - 3" 10' - 0" 5' - 0" 10' - 0" 5' - 0" 10' - 0" 7' - 9 1/4" 5' - 0" 12' - 6" 5' - 0" 12' - 6" 5' - 0" 6' - 3 7/8" 6' - 8 7/8"
5' - 8 3/4" 18' - 7 3/4" 12' - 10" 17' - 4" 13' - 10" 17' - 4" 12' - 10" 18' - 7 3/4" 4' - 4 3/4"
20' - 1 5/8" 20' - 1 5/8" 20' - 1 5/8" 2' - 9 3/4"2' - 9 3/4" 20' - 1 5/8" 20' - 1 5/8" 20' - 1 5/8"
2'-17/8"22'-65/8"20'-0"20'-0"20'-0"20'-0"22'-65/8"2'-17/8"
/05 A3.60
STAIR #1
1000
1000
/05 A2.58
10.1
D.7
D.3
11
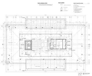
ROOF PLAN KEY NOTES
X
1
2
ROOF HATCH
ELEVATOR OVERRUN
3 ROOF STRUCTURE ABOVE - REF. SECTION 01/A5.02
4 ROOF PARAPET
5 METAL PANEL CLAD CANOPY BELOW
6 ROOFTOP MECHANICAL EQUIPMENT,
REF. MECHANICAL DRAWINGS
7 ROOF ANCHOR, TYP.
8 6.625" DIA. GALVANIZED STEEL PASS
THROUGH ROPE GUIDE, TYP.
ROOF LEGEND
OD RD
ROOF DRAIN / OVERFLOW DRAIN
SLOPE
1/4" PER FT
ELEVATION SPOT171'-0"
WALK PAD
SLOPE DIRECTION
ROOF GENERAL NOTES:
1. GENERAL CONTRACTOR TO PROVIDE WALKPADS FROM ROOF HATCH
TO ALL ROOFTOP EQUIPMENT, FINAL LAYOUT TO BE DETERMINED
®
®
date
project number
title
The drawings and written material herein constitute original work of the
architect, and as intellectual property and instruments of service, are
subject to copyright and may not be reproduced, distributed, published
or used in any way without the express written consent of the architect.
plotted:
revisions
sheet
original issue
project
landscape architect
223 NORTH GRAHAM ST
CHARLOTTE, NORTH CAROLINA 28202
704.333.0325
structural engineer
RAYMOND L. GOODSON (RLG)
12001 N. CENTRAL EXPY., SUITE 300
DALLAS, TEXAS 75243
214.739.8100
mechanical engineer
JJA, Inc.
8150 N. CENTRAL EXPY., SUITE M-2100
DALLAS, TEXAS 75206
214.739.8880
construction manager
HILL & WILKINSON
2703 TELECOM PKWY, STE 120
RICHARDSON, TEXAS 75082
214.299.4300
civil engineer
222 WEST LAS COLINAS BLVD.
IRVING, TEXAS 75039, SUITE 1405 N
214.785.6009
architecture interiors planning graphics
8070 Park Lane, Ste. 300 Dallas, Texas 75231
Tel 972.701.9000 Fax 972.991.3008
www.bokapowell.com
design architect
2520 BROADWAY ST.
BOULDER, COLORADO 80304
720.565.0505
client/owner
BRIGHT REALTY
2520 KING ARTHUR BLVD., SUITE 200
LEWISVILLE, TEXAS 75056
972.410.6600
10/25/20184:53:43PM
C:BOKAPREVIT_PROJECTSARCH_14149_THE_REALM_CENTRAL_v16_jessary.rvt
A2.10
ROOF PLAN
10.24.2018
PERMIT
14149.100
THE REALM AT CASTLE HILLS
LEWISVILLE, TEXAS
10.27.2017
10.27.2017
PLAN
NORTH
TRUE
NORTH
SCALE: 1/8" = 1'-0"01 ROOF PLAN
1 Construction Documents 12.12.2017
2 WCPR 01 03.09.2018
3 WCPR 04 06.21.2018
4 WCPR 10 10.24.2018
4
4
UP
D
C
4567
17' - 7" 30' - 0" 30' - 0" 30' - 0" 17' - 7"
5' - 8" 4' - 6 7/8" 5' - 0 3/8" 24' - 7" 5' - 7 3/4" 11' - 11 1/4" 10' - 3 1/2" 11' - 9 1/8" 15' - 6 5/8" 14' - 5 3/8" 10' - 5 3/8" 5' - 2 3/4"
30'-0"
1'-6"27'-0"1'-6"
22'-31/4"3'-1"4'-73/4"
9'-7"12'-81/4"3'-1"4'-73/4"
6'-61/2"4'-91/2"3'-8"3'-8"11'-4"
18'-73/8"6'-0"5'-45/8"
/03 A3.60
/03 A3.61
302A
304A303A
306A
307A
308A
311A
312A
/02 A3.62
WOMEN
304
MEN
303
RESTROOM
LOBBY
305
JANITOR
306
STORAGE
307
ELEVATOR
LOBBY
301
SERVICE
VESTIBULE
308
FAN
311
STAIR #2
312
STAIR #1
302
6'-61/2"20'-81/2"2'-9"
6'-61/2"20'-5"3'-01/2"
8' - 6"11' - 11 1/4"
ELECTRICAL
310
PHONE
309
/02 A2.55
1'-71/2"1'-5"
RECESSED FIRE EXTINGUISHER
CABINEET
RECESSED FIRE
EXTINGUISHER
CABINEET
CONCRETE COLUMN, REF.
STRUCTURAL DRAWINGS
1' - 10" 2' - 6 1/8"
CONCRETE COLUMN, REF.
STRUCTURAL DRAWINGS
RECESSED FIRE EXTINGUISHER
CABINET
SLAB OPENING, REF. STRUCTURAL
AND ELECTRICAL DRAWINGS
H4
F3
F3
F3F3
H2
H2
H2
C4
C2
D3D3
H6 C4
F2
H3
F2
F2 H3 F2
F2
F2F2
H3
H4
C2
C2
F3F3
F3F3
F3
C2
C2
F3F3
F3F3
D3D3
D3D3
D3D3
D3
C2
D3
F3
H3H3F2F2
F2F2
H3 F2
F2D3
F2 F2
D3
C2
C2
D3C2C2
D3
D3 D3
F2F2F2 F2
D5C2
C2
G2
D3D3 D3D3D3D3D3
C2
C2
C2
125' - 2"
2
D
C
4567
/04 A3.60
/04 A3.61
WOMEN
904
MEN
903
RESTROOM
LOBBY
905
JANITOR
906
ELEVATOR
LOBBY
901
STORAGE
907
SERVICE
VESTIBULE
908
STAIR #2
912
STAIR #1
902
/02 A3.62
904A903A
906A
907A
908A
912A
902A
125' - 2"
17' - 7" 30' - 0" 30' - 0" 30' - 0" 17' - 7"
5' - 8" 4' - 6 7/8" 5' - 0 3/8" 24' - 6 3/4" 5' - 8" 22' - 2 3/4" 10' - 10 1/4" 30' - 10 7/8" 10' - 5 3/8" 5' - 2 3/4"
1'-6"27'-0"1'-6"
22'-41/4"3'-0"4'-73/4"
9'-71/8"12'-91/8"3'-0"4'-73/4"
6'-91/2"20'-21/2"3'-0"
6'-61/2"20'-5"3'-01/2"
6'-91/2"4'-61/2"3'-8"3'-8"11'-4"
ELECTRICAL
910
PHONE
909
FAN
911
/02 A2.55
1' - 10" 2' - 5" CONCRETE COLUMN, REF.
STRUCTURAL DRAWINGS
RECESSED FIRE EXTINGUISHER
CABINET
MECHANICAL EQUIPMENT,
REF. MECHANICAL DRAWINGS
CONCRETE COLUMN, REF.
STRUCTURAL DRAWINGS
RECESSED FIRE EXTINGUISHER
CABINET
1'-71/4"
1'-51/8"
4'-23/4"4'-0"4'-91/2"4'-0"3'-43/4"
CONCRETE COLUMN, REF.
STRUCTURAL DRAWINGS
22'-41/4"7'-73/4"
RECESSED FIRE
EXTINGUISHER
CABINET
SLAB OPENING, REF. STRUCTURAL
AND ELECTRICAL DRAWINGS
C2
C4
F3F3F3
F3 H6H4
C4
C2
C2
H2H2
C2
F3 F3F3
F3F3
F3
F3
F3F3
F3F3
D3D3
D3D3
D3
D3D3D3
C2
C2 C2
D3D3D3 D3
C2
C2
D3D3D3
C2C2
C2
F2F2F2F2
C2 C2
G2
D5
D3D3D3 D3
C2
D3D3D3D3
F2F2F2F2
C2
F2
H3
F2F2
F2
F2 H3H3
30'-0"
3'-13/4"4'-0"5'-11"4'-0"3'-13/4"
4' - 6" 5' - 0" 5' - 8"
2
®
®
date
project number
title
The drawings and written material herein constitute original work of the
architect, and as intellectual property and instruments of service, are
subject to copyright and may not be reproduced, distributed, published
or used in any way without the express written consent of the architect.
plotted:
revisions
sheet
original issue
project
landscape architect
223 NORTH GRAHAM ST
CHARLOTTE, NORTH CAROLINA 28202
704.333.0325
structural engineer
RAYMOND L. GOODSON (RLG)
12001 N. CENTRAL EXPY., SUITE 300
DALLAS, TEXAS 75243
214.739.8100
mechanical engineer
JJA, Inc.
8150 N. CENTRAL EXPY., SUITE M-2100
DALLAS, TEXAS 75206
214.739.8880
construction manager
HILL & WILKINSON
2703 TELECOM PKWY, STE 120
RICHARDSON, TEXAS 75082
214.299.4300
civil engineer
222 WEST LAS COLINAS BLVD.
IRVING, TEXAS 75039, SUITE 1405 N
214.785.6009
architecture interiors planning graphics
8070 Park Lane, Ste. 300 Dallas, Texas 75231
Tel 972.701.9000 Fax 972.991.3008
www.bokapowell.com
design architect
2520 BROADWAY ST.
BOULDER, COLORADO 80304
720.565.0505
client/owner
BRIGHT REALTY
2520 KING ARTHUR BLVD., SUITE 200
LEWISVILLE, TEXAS 75056
972.410.6600
10/19/201811:32:23AM
C:BOKAPREVIT_PROJECTSARCH_14149_THE_REALM_CENTRAL_v16_jessary.rvt
A2.52
ENLARGED PLANS
10.24.2018
PERMIT
14149.100
THE REALM AT CASTLE HILLS
LEWISVILLE, TEXAS
10.27.2017
10.27.2017
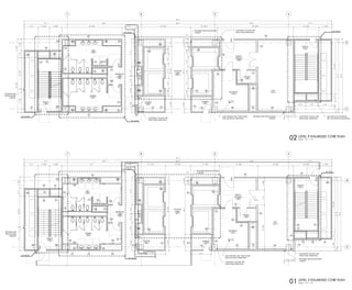
SCALE: 1/4" = 1'-0"01 LEVEL 3 ENLARGED CORE PLAN
SCALE: 1/4" = 1'-0"02 LEVEL 9 ENLARGED CORE PLAN
1 WCPR 01 03.09.2018
2 WCPR 10 10.24.2018
D
C
4
5
02/A4.10
01/A4.10
03/A4.10
04/A4.10
MECHANICAL
1001
1003
1001
1'-61/2"27'-0"1'-10"
30'-41/2"
9' - 6 5/8" 8' - 2"
1' - 6 1/2" 23' - 11 1/4" 14' - 3 5/8" 8' - 11 3/8"
48' - 8 3/4"
2' - 8 3/4" 28' - 10 1/4" 8' - 2 7/8" 8' - 11 3/8"
18'-41/4"12'-01/4"
11'-93/8"
46' - 0 1/2"
05
A2.72
03
A2.57
ROOF DRAIN &
OVERFLOW DRAIN
04
A2.57
1002
05
A2.72
ELECTRICAL
1004
VESTIBULE
1002
ELEV
CONTROLS
1003
H3
H3
H1
1004
F2
C
ROOF
EL. 235' - 2"
PENTHOUSE
EL. 248' - 1 1/2"
CAST IN PLACE
CONCONRETE WALL
4" RIBBED METAL
PANEL WALL
BATT INSULATION,
R-19 MIN.
/09 A2.57
D
C
02/A4.10
01/A4.10
03/A4.10
04/A4.10
03
A2.57
04
A2.57
PREFINISHED SHEET METAL GUTTER
SPLASH BLOCK
SLOPE 1/4" PER FOOT
05
A2.57
5
ROOF
EL. 235' - 2"
PENTHOUSE
EL. 248' - 1 1/2"
CAST IT PLACE
CONCRETE WALL
/08 A2.57
4" FORMED METAL
WALL PANEL
BATT INSULATION,
R-19 MIN.
COMPOSITE METAL DECK,
REFER TO STRUCTURAL
CONCRETE ROOF SLAB,
REFER TO STRUCTURAL
/09 A2.57
O.H.
PRE-FINISHED METAL
PANEL, TYPICAL
CONTINOUS CLEAT AND
SHEET METAL FASCIA TRIM
PRE-FINISHED SHEET
METAL GUTTER
SINGLE PLY ROOF
MEMBRANE, LAP OVER
BLOCKING AT FASCIA
TREATED 2x BLOCKING
SELF ADHERED
VAPOR BARRIER
DOWNSPOUT,
BEYOND
FLEXIBLE FLASHING - LAP
FROM ROOF DECK TO FLUID
APPLIED MOISTURE BARRIER
GUTTER BRACKET WITH
FASTENERS TO BLOCKING
SHEET METAL OR MEMBRANE
COATED METAL TRIM / FASCIA
MEMBRANE FLASHING - BOND
TO ROOF MEMBRANE & METAL
TRIM PER MANUFACTURER
RIGID INSULATION AND
COVER BOARD
EXTERIOR SHEATHING,
TYPICAL
THERMAL BARRIER
5
ROOF
EL. 235' - 2"
4" FORMED METAL PANEL, TYPICAL
FLEXIBLE FLASHING, LAP OVER METAL
FLASHING, TYPICAL
TRIM /CLOSURE AT METAL PANEL FLASH
AT WALL CONNECTION & PROVIDE
WEEP DRAINAGE AS REQUIRED
TWO PIECE COUNTER
FLASHING SYSTEM
TERMINATION BAR & FASTENER
EXTERIOR SHEATHING, TYPICAL
AIR/MOISTURE BARRIER
CAST IN PLACE CONCRETE WALL
RIGID INSULATION
EMBEAD PLATE, REFER TO
STRUCTURAL
COMPOSITE METAL DECK,
REFER TO STRUCTURAL
CONCRETE ROOF SLAB,
REFER TO STRUCTURAL
COVER BOARD
SINGLE-PLY MEMBRANE
FLASHING EXTENDED OVER
ROOF MEMBRANE
SINGLE PLY ROOF
MEMBRANE
ROOF
EL. 235' - 2"
4" FORMED METAL
WALL PANEL BEYOND
CAST IN PLACE
CONCRETE WALL,
REFER TO STRUCTURAL
SINGLE PLY ROOF
MEMBRANE
RIGID INSULATION
1/2" COVERBOARD
AIR & MOISTURE
BARRIER
1/2" EXTERIOR
SHEATHING
ROOF
EL. 235' - 2"
4" RIBBED METAL
PANEL MECHANICAL
SCREEN WALL
CONCRETE
COLUMN BEYOND,
REF. STRUCTURAL
DRAWINGS
13'-8"1'-4"
15'-0"
PRE-FINISHED METAL
PANEL, TYPICAL
SINGLE PLY ROOF
MEMBRANE, LAP OVER
BLOCKING AT FASCIA
TREATED 2x BLOCKING
SELF ADHERED
VAPOR BARRIER
FLEXIBLE FLASHING - LAP
FROM ROOF DECK TO FLUID
APPLIED MOISTURE BARRIER
SHEET METAL OR
MEMBRANE COATED
METAL TRIM / FASCIA
MEMBRANE FLASHING - BOND
TO ROOF MEMBRANE & METAL
TRIM PER MANUFACTURER
RIGID INSULATION
AND COVER BOARD
EXTERIOR SHEATHING,
TYPICAL
THERMAL BARRIER
®
®
date
project number
title
The drawings and written material herein constitute original work of the
architect, and as intellectual property and instruments of service, are
subject to copyright and may not be reproduced, distributed, published
or used in any way without the express written consent of the architect.
plotted:
revisions
sheet
original issue
project
landscape architect
223 NORTH GRAHAM ST
CHARLOTTE, NORTH CAROLINA 28202
704.333.0325
structural engineer
RAYMOND L. GOODSON (RLG)
12001 N. CENTRAL EXPY., SUITE 300
DALLAS, TEXAS 75243
214.739.8100
mechanical engineer
JJA, Inc.
8150 N. CENTRAL EXPY., SUITE M-2100
DALLAS, TEXAS 75206
214.739.8880
construction manager
HILL & WILKINSON
2703 TELECOM PKWY, STE 120
RICHARDSON, TEXAS 75082
214.299.4300
civil engineer
222 WEST LAS COLINAS BLVD.
IRVING, TEXAS 75039, SUITE 1405 N
214.785.6009
architecture interiors planning graphics
8070 Park Lane, Ste. 300 Dallas, Texas 75231
Tel 972.701.9000 Fax 972.991.3008
www.bokapowell.com
design architect
2520 BROADWAY ST.
BOULDER, COLORADO 80304
720.565.0505
client/owner
BRIGHT REALTY
2520 KING ARTHUR BLVD., SUITE 200
LEWISVILLE, TEXAS 75056
972.410.6600
10/25/20184:53:47PM
C:BOKAPREVIT_PROJECTSARCH_14149_THE_REALM_CENTRAL_v16_jessary.rvt
A2.57
ENLARGED PLANS
10.24.2018
PERMIT
14149.100
THE REALM AT CASTLE HILLS
LEWISVILLE, TEXAS
10.27.2017
10.27.2017
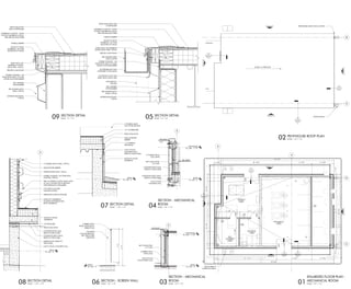
SCALE: 1/4" = 1'-0"01
ENLARGED FLOOR PLAN -
MECHANICAL ROOM
SCALE: 1/4" = 1'-0"03
SECTION - MECHANICAL
ROOM
SCALE: 1/4" = 1'-0"02 PENTHOUSE ROOF PLAN
SCALE: 1/4" = 1'-0"04
SECTION - MECHANICAL
ROOM
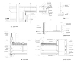
SCALE: 3" = 1'-0"05 SECTION DETAIL
SCALE: 1 1/2" = 1'-0"08 SECTION DETAIL
SCALE: 1 1/2" = 1'-0"07 SECTION DETAIL
SCALE: 1/4" = 1'-0"06 SECTION - SCREEN WALL
SCALE: 3" = 1'-0"09 SECTION DETAIL
1 Construction Documents 12.12.2017
2 WCPR 01 03.09.2018
3 WCPR 04 06.21.2018
4 WCPR 10 10.24.2018
4
4
4
F
4567
E.8
G
H
E
02
A2.58
6 1/2" 15' - 3" 30' - 0" 30' - 0" 30' - 0" 15' - 3" 6 1/2"
121' - 7"
27'-51/2"
ROOF BELOW
PARAPET CAP BELOW
PARAPET CAP BELOW
/04 A2.58
/03 A2.58
STEEL COLUMN BELOW, REF.
STRUCTURAL DRAWINGS
STEEL BEAM BELOW, REF.
STRUCTURAL DRAWINGS
ALUMINUM COMPOSITE PANEL
BELOW
06
A5.15
T.O. PARAPET
EL. 239' - 8"
FLUID APPLIED MEMBRANE AIR BARRIER
1/2" EXTERIOR SHEATHING
ALUMINUM COMPOSITE PANEL
BEYOND
STEEL BEAM, REF. STRUCTURAL
DRAWINGS
2 5/8" COLD FORMED METAL FRAMING
CEILING PANEL SYSTEM
SINGLE PLY ROOF MEMBRANE
1/2" COVER BOARD
1 1/2" METAL DECK
ALUMINUM COMPOSITE PANEL
PRECAST ARCHITECTURAL
CONCRETE BEYOND
4"
L3X3X1/4 OUTRIGGER @ 48" O.C.
61/2"
6"
CONTINUOUS L1 1/2X1 1/2X1/4 EDGE ANGLE
CONTINUOUS C4X5.4 CHANNEL
L3X3X1/4 KICKER @ EACH OUTRIGGER
GUSSET PLATE
F
E
ROOF CANOPY EDGE ABOVE
ALUMINUM COMPOSITE
PANEL
1/2" EXTERIOR SHEATHING
FLUID APPLIED MEMBRANE
AIR BARRIER
6" COLD FORMED METAL
FRAMING
STEEL COLUMN, REF.
STRUCTURAL DRAWINGS
3 5/8" COLD FORMED
METAL FRAMING
6" COLD FORMED
METAL FRAMING
FLUID APPLIED MEMBRANE
AIR BARRIER
1/2" EXTERIOR SHEATHING
7/8" HAT CHANNEL
STEEL COLUMN, REF.
STRUCTURAL DRAWINGS
ROOF CANOPY EDGE ABOVE
10'-43/4"93/4"
37/8"
ALUMINUM COMPOSITE
PANELS
F
E.8
PRECAST ARCHITECTURAL
CONCRETE BELOW
ALUMINUM COMPOSITE PANEL
1/2" EXTERIOR SHEATHING
6" COLD FORMED METAL FRAMING
BATT INSULATION
1/2" EXTERIOR SHEATHING
SINGLE PLY RWF MEMBRANE
STEEL COLUMN, REF. STRUCTURAL
DRAWINGS
3 5/8" COLD FORMED METAL
FRAMING
6" COLD FORMED METAL
FRAMING
ALUMINUM COMPOSITE PANEL
7/8" HAT CHANNEL
C
7
07/A4.10
06/A4.10
08/A4.10
05/A4.10
SLOPE 1/4" PER FOOT
GUTTER & SPLASH
BLOCK
®
®
date
project number
title
The drawings and written material herein constitute original work of the
architect, and as intellectual property and instruments of service, are
subject to copyright and may not be reproduced, distributed, published
or used in any way without the express written consent of the architect.
plotted:
revisions
sheet
original issue
project
landscape architect
223 NORTH GRAHAM ST
CHARLOTTE, NORTH CAROLINA 28202
704.333.0325
structural engineer
RAYMOND L. GOODSON (RLG)
12001 N. CENTRAL EXPY., SUITE 300
DALLAS, TEXAS 75243
214.739.8100
mechanical engineer
JJA, Inc.
8150 N. CENTRAL EXPY., SUITE M-2100
DALLAS, TEXAS 75206
214.739.8880
construction manager
HILL & WILKINSON
2703 TELECOM PKWY, STE 120
RICHARDSON, TEXAS 75082
214.299.4300
civil engineer
222 WEST LAS COLINAS BLVD.
IRVING, TEXAS 75039, SUITE 1405 N
214.785.6009
architecture interiors planning graphics
8070 Park Lane, Ste. 300 Dallas, Texas 75231
Tel 972.701.9000 Fax 972.991.3008
www.bokapowell.com
design architect
2520 BROADWAY ST.
BOULDER, COLORADO 80304
720.565.0505
client/owner
BRIGHT REALTY
2520 KING ARTHUR BLVD., SUITE 200
LEWISVILLE, TEXAS 75056
972.410.6600
10/25/20184:53:58PM
C:BOKAPREVIT_PROJECTSARCH_14149_THE_REALM_CENTRAL_v16_jessary.rvt
A2.58
ENLARGED PLANS
10.24.2018
PERMIT
14149.100
THE REALM AT CASTLE HILLS
LEWISVILLE, TEXAS
10.27.2017
10.27.2017
SCALE: 1/4" = 1'-0"01 ENLARGED CANOPY PLAN
SCALE: 1 1/2" = 1'-0"02 SECTION DETAIL
SCALE: 1 1/2" = 1'-0"04 ENLARGED PLAN DETAIL
SCALE: 1 1/2" = 1'-0"03 ENLARGED PLAN DETAIL
SCALE: 1/4" = 1'-0"05 STAIR #01 ROOF PLAN
3
1 Construction Documents 12.12.2017
2 WCPR 01 03.09.2018
3 WCPR 10 10.24.2018
10
A
A.2
3/4" CHAMFER TYP.
7" PRECAST ARCHITECTURAL
CONCRETE PANEL
3/4" BACKER ROD & SEALANT
GLAZED ALUMINUM
CURTAIN WALL SYSTEM
GLAZED ALUMINUM
CURTAIN WALL SYSTEM
3/4" BACKER ROD & SEALANT
3 5/8" NON STRUCTURAL
METAL FRAMING
BATT INSULATION, R-13 MIN.
SLAB EDGE BELOW
SLAB EDGE BELOW
2' - 3"
2'-8"
7" 1' - 1" 7"7"1'-6"7"
PRECAST CONCRETE BELOW
7" 1' - 0" 2" 1"
7"1'-0"2"1"
10.1
K
6" COLD FORMED METAL
FRAMING
BATT INSULATION,
R-19 MIN.
1/2" EXTERIOR
SHEATHING
FLUID APPLIED MEMBRANE AIR BARRIER
PAPER BACKED METAL LATH
THIN STONE MASONRY
VENEER
1/2" MARINE GRADE PLYWOOD, PAINTED
6" COLD FORMED
METAL FRAMING
1/2" MARINE GRADE
PLYWOOD
TREATED WOOD
BLOCKING
J-MOLD
STAINLESS STEEL FLASHING
J-MOLD
3/4" BROWN & SCRATCH
COAT
2'-31/8"
1'- 5 1/8"
124.76°
/02 A2.85
/02 A2.85
SIM.
10.1
1/2" EXTERIOR SHEATHING
FLUID APPLIED MEMBRANE
AIR BARRIER
PAPER BACKED METAL
LATH
THIN STONE
MASONRY VENEER
3/4" TREATED PLYWOOD,
PAINTED
6" COLD FORMED METAL
FRAMING
STAINLESS STEEL FLASHING
J-MOLD
3/4" BROWN & SCRATCH
COAT
3/4" BACKER ROD AND
SEALANT
/08 A2.85
10.1
F
4
1'-10"
71/2"
3/4" BACKER ROD & SEALANT
THIN STONE MASONRY VENEER
EXTERIOR SHEATHING
7" PRECAST ARCHITECTURAL
CONCRETE PANEL
3/4" CHAMFER, TYP.
GLAZED ALUMINUM
CURTAINWALL SYSTEM
6" COLD FORMED
METAL FRAMING
BATT INSULATION, R-19 MIN.
METAL COMPOSITE PANEL
FLUID APPLIED MEMBRANE
AIR BARRIER
1' - 4"7' - 3"1' - 4"
PAPER BACKED METAL LATH
3/4" BROWN & SCRATCH COAT
3 5/8" NON-STRUCTURAL
METAL FRAMING
THIN STONE MASONRY VENEER
5/8" GYPSUM BOARD
CONCRETE COLUMN, REF.
STRUCTURAL DRAWINGS
7/8" HAT CHANNEL
5/8" GYPSUM BOARD
7/8" HAT CHANNEL
BATT INSULATION, R-13 MIN.
/10 A2.88
SIM.
6
6'-0"6'-0"6'-0"
6" 4' - 6" 6"
3-5/8" NON-STRUCTURAL
METAL FRAMING
BATT INSULATION, R - 13
MIN.
8" X 8" X 16" CMU
THIN STONE VENEER OVER
3/4" MORTAR
CONCRETE RAMP, TYP.
EDGE OF SLAB BELOW
FLUID APPLIED MEMBRANE AIR
BARRIER
PAPER BACKED METAL LATH
5/8" GYP. BOARD
99' - 6"
100' - 0"
99' - 6"
100' - 0"
C
6
3 5/8" NON-STRUCTURAL
METAL FRAMING
5/8" GYPSUM BOARD (2 LAYERS)
CONCRETE COLUMN, REF.
STRUCTURAL DRAWINGS
3 5/8" NON-STRUCTURAL METAL
FRAMING
3 5/8" NON-STRUCTURAL METAL
FRAMING
8" X 8" X 16" CONCRETE MASONRY
UNIT
BATT INSULATION, R-13 MIN.
3/4" BROWN &
SCRATCH COAT
THIN STONE MASONRY
VENEER
3 5/8" NON-STRUCTURAL
METAL FRAMING
TREATED WOOD BLOCKING5/8" GYPSUM BOARD
5/8" GYPSUM BOARD
5/8" GYPSUM BOARD
1' - 9 5/8" 7 3/4"
1'-01/2"
CORNER BEAD, TYP.
FLUID APPLIED MEMBRANE
AIR BARRIER
J MOLD CASING BEAD
1/2" MARINE GRADE PLYWOOD,
PAINTED
THERMAL INSULATION
6" COLD FORM METAL FRAMING
BRAKE METAL FLASHING
BACKER ROD AND SEALANT
J MOLD CASING BEAD
SELF ADHERED FLEXIBLE FLASHING
LIQUID APPLIED AIR AND
MOISTURE BARRIER
EXTERIOR SHEATHING
BROWN AND SCRATCH COAT
OVER PAPER BACKED LATHE
THIN STONE VENEER
3/4" TREATED PLYWOOD
THERMAL INSULATION
6" COLD FORMED METAL
FRAMING
BRAKE METAL FLASHING
FLUID APPLIED AIR AND
MOISTURE BARRIER
EXTERIOR SHEATHING
J MOLD CASING BEAD
SELF ADHERING FLEXIBLE
FLASHING
®
®
date
project number
title
The drawings and written material herein constitute original work of the
architect, and as intellectual property and instruments of service, are
subject to copyright and may not be reproduced, distributed, published
or used in any way without the express written consent of the architect.
plotted:
revisions
sheet
original issue
project
landscape architect
223 NORTH GRAHAM ST
CHARLOTTE, NORTH CAROLINA 28202
704.333.0325
structural engineer
RAYMOND L. GOODSON (RLG)
12001 N. CENTRAL EXPY., SUITE 300
DALLAS, TEXAS 75243
214.739.8100
mechanical engineer
JJA, Inc.
8150 N. CENTRAL EXPY., SUITE M-2100
DALLAS, TEXAS 75206
214.739.8880
construction manager
HILL & WILKINSON
2703 TELECOM PKWY, STE 120
RICHARDSON, TEXAS 75082
214.299.4300
civil engineer
222 WEST LAS COLINAS BLVD.
IRVING, TEXAS 75039, SUITE 1405 N
214.785.6009
architecture interiors planning graphics
8070 Park Lane, Ste. 300 Dallas, Texas 75231
Tel 972.701.9000 Fax 972.991.3008
www.bokapowell.com
design architect
2520 BROADWAY ST.
BOULDER, COLORADO 80304
720.565.0505
client/owner
BRIGHT REALTY
2520 KING ARTHUR BLVD., SUITE 200
LEWISVILLE, TEXAS 75056
972.410.6600
10/19/201811:32:38AM
C:BOKAPREVIT_PROJECTSARCH_14149_THE_REALM_CENTRAL_v16_jessary.rvt
A2.85
PLAN DETAILS
10.24.2018
PERMIT
14149.100
THE REALM AT CASTLE HILLS
LEWISVILLE, TEXAS
10.27.2017
10.27.2017
SCALE: 1 1/2" = 1'-0"01 PLAN DETAIL
SCALE: 1 1/2" = 1'-0"03 PLAN DETAIL
SCALE: 1 1/2" = 1'-0"05 PLAN DETAIL
SCALE: 1" = 1'-0"04 PLAN DETAIL
SCALE: 1/2" = 1'-0"06 PLAN DETAIL
SCALE: 1 1/2" = 1'-0"07 PLAN DETAIL
SCALE: 3" = 1'-0"02 PLAN DETAILSCALE: 3" = 1'-0"08 ENLARGED PLAN DETAIL
2
1 WCPR 02 05.02.2018
2 WCPR 10 10.24.2018
UP
UP
UP
DN UP
D
C
706
A3.60
7"7'-81/2"7'-31/2"7TREADS@11"=6'-5"6'-01/2"
CONCRETE FILLED
METAL PAN STAIR
ASSEMBLY W/ PAINTED
STEEL STRINGERS,
GUARDRAILS, AND
HANDRAILS
D4
D4 H3
10' - 4 3/8" 1' - 10 7/8"
H3
D4
PAINTED STEEL
FLOOR BARRIER
07
A3.60
01/A3.71
9' - 6" CLEAR
100' - 0"
1/2" 4' - 6 1/2" 4" 4' - 6 1/2" 1/2"
104' - 6 1/2"
1'-0"1'-0"
2' - 5"
08
A3.60
D
C
706
A3.60
9' - 6" CLEAR
1/2" 4' - 6 1/2" 4" 4' - 6 1/2" 1/2"
F2F2
H3
117/8"
204A
07
A3.60
CONCRETE FILLED
METAL PAN STAIR
ASSEMBLY W/ PAINTED
STEEL STRINGERS,
GUARDRAILS AND
HANDRAILS
/08 A3.70
09
A3.70
STAIR #1
204
8' - 1"
H3
F2
F2F2
5'-4"11TREADS@11"=10'-1"5'-117/8"
2' - 5"
111' - 4 1/4"
1'-0"1'-0"
5'-117/8"11TREADS@11"=10'-1"5'-4"
118'-2"
H3
F2
08
A3.60
D
C
7
06
A3.60
5'-117/8"11TREADS@11'=10'-1"5'-4"2'-111/8"3'-77/8"
9' - 6" CLEAR
1/2" 4' - 6 1/2" 4" 4' - 6 1/2" 1/2"
132' - 2"
2' - 3 3/4"
F2F2
D3
H3
302A
07
A3.60
CONCRETE FILLED
METAL PAN STAIR
ASSEMBLY W/
PAINTED STEEL
STRINGERS,
GUARDRAILS AND
HANDRAILS
F2
H3
1'-0"1'-0"
21'-4223/256"
5'-117/8"11TREADS@11"=10'-1"5'-4"
H3
F2
08
A3.60
D
C
706
A3.60
9' - 6" CLEAR
1/2" 4' - 6 1/2" 4" 4' - 6 1/2" 1/2"
5'-117/8"11TREADS@11"=10'-1"5'-4"3'-0"3'-7"
216' - 2"
902A
9' - 7 1/4" 2' - 3 3/4"
117/8"
F2F2
F2
F2
H3
07
A3.60
CONCRETE FILLED
METAL PAN STAIR
ASSEMBLY W/ PAINTED
STEEL STRINGERS,
GUARDRAILS AND
HANDRAILS
1'-0"1'-0"
209' - 2"
F2H3
08
A3.60
11TREADS@11"=10'-1"
Level 1
EL. 100' - 0"
Level 2
EL. 118' - 2"
D C
Level 3
EL. 132' - 2"
Level 4
EL. 146' - 2"
Level 5
EL. 160' - 2"
Level 6
EL. 174' - 2"
Level 7
EL. 188' - 2"
Level 8
EL. 202' - 2"
Level 9
EL. 216' - 2"
ROOF
EL. 235' - 2"
18'-2"14'-0"14'-0"14'-0"14'-0"
REF. PLANS FOR
PARTITION TYPE
14'-0"14'-0"14'-0"
CONCRETE FILLED
METAL PAN STAIR
ASSEMBLY W/ PAINTED
STEEL STRINGERS,
GUARDRAILS AND
HANDRAILS
9EQ.RISERS=
5'-21/8"
12EQ.RISERS=
6'-107/8"
12EQ.RISERS=
6'-107/8"12EQ.RISERS=7'-0"12EQ.RISERS=7'-0"12EQ.RISERS=7'-0"12EQ.RISERS=7'-0"12EQ.RISERS=7'-0"12EQ.RISERS=7'-0"12EQ.RISERS=7'-0"12EQ.RISERS=7'-0"12EQ.RISERS=7'-0"12EQ.RISERS=7'-0"12EQ.RISERS=7'-0"12EQ.RISERS=7'-0"12EQ.RISERS=7'-0"12EQ.RISERS=7'-0"
12EQ.RISERS
6'-93/4"
12EQ.RISERS=
6'-93/4"
8EQ.RISERS=
4'-61/2"
3' - 7"
3' - 0"
20' - 5" 11 7/8"
CONCRETE FLOOR
SLAB, REF.
STRUCTURAL
DRAWINGS
SURFACE MOUNTED
LIGHT, REF. ELECTRICAL
DRAWINGS
STAIR #1
125
/06 A3.70
/05 A3.70
/04 A3.70
/07 A3.71
OPP.
/03 A5.74
19'-0"
GENERAL NOTES:
1. ALL DIMENSIONS ARE TO FINISH FACE, UNLESS NOTED OTHERWISE.
2. EXIT STAIRS ENCLOSURE PARTITIONS ARE TYPE H(X) & F(X) UNLESS NOTED OTHERWISE.
REFER TO SHEETS A3.00 & A3.01 FOR APPLICABLE INFROMATION.
3. REFER TO SHEETS A3.70 & A3.71 FOR APPLICABLE STAIR DETAILS.
4. STAIR UNDERSIDE OF LANDING & ALL STRUCTURAL ELEMENTS (CHANNELS, STRINGERS,
ANGLES, MISC. STEEL) ARE TO BE PAINTED (P-1).
5. STAIR WALLS INSIDE & OUTSDIE ARE TO BE PAINTED (P-1).
6. ALL DOORS IN STAIRS ARE TO BE FIRE RATED WITH CLOSERS & THRESHOLDS
Level 1
EL. 100' - 0"
Level 2
EL. 118' - 2"
7
Level 3
EL. 132' - 2"
Level 4
EL. 146' - 2"
Level 5
EL. 160' - 2"
Level 6
EL. 174' - 2"
Level 7
EL. 188' - 2"
Level 8
EL. 202' - 2"
Level 9
EL. 216' - 2"
ROOF
EL. 235' - 2"
06
A3.60
8EQ.RISERS=
4'-61/2"
12EQ.RISERS=
6'-93/4"
12EQ.RISERS=
6'-93/4"12EQ.RISERS=7'-0"12EQ.RISERS=7'-0"12EQ.RISERS=7'-0"12EQ.RISERS=7'-0"12EQ.RISERS=7'-0"12EQ.RISERS=7'-0"12EQ.RISERS=7'-0"12EQ.RISERS=7'-0"12EQ.RISERS=7'-0"12EQ.RISERS=7'-0"12EQ.RISERS=7'-0"12EQ.RISERS=7'-0"12EQ.RISERS=7'-0"12EQ.RISERS=7'-0"
12EQ.RISERS=
6'-107/8"
12EQ.RISERS=
6'-107/8"
9EQ.RISERS=
5'-21/8"
/01 A3.71
GROUND
FLOOR BARRIER
SURFACE MOUNTED
LIGHT; REF. ELECTRICAL
DRAWINGS
08
A3.60
/02 A3.71
TOP
GUARDRAIL
Level 1
EL. 100' - 0"
Level 2
EL. 118' - 2"
C
Level 3
EL. 132' - 2"
Level 4
EL. 146' - 2"
Level 5
EL. 160' - 2"
Level 6
EL. 174' - 2"
Level 7
EL. 188' - 2"
Level 8
EL. 202' - 2"
Level 9
EL. 216' - 2"
ROOF
EL. 235' - 2"
07
A3.60
GROUND FLOOR
BARRIER
9EQ.RISERS=
5'-21/8"6'-107/8"
12EQ.RISERS=
6'-107/8"7'-0"12EQ.RISERS=7'-0"7'-0"12EQ.RISERS=7'-0"7'-0"12EQ.RISERS=7'-0"7'-0"12EQ.RISERS=7'-0"7'-0"12EQ.RISERS=7'-0"7'-0"12EQ.RISERS=7'-0"7'-0"12EQ.RISERS=7'-0"6'-93/4"
12EQ.RISERS=
6'-93/4"4'-61/2"
/09 A5.75
C
7
06
A3.60
07
A3.60
08
A3.60
1000
STAIR #1
1000
9' - 6" CLEAR
1/2"
4' - 6 1/2" 4" 4' - 6 1/2"
1 1/2"
235' - 2"
229' - 11 7/8"
4' - 11 1/2" 11' - 10 3/4" 5 1/2"
7'-113/8"8TREADS@11"=7'-4"10'-01/2"
1'-0"
1'-0"
1'-0"
07/A4.10
06/A4.10
08/A4.10
05/A4.10
F2
16' - 10 1/4"
25'-37/8"
®
®
date
project number
title
The drawings and written material herein constitute original work of the
architect, and as intellectual property and instruments of service, are
subject to copyright and may not be reproduced, distributed, published
or used in any way without the express written consent of the architect.
plotted:
revisions
sheet
original issue
project
landscape architect
223 NORTH GRAHAM ST
CHARLOTTE, NORTH CAROLINA 28202
704.333.0325
structural engineer
RAYMOND L. GOODSON (RLG)
12001 N. CENTRAL EXPY., SUITE 300
DALLAS, TEXAS 75243
214.739.8100
mechanical engineer
JJA, Inc.
8150 N. CENTRAL EXPY., SUITE M-2100
DALLAS, TEXAS 75206
214.739.8880
construction manager
HILL & WILKINSON
2703 TELECOM PKWY, STE 120
RICHARDSON, TEXAS 75082
214.299.4300
civil engineer
222 WEST LAS COLINAS BLVD.
IRVING, TEXAS 75039, SUITE 1405 N
214.785.6009
architecture interiors planning graphics
8070 Park Lane, Ste. 300 Dallas, Texas 75231
Tel 972.701.9000 Fax 972.991.3008
www.bokapowell.com
design architect
2520 BROADWAY ST.
BOULDER, COLORADO 80304
720.565.0505
client/owner
BRIGHT REALTY
2520 KING ARTHUR BLVD., SUITE 200
LEWISVILLE, TEXAS 75056
972.410.6600
10/26/20189:50:40AM
C:BOKAPREVIT_PROJECTSARCH_14149_THE_REALM_CENTRAL_v16_jessary.rvt
A3.60
ENLARGED STAIR PLANS &
SECTIONS
10.24.2018
PERMIT
14149.100
THE REALM AT CASTLE HILLS
LEWISVILLE, TEXAS
10.27.2017
10.27.2017
SCALE: 1/4" = 1'-0"01 STAIR PLAN #1 - LEVEL 1
SCALE: 1/4" = 1'-0"02 STAIR PLAN #1 - LEVEL 2
SCALE: 1/4" = 1'-0"03 STAIR PLAN #1 - TYPICAL
SCALE: 1/4" = 1'-0"04 STAIR PLAN #1 - LEVEL 9
SCALE: 3/16" = 1'-0"06 SECTION - STAIR #1
SCALE: 3/16" = 1'-0"07 SECTION - STAIR #1
SCALE: 3/16" = 1'-0"08 SECTION - STAIR #1
SCALE: 1/4" = 1'-0"05 STAIR PLAN #1 - ROOF
1 Construction Documents 12.12.2017
2 WCPR 01 03.09.2018
3 WCPR 10 10.24.2018
3
3
33
1 3 4 5 6 7 8 10
Level 3
EL. 132' - 2"
Level 4
EL. 146' - 2"
Level 5
EL. 160' - 2"
Level 6
EL. 174' - 2"
Level 7
EL. 188' - 2"
Level 8
EL. 202' - 2"
Level 9
EL. 216' - 2"
ROOF
EL. 235' - 2"
T.O. PARAPET
EL. 239' - 8"
04
A5.10
4.8 6.22 9
03
A5.11
02
A5.11
04
A5.11
14'-0"14'-0"14'-0"14'-0"14'-0"14'-0"19'-0"4'-6"8'-51/2"2'-01/2"
01
A5.11
METAL PANEL CANOPY
DECORATIVE METAL PANEL,
ILLUMNINATED
DECORATIVE METAL
PANEL ILLUMNINATED
MECHANICAL
SCREEN
7.83.2
METAL PANEL
CANOPY
PRECAST
ARCHITECTURAL
CONCRETE
PENTHOUSE
EL. 248' - 1 1/2"
PRECAST
ARCHITECTURAL
CONCRETE
PRECAST
ARCHITECTURAL
CONCRETE
3/4" PLYWOOD, PAINTED, TYP. LIGHT FIXTURE, REF.
ELECTRICAL DRAWINGS, TYP.
3/4" PLYWOOD, PAINTED, TYP. 3/4" PLYWOOD, PAINTED, TYP.
10.1 11
ALUMINUM COMPOSITE METAL
PANEL JOINTS CENTERED ON
CURTAIN WALL MULLIONS
TYP.
EQ EQ
TYP.
EQEQ
(TYPE"J")
103'-6"A.F.F.
EQ
TYP.
EQ
(TYPE"N")
8'-6"A.F.F.TYP.
EQ.
TYP.
EQ. EQ.
TYP.
EQ.
(TYPE"Q")
5
5
5
5
EXTERIOR FINISH LEGEND
ADHERED THIN STONE
VENEER, LUEDER STONE
(NOT USED) - PRECAST CONCRETE
WITH CUSTOM EMBOSSED PATTERN
ALUMINUM COMPOSITE PANELPRECAST CONCRETE, INTEGRAL
COLOR 1
PRECAST CONCRETE, INTEGRAL
COLOR 2
PRECAST CONCRETE, INTEGRAL
COLOR 3
®
®
date
project number
title
The drawings and written material herein constitute original work of the
architect, and as intellectual property and instruments of service, are
subject to copyright and may not be reproduced, distributed, published
or used in any way without the express written consent of the architect.
plotted:
revisions
sheet
original issue
project
landscape architect
223 NORTH GRAHAM ST
CHARLOTTE, NORTH CAROLINA 28202
704.333.0325
structural engineer
RAYMOND L. GOODSON (RLG)
12001 N. CENTRAL EXPY., SUITE 300
DALLAS, TEXAS 75243
214.739.8100
mechanical engineer
JJA, Inc.
8150 N. CENTRAL EXPY., SUITE M-2100
DALLAS, TEXAS 75206
214.739.8880
construction manager
HILL & WILKINSON
2703 TELECOM PKWY, STE 120
RICHARDSON, TEXAS 75082
214.299.4300
civil engineer
222 WEST LAS COLINAS BLVD.
IRVING, TEXAS 75039, SUITE 1405 N
214.785.6009
architecture interiors planning graphics
8070 Park Lane, Ste. 300 Dallas, Texas 75231
Tel 972.701.9000 Fax 972.991.3008
www.bokapowell.com
design architect
2520 BROADWAY ST.
BOULDER, COLORADO 80304
720.565.0505
client/owner
BRIGHT REALTY
2520 KING ARTHUR BLVD., SUITE 200
LEWISVILLE, TEXAS 75056
972.410.6600
10/19/201811:32:50AM
C:BOKAPREVIT_PROJECTSARCH_14149_THE_REALM_CENTRAL_v16_jessary.rvt
A4.01
EXTERIOR ELEVATION - WEST
10.24.2018
PERMIT
14149.100
THE REALM AT CASTLE HILLS
LEWISVILLE, TEXAS
10.27.2017
10.27.2017
SCALE: 1/8" = 1'-0"01 OVERALL ELEVATION - WEST
5
1 WCPR 04 06.21.2018
2 WCPR 08 08.07.2018
3 WCPR 09 08.20.2018
4 RFI #54 09.06.2018
5 WCPR 10 10.24.2018
D FC
Level 3
EL. 132' - 2"
Level 4
EL. 146' - 2"
Level 5
EL. 160' - 2"
Level 6
EL. 174' - 2"
Level 7
EL. 188' - 2"
Level 8
EL. 202' - 2"
Level 9
EL. 216' - 2"
ROOF
EL. 235' - 2"
T.O. PARAPET
EL. 239' - 8"
03
A5.10
02
A5.10
01
A5.10
A.2 E.8 G H J K LB E
T.O. BULKHEAD
EL. 123' - 2"
05
A5.14
10'-6"4'-6"19'-0"14'-0"14'-0"14'-0"14'-0"14'-0"14'-0"
04
A5.15
SUSPENDED METAL PANEL
CANOPY, BEYOND
GUARDRAIL
PRECAST ARCHITECTURAL
CONCRETE
METAL PANEL CANOPY
MECHANICAL SCREEN
PRECAST ARCHITECTURAL
CONCRETE
CANOPY TO GARAGE
01
A5.14
PRECAST ARCHITECTURAL
CONCRETE
PRECAST ARCHITECTURAL
CONCRETE
3/4" PLYWOOD, PAINTED, TYP.
01
A2.89
D.7D.3
2' - 0"2' - 0"
(TYPE"N")
8'-6"A.F.F.TYP.
LIGHT FIXTURE, REF.
ELECTRICAL DRAWINGS, TYP.
EQ EQ4' - 11"
3
3
3
EXTERIOR FINISH LEGEND
ADHERED THIN STONE
VENEER, LUEDER STONE
(NOT USED) - PRECAST CONCRETE
WITH CUSTOM EMBOSSED PATTERN
ALUMINUM COMPOSITE PANELPRECAST CONCRETE, INTEGRAL
COLOR 1
PRECAST CONCRETE, INTEGRAL
COLOR 2
PRECAST CONCRETE, INTEGRAL
COLOR 3
®
®
date
project number
title
The drawings and written material herein constitute original work of the
architect, and as intellectual property and instruments of service, are
subject to copyright and may not be reproduced, distributed, published
or used in any way without the express written consent of the architect.
plotted:
revisions
sheet
original issue
project
landscape architect
223 NORTH GRAHAM ST
CHARLOTTE, NORTH CAROLINA 28202
704.333.0325
structural engineer
RAYMOND L. GOODSON (RLG)
12001 N. CENTRAL EXPY., SUITE 300
DALLAS, TEXAS 75243
214.739.8100
mechanical engineer
JJA, Inc.
8150 N. CENTRAL EXPY., SUITE M-2100
DALLAS, TEXAS 75206
214.739.8880
construction manager
HILL & WILKINSON
2703 TELECOM PKWY, STE 120
RICHARDSON, TEXAS 75082
214.299.4300
civil engineer
222 WEST LAS COLINAS BLVD.
IRVING, TEXAS 75039, SUITE 1405 N
214.785.6009
architecture interiors planning graphics
8070 Park Lane, Ste. 300 Dallas, Texas 75231
Tel 972.701.9000 Fax 972.991.3008
www.bokapowell.com
design architect
2520 BROADWAY ST.
BOULDER, COLORADO 80304
720.565.0505
client/owner
BRIGHT REALTY
2520 KING ARTHUR BLVD., SUITE 200
LEWISVILLE, TEXAS 75056
972.410.6600
10/19/201811:33:05AM
C:BOKAPREVIT_PROJECTSARCH_14149_THE_REALM_CENTRAL_v16_jessary.rvt
A4.02
EXTERIOR ELEVATION - NORTH
10.24.2018
PERMIT
14149.100
THE REALM AT CASTLE HILLS
LEWISVILLE, TEXAS
10.27.2017
10.27.2017
SCALE: 1/8" = 1'-0"01 OVERALL ELEVATION - NORTH
3
1 WCPR 04 06.21.2018
2 RFI #54 09.06.2018
3 WCPR 10 10.24.2018
134567810
Level 3
EL. 132' - 2"
Level 4
EL. 146' - 2"
Level 5
EL. 160' - 2"
Level 6
EL. 174' - 2"
Level 7
EL. 188' - 2"
Level 8
EL. 202' - 2"
Level 9
EL. 216' - 2"
ROOF
EL. 235' - 2"
T.O. PARAPET
EL. 239' - 8"
02
A5.13
01
A5.13
04
A5.12
03
A5.12
4.86.2 29
03
A5.13
14'-0"14'-0"14'-0"14'-0"14'-0"14'-0"2'-01/2"8'-51/2"4'-6"19'-0"
METAL COMPOSITE
PANEL CANOPY
METAL PANEL
COPING
MECHANICAL
SCREEN
7.8 3.2
PRECAST
ARCHITECTURAL
CONCRETE
PRECAST
ARCHITECTURAL
CONCRETE
METAL COMPOSITE
PANEL CANOPY
02
A5.14
PENTHOUSE
EL. 248' - 1 1/2"
04
A5.13
PRECAST
ARCHITECTURAL
CONCRETE
PRECAST
ARCHITECTURAL
CONCRETE
2'-10"8'-5"
10.1
01
A2.89
11
LIGHT FIXTURE, REF.
ELECTRICAL DRAWINGS, TYP.
(TYPE"N")
8'-6"A.F.F.TYP.
TYP.
EQ EQ EQ
TYP.
EQ
TYP.
EQ EQ
(TYPE"J")
60'-6"A.F.F.
3
3
3
EXTERIOR FINISH LEGEND
ADHERED THIN STONE
VENEER, LUEDER STONE
(NOT USED) - PRECAST CONCRETE
WITH CUSTOM EMBOSSED PATTERN
ALUMINUM COMPOSITE PANELPRECAST CONCRETE, INTEGRAL
COLOR 1
PRECAST CONCRETE, INTEGRAL
COLOR 2
PRECAST CONCRETE, INTEGRAL
COLOR 3
®
®
date
project number
title
The drawings and written material herein constitute original work of the
architect, and as intellectual property and instruments of service, are
subject to copyright and may not be reproduced, distributed, published
or used in any way without the express written consent of the architect.
plotted:
revisions
sheet
original issue
project
landscape architect
223 NORTH GRAHAM ST
CHARLOTTE, NORTH CAROLINA 28202
704.333.0325
structural engineer
RAYMOND L. GOODSON (RLG)
12001 N. CENTRAL EXPY., SUITE 300
DALLAS, TEXAS 75243
214.739.8100
mechanical engineer
JJA, Inc.
8150 N. CENTRAL EXPY., SUITE M-2100
DALLAS, TEXAS 75206
214.739.8880
construction manager
HILL & WILKINSON
2703 TELECOM PKWY, STE 120
RICHARDSON, TEXAS 75082
214.299.4300
civil engineer
222 WEST LAS COLINAS BLVD.
IRVING, TEXAS 75039, SUITE 1405 N
214.785.6009
architecture interiors planning graphics
8070 Park Lane, Ste. 300 Dallas, Texas 75231
Tel 972.701.9000 Fax 972.991.3008
www.bokapowell.com
design architect
2520 BROADWAY ST.
BOULDER, COLORADO 80304
720.565.0505
client/owner
BRIGHT REALTY
2520 KING ARTHUR BLVD., SUITE 200
LEWISVILLE, TEXAS 75056
972.410.6600
10/19/201811:33:16AM
C:BOKAPREVIT_PROJECTSARCH_14149_THE_REALM_CENTRAL_v16_jessary.rvt
A4.03
EXTERIOR ELEVATION - EAST
10.24.2018
PERMIT
14149.100
THE REALM AT CASTLE HILLS
LEWISVILLE, TEXAS
10.27.2017
10.27.2017
SCALE: 1/8" = 1'-0"01 ELEVATION - EAST
3
1 WCPR 04 06.21.2018
2 RFI #54 09.06.2018
3 WCPR 10 10.24.2018
DF C
Level 3
EL. 132' - 2"
Level 4
EL. 146' - 2"
Level 5
EL. 160' - 2"
Level 6
EL. 174' - 2"
Level 7
EL. 188' - 2"
Level 8
EL. 202' - 2"
Level 9
EL. 216' - 2"
ROOF
EL. 235' - 2"
T.O. PARAPET
EL. 239' - 8"
AA.2E.8GHJKL BE
T.O. BULKHEAD
EL. 123' - 2"
02
A5.12
01
A5.12
10'-6"4'-6"19'-0"14'-0"14'-0"14'-0"14'-0"14'-0"14'-0"
04
A5.14
05
A5.15
SUSPENDED METAL
PANEL CANOPY
GUARDRAIL
PRECAST ARCHITECTURAL
CONCRETE
METAL COMPOSITE CLAD
STEEL CANOPY
MECHANICAL SCREEN
PRECAST ARCHITECTURAL
CONCRETE
PRECAST ARCHITECTURAL
CONCRETE
PRECAST ARCHITECTURAL
CONCRETE
PRECAST ARCHITECTURAL
CONCRETE
METAL PANEL CANOPY
TO GARAGE
01
A5.14
PRECAST ARCHITECTURAL
CONCRETE
PRECAST ARCHITECTURAL
CONCRETE
PRECAST ARCHITECTURAL
CONCRETE
OPEN TO BEYONDPAINTED HOLLOW METAL
DOORS AND FRAMES, TYP.
PREFINISHED OVERHEAD
COILING DOOR
3/4" TREATED PLYWOOD,
PAINTED, TYP.
01
A2.89
D.7 D.3
(TYPE"N")
8'-6"A.F.F.TYP.
2' - 0"2' - 0"4' - 11"EQ EQ
LIGHT FIXTURE, REF.
ELECTRICAL DRAWINGS, TYP.
3
3
3
EXTERIOR FINISH LEGEND
ADHERED THIN STONE
VENEER, LUEDER STONE
(NOT USED) - PRECAST CONCRETE
WITH CUSTOM EMBOSSED PATTERN
ALUMINUM COMPOSITE PANELPRECAST CONCRETE, INTEGRAL
COLOR 1
PRECAST CONCRETE, INTEGRAL
COLOR 2
PRECAST CONCRETE, INTEGRAL
COLOR 3
®
®
date
project number
title
The drawings and written material herein constitute original work of the
architect, and as intellectual property and instruments of service, are
subject to copyright and may not be reproduced, distributed, published
or used in any way without the express written consent of the architect.
plotted:
revisions
sheet
original issue
project
landscape architect
223 NORTH GRAHAM ST
CHARLOTTE, NORTH CAROLINA 28202
704.333.0325
structural engineer
RAYMOND L. GOODSON (RLG)
12001 N. CENTRAL EXPY., SUITE 300
DALLAS, TEXAS 75243
214.739.8100
mechanical engineer
JJA, Inc.
8150 N. CENTRAL EXPY., SUITE M-2100
DALLAS, TEXAS 75206
214.739.8880
construction manager
HILL & WILKINSON
2703 TELECOM PKWY, STE 120
RICHARDSON, TEXAS 75082
214.299.4300
civil engineer
222 WEST LAS COLINAS BLVD.
IRVING, TEXAS 75039, SUITE 1405 N
214.785.6009
architecture interiors planning graphics
8070 Park Lane, Ste. 300 Dallas, Texas 75231
Tel 972.701.9000 Fax 972.991.3008
www.bokapowell.com
design architect
2520 BROADWAY ST.
BOULDER, COLORADO 80304
720.565.0505
client/owner
BRIGHT REALTY
2520 KING ARTHUR BLVD., SUITE 200
LEWISVILLE, TEXAS 75056
972.410.6600
10/19/201811:37:24AM
C:BOKAPREVIT_PROJECTSARCH_14149_THE_REALM_CENTRAL_v16_jessary.rvt
A4.04
EXTERIOR ELEVATION - SOUTH
10.24.2018
PERMIT
14149.100
THE REALM AT CASTLE HILLS
LEWISVILLE, TEXAS
10.27.2017
10.27.2017
SCALE: 1/8" = 1'-0"01 OVERALL ELEVATION - SOUTH
3
1 WCPR 04 06.21.2018
2 RFI #54 09.06.2018
3 WCPR 10 10.24.2018
F
Level 8
EL. 202' - 2"
3/4" BACKER ROD & SEALANT -
LEAVE GAP EVERY 2' FOR WEEP
THIN STONE MASONRY VENEER
3/4" BACKER ROD
& SEALANT
PRECAST ARCHITECTURAL
CONCRETE
BATT INSULATION,
R-19 MIN.
GLAZED ALUMINUM
CURTAINWALL SYSTEM
3/4" BACKER ROD
& SEALANT
3-5/8" NON-STRUCTURAL METAL
FRAMING WITH R-13 MIN. BATT
INSULATION
CONCRETE BEAM, REF.
STRUCTURAL DRAWINGS
GLAZED ALUMINUM
CURTAINWALL SYSTEM
STAINLESS STEEL FLASHING
OVER SELF ADHERED FLEXIBLE
FLASHING
3/4" BROWN & SCRATCH COAT
SLOPE 1/4" PER FOOT
TREATED WOOD BLOCKING
6" COLD FORMED METAL
FRAMING
BATT INSULATION, R-19 MIN.
3 1/8" 7 1/2" 2" 2' - 1 1/2"
1"11"
SHIM AS NEEDED
FIRE PROOFING SYSTEM
INTEGRAL DRIP
INTEGRAL DRIP
F
ROOF
EL. 235' - 2"
T.O. PARAPET
EL. 239' - 8"
GE
SINGLE PLY ROOF MEMBRANE
6" COLD FORMED METAL FRAMING
W/ EXTERIOR SHEATHING
ALUMINUM COMPOSITE
METAL PANEL
CONCRETE SLAB, REF.
STRUCTURAL DRAWINGS
SLOPE 1/4" PER FOOT
COVER BOARD
METAL DECK, REF.
STRUCTURAL DRAWINGS
SOFFIT SYSTEM
GLAZED ALUMINUM
CURTAINWALL SYSTEM
CARRIER
RIGID INSULATION
ALUMINUM COMPOSITE
METAL PANEL
EXTERIOR SHEATHING
AIR / MOISTURE BARRIER
STEEL COLUMN, REF.
STRUCTURAL DRAWINGS
STEEL BEAM, REFER TO
STRUCTURAL DRAWINGS
2'-1"
3 5/8" COLD FORMED
METAL FRAMING
HAT CHANNEL
/02 A2.58
4"
1
Level 9
EL. 216' - 2"
FIRESTOP SYSTEM
GLAZED ALUMINUM
CURTAINWALL SYSTEM
- SPANDREL PANEL
CONCRETE BEAM, REF.
STRUCTURAL DRAWINGS
2"
SMOKE SEAL
RIGID INSULATION
SPANDREL PANEL
METAL STUD AND GYP.
BOARD BY TENANT
Level 2
EL. 118' - 2"
SLOPE
1/2" EXTERIOR SHEATHING
RIGID INSULATION
CONCRETE CURB, REF.
STRUCTURAL DRAWINGS
PAVERS ON PEDESTAL SYSTEM
PAVER WIND UP LIFT
PERIMETER ANCHOR
HAT CHANNEL
EXTERIOR SHEATHING
THIN STONE MASONRY VENEER
3/4" BROWN & SCRATCH COAT
PAPER BACKED METAL LATH
FLUID APPLIED MEMBRANE AIR
BARRIER
6" COLD FORMED METAL
FRAMING
STEEL GUARDRAIL
PRECAST ARCHITECTURAL
CONCRETE CAP
BACKER ROD & SEALANT
3"
61/2"5"5"5"5"5"5"51/2"
3'-6"
/10 A5.73
Level 4
EL. 146' - 2"
GLAZED ALUMINUM
CURTAINWALL SYSTEM
3 5/8" NON-STRUCTURAL
METAL FRAMING
SLOPE 1/4" PER FOOT
3/4" BACKER ROD & SEALANT
THIN STONE MASONRY
VENEER
1'-0"
THERMAL INSULATION, R-19
MIN., IMPALED TO BACK OF
PRECAST PANEL
CONCRETE BEAM, REF.
STRUCTURAL DRAWINGS
3/4" BROWN & SCRATCH
COAT
INTEGRAL DRIP
3/4" BACKER ROD &
SEALANT
2" AIR SPACE
FIRE PROOFING SYSTEM
SHIM AS NEEDED
EXTERIOR SHEATHING 6" COLD
FORMED METAL FRAMING
CONTROL JOINT
®
®
date
project number
title
The drawings and written material herein constitute original work of the
architect, and as intellectual property and instruments of service, are
subject to copyright and may not be reproduced, distributed, published
or used in any way without the express written consent of the architect.
plotted:
revisions
sheet
original issue
project
landscape architect
223 NORTH GRAHAM ST
CHARLOTTE, NORTH CAROLINA 28202
704.333.0325
structural engineer
RAYMOND L. GOODSON (RLG)
12001 N. CENTRAL EXPY., SUITE 300
DALLAS, TEXAS 75243
214.739.8100
mechanical engineer
JJA, Inc.
8150 N. CENTRAL EXPY., SUITE M-2100
DALLAS, TEXAS 75206
214.739.8880
construction manager
HILL & WILKINSON
2703 TELECOM PKWY, STE 120
RICHARDSON, TEXAS 75082
214.299.4300
civil engineer
222 WEST LAS COLINAS BLVD.
IRVING, TEXAS 75039, SUITE 1405 N
214.785.6009
architecture interiors planning graphics
8070 Park Lane, Ste. 300 Dallas, Texas 75231
Tel 972.701.9000 Fax 972.991.3008
www.bokapowell.com
design architect
2520 BROADWAY ST.
BOULDER, COLORADO 80304
720.565.0505
client/owner
BRIGHT REALTY
2520 KING ARTHUR BLVD., SUITE 200
LEWISVILLE, TEXAS 75056
972.410.6600
10/25/20184:54:19PM
C:BOKAPREVIT_PROJECTSARCH_14149_THE_REALM_CENTRAL_v16_jessary.rvt
A5.72
SECTION DETAILS
10.24.2018
PERMIT
14149.100
THE REALM AT CASTLE HILLS
LEWISVILLE, TEXAS
10.27.2017
10.27.2017
SCALE: 1 1/2" = 1'-0"01 SECTION DETAIL
SCALE: 1" = 1'-0"04 SECTION DETAIL
SCALE: 1 1/2" = 1'-0"03 SECTION DETAIL
SCALE: 1 1/2" = 1'-0"05 SECTION DETIAL
SCALE: 1 1/2" = 1'-0"02 SECTION DETAIL
1 Construction Documents 12.12.2017
2 WCPR 05 06.29.2018
3 WCPR 09 08.20.2018
4 WCPR 10 10.24.2018
4
Level 3
EL. 132' - 2"
SLOPE 1/4" PER FT MIN
8"MIN.
AIR / MOISTURE BARRIER
STAINLESS STEEL
FLASHING
STEEL BEAM, REF.
STRUCTURAL DRAWINGS
MODULAR METAL
CEILING SYSTEM
METAL DECK
TREATED PLYWOOD
RIGID INSULATION
BATT INSULATION
GLAZED ALUMINUM
CURTAINWALL SYSTEM
THIN STONE MASONRY
VENEER BEYOND
3/4" BACKER ROD &
SEALANT
SINGLE PLY ROOFING
SYSTEM ON COVER BOARD
3-5/8" COLD FORMED
METAL FRAMING
ALUMINUM COMPOSITE
METAL PANEL
ROOF DRAIN, REF.
PLUMBING DRAWINGS
Level 3
EL. 132' - 2"
H
WEEP
AIR / MOISTURE BARRIER
SELF ADHERED
FLEXIBLE FLASHING
EXTERIOR SHEATHING
ALUMINUM COMPOSITE
METAL PANEL
SLOPE
ALUMINUM COMPOSITE
METAL PANEL
STEEL BEAM, REF. STRUCTURAL
DRAWINGS
3-5/8" COLD FORMED
METAL FRAMING
MODULAR METAL CEILING
SYSTEM
4'-6"
METAL DECK, REF.
STRUCTURAL DRAWINGS
GALVANIZED AND PAINTED
STEEL TENSION ROD, REF.
STRUCTURAL DRAWINGS TREATED PLYWOOD
SINGLE PLY ROOFING
SYSTEM ON COVER BOARD
SINGLE PLY ROOFING FLASHING
MEMBRANE, CARRY OVER TOP OF
PARAPET AND FASTEN AT FRONT FACE
RIGID INSULATION
9 1/8" 1' - 9 3/8" 9 1/8"
ALUMINUM COMPOSITE
METAL PANEL BEYOND
SLOPE 1/4" PER FT MIN
STEEL TUBE, REFER TO
STRUCTURAL DRAWINGS
STEEL CHANNEL, REF.
STRUCTURAL DRAWINGS
1'-9"2'-9"
3/4" 6"
CONTINUOUS BACKER ROD
AND SEALANT
GALVANIZED AND PAINTED
STEEL PLATE, REF.
STRUCTURAL DRAWINGS
BOTTOM OF MEP RATED SHAFT
ENCLOSURE, REF. DETAIL
05/A3.07
REF. PLANS FOR PARTITION TYPE
CEILING AS SCHEDULED
3-5/8" NON STRUCTURAL
METAL FRAMING
LIGHT FIXTURE, REF.
ELECTRICAL DRAWINGS
CONCRETE FILLED METAL PAN
STAIR ASSEMBLY W/ PAINTED
STEEL STRINGERS,
GUARDRAILS AND HANDRAILS
5/8" GYP. BOARD
6"
CORNER BEAD, TYP.
109' - 6"CEILING ELEVATIONS
REFERENCE RCP
111' - 6"
BOTTOM OF SHAFT
Level 9
EL. 216' - 2"
3 3/4"
STEEL GUARDRAIL / HANDRAIL
CONCRETE TOPPING SLAB
CONCRETE STRUCTURAL SLAB,
REFER STRUCTURAL
STEEL PLATE POST
1" DIAMETER STEEL RODS
61/2"5"5"5"5"5"5"51/2"
3'-6"
F
ROOF
EL. 235' - 2"
T.O. PARAPET
EL. 239' - 8"
E.8E
ALUMINUM COMPOSITE METAL PANEL
BACKER ROD & SEALANT
PRECAST ARCHITECTURAL CONCRETE
AIR SPACE
STAINLESS STEEL FLASHING
SELF ADHERED FLEXIBLE
FLASHING
FLUID APPLIED AIR /
MOISTURE BARRIER
FIRE SAFING
ACM CLAD STEEL CANOPY
WIH MODULAR METAL
CEILING SYSTEM
CARRIER
ALUMINUM METAL
COMPOSITE PANEL
EXTERIOR SHEATHING
AIR / MOISTURE BARRIER
SINGLE PLY ROOF MEMBRANE
COVER BOARD
METAL DECK, REF.
STRUCTURAL DRAWINGS
STEEL BEAM, REFER TO
STRUCTURAL DRAWINGS
4"
/02 A2.58
®
®
date
project number
title
The drawings and written material herein constitute original work of the
architect, and as intellectual property and instruments of service, are
subject to copyright and may not be reproduced, distributed, published
or used in any way without the express written consent of the architect.
plotted:
revisions
sheet
original issue
project
landscape architect
223 NORTH GRAHAM ST
CHARLOTTE, NORTH CAROLINA 28202
704.333.0325
structural engineer
RAYMOND L. GOODSON (RLG)
12001 N. CENTRAL EXPY., SUITE 300
DALLAS, TEXAS 75243
214.739.8100
mechanical engineer
JJA, Inc.
8150 N. CENTRAL EXPY., SUITE M-2100
DALLAS, TEXAS 75206
214.739.8880
construction manager
HILL & WILKINSON
2703 TELECOM PKWY, STE 120
RICHARDSON, TEXAS 75082
214.299.4300
civil engineer
222 WEST LAS COLINAS BLVD.
IRVING, TEXAS 75039, SUITE 1405 N
214.785.6009
architecture interiors planning graphics
8070 Park Lane, Ste. 300 Dallas, Texas 75231
Tel 972.701.9000 Fax 972.991.3008
www.bokapowell.com
design architect
2520 BROADWAY ST.
BOULDER, COLORADO 80304
720.565.0505
client/owner
BRIGHT REALTY
2520 KING ARTHUR BLVD., SUITE 200
LEWISVILLE, TEXAS 75056
972.410.6600
10/25/20184:54:21PM
C:BOKAPREVIT_PROJECTSARCH_14149_THE_REALM_CENTRAL_v16_jessary.rvt
A5.74
SECTION DETAILS
10.24.2018
PERMIT
14149.100
THE REALM AT CASTLE HILLS
LEWISVILLE, TEXAS
10.27.2017
10.27.2017
SCALE: 1 1/2" = 1'-0"02 SECTION DETAIL
SCALE: 1 1/2" = 1'-0"01 SECTION DETAIL
SCALE: 1 1/2" = 1'-0"03 SECTION DETAIL
SCALE: 1 1/2" = 1'-0"04 SECTION DETAIL
SCALE: 1 1/2" = 1'-0"05 SECTION DETAIL
1 Construction Documents 12.12.2017
2 WCPR 08 08.07.2018
3 WCPR 10 10.24.2018
3
A A
4
4
5
5
6
6
7
7
CC
DD
A.2 A.2
BB
EE
E.8E.8
FF
2
2
9
9
10
10
1
1
1'-71/4"3'-7"7'-71/2"35'-0"
1'-6"
27'-0"
1'-6"
35'-0"7'-71/2"3'-7"1'-111/4"
18'-4" 20'-0" 35'-0" 30'-0" 30'-0" 30'-0" 35'-0" 20'-0" 18'-4"
245'-0"
125'-111/2"
3'-21/2"
2'-51/2"
4'-5"
41/2"
6'-3"6'-3"
41/2"
4'-5"
2'-51/2"3'-21/2"
1'-8"1'-10"1'-9"5'-6"
41/2"
5SPA@6'-3"=31'-3"41/2"1'-8"
41/2"
5SPA@6'-3"=31'-3"
41/2"
5'-6"1'-9"1'-10"
ELEV
ELEV
ELEV
ELEV
01
S7.02
04
S4.10
PG43PG45PG44
PG43PG45PG44
PG39PG41PG40PG38PG42
PG47
PG47
PG46
PG46
B57
B57 B58
B58
3
3
8
8
PG50PG52PG51
PG50PG52PG51
10.1 0.9
B.9B.9
D.1D.1
S2.14
01 CANOPY
FRAMING
ABOVE
S2.14
01
OH
CANOPY
FRAMING
ABOVE
TYP
AT
SCR
EEN
24"X24"
CO
N
C
CO
L
H
SS6X6X3/8
H
SS6X6X3/8
TYP
AT
CANO
PY
TYP
AT
CANO
PY
H
SS6X6X3/8
S2.14
02 ROOF
FRAMING
ABOVE
S2.14
03
235'-2"
TYP AT
PERIM
235'-2"
TYP AT
PERIM
235'-2"
TYP AT
PERIM
235'-2"
TYP AT
PERIM
235'-2"
TYP AT
PERIM
234'-2"
234'-2"
234'-2"
234'-2"
234'-10 1/2"
234'-10 1/2"
234'-2"
234'-2"
234'-10 1/2"
234'-10 1/2"
234'-2"
234'-2"
235'-2"
TYP AT
PERIM
235'-2"
TYP AT
PERIM
235'-2"
TYP AT
PERIM
01
S6.10
02
S6.10
02
S6.10
04
S6.10
03
S6.10
02
S6.10
02
S6.10
03
S6.10
01
S6.10
02
S6.10
02
S6.10
01
S6.10
02
S6.10
02
S6.10
04
S6.10
03
S6.10
02
S6.10
02
S6.10
03
S6.10
01
S6.10
02
S6.10
02
S6.10
PG53PG55PG54
PG57PG59
PG53PG55PG56
PG53PG55PG54
01
S6.11
02
S6.11
02
S6.11
02
S6.11
02
S6.11
PG39PG41PG81PG38PG42
B58 B58B58 B58
B59 B60
B58
B58
B58 B58 B58
B58
B59 B60
S2.12
04
PG58
B61
B62
B62
B62 B63
B62
B63B62B62B61
B65
B63
B59 B60B58B57
TYP AT
SCREEN
03
S7.02
TYP
AT
M
EC
H
B136
B69 B70
B71
B67
B68
B70 B71B72
B73 B74 B75 B76 B77 B78
B73 B74 B75 B76 B77 B78
B79 B80 B81
B139 B140 B141
B82
B82
03
S7.01
05
S7.01
03
S4.10
04
S4.10
03
S4.10
TYP AT
SCREEN
COLS
4'-2" 4'-2"
B60
B125
B57
73'-10 3/4" 31'-10 1/4" 33'-6" 31'-10 1/4" 73'-10 3/4"
3'-7 1/4" 3'-7 1/4"
02
S6.11
AT NANA
WALL
PRECAST CONCRETE PANEL
BY PRECAST ENGINEER -
REF ARCH (TYP)
CANOPY BELOW -
SEE 01/S6.10 FOR
FRAMING (TYP)
B64
B138
B138
B138
B138
B148
B148
B148
B148
B145
B138
B148
B148
B148
B148B148
B148
B148B148
B148
B148
B148
B138
B148
1'-71/4"2'-1"2'-6"
9"
5'-6"
41/2"
1'-111/4"2'-1"2'-6"
9"
5'-6"
41/2"
STAIR #1
S2.13
03
03
S7.01
SIM
1'-9"
5'-6"
41/2"
5SPA@6'-3"=31'-3"41/2"1'-8"
3'-21/2"
2'-51/2"
4'-5"
41/2"
6'-3"6'-3"
41/2"
4'-5"
2'-51/2"
3'-21/2"
1'-8"41/2"5SPA@6'-3"=31'-3"
41/2"
5'-6"
1'-9"
1'-10"1'-10"
1'-9" 1'-9"
2'-11/4"2'-1"
1'-5 1/2"
2'-5 1/2"
1'-8 1/2"1'-8 1/2"
2'-5 1/2"
1'-5 1/2"
3'-41/4"118'-11"3'-81/4"
1'-10"1'-10"
245'-0"
1'-8 1/2" 2'-5 1/2" 18'-4" 20'-0" 35'-0" 30'-0" 30'-0" 30'-0" 35'-0" 20'-0" 18'-4" 2'-5 1/2" 1'-8 1/2"
73'-10 3/4" 97'-2 1/2" 73'-10 3/4"
3'-7 1/4"3'-7 1/4"
125'-111/2"
1'-111/4"3'-7"7'-71/2"35'-0"1'-6"27'-0"1'-6"35'-0"7'-71/2"3'-7"1'-71/4"
REF 01/S2.14
FOR HSS 6X6
DIM CONTROL
14'-8" 14'-8"
3"12'-63/4"
3"
3"
14'-8" 14'-8"
3"12'-103/4"
3"
3"
3'-4"
1'-61/2"
1'-41/2"
5'-6"5'-6"
1'-41/2"
1'-61/2"
3'-4"
2'-51/2"
1'-61/2"
3'-4"
2'-51/2"
1'-61/2"
3'-4"
4'-5"
51/2"31/2"
2'-6"
B143
B14204
S7.02
B148
B148
B144
B148
B138
B138
B148B148
H
SS6X6X3/8
TYP
AT
STAIR
S7.01
07OH
S7.01
07
03
S7.01
05
S7.01
1'-7 1/4"
1'-4 1/4"
1'-4 1/4"
1'-7 1/4"
8" CONC CURB
B145B145B145
1'-2"
1'-2"
1'-2"
1'-2"
1'-2"
1'-2"
5'-6"2'-9"3'-6"
2'-7"
1'-8"
1'-61/2"
1'-8"
3'-21/2"
1'-41/2"
5'-6"
4'-5"9"5'-6"2'-11"4'-5"
9"
4'-5"9"5'-6"9"1'-10"5'-6"
9"
5'-6"2'-11"3'-4"
B147
B135
B146
B149
B146
B148
B148
B148
B148
3
3
3
3
3
3
3
3
3
3
3
3
3
3
3 3
3
33
3
3
H
SS6X6X5/16
TYP
AT
AC
C
H
1'-17/8"20'-7"
4
4
4
STEP CURB @ DOOR-
REF ARCH FOR
T/ CURB EL
STEP CURB @ DOOR- REF
ARCH FOR T/ CURB EL
B148B148B148B148
B148B148B148B148
PLAN NOTES:
1. ALL ELEVATIONS ARE REFERENCED TO LEVEL 1 FINISHED FLOOR
EL = 100'-0" (576.0'). REFERENCE SITE PLAN FOR ABSOLUTE ELEVATIONS.
2. SEE S1 SERIES FOR GENERAL NOTES.
3. SEE S3 SERIES FOR COLUMN, BEAM AND GIRDER SCHEDULES.
4. SEE S4 SERIES SHEETS FOR TYPICAL DETAILS.
5. GC SHALL SUBMIT PROPOSED CONSTRUCTION JOINTS FOR REVIEW.
- DENOTES TOP OF SLAB ELEVATION
- HATCHED AREA INDICATES EXTENTS OF 5 1/2" THICK
SLAB - REF 04/S4.10.
7.
6. XXX'-X"
®
®
date
project number
title
The drawings and written material herein constitute original work of the
architect, and as intellectual property and instruments of service, are
subject to copyright and may not be reproduced, distributed, published
or used in any way without the express written consent of the architect.
plotted:
revisions
sheet
original issue
project
landscape architect
223 NORTH GRAHAM ST
CHARLOTTE, NORTH CAROLINA 28202
704.333.0325
structural engineer
RAYMOND L. GOODSON (RLG)
12001 N. CENTRAL EXPY., SUITE 300
DALLAS, TEXAS 75243
214.739.8100
mechanical engineer
JJA, Inc.
8150 N. CENTRAL EXPY., SUITE M-2100
DALLAS, TEXAS 75206
214.739.8880
construction manager
HILL & WILKINSON
2703 TELECOM PKWY, STE 120
RICHARDSON, TEXAS 75082
214.299.4300
civil engineer
222 WEST LAS COLINAS BLVD.
IRVING, TEXAS 75039, SUITE 1405 N
214.785.6009
architecture interiors planning graphics
8070 Park Lane, Ste. 300 Dallas, Texas 75231
Tel 972.701.9000 Fax 972.991.3008
www.bokapowell.com
design architect
2520 BROADWAY ST.
BOULDER, COLORADO 80304
720.565.0505
client/owner
BRIGHT REALTY
2520 KING ARTHUR BLVD., SUITE 200
LEWISVILLE, TEXAS 75056
972.410.6600
PERMIT 10.27.2017
10/24/20184:56:44PM
C:UsersmcroweDocuments15551_Struct_TheRealm_Central_R16_mcrowe.rvt
S2.10
ROOF FRAMING PLAN
14149.100
THE REALM AT CASTLE HILLS
LEWISVILLE, TEXAS
1/8" = 1'-0"01 ROOF LEVEL FRAMING PLAN
1
1
1
1 1
111
1
1
1
1
1
1
1
1
1
1
1 1
1
1
1
1
1
1
1
1
1 1 1
1
2
3
1 Construction Documents 12/19/2017
2 WCPR 01 03/09/2018
3 WCPR 04 06/21/2018
4 WCPR 10 10/24/2018
4
4
CC
DD
3'-51/2"
2'-01/4"
111/4"15'-7"5'-0"
2'-3" 9'-10"
STAIR #2
W12X22
7
7
CC
DD
STAIR #1
9'-10" 2'-3"
3'-63/8"1'-105/8"1'-0"15'-7"5'-0"
W12X22
3
7
7
CC
DD
STAIR #1 21'-87/8"6'-5"
1'-17/8"
9'-10" 2'-3"
1'-2"
9"
1'-2" 13'-11 1/4"
4'-11"1'-2"20'-11"1'-57/8"1'-2"
12'-1"
1'-6"
1'-6"
1'-6"
5
5
5
5
5
5
5
5 5
7
7
CC
DD
1 1/2" 22 GA TYPE "B"
METAL ROOF DECK -
SEE GENERAL NOTES
16'-3 1/4" 9"
24'-87/8"4'-11"
2'-77/8"
T/STL EL = 246'-0 1/4"
W14X22
W14X22
1'-2" 13'-11 1/4" 1'-2"
1'-2"22'-47/8"1'-2"
04
S7.01
02
S7.01
T/STL EL = 246'-3 3/4"
SLOPE
5
5
5
5
5
W12X19
W12X19
W12X19
W12X19
W12X19
PLAN NOTES:
1. ALL ELEVATIONS ARE REFERENCED TO LEVEL 1 FINISHED FLOOR
EL = 100'-0" (576.0'). REFERENCE SITE PLAN FOR ABSOLUTE ELEVATIONS.
2. SEE S1 SERIES FOR GENERAL NOTES.
3. SEE S3 SERIES FOR COLUMN, BEAM AND GIRDER SCHEDULES.
4. SEE S4 SERIES SHEETS FOR TYPICAL DETAILS.
5. GC SHALL SUBMIT PROPOSED CONSTRUCTION JOINTS FOR REVIEW.
- DENOTES TOP OF STEEL ELEVATION (DECK BEARING).6. XXX'-X"
®
®
date
project number
title
The drawings and written material herein constitute original work of the
architect, and as intellectual property and instruments of service, are
subject to copyright and may not be reproduced, distributed, published
or used in any way without the express written consent of the architect.
plotted:
revisions
sheet
original issue
project
landscape architect
223 NORTH GRAHAM ST
CHARLOTTE, NORTH CAROLINA 28202
704.333.0325
structural engineer
RAYMOND L. GOODSON (RLG)
12001 N. CENTRAL EXPY., SUITE 300
DALLAS, TEXAS 75243
214.739.8100
mechanical engineer
JJA, Inc.
8150 N. CENTRAL EXPY., SUITE M-2100
DALLAS, TEXAS 75206
214.739.8880
construction manager
HILL & WILKINSON
2703 TELECOM PKWY, STE 120
RICHARDSON, TEXAS 75082
214.299.4300
civil engineer
222 WEST LAS COLINAS BLVD.
IRVING, TEXAS 75039, SUITE 1405 N
214.785.6009
architecture interiors planning graphics
8070 Park Lane, Ste. 300 Dallas, Texas 75231
Tel 972.701.9000 Fax 972.991.3008
www.bokapowell.com
design architect
2520 BROADWAY ST.
BOULDER, COLORADO 80304
720.565.0505
client/owner
BRIGHT REALTY
2520 KING ARTHUR BLVD., SUITE 200
LEWISVILLE, TEXAS 75056
972.410.6600
PERMIT 10.27.2017
10/24/20184:56:46PM
C:UsersmcroweDocuments15551_Struct_TheRealm_Central_R16_mcrowe.rvt
S2.13
ENLARGED STAIR PLANS
14149.100
THE REALM AT CASTLE HILLS
LEWISVILLE, TEXAS
1/4" = 1'-0"01 LEVELS 2 TO 9 FRAMING PLAN - STAIR #2
1/4" = 1'-0"02 LEVELS 2 TO 9 FRAMING PLAN - STAIR #1
1/4" = 1'-0"03 ROOF FRAMING PLAN - STAIR #1
1/4" = 1'-0"04 HIGH ROOF FRAMING PLAN - STAIR #1
1
1
2
2
2
1 Construction Documents 12/19/2017
2 WCPR 01 03/09/2018
3 WCPR 04 06/21/2018
4 WCPR 07 07/20/2018
5 WCPR 10 10/24/2018
4
4
4
5
5
6
6
7
7
GG
EE
14'-8" 30'-0" 30'-0" 30'-0" 14'-8"
21'-6"
01
S6.11W12X35 (TYP)
W16X40 (TYP)
KNEE BRACE (TYP)
239'-5"
238'-10 1/2"
239'-5"
238'-10 1/2"
LINE OF
ARCH
BELOW
1 1/2" 22 GA TYPE "B"
METAL ROOF DECK -
SEE GENERAL NOTES
9'-21/2"
3'-41/4"
3EQSPA=12'-93/4"
02
S6.11
02
S6.11
AT NANA
WALL
3'-81/4"
ATOH
12'-53/4"
ATOH
2EQSPA=
03
S6.11
03
S6.11
4
4
4
4
5
5
CC
DD
1'-6"
1" 1'-1 1/4"
1'-6" 27'-4 3/4" 15'-8 1/4"
1'-2"
1'-2"
43/4"
27'-0"
1"
1'-2"
1 1/2" 22 GA TYPE "B"
METAL ROOF DECK -
SEE GENERAL NOTES
BOTTOM FLANGE
BRACING (TYP)
REF 02/S6.05
1'-3" 1'-5 1/4" 45'-5"
29'-93/4"
17'-91/2"12'-01/4"
1"1'-2"1'-2"43/4"
02
S7.01
04
S7.01
TYP AT COLTYP
W10X26 TROLLEY
BEAM - COORD
W/ MFR
W12X14 (TYP)
KNEE BRACE
(TYP)
W18X35
W18X35
W18X35
W18X35
W18X35
W18X35
W18X35
W12X14
248'-6"
248'-6"
249'-5 1/2"
249'-4 3/4"
SLOPE
21'-6 1/2"
1'-2"
6
6
7
7
CC
DD
W12X26
4'-10 3/4" 6'-10 1/4" 6'-6"
KNEE BRACE (TYP)
T/STL EL -
COORD
W/ MEP
02
S7.02
5'-43/4"
71/4"
6'-93/8"14'-03/8"5'-71/8"8'-51/4"
W12X19
W12X26
W12X26
W12X26
ACCH
19,300 LBS
ACCH
19,300 LBS
W12X19
W12X19
6'-10 1/4" 4'-10 3/4"
W12X19W12X19W12X19
W12X19
W12X19W12X19
W12X26
W12X26
W12X26
W12X19W12X19
W12X19W12X19W12X19
W12X19
McNICHOLS
QUALITY GRATING
1"X1/8" ITEM GW-
100A HOT DIP
GALV. - TYP
07
S7.02
07
S7.02
W12X19 W12X19
4
4
PLAN NOTES:
1. ALL ELEVATIONS ARE REFERENCED TO LEVEL 1 FINISHED FLOOR
EL = 100'-0" (576.0'). REFERENCE SITE PLAN FOR ABSOLUTE ELEVATIONS.
2. SEE S1 SERIES FOR GENERAL NOTES.
3. SEE S3 SERIES FOR COLUMN, BEAM AND GIRDER SCHEDULES.
4. SEE S4 SERIES SHEETS FOR TYPICAL DETAILS.
5. GC SHALL SUBMIT PROPOSED CONSTRUCTION JOINTS FOR REVIEW.
- DENOTES TOP OF STEEL ELEVATION (DECK BEARING).6. XXX'-X"
®
®
date
project number
title
The drawings and written material herein constitute original work of the
architect, and as intellectual property and instruments of service, are
subject to copyright and may not be reproduced, distributed, published
or used in any way without the express written consent of the architect.
plotted:
revisions
sheet
original issue
project
landscape architect
223 NORTH GRAHAM ST
CHARLOTTE, NORTH CAROLINA 28202
704.333.0325
structural engineer
RAYMOND L. GOODSON (RLG)
12001 N. CENTRAL EXPY., SUITE 300
DALLAS, TEXAS 75243
214.739.8100
mechanical engineer
JJA, Inc.
8150 N. CENTRAL EXPY., SUITE M-2100
DALLAS, TEXAS 75206
214.739.8880
construction manager
HILL & WILKINSON
2703 TELECOM PKWY, STE 120
RICHARDSON, TEXAS 75082
214.299.4300
civil engineer
222 WEST LAS COLINAS BLVD.
IRVING, TEXAS 75039, SUITE 1405 N
214.785.6009
architecture interiors planning graphics
8070 Park Lane, Ste. 300 Dallas, Texas 75231
Tel 972.701.9000 Fax 972.991.3008
www.bokapowell.com
design architect
2520 BROADWAY ST.
BOULDER, COLORADO 80304
720.565.0505
client/owner
BRIGHT REALTY
2520 KING ARTHUR BLVD., SUITE 200
LEWISVILLE, TEXAS 75056
972.410.6600
PERMIT 10.27.2017
10/24/20184:56:47PM
C:UsersmcroweDocuments15551_Struct_TheRealm_Central_R16_mcrowe.rvt
S2.14
PARTIAL PLANS
14149.100
THE REALM AT CASTLE HILLS
LEWISVILLE, TEXAS
1/8" = 1'-0"01 ROOF CANOPY FRAMING PLAN
1/8" = 1'-0"02 ELEVATOR MECHANICAL ROOF FRAMING PLAN
1/8" = 1'-0"03 ACCH SUPPORT FRAMING PLAN
NOTE: ALL STEEL AT COOLING TOWER TO
BE HOT DIPPED GALVANIZED
1
1
1
1
TOP OF STEEL ELEVATIONS UPDATED
TO MATCH ARCHITECTURAL.
1
1 1
1
2
3
1 Construction Documents 12/19/2017
2 WCPR 01 03/09/2018
3 WCPR 04 06/21/2018
4 WCPR 10 10/24/2018
MILD REINFORCING LEGEND:
CALLOUT: 4- 8- D
BAR TYPE PER BAR SCHEDULE
BAR SIZE
BAR QUANTITY
H
G
J
K
L
N
M
P
Q
R
S
T
V
U
A
B
E
C
D
F
REINFORCING BAR SCHEDULE
W
WHICHEVER IS GREATER
WHICHEVER IS GREATER
OR SUPPORT
EDGE OF CANTILEVER
OUTSIDE FACE OF SUPPORT
EDGE OF
OR SUPPORT
CANTILEVER
OF SUPPORT
OUTSIDE FACE
L3
WHICHEVER IS GREATER
L1
FACE OF SUPPORTS
OR END OF BM
L2
NOTE: IN SLAB,
USE STANDARD 180° HOOKS
IN LIEU OF 90° HOOKS SHOWN.
EDGE OF
OR SUPPORT
CANTILEVER
15 BAR DIA
EXTENSION 1/2 L2 1/2 L1
15 BAR DIA
EXTENSION
EXTENSION
15 BAR DIA 1/2 L1 2" CLR
WHICHEVER IS GREATER
1/3 L1 OR 1/3 L3,WHICHEVER IS GREATER
1/3 L1 OR 1/3 L2,
2" CLR
1/4 L1
STDACIHOOKTYP
1/8 L1 3/4 L1 1/8 L1
2" CLR
6" EXTENSION
30 BAR DIA
2" CLR 2" CLR 1/3 L1
2" CLR
6" EXTENSION
2" CLR
2" CLR
-- 1/4 L1 OR 1/4 L3,
1/2 L3 15 BAR DIA EXTENSION
-1/3 L1 OR 1/3 L3,
2" CLR
30 BAR DIA
6" EXTENSION
30 BAR DIA
6" EXTENSION
1/3 L1 OR 1/3 L3,
2" CLR
30 BAR DIA
1/8 L1
2" CLR
1/2 L3 15 BAR DIA EXTENSION
EQ EQ EQ
TOP CAP BAR TO MATCH
SCHED STIRR SPACING, TYP
EQ EQ EQ EQ EQ
135° HOOK AT
PERIMETER SIDE
OF BEAM
TYPE S1 TYPE S2 TYPE S3 TYPE S4
TYPE S5
TOP CAP BAR TO MATCH
SCHED STIRR SPACING, TYP
STIRRUP TYPES
Y
15 BAR DIA EXTENSION 1/2 L2 1/2 L3 15 BAR DIA EXTENSION
®
®
date
project number
title
The drawings and written material herein constitute original work of the
architect, and as intellectual property and instruments of service, are
subject to copyright and may not be reproduced, distributed, published
or used in any way without the express written consent of the architect.
plotted:
revisions
sheet
original issue
project
landscape architect
223 NORTH GRAHAM ST
CHARLOTTE, NORTH CAROLINA 28202
704.333.0325
structural engineer
RAYMOND L. GOODSON (RLG)
12001 N. CENTRAL EXPY., SUITE 300
DALLAS, TEXAS 75243
214.739.8100
mechanical engineer
JJA, Inc.
8150 N. CENTRAL EXPY., SUITE M-2100
DALLAS, TEXAS 75206
214.739.8880
construction manager
HILL & WILKINSON
2703 TELECOM PKWY, STE 120
RICHARDSON, TEXAS 75082
214.299.4300
civil engineer
222 WEST LAS COLINAS BLVD.
IRVING, TEXAS 75039, SUITE 1405 N
214.785.6009
architecture interiors planning graphics
8070 Park Lane, Ste. 300 Dallas, Texas 75231
Tel 972.701.9000 Fax 972.991.3008
www.bokapowell.com
design architect
2520 BROADWAY ST.
BOULDER, COLORADO 80304
720.565.0505
client/owner
BRIGHT REALTY
2520 KING ARTHUR BLVD., SUITE 200
LEWISVILLE, TEXAS 75056
972.410.6600
PERMIT 10.27.2017
10/24/20184:56:50PM
C:UsersmcroweDocuments15551_Struct_TheRealm_Central_R16_mcrowe.rvt
S3.11
CONCRETE BEAM SCHEDULE
14149.100
THE REALM AT CASTLE HILLS
LEWISVILLE, TEXAS
NOTES:
1. LEFT AND RIGHT ENDS ARE DETERMINED BY VIEWING GIRDERS FROM THE BOTTOM OR THE RIGHT SIDE OF THE SHEET FOR ORIENTATION OF MILD REINFORCING.
2. MARKS FOLLOWED BY THE LETTER "R" ARE REVERSED WITH RESPECT TO THE LEFT AND RIGHT ENDS FOR ORIENTATION OF MILD REINFORCING.
3. HOOK END OF BARS SHALL BE LOCATED AT THE END WHERE BAR IS SHOWN IN SCHEDULE.
4. STIRRUPS ARE SPACED FROM FACE OF SUPPORT EACH END.
REF S4.10 AND
S4.11 FOR
TYPICAL DETAILS
SPECIAL NOTES:
1. BOTTOM "J" BARS TO EXTEND TO FACE OF DEEPEND BEAM.
2. BOTTOM "N" BARS AT DEPTH OF BOTTOM BARS OF BEAM MARKED BEFORE.
3. EXTEND HOOKS OF TOP & BOT REINF TO DISCONTINUOUS END IN ADJACENT SPAN.
4. EXTEND BOT "J" BAR TO DISCONTINUOUS END.
5. HOOK 3-6 - T AT DISCONTINUOUS END.
6. CONTINUATION OF B136.
1
1
1
1
1
1
1
2
2
2
2
3
3
1 Construction Documents 12/19/2017
2 WCPR 01 03/09/2018
3 WCPR 04 06/21/2018
4 WCPR 10 10/24/2018
4
4
4
4
SCHED WIDTH
SCHEDDEPTH
WF BM -
REF PLAN
CONT L4X4X1/4
C4X5.4 @ 4'-0" OC
3/8" CAP PL
FULL DEPTH SHEAR TAB
EA SIDE (3/8" MIN)
SLOPE
1 1/2" ROOF DECK -
REF GEN NOTES
T/STL EL
REF PLAN
HSS COL - REF PLAN
1/2" PL W/ 4 - 3/4"
DIA A325 BOLTS
1/4
TYP
HSS4X4X1/4 (TYP)
PL 1/4 (TYP)
NANAWALL AND
CONNX TO
STRUCTURE
BY MFR
HSS12X12 -
REF PLAN
CURTAINWALL -
REF ARCH
METAL PANEL -
REF ARCH
C6X8.2 @4'-0" OC
L5X5X5/16 KICKER
CONT L4X4X1/4
STD AISC SINGLE
PLATE CONNECTION
HSS COL - REF PLAN
1
1
EMBED PL 3/4X12X1'-0"
W/ 4- 3/4" DIA X 6" HS -
REF PLAN DETAIL "A"3" 7 1/2" 1 1/2"
11/2"9"11/2"
OUTSIDE
FACE OF
BM
EMBED PL 1/2X12X1'-0"
W/ 4- 3/4" DIA X 6" HS -
REF PLAN DETAIL "A"
PLAN DETAIL "A"
EMBED
PL
L6X4X3/8 LLV
W12 PURLINS NOT
SHOWN FOR
CLARITY - REF PLAN
EMBED PL 1/2X9X1'-0" W/
4- 3/4" DIA X 6" HS -
REF PLAN DETAIL "B"
EMBED PL 1/2X9X1'-0" W/
4- 3/4" DIA X 6" HS -
REF PLAN DETAIL "B"
1 1/2" 6" 1 1/2"
11/2"
9"
11/2"
OUTSIDE
FACE OF
BM
PLAN DETAIL "B"
EMBED
PL
T/STL EL
REF PLAN
OUTSIDE
FACE OF
BM
S6.11
04
SCHED WIDTH
SCHEDDEPTH
SLOPE
1 1/2" ROOF DECK -
REF GEN NOTES
T/STL EL
REF PLAN
HSS COL - REF PLAN
CURTAINWALL -
REF ARCH
METAL PANEL -
REF ARCH
HSS COL - REF PLAN
1
1
WIDTH
SCHED
WIDTH
SCHED
REF 01/S6.11 FOR
INFO NOT SHOWN
WF BM -
REF PLAN
W12 PURLINS NOT
SHOWN FOR
CLARITY - REF PLAN
S6.11
04
CL BM
REF ARCH
1'-0" MAX
T/ STL EL VARIES
SEE PLAN
CONT L1 1/2X1 1/2X1/4
EDGE ANGLE
CONT C4X5.4
STL BEM- REF PLAN
MTL ROOF DECK-
REF PLAN
CFM STUDS BY CFM
ENG
FINISH- REF ARCH
T/ STL EL
SEE PLAN
STL BM- REF PLAN
MTL ROOF DECK-
REF PLAN
CFM STUDS BY CFM
ENG
FINISH- REF ARCH
STL BM BEYOND NOT
SHOWN FOR CLARITY
SEE 03/S6.11 FOR
INFO NOT SHOWN
L3X3X1/4 OUTRIGGER
@ 48" OC. INFILL W/ CFM
STUDS BY CFM ENG
L3X3X1/4 KICKER @ EA
OUTRIGGER
3/8" GUSSET PL
TYP EA END
CL BM
REF ARCH
1'-0" < x < 1'-6"
®
®
date
project number
title
The drawings and written material herein constitute original work of the
architect, and as intellectual property and instruments of service, are
subject to copyright and may not be reproduced, distributed, published
or used in any way without the express written consent of the architect.
plotted:
revisions
sheet
original issue
project
landscape architect
223 NORTH GRAHAM ST
CHARLOTTE, NORTH CAROLINA 28202
704.333.0325
structural engineer
RAYMOND L. GOODSON (RLG)
12001 N. CENTRAL EXPY., SUITE 300
DALLAS, TEXAS 75243
214.739.8100
mechanical engineer
JJA, Inc.
8150 N. CENTRAL EXPY., SUITE M-2100
DALLAS, TEXAS 75206
214.739.8880
construction manager
HILL & WILKINSON
2703 TELECOM PKWY, STE 120
RICHARDSON, TEXAS 75082
214.299.4300
civil engineer
222 WEST LAS COLINAS BLVD.
IRVING, TEXAS 75039, SUITE 1405 N
214.785.6009
architecture interiors planning graphics
8070 Park Lane, Ste. 300 Dallas, Texas 75231
Tel 972.701.9000 Fax 972.991.3008
www.bokapowell.com
design architect
2520 BROADWAY ST.
BOULDER, COLORADO 80304
720.565.0505
client/owner
BRIGHT REALTY
2520 KING ARTHUR BLVD., SUITE 200
LEWISVILLE, TEXAS 75056
972.410.6600
PERMIT 10.27.2017
10/24/20184:56:52PM
C:UsersmcroweDocuments15551_Struct_TheRealm_Central_R16_mcrowe.rvt
S6.11
FRAMING SECTIONS AND
DETAILS
14149.100
THE REALM AT CASTLE HILLS
LEWISVILLE, TEXAS
01
02
1
1
1 Construction Documents 12/19/2017
2 WCPR 10 10/24/2018
03
04
2
2
2
2
MTL PANEL -
REF ARCH
ROOFING -
REF ARCH 8"
CONC CURB
REF 03/S7.01
HSS - REF PLAN
T/ SLAB EL
REF PLAN
GALV BASE PL 3/4"X12"X1'-0" W/
4 - 3/4" TYPE "B" AB W/ 9" GA,
SHIM PL 1" AND GROUT SOLID
W/ NON-SHRINK GROUT.
REF 03/S7.01 FOR
INFO NOT SHOWN
REF PLAN
2
T/ CURB EL
REF ARCH
3
MTL PANEL -
REF ARCH
(OMIT AT SIM)
ROOFING -
REF ARCH
8"
REF PLAN
CFM WALL -
REF ARCH
#4 X @12" OC EA FACE
#4 HORIZ @ 12" OC EA FACE
CONC CURB
WATER STOP - REF ARCH
SCHED WIDTH
T/ SLAB EL
SEE PLAN
SCHEDDEPTH
T/ CURB EL
REF ARCH
8"
8"
DEPTH
SCHED
DEPTH
SCHED
ELEVATOR SHAFT
CFM WALL OMIT @ SIM
#4 x @ 12" OC TYP
#4 @ 12" OC, EF TYP
#4 x @ 12" OC TYP
1'-3"
REF ARCH
SLOPE
EMBED E2
@ 4'-0" OC MAX
3" METAL ROOF DECK -
REF GENERAL NOTES
T/WALL EL =
REF ARCH
ROOFING - REF ARCH
W12 - REF PLAN
WIDTH
SCHED
WIDTH
SCHED
MECHANICAL ROOM
W8X24 HOIST
BM COORD LOCATION
W/ ELEV MFR
MTL PANEL
REF ARCH
OMIT @ SIM
T/WALL EL
REF ARCH
T/SLAB EL
REF PLAN
.2"MINVERIFYW/
ELEVMFR
2'-0"-TYP
C6, TYP
NOTE: GC TO COORD SIZE AND LOCATION
OF MECH OPNGS AND HOIST BEAM W/ MEP
AND ELEVATOR MFR.
5/8" PUDDLE WELD AT EACH FLUTE
LINE OF MEP OPNG BEYOND
REF PLAN
T/ STEEL EL
REF PLAN
BENT PL - REF 06/S7.01
MTL PANEL -
REF ARCH
WF BM -
REF PLAN
MTL DECK -
REF PLAN
ROOFING -
REF ARCH
OUTRIGGER -
REF 06/S7.01
T/ STL EL
REF PLAN
ROOFING -
REF ARCH
HSS COLUMN -
REF PLAN L4X4X1/4
WF BM -
REF PLAN
MTL DECK
REF GEN NOTES
STANDARD AISC SINGLE
PLATE SHEAR CONNX
DO NOT WELD BRACE
UNTIL DEAD LOAD
HAS BEEN APPLIED
REF 02/S7.01 FOR
INFO NOT SHOWN
1/4
TYP
1
1
REF PLAN
5'-0"
REF PLAN
BENT PL 1/4X4X3
(LLH) CONT
WF BM -
REF PLAN
3/16
3/16
OUTRIGGER
L3X3X1/4 @ 36" OC
1/2"
1"
GALV BASE PL - 3/4 x 10 x 0'-10" W/
3 - 3/4" DIA TYPE "B" AB W/ 7" GA,
SHIM PLATE 1" AND GROUT SOLID
W/ NON-SHRINK GROUT
8" CONC CURB
HSS6X6 SEE PLAN
STAIR #1
1"
1'-2"REFPLAN
1'-2"
CL COL
REF PLAN
®
®
date
project number
title
The drawings and written material herein constitute original work of the
architect, and as intellectual property and instruments of service, are
subject to copyright and may not be reproduced, distributed, published
or used in any way without the express written consent of the architect.
plotted:
revisions
sheet
original issue
project
landscape architect
223 NORTH GRAHAM ST
CHARLOTTE, NORTH CAROLINA 28202
704.333.0325
structural engineer
RAYMOND L. GOODSON (RLG)
12001 N. CENTRAL EXPY., SUITE 300
DALLAS, TEXAS 75243
214.739.8100
mechanical engineer
JJA, Inc.
8150 N. CENTRAL EXPY., SUITE M-2100
DALLAS, TEXAS 75206
214.739.8880
construction manager
HILL & WILKINSON
2703 TELECOM PKWY, STE 120
RICHARDSON, TEXAS 75082
214.299.4300
civil engineer
222 WEST LAS COLINAS BLVD.
IRVING, TEXAS 75039, SUITE 1405 N
214.785.6009
architecture interiors planning graphics
8070 Park Lane, Ste. 300 Dallas, Texas 75231
Tel 972.701.9000 Fax 972.991.3008
www.bokapowell.com
design architect
2520 BROADWAY ST.
BOULDER, COLORADO 80304
720.565.0505
client/owner
BRIGHT REALTY
2520 KING ARTHUR BLVD., SUITE 200
LEWISVILLE, TEXAS 75056
972.410.6600
PERMIT 10.27.2017
10/24/20184:56:54PM
C:UsersmcroweDocuments15551_Struct_TheRealm_Central_R16_mcrowe.rvt
S7.01
FRAMING SECTIONS AND
DETAILS
14149.100
THE REALM AT CASTLE HILLS
LEWISVILLE, TEXAS
05 03
01
0204
1
1
061
1
1
1
1
1
1
07
2
2
2
2
1 Construction Documents 12/19/2017
2 WCPR 01 03/09/2018
3 WCPR 10 10/24/2018
3

Structure case study

  • 1.
    ® ® date project number title The drawingsand written material herein constitute original work of the architect, and as intellectual property and instruments of service, are subject to copyright and may not be reproduced, distributed, published or used in any way without the express written consent of the architect. plotted: revisions sheet original issue project landscape architect 223 NORTH GRAHAM ST CHARLOTTE, NORTH CAROLINA 28202 704.333.0325 structural engineer RAYMOND L. GOODSON (RLG) 12001 N. CENTRAL EXPY., SUITE 300 DALLAS, TEXAS 75243 214.739.8100 mechanical engineer JJA, Inc. 8150 N. CENTRAL EXPY., SUITE M-2100 DALLAS, TEXAS 75206 214.739.8880 construction manager HILL & WILKINSON 2703 TELECOM PKWY, STE 120 RICHARDSON, TEXAS 75082 214.299.4300 civil engineer 222 WEST LAS COLINAS BLVD. IRVING, TEXAS 75039, SUITE 1405 N 214.785.6009 architecture interiors planning graphics 8070 Park Lane, Ste. 300 Dallas, Texas 75231 Tel 972.701.9000 Fax 972.991.3008 www.bokapowell.com design architect 2520 BROADWAY ST. BOULDER, COLORADO 80304 720.565.0505 client/owner BRIGHT REALTY 2520 KING ARTHUR BLVD., SUITE 200 LEWISVILLE, TEXAS 75056 972.410.6600 10/25/20184:53:27PM C:BOKAPREVIT_PROJECTSARCH_14149_THE_REALM_CENTRAL_v16_jessary.rvt A0.01 INDEX SHEET 10.24.2018 PERMIT 14149.100 THE REALM AT CASTLE HILLS LEWISVILLE, TEXAS 10.27.2017 10.27.2017 SHEET INDEX SHEETNUMBER SHEET NAME WCPR06-07.18.2018 WCPR07-07.20.2018 ASI02-08.02.2018 WCPR08-08.07.2018 WCPR09-08.20.2018 ASI03-10.15.2018 WCPR10-10.24.2018 A5.13 WALL SECTIONS A5.14 WALL SECTIONS ● A5.15 WALL SECTIONS ● A5.16 WALL SECTIONS A5.70 SECTION DETAILS A5.71 SECTION DETAILS ● A5.72 SECTION DETAILS ● ● A5.73 SECTION DETAILS ● ● ● A5.74 SECTION DETAILS ● ● A5.75 SECTION DETAILS ● A5.76 SECTION DETAILS ● ● A6.01 REFLECTED CEILING PLAN - LEVEL 1 A6.01a LEVEL 1 REFLECTED CEILING PLAN - AREA A A6.01b LEVEL 1 REFLECTED CEILING PLAN - AREA B A6.02 REFLECTED CEILING PLAN - LEVEL 2 ● A6.03 REFLECTED CEILING PLAN - LEVEL 3 A6.04 REFLECTED CEILING PLAN - LEVEL 4 A6.05 REFLECTED CEILING PLAN - LEVEL 5 A6.06 REFLECTED CEILING PLAN - LEVEL 6 A6.07 REFLECTED CEILING PLAN - LEVEL 7 A6.08 REFLECTED CEILING PLAN - LEVEL 8 ● A6.09 REFLECTED CEILING PLAN - LEVEL 9 ● A6.41 ENLARGED REFLECTED CEILING PLANS A6.42 ENLARGED REFLECTED CEILING PLANS A6.43 ENLARGED REFLECTED CEILING PLANS A6.70 CEILING DETAILS A6.71 COVE DETAILS A7.00 INTERIOR FINISH SCHEDULE A7.01 INTERIOR FINISH PLAN - LEVEL 1 A7.02 INTERIOR FINISH PLAN - LEVEL 2 A7.03 INTERIOR FINISH PLAN - LEVEL 3 A7.04 INTERIOR FINISH PLAN - LEVEL 4 A7.05 INTERIOR FINISH PLAN - LEVEL 5 A7.06 INTERIOR FINISH PLAN - LEVEL 6 A7.07 INTERIOR FINISH PLAN - LEVEL 7 A7.08 INTERIOR FINISH PLAN - LEVEL 8 A7.09 INTERIOR FINISH PLAN - LEVEL 9 A7.10 ENLARGED INTERIOR FINISH PLANS A7.11 ENLARGED INTERIOR FINISH PLANS A7.12 ENLARGED INTERIOR FINISH PLANS A7.40 INTERIOR ELEVATIONS A7.41 INTERIOR ELEVATIONS A7.42 INTERIOR ELEVATIONS A7.43 INTERIOR ELEVATIONS A7.44 INTERIOR ELEVATIONS A7.45 INTERIOR ELEVATIONS A7.46 INTERIOR ELEVATIONS A7.47 INTERIOR ELEVATIONS A7.48 INTERIOR ELEVATIONS A7.49 INTERIOR ELEVATIONS A7.50 INTERIOR ELEVATIONS A7.51 INTERIOR ELEVATIONS A7.52 INTERIOR RAILING DETAILS A7.80 TILE DETAILS A8.51 CASEWORK SECTIONS - SOLID SURFACING / STONE A8.70 FLOOR TRANSITION DETAILS ARCHITECTURE - GARAGE G0.21 LIFE SAFETY G0.22 LIFE SAFETY G0.23 LIFE SAFETY G0.24 LIFE SAFETY G0.25 LIFE SAFETY G2.01 GARAGE FLOOR PLAN - LEVEL G1 G2.02 GARAGE FLOOR PLAN - LEVEL G2 G2.03 GARAGE FLOOR PLAN - LEVEL G3 G2.04 GARAGE FLOOR PLAN - LEVEL G4 G2.05 GARAGE FLOOR PLAN - LEVEL G5 G2.80 GARAGE PLAN DETAILS G3.70 GARAGE VERTICAL CIRCULATION - ELEVATOR / STAIR G3.71 GARAGE VERTICALCIRCULAITON - STAIR G3.72 GARAGE VERTICAL CIRCULATION - SECTIONS G3.73 GARAGE VERTICAL CIRCULATION - SECTIONS G3.74 GARAGE VERTICAL CIRCULATION - DETAILS G3.75 GARAGE VERTICAL CIRCULATION - DETAILS G3.90 GARAGE DETAILS G3.91 GARAGE DETAILS G4.00 GARAGE EXTERIOR ELEVATIONS G4.01 GARAGE EXTERIOR ELEVATIONS G4.10 GARAGE PRECAST PANEL ELEVATIONS G4.11 GARAGE PRECAST PANEL ELEVATIONS G4.12 GARAGE PRECAST PANEL ELEVATIONS G4.13 GARAGE PRECAST PANEL ELEVATIONS G4.14 GARAGE PRECAST PANEL ELEVATIONS G4.70 GARAGE PRECAST PANEL DETAILS G5.00 GARAGE BUILDING SECTIONS G5.01 GARAGE BUILDING SECTIONS G5.10 GARAGE WALL SECTIONS G5.11 GARAGE WALL SECTIONS G5.12 GARAGE WALL SECTIONS G5.70 GARAGE SECTION DETAILS G6.01 GARAGE REFLECTED CEILING PLAN - LEVEL G1 G6.02 GARAGE REFLECTED CEILING PLAN - LEVEL G2 G6.03 GARAGE REFLECTED CEILING PLAN - LEVEL G3 G6.04 GARAGE REFLECTED CEILING PLAN - LEVEL G4 G6.05 GARAGE REFLECTED CEILING PLANS - LEVEL G5 G6.30 GARAGE ENLARGED REFLECTED CEILING PLANS G7.00 GARAGE INTERIOR ELEVATIONS SHEET INDEX SHEETNUMBER SHEET NAME WCPR06-07.18.2018 WCPR07-07.20.2018 ASI02-08.02.2018 WCPR08-08.07.2018 WCPR09-08.20.2018 ASI03-10.15.2018 WCPR10-10.24.2018 L6.03 SITE DETAILS L6.04 SITE DETAILS L6.05 SITE DETAILS L6.06 SITE DETAILS L6.07 SITE DETAILS L6.08 SITE DETAILS L6.09 SITE DETAILS L6.10 SITE DETAILS L6.20 SITE FURNITURE DETAILS L6.21 SITE FURNITURE DETAILS L6.22 SITE FURNITURE DETAILS L6.23 SITE FURNITURE DETAILS L6.24 SITE FURNITURE DETAILS L6.30 SITE LIGHTING DETAILS L6.31 SITE LIGHTING DETAILS L6.32 SITE LIGHTING DETAILS L7.00 SECTION KEY MAP L7.01 SECTION A L7.02 SECTION B L7.03 SECTION C L7.04 SECTION D L7.05 SECTION E ARCHITECTURE A1.01 OVERALL SITE PLAN A1.02 ENLARGED SITE PLAN A1.03 SITE PLAN DETAILS A2.01 FLOOR PLAN - LEVEL 1 A2.01a LEVEL 1 FLOOR PLAN - AREA A A2.01b LEVEL 1 FLOOR PLAN - AREA B A2.02 FLOOR PLAN - LEVEL 2 A2.02a LEVEL 2 FLOOR PLAN - AREA A A2.02b LEVEL 2 FLOOR PLAN - AREA B A2.03 FLOOR PLAN - LEVEL 3 ● A2.04 FLOOR PLAN - LEVEL 4 A2.05 FLOOR PLAN - LEVEL 5 A2.06 FLOOR PLAN - LEVEL 6 A2.07 FLOOR PLAN - LEVEL 7 A2.08 FLOOR PLAN - LEVEL 8 A2.09 FLOOR PLAN - LEVEL 9 A2.10 ROOF PLAN ● A2.50 ENLARGED PLANS A2.51 ENLARGED PLANS ● A2.52 ENLARGED PLANS ● A2.53 ENLARGED PLANS A2.54 ENLARGED PLANS A2.55 ENLARGED PLANS ● A2.56 ENLARGED PLANS A2.57 ENLARGED PLANS ● A2.58 ENLARGED PLANS ● A2.59 ENLARGED PLANS ● A2.71 ROOF DETAILS - SINGLE PLY A2.72 ROOF DETAILS - SINGLE PLY A2.73 ROOF DETAILS - SINGLE PLY A2.80 PLAN DETAILS A2.81 PLAN DETAILS ● A2.82 PLAN DETAILS ● A2.83 PLAN DETAILS A2.84 PLAN DETAILS ● A2.85 PLAN DETAILS ● A2.86 PLAN DETAILS A2.87 PLAN DETAILS ● A2.88 ENLARGED PLAN DETAILS A2.89 PLAN DETAILS ● A3.00 PARTITION TYPES A3.01 PARTITION TYPES A3.05 STANDARD BLOCKING/BACKING DETAILS A3.07 GYPSUM DETAILS A3.10 DOOR TYPES & SCHEDULE A3.14 EXTERIOR DOOR HEAD DETAILS A3.15 INTERIOR DOOR HEAD DETAILS A3.17 EXTERIOR DOOR JAMB DETAILS A3.18 INTERIOR DOOR JAMB DETAILS A3.20 DOOR SILL DETAILS A3.23 SPECIALTY DOOR DETAILS A3.30 WINDOW TYPES ● A3.31 WINDOW TYPES A3.32 WINDOW TYPES A3.33 WINDOW TYPES A3.34 WINDOW DETAILS A3.35 WINDOW DETAILS A3.60 ENLARGED STAIR PLANS & SECTIONS ● A3.61 ENLARGED STAIR PLANS & SECTIONS A3.62 ENLARGED ELEVATOR PLANS & SECTIONS A3.70 CONCRETE FILLED METAL PAN STAIR DETAILS A3.71 CONCRETE FILLED METAL PAN STAIR DETAILS A3.76 LUMINOUS EGRESS PATH MARKINGS A3.90 ELEVATOR DETAILS A4.01 EXTERIOR ELEVATION - WEST ● ● ● A4.01A 3D ELEVATION - WEST A4.02 EXTERIOR ELEVATION - NORTH ● A4.02A 3D ELEVATION - NORTH A4.03 EXTERIOR ELEVATION - EAST ● A4.03A 3D ELEVATION - EAST A4.04 EXTERIOR ELEVATION - SOUTH ● A4.04A 3D ELEVATION - SOUTH A4.05 PARTIAL EXTERIOR ELEVATIONS A4.10 ENLARGED ELEVATIONS A4.11 ENLARGED ELEVATIONS A5.01 BUILDING SECTION A5.02 BUILDING SECTION ● A5.03 BUILDING SECTION A5.10 WALL SECTIONS ● A5.11 WALL SECTIONS ● A5.12 WALL SECTIONS ● SHEET INDEX SHEETNUMBER SHEET NAME WCPR06-07.18.2018 WCPR07-07.20.2018 ASI02-08.02.2018 WCPR08-08.07.2018 WCPR09-08.20.2018 ASI03-10.15.2018 WCPR10-10.24.2018 BC (8)-13 BARRICADE AND CONSTRUCTION CHANNELIZING DEVICES BC (9)-13 BARRICADE AND CONSTRUCTION CHANNELIZING DEVICES BC (10)-13 BARRICADE AND CHANNELIZING DEVICES BC (11)-13 BARRICADE AND CONSTRUCTION PAVEMENT MARKINGS BC (12)-13 BARRICADE AND CONSTRUCTION PAVEMENT MARKING PATTERNS CCCG-12 CONCRETE CURB AND CURB AND GUTTER JS-94 CONCRETE PAVING DETAILS JOINT SEALS PM (1)-12 TYPICAL STANDARD PAVEMENT MARKINGS PM (2)-12 POSITION GUIDANCE USING RAISED MARKERS REFLECTORIZED PROFILE MARKINGS PM (3)-12 PAVEMENT MARKINGS FOR TWO-WAY LEFT TURN LANES DIVIDED HIGHWAYS AND RURAL LEFT TURN BAYS TSR (1)-13 TYPICAL SIGN REQUIREMENTS TSR (2)-13 TYPICAL SIGN REQUIREMENTS TSR (3)-13 TYPICAL SIGN REQUIREMENTS TSR (4)-13 TYPICAL SIGN REQUIREMENTS TSR (5)-13 TYPICAL SIGN REQUIREMENTS SMD (GEN)-08 SIGN MOUNTING DETAILS SMALL ROADSIDE SIGN GENERAL NOTES & DETAILS SMD (SLIP-1)-0 8 (DAL) SIGN MOUNTING DETAILS SMALL ROADSIDE SIGNS TRIANGULAR SLIPBASE SYSTEM SMD (SLIP-2)-0 8 SIGN MOUNTING DETAILS SMALL ROADSIDE SIGNS TRIANGULAR SLIPBASE SYSTEM SMD (SLIP-3)-0 8 SIGN MOUNTING DETAILS SMALL ROADSIDE SIGNS TRIANGULAR SLIPBASE SYSTEM IL-C CURB INLET TYPE C AND EXTENSION TYPE E EC (1)-09 TEMPORARY EROSION, SEDIMENT, AND WATER POLLUTION CONTROL MEASURES EC (3)-93 TEMPORARY EROSION, SEDIMENT, AND WATER POLLUTION CONTROL MEASURES CP-TEP-0 3 (FW) CONCRETE PAVEMENT TIES TO EXISTING PAVEMENT CRCP (1)-13 1 OF 2 CONTINUOUSLY REINFORCED CONCRETE PAVEMENT CRCP (1)-13 2 OF 2 CONTINUOUSLY REINFORCED CONCRETE PAVEMENT MISCELLANEOUS PIPE DETAILS CSDD-00 (FW) CONCRETE SIDEWALK AND DRIVEWAY DETAILS VEGETATION ESTABLISHMENT SHEET INLET AND MANHOLE CAPPING DETAIL LANDSCAPE - FOR REFERENCE ONLY L0.00 LANDSCAPE COVER SHEET L0.01 GENERAL NOTES L0.02 GENERAL NOTES L0.03 GENERAL NOTES L0.04 OVERALL SITE PLAN FUTURE L0.05 OVERALL SITE PLAN PHASE 1A + 1B L0.06 PUBLIC + PRIVATE BOUNDARIES L0.07 ACCESSIBLE ROUTES L1.00 SITE PLAN L1.01 SITE PLAN ENLARGEMENT L1.02 SITE PLAN ENLARGEMENT L1.03 SITE PLAN ENLARGEMENT L1.04 SITE PLAN ENLARGEMENT L1.05 SITE PLAN ENLARGEMENT L1.06 SITE PLAN ENLARGEMENT L1.07 SITE PLAN SLAB L2.00 LAYOUT PLAN L2.01 LAYOUT PLAN ENLARGEMENT L2.02 LAYOUT PLAN ENLARGEMENT L2.03 LAYOUT PLAN ENLARGEMENT L2.04 LAYOUT PLAN ENLARGEMENT L2.05 LAYOUT PLAN ENLARGEMENT L2.06 LAYOUT PLAN ENLARGEMENT L3.00 SITE GRADING PLAN L3.01 SITE GRADING PLAN ENLARGEMENT L3.02 SITE GRADING PLAN ENLARGEMENT L3.03 SITE GRADING PLAN ENLARGEMENT L3.04 SITE GRADING PLAN ENLARGEMENT L3.05 SITE GRADING PLAN ENLARGEMENT L3.06 SITE GRADING PLAN ENLARGEMENT L4.00 PLANTING PLAN L4.01 PLANTING PLAN ENLARGEMENT L4.02 PLANTING PLAN ENLARGEMENT L4.03 PLANTING PLAN ENLARGEMENT L4.04 PLANTING PLAN ENLARGEMENT L4.05 PLANTING PLAN ENLARGEMENT L4.06 PLANTING PLAN ENLARGEMENT L4.10 SITE PLANTING DETAILS L4.11 SITE PLANTING DETAILS L4.12 SITE PLANTING DETAILS L5.00 SITE LIGHTING PLAN L5.01 LIGHTING PLAN ENLARGEMENT L5.02 LIGHTING PLAN ENLARGEMENT L5.03 LIGHTING PLAN ENLARGEMENT L5.04 LIGHTING PLAN ENLARGEMENT L5.05 LIGHTING PLAN ENLARGEMENT L5.06 LIGHTING PLAN ENLARGEMENT L6.00 SITE DETAILS L6.01 SITE DETAILS L6.02 SITE DETAILS SHEET INDEX SHEETNUMBER SHEET NAME WCPR06-07.18.2018 WCPR07-07.20.2018 ASI02-08.02.2018 WCPR08-08.07.2018 WCPR09-08.20.2018 ASI03-10.15.2018 WCPR10-10.24.2018 GENERAL LIFE & SAFETY A0.00 COVER SHEET ● ● ● ● ● A0.01 INDEX SHEET ● ● ● ● ● A0.02 INDEX SHEET ● ● ● ● ● A0.04 INFORMATION SHEET A0.21 LIFE SAFETY PLAN - LEVEL 1 A0.22 LIFE SAFETY PLAN - LEVEL 2 A0.23 LIFE SAFETY PLAN - LEVEL 3 A0.24 LIFE SAFETY PLAN - LEVEL 4 A0.25 LIFE SAFETY PLAN - LEVEL 5 A0.26 LIFE SAFETY PLAN - LEVEL 6 A0.27 LIFE SAFETY PLAN - LEVEL 7 A0.28 LIFE SAFETY PLAN - LEVEL 8 A0.29 LIFE SAFETY PLAN - LEVEL 9 A0.30 TAS 2012 INFORMATION A0.31 TAS 2012 INFORMATION A0.40 CLEAR FLOOR SPACE A0.45 TOILET ACCESSORIES CIVIL - FOR REFERENCE ONLY C0.00 CIVIL COVER SHEET PAGE 1 OF 2 FINAL PLAT PAGE 2 OF 2 FINAL PLAT C1.00 GENERAL NOTES C1.01 REFERENCE OVERALL PLAN C1.02 SITE PLAN I C1.03 SITE PLAN II C1.04 SITE PLAN III C1.05 DIMENSION CONTROL PLAN I C1.06 DIMENSION CONTROL PLAN II C2.00 PAVING PLAN I C2.01 PAVING PLAN II C2.02 TYPICAL SECTIONS C3.00 GRADING PLAN I C3.01 GRADING PLAN II DAM 1 DRAINAGE AREA MAP DAM 2 DRAINAGE AREA MAP C4.01 DRAINAGE AREA MAP C4.02 DRAINAGE CALCULATIONS C4.03 STORM PLAN I C4.04 STORM PLAN II C4.05 STORM PROFILE A C4.06 STORM PROFILE A & B C4.07 STORM PROFILE D, E, F, & G C4.08 STORM PROFILE LAT A C4.09 STORM PROFILE LAT A, B, & D C4.10 STORM PROFILE LAT E & F C5.00 OVERALL UTILITY PLAN C5.01 UTILITY PLAN I C5.02 UTILITY PLAN II C5.03 SS PROFILE A C5.04 SS PROFILE A C5.05 SS PROFILE A C5.06 SS PROFILE B C5.07 SS PROFILE LAT A & B C5.08 WL PROFILE A I C5.09 WL PROFILE A II C5.10 WL PROFILE A III C5.11 WL PROFILE B & C C5.12 WL PROFILE LAT A C5.13 WL PROFILE LAT C C6.00 EROSION CONTROL PLAN C6.01 EROSION CONTROL DETAILS C7.00 PAVING DETAILS C7.01 PAVING DETAILS C7.02 PAVING DETAILS C7.03 STORM DETAILS C7.04 STORM DETAILS C7.05 SANITARY SEWER DETAILS C7.06 SANITARY SEWER DETAILS C7.07 SANITARY SEWER DETAILS C7.08 WATER DETAILS C7.09 WATER DETAILS C7.10 WATER DETAILS C7.11 WATER DETAILS C7.12 WATER DETAILS 1 OF 8 DEMOLITION PLAN - TXDOT TURN LANE 1 2 OF 8 PAVING PLAN - TXDOT TURN LANE 1 3 OF 8 STRIPING PLAN - TXDOT TURN LANE 1 4 OF 8 GRADING AND DRAINAGE PLAN - TXDOT TURN LANE 1 5 OF 8 DEMOLITION PLAN - TXDOT TURN LANE 2 6 OF 8 PAVING PLAN - TXDOT TURN LANE 2 7 OF 8 STRIPING PLAN - TXDOT TURN LANE 2 8 OF 8 GRADING AND DRAINAGE PLAN - TXDOT TURN LANE 2 TCP (1-1)-12 TRAFFIC CONTROL PLAN CONVENTIONAL ROAD SHOULDER WORK TCP (2-1)-12 TRAFFIC CONTROL PLAN CONVENTIONAL ROAD SHOULDER WORK TCP (2-6)-12 TRAFFIC CONTROL PLAN LANE CLOSURES ON DIVIDED HIGHWAYS BC (1)-13 BARRICADE AND CONSTRUCTION GENERAL NOTES AND REQUIREMENTS BC (2)-13 BARRICADE AND CONSTRUCTION PROJECT LIMIT BC (3)-13 BARRICADE AND CONSTRUCTION WORK ZONE SPEED LIMIT BC (4)-13 BARRICADE AND CONSTRUCTION TEMPORARY SIGN NOTES BC (5)-13 BARRICADE AND CONSTRUCTION TYPICAL SIGN SUPPORT BC (6)-13 BARRICADE AND CONSTRUCTION PORTABLE CHANGEABLE MESSAGE SIGN (PCMS) BC (7)-13 BARRICADE AND CONSTRUCTION ARROW PANEL, REFLECTORS, WARNING LIGHTS, & ATTENUATOR 13 131313 1 Construction Documents 12.12.2017 2 Addendum 02 01.11.2018 3 WCPR 01 03.09.2018 4 WCPR 02 05.02.2018 5 WCPR 03 06.13.2018 6 WCPR 04 06.21.2018 7 WCPR 05 06.29.2018 8 ASI 01 07.06.2018 9 WCPR 06 07.18.2018 10 WCPR 07 07.20.2018 11 WCPR 08 08.07.2018 12 WCPR 09 08.20.2018 13 WCPR 10 10.24.2018
  • 2.
    ® ® date project number title The drawingsand written material herein constitute original work of the architect, and as intellectual property and instruments of service, are subject to copyright and may not be reproduced, distributed, published or used in any way without the express written consent of the architect. plotted: revisions sheet original issue project landscape architect 223 NORTH GRAHAM ST CHARLOTTE, NORTH CAROLINA 28202 704.333.0325 structural engineer RAYMOND L. GOODSON (RLG) 12001 N. CENTRAL EXPY., SUITE 300 DALLAS, TEXAS 75243 214.739.8100 mechanical engineer JJA, Inc. 8150 N. CENTRAL EXPY., SUITE M-2100 DALLAS, TEXAS 75206 214.739.8880 construction manager HILL & WILKINSON 2703 TELECOM PKWY, STE 120 RICHARDSON, TEXAS 75082 214.299.4300 civil engineer 222 WEST LAS COLINAS BLVD. IRVING, TEXAS 75039, SUITE 1405 N 214.785.6009 architecture interiors planning graphics 8070 Park Lane, Ste. 300 Dallas, Texas 75231 Tel 972.701.9000 Fax 972.991.3008 www.bokapowell.com design architect 2520 BROADWAY ST. BOULDER, COLORADO 80304 720.565.0505 client/owner BRIGHT REALTY 2520 KING ARTHUR BLVD., SUITE 200 LEWISVILLE, TEXAS 75056 972.410.6600 10/25/20184:53:34PM C:BOKAPREVIT_PROJECTSARCH_14149_THE_REALM_CENTRAL_v16_jessary.rvt A0.02 INDEX SHEET 10.24.2018 PERMIT 14149.100 THE REALM AT CASTLE HILLS LEWISVILLE, TEXAS 10.27.2017 10.27.2017 SHEET INDEX. SHEETNUMBER SHEET NAME WCPR06-07.18.2018 WCPR07-07.20.2018 ASI02-08.02.2018 WCPR08-08.07.2018 WCPR09-08.20.2018 ASI03-10.15.2018 WCPR10-10.24.2018 E2.03 LEVEL 3 ELECTRICAL PLANS E2.04 LEVEL 4 ELECTRICAL PLANS E2.05 LEVEL 5 ELECTRICAL PLANS E2.06 LEVEL 6 ELECTRICAL PLANS E2.07 LEVEL 7 ELECTRICAL PLANS E2.08 LEVEL 8 ELECTRICAL PLANS E2.09 LEVEL 9 ELECTRICAL PLANS E2.10 ROOF POWER PLAN E3.01 ELECTRICAL ENLARGED PLANS ● E3.02 ELECTRICAL ENLARGED PLANS E3.03 ELECTRICAL ENLARGED PLANS E4.01 ELECTRICAL RISERS - OFFICE BUILDING ● E4.02 ELECTRICAL RISERS ● E5.01 ELECTRICAL DETAILS E5.02 ELECTRICAL DETAILS E5.03 LIGHTING CONTROL DIAGRAM E5.04 LIGHTING CONTROL DIAGRAM E5.05 LIGHTING CONTROL DIAGRAM E5.06 LIGHTING CONTROL DIAGRAM E5.07 LIGHTING CONTROL DIAGRAM E5.08 LIGHTING CONTROL DIAGRAM E5.09 LIGHTING CONTROL DIAGRAM E5.10 LIGHTING CONTROL DIAGRAM E6.01 ELECTRICAL LIGHTING AND RELAY PANEL SCHEDULES E6.02 ELECTRICAL SCHEDULES DISTRIBUTION PANELS E6.03 ELECTRICAL SCHEDULES LIGHTING PANELS E6.04 ELECTRICAL SCHEDULES GENERAL POWER PANELS ● E6.05 ELECTRICAL SCHEDULES GENERAL POWER PANELS E6.06 ELECTRICAL SCHEDULES EMERGENCY SYSTEMS ● E6.07 ELECTRICAL SCHEDULES EMERGENCY SYSTEMS ● ELECTRICAL GARAGE GE2.01 GARAGE FIRST FLOOR PLAN - ELECTRICAL GE2.02 GARAGE SECOND FLOOR PLAN - ELECTRICAL GE2.03 GARAGE THIRD FLOOR PLAN - ELECTRICAL GE2.04 GARAGE FOURTH FLOOR PLAN - ELECTRICAL GE2.05 GARAGE FIFTH FLOOR PLAN - ELECTRICAL GE6.01 ELECTRICAL SCHEDULES - GARAGE ● PLUMBING P0.00 PLUMBING AND FIRE PROTECTION COVER SHEET P1.00 SITE PLAN - PLUMBING AND FIRE PROTECTION P2.00 LEVEL 1 UNDERFLOOR PLAN - PLUMBING P2.01 LEVEL 1 FLOOR PLAN - PLUMBING P2.02 LEVEL 2 FLOOR PLAN - PLUMBING P2.03 LEVEL 3 FLOOR PLAN - PLUMBING P2.04 LEVEL 4 FLOOR PLAN - PLUMBING P2.05 LEVEL 5 FLOOR PLAN - PLUMBING P2.06 LEVEL 6 FLOOR PLAN - PLUMBING P2.07 LEVEL 7 FLOOR PLAN - PLUMBING P2.08 LEVEL 8 FLOOR PLAN - PLUMBING P2.09 LEVEL 9 FLOOR PLAN - PLUMBING P2.10 ROOF PLAN - PLUMBING P3.01 ENLARGED FLOOR PLANS - PLUMBING P3.02 ENLARGED FLOOR PLANS - PLUMBING P3.03 ENLARGED FLOOR PLAN - PLUMBING P4.01 FIRE PROTECTION AND PLUMBING DIAGRAMS P4.02 PLUMBING WATER RISER DIAGRAM P4.03 PLUMBING SANITARY RISER DIAGRAM P4.04 PLUMBING SANITARY RISER DIAGRAM P5.01 PLUMBING DETAILS AND DIAGRAMS P5.02 PLUMBING DETAILS AND DIAGRAMS P5.03 PLUMBING DETAILS AND DIAGRAMS P6.01 PLUMBING SCHEDULES PLUMBING GARAGE GP2.00 GARAGE UNDERFLOOR PLAN - PLUMBING GP2.01 GARAGE FIRST FLOOR PLAN - PLUMBING GP2.02 GARAGE SECOND FLOOR PLAN - PLUMBING GP2.03 GARAGE THIRD FLOOR PLAN - PLUMBING GP2.04 GARAGE FOURTH FLOOR PLAN - PLUMBING GP2.05 GARAGE FIFTH FLOOR PLAN - PLUMBING GP3.01 GARAGE ENLARGED PLANS - PLUMBING SHEET INDEX. SHEETNUMBER SHEET NAME WCPR06-07.18.2018 WCPR07-07.20.2018 ASI02-08.02.2018 WCPR08-08.07.2018 WCPR09-08.20.2018 ASI03-10.15.2018 WCPR10-10.24.2018 STRUCTURAL S1.01 STRUCTURAL ABBREVIATIONS AND LEGEND S1.02 GENERAL NOTES S1.03 GENERAL NOTES (CONTINUED) S1.04 SPECIAL INSPECTIONS S1.05 SPECIAL INSPECTIONS (CONTINUED) S2.01 LEVEL 1 FOUNDATION PLAN ● S2.02 LEVEL 2 FRAMING PLAN S2.03 LEVEL 3 FRAMING PLAN ● S2.04 LEVEL 4 FRAMING PLAN ● S2.05 LEVEL 5 FRAMING PLAN ● S2.06 LEVEL 6 FRAMING PLAN S2.07 LEVEL 7 FRAMING PLAN S2.08 LEVEL 8 FRAMING PLAN ● S2.09 LEVEL 9 FRAMING PLAN ● S2.09.5 PRECAST PANEL / CURTAIN WALL BRACING PLAN S2.10 ROOF FRAMING PLAN ● S2.11 PARTIAL PLANS S2.12 ENLARGED ELEVATOR PLANS S2.13 ENLARGED STAIR PLANS ● S2.14 PARTIAL PLANS ● S3.01 COLUMN SCHEDULE S3.10 CONCRETE GIRDER SCHEDULES S3.11 CONCRETE BEAM SCHEDULE ● S4.01 TYPICAL DETAILS - PIER AND SLAB-ON-GRADE S4.02 TYPICAL DETAILS - ELEVATOR AND STAIR S4.05 TYPICAL DETAILS - CMU WALL S4.10 TYPICAL DETAILS - ELEVATED CONCRETE FRAMING S4.11 TYPICAL DETAILS - ELEVATED CONCRETE FRAMING S4.12 TYPICAL DETAILS - ELEVATED PT CONCRETE FRAMING S4.20 TYPICAL DETAILS - STEEL FRAMING S5.01 FOUNDATION PILASTER PLAN DETAILS S5.02 FOUNDATION PILASTER PLAN DETAILS S5.03 FOUNDATION PILASTER PLAN DETAILS S5.05 FOUNDATION SECTIONS AND DETAILS S5.06 FOUNDATION SECTIONS AND DETAILS S6.01 FRAMING SECTIONS AND DETAILS ● S6.02 FRAMING SECTIONS AND DETAILS ● S6.03 FRAMING SECTIONS AND DETAILS S6.04 FRAMING SECTIONS AND DETAILS ● S6.05 FRAMING SECTIONS AND DETAILS ● S6.06 FRAMING SECTIONS AND DETAILS ● S6.07 FRAMING SECTIONS AND DETAILS S6.10 FRAMING SECTIONS AND DETAILS S6.11 FRAMING SECTIONS AND DETAILS ● S7.01 FRAMING SECTIONS AND DETAILS ● S7.02 FRAMING SECTIONS AND DETAILS STRUCTURAL - GARAGE GS2.01 GARAGE FOUNDATION PLAN GS2.02 GARAGE ENLARGED PLANS GS4.01 TYPICAL DETAILS - FOUNDATIONS GS4.02 TYPICAL DETAILS - SLAB-ON-GRADE GS5.01 FOUNDATION SECTIONS AND DETAILS GS5.02 FOUNDATION SECTIONS AND DETAILS MECHANICAL M0.00 HVAC COVER SHEET M0.01 HVAC COMCHECK SHEET M2.01 LEVEL 1 FLOOR PLAN - HVAC M2.02 LEVEL 2 FLOOR PLAN - HVAC M2.03 LEVEL 3 FLOOR PLAN - HVAC M2.04 LEVEL 4 FLOOR PLAN - HVAC M2.05 LEVEL 5 FLOOR PLAN - HVAC M2.06 LEVEL 6 FLOOR PLAN - HVAC M2.07 LEVEL 7 FLOOR PLAN - HVAC M2.08 LEVEL 8 FLOOR PLAN - HVAC M2.09 LEVEL 9 FLOOR PLAN - HVAC M2.10 ROOF PLAN - HVAC M3.01 ENLARGED PLANS - HVAC M4.01 HVAC RISERS M4.02 HVAC RISERS M4.03 HVAC RISERS M5.01 MECHANICAL DETAILS M5.02 MECHANICAL DETAILS M5.03 MECHANICAL DETAILS M5.04 MECHANICAL DETAILS M6.01 MECHANICAL SCHEDULES M6.02 MECHANICAL SCHEDULES M6.03 MECHANICAL SCHEDULES M7.01 MECHANICAL CONTROLS M7.02 MECHANICAL CONTROLS MECHANICAL - GARAGE GM2.01 GARAGE FIRST FLOOR PLAN - HVAC GM2.02 GARAGE SECOND FLOOR PLAN - HVAC GM2.03 GARAGE THIRD FLOOR PLAN - HVAC GM2.04 GARAGE FOURTH FLOOR PLAN - HVAC GM6.01 PARKING GARAGE MECHANICAL SCHEDULES ELECTRICAL E0.00 ELECTRICAL COVER SHEET E1.00 ELECTRICAL SITE PLAN E1.01 PARTIAL ELECTRICAL SITE PLAN E1.02 PARTIAL ELECTRICAL SITE PLAN E1.03 PARTIAL ELECTRICAL SITE PLAN E1.04 PARTIAL ELECTRICAL SITE PLAN E1.05 PARTIAL ELECTRICAL SITE PLAN E1.06 PARTIAL ELECTRICAL SITE PLAN E2.01A LEVEL 1 POWER PLAN E2.01B LEVEL 1 LIGHTING PLAN E2.02A LEVEL 2 POWER PLAN ● ● E2.02B LEVEL 2 LIGHTING PLAN 14 14 1 Construction Documents 12.12.2017 2 Addendum 02 01.11.2018 3 WCPR 01 03.09.2018 4 WCPR 02 05.02.2018 5 WCPR 03 06.13.2018 6 WCPR 04 06.21.2018 7 WCPR 05 06.29.2018 8 ASI 01 07.06.2018 9 WCPR 06 07.18.2018 10 WCPR 07 07.20.2018 11 ASI 02 08.02.2018 12 WCPR 08 08.07.2018 13 WCPR 09 08.20.2018 14 WCPR 10 10.24.2018
  • 3.
    SLOPE SLOPE SLOPE 1/4"PERFT SLOPE 1/4"PERFT SLOPE 1/4"PERFT SLOPE 1/4"PERFT SLOPE 1/4"PERFT SLOPE 1/4"PERFT SLOPE 1/4"PERFT SLOPE 1/4"PERFT D F C 134567810 01 A5.01 01 A5.02 03 A5.10 02 A5.10 01 A5.10 02 A5.13 01 A5.13 04 A5.12 03 A5.12 04 A5.10 A A.2 E.8 29 03 A5.11 B E 03 A5.13 01 A5.03 02 A5.12 01 A5.12 02 A5.11 04 A5.11 MECHANICAL 1001 1 01 A5.11 62'- 7 1/256" 121' - 7" 62' - 7 1/2" 246' - 9 1/2" 162' - 7 3/4" 1' - 3 7/8" 160' - 0" 1' - 3 7/8" 62' - 7" 121' - 7" 62' - 7 1/2" 246' - 9 1/2" /10 A2.71 /10 A2.71 7.8 3.2 01 A5.14 02 A5.14 CONCRETE COLUMN, (TYP.) REF. STRUCTURAL DRAWINGS 3 3 EDGE OF WALL BELOW EDGE OF WALL BELOW 7' - 9 5/8" /01 A2.57 1001 1003 /01 A2.58 16'-0" 04 A5.13 SLOPE 1/4" PER FOOT 06 A2.57 VESTIBULE 1002 SLOPE 1/4" PER FOOT 1002 ELEV CONTROLS 1003 ELECTRICAL 1004 1004 4 5 4 5 4 5 4 5 6 6 6 2 TYP. /01 A2.58 O.H. 8 8 7 7 1'-2" 6'-37/8"5'-0"15'-0"5'-0"15'-0"5'-0"15'-0"5'-0"15'-0" 5'-0" 6'-37/8" 1'-21/4" 3' - 0" 3' - 0" 3'-05/8"3'-05/8"3'-05/8"3'-05/8" 3' - 0" 3' - 0" 6' - 3 7/8" 5' - 0" 5 5/8" 12' - 0 3/8" 5' - 0" 12' - 6" 5' - 0" 7' - 11 5/8" 10' - 0" 5' - 0" 10' - 3" 4' - 6" 10' - 0" 5' - 0" 10' - 6" 4' - 6" 10' - 0" 5' - 3" 10' - 0" 5' - 0" 10' - 0" 5' - 0" 10' - 0" 7' - 9 1/4" 5' - 0" 12' - 6" 5' - 0" 12' - 6" 5' - 0" 6' - 3 7/8" 6' - 8 7/8" 5' - 8 3/4" 18' - 7 3/4" 12' - 10" 17' - 4" 13' - 10" 17' - 4" 12' - 10" 18' - 7 3/4" 4' - 4 3/4" 20' - 1 5/8" 20' - 1 5/8" 20' - 1 5/8" 2' - 9 3/4"2' - 9 3/4" 20' - 1 5/8" 20' - 1 5/8" 20' - 1 5/8" 2'-17/8"22'-65/8"20'-0"20'-0"20'-0"20'-0"22'-65/8"2'-17/8" /05 A3.60 STAIR #1 1000 1000 /05 A2.58 10.1 D.7 D.3 11 ROOF PLAN KEY NOTES X 1 2 ROOF HATCH ELEVATOR OVERRUN 3 ROOF STRUCTURE ABOVE - REF. SECTION 01/A5.02 4 ROOF PARAPET 5 METAL PANEL CLAD CANOPY BELOW 6 ROOFTOP MECHANICAL EQUIPMENT, REF. MECHANICAL DRAWINGS 7 ROOF ANCHOR, TYP. 8 6.625" DIA. GALVANIZED STEEL PASS THROUGH ROPE GUIDE, TYP. ROOF LEGEND OD RD ROOF DRAIN / OVERFLOW DRAIN SLOPE 1/4" PER FT ELEVATION SPOT171'-0" WALK PAD SLOPE DIRECTION ROOF GENERAL NOTES: 1. GENERAL CONTRACTOR TO PROVIDE WALKPADS FROM ROOF HATCH TO ALL ROOFTOP EQUIPMENT, FINAL LAYOUT TO BE DETERMINED ® ® date project number title The drawings and written material herein constitute original work of the architect, and as intellectual property and instruments of service, are subject to copyright and may not be reproduced, distributed, published or used in any way without the express written consent of the architect. plotted: revisions sheet original issue project landscape architect 223 NORTH GRAHAM ST CHARLOTTE, NORTH CAROLINA 28202 704.333.0325 structural engineer RAYMOND L. GOODSON (RLG) 12001 N. CENTRAL EXPY., SUITE 300 DALLAS, TEXAS 75243 214.739.8100 mechanical engineer JJA, Inc. 8150 N. CENTRAL EXPY., SUITE M-2100 DALLAS, TEXAS 75206 214.739.8880 construction manager HILL & WILKINSON 2703 TELECOM PKWY, STE 120 RICHARDSON, TEXAS 75082 214.299.4300 civil engineer 222 WEST LAS COLINAS BLVD. IRVING, TEXAS 75039, SUITE 1405 N 214.785.6009 architecture interiors planning graphics 8070 Park Lane, Ste. 300 Dallas, Texas 75231 Tel 972.701.9000 Fax 972.991.3008 www.bokapowell.com design architect 2520 BROADWAY ST. BOULDER, COLORADO 80304 720.565.0505 client/owner BRIGHT REALTY 2520 KING ARTHUR BLVD., SUITE 200 LEWISVILLE, TEXAS 75056 972.410.6600 10/25/20184:53:43PM C:BOKAPREVIT_PROJECTSARCH_14149_THE_REALM_CENTRAL_v16_jessary.rvt A2.10 ROOF PLAN 10.24.2018 PERMIT 14149.100 THE REALM AT CASTLE HILLS LEWISVILLE, TEXAS 10.27.2017 10.27.2017 PLAN NORTH TRUE NORTH SCALE: 1/8" = 1'-0"01 ROOF PLAN 1 Construction Documents 12.12.2017 2 WCPR 01 03.09.2018 3 WCPR 04 06.21.2018 4 WCPR 10 10.24.2018 4 4
  • 4.
    UP D C 4567 17' - 7"30' - 0" 30' - 0" 30' - 0" 17' - 7" 5' - 8" 4' - 6 7/8" 5' - 0 3/8" 24' - 7" 5' - 7 3/4" 11' - 11 1/4" 10' - 3 1/2" 11' - 9 1/8" 15' - 6 5/8" 14' - 5 3/8" 10' - 5 3/8" 5' - 2 3/4" 30'-0" 1'-6"27'-0"1'-6" 22'-31/4"3'-1"4'-73/4" 9'-7"12'-81/4"3'-1"4'-73/4" 6'-61/2"4'-91/2"3'-8"3'-8"11'-4" 18'-73/8"6'-0"5'-45/8" /03 A3.60 /03 A3.61 302A 304A303A 306A 307A 308A 311A 312A /02 A3.62 WOMEN 304 MEN 303 RESTROOM LOBBY 305 JANITOR 306 STORAGE 307 ELEVATOR LOBBY 301 SERVICE VESTIBULE 308 FAN 311 STAIR #2 312 STAIR #1 302 6'-61/2"20'-81/2"2'-9" 6'-61/2"20'-5"3'-01/2" 8' - 6"11' - 11 1/4" ELECTRICAL 310 PHONE 309 /02 A2.55 1'-71/2"1'-5" RECESSED FIRE EXTINGUISHER CABINEET RECESSED FIRE EXTINGUISHER CABINEET CONCRETE COLUMN, REF. STRUCTURAL DRAWINGS 1' - 10" 2' - 6 1/8" CONCRETE COLUMN, REF. STRUCTURAL DRAWINGS RECESSED FIRE EXTINGUISHER CABINET SLAB OPENING, REF. STRUCTURAL AND ELECTRICAL DRAWINGS H4 F3 F3 F3F3 H2 H2 H2 C4 C2 D3D3 H6 C4 F2 H3 F2 F2 H3 F2 F2 F2F2 H3 H4 C2 C2 F3F3 F3F3 F3 C2 C2 F3F3 F3F3 D3D3 D3D3 D3D3 D3 C2 D3 F3 H3H3F2F2 F2F2 H3 F2 F2D3 F2 F2 D3 C2 C2 D3C2C2 D3 D3 D3 F2F2F2 F2 D5C2 C2 G2 D3D3 D3D3D3D3D3 C2 C2 C2 125' - 2" 2 D C 4567 /04 A3.60 /04 A3.61 WOMEN 904 MEN 903 RESTROOM LOBBY 905 JANITOR 906 ELEVATOR LOBBY 901 STORAGE 907 SERVICE VESTIBULE 908 STAIR #2 912 STAIR #1 902 /02 A3.62 904A903A 906A 907A 908A 912A 902A 125' - 2" 17' - 7" 30' - 0" 30' - 0" 30' - 0" 17' - 7" 5' - 8" 4' - 6 7/8" 5' - 0 3/8" 24' - 6 3/4" 5' - 8" 22' - 2 3/4" 10' - 10 1/4" 30' - 10 7/8" 10' - 5 3/8" 5' - 2 3/4" 1'-6"27'-0"1'-6" 22'-41/4"3'-0"4'-73/4" 9'-71/8"12'-91/8"3'-0"4'-73/4" 6'-91/2"20'-21/2"3'-0" 6'-61/2"20'-5"3'-01/2" 6'-91/2"4'-61/2"3'-8"3'-8"11'-4" ELECTRICAL 910 PHONE 909 FAN 911 /02 A2.55 1' - 10" 2' - 5" CONCRETE COLUMN, REF. STRUCTURAL DRAWINGS RECESSED FIRE EXTINGUISHER CABINET MECHANICAL EQUIPMENT, REF. MECHANICAL DRAWINGS CONCRETE COLUMN, REF. STRUCTURAL DRAWINGS RECESSED FIRE EXTINGUISHER CABINET 1'-71/4" 1'-51/8" 4'-23/4"4'-0"4'-91/2"4'-0"3'-43/4" CONCRETE COLUMN, REF. STRUCTURAL DRAWINGS 22'-41/4"7'-73/4" RECESSED FIRE EXTINGUISHER CABINET SLAB OPENING, REF. STRUCTURAL AND ELECTRICAL DRAWINGS C2 C4 F3F3F3 F3 H6H4 C4 C2 C2 H2H2 C2 F3 F3F3 F3F3 F3 F3 F3F3 F3F3 D3D3 D3D3 D3 D3D3D3 C2 C2 C2 D3D3D3 D3 C2 C2 D3D3D3 C2C2 C2 F2F2F2F2 C2 C2 G2 D5 D3D3D3 D3 C2 D3D3D3D3 F2F2F2F2 C2 F2 H3 F2F2 F2 F2 H3H3 30'-0" 3'-13/4"4'-0"5'-11"4'-0"3'-13/4" 4' - 6" 5' - 0" 5' - 8" 2 ® ® date project number title The drawings and written material herein constitute original work of the architect, and as intellectual property and instruments of service, are subject to copyright and may not be reproduced, distributed, published or used in any way without the express written consent of the architect. plotted: revisions sheet original issue project landscape architect 223 NORTH GRAHAM ST CHARLOTTE, NORTH CAROLINA 28202 704.333.0325 structural engineer RAYMOND L. GOODSON (RLG) 12001 N. CENTRAL EXPY., SUITE 300 DALLAS, TEXAS 75243 214.739.8100 mechanical engineer JJA, Inc. 8150 N. CENTRAL EXPY., SUITE M-2100 DALLAS, TEXAS 75206 214.739.8880 construction manager HILL & WILKINSON 2703 TELECOM PKWY, STE 120 RICHARDSON, TEXAS 75082 214.299.4300 civil engineer 222 WEST LAS COLINAS BLVD. IRVING, TEXAS 75039, SUITE 1405 N 214.785.6009 architecture interiors planning graphics 8070 Park Lane, Ste. 300 Dallas, Texas 75231 Tel 972.701.9000 Fax 972.991.3008 www.bokapowell.com design architect 2520 BROADWAY ST. BOULDER, COLORADO 80304 720.565.0505 client/owner BRIGHT REALTY 2520 KING ARTHUR BLVD., SUITE 200 LEWISVILLE, TEXAS 75056 972.410.6600 10/19/201811:32:23AM C:BOKAPREVIT_PROJECTSARCH_14149_THE_REALM_CENTRAL_v16_jessary.rvt A2.52 ENLARGED PLANS 10.24.2018 PERMIT 14149.100 THE REALM AT CASTLE HILLS LEWISVILLE, TEXAS 10.27.2017 10.27.2017 SCALE: 1/4" = 1'-0"01 LEVEL 3 ENLARGED CORE PLAN SCALE: 1/4" = 1'-0"02 LEVEL 9 ENLARGED CORE PLAN 1 WCPR 01 03.09.2018 2 WCPR 10 10.24.2018
  • 5.
    D C 4 5 02/A4.10 01/A4.10 03/A4.10 04/A4.10 MECHANICAL 1001 1003 1001 1'-61/2"27'-0"1'-10" 30'-41/2" 9' - 65/8" 8' - 2" 1' - 6 1/2" 23' - 11 1/4" 14' - 3 5/8" 8' - 11 3/8" 48' - 8 3/4" 2' - 8 3/4" 28' - 10 1/4" 8' - 2 7/8" 8' - 11 3/8" 18'-41/4"12'-01/4" 11'-93/8" 46' - 0 1/2" 05 A2.72 03 A2.57 ROOF DRAIN & OVERFLOW DRAIN 04 A2.57 1002 05 A2.72 ELECTRICAL 1004 VESTIBULE 1002 ELEV CONTROLS 1003 H3 H3 H1 1004 F2 C ROOF EL. 235' - 2" PENTHOUSE EL. 248' - 1 1/2" CAST IN PLACE CONCONRETE WALL 4" RIBBED METAL PANEL WALL BATT INSULATION, R-19 MIN. /09 A2.57 D C 02/A4.10 01/A4.10 03/A4.10 04/A4.10 03 A2.57 04 A2.57 PREFINISHED SHEET METAL GUTTER SPLASH BLOCK SLOPE 1/4" PER FOOT 05 A2.57 5 ROOF EL. 235' - 2" PENTHOUSE EL. 248' - 1 1/2" CAST IT PLACE CONCRETE WALL /08 A2.57 4" FORMED METAL WALL PANEL BATT INSULATION, R-19 MIN. COMPOSITE METAL DECK, REFER TO STRUCTURAL CONCRETE ROOF SLAB, REFER TO STRUCTURAL /09 A2.57 O.H. PRE-FINISHED METAL PANEL, TYPICAL CONTINOUS CLEAT AND SHEET METAL FASCIA TRIM PRE-FINISHED SHEET METAL GUTTER SINGLE PLY ROOF MEMBRANE, LAP OVER BLOCKING AT FASCIA TREATED 2x BLOCKING SELF ADHERED VAPOR BARRIER DOWNSPOUT, BEYOND FLEXIBLE FLASHING - LAP FROM ROOF DECK TO FLUID APPLIED MOISTURE BARRIER GUTTER BRACKET WITH FASTENERS TO BLOCKING SHEET METAL OR MEMBRANE COATED METAL TRIM / FASCIA MEMBRANE FLASHING - BOND TO ROOF MEMBRANE & METAL TRIM PER MANUFACTURER RIGID INSULATION AND COVER BOARD EXTERIOR SHEATHING, TYPICAL THERMAL BARRIER 5 ROOF EL. 235' - 2" 4" FORMED METAL PANEL, TYPICAL FLEXIBLE FLASHING, LAP OVER METAL FLASHING, TYPICAL TRIM /CLOSURE AT METAL PANEL FLASH AT WALL CONNECTION & PROVIDE WEEP DRAINAGE AS REQUIRED TWO PIECE COUNTER FLASHING SYSTEM TERMINATION BAR & FASTENER EXTERIOR SHEATHING, TYPICAL AIR/MOISTURE BARRIER CAST IN PLACE CONCRETE WALL RIGID INSULATION EMBEAD PLATE, REFER TO STRUCTURAL COMPOSITE METAL DECK, REFER TO STRUCTURAL CONCRETE ROOF SLAB, REFER TO STRUCTURAL COVER BOARD SINGLE-PLY MEMBRANE FLASHING EXTENDED OVER ROOF MEMBRANE SINGLE PLY ROOF MEMBRANE ROOF EL. 235' - 2" 4" FORMED METAL WALL PANEL BEYOND CAST IN PLACE CONCRETE WALL, REFER TO STRUCTURAL SINGLE PLY ROOF MEMBRANE RIGID INSULATION 1/2" COVERBOARD AIR & MOISTURE BARRIER 1/2" EXTERIOR SHEATHING ROOF EL. 235' - 2" 4" RIBBED METAL PANEL MECHANICAL SCREEN WALL CONCRETE COLUMN BEYOND, REF. STRUCTURAL DRAWINGS 13'-8"1'-4" 15'-0" PRE-FINISHED METAL PANEL, TYPICAL SINGLE PLY ROOF MEMBRANE, LAP OVER BLOCKING AT FASCIA TREATED 2x BLOCKING SELF ADHERED VAPOR BARRIER FLEXIBLE FLASHING - LAP FROM ROOF DECK TO FLUID APPLIED MOISTURE BARRIER SHEET METAL OR MEMBRANE COATED METAL TRIM / FASCIA MEMBRANE FLASHING - BOND TO ROOF MEMBRANE & METAL TRIM PER MANUFACTURER RIGID INSULATION AND COVER BOARD EXTERIOR SHEATHING, TYPICAL THERMAL BARRIER ® ® date project number title The drawings and written material herein constitute original work of the architect, and as intellectual property and instruments of service, are subject to copyright and may not be reproduced, distributed, published or used in any way without the express written consent of the architect. plotted: revisions sheet original issue project landscape architect 223 NORTH GRAHAM ST CHARLOTTE, NORTH CAROLINA 28202 704.333.0325 structural engineer RAYMOND L. GOODSON (RLG) 12001 N. CENTRAL EXPY., SUITE 300 DALLAS, TEXAS 75243 214.739.8100 mechanical engineer JJA, Inc. 8150 N. CENTRAL EXPY., SUITE M-2100 DALLAS, TEXAS 75206 214.739.8880 construction manager HILL & WILKINSON 2703 TELECOM PKWY, STE 120 RICHARDSON, TEXAS 75082 214.299.4300 civil engineer 222 WEST LAS COLINAS BLVD. IRVING, TEXAS 75039, SUITE 1405 N 214.785.6009 architecture interiors planning graphics 8070 Park Lane, Ste. 300 Dallas, Texas 75231 Tel 972.701.9000 Fax 972.991.3008 www.bokapowell.com design architect 2520 BROADWAY ST. BOULDER, COLORADO 80304 720.565.0505 client/owner BRIGHT REALTY 2520 KING ARTHUR BLVD., SUITE 200 LEWISVILLE, TEXAS 75056 972.410.6600 10/25/20184:53:47PM C:BOKAPREVIT_PROJECTSARCH_14149_THE_REALM_CENTRAL_v16_jessary.rvt A2.57 ENLARGED PLANS 10.24.2018 PERMIT 14149.100 THE REALM AT CASTLE HILLS LEWISVILLE, TEXAS 10.27.2017 10.27.2017 SCALE: 1/4" = 1'-0"01 ENLARGED FLOOR PLAN - MECHANICAL ROOM SCALE: 1/4" = 1'-0"03 SECTION - MECHANICAL ROOM SCALE: 1/4" = 1'-0"02 PENTHOUSE ROOF PLAN SCALE: 1/4" = 1'-0"04 SECTION - MECHANICAL ROOM SCALE: 3" = 1'-0"05 SECTION DETAIL SCALE: 1 1/2" = 1'-0"08 SECTION DETAIL SCALE: 1 1/2" = 1'-0"07 SECTION DETAIL SCALE: 1/4" = 1'-0"06 SECTION - SCREEN WALL SCALE: 3" = 1'-0"09 SECTION DETAIL 1 Construction Documents 12.12.2017 2 WCPR 01 03.09.2018 3 WCPR 04 06.21.2018 4 WCPR 10 10.24.2018 4 4 4
  • 6.
    F 4567 E.8 G H E 02 A2.58 6 1/2" 15'- 3" 30' - 0" 30' - 0" 30' - 0" 15' - 3" 6 1/2" 121' - 7" 27'-51/2" ROOF BELOW PARAPET CAP BELOW PARAPET CAP BELOW /04 A2.58 /03 A2.58 STEEL COLUMN BELOW, REF. STRUCTURAL DRAWINGS STEEL BEAM BELOW, REF. STRUCTURAL DRAWINGS ALUMINUM COMPOSITE PANEL BELOW 06 A5.15 T.O. PARAPET EL. 239' - 8" FLUID APPLIED MEMBRANE AIR BARRIER 1/2" EXTERIOR SHEATHING ALUMINUM COMPOSITE PANEL BEYOND STEEL BEAM, REF. STRUCTURAL DRAWINGS 2 5/8" COLD FORMED METAL FRAMING CEILING PANEL SYSTEM SINGLE PLY ROOF MEMBRANE 1/2" COVER BOARD 1 1/2" METAL DECK ALUMINUM COMPOSITE PANEL PRECAST ARCHITECTURAL CONCRETE BEYOND 4" L3X3X1/4 OUTRIGGER @ 48" O.C. 61/2" 6" CONTINUOUS L1 1/2X1 1/2X1/4 EDGE ANGLE CONTINUOUS C4X5.4 CHANNEL L3X3X1/4 KICKER @ EACH OUTRIGGER GUSSET PLATE F E ROOF CANOPY EDGE ABOVE ALUMINUM COMPOSITE PANEL 1/2" EXTERIOR SHEATHING FLUID APPLIED MEMBRANE AIR BARRIER 6" COLD FORMED METAL FRAMING STEEL COLUMN, REF. STRUCTURAL DRAWINGS 3 5/8" COLD FORMED METAL FRAMING 6" COLD FORMED METAL FRAMING FLUID APPLIED MEMBRANE AIR BARRIER 1/2" EXTERIOR SHEATHING 7/8" HAT CHANNEL STEEL COLUMN, REF. STRUCTURAL DRAWINGS ROOF CANOPY EDGE ABOVE 10'-43/4"93/4" 37/8" ALUMINUM COMPOSITE PANELS F E.8 PRECAST ARCHITECTURAL CONCRETE BELOW ALUMINUM COMPOSITE PANEL 1/2" EXTERIOR SHEATHING 6" COLD FORMED METAL FRAMING BATT INSULATION 1/2" EXTERIOR SHEATHING SINGLE PLY RWF MEMBRANE STEEL COLUMN, REF. STRUCTURAL DRAWINGS 3 5/8" COLD FORMED METAL FRAMING 6" COLD FORMED METAL FRAMING ALUMINUM COMPOSITE PANEL 7/8" HAT CHANNEL C 7 07/A4.10 06/A4.10 08/A4.10 05/A4.10 SLOPE 1/4" PER FOOT GUTTER & SPLASH BLOCK ® ® date project number title The drawings and written material herein constitute original work of the architect, and as intellectual property and instruments of service, are subject to copyright and may not be reproduced, distributed, published or used in any way without the express written consent of the architect. plotted: revisions sheet original issue project landscape architect 223 NORTH GRAHAM ST CHARLOTTE, NORTH CAROLINA 28202 704.333.0325 structural engineer RAYMOND L. GOODSON (RLG) 12001 N. CENTRAL EXPY., SUITE 300 DALLAS, TEXAS 75243 214.739.8100 mechanical engineer JJA, Inc. 8150 N. CENTRAL EXPY., SUITE M-2100 DALLAS, TEXAS 75206 214.739.8880 construction manager HILL & WILKINSON 2703 TELECOM PKWY, STE 120 RICHARDSON, TEXAS 75082 214.299.4300 civil engineer 222 WEST LAS COLINAS BLVD. IRVING, TEXAS 75039, SUITE 1405 N 214.785.6009 architecture interiors planning graphics 8070 Park Lane, Ste. 300 Dallas, Texas 75231 Tel 972.701.9000 Fax 972.991.3008 www.bokapowell.com design architect 2520 BROADWAY ST. BOULDER, COLORADO 80304 720.565.0505 client/owner BRIGHT REALTY 2520 KING ARTHUR BLVD., SUITE 200 LEWISVILLE, TEXAS 75056 972.410.6600 10/25/20184:53:58PM C:BOKAPREVIT_PROJECTSARCH_14149_THE_REALM_CENTRAL_v16_jessary.rvt A2.58 ENLARGED PLANS 10.24.2018 PERMIT 14149.100 THE REALM AT CASTLE HILLS LEWISVILLE, TEXAS 10.27.2017 10.27.2017 SCALE: 1/4" = 1'-0"01 ENLARGED CANOPY PLAN SCALE: 1 1/2" = 1'-0"02 SECTION DETAIL SCALE: 1 1/2" = 1'-0"04 ENLARGED PLAN DETAIL SCALE: 1 1/2" = 1'-0"03 ENLARGED PLAN DETAIL SCALE: 1/4" = 1'-0"05 STAIR #01 ROOF PLAN 3 1 Construction Documents 12.12.2017 2 WCPR 01 03.09.2018 3 WCPR 10 10.24.2018
  • 7.
    10 A A.2 3/4" CHAMFER TYP. 7"PRECAST ARCHITECTURAL CONCRETE PANEL 3/4" BACKER ROD & SEALANT GLAZED ALUMINUM CURTAIN WALL SYSTEM GLAZED ALUMINUM CURTAIN WALL SYSTEM 3/4" BACKER ROD & SEALANT 3 5/8" NON STRUCTURAL METAL FRAMING BATT INSULATION, R-13 MIN. SLAB EDGE BELOW SLAB EDGE BELOW 2' - 3" 2'-8" 7" 1' - 1" 7"7"1'-6"7" PRECAST CONCRETE BELOW 7" 1' - 0" 2" 1" 7"1'-0"2"1" 10.1 K 6" COLD FORMED METAL FRAMING BATT INSULATION, R-19 MIN. 1/2" EXTERIOR SHEATHING FLUID APPLIED MEMBRANE AIR BARRIER PAPER BACKED METAL LATH THIN STONE MASONRY VENEER 1/2" MARINE GRADE PLYWOOD, PAINTED 6" COLD FORMED METAL FRAMING 1/2" MARINE GRADE PLYWOOD TREATED WOOD BLOCKING J-MOLD STAINLESS STEEL FLASHING J-MOLD 3/4" BROWN & SCRATCH COAT 2'-31/8" 1'- 5 1/8" 124.76° /02 A2.85 /02 A2.85 SIM. 10.1 1/2" EXTERIOR SHEATHING FLUID APPLIED MEMBRANE AIR BARRIER PAPER BACKED METAL LATH THIN STONE MASONRY VENEER 3/4" TREATED PLYWOOD, PAINTED 6" COLD FORMED METAL FRAMING STAINLESS STEEL FLASHING J-MOLD 3/4" BROWN & SCRATCH COAT 3/4" BACKER ROD AND SEALANT /08 A2.85 10.1 F 4 1'-10" 71/2" 3/4" BACKER ROD & SEALANT THIN STONE MASONRY VENEER EXTERIOR SHEATHING 7" PRECAST ARCHITECTURAL CONCRETE PANEL 3/4" CHAMFER, TYP. GLAZED ALUMINUM CURTAINWALL SYSTEM 6" COLD FORMED METAL FRAMING BATT INSULATION, R-19 MIN. METAL COMPOSITE PANEL FLUID APPLIED MEMBRANE AIR BARRIER 1' - 4"7' - 3"1' - 4" PAPER BACKED METAL LATH 3/4" BROWN & SCRATCH COAT 3 5/8" NON-STRUCTURAL METAL FRAMING THIN STONE MASONRY VENEER 5/8" GYPSUM BOARD CONCRETE COLUMN, REF. STRUCTURAL DRAWINGS 7/8" HAT CHANNEL 5/8" GYPSUM BOARD 7/8" HAT CHANNEL BATT INSULATION, R-13 MIN. /10 A2.88 SIM. 6 6'-0"6'-0"6'-0" 6" 4' - 6" 6" 3-5/8" NON-STRUCTURAL METAL FRAMING BATT INSULATION, R - 13 MIN. 8" X 8" X 16" CMU THIN STONE VENEER OVER 3/4" MORTAR CONCRETE RAMP, TYP. EDGE OF SLAB BELOW FLUID APPLIED MEMBRANE AIR BARRIER PAPER BACKED METAL LATH 5/8" GYP. BOARD 99' - 6" 100' - 0" 99' - 6" 100' - 0" C 6 3 5/8" NON-STRUCTURAL METAL FRAMING 5/8" GYPSUM BOARD (2 LAYERS) CONCRETE COLUMN, REF. STRUCTURAL DRAWINGS 3 5/8" NON-STRUCTURAL METAL FRAMING 3 5/8" NON-STRUCTURAL METAL FRAMING 8" X 8" X 16" CONCRETE MASONRY UNIT BATT INSULATION, R-13 MIN. 3/4" BROWN & SCRATCH COAT THIN STONE MASONRY VENEER 3 5/8" NON-STRUCTURAL METAL FRAMING TREATED WOOD BLOCKING5/8" GYPSUM BOARD 5/8" GYPSUM BOARD 5/8" GYPSUM BOARD 1' - 9 5/8" 7 3/4" 1'-01/2" CORNER BEAD, TYP. FLUID APPLIED MEMBRANE AIR BARRIER J MOLD CASING BEAD 1/2" MARINE GRADE PLYWOOD, PAINTED THERMAL INSULATION 6" COLD FORM METAL FRAMING BRAKE METAL FLASHING BACKER ROD AND SEALANT J MOLD CASING BEAD SELF ADHERED FLEXIBLE FLASHING LIQUID APPLIED AIR AND MOISTURE BARRIER EXTERIOR SHEATHING BROWN AND SCRATCH COAT OVER PAPER BACKED LATHE THIN STONE VENEER 3/4" TREATED PLYWOOD THERMAL INSULATION 6" COLD FORMED METAL FRAMING BRAKE METAL FLASHING FLUID APPLIED AIR AND MOISTURE BARRIER EXTERIOR SHEATHING J MOLD CASING BEAD SELF ADHERING FLEXIBLE FLASHING ® ® date project number title The drawings and written material herein constitute original work of the architect, and as intellectual property and instruments of service, are subject to copyright and may not be reproduced, distributed, published or used in any way without the express written consent of the architect. plotted: revisions sheet original issue project landscape architect 223 NORTH GRAHAM ST CHARLOTTE, NORTH CAROLINA 28202 704.333.0325 structural engineer RAYMOND L. GOODSON (RLG) 12001 N. CENTRAL EXPY., SUITE 300 DALLAS, TEXAS 75243 214.739.8100 mechanical engineer JJA, Inc. 8150 N. CENTRAL EXPY., SUITE M-2100 DALLAS, TEXAS 75206 214.739.8880 construction manager HILL & WILKINSON 2703 TELECOM PKWY, STE 120 RICHARDSON, TEXAS 75082 214.299.4300 civil engineer 222 WEST LAS COLINAS BLVD. IRVING, TEXAS 75039, SUITE 1405 N 214.785.6009 architecture interiors planning graphics 8070 Park Lane, Ste. 300 Dallas, Texas 75231 Tel 972.701.9000 Fax 972.991.3008 www.bokapowell.com design architect 2520 BROADWAY ST. BOULDER, COLORADO 80304 720.565.0505 client/owner BRIGHT REALTY 2520 KING ARTHUR BLVD., SUITE 200 LEWISVILLE, TEXAS 75056 972.410.6600 10/19/201811:32:38AM C:BOKAPREVIT_PROJECTSARCH_14149_THE_REALM_CENTRAL_v16_jessary.rvt A2.85 PLAN DETAILS 10.24.2018 PERMIT 14149.100 THE REALM AT CASTLE HILLS LEWISVILLE, TEXAS 10.27.2017 10.27.2017 SCALE: 1 1/2" = 1'-0"01 PLAN DETAIL SCALE: 1 1/2" = 1'-0"03 PLAN DETAIL SCALE: 1 1/2" = 1'-0"05 PLAN DETAIL SCALE: 1" = 1'-0"04 PLAN DETAIL SCALE: 1/2" = 1'-0"06 PLAN DETAIL SCALE: 1 1/2" = 1'-0"07 PLAN DETAIL SCALE: 3" = 1'-0"02 PLAN DETAILSCALE: 3" = 1'-0"08 ENLARGED PLAN DETAIL 2 1 WCPR 02 05.02.2018 2 WCPR 10 10.24.2018
  • 8.
    UP UP UP DN UP D C 706 A3.60 7"7'-81/2"7'-31/2"7TREADS@11"=6'-5"6'-01/2" CONCRETE FILLED METALPAN STAIR ASSEMBLY W/ PAINTED STEEL STRINGERS, GUARDRAILS, AND HANDRAILS D4 D4 H3 10' - 4 3/8" 1' - 10 7/8" H3 D4 PAINTED STEEL FLOOR BARRIER 07 A3.60 01/A3.71 9' - 6" CLEAR 100' - 0" 1/2" 4' - 6 1/2" 4" 4' - 6 1/2" 1/2" 104' - 6 1/2" 1'-0"1'-0" 2' - 5" 08 A3.60 D C 706 A3.60 9' - 6" CLEAR 1/2" 4' - 6 1/2" 4" 4' - 6 1/2" 1/2" F2F2 H3 117/8" 204A 07 A3.60 CONCRETE FILLED METAL PAN STAIR ASSEMBLY W/ PAINTED STEEL STRINGERS, GUARDRAILS AND HANDRAILS /08 A3.70 09 A3.70 STAIR #1 204 8' - 1" H3 F2 F2F2 5'-4"11TREADS@11"=10'-1"5'-117/8" 2' - 5" 111' - 4 1/4" 1'-0"1'-0" 5'-117/8"11TREADS@11"=10'-1"5'-4" 118'-2" H3 F2 08 A3.60 D C 7 06 A3.60 5'-117/8"11TREADS@11'=10'-1"5'-4"2'-111/8"3'-77/8" 9' - 6" CLEAR 1/2" 4' - 6 1/2" 4" 4' - 6 1/2" 1/2" 132' - 2" 2' - 3 3/4" F2F2 D3 H3 302A 07 A3.60 CONCRETE FILLED METAL PAN STAIR ASSEMBLY W/ PAINTED STEEL STRINGERS, GUARDRAILS AND HANDRAILS F2 H3 1'-0"1'-0" 21'-4223/256" 5'-117/8"11TREADS@11"=10'-1"5'-4" H3 F2 08 A3.60 D C 706 A3.60 9' - 6" CLEAR 1/2" 4' - 6 1/2" 4" 4' - 6 1/2" 1/2" 5'-117/8"11TREADS@11"=10'-1"5'-4"3'-0"3'-7" 216' - 2" 902A 9' - 7 1/4" 2' - 3 3/4" 117/8" F2F2 F2 F2 H3 07 A3.60 CONCRETE FILLED METAL PAN STAIR ASSEMBLY W/ PAINTED STEEL STRINGERS, GUARDRAILS AND HANDRAILS 1'-0"1'-0" 209' - 2" F2H3 08 A3.60 11TREADS@11"=10'-1" Level 1 EL. 100' - 0" Level 2 EL. 118' - 2" D C Level 3 EL. 132' - 2" Level 4 EL. 146' - 2" Level 5 EL. 160' - 2" Level 6 EL. 174' - 2" Level 7 EL. 188' - 2" Level 8 EL. 202' - 2" Level 9 EL. 216' - 2" ROOF EL. 235' - 2" 18'-2"14'-0"14'-0"14'-0"14'-0" REF. PLANS FOR PARTITION TYPE 14'-0"14'-0"14'-0" CONCRETE FILLED METAL PAN STAIR ASSEMBLY W/ PAINTED STEEL STRINGERS, GUARDRAILS AND HANDRAILS 9EQ.RISERS= 5'-21/8" 12EQ.RISERS= 6'-107/8" 12EQ.RISERS= 6'-107/8"12EQ.RISERS=7'-0"12EQ.RISERS=7'-0"12EQ.RISERS=7'-0"12EQ.RISERS=7'-0"12EQ.RISERS=7'-0"12EQ.RISERS=7'-0"12EQ.RISERS=7'-0"12EQ.RISERS=7'-0"12EQ.RISERS=7'-0"12EQ.RISERS=7'-0"12EQ.RISERS=7'-0"12EQ.RISERS=7'-0"12EQ.RISERS=7'-0"12EQ.RISERS=7'-0" 12EQ.RISERS 6'-93/4" 12EQ.RISERS= 6'-93/4" 8EQ.RISERS= 4'-61/2" 3' - 7" 3' - 0" 20' - 5" 11 7/8" CONCRETE FLOOR SLAB, REF. STRUCTURAL DRAWINGS SURFACE MOUNTED LIGHT, REF. ELECTRICAL DRAWINGS STAIR #1 125 /06 A3.70 /05 A3.70 /04 A3.70 /07 A3.71 OPP. /03 A5.74 19'-0" GENERAL NOTES: 1. ALL DIMENSIONS ARE TO FINISH FACE, UNLESS NOTED OTHERWISE. 2. EXIT STAIRS ENCLOSURE PARTITIONS ARE TYPE H(X) & F(X) UNLESS NOTED OTHERWISE. REFER TO SHEETS A3.00 & A3.01 FOR APPLICABLE INFROMATION. 3. REFER TO SHEETS A3.70 & A3.71 FOR APPLICABLE STAIR DETAILS. 4. STAIR UNDERSIDE OF LANDING & ALL STRUCTURAL ELEMENTS (CHANNELS, STRINGERS, ANGLES, MISC. STEEL) ARE TO BE PAINTED (P-1). 5. STAIR WALLS INSIDE & OUTSDIE ARE TO BE PAINTED (P-1). 6. ALL DOORS IN STAIRS ARE TO BE FIRE RATED WITH CLOSERS & THRESHOLDS Level 1 EL. 100' - 0" Level 2 EL. 118' - 2" 7 Level 3 EL. 132' - 2" Level 4 EL. 146' - 2" Level 5 EL. 160' - 2" Level 6 EL. 174' - 2" Level 7 EL. 188' - 2" Level 8 EL. 202' - 2" Level 9 EL. 216' - 2" ROOF EL. 235' - 2" 06 A3.60 8EQ.RISERS= 4'-61/2" 12EQ.RISERS= 6'-93/4" 12EQ.RISERS= 6'-93/4"12EQ.RISERS=7'-0"12EQ.RISERS=7'-0"12EQ.RISERS=7'-0"12EQ.RISERS=7'-0"12EQ.RISERS=7'-0"12EQ.RISERS=7'-0"12EQ.RISERS=7'-0"12EQ.RISERS=7'-0"12EQ.RISERS=7'-0"12EQ.RISERS=7'-0"12EQ.RISERS=7'-0"12EQ.RISERS=7'-0"12EQ.RISERS=7'-0"12EQ.RISERS=7'-0" 12EQ.RISERS= 6'-107/8" 12EQ.RISERS= 6'-107/8" 9EQ.RISERS= 5'-21/8" /01 A3.71 GROUND FLOOR BARRIER SURFACE MOUNTED LIGHT; REF. ELECTRICAL DRAWINGS 08 A3.60 /02 A3.71 TOP GUARDRAIL Level 1 EL. 100' - 0" Level 2 EL. 118' - 2" C Level 3 EL. 132' - 2" Level 4 EL. 146' - 2" Level 5 EL. 160' - 2" Level 6 EL. 174' - 2" Level 7 EL. 188' - 2" Level 8 EL. 202' - 2" Level 9 EL. 216' - 2" ROOF EL. 235' - 2" 07 A3.60 GROUND FLOOR BARRIER 9EQ.RISERS= 5'-21/8"6'-107/8" 12EQ.RISERS= 6'-107/8"7'-0"12EQ.RISERS=7'-0"7'-0"12EQ.RISERS=7'-0"7'-0"12EQ.RISERS=7'-0"7'-0"12EQ.RISERS=7'-0"7'-0"12EQ.RISERS=7'-0"7'-0"12EQ.RISERS=7'-0"7'-0"12EQ.RISERS=7'-0"6'-93/4" 12EQ.RISERS= 6'-93/4"4'-61/2" /09 A5.75 C 7 06 A3.60 07 A3.60 08 A3.60 1000 STAIR #1 1000 9' - 6" CLEAR 1/2" 4' - 6 1/2" 4" 4' - 6 1/2" 1 1/2" 235' - 2" 229' - 11 7/8" 4' - 11 1/2" 11' - 10 3/4" 5 1/2" 7'-113/8"8TREADS@11"=7'-4"10'-01/2" 1'-0" 1'-0" 1'-0" 07/A4.10 06/A4.10 08/A4.10 05/A4.10 F2 16' - 10 1/4" 25'-37/8" ® ® date project number title The drawings and written material herein constitute original work of the architect, and as intellectual property and instruments of service, are subject to copyright and may not be reproduced, distributed, published or used in any way without the express written consent of the architect. plotted: revisions sheet original issue project landscape architect 223 NORTH GRAHAM ST CHARLOTTE, NORTH CAROLINA 28202 704.333.0325 structural engineer RAYMOND L. GOODSON (RLG) 12001 N. CENTRAL EXPY., SUITE 300 DALLAS, TEXAS 75243 214.739.8100 mechanical engineer JJA, Inc. 8150 N. CENTRAL EXPY., SUITE M-2100 DALLAS, TEXAS 75206 214.739.8880 construction manager HILL & WILKINSON 2703 TELECOM PKWY, STE 120 RICHARDSON, TEXAS 75082 214.299.4300 civil engineer 222 WEST LAS COLINAS BLVD. IRVING, TEXAS 75039, SUITE 1405 N 214.785.6009 architecture interiors planning graphics 8070 Park Lane, Ste. 300 Dallas, Texas 75231 Tel 972.701.9000 Fax 972.991.3008 www.bokapowell.com design architect 2520 BROADWAY ST. BOULDER, COLORADO 80304 720.565.0505 client/owner BRIGHT REALTY 2520 KING ARTHUR BLVD., SUITE 200 LEWISVILLE, TEXAS 75056 972.410.6600 10/26/20189:50:40AM C:BOKAPREVIT_PROJECTSARCH_14149_THE_REALM_CENTRAL_v16_jessary.rvt A3.60 ENLARGED STAIR PLANS & SECTIONS 10.24.2018 PERMIT 14149.100 THE REALM AT CASTLE HILLS LEWISVILLE, TEXAS 10.27.2017 10.27.2017 SCALE: 1/4" = 1'-0"01 STAIR PLAN #1 - LEVEL 1 SCALE: 1/4" = 1'-0"02 STAIR PLAN #1 - LEVEL 2 SCALE: 1/4" = 1'-0"03 STAIR PLAN #1 - TYPICAL SCALE: 1/4" = 1'-0"04 STAIR PLAN #1 - LEVEL 9 SCALE: 3/16" = 1'-0"06 SECTION - STAIR #1 SCALE: 3/16" = 1'-0"07 SECTION - STAIR #1 SCALE: 3/16" = 1'-0"08 SECTION - STAIR #1 SCALE: 1/4" = 1'-0"05 STAIR PLAN #1 - ROOF 1 Construction Documents 12.12.2017 2 WCPR 01 03.09.2018 3 WCPR 10 10.24.2018 3 3 33
  • 9.
    1 3 45 6 7 8 10 Level 3 EL. 132' - 2" Level 4 EL. 146' - 2" Level 5 EL. 160' - 2" Level 6 EL. 174' - 2" Level 7 EL. 188' - 2" Level 8 EL. 202' - 2" Level 9 EL. 216' - 2" ROOF EL. 235' - 2" T.O. PARAPET EL. 239' - 8" 04 A5.10 4.8 6.22 9 03 A5.11 02 A5.11 04 A5.11 14'-0"14'-0"14'-0"14'-0"14'-0"14'-0"19'-0"4'-6"8'-51/2"2'-01/2" 01 A5.11 METAL PANEL CANOPY DECORATIVE METAL PANEL, ILLUMNINATED DECORATIVE METAL PANEL ILLUMNINATED MECHANICAL SCREEN 7.83.2 METAL PANEL CANOPY PRECAST ARCHITECTURAL CONCRETE PENTHOUSE EL. 248' - 1 1/2" PRECAST ARCHITECTURAL CONCRETE PRECAST ARCHITECTURAL CONCRETE 3/4" PLYWOOD, PAINTED, TYP. LIGHT FIXTURE, REF. ELECTRICAL DRAWINGS, TYP. 3/4" PLYWOOD, PAINTED, TYP. 3/4" PLYWOOD, PAINTED, TYP. 10.1 11 ALUMINUM COMPOSITE METAL PANEL JOINTS CENTERED ON CURTAIN WALL MULLIONS TYP. EQ EQ TYP. EQEQ (TYPE"J") 103'-6"A.F.F. EQ TYP. EQ (TYPE"N") 8'-6"A.F.F.TYP. EQ. TYP. EQ. EQ. TYP. EQ. (TYPE"Q") 5 5 5 5 EXTERIOR FINISH LEGEND ADHERED THIN STONE VENEER, LUEDER STONE (NOT USED) - PRECAST CONCRETE WITH CUSTOM EMBOSSED PATTERN ALUMINUM COMPOSITE PANELPRECAST CONCRETE, INTEGRAL COLOR 1 PRECAST CONCRETE, INTEGRAL COLOR 2 PRECAST CONCRETE, INTEGRAL COLOR 3 ® ® date project number title The drawings and written material herein constitute original work of the architect, and as intellectual property and instruments of service, are subject to copyright and may not be reproduced, distributed, published or used in any way without the express written consent of the architect. plotted: revisions sheet original issue project landscape architect 223 NORTH GRAHAM ST CHARLOTTE, NORTH CAROLINA 28202 704.333.0325 structural engineer RAYMOND L. GOODSON (RLG) 12001 N. CENTRAL EXPY., SUITE 300 DALLAS, TEXAS 75243 214.739.8100 mechanical engineer JJA, Inc. 8150 N. CENTRAL EXPY., SUITE M-2100 DALLAS, TEXAS 75206 214.739.8880 construction manager HILL & WILKINSON 2703 TELECOM PKWY, STE 120 RICHARDSON, TEXAS 75082 214.299.4300 civil engineer 222 WEST LAS COLINAS BLVD. IRVING, TEXAS 75039, SUITE 1405 N 214.785.6009 architecture interiors planning graphics 8070 Park Lane, Ste. 300 Dallas, Texas 75231 Tel 972.701.9000 Fax 972.991.3008 www.bokapowell.com design architect 2520 BROADWAY ST. BOULDER, COLORADO 80304 720.565.0505 client/owner BRIGHT REALTY 2520 KING ARTHUR BLVD., SUITE 200 LEWISVILLE, TEXAS 75056 972.410.6600 10/19/201811:32:50AM C:BOKAPREVIT_PROJECTSARCH_14149_THE_REALM_CENTRAL_v16_jessary.rvt A4.01 EXTERIOR ELEVATION - WEST 10.24.2018 PERMIT 14149.100 THE REALM AT CASTLE HILLS LEWISVILLE, TEXAS 10.27.2017 10.27.2017 SCALE: 1/8" = 1'-0"01 OVERALL ELEVATION - WEST 5 1 WCPR 04 06.21.2018 2 WCPR 08 08.07.2018 3 WCPR 09 08.20.2018 4 RFI #54 09.06.2018 5 WCPR 10 10.24.2018
  • 10.
    D FC Level 3 EL.132' - 2" Level 4 EL. 146' - 2" Level 5 EL. 160' - 2" Level 6 EL. 174' - 2" Level 7 EL. 188' - 2" Level 8 EL. 202' - 2" Level 9 EL. 216' - 2" ROOF EL. 235' - 2" T.O. PARAPET EL. 239' - 8" 03 A5.10 02 A5.10 01 A5.10 A.2 E.8 G H J K LB E T.O. BULKHEAD EL. 123' - 2" 05 A5.14 10'-6"4'-6"19'-0"14'-0"14'-0"14'-0"14'-0"14'-0"14'-0" 04 A5.15 SUSPENDED METAL PANEL CANOPY, BEYOND GUARDRAIL PRECAST ARCHITECTURAL CONCRETE METAL PANEL CANOPY MECHANICAL SCREEN PRECAST ARCHITECTURAL CONCRETE CANOPY TO GARAGE 01 A5.14 PRECAST ARCHITECTURAL CONCRETE PRECAST ARCHITECTURAL CONCRETE 3/4" PLYWOOD, PAINTED, TYP. 01 A2.89 D.7D.3 2' - 0"2' - 0" (TYPE"N") 8'-6"A.F.F.TYP. LIGHT FIXTURE, REF. ELECTRICAL DRAWINGS, TYP. EQ EQ4' - 11" 3 3 3 EXTERIOR FINISH LEGEND ADHERED THIN STONE VENEER, LUEDER STONE (NOT USED) - PRECAST CONCRETE WITH CUSTOM EMBOSSED PATTERN ALUMINUM COMPOSITE PANELPRECAST CONCRETE, INTEGRAL COLOR 1 PRECAST CONCRETE, INTEGRAL COLOR 2 PRECAST CONCRETE, INTEGRAL COLOR 3 ® ® date project number title The drawings and written material herein constitute original work of the architect, and as intellectual property and instruments of service, are subject to copyright and may not be reproduced, distributed, published or used in any way without the express written consent of the architect. plotted: revisions sheet original issue project landscape architect 223 NORTH GRAHAM ST CHARLOTTE, NORTH CAROLINA 28202 704.333.0325 structural engineer RAYMOND L. GOODSON (RLG) 12001 N. CENTRAL EXPY., SUITE 300 DALLAS, TEXAS 75243 214.739.8100 mechanical engineer JJA, Inc. 8150 N. CENTRAL EXPY., SUITE M-2100 DALLAS, TEXAS 75206 214.739.8880 construction manager HILL & WILKINSON 2703 TELECOM PKWY, STE 120 RICHARDSON, TEXAS 75082 214.299.4300 civil engineer 222 WEST LAS COLINAS BLVD. IRVING, TEXAS 75039, SUITE 1405 N 214.785.6009 architecture interiors planning graphics 8070 Park Lane, Ste. 300 Dallas, Texas 75231 Tel 972.701.9000 Fax 972.991.3008 www.bokapowell.com design architect 2520 BROADWAY ST. BOULDER, COLORADO 80304 720.565.0505 client/owner BRIGHT REALTY 2520 KING ARTHUR BLVD., SUITE 200 LEWISVILLE, TEXAS 75056 972.410.6600 10/19/201811:33:05AM C:BOKAPREVIT_PROJECTSARCH_14149_THE_REALM_CENTRAL_v16_jessary.rvt A4.02 EXTERIOR ELEVATION - NORTH 10.24.2018 PERMIT 14149.100 THE REALM AT CASTLE HILLS LEWISVILLE, TEXAS 10.27.2017 10.27.2017 SCALE: 1/8" = 1'-0"01 OVERALL ELEVATION - NORTH 3 1 WCPR 04 06.21.2018 2 RFI #54 09.06.2018 3 WCPR 10 10.24.2018
  • 11.
    134567810 Level 3 EL. 132'- 2" Level 4 EL. 146' - 2" Level 5 EL. 160' - 2" Level 6 EL. 174' - 2" Level 7 EL. 188' - 2" Level 8 EL. 202' - 2" Level 9 EL. 216' - 2" ROOF EL. 235' - 2" T.O. PARAPET EL. 239' - 8" 02 A5.13 01 A5.13 04 A5.12 03 A5.12 4.86.2 29 03 A5.13 14'-0"14'-0"14'-0"14'-0"14'-0"14'-0"2'-01/2"8'-51/2"4'-6"19'-0" METAL COMPOSITE PANEL CANOPY METAL PANEL COPING MECHANICAL SCREEN 7.8 3.2 PRECAST ARCHITECTURAL CONCRETE PRECAST ARCHITECTURAL CONCRETE METAL COMPOSITE PANEL CANOPY 02 A5.14 PENTHOUSE EL. 248' - 1 1/2" 04 A5.13 PRECAST ARCHITECTURAL CONCRETE PRECAST ARCHITECTURAL CONCRETE 2'-10"8'-5" 10.1 01 A2.89 11 LIGHT FIXTURE, REF. ELECTRICAL DRAWINGS, TYP. (TYPE"N") 8'-6"A.F.F.TYP. TYP. EQ EQ EQ TYP. EQ TYP. EQ EQ (TYPE"J") 60'-6"A.F.F. 3 3 3 EXTERIOR FINISH LEGEND ADHERED THIN STONE VENEER, LUEDER STONE (NOT USED) - PRECAST CONCRETE WITH CUSTOM EMBOSSED PATTERN ALUMINUM COMPOSITE PANELPRECAST CONCRETE, INTEGRAL COLOR 1 PRECAST CONCRETE, INTEGRAL COLOR 2 PRECAST CONCRETE, INTEGRAL COLOR 3 ® ® date project number title The drawings and written material herein constitute original work of the architect, and as intellectual property and instruments of service, are subject to copyright and may not be reproduced, distributed, published or used in any way without the express written consent of the architect. plotted: revisions sheet original issue project landscape architect 223 NORTH GRAHAM ST CHARLOTTE, NORTH CAROLINA 28202 704.333.0325 structural engineer RAYMOND L. GOODSON (RLG) 12001 N. CENTRAL EXPY., SUITE 300 DALLAS, TEXAS 75243 214.739.8100 mechanical engineer JJA, Inc. 8150 N. CENTRAL EXPY., SUITE M-2100 DALLAS, TEXAS 75206 214.739.8880 construction manager HILL & WILKINSON 2703 TELECOM PKWY, STE 120 RICHARDSON, TEXAS 75082 214.299.4300 civil engineer 222 WEST LAS COLINAS BLVD. IRVING, TEXAS 75039, SUITE 1405 N 214.785.6009 architecture interiors planning graphics 8070 Park Lane, Ste. 300 Dallas, Texas 75231 Tel 972.701.9000 Fax 972.991.3008 www.bokapowell.com design architect 2520 BROADWAY ST. BOULDER, COLORADO 80304 720.565.0505 client/owner BRIGHT REALTY 2520 KING ARTHUR BLVD., SUITE 200 LEWISVILLE, TEXAS 75056 972.410.6600 10/19/201811:33:16AM C:BOKAPREVIT_PROJECTSARCH_14149_THE_REALM_CENTRAL_v16_jessary.rvt A4.03 EXTERIOR ELEVATION - EAST 10.24.2018 PERMIT 14149.100 THE REALM AT CASTLE HILLS LEWISVILLE, TEXAS 10.27.2017 10.27.2017 SCALE: 1/8" = 1'-0"01 ELEVATION - EAST 3 1 WCPR 04 06.21.2018 2 RFI #54 09.06.2018 3 WCPR 10 10.24.2018
  • 12.
    DF C Level 3 EL.132' - 2" Level 4 EL. 146' - 2" Level 5 EL. 160' - 2" Level 6 EL. 174' - 2" Level 7 EL. 188' - 2" Level 8 EL. 202' - 2" Level 9 EL. 216' - 2" ROOF EL. 235' - 2" T.O. PARAPET EL. 239' - 8" AA.2E.8GHJKL BE T.O. BULKHEAD EL. 123' - 2" 02 A5.12 01 A5.12 10'-6"4'-6"19'-0"14'-0"14'-0"14'-0"14'-0"14'-0"14'-0" 04 A5.14 05 A5.15 SUSPENDED METAL PANEL CANOPY GUARDRAIL PRECAST ARCHITECTURAL CONCRETE METAL COMPOSITE CLAD STEEL CANOPY MECHANICAL SCREEN PRECAST ARCHITECTURAL CONCRETE PRECAST ARCHITECTURAL CONCRETE PRECAST ARCHITECTURAL CONCRETE PRECAST ARCHITECTURAL CONCRETE METAL PANEL CANOPY TO GARAGE 01 A5.14 PRECAST ARCHITECTURAL CONCRETE PRECAST ARCHITECTURAL CONCRETE PRECAST ARCHITECTURAL CONCRETE OPEN TO BEYONDPAINTED HOLLOW METAL DOORS AND FRAMES, TYP. PREFINISHED OVERHEAD COILING DOOR 3/4" TREATED PLYWOOD, PAINTED, TYP. 01 A2.89 D.7 D.3 (TYPE"N") 8'-6"A.F.F.TYP. 2' - 0"2' - 0"4' - 11"EQ EQ LIGHT FIXTURE, REF. ELECTRICAL DRAWINGS, TYP. 3 3 3 EXTERIOR FINISH LEGEND ADHERED THIN STONE VENEER, LUEDER STONE (NOT USED) - PRECAST CONCRETE WITH CUSTOM EMBOSSED PATTERN ALUMINUM COMPOSITE PANELPRECAST CONCRETE, INTEGRAL COLOR 1 PRECAST CONCRETE, INTEGRAL COLOR 2 PRECAST CONCRETE, INTEGRAL COLOR 3 ® ® date project number title The drawings and written material herein constitute original work of the architect, and as intellectual property and instruments of service, are subject to copyright and may not be reproduced, distributed, published or used in any way without the express written consent of the architect. plotted: revisions sheet original issue project landscape architect 223 NORTH GRAHAM ST CHARLOTTE, NORTH CAROLINA 28202 704.333.0325 structural engineer RAYMOND L. GOODSON (RLG) 12001 N. CENTRAL EXPY., SUITE 300 DALLAS, TEXAS 75243 214.739.8100 mechanical engineer JJA, Inc. 8150 N. CENTRAL EXPY., SUITE M-2100 DALLAS, TEXAS 75206 214.739.8880 construction manager HILL & WILKINSON 2703 TELECOM PKWY, STE 120 RICHARDSON, TEXAS 75082 214.299.4300 civil engineer 222 WEST LAS COLINAS BLVD. IRVING, TEXAS 75039, SUITE 1405 N 214.785.6009 architecture interiors planning graphics 8070 Park Lane, Ste. 300 Dallas, Texas 75231 Tel 972.701.9000 Fax 972.991.3008 www.bokapowell.com design architect 2520 BROADWAY ST. BOULDER, COLORADO 80304 720.565.0505 client/owner BRIGHT REALTY 2520 KING ARTHUR BLVD., SUITE 200 LEWISVILLE, TEXAS 75056 972.410.6600 10/19/201811:37:24AM C:BOKAPREVIT_PROJECTSARCH_14149_THE_REALM_CENTRAL_v16_jessary.rvt A4.04 EXTERIOR ELEVATION - SOUTH 10.24.2018 PERMIT 14149.100 THE REALM AT CASTLE HILLS LEWISVILLE, TEXAS 10.27.2017 10.27.2017 SCALE: 1/8" = 1'-0"01 OVERALL ELEVATION - SOUTH 3 1 WCPR 04 06.21.2018 2 RFI #54 09.06.2018 3 WCPR 10 10.24.2018
  • 13.
    F Level 8 EL. 202'- 2" 3/4" BACKER ROD & SEALANT - LEAVE GAP EVERY 2' FOR WEEP THIN STONE MASONRY VENEER 3/4" BACKER ROD & SEALANT PRECAST ARCHITECTURAL CONCRETE BATT INSULATION, R-19 MIN. GLAZED ALUMINUM CURTAINWALL SYSTEM 3/4" BACKER ROD & SEALANT 3-5/8" NON-STRUCTURAL METAL FRAMING WITH R-13 MIN. BATT INSULATION CONCRETE BEAM, REF. STRUCTURAL DRAWINGS GLAZED ALUMINUM CURTAINWALL SYSTEM STAINLESS STEEL FLASHING OVER SELF ADHERED FLEXIBLE FLASHING 3/4" BROWN & SCRATCH COAT SLOPE 1/4" PER FOOT TREATED WOOD BLOCKING 6" COLD FORMED METAL FRAMING BATT INSULATION, R-19 MIN. 3 1/8" 7 1/2" 2" 2' - 1 1/2" 1"11" SHIM AS NEEDED FIRE PROOFING SYSTEM INTEGRAL DRIP INTEGRAL DRIP F ROOF EL. 235' - 2" T.O. PARAPET EL. 239' - 8" GE SINGLE PLY ROOF MEMBRANE 6" COLD FORMED METAL FRAMING W/ EXTERIOR SHEATHING ALUMINUM COMPOSITE METAL PANEL CONCRETE SLAB, REF. STRUCTURAL DRAWINGS SLOPE 1/4" PER FOOT COVER BOARD METAL DECK, REF. STRUCTURAL DRAWINGS SOFFIT SYSTEM GLAZED ALUMINUM CURTAINWALL SYSTEM CARRIER RIGID INSULATION ALUMINUM COMPOSITE METAL PANEL EXTERIOR SHEATHING AIR / MOISTURE BARRIER STEEL COLUMN, REF. STRUCTURAL DRAWINGS STEEL BEAM, REFER TO STRUCTURAL DRAWINGS 2'-1" 3 5/8" COLD FORMED METAL FRAMING HAT CHANNEL /02 A2.58 4" 1 Level 9 EL. 216' - 2" FIRESTOP SYSTEM GLAZED ALUMINUM CURTAINWALL SYSTEM - SPANDREL PANEL CONCRETE BEAM, REF. STRUCTURAL DRAWINGS 2" SMOKE SEAL RIGID INSULATION SPANDREL PANEL METAL STUD AND GYP. BOARD BY TENANT Level 2 EL. 118' - 2" SLOPE 1/2" EXTERIOR SHEATHING RIGID INSULATION CONCRETE CURB, REF. STRUCTURAL DRAWINGS PAVERS ON PEDESTAL SYSTEM PAVER WIND UP LIFT PERIMETER ANCHOR HAT CHANNEL EXTERIOR SHEATHING THIN STONE MASONRY VENEER 3/4" BROWN & SCRATCH COAT PAPER BACKED METAL LATH FLUID APPLIED MEMBRANE AIR BARRIER 6" COLD FORMED METAL FRAMING STEEL GUARDRAIL PRECAST ARCHITECTURAL CONCRETE CAP BACKER ROD & SEALANT 3" 61/2"5"5"5"5"5"5"51/2" 3'-6" /10 A5.73 Level 4 EL. 146' - 2" GLAZED ALUMINUM CURTAINWALL SYSTEM 3 5/8" NON-STRUCTURAL METAL FRAMING SLOPE 1/4" PER FOOT 3/4" BACKER ROD & SEALANT THIN STONE MASONRY VENEER 1'-0" THERMAL INSULATION, R-19 MIN., IMPALED TO BACK OF PRECAST PANEL CONCRETE BEAM, REF. STRUCTURAL DRAWINGS 3/4" BROWN & SCRATCH COAT INTEGRAL DRIP 3/4" BACKER ROD & SEALANT 2" AIR SPACE FIRE PROOFING SYSTEM SHIM AS NEEDED EXTERIOR SHEATHING 6" COLD FORMED METAL FRAMING CONTROL JOINT ® ® date project number title The drawings and written material herein constitute original work of the architect, and as intellectual property and instruments of service, are subject to copyright and may not be reproduced, distributed, published or used in any way without the express written consent of the architect. plotted: revisions sheet original issue project landscape architect 223 NORTH GRAHAM ST CHARLOTTE, NORTH CAROLINA 28202 704.333.0325 structural engineer RAYMOND L. GOODSON (RLG) 12001 N. CENTRAL EXPY., SUITE 300 DALLAS, TEXAS 75243 214.739.8100 mechanical engineer JJA, Inc. 8150 N. CENTRAL EXPY., SUITE M-2100 DALLAS, TEXAS 75206 214.739.8880 construction manager HILL & WILKINSON 2703 TELECOM PKWY, STE 120 RICHARDSON, TEXAS 75082 214.299.4300 civil engineer 222 WEST LAS COLINAS BLVD. IRVING, TEXAS 75039, SUITE 1405 N 214.785.6009 architecture interiors planning graphics 8070 Park Lane, Ste. 300 Dallas, Texas 75231 Tel 972.701.9000 Fax 972.991.3008 www.bokapowell.com design architect 2520 BROADWAY ST. BOULDER, COLORADO 80304 720.565.0505 client/owner BRIGHT REALTY 2520 KING ARTHUR BLVD., SUITE 200 LEWISVILLE, TEXAS 75056 972.410.6600 10/25/20184:54:19PM C:BOKAPREVIT_PROJECTSARCH_14149_THE_REALM_CENTRAL_v16_jessary.rvt A5.72 SECTION DETAILS 10.24.2018 PERMIT 14149.100 THE REALM AT CASTLE HILLS LEWISVILLE, TEXAS 10.27.2017 10.27.2017 SCALE: 1 1/2" = 1'-0"01 SECTION DETAIL SCALE: 1" = 1'-0"04 SECTION DETAIL SCALE: 1 1/2" = 1'-0"03 SECTION DETAIL SCALE: 1 1/2" = 1'-0"05 SECTION DETIAL SCALE: 1 1/2" = 1'-0"02 SECTION DETAIL 1 Construction Documents 12.12.2017 2 WCPR 05 06.29.2018 3 WCPR 09 08.20.2018 4 WCPR 10 10.24.2018 4
  • 14.
    Level 3 EL. 132'- 2" SLOPE 1/4" PER FT MIN 8"MIN. AIR / MOISTURE BARRIER STAINLESS STEEL FLASHING STEEL BEAM, REF. STRUCTURAL DRAWINGS MODULAR METAL CEILING SYSTEM METAL DECK TREATED PLYWOOD RIGID INSULATION BATT INSULATION GLAZED ALUMINUM CURTAINWALL SYSTEM THIN STONE MASONRY VENEER BEYOND 3/4" BACKER ROD & SEALANT SINGLE PLY ROOFING SYSTEM ON COVER BOARD 3-5/8" COLD FORMED METAL FRAMING ALUMINUM COMPOSITE METAL PANEL ROOF DRAIN, REF. PLUMBING DRAWINGS Level 3 EL. 132' - 2" H WEEP AIR / MOISTURE BARRIER SELF ADHERED FLEXIBLE FLASHING EXTERIOR SHEATHING ALUMINUM COMPOSITE METAL PANEL SLOPE ALUMINUM COMPOSITE METAL PANEL STEEL BEAM, REF. STRUCTURAL DRAWINGS 3-5/8" COLD FORMED METAL FRAMING MODULAR METAL CEILING SYSTEM 4'-6" METAL DECK, REF. STRUCTURAL DRAWINGS GALVANIZED AND PAINTED STEEL TENSION ROD, REF. STRUCTURAL DRAWINGS TREATED PLYWOOD SINGLE PLY ROOFING SYSTEM ON COVER BOARD SINGLE PLY ROOFING FLASHING MEMBRANE, CARRY OVER TOP OF PARAPET AND FASTEN AT FRONT FACE RIGID INSULATION 9 1/8" 1' - 9 3/8" 9 1/8" ALUMINUM COMPOSITE METAL PANEL BEYOND SLOPE 1/4" PER FT MIN STEEL TUBE, REFER TO STRUCTURAL DRAWINGS STEEL CHANNEL, REF. STRUCTURAL DRAWINGS 1'-9"2'-9" 3/4" 6" CONTINUOUS BACKER ROD AND SEALANT GALVANIZED AND PAINTED STEEL PLATE, REF. STRUCTURAL DRAWINGS BOTTOM OF MEP RATED SHAFT ENCLOSURE, REF. DETAIL 05/A3.07 REF. PLANS FOR PARTITION TYPE CEILING AS SCHEDULED 3-5/8" NON STRUCTURAL METAL FRAMING LIGHT FIXTURE, REF. ELECTRICAL DRAWINGS CONCRETE FILLED METAL PAN STAIR ASSEMBLY W/ PAINTED STEEL STRINGERS, GUARDRAILS AND HANDRAILS 5/8" GYP. BOARD 6" CORNER BEAD, TYP. 109' - 6"CEILING ELEVATIONS REFERENCE RCP 111' - 6" BOTTOM OF SHAFT Level 9 EL. 216' - 2" 3 3/4" STEEL GUARDRAIL / HANDRAIL CONCRETE TOPPING SLAB CONCRETE STRUCTURAL SLAB, REFER STRUCTURAL STEEL PLATE POST 1" DIAMETER STEEL RODS 61/2"5"5"5"5"5"5"51/2" 3'-6" F ROOF EL. 235' - 2" T.O. PARAPET EL. 239' - 8" E.8E ALUMINUM COMPOSITE METAL PANEL BACKER ROD & SEALANT PRECAST ARCHITECTURAL CONCRETE AIR SPACE STAINLESS STEEL FLASHING SELF ADHERED FLEXIBLE FLASHING FLUID APPLIED AIR / MOISTURE BARRIER FIRE SAFING ACM CLAD STEEL CANOPY WIH MODULAR METAL CEILING SYSTEM CARRIER ALUMINUM METAL COMPOSITE PANEL EXTERIOR SHEATHING AIR / MOISTURE BARRIER SINGLE PLY ROOF MEMBRANE COVER BOARD METAL DECK, REF. STRUCTURAL DRAWINGS STEEL BEAM, REFER TO STRUCTURAL DRAWINGS 4" /02 A2.58 ® ® date project number title The drawings and written material herein constitute original work of the architect, and as intellectual property and instruments of service, are subject to copyright and may not be reproduced, distributed, published or used in any way without the express written consent of the architect. plotted: revisions sheet original issue project landscape architect 223 NORTH GRAHAM ST CHARLOTTE, NORTH CAROLINA 28202 704.333.0325 structural engineer RAYMOND L. GOODSON (RLG) 12001 N. CENTRAL EXPY., SUITE 300 DALLAS, TEXAS 75243 214.739.8100 mechanical engineer JJA, Inc. 8150 N. CENTRAL EXPY., SUITE M-2100 DALLAS, TEXAS 75206 214.739.8880 construction manager HILL & WILKINSON 2703 TELECOM PKWY, STE 120 RICHARDSON, TEXAS 75082 214.299.4300 civil engineer 222 WEST LAS COLINAS BLVD. IRVING, TEXAS 75039, SUITE 1405 N 214.785.6009 architecture interiors planning graphics 8070 Park Lane, Ste. 300 Dallas, Texas 75231 Tel 972.701.9000 Fax 972.991.3008 www.bokapowell.com design architect 2520 BROADWAY ST. BOULDER, COLORADO 80304 720.565.0505 client/owner BRIGHT REALTY 2520 KING ARTHUR BLVD., SUITE 200 LEWISVILLE, TEXAS 75056 972.410.6600 10/25/20184:54:21PM C:BOKAPREVIT_PROJECTSARCH_14149_THE_REALM_CENTRAL_v16_jessary.rvt A5.74 SECTION DETAILS 10.24.2018 PERMIT 14149.100 THE REALM AT CASTLE HILLS LEWISVILLE, TEXAS 10.27.2017 10.27.2017 SCALE: 1 1/2" = 1'-0"02 SECTION DETAIL SCALE: 1 1/2" = 1'-0"01 SECTION DETAIL SCALE: 1 1/2" = 1'-0"03 SECTION DETAIL SCALE: 1 1/2" = 1'-0"04 SECTION DETAIL SCALE: 1 1/2" = 1'-0"05 SECTION DETAIL 1 Construction Documents 12.12.2017 2 WCPR 08 08.07.2018 3 WCPR 10 10.24.2018 3
  • 15.
    A A 4 4 5 5 6 6 7 7 CC DD A.2 A.2 BB EE E.8E.8 FF 2 2 9 9 10 10 1 1 1'-71/4"3'-7"7'-71/2"35'-0" 1'-6" 27'-0" 1'-6" 35'-0"7'-71/2"3'-7"1'-111/4" 18'-4"20'-0" 35'-0" 30'-0" 30'-0" 30'-0" 35'-0" 20'-0" 18'-4" 245'-0" 125'-111/2" 3'-21/2" 2'-51/2" 4'-5" 41/2" 6'-3"6'-3" 41/2" 4'-5" 2'-51/2"3'-21/2" 1'-8"1'-10"1'-9"5'-6" 41/2" 5SPA@6'-3"=31'-3"41/2"1'-8" 41/2" 5SPA@6'-3"=31'-3" 41/2" 5'-6"1'-9"1'-10" ELEV ELEV ELEV ELEV 01 S7.02 04 S4.10 PG43PG45PG44 PG43PG45PG44 PG39PG41PG40PG38PG42 PG47 PG47 PG46 PG46 B57 B57 B58 B58 3 3 8 8 PG50PG52PG51 PG50PG52PG51 10.1 0.9 B.9B.9 D.1D.1 S2.14 01 CANOPY FRAMING ABOVE S2.14 01 OH CANOPY FRAMING ABOVE TYP AT SCR EEN 24"X24" CO N C CO L H SS6X6X3/8 H SS6X6X3/8 TYP AT CANO PY TYP AT CANO PY H SS6X6X3/8 S2.14 02 ROOF FRAMING ABOVE S2.14 03 235'-2" TYP AT PERIM 235'-2" TYP AT PERIM 235'-2" TYP AT PERIM 235'-2" TYP AT PERIM 235'-2" TYP AT PERIM 234'-2" 234'-2" 234'-2" 234'-2" 234'-10 1/2" 234'-10 1/2" 234'-2" 234'-2" 234'-10 1/2" 234'-10 1/2" 234'-2" 234'-2" 235'-2" TYP AT PERIM 235'-2" TYP AT PERIM 235'-2" TYP AT PERIM 01 S6.10 02 S6.10 02 S6.10 04 S6.10 03 S6.10 02 S6.10 02 S6.10 03 S6.10 01 S6.10 02 S6.10 02 S6.10 01 S6.10 02 S6.10 02 S6.10 04 S6.10 03 S6.10 02 S6.10 02 S6.10 03 S6.10 01 S6.10 02 S6.10 02 S6.10 PG53PG55PG54 PG57PG59 PG53PG55PG56 PG53PG55PG54 01 S6.11 02 S6.11 02 S6.11 02 S6.11 02 S6.11 PG39PG41PG81PG38PG42 B58 B58B58 B58 B59 B60 B58 B58 B58 B58 B58 B58 B59 B60 S2.12 04 PG58 B61 B62 B62 B62 B63 B62 B63B62B62B61 B65 B63 B59 B60B58B57 TYP AT SCREEN 03 S7.02 TYP AT M EC H B136 B69 B70 B71 B67 B68 B70 B71B72 B73 B74 B75 B76 B77 B78 B73 B74 B75 B76 B77 B78 B79 B80 B81 B139 B140 B141 B82 B82 03 S7.01 05 S7.01 03 S4.10 04 S4.10 03 S4.10 TYP AT SCREEN COLS 4'-2" 4'-2" B60 B125 B57 73'-10 3/4" 31'-10 1/4" 33'-6" 31'-10 1/4" 73'-10 3/4" 3'-7 1/4" 3'-7 1/4" 02 S6.11 AT NANA WALL PRECAST CONCRETE PANEL BY PRECAST ENGINEER - REF ARCH (TYP) CANOPY BELOW - SEE 01/S6.10 FOR FRAMING (TYP) B64 B138 B138 B138 B138 B148 B148 B148 B148 B145 B138 B148 B148 B148 B148B148 B148 B148B148 B148 B148 B148 B138 B148 1'-71/4"2'-1"2'-6" 9" 5'-6" 41/2" 1'-111/4"2'-1"2'-6" 9" 5'-6" 41/2" STAIR #1 S2.13 03 03 S7.01 SIM 1'-9" 5'-6" 41/2" 5SPA@6'-3"=31'-3"41/2"1'-8" 3'-21/2" 2'-51/2" 4'-5" 41/2" 6'-3"6'-3" 41/2" 4'-5" 2'-51/2" 3'-21/2" 1'-8"41/2"5SPA@6'-3"=31'-3" 41/2" 5'-6" 1'-9" 1'-10"1'-10" 1'-9" 1'-9" 2'-11/4"2'-1" 1'-5 1/2" 2'-5 1/2" 1'-8 1/2"1'-8 1/2" 2'-5 1/2" 1'-5 1/2" 3'-41/4"118'-11"3'-81/4" 1'-10"1'-10" 245'-0" 1'-8 1/2" 2'-5 1/2" 18'-4" 20'-0" 35'-0" 30'-0" 30'-0" 30'-0" 35'-0" 20'-0" 18'-4" 2'-5 1/2" 1'-8 1/2" 73'-10 3/4" 97'-2 1/2" 73'-10 3/4" 3'-7 1/4"3'-7 1/4" 125'-111/2" 1'-111/4"3'-7"7'-71/2"35'-0"1'-6"27'-0"1'-6"35'-0"7'-71/2"3'-7"1'-71/4" REF 01/S2.14 FOR HSS 6X6 DIM CONTROL 14'-8" 14'-8" 3"12'-63/4" 3" 3" 14'-8" 14'-8" 3"12'-103/4" 3" 3" 3'-4" 1'-61/2" 1'-41/2" 5'-6"5'-6" 1'-41/2" 1'-61/2" 3'-4" 2'-51/2" 1'-61/2" 3'-4" 2'-51/2" 1'-61/2" 3'-4" 4'-5" 51/2"31/2" 2'-6" B143 B14204 S7.02 B148 B148 B144 B148 B138 B138 B148B148 H SS6X6X3/8 TYP AT STAIR S7.01 07OH S7.01 07 03 S7.01 05 S7.01 1'-7 1/4" 1'-4 1/4" 1'-4 1/4" 1'-7 1/4" 8" CONC CURB B145B145B145 1'-2" 1'-2" 1'-2" 1'-2" 1'-2" 1'-2" 5'-6"2'-9"3'-6" 2'-7" 1'-8" 1'-61/2" 1'-8" 3'-21/2" 1'-41/2" 5'-6" 4'-5"9"5'-6"2'-11"4'-5" 9" 4'-5"9"5'-6"9"1'-10"5'-6" 9" 5'-6"2'-11"3'-4" B147 B135 B146 B149 B146 B148 B148 B148 B148 3 3 3 3 3 3 3 3 3 3 3 3 3 3 3 3 3 33 3 3 H SS6X6X5/16 TYP AT AC C H 1'-17/8"20'-7" 4 4 4 STEP CURB @ DOOR- REF ARCH FOR T/ CURB EL STEP CURB @ DOOR- REF ARCH FOR T/ CURB EL B148B148B148B148 B148B148B148B148 PLAN NOTES: 1. ALL ELEVATIONS ARE REFERENCED TO LEVEL 1 FINISHED FLOOR EL = 100'-0" (576.0'). REFERENCE SITE PLAN FOR ABSOLUTE ELEVATIONS. 2. SEE S1 SERIES FOR GENERAL NOTES. 3. SEE S3 SERIES FOR COLUMN, BEAM AND GIRDER SCHEDULES. 4. SEE S4 SERIES SHEETS FOR TYPICAL DETAILS. 5. GC SHALL SUBMIT PROPOSED CONSTRUCTION JOINTS FOR REVIEW. - DENOTES TOP OF SLAB ELEVATION - HATCHED AREA INDICATES EXTENTS OF 5 1/2" THICK SLAB - REF 04/S4.10. 7. 6. XXX'-X" ® ® date project number title The drawings and written material herein constitute original work of the architect, and as intellectual property and instruments of service, are subject to copyright and may not be reproduced, distributed, published or used in any way without the express written consent of the architect. plotted: revisions sheet original issue project landscape architect 223 NORTH GRAHAM ST CHARLOTTE, NORTH CAROLINA 28202 704.333.0325 structural engineer RAYMOND L. GOODSON (RLG) 12001 N. CENTRAL EXPY., SUITE 300 DALLAS, TEXAS 75243 214.739.8100 mechanical engineer JJA, Inc. 8150 N. CENTRAL EXPY., SUITE M-2100 DALLAS, TEXAS 75206 214.739.8880 construction manager HILL & WILKINSON 2703 TELECOM PKWY, STE 120 RICHARDSON, TEXAS 75082 214.299.4300 civil engineer 222 WEST LAS COLINAS BLVD. IRVING, TEXAS 75039, SUITE 1405 N 214.785.6009 architecture interiors planning graphics 8070 Park Lane, Ste. 300 Dallas, Texas 75231 Tel 972.701.9000 Fax 972.991.3008 www.bokapowell.com design architect 2520 BROADWAY ST. BOULDER, COLORADO 80304 720.565.0505 client/owner BRIGHT REALTY 2520 KING ARTHUR BLVD., SUITE 200 LEWISVILLE, TEXAS 75056 972.410.6600 PERMIT 10.27.2017 10/24/20184:56:44PM C:UsersmcroweDocuments15551_Struct_TheRealm_Central_R16_mcrowe.rvt S2.10 ROOF FRAMING PLAN 14149.100 THE REALM AT CASTLE HILLS LEWISVILLE, TEXAS 1/8" = 1'-0"01 ROOF LEVEL FRAMING PLAN 1 1 1 1 1 111 1 1 1 1 1 1 1 1 1 1 1 1 1 1 1 1 1 1 1 1 1 1 1 1 2 3 1 Construction Documents 12/19/2017 2 WCPR 01 03/09/2018 3 WCPR 04 06/21/2018 4 WCPR 10 10/24/2018
  • 16.
    4 4 CC DD 3'-51/2" 2'-01/4" 111/4"15'-7"5'-0" 2'-3" 9'-10" STAIR #2 W12X22 7 7 CC DD STAIR#1 9'-10" 2'-3" 3'-63/8"1'-105/8"1'-0"15'-7"5'-0" W12X22 3 7 7 CC DD STAIR #1 21'-87/8"6'-5" 1'-17/8" 9'-10" 2'-3" 1'-2" 9" 1'-2" 13'-11 1/4" 4'-11"1'-2"20'-11"1'-57/8"1'-2" 12'-1" 1'-6" 1'-6" 1'-6" 5 5 5 5 5 5 5 5 5 7 7 CC DD 1 1/2" 22 GA TYPE "B" METAL ROOF DECK - SEE GENERAL NOTES 16'-3 1/4" 9" 24'-87/8"4'-11" 2'-77/8" T/STL EL = 246'-0 1/4" W14X22 W14X22 1'-2" 13'-11 1/4" 1'-2" 1'-2"22'-47/8"1'-2" 04 S7.01 02 S7.01 T/STL EL = 246'-3 3/4" SLOPE 5 5 5 5 5 W12X19 W12X19 W12X19 W12X19 W12X19 PLAN NOTES: 1. ALL ELEVATIONS ARE REFERENCED TO LEVEL 1 FINISHED FLOOR EL = 100'-0" (576.0'). REFERENCE SITE PLAN FOR ABSOLUTE ELEVATIONS. 2. SEE S1 SERIES FOR GENERAL NOTES. 3. SEE S3 SERIES FOR COLUMN, BEAM AND GIRDER SCHEDULES. 4. SEE S4 SERIES SHEETS FOR TYPICAL DETAILS. 5. GC SHALL SUBMIT PROPOSED CONSTRUCTION JOINTS FOR REVIEW. - DENOTES TOP OF STEEL ELEVATION (DECK BEARING).6. XXX'-X" ® ® date project number title The drawings and written material herein constitute original work of the architect, and as intellectual property and instruments of service, are subject to copyright and may not be reproduced, distributed, published or used in any way without the express written consent of the architect. plotted: revisions sheet original issue project landscape architect 223 NORTH GRAHAM ST CHARLOTTE, NORTH CAROLINA 28202 704.333.0325 structural engineer RAYMOND L. GOODSON (RLG) 12001 N. CENTRAL EXPY., SUITE 300 DALLAS, TEXAS 75243 214.739.8100 mechanical engineer JJA, Inc. 8150 N. CENTRAL EXPY., SUITE M-2100 DALLAS, TEXAS 75206 214.739.8880 construction manager HILL & WILKINSON 2703 TELECOM PKWY, STE 120 RICHARDSON, TEXAS 75082 214.299.4300 civil engineer 222 WEST LAS COLINAS BLVD. IRVING, TEXAS 75039, SUITE 1405 N 214.785.6009 architecture interiors planning graphics 8070 Park Lane, Ste. 300 Dallas, Texas 75231 Tel 972.701.9000 Fax 972.991.3008 www.bokapowell.com design architect 2520 BROADWAY ST. BOULDER, COLORADO 80304 720.565.0505 client/owner BRIGHT REALTY 2520 KING ARTHUR BLVD., SUITE 200 LEWISVILLE, TEXAS 75056 972.410.6600 PERMIT 10.27.2017 10/24/20184:56:46PM C:UsersmcroweDocuments15551_Struct_TheRealm_Central_R16_mcrowe.rvt S2.13 ENLARGED STAIR PLANS 14149.100 THE REALM AT CASTLE HILLS LEWISVILLE, TEXAS 1/4" = 1'-0"01 LEVELS 2 TO 9 FRAMING PLAN - STAIR #2 1/4" = 1'-0"02 LEVELS 2 TO 9 FRAMING PLAN - STAIR #1 1/4" = 1'-0"03 ROOF FRAMING PLAN - STAIR #1 1/4" = 1'-0"04 HIGH ROOF FRAMING PLAN - STAIR #1 1 1 2 2 2 1 Construction Documents 12/19/2017 2 WCPR 01 03/09/2018 3 WCPR 04 06/21/2018 4 WCPR 07 07/20/2018 5 WCPR 10 10/24/2018 4
  • 17.
    4 4 5 5 6 6 7 7 GG EE 14'-8" 30'-0" 30'-0"30'-0" 14'-8" 21'-6" 01 S6.11W12X35 (TYP) W16X40 (TYP) KNEE BRACE (TYP) 239'-5" 238'-10 1/2" 239'-5" 238'-10 1/2" LINE OF ARCH BELOW 1 1/2" 22 GA TYPE "B" METAL ROOF DECK - SEE GENERAL NOTES 9'-21/2" 3'-41/4" 3EQSPA=12'-93/4" 02 S6.11 02 S6.11 AT NANA WALL 3'-81/4" ATOH 12'-53/4" ATOH 2EQSPA= 03 S6.11 03 S6.11 4 4 4 4 5 5 CC DD 1'-6" 1" 1'-1 1/4" 1'-6" 27'-4 3/4" 15'-8 1/4" 1'-2" 1'-2" 43/4" 27'-0" 1" 1'-2" 1 1/2" 22 GA TYPE "B" METAL ROOF DECK - SEE GENERAL NOTES BOTTOM FLANGE BRACING (TYP) REF 02/S6.05 1'-3" 1'-5 1/4" 45'-5" 29'-93/4" 17'-91/2"12'-01/4" 1"1'-2"1'-2"43/4" 02 S7.01 04 S7.01 TYP AT COLTYP W10X26 TROLLEY BEAM - COORD W/ MFR W12X14 (TYP) KNEE BRACE (TYP) W18X35 W18X35 W18X35 W18X35 W18X35 W18X35 W18X35 W12X14 248'-6" 248'-6" 249'-5 1/2" 249'-4 3/4" SLOPE 21'-6 1/2" 1'-2" 6 6 7 7 CC DD W12X26 4'-10 3/4" 6'-10 1/4" 6'-6" KNEE BRACE (TYP) T/STL EL - COORD W/ MEP 02 S7.02 5'-43/4" 71/4" 6'-93/8"14'-03/8"5'-71/8"8'-51/4" W12X19 W12X26 W12X26 W12X26 ACCH 19,300 LBS ACCH 19,300 LBS W12X19 W12X19 6'-10 1/4" 4'-10 3/4" W12X19W12X19W12X19 W12X19 W12X19W12X19 W12X26 W12X26 W12X26 W12X19W12X19 W12X19W12X19W12X19 W12X19 McNICHOLS QUALITY GRATING 1"X1/8" ITEM GW- 100A HOT DIP GALV. - TYP 07 S7.02 07 S7.02 W12X19 W12X19 4 4 PLAN NOTES: 1. ALL ELEVATIONS ARE REFERENCED TO LEVEL 1 FINISHED FLOOR EL = 100'-0" (576.0'). REFERENCE SITE PLAN FOR ABSOLUTE ELEVATIONS. 2. SEE S1 SERIES FOR GENERAL NOTES. 3. SEE S3 SERIES FOR COLUMN, BEAM AND GIRDER SCHEDULES. 4. SEE S4 SERIES SHEETS FOR TYPICAL DETAILS. 5. GC SHALL SUBMIT PROPOSED CONSTRUCTION JOINTS FOR REVIEW. - DENOTES TOP OF STEEL ELEVATION (DECK BEARING).6. XXX'-X" ® ® date project number title The drawings and written material herein constitute original work of the architect, and as intellectual property and instruments of service, are subject to copyright and may not be reproduced, distributed, published or used in any way without the express written consent of the architect. plotted: revisions sheet original issue project landscape architect 223 NORTH GRAHAM ST CHARLOTTE, NORTH CAROLINA 28202 704.333.0325 structural engineer RAYMOND L. GOODSON (RLG) 12001 N. CENTRAL EXPY., SUITE 300 DALLAS, TEXAS 75243 214.739.8100 mechanical engineer JJA, Inc. 8150 N. CENTRAL EXPY., SUITE M-2100 DALLAS, TEXAS 75206 214.739.8880 construction manager HILL & WILKINSON 2703 TELECOM PKWY, STE 120 RICHARDSON, TEXAS 75082 214.299.4300 civil engineer 222 WEST LAS COLINAS BLVD. IRVING, TEXAS 75039, SUITE 1405 N 214.785.6009 architecture interiors planning graphics 8070 Park Lane, Ste. 300 Dallas, Texas 75231 Tel 972.701.9000 Fax 972.991.3008 www.bokapowell.com design architect 2520 BROADWAY ST. BOULDER, COLORADO 80304 720.565.0505 client/owner BRIGHT REALTY 2520 KING ARTHUR BLVD., SUITE 200 LEWISVILLE, TEXAS 75056 972.410.6600 PERMIT 10.27.2017 10/24/20184:56:47PM C:UsersmcroweDocuments15551_Struct_TheRealm_Central_R16_mcrowe.rvt S2.14 PARTIAL PLANS 14149.100 THE REALM AT CASTLE HILLS LEWISVILLE, TEXAS 1/8" = 1'-0"01 ROOF CANOPY FRAMING PLAN 1/8" = 1'-0"02 ELEVATOR MECHANICAL ROOF FRAMING PLAN 1/8" = 1'-0"03 ACCH SUPPORT FRAMING PLAN NOTE: ALL STEEL AT COOLING TOWER TO BE HOT DIPPED GALVANIZED 1 1 1 1 TOP OF STEEL ELEVATIONS UPDATED TO MATCH ARCHITECTURAL. 1 1 1 1 2 3 1 Construction Documents 12/19/2017 2 WCPR 01 03/09/2018 3 WCPR 04 06/21/2018 4 WCPR 10 10/24/2018
  • 18.
    MILD REINFORCING LEGEND: CALLOUT:4- 8- D BAR TYPE PER BAR SCHEDULE BAR SIZE BAR QUANTITY H G J K L N M P Q R S T V U A B E C D F REINFORCING BAR SCHEDULE W WHICHEVER IS GREATER WHICHEVER IS GREATER OR SUPPORT EDGE OF CANTILEVER OUTSIDE FACE OF SUPPORT EDGE OF OR SUPPORT CANTILEVER OF SUPPORT OUTSIDE FACE L3 WHICHEVER IS GREATER L1 FACE OF SUPPORTS OR END OF BM L2 NOTE: IN SLAB, USE STANDARD 180° HOOKS IN LIEU OF 90° HOOKS SHOWN. EDGE OF OR SUPPORT CANTILEVER 15 BAR DIA EXTENSION 1/2 L2 1/2 L1 15 BAR DIA EXTENSION EXTENSION 15 BAR DIA 1/2 L1 2" CLR WHICHEVER IS GREATER 1/3 L1 OR 1/3 L3,WHICHEVER IS GREATER 1/3 L1 OR 1/3 L2, 2" CLR 1/4 L1 STDACIHOOKTYP 1/8 L1 3/4 L1 1/8 L1 2" CLR 6" EXTENSION 30 BAR DIA 2" CLR 2" CLR 1/3 L1 2" CLR 6" EXTENSION 2" CLR 2" CLR -- 1/4 L1 OR 1/4 L3, 1/2 L3 15 BAR DIA EXTENSION -1/3 L1 OR 1/3 L3, 2" CLR 30 BAR DIA 6" EXTENSION 30 BAR DIA 6" EXTENSION 1/3 L1 OR 1/3 L3, 2" CLR 30 BAR DIA 1/8 L1 2" CLR 1/2 L3 15 BAR DIA EXTENSION EQ EQ EQ TOP CAP BAR TO MATCH SCHED STIRR SPACING, TYP EQ EQ EQ EQ EQ 135° HOOK AT PERIMETER SIDE OF BEAM TYPE S1 TYPE S2 TYPE S3 TYPE S4 TYPE S5 TOP CAP BAR TO MATCH SCHED STIRR SPACING, TYP STIRRUP TYPES Y 15 BAR DIA EXTENSION 1/2 L2 1/2 L3 15 BAR DIA EXTENSION ® ® date project number title The drawings and written material herein constitute original work of the architect, and as intellectual property and instruments of service, are subject to copyright and may not be reproduced, distributed, published or used in any way without the express written consent of the architect. plotted: revisions sheet original issue project landscape architect 223 NORTH GRAHAM ST CHARLOTTE, NORTH CAROLINA 28202 704.333.0325 structural engineer RAYMOND L. GOODSON (RLG) 12001 N. CENTRAL EXPY., SUITE 300 DALLAS, TEXAS 75243 214.739.8100 mechanical engineer JJA, Inc. 8150 N. CENTRAL EXPY., SUITE M-2100 DALLAS, TEXAS 75206 214.739.8880 construction manager HILL & WILKINSON 2703 TELECOM PKWY, STE 120 RICHARDSON, TEXAS 75082 214.299.4300 civil engineer 222 WEST LAS COLINAS BLVD. IRVING, TEXAS 75039, SUITE 1405 N 214.785.6009 architecture interiors planning graphics 8070 Park Lane, Ste. 300 Dallas, Texas 75231 Tel 972.701.9000 Fax 972.991.3008 www.bokapowell.com design architect 2520 BROADWAY ST. BOULDER, COLORADO 80304 720.565.0505 client/owner BRIGHT REALTY 2520 KING ARTHUR BLVD., SUITE 200 LEWISVILLE, TEXAS 75056 972.410.6600 PERMIT 10.27.2017 10/24/20184:56:50PM C:UsersmcroweDocuments15551_Struct_TheRealm_Central_R16_mcrowe.rvt S3.11 CONCRETE BEAM SCHEDULE 14149.100 THE REALM AT CASTLE HILLS LEWISVILLE, TEXAS NOTES: 1. LEFT AND RIGHT ENDS ARE DETERMINED BY VIEWING GIRDERS FROM THE BOTTOM OR THE RIGHT SIDE OF THE SHEET FOR ORIENTATION OF MILD REINFORCING. 2. MARKS FOLLOWED BY THE LETTER "R" ARE REVERSED WITH RESPECT TO THE LEFT AND RIGHT ENDS FOR ORIENTATION OF MILD REINFORCING. 3. HOOK END OF BARS SHALL BE LOCATED AT THE END WHERE BAR IS SHOWN IN SCHEDULE. 4. STIRRUPS ARE SPACED FROM FACE OF SUPPORT EACH END. REF S4.10 AND S4.11 FOR TYPICAL DETAILS SPECIAL NOTES: 1. BOTTOM "J" BARS TO EXTEND TO FACE OF DEEPEND BEAM. 2. BOTTOM "N" BARS AT DEPTH OF BOTTOM BARS OF BEAM MARKED BEFORE. 3. EXTEND HOOKS OF TOP & BOT REINF TO DISCONTINUOUS END IN ADJACENT SPAN. 4. EXTEND BOT "J" BAR TO DISCONTINUOUS END. 5. HOOK 3-6 - T AT DISCONTINUOUS END. 6. CONTINUATION OF B136. 1 1 1 1 1 1 1 2 2 2 2 3 3 1 Construction Documents 12/19/2017 2 WCPR 01 03/09/2018 3 WCPR 04 06/21/2018 4 WCPR 10 10/24/2018 4 4 4 4
  • 19.
    SCHED WIDTH SCHEDDEPTH WF BM- REF PLAN CONT L4X4X1/4 C4X5.4 @ 4'-0" OC 3/8" CAP PL FULL DEPTH SHEAR TAB EA SIDE (3/8" MIN) SLOPE 1 1/2" ROOF DECK - REF GEN NOTES T/STL EL REF PLAN HSS COL - REF PLAN 1/2" PL W/ 4 - 3/4" DIA A325 BOLTS 1/4 TYP HSS4X4X1/4 (TYP) PL 1/4 (TYP) NANAWALL AND CONNX TO STRUCTURE BY MFR HSS12X12 - REF PLAN CURTAINWALL - REF ARCH METAL PANEL - REF ARCH C6X8.2 @4'-0" OC L5X5X5/16 KICKER CONT L4X4X1/4 STD AISC SINGLE PLATE CONNECTION HSS COL - REF PLAN 1 1 EMBED PL 3/4X12X1'-0" W/ 4- 3/4" DIA X 6" HS - REF PLAN DETAIL "A"3" 7 1/2" 1 1/2" 11/2"9"11/2" OUTSIDE FACE OF BM EMBED PL 1/2X12X1'-0" W/ 4- 3/4" DIA X 6" HS - REF PLAN DETAIL "A" PLAN DETAIL "A" EMBED PL L6X4X3/8 LLV W12 PURLINS NOT SHOWN FOR CLARITY - REF PLAN EMBED PL 1/2X9X1'-0" W/ 4- 3/4" DIA X 6" HS - REF PLAN DETAIL "B" EMBED PL 1/2X9X1'-0" W/ 4- 3/4" DIA X 6" HS - REF PLAN DETAIL "B" 1 1/2" 6" 1 1/2" 11/2" 9" 11/2" OUTSIDE FACE OF BM PLAN DETAIL "B" EMBED PL T/STL EL REF PLAN OUTSIDE FACE OF BM S6.11 04 SCHED WIDTH SCHEDDEPTH SLOPE 1 1/2" ROOF DECK - REF GEN NOTES T/STL EL REF PLAN HSS COL - REF PLAN CURTAINWALL - REF ARCH METAL PANEL - REF ARCH HSS COL - REF PLAN 1 1 WIDTH SCHED WIDTH SCHED REF 01/S6.11 FOR INFO NOT SHOWN WF BM - REF PLAN W12 PURLINS NOT SHOWN FOR CLARITY - REF PLAN S6.11 04 CL BM REF ARCH 1'-0" MAX T/ STL EL VARIES SEE PLAN CONT L1 1/2X1 1/2X1/4 EDGE ANGLE CONT C4X5.4 STL BEM- REF PLAN MTL ROOF DECK- REF PLAN CFM STUDS BY CFM ENG FINISH- REF ARCH T/ STL EL SEE PLAN STL BM- REF PLAN MTL ROOF DECK- REF PLAN CFM STUDS BY CFM ENG FINISH- REF ARCH STL BM BEYOND NOT SHOWN FOR CLARITY SEE 03/S6.11 FOR INFO NOT SHOWN L3X3X1/4 OUTRIGGER @ 48" OC. INFILL W/ CFM STUDS BY CFM ENG L3X3X1/4 KICKER @ EA OUTRIGGER 3/8" GUSSET PL TYP EA END CL BM REF ARCH 1'-0" < x < 1'-6" ® ® date project number title The drawings and written material herein constitute original work of the architect, and as intellectual property and instruments of service, are subject to copyright and may not be reproduced, distributed, published or used in any way without the express written consent of the architect. plotted: revisions sheet original issue project landscape architect 223 NORTH GRAHAM ST CHARLOTTE, NORTH CAROLINA 28202 704.333.0325 structural engineer RAYMOND L. GOODSON (RLG) 12001 N. CENTRAL EXPY., SUITE 300 DALLAS, TEXAS 75243 214.739.8100 mechanical engineer JJA, Inc. 8150 N. CENTRAL EXPY., SUITE M-2100 DALLAS, TEXAS 75206 214.739.8880 construction manager HILL & WILKINSON 2703 TELECOM PKWY, STE 120 RICHARDSON, TEXAS 75082 214.299.4300 civil engineer 222 WEST LAS COLINAS BLVD. IRVING, TEXAS 75039, SUITE 1405 N 214.785.6009 architecture interiors planning graphics 8070 Park Lane, Ste. 300 Dallas, Texas 75231 Tel 972.701.9000 Fax 972.991.3008 www.bokapowell.com design architect 2520 BROADWAY ST. BOULDER, COLORADO 80304 720.565.0505 client/owner BRIGHT REALTY 2520 KING ARTHUR BLVD., SUITE 200 LEWISVILLE, TEXAS 75056 972.410.6600 PERMIT 10.27.2017 10/24/20184:56:52PM C:UsersmcroweDocuments15551_Struct_TheRealm_Central_R16_mcrowe.rvt S6.11 FRAMING SECTIONS AND DETAILS 14149.100 THE REALM AT CASTLE HILLS LEWISVILLE, TEXAS 01 02 1 1 1 Construction Documents 12/19/2017 2 WCPR 10 10/24/2018 03 04 2 2 2 2
  • 20.
    MTL PANEL - REFARCH ROOFING - REF ARCH 8" CONC CURB REF 03/S7.01 HSS - REF PLAN T/ SLAB EL REF PLAN GALV BASE PL 3/4"X12"X1'-0" W/ 4 - 3/4" TYPE "B" AB W/ 9" GA, SHIM PL 1" AND GROUT SOLID W/ NON-SHRINK GROUT. REF 03/S7.01 FOR INFO NOT SHOWN REF PLAN 2 T/ CURB EL REF ARCH 3 MTL PANEL - REF ARCH (OMIT AT SIM) ROOFING - REF ARCH 8" REF PLAN CFM WALL - REF ARCH #4 X @12" OC EA FACE #4 HORIZ @ 12" OC EA FACE CONC CURB WATER STOP - REF ARCH SCHED WIDTH T/ SLAB EL SEE PLAN SCHEDDEPTH T/ CURB EL REF ARCH 8" 8" DEPTH SCHED DEPTH SCHED ELEVATOR SHAFT CFM WALL OMIT @ SIM #4 x @ 12" OC TYP #4 @ 12" OC, EF TYP #4 x @ 12" OC TYP 1'-3" REF ARCH SLOPE EMBED E2 @ 4'-0" OC MAX 3" METAL ROOF DECK - REF GENERAL NOTES T/WALL EL = REF ARCH ROOFING - REF ARCH W12 - REF PLAN WIDTH SCHED WIDTH SCHED MECHANICAL ROOM W8X24 HOIST BM COORD LOCATION W/ ELEV MFR MTL PANEL REF ARCH OMIT @ SIM T/WALL EL REF ARCH T/SLAB EL REF PLAN .2"MINVERIFYW/ ELEVMFR 2'-0"-TYP C6, TYP NOTE: GC TO COORD SIZE AND LOCATION OF MECH OPNGS AND HOIST BEAM W/ MEP AND ELEVATOR MFR. 5/8" PUDDLE WELD AT EACH FLUTE LINE OF MEP OPNG BEYOND REF PLAN T/ STEEL EL REF PLAN BENT PL - REF 06/S7.01 MTL PANEL - REF ARCH WF BM - REF PLAN MTL DECK - REF PLAN ROOFING - REF ARCH OUTRIGGER - REF 06/S7.01 T/ STL EL REF PLAN ROOFING - REF ARCH HSS COLUMN - REF PLAN L4X4X1/4 WF BM - REF PLAN MTL DECK REF GEN NOTES STANDARD AISC SINGLE PLATE SHEAR CONNX DO NOT WELD BRACE UNTIL DEAD LOAD HAS BEEN APPLIED REF 02/S7.01 FOR INFO NOT SHOWN 1/4 TYP 1 1 REF PLAN 5'-0" REF PLAN BENT PL 1/4X4X3 (LLH) CONT WF BM - REF PLAN 3/16 3/16 OUTRIGGER L3X3X1/4 @ 36" OC 1/2" 1" GALV BASE PL - 3/4 x 10 x 0'-10" W/ 3 - 3/4" DIA TYPE "B" AB W/ 7" GA, SHIM PLATE 1" AND GROUT SOLID W/ NON-SHRINK GROUT 8" CONC CURB HSS6X6 SEE PLAN STAIR #1 1" 1'-2"REFPLAN 1'-2" CL COL REF PLAN ® ® date project number title The drawings and written material herein constitute original work of the architect, and as intellectual property and instruments of service, are subject to copyright and may not be reproduced, distributed, published or used in any way without the express written consent of the architect. plotted: revisions sheet original issue project landscape architect 223 NORTH GRAHAM ST CHARLOTTE, NORTH CAROLINA 28202 704.333.0325 structural engineer RAYMOND L. GOODSON (RLG) 12001 N. CENTRAL EXPY., SUITE 300 DALLAS, TEXAS 75243 214.739.8100 mechanical engineer JJA, Inc. 8150 N. CENTRAL EXPY., SUITE M-2100 DALLAS, TEXAS 75206 214.739.8880 construction manager HILL & WILKINSON 2703 TELECOM PKWY, STE 120 RICHARDSON, TEXAS 75082 214.299.4300 civil engineer 222 WEST LAS COLINAS BLVD. IRVING, TEXAS 75039, SUITE 1405 N 214.785.6009 architecture interiors planning graphics 8070 Park Lane, Ste. 300 Dallas, Texas 75231 Tel 972.701.9000 Fax 972.991.3008 www.bokapowell.com design architect 2520 BROADWAY ST. BOULDER, COLORADO 80304 720.565.0505 client/owner BRIGHT REALTY 2520 KING ARTHUR BLVD., SUITE 200 LEWISVILLE, TEXAS 75056 972.410.6600 PERMIT 10.27.2017 10/24/20184:56:54PM C:UsersmcroweDocuments15551_Struct_TheRealm_Central_R16_mcrowe.rvt S7.01 FRAMING SECTIONS AND DETAILS 14149.100 THE REALM AT CASTLE HILLS LEWISVILLE, TEXAS 05 03 01 0204 1 1 061 1 1 1 1 1 1 07 2 2 2 2 1 Construction Documents 12/19/2017 2 WCPR 01 03/09/2018 3 WCPR 10 10/24/2018 3