Escalators and moving walks
defenetion 
• is a conveyor type 
transport device that 
moves people. It is a 
moving staircase with 
steps that move up or 
down using a 
conveyor belt and 
tracks keeping each 
step horizontal for the 
passenger.
Historical background 
• Jesse Reno, a graduate of Lehigh University, 
produced the first working escalator (he 
actually called it the "inclined elevator") and 
installed it alongside the Old Iron Pier at 
Coney Island, New York in 1896. 
• Piat installed its "stepless" escalator in 
Harrods Knightsbridge store on Wednesday, 
November 16, 1898 Customers were given 
Brandy to recover from the experience!
Escalator = Scala Elevator 
• The escalator as we 
know it was later re-designed 
by Charles 
Seeberger in 1897, who 
created the name 
'escalator' from the 
word 'scala', which is 
Latin for steps and the 
word 'elevator', which 
had already been 
invented.
• No invention has had more of an 
influence on shopping than the 
escalator. Over the past 100 years 
the escalator has opened up a whole 
new world as a simple means of 
connecting different floors 
• Escalators and moving walks still play 
a key role in transporting large 
numbers of people. Planning 
escalators and moving walks 
correctly in shopping centers, trade 
fair centers, stores, movie theaters 
and public transportation facilities is 
essential for the successful course of 
business and the smooth flow of 
people.
factors affect escalator design 
• physical requirements. 
• Location 
• traffic patterns 
• safety considerations 
• aesthetic preferences. 
• Foremost, physical factors like the vertical and 
horizontal distance to be spanned must be 
considered.
classifications 
• According to shape
According to arrangement type 
• Interrupted arrangement 
(one-way traffic)While 
relatively inconvenient for 
the user, for the owner of 
the department store it 
provides the advantage that 
due to the spatial 
separation of the upward 
and downward directions, 
customers have to walk past 
specially placed 
merchandise displays.
• Parallel, interrupted 
arrangement (two-way 
traffic)This arrangement is 
used mainly in department 
stores and public 
transportation buildings 
with heavy traffic volumes. 
When there are three or 
more escalators or moving 
walks, it should be possible 
to reverse the direction of 
travel depending on the 
traffic flow.
• Crisscross, continuous 
arrangement (two-way 
traffic)This type of installation is 
the one used most frequently as 
it allows customers to travel 
quickly to the upper floors 
without any waiting time. 
Depending on how the 
escalators are positioned, the 
store fitter can open up the 
view onto the shop floor to 
stimulate customer interest in 
the goods on display.
Escalators Proper inclination 
• 30° inclination This inclination 
provides the highest traveling 
comfort and maximum safety 
for the user. 
• 35° inclination The 35° 
escalator is the most efficient 
solution as it requires less 
space and can be implemented 
more cost-effectively. However, 
this inclination is perceived as 
too steep if rises exceed 5 m – 
particularly in downward travel.
Moving walks Proper inclination 
• Inclinations of 10°, 11° and 
12° are the common 
international standard for 
inclined moving walks. 
• Users find that a 10° 
inclination provides the most 
comfortable ride. A 12° 
inclination is used whenever 
the space available is limited. 
• Horizontal moving walks can 
generally be provided for 
inclinations between 0° and 
6°.
Componants
• Landing Platforms: These 
two platforms house the 
curved sections of the 
tracks, as well as the gears 
and motors that drive the 
stairs. The top platform 
contains the motor 
assembly and the main 
drive gear, while the bottom 
holds the step return idler 
sprockets. 
• Floor plate: It provides a 
place for the passengers to 
stand before they step onto 
the moving stairs.
• Truss: The truss is a hollow 
metal structure that bridges 
the lower and upper landings. 
It is composed of two side 
sections joined together with 
cross braces across the bottom 
and just below the top .The 
ends of the truss are attached 
to the top and bottom landing 
platforms via steel or concrete 
supports. 
• steps: The steps are solid, one 
piece, die-cast aluminum or 
steel. Yellow demarcation lines 
may be added to clearly 
indicate their edges.
• Handrail: The handrail provides a 
convenient handhold for 
passengers while they are riding 
the escalator ,the handrail is pulled 
along its track by a chain that is 
connected to the main drive gear 
by a series of pulleys 
• Balustrade: consists of the handrail 
and the exterior supporting 
structure of the escalator. It is the 
escalator exterior components 
extending above the steps and it 
supports the handrail. It is either 
designed as Interior Low-deck or 
Interior High-deck.
• Tracks: The track system is built into the truss to guide the step 
chain, which continuously pulls the steps from the bottom 
platform and back to the top in an endless loop. There are 
actually two tracks: one for the front wheels of the steps 
(called the step-wheel track) and one for the back wheels of 
the steps (called the trailer-wheel track). The relative positions 
of these tracks cause the steps to form a staircase as they 
move out from under the comb plate. This right angle bends 
the steps into a shape resembling a staircase.
Safety cautions 
• Escalator safety is a big concern, 
especially for children. Each year, 
escalator accidents are responsible 
for numerous trips to the emergency 
room. These accidents can occur due 
to loose scarves, shoe strings or other 
articles of clothing becoming stuck in 
the escalator. Little hands and feet 
have been caught in escalators as 
well. 
• Safety tips should be posted on every 
escalator and moving walk to 
prevent these accidents
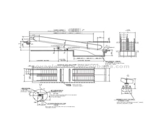
Escalators construction
Standard dimensions
Escalators

Escalators

  • 1.
  • 2.
    defenetion • isa conveyor type transport device that moves people. It is a moving staircase with steps that move up or down using a conveyor belt and tracks keeping each step horizontal for the passenger.
  • 3.
    Historical background •Jesse Reno, a graduate of Lehigh University, produced the first working escalator (he actually called it the "inclined elevator") and installed it alongside the Old Iron Pier at Coney Island, New York in 1896. • Piat installed its "stepless" escalator in Harrods Knightsbridge store on Wednesday, November 16, 1898 Customers were given Brandy to recover from the experience!
  • 4.
    Escalator = ScalaElevator • The escalator as we know it was later re-designed by Charles Seeberger in 1897, who created the name 'escalator' from the word 'scala', which is Latin for steps and the word 'elevator', which had already been invented.
  • 5.
    • No inventionhas had more of an influence on shopping than the escalator. Over the past 100 years the escalator has opened up a whole new world as a simple means of connecting different floors • Escalators and moving walks still play a key role in transporting large numbers of people. Planning escalators and moving walks correctly in shopping centers, trade fair centers, stores, movie theaters and public transportation facilities is essential for the successful course of business and the smooth flow of people.
  • 6.
    factors affect escalatordesign • physical requirements. • Location • traffic patterns • safety considerations • aesthetic preferences. • Foremost, physical factors like the vertical and horizontal distance to be spanned must be considered.
  • 7.
  • 8.
    According to arrangementtype • Interrupted arrangement (one-way traffic)While relatively inconvenient for the user, for the owner of the department store it provides the advantage that due to the spatial separation of the upward and downward directions, customers have to walk past specially placed merchandise displays.
  • 9.
    • Parallel, interrupted arrangement (two-way traffic)This arrangement is used mainly in department stores and public transportation buildings with heavy traffic volumes. When there are three or more escalators or moving walks, it should be possible to reverse the direction of travel depending on the traffic flow.
  • 10.
    • Crisscross, continuous arrangement (two-way traffic)This type of installation is the one used most frequently as it allows customers to travel quickly to the upper floors without any waiting time. Depending on how the escalators are positioned, the store fitter can open up the view onto the shop floor to stimulate customer interest in the goods on display.
  • 11.
    Escalators Proper inclination • 30° inclination This inclination provides the highest traveling comfort and maximum safety for the user. • 35° inclination The 35° escalator is the most efficient solution as it requires less space and can be implemented more cost-effectively. However, this inclination is perceived as too steep if rises exceed 5 m – particularly in downward travel.
  • 12.
    Moving walks Properinclination • Inclinations of 10°, 11° and 12° are the common international standard for inclined moving walks. • Users find that a 10° inclination provides the most comfortable ride. A 12° inclination is used whenever the space available is limited. • Horizontal moving walks can generally be provided for inclinations between 0° and 6°.
  • 13.
  • 14.
    • Landing Platforms:These two platforms house the curved sections of the tracks, as well as the gears and motors that drive the stairs. The top platform contains the motor assembly and the main drive gear, while the bottom holds the step return idler sprockets. • Floor plate: It provides a place for the passengers to stand before they step onto the moving stairs.
  • 15.
    • Truss: Thetruss is a hollow metal structure that bridges the lower and upper landings. It is composed of two side sections joined together with cross braces across the bottom and just below the top .The ends of the truss are attached to the top and bottom landing platforms via steel or concrete supports. • steps: The steps are solid, one piece, die-cast aluminum or steel. Yellow demarcation lines may be added to clearly indicate their edges.
  • 16.
    • Handrail: Thehandrail provides a convenient handhold for passengers while they are riding the escalator ,the handrail is pulled along its track by a chain that is connected to the main drive gear by a series of pulleys • Balustrade: consists of the handrail and the exterior supporting structure of the escalator. It is the escalator exterior components extending above the steps and it supports the handrail. It is either designed as Interior Low-deck or Interior High-deck.
  • 17.
    • Tracks: Thetrack system is built into the truss to guide the step chain, which continuously pulls the steps from the bottom platform and back to the top in an endless loop. There are actually two tracks: one for the front wheels of the steps (called the step-wheel track) and one for the back wheels of the steps (called the trailer-wheel track). The relative positions of these tracks cause the steps to form a staircase as they move out from under the comb plate. This right angle bends the steps into a shape resembling a staircase.
  • 18.
    Safety cautions •Escalator safety is a big concern, especially for children. Each year, escalator accidents are responsible for numerous trips to the emergency room. These accidents can occur due to loose scarves, shoe strings or other articles of clothing becoming stuck in the escalator. Little hands and feet have been caught in escalators as well. • Safety tips should be posted on every escalator and moving walk to prevent these accidents
  • 19.
  • 20.