Efthimiadis Efthimios's Portfolio
4358 West 136th st. Apt #d, 90250 Hawthorne CA
e-mail: efthimis_efthimiadis@hotmail.com
Efthymiadis Efthy
Building Engineer
4358 West 136th st. Apt #d, 90250 Hawthorne CA
mail: efthimis_efthimiadis@hotmail.com
tel: +01 682-
1
Efthymiadis Efthymios
Building Engineer
4358 West 136th st. Apt #d, 90250 Hawthorne CA
mail: efthimis_efthimiadis@hotmail.com
-331-5293
2
Efthimiadis Efthimios's Portfolio
SeleCted ProJects
01. Architectural Composition II (pages 03-06)
02. Design of a public building-City Hall (pages 07-11)
03. Restoration and Reuse of a Monumental Structure (pages 12-16)
04 Renovation and Restoration of Building-The cultural centre (pages 17-21)
05. Dissertation Project- Restoration and Reuse of an immigrant residential property (pages 22-30)
3
Efthimiadis Efthimios's Portfolio
01. Architectural Composition II
SUBJECT:
The study refers to a housing complex in the region of Galaxidi (Fokida) that includes also other kind of uses
like offices and sport facilities. We also studied the position of more blocks of flats(phase B) that could be built
in the future.
The building site is situated on a cliff that is surrounded by mountains in all the directions except the south
side where we have a view of the sea.
The study consists of 3 identical multi story blocks of flats(phase A) that is designed for families and in the
ground level for other uses like offices and stores. It aims to cover the needs of a small society. We also placed
courts for tennis and basketball and a bicycle path in the perimeter of the building site in order to cover all the
needs of the users we placed also parking spots close to the buildings and garden pavilions for people to enjoy
the view. Our goal was to use as much as possible of the plot.
Our main concern was functional layout of apartments. the building site is in a convenient position because
it has a view of the sea as well of the forest. Therefore we decided to place balconies in the perimeter of the
building.
The materials we used was reinforced concrete.
The project is designed in Autocad.
LOCATION:
GALAKSIDI FOKIDA
ACADEMIC WORK
GROUP WORK STUDENTS:
SPYROPOULOU PARASKEV
EFTHIMIADIS EFTHIMIOS
PATHEKA SOFIA
SEMESTER: 5th
YEAR: JUNE 2009
PROFESSORS:
THIRESIA VOZIKI
GIWRGOS ELEZOGLOU
GRADE: 9
(max. 10)
4
Efthimiadis Efthimios's Portfolio
5
Efthimiadis Efthimios's Portfolio
6
Efthimiadis Efthimios's Portfolio
7
Efthimiadis Efthimios's Portfolio
02. Design of a Public Building (City Hall)
LOCATION: PATRA ACHAIA
ACADEMIC WORK
STUDENT:
EFTHIMIADIS EFTHIMIOS
SEMESTER: 6th SEMESTER (February-June)
YEAR: 2009
PROFESSORS:
LAZARIS ANDREAS
MANOLOPOULOS ALEXANDROS
GRADE: 8 (max10)
SUBJECT:
The aim of this project was to design a City Hall and include in it’s uses the traditional building that already existed in the plot.
I decided to design an imposing building that would underline the importance of a city hall in the city as well as becoming a landmark of the city. I was persuaded that the City hall should communicate with the city centre so I
turned the volume of the atrium to face the city centre.
Despite the big size the building had to have in order to host all the functions of a City Hall I tried to manage the volume of the building to be respective to it’s surrounding. For that reason I decided to lower gradually the volume
that is approaching the existing neoclassical building.
The uses of the city hall are divided in the side volumes of the building as well as in the neoclassical building. The central atrium was designed as public space and aimed to be a space of social interaction.
The building is designed in Autocad.
8
Efthimiadis Efthimios's Portfolio
9
Efthimiadis Efthimios's Portfolio
10
Efthimiadis Efthimios's Portfolio
11
Efthimiadis Efthimios's Portfolio
12
Efthimiadis Efthimios's Portfolio
03. Restoration and Reuse of a Monumental Structure
LOCATION:
PATRA,ACHAIA
ACADEMIC WORK
INDIVIDUAL WORK STUDENT:
EFTHIMIADIS EFTHIMIOS
KOLLAROS DIMITRIOS
SEMESTER: 7th (September - February)
YEAR: 2009 - 2010
PROFESSORS:
GEORGIADI ANASTASIA
IOSIF FANOURAKIS
GRADE: 7 (max 10)
SUBJECT:
The project required an architectural survey of a
historical building, a complete record of the
damages and propositions of restoration
methods as well as a complete study of a new use
of the building.
The building has a neoclassical character and
according to the Greek government it is a listed
building. As a consequence we couldn’t make
radical changes neither to the elevations nor to it’s
use. Primarily the building was used as a house and
we turned it into a conservatory.
Because we tried to respect the architecture of the
building we didn’t apply any changes to it’s
exterior. In the interior we added a metal
construction in order to create a big space that
could be used as a hall for small concerts. We
decided to use metal because it varies from the
existing architecture so as a result we avoid any
kind of imitation that would reduce it’s
architectural value.
The building is designed in Autocad.
13
Efthimiadis Efthimios's Portfolio
14
Efthimiadis Efthimios's Portfolio
15
Efthimiadis Efthimios's Portfolio
16
Efthimiadis Efthimios's Portfolio
17
Efthimiadis Efthimios's Portfolio
04. Renovation and Restoration of Building-The Cultural Centre
LOCATION:
PATRA, ACHAIA
ACADEMIC WORK
GROUP WORK STUDENTS:
EFTHIMIADIS EFTHIMIOS
BARKA IOANNA-MARIA
SEMESTER: 7th
YEAR: JANUARY 2009
PROFESSORS:
ANASTASIA GEORGIADI
GRADE: 8.5 (max. 10)
This study incorporates the mapping and renovation of a former underwear manufacturer building which now
has become the building that houses the department of Building Renovation and Restoration. The aim of this
study is the creation of a cultural centre that will encompass recreation spaces for the city’s inhabitants, as
well as, to contribute to the wider cultural development of the area. In designing the synthesis, the main
structure of the building has been preserved and the exterior walls have been converted encouraging thus the
formation of a nice interplay with the architectural volumes. The synthesis consists of a main staircase with all
the remaining functions being shaped around its existence. The final pattern of the building will not resemble
the initial pattern and this confirms the achievement of our aim.
18
Efthimiadis Efthimios's Portfolio
19
Efthimiadis Efthimios's Portfolio
20
Efthimiadis Efthimios's Portfolio
21
Efthimiadis Efthimios's Portfolio
22
Efthimiadis Efthimios's Portfolio
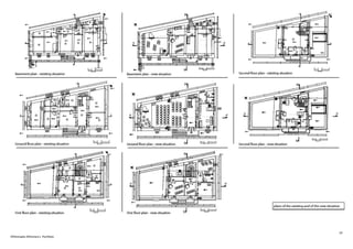
05. Dissertation Project- Restoration and Reuse of
an immigrant residential property)
The title of our dissertation is the restoration and renovation of an old
building, remains of an immigrant era from the Asia Minor and its
conversion from a residential property to a commercial property that
will house the administrative offices of the Panionios FC in Athens,
Greece.
The building under research comprises of a dining area on the
basement and a bedroom area on the first floor. Thus, we decided to
combine the typical architecture of that era that was shaped according
and following the immigrant wave from the Asia Minor, with the
modern architecture of a modern metallic structure.
By undertaking the risks associated with this challenge, we decided to
work towards combining the initial view of the building and the
creation of a completely new structure and incorporate it into the
above mentioned architecture.
LOCATION:
ATHENS, GREECE
ACADEMIC WORK
INDIVIDUAL WORK STUDENT:
EFTHIMIADIS EFTHIMIOS
ANAMOURLOGLOU EVAGELIA
BARKA IONNA-MARIA
SEMESTER: DISSERTATION PROJECT
YEAR: 2010-2011
PROFESSORS:
ROYMPIEN DIONISIOS
GRADE: 9 (max 10)
23
Efthimiadis Efthimios's Portfolio
-1.85
±0.00
+7.50
+11.00
+4.00
24
Efthimiadis Efthimios's Portfolio
+4.00
±0.00
+7.50
+11.00
-1.35
-1.85
+4.00
±0.00
-1.35
-1.85
+7.50
+11.00
25
Efthimiadis Efthimios's Portfolio
+4.00
±0.00
-1.35
-1.85
+7.50
+11.00
+4.00
±0.00
+7.50
+11.00
-1.35
-1.85
+4.00
±0.00
+7.50
+11.00
-1.35
-1.85
+4.00
±0.00
+7.50
+11.00
-1.35
-1.85
+4.00
±0.00
+7.50
+11.00
-1.35
-1.85
+4.00
±0.00
+7.50
+11.00
-1.35
-1.85
+4.00
±0.00
+7.50
+11.00
-1.35
-1.85
26
Efthimiadis Efthimios's Portfolio
27
Efthimiadis Efthimios's Portfolio
-1.85
-2.05
-1.85
2
6
1
ΥΠΟΜΝΙΜΑ ΥΛΙΚΩΝ
ΤΟΙΧΟΠΟΙΪΑ ΜΙΚΤΗ
(ΛΙΘΟΥΣ-ΟΠΤΟΠΛΙΝΘΟΥΣ)
ΤΟΙΧΟΠΟΙΪΑ ΟΠΤΟΠΛΙΝΘΟΔΟΜΗ
ΣΚΥΡΟΔΕΜΑ
ΔΑΠΕΔΟΜΩΣΑΪΚΟΥ
ΔΑΠΕΔΟΠΑΡΚΕ
ΔΑΠΕΔΟΑΠΟΚΕΡΑΜΙΚΑ ΠΛΑΚΙΔΙΑ
ΜΑΡΜΑΡΟ
ΚΡΟΚΑΛΑ
2
3
4
5
7
8
6
1
ΦΕΡΩΝ ΟΡΓΑΝΙΣΜΟΣ
44
4
5
2
8
8
8
8
1
1
7
ΥΠΟΜΝΙΜΑΥΛΙΚΩΝ
ΤΟΙΧΟΠΟΙΪΑΜΙΚΤΗ
(ΛΙΘΟΥΣ-ΟΠΤΟΠΛΙΝΘΟΥΣ)
ΤΟΙΧΟΠΟΙΪΑΟΠΤΟΠΛΙΝΘΟΔΟΜΗ
ΣΚΥΡΟΔΕΜΑ
ΔΑΠΕΔΟΜΩΣΑΪΚΟΥ
ΔΑΠΕΔΟΠΑΡΚΕ
ΔΑΠΕΔΟΑΠΟΚΕΡΑΜΙΚΑΠΛΑΚΙΔΙΑ
ΜΑΡΜΑΡΟ
ΚΡΟΚΑΛΑ
2
3
4
5
7
8
6
1
ΦΕΡΩΝΟΡΓΑΝΙΣΜΟΣ
ΥΠΟΜΝΙΜΑ ΥΛΙΚΩΝ
ΤΟΙΧΟΠΟΙΪΑ ΜΙΚΤΗ
(ΛΙΘΟΥΣ-ΟΠΤΟΠΛΙΝΘΟΥΣ)
ΤΟΙΧΟΠΟΙΪΑ ΟΠΤΟΠΛΙΝΘΟΔΟΜΗ
ΣΚΥΡΟΔΕΜΑ
ΔΑΠΕΔΟ ΜΩΣΑΪΚΟΥ
ΔΑΠΕΔΟ ΠΑΡΚΕ
ΔΑΠΕΔΟ ΑΠΟ ΚΕΡΑΜΙΚΑ ΠΛΑΚΙΔΙΑ
ΜΑΡΜΑΡΟ
ΚΡΟΚΑΛΑ
1
2
3
4
5
7
8
6
1
2
2
2
2
2
3
3
3
3
3
2 2
2
2
2
5
7
7
8
8
ΦΕΡΩΝ ΟΡΓΑΝΙΣΜΟΣ
1
2
2
7
7
7
7
7
ΥΠΟΜΝΙΜΑ ΥΛΙΚΩΝ
ΤΟΙΧΟΠΟΙΪΑ ΜΙΚΤΗ
(ΛΙΘΟΥΣ-ΟΠΤΟΠΛΙΝΘΟΥΣ)
ΤΟΙΧΟΠΟΙΪΑ ΟΠΤΟΠΛΙΝΘΟΔΟΜΗ
ΣΚΥΡΟΔΕΜΑ
ΔΑΠΕΔΟ ΜΩΣΑΪΚΟΥ
ΔΑΠΕΔΟ ΠΑΡΚΕ
ΔΑΠΕΔΟ ΑΠΟ ΚΕΡΑΜΙΚΑ ΠΛΑΚΙΔΙΑ
ΜΑΡΜΑΡΟ
ΚΡΟΚΑΛΑ
2
3
4
5
7
8
6
1
ΦΕΡΩΝ ΟΡΓΑΝΙΣΜΟΣ
ΥΠΟΜΝΙΜΑ ΥΛΙΚΩΝ
ΟΠΛΙΣΜΕΝΟ ΣΚΥΡΟΔΕΜΑ
ΞΥΛΙΝΑ ΣΤΟΙΧΕΙΑ
ΕΠΙΧΡΙΣΜΕΝΗ ΟΠΤΟΠΛΙΝΘΟΙ
ΕΠΙΧΡΙΣΜΕΝΗ ΠΛΙΝΘΟΔΟΜΗ
ΝΕΟΤΕΡΟ ΕΥΤΕΛΕΣ ΥΛΙΚΟ
ΚΕΡΑΜΙΚΑ ΣΤΟΙΧΕΙΑ
ΜΕΤΑΛΙΚΑ ΣΤΟΙΧΕΙΑ
ΜΑΡΑΜΑΡΙΝΑ ΣΤΟΙΧΕΙΑ
1
2
3
4
5
7
8
6
+4.00
±0.00
-1.35
-1.85
+7.50
+11.00
1
1
5
5
5
5
5
7
7
7
5
1
2
5
8
+4.00
±0.00
-1.35
-1.85
+7.50
+11.00
ΥΠΟΜΝΙΜΑ ΥΛΙΚΩΝ
ΟΠΛΙΣΜΕΝΟ ΣΚΥΡΟΔΕΜΑ
ΞΥΛΙΝΑ ΣΤΟΙΧΕΙΑ
ΕΠΙΧΡΙΣΜΕΝΗ ΟΠΤΟΠΛΙΝΘΟΙ
ΕΠΙΧΡΙΣΜΕΝΗ ΠΛΙΝΘΟΔΟΜΗ
ΝΕΟΤΕΡΟ ΕΥΤΕΛΕΣ ΥΛΙΚΟ
ΚΕΡΑΜΙΚΑ ΣΤΟΙΧΕΙΑ
ΜΕΤΑΛΙΚΑ ΣΤΟΙΧΕΙΑ
ΜΑΡΑΜΑΡΙΝΑ ΣΤΟΙΧΕΙΑ
1
2
3
4
5
7
8
6
5555
5
5
5
8
2
1 177 67 7
+4.00
±0.00
+7.50
+11.00
-1.35
-1.85
ΥΠΟΜΝΙΜΑ ΥΛΙΚΩΝ
ΟΠΛΙΣΜΕΝΟ ΣΚΥΡΟΔΕΜΑ
ΞΥΛΙΝΑ ΣΤΟΙΧΕΙΑ
ΕΠΙΧΡΙΣΜΕΝΗ ΟΠΤΟΠΛΙΝΘΟΙ
ΕΠΙΧΡΙΣΜΕΝΗ ΠΛΙΝΘΟΔΟΜΗ
ΝΕΟΤΕΡΟ ΕΥΤΕΛΕΣ ΥΛΙΚΟ
ΚΕΡΑΜΙΚΑ ΣΤΟΙΧΕΙΑ
ΜΕΤΑΛΙΚΑ ΣΤΟΙΧΕΙΑ
ΜΑΡΑΜΑΡΙΝΑ ΣΤΟΙΧΕΙΑ
1
2
3
4
5
7
8
6
1
1
2
7
5
5
5
5
2
1
1
8
8
7
28
Efthimiadis Efthimios's Portfolio
-1.85
-2.05
-1.35
-1.85
-1.85
LIFT
WC AMEA
WC >
WC +
ΧΩΡΟΣ ΕΚΘΕΣΗΣ
ΑΙΘΟΥΣΑ ΠΡΟΒΟΛΗΣ
ΑΠΟΘΗΚΗ
ΑΠΟΘΗΚΗ
ΑΠΟΘΗΚΗ
ΓΡΑΦΕΙΟ ΔΗΜΟΣΙΩΝ ΣΧΕΣΕΩΝ
ΚΛΙΜΑΚΟΣΤΑΣΙΟ
±0.00
±0.00
0,15
1
2
3
4
5
6
7
8
9
10
11
12
13
14
1516171819202122
1
2
3
4
5
6
7
8
LIFT
ΑΙΘΟΥΣΑ ΤΥΠΟΥ
WC AMEA
WC > WC +
ΑΡΧΕΙΟ
ΚΥΛΙΚΕΙΟ
ΑΙΘΟΥΣΑ ΣΥΜΒΟΥΛΙΟΥ
ΚΛΙΜΑΚΟΣΤΑΣΙΟ
ΧΩΡΟΣ ΥΠΟΔΟΧΗΣ
ΑΙΘΟΥΣΑ ANAMONHΣ
+3.50
+4.00
+4.00
+4.00
±0.00
15161718 14 13 12
6
7
8
9
10
2
3
4
5
+7.50
LIFT
ΓΡΑΦΕΙΟ ΛΟΓΙΣΤΟΥ
WC >
WC +
ΚΟΥΖΙΝΑ
ΓΡΑΦΕΙΟ ΑΝΙΧΝΕΥΤΩΝ
+7.50
±0.00
+4.00
+3.50
ΚΛΙΜΑΚΟΣΤΑΣΙΟ
0.85
1.20
2.20
15161718 14 13 12
6
7
8
9
10
2
3
4
5
1
-1.85
LIFT
+3.50
WC >
WC +
ΓΡΑΦΕΙΟ ΑΝΤΙΠΡΟΕΔΡΟΥ
ΓΡΑΦΕΙΟ ΠΡΟΕΔΡΟΥ
ΑΙΘΟΥΣΑ ΣΥΜΒΟΥΛΙΟΥ
ΚΛΙΜΑΚΟΣΤΑΣΙΟ
±0.00
+7.50
ΓΡΑΜΜΑΤΕΙΑ
+10.50
+11.00
+4.00
15161718 14 13 12
6
7
8
9
10
2
3
4
5
1
+4.00
+3.50
+7.50 +14.50 15161718 14 13 12
8
9
10
2
3
4
1
5
29
Efthimiadis Efthimios's Portfolio
-1.85
+4.00
+3.50
+7.50
+14.50
Ð Å ÆÏ Ä ÑÏ Ì ÉÏ
±0.00
±0.00
0,207,900,208,152,801,200,20
0 ,2 0 4 ,0 5 2 ,2 0 3 ,80 0 ,20
+4.00
±0.00
-1.35
-1.85
+7.50
+11.00
+14.50
+15.50
+16.50
+4.00
±0.00
-1.35
-1.85
+7.50
+11.00
+14.50
+15.50
+16.50
30
Efthimiadis Efthimios's Portfolio
C O F F E E C O F F E E
+ 4 .0 0
± 0 .0 0
-1 .3 5
-1 . 8 5
+ 7 .5 0
+ 1 1 .0 0
+ 1 4 .5 0
+ 1 5 .5 0
+ 1 6 .5 0
+4.00
±0.00
+7.50
+11.00
-1.35
-1.85
+14.50
+15.50
+16.50

EE_Portofolio_2017

  • 1.
    Efthimiadis Efthimios's Portfolio 4358West 136th st. Apt #d, 90250 Hawthorne CA e-mail: efthimis_efthimiadis@hotmail.com Efthymiadis Efthy Building Engineer 4358 West 136th st. Apt #d, 90250 Hawthorne CA mail: efthimis_efthimiadis@hotmail.com tel: +01 682- 1 Efthymiadis Efthymios Building Engineer 4358 West 136th st. Apt #d, 90250 Hawthorne CA mail: efthimis_efthimiadis@hotmail.com -331-5293
  • 2.
    2 Efthimiadis Efthimios's Portfolio SeleCtedProJects 01. Architectural Composition II (pages 03-06) 02. Design of a public building-City Hall (pages 07-11) 03. Restoration and Reuse of a Monumental Structure (pages 12-16) 04 Renovation and Restoration of Building-The cultural centre (pages 17-21) 05. Dissertation Project- Restoration and Reuse of an immigrant residential property (pages 22-30)
  • 3.
    3 Efthimiadis Efthimios's Portfolio 01.Architectural Composition II SUBJECT: The study refers to a housing complex in the region of Galaxidi (Fokida) that includes also other kind of uses like offices and sport facilities. We also studied the position of more blocks of flats(phase B) that could be built in the future. The building site is situated on a cliff that is surrounded by mountains in all the directions except the south side where we have a view of the sea. The study consists of 3 identical multi story blocks of flats(phase A) that is designed for families and in the ground level for other uses like offices and stores. It aims to cover the needs of a small society. We also placed courts for tennis and basketball and a bicycle path in the perimeter of the building site in order to cover all the needs of the users we placed also parking spots close to the buildings and garden pavilions for people to enjoy the view. Our goal was to use as much as possible of the plot. Our main concern was functional layout of apartments. the building site is in a convenient position because it has a view of the sea as well of the forest. Therefore we decided to place balconies in the perimeter of the building. The materials we used was reinforced concrete. The project is designed in Autocad. LOCATION: GALAKSIDI FOKIDA ACADEMIC WORK GROUP WORK STUDENTS: SPYROPOULOU PARASKEV EFTHIMIADIS EFTHIMIOS PATHEKA SOFIA SEMESTER: 5th YEAR: JUNE 2009 PROFESSORS: THIRESIA VOZIKI GIWRGOS ELEZOGLOU GRADE: 9 (max. 10)
  • 4.
  • 5.
  • 6.
  • 7.
    7 Efthimiadis Efthimios's Portfolio 02.Design of a Public Building (City Hall) LOCATION: PATRA ACHAIA ACADEMIC WORK STUDENT: EFTHIMIADIS EFTHIMIOS SEMESTER: 6th SEMESTER (February-June) YEAR: 2009 PROFESSORS: LAZARIS ANDREAS MANOLOPOULOS ALEXANDROS GRADE: 8 (max10) SUBJECT: The aim of this project was to design a City Hall and include in it’s uses the traditional building that already existed in the plot. I decided to design an imposing building that would underline the importance of a city hall in the city as well as becoming a landmark of the city. I was persuaded that the City hall should communicate with the city centre so I turned the volume of the atrium to face the city centre. Despite the big size the building had to have in order to host all the functions of a City Hall I tried to manage the volume of the building to be respective to it’s surrounding. For that reason I decided to lower gradually the volume that is approaching the existing neoclassical building. The uses of the city hall are divided in the side volumes of the building as well as in the neoclassical building. The central atrium was designed as public space and aimed to be a space of social interaction. The building is designed in Autocad.
  • 8.
  • 9.
  • 10.
  • 11.
  • 12.
    12 Efthimiadis Efthimios's Portfolio 03.Restoration and Reuse of a Monumental Structure LOCATION: PATRA,ACHAIA ACADEMIC WORK INDIVIDUAL WORK STUDENT: EFTHIMIADIS EFTHIMIOS KOLLAROS DIMITRIOS SEMESTER: 7th (September - February) YEAR: 2009 - 2010 PROFESSORS: GEORGIADI ANASTASIA IOSIF FANOURAKIS GRADE: 7 (max 10) SUBJECT: The project required an architectural survey of a historical building, a complete record of the damages and propositions of restoration methods as well as a complete study of a new use of the building. The building has a neoclassical character and according to the Greek government it is a listed building. As a consequence we couldn’t make radical changes neither to the elevations nor to it’s use. Primarily the building was used as a house and we turned it into a conservatory. Because we tried to respect the architecture of the building we didn’t apply any changes to it’s exterior. In the interior we added a metal construction in order to create a big space that could be used as a hall for small concerts. We decided to use metal because it varies from the existing architecture so as a result we avoid any kind of imitation that would reduce it’s architectural value. The building is designed in Autocad.
  • 13.
  • 14.
  • 15.
  • 16.
  • 17.
    17 Efthimiadis Efthimios's Portfolio 04.Renovation and Restoration of Building-The Cultural Centre LOCATION: PATRA, ACHAIA ACADEMIC WORK GROUP WORK STUDENTS: EFTHIMIADIS EFTHIMIOS BARKA IOANNA-MARIA SEMESTER: 7th YEAR: JANUARY 2009 PROFESSORS: ANASTASIA GEORGIADI GRADE: 8.5 (max. 10) This study incorporates the mapping and renovation of a former underwear manufacturer building which now has become the building that houses the department of Building Renovation and Restoration. The aim of this study is the creation of a cultural centre that will encompass recreation spaces for the city’s inhabitants, as well as, to contribute to the wider cultural development of the area. In designing the synthesis, the main structure of the building has been preserved and the exterior walls have been converted encouraging thus the formation of a nice interplay with the architectural volumes. The synthesis consists of a main staircase with all the remaining functions being shaped around its existence. The final pattern of the building will not resemble the initial pattern and this confirms the achievement of our aim.
  • 18.
  • 19.
  • 20.
  • 21.
  • 22.
    22 Efthimiadis Efthimios's Portfolio 05.Dissertation Project- Restoration and Reuse of an immigrant residential property) The title of our dissertation is the restoration and renovation of an old building, remains of an immigrant era from the Asia Minor and its conversion from a residential property to a commercial property that will house the administrative offices of the Panionios FC in Athens, Greece. The building under research comprises of a dining area on the basement and a bedroom area on the first floor. Thus, we decided to combine the typical architecture of that era that was shaped according and following the immigrant wave from the Asia Minor, with the modern architecture of a modern metallic structure. By undertaking the risks associated with this challenge, we decided to work towards combining the initial view of the building and the creation of a completely new structure and incorporate it into the above mentioned architecture. LOCATION: ATHENS, GREECE ACADEMIC WORK INDIVIDUAL WORK STUDENT: EFTHIMIADIS EFTHIMIOS ANAMOURLOGLOU EVAGELIA BARKA IONNA-MARIA SEMESTER: DISSERTATION PROJECT YEAR: 2010-2011 PROFESSORS: ROYMPIEN DIONISIOS GRADE: 9 (max 10)
  • 23.
  • 24.
  • 25.
  • 26.
  • 27.
    27 Efthimiadis Efthimios's Portfolio -1.85 -2.05 -1.85 2 6 1 ΥΠΟΜΝΙΜΑΥΛΙΚΩΝ ΤΟΙΧΟΠΟΙΪΑ ΜΙΚΤΗ (ΛΙΘΟΥΣ-ΟΠΤΟΠΛΙΝΘΟΥΣ) ΤΟΙΧΟΠΟΙΪΑ ΟΠΤΟΠΛΙΝΘΟΔΟΜΗ ΣΚΥΡΟΔΕΜΑ ΔΑΠΕΔΟΜΩΣΑΪΚΟΥ ΔΑΠΕΔΟΠΑΡΚΕ ΔΑΠΕΔΟΑΠΟΚΕΡΑΜΙΚΑ ΠΛΑΚΙΔΙΑ ΜΑΡΜΑΡΟ ΚΡΟΚΑΛΑ 2 3 4 5 7 8 6 1 ΦΕΡΩΝ ΟΡΓΑΝΙΣΜΟΣ 44 4 5 2 8 8 8 8 1 1 7 ΥΠΟΜΝΙΜΑΥΛΙΚΩΝ ΤΟΙΧΟΠΟΙΪΑΜΙΚΤΗ (ΛΙΘΟΥΣ-ΟΠΤΟΠΛΙΝΘΟΥΣ) ΤΟΙΧΟΠΟΙΪΑΟΠΤΟΠΛΙΝΘΟΔΟΜΗ ΣΚΥΡΟΔΕΜΑ ΔΑΠΕΔΟΜΩΣΑΪΚΟΥ ΔΑΠΕΔΟΠΑΡΚΕ ΔΑΠΕΔΟΑΠΟΚΕΡΑΜΙΚΑΠΛΑΚΙΔΙΑ ΜΑΡΜΑΡΟ ΚΡΟΚΑΛΑ 2 3 4 5 7 8 6 1 ΦΕΡΩΝΟΡΓΑΝΙΣΜΟΣ ΥΠΟΜΝΙΜΑ ΥΛΙΚΩΝ ΤΟΙΧΟΠΟΙΪΑ ΜΙΚΤΗ (ΛΙΘΟΥΣ-ΟΠΤΟΠΛΙΝΘΟΥΣ) ΤΟΙΧΟΠΟΙΪΑ ΟΠΤΟΠΛΙΝΘΟΔΟΜΗ ΣΚΥΡΟΔΕΜΑ ΔΑΠΕΔΟ ΜΩΣΑΪΚΟΥ ΔΑΠΕΔΟ ΠΑΡΚΕ ΔΑΠΕΔΟ ΑΠΟ ΚΕΡΑΜΙΚΑ ΠΛΑΚΙΔΙΑ ΜΑΡΜΑΡΟ ΚΡΟΚΑΛΑ 1 2 3 4 5 7 8 6 1 2 2 2 2 2 3 3 3 3 3 2 2 2 2 2 5 7 7 8 8 ΦΕΡΩΝ ΟΡΓΑΝΙΣΜΟΣ 1 2 2 7 7 7 7 7 ΥΠΟΜΝΙΜΑ ΥΛΙΚΩΝ ΤΟΙΧΟΠΟΙΪΑ ΜΙΚΤΗ (ΛΙΘΟΥΣ-ΟΠΤΟΠΛΙΝΘΟΥΣ) ΤΟΙΧΟΠΟΙΪΑ ΟΠΤΟΠΛΙΝΘΟΔΟΜΗ ΣΚΥΡΟΔΕΜΑ ΔΑΠΕΔΟ ΜΩΣΑΪΚΟΥ ΔΑΠΕΔΟ ΠΑΡΚΕ ΔΑΠΕΔΟ ΑΠΟ ΚΕΡΑΜΙΚΑ ΠΛΑΚΙΔΙΑ ΜΑΡΜΑΡΟ ΚΡΟΚΑΛΑ 2 3 4 5 7 8 6 1 ΦΕΡΩΝ ΟΡΓΑΝΙΣΜΟΣ ΥΠΟΜΝΙΜΑ ΥΛΙΚΩΝ ΟΠΛΙΣΜΕΝΟ ΣΚΥΡΟΔΕΜΑ ΞΥΛΙΝΑ ΣΤΟΙΧΕΙΑ ΕΠΙΧΡΙΣΜΕΝΗ ΟΠΤΟΠΛΙΝΘΟΙ ΕΠΙΧΡΙΣΜΕΝΗ ΠΛΙΝΘΟΔΟΜΗ ΝΕΟΤΕΡΟ ΕΥΤΕΛΕΣ ΥΛΙΚΟ ΚΕΡΑΜΙΚΑ ΣΤΟΙΧΕΙΑ ΜΕΤΑΛΙΚΑ ΣΤΟΙΧΕΙΑ ΜΑΡΑΜΑΡΙΝΑ ΣΤΟΙΧΕΙΑ 1 2 3 4 5 7 8 6 +4.00 ±0.00 -1.35 -1.85 +7.50 +11.00 1 1 5 5 5 5 5 7 7 7 5 1 2 5 8 +4.00 ±0.00 -1.35 -1.85 +7.50 +11.00 ΥΠΟΜΝΙΜΑ ΥΛΙΚΩΝ ΟΠΛΙΣΜΕΝΟ ΣΚΥΡΟΔΕΜΑ ΞΥΛΙΝΑ ΣΤΟΙΧΕΙΑ ΕΠΙΧΡΙΣΜΕΝΗ ΟΠΤΟΠΛΙΝΘΟΙ ΕΠΙΧΡΙΣΜΕΝΗ ΠΛΙΝΘΟΔΟΜΗ ΝΕΟΤΕΡΟ ΕΥΤΕΛΕΣ ΥΛΙΚΟ ΚΕΡΑΜΙΚΑ ΣΤΟΙΧΕΙΑ ΜΕΤΑΛΙΚΑ ΣΤΟΙΧΕΙΑ ΜΑΡΑΜΑΡΙΝΑ ΣΤΟΙΧΕΙΑ 1 2 3 4 5 7 8 6 5555 5 5 5 8 2 1 177 67 7 +4.00 ±0.00 +7.50 +11.00 -1.35 -1.85 ΥΠΟΜΝΙΜΑ ΥΛΙΚΩΝ ΟΠΛΙΣΜΕΝΟ ΣΚΥΡΟΔΕΜΑ ΞΥΛΙΝΑ ΣΤΟΙΧΕΙΑ ΕΠΙΧΡΙΣΜΕΝΗ ΟΠΤΟΠΛΙΝΘΟΙ ΕΠΙΧΡΙΣΜΕΝΗ ΠΛΙΝΘΟΔΟΜΗ ΝΕΟΤΕΡΟ ΕΥΤΕΛΕΣ ΥΛΙΚΟ ΚΕΡΑΜΙΚΑ ΣΤΟΙΧΕΙΑ ΜΕΤΑΛΙΚΑ ΣΤΟΙΧΕΙΑ ΜΑΡΑΜΑΡΙΝΑ ΣΤΟΙΧΕΙΑ 1 2 3 4 5 7 8 6 1 1 2 7 5 5 5 5 2 1 1 8 8 7
  • 28.
    28 Efthimiadis Efthimios's Portfolio -1.85 -2.05 -1.35 -1.85 -1.85 LIFT WCAMEA WC > WC + ΧΩΡΟΣ ΕΚΘΕΣΗΣ ΑΙΘΟΥΣΑ ΠΡΟΒΟΛΗΣ ΑΠΟΘΗΚΗ ΑΠΟΘΗΚΗ ΑΠΟΘΗΚΗ ΓΡΑΦΕΙΟ ΔΗΜΟΣΙΩΝ ΣΧΕΣΕΩΝ ΚΛΙΜΑΚΟΣΤΑΣΙΟ ±0.00 ±0.00 0,15 1 2 3 4 5 6 7 8 9 10 11 12 13 14 1516171819202122 1 2 3 4 5 6 7 8 LIFT ΑΙΘΟΥΣΑ ΤΥΠΟΥ WC AMEA WC > WC + ΑΡΧΕΙΟ ΚΥΛΙΚΕΙΟ ΑΙΘΟΥΣΑ ΣΥΜΒΟΥΛΙΟΥ ΚΛΙΜΑΚΟΣΤΑΣΙΟ ΧΩΡΟΣ ΥΠΟΔΟΧΗΣ ΑΙΘΟΥΣΑ ANAMONHΣ +3.50 +4.00 +4.00 +4.00 ±0.00 15161718 14 13 12 6 7 8 9 10 2 3 4 5 +7.50 LIFT ΓΡΑΦΕΙΟ ΛΟΓΙΣΤΟΥ WC > WC + ΚΟΥΖΙΝΑ ΓΡΑΦΕΙΟ ΑΝΙΧΝΕΥΤΩΝ +7.50 ±0.00 +4.00 +3.50 ΚΛΙΜΑΚΟΣΤΑΣΙΟ 0.85 1.20 2.20 15161718 14 13 12 6 7 8 9 10 2 3 4 5 1 -1.85 LIFT +3.50 WC > WC + ΓΡΑΦΕΙΟ ΑΝΤΙΠΡΟΕΔΡΟΥ ΓΡΑΦΕΙΟ ΠΡΟΕΔΡΟΥ ΑΙΘΟΥΣΑ ΣΥΜΒΟΥΛΙΟΥ ΚΛΙΜΑΚΟΣΤΑΣΙΟ ±0.00 +7.50 ΓΡΑΜΜΑΤΕΙΑ +10.50 +11.00 +4.00 15161718 14 13 12 6 7 8 9 10 2 3 4 5 1 +4.00 +3.50 +7.50 +14.50 15161718 14 13 12 8 9 10 2 3 4 1 5
  • 29.
    29 Efthimiadis Efthimios's Portfolio -1.85 +4.00 +3.50 +7.50 +14.50 ÐÅ ÆÏ Ä ÑÏ Ì ÉÏ ±0.00 ±0.00 0,207,900,208,152,801,200,20 0 ,2 0 4 ,0 5 2 ,2 0 3 ,80 0 ,20 +4.00 ±0.00 -1.35 -1.85 +7.50 +11.00 +14.50 +15.50 +16.50 +4.00 ±0.00 -1.35 -1.85 +7.50 +11.00 +14.50 +15.50 +16.50
  • 30.
    30 Efthimiadis Efthimios's Portfolio CO F F E E C O F F E E + 4 .0 0 ± 0 .0 0 -1 .3 5 -1 . 8 5 + 7 .5 0 + 1 1 .0 0 + 1 4 .5 0 + 1 5 .5 0 + 1 6 .5 0 +4.00 ±0.00 +7.50 +11.00 -1.35 -1.85 +14.50 +15.50 +16.50